Бесплатная библиотека стандартов и нормативов www.docload.ru

Все документы, размещенные на этом сайте, не являются их официальным изданием и предназначены исключительно для ознакомительных целей.
Электронные копии этих документов могут распространяться без всяких ограничений. Вы можете размещать информацию с этого сайта на любом другом сайте.
Это некоммерческий сайт и здесь не продаются документы. Вы можете скачать их абсолютно бесплатно!
Содержимое сайта не нарушает чьих-либо авторских прав! Человек имеет право на информацию!

 

Группа Д88

Изменение № 3 ГОСТ 18477-79 Контейнеры универсальные. Типы, основные параметры и размеры

Утверждено и введено в действие Постановлением Государственного комитета СССР по стандартам от 24.02.88 № 345

Дата введения 01.07.88

 

Вводную часть после слов «и автомобильным транспортом» изложить в новой редакции: «включая крупнотоннажные контейнеры кодов 00-04, 10, 11, 13, 50-53 по ГОСТ 25290-82, а также универсальные малотоннажные автомобильные контейнеры для прямых перевозок указанных грузов на автомобильном транспорте.

Стандарт не распространяется на универсальные крупнотоннажные контейнеры других кодов, на универсальные контейнеры, обладающие повышенными по сравнению с устанавливаемыми настоящим стандартом размерами и массой брутто, на универсальные авиационные и специализированные (индивидуальные и групповые) контейнеры.

В стандарте полностью учтены требования международных стандартов ИСО 668, ИСО 1161, ИСО 1496/1.

Стандарт полностью соответствует СТ СЭВ 772-83.

Пункт 1.1. Заменить значение: 2,5 на 3 (2 раза).

Пункт 1.2. Таблицу 1 изложить в новой редакции:

Таблица 1

Тип контейнера

Обозначение типоразмера

Масса брутто, т

Внутренний объем, м3, не менее

Rном

Rмакс

Крупнотоннажные

 

 

 

 

1АА

30

30,48

65,6

30

30,48

61,3

1АХ

30

30,48

*

1ВВ**

25

25,40

48,9

1В**

25

25,40

45,7

1ВХ**

25

25,40

*

1СС

24

24,00

32,1

1C

24

24,00

30,0

1СХ

24

24,00

*

1D

10

10,16

14,3

1DX

10

10,16

*

Среднетоннажные

 

 

 

 

 

УУКП-5(6)

5

6,00***

11,3

УУКП-5

5

5,0

11,3

УУК-5(6)

5

6,00***

10,4

УУК-5

5

5,00

10,4

УУК-5У

5

5,00

5,1

УУКП-3(5)

3

5,00

5,7

УУК-3(5)

3

5,00

5,1

 

УУК-3

3

3,00

5,1

Малотоннажные

 

 

 

 

 

АУК-1,25

1,25

1,25

3,0

 

АУК-0,625

0,625

0,63

1,4

* Определяют расчетом в зависимости от принятой высоты контейнера.

** К строительству в СССР не приняты. Параметры учитывают при проектировании подвижного состава.

*** Повышение массы брутто контейнеров с 5 до 6 т осуществляют в сроки, устанавливаемые нормативными документами транспортных министерств.

примечание исключить.

Пункты 1.4, 1.6 изложить в новой редакции: «1.4. Крупнотоннажные и среднетоннажные контейнеры всех типоразмеров должны изготовляться закрытыми и открытыми со съемной крышей, съемным тентом или без них.

Внутренний объем открытых контейнеров типоразмеров 1СС и 1C должен быть соответственно не менее 31,5 и 29,5 м3, контейнеров других типоразмеров - по согласованию с транспортными министерствами».

1.6. Условное обозначение контейнера должно состоять из обозначения типоразмера и обозначения настоящего стандарта. В условном обозначении крупнотоннажного контейнера, кроме того, указывают код по ГОСТ 25290-82.

Примеры условного обозначения:

универсального унифицированного закрытого крупнотоннажного контейнера массой брутто 30,48 т, высотой 2591 мм, с естественной вентиляцией при общей площади поперечного сечения вентиляционных отверстий менее 25 см2/м номинальной длины контейнера:

1АА ГОСТ 18477-79 код 10 ГОСТ 25290-82

то же, открытого крупнотоннажного контейнера массой брутто 24 т, высотой менее 2438 мм, с проемом в одном торце:

1СХ ГОСТ 18477-79 код 50 ГОСТ 25290-82

то же, среднетоннажного контейнера номинальной и предельной массой брутто 5 т, высотой 2400 мм:

УУК-5 ГОСТ 18477-79

то же, среднетоннажного контейнера номинальной массой брутто 3 т и предельной 5 т, высотой 2591 мм:

УУКП-3(5) ГОСТ 18477-79

автомобильного универсального малотоннажного контейнера массой брутто 1,25 т:

АУК-1,25 ГОСТ 18477-79.

Основные наружные и внутренние размеры крупнотоннажных, среднетоннажных и малотоннажных контейнеров должны соответствовать указанным на черт. 1-6 и табл. 2.

 

Таблица 2

Обозначение типоразмера

Размеры

Номер чертежа

Наружные

Внутренние, не менее

Длина L

Ширина В

Высота Н

Длина l

Ширина b

Высота h

1AA

12192-10

2438-5

2591-5

11988

2330

2350

1

12192-10

2438-5

2438-5

11988

2330

2197

1

1АХ

12192-10

2438-5

<2438

11988

2330

*

1

1BB

9125-10

2438-5

2591-5

8931

2330

2350

1

9125-10

2438-5

2438-5

8931

2330

2197

1

1BX

9125-10

2438-5

<2438

8931

2330

*

1

1СС

6058-6

2438-5

2591-5

5867

2330

2350

1

1C

6058-6

2438-5

2438-5

5867

2330

2197

1

1СХ

6058-5

2438-5

<2438

5867

2330

*

1

1D

2991-5

2438-5

2438-5

2802

2330

2197

1

1DX

2991-5

2438-5

<2438

2802

2330

*

1

УУКП-5(6)

2100±5

2650±7

2591±5

1950

2515

2310

2

УУКП-5

2100±5

2650±7

2591±5

1950

2515

2310

2

УУК-5(6)

2100±5

2650±7

2400±5

1950

2515

2128

2

УУК-5

2100±5

2650±7

2400±5

1950

2515

2128

2; 3

УУК-5У

2100±5

1325±3

2400±5

1980

1216

2128

4; 5

УУКП-3(5)

2100±5

1325±3

2591±5

1980

1225

2380

4; 5

УУК-3(5)

2100±5

1325±3

2400±5

1980

1225

2128

4; 5

УУК-3

2100±5

1325±3

2400±5

1980

1225

2128

4; 5

АУК-1,25

1800±5

1050±3

2000±5

1720

960

1820

6

АУК-0,625

1150±3

1050±3

1700±5

1070

910

1520

6

* Определяют расчетом в зависимости от принятой наружной высоты контейнера.

Примечания:

1. Внутреннюю высоту открытых контейнеров со съемной крышей, съемным тентом или без них типоразмеров 1АА и 1СС кодов 50-53 допускается уменьшать по согласованию между изготовителем и заказчиком до 2311 мм и типоразмеров 1А, 1C и 1D - до 2158 мм при соответствующем изменении внутреннего объема.

2. Высота открытых контейнеров типоразмеров 1АХ, 1ВХ, 1СХ и 1DX с учетом возможности их двухъярусной перевозки на железнодорожном транспорте не должна превышать 1580 мм. Любая большая высота в пределах до 2438 мм должна согласовываться с МПС.

3. Размеры, указанные в табл. 2 и примечаниях к ней, действительны при температуре 20 °С.

 

чертеж 2. Наименование после слова «контейнеры» дополнить обозначениями: «УУКП-5(6), УУКП-5, УУК-5(6) и»;

чертежи 4, 5. Наименование после слова «контейнеры» дополнить обозначениями: «УУК-5У, УУКП-3(5), УУК-3(5) и»;

чертеж 6. Наименование после слова «контейнеры» дополнить обозначением: «АУК-1,25 и».

Раздел 2. Наименование. Исключить слово: «торцевых».

Пункт 2.1 после слова «проема» дополнить словом: «закрытых»;

таблицу 3 для типоразмеров УУК-5-УУК-5у изложить в новой редакции:

Таблица 3

Обозначение

Торцевые дверные проемы контейнеров в свету, мм, не менее

Ширина

Высота

УУКП-5(6)

1950

2280

УУКП-5

1950

2280

УУК-5(6)

1950

2100

УУК-5

1950

2100

УУК-5У

1216

2090

УУКП-3(5)

1225

2300

УУК-3(5)

1225

2090

примечание исключить.

 

Пункты 2.2, 2.3, 2.5 изложить в новой редакции: «2.2. По требованию заказчика закрытые контейнеры кодов 02 и 04 типоразмеров 1АА, 1А, 1СС и 1C следует выполнять с боковыми дверными проемами шириной 2790 мм и высотой 2076 мм (1А, 1C) или 2200 мм (1АА, 1СС). Внутренняя ширина таких контейнеров, а также открытых контейнеров кодов 52 и 53 может быть уменьшена по сравнению с указанной в табл. 2 в пределах, согласованных с заказчиком».

2.3. При наличии у контейнеров типоразмеров УУК-5У, УУКП-3(5), УУК-3(5) и УУК-3 боковой двери (черт. 4) вместо торцовой ширина и высота дверного проема должны быть равны внутренним длине и высоте этих контейнеров. Если такое равенство обеспечить невозможно, то ширина бокового дверного проема у контейнеров всех указанных типоразмеров должны быть не менее 1950 мм, а высота - не менее 2090 мм у контейнеров типоразмеров УУК-5У, УУК-3(5), УУК-3 и не менее 2280 мм - у контейнера типоразмера УУКП-3(5).

Размеры бокового дверного проема контейнеров типоразмеров УУКП-5(6), УУКП-5, УУК-5(6) и УУК-5 устанавливаются транспортными министерствами.

2.5. Размеры и расположение рымных узлов закрытых среднетоннажных контейнеров - по ГОСТ 18579-79 и приведенным на черт. 2-5, открытых среднетоннажных - по утвержденной конструкторской документации, автомобильных малотоннажных - по ГОСТ 22225-76.

Пункт 2.7. Примечание 2. Заменить слово: «Контейнеры» на «Крупнотоннажные контейнеры».

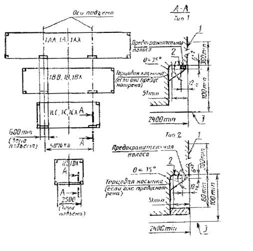
Пункт 2.8. Чертеж 8 заменить новым:

 

1 - часть стенки, включая выступающие заклепки и головки болтов, не должна отстоять от внутренней грани предохранительной полосы (планки, кромки) более чем на 12-2 мм; 2 - полка балки в зоне контакта с лапой захвата должна быть плоской и горизонтальной и образовывать с предохранительной полосой прямой угол; 3 - нижняя поверхность нижних угловых фитингов

 

Черт. 8

 

(ИУС № 5 1988 г.)




Rambler's Top100 Яндекс цитирования
  Copyright © 2008-2026, www.docload.ru