
ГОСУДАРСТВЕННЫЙ
СТАНДАРТ СОЮЗА ССР
ТРУБЫ
ЖЕЛЕЗОБЕТОННЫЕ НАПОРНЫЕ
ВИБРОГИДРОПРЕССОВАННЫЕ
КОНСТРУКЦИЯ И РАЗМЕРЫ
ГОСТ 12586.1-83
МОСКВА - 1984
РАЗРАБОТАНЫ
Министерством промышленности строительных материалов СССР
Научно-исследовательским институтом бетона и железобетона (НИИЖБ)
Госстроя СССР
Государственным проектным институтом «СОЮЗВОДОКАНАЛПРОЕКТ»
Министерством строительного, дорожного и коммунального машиностроения
Министерством путей сообщения
ИСПОЛНИТЕЛИ
О.И. Крикунов, М.Л. Зайченко, канд.
техн. наук (руководители темы); Е.Г.
Фролов, А.Л. Ционский, канд.
техн. наук; В.С. Гершвальд, канд.
техн. наук; В.В. Пирожников, Л.П.
Хлюпин, Н.Л. Рипс, И.И. Бергер, А.И. Долгушин; В.С. Дикаревский, д-р техн. наук; О.А.
Предоус, канд. техн. наук; П.П.
Якубчик, канд. техн. наук; В.И.
Деньщиков
ВНЕСЕНЫ
Министерством промышленности строительных материалов СССР
Зам. министра И.В. Ассовский
УТВЕРЖДЕНЫ И ВВЕДЕНЫ В ДЕЙСТВИЕ Постановлением Государственного комитета
СССР по делам строительства от 31 октября 1983 г. № 298
ГОСУДАРСТВЕННЫЙ СТАНДАРТ СОЮЗА ССР
Постановлением Государственного комитета СССР по делам строительства от
31 октября 1983 г. № 298 срок введения установлен
с 01.01.85
Несоблюдение стандарта преследуется по закону
1. Настоящий стандарт распространяется на
железобетонные предварительно напряженные напорные раструбные трубы,
изготовляемые из тяжелого бетона методом виброгидропрессования, и устанавливает
конструкцию труб, а также арматурных и закладных изделий к ним.
2. Трубы должны удовлетворять всем требованиям ГОСТ 12586.0-83 и требованиям, изложенным в
соответствующих пунктах настоящего стандарта.
3. Технические показатели труб приведены в табл. 1.
Таблица 1
Технические показатели труб
|
Диаметр
условного прохода трубы d, мм
|
Марка трубы
|
Класс бетона попрочности на сжатие
|
Расход материалов
|
|
Бетон, м3
|
Сталь, кг
|
|
500
|
ТН50-0
|
В40
|
0,53
|
70,8
|
|
ТН50-I
|
61,3
|
|
ТН50-II
|
44,7
|
|
ТН50-III
|
В30
|
44,7
|
|
600
|
ТН60-0
|
В40
|
0,76
|
78,6
|
|
ТН60-I
|
74,4
|
|
ТН60-II
|
52,4
|
|
ТН60-III
|
В30
|
49,3
|
|
800
|
ТН80-I
|
В40
|
0,99
|
106,6 (139,8)
|
|
ТН80-II
|
92,7
|
|
ТН80-III
|
67,2
|
|
1000
|
ТН100-I
|
1,42
|
186,5
|
|
ТН100-II
|
158,3
|
|
ТН100-III
|
111,4
|
|
1200
|
ТН120-I
|
1,98
|
287,0
|
|
ТН120-II
|
207,9
|
|
ТН120-III
|
146,1
|
|
1400
|
ТН140-I
|
2,66
|
441,2
|
|
ТН140-II
|
308,2
|
|
ТН140-III
|
226,9
|
|
1600
|
ТН160-I
|
3,28
|
593,5
|
|
ТН160-II
|
386,4
|
|
ТН160-III
|
285,7
|
Примечание. Расход стали для труб марки
ТН80-I приведен для
двух вариантов армирования (п. 4): первый вариант указан без скобок, второй - в
скобках.
4. Армирование труб должно соответствовать
указанному на черт. 1 и в табл. 2.
Армирование труб
марки ТН80-I может производиться по двум вариантам: по первому
варианту при изготовлении труб в четырехразъемных формах, по второму - в
двухразъемных. Данные армирования для труб марки ТН80-I, приведенные на черт. 2 и в
табл. 2,
4, 5, 7, по
первому варианту указаны без скобок, по второму варианту - в скобках.
Продольная
напрягаемая арматура марок П1-П5 должна располагаться равномерно по окружности.
Армирование труб

Черт. 1
Таблица 2
Размеры труб
мм
|
Марка
трубы
|
a1*
|
a2**
|
a3**
|
|
ТН50-0
|
17
|
32
|
19
|
|
ТН50-I
|
16
|
|
ТН50-II
|
17
|
|
ТН50-III
|
17
|
|
ТН60-0
|
17
|
43
|
20
|
|
ТН60-I
|
17
|
|
ТН60-II
|
18
|
|
ТН60-III
|
18
|
|
ТН80-I
|
18 (17)
|
39,5
|
22
|
|
ТН80-II
|
18
|
|
ТН80-III
|
19
|
|
ТН100-I
|
18
|
49,5
|
22
|
|
ТН100-II
|
18
|
|
ТН100-III
|
19
|
|
ТН120-I
|
18
|
55
|
31
|
|
ТН120-II
|
19
|
|
ТН120-III
|
20
|
|
ТН140-I
|
18
|
64,5
|
28
|
|
ТН140-II
|
18
|
|
ТН140-III
|
19
|
|
ТН160-I
|
18
|
74
|
29
|
|
ТН160-II
|
18
|
|
ТН160-III
|
19
|
* Размеры указаны для проектного положения каркаса
после опрессовки бетона трубы.
** Размеры а2, а3 -
справочные
Каркасы К1¸К21

Черт. 2
5. Спецификация арматурных изделий на одну трубу
приведена в табл. 3, выборка стали - в табл. 4.
Таблица 3
Спецификация арматурных
изделий на одну трубу
|
Марка
трубы
|
Каркас
|
Продольная арматура
|
|
Марка
|
Количество
|
Марка
|
Количество
|
|
ТН50-0
|
К1
|
1
|
П1
|
15
|
|
ТН50-I
|
К2
|
|
ТН50-II
|
К3
|
|
ТН50-III
|
К3
|
|
ТН60-0
|
К4
|
1
|
П1
|
14
|
|
ТН60-I
|
К5
|
|
ТН60-II
|
К6
|
|
ТН60-III
|
К6а
|
|
ТН80-I
|
К7
|
1
|
П2
|
20
|
|
ТН80-II
|
К8
|
|
ТН80-III
|
К9
|
|
ТН100-I
|
К10
|
1
|
П2
|
24
|
|
ТН100-II
|
К11
|
|
ТН100-III
|
К12
|
|
ТН120-I
|
К13
|
1
|
П3
|
35
|
|
ТН120-II
|
К14
|
30
|
|
ТН120-III
|
К15
|
30
|
|
ТН140-I
|
К16
|
1
|
П4
|
44
|
|
ТН140-II
|
К17
|
40
|
|
ТН140-III
|
К18
|
40
|
|
ТН160-I
|
К19
|
1
|
П5
|
54
|
|
ТН160-II
|
К20
|
50
|
|
ТН160-III
|
К21
|
50
|
Таблица 4
Выборка стали на одну трубу
кг
|
Марка
трубы
|
Арматурная сталь по ГОСТ 7348-81
|
Сталь прокатная по ГОСТ 503-81
|
Всего
|
|
Класс Вр-II
|
Класс В-II
|
Итого
|
|
Диаметр 5 мм
|
Диаметр, мм
|
Итого
|
|
3
|
4
|
5
|
6
|
7
|
8
|
Сечение 20´0,7
мм
|
|
ТН50-0
|
12,5
|
-
|
51,9
|
-
|
-
|
-
|
-
|
51,9
|
63,9
|
6,9
|
70,8
|
|
ТН50-I
|
-
|
42,4
|
-
|
-
|
-
|
-
|
42,4
|
54,4
|
61,3
|
|
ТН50-II
|
25,8
|
-
|
-
|
-
|
-
|
-
|
25,8
|
37,8
|
44,7
|
|
ТН50-III
|
25,8
|
-
|
-
|
-
|
-
|
-
|
25,8
|
37,8
|
44,7
|
|
ТН60-0
|
11,2
|
-
|
60,5
|
-
|
-
|
-
|
-
|
60,5
|
71,7
|
6,9
|
78,6
|
|
ТН60-I
|
-
|
56,3
|
-
|
-
|
-
|
-
|
56,3
|
67,5
|
74,4
|
|
ТН60-II
|
34,3
|
-
|
-
|
-
|
-
|
-
|
34,3
|
45,5
|
52,4
|
|
ТН60-III
|
31,2
|
-
|
-
|
-
|
-
|
-
|
31,2
|
42,4
|
49,3
|
|
ТН80-I
|
16,0
|
-
|
80,2 (113,4)
|
-
|
-
|
-
|
-
|
80,2 (113,4)
|
96,2 (129,4)
|
10,4
|
106,6 (139,8)
|
|
ТН80-II
|
16,0
|
-
|
66,3
|
-
|
-
|
-
|
-
|
66,3
|
82,3
|
10,4
|
92,7
|
|
ТН80-III
|
16,0
|
40,8
|
-
|
-
|
-
|
-
|
-
|
40,8
|
56,8
|
10,4
|
67,2
|
|
ТН100-I
|
19,2
|
-
|
-
|
156,9
|
-
|
-
|
-
|
156,9
|
176,1
|
10,4
|
186,5
|
|
ТН100-II
|
19,2
|
-
|
-
|
128,7
|
-
|
-
|
-
|
128,7
|
147,9
|
10,4
|
158,3
|
|
ТН100-III
|
19,2
|
-
|
81,8
|
-
|
-
|
-
|
-
|
81,8
|
101,0
|
10,4
|
111,4
|
|
ТН120-I
|
28,0
|
-
|
-
|
-
|
245,2
|
-
|
-
|
245,2
|
273,2
|
13,8
|
287,0
|
|
ТН120-II
|
24,0
|
-
|
-
|
170,1
|
-
|
-
|
-
|
170,1
|
194,1
|
13,8
|
207,9
|
|
ТН120-III
|
24,0
|
-
|
108,3
|
-
|
-
|
-
|
-
|
108,3
|
132,3
|
13,8
|
146,1
|
|
ТН140-I
|
35,7
|
-
|
-
|
-
|
-
|
391,7
|
-
|
391,7
|
427,1
|
13,8
|
441,2
|
|
ТН140-II
|
32,4
|
-
|
-
|
-
|
262,0
|
-
|
-
|
262,0
|
294,4
|
13,8
|
308,2
|
|
ТН140-III
|
32,4
|
-
|
-
|
180,7
|
-
|
-
|
-
|
180,7
|
213,1
|
13,8
|
226,9
|
|
ТН160-I
|
43,8
|
-
|
-
|
-
|
-
|
-
|
532,5
|
532,5
|
576,3
|
17,2
|
593,5
|
|
ТН160-II
|
40,5
|
-
|
-
|
-
|
328,7
|
-
|
-
|
328,7
|
369,2
|
17,2
|
386,4
|
|
ТН160-III
|
40,5
|
-
|
-
|
228,0
|
-
|
-
|
-
|
228,0
|
268,5
|
17,2
|
285,7
|
6. Форма и размеры арматурных
каркасов должны соответствовать указанным на черт. 2 и 3 и приведенным в табл. 5 и 6.
Спецификация и выборка
стали на одно арматурное изделие приведены в табл. 7.
7. Продольная арматура марок П1-П5 должна
вырезаться отрезками, на концах которых после установки втулок высаживают головки.
Заготовочная длина отрезков, размеры головок и набор втулок должны
рассчитываться и приниматься в соответствии с требованиями СНиП 3.09.01-85. В спецификации стали
на одно арматурное изделие (табл. 7) приведена длина арматуры в теле бетона трубы.
Таблица 5
Размеры арматурных каркасов
К1-К21
|
Марка
каркаса
|
Размеры в мм
|
a
|
|
d1
|
d2
|
l
|
l1
|
l2
|
d3
|
m
|
|
К1
|
569
|
753
|
5145
|
490
|
4655
|
4
|
18
|
30°
|
|
К2
|
4
|
22
|
|
К3
|
3
|
20
|
|
К4
|
688
|
901
|
5145
|
570
|
4575
|
4
|
18
|
30°
|
|
К5
|
688
|
901
|
4
|
20
|
|
К6 (К6а)
|
687
|
900
|
3
|
18(20)
|
|
К7(К7а)
|
885
|
1109
|
5155
|
630
|
4525
|
4(5)
|
18(20)
|
20°
|
|
К8
|
885
|
1109
|
4
|
22
|
|
К9
|
884
|
1108
|
3
|
20
|
|
К10
|
1102
|
1340
|
5155
|
660
|
4495
|
5
|
18
|
20°
|
|
К11
|
1102
|
1340
|
5
|
22
|
|
К12
|
1101
|
1339
|
4
|
22
|
|
К13
|
1319
|
1597
|
5155
|
780
|
4375
|
6
|
20
|
15°
|
|
К14
|
1318
|
1596
|
5
|
|
К15
|
1317
|
1595
|
4
|
|
К16
|
1538
|
1846
|
5185
|
850
|
4335
|
7
|
20
|
15°
|
|
К17
|
1538
|
1846
|
6
|
22
|
|
К18
|
1537
|
1845
|
5
|
22
|
|
К19
|
1757
|
2085
|
5185
|
925
|
4260
|
8
|
22
|
12°
|
|
К20
|
1757
|
2085
|
6
|
20
|
|
К21
|
1756
|
2084
|
5
|
20
|
Примечание. В таблице указаны заготовочные
размеры диаметров каркасов. Размеры l, l1, l2 справочные.
Разделительные полосы поз. 22¸29

Черт. 3
Таблица 6
Размеры разделительных полос
мм
|
Позиция
|
S
|
h
|
b
|
|
22
|
18,02
|
3,5
|
9,5
|
|
23
|
20,03
|
3,5
|
9,5
|
|
24
|
22,03
|
4,5
|
11,5
|
|
25
|
18,02
|
4,5
|
11,5
|
|
26
|
20,03
|
5,0
|
13,3
|
|
27
|
22,03
|
5,0
|
13,3
|
|
29
|
20,03
|
5,5
|
17,0
|
|
29
|
22,03
|
6,5
|
19,0
|
Примечание. Размеры разделительных полос приведены
минимальными. Максимальные размеры определяются конструкцией режущего
инструмента и способом изготовления полос. Допускается поз. 22 - 24 изготовлять
из полосы сечением 20´0,7 мм.
Таблица 7
Спецификация и выборка стали на одно арматурное изделие
|
Марка
изделия
|
Позиция
|
Эскиз стержня
|
Диаметр или сечение, мм
|
Длина, мм
|
Количество
|
Общая длина, м
|
Выборка стали
|
|
Диаметр или сечение, мм
|
Масса, кг
|
Масса изделия, кг
|
|
К1
|
1
|
______
|
4ВII
|
529300
|
1
|
529,3
|
4ВII
|
51,9
|
58,8
|
|
25
|
См. черт. 3
|
20´0,7
|
5220
|
12
|
62,64
|
20´0,7
|
6,9
|
|
К2
|
2
|
______
|
4
|
432000
|
1
|
432
|
4ВII
|
42,4
|
49,3
|
|
24
|
См. черт. 3
|
20´0,7
|
5220
|
12
|
62,64
|
20´0,7
|
6,9
|
|
К3
|
3
|
______
|
3ВII
|
469000
|
1
|
469,0
|
3ВII
|
25,8
|
32,7
|
|
23
|
См. черт. 3
|
20´0,7
|
5220
|
12
|
62,64
|
20´0,7
|
6,9
|
|
К4
|
4
|
______
|
4ВII
|
617700
|
1
|
617,7
|
4ВII
|
60,5
|
67,4
|
|
25
|
См. черт. 3
|
20´0,7
|
5220
|
12
|
62,64
|
20´0,7
|
6,9
|
|
К5
|
5
|
______
|
4
|
576500
|
1
|
576
|
4ВII
|
56,3
|
63,2
|
|
23
|
См. черт. 3
|
20´0,7
|
5220
|
12
|
62,64
|
20´0,7
|
6,9
|
|
К6 (К6а)
|
6 (6а)
|
______
|
3
|
623000 (566900)
|
1
|
623 (566,9)
|
3ВII
|
34,3
(31,2)
|
41,2 (38,1)
|
|
22 (23)
|
См. черт. 3
|
20´0,7
|
5220
|
12
|
62,64
|
20´0,7
|
6,9
|
|
К7 (К7а)
|
7 (7а)
|
______
|
4 (5)
|
818500 (736640)
|
1
|
818,5 (736,6)
|
4ВII (5ВII)
|
80,2
(113,4)
|
90,6 (123,8)
|
|
25 (26)
|
См. черт. 3
|
20´0,7
|
5220
|
18
|
93,96
|
20´0,7
|
10,4
|
|
К8
|
8
|
______
|
4ВII
|
676400
|
1
|
676,4
|
4ВII
|
66,3
|
76,7
|
|
24
|
См. черт. 3
|
20´0,7
|
5220
|
18
|
93,96
|
20´0,7
|
10,4
|
|
К9
|
9
|
______
|
3ВII
|
742700
|
1
|
742,7
|
3ВII
|
40,8
|
51,2
|
|
23
|
См. черт. 3
|
20´0,7
|
5220
|
18
|
93,96
|
20´0,7
|
10,4
|
|
К10
|
10
|
______
|
5ВII
|
1018800
|
1
|
1018,8
|
5ВII
|
156,9
|
167,3
|
|
25
|
См. черт. 3
|
20´0,7
|
5220
|
18
|
93,96
|
20´0,7
|
10,4
|
|
К11
|
11
|
______
|
5ВII
|
835600
|
1
|
835,6
|
5ВII
|
128,7
|
139,1
|
|
27
|
См. черт. 3
|
20´0,7
|
5220
|
18
|
93,96
|
20´0,7
|
10,4
|
|
К12
|
12
|
______
|
4ВII
|
835600
|
1
|
835,6
|
4ВII
|
81,8
|
92,2
|
|
24
|
См. черт. 3
|
20´0,7
|
5220
|
18
|
93,96
|
20´0,7
|
10,4
|
|
К13
|
13
|
______
|
6ВII
|
1104600
|
1
|
1104,6
|
6ВII
|
245,2
|
259,0
|
|
26
|
См. черт. 3
|
20´0,7
|
5220
|
24
|
125,.3
|
20´0,7
|
13,8
|
|
К14
|
14
|
______
|
5ВII
|
1104600
|
1
|
1104,6
|
5ВII
|
170,1
|
183,9
|
|
26
|
См. черт. 3
|
20´0,7
|
5220
|
24
|
125,.3
|
20´0,7
|
13,8
|
|
К15
|
15
|
______
|
4ВII
|
1104600
|
1
|
1104,6
|
4ВII
|
108,3
|
122,1
|
|
23
|
См. черт. 3
|
20´0,7
|
5220
|
24
|
125,.3
|
20´0,7
|
13,8
|
|
К16
|
16
|
______
|
7ВII
|
1297100
|
1
|
1297,1
|
7ВII
|
391,7
|
405,5
|
|
28
|
См. черт. 3
|
20´0,7
|
5220
|
24
|
125,.3
|
20´0,7
|
13,8
|
|
К17
|
17
|
______
|
6ВII
|
1180200
|
1
|
1180,2
|
6ВII
|
262,0
|
275,8
|
|
27
|
См. черт. 3
|
20´0,7
|
5220
|
24
|
125,.3
|
20´0,7
|
13,8
|
|
К18
|
18
|
______
|
5ВII
|
1173200
|
1
|
1173,2
|
5ВII
|
180,7
|
194,5
|
|
27
|
См. черт. 3
|
20´0,7
|
5220
|
24
|
125,.3
|
20´0,7
|
13,8
|
|
К19
|
19
|
______
|
8ВII
|
1348100
|
1
|
1348,1
|
8ВII
|
532,5
|
549,7
|
|
29
|
См. черт. 3
|
20´0,7
|
5220
|
30
|
156,6
|
20´0,7
|
17,2
|
|
К20
|
20
|
______
|
6ВII
|
1480600
|
1
|
1480,6
|
6ВII
|
328,7
|
345,9
|
|
26
|
См. черт. 3
|
20´0,7
|
5220
|
30
|
156,6
|
20´0,7
|
17,2
|
|
К21
|
21
|
______
|
5ВII
|
1480600
|
1
|
1480,6
|
5ВII
|
228,0
|
245,2
|
|
26
|
См. черт. 3
|
20´0,7
|
5220
|
30
|
156,6
|
20´0,7
|
17,2
|
|
П1
|
31
|
______
|
5ВрII
|
5193
|
1
|
5,19
|
5ВрII
|
0,8
|
0,8
|
|
П2
|
32
|
______
|
5ВрII
|
5205
|
1
|
5,21
|
5ВрII
|
0,8
|
0,8
|
|
П3
|
33
|
______
|
5ВрII
|
5208
|
1
|
5,21
|
5ВрII
|
0,8
|
0,8
|
|
П4
|
34
|
______
|
5ВрII
|
5239
|
1
|
5,24
|
5ВрII
|
0,8
|
0,8
|
|
П5
|
35
|
______
|
5ВрII
|
5240
|
1
|
5,24
|
5ВрII
|
0,8
|
0,8
|
8. Спиральная арматура поз. 1 - 21
арматурных каркасов марок К1 - К21 должна быть непрерывной на всю длину.
Два
витка спиральной арматуры с обоих концов каркаса и в месте перехода цилиндрической
части в коническую должны располагаться вплотную друг к другу и связываться
вязальной проволокой в 3 - 4 местах, а концы арматуры длиной 400-500 мм должны
быть отогнуты под углом 130 - 150° (см. черт. 2) и прикреплены к виткам каркаса
вязальной проволокой в 4 - 5 местах. Допускается вместо связывания крайних
витков и отгиба концов арматуры выполнять крепление этих витков зажимами,
указанными на черт. 4, в четырех местах у каждого конца каркаса.
Спецификация и
выборка стали на один зажим приведены в табл. 8. При применении зажимов общий
расход стали на одну трубу (табл. 1) должен быть увеличен на 0,9 кг.
Зажим

Черт. 4
Таблица 8
Спецификация и выборка стали
на один зажим
|
Позиция
|
Эскиз стержня
|
Диаметр или сечение, мм
|
Длина, мм
|
Количество
|
Общая длина, м
|
Выборка стали
|
|
Диаметр или сечение, мм
|
Масса, кг
|
Масса изделия, кг
|
|
36
|
См. черт. 4
______
|
25´5
|
50
|
2
|
0,1
|
25´5
|
0,1
|
0,12
|
|
37
|
Болт М5´25 по ГОСТ 7805-70
|
-
|
-
|
2
|
-
|
Метизы
|
0,02
|
|
38
|
Гайка М5 по ГОСТ 5927-70
|
-
|
-
|
2
|
-
|
|
|
39
|
Шайба М5 по ГОСТ 11371-78
|
-
|
-
|
2
|
-
|
|
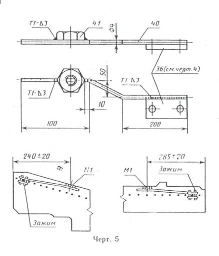
9. При установке в трубах закладных изделий марки
М1, предназначенных для защиты трубопроводов от электрокоррозии, независимо от
способа крепления концов спиральной арматуры (п.8)
должны применяться два зажима. Закладное изделие М1 должно быть приварено к
верхней пластине зажима (поз. 36) до установки его в форму. Пластины зажимов,
предназначенные для установки закладного изделия М1, а также спиральная
арматура в зоне крепления к ней закладного изделия должны быть тщательно
очищены для обеспечения электрического контакта между ними.
Конструкция
закладного изделия М1 и детали установки его в трубе приведены на черт. 5, а
спецификация и выборка стали на одно закладное изделие М1 - в табл. 9.
При
изготовлении труб с закладными изделиями М1 общий расход стали на одну трубу
(табл. 1)
должен быть увеличен на 0,37 кг.
Закладное изделие М1

Таблица 9
Спецификация и выборка стали
на одно закладное изделие
|
Позиция
|
Эскиз стержня
|
Диаметр или сечение, мм
|
Длина, мм
|
Количество
|
Общая длина, м
|
Выборка стали
|
|
Диаметр или сечение, мм
|
Масса, кг
|
Масса изделия, кг
|
|
40
|
_______
|
4ВрI
|
450
|
1
|
0,45
|
4ВрI
|
0,044
|
0,064
|
|
41
|
Гайка М16 по ГОСТ 5916-70
|
-
|
-
|
1
|
-
|
Гайка
|
0,02
|
0,04
|
Примечание. Поз. 40 допускается изготовлять
из проволоки класса В-I.
3 - 9. (Измененная редакция, Изм.
№ 1).
|