Бесплатная библиотека стандартов и нормативов www.docload.ru

Все документы, размещенные на этом сайте, не являются их официальным изданием и предназначены исключительно для ознакомительных целей.
Электронные копии этих документов могут распространяться без всяких ограничений. Вы можете размещать информацию с этого сайта на любом другом сайте.
Это некоммерческий сайт и здесь не продаются документы. Вы можете скачать их абсолютно бесплатно!
Содержимое сайта не нарушает чьих-либо авторских прав! Человек имеет право на информацию!

 

ГОСУДАРСТВЕННЫЙ СТАНДАРТ СОЮЗА ССР

СВАИ ЗАБИВНЫЕ ЖЕЛЕЗОБЕТОННЫЕ
КВАДРАТНОГО СЕЧЕНИЯ БЕЗ ПОПЕРЕЧНОГО АРМИРОВАНИЯ
СТВОЛА

КОНСТРУКЦИЯ И РАЗМЕРЫ

ГОСТ 19804.4-78

ГОСУДАРСТВЕННЫЙ КОМИТЕТ СССР ПО ДЕЛАМ СТРОИТЕЛЬСТВА

Москва

ГОСУДАРСТВЕННЫЙ СТАНДАРТ СОЮЗА ССР

СВАИ ЗАБИВНЫЕ ЖЕЛЕЗОБЕТОННЫЕ КВАДРАТНОГО
СЕЧЕНИЯ БЕЗ ПОПЕРЕЧНОГО АРМИРОВАНИЯ
СТВОЛА

Конструкция и размеры

Reinforced concrete driven piles of square cross-section,
without lateral reinforcement.
Construction and dimensions

ГОСТ
19804.4-78*

Постановлением Государственного комитета Совета Министров СССР по делам строительства от 30 декабря 1977 г. № 231 срок введения установлен

с 01.01.79

Несоблюдение стандарта преследуется по закону

Настоящий стандарт распространяется на забивные железобетонные сваи квадратного сечения без поперечного армирования ствола с напрягаемой арматурой, располагаемой в центре сечения сваи.

Сваи, предусмотренные настоящим стандартом, рассчитаны на изгиб по прочности и образованию трещин от усилий, возникающих при подъеме на копер за одну точку, расположенную от торца на расстоянии, равном 0,294 длины призматической части сваи. Коэффициент динамичности к собственной массе принят равным 1,5, при этом коэффициент перегрузки к собственной массе не вводится.

При проектировании свайных фундаментов сваи должны быть также проверены на прочность и образование трещин на нагрузки, возникающие при строительстве и эксплуатации здания или сооружения.

При проверке сваи на прочность и образование трещин при внецентренном сжатии от эксплуатационных нагрузок допускается пользоваться графиками 1-8, приведенными в приложении 3.

(Измененная редакция, Изм. № 1).

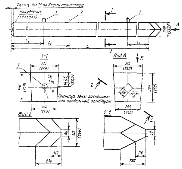
1. МАРКИ И ОСНОВНЫЕ РАЗМЕРЫ

1.1. Форма свай должна соответствовать указанной на черт. 1, марка свай, основные размеры, объем бетона и справочная масса - указанным в таблице.

(Измененная редакция, Изм. № 1).

1.2. Сваи длиной до 7 м включительно допускается изготовлять без штырей, при этом строповка свай при подъеме на копер должна осуществляться у верхней подъемной петли.

1.3. Центр тяжести продольной напрягаемой арматуры должен быть расположен в центре тяжести поперечного сечения свай.

1.4. Допускается изготовлять сваи с технологическим уклоном двух противоположных сторон поперечного сечения, не превышающим 1:20, без изменения площади поперечного сечения.

Пример формы сваи с технологическим уклоном 1:20 приведен в приложении 2.

Сваи квадратного сечения без поперечного армирования ствола

1 - подъемные петли; 2 - штырь для фиксации места строповки; 3 - продольная арматура.

Черт. 1

Марка сваи

Геометрические размеры, мм

Объем бетона, м3

Справочная масса сваи, т

L

11

L2

b

СЦ5-25;

СЦпр5-25;

СЦко-25

5000

1000

-

250

0,32

0,80

CЦ6-25;

CЦпp6-25;

СЦк6-25

6000

1200

-

250

0,38

0,95

CЦ3-30;

СЦпр3-30;

СЦк3-30

3000

600

-

300

0,28

0,70

СЦ4-30;

СЦпр4-30;

СЦк4-30

4000

800

-

300

0,37

0,93

СЦ5-30;

СЦпр5-30;

СЦк5-30

5000

1000

-

300

0,46

1,15

СЦ6-30;

СЦпр6-30;

СЦк6-30

6000

1200

-

300

0,55

1,38

СЦ7-30;

СЦпр7-30;

СЦк7-30

7000

1400

2100

300

0,64

1,60

СЦ8-30;

СЦпр8-30;

СЦк8-30

8000

1600

2400

300

0,73

1,83

СЦ9-30;

СЦпр9-30;

СЦк9-30

9000

1800

2600

300

0,82

2,05

СЦ11-30;

СЦпр11-30;

СЦк11-30

11000

300

3200

300

1,00

2.50

Примечания:

1. Обозначение марок сваи - по ГОСТ 19804.0-78.

2. Буквы в марке сваи означают:

СЦ - сваи со стержневой арматурой;

СЦпр - сваи с проволочной арматурой;

СЦк - сваи с арматурой из канатов.

2. ТЕХНИЧЕСКИЕ ТРЕБОВАНИЯ

2.1. Сваи должны изготовляться в соответствии с требованиями настоящего стандарта и ГОСТ 19804.0-78.

2.2. Назначение, область применения, общие технические требования, допускаемые отклонения от проектных размеров, методы испытаний, маркировка, транспортирование и хранение свай должны соответствовать указанным в ГОСТ 19804.0-78.

2.3. Сваи должны изготовляться из тяжелого бетона марки по прочности на сжатие не ниже 300 кгс/см2.

2.4. Отпускная прочность бетона свай в момент отгрузки их с предприятия-изготовителя должна быть не ниже 100% проектной.

2.5. В качестве продольной напрягаемой арматуры следует применять:

а) горячекатаную арматурную сталь классов A-IV и A-V по ГОСТ 5781-82;

б) высокопрочную арматурную проволоку класса Вр- II по ГОСТ 7348-81;

в) арматурные канаты класса К-7 по ГОСТ 13840-68. . Допускается также применять термически упрочненную арматурную сталь классов Ат -IV и Aт-V по ГОСТ 10884-81.

2.6. Схемы армирования со спецификациями и выборкой арматуры для каждой сваи, предусмотренной настоящим стандартом, приведены в приложении 1.

2.7. Натяжение арматуры классов Вр-II и К-7 следует осуществлять механическим способом, натяжение арматуры классов A-IV, A-V, Aт-IV и Aт-V - электротермическим или механическим способом.

2.8. Предельная величина предварительного напряжения арматуры s0 принята:

а) при механическом способе натяжения s0 = 0,95 RаII.

s0 = 0,95 RаII - для стержневой арматуры,

s0 = 0,76 RаII - для проволочной арматуры и канатов,

б) при электротермическом способе натяжения

s0 = RаII –300 - - для стержневой арматуры,

где:   RаII      -    расчетное сопротивление арматуры растяжению для предельных состояний второй группы;

l          -    длина натягиваемого стержня.

(Измененная редакция, Изм. № 1).

2.9. Прочность бетона в момент отпуска натяжения арматуры (передаточная прочность) должна быть не ниже 200 кгс/см2.

2.10. После отпуска натяжения арматура должна быть срезана заподлицо с бетоном острия и в углублении торца сваи.

2.11. Усилие натяжения арматуры для каждой марки свай указано в табл. 1 приложения 1.

2.12. Диаметр продольной арматуры должен соответствовать приведенному в табл. 1 приложения 1.

2.13. Расстояние между осями проволок должно быть не менее 15 мм. Максимальное расстояние от центра тяжести поперечного сечения сваи до оси наиболее удаленной проволоки не должно превышать 25 мм.

Расстояние между осями канатов должно быть не менее диаметра каната, но не более 50 мм.

2.14. Голова сваи должна быть усилена сетками из проволоки класса B-I или Вр-I диаметром 5 мм по ГОСТ 6727-80.

Сетки устанавливаются попарно, количество сеток определяется в зависимости от длины сваи в соответствии с табл. 2 приложения 1.

(Измененная редакция, Изм. № 1).

2.15. Острие сваи должно быть усилено спиралью из проволоки класса B-I диаметром 5 мм по ГОСТ 6727-80.

2.16. Петли для подъема свай, штыри и спираль в острие сваи должны быть привязаны к продольной арматуре сваи вязальной проволокой.

2.17. Для петель следует применять горячекатаную арматурную сталь класса A-I марок ВСт3сп2 и ВСт3пс2.

В случае транспортирования свай при температуре – 40°С и ниже не допускается применять сталь марки ВСт3пс2.

3. ИСПЫТАНИЕ СВАЙ НА ОБРАЗОВАНИЕ ТРЕЩИН

3.1. В соответствии с ГОСТ 19804.0-78 сваи должны быть испытаны на образование трещин путем укладки их на две опоры согласно черт. 2.

Схема испытаний свай

Черт. 2

3.2. После укладки свай на две опоры производят тщательный осмотр ее верхней грани над опорами. Сваю считают выдержавшей испытание, если на ее гранях не появятся трещины.

ПРИЛОЖЕНИЕ 1

АРМИРОВАНИЕ ЗАБИВНЫХ ЖЕЛЕЗОБЕТОННЫХ СВАЙ БЕЗ ПОПЕРЕЧНОГО АРМИРОВАНИЯ СТВОЛА

При армировании свай должны выполняться следующие требования

1. Схема армирования забивных железобетонных свай без поперечного армирования ствола должна соответствовать приведенной на чертеже настоящего приложения Количество сеток в голове сваи показано условно. Опалубочные размеры свай приведены в таблице настоящего стандарта.

2. Спецификация арматурных изделий на сваи должна соответствовать приведенной и табл. 1 настоящего приложения.

3. Выборка стали на сваи при различных вариантах продольного армирования приведена в табл. 2 настоящего приложения.

4. Чертежи арматурных изделий, ведомость стержней на каждый элемент арматурных изделий и выборка стали приведены в табл. 3 и 4 настоящего приложения.

1.-4. (Именная редакция, Изм. № l).

Схема армирования свай


Таблица 1

Спецификация арматурных изделий на сваи

Геометрические размеры сваи, мм

Длина продольной арматуры, мм

Варианты классов продольной арматуры

Арматура головы сваи

Арматура острия (1 шт.)

Петли
(2 шт.)

Штырь
(1 шт.)

A-IV (Ат - lV)

A-V (Ат-V)

Bp-II

К-7

L

b

Количество, диаметр, мм

Усилие натяжения, тс

Количество, диаметр, мм

Усилие натяжения, тс

Количество, диаметр, мм

Усилие натяжения, те

Количество, диаметр, мм

Усилие натяжения, те

Марка

Количество

Механический способ

Электоротермический способ

Механический способ

Электротермический способ

Одной проволоки

Всех

Одного каната

всех

5000

250

5250

1Æ10

4,5

4,0

1Æ10

6,0

5,5

2Æ5

2,4

4,7

1Æ9

6,8

-

С25

6

Сц

Пц1

-

6000

250

6250

1Æ12

6,5

5,8

1Æ12

8,6

8,1

3Æ5

2,4

7,2

1Æ9

6,8

-

С25

6

Сц

Пц1

-

3000

300

3250

1Æ10

4,5

3,7

1Æ10

6,0

5,2

2Æ5

2,4

4,7

1Æ6

3,2

-

С30

4

Сц

Пц2

-

4000

300

4250

1Æ10

4,5

3,8

1Æ10

6,0

5,4

2Æ5

2,4

4,7

1Æ9

6,8

-

С30

4

Сц

Пц2

-

5000

300

5550

1Æ12

6,5

5,7

1Æ10

6,0

5,5

3Æ5

2,4

7,2

1Æ9

6,8

-

С30

6

Сц

Пц2

-

6000

300

6250

1Æ14

8,8

7,9

1Æ12

8,6

8,1

4Æ5

2,4

9,2

1Æ12

11,8

-

С30

6

Сц

Пц2

-

7000

300

7250

1Æ16

11,5

10,5

1Æ12

8,6

8,2

6Æ5

2,4

14,3

1Æ12

11,8

-

С30

6

Сц

Пц3

Шц

8000

300

8250

1Æ16

11,5

10,6

1Æ14

11,7

11,2

6Æ5

2,4

14,3

1Æ12

11,8

-

С30

6

Сц

Пц3

Шц

9000

300

9250

1Æ18

14,5

13,5

1Æ16

15,3

14,7

8Æ5

2,4

19,1

1Æ15

17,7

-

С30

6

Сц

Пц3

Шц

Таблица 2

Выборка стали на одну сваю, кг

Геометрические размеры сваи, мм

Варианты продольной арматуры

Класс А-1

Класс В–I, диаметр 5 мм, масса, кг

Всего стали

Класс А-IV (Ат-IV)

Класс A-V (Ат-V)

Класс Вр –II, диаметр 5 мм, масса, кг.

Класс К-7

Диаметр 10 мм, масса, кг

Диаметр, мм

Масса, кг

Итого

При варианте продольной арматуры классов

L

b

Диаметр, мм

Масса, кг

Диаметр, мм

Масса, кг

Диаметр, мм

Масса, кг

А – IV (Ат –IV)

А – V (Ат –V)

Вр - II

К -7

5000

250

10

3,2

10

3,2

1,6

9

2,1

1,0

-

 

1,0

4,0

8,2

8,2

6,6

7,1

6000

250

12

5,6

12

5,6

2,9

9

2,5

1,0

-

-

1,0

4,0

10,6

10,6

7,9

7,5

3000

300

10

2,0

10

2,0

1,0

6

0,6

1,0

-

-

1,0

3,6

6,6

6,6

5,6

5,2

4000

300

10

2,6

10

2,6

1,3

9

1,7

1,0

-

-

1,0

3,6

7,2

7,2

5,9

6,3

5000

300

12

4,7

10

3,2

2,4

9

2,1

1,0

-

--

1,0

5,2

10,9

9,4

8,6

8,3

6000

300

14

7,6

12

5,5

3,9

12

4,4

1,0

-

-

1,0

5,2

13,8

11,8

10,2

10,6

7000

300

16

11,4

12

6,4

6,7

12

5,1

0,2

1,2

1,6

1,8

5,2

18,4

13,4

13,7

12,1

8000

300

16

13,0

14

10,0

7,6

12

5,8

0,2

1,2

1,6

1,8

5,2

19,6

18,0

14,2

12,4

9000

300

18

18,5

16

14,6

11,4

15

10,,3

0,2

1,2

1,6

1,8

5,2

25,1

21,2

18,0

16,9


Таблица 3

Ведомость стержней на один элемент изделия

Марка элемента изделия

Позиция

Эскиз или сечение

Диаметр мм, класс стали

Длина, мм

Количество

С25

1

5BI

235

8

2

5BI

370

6

С30

3

5BI

285

8

4

5BI

450

 6

Пц1

Пц2

Пц3

-

-

-

10AI

10AI

12AI

805

845

847

1

1

1

Шц

 

10AI

370

1

Сц

 

5BI

2360

0,4

Таблица 4

Выборка стали на один элемент, кг

Марка элемента

Арматурная сталь

Всего

Класс A-I по ГОСТ 5781-82

Класс В - I по ГОСТ 6727-80

Диаметр, мм

Итого

Диаметр, мм

Итого

10AI

12AI

HAI

5BI

С25

-

-

-

-

0,6

0,4

0,6

С30

-

-

-

-

0,8

0,5

0,8

Пц1

0,5

-

-

0,5

-

-

0,5

Пц2

0,5

-

-

0,5

-

-

0,5

Пц3

-

0,8

-

0,8

-

-

0,8

Шц

0,2

-

-

0,2

-

-

0,2

Сц

-

-

-

-

0,4

0,4

0,4

ПРИЛОЖЕНИЕ 2

ЗАБИВНЫЕ ЖЕЛЕЗОБЕТОННЫЕ СВАИ БЕЗ ПОПЕРЕЧНОГО АРМИРОВАНИЯ СТВОЛА С ТЕХНОЛОГИЧЕСКИМ УКЛОНОМ 1: 20

При изготовлении свай с технологическим уклоном двух противоположных сторон необходимо выполнить следующие требования.

1. Форма забивных железобетонных свай без поперечного армирования ствола с технологическим уклоном двух противоположных сторон, равном 1:20, должна соответствовать чертежу настоящего приложения.

2. Схема армирования сваи должна быть принята в соответствии с приложением 1.

Сваи квадратного сечения без поперечного армирования ствола с технологическим уклоном двух противоположных сторон

1 - подъемные петли; 2 - штырь для фиксации места строповки; 3 - продольная арматура.

Примечание. Размеры L, l1,l2 приведены в таблице настоящего стандарта.

ПРИЛОЖЕНИЕ 3

ГРАФИКИ ДЛЯ ПРОВЕРКИ СВАЙ НА ПРОЧНОСТЬ И ОБРАЗОВАНИЕ ТРЕЩИН ПРИ ВНЕЦЕНТРЕННОМ СЖАТИИ ОТ ЭКСПЛУАТАЦИОННЫХ НАГРУЗОК

1. Принцип построения графиков

1.1. Графики для проверки свай, приведенных в настоящем стандарте, на прочность на образование трещин при внецентренном сжатии от эксплуатационных нагрузок М, N приведены на черт 1-8 настоящего приложения.

(Измененная редакция, Изм. № 1).

1.2. Предполагается, что сваи по всей длине находятся в грунте и коэффициент продольного изгиба сваи равен единице.

2. Порядок пользования графиками

2.1. После выбора длины сваи (по геологическим условиям) устанавливается продольное армирование сваи по табл. 1 приложения 1.

2.2. Если точка с координатами М и N лежит ниже прямой, соответствующей принятому армированию сваи, то выбранная свая удовлетворяет расчету по прочности и образованию трещин на эксплуатационные нагрузки М и N. если точка лежит выше -не удовлетворяет.

2.3. На графиках приняты обозначения: N - нормальная сила, тс, М - изгибающий момент относительно оси свай, тс. м, передаваемые на сваи при эксплуатации здания и сооружения.

(Введен дополнительно, Изм. № 1).

Сваи сечением 25´25 см

Черт. 1

Сваи сечением 30´30 см

Черт. 2

Сваи сечением 25´25 см

Черт. 3

Сваи сечением 30´30 см

Черт. 4

Сваи сечением 25´25 см

Черт. 5

Сваи сечением 30´30 см

Черт. 6

Сваи сечением 25´25 см

Черт. 7

Сваи сечением 30´30 см

Черт. 8

СОДЕРЖАНИЕ

 




Rambler's Top100 Яндекс цитирования
  Copyright © 2008-2025, www.docload.ru