
ГОСУДАРСТВЕННЫЙ СТАНДАРТ
СОЮЗА ССР
ЛЕСТНИЦЫ МАРШЕВЫЕ,
ПЛОЩАДКИ И ОГРАЖДЕНИЯ
СТАЛЬНЫЕ
ТЕХНИЧЕСКИЕ
УСЛОВИЯ
ГОСТ
23120-78
ГОСУДАРСТВЕННЫЙ КОМИТЕТ СССР
ПО ДЕЛАМ СТРОИТЕЛЬСТВА
Москва
РАЗРАБОТАН И ВНЕСЕН Ордена Трудового Красного Знамени Центральным научно-исследовательским и проектным институтом строительных металлоконструкций (ЦНИИпроектстальконструкция) Госстроя СССР
Всесоюзным научно-исследовательским и конструкторско-технологическим институтом (ВНИКТИстальконструкция) Минмонтажспецстроя СССР
Всесоюзным Государственным
проектно-конструкторским институтом по индустриализации монтажных работ
(Гипромонтажиндустрия) Минмонтажспецстроя СССР
ИСПОЛНИТЕЛИ
В. М. Лаптев (руководитель темы), Л. А. Пескова, С. И. Бочкова, А. Ф. Гай, Л.
М. Дудиловский, Б. А. Штепа
УТВЕРЖДЕН И ВВЕДЕН В ДЕЙСТВИЕ
Постановлением Государственного комитета Совета Министров СССР по делам
строительства от 28 апреля 1978 г. № 71
ГОСУДАРСТВЕННЫЙ
СТАНДАРТ СОЮЗА ССР
|
ЛЕСТНИЦЫ
МАРШЕВЫЕ, ПЛОЩАДКИ Технические условияSteel
flights of steps, stair landings and railings.
Specifications |
ГОСТ
|
Постановлением
Государственного комитета Совета Министров СССР по делам строительства от 28
апреля 1978 г. № 71 срок действия установлен
с 01.01.1979
г.
до 01.01.1984
г.
Настоящий стандарт
распространяется на стальные маршевые лестницы, площадки и ограждения к ним,
применяемые в производственных зданиях и сооружениях, возводимых и
эксплуатируемых в районах с расчетной температурой минус 65 °С и
выше.
Стандарт устанавливает
технические требования на маршевые лестницы с углом наклона 45 и 60°,
прямоугольные переходные площадки и ограждения к ним, изготовленные из
холодногнутых и горячекатаных профилей и рассчитанные на действие нормативных
временных нагрузок 200, 300 и 400 кгс/м2.
Маршевые лестницы, площадки и ограждения к ним должны удовлетворять всем требованиям ГОСТ 23118-78 и требованиям, изложенным в соответствующих разделах настоящего стандарта.
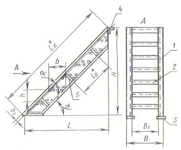
1.1. Основные параметры и размеры лестничных маршей, прямоугольных площадок и ограждений к ним должны соответствовать указанным на черт. 1 - 4 и в табл. 1 - 4.
Лестничный
марш
____________
* По чертежам КМД.
1 - косоур; 2 - ступень; 3 - опорная планка; 4 - опорный уголок; 5 - ребро
Черт.
1
Таблица 1
Размеры в мм
|
H |
L |
h |
b |
B |
B1 |
B1 | |
|
45° |
600 |
600 |
|
|
|
|
|
|
1200 |
1200 |
|
|
|
|
| |
|
1800 |
1800 |
|
|
600 |
500 |
7 | |
|
2400 |
2400 |
200 |
200 |
800 |
700 |
10 | |
|
3000 |
3000 |
|
|
1000 |
900 |
| |
|
3600 |
3600 |
|
|
|
|
| |
|
4200 |
4200 |
|
|
|
|
| |
|
60° |
600 |
345 |
|
|
|
|
|
|
1200 |
693 |
|
|
|
|
| |
|
1800 |
1039 |
|
|
|
|
| |
|
2400 |
1386 |
|
|
|
|
| |
|
3000 |
1732 |
|
|
600 |
500 |
5 | |
|
3600 |
2078 |
300 |
200 |
800 |
700 | ||
|
4200 |
2425 |
|
|
|
|
| |
|
4800 |
2771 |
|
|
|
|
| |
|
5400 |
3118 |
|
|
|
|
| |
|
6000 |
3464 |
|
|
|
|
|
Площадки
______________
* По чертежам КМД.
1 - балка; 2 - окантовочный элемент; 3 - настил; 4 - ребро
Черт.
2
Таблица 2
мм
|
Ln |
900; 1200; 1500; 1800; 2100; 2400; 3000; 3600; 4200; 4800; 5400; 6000 |
|
B |
600; 800; 1000 |
|
B1 |
500; 700; 900 |
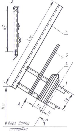
Ограждение лестничного
марша
____________
* По чертежам КМД.
1 - стойка; 2 - поручень, 3 - средний ограждающий элемент; 4 - бортовой элемент
Черт.
3
Таблица 3
Размеры в мм
|
a |
Hor |
Lor |
ho |
h |
lo |
|
45° |
1000 |
От 1697 |
140 |
15 |
От 479 |
|
1200 |
до 5940 |
до 790 | |||
|
60° |
1000 |
От 1385 |
От 136 | ||
|
1200 |
до 6930 |
до 700 |
Ограждение
площадок
____________
* По чертежам КМД.
1 - стойка; 2 - поручень, 3 - средний ограждающий элемент; 4 - бортовой элемент
Черт.
4
Таблица 4
мм
|
1000;
1200 | |
|
Lor |
900; 1200; 1500; 1800; 2100; 2400; 3000;
3600; 4200; 4800; 5400; 6000 |
|
ho |
140 |
|
h |
5 |
|
lo |
От 600 до 1300 |
Пример
условного обозначения марки лестничного марша
(МЛ) из холодногнутого профиля (Х) со штампованными ступенями (Ш), под углом 45°
и размерами Н = 6 дм и В = 8 дм:
МЛХШ45-6.8 ГОСТ
23120-78
То же, площадки (ПМ) из
холодногнутого профиля с рифленым настилом (Ф) и размерами Ln = 9 дм и В = 6 дм:
ПМХФ-9.6 ГОСТ
23120-78
То же, левого ограждения
(ОГл) лестничного марша из холодногнутого профиля без бортового элемента, под
углом 45° и размерами Hor = 10 дм и H = 24
дм:
ОГлМЛХ45-10.24 ГОСТ
23120-78
То же, правого ограждения (ОГп) с бортовым элементом (Эб):
ОГпМЛХЭб45-10.24 ГОСТ
23120-78
То же, ограждений площадки
из холодногнутого профиля с бортовым элементом и размерами Hor = 10 дм и Lor = 9
дм:
ОГПМХЭб-10.9 ГОСТ
23120-78
1.2. В зависимости от условий эксплуатации ступени маршевых лестниц и настилы прямоугольных площадок должны изготовлять двух типов:
1 - сплошные из рифленой
стали (Ф);
2 - решетчатые,
исполнений:
Ш - из штампованных
элементов;
Р - из полос на ребро и
круглой стали;
С - из полос на ребро в
одном направлении;
В - из просечно-вытяжной
стали.
1.3. Типы ступеней маршевых лестниц и настилов в прямоугольных площадках приведены на черт. 5.
1.4. Компоновочные схемы
маршевых лестниц, площадок и ограждений приведены в
приложении.
Типы
ступеней маршевых лестниц и настилов площадок
Тип 1. Сплошные
(Ф)

Тип 2.
Решетчатые
Исполнение Ш Исполнение
Р
Исполнение С Исполнение
В

Черт.
5
2.1. Конструкции лестничных
маршей, площадок и ограждений к ним (далее - конструкции) следует изготовлять в
соответствии с требованиями настоящего стандарта, СНиП III-18-75 по
рабочим чертежам КМД, утвержденным в установленном
порядке.
2.2. Конструкции следует
изготовлять из углеродистой стали класса С38/23 следующих марок по ГОСТ
380-71:
ВСт3кп2 - для районов
строительства с расчетной температурой наружного воздуха минус 40 °С и
выше;
ВСт3Гпс5 - то же, с
расчетной температурой наружного воздуха ниже минус 40 °С до минус 65 °С
включ.
2.3. Предельные отклонения
линейных размеров конструкций от номинальных, отклонения формы и расположения
поверхностей от проектных приведены в табл. 5.
2.4. Сварные соединения
элементов должны выполняться механизированным способом. Допускается, в случае
отсутствия оборудования для сварки механизированными способами, применение
ручной сварки.
2.5. Материалы для сварки
должны приниматься в соответствии со СНиП II-В.3-72.
2.6. Для болтовых соединений
должны применяться болты нормальной точности по ГОСТ 7798-70 и в
соответствии со СНиП II-В.3-72.
2.7. Конструкции должны быть
огрунтованы и окрашены. Грунтовка и окраска должны соответствовать пятому классу
покрытия по ГОСТ
9.032-74.
2.8. Заводские и монтажные
стыки элементов ограждений не должны иметь острых выступов и
кромок.
Таблица 5
мм
|
Пред. откл. лестничного марша, площадки, ограждения лестничного марша и площадки |
Эскиз | ||
|
Длина Lк; Lп; Lor |
до 1000 включ. |
± 1,6 |
Черт. 1 - 4 |
|
Ширина В1 |
св. 1000 до 1600 включ. |
± 2,0 | |
|
Высота Нп; Нл |
св. 1600 до 2500 включ. |
± 2,5 | |
|
св. 2500 до 4000 включ. |
± 3,0 | ||
|
св. 4000 до 8000 включ. |
± 4,0 | ||
|
Расстояние между ребрами в косоурах и балках площадок lo |
± 2,0 |
Черт. 1 и 2 | |
|
Расстояние между стойками ограждения lo |
± 2,0 |
Черт. 3 и 4 | |
|
Неравенство диагоналей (непрямоугольность), не более |
4,0 |
| |
|
Расстояние между центрами отверстий в пределах одной группы А |
± 1,3 |
| |
|
Расстояние между группами отверстий А |
±
2,5 |
| |
|
Непрямолинейность (d) по длине L: |
|
| |
|
до 1000 включ. |
0,8 | ||
|
св. 1000 до 1600 включ. |
1,3 | ||
|
» 1000 » 2500 » |
2,0 | ||
|
» 2500 » 4000 » |
3,0 | ||
|
» 4000 » 8000 » |
5,0 | ||
3.1. Конструкции должны
поставляться предприятием-изготовителем комплектно.
В состав комплекта должны
входить:
лестничные марши, площадки и
ограждения к ним;
дополнительные детали для
соединения конструкций;
болты, гайки и шайбы
(поставляемые в количестве на 10 % больше установленного в чертежах
КМД);
техническая документация в
соответствии с требованиями ГОСТ 23118-78.
4.1. Конструкция для
проверки соответствия их требованиям настоящего стандарта должны быть приняты
техническим контролем предприятия-изготовителя.
4.2. Контроль отклонений
линейных размеров конструкций (в т.ч. размеров сечений профилей проката) от
номинальных, отклонения формы и расположения поверхностей деталей от проектных,
качества сварных соединений и подготовки поверхности под защитные покрытия
должен производиться до грунтования конструкций.
4.3. Приемка конструкций
должна производиться партиями. В состав партии входят однотипные конструкции,
изготовленные по одной технологии, из материалов одного
качества.
Размер партии
устанавливается по согласованию между предприятием-изготовителем и
потребителем.
4.4. При выборочном приемочном контроле отобранные из партии конструкции в количестве 3 шт. должны быть подвергнуты поштучному контролю на соответствие требованиям, установленным настоящим стандартом.
4.5. Если при проверке
отобранных конструкций окажется хотя бы одна конструкция, не соответствующая
требованиям настоящего стандарта, следует отобрать удвоенное количество
конструкций от той же партии и провести их повторную проверку. Если при
повторной проверке окажется хотя бы одна конструкция, не удовлетворяющая
требованиям настоящего стандарта по одному из показателей, то данную партию
бракуют и отправляют на доработку.
4.6. Потребитель имеет право
производить приемку конструкций, применяя при этом правила приемки и методы
контроля, установленные настоящим стандартом.
5.1. Контроль отклонений
линейных размеров конструкций от номинальных, отклонения формы и расположения
поверхностей от проектных следует производить универсальными методами и
средствами.
5.2. Контроль качества швов
сварных соединений и размеров их сечений должен производиться в соответствии со
СНиП
III-18-75.
6.1. Изготовленные
конструкции должны быть замаркированы.
6.2. Конструкции лестничных маршей и площадок должны транспортироваться поэлементно или пакетами, состоящими из нескольких элементов. Конструкции ограждения должны транспортироваться только пакетами.
6.3. Способ соединения
элементов конструкций в пакеты должен исключать взаимное их смещение и
повреждение при транспортировании и хранении.
6.4. К каждому пакету или к
конструкции прикрепляют бирку, на которой должны быть нанесены следующие
маркировочные знаки:
номер
заказа;
номер чертежа КМД, по
которому изготовлена конструкция.
6.5. На каждом элементе
конструкции должно наноситься условное обозначение марки элемента (без
обозначения стандарта, см. п. 1.1).
6.6. Маркировочные знаки
должны наноситься несмываемой краской на стенке косоура лестничного марша с
правой стороны по ходу подъема, на стенке балки площадки и на верхней грани
поручня ограждения.
6.7. Соединительные детали
конструкций должны поставляться вместе с конструкциями. По договоренности с
заказчиком допускается поставка соединительных деталей отдельно от конструкций,
в этом случае они должны быть упакованы в деревянные ящики по ГОСТ
2991-76.
6.8. Масса пакета не должна
быть более 3 т.
6.9. Конструкции должны
транспортироваться и храниться в штабелях в горизонтальном положении с опиранием
на деревянные подкладки и прокладки. Подкладки должны быть толщиной не менее 50
мм и шириной не менее 100 мм. Прокладки должны быть толщиной не менее 20 мм и
шириной не менее 100 мм.
Высота штабеля должна быть
не более 1,5 м - для ограждений и 2,0 м - для маршей и
площадок.
7.1. Монтаж конструкций
должен производиться в соответствии с требованиями ГОСТ 23118-78 и СНиП
III-18-75.
7.2. Монтаж конструкций должен обеспечить их проектное положение, исключающее образование обратного уклона ступеней более 1°.
8.1. Изготовитель должен гарантировать соответствие конструкций требованиям настоящего стандарта при соблюдении условий транспортирования, хранения и монтажа, установленных настоящим стандартом.
|
|
| ||
|
|
|||
Нэ - высота этажа или расстояние между перекрытиями; H, L, B, Lп, Hor - номинальные размеры элементов лестниц; a - угол наклона лестниц; b - ширина ступени; h - высота ступени
В схемах 2 - 5 узлы, обведенные кружком, выполняют жесткими на сварке с помощью дополнительных элементов.
СОДЕРЖАНИЕ
|
1.
Основные параметры и размеры.. 2 2.
Технические требования. 6 3.
Комплектность. 8 4.
Правила приемки. 8 5.
Методы контроля. 8 6.
Маркировка, упаковка, транспортирование и хранение. 8 7.
Указания по монтажу. 9 8.
Гарантии изготовителя. 9 Приложение Компоновочные схемы маршевых лестниц. 10 |