Бесплатная библиотека стандартов и нормативов www.docload.ru

Все документы, размещенные на этом сайте, не являются их официальным изданием и предназначены исключительно для ознакомительных целей.
Электронные копии этих документов могут распространяться без всяких ограничений. Вы можете размещать информацию с этого сайта на любом другом сайте.
Это некоммерческий сайт и здесь не продаются документы. Вы можете скачать их абсолютно бесплатно!
Содержимое сайта не нарушает чьих-либо авторских прав! Человек имеет право на информацию!

 

ГОСУДАРСТВЕННЫЙ СТАНДАРТ СОЮЗА ССР

БЕТОНЫ

Методы определения плотности

ГОСТ 12730.1-78

ГОСУДАРСТВЕННЫЙ СТРОИТЕЛЬНЫЙ КОМИТЕТ СССР

Москва

ГОСУДАРСТВЕННЫЙ СТАНДАРТ СОЮЗА ССР

БЕТОНЫ

Методы определения плотности

Concretes.

Methods of determination of density

ГОСТ
12730.1-78

Дата введения 01.01.80

Настоящий стандарт распространяется на все виды бетонов и устанавливает методы определения плотности (объемной массы) бетонов путем испытания образцов.

1. ОБЩИЕ ТРЕБОВАНИЯ

1.1. Общие требования к методу определения плотности бетонов - по ГОСТ 12730.0.

2. АППАРАТУРА, МАТЕРИАЛЫ И РЕАКТИВЫ

2.1. Для проведения испытания применяют:

- весы технические по ГОСТ 24104;

- шкаф сушильный по ГОСТ 13474;

- электропечь сопротивления лабораторную по ГОСТ 13474;

- штангенциркуль по ГОСТ 166;

- стальные линейки по ГОСТ 427;

- эксикатор по ГОСТ 25336;

- объемомер или гидростатические весы (см. приложение);

- хлористый кальций безводный по ГОСТ 450 или серную кислоту плотностью 1,84 г/см3 по ГОСТ 2184;

- парафин по ГОСТ 23683.

3. ПОДГОТОВКА К ИСПЫТАНИЮ

3.1. Плотность бетона определяют испытанием образцов в состоянии естественной влажности или нормированном влажностном состоянии: сухом, воздушно-сухом, нормальном, водонасыщенном.

3.2. При определении плотности бетона в состоянии естественной влажности образцы испытывают сразу же после их отбора или хранят в паронепроницаемой упаковке или герметичной таре, объем которой превышает объем уложенных в нее образцов не более чем в 2 раза.

3.3. Плотность бетона при нормируемом влажностном состоянии определяют испытанием образцов бетона, имеющих нормируемую влажность или произвольную влажность, с последующим пересчетом полученных результатов на нормированную влажность по формуле 2.

3.4. При определении плотности бетона в сухом состоянии образцы высушивают до постоянной массы в соответствии с требованиями ГОСТ 12730.2.

3.5. При определении плотности бетона в воздушно-сухом состоянии образцы перед испытанием выдерживают не менее 28 сут в помещении при температуре (25 ± 10) °С и относительной влажности воздуха (50 ± 20) %.

3.6. При определении плотности бетона в нормальных влажностных условиях образцы хранят 28 сут в камере нормального твердения, эксикаторе или другой герметичной емкости при относительной влажности воздуха не менее 95 % и температуре (20 ± 2) °С.

3.7. При определении плотности бетона в водонасыщенном состоянии образцы насыщают водой в соответствии с требованиями ГОСТ 12730.3.

4. ПРОВЕДЕНИЕ ИСПЫТАНИЯ

4.1. Объем образцов правильной формы вычисляют по их геометрическим размерам. Размеры образцов определяют линейкой или штангенциркулем с погрешностью не более 1 мм по методике ГОСТ 10180.

4.2. Объем образцов неправильной формы определяют с помощью объемомера или гидростатическим взвешиванием по методике, приведенной в приложении.

4.3. Массу образцов определяют взвешиванием с погрешностью не более 0,1 %.

5. ОБРАБОТКА РЕЗУЛЬТАТОВ

5.1. Плотность бетона образца rw вычисляют с погрешностью до 1 кг/м3 по формуле

                                                          (1)

где m - масса образца, г;

V - объем образца, см3.

5.2. Плотность бетона серии образцов вычисляют как среднее арифметическое значение результатов испытания всех образцов серии.

Примечание. Если определение плотности и прочности бетона производят испытанием одних и тех же образцов, то образцы, отбракованные при определении прочности бетона, не учитывают при определении его плотности.

5.3. Плотность бетона при нормированном влажностном состоянии rн в кг/м3 вычисляют по формуле

                                                      (2)

где rw - плотность бетона при влажности Wм, кг/м3;

Wн - нормированная влажность бетона, %;

Wм - влажность бетона в момент испытания, определенная по ГОСТ 12730.2, %.

5.4. В журнале, в который заносят результаты испытаний, должны быть предусмотрены следующие графы:

- маркировка образцов;

- возраст бетона и дата испытания;

- влажностное состояние образца в момент испытания;

- плотность бетона образца и серии образцов.

Примечание. При определении плотности бетона на образцах, предназначенных для определения прочности, форму журнала принимают по ГОСТ 10180.

ПРИЛОЖЕНИЕ

Обязательное

ОПРЕДЕЛЕНИЕ ОБЪЕМА ОБРАЗЦОВ БЕТОНА НЕПРАВИЛЬНОЙ ФОРМЫ

1. Объем образцов неправильной формы определяют в объемомере или гидростатическим взвешиванием.

2. Образцы бетона, имеющие мелкопористую структуру, на поверхности которых отсутствуют каверны, раковины, трещины, перед испытанием парафинируют или насыщают водой не менее суток.

Парафинирование производят следующим образом. Образец, высушенный до постоянной массы, нагревают до 60 °С и несколько раз погружают в расплавленный парафин с таким расчетом, чтобы на его поверхности образовалась пленка парафина толщиной около 1 мм. После этого образец взвешивают.

3. Образцы бетона, имеющие крупнопористую структуру (поры размером более 2 мм) или имеющие на поверхности каверны и раковины (диаметром и глубиной более 2 мм), а также трещины (шириной более 0,5 мм), перед испытанием парафинируют дважды.

Парафинирование производят следующим образом. Образец, высушенный до постоянной массы, нагревают в сушильном шкафу до температуры 60 °С. С помощью кисточки заполняют парафином, нагретым до 100 °С, все открытые каверны, раковины и поры заподлицо с поверхностью образца. После этого образец взвешивают.

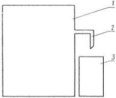
1 - сосуд; 2 - трубка; 3 - емкость для сбора воды

Черт. 1

1 - сосуд с водой; 2 - подвес для образца; 3 - образец; 4 - весы; 5 - разновес

Черт. 2

Второе парафинирование производят двухкратным погружением о расплавленный парафин с таким расчетом, чтобы на образце образовалась пленка парафина толщиной около 1 мм. Затем образец вновь взвешивают.

4. Объемомер представляет собой сосуд произвольной формы (черт. 1), величина которого позволяет испытать образцы размерами, предусмотренными настоящим стандартом. В сосуд впаяна трубка внутренним диаметром 8 - 10 мм с загнутым концом.

5. Объемомер наполняют водой температурой (20 ± 2) °С до тех пор, пока она не потечет из трубки. Когда из трубки прекратится падение капель, под нее ставят предварительно взвешенную емкость.

6. Образец, подготовленный к испытаниям, осторожно погружают на тонкой проволоке или нити в объемомер, при этом вода, вытесненная образцом, через трубку вытекает в емкость.

После прекращения падения капель емкость с водой взвешивают и определяют массу и объем вытесненной воды Vв в см3 по формуле

                                                            (3)

где m1 - масса пустой емкости, г;

m2 - масса емкости с водой, вытесненной образцом, г;

rв - плотность воды, принимаемая равной 1,0 г/см3.

7. Объем образца на гидростатических весах определяют взвешиванием его на воздухе и в воде в соответствии со схемой, приведенной на черт. 2.

8. Объем предварительно насыщенных водой образцов V0 в см3 определяют:

- при испытании в объемомере по формуле

V0 = Vв;                                                                  (4)

- при испытании на гидростатических весах по формуле

                                                        (5)

где mнас - масса насыщенного водой образца, определенная взвешиванием в воздухе, г;

mнас - масса насыщенного водой образца, определенная взвешиванием в воде, г;

rв - плотность воды, принимаемая равной 1 г/см3.

9. Объем образцов, подготовленных к испытанию в соответствии с требованиями п. 2, определяют:

- при испытании в объемомере по формуле

                                                      (6)

- при испытании на гидростатических весах по формуле

                                          (7)

где mc - масса высушенного образца, г;

mп - масса парафинированного образца, г;

rп - плотность парафина, принимаемая равной 0,93 г/см3.

10. Объем образцов, подготовленных к испытанию в соответствии с требованиями п. 3, определяют:

- при испытании в объемомере по формуле

                                                   (8)

- при испытании на гидростатических весах по формуле

                                          (9)

где mп1 и mп2 - масса образца, парафинированного один и два раза, определенная взвешиванием в воздухе, г;

mп2 - масса образца, парафинированного два раза, определенная взвешиванием в воде, г.

ИНФОРМАЦИОННЫЕ ДАННЫЕ

1.  РАЗРАБОТАН

Государственным комитетом СССР по делам строительства Министерством промышленности строительных материалов СССР

Министерством энергетики и электрификации СССР

РАЗРАБОТЧИКИ

М.И. Бруссер, канд. техн. наук (руководитель темы); Л.А. Малинина, д-р. техн. наук; А.Т. Баранов, канд. техн. наук; Г.А. Бужевич, канд. техн. наук; Л.И. Карпикова, канд. техн. наук; Т.А. Ухова, канд. техн. наук; Ю.А. Саввина, канд. техн. наук; Ю.А. Белов; В.Л. Рубецкой; Н.В. Мякошин; В.Г. Довжик, канд. техн. наук; В.А. Пискарев, канд. техн. наук; Г.Я. Амханицкий, канд. техн. наук; С.Н. Левин, канд. техн. наук; Е.Н. Леонтьев, канд. техн. наук; В.Н. Тарасова, канд. техн. наук; Л.И. Левин; В.А. Дорф, канд. техн. наук; Ю.Г. Хаютин, канд. техн. наук; В.Б. Судаков, канд. техн. наук; Ц.Г. Гинзбург, канд. техн. наук; Р.Е. Литвинова, канд. хим. наук; А.Г. Малиновский

ВНЕСЕН Государственным комитетом СССР по делам строительства

2.  УТВЕРЖДЕН И ВВЕДЕН В ДЕЙСТВИЕ Постановлением Государственного комитета СССР по делам строительства от 22.12.78 № 242

3.  ВЗАМЕН ГОСТ 12730-67, ГОСТ 11050-64, ГОСТ 12852.2-77, ГОСТ 4800-59 в части определения плотности

4.  ССЫЛОЧНЫЕ НОРМАТИВНО-ТЕХНИЧЕСКИЕ ДОКУМЕНТЫ

Обозначение НТД, на который дана ссылка

Номер пункта

Обозначение НТД, на который дана ссылка

Номер пункта

ГОСТ 166-89

2.1

ГОСТ 12730.3-78

3.7

ГОСТ 427-75

2.1

ГОСТ 23683-89

2.1

ГОСТ 450-77

2.1

ГОСТ 24104-88

2.1

ГОСТ 2184-77

2.1

ГОСТ 25336-82

2.1

ГОСТ 10180-90

4.1, 5.4

ОСТ 16.0.801.397-87

2.1

ГОСТ 12730.2-78

3.4, 5.3

 

 

5.  ПЕРЕИЗДАНИЕ. Июнь 1994 г.

СОДЕРЖАНИЕ

 




Rambler's Top100 Яндекс цитирования
  Copyright © 2008-2026, www.docload.ru