ТРУБЫ
МЕТАЛЛИЧЕСКИЕ
И СОЕДИНИТЕЛЬНЫЕ ЧАСТИ
К НИМ
Часть 4
ТРУБЫ ИЗ ЧЕРНЫХ МЕТАЛЛОВ И СПЛАВОВ
ЛИТЫЕ И СОЕДИНИТЕЛЬНЫЕ ЧАСТИ К НИМ.
ОСНОВНЫЕ РАЗМЕРЫ.
МЕТОДЫ ТЕХНОЛОГИЧЕСКИХ ИСПЫТАНИЙ
ТРУБ
ГОСТ 8959-75*
Москва
ИПК
ИЗДАТЕЛЬСТВО СТАНДАРТОВ
1998
ГОСУДАРСТВЕННЫЙ
СТАНДАРТ СОЮЗА ССР
Постановлением Государственного комитета стандартов Совета Министров
СССР от 14.11.75 № 2901 дата введения установлена
01.01.77
Ограничение срока действия снято по протоколу Межгосударственного
Совета по стандартизации, метрологии и сертификации (ИУС 2-93)
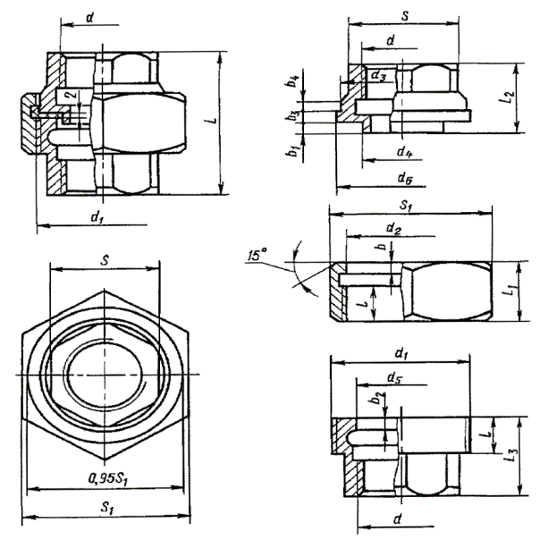
1. Основные размеры гаек должны соответствовать указанным на чертеже и в
таблице.

Примечание. Чертеж не
определяет конструкцию гайки.
Размеры в мм
|
Условный
проход
Dy
|
Резьба d
|
Накидная гайка
|
d3
|
d4
|
d5
|
d6
|
Размер «под ключ»
|
b1
|
b2
|
b3
|
b4
|
L
|
L2
|
L3
|
Диаметр прокладки
|
Масса без покрытия, кг, не более*
|
|
Резьба d1
|
l
|
L1
|
Размер «под ключ»
|
b
|
d2
|
|
S1ном
S1наиб
|
S
|
Sном
Sнаиб
|
Sнаим
|
наружной
|
внутренней
|
|
8
|
G 1/4 - В
|
G 3/4 - B
|
10
|
18
|
32
|
30,0
|
4
|
22,0
|
21,7
|
16,7
|
17
|
24,0
|
19
|
17,7
|
3,5
|
2,5
|
2,5
|
5
|
42
|
21,0
|
21,0
|
24
|
17
|
0,216
|
|
10
|
G 3/8 - B
|
G 7/8 - В
|
10
|
18
|
36
|
34,0
|
4
|
25,0
|
24,7
|
18,7
|
19
|
27,5
|
22
|
20,7
|
3,5
|
2,5
|
2,5
|
5
|
45
|
24,0
|
23,0
|
27
|
19
|
0,282
|
|
15
|
G 1/2 - B
|
G 11/8 - В
|
11
|
19
|
46
|
44,0
|
4
|
32,0
|
31,7
|
23,7
|
24
|
34,5
|
27
|
25,7
|
4,0
|
3,0
|
2,5
|
5
|
48
|
25,0
|
25,0
|
34
|
24
|
0,464
|
|
20
|
G 3/4 - B
|
G 11/4 - В
|
12
|
20
|
50
|
48,0
|
4
|
36,0
|
35,6
|
26,6
|
27
|
38,5
|
32
|
30,0
|
4,0
|
3,0
|
2,5
|
5
|
52
|
27,0
|
27,0
|
38
|
27
|
0,588
|
|
25
|
G 1 - B
|
G 13/4 - B
|
13
|
23
|
65
|
62,6
|
5
|
48,0
|
47,6
|
37,6
|
38
|
50,5
|
41
|
39,0
|
5,0
|
4,0
|
3,0
|
6
|
58
|
31,5
|
29,5
|
50
|
38
|
1,091
|
|
32
|
G 11/4 - B
|
G 2 - B
|
13
|
24
|
70
|
67,2
|
6
|
53,0
|
52,6
|
41,6
|
42
|
56,0
|
50
|
48,0
|
5,0
|
4,0
|
3,0
|
7
|
65
|
35,0
|
33,0
|
55
|
42
|
1,423
|
|
40
|
G 11/2 - B
|
G 21/4 - В
|
14
|
25
|
75
|
72,2
|
6
|
59,5
|
59,1
|
45,5
|
46
|
62,5
|
55
|
52,6
|
5,0
|
4,0
|
3,0
|
7
|
70
|
37,0
|
36,0
|
62
|
46
|
1,702
|
|
50
|
G 2 - B
|
G 23/4 - В
|
16
|
27
|
90
|
87,2
|
6
|
74,0
|
73,6
|
59,6
|
60
|
78,0
|
66
|
65,0
|
6,0
|
5,0
|
3,0
|
7
|
78
|
41,5
|
40,5
|
77
|
60
|
2,522
|
|
(65)
|
G 21/2 - В
|
G 31/2 - В
|
19
|
30
|
110
|
107,0
|
6
|
92,0
|
91,5
|
74,5
|
75
|
97,0
|
83
|
81,8
|
6,0
|
5,0
|
3,0
|
7
|
85
|
44,0
|
45,0
|
96
|
75
|
4,078
|
|
(80)
|
G 3 - В
|
G 4 - B
|
20
|
31
|
130
|
127,0
|
6
|
104,5
|
104,0
|
87,5
|
88
|
109,5
|
96
|
94,6
|
6,0
|
5,0
|
3,0
|
8
|
95
|
48,5
|
50,5
|
109
|
88
|
5,922
|
(Поправка от 01.10.2004 г.).
*
Для справок.
Примечания:
1. Масса оцинкованных соединительных частей не
должна превышать массу неоцинкованных более чем на 5%.
2. Соединительные
гайки с Dу, указанными в
таблице в скобках, применять не рекомендуется.
Примеры
условных обозначений
Гайки соединительной без
покрытия с Dу 40 мм:
Гайка соединительная 40 ГОСТ 8959-75
То же, с цинковым покрытием:
Гайка соединительная Ц-40 ГОСТ 8959-75
(Измененная редакция, Изм. № 1).
2. Конструктивные размеры и технические требования - по ГОСТ 8944-75.
3. Толщины стенок не должны быть менее и .
|