Бесплатная библиотека стандартов и нормативов www.docload.ru

Все документы, размещенные на этом сайте, не являются их официальным изданием и предназначены исключительно для ознакомительных целей.
Электронные копии этих документов могут распространяться без всяких ограничений. Вы можете размещать информацию с этого сайта на любом другом сайте.
Это некоммерческий сайт и здесь не продаются документы. Вы можете скачать их абсолютно бесплатно!
Содержимое сайта не нарушает чьих-либо авторских прав! Человек имеет право на информацию!

 

ПРАВИТЕЛЬСТВО МОСКВЫ
МОСКОМАРХИТЕКТУРА

РЕКОМЕНДАЦИИ
по проектированию межрайонных
центров по профилактике
безнадзорности, преступности,
алкоголизма, наркомании и СПИДА
среди несовершеннолетних

2002

ПРЕДИСЛОВИЕ

1. РАЗРАБОТАНЫ: ГУП МНИИП «Моспроект-4» (архитекторы Любомудрова К.И., Кряжевских М.А., инженер Тихомирова И.Б.).

2. КОНСУЛЬТАНТ: Котов Ю.Б. (1-й заместитель директора Городского центра по профилактике безнадзорности, преступности, алкоголизма, наркомании и СПИДа среди несовершеннолетних «ДЕТИ УЛИЦ»).

3. ПОДГОТОВЛЕНЫ К УТВЕРЖДЕНИЮ И ИЗДАНИЮ Управлением перспективного проектирования и нормативов Москомархитектуры (архитектор Шалов Л.А., инженер Щипанов Ю.Б.).

4. СОГЛАСОВАНЫ: Комитетом по делам семьи и молодежи г. Москвы, Москомархитектурой.

5. УТВЕРЖДЕНЫ И ВВЕДЕНЫ В ДЕЙСТВИЕ указанием Москомархитектуры от 23.01.02 г. № 7.

СОДЕРЖАНИЕ

ВВЕДЕНИЕ

Специальные термины, употребляемые в тексте настоящих Рекомендаций, и их определения приведены в Разделе 3.

Межрайонные центры по профилактике безнадзорности, преступности, алкоголизма, наркомании и СПИДа среди несовершеннолетних (далее МЦ) являются профилактическими реабилитационно-коррекционными учреждениями, обеспечивающими оказание помощи социальной, психологической, психолого-педагогической, медицинской, правовой и досуговой детям и подросткам с различными формами социальной дезадаптации, в т.ч. несовершеннолетним «группы риска» и их родителям.

МЦ следует предусматривать в каждом административном округе.

МЦ обеспечивает комплексный подход к решению проблемы социальной дезадаптации детей и подростков, в т.ч. к профилактике асоциальных проявлений в поведении детей и их реабилитации, на основе непрерывного социального патронажа несовершеннолетнего и его ближайшего окружения, в первую очередь - семьи.

МЦ осуществляют свою деятельность на основе добровольного обращения детей и (или) членов их семей.

МЦ относится к тем учреждениям, в которых профилактическая и реабилитационная работа с девиантными детьми ведется в непосредственном приближении к их месту проживания. Даже при кратковременном изъятии ребенка из семьи, находящейся в социально опасном положении, связь с семьей постоянно поддерживается, при этом все усилия МЦ направлены на разрешение возникшей кризисной ситуации.

К задачам МЦ не относятся лечение наркомании, СПИДа и т.п., а также воспитание подростков, совершивших противоправные и безнравственные деяния. В том случае, если профилактически-реабилитационные мероприятия, проводимые МЦ индивидуально с каждым подростком, не дали ожидаемого результата, МЦ рекомендует обращаться (или в экстренных случаях направляет их) в соответствующие учреждения: медико-социальные центры, больницы, наркологические диспансеры, детские комнаты милиции и т.п., с которыми МЦ постоянно сотрудничает.

1. ОБЛАСТЬ ПРИМЕНЕНИЯ

1.1. Настоящие Рекомендации разработаны для г. Москвы, как дополнение к действующим на ее территории нормативным документам в строительстве и распространяются на проектирование новых и реконструкцию существующих МЦ.

1.2. Настоящие Рекомендации устанавливают основные положения и требования к размещению, участку, территории, архитектурно-планировочным решениям и инженерному оборудованию МЦ.

1.3. Проектирование МЦ должно вестись в соответствии с положениями настоящих Рекомендаций, а также требованиями других нормативно-методических документов в строительстве, действующих на территории г. Москвы (Раздел 2).

2. НОРМАТИВНЫЕ ССЫЛКИ

В настоящих Рекомендациях приведены ссылки на следующие нормативно-методические документы:

2.1. СНиП 10.01-94. «Система нормативных документов в строительстве. Основные положения».

2.2. СНиП 2.08.02-89* «Общественные здания и сооружения».

2.3. СНиП 21-01-97* «Пожарная безопасность зданий и сооружений».

2.4. СНиП 2.07.01-89* «Градостроительство. Планировка и застройка городских и сельских поселений».

2.5. СНиП 2.04.09-84 «Пожарная автоматика зданий и сооружений».

2.6. СНиП 2.04.05-91* «Отопление, вентиляция и кондиционирование воздуха».

2.7. СП 2.2.1/2.1.1.1076-01 «Гигиенические требования к инсоляции и солнцезащите помещений жилых и общественных зданий и территорий».

2.8. СП 2.4.2.782-99 «Гигиенические требования к условиям обучения школьников в различных видах современных общеобразовательных учреждений».

2.9. СН 441-72* «Указания по проектированию ограждений площадок и участков предприятий, зданий и сооружений».

2.10. МГСН 4.15-98 «Общеобразовательные учреждения для детей-сирот и детей, оставшихся без попечения родителей».

2.11. МГСН 1.01-99 «Нормы и правила проектирования, планировки и застройки г. Москвы».

2.12. МГСН 4.12-97 «Лечебно-профилактические учреждения»

2.13. МГСН 2.06-99 «Естественное, искусственное и совместное освещение».

2.14. МГСН 2.05-99 «Инсоляция и солнцезащита».

2.15. МГСН 2.01-99 «Энергосбережение в зданиях».

2.16. «Рекомендации по проектированию образовательных учреждений для детей, нуждающихся в психолого-педагогической и медико-социальной помощи», М., 2000 г.

2.17. «Рекомендации по проектированию сети и зданий детских внешкольных учреждений для г. Москвы», М, Выпуск 1, 1996 г., Выпуск 2, 1997 г., Выпуск 3, 1998 г.

3. ТЕРМИНЫ И ОПРЕДЕЛЕНИЯ

В настоящих Рекомендациях употребляются следующие понятия:

Профилактика безнадзорности, преступности, алкоголизма, наркомании и СПИДа - система мер, направленных на выявление и устранение причин, негативно воздействующих на физическое и нравственное здоровье несовершеннолетних, на предупреждение их противоправного и (или) безнравственного поведения.

Состояние социально-психологической дезадаптации (девиантность) - поведение, противоречащее принятым в обществе правовым и (или) нравственным нормам.

Безнадзорный - несовершеннолетний, контроль за поведением которого отсутствует вследствие ненадлежащего исполнения обязанностей по его воспитанию со стороны родителей.

Семья, находящаяся в социально опасном положении - семья, имеющая девиантных детей, или семья, где родители не исполняют своих обязанностей по воспитанию, отрицательно влияют на поведение детей либо жестоко обращаются с ними.

Группа риска - подростки, уже совершившие мелкие правонарушения, пробующие употреблять алкоголь или наркотики, характеризующиеся асоциальным поведением.

Тяжелая жизненная ситуация - ситуация, с которой ребенок не может справиться без помощи взрослого и (или) специалиста (например: конфликт в семье; конфликт в школе и т.п.).

Школьная дезадаптация - конфликтная ситуация в школе (например: отказ ребенка от посещения школы, полный разрыв с детским коллективом и т.п.).

4. ОБЩИЕ ПОЛОЖЕНИЯ

4.1. Основное назначение МЦ - профилактика социальных отклонений у несовершеннолетних и оказание помощи им и их семьям и неблагополучным семьям с детьми, а также восстановление здоровых отношений внутри семьи для обеспечения права ребенка на нормальное развитие в семье - наиболее приспособленной для этого социальной структуре.

4.2. Профилактическая деятельность МЦ подразделяется на первичную и вторичную. Первичная профилактика направлена на то, чтобы снизить вероятность возникновения нежелательного явления. Она предполагает работу с асоциальными несовершеннолетними по разработанным досуговым программам. Вторичная профилактика - это вмешательство при появлении первых признаков нежелательного явления с целью предупреждения его и закрепления положительного эффекта от вмешательства. На этой стадии подключаются реабилитационно-коррекционные мероприятия. Эффективность данных видов профилактики тем выше, чем раньше выявлена проблема.

4.3. Деятельность МЦ представлена следующими мероприятиями:

- выявление несовершеннолетних с асоциальным поведением или оказавшихся в тяжелой жизненной ситуации;

- организация психо-коррекционных мероприятий как индивидуально с ребенком, так и с семьей в целом;

- снятие кризисного психофизического состояния несовершеннолетнего, оказавшегося в тяжелой жизненной ситуации, оказание помощи в выходе из нее (разрешений конфликтной ситуации в семье, в школе и т.п.);

- организация мероприятий по социально-педагогической реабилитации несовершеннолетних, т.е. осуществление профилактических мероприятий по возникновению педагогической дезадаптации;

- осуществление психолого-коррекционной работы с несовершеннолетними в условиях временной изоляции в случае конфликтных ситуаций в семье;

- проведение профилактической работы по программам культурно-эстетического развития и спорт-реабилитации несовершеннолетних. Подобные мероприятия по профилактике правонарушений и наркомании среди подростков помогают наладить контакты неформального общения и преодолеть тем самым межличностную отчужденность, реализовать скрытые творческие потребности, выплеснуть чрезмерную энергию и агрессивные эмоции;

подменить собой неформальные асоциальные группы общения, в которых, как правило, и развиваются «группы риска»;

- оказание юридической помощи и содействия правовой защите несовершеннолетних в случае физического или морального насилия над ребенком в семье;

- оказание психологической и социальной помощи семьям, имеющим детей и подростков «группы риска»;

- оказание помощи в трудоустройстве подростков в каникулярное время, на которое приходится пик проявления противоправной деятельности несовершеннолетних, что связано с ослаблением контроля за детьми и подростками в этот период.

4.4. Контингент, с которым осуществляет работу МЦ, составляют:

- дети и подростки от 3 до 18 лет с различными формами социальной дезадаптации;

- подростки от 12 до 18 лет, относящиеся к «группе риска»;

- дети и подростки от 3 до 18 лет, оказавшиеся в тяжелой жизненной ситуации;

- асоциальные семьи с детьми;

- семьи с детьми с различными формами социальной дезадаптации.

4.5. В состав МЦ входят несколько самостоятельных отделений с общими целями и задачами:

- базовое отделение;

- центр экстренной помощи детям и подросткам, оказавшимся в тяжелой жизненной ситуации;

- консультативно-коррекционные пункты. Функциональная структура МЦ представлена на рис. 1.

УСЛОВНЫЕ ОБОЗНАЧЕНИЯ:

БО - БАЗОВОЕ ОТДЕЛЕНИЕ
ЦП - ЦЕНТР ЭКСТРЕННОЙ ПОМОЩИ ДЕТЯМ
ККП - КОНСУЛЬТАТИВНО-КОРРЕКЦИОННЫЙ ПУНКТ

РИС. 1. ФУНКЦИОНАЛЬНАЯ СТРУКТУРА МЦ.

Взаимосвязь указанных трех отделений МЦ осуществляется следующим образом:

1) на первом этапе ребенок один (выявленный социальным работником) или с родителями обслуживаются в консультативно-коррекционном пункте, который находится вблизи от его дома. Здесь осуществляется первичная психологическая диагностика, определяется причина асоциального поведения ребенка и, в соответствии с заключением социального работника, несовершеннолетний может быть направлен:

- в базовое отделение;

- в центр экстренной помощи;

- в медицинское учреждение или детскую комнату милиции;

- осуществлять дальнейший патронаж непосредственно в консультативно-коррекционном пункте.

2) Базовое отделение представляет собой ведущее звено МЦ, в рамках которого собственно и осуществляются все виды профилактической и реабилитационно-коррекционной деятельности.

3) Центр экстренной помощи относится к отделениям кратковременного пребывания. После разрешения возникших проблем дети снова переходят под патронаж ККП и проживают дома.

4.6. Базовое отделение (в дальнейшем БО) осуществляет проведение коррекционных, психологических, психолого-педагогических, оздоровительных и досуговых мероприятий. Контингент, с которым осуществляет работу БО, соответствует контингенту всего МЦ (см. п. 4.4.).

4.7. Оптимальная единовременная пропускная способность БО - 100 чел.

4.8. Центр экстренной помощи детям и подросткам (в дальнейшем ЦП) состоит из двух подразделений:

- стационара, обеспечивающего несовершеннолетним временное проживание (до 10 дней), медицинское освидетельствование, решение юридических и правовых проблем, проведение коррекционных мероприятий;

- групп дневного пребывания, обеспечивающих несовершеннолетним питание, помощь в приготовлении школьных заданий, проведение коррекционных и досуговых мероприятий.

Для полноценного функционирования ЦП размещать его следует в составе БО, что позволяет использовать коррекционную и досугово-оздоровительную базу БО, а также имеющийся участок.

4.9. Контингент стационара ЦП составляют дети и подростки следующих групп:

- дети и подростки при обострении конфликтной ситуации в семье;

- дети и подростки, подвергшиеся насилию в семье.

Контингент групп дневного пребывания:

- дети и подростки из асоциальных и малообеспеченных семей.

4.10. Оптимальная вместимость стационара ЦП - 10-15 мест, групп дневного пребывания - не более 30 чел., наполняемость групп - 8-10 чел.

4.11. Консультативно-коррекционный пункт (в дальнейшем ККП) выполняет функции социального патронажа детей и их семей. ККП состоит из отдельных кабинетов, дисперсно размещаемых на территории округа во всех районах. Контингент, с которым осуществляет работу ККП:

- асоциальные семьи с детьми;

- семьи с детьми с различными формами социальной дезадаптации;

- дети с различными формами социальной дезадаптации.

4.12. Состав и площади всех функциональных блоков различных отделов МЦ уточняются в каждом конкретном случае заданием на проектирование с учетом данных Раздела 6 настоящих Рекомендаций.

5. ТРЕБОВАНИЯ К РАЗМЕЩЕНИЮ, УЧАСТКУ И ТЕРРИТОРИИ

5.1. МЦ следует размещать в селитебной зоне, в 10-ти минутной доступности до общественного транспорта. БО - в административных округах; ККП - в муниципальных районах.

5.2. Размеры и составы зон участков БО определяются заданием на проектирование или конкретным проектом, с учетом положений настоящего раздела.

5.3. ККП, в силу специфики выполняемых функций, располагаются, как правило, на 1 этажах жилых зданий и не нуждаются в выделении участка.

5.4. Здания БО следует размещать на обособленных земельных участках.

5.5. Площадь участка БО принимается из расчета 80-120 м2 на 1 место единовременной вместимости БО с учетом размещения на участке площадок и сооружений оздоровительного и досугового характера.

5.6. В составе территории участка БО предусматриваются следующие зоны:

- общественная;

- физкультурно-оздоровительная;

- проживания;

- хозяйственная.

5.7. В физкультурно-оздоровительной зоне рекомендуется предусматривать: площадку для метания мяча и прыжков (60´40 м); гимнастическую площадку (15´16 м); легкоатлетическое спортядро с круговой беговой дорожкой длиной 250 м; площадки для нетрадиционных видов спорта (катания на роликах, скейтборде, игры и др.).

5.8. Физкультурно-оздоровительная зона также используется для проведения психо-коррекционных мероприятий.

5.9. В зоне проживания рекомендуется предусматривать теневые навесы (2 м2 на 1 место) с примыкающими игровыми площадками (6-8 м2 на 1 место) из расчета 50-60 % детей, находящихся в стационаре, а также групп дневного пребывания.

5.10. ЦП должен иметь подъездные пути, обеспечивающие возможность доставки вновь прибывших детей и эвакуации заболевших специальным транспортом.

5.11. Площадь озеленения должна составлять 40-50 % от общей площади участка в соответствии с СП 2.4.2.782-99. На этой площади рекомендуется предусматривать газоны, цветники, зеленые насаждения.

5.12. Хозяйственная зона должна иметь отдельный въезд (вход) и размещаться со стороны административно-бытовых помещений. На ее территории допускается размещать навесы для инвентаря и оборудования, мусоросборники и т.п.

5.13. В хозяйственной зоне рекомендуется размещать гараж с мастерскими, который может быть использован как для хозяйственных нужд учреждения, так и для обучения автоделу. Гараж рекомендуется предусматривать на 3 служебных машины (автобус, миниавтобус типа «газель», легковую машину).

5.14. Земельный участок БО должен иметь ограждение высотой не менее 1,5-2 м в соответствии с требованиями СН 441-72*.

5.15. Участок должен быть освещен в соответствии с требованиями СНиП 23-05-95.

5.16. На участке должно быть предусмотрено не менее двух въездов (один хозяйственный), проезды должны иметь твердое покрытие и ширину не менее 3 м; планировка участка, должна обеспечивать подъезды пожарных машин ко всем зданиям, а также объезды вокруг них (СНиП 21-01-97*).

5.17. Для автомашин сотрудников следует предусматривать открытую стоянку в соответствии с требованиями МГСН 1.01-99.

6. ТРЕБОВАНИЯ К АРХИТЕКТУРНО-ПЛАНИРОВОЧНЫМ И ИНЖЕНЕРНЫМ РЕШЕНИЯМ

Общие требования.

6.1. БО рекомендуется размещать в отдельно стоящем здании. ККП, состоящие из отдельных кабинетов, рекомендуется размещать преимущественно в жилом материальном фонде.

6.2. В состав МЦ входят следующие функциональные группы помещений:

- вестибюльная;

- специализированная (содействия семейному воспитанию; психолого-терапевтической и психолого-педагогической коррекции, медицинская) - в составе БО;

- досугово-физкультурно-оздоровительная - в составе БО;

- стационара и дневных групп - в составе ЦП;

- питания - в составе ЦП;

- административно-хозяйственная - в составе БО;

- социального патронажа - в составе ККП. Функционально-планировочная схема БО (включая ЦП) представлена на Рис. 2.

Архитектурно-планировочные решения БО должны учитывать требования функционального зонирования помещений с учетом осуществляемой в них деятельности.

Функциональные группы помещений, рассчитанные на работу с детьми, помимо своих основных функций, несут также и коррекционную, что и определяет состав и площади их помещений.

РИС. 2. ФУНКЦИОНАЛЬНАЯ СХЕМА БО.

6.3. Состав и площади помещений БО, ЦП и ККП приведены в Таблицах 5.1 - 5.8. Состав помещений может уточняться заданием на проектирование или проектом. Площади отдельных помещений могут уменьшаться или увеличиваться не более чем на 15 % в зависимости от конкретных планировочных и конструктивных решений.

6.4. Функциональные группы помещений БО и ЦП рекомендуется размещать в одном здании или блоках, либо непосредственно примыкающих друг к другу, либо соединенных отапливаемыми переходами. В случае непосредственного примыкания корпусов (блоков) должны предусматриваться пожарные отсеки площадью не более 5000 м2, разделяемые противопожарными стенами 1-го типа (в соответствии с требованиями СНиП 2.08.02-89*). Из каждого пожарного отсека должно быть предусмотрено не менее двух эвакуационных выходов, один выход допускается предусматривать в соседний отсек.

6.5. Здание БО (совместно с ЦП) следует проектировать, как правило, высотой 2-3 этажа. Для затесненных участков застройки допускается увеличивать высоту до 4 этажей.

6.6. Объемно-планировочная структура здания должна обеспечивать удобство функционирования учреждения, учитывать его специфику и обеспечивать комфортные условия эксплуатации, включая удобную связь с участком.

6.7. ЦП в составе БО рекомендуется, как правило, располагать на первом этаже с организацией отдельного входа на улицу.

6.8. Ширина лестничных маршей БО и ЦП должна быть не менее 1,35 м. Лестничные марши и площадки должны иметь защитное ограждение на высоту этажа.

Ширину дверей основных помещений следует принимать не менее 1 м.

Ширину коридоров в помещениях административно-бытового, методического и хозяйственного назначения следует принимать не менее 1,4 м; во всех остальных помещениях - не менее 2,2 м.

6.9. Высота этажей здания БО и ЦП предусматривается не менее 3,3 м (от пола до пола), высота помещений зрительного зала и спортзала (до низа несущих конструкций) - по технологическим требованиям.

Высоту встраиваемых помещений ККП допускается принимать равной высоте жилых помещений.

6.10. Внутренняя отделка помещений должна быть выполнена из материалов, разрешенных для применения органами Госсанэпиднадзора Минздрава РФ и допускающих влажную уборку, а также применение дезинфицирующих средств.

6.11. Все специализированные помещения БО, рассчитанные на пребывание детей, должны быть оборудованы раковинами.

6.12. В помещениях фойе и холлах БО рекомендуется организовывать уголки релаксации с зелеными насаждениями, фонтанчиками, аквариумами и т.д.

6.13. Естественное освещение в помещениях следует проектировать в соответствии с МГСН 2.06-99.

6.14. Все помещения кружковых и мастерских должны иметь КЕО не менее 1,5 на поверхности столов и освещаться боковым светом слева. Для организации мобильных форм ведения занятий необходимо предусматривать равномерное освещение по всей рабочей плоскости в помещении за счет дополнительного верхнего света или дополнительного искусственного освещения в глубине помещения.

6.15. Допускается не предусматривать естественного освещения:

- в зрительном зале, в конференцзале;

- в умывальных, душевых и уборных при спортивном зале, санитарных узлах для детей, санитарных узлах для персонала, комнатах личной гигиены женщин (при соблюдении необходимой кратности обмена воздуха);

- в радиоузле;

- в буфете для персонала;

- в кладовых инвентаря, комнатах хранения предметов уборки;

- в помещениях технических служб.

6.16. Санитарные узлы и туалетные комнаты проектируются в соответствии с СП 2.4.2.782-99.

Общее количество санитарных приборов принимается из расчета: на каждые 20 мест по два унитаза для мальчиков и для девочек, 2 писсуара в уборной для мальчиков; 1 умывальник на каждые 30 мальчиков и 30 девочек.

6.17. В комнатах хранения уборочного инвентаря следует предусматривать умывальник и слив.

6.18. Требования к инсоляции помещений, в которых находятся дети, должны быть учтены в соответствии с СП 2.2.1/2.1.1.1076-01.

6.19. Отопление и вентиляцию зданий БО (совместно с ЦП) следует проектировать в соответствии с требованиями СНиП 2.04.05-91*.

6.20. Энергоснабжение, электрооборудование, электрическое освещение зданий и наружное освещение территории следует предусматривать в соответствии с требованиями МГСН 2.06-99.

6.21. Здания проектируются с учетом максимального энергосбережения в соответствии с требованиями МГСН 2.01-99.

6.22. Здания следует проектировать не менее II степени огнестойкости (СНиП 21-01-97*).

6.23. В здании БО (совместно с ЦП) и помещениях ККП должна предусматриваться автоматическая пожарная сигнализация в соответствии с требованиями СНиП 2.04.09-84. Сигнал о срабатывании системы АПС (автоматической пожарной сигнализации) выводится в помещение с круглосуточным пребыванием персонала.

6.24. На путях эвакуации из здания должно быть предусмотрено аварийное и эвакуационное освещение в соответствии с требованиями СНиП 21-01-97* и СНиП 23-05-95.

Вестибюльная группа помещений

6.25. Рекомендуемый состав помещений вестибюльной группы БО, ЦП и ККП приведен в таблице 6.1.

6.26. Гардероб в БО, ЦП и ККП рекомендуется оборудовать вешалками консольного типа.

6.27. В БО следует предусматривать гардероб для сотрудников в отдельном помещении при вестибюле.

6.28. В вестибюльной группе БО рекомендуется предусматривать помещение регистратуры - справочного отдела.

6.29. На входах в здание БО и ЦП следует предусматривать тамбуры.

6.30. При входах в здание БО и ЦП следует предусматривать помещение или место для охраны.

6.31. В ЦП гардероб для детей рекомендуется оборудовать сушильными шкафами для одежды и обуви с подогревом и вытяжкой, а также секционными шкафами для хранения детской одежды и обуви. Количество оборудования должно быть рассчитано как на проживающих детей, так и на детей групп дневного пребывания.

6.32. В вестибюльную группу помещений ККП рекомендуется включать комнату ожидания посетителей, оборудованную стульями и журнальным столиком.

Таблица 6.1.

Рекомендуемые состав и площади помещений вестибюльной группы.

№№

п/п

Наименование помещений

Площадь помещений, м2

Примечания

Ha l место

Всего

БО

1.

Главный вестибюль

0,38

Не менее 20

С учетом численности персонала и мест ожидания родителей

2.

Гардероб для верхней одежды воспитанников

0,1

Не менее 10

 

3.

Гардероб для верхней одежды персонала

0,1

Не менее 6

 

4.

Регистратура

-

10

 

5.

Помещение дежурного администратора (охраны)

-

6

 

6.

Комната хранения предметов уборки

-

4

 

 

Санузел с умывальником в шлюзе

-

3

 

ЦП

1.

Вестибюль с гардеробом

0,5

Не менее 30

 

2.

Помещение дежурного администратора (охраны)

-

6

 

3.

Санузел с умывальником в шлюзе

-

3

 

ккп

1.

Прихожая с гардеробом и местом для охраны

-

6

 

2.

Комната ожидания посетителей

-

8

 

3.

Санузел с умывальником в шлюзе

-

3

 

Группа специализированных помещений (группы: содействия семейному воспитанию, психолого-терапевтической и психолого-педагогической коррекции, медицинская).

6.33. Рекомендуемый состав и площади специализированных помещений приведены в таблице 6.2.

6.34. Основная цель организации группы помещений содействия семейному воспитанию - содействие полноценному развитию и самореализации несовершеннолетнего в родной семье путем восстановления нормальных семейных отношений или путем создания новой семейной среды (опекунства, приемные родители и т.п.). Содействие осуществляется путем проведения мероприятий, направленных на:

- установление возможных форм сотрудничества со средой проживания несовершеннолетнего;

- коррекцию семейных отношений, в т.ч. разрешение кризисных ситуаций в семье;

- содействие в образовании опекунской (приемной) семьи (при невозможности преодоления дисфункциональности семьи);

- организацию коммуникативной среды для общения потенциальных опекунов и несовершеннолетних;

- оказание юридической помощи и содействие правовой защите несовершеннолетних и их семей.

6.35. Все кабинеты специалистов службы содействия семейному воспитанию рассчитаны на работу с «детско-родительской» группой и оборудуются столом специалиста, компьютерным столом, стеллажами, журнальным столиком с 4 креслами. Количество кабинетов специалистов в каждом конкретном случае определяется заданием на проектирование.

6.36. В состав группы помещений содействия семейному воспитанию входит «Родительский клуб». Основная цель его организации - создание условий для общения и адаптации опекуна и несовершеннолетнего. Состав оборудования клуба: обеденный стол со стульями, шкаф с посудой, уголок отдыха с мягкой мебелью, подсобный столик с микроволновой печью и электрическим чайником, раковина. «Родительский клуб», как правило, рассчитывается на пребывание группы из 6 чел. Возможная расстановка оборудования в «Родительском клубе» приведена в Приложении на Рис. П.1.

6.37. Основное назначите группы медицинских помещений - медико-психологическая диагностика несовершеннолетних для разработки рекомендаций по профилактике и реабилитации возможных отклонений в социально-психическом состоянии ребенка.

6.38. Кабинеты специалистов: нарколога, детского психиатра, психотерапевта и психоневролога рассчитаны на работу с «детско-родительской» группой. Примеры планировки с оборудованием нарколога, детского психиатра, психотерапевта и психоневролога приведены в Приложении на Рис. П.3. Кабинеты врача-педиатра и дефектолога рассчитаны на индивидуальную работу с детьми. Примеры планировки с оборудованием кабинетов врача-педиатра и дефектолога приведены в Приложении на Рис. П.2.

6.39. Кабинет экстренной психологической помощи с телефоном доверия предусматривает круглосуточную работу специалиста. В составе оборудования кабинета рекомендуется предусматривать: письменный стол, компьютерный стол, стеллаж, диван, кресло. Кабинет рекомендуется размещать при вестибюльной группе помещений. При кабинете следует предусматривать санузел, в состав оборудования которого входят: унитаз, умывальник, душ.

6.40. Назначение помещений психолого-терапевтической коррекции - проведение профилактической работы среди несовершеннолетних и их семей, используя следующие методы:

- индивидуальную психологическую коррекцию;

- преодоление социальной дезадаптации;

- социально-средовую адаптацию;

- привитие навыков здорового образа жизни и правильного сексуального поведения.

6.41. В кабинете психолога проводится как индивидуальная работа с ребенком, так и работа с «детско-родительской» группой.

6.42. Кабинеты групповой психотерапии и зал ситуационных игр предназначены для социально-средовой адаптации несовершеннолетних.

В состав оборудования кабинета групповой психотерапии рекомендуется включать кресла, журнальный столик, компьютерный стол, пример планировки его с оборудованием приведен в Приложении на Рис. П.4.

В состав оборудования зала ситуационных игр включаются: столы, которые могут быть составлены в единый в средней части помещения, стеллажи с пособиями, компьютерный стол специалиста (Приложение, Рис. П.5).

6.43. Кабинет сексуального воспитания представляет собой лекционную аудиторию со столом социального педагога и креслами с откидными столиками для слушателей, расстановка которых может быть произвольной.

6.44. Зал арттерапии рассчитан на проведение ролевых игровых мероприятий, направленных на преодоление у детей и подростков социальной дезадаптации путем снятия комплекса неполноценности. Зал представляет собой помещение, с ковровым покрытием в центральной части и рядом небольших сцен для игрового самовыражения личности ребенка. Пример планировки зала с оборудованием приведен в Приложении на Рис. П.6.

6.45. Помещения групповой психотерапии, кабинета сексуального воспитания, зала ситуационных игр, зала арттерапии - рассчитаны на работу с группой из 9 чел.

6.46. Кабинет релаксации рассчитан на проведение индивидуальной психо-терапевтической коррекции. В состав оборудования его рекомендуется включать мягкую мебель (кресло или диван), светомузыкальную установку, аквариум с рыбками, зеленый уголок и т.п.

6.47. В состав группы помещений психолого-терапевтической коррекции входит лекционная аудитория, рассчитанная на проведения лекций как для несовершеннолетних, так и для их родителей. Оптимальная вместимость аудитории составляет 30 чел.

6.48. Группа помещений психолого-педагогической коррекции предназначена для проведения мероприятий, направленных на профилактику школьной дезадаптации.

6.49. Входящие в данную группу помещений кабинеты старшего педагога-методиста и педагога-методиста рассчитаны на проведение индивидуальных занятий с детьми. В состав их оборудования входят: стол специалиста, компьютерный стол, стеллажи.

6.50. Кабинет социального педагога рассчитан на проведение занятий с детской группой из 3 чел., представляет собой классное помещение с уголком релаксации (Приложение, Рис. П.7).

6.51. Кабинет психолого-педагогической коррекции представляет собой классное помещение на 9 чел. с уголком релаксации (Приложение, Рис. П.8).

6.52. В состав оборудования кабинета коррекционных игр «лего», рассчитанного на проведение занятий в группе из 9 чел., рекомендуется включать столы на 1 ребенка, стеллажи с пособиями, стол специалиста.

6.53. В состав оборудования кабинета коррекционных игр «компьютер» рекомендуется включать как столы на 1 ребенка, так и общий стол в средней части помещения, компьютерный стол специалиста, стеллажи. (Приложение, Рис. П.9).

Таблица 6.2.

Рекомендуемые состав и площади группы специализированных помещений ( группы: содействия семейному воспитанию, психолого-терапевтической и психолого-педагогической коррекции, медицинская).

п.п.

Наименование помещений

Площадь помещений, м2

Примечания

Группа содействия семейному воспитанию

1.

Кабинет психолога

22

 

2.

Кабинет юриста

18

 

3.

Кабинет специалиста по восстановительному правосудию

18

 

4.

Родительский клуб

36

 

5.

Санитарные узлы для мужчин и для женщин с умывальником в шлюзе

3

 

Медицинская группа

1.

Кабинет врача - педиатра

14

 

2.

Кабинет дефектолога

14

 

3.

Кабинет нарколога

22

 

4.

Кабинет детского психиатра

22

 

5.

Кабинет психотерапевта

22

 

6.

Кабинет психоневролога

22

 

7.

Кабинет экстренной психологической помощи с телефоном доверия с санузлом в шлюзе

10 + 3

 

Группа психолого-терапевтической коррекции

1.

Кабинет психолога

22

 

2.

Кабинет групповой психотерапии

44

 

3.

Кабинет сексуального воспитания

26

 

4.

Зал ситуационных игр

38

 

5.

Зал арттерапии с кладовой

63 + 15

 

6.

Кабинет релаксации

12

 

7.

Лекционная аудитория

42

 

Группа психолого-педагогической коррекции

1.

Кабинет старшего педагога-методиста

14

 

2.

Кабинет педагога-методиста

14

 

3.

Кабинет социального педагога

27

 

4.

Кабинет психолого-педагогической коррекции с лаборантской

44 + 12

 

5.

Кабинеты коррекционных игр:

 

 

 

- «лего»

50

 

 

- «компьютер»

50

 

6.

Санитарные узлы для мальчиков и для девочек с умывальниками в шлюзе

16´2

Распределить поэтажно

7.

Комната гигиены для девочек

3

Разместить при санузле узле

8.

Санузел с умывальником для персонала

3

 

9.

Помещение уборочного инвентаря

4

 

10.

Инвентарная

16

 

Досугово-физкультурно-оздоровительные помещения

6.54. Рекомендуемый состав и площади досугово-физкультурно-оздоровительных помещений приведены в табл. 6.3.

6.55. Основная задача группы помещений - роль первичного звена профилактики беспризорности, наркомании, алкоголизма и СПИДа среди несовершеннолетних. В основе ее деятельности лежит идея отвлечения ребенка от привычного агрессивно настроенного окружения, т.е. группа помещений предусматривается для проведения мероприятий, направленных на:

- формирование у детей и подростков потребности в групповом и межличностном общении;

- раскрытие врожденных склонностей ребенка, формирование круга его культурных интересов;

- физическое развитие, предоставление позитивной возможности дать выход своей энергии.

6.56. Актовый зал рекомендуется проектировать на 120 % от единовременной вместимости БО + ЦП, а также в расчете на гостей (но не более 150-180 мест).

6.57. Фойе при актовом зале может быть использовано для музея детских поделок, зала для танцев и игр.

6.58. Состав и профиль кружковых помещений и мастерских технического творчества в каждом конкретном случае определяется заданием на проектирование в зависимости от инфраструктуры обслуживаемой территории, сложившегося спроса, экономических и кадровых возможностей.

Предусматриваемые в БО виды кружковой деятельности должны предоставлять возможность каждому ребенку подобрать занятия, соответствующие его склонностям и интересам.

6.59. Все помещения кружковых и мастерских технического творчества рассчитываются на проведение занятий в группе из 9 чел.

6.60. Учебно-производственные мастерские, в которых учебные и технологические процессы связаны с выделением химических веществ и пыли (в т.ч. мастерские радиотехники, электроники, монтажные и др.), следует оборудовать эффективной вентиляционной системой согласно СНиП 2.04.05-91*.

Мастерские оборудуются шкафами для хранения спецодежды и умывальниками с подачей горячей и холодной воды.

6.61. Интерьеры помещений БО и в частности кружковых помещений и мастерских технического творчества должны быть привлекательны и вызывать интерес детей и подростков, оказывать положительное и эмоциональное эстетическое воздействие. Интерьеры не должны выглядеть казенно, их оформление не должно быть вызывающим и безвкусным. К оформлению интерьеров рекомендуется привлекать воспитанников и использовать элементы их самодеятельного творчества.

6.62. Учитывая возможность наличия в контингенте МЦ детей и подростков с запущенной девиантностью, архитектурно-планировочная организация помещений для занятий с использованием ценного оборудования, должна предусматривать выделение двух зон доступности:

- зону занятий с руководителем;

- зону ограниченной доступности (хранения ценного оборудования, сырья, изделий).

6.63. Для эстетического развития детей и подростков в состав кружковых помещений рекомендуется включать: комнату музыкальных занятий, пример планировки которой представлен в Приложении, Рис. П.10, а также изостудию (Приложение, Рис. П.11).

6.64. В состав досуговых помещений БО предусматривается включение «Семейного клуба» (Приложение, Рис. П.12), предназначенного для общения одновременно нескольких семей с девиантными детьми.

6.65. Связь спортивного зала с раздевальными предусматривается непосредственно через обособленный коридор. При спортивном зале предусматривается кладовая спортинвентаря, смежная с ним.

6.66. Зал гимнастических занятий при необходимости может использовать для проведения занятий борьбой и тяжелоатлетических занятий (Приложение, Рис. П.13).

6.67. В БО рекомендуется дополнительно предусматривать помещения для хранения лыж и велосипедов, площади которых определяются заданием на проектирование.

Таблица 6.3.

Рекомендуемые состав и площади досуговых и физкультурно-оздоровительных помещений

№№

п.п.

Наименование помещений

Площадь помещений, м2

Примечания

На 1 место

всего

Помещения досугового обслуживания

1.

Актовый зал

1,0

-

Используется также для занятий театральной студии

2.

Эстрада при зале

-

-

Глубина эстрады - не менее 3,5 м

3.

Кинопроекционная с перемоточной и радиоузлом

-

26

 

4.

Фойе

0,9

-

На 1 место в зале. Используется для занятий хореографией

5.

Санитарные узлы для мальчиков и девочек с умывальником в шлюзе при фойе

-

16´2

 

6.

Комната гигиены для девочек

-

3

Разместить при санитарном узле

7.

Помещение для артистов

-

15´2

 

8.

Фильмовидеотека

-

8

 

9.

Помещение пожарного поста

-

10

 

10.

Кладовая мебели и реквизита

-

20

 

11.

Кладовая аппаратуры

-

10

 

12.

Комната музыкальных занятий с кладовой инструментов

-

32 + 12

 

13.

Изостудия с кладовой

-

38 + 8

 

14.

Кружковые комнаты с подсобными помещениями

-

54 + 8

 

15.

Мастерская автодела:

 

 

 

 

- теория

-

32

 

 

- практика

-

80

 

16.

Мастерская технического творчества с подсобным помещением

-

68 + 10

 

17.

Учебно-производственная мастерская с подсобным помещением

-

90 + 14

 

18.

Помещение семейного клуба

-

34

 

19.

Помещение туристического штаба с кладовой для хранения инвентаря

-

36 + 18

 

20.

Редакция детской газеты

-

36

 

Физкультурно-оздоровительные помещения

1.

Зал гимнастических занятий с раздевалкой и кладовой спортинвентаря

-

60 + 8 + 6

 

2.

Спортивный зал 12´24 м

-

288

 

3.

Кладовая спортинвентаря

-

16

 

4.

Тренажерный зал

-

72

 

5.

Зал для игры в настольный теннис

-

36

 

6.

Раздевальные для девочек и для мальчиков с душевыми и санитарными узлами

-

24´2

В состав оборудования входят: по 2 душевых рожка, 1 унитазу, 1 умывальнику

7.

Комната инструкторов-методистов с санузлом в шлюзе

-

10 + 3

 

8.

Санитарный узел с умывальником в шлюзе для персонала

-

3

 

9.

Комната хранения предметов уборки

-

4

 

Помещения стационара и групп дневного пребывания.

6.68. Рекомендуемый состав и площади помещений стационара и групп дневного пребывания приведены в таблице 6.4.

6.69. Жилую группу помещений следует проектировать по типу «Приемная семья» в соответствии с МГСН 4.15-98, Приложение 6.

6.70. Основное назначение этой группы помещений - временная изоляция несовершеннолетних от обычного окружения до разрешения жизненной ситуации, в которой оказался ребенок (конфликт в семье, безнадзорность и т.п.).

6.71. Вместимость жилой группы определяется в каждом конкретном случае заданием на проектирование.

6.72. Учитывая специфику контингента, следует предусмотреть возможность изоляции помещений жилой группы от прочих помещений БО.

6.73. Жилые комнаты рекомендуется проектировать на 1, 3 и 4 места. Количество одноместных комнат должно составлять до 50 % от общей вместимости жилой группы (учитывая различные причины обращения несовершеннолетних в ЦП). (Приложение, Рис. П.14).

6.74. В жилых комнатах должен быть предусмотрен остекленный проем в стене, смежной с коридором, для наблюдения за детьми.

6.75. Для групп дневного пребывания предусматриваются учебно-игровые комнаты (Приложение, Рис. П.15), количество которых в каждом конкретном случае определяется заданием на проектирование. Каждая учебно-игровая комната рассчитана на одновременное пребывание 9 чел.

Таблица 6.4.

Рекомендуемый состав и площади помещений проживания

№№ п.п.

Наименование помещений

Площадь помещений, м2

Примечания

1.

Спальные комнаты:

 

 

 

- на 1 место

8

 

 

- на 3 места

15

 

 

- на 4 места

20

 

2.

Учебно-игровая комната

32

 

3.

Санузел с умывальником в шлюзе (для групп дневного пребывания)

3

 

4.

Гостиная

32

Предусмотреть возможность просмотра телепередач

5.

Комната дежурного воспитателя

10

 

6.

Кабинет заведующего ЦП

12

 

7.

Комната дежурной медсестры

10

 

8.

Инвентарная

8

 

9.

Кладовая чистого и грязного белья

4

 

10.

Кладовая

6

 

11.

Комната хранения уборочного инвентаря

4

 

12.

Санитарные узлы воспитанников стационара:

 

 

 

- уборная с умывальником

3

В состав оборудования входят: унитаз, умывальник

 

- туалетная

4

В состав оборудования входят: унитаз, умывальник, душевой поддон с душевой сеткой

13.

Санитарный узел персонала с умывальником в шлюзе

3

 

Помещения питания

6.76. В ЦП питание организуется в столовой в одну смену для проживающих в стационаре и для дневных групп.

6.77. Площадь обеденного зала принимается из расчета 1,8 м2 на 1 посадочное место; при зале предусматривается умывальная из расчета 3 м2 (1 умывальник) на каждые 18-20 мест.

6.78. Для питания персонала предусматривается обеденный зал самообслуживания (или буфет) из расчета 1,8 м2 на 1 посадочное место. Его следует располагать в составе помещений кухни или администрации. Количество мест определяется заданием на проектирование, исходя из числа персонала, питающегося в учреждении, продолжительности обеденного времени и количества смен. При зале предусматривается подсобное помещение, предназначенное для раздачи пищи, хранения и мойки посуды площадью 8 м2.

6.79. В производственные помещения столовой должен предусматриваться отдельный вход.

Производственные помещения столовой, работающие на полуфабрикатах, проектируются с учетом размещения в них комплекта торгово-технологического оборудования на электроподогреве.

6.80. Рекомендуемые состав и площади производственных помещений кухни приведены в табл. 6.5.

Таблица 6.5.

Рекомендуемый состав и площади производственных помещений кухни

№№

п.п.

Наименование помещений

Площадь помещений, м2

Примечания

1.

Горячий цех

35

 

2.

Холодный цех

35

 

3.

Рыбный цех

9

 

4.

Мясной цех

9

 

5.

Хлеборезка, хранение хлеба

4

 

6.

Моечная кухонной посуды

10

 

7.

Моечная столовой посуды

14

 

8.

Охлаждаемая камера для хранения:

- молочных продуктов

6

 

 

- рыбы, мяса

6

 

9.

Кладовая сухих продуктов

8

 

10.

Кладовая овощей

8

 

11.

Комната заведующего производством

8

 

12.

Загрузочная - тарная

8

 

13.

Бельевая, гардеробная персонала, душевая, уборная

14

 

Группа помещений социального патронажа

6.81. Рекомендуемый состав и площади полного перечня помещений социального патронажа приведены в таблице 6.6. В одном районе рекомендуется располагать 1-2 кабинета из этого перечня.

6.82. Группа помещений социального патронажа рассчитана на проведение мероприятий, направленных на:

- выявление детей и подростков с различными формами социальной дезадаптации;

- осуществление первичной социально-психологической диагностики несовершеннолетних;

- консультирование по вопросам детско-родительских отношений;

- направление несовершеннолетнего в БО для проведения коррекционной работы или в другие организации, способные разрешить создавшуюся ситуацию.

6.83. Площади кабинетов ККП предусматривают зону для работы с «детско-родительской» группой.

6.84. В составе оборудования кабинетов рекомендуется предусматривать стол специалиста, компьютерный стол, стеллажи, журнальный столик с 4 креслами.

6.85. Планировочная схема Консультативно-коррекционной ячейки ККП приведена в Приложении, на Рис. П.16. Примеры планировки ячеек ККП в жилом фонде в однокомнатной и двухкомнатной квартирах приведены в Приложении, на Рис. П.17.

Таблица 6.6.

Рекомендуемые состав и площади помещений социального патронажа

№№

п.п.

Наименование помещений

Площадь помещений, м2

Примечания

1.

Кабинет социального работника

18

 

2.

Кабинет социального работника «Ребенок дома»

18

 

3.

Кабинет социального работника «Ребенок на улице»

18

 

4.

Кабинет социальной экстренной помощи

18

 

5.

Кабинет консультанта-психолога

18

 

Административно-хозяйственные помещения.

6.86. Рекомендуемый состав и площади группы административно-хозяйственных помещений приведены в таблице 6.7.

6.87. В составе административно-хозяйственной группы помещений предусматривается помещение протекционной службы, основная функция которой - создание банка данных по рабочим вакансиям для несовершеннолетних на каникулярное время. В состав оборудования кабинета протекционной службы входят: стол социального работника, компьютерный стол с компьютером, стеллажи, журнальный столик с тремя креслами.

Таблица 6.7.

Рекомендуемые состав и площади помещений административно-бытового обслуживания.

№№

п.п.

Наименование помещений

Площадь помещений, м2

Примечания

1.

Кабинет директора

36

 

2.

Приемная

18

Смежно с кабинетом директора

3.

Канцелярия

12

 

4.

Кабинет заместителя директора по хозяйственной части

16

 

5.

Помещение дежурного персонала технического обслуживания

14

 

6.

Бухгалтерия с кассой

18 + 4

 

7.

Комната сестры-хозяйки

12 + 8

 

8.

Методический кабинет с библиотекой методической литературы

24

 

9.

Конференцзал на 30 мест

54

 

10.

Кабинет протекционной службы

22

 

11.

Комната психологической разгрузки персонала

18

 

12.

Комната отдыха персонала

36

 

13.

Компьютерный центр с архивом

36 + 10

 

14.

Помещение пожарного поста

12

 

15.

Кладовые, инвентарные

40

Могут располагаться в подвале

16.

Помещение ремонта электроаппаратуры с подсобным помещением

14 + 16

 

17

Санитарные узлы для мужчин и женщин с умывальниками в шлюзе

3´2

 

18.

Кабины личной гигиены для женщин

3

Разместить при санитарном узле

19.

Комната хранения уборочного инвентаря

4

 

ПРИЛОЖЕНИЯ

ЭКСПЛИКАЦИЯ ОБОРУДОВАНИЯ

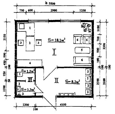
1. ОБЕДЕННЫЙ СТОЛ

2. СТУЛ

3. ШКАФ ДЛЯ ПОСУДЫ

4. ХОЛОДИЛЬНИК

5. РАБОЧИЙ СТОЛ С МИКРОВОЛНОВОЙ ПЕЧЬЮ И ЭЛЕКТРОЧАЙНИКОМ

6. РАКОВИНА

7. ЖУРНАЛЬНЫЙ СТОЛИК

8. МЯГКАЯ МЕБЕЛЬ

9. ТЕЛЕВИЗОР

РИС. П.1. ПОМЕЩЕНИЕ РОДИТЕЛЬСКОГО КЛУБА.

ЭКСПЛИКАЦИЯ ОБОРУДОВАНИЯ

1. СТОЛ ВРАЧА

2. КУШЕТКА СМОТРОВАЯ

3. ШКАФ ВРАЧА

4. СТУЛ

5. УМЫВАЛЬНИК

6. ВЕСЫ МЕДИЦИНСКИЕ

7. РОСТОМЕТР

РИС. П.2. ПРИМЕРЫ ПЛАНИРОВКИ КАБИНЕТОВ ВРАЧЕЙ ПЕДИАТРА И ДЕФЕКТОЛОГА

ЭКСПЛИКАЦИЯ ОБОРУДОВАНИЯ

1. СТОЛ СПЕЦИАЛИСТА

2. СТУЛ.

3. КОМПЬЮТЕРНЫЙ СТОЛ СПЕЦИАЛИСТА

С КОМПЬЮТЕРОМ

4. ШКАФ-СТЕЛЛАЖ

5. ЖУРНАЛЬНЫЙ СТОЛ

6. МЯГКАЯ МЕБЕЛЬ

7. УМЫВАЛЬНИК

8. ВЕШАЛКА ДЛЯ ПОЛОТЕНЦА

РИС. П.3. КАБИНЕТ СПЕЦИАЛИСТА (ПСИХОЛОГА, НАРКОЛОГА, ДЕТСКОГО ПСИХИАТРА, ПСИХОТЕРАПЕВТА, ПСИХОНЕВРОЛОГА)

ЭКСПЛИКАЦИЯ ОБОРУДОВАНИЯ

1. СТОЛ

2. СТУЛ

3. СТОЛ СПЕЦИАЛИСТА

4. КРЕСЛО

5. ШКАФ-СТЕЛЛАЖ

6. УМЫВАЛЬНИК

7. ВЕШАЛКА ДЛЯ ПОЛОТЕНЦА

РИС. П.4. КАБИНЕТ ГРУППОВОЙ ПСИХОТЕРАПИИ НА 9 ЧЕЛОВЕК

ЭКСПЛИКАЦИЯ ОБОРУДОВАНИЯ

1. РАБОЧИЙ СТОЛ

2. СТУЛ

3. СТОЛ СПЕЦИАЛИСТА

4. КОМПЬЮТЕРНЫЙ СТОЛ СПЕЦИАЛИСТА С КОМПЬЮТЕРОМ

5. СТЕЛЛАЖ

6. УЧЕНИЧЕСКАЯ ДОСКА

7. УМЫВАЛЬНИК

8. ВЕШАЛКА ДЛЯ ПОЛОТЕНЦА

РИС. П.5. ЗАЛ СИТУАЦИОННЫХ ИГР.

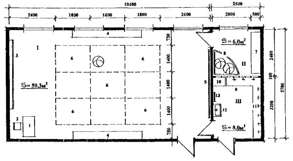
ЭКСПЛИКАЦИЯ ОБОРУДОВАНИЯ

I. ЗАЛ

1. СЦЕНА-ПОДИУМ

2. СЦЕНА

3. КОВЕР (МЯГКОЕ ПОКРЫТИЕ)

4. СКАМЬЯ

5. ПИАНИНО

6. ТАБУРЕТ ВИНТОВОЙ

7. ШИРМА

8. ЗАНАВЕС

II. КЛАДОВАЯ

9. ШКАФ - СТЕЛЛАЖ

10 УМЫВАЛЬНИК

11. ВЕШАЛКА ДЛЯ ПОЛОТЕНЦА

РИС. П.6. ЗАЛ АРТТЕРАПИИ С КЛАДОВОЙ

ЭКСПЛИКАЦИЯ ОБОРУДОВАНИЯ

1. СТОЛ

2. СТУЛ

3. СТОЛ СПЕЦИАЛИСТА

4. КОМПЬЮТЕРНЫЙ СТОЛ СПЕЦИАЛИСТА С КОМПЬЮТЕРОМ

5. УМЫВАЛЬНИК

6. ВЕШАЛКА ДЛЯ ПОЛОТЕНЦА

7. КОВЕР В УГОЛКЕ РЕЛАКСАЦИИ

8. УЧЕНИЧЕСКАЯ ДОСКА

9. ШКАФ-СТЕЛЛАЖ

РИС. П.7. КАБИНЕТ СОЦИАЛЬНОГО ПЕДАГОГА

ЭКСПЛИКАЦИЯ ОБОРУДОВАНИЯ

I. КАБИНЕТ

1. СТОЛ

2. СТОЛ СПЕЦИАЛИСТА

3. СТУЛ

4. СТЕЛЛАЖ

5. КОВЕР В УГОЛКЕ РЕЛАКСАЦИИ

6. КОМПЬЮТЕРНЫЙ СТОЛ СПЕЦИАЛИСТА С КОМПЬЮТЕРОМ

7. УЧЕНИЧЕСКАЯ ДОСКА

8. УМЫВАЛЬНИК

9. ВЕШАЛКА ДЛЯ ПОЛОТЕНЦА

II. ЛАБОРАНТСКАЯ

10. ШКАФ - СТЕЛЛАЖ

РИС. П.8. КАБИНЕТ ПСИХОЛОГО-ПЕДАГОГИЧЕСКОЙ КОРРЕКЦИИ С ЛАБОРАНТСКОЙ

ЭКСПЛИКАЦИЯ ОБОРУДОВАНИЯ

1. СТОЛ

2. СТУЛ

3. СТОЛ СПЕЦИАЛИСТА

4. КОМПЬЮТЕРНЫЙ СТОЛ СПЕЦИАЛИСТА С КОМПЬЮТЕРОМ

5. ШКАФ - СТЕЛЛАЖ

6. УЧЕНИЧЕСКИЙ СТОЛ С КОМПЬЮТЕРОМ

7. ПОЛКИ ПОДВЕСНЫЕ

8. УМЫВАЛЬНИК

9. ВЕШАЛКА ДЛЯ ПОЛОТЕНЦА

10. КЛАССНАЯ ДОСКА

РИС. П.9. КАБИНЕТ КОРРЕКЦИОННЫХ ИГР («КОМПЬЮТЕР»)

ЭКСПЛИКАЦИЯ ОБОРУДОВАНИЯ

I. КОМНАТА

1. СТУЛ

2. ПЮПИТР

3. ПОМОСТ ДЛЯ ПРЕПОДАВАТЕЛЯ

4. ПИАНИНО

5. ТАБУРЕТ ВИНТОВОЙ

6. СТОЛ ПРЕПОДАВАТЕЛЯ

II. КЛАДОВАЯ

7. ШКАФ КОМБИНИРОВАННЫЙ

РИС. П.10. КОМНАТА МУЗЫКАЛЬНЫХ ЗАНЯТИЙ С КЛАДОВОЙ ИНСТРУМЕНТОВ

ЭКСПЛИКАЦИЯ ОБОРУДОВАНИЯ

I. ИЗОСТУДИЯ

1. МОЛЬБЕРТ

2. ПОМОСТ ДЛЯ МОДЕЛЕЙ

3. СТЕНД ДЛЯ РИСУНКОВ И КАРТИН

4. СТОЛ ПРЕПОДАВАТЕЛЯ

5. СТУЛ ПРЕПОДАВАТЕЛЯ

6. УМЫВАЛЬНИК

7. ВЕШАЛКА ДЛЯ ПОЛОТЕНЦА

II. КЛАДОВАЯ

8. КОМБИНИРОВАННЫЙ ШКАФ

РИС. П.11. ИЗОСТУДИЯ С КЛАДОВОЙ

ЭКСПЛИКАЦИЯ ОБОРУДОВАНИЯ

1. СТЕЛЛАЖ С МУЗЫКАЛЬНЫМ ЦЕНТРОМ

2. МЯГКАЯ МЕБЕЛЬ

3. ТУМБА С ТЕЛЕВИЗОРОМ

И ВИДЕОМАГНИТОФОНОМ

4. ЖУРНАЛЬНЫЙ СТОЛ

5. УМЫВАЛЬНИК

6. ВЕШАЛКА ДЛЯ ПОЛОТЕНЦА

7. КОВЕР (МЯГКОЕ ПОКРЫТИЕ)

РИС. П.12. ПОМЕЩЕНИЕ СЕМЕЙНОГО КЛУБА

ЭКСПЛИКАЦИЯ ОБОРУДОВАНИЯ

I. ЗАЛ

1. СТОЛ МЕТОДИСТА

2. СТУЛ МЕТОДИСТА

3. ШВЕДСКАЯ СТЕНКА

4. СКАМЬЯ

5. ЗЕРКАЛО

6. МАТЫ ДЛЯ ЗАНЯТИЙ

II. КЛАДОВАЯ

7. КОМБИНИРОВАННЫЙ ШКАФ

8. МАНЕЖДЛЯ СКЛАДИРОВАНИЯ МЯЧЕЙ

III. РАЗДЕВАЛКА

9. СКАМЬЯ ДЛЯ ПЕРЕОДЕВАНИЯ

10. ШКАФ МЕТОДИСТА

11. КРЮЧКИ ДЛЯ ОДЕЖДЫ

12. УМЫВАЛЬНИК

13. ВЕШАЛКА ДЛЯ ПОЛОТЕНЦА

РИС П.13. ЗАЛ ГИМНАСТИЧЕСКИХ ЗАНЯТИЙ


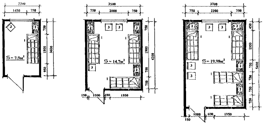
ЭКСПЛИКАЦИЯ ОБОРУДОВАНИЯ

1. КРОВАТЬ 2. ТУМБОЧКА 3. СТУЛ

РИС. П.14. ПРИМЕРЫ ПЛАНИРОВКИ СПАЛЬНЫХ КОМНАТ НА 1, 3 И 4 МЕСТА

ЭКСПЛИКАЦИЯ ОБОРУДОВАНИЯ

I. КОМНАТА ПРИГОТОВЛЕНИЯ УРОКОВ

1. СТОЛ УЧЕНИЧЕСКИЙ

2. СТУЛ

3. СТОЛ УЧИТЕЛЯ

4. СТЕЛЛАЖ

5. КЛАССНАЯ ДОСКА

6. УМЫВАЛЬНИК

7. ВЕШАЛКА ДЛЯ ПОЛОТЕНЦА

II. ИГРОВАЯ

1. СТОЛ ИГРОВОЙ

2. стул

3. СТОЛ ВОСПИТАТЕЛЯ

4. СТЕЛЛАЖ

5. УМЫВАЛЬНИК

6. ВЕШАЛКА ДЛЯ ПОЛОТЕНЦА

 

РИС. П.15 ПРИМЕРЫ ПЛАНИРОВКИ КОМНАТЫ ПРИГОТОВЛЕНИЯ УРОКОВ И ИГРОВОЙ


ЭКСПЛИКАЦИЯ ОБОРУДОВАНИЯ

I. КАБИНЕТ СПЕЦИАЛИСТА

1. КОМПЬЮТЕРНЫЙ СТОЛ

СПЕЦИАЛИСТА С КОМПЬЮТЕРОМ Z. СТОЛ СПЕЦИАЛИСТА

3. стул

4. ШКАФ-СТЕЛЛАЖ

5. ЖУРНАЛЬНЫЙ СТОЛИК

6. МЯГКАЯ МЕБЕЛЬ

II. ПЕРЕДНЯЯ

1. ВЕШАЛКА

2. СТУЛ

III. САНУЗЕЛ

1. УНИТАЗ

2. РАКОВИНА

3. СУШИЛКА ДЛЯ РУК

РИС. П.16. ПЛАНИРОВОЧНАЯ СХЕМА ЯЧЕЙКИ ККП

ЭКСПЛИКАЦИЯ ОБОРУДОВАНИЯ

I. ПЕРЕДНЯЯ

1. ВЕШАЛКА

2. СТУЛ

II. САНУЗЕЛ

III. КАБИНЕТ СПЕЦИАЛИСТА ДЛЯ ИНДИВИДУАЛЬНОЙ РАБОТЫ

1. СТОЛ СПЕЦИАЛИСТА

2. СТУЛ

3. ШКАФ-СТЕЛЛАЖ

IV. КАБИНЕТ СПЕЦИАЛИСТА ДЛЯ РАБОТЫ С ГРУППОЙ

1. СТОЛ СПЕЦИАЛИСТА

2. СТУЛ

3. ШКАФ-СТЕЛЛАЖ

4. ЖУРНАЛЬНЫЙ СТОЛ

5. МЯГКАЯ МЕБЕЛЬ

РИС. П.17. ПРИМЕРЫ ПЛАНИРОВКИ ЯЧЕЕК ККП В ОДНОКОМНАТНОЙ И ДВУХКОМНАТНОЙ КВАРТИРАХ.




Rambler's Top100 Яндекс цитирования
  Copyright © 2008-2026, www.docload.ru