Бесплатная библиотека стандартов и нормативов www.docload.ru

Все документы, размещенные на этом сайте, не являются их официальным изданием и предназначены исключительно для ознакомительных целей.
Электронные копии этих документов могут распространяться без всяких ограничений. Вы можете размещать информацию с этого сайта на любом другом сайте.
Это некоммерческий сайт и здесь не продаются документы. Вы можете скачать их абсолютно бесплатно!
Содержимое сайта не нарушает чьих-либо авторских прав! Человек имеет право на информацию!

 

ПРАВИТЕЛЬСТВО МОСКВЫ
МОСКОМАРХИТЕКТУРА

ПОСОБИЕ
к МГСН 4.08-97

Массовые типы
физкультурно-оздоровительных
учреждений

ВЫПУСК 2

Физкультурно-оздоровительные
центры муниципальных районов.

Комплексы
физкультурно-рекреационных
сооружений

2002

Предисловие

1. Разработано МНИИП объектов культуры, отдыха, спорта и здравоохранения Москомархитектуры (арх. Емельянова И.А., при участии арх. Шабайдаша А.Л.)

2. Подготовлено к изданию Управлением перспективного проектирования и нормативов Москомархитектуры (архитектор Шалов Л.А., инженер Щипанов Ю.Б.).

3. Согласовано с Комитетом физической культуры и спорта г. Москвы и Москомархитектурой.

4. Утверждено указанием Москомархитектуры от 23.01.2002 г., № 6.

СОДЕРЖАНИЕ

1. Физкультурно-оздоровительные центры жилых районов. 1

1.1. Варианты размещения физкультурно-оздоровительных центров жилых районов. Варианты функциональных схем комплексов. 1

1.2. Функциональные элементы комплексов. 3

1.2.1. Спортивные залы и помещения. 3

1.2.2. Плавательные бассейны.. 4

1.2.3. Вспомогательные помещения. 5

1.2.4. Открытые плоскостные физкультурно-спортивные сооружения. 7

2. Комплексы физкультурно-рекреационных сооружений. 7

2.1. Специфические требования к размещению физкультурно-рекреационных комплексов. Функциональные схемы комплексов. 7

2.2. Физкультурно-рекреационные сооружения. 9

2.2.1. Открытые плоскостные физкультурно-рекреационные сооружения. Площадки спортивных игр. Открытые сооружения для инвалидов. 9

2.2.2. Детский физкультурно-рекреационный городок. 9

2.2.3. Открытый рекреационный бассейн с вспомогательными помещениями. 10

2.2.4. Трассы для летних и зимних видов спорт. 11

2.2.5. Вспомогательные помещения открытых плоскостных сооружений. 12

2.2.6. Вспомогательные помещения лыжных баз. 13

2.2.7. Пункты обучения плаванию на открытых водоемах. 13

3. Ссылки на нормативно-методические документы.. 15

Приложения. 15

1. Физкультурно-оздоровительные центры жилых районов.

1.1. Варианты размещения физкультурно-оздоровительных центров жилых районов. Варианты функциональных схем комплексов.

1.1.1. Размещение физкультурно-оздоровительных центров жилых районов следует осуществлять с учетом требований МГСН 4.08-97 и МГСН 1.01-99, а также рекомендаций разделов 3.1, 3.2 Пособия к МГСН 4.08-97, Выпуск 1.

1.1.2. Расстояние от зданий физкультурно-оздоровительных центров до других зданий и сооружений следует принимать с учетом требований СНиП 2.07.01-89*, а также Санитарно-эпидемиологических правил и нормативов СанПиН 2.2.1/2.1.1.1031-01 «Санитарно-защитные зоны и санитарная классификация предприятий, сооружений и иных объектов».

1.1.3. Комплекс сооружений физкультурно-оздоровительных центров жилых районов включает открытые плоскостные сооружения, универсальные и специализированные спортивные залы и помещения физкультурно-оздоровительных занятий, бассейны, с ваннами для спортивного плавания, физкультурно-оздоровительного плавания, детской ванной. Расчетные показатели физкультурно-оздоровительных центров следует принимать по приложениям 2-3 к МГСН 4.08-97, рекомендуемый состав сооружений - по приложению 11 МГСН 4.08-97.

1.1.4. В структуре физкультурно-оздоровительных центров выделяются следующие основные функциональные группы помещений:

группа помещений вестибюля;

блок универсального и специализированных залов и физкультурно-оздоровительных помещений с вспомогательными помещениями санитарно-гигиенического назначения (раздевальными и душевыми), инвентарными;

блок плавательного бассейна с ваннами для спортивного, физкультурно-оздоровительного плавания, детской ванной, включающий также вспомогательные помещения санитарно-гигиенического назначения (раздевальные, душевые), комнаты дежурных инструкторов и медсестер (при ваннах спортивного и оздоровительного плавания) лабораторию;

раздевальные открытых сооружений;

группа помещений досуга;

методический центр;

медико-оздоровительный центр;

инструкторские, административно-хозяйственные и бытовые помещения;

технические помещения и эксплуатационные службы.

1.1.5. Принципиальные варианты архитектурно-планировочных решений базируются на компактном и рассредоточенном размещении основных функциональных групп помещений с учетом рекомендаций п.п. 3.3.6.-3.3.7 Пособия к МГСН 4.08-9, Выпуск 1.

1.1.6. Оптимальным является компактное размещение всех функциональных групп центра в едином здании. При отсутствии достаточного по площади участка и рассредоточенном размещении сооружений центра, рекомендуется объединять в одном здании все спортивные залы, в другом - все ванны бассейнов.

1.1.7. В центральных районах и на примагистральных территориях сложившихся районов с высокой интенсивностью использования территорий допускается рассредоточенное размещение универсального и специализированных залов, отдельных ванн плавательных бассейнов. Варианты рассредоточенного размещения сооружений центра определяются с учетом требований пл. 3.3.5. и 3.3.7. Пособия к МГСН 4.08-97, Выпуск 1.

1.1.8. При рассредоточенном размещении спортивно-оздоровительной и оздоровительной ванн бассейна, зал подготовительных занятий рекомендуется размещать в комплексе со спортивной ванной. По заданию на проектирование допускается предусматривать зал подготовительных занятий и при оздоровительной ванне бассейна.

1.1.9. При размещении открытых физкультурно-спортивных сооружений центра на обособленном участке рекомендуется предусматривать на участке отдельностоящее здание раздевальных.

1.1.10. Функциональная схема помещений физкультурно-оздоровительного центра жилого района на 30,0-50,0 тыс. жителей при их компактном размещении представлена на рис. 1.

1.1.11. Функциональные схемы корпусов физкультурно-спортивных залов и бассейна физкультурно-оздоровительного центра при рассредоточенном размещении крытых сооружений физкультурно-оздоровительного центра жилого района представлены на рис. 2 и 3.

1.1.12. Схемы функциональных блоков физкультурно-оздоровительного центра при их рассредоточенном размещении во встроенно-пристроенных и пристроенных помещениях представлены на рис. 4.

1.1.13. Схема зонирования участка физкультурно-оздоровительного центра жилого района на 50 тыс. жителей при компактном размещении спортсооружений представлена на рис. 5.

1.2. Функциональные элементы комплексов.

1.2.1. Спортивные залы и помещения.

1.2.1.2. Состав спортивных и физкультурно-оздоровительных залов и помещений физкультурно-оздоровительных центров жилых районов рекомендуется принимать в соответствии с приложением 11 МГСН 4.08-97.

В этот состав входят как универсальные, так и специализированные спортивные и физкультурно-оздоровительные залы и помещения.

1.2.1.3. Универсальные спортивные залы предназначены для физкультурно-оздоровительных занятий и тренировок спортивных секций по спортивным играм:

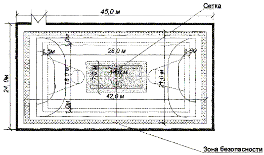
·        зал 36´18 м, высотой 8,0 м, включенный в состав физкультурно-оздоровительных центров для районов с численностью населения 30,0 - 50,0 тыс. чел. - для бадминтона, волейбола, баскетбола, тенниса;

·        зал 45´24 м, высотой 8,0 м, включенный с состав физкультурно-оздоровительных центров для районов с численностью населения более 30,0 тыс. чел. - для бадминтона, волейбола, баскетбола, тенниса, ручного мяча.

Рекомендуется также использование универсальных залов для новых, развивающихся видов спортивных игр - флорбола, футзала.

1.2.1.4. Схемы разметки площадок спортивных игр следует принимать по нормалям планировочных элементов. Требования к оборудованию - в соответствии с Приложением 3 Справочного пособия к СНиП 2.08.03-89* «Проектирование спортивных залов, помещений для физкультурно-оздоровительных занятий и крытых катков с искусственным льдом».

Схема разметки площадки флорбола в зале 45´24 м представлена на рис. 6.

1.2.1.5. Универсальные залы рекомендуется использовать для занятий инвалидов по следующим видам спортивных игр:

·        для инвалидов с поражением опорно-двигательного аппарата - по баскетболу на колясках, волейболу сидя, квадрегби, теннису, гандболу через сетку, мини-футболу;

·        для инвалидов с поражением зрения - по ролингболу, голболу, торболу.

Габаритные схемы разметки зала 45´24 м для гандбола, баскетбола на колясках, волейбола сидя, представлены на рис. 7.

1.2.1.6. При использовании универсального зала спортивных игр для занятий инвалидов с поражением зрения, требования к зонам безопасности и информационной тактильной дорожке следует принимать в соответствии с «Рекомендациями по проектированию окружающей среды, зданий и сооружений с учетом потребности инвалидов и других маломобильных групп населения. Выпуск 12. Общественные здания и сооружения. Спортивные сооружения».

1.2.1.7. Наряду с физкультурно-оздоровительными занятиями и тренировками универсальные залы могут использоваться для проведения локальных соревнований по спортивным играм, для массовых мероприятий, танцев. Зрительские места в зале рекомендуется проектировать нестационарными, на балконах и зрительских галереях. Перечень досуговых мероприятий, осуществляемых в универсальных залах спортивных игр следует определять в задании на проектирование.

1.2.1.8. Залы ОФП предназначены для занятий оздоровительных групп и секций по общефизической подготовке с элементами спортигр и гимнастики, а также упражнений с использованием тренажерной техники. Залы ОФП следует использовать также для общефизической подготовки инвалидов различных категорий. В соответствии с требованиями МГСН 4.08-97 (п. 5.13, Приложение 16) высоту залов ОФП следует принимать не менее 4,8 м. Во встроенно-пристроенных помещениях высота зала ОФП может быть уменьшена до 4,2 м.

1.2.1.9. При использовании залов ОФП инвалидами различных групп требования к оборудованию, зонам безопасности, полосам ориентации следует принимать в соответствии с «Рекомендациями по проектированию окружающей среды, зданий и сооружений с учетом потребности инвалидов и других маломобильных групп населения. Выпуск 13. Общественные здания и сооружения. Физкультурно-оздоровительные сооружения».

1.2.1.10. Варианты расстановки оборудования в залах ОФП 18´9 м и 24´12 м с учетом занятий инвалидов с поражением опорно-двигательного аппарата представлены на рис. 8.

1.2.1.11. Высоту залов аэробики, хореографии, художественной гимнастики следует принимать не менее 3,9 м. Высота залов, размещаемых во встроенно-пристроенных помещениях жилых зданий, может быть уменьшена до высоты жилого этажа (см. п. 5.13. и Приложение 16 МГСН 4.08-97). Расстановку оборудования в залах рекомендуется производить с учетом схем Приложения 8 Справочного пособия к СНиП 2.08.03-89* «Проектирование спортивных залов, помещений для физкультурно-оздоровительных занятий и крытых катков с искусственным льдом».

1.2.1.12. Залы борьбы предназначаются для занятий борьбой вольной, классической, самбо, дзюдо. При размерах зала борьбы 18´15 м и диаметре ковра 9 м следует предусматривать дополнительное помещение для расстановки вспомогательного оборудования.

1.2.1.13. Наряду с занятиями по дзюдо допускается использование залов борьбы по другим видам восточных единоборств; в т.ч. айкидо; дзюдо; различным версиям тхэквондо (ВТФ, ИТФ), различным версиям каратэ, в т.ч.: ден-то карате до -фудокан; карате до; контактное карате. Схемы размещения площадок для учебно-тренировочных занятий восточными единоборствами в зале 24´15 м приведены на рис 9.

1.2.1.14. В составе центров допускается предусматривать (по заданию на проектирование) зал для игры в шоу-даун, используемый для занятий инвалидов с поражением зрения. Требования к оборудованию зала рекомендуется принимать на основании «Рекомендации по проектированию окружающей среды, зданий и сооружений с учетом потребностей инвалидов и других маломобильных групп населения. Выпуск 12. Общественные здания и сооружения. Спортивные сооружения»: Схема размещения оборудования в зале 12,0´9 м для игры в шоу-даун инвалидов с поражением зрения приведена на рис. 10.

1.2.1.15. Рекомендуемая минимальная площадь помещения индивидуальной силовой подготовки 72 м2. Длина и ширина помещения не регламентируется, оптимальная высота помещения - 3,9 м. Во встроенно-пристроенных помещениях жилых зданий допускается уменьшение высоты помещения до высоты жилого этажа (см. п. 5.13 и Приложение 16 МГСН 4.08-97). Расстановку оборудования рекомендуется принимать с учетом схем приложения 3 Справочного пособия к СНиП 2.08.03-89* «Проектирование спортивных залов, помещений для физкультурно-оздоровительных занятий и крытых катков с искусственным льдом»

1.2.1.16. При раздевальных открытых плоскостных физкультурно-спортивных сооружений, размещаемых на обособленном участке, рекомендуется дополнительно предусматривать тренажерный зал и зал ОФП. Габариты тренажерного зала и зала ОФП устанавливаются заданием на проектирование с учетом общей пропускной способности комплекса открытых сооружений и принятых программ физкультурно-спортивной деятельности.

1.2.2. Плавательные бассейны

1.2.2.1. Крытые бассейны физкультурно-оздоровительного центра жилого района предназначаются для физкультурно-оздоровительных занятий и тренировок по плаванию, а также купания различных категорий населения, в т.ч. инвалидов различных категорий. Назначение бассейнов определяется заданием на проектирование или проектом.

1.2.2.2. В крытых бассейнах предусматриваются специализированные ванны для спортивно-оздоровительного плавания, оздоровительного плавания, обучения плаванию.

1.2.2.3. Ванны для оздоровительного плавания и ванны для обучения плаванию следует проектировать с учетом потребностей инвалидов. Параметры ванн и залов бассейнов различных типов, представлены в таблице 1.1.

Таблица 1.1.

Рекомендуемые параметры ванн и залов бассейнов физкультурно-оздоровительных центров жилых районов.

Тип ванны

Габариты ванны в плане, м

Глубина ванны, м

Габариты зала бассейна, м

Пропускная способность, чел.

Примечания

Спортивно-оздоровительного плавания

25,0´12,0

1,2-1,8

30,0´18,0

h=5,4

48

 

25,0´16,0

1,2-1,8

30,0´24,0

h=5,4

64

 

Оздоровительного плавания

16,6´6,0

1,2-1,45

24´12

h=5,4

18

Используется для оздоровительных занятий инвалидов. Ширина зала определяется планировочным решением

16,6´8,0

1,2-1,45

24´15

h=5,4

24

Для обучения плаванию

10,0´6,0

0,9-1,25

15,0´12,0

h=3,6

20

Используется для обучения плаванию детей старше 14 лет и взрослых, в т.ч. инвалидов-опорников.

1.2.2.4. Ванны оздоровительного плавания рекомендуется проектировать с «пенным корытцем» - бортом, выступающим над уровнем воды на 0,30-0,35 м. Ванны для обучения плаванию рекомендуется проектировать с заглубленной обходной дорожкой. Эти ванны могут использоваться для проведения занятий с инвалидами и лицами с ослабленным здоровьем. Для проведения терапевтических занятий ванну следует проектировать в соответствии с «Рекомендациями по проектированию окружающей среды, зданий и сооружений с учетом потребности инвалидов и других маломобильных групп населения. Выпуск 13. Общественные здания и сооружения. Физкультурно-оздоровительные сооружения».

1.2.2.5. Планировочная схема ванны оздоровительного плавания 16,6´6 м, с учетом физкультурно-оздоровительных занятий инвалидов-опорников представлена на рис. 11. В мелкой части ванны, вне основных контуров, предусмотрен стационарный спуск - пологая лестница с поручнями с двух сторон на высоте 0,9 м. Рекомендуемая минимальная ширина проступей - 0,3 м. Высота подступенков - 0,14 м.

В глубокой части ванны - заглубленные вертикальные лестницы. Для спуска инвалидов с поражением опорно-двигательного аппарата предусматриваются подъемники.

Со стороны входов в зал бассейна из раздевальных, используемых инвалидами, ширина обходной дорожки должна быть не менее 4-х м. Увеличение ширины обходной дорожки с одного из торцов бассейна до 5,4 м позволяет разместить стационарные места с подогревом и площадку для разминки 6´4 м.

В зале бассейна предусматриваются места для хранения колясок, поручни вдоль стен зала на высоте 0,9 м, в ванне по контуру - поручни.

1.2.3. Вспомогательные помещения

1.2.3.1. Состав и площади вспомогательных помещений физкультурно-оздоровительных центров следует определять с учетом программ видов физкультурно-спортивной и досуговой деятельности, осуществляемых в структуре центра и определяемых в задании на проектирование, а также с учетом совокупной единовременной пропускной способности центра и единовременной пропускной способности отдельных сооружений.

1.2.3.2. Расчетные показатели пропускной способности сооружений центров следует принимать на основании Приложения 11 МГСН 4.08-97.

1.2.3.3. Вестибюльную группу помещений следует проектировать как с учетом обслуживания занимающихся, так и лиц сопровождающих детей и инвалидов. При организации в зимнее время на территории центра катка для массового катания на коньках вестибюльную группу следует проектировать, как вестибюль-грелку катка, с учетом его пропускной единовременной способности..

1.2.3.4. Состав и площади вспомогательных помещений вестибюльной группы, помещений универсальных и специализированных залов, помещений специализированных ванн бассейна, раздевальных открытых сооружений, буфета, физкультурно-оздоровительных центров определяются заданием на проектирование или проектом в соответствии с Приложением 2 настоящего Пособия.

1.2.3.5. В графе 6 Приложения 2 настоящего Пособия приводятся требования к вместимости помещений вестибюльной группы, требования к высоте спортивных залов, залов ванн бассейнов, помещений физкультурно-оздоровительных занятий, требования к оборудованию, к учету использования помещений инвалидами. Вспомогательные помещения, используемые инвалидами, рекомендуется проектировать с учетом требований СНиП 35-01-2001.

1.2.3.6. Рекомендуется проектирование двух типов раздевальных:

·        командных - для универсального зала спортивных игр и части открытых плоскостных спортивных сооружений - футбольных полей и площадок мини-футбола-хоккея;

·        общих мужских и общих женских раздевальных - для остальных типов сооружений.

1.2.3.7. В зависимости от планировочного решения центра общие раздевальные залов могут быть запроектированы как компактно с учетом совокупной единовременной пропускной способности спорт-сооружений, так и рассредоточено - при каждом зале.

1.2.3.8. В общих раздевальных хранение одежды может быть предусмотрено, как в двухъярусных шкафах, так и в охраняемом гардеробе. Площади раздевальных при хранении одежды в двухъярусных шкафах даны в Приложении 2 настоящего Пособия. При втором варианте организации раздевальных, площади помещений следует принимать в соответствии со Справочным пособием к СНиП 2.08.03-89* «Проектирование спортивных залов, помещений для физкультурно-оздоровительных занятий и крытых катков с искусственным льдом»

1.2.3.9. Переодевание инвалидов для физкультурно-оздоровительных занятий в залах и бассейнах физкультурно-оздоровительных центров, рекомендуется предусматривать как в общих раздевальных, так и в семейных раздевальных. Семейные раздевальные предназначены для инвалидов с сопровождением, передвигающихся на колясках. Примеры планировок семейных раздевальных представлены на рис. 12.

Соотношение мест для переодевания инвалидов в общей и семейных раздевальных устанавливается заданием на проектирование.

1.2.3.10 Состав и площади помещений медико-восстановительного центра следует принимать по заданию на проектирование. Рекомендуемые состав и минимальные площади помещений медико-восстановительного центра приведены в Приложении 2 Пособия к МГСН 4.08-97. Выпуск 1. При проектировании медико-восстановительного центра следует проектировать изолированными «влажные» помещения - массажные, сауны, кабинеты гидропатии и кабинеты электро- и светолечения. Рекомендуемая функциональная схема медико-восстановительного центра представлена на рис. 13.

1.2.3.11. Схемы планировок помещений с расстановкой оборудования в зале лечебной физкультуры, кабинете механотерапии, кабинете тестирования с физической нагрузкой с учетом их использования инвалидами с поражением опорно-двигательного аппарата представлены на рис. 14.

1.2.3.12. Схемы планировок кабинетов гидропатии, подводного массажа и сауны представлены на рис. 15. Схемы планировок кабинетов гидропатии и подводного массажа даны с учетом их использования инвалидами с поражением опорно-двигательного аппарата, передвигающимися на колясках.

1.2.3.13. Состав и площади помещений методического центра рекомендуется определять заданием на проектирование с учетом Приложения 3 настоящего Пособия.

1.2.3.14. Помещения функциональной группы досугового назначения рекомендуется объединять с помещениями культурно-спортивных игр. Состав и площади помещений следует принимать по заданию на проектирование с учетом Приложения 4 настоящего Пособия.

1.2.3.15. Необходимость проведения в физкультурно-оздоровительных центрах культурно-зрелищных мероприятий, состав и площади дополнительных помещений определяется заданием на проектирование с учетом требований п.п. 5.27, 5.29 МГСН 4.08-97, а также требований МГСН 4.17-98 «Культурно-зрелищные учреждения».

1.2.3.16. Площадь инструкторских определяется численностью тренерского состава на основании задания на проектирование с учетом требований МГСН 4.08-97 из расчета 2,5 м2 на 1 тренера. При этом площадь инструкторских не может быть менее 9 м2.

1.2.3.17. Площади административно-хозяйственных помещений рекомендуется принимать с учетом списочного состава работников на основании задания на проектирование.

1.2.3.18. Площадь бытовых помещений определяется заданием на проектирование или проектом в соответствии с большей численностью рабочих одной смены с учетом п. 3.72 Справочного пособия к СНиП 2.08.02-89* «Проектирование спортивных залов, помещений для физкультурно-оздоровительных занятий и крытых катков с искусственным льдом п. 3.52 Справочного пособия к СНиП 2.08.02-89* «Проектирование бассейнов».

1.2.3.19. При наличии в составе центра открытых плоскостных сооружений, используемых в зимнее время для устройства катка массового катания, дополнительно к помещениям вестибюльной группы, приведенным в Приложении 2 настоящего документа, следует предусмотреть:

·        помещение для хранения, выдачи и сушки прокатных ботинок с коньками, площадью не менее 10 м2;

·        мастерскую для точки коньков, площадью не менее 6 м2;

·        две кабины для переодевания, площадью от 1 м2.

Данные помещения рекомендуется размещать смежно с вестибюлем.

1.2.3.20. При рассредоточенном размещении функциональных блоков залов и бассейнов, площади вестибюльной группы помещений отдельных блоков рекомендуется определять с учетом единовременной пропускной способности крытых спортсооружений, включенных в блок, и показателей, заданных в справочных пособиях к СНиП 2.08.02-89*.

1.2.3.21. Площади технических помещений и эксплуатационных служб определяются по заданию на проектирование.

1.2.4. Открытые плоскостные физкультурно-спортивные сооружения.

1.2.4.1. Открытые плоскостные сооружения физкультурно-оздоровительных центров жилых районов предназначены для самостоятельных и организованных физкультурно-оздоровительных занятий всех категорий населения. Состав открытых плоскостных сооружений следует принимать на основании Приложения 11 МГСН 4.08-97. Требования к блокировке, габаритным схемам, оборудованию, покрытию спортсооружений - в соответствии с действующими нормативными документами и нормалями планировочных элементов открытых сооружений.

1.2.4.2. В зимнее время рекомендуется использование площадки мини-футбола для хоккея и фигурного катания.

Рекомендуется также предусмотреть зимнее использование сблокированных открытых плоскостных сооружений (за исключением площадок и полей с синтетическим и газонным покрытием) для заливки катка массового катания.

2. Комплексы физкультурно-рекреационных сооружений.

2.1. Специфические требования к размещению физкультурно-рекреационных комплексов. Функциональные схемы комплексов.

2.1.1. Размещение физкультурно-рекреационных сооружений жилых районов на территории природного комплекса следует производить с учетом:

·        зависимости видов спорта от природных условий;

·        специфических требований, предъявляемых отдельными видами спорта, зависящими от природных условий, к характеристикам ландшафта;

·        площади участков, отводимых для строительства спортсооружений;

·        возможности кооперирования физкультурно-рекреационных сооружений жилых районов с учреждениями других сфер обслуживания.

2.1.2. Не допускается размещение физкультурно-рекреационных сооружений жилых районов на территории природного комплекса с режимами регулирования градостроительной деятельности 1; 2; 3.

2.1.3. Состав физкультурно-рекреационных сооружений, размещаемых на территории природного комплекса, следует определять с учетом требований п. 2.1.1. настоящего документа, а также емкости и площади рекреационной территории.

2.1.4. Расчетные показатели комплексов физкультурно-рекреационных сооружений следует принимать по приложениям 2 и 3 МГСН 4.08-97

2.1.5. Комплекс физкультурно-рекреационных сооружений жилых районов включает следующие основные функциональные группы сооружений и помещений:

- открытые плоскостные физкультурно-оздоровительные и физкультурно-рекреационные сооружения в т.ч.: площадки спортивных игр; детский физкультурно-рекреационный городок; трассы для летних и зимних видов спорта - оздоровительного бега, ходьбы, кросса, лыжного спорта;

- открытый рекреационный бассейн с вспомогательными помещениями;

- вспомогательные помещения открытых сооружений с помещениями физкультурно-оздоровительных занятий;

- лыжную базу.

2.1.6. Наряду с основными функциональными группами сооружений и помещений, перечисленными в п. 2.1.5., при наличии необходимых природных условий, в соответствии с заданием на проектирование могут быть предусмотрены:

- пункт обучения плаванию на открытом водоеме, с наплавными бассейнами;

- трассы горнолыжного спорта, массовых занятий сноубордом, натурбаном и санным спортом;

- трассы маунтинбайка (горного велосипеда);

- открытые тренировочные сооружения скалолазания;

- площадки пляжного волейбола;

- пейнтбола.

Допускается также при соответствующих обоснованиях размещение комплексов велоспорта ВМХ (кроссового велоспорта).

2.1.7. В составе комплекса физкультурно-рекреационных сооружений жилого района, при наличии удобной связи участка с транспортными остановками и автостоянками, рекомендуется также размещать зону открытых плоскостных сооружений для инвалидов, в соответствии с Приложением 6 МГСН 4.08-97.

2.1.8. Функциональная схема физкультурно-рекреационных комплекса сооружений представлена на рис. 16.

2.1.9. Размещение крытых спортивных сооружений и зданий вспомогательных помещений на территории многофункциональных парков, следует производить с учетом требования п. 7.3.1 МГСН 1.01-99, ограничивающего высоту зданий.

2.1.10. При проектировании сооружений в составе многофункциональных парков следует также учитывать требования п.п. 7.3.2-7.3.4 МГСН 1.01-99.

2.1.11. Размещение учреждений на территориях многофункциональных парков, следует производить с учетом общей планировки парков и его ландшафтных характеристик. В зависимости от общей планировочной структуры парка, ландшафтных характеристик, состава размещаемых сооружений и специфических требований отдельных видов спорта к ландшафту, они могут быть размещены в структуре парка компактно или рассредоточено.

2.1.12. Общими принципами проектирования территорий физкультурно-рекреационных сооружений жилых районов г. Москвы являются:

·        организация функционального зонирования участков с учетом основных потоков посетителей и специфических требований, предъявляемых к размещению отдельных функциональных элементов комплексов;

·        организация удобной взаимосвязи открытых плоскостных сооружений, размещаемых на рекреационной территории с вспомогательными помещениями;

·        размещение открытых плоскостных сооружений с учетом необходимой ориентации, требуемых разрывов между жилыми и общественными зданиями и плоскостными сооружениями;

·        организация возможной блокировки открытых плоскостных сооружений с учетом их зимнего использования.

2.1.13. Зонирование территорий физкультурно-рекреационных сооружений жилых районов следует осуществлять с учетом требований п.п. 3.2.4, 3.2.7, 3.2.8 Пособия к МГСН 4.08-97, Выпуск 1.

2.1.14. При размещении на рекреационной территории трасс летних и зимних видов спорта следует учитывать следующие требования:

·        отсутствие пересечений учебно-тренировочных и оздоровительных трасс с шоссейными дорогами и железнодорожными магистралями, руслами плохо замерзающих рек, болотами, участками с пустым кустарником;

·        отсутствие пересечений трасс горнолыжного спорта, сноуборда, натурбана с туристическими и прогулочными маршрутами, проходящими по рекреационной территории;

·        обособленное размещение тренировочных трасс комплексов зимних видов спорта жилых районов и специализированных спортивных общегородских трасс горнолыжного спорта, сноуборда, фристайла, натурбана, бобслея-скилетона, отсутствие их пересечении;

·        размещение трасс зимних видов спорта на расстоянии не более 300 м от зданий вспомогательных помещений.

2.1.15. Для устройства наплавных бассейнов следует использовать естественную акваторию, пригодную в соответствии с санитарно-гигиеническими требованиями для купания, закрытую для судоходства и движения маломерного флота.

2.1.16. Трассы горнолыжного слалома, сноуборда, натурбана и массового катания с гор, рекомендуется прокладывать на северных и северо-восточных склонах.

2.2. Физкультурно-рекреационные сооружения

2.2.1. Открытые плоскостные физкультурно-рекреационные сооружения. Площадки спортивных игр. Открытые сооружения для инвалидов.

2.2.1.1. Площадки спортивных игр предназначены для самостоятельных и организованных физкультурно-оздоровительных занятий всех категорий населения. Состав площадок спортивных игр следует принимать на основании Приложения 12 МГСН 4.08-97. Требования к блокировке, габаритным схемам, оборудованию, покрытию спортсооружений - в соответствии с действующими нормативными документами и нормалями планировочных элементов открытых сооружений.

2.2.1.2. Сооружения пейнтбола и пляжного волейбола, комплексы велоспорта ВМХ (кроссового велоспорта), включаемые по заданию на проектирование в состав физкультурно-рекреационных сооружений жилых районов рекомендуется проектировать с учетом положений разделов «Методических указаний по проектированию новых нетрадиционных видов спорта».

2.2.1.3. Площадки спортивных игр рекомендуется блокировать, в т.ч. с целью обеспечения их рационального зимнего использования. Рекомендуется использование сблокированных площадок для заливки катка массового катания. Исключение могут составить площадки мини-футбола, используемые зимой для хоккея и фигурного катания, а также площадки с синтетическим и газонным покрытием.

2.2.1.4. Открытые плоскостные специализированные физкультурно-спортивные и рекреационные сооружения для инвалидов различных групп могут быть включены в состав комплекса физкультурно-рекреационных сооружений по заданию на проектирование при условии обеспечения удобной связи зоны размещения данной функциональной группы сооружений с транспортными остановками, автостоянками, зданием вспомогательных помещений открытых сооружений.

2.2.1.5. Состав плоскостных специализированных физкультурно-спортивных и рекреационных сооружений для инвалидов различных групп следует принимать в соответствии с Приложением 6 МГСН 4.08-97. Требования к проектированию сооружений - на основании «Рекомендаций по проектированию окружающей среды, зданий и сооружений с учетом потребностей инвалидов и других маломобильных групп населения. Выпуск 12. Общественные здания и сооружения. Спортивные сооружения. Выпуск 13. Общественные здания и сооружения. Физкультурно-оздоровительные сооружения». Москва, 1998 г.

2.2.1.6. Схемы специализированных открытых физкультурно-спортивных сооружений для занятий легкой атлетикой инвалидов различных групп представлены на рис. 17-18. Схемы специализированных открытых физкультурно-спортивных сооружений для спортивных и рекреационных игр инвалидов различных групп представлены на рис. 19.

2.2.2. Детский физкультурно-рекреационный городок.

2.2.2.1. Детский физкультурно-рекреационный городок предназначен для самостоятельных и организованных физкультурно-оздоровительных занятий, игр и спортивных развлечений детей различного возраста. Детский физкультурно-рекреационный городок проектируется в составе комплекса физкультурно-рекреационных сооружений в качестве изолированной зоны. Состав сооружений детского физкультурно-рекреационного городка площадок спортивных игр следует принимать на основании Приложения 12 МГСН 4.08-97.

2.2.2.2. При проектировании детского физкультурно-рекреационного городка рекомендуется выделять три основных группы сооружений:

- физкультурно-игровой комплекс для детей младшего возраста (6-10 лет);

- полосу препятствий и площадки рекреационных игр для детей от 6-ти до 14-ти лет;

- скэйтпарк для роллерспорта и скэйтбординга для детей от 11-ти до 14-ти лет, подростков и молодежи.

2.2.2.3. Схемы площадок подвижных игр представлены на рис. 20.

2.2.2.4. В состав скейтпарка рекомендуется включать трассы для слалома, чаши для выполнения трюков, переносные и стационарные устройства для выполнения трюков. Схемы сооружений для роллерспорта и скейтбординга представлены на рис. 21.

2.2.2.5. В соответствии с заданием на проектирование, при условии размещения оборудования в павильоне или под навесом, допускается оборудование «экстримзоны», площадью от 50 до 200 м2 (с учетом зон безопасности) в зависимости от состава оборудования.

В состав оборудования, размещаемого в экстримзоне, рекомендуется включать:

·        рампу (полутрубу с плоским дном) с радиусом закруглений 1,5 - 3,0;

·        трамплины, высотой от 0,35 до 2,0 м;

·        горки, высотой от 0,35 до 2,0 м;

·        ступени, высотой 0,5 м;

·        «ремешок» (две параллельные металлические трубы), высотой 0,3 м.

Габаритные схемы различных устройств для роллерспорта представлены на рис. 22.

Примеры решений рамп для выполнения трюков при занятиях роллерспортом и скейтбордингом представлены на рис. 23. Примеры решений рамп со сложными профилями для выполнения трюков при занятиях роллерспортом и скейтбордингом даны рис. 24.

2.2.2.6. На основании задания на проектирование, при соответствующем увеличении площади скэйтпарка, допускается проектирование площадки роллер-хоккея для хоккея на роликовых коньках и площадки фигурного и массового катания на роликовых коньках. Габаритные схемы площадок представлены на рис. 25.

2.2.3. Открытый рекреационный бассейн с вспомогательными помещениями.

2.2.3.1. Открытый рекреационный бассейн предназначен для купания, оздоровительного плавания и развлечений на воде детей различных возрастов и взрослых, осуществляемых самостоятельно в режиме досуга.

2.2.3.2. Открытый рекреационный бассейн следует проектировать в комплексе с вспомогательными помещениями. Функциональная схема открытого рекреационного бассейна представлена на рис. 26.

2.2.3.3. По периметру участка открытого рекреационного бассейна следует предусматривать полосу ветро- и пылезащитных насаждений шириной 15-20 м, по периметру открытой ванны с примыкающими к ней площадками - кустарниковые насаждения - шириной 5 м.

2.2.3.4. Рекомендуемый состав основных сооружений, вспомогательных помещений вестибюльной группы, помещений санитарно-гигиенического назначения, буфета, мест отдыха открытых рекреационных бассейнов для жилых районов с различной численностью населения представлен в Приложении 5 настоящего Пособия.

Требования к инструкторским помещениям, составам и площади административно-хозяйственных помещений, площадям бытовых помещений аналогичны требованием к данным помещенной физкультурно-оздоровительных центров (раздел 1.2.3 настоящего Пособия).

Площади технических помещений и эксплуатационных служб определяются по заданию на проектирование.

2.2.3.5. На основании задания на проектирование в состав здания вспомогательных помещений открытых плоскостных сооружений могут быть включены помещения медико-восстановительного центра в соответствии с Приложением 2 Пособия к МГСН 4.08-97. Выпуск 1.

2.2.3.6. При проектировании ванны рекреационного бассейна следует учитывать возрастной состав обслуживаемых контингентов, уточняемый заданием на проектирование. В зависимости от возрастного состава занимающихся в ванне бассейна рекомендуется выделять зоны с различной глубиной воды в т. ч:

·       не более 1,05 м для купания детей от 10 до 14 лет;

·       не более 1,25 м для купания детей от 14 лет и взрослых;

·       от 1,2 до 1,45 м для оздоровительного плавания детей от 14 лет и взрослых.

2.2.3.7. Ванна рекреационного бассейна может быть запроектирована произвольной формы и должна иметь по периметру обходные дорожки шириной не менее 2 м.

2.2.3.8. Смежно с обходными дорожками рекомендуется предусматривать солярий и открытые физкультурно-рекреационные площадки. По заданию на проектирование может быть предусмотрен бар с продажей прохладительных напитков.

2.2.3.9. Кабинеты дежурного инструктора и дежурной медсестры следует проектировать в структуре здания вспомогательных помещений смежно с обходной дорожкой бассейна.

2.2.3.10. Состав оборудования бассейна следует определять заданием на проектирование. Перечень водных спусков (тоббоганов), различных водных аттракционов должен определяться с учетом возрастного состава занимающихся, площади зеркала воды бассейна, общего планировочного решения ванны бассейна и примыкающей к нему территории.

При размещении принятого оборудования ширину обходной дорожки и зон установки оборудования следует определять в задании на проектирование с учетом зон безопасности.

2.2.4. Трассы для летних и зимних видов спорт

2.2.4.1. Трассы для летних и зимних видов, спорта предназначены для учебно-тренировочных, спортивных и массовых физкультурно-оздоровительных занятий всех категорий населения жилого района следующими видами: оздоровительным бегом, дозированной ходьбой (терренкуром), лыжным беговым и горнолыжным спортом, сноубордом, натурбаном, маунтинбайком.

2.2.4.2. Состав и параметры трасс, характер их использования определяется заданием на проектирование с учетом п.п. 2.1.3, 2.1.14, 2.1.16 настоящего Пособия, а также требований и рекомендаций настоящего радела.

2.2.4.3. Трассы оздоровительного бега рекомендуется прокладывать с учетом обеспечения различных по протяженности дистанций. Рекомендуемая ширина трасс не менее 2 м. Допускается совмещать трассы с пешеходными дорожками. Дорожки здоровья следует проектировать с размещением непосредственно на трассе оздоровительного бега или на смежных с ней площадках простейшего гимнастического оборудования: бумов, перекладин, устройств для лазания, барьеров. Длину дорожек и перечень оборудования следует определять по месту. Минимальная рекомендуемая длина дорожки здоровья - 800 м.

Трассы терренкура проектируются с учетом программ дозированной нагрузки, учитывая рельеф местности.

Трассы оздоровительного бега, дорожки здоровья, трассы терренкура должны иметь искусственное освещение по всему периметру.

2.2.4.4. Трассы лыжного спорта (по равнинной местности) должны прокладываться с учетом обеспечения различных по длине дистанций. Для учебно-тренировочных занятий и соревнований протяженность дистанций должна быть от 3-х до 50-ти км*. Трассы должны иметь спуски и уклоны длиной не менее 20 м на 50 % с уклонами - не менее 3 %.

* При учете прохождения на каждой дистанции одного и того же участка трассы не более 3-х раз.

Протяженность дистанций и требования к рельефу местности для массового катания на лыжах не лимитируется.

Трассы лыжного спорта должны иметь ширину на прямолинейных участках не менее 3 м, на виражах - не менее 5 м.

2.2.4.5. Трассы оздоровительного бега могут быть использованы в зимнее время для прокладки трасс массового катания на лыжах. При этом следует учитывать требования п. 2.2.4.4 к ширине трассы.

2.2.4.6. Склоны для прокладки трасс зимних видов спорта не должны иметь препятствий в виде пней, камней, ям. Препятствия, расположенные по границам участка, должны ограждаться наклонными стенками (сетками) дм создания приподнятых виражей, снежными валами и т.п.

Требования к устройству и параметрам ограждений определяется по месту заданием на проектирование.

При наличии сложных геологических условий следует предусматривать специальные противооползневые и противолавинные мероприятия (защитные и отбойные стенки, направляющие контрфорсы и т.п.)

2.2.4.7. Ширину трасс для горнолыжного спорта (слалома, тренировочных занятий по скоростному спуску), сноуборда (слалома), массового катания с гор следует предусматривать не менее 20 м* для каждой из указанных дисциплин.

*На участках с препятствиями, по внешнему периметру поворотов трассы, проложенной на выпуклых участках, ширина участка увеличивается для обеспечения безопасности лыжников и определяется по заданию на проектирование.

Участки склона для параллельного слалома должны иметь ширину, достаточную для размещения двух трасс.

Допускается размещение трасс для дисциплин горнолыжного спорта и сноуборда на одном склоне, имеющем достаточную ширину. При этом трассы должны быть разделены ограждениями или посадками между трассами.

2.2.4.8. Для массового катания на горных лыжах длина трасс и перепад высот не лимитируется. Уклон участков склонов, предназначенных для массового катания на отдельных участках не должен превышать 25 %.

2.2.4.9. Для массовых занятий сноубордом длина трасс и перепад высот не лимитируется.

2.2.4.10. Трассы для массовых занятий сноубордом допускается проектировать совмещенными с трассами для массового катания на горных лыжах. При этом средний уклон трассы должен составлять не более 5-7 %.

2.2.4.11. Необходимость оборудования подъемных устройств и их тип на склонах для массового катания на лыжах и массовых занятий сноубордом определяется заданием на проектирование.

2.2.4.12. Трассы натурбана должны быть обеспечены зимним поливочным водопроводом или снабжены системой искусственного намораживания льда.

2.2.4.13. Насыпные и естественные склоны, используемые для прокладки трасс зимних видов спорта в летнее время рекомендуется использовать для прокладки трасс маунтинбайка (слалома, параллельного слалома и даунхилла).

2.2.5. Вспомогательные помещения открытых плоскостных сооружений.

2.2.5.1. Состав и площади вспомогательных помещений открытых плоскостных сооружений физкультурно-рекреационных комплексов жилых районов следует определять заданием на проектирование с учетом совокупной единовременной пропускной способности сооружений, приведенной в Приложении 12 МГСН 4.08-97.

2.2.5.2. Вспомогательные помещения открытых плоскостных сооружений физкультурно-рекреационных комплексов физкультурно-рекреационных комплексов жилых районов, спортивные залы и помещения для дополнительных видов физкультурно-спортивной деятельности, рекомендуется проектировать в едином здании, размещаемом в непосредственной близости от плоскостных сооружений. Функциональная схема здания вспомогательных помещений представлена на рис. 27.

2.2.5.3. При компактном размещении зоны спортивных игр и зоны открытых плоскостных специализированных физкультурно-спортивных и рекреационных сооружений для инвалидов рекомендуется объединение вспомогательных помещений данных групп сооружений в едином здании.

2.2.5.4. Вспомогательные помещения открытых сооружений с помещениями физкультурно-оздоровительных занятий рекомендуется принимать по приложению 6 настоящего Пособия.

Требования к инструкторским, составам и площади административно-хозяйственных помещений, площади бытовых помещений рабочих аналогичны требованиям к данным помещениям физкультурно-оздоровительных центров (раздел 1.2.3 настоящего Пособия).

Площади технических помещений и эксплуатационных служб определяются по заданию на проектирование.

На основании задания на проектирование в состав здания вспомогательных помещений открытых плоскостных сооружений могут быть включены помещения медико-восстановительного центра в соответствии с Приложением 2. Пособия к МГСН 4.08-97. Выпуск 1.

2.2.5.5. При устройстве в зимнее время на территории физкультурно-рекреационного комплекса катка массового катания вестибюльную группу помещений следует проектировать с учетом организации вестибюля-грелки. В данном случае дополнительно к помещениям вестибюльной группы, приведенным в Приложении 6 настоящего Пособия, следует предусмотреть помещения, состав и площади которых заданы в п. 1.3.2.2 настоящего Пособия.

2.2.6. Вспомогательные помещения лыжных баз.

2.2.6.1. Вспомогательные помещения лыжных баз рекомендуется предусматривать в зданиях баз, размещаемых на участках, площадью от 0,2 га, не далее 200 м от площадок старта и финиша.

2.2.6.2. Состав и площади вспомогательных помещений лыжных баз следует определять заданием на проектирование с учетом видов спорта и типа физкультурно-спортивной деятельности, реализуемых на трассах, (в т.ч. массовых физкультурно-оздоровительных занятий, учебно-тренировочных занятий, соревнований), заданной совокупной единовременной пропускной способности трасс.

2.2.6.3. Рекомендуемые составы и площади вестибюльной группы помещений, помещений питания, медицинского обслуживания, инструкторских, группы складских и хозяйственных помещений лыжных баз массового катания с единовременной пропускной способностью 200, 300 и 500 человек приведены в Приложении 7 настоящего Пособия.

2.2.6.4. Помещения для получения и сдачи лыж и лыжехранилище должны размещаться в смежных помещениях, сообщающихся через проем шириной не менее 3 м.

2.2.6.5. Требования к составам и площади административно-хозяйственных помещений, площади бытовых помещений рабочих аналогичны требованиям к данным помещениям физкультурно-оздоровительных центров (раздел 1.2.3 настоящего Пособия).

Площади технических помещений и эксплуатационных служб определяются по заданию на проектирование.

2.2.6.6. По заданию на проектирование в состав помещений лыжных баз могут быть включены зал ОФП, габаритами от 18´9 м, помещение тренажерной техники площадью от 40 м2.

2.2.6.7. При входе на базу следует предусматривать навес для подготовки лыж. Площадь следует определять заданием на проектирование с учетом вместимости базы.

2.2.6.8. При проведении на трассах учебно-тренировочных занятий и соревнований спортивных секций и детско-юношеских спортивных школ в состав вспомогательных помещений лыжных баз дополнительно к перечню вспомогательных помещений, приведенных в Приложении 7 настоящего Пособия, следует включать:

·       раздевальные мужские и женские;

·       душевые для занимающихся;

·       гардеробные верхней одежды;

·       места отдыха для занимающихся;

·       массажные и сауну;

·       помещение хранения и сушки обуви;

·       мастерскую для индивидуального ремонта и подготовки лыж.

Мастерская для индивидуального ремонта и подготовки лыж предусматривается для баз по горным видам.

Площади данных помещений следует принимать по заданию на проектирование.

2.2.6.9. При использовании баз для массовых и учебно-тренировочных занятий по сноуборду, натурбану и другим зимним видам спорта состав, расчетные показатели и площади складских помещений, помещений ремонта и выдачи спорт инвентаря следует определять заданием на проектирование.

2.2.6.10. Вспомогательные помещения лыжных баз рекомендуется использовать в летнее время для обслуживания занимающихся на трассах летних видов спорта - оздоровительного бега, велоспорта, велоспорта маунтинбайк. При этом состав и площади складских помещений, помещений ремонта и выдачи спортинвентаря следует определять заданием на проектирование с учетом численности единовременно занимающихся различными видами спорта и типа спортивного инвентаря.

2.2.7. Пункты обучения плаванию на открытых водоемах.

2.2.7.1. Пункты обучения плаванию на открытых водоемах рекомендуется включать в состав комплексов физкультурно-рекреационных сооружений при наличии естественной акватории, удовлетворяющей функциональным и санитарно-гигиеническим требованиям к устройствам данного типа.

2.2.7.2. Качество воды в акваториях, используемых для указанных сооружений, должно отвечать требованиям, предъявляемым органами санэпиднадзора. Сооружения должны размещаться в экологически безопасных зонах, исключать пересечение трасс заплывов судами, обеспечивать безопасный вход в воду.

2.2.7.3. Пункты обучения плаванию на открытых водоемах предназначены для обучения плаванию и оздоровительного плавания детей различных возрастов и взрослых. Наряду с этим естественные акватории могут использоваться для сооружений по прыжкам в воду, спортивному плаванию, водному поло, для прокладки трасс плавательного марафона, водного этапа триатлона, обучения плаванию детей и других видов занятий.

2.2.7.4. Участок берега, примыкающего к сооружению, должен быть обеспечен подъездом машин скорой помощи.

2.2.7.5. Дно водоемов под сооружениями до глубины 1,8 м должно быть ровным, нескользким, без ям и камней.

2.2.7.6. Бассейны для обучения плаванию следует размещать в прибрежной полосе акватории с глубиной воды:

·       не более 1,05 м при обучении плаванию детей от 10 до 14 лет;

·       не более 1,25 м при обучении плаванию детей от 14 лет и взрослых.

2.2.7.7. Обходную дорожку следует оборудовать с четырех сторон, из которых две противоположные стороны должны иметь вертикальные стенки. Ширина обходной дорожки не менее 2 м.

2.2.7.8. Наплавные бассейны для купания следует также размещать в прибрежной полосе акватории с глубиной воды в мелкой части бассейна не более 1,05 м. Наплавные бассейны для купания могут иметь произвольную форму и оборудоваться водными аттракционами.

2.2.7.9. Обходные дорожки бассейна на естественных водоемах могут быть оборудованы на понтонах или на сваях и иметь пешеходную связь с берегом.

2.2.7.10. Наряду с бассейнами для обучения плаванию и купания на основании задания на проектирование на естественных водоемах могут быть оборудованы бассейны спортивного плавания и прыжковые наплавные бассейны.

Ширина дорожек для спортивного и спортивно-оздоровительного плавания должна соответствовать требованиям Справочного пособия к СНиП 2.08.02-89* «Проектирование бассейнов», рекомендуемая длина дорожек 25 м и 50 м. При использовании бассейна для водного поло - 33,3 м.

2.2.7.11. В наплавных бассейнах, используемых для спортивного плавания, обходную дорожку следует устраивать как минимум с трех сторон: стартовой и противоположной линий, а также одной продольной. Ширина обходной дорожки со стартовой стороны - не менее 3 м, с продольных сторон - не менее 2 м.

В торцовых линиях вертикальная стенка для разворота спортсменов должна быть заглублена до отметки 1,2 м от уровня воды и ниже. В вертикальных стенках разворотных обходных дорожек следует предусмотреть закладные детали в уровне воды для крепления разделительных дорожек. В случае размещения наплавного бассейна в акватории с выраженным течением, плавательные дорожки следует размещать вдоль течения.

2.2.7.12. В прыжковых наплавных бассейнах обходная дорожка должна быть предусмотрена как минимум с трех сторон: со стороны прыжковых устройств и с двух примыкающих к ней сторонам. Ширина дорожки со стороны прыжковых устройств принимается по заданию на проектирование с учетом конструкции прыжковых устройств.

Глубина воды под прыжковыми устройствами должка соответствовать требованиям к глубине прыжковых ванн крытых плавательных бассейнов, регламентируемой Справочным Пособием «Проектирование бассейнов» к СНиП 2.08.02-89*, равной:

·       4 м - при устройстве прыжковой вышки высотой 5 м;

·       5 м - при устройстве прыжковой вышки высотой 10 м.

2.2.7.13. При использовании наплавных бассейнов дм соревнований по водному поло обходную дорожку следует устраивать с четырех сторон и предусмотреть на одной из продольных обходных дорожек места для запасных игроков. Ширина обходной дорожки с местами для игроков не менее 3 м.

2.2.7.14. При организации наплавных бассейнов для купания и обучения плаванию на естественных водоемах могут не предусматриваться стационарные вспомогательные помещения санитарно-гигиенического назначения. При этом следует предусмотреть пляжные кабины для переодевания из расчета 1 кабина на 4-5 человек единовременно занимающихся в бассейнах, душевые кабины из расчета 1 сетка на 3-4 человека единовременно занимающихся в бассейнах. Рекомендуется также оборудовать пункт проката инвентаря с камерой хранения.

3. Ссылки на нормативно-методические документы

3.1. СНиП 10-01-94 «Система нормативных документов в строительстве. Основные положения».

3.2. СанПиН 2.2.1/2.1.1.567-96. «Санитарно-защитные зоны и санитарная классификация предприятий, сооружений и иных объектов».

3.3. СНиП 2.07.01-89* «Планировка и застройка городских и сельских поселений».

3.4. СНиП 35-01-2001 «Доступность зданий, и сооружений для маломобильных групп населения».

3.5. СНиП 2.08.02-89* «Общественные здание и сооружения».

3.6. СНиП 2.01.02.-89*»Противопожарные нормы».

3.7. СанПиН 2.2.1/2.1.1.1031-01 «Санитарно-эпидемиологические правила и нормативы Санитарно-защитные зоны и санитарная классификация предприятий, сооружений и иных объектов», Москва, 2001.

3.8. Справочное пособие к СНиП 2.08.89* «Проектирование спортивных залов, помещений для физкультурно-оздоровительных занятий и крытых катков с искусственным льдом».

3.9. Справочное пособие к СНиП 2.08.89* «Проектирование бассейнов».

3.10. «Рекомендации по проектированию окружающей среды, зданий и сооружений с учетом потребностей инвалидов и других маломобильных групп населения. Выпуск 12. Общественные здания и сооружения. Спортивные сооружения». Москва, 1998 г.

3.11. «Рекомендации по проектированию окружающей среды, зданий и сооружений с учетом потребностей инвалидов и других маломобильных групп населения. Выпуск 13. Общественные здания и сооружения. Физкультурно-оздоровительные сооружения». Москва, 1998 г.

3.12. «Рекомендации по проектированию зон физкультурно-спортивных сооружений парков культуры и отдыха». Москва, 1984 г.

3.13. МГСН 1.01-99 «Нормы и правила проектирования планировки и застройки г. Москвы».

3.14. МГСН 3.01-96 Жилые здания.

3.15. МГСН 3.01-96 Жилые здания. Дополнение № 1.

3.16. МГСН 4.08-97 «Массовые типы физкультурно-оздоровительных сооружений.

3.17. МГСН 4.04-94 «Многофункциональные здания и комплексы».

3.18. МГСН 4. 04-96 «Общеобразовательные учреждения».

3.19. МГСН 4.17-98 «Культурно-зрелищные учреждения».

3.20. МГСН 4.14-98 «Предприятия общественного питания».

3.21. Пособие к МГСН 4.08-97 «Массовые типы физкультурно-оздоровительных учреждений. Выпуск 1. Общие положения. Сооружения, приближенные к жилью. Физкультурно-оздоровительные клубы микрорайонов. Детско-юношеские спортивные школы».

Приложение 1.

Краткое описание новых, нетрадиционных видов спорта.*

*Приложение не содержит описание широко известных традиционных, развивающихся видов спорта, включенных в рекомендованную общую номенклатуру новых, нетрадиционных и развивающихся видов спорта - бильярда, водного поло, гольфа, массового катания на горных лыжах.

Велоспорт ВМХ - кроссовый велоспорт - разновидность велокросса, осуществляемого на велосипедах специального класса (кроссовых велосипедах ВМХ). Проводится на специализированных спортивных сооружениях - крытых и открытых велодромах ВМХ. Трасса велоспорта ВМХ с комбинацией препятствий и поворотов имеет длину от 270 до 400 м. Для международных соревнований длина трассы равна 300-400 м.

Велоспорт маунтинбайк (горный велосипед) - разновидность велоспорта, осуществляемого на велосипедах специального класса - горных велосипедах. Маунтинбайк включает следующие дисциплины: кросскантри (кросс по пересеченной местности), слалом, параллельный слалом; даун хилл (скоростной спуск). Олимпийской дисциплиной является - кросскантри. Трасса кросскантри прокладывается на пересеченной местности. Максимальная длина дистанции кросскантри - 40 км. Трассы слалома, параллельного слалома; даун хилла прокладываются по естественным склонам. Ландшафтные характеристики пересеченной местности, уклоны и длина склонов, должны соответствовать заданным требованиям к проведению соревнований различных уровней.

Восточные единоборства - виды единоборств, зародившиеся на Востоке. Включают виды, направленные на овладение приемами самообороны и боевых искусств. В перечне видов спорта, включенных в настоящее время в Российские государственные программы физического воспитания, имеются следующие виды восточных единоборств: айкидо; дзюдо; различные версии каратэ, в т.ч.: ден-то карате до-фудокан; карате до; контактное карате; тхэквондо по различным версиям**. Айкидо - боевое спортивное единоборство, основанное на древней системе самообороны, суть которой состоит в применении против нападающего уклоняющихся приемов, дающих возможность воспользоваться, образовавшимся временным преимуществом. Соревнования проводятся по обязательной программе и трем видам боевых состязаний. Дзюдо - Олимпийский вид спорта, - самооборона, основанная на комбинации силы и равновесия. В соревнованиях побеждает спортсмен, продемонстрировавший наилучшую технику захватов и бросков. Каратэ - единоборство без оружия, формальный метод физического и духовного совершенствовании и состязательный боевой вид спорта. Соревнования по спортивному каратэ проводятся в виде спарринг-матчей, во время которых запрещено применение ряда технических приемов каратэ. Тхэквондо - древнее корейское боевое искусство, единоборство без оружия. С 1994 года тхэквондо в РФ является Олимпийским видом спорта. Различные соревнования осуществляются как в личном, так и в командном первенстве. На Олимпийских играх соревнования проводятся в личном первенстве. Основным местом тренировок и соревнований по различным видам восточных единоборств является зал борьбы. Габариты зала определяются размером основной площадки - ковра для борьбы - и количеством площадок, размещаемых в зале. Размеры ковра для борьбы (татами) различны для отдельных видов восточных единоборств.

**Существуют следующие основные версии тхэквондо: версия Всемирной Федерации Тхэквондо (ВТФ), Глобальной Федерации Тхэквондо (ГТФ), версия Интернациональной Федерации Тхэквондо (ИТФ).

Натурбан - скоростной спуск на санях (одноместных - для женщин и мужчин, двухместных - для мужчин) по естественному склону с намораживаемой ледяной трассой. Длина трассы, уклоны, количество виражей определяется по месту.

Пляжный волейбол - спортивная игра аналогичная волейболу, осуществляемая на открытой песчаной площадке. Количество игроков - 2´2 или 4´4 человека. Специфическое требование к сооружению - наличие слоя песка толщиной не менее 30 см с регламентируемыми цветом и степенью чистоты.

Пейнтбол - прикладной вид спорта, командная игра, со стрельбой из специальных маркеров пневматического действия, стреляющих желатиновыми шариками с минеральным красителем. Команды игроков (три, пять, семь или десять человек в команде - в зависимости от вида соревнования), стартующие со своих баз, стремятся захватить флаг противника и поразить при этом как можно больше игроков команды-противника. Место проведения игры - открытая площадка с системой установленных искусственных укрытий (пластиковых, пневматических, деревянных). При упрощенных правилах игры осуществляется так же, как физкультурно-рекреационное занятие.

Роллерспорт и скэйтбординг - катание на роликовых коньках и роликовых досках. Роллерспорт включает, как массовые физкультурно-оздоровительные занятия, так и спортивные дисциплины, в т.ч.: хоккей на роликовых коньках; фристайл на роликовых коньках и роликовых досках, фигурное катание на роликовых коньках; скоростной бег на роликовых коньках. Для фристайла используются специальные устройства: рампы, трамплины, раскатные горки и пр. Комплексы сооружений для роликовых коньков и скейтбординга включают, в основном, сооружения двух типов: роликодромы, строящиеся в настоящее время в Москве, и скейтпарки, получившие большое распространение за рубежом. Скейтпарк - комплекс с развитым составом спортивных сооружений для роликовых коньков и скейтбординга, включающий как крытые так и открытые сооружения, в т.ч. площадки различных видов, дорожки, прямые наклонные трассы, наклонные изогнутые трассы, чаши, бассейны с полуцилиндрами. Составы сооружений различных скейтпарков, их габариты определяются по месту и варьируются в большом диапазоне.

Сноуборд - скольжение по естественному заснеженному склону на специальной доске (зимний Олимпийский вид спорта). Сноуборд включает следующие дисциплины: параллельный слалом, слалом-гигант, супергигант, хальфпайп (полутруба), бордеркросс (кросс на сноуборде). Трассы сноуборда оборудуются на естественных и искусственных склонах. Параметры трасс определяются на основании требований правил соревнований с учетом местных условий.

Для дисциплин хальфпайп и бордеркросс предусматриваются стационарные трассы. Для бордеркросса рекомендуется оборудовать постоянный городок бордеркросса, включающий комбинацию препятствий: трамплинов, ванн, ям с водой, развязок, виражей с повышением трассы на поворотах по типу санно-бобслейной трассы.

Флорбол - спортивная игра, аналогичная хоккею, где вместо шайбы используется специальный мяч. Основное место проведения - спортивный зал. В команде играют 5 полевых игроков и вратарь. Рекомендуемый размер игрового поля 40´20 м. Допускается игра в залах меньших габаритов с уменьшением числа полевых игроков. Возможно проведение игры на открытых плоскостных сооружениях.

Приложение 2.

Рекомендуемый состав и площади помещений физкультурно-оздоровительных центров жилых районов

№ п/п

Наименование помещения

Численность населения микрорайона, тыс. чел.

Примечание

30,0-50,0 Площади помещения, м2

51,0-70,0 Площади помещения, м2

71,0-90,0 Площади помещения, м2

1.

Группа помещений вестибюля*

 

 

 

Все помещения для посетителей проектируются с учетом использования инвалидами

1.1.

Вестибюль,

132,0

172,0

221,0

Площадь вестибюля рассчитана на 100 % вместимости крытых и 50 % открытых физкультурно-спортивных сооружений

в т.ч. площадь для родителей, сопровождающих детей, и лиц, сопровождающих инвалидов

20,0

25,0

30,0

1.2.

Гардероб верхней одежды

33,0

42,0

54,0

Площадь гардероба рассчитана на 100 % вместимости залов, 200 % - бассейнов, 50 % вместимости открытых сооружений. Площадь гардероба увеличена на 10 % для учета лиц, сопровождающих детей и инвалидов

1.3.

Туалет (мужской и женский)

5,0´2

10,0

5,0´2

10,0

5,0´2

10,0

 

1.4.

Касса

3,0

3,0

3,0

 

1.5.

Регистратура

5,0

5,0

5,0

 

 

Итого:

183,0

232,0

293,0

 

2.

Группа помещений универсального игрового спортивного зала

 

 

 

 

2.1.

Универсальный игровой спортивный зал

- 36´18 м;

648

-

-

Высота зала 8,0 м

 

- 45´24 м

-

1080

1080

Высота зала 8,0 м

2.2.

Инвентарная зала

-6´4 м;

24

-

-

Минимальная высота помещения - 2,7 м

 

-6´6 м

-

36

36

Минимальная высота помещения - 2,7 м

2.3.

Раздевальные универсального игрового спортивного зала Командные, в т.ч.:

 

 

 

Хранение одежды в двухъярусных шкафах

2.3.1.

места для переодевания

- на 20 мест;

128,0

32,0´4

128,0

32,0´4

128,0

32,0´4

В помещениях устанавливается: - 20 шкафов в каждой раздевалке, 1 мойка для ног, 1 умывальник, 1 сушилка для волос

2.3.2.

Душевая на 4 сетки;

40,0

10,0´4

40,0

10,0´4

40,0

10,0´4

2 душевых кабины проектируются с учетом использования инвалидами передвигающимися на колясках

2.3.3.

Санузел (с умывальником в шлюзе)

20,0

5,0´4

20,0

5,0´4

20,0

5,0´4

Санузел проектируется с учетом использования инвалидами

2.4.

Семейные раздевальные для инвалидов передвигающихся на колясках с сопровождением

24,0

8,0´3

40,0

8,0´5

40,0

8,0´5

В расчете на 30 % одновременно занимающихся инвалидов

2.5.

Зона для хранения колясок

3,0

4,0

4,0

В расчете на 30 % одновременно занимающихся инвалидов

 

Итого:

887,0

1348,0

1348,0

 

3.

Группа помещений спортивных залов

 

 

 

 

3.1.

Зал общефизической подготовки

 

 

 

 

 

- 18´9 м

162,0

-

-

Высота зала 4,8 м

 

- 18´12 м

-

216,0

-

Высота зала 4,8 м

 

- 24´12 м

-

-

288,0

Высота зала 4,8 м

3.1.1.

Инвентарная

15,0

18,0

18,0

Минимальная высота помещения - 2,7 м

3.1.2.

Раздевальные залов общие (мужские, женские) в т.ч.:

 

 

 

Хранение одежды в двухъярусных шкафах

3.1.2.1.

- места для переодевания:

- на 8 мест (4 при занятиях инвалидов в зале ОФП);

34

17,0´2

-

-

В раздевальных устанавливаются: 1 ножная ванна; 1 сушилка для волос - в женской, 1 - в мужской раздевальной

 

- на 10 мест (5 при занятиях инвалидов в зале ОФП);

-

42,0

21,0´2

-

В раздевальных устанавливаются: 1 ножная ванна; 1 сушилка для волос - в женской, 1 - в мужской раздевальной

 

- на 13 мест (7 при занятиях инвалидов в зале ОФП)

-

-

56,0

28,0´2

В раздевальных устанавливаются: 1 ножная ванна; 2 сушилка для волос - в женской, 1 - в мужской раздевальной

3.1.2.2.

Душевые:

- на 2 сетки;

12,0

6,0´2

12,0

6,0´2

-

2 душевых кабины проектируются с учетом использования инвалидами колясочниками

 

- на 3 сетки

-

-

16,0

8,0´2

2 душевых кабины проектируются с учетом использования инвалидами колясочниками

3.1.2.3.

Санузел (с умывальником в шлюзе)

10,0

5,0´2

10,0

5,0´2

10,0

5,0´2

Санузел проектируется с учетом использования инвалидами. В санузлах устанавливаются: 1 унитаз в женском санузле; 1 унитаз, 1 писсуар - в мужском

3.2.

Зал аэробики-хореографии, элементов художественной гимнастики

 

 

 

 

 

- 9´9 м

81,0

-

-

Высота зала 3,9 м

 

- 12´12 м;

-

144,0

-

Высота зала 3,9 м

 

- 15´15 м

-

-

225,0

Высота зала 3,9 м

3.2.1.

Инвентарная

8,0

8,0

8,0

Минимальная высота помещения - 2,7 м

3.2.2.

Раздевальные залов общие (мужские, женские), в т.ч.

 

 

 

Хранение одежды в двухъярусных шкафах

3.2.2.1.

- места для переодевания

- на 8 мест,

34,0

17,0´2

-

-

В раздевальных устанавливаются: 1 ножная ванна; 1 сушилка для волос - в женской, 1 - в мужской раздевальной

 

- на 13 мест;

-

56,0

28,0´2

-

В раздевальных устанавливаются: 1 ножная ванна; 2 сушилка для волос - в женской, 1 - в мужской раздевальной

 

- на 18 мест

-

-

76,0

38,0´2

В раздевальных устанавливаются: 1 ножная ванна; 2 сушилка для волос - в женской, 1 - в мужской раздевальной

3.2.2.2.

Душевые:

- на 2 сетки;

10

5,0´2

-

-

 

 

- на 3 сетки;

-

140

8,0´2

-

 

 

- на 4 сетки

-

-

20,0

10,0´2

 

3.2.2.3.

Санузел (с умывальником в шлюзе)

10,0

5,0´2

10,0

5,0´2

10,0

5,0´2

В санузлах устанавливаются: 1 унитаз в женском санузле; 1 унитаз, 1 писсуар - в мужском

3.3.

Зал борьбы

 

 

 

Высота зала 4,0 м

 

- 18´15 м;

270,0

270,0

-

Пропускная способность зала принята равной 12 чел. (При выносе из зала вспомогательного оборудования и ковре диаметром 9 м)

 

- 24´15 м

-

-

360,0

Пропускная способность зала принята равной 16 чел.

3.3.2.

Раздевальные залов общие (мужские, женские), в т.ч.

 

 

 

Хранение одежды в двухъярусных шкафах

3.3.2.1.

- места для переодевания:

- на 12 мест;

26,0

26,0

-

В раздевальных устанавливаются: 1 ножная ванна; 1 сушилка для волос

 

- на 16 мест

-

-

34,0

В раздевальных устанавливаются: 1 ножная ванна; 1 сушилка для волос

3.3.2.2.

Душевые:

 

 

 

 

 

- на 3 сетки;

8,0

8,0

-

 

 

- на 4 сетки

-

-

10,0

 

3.3.2.3.

Санузел (с умывальником в шлюзе)

5,0

5,0

5,0

В санузлах устанавливаются; 1 унитаз, 1 писсуар

3.4.

Помещение индивидуальной силовой подготовки

72,0

72,0

72,0

Длина и ширина помещения не регламентируются, высота помещения 3,9 м

3.5.

Зал для игры в шоу-даун

- 12´9 м

108,0

108,0

108,0

Высота зала 4,0 м, для инвалидов с дефектами зрения. Раздевальные не предусмотрены

3.6.

Семейные раздевальные специализированных залов для инвалидов с сопровождением, передвигающихся на колясках

16,0

8,0´2

24,0

8,0´3

32,0

8,0´4

В расчете на 50 % одновременно занимающихся инвалидов

3.7.

Зона для хранения колясок

2,0

2,5

3,5

В расчете на 50 % одновременно занимающихся инвалидов

 

Итого:

883,0

1047,5

1351,5

 

4.

Группа помещений плавательного бассейна

 

 

 

 

4.1.

Зад ванны бассейна спортивно-оздоровительного плавания

- ванны 25´12 м

- зал 30´18 м;

540,0

540,0

-

Высота зала 5,4 м

 

- ванны 25´16 м - зал 30´24 м

-

-

720,0

Высота зала 5,4 м

4.1.1.

Инвентарная ванны

6,0

6,0

6,0

 

4.1.2.

Комната дежурного инструктора

8,0

8,0

8,0

Предусматривается выход непосредственно на обходную дорожку

4.1.3.

Комната дежурной медсестры

12,0

12,0

12,0

Предусматривается выход непосредственно на обходную дорожку

4.1.4.

Зал подготовительных занятий 18´9 м

162,0

162,0

162,0

 

4.1.5.

Инвентарная зала подготовительных занятий

8,0

8,0

8,0

 

4.1.6.

Раздевальные ванны спортивно-оздоровительного плавания общие (мужские, женские), в т.ч.

 

 

 

 

4.1.6.1.

Места для переодевания:

 

 

 

Предусматривается хранение одежды в двухъярусных шкафах

 

- на 24 места;

140,0

70,0´2

140,0

70,0´2

-

В помещении устанавливается 1 умывальник, 2 мойки для ног, 3 сушилки для волос в женской, 2 - в мужской раздевальной

 

- на 32 места

-

-

160,0

80,0´2

В помещении устанавливается 2 умывальника, 2 мойки для ног, 3 сушилки для волос в женской, 2 - в мужской раздевальной

4.1.6.2.

Душевая:

- на 8 сеток;

40,0

20,0´2

40,0

20,0´2

-

 

 

- на 11 сеток

-

-

56,0

28,0´2

 

4.1.6.3.

Санузлы (с умывальником в шлюзах)

10,0

5,0´2

10,0

5,0´2

10,0

5,0´2

В помещении устанавливается 1 унитаз, 1 писсуар в мужском санузле; 1 унитаз в женском

4.2.6.

Сауна

30,0

15,0´2

30,0

15,0´2

40,0

20,0´2

Размещается смежно с раздевальными ванны спортивного плавания. Дополнительные раздевальные, душевые, комната отдыха и контрастная ванна не предусматриваются

4.2.7.

Массажные

64,0

16,0´4

64,0

16,0´4

96,0

16,0´6

Размещается смежно с раздевальными ванны спортивного плавания. Дополнительные раздевальные и душевые не предусматриваются

 

Итого:

1020,0

1020,0

1278,0

 

4.2.

Зал ванны оздоровительного плавания:

 

 

 

Минимальная высота зала ванны 5,4 м

 

- ванны 16,6´6 м - зал 24´12 м

288,0

-

-

 

 

- ванны 16,6´8 м - зал 24´15 м

-

360,0

360,0

 

4.2.1.

Инвентарная ванны

6,0

6,0

6,0

 

4.2.2.

Комната дежурного инструктора

8,0

8,0

8,0

Предусматривается выход непосредственно на обходную дорожку

4.2.3.

Комната дежурной медсестры

12,0

12,0

12,0

Предусматривается выход непосредственно на обходную дорожку

4.2.4.

Лаборатория химического и бактериологического анализа воды

8,0

8,0

8,0

 

4.2.5.

Раздевальные бассейна общие (мужские, женские), в т.ч.

 

 

 

 

4.2.5.1.

Мест для переодевания:

 

 

 

Предусматривается хранение одежды в двухъярусных шкафах; в раздевальных устанавливаются:

 

- на 9 мест (в т.ч. 50 % для инвалидов, использующих кресла-коляски);

66,0

33,0´2

-

-

- 1 ножная ванна, 1 сушилка для волос;

- на 12 мест (в т.ч. 50 % для инвалидов, использующих кресла-коляски);

-

84,0

42,0´2

84,0

42,0´2

- 1 ножная ванна, 1 сушилка для волос в мужской раздевальной, 2 - в женской.

4.2.5.2.

Душевые:

 

 

 

 

 

- на 3 сетки

16,0

8,0´2

-

-

2 душевые кабины проектируются с учетом использования инвалидами - колясочниками.

- на 4 сетки

-

20,0

10,0´2

20,0

10,0´2

2 душевые кабины проектируются с учетом использования инвалидами - колясочниками.

4.2.5.3.

Санузлы (с умывальником в шлюзе)

10,0

5,0´2

10,0

5,0´2

10,0

5,0´2

В санузлах устанавливаются: 1 унитаз - в женском санузле; 1 унитаз, 1 писсуар - в мужском

4.2.6.

Сауна

30,0

15,0´2

40,0

15,0´2

40,0

20,0´2

Размещается смежно с раздевальными ванн оздоровительного плавания. Дополнительные раздевальные, душевые, комната отдыха и контрастная ванна не предусматриваются

4.2.7.

Массажные

64,0

16,0´4

96,0

16,0´4

96,0

16,0´6

Размещается смежно с раздевальными ванны оздоровительного плавания. Предусматривается обслуживание инвалидов Дополнительные раздевальные и душевые не предусматриваются

4.2.8.

Места для хранения кресел-колясок

4,0

6,0

6,0

 

 

Итого:

512,0

650,0

650,0

 

4.3.

Зал ванны для обучения плаванию - ванна 10´6 м, в зале 18´12 м

196

196

196

Высота зала ванны 3,0 м

4.3.1.

Инвентарная ванны

6,0

6,0

6,0

 

4.3.2.

Комната дежурной медсестры

12,0

12,0

12,0

Предусматривается выход непосредственно на обходную дорожку

4.3.3.

Раздевальные бассейна общие (мужские, женские), в т.ч.

 

 

 

 

4.3.3.1.

Места для переодевания:

 

 

 

Предусматривается хранение одежды в двухъярусных шкафах; в раздевальных устанавливаются:

 

- на 9 мест (в т.ч. 50 % для инвалидов, использующих кресла-коляски);

66,0

33,0´2

-

-

- 1 ножная ванна, 1 сушилка для волос;

- на 12 мест (в т.ч. 50 % для инвалидов, использующих кресла-коляски);

-

84,0

42,0´2

84,0

42,0´2

- 1 ножная ванна, 1 сушилка для волос в мужской раздевальной, 2 - в женской.

4.3.3.2.

Душевые:

- на 3 сетки;

16,0

8,0´2

-

-

2 душевые кабины проектируются с учетом использования инвалидами - колясочниками.

 

- на 4 сетки

-

20,0

10,0´2

20,0

10,0´2

2 душевые кабины проектируются с учетом использования инвалидами - колясочниками.

4.3.3.3.

Санузлы (с умывальником в шлюзе)

10,0

5,0´2

10,0

5,0´2

10,0

5,0´2

В санузлах устанавливаются: 1 унитаз - в женском санузле; 1 унитаз, 1 писсуар - в мужском

4.3.3.4.

Места для хранения кресел-колясок

4,0

6,0

6,0

 

4.3.5.

Семейные раздевальные для инвалидов передвигающихся на колясках с сопровождением

24,0

8,0´3

40,0

8,0´5

40,0

8,0´5

В расчете на 30 % одновременно занимающихся инвалидов

 

Итого:

316,0

316,0

316,0

 

5.

Раздевальные открытых сооружений

 

 

 

На 50 % единовременной пропускной способности открытых сооружений (кроме футбольных полей)

5.1.

Командные в т.ч.:

5.1.2.

Места для переодевания

 

 

 

В помещениях устанавливается:

 

- на 20 мест

128,0

32,0´4

128,0

32,0´4

128,0

32,0´4

- 20 шкафов в каждой раздевалке, 1 мойка для ног, 1 умывальник, 1 сушилка для волос

5.1.2.

Душевая на 4 сетки

40,0

10,0´4

40,0

10,0´4

40,0

10,0´4

 

5.1.3.

Санузел (с умывальником в шлюзе)

20,0

5,0´4

20,0

5,0´4

20,0

5,0´4

1

5.2.

Общие (мужские и женские) в т.ч.:

 

 

 

 

5.2.1.

Места для переодевания:

- на 26 мест;

-

94,0

47,0´2

-

В помещении устанавливается 1 умывальник, 2 мойки для ног, 3 сушилки для волос в женской, 2 - в мужской раздевальной

 

- на 46 мест

-

-

156,0

78,0´2

2 умывальника, 3 ножные ванны, 3 сушилки для волос в мужской, 4 - в женской раздевальной

5.2.

Душевые

- на 6 сеток;

-

32,0

16,0´2

-

 

 

- на 10 сеток

 

 

48,0

24,0´2

 

5.3.

Санузлы (с умывальником в шлюзах) мужские и женские

-

10,0

5,0´2

-

В женском санузле устанавливается 1 унитаз; в мужском - 1 унитаз, 1 писсуар

 

 

 

 

11,0

5,0+6,0

В женском санузле устанавливаются 2 унитаза; в мужском - 1 унитаз

 

Итого:

188,0

324,0

403,0

 

6.

Склады и инвентарные открытых сооружений

**)

**)

**)

 

7.

Помещения для уборочного инвентаря

***)

***)

***)

4 м2 на каждые 1000 м2 площади

6.

Буфет

48,0

62,0

80,0

Из расчета 1 место на 6 человек единовременной пропускной способности сооружений

6.3.

Места отдыха занимающихся

60,0

76,0

93,0

На 15 % вместимости крытых сооружений.

 

Итого:

108,0

138,0

173,0

 

7.

Пункт проката спортинвентаря

15,0

15,0

15,0

 

*) При расчете площади вестибюльной группы помещений и раздевальных открытых сооружений, единовременная пропускная способность открытых сооружений принята равной соответствующему показателю Приложения 10. МГСН 4.08-97.

**) Состав и количество помещений определяется заданием на проектирование.

***) Площадь и количество определяется заданием на проектирование с учетом общей площади помещений центра.

Примечание. Помещения досугового назначения следует принимать в соответствии с Приложением настоящего документа. Помещения методического назначения следует принимать в соответствии с Приложением настоящего документа

Помещения медико-восстановительного центра следует принимать в соответствии с Приложением Выпуска 1. Пособия к МГСН 4.08-97. «Общие положения. Сооружения приближенные к жилью. Физкультурно-оздоровительные клубы микрорайонов. Детско-юношеские спортивные школы».

Приложение 3.

Ориентировочный состав и площади помещений методического центра.

№№ п/п

Наименование помещения

Площадь помещения, м2

Примечание

1

Методический кабинет

30,0-40,0

 

2

Комната хранения методических пособий

10,0

 

3

Аудитория - лекционный зал на 80-120 мест*)

64,0-96,0

Оборудуется съемными креслами, киноэкраном и эстрадой, в зале выделяется место для киноустановки

4

Кулуары аудитории*)

32,0-48,0

С учетом организации выставок

5

Читальный зал на 20-30 мест*) с подсобными помещениями

48,0-52,0

Состав подсобных помещений следует определять с учетом табл. 29 МГСН 4.17-98

6

Компьютерный зал

20,0-40,0**)

 

7

Подсобные помещения центра

Не менее 20

С учетом хранения экспозиционного оборудования и подготовительных работ

*) Вместимость уточняется заданием на проектирование.

**) Площадь уточняется заданием на проектирование с учетом габаритов оборудования.

Приложение 4.

Ориентировочный состав и площади помещений для отдыха и развлечений

№ п/п

Наименование помещения

Минимальная площадь помещения, м2

Примечание

1

Клубная комната

30,0

Кол-во клубных комнат определяется заданием на проектирование

2

Гостиная

30,0

 

3

Зал игровых автоматов

24,0

 

4

Помещение настольных игр, в т.ч.:

- игровое помещение;

- игротека

20,0

6,0

С учетом размещения 4-х столов

5

Бильярдная, в т.ч.:

- бильярдный зал,

- инвентарная бильярдного зала

30,0

4,0

С учетом размещения одного стола

6

Помещение культурно-спортивных игр (шахматы, шашки, нарды и т.д.), в т.ч.:

- игровой зал,

- инвентарная

30,0

4,0

С учетом размещения 6 столов

6

Зимний сад

50,0

 

7

Танцевальный зал*)

1,1/на 1 место

Включая танцплощадку, зону ожидания, эстраду

Вариант: дискотека

1,2/на 1 место

Включая танцплощадку, с пультом диск жокея или эстраду, зону ожидания, буфет (бар)

8

Бар

24,0

 

*) Вместимость танцевального зала или дискотеки определяется заданием на проектирование.

Приложение 5.

Рекомендуемый состав и площади помещений открытого рекреационного бассейна комплекса физкультурно-рекреационных сооружений жилых районов

№№ п/п

Наименование помещения

Численность населения микрорайона, тыс. чел.

Примечание

30,0-50,0 Площади помещения, м2

51,0-70,0 Площади помещения, м2

71,0-90,0 Площади помещения, м2

1.

Группа помещений вестибюля

 

 

 

 

1.1.

Вестибюль

20,0

22,0

33,0

Площадь вестибюля рассчитана на 100 % вместимости бассейна

1.2.

Гардероб верхней одежды

6,0

6,0

7,0

Площадь гардероба рассчитана на 100 % вместимости бассейна

1.3.

Туалет (мужской и женский)

5,0´2

10,0

5,0´2

10,0

5,0´2

10,0

 

1.4.

Касса

3,0

3,0

3,0

 

1.5.

Регистратура

5,0

5,0

5,0

 

 

Итого:

44,0

46,0

58,0

 

2.

Группа помещений открытого рекреационного плавательного бассейна

 

 

 

 

2.1.

Открытая ванна рекреационного бассейна:

 

 

 

 

 

- ванна 160 м2,

- площадь ванны с обходными дорожками и открытыми площадками;

400,0

-

-

Размеры и форма ванны не регламентируются

 

- ванна 240 м2,

- площадь ванны с обходными дорожками и открытыми площадками;

-

600,0

-

 

 

- ванна 360 м2;

- площадь ванны с обходными дорожками и открытыми площадками

-

-

800,0

 

 

Итого:

400,0

600,0

800,0

 

2.2.

Вспомогательные помещения открытой ванны

 

 

 

 

2.2.1.

Инвентарная ванны

6,0

6,0

6,0

 

2.2.2.

Комната дежурного инструктора

8,0

8,0

8,0

Предусматривается выход непосредственно на обходную дорожку

2.2.3

Комната дежурной медсестры

12,0

12,0

12,0

Предусматривается выход непосредственно на обходную дорожку

2.2.4.

Раздевальные ванны рекреационного бассейна общие (мужские, женские), в т.ч.:

 

 

 

 

2.2.4.1.

Места для переодевания:

 

 

 

Предусматривается хранение одежды в двухярусных шкафах

 

- на 15 мест;

64,0

32,0´2

-

-

В помещении устанавливается 1 умывальник, 1 мойка для ног, 2 сушилки для волос в женской, 1 - в мужской раздевальной

 

- на 22 места;

-

92,0

46,0´2

-

В помещении устанавливается 1 умывальник, 2 мойки для ног, 3 сушилки для волос в женской, 2 - в мужской раздевальной

 

- на 33 места

-

-

138,0

69,0´2

В помещении устанавливается 2 умывальника, 2 мойки для ног, 3 сушилки для волос в женской, 2 - в мужской раздевальной

2.2.4.2.

Душевые:

- на 5 сеток;

24,0

12,0´2

-

-

 

 

- на 8 сеток;

-

40,0

20,0´2

-

 

 

- на 11 сеток

-

-

56,0

28,0´2

 

2.2.4.3.

Санузлы (с умывальником в шлюзах)

10,0

5,0´2

10,0

5,0´2

10,0

5,0´2

В помещении устанавливается 1 унитаз, 1 писсуар в мужском санузле; 1 унитаз в женском

2.2.5.

Сауна

30,0

15,0´2

30,0

15,0´2

40,0

20,0´2

Размещается смежно с раздевальными ванн оздоровительного и спортивного плавания. Дополнительные раздевальные, душевые, комната отдыха и контрастная ванна не предусматриваются

2.2.6.

Массажные

24,0

12,0´2

48,0

12,0´4

48,0

12,0´6

Размещается смежно с раздевальными рекреационной. Дополнительные раздевальные и душевые не предусматриваются

 

Итого:

178,0

246,0

318,0

 

3.

Буфет

18,0

28,0

32,0

Из расчета 1 место на 6 человек единовременной пропускной способности сооружений

4.

Места отдыха занимающихся

20,0

20,0

20,0

 

7.

Пункт проката спортинвентаря

15,0

15,0

15,0

 

 

Всего:

675,0

955,0

1243

Включая площадь застройки открытой ванны с обходными дорожками

6.

Склады и инвентарные оборудования водных аттракционов

*)

*)

*)

 

7.

Помещения для уборочного инвентаря

**)

**)

**)

 

*) Состав и количество помещений определяется заданием на проектирование, с учетом перечня оборудования.

**) Площадь и количество определяется заданием на проектирование с учетом общей площади помещений центра, исходя из нормы 4 м2 на каждые 1000 м2 площади.

Приложение 6.

Рекомендуемый состав и площади помещений здания вспомогательных помещений комплекса открытых физкультурно-рекреационных сооружений жилых районов

№№

п/п

Наименование помещения

Численность населения микрорайона, тыс. чел.

Примечание

30,0-50,0 Площади помещения, м2

51,0-70,0 Площади помещения, м2

71,0-90,0 Площади помещения, м2

1.

Группа помещений вестибюля

 

 

 

 

1.1.

Вестибюль

132,0

172,0

221,0

Площадь вестибюля рассчитана на 50 % единовременной пропускной способности открытых физкультурно-рекреационных сооружений

1.2.

Гардероб верхней одежды

30,0

38,0

49,0

Площадь гардероба рассчитана на 50 % вместимости открытых сооружений, на 100 % вместимости залов

1.3.

Туалет (мужской и женский)

5,0´2

10,0

5,0´2

10,0

5,0´2

10,0

 

1.4.

Касса

3,0

3,0

3,0

 

1.5.

Регистратура

5,0

5,0

5,0

 

 

Итого:

180,0

228,0

288,0

 

2.

Раздевальные площадок спортивных игр

 

 

 

На 50 % единовременной пропускной способности открытых сооружений (кроме площадок хоккея, мини-футбола)

2.1.

Раздевальные общие (мужские, женские) в т.ч.:

 

 

 

Предусматривается хранение одежды в двухъярусных шкафах

2.1.1.

Места для переодевания:

 

 

 

В помещении устанавливается 1 умывальник, 2 мойки для ног, 3 сушилки для волос в женской, 2 - в мужской раздевальной

2.1.1.1.

- на 29 мест,

104,0

52,0´2

-

-

2.1.1.2.

- на 43 места;

-

146,0

73,0´2

-

В помещении устанавливается 2 умывальника, 3 мойки для ног, 5 сушилок для волос в женской, 3 - в мужской раздевальной

2.1.1.3.

- 57 мест

-

-

172,0

86,0´2

В помещении устанавливается 2 умывальника, 3 мойки для ног, 6 сушилок для волос в женской, 3 - в мужской раздевальной

2.1.2. 2.1.2.1.

Душевые:

- на 6 сеток;

32,0

16,0´2

-

-

 

2.1.2.2.

- на 9 сеток;

-

48,0

24,0´2

-

 

2.1.2.3.

- на 12 сеток

-

-

64,0

32,0´2

 

2.1.3.

Санузлы (с умывальником в шлюзах) мужские и женские

10,0

5,0´2

-

-

В женском санузле устанавливается 1 унитаз; в мужском - 1 унитаз, 1 писсуар

 

 

-

11,0

5,0+6,0

-

В женском санузле устанавливаются 2 унитаза; в мужском - 1 унитаз, 1 писсуар

 

 

-

-

12,0

6,0´2

В женском санузле устанавливаются 2 унитаза; в мужском - 1 унитаз, 2 писсуара

 

Итого:

146,0

205,0

248,0

 

3.

Группа физкультурно-оздоровительных залов и помещений

 

 

 

 

3.1.

Зал общефизической подготовки

 

 

 

 

 

- 18´9 м;

162,0

-

-

Высота зала 4,8 м

 

- 18´12 м;

-

216,0

-

Высота зала 4,8 м

 

- 24´12 м

-

-

288,0

Высота зала 4,8 м

3.1.1.

Инвентарная

15,0

18,0

18,0

Минимальная высота помещения - 2,7 м

3.1.2.

Раздевальные зала общие (мужские и женские), в т.ч.:

 

 

 

Хранение одежды в двухъярусных шкафах

3.1.2.1.

- места для переодевания:

- на 8 мест,

34

17,0´2

-

-

В раздевальных устанавливаются: 1 ножная ванна; 1 сушилка для волос - в женской, 1 - в мужской раздевальной

 

- на 10 мест;

-

42,0

21,0´2

-

В раздевальных устанавливаются: 1 ножная ванна; 1 сушилка для волос - в женской, 1 - в мужской раздевальной

 

- на 13 мест

-

-

56,0

28,0´2

В раздевальных устанавливаются: 1 ножная ванна; 2 сушилка для волос - в женской, 1 - в мужской раздевальной

3.1.2.2.

Душевые:

- на 2 сетки;

12,0

6,0´2

12,0

6,0´2

-

2 душевых кабины проектируются с учетом использования инвалидами колясочниками

 

- на 3 сетки

-

-

16,0

8,0´2

2 душевых кабины проектируются с учетом использования инвалидами колясочниками

3.1.2.3.

Санузел (с умывальником в шлюзе)

10,0

5,0´2

10,0

5,0´2

10,0

5,0´2

Санузел проектируется с учетом использования инвалидами. В санузлах устанавливаются: 1 унитаз в женском санузле; 1 унитаз, 1 писсуар - в мужском

3.2.

Зал хореографии

- 9´9 м;

81,0

-

-

 

 

- 12´12 м;

-

144,0

-

 

 

- 15´15 м

-

-

225,0

 

3.2.1.

Инвентарная

8,0

8,0

8,0

Минимальная высота помещения - 2,7 м

3.2.2.

Раздевальные зала хореографии общие (мужские и женские) в т.ч.

 

 

 

Хранение одежды в двухъярусных шкафах

3.2.2.1.

- места для переодевания:

- на 8 мест;

34,0

17,0´2

-

-

В раздевальных устанавливаются: 1 ножная ванна; 1 сушилка для волос - в женской, 1 - в мужской раздевальной

 

- на 13 мест;

-

56,0

28,0´2

-

В раздевальных устанавливаются: 1 ножная ванна; 2 сушилка для волос - в женской, 1 - в мужской раздевальной

 

- на 18 мест

-

-

76,0

38,0´2

В раздевальных устанавливаются: 1 ножная ванна; 2 сушилка для волос - в женской, 1 - в мужской раздевальной

3.2.2.2.

Душевые:

- на 3 сетки;

10,0

5,0´2

-

-

 

 

- на 3 сетки;

-

16,0

8,0´2

-

 

 

- на 4 сетки

-

-

20,0

10,0´2

 

3.2.3.

Санузел (с умывальником в шлюзе)

10,0

5,0´2

10,0

5,0´2

10,0

5,0´2

В санузлах устанавливаются; 1 унитаз в женском санузле; 1 унитаз, 1 писсуар - в мужском

3.3.

Помещение тренажерной техники

50,0

75,0

100,0

Помещение используется спортсменами открытых сооружений. Отдельных раздевальных не предусматривается.

 

Итого:

426,0

607,0

827,0

 

4.

Буфет

48,0

62,0

80,0

1 место на 6 человек единовременной пропускной способности сооружений

5.

Места отдыха занимающихся

60,0

76,0

93,0

На 15 % вместимости крытых сооружений.

 

Итого:

108,0

138,0

173,0

 

6.

Пункт проката спортинвентаря

15,0

15,0

15,0

 

7.

Склады и инвентарные открытых сооружений

*)

*)

*)

 

8.

Помещения уборочного инвентаря

**)

**)

**)

 

*) Состав и количество помещений определяется заданием на проектирование, с учетом перечня оборудования.

**) Площадь и количество определяется заданием на проектирование с учетом общей площади помещений центра, исходя из нормы 4 м2 на каждые 1000 м2 площади.

Приложение 7.

Рекомендуемый состав и площади помещений лыжных баз массового катания комплексов открытых физкультурно-рекреационных сооружений жилых районов

№№

п/п

Наименование помещения

Единовременная пропускная способность, чел.

Примечание

Кол-во прокатных пар лыж

200

100

300

150

500

250

1.

Вестибюльная группа помещений

 

 

 

 

1.1.

Вестибюль - грелка, в т.ч.:

 

 

 

 

1.1.1.

- места отдыха и переодевания;

25,0

34,0

56,0

На 10 % единовременно занимающихся

1.1.2.

- кабины для переодевания;

1,5

0,75´2

1,5

0,75´2

1,5

0,75´2

 

1.1.3.

- гардероб верхней одежды (площадь за барьером);

20,0

30,0

50,0

На 100 % единовременно занимающихся

1.1.4.

- места для хранения сумок, рюкзаков, чемоданов

2,0

3,0

5,0

На 25 % пропускной способности базы

1.2.

Туалет (мужской и женский)

10,0

5,0+5,0

10,0

5,0+5,0

14,0

7,0+7,0

 

1.3.

Касса

2,5

2,5

2,5

 

 

Итого:

61,0

81,0

129,0

 

2.

Буфет

18,0

27,0

45,0

При 1 посадочном месте на 20 чел. Единовременной пропускной способности базы

3.

Кабинет врача

10,0

10,0

10,0

 

4.

Комната инструкторского и тренерского состава

9,0

9,0

9,0

Проектируется общей для мужчин и женщин с кабиной для переодевания

5.

Лыжехранилище, складские и хозяйственные помещения

 

 

 

 

5.1.

Лыжехранилище

16,0*)

16,0

20,0*)

22,0

34,0*)

36,0

 

5.2.

Помещение для выдачи и приема лыж

10,0

15,0

25,0

 

5.3.

Мастерская по ремонту лыж, палок, креплений

10,0

10,0

10,0

 

5.6.

Склад резервных лыж

5,0*)

6,0

8,0*)

9,0

13,0*)

15,0

При числе пар резервных лыж, равном 10 % от числа основного хранения. Допускается хранение резервных лыж в основном лыжехранилище с соответствующим увеличением его площади

5.7.

Помещение уборочного инвентаря

4,0

4,0

4,0

 

5.8.

Хозяйственная кладовая

8,0-10,0

8,0-10,0

8,0-10,0

 

5.9.

Склад инвентаря по уборке территории, оборудования и разметки дистанций

9,0

9,0

9,0

 

 

Итого:

62,0*)

65,0

74,0*)

79,0

93,0*)

99,0

 

 

Всего:

160,0*)

163,0

201,0*)

206,0

266,0*)

272,0

 

*) В числителе дроби показатели для хранения беговых лыж, в знаменателе - горных.

1. Вестибюль, гардероб. 2. Раздевальные, душевые залов. 3. Универсальный игровой спортивный зал. 4. Зал физкультурно-оздоровительных занятий. 5. Зал аэробики-хореографии, худ. гимнастики. 6. Зал борьбы, тренажерный зал. 8. Зал для игры в шоу-даун. 9. Инвентарная. 10. Ванна спортивно-оздоровительного плавания 11. Раздевальные бассейна. 12. Душевые бассейна. 13. Семейные раздевальные инвалидов. 14. Зал подготовительных занятий. 15. Комната дежурного инструктора. 16. Комната дежурной медсестры. 17. Раздевальные детской ванны. 18. Душевые детской ванны. 19. Детская ванна 20. Эксплуатационные службы. 21. Технические помещения. 22. Лаборатория. 23. Инвентарная открытых сооружений. 24. Раздевальные открытых сооружений. 25. Туалет. 26. Буфет. 27. Регистратура, касса. 28. Пункт проката спортинвентаря. 29. Администрация. 30. Тренерская. 31. Бытовые помещения. 32. Хозяйственная кладовая. 33. Помещения досугового назначения. 34. Помещения медико-оздоровительного центра. 35. Помещения методического центра.

Рис. 1. Функциональная схема физкультурно-оздоровительного центра жилого района на 30,0 - 50,0 тыс. жителей (компактное размещение).

Экспликация помещений

1. Вестибюль, гардероб. 2. Раздевальные командные. 3. Универсальный игровой спортивный зал. 4. Инвентарная. 5. Тренажерный зал. 6. Зрительская галерея. 7. Помещения досугового назначения. 8. Администрация. 9. Тренерская. 10. Бытовые помещения. 11. Хозяйственная кладовая. 12. Медпункт. 13. Туалет. 14. Буфет. 15. Регистратура, касса. 16. Раздевальные залов общие. 17. Зал физкультурно-оздоровительных занятий. 18. Зал аэробики-хореографии, художественной гимнастики. 19. Зал борьбы. 20. Зал для игры в шоу-даун. 21. Помещения методического назначения. 22. Технические помещения.

Рис. 2. Функциональные схемы корпусов физкультурно-спортивных залов при рассредоточенном размещении крытых сооружений физкультурно-оздоровительного центра жилого района. А. Корпус универсального зала. Б. Корпус специализированных залов.

Экспликация помещений

1. Вестибюль, гардероб. 2. Раздевальные. 3. Душевые. 4. Зал подготовительных занятий. 5. Учебно-тренировочная ванна 25´16 м. 6. Инвентарная. 7. Комната дежурной медсестры. 8. Комната дежурного инструктора. 9. Лаборатория. 10. Технические помещения. 11. Эксплуатационные службы. 12. Методический кабинет. 13. Хранение учебных пособий. 14. Тренерская. 15. Администрация. 16. Бытовые помещения. 17. Хозяйственная кладовая. 18. Буфет. 19. Туалет. 20. Холл /комната отдыха. 21. Медицинский кабинет. 22. Раздевальные детской ванной. 23. Душевые детской ванны. 24. Детская ванна.

Рис. 3. Функциональная схема корпуса бассейна с ванной спортивно-оздоровительного плавания при рассредоточенном размещении крытых сооружений физкультурно-оздоровительного центра жилого района.

Экспликация помещений

1. Вестибюль, гардероб. 2. Раздевальные, душевые залов. 3. Зал физкультурно-оздоровительных занятий. 4. Инвентарная. 5. Тренажерный зал. 6. Помещение настольного тенниса. 7. Раздевальные бассейна. 8. Душевые бассейна. 9. Семейные раздевальные инвалидов. 10. Ванна оздоровительного плавания. 11. Комната дежурного инструктора. 12. Комната дежурной медсестры. 13. Эксплуатационные службы. 14. Клубная комната. 15. Детская игровая. 16. Холл-комната отдыха. 17. Администрация. 18. Тренерская. 19. Бытовые помещения. 20. Хозяйственная кладовая 21. Туалет. 22. Буфет. 23. Пункт проката спортинвентаря. 24. Регистратура, касса. 25. Раздевальные открытых сооружений. 26. Инвентарная открытых спортсооружений. 27. Технические помещения. 28. Лаборатория.

Рис. 4. Схемы функциональных блоков физкультурно-оздоровительного центра жилого района при их рассредоточенном размещении во встроенно-пристроенных и пристроенных помещениях. А. Блок спортзала. Б. Блок плавательного бассейна. В. Блок раздевальных открытых сооружений.

Экспликация

1. Круговая беговая дорожка L = 400 м. 2. Футбольное поле. 3. Поле для хоккея/мини-футбола. 4. Блок площадок для тенниса 5. Площадка ручного мяча. 6. Площадки настольного тенниса. 7. Площадки баскетбола, волейбола 8. Площадки бадминтона. 9. Полоса препятствий. 10. Хозяйственная зона. 11. Питомник газона 12. Спортивный корпус физкультурно-оздоровительного центра. 13. Зоны отдыха занимающихся.

Рис. 5. Схема зонирования участка физкультурно-оздоровительного центра жилого района на 50 тыс. жителей при компактном размещении спортсооружений.

Рис. 6. Схема разметки площадки флорбола в зале 45´24 м

Рис. 7. Схемы разметки площадок для гандбола, баскетбола на колясках, ринг-тенниса для занятий инвалидов с поражением опорно-двигательного аппарата в зале спортивных игр 45´24 м.

Экспликация.

1. Гимнастическая стенка. 2. Тренажер «Стенка». 3. Тренажер «Гребля». 4. Тренажер «Ритм». 5. Место инструктора. 6. Дорожка для бега. 7. Велотренажер «Здоровье». 8. Станок напольный для упражнений в ходьбе. 9. Ковер. 10. Снаряды гимнастические подвесные. 11. Рукоход. 12. Гимнастическая стенка. 13. Гимнастическая скамейка. 14. Зеркало. 15. Станок пристенный.

Рис. 8. Варианты расстановки оборудования залов общефизической подготовки физкультурно-оздоровительных центров жилых районов с учетом занятий инвалидов-опорников. А. Зал 18´9 м. Б. Зал 21´12 м.

Рис. 9. Схемы размещения площадок для учебно-тренировочных занятий восточными единоборствами в зале 24´15 м.

Экспликация.

1. Стоп для игры в шоу-даун.

2. Зоны безопасности.

Рис. 10. Схема размещения оборудования в зале 12,0´8 м для игры в шоу-даун инвалидов с поражением зрения.

Экспликация

1. Ванна оздоровительного плавания 16,6´6,0 м.

2. Стационарные сиденья с подогревом.

3. Места хранения колясок.

4. Площадка для гимнастики.

5. Подъемник.

6. Поручни.

7. Входы из раздевальных с местами для инвалидов.

8. Лестница в мелкой части бассейна.

9. Лестница в глубокой части бассейна.

Рис. 11. А. Схема зала бассейна с ванной оздоровительного плавания размером 16,6´6 м (с учетом обеспечения занятий инвалидов-опорников). Б. Схема лестницы в мелкой части бассейна.

Экспликация

1. Коридор. 2. Вход в раздевальную. 3. Скамейка. 4. Поручни. 5. Выход в зал бассейна. 6. Душ. 7. Раковина. 8. Туалет. 9. Шкафчики для хранения одежды. 10. Места для колясок. 11. Зал бассейна.

Рис. 12. Примеры планировок семейных раздевальных для инвалидов с сопровождением. А. Раздевальная для инвалидов в спортцентре (Вайкоум, Великобритания). Б. Проект семейной раздевальной со сквозным проходом в ванну бассейна.

Экспликация

1. Приемная. 2. Кабинет врача. 3. Процедурная. 4. Кабинет механотерапии. 5. Кабинет лечебной гимнастики. 6. Зал лечебной гимнастики. 7. Кабинет тестирования с физической нагрузкой. 8. Кабинет аутотренинга. 9. Кабинет электро- и светолечения. 9а. Индивидуальные кабины электро- и светолечения. 9б. Помещение для обработки прокладок. 10. Массажная 10а. Индивидуальные массажные кабины. 10б. Раздевальная. 10в. Душевая. 11. Сауна. 11а. Камера сухого жара на 6 чел. 11б. Комната отдыха. 11в. Пульт управления. 11г. Микробассейн. 11д. Раздевальная с душевой и туалетом. 11е. Кладовая грязного и чистого белья. 11ж. Комната персонала сауны с кладовой. 12. Кабинет гидропатии. 12а. Кафедра с душевыми установками. 12б. Раздевальные душевого зала. 13. Кабинет подводного массажа. 14. Комната персонала. 15. Кладовая грязного и чистого белья. 16. Кладовая уборочного инвентаря. 17. Санузел.

Рис. 13. Функциональная схема медико-восстановительного центра.

Экспликация

1. Стол инструктора. 2. Шведская стенка. 3. Скамейка гимнастическая. 4. Зеркало. 5. Коврики (маты) для выполнения упражнений в положении лежа. 6. Шкаф для гимнастического оборудования. 7. Скамейки с крючками для переодевания. 8. Туалет. 9. Душевая кабина. 10. Места установки аппаратов механотерапии. 11. Стол врача. 12. Смотровая кушетка. 13. Умывальник. 14. Шкаф медицинский. 15. Электрокардиограф. 16. Спирограф. 17. Велоэргометр. 18. Фонограф. 19. Душевая кабина. 20. Уборная. 21. Зона разворота инвалидной коляски.

Рис. 14. Схемы планировок помещений медико-восстановительного центра. А. Зал лечебной физкультуры с помещением для переодевания. Б. Кабинет механотерапии. В. Кабинет тестирования с физической нагрузкой.

Экспликация.

1. Душ Шарко. 2а. Восходящий душ. 2б. Циркулярный душ. 2в. Дождевой душ. 3. Пульт управления. 4. Откидные поручни. 5. Ванна подводного массажа. 5а. Аппарат для подводного массажа. 6. Подъемник. 7. Умывальник. 8. Банкетка. 9. Камера сухого жара. 10. Микробассейн. 12. Душевая кабина. 13. Умывальник. 14. Туалет. 15. Комната отдыха. 16. Раздевальная. 17. Коляска инвалида-опорника.

Примечание. Схемы планировки кабинетов гидропатии и подводного массажа даны с учетом использования инвалидами-опорниками.

Рис. 15. Схемы планировок помещений медико-восстановительного центра. А. Кабинет гидропатии. Б. Кабинет подводного массажа. В. Сауна.

Экспликация сооружений

1. Открытые плоскостные физкультурно-рекреационные сооружения. 2. Детский физкультурно-рекреационный городок. 3. Открытые специализированные сооружения для инвалидов различных категории. 4. Здание вспомогательных сооружений открытых плоскостных сооружений (см. рис. 27). 5. Открытый физкультурно-рекреационный бассейн (см. рис. 26). 6. Лыжные трассы, трассы оздоровительного бега, ходьбы, велотрассы. 7. Здание лыжной базы. 8. Наплавной бассейн для обучения плаванию, оздоровительного плавания. 9. Зона пляжа.

Рис. 16. Функциональная схема физкультурно-рекреационного комплекса жилого района.


Рис. 17. Схемы специализированных открытых физкультурно-спортивных сооружений для занятий легкой атлетикой инвалидов различных групп

Рис. 18. Схемы специализированных открытых физкультурно-спортивных сооружений для инвалидов различных групп. Места для прыжков инвалидов с дефектами зрения.

Рис. 19. Схемы специализированных открытых физкультурно-спортивных сооружений для спортивных и рекреационных игр инвалидов различных групп.

Рис. 20. Рекреационные сооружения. Площадки подвижных игр

Рис. 21. Схемы сооружений для роллерспорта и скэйтбординга.

Рис. 22. Габаритные схемы различных устройств для роллерспорта


1. Две четверть-трубы. 2. Плоское дно-соединение. 3. Вертикальные плоскости. 4. Верхние горизонтальные площадки. 5. Грань соединения площадки с вертикальной поверхностью металлическая труба диаметром 50-60 мм. 6. Верхний пластмассовый слой покрытия.

1. Труба диаметром 60 мм. 2. Опоры и распорки из четырехгранных труб. 3. Поверхность катания - дюралюминий 4 мм. 4. Приставная лестница. 5. Верхняя платформа. 6. Перила.

Рис. 23. Оборудование для скейтинга и роллерспорта. Примеры решений рамп для выполнения трюков. А. Рампа в деревянных конструкциях. Б. Рампа в металлических конструкциях (Хабитспарк, Хависбек, ФРГ).

Рис. 24. Оборудование для скейтинга и роллерспорта. Примеры решений рамп для выполнения трюков. Рампы со сложными профилями. А. С зонами разной высоты. Б. Изогнутая форма. В. Соединение двух рамп. Г. Соединение трех рамп.

Рис. 25. Рекреационные сооружения. Сооружения для роллерспорта: скоростного бега, фигурного и массового катания на роликовых коньках, роллерхоккея.

Экспликация помещений

1. Вестибюль, гардероб. 2. Раздевальные бассейна. 3. Душевые бассейна. 4. Открытый рекреационный бассейн. 5. Солярий. 6. Комната дежурного инструктора. 7. Комната дежурной медсестры. 8. Лаборатория. 9. Сауна. 10. Массажные. 11. Медпункт 12. Холл-комната отдыха. 13. Администрация. 14. Тренерская. 15. Бытовые помещения. 16. Хозяйственная кладовая. 17. Туалет. 18. Буфет. 19. Пункт проката спортинвентаря. 20. Технические помещения.

Рис. 26. Функциональная схема открытого рекреационного бассейна

Экспликация помещений

1. Вестибюль, гардероб. 2. Раздевальные, душевые залов.

3. Зал ОФП. 4. Зал хореографии 5. Тренажерный зал.

6. Инвентарная. 7. Раздевальные открытых плоскостных сооружений.

8. Холл-комната отдыха. 9. Медпункт. 10. Администрация.

11. Тренерская. 12. Бытовые, помещения. 13. Хозяйственная кладовая.

14. Туалет. 15. Буфет. 16. Пункт проката спортинвентаря.

17. Инвентарные и складские помещения открытых спортсооружений.

18. Технические помещения.

Рис. 27. Функциональная схема здания (павильона) вспомогательных помещений открытых плоскостных сооружений физкультурно-рекреационного комплекса жилого района




Rambler's Top100 Яндекс цитирования
  Copyright © 2008-2026, www.docload.ru