Бесплатная библиотека стандартов и нормативов www.docload.ru

Все документы, размещенные на этом сайте, не являются их официальным изданием и предназначены исключительно для ознакомительных целей.
Электронные копии этих документов могут распространяться без всяких ограничений. Вы можете размещать информацию с этого сайта на любом другом сайте.
Это некоммерческий сайт и здесь не продаются документы. Вы можете скачать их абсолютно бесплатно!
Содержимое сайта не нарушает чьих-либо авторских прав! Человек имеет право на информацию!

 

ПРАВИТЕЛЬСТВО МОСКВЫ

МОСКОМАРХИТЕКТУРА

РЕКОМЕНДАЦИИ
ПО ПРОЕКТИРОВАНИЮ
КРИЗИСНЫХ ЦЕНТРОВ ДЛЯ ЖЕНЩИН

2003

ПРЕДИСЛОВИЕ

1. РАЗРАБОТАНЫ: ГУП МНИИП «Моспроект-4» (архитекторы Любомудрова К.И., Кряжевских М.А., инженер Тихомирова И.Б.).

2. ПОДГОТОВЛЕНЫ К УТВЕРЖДЕНИЮ И ИЗДАНИЮ Управлением перспективного проектирования и нормативов Москомархитектуры (архитектор Шалов Л.А., инженер Щипанов Ю.Б.).

3. СОГЛАСОВАНЫ: Комитетом по делам семьи и молодежи г. Москвы, Москомархитектурой.

4. УТВЕРЖДЕНЫ И ВВЕДЕНЫ В ДЕЙСТВИЕ указанием Москомархитектуры от 14.03.03 № 14

СОДЕРЖАНИЕ

ВВЕДЕНИЕ

Кризисные центры для женщин (далее КЦ) являются реабилитационными учреждениями, обеспечивающими оказание психологической, социальной, медицинской и правовой помощи несовершеннолетним беременным и матерям при возникновении конфликтной ситуации в семье и женщинам, пострадавшим от насилия (физического, психологического и сексуального).

Назначением КЦ является создание условий для психологической реабилитации обратившейся женщины и разрешения возникшей кризисной ситуации в ее семье как в условиях стационара, так и консультативного обслуживания.

КЦ следует предусматривать в каждом административном округе.

КЦ осуществляет свою деятельность на основе добровольного обращения женщин и гарантирует соблюдение конфиденциальности, прав и свобод обратившихся.

1. ОБЛАСТЬ ПРИМЕНЕНИЯ

1.1. Настоящие «Рекомендации» разработаны для г. Москвы в дополнение к нормативным документам в строительстве, действующим на ее территории, и распространяются на проектирование новых и реконструкцию существующих помещений КЦ.

1.2. Настоящие «Рекомендации» устанавливают основные положения и требования к размещению, участку, территории, архитектурно-планировочным решениям и инженерному оборудованию КЦ.

1.3. Проектирование КЦ должно вестись в соответствии с положениями настоящих «Рекомендаций», а также требованиями нормативно-методических документов в строительстве, действующих на территории г. Москвы.

2. НОРМАТИВНЫЕ ССЫЛКИ

В настоящих «Рекомендациях» приведены ссылки на следующие нормативно-методические документы:

СНиП 10.01-94. «Система нормативных документов в строительстве. Основные положения»;

СНиП 2.08.02-89* «Общественные здания и сооружения»;

СНиП 21-01-97* «Пожарная безопасность зданий и сооружений»;

СНиП 2.07.01-89* «Градостроительство. Планировка и застройка городских и сельских поселений»;

НПБ 88-2001 «Установка пожаротушения и сигнализации. Нормы и правила проектирования»;

СНиП 2.04.05-91* «Отопление, вентиляция и кондиционирование воздуха»;

СНиП 2.04.01-85* «Внутренний водопровод и канализация зданий»;

СанПиН 2.2.1/2.1.1.1076-01 «Гигиенические требования к инсоляции и солнцезащите помещений жилых и общественных зданий и территорий»;

СН 441-72* «Указания по проектированию ограждений площадок и участков предприятий, зданий и сооружений»;

МГСН 4.06-96 «Общеобразовательные учреждения»;

МГСН 1.01-99 «Нормы и правила проектирования, планировки и застройки г. Москвы»;

МГСН 4.12-97 «Лечебно-профилактические учреждения»;

МГСН 2.06-99 «Естественное, искусственное и совмещенное освещение»;

МГСН 2.01-99 «Энергосбережение в зданиях»;

«Рекомендации по проектированию образовательных учреждений для детей, нуждающихся в психолого-педагогической и медико-социальной помощи», М., 2000 г.;

Пособие по проектированию учреждений здравоохранения к СНиП 2.08.02-89*.

3. ОБЩИЕ ПОЛОЖЕНИЯ

3.1. Целью создания КЦ является оказание психологической, социальной, юридической, медицинской, педагогической, бытовой помощи женщинам, находящимся в кризисном и опасном для физического и психического здоровья состоянии и подвергшимся насилию, за исключением лиц: с тяжелыми травмами и заболеваниями, требующими активного медицинского вмешательства; психических больных; находящихся в состоянии алкогольного и наркотического опьянения; состоящих на наркологическом учете; совершивших преступления; скрывающихся от правосудия или находящихся под следствием.

3.2. Основными задачами КЦ являются:

- оказание психолого-коррекционной помощи женщинам на основе индивидуальной медико-социальной диагностики;

- снятие кризисного психофизического состояния у женщин, оказавшихся в тяжелой жизненной ситуации;

- оказание психолого-коррекционной помощи семьям женщин для разрешения конфликтных ситуаций;

- создание необходимых условий проживания в стационаре;

- развитие у несовершеннолетних матерей чувства ответственности за своего ребенка;

- социальная и бытовая адаптация несовершеннолетних матерей после рождения ребенка;

- организация трудотерапии в соответствии с индивидуальными особенностями несовершеннолетних;

- оказание бытовой помощи молодым мамам в первое время после появления ребенка;

- организация мероприятий, направленных на общее укрепление организма несовершеннолетних;

- обеспечение юридической защиты, охраны прав и законных интересов женщин, оказавшихся в кризисных ситуациях;

- оказание психологической и социальной помощи семьям, после разрешения кризисной ситуации.

3.3. Контингент женщин, с которым осуществляет работу КЦ, составляют:

- несовершеннолетние беременные;

- несовершеннолетние матери с новорожденными;

- женщины, оказавшиеся в кризисной ситуации - пострадавшие от насилия - в возрасте от 18 лет и старше;

- семьи несовершеннолетних и совершеннолетних женщин, оказавшихся в кризисной ситуации.

3.4. КЦ проводит работу с контингентом женщин в самостоятельных отделениях, каждое из которых имеет свой режим работы:

- отделение, обслуживающее беременных несовершеннолетних (пренатальное отделение) и отделение, обслуживающее несовершеннолетних матерей с новорожденными (послеродовое) - работают в режиме стационара;

- отделение, обслуживающее женщин, пострадавших от насилия - работают в консультативном режиме;

- работа с семьями во всех отделениях осуществляется консультативно.

3.5. Время пребывания в учреждении определяется в соответствии с действующим «Положением о кризисном центре для женщин»:

- в пренатальном отделении - не более 3 месяцев;

- в послеродовом отделении - не более 3 месяцев после выписки из роддома;

- консультативное обслуживание в отделении женщин, пострадавших от насилия - не более одного месяца.

3.6. Основанием для приема в КЦ является направление префектуры административного округа и районной управы, письменное заявление, наличие паспорта и постоянной регистрации в Москве. При поступлении в стационарные отделения КЦ заключается договор с женщиной об условиях пребывания, правах и обязанностях проживающих и об обязательной работе с психологом, юристом, участии в тренингах.

Несовершеннолетние беременные при приеме должны иметь на руках справку о постановке на учет в женской консультации и медицинскую карту.

Несовершеннолетние матери при приеме должны иметь на руках справку о рождении ребенка, личную медицинскую карту и медицинскую карту ребенка.

3.7. КЦ взаимодействует с органами здравоохранения, внутренних дел, образования, социальной защиты, префектурами административных округов, районными управами, а также неправительственными организациями и объединениями в целях эффективной социальной поддержки женщин, находящихся в кризисной ситуации.

3.8. КЦ может проектироваться как комплексный центр (далее ККЦ), включающий все отделения, необходимые для полноценного обслуживания всего вышеперечисленного контингента женщин, оказавшихся в тяжелой жизненной ситуации.

Отделение для несовершеннолетних матерей с новорожденными (послеродовое) не может быть организовано как отдельное учреждение, а должно являться составной частью ККЦ.

Некоторые отделения КЦ могут быть выделены в самостоятельные учреждения:

- пренатальный центр (далее КЦ-1);

- центр для женщин, пострадавших от насилия (далее КЦ-2).

3.9. Оптимальная вместимость стационара в ККЦ - 60 чел. (30 чел. - пренатальное отделение, 30 чел. - послеродовое отделение (без учета новорожденных). Пропускная способность отделения для женщин, подвергшихся насилию - 50 чел. в день.

Оптимальная вместимость КЦ-1 - не более 30 чел.

Оптимальная пропускная способность КЦ-2 - не более 50 чел. в день.

3.10. Состав и площади помещений КЦ-1, КЦ-2 и ККЦ должны определяться в соответствии с Разделом 5 настоящих Рекомендаций и уточняются в каждом конкретном случае заданием на проектирование, а также с учетом их компоновки и принятых объемно-планировочных решений.

4. ТРЕБОВАНИЯ К РАЗМЕЩЕНИЮ, УЧАСТКУ И ТЕРРИТОРИИ

4.1. КЦ следует размещать в селитебной зоне, в 10 - 20-ти минутной доступности до общественного транспорта.

4.2. Здания ККЦ следует размещать на обособленных земельных участках.

КЦ-1 и КЦ-2 возможно располагать на 1 этажах существующих жилых и общественных зданий.

КЦ-1 использует в качестве участка для прогулок дворовые территории.

KЦ-2, в силу специфики выполняемых функций, не нуждается в выделении участка.

4.3. Площадь участка ККЦ принимается из расчета 80 - 100 м2 на 1 место в стационаре. В том случае, если ККЦ располагается в непосредственной близости от зеленой зоны, площадь участка может быть уменьшена и составит 60 - 80 м2.

4.4. На участке ККЦ предусматриваются следующие зоны:

- отдыха;

- хозяйственная.

4.5. Размеры и состав зон участков в зависимости от объемно-планировочного решения уточняются в процессе проектирования с учетом положений настоящего раздела.

4.6. В зоне отдыха ККЦ следует предусматривать скамейки для отдыха, асфальтированные тропинки для прогулки мам с колясками, малые архитектурные формы, навесы для прогулок в плохую погоду. Территория должна быть оборудована газонами и цветниками.

4.7. Хозяйственная зона должна размещаться со стороны производственных помещений пищеблока и иметь отдельный въезд. На ее территории размещаются мусоросборники, гараж, навесы для инвентаря и оборудования и т.п. Необходимость и вместимость гаража в каждом конкретном случае определяется заданием на проектирование, исходя из местных условий.

4.8. Территория ККЦ должна иметь два въезда и прохода, один - центральный, второй - хозяйственный.

4.9. Земельный участок ККЦ должен иметь по всему периметру решетчатое ограждение высотой 1 - 1,5 м.

4.10. Площадь озеленения должна составлять 40 - 50 % от общей площади участка ККЦ.

4.11. Участки ККЦ должны быть освещены в соответствии с требованиями СНиП 23-05-95.

4.12. Планировка участков должна обеспечивать подъезды с твердым покрытием к хозяйственной зоне, подъезды пожарных машин ко всем зданиям и блокам, а также объезды вокруг них в соответствии с СНиП 21-01-97*.

4.13. Для автомашин сотрудников ККЦ следует предусматривать открытую стоянку в соответствии с требованиями МГСН 1.01-99.

5. ТРЕБОВАНИЯ К АРХИТЕКТУРНО-ПЛАНИРОВОЧНЫМ РЕШЕНИЯМ И ИНЖЕНЕРНОМУ ОБОРУДОВАНИЮ

Общие требования.

5.1. В состав КЦ входят следующие функциональные группы помещений:

- вестибюльная (ККЦ, КЦ-1, КЦ-2);

- приемного отделения (ККЦ, КЦ-1, КЦ-2);

- социально-правовой помощи (ККЦ, КЦ-1, КЦ-2);

- консультативного отделения по работе с женщинами, пострадавшими от насилия (ККЦ, КЦ-2);

- стационарного пренатального отделения (ККЦ, КЦ-1);

- стационарного послеродового отделения (ККЦ);

- реабилитационная (психолого-коррекционная, медицинская, физкультурно-оздоровительная, трудовой терапии) (ККЦ, КЦ-1);

- питания (ККЦ, КЦ-1);

- отделения организационно-методической и просветительской работы (ККЦ);

- административно-бытовая (ККЦ, КЦ-1, КЦ-2).

Состав функциональных групп помещений в учреждении определяется типом КЦ.

Архитектурно-планировочные решения КЦ должны учитывать требования функционального зонирования помещений с учетом осуществляемой в них деятельности.

5.2. При проектировании помещений КЦ рекомендуется пользоваться схемами планировок, приведенными в Приложениях. Рекомендуемые площади отдельных помещений в зависимости от конкретных планировочных и конструктивных решений могут быть изменены (уменьшены или увеличены) не более чем на 15 %.

5.3. Функциональные группы помещений ККЦ могут размещаться либо в одном здании, непосредственно примыкая друг к другу, либо в отдельных корпусах или блоках, соединенных отапливаемыми переходами. При этом должны предусматриваться пожарные отсеки площадью не более 5000 м2, разделяемые противопожарными стенами 1-го типа (в соответствии с требованиями СНиП 2.08.02-89*), а из каждого пожарного отсека должно быть предусмотрено не менее двух эвакуационных выходов, один из выходов допускается предусматривать в соседний отсек.

5.4. Учитывая специфику разного контингента обслуживаемых и различный режим работы отделений в ККЦ, рекомендуется размещать их изолированно друг от друга с самостоятельными выходами на участок. Функциональная схема планировки ККЦ представлена на Рис. 1.

5.5. Функциональные схемы планировок КЦ-1 и КЦ-2 представлены соответственно на Рис. 2 и Рис. 3.

5.6. Здания ККЦ рекомендуется проектировать, как правило, не выше 4 этажей. Для затесненных участков застройки допускается увеличивать высоту до 5 этажей.

5.7. В ККЦ пренатальное и послеродовое отделения следует располагать не выше 2 этажа.

5.8. Объемно-планировочная структура зданий ККЦ должна обеспечивать оптимальные условия осуществления протекающих в них функциональных процессов, отражать специфику учреждения и обеспечивать комфортные условия эксплуатации и необходимую связь с участком.

УСЛОВНЫЕ ОБОЗНАЧЕНИЯ

Функциональные связи:

                                      - Группы помещений амбулаторного отделения

                                      - Группы помещений пренатального отделения

                                      - Группы помещений послеродового отделения

                                      - Служебные связи групп помещений ККД

Рис. 1. Функциональная схема планировки комплексного кризисного центра для женщин (ККЦ).

УСЛОВНЫЕ ОБОЗНАЧЕНИЯ

Функциональные связи:

                                                    - Группы помещений центра

                                                    - Служебные помещения

Рис. 2. Функциональная схема планировки пренатального центра (КЦ-1).

УСЛОВНЫЕ ОБОЗНАЧЕНИЯ

Функциональные связи:

                                                    - Группы помещений центра

                                                    - Служебные помещения

Рис. 3. Функциональная схема планировки центра для женщин, пострадавших от насилия (КЦ-2).

5.9. Ширина лестничных маршей в ККЦ должна быть не менее 1,35 м.

Ширину дверей помещений в ККЦ, КЦ-1 и КЦ-2 следует принимать не менее 0,9 м согласно «Пособию по проектированию учреждений здравоохранения к СНиП 2.08.02-89*».

Ширину коридоров в ККЦ в группах помещений административно-бытового и методического назначения следует принимать не менее 1,4 м; а во всех группах помещений, рассчитанных на работу с обслуживаемым контингентом - не менее 1,8 м.

Ширину лестничных маршей и ширину коридоров в КЦ-1 и КЦ-2 допускается принимать равной ширине лестничных маршей и ширине коридоров существующего материального фонда.

5.10. Высота наземных этажей здания ККЦ должна быть не менее 3,3 м (от пола до пола вышележащего этажа).

Высоту помещений КЦ-1 и КЦ-2, встраиваемых в жилые дома, допускается принимать равной высоте жилых помещений.

5.11. Внутренняя отделка помещений КЦ должна быть выполнена из материалов, разрешенных для применения органами Госсанэпиднадзора Минздрава РФ, допускающих влажную уборку, а также применение дезинфицирующих средств.

5.12. В помещениях гостиных КЦ рекомендуется организовывать уголки релаксации с зелеными насаждениями, фонтанчиками, аквариумами и т.д.

5.13. Естественное освещение в помещениях КЦ следует проектировать в соответствии с требованиями МГСН 2.06-99.

5.14. Все основные помещения трудотерапии в ККЦ и КЦ-1 должны иметь КЕО не менее 1,5 на поверхности столов и освещаться боковым светом с левой стороны.

5.15. Допускается не предусматривать естественного освещения:

- в коммуникациях и коридорах, не являющихся путями эвакуации;

- в санитарных узлах для персонала, комнатах личной гигиены женщин;

- в столовой для персонала;

- в гардеробах верхней одежды персонала;

- в колясочной;

- в кладовых инвентаря, комнатах хранения предметов уборки;

- в помещениях технических служб.

В зависимости от архитектурно-планировочного решения допускается проектировать с искусственным освещением санитарные узлы (при соблюдении необходимой кратности обмена воздуха).

5.16. Санитарные узлы и туалетные комнаты в КЦ проектируются с учетом специфики работы каждого подразделения. В пренатальном и послеродовом отделениях рекомендуется проектировать совмещенные санитарные узлы при каждой жилой комнате, в состав оборудования которых следует включать: унитаз, умывальник, душ и подставку для детской ванночки (для послеродового), биде. В консультативном отделении санитарные узлы проектируются в соответствии с «Пособием по проектированию учреждений здравоохранения» к СНиП 2.08.02-89*.

5.17. В комнатах хранения уборочного инвентаря следует предусматривать умывальник и слив.

5.18. Инсоляцию помещений, в которых находятся обслуживаемые женщины, следует предусматривать в соответствии с требованиями СП 2.2.1/2.1.1.1076-01.

5.19. Отопление и вентиляцию зданий ККЦ следует проектировать в соответствии с требованиями СНиП 2.04.05-91*, МГСН 4.06-96, МГСН 2.01-99. Канализацию, горячее и холодное водоснабжение следует проектировать в соответствии с требованиями СНиП 2.04.01-85* «Внутренний водопровод и канализация зданий».

5.20. Энергоснабжение, электрооборудование, электрическое освещение здания и наружное освещение территории следует предусматривать в соответствии с требованиями МГСН 2.06-99, МГСН 4.06-96, МГСН 2.01-99.

5.21. Здания ККЦ должны проектироваться с учетом максимального энергосбережения в соответствии с требованиями МГСН 2.01-99.

5.22. Здания ККЦ следует проектировать не менее II степени огнестойкости в соответствии с СНиП 21-01-97*.

5.23. В зданиях ККЦ должна быть предусмотрена автоматическая пожарная сигнализация в соответствии с требованиями НПБ 88-2001 «Установка пожаротушения и сигнализации. Нормы и правила проектирования». Перечень помещений, в которых необходимо предусматривать автоматическую пожарную сигнализацию, следует определять в соответствии с МГСН 4.06-96, МГСН 4.12-97 и МГСН 4.15-98. Сигнал о срабатывании системы АПС (автоматической пожарной сигнализации) выводится в помещение с круглосуточным пребыванием персонала.

5.24. На путях эвакуации должно быть предусмотрено аварийное и эвакуационное освещение, проектируемое в соответствии с требованиями СНиП 21-01-97* и СНиП 23-05-95.

Вестибюльная группа помещений.

5.25. Рекомендуемые составы помещений вестибюльных групп ККЦ, КЦ-1 и КЦ-2 приведены в таблице 5.1.

5.26. ККЦ имеет в своем составе центральный вестибюль с гардеробом, обслуживающий одновременно приемное отделение, консультативное отделение, пренатальное отделение, послеродовое отделение и посетителей - представителей семей обслуживаемых женщин. При этом пренатальное и послеродовое отделения имеют еще отдельные входные группы помещений.

5.27. Гардероб в КЦ-1 рассчитан на обслуживание посетителей. Гардероб в КЦ-2 - обслуживаемых женщин и посетителей.

5.28. Хранение верхней одежды проживающих в стационарных отделениях ККЦ и КЦ-1 предусматривается в жилых помещениях в специально отведенных местах.

5.29. Гардеробы в КЦ-1, КЦ-2 и центрального вестибюля ККЦ рекомендуется оборудовать вешалками консольного типа.

5.30. Гардероб для верхней одежды персонала рекомендуется предусматривать в отдельном помещении при центральном вестибюле ККЦ, а также в отдельных помещениях при вестибюлях КЦ-1 и КЦ-2.

5.31. В составе входной группы помещений послеродового отделения ККЦ следует предусматривать помещения для хранения колясок. Для удобства пользования рекомендуется предусматривать два таких помещения.

5.32. В состав вестибюльных и входных групп помещений следует включать пост дежурного вахтера. В ККЦ при главном вестибюле предусматривается помещение для отдыха вахтера.

5.33. Входы в здания КЦ следует оборудовать тамбурами.

Таблица 5.1.

Рекомендуемые состав и площади помещений вестибюльной группы.

№№ п/п

Наименование помещений

Площадь помещений, м2

Примечания

Ha 1 место

Всего

1

2

3

4

5

Центральный вестибюль в ККЦ

1.

Вестибюль

0,38

Не менее 20

С учетом численности персонала и посетителей

2.

Гардероб для верхней одежды обслуживаемых женщин консультативного отделения и посетителей

0,1

Не менее 10

 

3.

Гардероб для верхней одежды персонала

0,1

Не менее 6

 

4.

Помещение дежурного администратора (охраны)

-

6

 

5.

Комната хранения предметов уборки

-

4

 

6.

Санузел с умывальником в шлюзе

-

3

 

Входная группа пренатального отделения в ККЦ

1.

Холл

-

10

 

2.

Пост дежурного вахтера

-

3

 

3.

Комната хранения предметов уборки

-

4

 

4.

Санузел с умывальником в шлюзе

-

3

 

Входная группа послеродового отделения в ККЦ

1.

Холл

-

10

 

2.

Помещения для хранения колясок

-

15´2

 

3.

Пост дежурного вахтера

-

3

 

4.

Комната хранения предметов уборки

-

4

 

5.

Санузел с умывальником в шлюзе

-

3

 

КЦ-1

1.

Вестибюль с гардеробом для посетителей

0,38

Не менее 15

 

2.

Помещение дежурного администратора (охраны)

-

6

 

3.

Гардероб для верхней одежды персонала

0,1

Не менее 6

 

4.

Санузел с умывальником в шлюзе

-

3

 

5.

Комната хранения предметов уборки

-

4

 

КЦ-2

1.

Вестибюль с гардеробом для обслуживаемых женщин и посетителей

0,38

Не менее 15

 

2.

Помещение дежурного администратора (охраны)

-

3

 

3.

Гардероб для верхней одежды персонала

0,1

Не менее 6

 

4.

Санузел с умывальником в шлюзе

-

3

 

5.

Комната хранения предметов уборки

-

4

 

Приемное отделение.

5.34. Рекомендуемые состав и площади помещений приемного отделения различных типов КЦ приведены в таблице 5.2.

5.35. Приемное отделение выполняет следующие задачи:

- регистрация и первичный осмотр состояния принимаемых;

- оказание первичной психологической и иной помощи;

- направление в соответствующее отделение центра;

- направление, при наличии показаний, на лечение в стационарное медицинское учреждение;

- передача информации о случаях насилия в правоохранительные органы.

5.36. В ККЦ кабинеты приемного отделения рассчитаны на обслуживание всего контингента центра.

5.37. Помещения приемного отделения следует располагать непосредственно вблизи от вестибюльной группы.

5.38. Кабинеты приемного отделения рассчитаны на индивидуальную работу с контингентом КЦ.

5.39. В состав оборудования кабинетов специалистов следует включать: стол специалиста, компьютерный стол, два стула, стеллажи, умывальник.

Таблица 5.2.

Рекомендуемые состав и площади помещений приемного отделения.

№№ п/п

Наименование помещений

Площадь помещений, м2

Примечания

1

2

3

4

Приемное отделение в ККЦ

1.

Кабинет заведующего отделением

12

 

2.

Кабинет терапевта

12

 

3.

Кабинет психотерапевта (психолога)

12

 

4.

Кабинет социального работника

12

 

5.

Кабинет гинеколога

12

Приложение, Рис. П.1.

6.

Санузел с умывальником в шлюзе

3

 

Приемное отделение в КЦ-1

1.

Кабинет психотерапевта (психолога)

12

 

2.

Кабинет социального работника

12

 

Приемное отделение в КЦ-2

1.

Кабинет терапевта

12

 

2.

Кабинет психотерапевта (психолога)

12

 

3.

Кабинет гинеколога

12

Приложение, Рис. П.1.

Отделение социально-правовой помощи.

5.40. Рекомендуемые состав и площади помещений отделения социально-правовой помощи различных типов КЦ приведены в таблице 5.3.

5.41. Основное назначение отделения:

- оказание срочной информационно-консультативной помощи по телефону доверия в течение суток;

- осуществление психологического и правового консультирования;

- содействие в принятии юридического решения по нормализации дальнейшего проживания в семье;

- оказание юридической помощи в оформлении документов, необходимых для решения социальных вопросов;

- работа с органами опеки и попечительства (районной управы) по изменению отношения семьи к проблеме несовершеннолетней беременной или матери и содействию возвращения в семью;

- оказание поддержки несовершеннолетней беременной в случае конфликта по месту учебы;

- проведение консультирования и психологической коррекции виновников насилия;

- оказание юридической помощи и содействие правовой защите обратившихся женщин.

5.42. В ККЦ кабинеты данного отделения рассчитаны на обслуживание всего контингента центра.

5.43. Все кабинеты специалистов рассчитаны на работу как с самой женщиной, так и с ее семьей. Рекомендуемый состав оборудования: стол специалиста, компьютерный стол, стеллажи, журнальный столик с 3 креслами (Приложение, Рис. П.2.).

5.44. В состав отделения входит кабинет срочной психологической помощи по телефону доверия, который функционирует круглосуточно. В состав оборудования кабинета входят: стол специалиста, компьютерный стол, стеллаж, диван. При кабинете предусматривается санитарный узел, в оборудование которого входят: унитаз, умывальник, душ.

5.45. Кабинет социальных работников не рассчитан на прием посетителей. В состав его оборудования входят письменные столы (по числу работающих специалистов), компьютерные столы, стеллажи.

5.46. В состав отделения входят помещения «Семейного клуба» (Приложение, Рис. П.3.). Основное назначение его - создание условий для налаживания нормальных отношений в семье, находящейся в кризисной ситуации. Рекомендуемый состав оборудования: обеденный стол со стульями, шкаф с посудой, уголок отдыха с мягкой мебелью, рабочий стол с микроволновой печью и чайником, раковина. «Семейный клуб» рассчитан на пребывание группы до 6 чел. При «Семейном клубе» следует предусматривать лаборантскую с зеркалом «гезелла» в стене, смежную с основным помещением, для скрытого наблюдения.

Таблица 5.3.

Рекомендуемые состав и площади помещений социально-правовой помощи.

№№ п/п

Наименование помещений

Площадь помещений, м2

Примечания

1

2

3

4

ККЦ

1.

Кабинет заведующего отделением

12

 

2.

Кабинет психолога

22

Приложение, Рис. П.2.

3.

Кабинет юриста

22

Приложение, Рис. П.2.

4.

Кабинет срочной информационно-консультативной помощи по телефону доверия с санитарным узлом

10 + 3

 

5.

Кабинет социальных работников

16

 

6.

«Семейный клуб» с лаборантской

28 + 9

Приложение, Рис. П.3.

7.

Архив

12

 

8.

Санитарный узел с умывальником в шлюзе

3

 

КЦ-1

1.

Кабинет психолога

22

Приложение, Рис. П.2.

2.

Кабинет юриста

22

Приложение, Рис. П.2.

3.

Кабинет срочной информационно-консультативной помощи по телефону доверия с санитарным узлом

10 + 3

 

4.

Кабинет социального работника

8

 

КЦ-2

1.

Кабинет психолога

22

Приложение, Рис. П.2.

2.

Кабинет юриста

22

Приложение, Рис. П.2.

3.

Кабинет социального работника

8

 

4.

Кабинет срочной информационно-консультативной помощи по телефону доверия с санитарным узлом

10 + 3

 

Консультативное отделение по работе с женщинами, пострадавшими от насилия.

5.47. Рекомендуемый состав и площади помещений консультативного отделения ККЦ и КЦ-2 по работе с женщинами, пострадавшими от насилия, приведены в таблице 5.4.

5.48. Основное назначение отделения:

- обеспечение квалифицированного психологического и социального консультирования женщин в зависимости от конкретных причин их психологического и социального дискомфорта;

- снятие психологической нагрузки, вызванной конфликтной ситуацией в семье;

- обеспечение психологической и социальной реабилитации женщин;

- оказание психолого-педагогической и медико-социальной помощи;

- проведение индивидуальных и групповых психологических тренингов.

5.49. В кабинетах психолога и сексопатолога проводится как индивидуальная работа с женщиной, так и работа с «семейной» группой. В состав оборудования кабинетов следует включать: стол специалиста с компьютером, стеллаж, журнальный столик с 3 креслами (Приложение, Рис. П.2.).

5.50. Кабинет групповой психотерапии рассчитан на работу с группой до 9 чел. В состав его оборудования рекомендуется включать кресла, журнальный стол, компьютерный стол (Приложение, Рис. П.4.).

5.51. Кабинет релаксации рассчитан на проведение индивидуальной психолого-терапевтической коррекции. В состав его оборудования рекомендуется включать техническое оснащение сенсорного назначения и психолого-терапевтической коррекции, виброкушетку, виброкресло, стул специалиста, светомузыкальную установку. (Приложение, Рис. П.5.).

Таблица 5.4.

Рекомендуемые состав и площади помещений консультативного отделения ККЦ и КЦ-2 по работе с женщинами, пострадавшими от насилия.

№№ п/п

Наименование помещений

Площадь помещений, м2

Примечания

1

2

3

4

1.

Кабинет заведующего отделением

12

 

2.

Кабинет психолога

22

Приложение, Рис. П.2.

3.

Кабинет сексопатолога

22

Приложение, Рис. П.2.

4.

Кабинет групповой психотерапии

43

Приложение, Рис. П.4.

5

Кабинет релаксации

10

Приложение. Рис. П.5.

6.

Санитарный узел с умывальником в шлюзе

3

 

Стационарное пренатальное отделение.

5.52. Рекомендуемый состав и площади помещений стационарного пренатального отделения ККЦ и КЦ-1 приведены в таблице 5.5.

5.53. Данное отделение предназначено для:

- предоставления временного проживания несовершеннолетним беременным, отторгнутым семьей;

- создания необходимых условий проживания;

- обучения будущих матерей обращению с новорожденными;

- осуществления круглосуточного медицинского контроля за состоянием беременной.

5.54. Жилую группу отделения рекомендуется проектировать коридорного типа, в составе до 10 жилых ячеек, соединяющихся между собой и с остальными помещениями центра через коридор или систему коридоров.

5.55. Жилые ячейки следует рассчитывать на проживание 3 чел. В состав жилой ячейки входят: жилая комната, прихожая, совмещенный санузел. Жилую комнату рекомендуется оборудовать кроватями, прикроватными тумбочками, стульями по числу проживающих, секционным шкафом для хранения одежды. В прихожей предусматривается вешалка для хранения верхней одежды, совмещенный санитарный узел оборудуется унитазом, умывальником, биде, душем, скамейкой для раздевания, вешалкой, полотенцесушителем. (Приложение, Рис. П.6.).

5.56. В состав отделения рекомендуется включать гостиные из расчета на 15 чел. каждая, оборудование которых составляют: кресла, журнальные столики, телевизор, шкаф с книгами и настольными играми. (Приложение, Рис. П.7.) Количество гостиных в каждом конкретном случае уточняется заданием на проектирование или проектом.

5.57. В состав помещений отделения рекомендуется включать «Школу матерей» (Приложение, Рис. П.8.), представляющее собой лекционное помещение, в оборудование которого входят: жесткие кресла с откидными столиками, стол лектора, 3 пеленальных столика, стеллажи с наглядными пособиями. Помещение рассчитывается на проведение занятий одновременно с группой до 30 чел. Занятия в «Школе матерей» проводятся по темам: здоровый образ жизни, ответственное репродуктивное поведение, планирование семьи, ответственное родительство, навыки ухода за ребенком.

5.58. В состав помещений отделения рекомендуется включать 1 изоляционную палату (на 1 заболевшего) с санузлом, располагать которую следует в непосредственной близости от кабинета дежурной медсестры. В состав оборудования санузла следует включать: унитаз, умывальник, душ, биде. При наличии медицинских показаний несовершеннолетняя беременная направляется на лечение в стационарное учреждение.

5.59. Комнаты дежурной медицинской сестры и дежурного воспитателя рассчитаны на круглосуточное пребывание персонала. В состав оборудования комнат следует включать диван, стол специалиста, стелаж. В состав оборудования санузла при каждой комнате следует включать: унитаз, умывальник, душ, биде.

Таблица 5.5.

Рекомендуемые состав и площади помещений стационарного пренатального отделения ККЦ и КЦ-1.

№№ п/п

Наименование помещений

Площадь помещений, м2

Примечания

1

2

3

4

1.

Кабинет заведующего отделением

12

 

2.

Жилые комнаты на 3 места с прихожей и санитарным узлом (10 шт.)

20 ´ 10/16 + 4

Приложение, Рис. П.6.

3.

Гостиные (2 шт.)

32 ´ 2

Приложение, Рис. П.7.

4.

«Школа матерей»

50

Приложение, Рис. П.8.

5.

Изоляционная палата с санузлом

6 + 4

 

6.

Комната дежурной медицинской сестры с санузлом

14 + 3

 

7.

Комната дежурного воспитателя с санузлом

10 + 3

 

8.

Инвентарная

8

 

9.

Кладовая чистого белья

4

 

10.

Кладовая грязного белья

6

 

11.

Комната хранения предметов уборки

4

 

Стационарное послеродовое отделение.

5.60. Рекомендуемый состав и площади помещений стационарного послеродового отделения приведены в таблице 5.6.

5.61. Данное отделение предназначено для:

- предоставления временного проживания несовершеннолетним, отторгнутым семьей, матерям с новорожденными детьми;

- создания необходимых условий проживания;

- организация патронажа новорожденных детской поликлиникой;

- осуществления круглосуточного медицинского контроля медицинской сестрой отделения за состоянием матери и ее ребенка.

5.62. Жилую группу отделения рекомендуется проектировать по коридорному типу в составе до 15 жилых ячеек, соединяющихся между собой и с остальными помещениями центра через коридор или систему коридоров.

5 63. Жилые ячейки рекомендуется проектировать двух типов:

- жилая комната, рассчитанная на проживание 2 матерей с младенцами, с прихожей и санузлом (Приложение, Рис. П.9.);

- две жилые комнаты, каждая на 1 мать с младенцем, соединенные общей прихожей и санузлом (Приложение, Рис. П.10.).

В состав оборудования комнат рекомендуется включать: взрослые кровати, детские кроватки, прикроватные тумбочки, стулья по числу проживающих, пеленальный стол, секционный шкаф с отделениями для хранения одежды матери и новорожденного. В передней при комнатах предусматривается вешалка для хранения верхней одежды и совмещенный санитарный узел, в состав оборудования которого следует включать: унитаз, умывальник, биде, душ, подставку для ванночки, скамейку для раздевания, вешалку, крючки для детских ванночек на стене, полотенцесушитель.

Проектируемый тип ячейки определяется заданием на проектирование.

5.64. В состав отделения рекомендуется включать гостиные из расчета 15 чел. каждая, оборудование которых составляют: кресла, журнальные столики, телевизор, шкаф с книгами и настольными играми (Приложение, Рис. П.7.). Количество гостиных в каждом конкретном случае уточняется заданием на проектирование или проектом.

5.65. В состав помещений рекомендуется включать кухню, оборудованную холодильником (для хранения детского питания), электроплитой с воздухоочистителем, кухонным столом, шкафом для кухонной посуды.

5.66. В состав помещений рекомендуется включать мини-прачечную, оборудованную стиральными машинами с сушкой, гладильной доской, хозяйственным столом, шкафом для хранения моющих веществ.

5.67. В состав помещений отделения рекомендуется включать 1 изоляционную палату (на 1 заболевшего) с санузлом, располагать которую следует в непосредственной близости от кабинета дежурной медсестры. В состав оборудования санузла включаются: унитаз, умывальник, ванна, биде. При наличии медицинских показаний несовершеннолетняя мать вместе с ребенком направляется в специализированное учреждение. Изоляционную палату следует рассчитывать на одновременное пребывание матери и ребенка.

5.68. Комнаты дежурной медицинской сестры и дежурного воспитателя рассчитаны на круглосуточное пребывание персонала. В состав оборудования комнат следует включать диван, стол специалиста, стеллаж. В состав оборудования санузла при каждой комнате следует включать: унитаз, умывальник, душ, биде.

Таблица 5.6.

Рекомендуемые состав и площади помещений стационарного послеродового отделения ККЦ.

№№ п/п

Наименование помещений

Площадь помещений, м2

Примечания

1

2

3

4

1.

Кабинет заведующего отделением

12

 

2.

Жилая ячейка на 1 комнату на 2 места взрослых и 2 детских места с прихожей и санитарным узлом (15 шт.)

26 ´ 15/22 + 5

Приложение, Рис. П.9.

Жилая ячейка на две спаренные жилые комнаты на 1 взрослое и 1 детское место, каждая с прихожей и санитарным узлом (15 шт.)

26 ´ 15/11 + 11 + 5

Приложение, Рис. П.10.

3.

Гостиные (2 шт.)

32 ´ 2

Приложение, Рис. П.7.

4.

Комната дежурной медицинской сестры с санузлом

14 + 3

 

5.

Изоляционная палата с санузлом

6 + 4

 

6.

Комната дежурного воспитателя с санузлом

10 + 3

 

7.

Кухня

12

 

8.

Мини-прачечная

14

 

9.

Инвентарная

4

 

10.

Кладовая чистого белья

4

 

11.

Кладовая грязного белья

6

 

12.

Комната хранения предметов уборки

4

 

Реабилитационное (психолого-коррекционное, медицинское, физкультурно-оздоровительное и трудовой терапии) отделение.

5.69. Рекомендуемый состав и площади помещений реабилитационного (психолого-коррекционного, медицинского, физкультурно-оздоровительного и трудовой терапии) отделения ККЦ и КЦ-1 приведены в таблице 5.7.

5.70. Данное отделение предназначено для:

- снятия депрессии и дискомфорта у несовершеннолетних беременных и матерей;

- разработки и реализации индивидуальных реабилитационно-психологических программ;

- оказания медико-социальной и психолого-педагогической помощи;

- проведения индивидуальных и групповых психологических тренингов;

- проведения просветительской, образовательной и воспитательной работы по вопросам: здоровый образ жизни, ответственное репродуктивное поведение, планирование семьи, ответственное родительство;

- проведения физкультурно-оздоровительных занятий, общего укрепления организма, подготовки несовершеннолетних матерей к родам;

- проведения мероприятий по трудовой терапии.

5.71. Кабинет психолога рассчитан на проведение индивидуальных занятий с несовершеннолетней. В состав его оборудования включаются: стол специалиста, компьютерный стол, стеллаж, журнальный стол, 2 кресла.

5.72. Кабинет групповой психотерапии рассчитан на проведение занятий с группой до 10 чел. В состав его оборудования рекомендуется включать кресла, журнальный стол, стол специалиста с компьютером. (Приложение, Рис. П.4.).

5.73. Кабинет сексуального воспитания представляет собой лекционную аудиторию на 30 чел. со столом специалиста и креслами с откидными столиками для слушателей (Приложение, Рис. П.11.). Для демонстрации учебных фильмов в кабинете предусмотрен телевизор с видеомагнитофоном.

5.74. Кабинет релаксации рассчитан на проведение индивидуальной психолого-терапевтической коррекции. В состав его оборудования рекомендуется включать техническое оснащение сенсорного назначения и психолого-терапевтической коррекции, виброкушетка, виброкресло, стул специалиста, светомузыкальную установку. (Приложение, Рис. П.5.).

5.75. Медицинские помещения, входящие в реабилитационный блок, рассчитаны на постоянное медицинское сопровождение несовершеннолетних как в дородовый, так и в послеродовый периоды.

5.76. Все медицинские кабинеты рассчитаны на индивидуальный прием пациентов.

5.77. В состав группы медицинских помещений ККЦ входит общий кабинет акушера и гинеколога (Приложение, Рис. П.12.), который обслуживает как стационарное пренатальное, так и стационарное послеродовое отделение. В состав помещений КЦ-1 следует включать только кабинет акушера.

5.78. Проведение физкультурно-оздоровительных мероприятий осуществляется в кабинете ЛФК, рассчитанном на одновременное присутствие 10 чел. Помимо занятий лечебной физкультурой в данном помещении проводятся занятия по подготовке несовершеннолетних матерей к родам (Приложение, Рис. П.13.).

5.79. Проведение мероприятий по трудотерапии направлены на психологическую коррекцию несовершеннолетних.

5.80. Трудотерапия осуществляется в мастерских. Профиль, состав и площади мастерских в каждом конкретном случае уточняются заданием на проектирование.

Рекомендуемый профиль и количество мастерских: кройки и шитья, вязания, бисероплетения, изготовления шляп, делопроизводства, (всего 5 - 6). Кулинарная мастерская рекомендуется как обязательная.

Рекомендуемые (Таблица 5.7.) унифицированные площади мастерских позволяют организовать мастерские различных видов деятельности и перепрофилировать их при необходимости. Показатели площадей мастерских определены в соответствии МГСН 4.06-96 с учетом единовременной наполняемости - 6 чел.

5.81. Кулинарная мастерская способствует бытовой адаптации несовершеннолетних матерей. Она должна включать в свой состав две зоны: зону производства и зону «приема пищи». В оборудование первой зоны входят разделочные столы, электроплита с воздухоочистителем, холодильник, шкаф сухих продуктов, шкаф кухонной посуды, мойка. Оборудование второй зоны составляют обеденный стол со стульями, шкаф с посудой (Приложение, Рис. П.14.).

5.82. При мастерских трудотерапии следует предусматривать кладовые для хранения материалов и готовых изделий.

5.83. Помещения мастерских оборудуются умывальниками.

Таблица 5.7.

Рекомендуемые состав и площади помещений реабилитационного (психолого-коррекционного, медицинского, физкультурно-оздоровительного и трудотерапии) отделения ККЦ и КЦ-1.

№№ п/п

Наименование помещений

Площадь помещений, м2

Примечания

1

2

3

4

Психолого-коррекционные помещения

1.

Кабинет групповой психотерапии

44

Приложение, Рис. П.4.

2.

Кабинет психолога

22

 

3.

Кабинет релаксации

10

Приложение, Рис. П.5.

4.

Кабинет сексуального воспитания

46

Приложение, Рис. П.11.

Медицинские помещения

1.

Кабинет акушера

14

Только для КЦ-1

2.

Кабинет акушера и гинеколога

16

Только для ККЦ

Приложение, Рис. П.12.

3.

Кабинет терапевта

12

 

Физкультурно-оздоровительные помещения

1.

Кабинет ЛФК с кладовой и раздевалкой

60 + 9 + 5

Приложение, Рис. П.13.

Помещения трудотерапии

1.

Мастерские трудотерапии с кладовыми (5 шт.)

(36 + 8) ´ 5

 

2.

Кулинарная мастерская

36

Приложение, Рис. П.14.

3.

Санузел с умывальником в шлюзе

3

 

4.

Комната хранения предметов уборки

4

 

Помещения питания.

5.84. Питание для проживающих в стационарных отделениях организуется в одну смену в общей столовой.

5.85. Площадь обеденного зала принимается из расчета 2,0 м2 на 1 посадочное место. При зале предусматривается умывальная из расчета 1 умывальник (1,0 м2) на каждые 15-20 мест и раздаточная (Приложение, Рис. П.15.).

5.86. Учитывая специфику обслуживаемого контингента, в обеденном зале рекомендуются только круглые столики на 4 места. Это обеспечивает как удобный подход со всех сторон, так и возможность избежать травматизма.

5.87. В производственные помещения кухни должен предусматриваться отдельный вход.

5.88. Кроме питания несовершеннолетних, проживающих в стационарных отделениях, помещения кухни должны обеспечивать питание персонала.

5.89. Состав, площади и оборудование производственных помещений кухни следует определять заданием на проектирование, исходя из возможностей работы на полуфабрикатах, учитывая наличие базового предприятия столовой-заготовочной в муниципальном районе. Работа технологического оборудования кухни предусматривается на электричестве. Детское питание доставляется из раздаточного пункта детской кухни.

5.90. Для питания персонала предусматривается обеденный зал самообслуживания (или буфет) из расчета 1,5 м2 на 1 посадочное место. Его следует располагать в составе помещений кухни или вблизи нее. Количество мест определяется заданием на проектирование, исходя из количества питающихся в учреждении, продолжительности обеденного времени и количества смен. При зале предусматривается подсобное помещение площадью 8 м2, предназначенное для раздачи пищи, хранения и мойки посуды.

5.91. Рекомендуемые состав и площади производственных помещений кухни приведены в таблице 5.8.

Таблица 5.8.

Рекомендуемые состав и площади производственных помещений кухни.

№№ п/п

Наименование помещений

Площадь помещений, м2

Примечания

1

2

3

4

1.

Обеденный зал

120

Для ККЦ

Приложение, Рис. П.15.

60

Для КЦ-1

2.

Умывальные

3 м2

 

3.

Раздаточная

9

 

4.

Сервизная

6

 

5.

Горячий цех

}              35

 

6.

Холодный цех

 

7.

Рыбный цех

}              9

 

8.

Мясной цех

 

9.

Хлеборезка, хранение хлеба

4

 

10.

Моечная кухонной посуды

10

 

11.

Моечная столовой посуды

14

 

12.

Охлаждаемая камера для хранения:

 

 

- молочных продуктов

6

 

- рыбы, мяса

6

 

13.

Кладовая сухих продуктов

8

 

14.

Кладовая овощей

8

 

15.

Комната заведующего производством

8

 

16.

Загрузочная - тарная

8

 

17.

Бельевая, гардеробная персонала, душевая, санузел

6 + 14 + 2 + 2

 

Отделение организационно-методической и просветительской работы.

5.92. Рекомендуемые состав и площади помещений отделения организационно-методической и просветительской работы приведены в таблице 5.9.

5.93. Данное отделение предназначено для:

- разработки технологии экстренной и долговременной помощи женщинам в кризисных ситуациях;

- взаимодействия с государственными службами при защите от насилия в семье: с органами внутренних дел, здравоохранения, социальной защиты, образования, префектурами, районными управами;

- осуществления просветительской, образовательной и воспитательной деятельности с целью предотвращения насилия в семье;

- формирования медиатеки по проблемам женщин, семьи;

- сотрудничества с организациями, частными лицами, способными оказать моральную, методическую и финансовую поддержку.

5.94. В составе помещений отделения предусматривается методический кабинет с фондом методической литературы, компьютерный центр с архивом, конференцзал на 30 мест и 3 кабинета специалистов на 2 чел. каждый, оборудованные столами специалистов, компьютерными столами, стеллажами.

Таблица 5.9.

Рекомендуемые состав и площади помещений отделения организационно-методической и просветительской работы.

№№ п/п

Наименование помещений

Площадь помещений, м2

Примечания

1

2

3

4

1.

Кабинеты специалистов на 2 чел.

12 ´ 3

 

2.

Методический кабинет

24

 

3.

Конференцзал на 30 мест

46

 

4.

Компьютерный центр с архивом

36 + 10

 

5.

Санитарный узел для персонала с умывальником в шлюзе

3

 

6.

Комната личной гигиены для женщин

4

 

7.

Комната хранения предметов уборки

4

 

Административно-бытовые помещения

5.95. Рекомендуемый состав и площади административно-бытовых помещений всех типов КЦ приведены в таблице 5.10.

Таблица 5.10.

Рекомендуемые состав и площади помещений административно-бытового обслуживания.

№№ п/п

Наименование помещений

Площадь помещений, м2

Примечания

1

2

4

5

ККЦ

1.

Кабинет директора

36

 

2.

Приемная

18

Смежно с кабинетом директора

3.

Канцелярия

12

 

4.

Кабинет заместителя директора по хозяйственной части

16

 

5.

Помещение дежурного персонала технического обслуживания

14

 

6.

Бухгалтерия с кассой

18 + 4

 

7.

Комната сестры-хозяйки

12

 

8.

Комната психологической разгрузки персонала

18

 

9.

Комната отдыха персонала

36

 

10.

Помещение пожарного поста

12

 

11.

Инвентарные

40

 

12.

Санитарные узлы для мужчин и женщин с умывальниками в шлюзе

3 ´ 2

 

13.

Кабины личной гигиены для женщин

2

Разместить при санитарном узле

14.

Комната хранения уборочного инвентаря

4

 

КЦ-1, КЦ-2

1.

Кабинет директора

18

 

2.

Канцелярия

12

 

3.

Кабинет заместителя директора по хозяйственной части

12

 

4.

Помещение дежурного персонала технического обслуживания

14

 

5.

Бухгалтерия с кассой

12 + 4

 

6.

Помещение пожарного поста

6

 

7.

Комната психологической разгрузки персонала

10

 

8.

Комната отдыха персонала

12

 

9.

Санитарные узлы для мужчин и женщин с умывальниками в шлюзе

3 ´ 2

 

10.

Кабины личной гигиены для женщин

2

Разместить при санитарном узле

11.

Инвентарные

20

 

ПРИЛОЖЕНИЕ

ЭКСПЛИКАЦИЯ ОБОРУДОВАНИЯ

1.         Кресло гинекологическое

2.         Винтовой табурет

3.         Передвижной светильник

4.         Стол врача

5.         Стул

6.         Столик инструментальный

7.         Бачок для мусора

8.         Умывальник

9.         Шкаф медицинский

10.       Ширма

Рис. П.1. Кабинет гинеколога.

ЭКСПЛИКАЦИЯ ОБОРУДОВАНИЯ

1.              Стол специалиста

2.              Стул

3.              Компьютерный стол специалиста с компьютером

4.              Шкаф-стеллаж

5.              Журнальный стол

6.              Мягкая мебель

7.              Умывальник

8.              Вешалка для полотенца

Рис. П.2. Кабинет специалиста (психолога, сексопатолога и юриста).

ЭКСПЛИКАЦИЯ ОБОРУДОВАНИЯ

I клуб

1.    Обеденный стол

2.    Стул

3.    Шкаф для посуды

4.    Холодильник

5.    Рабочий стол с микроволновой печью и электрочайником

6.    Мойка

7.    Умывальник

8.    Вешалка для полотенца

II лаборантская

9.    Стол специалиста

10. Шкаф-стеллаж

11. Зеркало гезелла

Рис. П.3. Семейный клуб с лаборантской.

ЭКСПЛИКАЦИЯ ОБОРУДОВАНИЯ

1.       Стол

2.       Стул

3.       Стол специалиста

4.       Кресло

5.       Шкаф-стеллаж

6.       Умывальник

7.       Вешалка для полотенца

Рис. П.4. Кабинет групповой психотерапии (на 10 человек).

ЭКСПЛИКАЦИЯ ОБОРУДОВАНИЯ

1.         Виброкушетка

2.         Виброкресло

3.         Столик для специальной аппаратуры

4.         Установка с водяным каскадом

5.         Стул специалиста

6.         Штора

Рис. П.5. Кабинет релаксации.

ЭКСПЛИКАЦИЯ ОБОРУДОВАНИЯ

I жилая комната

1. Кровать

2. Прикроватная тумбочка

3. Стул

4. Платяной шкаф

II передняя

13.      Вешалка с зеркалом

III санитарный узел

5. Душевая кабина

6. Унитаз

7. Биде

8. Скамейка

9. Умывальник

10.      Зеркало

11.      Вешалка для полотенца

12.      Крючки для одежды

Рис. П.6. Жилая ячейка пренатального отделения на 3 места.


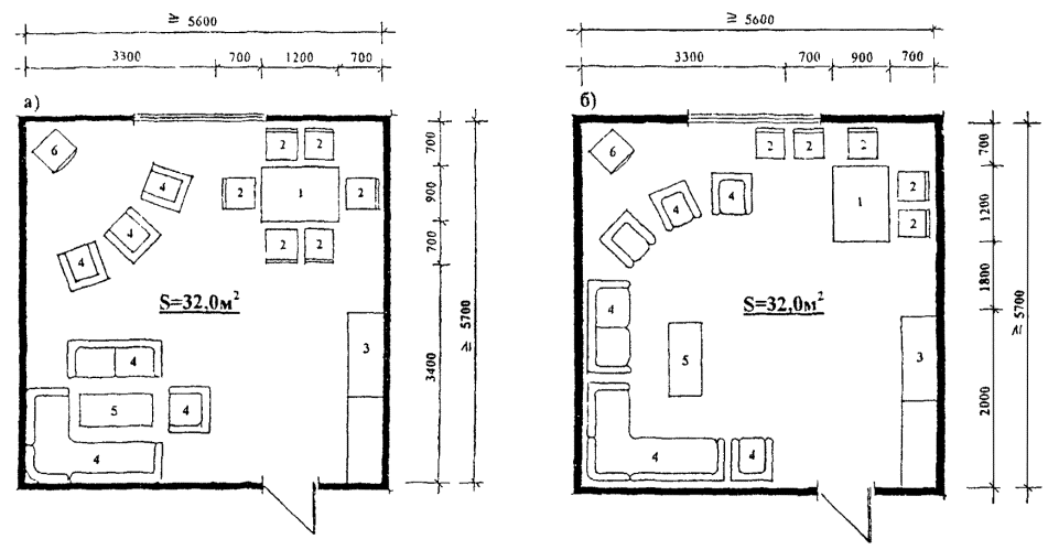
ЭКСПЛИКАЦИЯ ОБОРУДОВАНИЯ

1.       Игровой стол

2.       Стул

3.       Комбинированный шкаф

4.       Мягкая мебель

5.       Журнальный стол

6.       Телевизор

Рис. П.7. Гостиная (примеры расстановки оборудования).


ЭКСПЛИКАЦИЯ ОБОРУДОВАНИЯ

1.       Кресло с подлокотниками и откидными столиками

2.       Пеленальный столик

3.       Стол лектора

4.       Стул

5.       Стеллаж для хранения наглядных пособий

Рис. П.8. «Школа матерей».

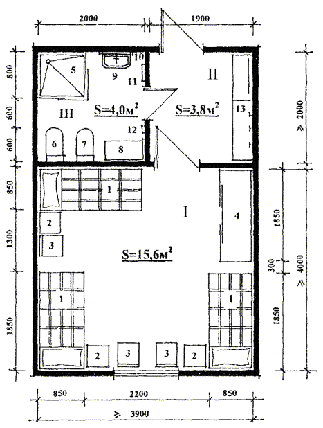
ЭКСПЛИКАЦИЯ ОБОРУДОВАНИЯ

I жилая комната

1.     Кровать

2.     Прикроватная тумбочка

3.     Детская кровать

4.     Стул

5.     Пеленальный столик

6.     Платяной шкаф

II санитарный узел

7.     Душевая кабина

8.     Унитаз

9.     Биде

10.   Детские ванночки

11.   Умывальник

12.   Вешалка для полотенца

13.   Зеркало

14.   Скамейка

15.   Скамейка для детской ванночки

III передняя

16.   Вешалка с зеркалом

Рис. П.9. Жилая ячейка послеродового отделения на 1 комнату (2 взрослых и 2 детских места).

ЭКСПЛИКАЦИЯ ОБОРУДОВАНИЯ

I жилая комната

1.      Кровать

2.      Прикроватная тумбочка

3.      Детская кровать

4.      Пеленальный столик

5.      Шкафчик для детского белья

6.      Стул

II санитарный узел

7.      Душевая кабина

8.      Унитаз

9.      Биде

10.    Детские ванночки

11.    Умывальник

12.    Вешалка для полотенца

13.    Зеркало

14.    Скамейка

15.    Скамейка для детской ванночки

III передняя

16.    Платяной шкаф

17.    Вешалка с зеркалом

Рис. П.10. Жилая ячейка послеродового отделения на 2 спаренных комнаты (на 1 взрослое и 1 детское место).

ЭКСПЛИКАЦИЯ ОБОРУДОВАНИЯ

1.   Кресло с подлокотниками и откидными столиками

2.   Стол лектора

3.   Стул

4.   Столик с телевизором, видеомагнитофоном и

полками для хранения видеокассет

Рис. П.11. Кабинет сексуального воспитания.

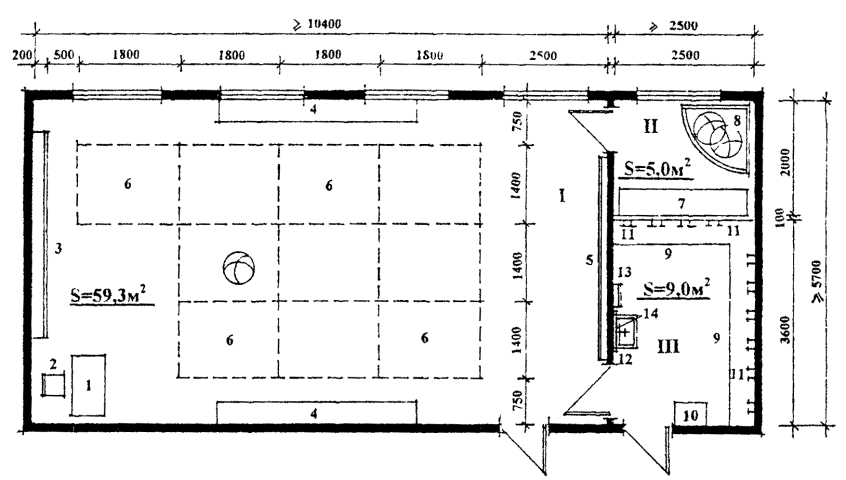
ЭКСПЛИКАЦИЯ ОБОРУДОВАНИЯ

1.     Кресло гинекологическое

2.     Винтовой табурет

3.     Передвижной светильник

4.     Стол врача

5.     Стул

6.     Кушетка

7.     Столик инструментальный

8.     Бачок для мусора

9.     Умывальник

10.   Шкаф медицинский

11.   Ширма

Рис. П.12. Кабинет акушера и гинеколога.


ЭКСПЛИКАЦИЯ ОБОРУДОВАНИЯ

I зал                                                                      III раздевалка

1.     Стол методиста                                       10.       Шкаф методиста

2.     Стул методиста                                       11.       Крючки для одежды

3.     Шведская стенка                                    12.       Умывальник

4.     Скамья                                                      13.       Вешалка для полотенца

5.     Зеркало                                                     14.       Зеркало

6.     Маты для занятий

II кладовая

7.     Комбинированный шкаф

8.     Манеж для складирования мячей

9.     Скамья для переодевания

Рис. П.13. Кабинет ЛФК с кладовой и раздевалкой.


ЭКСПЛИКАЦИЯ ОБОРУДОВАНИЯ

1.       Стол-шкаф кухонный

2.       Холодильник

3.       Мойка

4.       Электроплита с воздухоочистителем

5.       Сервировочная стойка с разделочным столом

6.       Умывальник

7.       Вешалка для полотенца

8.       Обеденный стол

9.       Стул

10.     Стол резервный

Рис. П.14. Кулинарная мастерская.

ЭКСПЛИКАЦИЯ ОБОРУДОВАНИЯ

1.     Стол обеденный

2.     Стул

Рис. П.15. Обеденный зал (пример расстановки столов).




Rambler's Top100 Яндекс цитирования
  Copyright © 2008-2026, www.docload.ru