Бесплатная библиотека стандартов и нормативов www.docload.ru

Все документы, размещенные на этом сайте, не являются их официальным изданием и предназначены исключительно для ознакомительных целей.
Электронные копии этих документов могут распространяться без всяких ограничений. Вы можете размещать информацию с этого сайта на любом другом сайте.
Это некоммерческий сайт и здесь не продаются документы. Вы можете скачать их абсолютно бесплатно!
Содержимое сайта не нарушает чьих-либо авторских прав! Человек имеет право на информацию!

 

ПРАВИТЕЛЬСТВО МОСКВЫ

МОСКОМАРХИТЕКТУРА

РЕКОМЕНДАЦИИ
ПО ПРОЕКТИРОВАНИЮ ОБРАЗОВАТЕЛЬНЫХ ШКОЛ
ДЛЯ БОЛЬНЫХ ДЕТЕЙ И ДЕТЕЙ-ИНВАЛИДОВ
(ШКОЛ НАДОМНОГО ОБУЧЕНИЯ)

2001

ПРЕДИСЛОВИЕ

1. РАЗРАБОТАНЫ: ГУП МНИИП «Моспроект-4» (архитекторы Любомудрова К.И., Кряжевских М.А., инженеры Тихомирова И.Б.).

2. ПОДГОТОВЛЕНЫ К УТВЕРЖДЕНИЮ И ИЗДАНИЮ Управлением перспективного проектирования и нормативов Москомархитектуры (архитектор Шалов Л.А., инженер Щипанов Ю.Б.).

3. СОГЛАСОВАНЫ: Московским Комитетом образования, Москомархитектурой.

4. УТВЕРЖДЕНЫ И ВВЕДЕНЫ В ДЕЙСТВИЕ указанием Москомархитектуры от 28.08.2001 г. № 35.

СОДЕРЖАНИЕ

ВВЕДЕНИЕ

Образовательные школы для больных детей и детей-инвалидов - школы надомного обучения (далее ШНО) являются самостоятельным типом адаптивно-интегративных образовательных учреждений, создающих оптимальные условия для образования, оздоровления, социализации и профессиональной ориентации больных детей.

ШНО должны обеспечивать: лечебную педагогику и дифференцированное обучение; социально-трудовую адаптацию и профориентацию; психолого-педагогическую реабилитацию; интеграцию в общество; поддерживающие медицинские мероприятия; укрепление здоровья; социально-психологическую помощь семьям.

1. ОБЛАСТЬ ПРИМЕНЕНИЯ

1.1. Настоящие Рекомендации разработаны для г. Москвы, как дополнение к нормативным документам в строительстве, действующим на территории Москвы, и распространяются на проектирование новых и реконструкцию существующих ШНО.

1.2. Настоящие Рекомендации устанавливают основные положения и требования к размещению, участку, территории, архитектурно-планировочным решениям и инженерному оборудованию ШНО.

1.3. Проектирование ШНО должно вестись в соответствии с положениями настоящих Рекомендаций, а также требованиями других нормативно-методических документов в строительстве, действующих на территории г. Москвы.

2. НОРМАТИВНЫЕ ССЫЛКИ

В настоящих Рекомендациях приведены ссылки на следующие нормативно-методические документы:

2.1. СНиП 10-01-94 «Система нормативных документов в строительстве. Основные положения».

2.2. СНиП 2.08.02-89* «Общественные здания и сооружения».

2.3. СНиП 21-01-97* «Пожарная безопасность зданий и сооружений».

2.4. СНиП 2.07.01-89* «Градостроительство. Планировка и застройка городских и сельских поселений».

2.5. СНиП 2.04.09-84 «Пожарная автоматика зданий и сооружений».

2.6. СНиП 2.04.05-91* «Отопление, вентиляция и кондиционирование воздуха».

2.7. СанПиН 2.1.2.568-96 «Гигиенические требования к устройству, эксплуатации и качеству воды плавательных бассейнов».

2.8. СП 2.4.2.782-99 «Гигиенические требования к условиям обучения школьников в различных видах современных общеобразовательных учреждений».

2.9. СН 441-72* «Указания по проектированию ограждений площадок и участков предприятий, зданий и сооружений».

2.10. МГСН 4.06-96 «Общеобразовательные учреждения».

2.11. МГСН 4.15-98 «Общеобразовательные учреждения для детей-сирот и детей, оставшихся без попечения родителей».

2.12. МГСН 1.01-99 «Нормы и правила проектирования, планировки и застройки г. Москвы».

2.13. МГСН 4.12-97 «Лечебно-профилактические учреждения».

2.14. МГСН 4.07-96 «Дошкольные учреждения».

2.15. МГСН 4.05-95 «Школы-интернаты для детей-инвалидов».

2.16. МГСН 2.06-99 «Естественное, искусственное и совмещенное освещение».

2.17. МГСН 2.05-99 «Инсоляция и солнцезащита».

2.18. МГСН 2.01-99 «Энергосбережение в зданиях».

2.19. Пособие к МГСН 4.05-95 «Школы-интернаты для детей-инвалидов».

2.20. «Рекомендации по проектированию образовательных учреждении для детей, нуждающихся в психолого-педагогической и медико-социальной помощи», М., 2000 г.

2.21. «Проектирование бассейнов». Справочное пособие к СНиП 2.08.02-89*. М. Стройиздат. 1991 г.

2.22. «Рекомендации по проектированию учреждений профессиональной реабилитации инвалидов», М., 1999 г.

3. ОБЩИЕ ПОЛОЖЕНИЯ

3.1. Основными направлениями деятельности ШНО являются:

- организация образовательной деятельности по общеобразовательным программам (основным и дополнительным) и начального профессионального образования в соответствии с возрастными и индивидуальными особенностями детей, состоянием их соматического и психического здоровья;

- организация индивидуальной психо-коррекционной деятельности, направленной на снятие комплекса неполноценности, формируемого в результате длительной болезни;

- организация коррекционно-развивающего и компенсирующего обучения;

- организация психолого-медико-педагогической диагностики обучающихся, включая: педагогическую диагностику, диагностику интеллектуального уровня развития, диагностику социальной готовности на различных возрастных этапах развития, диагностику мотивации к обучению, диагностику мониторинга здоровья;

- организация индивидуальных медико-коррекционных и лечебно-оздоровительных мероприятий;

- оказание практической психолого-педагогической и социальной помощи семьям, имеющим больных детей.

3.2. Деятельность ШНО определяется принципом адаптивности, обеспечивающим развитие системы образования больных детей в соответствии с запросами населения, и включает в себя:

- гибкость и динамичность, предполагающие возможность оперативной корректировки содержания, форм и методов обучения и социализации в соответствии с особенностями различных категорий больных детей;

- системный и ситуационный подход к образованию, оздоровлению и развитию детей как к единой системе на основе взаимосвязи между различными видами деятельности, включая педагогический, социальный, медицинский и психологический аспекты;

- всемерное содействие интеграции больных детей и детей-инвалидов в общество;

- единство действий семьи и ШНО в процессе образования и социализации обучающихся путем включения родителей в учебно-воспитательный процесс.

3.3. Контингент обучающихся в ШНО составляют дети и подростки школьного возраста (от 6 до 18 лет включительно), имеющие нарушения здоровья:

- дети-инвалиды, способные обучаться по программе массовой школы;

- дети с комплексным нарушением здоровья, дающим право на получение инвалидности;

- дети, нуждающиеся по своему здоровью в индивидуальном обучении на дому.

В связи с наличием специализированных школ-интернатов для инвалидов-опорников, которые полностью адаптированы к нуждам данного контингента, помещения ШНО не рассчитаны на пребывание колясочников, а также инвалидов, использующих другие механические средства передвижения (костыли, «держалки» и т.п.) Такие инвалиды, в случае зачисления в ШНО, проходят обучение индивидуально на дому.

При этом инвалиды-колясочники, обучающиеся на дому, пользуются отдельными консультативными, культурными и спортивными помещениями, располагаемыми на первом этаже ШНО и приспособленными для использования указанным контингентом.

3.4. Все помещения, которые используются приходящими инвалидами-колясочниками, следует проектировать в соответствии с положениями МГСН 4.05-95.

3.5. При организации ШНО необходимо иметь в виду, что их воспитанники не могут посещать учреждения дополнительного образования, УПК и т.п. Функции этих учреждений должны быть заложены в ШНО. Это влечет за собой соответственное расширение номенклатуры помещений.

3.6. Вместимость ШНО рекомендуется принимать не более 250 - 300 мест.

3.7. Состав и площади функциональных блоков ШНО уточняются в каждом конкретном случае заданием на проектирование с учетом данных Раздела 5 настоящих Рекомендаций.

4. ТРЕБОВАНИЯ К РАЗМЕЩЕНИЮ, УЧАСТКУ И ТЕРРИТОРИИ

4.1. ШНО следует размещать в селитебной зоне, с хорошей транспортной доступностью, порайонно.

4.2. Размеры и составы зон участков определяются заданием на проектирование или проектом, с учетом положений настоящего раздела.

4.3. Здания ШНО следует размещать на обособленных земельных участках. Расстояние от зданий ШНО до красной линии и от границы земельного участка ШНО до стен жилых домов следует принимать в соответствии с положениями МГСН 4.06-96.

4.4. Площадь участка ШНО принимается из расчета 120 - 140 м2 на 1 учащегося с учетом размещения на участке площадок и сооружений оздоровительного и досугового характера, обеспечивающих психотерапевтическую коррекцию.

4.5. В составе территории участка предусматриваются следующие зоны:

- учебная и общественная;

- физкультурно-оздоровительная;

- отдыха;

- хозяйственная.

4.6. В зоне размещения функциональных блоков учебного и общественного назначения у главного входа рекомендуется предусматривать мощеную площадку для массовых сборов учащихся.

4.7. В физкультурно-оздоровительной зоне рекомендуется предусматривать: комбинированную площадку для спортивных игр 60´40 м; игровую площадку двигательной коррекции 15´30 м; гимнастическую площадку 15´16 м; легкоатлетическое спортядро с круговой беговой дорожкой длиной 250 м; коррекционно-игровые площадки (6 - 8 м2 на 1 учащегося из расчета одновременного присутствия 40 - 50 % детей).

Коррекционно-игровые площадки должны иметь травянисто-песчаный покров. В составе их оборудования рекомендуется предусматривать: качели, качалки, скамейки для отдыха, столы для игр и т.п.

Примечание: Набор оборудования уточняется заданием на проектирование.

4.8. Площадки для игры с мячом следует располагать на расстоянии не менее 25 м от окон здания, а при наличии ограждения высотой 3 м - не менее 15 м. Площадки для занятий физкультурой - на расстоянии не менее 10 м.

4.9. Помимо оздоровительной функции, физкультурно-оздоровительный комплекс также является базой для проведения психо-коррекционных мероприятий. На территории участка рекомендуется размещать зоопавильон площадью 72 м2 с площадкой для разгрузки кормов и вывоза мусора площадью 20 м2 и организацией подъезда к ней на машине.

4.10 Площадь озеленения должна составлять 50 % от общей площади участка в соответствии с СП 2.4.2.782-99.

4.11. В зоне отдыха рекомендуется предусматривать газоны, цветники, зеленые насаждения, уголки отдыха, малые архитектурные формы.

4.12. Хозяйственная зона должна иметь отдельный въезд (вход) и размещаться со стороны помещений столовой. На ее территории допускается размещать навесы для инвентаря и оборудования, мусоросборники, гараж служебных машин на 2 машины (1 легковая машина и 1 автобус) и т.п.

4.13. Земельный участок должен иметь ограждение высотой не менее 1,5 - 2 м в соответствии с требованиями СН 441-72*.

4.14. Участок должен быть освещен в соответствии с требованиями СНиП 23-05-95.

4.15. На участок должно быть предусмотрено не менее двух въездов (один хозяйственный), проезды должны иметь твердое покрытие и ширину не менее 3 м; планировка участка должна обеспечивать подъезды пожарных машин ко всем зданиям, а также объезды вокруг них (СНиП 21-01-97*).

4.16. Для автомашин сотрудников следует предусматривать открытую стоянку в соответствии с требованиями МГСН 1.01-99.

5. ТРЕБОВАНИЯ К АРХИТЕКТУРНО-ПЛАНИРОВОЧНЫМ РЕШЕНИЯМ

Общие требования.

5.1. В состав ШНО входят следующие функциональные группы помещений:

- вестибюльная;

- общего образования;

- терапевтической коррекции и начальной профессиональной подготовки;

- лечебно-реабилитационная (психолого- и медико-коррекционные, медицинские);

- досугово-физкультурно-оздоровительная;

- питания;

- административно-бытовая;

- хозяйственного обслуживания.

Архитектурно-планировочные решения должны учитывать требования функционального зонирования помещений с учетом возраста детей и подростков по типу общеобразовательных школ.

Функциональные группы помещений, рассчитанные на работу с детьми, помимо своих основных функций, несут также и коррекционные функции, что и определяет состав и площади их помещений.

5.2. При проектировании помещений ШНО рекомендуется пользоваться габаритными схемами, приведенными в Приложениях. При непосредственном проектировании размеры площадей помещений могут быть откорректированы (уменьшены или увеличены) на 15 % в зависимости от конкретных планировочных и конструктивных решений.

5.3. Функциональные группы помещений рекомендуется размещать либо в отдельных корпусах или блоках, либо непосредственно примыкающих друг к другу, либо соединенных отапливаемыми переходами. В случае непосредственного примыкания корпусов (блоков) должны предусматриваться пожарные отсеки площадью не более 5000 м2, разделяемые противопожарными стенами 1-го типа (в соответствии с требованиями СНиП 2.08.02-89*), а из каждого пожарного отсека должно быть предусмотрено не менее двух эвакуационных выходов, один в соседний блок, а второй - наружу.

5.4. Здания ШНО не должны превышать 3 этажей (СП 2.4.2.782-99, п. 2.3.4.).

5.5. Объемно-планировочная структура зданий должна обеспечивать функциональное назначение учреждений, отражать их специфику и обеспечивать комфортные условия эксплуатации, включая связь с участком.

5.6. Ширина лестничных маршей должна быть не менее 1,35 м. Лестничные марши и площадки должны иметь защитное ограждение на всю высоту. Лестничные марши должны быть оборудованы поручнями на разной высоте (0,9 м и 0,7 - 0,75 м) в соответствии с положениями Пособия к МГСН 4.05-95.

Ширину дверей основных помещений следует принимать не менее 1 м.

Ширину коридоров в помещениях административно-бытового, методического и хозяйственного назначения следует принимать не менее 1,4 м; а во всех остальных помещениях - не менее 2,2 м.

Ширина рекреационных помещений должна приниматься не менее 4 м.

5.7. Высота наземных этажей здания ШНО должна быть не менее 3,3 м (от пола до пола вышележащего этажа). Высота зрительного зала принимается не менее 3,6 м, высота помещения бассейна - не менее 4,2 м, высота спортзала - 6 м (до низа несущих конструкций).

5.8. Внутренняя отделка помещений ШНО должна быть выполнена из материалов, разрешенных для применения органами Госсанэпиднадзора Минздрава РФ, допускающих влажную уборку, а также применение дезинфицирующих средств.

5.9. Все помещения групп общего образования, терапевтической коррекции и начальной профессиональной подготовки и лечебно-реабилитационных помещений, рассчитанные на пребывание детей, должны быть оборудованы умывальниками.

5.10. В помещениях рекреаций, фойе, и холлах рекомендуется организовывать уголки релаксации с зелеными насаждениями, фонтанчиками, аквариумами и т.д.

5.11. Естественное освещение в помещениях следует проектировать в соответствии с требованиями МГСН 2.06-99.

5.12. Все основные учебные помещения должны иметь КЕО не менее 1,5 на поверхности столов и освещаться боковым левым светом. Для организации мобильных форм ведения урока необходимо предусматривать равномерное освещение по всей рабочей плоскости в помещении за счет дополнительного верхнего света или дополнительного искусственного освещения в глубине помещения, вне зоны основных учебных столов.

5.13. Допускается не предусматривать естественного освещения:

- в зрительном зале, в конференцзале;

- в коммуникациях и коридорах, не являющихся рекреационными помещениями;

- в умывальных, душевых и уборных при спортивном зале и бассейне, санитарных узлах для персонала и посетителей, комнатах личной гигиены женщин;

- в радиоузле, книгохранилище;

- в буфете для персонала;

- в раздевальных персонала, бытовых комнатах, моечных кухонной посуды, буфетных, кладовых инвентаря, комнатах хранения предметов уборки;

- в помещениях технических служб.

Допускается проектировать только с искусственным освещением обеденный зал и санитарные узлы для учащихся (при соблюдении необходимой кратности обмена воздуха).

5.14. Санитарные узлы и туалетные комнаты проектируются с учетом возраста детей в соответствии с положениями действующих нормативных документов: МГСН 4.15-98, МГСН 4.06-96, СП 2.4.2.782-99. Санитарные узлы для приходящих инвалидов-колясочников проектируются в соответствии с требованиями МГСН 4.05-95.

Учитывая специфику контингента, размещение унитазов в уборных для учащихся производится либо в индивидуальных санузлах, либо в общих с использованием закрывающихся кабин. В индивидуальных санузлах рекомендуется размещать умывальник непосредственно в кабине, а в общих санузлах - в шлюзе.

Общее количество санитарных приборов принимается из расчета: на каждые 20 мест по два унитаза для мальчиков и для девочек, 2 писсуара в уборной для мальчиков; 1 умывальник на каждые 30 мальчиков и 30 девочек.

Санитарные узлы, представляющие собой индивидуальные кабинки с унитазом и умывальником, непосредственно располагаются при классных комнатах для индивидуальных занятий.

В состав оборудования кабин личной гигиены для девочек входят умывальник и бидэ. Количество кабин личной гигиены определяется из расчета: 1 кабина на 70 девочек.

5.15. В комнатах хранения уборочного инвентаря следует предусматривать умывальник и слив.

5.16. Требования к инсоляции помещений, в которых находятся дети, должны быть учтены в соответствии с положениями МГСН 4.06-96 и МГСН 2.05-99.

5.17. Отопление и вентиляцию зданий следует проектировать в соответствии с требованиями СНиП 2.04.05-91* и МГСН 4.06-96.

5.18. Энергоснабжение, электрооборудование, электрическое освещение в здании и наружное освещение территории следует предусматривать в соответствии с требованиями МГСН 2.06-99 и МГСН 4.06-96.

5.19. Здания проектируются с учетом максимального энергосбережения в соответствии с требованиями МГСН 2.01-99.

5.20. Здания следует проектировать в соответствии с требованиями СНиП 21-01-97* не менее II степени огнестойкости.

5.21. В зданиях должна предусматриваться автоматическая пожарная сигнализация в соответствии с требованиями СНиП 2.04.09-84. Перечень помещений, в которых необходимо предусматривать автоматическую пожарную сигнализацию, следует определять в соответствии с положениями МГСН 4.06-96. Сигнал о срабатывании системы АПС (автоматической пожарной сигнализации) выводится в помещение с круглосуточным пребыванием персонала.

5.22. На путях эвакуации из здания должно быть предусмотрено аварийное и эвакуационное освещение, проектируемое в соответствии с требованиями СНиП 21-01-97* и СНиП 23-05-95.

Вестибюльная группа помещений

5.23. Рекомендуемые состав и площади помещений вестибюльной группы приведены в таблице 5.1.

5.24. Помещение гардероба должно быть зонировано на изолированные секции для начальной, основной и старшей школы.

5.25. В составе оборудования гардероба для детей рекомендуется предусматривать сушильные шкафы для одежды и обуви с подогревом и вытяжкой, а также вешалки консольного типа.

5.26. Гардероб преподавателей рекомендуется предусматривать в отдельном помещении при вестибюле. В состав оборудования его входят вешалки консольного типа.

5.27. При входах в здание следует предусматривать тамбуры.

5.28. Главный вход в здание следует оборудовать пандусом с уклоном не более 1:10 и шириной не менее 1,8 м для пользования приходящими инвалидами-опорниками.

Таблица 5.1.

Рекомендуемые состав и площади помещений вестибюльной группы.

№№ п.п.

Наименование помещений

Площадь помещений, м2

Примечание

Ha 1 место

Всего

1

2

3

4

5

1.

Главный вестибюль:

 

 

С учетом численности персонала и мест для ожидания родителей

- при вместимости до 200 мест

0,5

-

 

- при вместимости свыше 200 мест

0,3

-

 

2.

Гардероб для верхней одежды учащихся

0,1

-

 

3.

Гардероб для верхней одежды преподавателей

0,1

-

 

4.

Помещение дежурного администратора

-

10

В ночное время используется для вахтера

5.

Санитарный узел с умывальником

-

2

 

6.

Комната хранения предметов уборки

-

4

 

Помещения общего образования.

5.29. Рекомендуемые состав и площади помещений общего образования приведены в таблице 5.2.

5.30. Помещения общего образования должны группироваться в учебные блоки по возрастному принципу: начальная, основная и старшая школы.

5.31. Наполняемость классов принимается в соответствии с формой обучения:

- индивидуальная - 1 чел.;

- групповая - 6 чел.;

- классно-урочная - 12 чел.

Ориентировочное соотношение классов различных форм обучения:

- индивидуальная - 30 %;

- групповая - 10 %;

- классно-урочная - 60 %.

5.32. В блоке помещений общего образования следует предусматривать рекреации из расчета 1,2 м2 на 1 учащегося.

5.33. В состав помещений начальной школы следует включать игровые комнаты площадью 36 м2, рассчитанные на одновременное пребывание 10 - 15 учащихся. Необходимость и количество игровых комнат определяется заданием на проектирование.

5.34. В начальной школе рекреационное пространство рекомендуется организовывать в виде рекреационно-игрового холла с живым уголком.

5.35. Во всех классах начальной школы следует предусматривать зону психологической разгрузки из расчета 10 - 15 % общей площади класса, в которой следует располагать ковер с мягкими модулями и игрушками.

5.36. В основной школе предусмотрены помимо групповых и индивидуальных классных помещений, специализированные кабинеты, рассчитанные на классно-урочную форму обучения: компьютерный класс - из расчета 4,8 м2 на 1 учащегося; кабинеты физики, химии и биологии с лаборантскими, кабинет иностранного языка - из расчета 4,6 м2 на 1 учащегося, кабинеты географии, русского языка и литературы, истории - 4,2 м2 на 1 учащегося.

5.37. В состав помещений основной школы следует включать комнаты тихого отдыха площадью 36 м2, оборудованные живыми уголками и мягкой мебелью. Необходимость и количество комнат определяется заданием на проектирование.

5.38. В основной школе рекреационный холл рекомендуется оборудовать для активного отдыха шведскими стенками, корзинами для бросания мяча и т.п.

5.39. В составе помещений старшей школы, помимо классов групповой и индивидуальной форм обучения, предусмотрены специализированные кабинеты классно-урочной формы обучения:

- кабинет естествознания на 24 учащихся площадью 72 м2 с лаборантской 12 м2;

- кабинет иностранного языка на 12 учащихся, площадью 54 м2;

- компьютерный класс на 12 учащихся площадью 58 м2.

Помимо специализированных кабинетов, для классно-урочной формы обучения в старшей школе предусматриваются классные помещения на 12 учащихся, количество которых определяется заданием на проектирование.

5.40. Все классы индивидуальной, групповой и классно-урочной формы обучения оборудуются классными досками, размеры которых определяются на основании угла рассматривания доски (не менее 40° в соответствии с требования МГСН 4.06-96).

5.41. В состав помещений старшей школы входит библиотека площадью 120 м2 с книгохранилищем и читальным залом.

5.42. Рекреационное пространство в старшей школе рекомендуется оборудовать мягкой мебелью для общения учащихся, а также предусмотреть в нем живой уголок.

5.43. В состав помещений общего образования ШНО следует включать группу консультативно-образовательных помещений, рассчитанных на обслуживание приходящих инвалидов-колясочников. Размещать указанные помещения необходимо на 1 этаже при вестибюльной группе.

5.44. В составе общешкольных помещений рекомендуется предусматривать конференцзал на 50 мест, площадь которого следует рассчитывать в соответствии с требованиями к лекционным помещениям (МГСН 4.06-96), увеличивая норматив на организацию мест председателя, докладчика и откидных столиков при каждом посадочном месте.

Таблица 5.2.

Рекомендуемые состав и площади помещений общего образования

№№ п./п.

Наименование помещений

Площадь помещений, м2

Примечания

Ha 1 учащегося

Всего

1

2

3

4

5

Начальная школа.

1.

Класс для индивидуального обучения с уголком релаксации

-

13

Приложение, Рис. П.1.

2.

Класс для индивидуального обучения с уголком релаксации и санитарным узлом:

 

 

В состав оборудования санитарного узла входят унитаз и умывальник.

Приложение, Рис. П.2.

- класс

-

14

- санитарный узел (на 2 класса)

-

1,8

3.

Класс для группового обучения с уголком релаксации на 6 учащихся

-

35

Приложение, Рис. П.3.

4.

Класс для классно-урочной формы обучения с уголком релаксации на 12 учащихся

-

50

Приложение, Рис. П.4.

5.

Компьютерный класс на 12 учащихся

4,8

-

Приложение, Рис. П.5.

6.

Кабинет иностранного языка на 12 учащихся

4,6

 

 

7.

Игровая

-

36

Приложение, Рис. П.6.

8.

Рекреационный холл с живым уголком

2,2

-

 

9.

Санитарные узлы для мальчиков и девочек с умывальниками в шлюзе

2

По расчету

Распределить поэтажно

Основная школа и старшая школа.

10.

Кабинет физики на 12 учащихся с лаборантской

-

55+10

Приложение, Рис. П.7.

11.

Кабинет химии на 12 учащихся с лаборантской

-

55+10

- « -

12.

Кабинет биологии на 12 учащихся с живым уголком и лаборантской

-

72+18

 

13.

Кабинет географии на 12 учащихся

4,2

-

 

14.

Кабинет русского языка и литературы на 12 учащихся

4,2

-

 

15.

Кабинет истории на 12 учащихся

4,2

-

 

16.

Кабинет иностранного языка на 12 учащихся

4,6

-

 

17.

Кабинет естествознания на 24 учащихся с лаборантской

-

72+12

 

18.

Компьютерный класс на 12 учащихся

4,8

-

 

19.

Класс для классно-урочной формы обучения на 12 учащихся

-

48

Приложение Рис. П.8(а)(а), Рис. П.8(б)(б).

20.

Класс для групповой формы обучения на 6 учащихся

-

36

Приложение Рис. П.9.

21.

Класс для индивидуальной формы обучения

-

13

Приложение Рис. П.10.

22.

Рекреационный холл со спортивным оборудованием (основная школа)

2,2

-

 

23.

Комната тихого отдыха с живым уголком (для основной школы)

-

35

Приложение Рис. П.11.

24.

Дискуссионный холл с живым уголком (для старшей школы)

2,2

-

 

25.

Библиотека с читальным залом и хранилищем

-

120

 

26.

Комнаты личной гигиены для девочек

-

4

Разместить при санитарных узлах для девочек

27.

Санитарные узлы для мальчиков и для девочек с умывальниками в шлюзе

2

По расчету

Распределить поэтажно

Консультативно-образовательные помещения.

28.

Класс для индивидуального обучения с уголком релаксации

-

18

 

29.

Класс для группового обучения на 6 учащихся с уголком релаксации

-

42

 

30.

Консультативный кабинет

-

22

 

31.

Санитарные узлы для девочек и для мальчиков с умывальниками

-

4´2

 

Общешкольные помещения.

32.

Кабинет заведующего учебной частью

-

18

 

33.

Методический кабинет

-

24

 

34.

Конференцзал

-

72

 

35.

Комната учителей

-

36

 

36.

Комната психологической разгрузки учителей

-

18

 

37.

Кладовая мебели, инвентаря

-

24

 

38.

Санитарные узлы для мужчин и женщин с умывальниками

-

2´2

 

39.

Кабина личной гигиены для женщин

-

4

Разместить при санитарном узле для женщин

40.

Комната хранения предметов уборки

-

4

i

Помещения терапевтической коррекции и начальной профессиональной подготовки.

5.45. Рекомендуемые состав и площади помещений терапевтической коррекции и начальной профессиональной подготовки приведены в таблице 5.3.

5.46. Данная группа помещений обеспечивает следующие функции:

- предоставление учащимся возможности получения начальной профессиональной подготовки аналогично учебно-производственным комплексам - УПК - для обычных общеобразовательных школ;

- проведение терапевтической коррекционной работы, заключающейся в развитии различных видов моторики у больных детей;

- осуществление социально-бытовой адаптации, дающей навыки самостоятельного жизнеобеспечения.

Эти функции определяют расширенный состав помещений данной группы, обеспечивающий возможность индивидуального подбора каждому ребенку типа занятий, наиболее эффективно корректирующего его дефект и позволяющий наиболее точно выбрать возможное направление его будущей профессиональной деятельности.

5.47. Все помещения терапевтической коррекции и начальной профессиональной подготовки рассчитаны на проведение занятий в группе из 6 чел.

5.48. Специализация, состав и площади помещений начальной профессиональной подготовки в каждом конкретном случае уточняются заданием на проектирование, при этом номенклатура их зависит от состава учащихся на данный момент.

Не рекомендуется организация мастерских начальной профессиональной подготовки, в которых технологический процесс связан с выделением химических веществ и пыли (в т.ч. мастерские радиотехники, электроники, монтажные и т.п.).

При организации мастерских следует предусмотреть возможность их перепрофилирования с учетом требований изменяющегося контингента учащихся.

Площадь мастерских начальной профессиональной подготовки следует принимать 10 м2 на 1 учащегося в соответствии с требованиями «Рекомендаций по проектированию учреждений профессиональной реабилитации инвалидов».

5.49. Кулинарная мастерская является обязательной и должна включать в свой состав две зоны: зону производства и зону «чаепития». В оборудование первой зоны включены разделочные столы, плита, холодильник, шкаф сухих продуктов, шкаф кухонной посуды, мойка. Оборудование второй зоны составляют обеденный стол со стульями, шкаф с чайной посудой.

5.50. При помещениях учебных мастерских следует предусматривать кладовые для хранения материалов и готовых изделий.

Таблица 5.3.

Рекомендуемые состав и площади помещений терапевтической коррекции и начальной профессиональной подготовки.

№№ п.п.

Наименование помещений

Площадь помещений, м2

Примечания

1

2

3

4

1.

Изостудия с кладовой

38+15

Приложение, Рис. П.12.

2.

Кабинет музыкальных занятий с кладовой инструментов

32+15

Приложение, Рис. П.13.

3.

Мастерские начальной профессиональной подготовки с кладовыми

(60+12)´5

Профиль мастерских в каждом конкретном случае определяется заданием на проектирование

4.

Мастерские терапевтической коррекции:

 

 

 

- театрально-художественная с кладовой

49+15

Приложение, Рис. П.14.

 

- кукольная (изготовление) с кладовой

40+15

Приложение, Рис. П.15.

 

- художественной обработки дерева с кладовой

36+10

 

 

- лепки с печью для обжига, кладовыми инвентаря и готовых изделий

54+10+8

Наличие местной вытяжки

 

- ткачества с кладовой

54+10

Приложение, Рис. П.16.

 

- рукоделия

22

 

 

- швейная

22

 

 

- кулинарная

45

Наличие местной вытяжки

Приложение, Рис. П.17.

 

- изготовления поделок из кожи

22

 

 

- изготовления поделок из бисера

22

 

 

- ювелирная

22

 

5.

Редакция с кладовой

36+10

 

6.

Зал арттерапии с кладовой

63+15

Приложение, Рис. П.18.

7.

Обсерватория

16

 

8.

Комната мастеров

24

 

9.

Санитарные узлы для мальчиков и для девочек с умывальниками в шлюзе

18´2

Разместить поэтажно

10.

Санузел персонала с умывальником

2

 

Лечебно-реабилитационные помещения (психолого- и медико-коррекционные, медицинские).

5.51. Рекомендуемые состав и площади лечебно-реабилитационных помещений приведены в таблице 5.4. Состав, количество кабинетов и их площади должны уточняться заданием на проектирование в каждом конкретном случае.

5.52. Группа лечебно-реабилитационных помещений рассчитана на проведение мероприятий направленных на:

- снятия комплекса неполноценности у детей;

- социально-средовую адаптацию детей;

- психологическую реабилитацию;

- медицинскую коррекцию;

- укрепление здоровья.

5.53. Социально-средовая адаптация учащихся осуществляется в кабинетах групповой психотерапии площадью 25 м2.

5.54. Кабинет психотерапии «вода-песок» должен быть оборудован трапом в полу и полотенцесушителем, а также иметь влагостойкое покрытие стен и пола.

5.55. Помещения медицинского обслуживания рассчитаны на проведение реабилитационных мероприятий, наблюдение состояния здоровья учащихся, а также поддерживающего и общеукрепляющего лечения. Помещения медицинского назначения следует проектировать с учетом положений МГСН 4.12-97 и Пособия по проектированию учреждений здравоохранения к СНиП 2.08.02-89*.

5.56. В состав группы медико-коррекционных помещений рекомендуется включать зал развития моторики, оборудование которого: «сухой бассейн», батут, дорожка для механической рефлексотерапии, мячи Д 90 см.

5.57. К группе медико-коррекционных помещений относится бассейн, основные функции которого - развитие моторики и общее укрепление организма.

Проектирование бассейна следует осуществлять в соответствии с положениями справочного пособия «Проектирование бассейнов» к СНиП 2.08.02-89* и СП 2.1.2.568-96. Рекомендуемый размер ванны бассейна 6´10 м, глубина допускается 0,9 м - в мелкой части и 1,25 м - в глубокой. Одновременная загрузка бассейна - 6 чел.

5.58. Площадь раздевалок при бассейне следует рассчитывать исходя из нормы 2,5 м2 на ребенка старше 10 лет и 2,9 м2 - до 10 лет.

5.59. Размер ножной ванны при бассейне необходимо предусмотреть 1,8 м (по направлению движения от душевой к чаше бассейна) во всю ширину прохода.

5.60. При бассейне рекомендуется предусматривать блок бани сухого жара (сауну) с подсобными помещениями, при проектировании которых необходимо руководствоваться требованиями СНиП 2.08.02-89*.

5.61. Учитывая специфику контингента учащихся, в состав группы лечебно-реабилитационных помещений допускается включать помещения отдыха детей, суммарная вместимость которых может составлять до 10 % от числа мест в учреждении.

5.62. Помещения отдыха включают отдельные комнаты на 4 человека, площадь которых принимается из расчета 3,6 - 4,0 м2 на 1 место. В состав оборудования комнат входят кушетки для отдыха.

5.63. В комнатах отдыха должен быть предусмотрен остекленный проем в стене, смежной с коридором, для наблюдения за детьми.

Таблица 5.4.

Рекомендуемые состав и площади лечебно-реабилитационных помещений (психолого- и медико-коррекционных, медицинских).

№№ п.п.

Наименование помещений

Площадь помещений, м2

Примечания

1

2

3

4

Медицинские помещения

1.

Кабинет врача-педиатра

15

 

2.

Кабинет медицинской сестры:

14

 

 

- процедурная

18

 

3.

Кабинет стоматолога

14

 

4.

Кабинет логопеда

14

Количество определяется заданием на проектирование

5.

Кабинет дефектолога

14

- « -

6.

Кабинет нейропсихолога

14

 

7.

Фитокабинет с кладовой

14+8

 

8.

Ингаляторий на 3 места со стерилизационной

15

 

9.

Кабинет физиотерапии с подсобной комнатой

24+8

 

10.

Кабинет рефлексотерапии

14

 

11.

Кабинет су-джок терапии

14

 

Медико-коррекционные помещения

12.

Кабинет для индивидуальных занятий ЛФК с кладовой

17+8

Приложение, Рис. П.19.

13.

Зал групповых занятий ЛФК с кладовой и раздевалкой

50+8+6

Приложение, Рис. П.20.

14.

Кабинет массажа на 3 места

24

Разделен на отдельные кабины

15.

Комната отдыха массажистов с санитарным узлом

16

В состав оборудования санузла входят: душ, умывальник, унитаз

16.

Зал развития моторики с подсобным помещением

72+8

 

17.

Кабинет гидропатии

24

 

18.

Раздевальная

14

 

19.

Кабинет водолечения:

 

 

 

- ванный зал

30

 

 

- раздевальная

14

 

 

- кабинет подводного массажа

20

 

20.

Бассейн 6´10 м

-

 

21.

Раздевальные для мальчиков и для девочек

16´2

В раздевальных предусмотреть установки для сушки волос

22.

Душевые при раздевальных включая ножную ванну

5´2

По две душевых сетки и одной ванне на каждую душевую

23.

Уборные при раздевальных с умывальниками

2´2

 

24.

Комната инструктора с санитарным узлом

10+3

В состав санитарного узла входят: унитаз, душ, умывальник

25.

Комната медсестры

10

Должны располагаться смежно и иметь выход на обходную дорожку

26.

Лаборатория анализа воды

8

27.

Узел управления

6

28.

Помещение для хранения химических реактивов

4

 

29.

Реагентная

4

 

30.

Блок бани сухого жара:

 

 

 

- камера сухого жара

10

 

 

- предбанник с душем

10

 

 

- санузел с умывальником

2

 

 

- раздевальная

10

 

 

- комната отдыха

12

 

 

- кладовая инвентаря

4

 

Психо-коррекционные помещения

31.

Кабинет психолога

17

Количество определяется заданием на проектирование

Приложение, Рис. П.21.

32.

Кабинет групповой психотерапии

31

- « -

Приложение, Рис. П.22.

33.

Кабинет релаксации

12

 

34.

Кабинет «вода-песок» с подсобным помещением

16+6

 

35.

Кабинет ситуационных игр

36

 

Помещения отдыха

36.

Комната отдыха

16

Количество определяется заданием на проектирование

37.

Санузлы для мальчиков и для девочек с умывальниками в шлюзе

18´2

 

38.

Комнаты гигиены для девочек

4

Разместить при санузлах для девочек

39.

Инвентарная

24

 

40.

Комната персонала

12

 

41.

Комната хранения чистого белья

6

 

42.

Комната хранения грязного белья

6

 

43.

Санузлы персонала с умывальником

2´2

 

44.

Комната гигиены для женщин

4

Разместить при санузле для женщин

45.

Комната хранения предметов уборки

4

 

Досуговые и физкультурно-оздоровительные помещения

5.64. Рекомендуемый состав и площади группы досуговых и физкультурно-оздоровительных помещений приведены в табл. 5.5.

5.65. В ШНО рекомендуется проектировать актовый зал на 120 % от вместимости учреждения (в расчете на персонал, родителей и гостей). В актовом зале должны быть предусмотрены места для приходящих инвалидов-колясочников из расчета до 15 % от вместимости зала.

5.66. Актовый зал, зал гимнастических занятий и тренажерный зал, следует рассчитывать на пребывание приходящих инвалидов-колясочников и располагать на первом этаже.

5.67. Фойе при актовом зале может быть использовано для музея детских поделок, зала для танцев и игр.

5.68. Спортивный зал рекомендуется размещать не выше второго этажа. Не допускается предусматривать проходы в спортивные помещения через учебные секции. Вход в спортивный зал из раздевальных предусматривается непосредственно или через обособленный коридор.

5.69. Снарядная должна соединяться со спортивным залом через дверь или открытый проем шириной не менее 2 м и высотой не менее 2,2 м. Длина снарядной для хранения гимнастического бревна должна быть не менее 5 м. Пол снарядной должен быть в одном уровне с полом спортивного зала (без порога).

5.70. В ШНО рекомендуется дополнительно предусматривать помещения для хранения лыж и велосипедов, площади которых определяются заданием на проектирование.

Таблица 5.5.

Рекомендуемые состав и площади досуговых и физкультурно-оздоровительных помещений

№№ п.п.

Наименование помещений

Площадь помещений, м2

Примечания

на 1 место

всего

1

2

3

4

5

Помещения досугового обслуживания

1.

Актовый зал

0,7

-

Используется также для занятий театральной студии

2.

Эстрада при зале

-

-

Глубина эстрады - 3,5 - 4 м

3.

Кинопроекционная с перемоточной и радиоузлом

-

26

 

4.

Фойе

1,0 - 1,2

-

На 1 место в зале

5.

Санитарные узлы для мальчиков и для девочек при фойе

-

24´2

Рассчитаны на использование колясочниками

6.

Помещение для артистов

-

15´2

 

7.

Фильмовидеотека

-

18

 

8.

Помещение пожарного поста

-

10

 

9.

Кладовая мебели и реквизита

-

20

 

10.

Кладовая аппаратуры

-

10

 

Физкультурно-оздоровительные помещения

11.

Зал гимнастических занятий

-

72

 

12.

Кладовая спортивных принадлежностей

-

10

Смежная с залом гимнастических занятий

13.

Спортивный зал 12´24 м

-

288

 

14.

Снарядная

-

16

Смежная со спортивным залом

15.

Тренажерный зал

-

72

 

16.

Раздевальные для девочек и для мальчиков с душевыми и санитарными узлами

-

24´2

По два душевых рожка, одному унитазу и умывальнику на каждую раздевальную

17.

Комната инструктора-методиста с санузлом в шлюзе

-

10+3

В состав санитарного узла входят: унитаз, душ умывальник

18.

Комната гигиены для девочек

-

4

Разместить при санитарном узле для девочек

19.

Санитарные узлы для мальчиков и для девочек

-

18´2

 

20.

Санитарный узел с умывальником для персонала

-

2

 

21.

Комната хранения предметов уборки

-

4

 

Помещения питания

5.71. В ШНО питание организуется в одну смену в общей столовой.

5.72. Площадь обеденного зала принимается из расчета 1,0 м2 на 1 посадочное место; при зале предусматривается умывальная из расчета 3 м2 (1 умывальник) на каждые 18 - 20 мест.

5.73. Для питания персонала предусматривается обеденный зал самообслуживания (или буфет) из расчета 1,8 м2 на 1 посадочное место. Его следует располагать в составе помещений кухни или администрации. Количество мест определяется заданием на проектирование исходя из числа персонала, питающегося в учреждении, продолжительности обеденного времени и количества смен. При зале предусматривается подсобное помещение, предназначенное для раздачи пищи, хранения и мойки посуды площадью 8 м2.

5.74. При определении типа кухонного блока (работающего на сырье или полуфабрикатах) должна учитываться связь со школьно-базовой столовой муниципального района.

В производственные помещения столовой должен предусматриваться отдельный вход.

Производственные помещения столовой проектируются с учетом размещения в них комплекта торгово-технологического оборудования на электроподогреве.

5.75. Рекомендуемые состав и площади производственных помещений кухни приведены в табл. 5.6.

Таблица 5.6

Рекомендуемый состав и площади производственных помещений кухни

№№ п.п.

Наименование помещений

Площадь помещений, м2

Примечания

1

2

3

4

1.

Горячий цех

35

 

2.

Холодный цех

 

3.

Рыбный цех

9

 

4.

Мясной цех

 

5.

Хлеборезка, хранение хлеба

4

 

6.

Моечная кухонной посуды

10

 

7.

Моечная столовой посуды

14

 

8.

Охлаждаемая камера для хранения:

 

 

 

- молочных продуктов

6

 

 

- рыбы, мяса

6

 

9.

Кладовая сухих продуктов

8

 

10.

Кладовая овощей

8

 

11.

Комната заведующего производством

8

 

12.

Загрузочная-тарная

8

 

13.

Бельевая, гардеробная персонала, душевая, уборная

14

 

Примечания: 1. Состав рассчитан на приготовление пищи из сырья.

2. При ориентации ШНО на снабжение из школьно-базовой столовой состав кухонного блока с подсобными помещениями должен быть сокращен.

Административно-бытовые помещения

5.76. Рекомендуемый состав и площади административно-бытовых помещений в ШНО приведены в таблице 5.7.

Таблица 5.7.

Рекомендуемые состав и площади административно-бытовых помещений.

№№ п.п.

Наименование помещений

Площадь помещений, м2

Примечания

1

2

3

4

1.

Кабинет директора

36

 

2.

Приемная

18

Смежно с кабинетом директора

3.

Канцелярия

12

 

4.

Кабинет заместителя директора по хозяйственной части

16

 

5.

Помещение дежурного персонала технического обслуживания

14

 

6.

Бухгалтерия с кассой

18+4

 

7.

Комната сестры-хозяйки

12+8

 

8.

Комната отдыха персонала

20

 

9.

Компьютерный центр с архивом

36+10

 

10.

Помещение пожарного поста

12

 

11.

Кладовые, инвентарные

40

Могут располагаться в подвале

12.

Помещение ремонта электроаппаратуры с подсобным помещением

14+16

 

13.

Комната хранения уборочного инвентаря

4

 

ПРИЛОЖЕНИЯ

ЭКСПЛИКАЦИЯ ОБОРУДОВАНИЯ

1. Стол ученический

2. Стул ученический

3. Стол учительский

4. Стул учительский

5. Классная доска

6. Уголок релаксации с детскими игрушками

7. Шкаф-стеллаж

8. Умывальник

9. Вешалка для полотенца

РИС. П-1. КЛАСС ДЛЯ ИНДИВИДУАЛЬНОЙ ФОРМЫ ОБУЧЕНИЯ С УГОЛКОМ РЕЛАКСАЦИИ (НАЧАЛЬНАЯ ШКОЛА)

ЭКСПЛИКАЦИЯ ОБОРУДОВАНИЯ

I. класс

1. Стол ученический

2. Стул ученический

3. Стол учительский

4. Стул учительский

5. Классная доска

6. Уголок релаксации с детскими игрушками

7. Шкаф-стеллаж

8. Встроенный шкаф

II. Санитарный узел

9. Унитаз

10. Умывальник

11. Вешалка для полотенца

РИС. П-2. КЛАССЫ ДЛЯ ИНДИВИДУАЛЬНОГО ОБУЧЕНИЯ С УГОЛКОМ РЕЛАКСАЦИИ И САНИТАРНЫМ УЗЛОМ (НАЧАЛЬНАЯ ШКОЛА)

ЭКСПЛИКАЦИЯ ОБОРУДОВАНИЯ

1. Стол ученический

2. Стул ученический

3. Стол учительский

4. Стул учительский

5. Классная доска

6. Журнальный столик

7. Детская мягкая мебель

8. Уголок релаксации с ширмой и детскими игрушками

9. Шкаф-стеллаж

10. Умывальник

11. Вешалка для полотенца

РИС. П-3. КЛАСС ДЛЯ ГРУППОВОЙ ФОРМЫ ОБУЧЕНИЯ С УГОЛКОМ РЕЛАКСАЦИИ (НАЧАЛЬНАЯ ШКОЛА)

ЭКСПЛИКАЦИЯ ОБОРУДОВАНИЯ

1. Стол ученический

2. Стул ученический

3. Стол учительский

4 Стул учительский

5. Классная доска

6. Журнальный столик

7. Мягкая мебель

8. Уголок релаксации с ширмой и детскими игрушками

9. Шкаф-стеллаж

10. Умывальник

11. Вешалка для полотенца

РИС. П-4. КЛАСС ДЛЯ КЛАССНО-УРОЧНОЙ ФОРМЫ ОБУЧЕНИЯ С УГОЛКОМ РЕЛАКСАЦИИ (НАЧАЛЬНАЯ ШКОЛА)

ЭКСПЛИКАЦИЯ ОБОРУДОВАНИЯ

1. Стол ученический

2. Стул ученический

3. Стол учительский

4. Стол для сервера (центрального процессора)

5. Стул учительский

6. Стол для компьютера (терминала)

7. Полки подвесные

8. Умывальник

9. Вешалка для полотенца

10. Классная доска

РИС. П-5. КОМПЬЮТЕРНЫЙ КЛАСС НА 12 УЧАЩИХСЯ

ЭКСПЛИКАЦИЯ ОБОРУДОВАНИЯ

1. Сухой бассейн

2. Горка

3 Умывальник

4 Стол специалиста

5. Стул

6. Мяч

7. Мяч массажный

8. Ковер

9. Мягкий модуль

10. Мягкие игрушки

11. Вешалка для полотенца

РИС. П-6. ИГРОВАЯ (НАЧАЛЬНАЯ ШКОЛА)

ЭКСПЛИКАЦИЯ ОБОРУДОВАНИЯ

I. Кабинет

1. Стол ученический лабораторный

2. Стул ученический

3. Стол демонстрационный

4. Стул учительский

5. Мойка (умывальник)

6. Бак для мусора

7. Классная доска

8. Комбинированный шкаф

II-III лаборантские

9. Шкаф-стеллаж

РИС. П-7. КАБИНЕТЫ ДЛЯ ЗАНЯТИЙ ФИЗИКОЙ И ХИМИЕЙ С ЛАБОРАНТСКИМИ

ЭКСПЛИКАЦИЯ ОБОРУДОВАНИЯ

1. Стол ученический на два места

2. Стул ученический

3. Стол учительский

4. Стул учительский

5. Классная доска

6. Шкаф комбинированный

7. Умывальник

8. Вешалка для полотенца

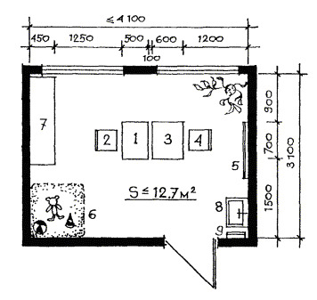
РИС. П-8(а). КЛАСС ДЛЯ КЛАССНО-УРОЧНОЙ ФОРМЫ ОБУЧЕНИЯ (ОСНОВНАЯ И СТАРШАЯ ШКОЛА)

ЭКСПЛИКАЦИЯ ОБОРУДОВАНИЯ

1. Стол ученический

2. Стул ученический

3. Стол учительский

4. Стул учительский

5. Классная доска

6. Комбинированный шкаф

7. Умывальник

8. Вешалка для полотенца

РИС. П-8(б). КЛАСС ДЛЯ КЛАССНО-УРОЧНОЙ ФОРМЫ ОБУЧЕНИЯ (ОСНОВНАЯ И СТАРШАЯ ШКОЛА)

ЭКСПЛИКАЦИЯ ОБОРУДОВАНИЯ

1. Стол ученический

2. Стул ученический

3. Стол учительский

4. Стул учительский

5. Классная доска

6. Комбинированный шкаф

7. Мягкая мебель

8. Журнальный стол

9. Умывальник

10. Вешалка для полотенца

РИС. П-9. КЛАСС ДЛЯ ГРУППОВОЙ ФОРМЫ ОБУЧЕНИЯ (ОСНОВНАЯ И СТАРШАЯ ШКОЛА)

ЭКСПЛИКАЦИЯ ОБОРУДОВАНИЯ

1. Стол ученический

2. Стул ученический

3. Стол учительский

4. Стул учительский

5. Классная доска

6. Шкаф-стеллаж

7. Мягкая мебель

8. Журнальный стол

9. Умывальник

10. Вешалка для полотенца

РИС. П-10. КЛАСС ДЛЯ ИНДИВИДУАЛЬНОЙ ФОРМЫ ОБУЧЕНИЯ (ОСНОВНАЯ И СТАРШАЯ ШКОЛА)

ЭКСПЛИКАЦИЯ ОБОРУДОВАНИЯ

1. Живой уголок

2. Мягкая мебель

3. Журнальный стол

4. Шкаф-стеллаж

5. Стол для групповых занятий

6. Стул

7. Телевизор

8. Умывальник

9. Вешалка для полотенца

10. Ковер (мягкое покрытие)

РИС. П-11. КОМНАТА ТИХОГО ОТДЫХА С ЖИВЫМ УГОЛКОМ (ОСНОВНАЯ ШКОЛА)

ЭКСПЛИКАЦИЯ ОБОРУДОВАНИЯ

I. Изостудия

1. Мольберт

2. Помост для моделей

3. Выставка рисунков и картин

4. Стол преподавателя

5. Стул преподавателя

6. Умывальник

7. Вешалка для полотенца

II. Кладовая

8. Комбинированный шкаф

РИС. П-12. ИЗОСТУДИЯ С КЛАДОВОЙ

ЭКСПЛИКАЦИЯ ОБОРУДОВАНИЯ

I. Кабинет

1. Стул

2. Пюпитр

3. Помост для преподавателя

4. Пианино

5. Табурет винтовой

6. Стол преподавателя

II. Кладовая

7. Шкаф комбинированный

РИС. П-13. КАБИНЕТ МУЗЫКАЛЬНЫХ ЗАНЯТИЙ С КЛАДОВОЙ ИНСТРУМЕНТОВ

ЭКСПЛИКАЦИЯ ОБОРУДОВАНИЯ

I. мастерская

1. Стол ученический для индивидуальной работы

2. Стул

3. Рабочий стол

4. Швейная машина

5. Табурет регулируемый

6. Мольберт

7. Стол мастера

8. Стул мастера

9. Умывальник

10. Вешалка для полотенца

11. Шкаф для экспозиций

II. Кладовая

12. Комбинированный шкаф

РИС. П-14. ТЕАТРАЛЬНО-ХУДОЖЕСТВЕННАЯ ТЕРАПЕВТИЧЕСКАЯ МАСТЕРСКАЯ С КЛАДОВОЙ

ЭКСПЛИКАЦИЯ ОБОРУДОВАНИЯ

I. мастерская

1. Стол мастера

2. Стул мастера

3. Рабочий стол

4. Столы с оборудованием

5. Табурет регулируемый

6. Ширма для представлений

7. Шкаф для экспозиции

8. Умывальник

9. Вешалка для полотенца

II. Кладовая

10. Шкаф комбинированный

РИС. П-15. ТЕРАПЕВТИЧЕСКАЯ МАСТЕРСКАЯ КУКОЛЬНОГО ТЕАТРА С КЛАДОВОЙ

ЭКСПЛИКАЦИЯ ОБОРУДОВАНИЯ

I. Мастерская

1. Стол мастера

2. Стул мастера

3. Станок для плетения гобеленов

4. Табурет регулируемый

5. Рабочий стол

6. Умывальник

7. Вешалка для полотенца

8. Стенд для экспозиций

II. Кладовая

9. Комбинированный шкаф

РИС. П-16. ТЕРАПЕВТИЧЕСКАЯ МАСТЕРСКАЯ ТКАЧЕСТВА С КЛАДОВОЙ

ЭКСПЛИКАЦИЯ ОБОРУДОВАНИЯ

1. Стол-шкаф кухонный

2. Холодильник

3. Мойка

4. Плита

5. Сервировочная стойка с разделочным столом

6. Комбинированная стенка

7. Табурет

8. Обеденный стол

9. Стул

10. Стол резервный

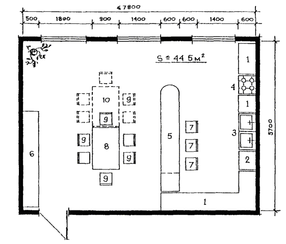
РИС. П-17. ТЕРАПЕВТИЧЕСКАЯ МАСТЕРСКАЯ КУЛИНАРНОГО ТВОРЧЕСТВА

ЭКСПЛИКАЦИЯ ОБОРУДОВАНИЯ

I. Зал

1. Сцена-подиум

2. Сцена

3. Ковер (мягкое покрытие)

4. Скамья

5. Пианино

6. Табурет винтовой

7. Ширма

8. Занавес

II. Кладовая

9. Шкаф-стеллаж

10. Умывальник

11. Вешалка для полотенца

РИС. П-18. ЗАЛ АРТТЕРАПИИ С КЛАДОВОЙ

ЭКСПЛИКАЦИЯ ОБОРУДОВАНИЯ

I. Кабинет

1. Стол методиста

2. Стул методиста

3. Ковер, мат

4. Шведская стенка

5. Зеркало

6. Умывальник

7. Вешалка для полотенца

II. Кладовая

8. Шкаф комбинированный

9. Манеж для складирования мячей

РИС. П-19. КАБИНЕТ ДЛЯ ИНДИВИДУАЛЬНЫХ ЗАНЯТИЙ ЛФК С КЛАДОВОЙ

ЭКСПЛИКАЦИЯ ОБОРУДОВАНИЯ

I. Зал

1. Стол методиста

2. Стул методиста

3. Шведская стенка

4. Скамья

5. Зеркало

6. Места для занятий (ковер)

7. Умывальник

8. Вешалка для полотенца

9. Сухой бассейн

II. Кладовая

10. Комбинированный шкаф

11. Манеж для складирования мячей

III. Раздевалка

12. Скамья для переодевания

13. Шкаф методиста

14. Крючки для одежды

РИС. П-20. ЗАЛ ДЛЯ ГРУППОВЫХ ЗАНЯТИЙ ЛФК С КЛАДОВОЙ И РАЗДЕВАЛКОЙ

Вариант а).

Вариант б).

ЭКСПЛИКАЦИЯ ОБОРУДОВАНИЯ

1. а). Стол специалиста

б). Стол специалиста с компьютером

2. Стул

3. Журнальный стол

4. Мягкая мебель

5. Кушетка

6. Комбинированный шкаф

7. Умывальник

8. Вешалка для полотенца

9. б). Перегородка

РИС. П-21. КАБИНЕТ ПСИХОЛОГА

ЭКСПЛИКАЦИЯ ОБОРУДОВАНИЯ

1. Стол специалиста с компьютером

2. Стул специалиста

3. Журнальный стол

4. Мягкая мебель

5. Шкаф-стеллаж

6. Умывальник

7. Вешалка для полотенца

8. Ковер (мягкое покрытие)

РИС. П-22. КАБИНЕТ ГРУППОВОЙ ПСИХОТЕРАПИИ




Rambler's Top100 Яндекс цитирования
  Copyright © 2008-2026, www.docload.ru