Бесплатная библиотека стандартов и нормативов www.docload.ru

Все документы, размещенные на этом сайте, не являются их официальным изданием и предназначены исключительно для ознакомительных целей.
Электронные копии этих документов могут распространяться без всяких ограничений. Вы можете размещать информацию с этого сайта на любом другом сайте.
Это некоммерческий сайт и здесь не продаются документы. Вы можете скачать их абсолютно бесплатно!
Содержимое сайта не нарушает чьих-либо авторских прав! Человек имеет право на информацию!

 

ГОСУДАРСТВЕННЫЙ СТАНДАРТ СОЮЗА ССР

СИСТЕМА ПРОЕКТНОЙ ДОКУМЕНТАЦИИ ДЛЯ СТРОИТЕЛЬСТВА

СВЯЗЬ И СИГНАЛИЗАЦИЯ

РАБОЧИЕ ЧЕРТЕЖИ

ГОСТ 21.603-80

ГОСУДАРСТВЕННЫЙ КОМИТЕТ СССР
ПО ДЕЛАМ СТРОИТЕЛЬСТВА

МОСКВА

РАЗРАБОТАН Министерством промышленности средств связи

ИСПОЛНИТЕЛИ:

В. В. Зелионко (руководитель темы); Р. Ю. Гуревич; Л. Е. Курзакова; Н. Ф. Маркова

ВНЕСЕН Министерством промышленности средств связи

Зам. министра Г.И. Васильев

УТВЕРЖДЕН И ВВЕДЕН В ДЕЙСТВИЕ Постановлением Государственного комитета СССР по делам строительства от 31 октября 1980 г. № 172

ГОСУДАРСТВЕННЫЙ СТАНДАРТ СОЮЗА ССР

Система проектной документации для строительства

СВЯЗЬ И СИГНАЛИЗАЦИЯ

Рабочие чертежи

System of building design documents

Communication and signalling. Working drawings.

ГОСТ
21.603-80

Постановлением Государственного комитета СССР по делам строительства от 31 октября 1980 г. № 172 срок введения установлен

с 01.07 1981 г.

Несоблюдение стандарта преследуется по закону

Настоящий стандарт устанавливает состав и правила оформления рабочих чертежей и сигнализации для предприятий, зданий и сооружений всех отраслей промышленности и народного хозяйства.

1. ОБЩИЕ ПОЛОЖЕНИЯ

1.1. Рабочие чертежи связи и сигнализации выполняют в соответствии с требованиями настоящего стандарта и других стандартов системы проектной документации для строительства.

1.2. В состав рабочих чертежей связи и сигнализации входят:

рабочие чертежи, предназначенные для производства монтажных работ (основной комплект рабочих чертежей марки СС);

чертежи общих видов нестандартных (нетиповых) конструкций;

ведомость потребности в материалах.

1.3. В состав основного комплекта рабочих чертежей марки СС включают:

общие данные по рабочим чертежам;

спецификацию;

схемы систем связи и сигнализации (далее именуются системами);

планы систем.

1.4. Основной комплект рабочих чертежей марки CС допускается расчленять на части по признакам, установленным ГОСТ 21.101-79, и по следующим дополнительным признакам: по видам связи и сигнализации;

по составным частям систем связи и сигнализации (например: станционная часть, линейная часть, наружные и внутренние сети);

по зданиям и сооружениям.

В этом случае в обозначение основных комплектов рабочих чертежей к марке СС следует добавлять порядковый номер, например, СС1, СС2.

1.5. Графические изображения оборудования, устройств, кабелей, проводов и других элементов систем на схемах и планах выполняют в соответствии с ГОСТ 2.701-76.

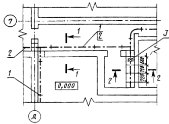
На схемах и планах систем, включающих изображения нескольких одинаковых элементов (например: расположение сетей в помещениях, подключение проводов, аналогичная установка оборудования), допускается выполнять полное изображение одного элемента, а остальное - упрощено со ссылкой на полное изображение.

Пример выполнения схемы расположения с повторяющимися элементами сети приведен на черт. 1.

Схема расположения сетей по осям 10 и 15 аналогична расположению сети, показанной по оси 5.

Черт. 1

2. ОБЩИЕ ДАННЫЕ ПО РАБОЧИМ ЧЕРТЕЖАМ

2.1. В общих указаниях, которые входят в состав общих данных по рабочим чертежам марки СС, в дополнение к сведениям, предусмотренным ГОСТ 21.102-79, приводят:

схемы, разъясняющие основные принципы организации связи и сигнализации на объекте (при необходимости);

особые требования к системам (например: обеспечение взрывобезопасности, кислотостойкости);

требования к монтажу систем.

3. СПЕЦИФИКАЦИЯ

3.1. Спецификацию выполняют по форме 1, приведенной на черт. 2.

3.2. Спецификация состоит из разделов, наименование которых определяется видами связи и сигнализации.

Наименование каждого раздела указывают в виде заголовка в графе «Наименование» и подчеркивают.

3.3. Запись элементов в каждом разделе производят в следующей последовательности:

станционное оборудование;

линейное оборудование;

абонентские устройства;

установочные изделия и разъемы;

кабели и провода.

Конструкция и монтажные изделия, а также материалы записывают отдельными разделами после разделов по видам связи.

В спецификацию не включают вспомогательные монтажные изделия и материалы.

3.4. В графах спецификации указывают:

в графе «Марка, поз.» - условные марки или позиции элементов, принятые в рабочих чертежах связи и сигнализации;

в графе «Обозначение» - обозначения основных документом или технических условий на записываемые в спецификацию элементы (допускается, при необходимости, указывать наименование завода - изготовителя этих элементов);

в графе «Наименование» - наименования и обозначения элементов в соответствии основной надписью на основных документах или принятые в стандартах на эти элементы;

в графе «Кол.» - количество элементов по рабочим чертежам связи и сигнализации;

в графе «Примечание» - дополнительные сведения, относящиеся к записанным в спецификацию элементам.

Черт. 2

4. СХЕМЫ СИСТЕМ

4.1. Общие требования

4.1.1. Схемы систем выполняют в соответствии с требованиями ГОСТ 2.701-76, ГОСТ 2.702-75 и настоящего стандарта.

4.1.2. В зависимости от видов связи и сигнализации в составе основного комплекта рабочих чертежей марки СС разрабатывают:

схемы функциональные сетей телефонной связи;

схемы или таблицы (монтажные) соединений;

схемы расположения сетей;

схемы расположения телефонной канализации;

схемы расположения устройств.

4.1.3. Допускается на схемах применять буквенные или буквенно-цифровые обозначения кабелей и проводов для определения их функциональной принадлежности к виду связи.

4.2. Схемы функциональные сетей телефонной связи

4.2.1. Схемы функциональные разрабатывают на станционную часть телефонной сети.

На схеме изображают:

ступени искания автоматической телефонной станции;

съемные приборы устанавливаемых стативов с указанием их количества;

выходы на другие станции и коммутаторные установки с указанием количества межстанционных соединительных линий в каждом направлении.

Для координатных станций на схеме приводят таблицы направлений, включаемых в поля группового искания (черт. 3 и 4).

Номер направления

Номер реле направления

Наименование направления

Количество соединительных линий

Код

Исх.

Вх.

1

Н1, Н11

Стативы II ГИ

 

 

2

2

Н3

ГАТС

10

15 + 9

9

3

Н13

Специальные

2

 

02

4

Н4

службы

2

 

03

5 - 12

Н4 - Н20

Резерв, Д-10

-

-

-

Черт. 3

Номер направления

Номер реле направления

Наименование направления

Номер статива II ГИ

Нумерация

1 - 10

Н1 - Н20

Стативы АИ 1 - 10

1 - 4

2000 - 2999

Черт. 4

4.3. Схемы или таблицы (монтажные) соединений

4.3.1. Схемы или таблицы соединений разрабатывают на станционную часть систем.

4.3.2. В схемах или таблицах соединений допускается приводить сведения о трассах и способах прокладки кабелей.

4.3.3. При разработке коммутационных соединений оборудования в дополнение к схемам или таблицам соединений допускается разрабатывать схемы или таблицы подключений.

4.4. Схемы расположения сетей

4.4.1. Схемы расположения сетей разрабатывают на линейную часть систем.

4.4.2. На схеме расположения сетей указывают:

оборудование, его тип;

кабели и провода, их марки и длины в метрах, муфты кабельные;

таблицы занятости кабелей;

номера или наименования зданий (сооружений) по генеральному плану.

Оборудованию на схемах расположения допускается присваивать буквенно-цифровые обозначения.

4.4.3. Схему расположения телефонной сети допускается разделять на схему расположения магистральной сети и схему расположения распределительной сети.

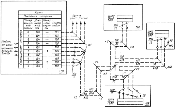
4.4.4. На схеме расположения магистральной сети указывают линейную часть кросса телефонной станции, телефонные распределительные шкафы, магистральные кабели, кабели передач между шкафами и кабели прямого распределения (черт. 5.)

Черт. 5

К схеме выполняют таблицы занятости кабелей, в которых указывают:

количество абонентских устройств по видам связи;

количество занятых пар;

принятую емкость кабеля на данном участке в парах;

процент запаса емкости кабеля.

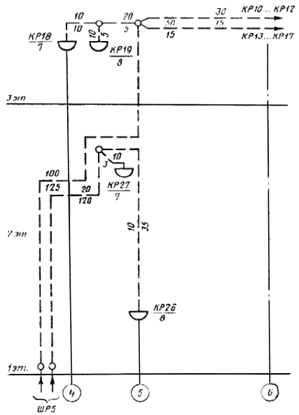
4.4.5. Схему расположения распределительной сети разрабатывают на каждый шкафной район, здание или сооружение.

4.4.6. На схеме расположения распределительной сети шкафного района (черт. 6) приводят сведения в соответствии с п. 4.4.2.

В таблице указывают данные о распределении и занятости боксов в шкафу (например, расположение и нумерацию магистральных, распределительных боксов и адрес прокладки кабеля).

Черт. 6

4.4.7. Распределительные сети на схемах расположения указывают от распределительных шкафов или ввода в здание (сооружение) до оконечных распределительных устройств (черт. 7).

Черт. 7

Схему расположения распределительной сети выполняют с учетом размещения абонентов в здании или сооружении.

Допускается у распределительных устройств указывать их позиционное обозначение и количество занятых пар.

При скрытой прокладке сетей на схеме расположения допускается показывать абонентские линии и абонентские устройства, их количество и места установки.

4.4.8. На схеме расположения воздушной линии связи указывают:

профиль и высоту опор, длины пролетов между ними;

место подвески проектируемых и существующих проводов;

марки проводов и тип системы уплотнения.

4.5. Схема расположения телефонной канализации

4.5.1. На схеме расположения телефонной канализации указывают:

контуры зданий или сооружений с учетом их взаимного расположения в соответствии с генеральным планом;

номер или наименование зданий или сооружений;

телефонную канализацию, смотровые устройства, расстояния между ними и количество каналов.

При реконструкции на схеме указывают:

количество докладываемых каналов;

тип переоборудуемых смотровых устройств;

сечения телефонной канализации с указанием расположения кабелей в существующих и докладываемых каналах.

4.6. Схемы расположения устройств

4.6.1. Схемы расположения устройств разрабатывают на станционную и линейную части сетей телефонной связи, охранной и пожарной сигнализации.

4.6.2. На схемах расположения устройств автоматической телефонной связи указывают:

коммутационные рамки на кроссе, щите переключений с указанием наименования или номера рамок, плат и других устройств;

распределение шнуровых комплектов, реле соединительных линий по стативам и включение их на входы статива регистрового искания.

4.6.3. Па схемах расположения устройств пожарной и охранной сигнализации указывают сигнализаторы, датчики и другие устройства, кабели, провода и их марки.

5. ПЛАНЫ СИСТЕМ

5.1. Общие требования

5.1.1. В зависимости от видов связи и сигнализации в составе основного комплекта рабочих чертежей марки СС разрабатывают:

планы расположения оборудования;

планы расположения конструкций для установки оборудования, прокладки и крепления кабелей;

планы расположения сетей;

планы расположения антенных устройств;

планы расположения контуров заземления;

планы расположения трасс телефонной канализации и подземных кабелей;

планы расположения трасс воздушных линий связи.

5.1.2. Планы расположения оборудования, конструкций и сетей выполняют в масштабе 1:100 или 1:200; фрагменты планов - в масштабе 1:50 или 1:100; узлы - в масштабе 1:10, 1:20 или 1:50; узлы при детальном изображении в масштабе 1:2 или 1:5. При небольших зданиях, когда выполнение фрагментов нецелесообразно, для планов принимают масштаб 1:50.

Планы расположения трасс телефонной канализации, воздушных линий связи, участков трасс радиорелейной связи выполняют в масштабе генерального плана с использованием его в качестве подосновы.

5.1.3. Оборудованию, абонентским устройствам, установочным изделиям и конструкциям, изображаемым на планах расположения, допускается присваивать цифровые позиционные обозначения.

Номера позиций наносят на чертеже, как правило, один раз.

На планах указывают марку или номер по схеме соединений кабелей и проводов над их изображением или на полках линий-выносок.

5.1.4. На планах расположения оборудования, конструкции и сетей указывают:

координационные оси здания или сооружения и расстояния между ними (для жилых знаний - расстояния между осями секций);

стены, перегородки, полы, проемы и отверстия в них, подпольные каналы и другие строительные конструкции, предусмотренные для установки оборудования и прокладки кабельных трасс;

отметки чистых полов этажей и основных площадок.

5.1.5. Планы расположения оборудования и сетей при открытой прокладке кабелей рекомендуется совмещать с планом расположения конструкций.

5.2. Планы расположения оборудования

5.2.1. Планы расположения оборудования разрабатывают в составе основных комплектов рабочих чертежей станционных и линейных частей систем связи и сигнализации.

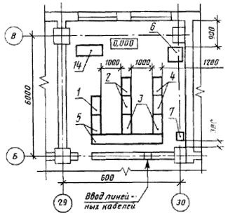
5.2.2. На планах расположения оборудования (черт. 8), кроме элементов, перечисленных в п. 5.1.4, указывают:

оборудование;

расстояния от составных частей оборудования до строительных конструкций помещения или сооружения, с нанесением установочных размеров;

размеры эксплуатационных проходов;

сведения об используемом и демонтируемом оборудовании.

1. Поз. 6 и 7 закрепить на стене, отметка низа приборов +1,300 от уровня чистого пола помещения.

2. Общие технические требования к монтажу см. - (номер чертежа).

Черт. 8

Допускается указывать шифры или наименования оборудования в их изображении или рядом.

5.3. Планы расположения конструкций для установки оборудования, прокладки и крепления кабелей

5.3.1. Планы расположения конструкций (черт. 9) разрабатывают в составе основных комплектов рабочих чертежей станционных и линейных частей систем связи и сигнализации.

1. Поз. 4, 5 и 6 приварить к контуру сопрягаемых поверхностей, катет шва 5 мм.

2. В местах прокладки труб через стены предусмотреть проемы 500´500 мм, низ на отметке +1,500 от уровня чистого пола помещения.

Черт. 9

5.3.2. На планах расположения конструкций, кроме элементов, перечисленных в п. 5.1.4, указывают:

стойки, рамы, трубопроводы, лотки, полки и другие конструкции с установочными размерами и привязками;

сведения об используемых и демонтируемых конструкциях.

Допускается на основных направлениях указывать сечения труб с проставлением количества кабелей.

5.4. Планы расположения сетей

5.4.1. Планы расположения сетей разрабатывают в составе основного комплекта рабочих чертежей линейной части систем связи и сигнализации (при необходимости).

5.4.2. На планах расположения сетей, кроме элементов, перечисленных в п. 5.1.4, указывают:

распределительные и абонентские устройства, кабели и провода, их типы, количество, марки и муфты кабельные;

способ прокладки кабелей и проводов (по стене, в полу, в стояке, лотках, трубах);

установочные размеры и привязки.

Сечения трасс допускается указывать в таблице с проставлением количества кабелей, порядка их размещения и способа прокладки.

Участки абонентских линий от оконечных распределительных устройств до абонентских допускается не указывать. В этом случае около абонентских устройств указывают номер распределительного устройства, в которое они включаются.

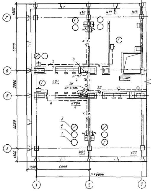
Пример выполнения плана расположения телефонной сети приведен на черт. 10.

3-й этаж

Распределительные кабели проложить в полу, телефонные коробки установить на высоте 1,5 м от пола в шкафах, телефонные розетки установить в нишах; абонентские линии проложить в плинтусе.

Черт. 10

5.5. Планы расположения антенных устройств

5.5.1. Планы расположения антенных устройств разрабатывают в составе основного комплекта рабочих чертежей линейной части систем связи.

5.5.2. На планах расположения антенных устройств указывают:

антенную опору с указанием установочных размеров и привязок;

ввод антенного фидера, способ его прокладки, установочные размеры и привязки.

5.6. Планы расположения контуров заземления

5.6.1. Планы расположения контуров заземления разрабатывают в составе основных комплектов рабочих чертежей станционных и линейных частей систем связи и сигнализации.

5.6.2. На планах расположения внешних контуров заземления указывают:

здания, в которых размещено станционное оборудование, ввод заземления и здание, его установочные размеры и привязки;

расположение электродов заземления, расстояния между ними, соединения между электродами; назначение заземлений.

План расположения контуров заземления выполняют в масштабе генерального плана с использованием его в качестве подосновы.

5.6.3. На планах расположения внутренних контуров заземления, кроме элементов, приведенных в п. 5.1.4, указывают расположение шин и щитков заземления.

План расположения внутренних контуров заземления допускается совмещать с планом расположения оборудования или конструкций.

5.7. Планы расположения трасс телефонной канализации и подземных кабелей

5.7.1. Планы расположения трасс телефонной канализации и подземных кабелей разрабатывают в составе основного комплекта рабочих чертежей линейной части систем связи.

5.7.2. На планах указывают:

телефонную канализацию;

смотровые устройства, их тип, номер, количество каналов;

установочные размеры вводов, всех угловых, разветвительных смотровых устройств и расстояния между ними.

5.7.3. При проектировании новой телефонной канализации на особо сложных участках строительства (например, сложный рельеф, сложные пересечения с инженерными сооружениями) разрабатывают продольный профиль по оси трассы. Для остальных участков на пересечении с подземными коммуникациями, при докладке новых каналов при реконструкции указывают поперечные разрезы трассы.

На продольном профиле указывают:

поверхность земли (проектную и натурную);

пересекаемые автомобильные дороги и железнодорожные пути;

кюветы, каналы, колонны эстакад воздушной прокладки;

прилегающие и пересекаемые наземные инженерные сооружения и коммуникации;

отметки уровней поверхности земли (проектные и натурные);

отметки верха и низа блока труб, дна телефонных колодцев;

расстояния между колодцами, номера колодцев, уклон и количество прокладываемых каналов.

Цифровые данные (отметки, уклон, длины участков) приводят в таблице, размещаемой под изображением профиля.

Отметки указывают в узлах ответвлений трубопровода, в точках изменения уклона, углах поворота трасс.

5.8. Планы расположения трасс воздушных линий связи

5.8.1. Планы расположения трасс воздушных линий связи разрабатывают в составе основного комплекта рабочих чертежей линейной части систем связи.

5.8.2. На планах расположения трасс воздушных линий связи указывают:

профили воздушной линии;

привязочные размеры трассы к осям автомобильных или железных дорог;

привязочные размеры опор (указываются при наличии на трассе подземных коммуникаций).

6. ЧЕРТЕЖИ ОБЩИХ ВИДОВ НЕСТАНДАРТНЫХ (НЕТИПОВЫХ) КОНСТРУКЦИЙ

6.1. Чертежи общих видов нестандартных (нетиповых) конструкций выполняют в объеме, необходимом для разработки конструкторской документации на стадии технического задания по ГОСТ 2.103-68.

6.2. Чертеж общего вида нестандартной (нетиповой) конструкции должен содержать:

изображения конструкции (виды, разрезы, сечения), текстовые указания и надписи, необходимые для понимания устройства конструкции;

наименования составных частей конструкции (при необходимости);

размеры и другие наносимые на изображении данные;

схему, если она требуется.

6.3. Изображения нестандартной (нетиповой) конструкции выполняют с максимальными упрощениями.

6.4. Наименования составных частей нестандартной (нетиповой) конструкции на чертеже общего вида указывают на полках линий-выносок.

6.5. В текстовых указаниях, помещаемых на чертеже общего вида нестандартной (нетиповой) конструкции, приводят исходные данные, необходимые для разработки технического задания (технические требования к разрабатываемой конструкции и применяемым материалам, данные о рабочей среде, нагрузки на конструкцию, требования к изготовлению, монтажу и окраске, особые требования к конструкции - взрывобезопасность, кислотостойкость и др.).

6.6. Чертежи общих видов нестандартных (нетиповых) конструкций выполняют в масштабе 1:5, 1:10, 1:20 или 1:50.

7. ВЕДОМОСТЬ ПОТРЕБНОСТИ В МАТЕРИАЛАХ

7.1. Ведомость потребности в материалах на системы связи и сигнализации выполняют по ГОСТ 21.109-80.

СОДЕРЖАНИЕ

 




Rambler's Top100 Яндекс цитирования
  Copyright © 2008-2025, www.docload.ru