
ГОСУДАРСТВЕННЫЙ
СТАНДАРТ СОЮЗА ССР
ЭЛЕМЕНТЫ И
ДЕТАЛИ ВСТРОЕННЫХ
ШКАФОВ И АНТРЕСОЛЕЙ ДЛЯ
ЖИЛЫХ
ЗДАНИЙ
ТЕХНИЧЕСКИЕ
УСЛОВИЯ
ГОСТ
26138-84
ГОСУДАРСТВЕННЫЙ
СТРОИТЕЛЬНЫЙ КОМИТЕТ СССР
Москва
ГОСУДАРСТВЕННЫЙ
СТАНДАРТ СОЮЗА ССР
|
ЭЛЕМЕНТЫ
И ДЕТАЛИ ВСТРОЕННЫХ ШКАФОВ И АНТРЕСОЛЕЙ ДЛЯ ЖИЛЫХ
ЗДАНИЙ Технические
условия Elements
of in furniture and entresols for residential buildings.
Specifications |
ГОСТ
|
Постановлением
Государственного комитета СССР по делам строительства от 23 декабря 1983 г. №
331 срок введения установлен
с
01.07.84
Настоящий стандарт
распространяется на элементы и детали встроенных шкафов и антресолей,
монтируемых в жилых зданиях по окончании отделочных работ на чистые
полы.
1.1. Элементы и детали
встроенных шкафов и антресолей подразделяют на следующие:
ДШ - блок дверной
шкафа;
ДА - блок дверной
антресоли;
СБШ - стенка боковая
шкафа;
СБА - стенка боковая
антресоли;
СП - стенка
промежуточная;
ПА - полка
антресольная;
ПП - полка
переставная;
БМ - брусок
монтажный;
Ц -
цоколь;
Н -
наличник;
ШД -
штангодержатель;
Ш -
штанга.
1.2. Дверные блоки шкафов и
антресолей состоят из полотен, навешенных на каркас из деревянных брусков на
петли.
Блоки изготовляют
однопольными (левыми и правыми) и двупольными.
1.3. По конструкции полотен
дверок шкафа и антресоли подразделяют на:
изделия с полотном из
древесностружечной плиты;
изделия с щитовым
полотном.
1.4. Поверхности элементов и
деталей шкафов и антресолей подразделяют на лицевые и
нелицевые.
К лицевым относят
поверхности:
полотен дверок шкафов и
антресолей (наружные и внутренние поверхности и видимые
кромки);
боковых стенок (наружная
поверхность и передняя кромка);
антресольных полок над
дверным проемом (наружная поверхность и передняя кромка);
переставных полок в шкафу
(передняя кромка);
наличников, цоколя,
раскладок и нащельников (видимые поверхности).
К нелицевым поверхностям
относят остальные поверхности дверных блоков шкафов и антресолей и их
деталей.
1.5. По виду отделки дверок
и лицевых поверхностей элементы шкафа и антресоли подразделяют
на:
изделия с непрозрачным
защитно-декоративным покрытием;
изделия с прозрачным
покрытием.
Дверные
блоки антресолей
Черт.
1
Примечания:
1. Над схемами дверных блоков шкафов и антресолей
обозначены их марки.
2. На чертеже обозначены левые однопольные
блоки.
Блок дверной
антресоли
Черт.
2
Примечания:
1. Толщина полотен из древесностружечных плит 16 или 19
мм, полотен с мелкопустотным заполнением - 20 мм.
2. При изготовлении дверок без притворной планки зазор 2
мм.
Черт.
3
_________
* Для варианта переставных полок без выреза
угла.
Примечания:
1. Толщина полотен из древесностружечных плит 16 или 19
мм, полотен с мелкопустотным заполнением - 20 мм.
2. Размеры полок антресолей над внутриквартирными
проходами принимают по рабочим чертежам.
1.6. Двупольные дверные
блоки шкафов и антресолей могут изготовляться с притворными планками или без
них.
1.7. Типы и габаритные
размеры дверных блоков шкафов и антресолей должны соответствовать указанным на
черт. 1,
размеры сечений деталей и притворов - на черт. 2.
1.8. Типы и габаритные
размеры деталей шкафов и антресолей должны соответствовать указанным на черт.
3.
Допускается по согласованию изготовителя с потребителем применение других
размеров по рабочим чертежам, утвержденным в установленном
порядке.
1.9. По требованию
потребителя допускается изготовлять детали для встроенных шкафов и антресолей
глубиной 400 мм (вместо 450 мм).
1.10. Габаритные размеры
полотен дверок и каркасов для них должны соответствовать указанным в табл. 1.
Таблица 1
мм
|
Высота | ||
|
Антресоль |
Шкаф | |
|
Полотна
дверок | ||
|
396; 446;
496 |
396; 496;
596; 696 |
1696;
1996 |
|
Каркасы | ||
|
400; 450;
500; 800; 900; 1000 |
400; 500;
600; 700 |
1700;
2000 |
1.11. Примеры сочетания
шкафов и антресолей по высоте и ширине, их компоновки в помещениях, разрезы и
узлы приведены в рекомендуемых приложениях 1
и 2.
1.12. На чертежах настоящего
стандарта указаны размеры элементов и деталей до отделки в
миллиметрах.
1.13. На элементы и детали
шкафов и антресолей устанавливают следующую структурную схему условного
обозначения:

Примеры
условных обозначений:
Однопольный дверной блок
шкафа высотой 2000 мм и шириной 500 мм, с правым открыванием
полотна:
ДШ 20-5П ГОСТ
26138-84
Двупольный дверной блок
антресоли высотой 500 мм и шириной 800 мм:
ДА5-8 ГОСТ
26138-84
Стенка промежуточная высотой
2080 мм и шириной 580 мм:
СП 21-6 ГОСТ
26138-84
Полка переставная длиной 798
мм и шириной 570 мм:
ПП 8-6 ГОСТ
26138-84
Брусок монтажный длиной 2080
мм:
БМ 21 ГОСТ
26138-84
2.1. Элементы и детали
шкафов и антресолей должны изготовляться в соответствии с требованиями
настоящего стандарта по рабочим чертежам, утвержденным в установленном
порядке.
2.2. Предельные отклонения
от номинальных размеров элементов шкафов и антресолей, размеров зазора в
притворе, сопрягаемых размеров шиповых соединений и свободных размеров деталей
не должны быть более указанных в табл. 2.
Таблица 2
|
Пред. откл.,
мм | |
|
Габаритные
размеры полотен дверок, каркасов, боковых и промежуточных стенок,
полок: |
|
|
до 500 мм
включ. |
±
2,0 |
|
св. 500
мм |
±
3,0 |
|
Размеры
зазора в притворе |
±
1,0 |
|
Сопрягаемые
размеры шиповых соединений: |
|
|
ширина
проушин |
+
0,4 |
|
толщина
шипов |
±
0,2 |
|
Свободные
размеры элементов и деталей (стенок,
полок): |
|
|
толщина |
±
0,6 |
|
ширина |
±
1,0 |
2.3. Элементы и детали
шкафов и антресолей должны иметь правильную геометрическую
форму.
Покоробленность полотен
дверок, боковых стенок, полок и деталей в изделиях не должна превышать 1 мм на 1
м длины или ширины элемента.
Отклонения от
перпендикулярности полотен дверок, боковых стенок и полок в изделиях не должны
быть более 0,8 мм/м.
2.4. Провесы на лицевых
сторонах брусков каркаса не должны превышать 0,5 мм, а на нелицевых сторонах и в
торцах щиповых соединений - 1 мм. Зазоры в щиповых соединениях коробок не
допускаются.
2.5. Полотна дверок шкафов и
антресолей, боковые и промежуточные стенки должны изготовляться из щитов
толщиной 20 мм со сплошным или мелкопустотным заполнением, выполненным в
соответствии с ГОСТ 6629-88 из
древесностружечной плиты толщиной 16 или 19 мм по ГОСТ 10632-77 или из
ламинированной древесностружечной плиты.
Для облицовки щитов должна
применяться древесноволокнистая плита марки Т-400, толщиной 3,2 мм по ГОСТ 4598-86 или
клееная фанера марки СК не ниже сорта
по ГОСТ
3916-69.
Промежуточные стенки
допускается изготовлять из двух склеенных между собой древесноволокнистых плит
марки Т-400 по ГОСТ
4598-86.
Антресольные и переставные
полки должны изготовляться из древесностружечных плит толщиной 16 или 19 мм по
ГОСТ 10632-77 или клееной фанеры толщиной 10 - 12 мм по ГОСТ
3916-81.
Антресольные полки над
внутриквартирными проходами следует изготовлять из древесностружечных плит
толщиной 19 мм по ГОСТ 10632-77.
2.6. Каркасы шкафов и
антресолей, монтажные бруски и бруски цоколя следует изготовлять из древесины
хвойных и лиственных пород, при этом пороки древесины и дефекты обработки не
должны быть более указанных в ГОСТ 475-78 для
коробок. Детали цоколя и наличники, превышающие по размерам предусмотренные в
ГОСТ 8242-75, допускается изготовлять из древесностружечных плит с
соответствующим защитно-декоративным покрытием.
В деталях рамок полотен
дверок, нательниках и штангах пороки древесины и дефекты обработки не должны
превышать указанных в ГОСТ 475-78 для
раскладок, нащельников и обкладок.
Наличники и раскладки
изготовляют в соответствии с требованиями ГОСТ 8242-75.
Раскладки, наличники и
нащельники под прозрачное отделочное покрытие изготовляют из древесины твердых
лиственных пород или березы, тонированной под цвет отделки дверок и боковых
стенок шкафов и антресолей. Шканты следует изготовлять из древесины
твердолиственных пород или березы.
2.7. Влажность деревянных
деталей шкафов и антресолей должна быть (9 ± 3) %, а влажность древесины заделок
(пробок, вставок) должна быть на 2 - 3 % меньше влажности
деталей.
2.8. Пробки и вставки для
заделки сучков, пороков древесины и дефектов обработки должны изготовляться из
древесины без пороков одной породы с деталью и устанавливаться на клею плотно,
без зазоров, заподлицо с поверхностью детали и с направлением волокон,
соответствующим древесине деталей.
Размеры пробок не должны
превышать размеров допускаемых сучков, а размеры вставок - не более 4
см2.
Число пробок и вставок на
лицевой поверхности детали не должно бить более 2 шт. на 1 м ее
длины.
2.9. Угловые соединения
каркаса дверок шкафов и антресолей должны быть выполнены клееными на прямых
шипах с дополнительным креплением угловых соединений металлическими крепежными
элементами, исключающими раскалывание, по рабочим
чертежам.
Прочность угловых соединений
должна быть не менее 0,2 МПа (2 кгс/см2).
2.10. Прочность склеивания
облицовки с рамкой щитового полотна на отрыв должна быть не менее 0,15 МПа (1,5
кгс/см2).
2.11. Сопротивление
отслаиванию пленки типа ПДСО по ГОСТ 24944-81 от
основы должно быть не менее 1,8 Н/см (180 кг/см). При использовании пленки ПДО
видимые отслоения пленки от основы не допускаются.
2.12. Детали встроенных
шкафов и антресолей допускается изготовлять клееными по
длине.
Склеивание по длине должно
производиться на зубчатые шипы по ГОСТ 19414-79. Число соединений по длине
должно быть не более трех на 1 м детали при минимальной длине склеиваемых
заготовок 250 мм.
Прочность клеевых зубчатых
соединений на изгиб должна быть не менее 50 % прочности цельной
древесины.
2.13. Шероховатость
Rm лицевых поверхностей
полотен, боковых стенок и деталей шкафов и антресолей по ГОСТ 7016-82
должна быть не более:
под непрозрачное отделочное
покрытие:
в изделиях первой категории
качества - 200 мкм;
в изделиях высшей категории
качества - 100 мкм;
под прозрачное отделочное
покрытие - 60 мкм.
Шероховатость нелицевых
поверхностей не должна быть более 320 мкм.
2.14. Лицевые и нелицевые
поверхности элементов и деталей шкафов и антресолей должны иметь защитное или
защитно-декоративное отделочное покрытие. Вид покрытия устанавливают в заказе по
согласованию изготовителя с потребителем.
2.15. Вид, цвет и рисунок
отделки лицевых поверхностей полотен дверок и боковых стенок, а также цвет
видимых поверхностей деталей должен соответствовать эталонам изделий,
утвержденным в установленном порядке.
2.16. Прозрачное отделочное
покрытие применяют при изготовлении элементов и деталей, облицованных строганым
шпоном по ГОСТ 2977-82 или
лущеным шпоном по ГОСТ 99-75.
Прозрачное отделочное
покрытие производят прозрачными лаками.
2.17. Непрозрачное
отделочное покрытие следует выполнять красками и эмалями, в том числе
водоэмульсионными, по грунтовке и шпатлевке с предварительной
шлифовкой.
2.18. Качество отделочного
покрытия на лицевых поверхностях элементов и деталей шкафов и антресолей должно
соответствовать III классу, а нелицевых - IV классу по ГОСТ
24404-80.
2.19. Полотна дверок и
боковые стенки шкафов и антресолей допускается отделывать напрессовкой
текстурных пропитанных смолами бумаг, либо наклейкой декоративной
поливинилхлоридной отделочной пленки типа ПДСО или ПДО по ГОСТ 24944-81 с
рисунком под древесину.
2.20. Полотна дверок и
боковые стенки допускается изготовлять из материалов с готовыми отделочными
покрытиями: из декоративного бумажнослоистого пластика по ГОСТ 9590-76, из
твердых древесноволокнистых плит с лакокрасочным покрытием по ГОСТ 8904-81 либо
из ламинированных древесностружечных плит.
2.21. Облицовка полотен
дверок отделочными материалами должна производиться с двух сторон. При облицовке
лицевой поверхности полотен строганым или лущеным шпоном твердолиственных пород
нелицевую поверхность допускается облицовывать березовым шпоном или текстурной
бумагой либо пленкой ПДСО и ПДО по ГОСТ
24944-81.
2.22. Отделочные материалы
для облицовки, включая шпон, для лицевых поверхностей полотен дверок и боковых
стенок должны подбираться по породе, текстуре, рисунку и
цвету.
На облицованной поверхности
не допускаются расхождения и нахлестки полос облицовок, отслоения, пузыри,
вмятины и сморщивание облицовочного материала, а также пятна от просочившегося
клея.
2.23. Полотна дверок и
боковые стенки шкафов и антресолей могут иметь прозрачное лакокрасочное покрытие
или декоративную облицовку, а каркас дверок и основные детали - непрозрачное
лакокрасочное покрытие. Лицевую поверхность цоколя допускается облицовывать
бумажнослоистым пластиком.
2.21. Видимые кромки полотен
дверок, боковых стенок и других деталей под любое их покрытие следует
облицовывать строганым шпоном, кромочным пластиком, поливинилхлоридным профилем
или обкладками из древесины лиственных пород соответствующего цвета,
тонированными под цвет поверхности изделий.
2.25. Лакокрасочные покрытия
должны иметь прочное, без отслаивания сцепление (адгезию) с отделываемой
поверхностью не ниже 2-го балла по ГОСТ
15140-78.
2.26. Изделия, аттестуемые
по высшей категории качества, должны иметь декоративную облицовку полотен дверок
и боковых стенок из строганого шпона, бумажнослоистого пластика, твердой
древесноволокнистой плиты с лакокрасочным покрытием или других
высококачественных декоративных материалов.
2.27. Элементы и детали
шкафов и антресолей должны поставляться потребителям с окончательной отделкой,
не требующей дополнительных отделочных работ на строительных
объектах.
2.28. Шкафы и антресоли
комплектуют фурнитурой и крепежными деталями, изготовленными в соответствии с
нормативно-технической документацией.
Полотна дверок навешивают на
каркас петлями, обеспечивающими навеску накладных полотен.
Полотна дверок шкафов
навешивают на три петли, а антресолей - на две петли.
2.29. Полотна дверок без
замков должны иметь ручки, задвижки и защелки, фиксирующие их в закрытом
положении, или четырехшарнирные петли, предотвращающие самопроизвольное
открывание дверок.
2.30. Установка петель и
замков должна быть плотной и обеспечивать свободное открывание и закрывание
дверок.
2.31. У шкафов и антресолей
высшей категории качества металлическая фурнитура и крепежные детали должны быть
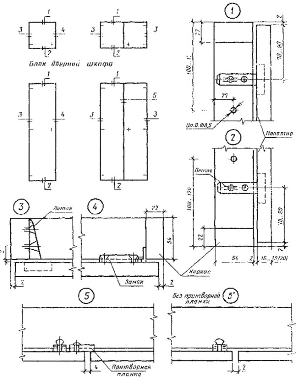
никелированными или хромированными.
2.32. Примеры расположения
фурнитуры и крепежных деталей приведены в рекомендуемом приложении 3.
3.1.
Предприятие-изготовитель обязано поставлять элементы и детали шкафов комплектно
в соответствии со спецификацией заказчика, выданной на основе рабочих чертежей,
разработанных для каждой серии жилого дома, секции или этажа по настоящему
стандарту.
По требованию потребителя
допускается поставлять отдельные элементы и детали шкафов и
антресолей.
3.2. Полотна дверок шкафов и
антресолей должны быть закреплены для транспортирования.
Фурнитура, выступающая за
габариты дверок (ручки, ключи), и крепежные детали должны быть упакованы в
отдельную тару и поставляться в комплекте с изделиями.
4.1. Приемку элементов
шкафов и деталей производят партиями, объем которых определяют по согласованию
изготовителя с потребителем.
В состав партии входят
элементы и детали шкафов с полотнами дверок одной конструкции, одного вида и
качества отделки, изготовленные по одному заказу.
Объем партии изделий не
должен превышать 200 шт.
4.2. Для проверки
соответствия изделий требованиям настоящего стандарта следует применять
выборочный метод контроля по альтернативному признаку.
Приемка изделий должна
производиться по плану выборочного одноступенчатого контроля, составленному по
ГОСТ 23616-79 и
приведенному в табл. 3.
Таблица 3
шт.
|
Объем выборки |
Приемочное число С1 |
Браковочное число С2 | |
|
До
25 |
5 |
1 |
2 |
|
От 26 до
90 |
8 |
2 |
3 |
|
» 91 »
200 |
13 |
3 |
4 |
4.3. Партию изделий
принимают, если число дефектных изделий меньше или равно приемочному числу С1, и не принимают, если их
число больше или равно браковочному числу С2.
4.4. Приемку изделий из
партии, не принятой в результате выборочного контроля, следует производить
поштучно. При этом контролируют лишь те параметры (или параметр) изделий, по
которым партия не была принята при ее выборочном контроле.
4.5. Приемка партии должна
осуществляться по результатам оценки входящих в состав партии элементов и
деталей шкафов и антресолей всем требованиям настоящего стандарта, рабочим
чертежам и эталонам изделий.
4.6. Качество древесины
деталей, в том числе их влажность, качество их обработки и сборки элементов
оценивают по результатам операционного контроля, осуществляемого до нанесения
отделочного покрытия.
4.7. Прочность клеевых
соединений и прочность сцепления лакокрасочных покрытий с отделанными
поверхностями оценивают по результатам испытаний, осуществляемых не реже одного
раза в квартал, а также при получении каждой новой партии клея и лакокрасочного
материала.
4.8. Наличие и качество
установки фурнитуры и соответствие фурнитуры и вида отделки утвержденным
эталоном оценивают по результатам визуального осмотра всех изделий, входящих в
состав партии.
4.9. Потребитель имеет право
производить контроль качества изделий на предприятии-изготовителе по
показателям, которые проверяют на готовых изделиях, применяя при этом правила
приемки, установленные настоящим стандартом. Показатели качества, которые не
могут быть проверены на готовых изделиях, потребитель имеет право проверить по
данным журналов ОТК и в лаборатории
предприятия-изготовителя.
5.1. Наличие пороков и
дефектов обработки древесины в элементах и деталях шкафов и антресолей оценивают
визуально и путем измерения их значения с погрешностью до 1 мм металлической
линейкой по ГОСТ
427-75.
Ширину трещин измеряют
набором щупов по ГОСТ 8925-68 с
минимальной толщиной пластинки 0,1 мм.
5.2. Отклонения от размеров
элементов и деталей шкафов, покоробленность полотен и провесы измеряют с
погрешностью до 0,1 мм. Для измерения используют предельные калибры по ГОСТ
15876-70, в том числе с индикаторами по ГОСТ 577-68,
штангенциркули по ГОСТ 166-80, штангенглубиномеры по ГОСТ 162-80, нутромеры по
ГОСТ 9244-75,
поверочные линейки по ГОСТ 8026-75, наборы щупов по ГОСТ 8925-68.
Отклонения от перпендикулярности полотен дверок, боковых стенок и полок измеряют
с погрешностью до 0,1 мм с помощью угломера с нониусом по ГОСТ 5378-66,
поверочного угольника 90° по ГОСТ 3749-77,
набора щупов по ГОСТ 8925-68 или
индикатора часового типа по ГОСТ
577-68.
5.3. Покоробленность
элементов и деталей шкафов и антресолей определяют измерением максимального
зазора между их поверхностью поверочной линейки с помощью индикатора,
штангенглубиномера и набора щупов.
Покоробленность полотен
проверяют в поперечном, продольном и диагональном направлениях. Длина поверочной
линейки должна превышать максимальные размеры проверяемых
поверхностей.
5.4. Влажность древесины
проверяют по ГОСТ 16588-79.
5.5. Прочность склеивания
угловых соединений определяют методом сжатия уголков по ГОСТ
23166-78.
5.6. Прочность склеивания
облицовки с рамкой щита определяют по ГОСТ
25885-83.
5.7. Сопротивление
отслаиванию поливинилхлоридной пленки от основы испытывают по ГОСТ
24944-81.
5.8. Прочность при изгибе
деталей, склеенных по длине на зубчатые шипы, определяют по ГОСТ
15613.4-78.
5.9. Шероховатость
поверхностей оценивают по ГОСТ 15612-85 или
методом сравнения с эталонами, утвержденными в установленном
порядке.
5.10. Соответствие внешнего
вида лицевых поверхностей элементов и деталей шкафов с отделочным покрытием или
декоративной облицовкой требованиям настоящего стандарта оценивают визуально,
без применения увеличительных приборов.
5.11. Прочность сцепления
(адгезию) лакокрасочных покрытий с отделываемой поверхностью определяют методом
решетчатых надрезов по ГОСТ
15140-78.
6.1. На принятые ОТК изделия
наклеивают этикетку или наносят несмываемой краской при помощи трафарета или
штампа маркировочные знаки, обозначающие:
товарный знак
предприятия-изготовителя или его краткое наименование;
марку
изделия;
число
деталей;
дату
изготовления;
штамп приемщика
ОТК;
изображение государственного
Знака качества, утвержденного в установленном порядке (для изделий высшей
категории качества);
обозначение настоящего
стандарта.
При маркировке дверных
блоков шкафов и антресолей маркировочные знаки наносят на наружную торцевую
кромку каркаса, боковых и промежуточных стенок и полок - на нелицевую
поверхность; деталей - на ярлык, прикрепляемый к упаковке.
6.2. Блоки дверок шкафов и
антресолей должны быть обернуты одним слоем упаковочной водонепроницаемой бумаги
по ГОСТ 8828-75, парафинированной бумаги по ГОСТ 9569-79 и
обвязаны шпагатом № 3 по ГОСТ 17308-71.
Допускается применение в
качестве упаковочного материала полиэтиленовой пленки по ГОСТ
10354-82.
Боковые стенки должны быть
упакованы попарно, лицевой поверхностью друг к другу с бумажной прокладкой между
ними и обернуты бумагой.
Промежуточные стенки, полки
и детали должны быть упакованы в пачки, массой не более 40 кг
каждая.
6.3. При поставке изделий в
возвратной таре, контейнерах или автомобилях со специально оборудованными
кузовами, обеспечивающими сохранность защитно-декоративных покрытий и
предохраняющими изделия от механических повреждений, допускается не упаковывать
изделия в бумагу или полиэтиленовую пленку.
6.4. Транспортирование
изделий производят в горизонтальном положении с соблюдением условий, исключающих
возможность их механических повреждений и загрязнений, а также обеспечивающих
защиту от атмосферных осадков.
6.5. При транспортировании
изделий железнодорожным транспортом в крытых вагонах упаковка должна
соответствовать ГОСТ 21929-76, а транспортная маркировка каждого грузового места
- ГОСТ
14192-77.
6.6. Хранение элементов и
деталей шкафов и антресолей на складах изготовителя и потребителя производят в
горизонтальном положении на подстопных местах в помещениях с температурой не
ниже 10 °С и относительной влажностью воздуха не выше 60
%.
6.7. Съемную фурнитуру и
крепежные детали хранят и транспортируют в отдельной таре.
6.8. Изготовитель должен
сопровождать каждую отгруженную партию изделий документом о качестве, в котором
указывают:
наименование и адрес
изготовителя;
номер и дату выдачи
документа о качестве;
номер
партии;
число изделий каждой марки в
штуках;
дату
изготовления;
данные контрольных испытаний
влажности древесины и прочности клеевых соединений;
вид отделочного покрытия
элементов и деталей;
спецификацию фурнитуры и
крепежных деталей;
обозначение настоящего
стандарта;
четкое изображение
государственного Знака качества для изделий высшей категории
качества.
Документ о качестве должен
быть подписан лицом, ответственным за технический контроль
предприятия-изготовителя.
7.1. Шкафы и антресоли
должны монтироваться в помещении на чистом полу после грунтовки стен и окраски
потолка или после окончательной отделки помещения в соответствии с монтажными
чертежами этих изделий по проекту жилого здания.
При монтаже изделий должны
быть приняты меры по предотвращению повреждений и загрязнения их
поверхности.
7.2. Дверные блоки шкафов
соединяют одновременно с промежуточными стенками на цоколе стяжными винтами.
Также соединяют дверные блоки антресоли с дверными блоками шкафа. По требованию
потребителя допускаются другие способы соединения.
7.3. Зазоры между шкафом и
стеной, а также между антресолью и потолком должны закрываться наличником
переменной ширины, с обеспечением свободного открывания и закрывания дверок
шкафа и антресоли.
7.4. Боковые стенки и
монтажные бруски должны крепиться к стене в соответствии с проектом привязки
шкафа.
При монтаже шкафа с
промежуточными стенками из древесноволокнистых плит применяют монтажные бруски,
а при изготовлении промежуточных стенок из древесностружечных плит или щитов
монтажные бруски не применяют.
При изготовлении боковых
стенок шкафа и антресоли из древесностружечной плиты их допускается делать
цельными, без разрезки по высоте. Допускается также изготовление антресолей и
шкафов в общей коробке через импост, либо установка коробки антресоли на коробку
шкафа.
7.5. Антресоли,
располагаемые над внутриквартирными проходами, должны крепиться к ограждающим
конструкциям при помощи металлических угольников или деревянных
реек.
7.6. По согласованию с
потребителем допускается крепление полотен дверных блоков шкафов и антресолей к
каркасу при помощи крепежных угольников или шурупов, с целью использования их в
качестве задних стенок при монтаже шкафов-перегородок.
7.7. Соединение элементов и
деталей при сборке шкафов и антресолей должно производиться по уровню и отвесу
плотной посадкой, без перекоса полотен дверок, боковых и промежуточных стенок,
как по вертикали, так и по горизонтали. Лицевые поверхности полотен дверок
шкафов и антресолей и боковых стенок должны быть подобраны по текстуре и
цвету.
7.8. Внутренние поверхности
стен зданий в пределах шкафов и антресолей должны быть предварительно отделаны в
соответствии с проектом здания.
8.1. Изготовитель
гарантирует соответствие элементов и деталей шкафов и антресолей требованиям
настоящего стандарта при соблюдении потребителем условий транспортирования,
хранения и монтажа.
8.2. Гарантийный срок
хранения - 1 год со дня отгрузки изделий изготовителем.
Рекомендуемое
По высоте

Примечания:
1. h - высота помещения от уровня чистого пола до
перекрытия.
2. При h менее 2520 мм и высоте шкафа 1700 м высоту антресоли
принимают равной 600 мм.
3. При применении в одном здании полов различных толщин
допускается высоту антресоли принимать равной 450 мм.
Рекомендуемое

Рекомендуемое

СОДЕРЖАНИЕ
|
1.
Типы, конструкция и размеры.. 1 2.
Технические требования. 6 3.
Комплектность. 10 4.
Правила приемки. 10 5.
Методы контроля. 11 6.
Маркировка, упаковка, транспортирование и хранение. 11 7.
Указания по монтажу. 13 8.
Гарантии изготовителя. 13 Приложение
1 Сочетание
блоков шкафов и антресолей. 13 Приложение
2 Пример
компоновки встроенных шкафов и антресолей. 15 Приложение
3 Примеры
расположения фурнитуры и крепежных деталей. 16 |