Бесплатная библиотека стандартов и нормативов www.docload.ru

Все документы, размещенные на этом сайте, не являются их официальным изданием и предназначены исключительно для ознакомительных целей.
Электронные копии этих документов могут распространяться без всяких ограничений. Вы можете размещать информацию с этого сайта на любом другом сайте.
Это некоммерческий сайт и здесь не продаются документы. Вы можете скачать их абсолютно бесплатно!
Содержимое сайта не нарушает чьих-либо авторских прав! Человек имеет право на информацию!

 

ГОСУДАРСТВЕННЫЙ СТАНДАРТ СОЮЗА ССР

ДВЕРИ ДЕРЕВЯННЫЕ ДЛЯ
ПРОИЗВОДСТВЕННЫХ ЗДАНИЙ

Типы, конструкция и размеры

ГОСТ 14624-84

ГОСУДАРСТВЕННЫЙ СТРОИТЕЛЬНЫЙ КОМИТЕТ СССР

Москва

ГОСУДАРСТВЕННЫЙ СТАНДАРТ СОЮЗА ССР

ДВЕРИ ДЕРЕВЯННЫЕ ДЛЯ ПРОИЗВОДСТВЕННЫХ ЗДАНИЙ

Типы, конструкция и размеры

Wooden doors for industrial buildings.

Types, structure and dimensions

ГОСТ
14624-84

Взамен
ГОСТ 14624-69 и ГОСТ 17324-71

Дата введения 01.07.85

Настоящий стандарт распространяется на деревянные внутренние и наружные двери для производственных зданий промышленных и сельскохозяйственных предприятий.

Стандарт не распространяется на двери специального исполнения (трудносгораемые, несгораемые, звукоизолирующие).

1. ТИПЫ И РАЗМЕРЫ

1.1. В зависимости от назначения двери подразделяют на: В - внутренние; Н - наружные.

1.2. В зависимости от конструкции двери подразделяют на типы:

Г - с притвором в четверть, с глухими полотнами;

О - то же, с остекленными полотнами;

К - с остекленными качающимися полотнами.

1.3. Двери типа В изготовляют щитовыми со сплошным или мелкопустотным (решетчатым) заполнением дверных полотен.

1.4. Двери типа Н изготовляют со сплошными щитовыми или рамочными полотнами. Щитовые полотна допускается изготовлять без обшивки или с реечной обшивкой.

Двери типа Н относят к изделиям повышенной влагостойкости.

1.5. Двери типов Г и О изготовляют правыми и левыми, с порогом и без порога. Двери типа К изготовляют только двупольными остекленными.

1.6. Типы и размеры дверных блоков должны соответствовать указанным на черт. 1 и 2. Допускается изготовление дверей с габаритными размерами в модулях по ГОСТ 6629-88 и ГОСТ 24698-81 при конструктивном исполнении по настоящему стандарту.

1.7. Размеры полотен и коробок внутренних дверей, форма, размеры элементов и сечений их деталей должны соответствовать указанным на черт. 3, 5, 7, 8, а наружных - на черт. 4, 6, 9 - 11.

Размеры проемов приведены в приложении 1.

1.8. Устанавливают следующую структуру условного обозначения дверей:

Примеры условных обозначений

Дверь внутренняя, глухая, для проема высотой 19 и шириной 9 дм, с правой навеской полотна, с порогом:

ДВГ 19-9 П ГОСТ 14624-84

То же, с левой навеской полотна:

ДВГ 19-9 ЛП ГОСТ 14624-84

То же, наружная, остекленная, для проема высотой 21 и шириной 9 дм, с левой навеской полотна, с порогом:

ДНО 21-9 ЛП ГОСТ 14624-84

То же, наружная, с качающимися полотнами, для проема высотой 21 и шириной 15 дм, типом обшивки Р1:

ДНК 21-15 Р1 ГОСТ 14624-84

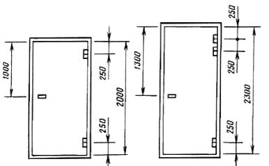
Типы и размеры внутренних дверей

Черт. 1

Типы и размеры наружных дверей

Черт. 2

Примечание к черт. 1 и 2. Над схемами дверей указаны координационные размеры высоты и ширины в модулях.

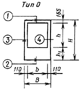
Размеры полотен внутренних дверей

мм

Схемы полотен

Размеры полотен

Размеры стекол

H

B

h

h1

b

Высота

Ширина

1800

800

 

 

 

 

 

2000

600

-

-

-

-

-

700

900

2000

700

1305

530

480

1300

475

900

680

675

2000

700

1305

530

480

1300

475

900

680

675

Черт. 3

Примечание. Сечения полотен - на черт. 7 и 8.

Размеры полотен наружных дверей

мм

Схемы полотен

Размеры полотен

Размеры стекол

H

B

h

h1

b

Высота

Ширина

2000

800

-

-

-

-

-

900

-

-

-

-

-

2300

800

-

-

-

-

-

900

-

-

-

-

-

2000

800

1305

530

580

1300

575

900

680

675

2300

800

1755

380

580

1750

575

900

680

675

Черт. 4

Примечание. Сечения полотен - на черт. 9 - 11.

Размеры коробок внутренних дверей

мм

Схема коробки

H

B

H1

B1

1871

870

1805

804

2071

1272

1206

1472

2005

1406

1872

1806

2071

1472

2038

1406

1872

1806

2071

1498

2026

1408

1898

1808

Черт. 5

Примечание. Сечения полотен - на черт. 7 и 8.

Размеры коробок наружных дверей

мм

Схема коробок

H

B

H1

B1

2085

884

2005

804

984

904

2385

884

2305

804

984

904

2078

884

2038

804

984

904

2385

884

2338

804

984

904

Черт. 6

Примечание. Сечения полотен - на черт. 9 - 11.

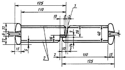
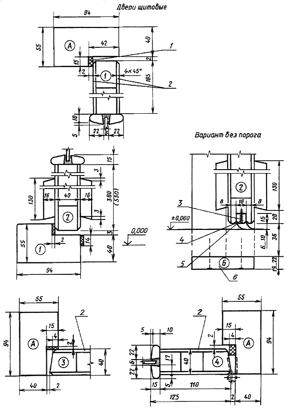
Сечения по притворам внутренних дверей

1 - пружинная петля ППД по ГОСТ 5088-78; 2 - монтажная доска

Черт. 7

Сечения по средним притворам внутренних дверей

Нащельники показаны для правой двери, для левой - в зеркальном изображении

Сечения элементов полотен по кромкам внутренних и наружных дверей

Каркас должен быть собран на сквозной открытый шип.

Черт. 8

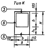
Сечения деталей наружных дверей

1 - уплотняющая прокладка по ГОСТ 10174-72; 2 - облицовка ДВП, СТ-500 по ГОСТ 4598-86; 3 - рейка 12´12 мм; 4 - прокладка из резины толщиной 2 мм; 5 - шуруп 1-3´30 по ГОСТ 1144-80, шаг 200 мм; 6 - монтажная доска

Черт. 9

Сечения по средним притворам

1 - уплотняющая прокладка по ГОСТ 10174-72; 2 - облицовка ДВП, СТ-500 по ГОСТ 4598-74

Черт. 10

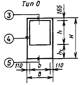
1 - облицовка ДВП, Т-400 по ГОСТ 4598-56; 2 - обшивка по ГОСТ 8242-75; 3 - пергамин по ГОСТ 2697-83; 4 - уплотняющая прокладка по ГОСТ 10174-72; 5 - раскладка типа 1 по ГОСТ 8242-88

Черт. 11

2. ТРЕБОВАНИЯ К КОНСТРУКЦИИ

2.1. Двери следует изготовлять в соответствии с требованиями ГОСТ 475-78 и настоящего стандарта по рабочим чертежам, утвержденным в установленном порядке.

2.2. Сплошное и мелкопустотное заполнение щитов полотен выполняют в соответствии с требованиями и схемами, указанными в ГОСТ 6629-88.

Рамочные конструкции остекленных полотен выполняют по ГОСТ 24698-81.

2.3. При повышенных требованиях к прочности следует изготовлять глухие распашные двери со сплошным заполнением щитов деревянными рейками, а при повышенных требованиях к тепло- и звукоизоляции дополнительно следует уплотнять притворы прокладками по ГОСТ 10174-72 или из пористой резины по ГОСТ 7338-77.

2.4. Наружные двери облицовывают древесноволокнистой плитой марки СТ-500 по ГОСТ 4598-86.

Допускается применять для облицовки щитов наружных дверей древесноволокнистые плиты марки Т-400 по ГОСТ 4598-86 и клееную фанеру при условии сплошной облицовки полотен профилированными рейками по ГОСТ 8242-88, устанавливаемыми по слою пергамина по ГОСТ 2697-83.

Рейки крепят шурупами по ГОСТ 1144-80 или гвоздями по ГОСТ 4028-63 с антикоррозионным покрытием. Максимальный шаг креплений - 500 мм. Крепления в каждом ряду следует располагать на одном уровне по всей ширине полотна.

2.5. Нижние части полотен наружных дверей должны быть защищены деревянными планками толщиной 1,3 - 2,5 см по ГОСТ 9590-76, или сверхтвердых древесноволокнистых плит толщиной 3,2 - 4 мм по ГОСТ 4598-86, тонколистовой оцинкованной стали или алюминия.

Защитные накладки устанавливают на водостойких клеях и шурупах с головками, имеющими антикоррозионное покрытие, с шагом не более 100 мм.

2.6. Коробку без порога расшивают внизу монтажной доской с креплением гвоздями к торцам вертикальных брусков. Допускается шиповое соединение монтажной доски с брусками коробки с просветом между доской и полотном не более 50 мм.

2.7. В коробках наружных дверей пороги следует укреплять стальной полосой 14´4 мм на шурупах, имеющих антикоррозионное покрытие и устанавливаемых с шагом не более 100 мм.

2.8. Площадь дверных блоков определяют по наружным размерам коробок без учета монтажной доски.

2.9. Расположение приборов и примеры установки защитных ограждений приведены в приложении 2.

ПРИЛОЖЕНИЕ 1

Справочное

РАЗМЕРЫ ДВЕРНЫХ ПРОЕМОВ В СТЕНАХ

Примечание. Над схемами проемов указаны координационные размеры высоты и ширины в модулях.

ПРИЛОЖЕНИЕ 2

Обязательное

РАСПОЛОЖЕНИЕ ПРИБОРОВ

Замок по ГОСТ 5089; для наружных дверей 3В1А, для внутренних 3В4.

Петли по ГОСТ 5088; для наружных дверей ПН1-110, для внутренних - ПН4, для качающихся ПН9-130-1

Приемы установки защитных ограждений для наружных дверей

1 - деревянные планки из твердолиственных пород; 2 - крепежная планка из полосовой стали; 3 - круглая сталь

ИНФОРМАЦИОННЫЕ ДАННЫЕ

1.  РАЗРАБОТАН И ВНЕСЕН Центральным научно-исследовательским и проектно-экспериментальным институтом промышленных зданий и сооружений (ЦНИИпромзданий) Госстроя СССР

РАЗРАБОТЧИКИ

М.В. Чепелев (руководитель темы); В.Н. Макарцев, канд. техн. наук; В.И. Тихонович; В.К. Юдин; Г.И. Хавалджи, канд. техн. наук; Ю.И. Иванович; Г.В. Левушкин; Г.И. Грязнова

2.  УТВЕРЖДЕН И ВВЕДЕН В ДЕЙСТВИЕ постановлением Государственного комитета СССР по делам строительства от 13.03.84 № 22

3.  ВЗАМЕН ГОСТ 14624-69 и ГОСТ 17324-71

4.  ССЫЛОЧНЫЕ НОРМАТИВНО-ТЕХНИЧЕСКИЕ ДОКУМЕНТЫ

5. ПЕРЕИЗДАНИЕ. Октябрь 1991 г.

СОДЕРЖАНИЕ

 




Rambler's Top100 Яндекс цитирования
  Copyright © 2008-2026, www.docload.ru