|
|
ГОСУДАРСТВЕННЫЙ СТАНДАРТ СОЮЗА ССР ОКНА
И БАЛКОННЫЕ ДВЕРИ ДЕРЕВЯННЫЕ ДЛЯ МАЛОЭТАЖНЫХ
ЖИЛЫХ ДОМОВ Типы, конструкция и размеры ГОСТ
26601-85 Государственный
строительный комитет СССР Москва ГОСУДАРСТВЕННЫЙ СТАНДАРТ СОЮЗА ССР
Постановлением Государственного комитета СССР по делам строительства от 7 мая 1985г. № 64 срок введения установлен с
01.01.86 Настоящий стандарт
распространяется на деревянные окна и балконные двери с двойным и тройным
остеклением, предназначаемые для жилых домов высотой не более двух этажей. Окна и балконные двери с
двойным и тройным остеклением соответственно должны изготовляться со следующими
показателями: приведенное сопротивление теплопередаче Ro - 0,42 и 0,56 м2°С/Вт, сопротивление воздухопроницанию Ru - 0,5
м2×ч×Па/кг при 10 Па, общий
коэффициент светопропускания t - 0,52 и 0,38, индекс
звукоизоляции воздушного шума Iн - 28 и 32 дБ. 1. ТИПЫ, РАЗМЕРЫ И МАРКИ
1.1. Окна и балконные двери
по настоящему стандарту подразделяют на серии: РМ – с раздельными
переплетами и дверными полотнами с двойным остеклением; РСМ – с раздельно-спаренными
переплетами и дверными полотнами с тройным остеклением. 1.2. Типы и габаритные
размеры окон и балконных дверей должны соответствовать указанным на черт.1. 1.3. По требованию
потребителей одно-створные окна и балконные двери, в т.ч. с форточными
створками, должны изготовляться также и левыми, а окна много створные с
несимметричным рисунком – в негативном (зеркальном) изображении. 1.4. Устанавливают следующую
структуру условного обозначения (марки) окон и балконных дверей:
В конце марки окон и
балконных дверей с одинарным остеклением перед обозначением стандарта добавляют
цифру 1 через тире. Примеры условных обозначенийОкно правое серии РМ высотой
15 и шириной 6 дм (вариант А): ОРМ15-6А
ГОСТ 26601-85 То же, левое: ОРМ15-6АЛ
ГОСТ 26601-85 Дверь балконная серии РСМ
высотой 22 и шириной 7,5 дм: БРСМ22-7,5
ГОСТ 26601-85 Окно серии РМ высотой 12 и
шириной 11 дм, с несимметричным рисунком окна: ОРМ12-11
ГОСТ 26601-85 То же, в негативном
исполнении: ОРМ12-11Н
ГОСТ 26601-85 2. ТРЕБОВАНИЯ К КОНСТРУКЦИИ
2.1. Окна и балконные двери
должны изготовляться в соответствии с требованиями ГОСТ 23166 и настоящего
стандарта по рабочим чертежам, утвержденным в установленном порядке. 2.2. Конструкция, форма,
основные размеры и марки окон и балконных дверей серии РМ должны
соответствовать указанным на черт.2-4, а размеры сечений деталей и притворов – на
черт.5-12. 2.3. Конструкция, форма,
основные размеры и марки окон и балконных дверей серии РСМ должны
соответствовать указанным на черт.13-15, а размеры сечений деталей и притворов – на
черт.16-23. 2.4. Размеры на общих видах
окон и балконных дверей даны в свету, по наружным сторонам створок, форточек и
полотен дверей и по наружным сторонам коробок. На чертежах, приведенных в
настоящем стандарте, указаны в миллиметрах размеры неокрашенных деталей и
изделий. 2.5. Для остекления окон и
балконных дверей следует применять стекло толщиной 2,0-2,5 мм по ГОСТ 111. 2.6. Места установки
уплотняющих прокладок в притворах окон и балконных дверей указаны на чертежах
сечений. 2.7. По периметру оконных и
дверных коробок на боковых поверхностях допускается по требованию потребителей
выборка четверти для уплотнения стыка при соединении блоков друг с другом. 2.8. Бруски коробок
допускается изготовлять клееными по ширине или соединять гвоздями после
антисептирования или окраски сопрягаемых поверхностей, при этом соединение не
должно иметь зазоров и провесов. 2.9. В зданиях для
климатических районов, где по теплотехническим расчетам не требуются окна и
балконные двери с двойным остеклением, а также в неотапливаемых зданиях и
помещениях должны применяться окна и балконные двери серии РМ без внутренних
створок, при этом ширина сечения коробки может быть уменьшена до 74 мм. 2.10. Для остекления веранд
должны применяться наружные створки окон марок ОРМ 15-6 и ОРМ 15-6А. 2.11. Примеры расположения
приборов в окнах и балконных дверях приведены в приложении 1. 2.12. Спецификации стекол
для окон и балконных дверей серий РМ и РСМ приведены в приложениях 2 и 3. Типы и
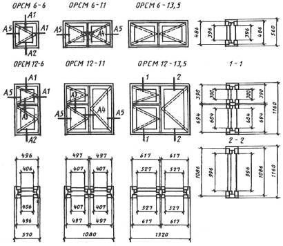
габаритные размеры окон и балконных дверей
Примечания: 1. Схемы изделия изображены со стороны фасада. 2. Цифры над схемами
изделий означают размеры изделий в модулях (М - модуль, равный 100 мм). 3. Окна
шириной 1080 мм предназначены для деревянных домов заводского изготовления,
выпускаемых по типовым проектам с панелями шириной 1200 мм. Серия
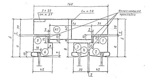
РМ Конструкция,
форма, основные размеры и марки окон и балконных дверей с двойным остеклением
Черт.3
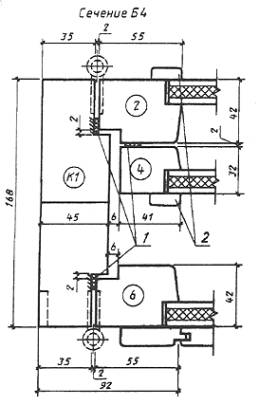
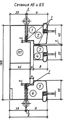
Сечения
по притворам окон и балконных дверей с двойным остеклением
Черт.6
Черт.7
Черт.8
1 - твердая ДВП марки Т группы А толщиной 3,2-4 мм по ГОСТ 4598; 2 - мягкая ДВП толщиной 8 мм по ГОСТ 4598; 3 -пергамин по ГОСТ 2697; 4 - обшивка типа 2 по ГОСТ
8242; 5 - раскладка; 6 уплотняющие прокладки по ГОСТ
10174 Черт.9
Черт.10
1 - уплотняющая прокладка; 2 - раскладка Черт.11
СЕРИЯ
РСМ Конструкция,
форма, основные размеры и марки окон и балконных дверей с тройным остеклением
Черт.14
Сечения
по притворам окон и балконных дверей с тройным остеклением Ё 1
Черт.17
1 - уплотняющие прокладки Черт.18
Черт.19
1 - твердая ДВП марки Т группы А толщиной 3,2-4 мм по ГОСТ 4598-86; 2 - мягкая ДВП толщиной 8 мм по ГОСТ 4598-86; 3 - пергамин по ГОСТ 2697-83;; 4 - обшивка типа 2 по ГОСТ 8242-75; 5 - раскладки; 6 уплотняющие прокладки по ГОСТ 10174-72. Черт.20
1- уплотняющая прокладка; 2 - раскладки Черт.21
1 - уплотняющие прокладки; 2 - раскладки Черт.22
1 - уплотняющие
прокладки
ПРИЛОЖЕНИЕ 1
Рекомендуемое ПРИМЕРЫ
РАСПОЛОЖЕНИЯ ПРИБОРОВ В ОКНАХ И БАЛКОННЫХ ДВЕРЯХ
1 - ПН1-85Л; 2 - завертка накладная ЗФ2П для наружной форточки; 3 - задвижка накладная ЗТ; 4 - ручка РС80; 5 - ПН5-60; 6 - стяжка СТ; 7 - ПН7; 8 - ПН1-110П Примечания: 1. Приборы для окон и дверей должны соответствовать ГОСТ 538-78, ГОСТ 5087-80, ГОСТ 5088-78, ГОСТ 5090-86 и ГОСТ 5091-78. 2. Ручки-скобы устанавливают на наружных и внутренних створках и полотнах. 3. Наружные
створки должны оснащаться ветровыми крючками. ПРИЛОЖЕНИЕ 2
Справочное СПЕЦИФИКАЦИЯ
СТЕКОЛ ДЛЯ ОКОН И БАЛКОННЫХ ДВЕРЕЙ СЕРИИ РМ
ПРИЛОЖЕНИЕ 3
СправочноеСПЕЦИФИКАЦИЯ СТЕКОЛ ДЛЯ ОКОН И БАЛКОННЫХ ДВЕРЕЙ
СЕРИИ РСМ
СОДЕРЖАНИЕ | ||||||||||||||||||||||||||||||||||||||||||||||||||||||||||||||||||||||||||||||||||||||||||||||||||||||||||||||||||||||||||||||||||||||||||||||||||||||||||||||||||||||||||||||
|
|
|
|