Бесплатная библиотека стандартов и нормативов www.docload.ru

Все документы, размещенные на этом сайте, не являются их официальным изданием и предназначены исключительно для ознакомительных целей.
Электронные копии этих документов могут распространяться без всяких ограничений. Вы можете размещать информацию с этого сайта на любом другом сайте.
Это некоммерческий сайт и здесь не продаются документы. Вы можете скачать их абсолютно бесплатно!
Содержимое сайта не нарушает чьих-либо авторских прав! Человек имеет право на информацию!

 

ГОСУДАРСТВЕННЫЙ СТАНДАРТ СОЮЗА ССР

МАТЕРИАЛЫ РУЛОННЫЕ КРОВЕЛЬНЫЕ

МЕТОДЫ ИСПЫТАНИЯ НА СТАРЕНИЕ
ПОД ВОЗДЕЙСТВИЕМ ИСКУССТВЕННЫХ
КЛИМАТИЧЕСКИХ ФАКТОРОВ

ГОСТ 18956-73

ГОСУДАРСТВЕННЫЙ КОМИТЕТ СОВЕТА МИНИСТРОВ СССР
ПО ДЕЛАМ СТРОИТЕЛЬСТВА

РАЗРАБОТАН Всесоюзным научно-исследовательским институтом новых строительных материалов (ВНИИНСМ) Министерства промышленности строительных материалов СССР

Зам. директора института Сурмели Д. Д.

Руководитель темы Москалев Н. М.

Исполнители: Матусевич В. И., Макаренко Г. Г., Пфлаумер О. Э., Лейкина М. А., Капацинскнй В. И.

ВНЕСЕН Министерством промышленности строительных материалов СССР

Член Коллегии Добужинский В. И.

ПОДГОТОВЛЕН К УТВЕРЖДЕНИЮ Отделом технического нормирования и стандартизации Госстроя СССР

Начальник отдела Сычев В. И.

Начальник подотдела стандартизации в строительстве Новиков М. М.

Ст. инженер Лейбенгруб Л. М.

УТВЕРЖДЕН И ВВЕДЕН В ДЕЙСТВИЕ Постановлением Госстроя СССР от 21 июня 1973 г. № 101

ГОСУДАРСТВЕННЫЙ СТАНДАРТ СОЮЗА ССР

МАТЕРИАЛЫ РУЛОННЫЕ КРОВЕЛЬНЫЕ

Методы испытания на старение под воздействием искусственных климатических факторов

Rolling roof materials.
Aging under artifical climatic factors.
Gest methods

ГОСТ
18956-73

Постановлением Госстроя СССР от 11 июня 1973 г. № 101 срок введения установлен

с 01.01.1975 г.

Несоблюдение стандарта преследуется по закону

Настоящий стандарт распространяется на рулонные кровельные материалы, изготовляемые на битумном (и его модификации) вяжущем, и устанавливает методы испытания на стойкость к старению под воздействием искусственных климатических факторов: света, тепла, влаги и холода.

Стандарт не устанавливает методы испытания рулонных кровельных материалов в напряженном состоянии.

Стойкость образцов кровельного материала к воздействию искусственных климатических факторов следует определять по изменению одного или нескольких показателей физико-механических свойств образцов и по изменению их внешнего вида.

Изменения физико-механических свойств кровельного материала устанавливают по величинам показателей прочности в продольном направлении и относительного удлинения пря разрыве по пп. 4.4 и 5.1.1 настоящего стандарта, гибкости по ГОСТ 2678-65, ударной вязкости образца без надреза при температуре минус 20 °С по ГОСТ 14235-69.

Перечень физико-механических показателей и их величины, по которым устанавливается стойкость испытуемого кровельного материала к старению, указывается в действующих стандартах и технических условиях.

Изменение внешнего вида кровельного материала следует устанавливать путем визуального сравнения поверхности исходных образцов и образцов, прошедших определенное число циклов испытаний.

1. ОТБОР ОБРАЗЦОВ

1.1. Для определения стойкости кровельного материала к старению по изменению физико-механических показателей из отобранных рулонов, отступя от кромки не менее 200 мм, в продольном направлении полотна вырезают полосу шириной 200 мм. Из полосы вырезают образцы размерами 190´230 мм. Длина полосы определяется количеством образцов, необходимых для испытания.

Количество образцов устанавливают, исходя из общей продолжительности испытаний и количества промежуточных отборов для определения изменений физико-механических показателей кровельного материала.

1.2. Для определения стойкости кровельного материала к старению по изменению внешнего вида из каждого рулона вырезают по три полосы размерами 1100´100 мм.

Полосы вырезают на расстоянии 150 мм от кромки, а расстояние между полосами должно быть 200 мм.

Из каждой полосы вырезают по четыре образца размерами 70´230 мм, один из которых является контрольным. Контрольный образец упаковывают в бумажный пакет и хранят в помещении при температуре 20±2 °С для дальнейшего сопоставления его с испытываемыми образцами.

2. АППАРАТУРА

2.1. Аппарат искусственной погоды (АИП)

2.1.1. Аппарат искусственной погоды должен состоять из следующих основных частей:

рабочей камеры;

электрического источника световой радиации с системой для зажигания и постоянного горения и счетчиком времени его работы;

держателей образцов с системой перемещения их вокруг источника (источников) света;

устройство для дождевания образцов;

устройство для поддержания необходимого температурного режима в рабочей камере с точностью ±2 °С;

устройство для поддержания в рабочей камере заданной относительной влажности воздуха (узел увлажнения) в пределах от 10 до 98 % с точностью ±2 %;

пульта управления и автоматики.

Допускается применение аппаратов искусственной погоды, не имеющих узла увлажнения, для использования на режимах без нормирования влажности воздуха в процессе испытания.

2.1.2. Устройство аппарата искусственной погоды должно обеспечивать создание и поддержание в течение определенного периода времени заданного режима испытания кровельного материала.

2.2. В качестве искусственного источника облучения необходимо применять одну газосветную ксеноновую трубчатую лампу типа ДКСТВ с водяным охлаждением или две угольные дуговые лампы закрытого тина, расположенные на разных уровнях.

2.3. Газосветная ксеноновая трубчатая лампа

2.3.1. Газосветная ксеноновая трубчатая лампа должна работать на однофазном переменном токе частотой 50 Гц напряжением 220±10 В. Допускается применение ксеноновых ламп мощностью от 4,5 до 6 кВт, а также работа применяемых ламп при режимах менее номинальных.

2.3.2. Зажигание лампы и ее нормальный эксплуатационный режим должны обеспечиваться пускорегулирующим устройством.

2.3.3. Центром излучения ксеноновой лампы считают точку, лежащую на ее осевой линии и находящуюся в середине разрядного промежутка.

2.3.4. Ксеноновая лампа должна находиться в эксплуатации в соответствии с гарантийным сроком службы, указанным в паспорте на данную лампу.

2.4. Угольная дуговая лампа закрытого типа

2.4.1. Угольная дуговая лампа закрытого типа должна работать на нейтральных углях типа «Светокопия» диаметром 12,7-13 мм с фитилем или без фитиля (сплошного) или на других углях, равноценных указанным. Длина верхнего угля 300-330 мм, нижнего - 100-130 мм. Если верхний уголь установлен с фитилем, то нижний уголь должен быть без фитиля и наоборот.

2.4.2. Угольная дуговая лампа должна работать на однофазном переменном токе частотой 50 Гц напряжением 220±10 В при напряжении на дуге 120-145 В и силе тока 15-17 А.

2.4.3. Колпак угольной дуговой лампы должен быть изготовлен из жаростойкого боросиликатного стекла. Края колпака должны быть ровными и не иметь сколов.

2.4.4. Центром излучения угольной дуговой лампы следует считать точку, лежащую по осевой линии лампы на расстоянии 100-130 мм от нижней плоскости нижнего держателя углей.

2.5. Положение источников света в рабочей камере

2.5.1. Зоной облучения образцов искусственными источниками света следует считать часть поверхности экспозиционного барабана, характеризующуюся достаточно равномерным распределением светового потока. Для выявления общей картины распределения светового потока, определяют интенсивность освещения образцов (см. приложение 1).

2.5.2. Ксеноновую лампу необходимо установить вертикально так, чтобы ее осевая линия совпадала с осевой линией вертикального вала крестовины экспозиционного барабана.

2.5.3. Зону облучения ксеноновой лампы ограничивают двумя плоскостями, перпендикулярными к ее оси и проходящими через электроды ее разрядного промежутка (черт. 1).

2.5.4. Две угольные дуговые лампы необходимо устанавливать симметрично относительно осевой линяй вала крестовины барабана на разных уровнях. Расстояние между центрами ламп принимают согласно черт. 2.

2.5.5. Зону облучения двух угольных дуговых ламп, расположенных на разных уровнях, следует принимать по черт. 2.

Схема расположения в рабочей камере АИП ксеноновой лампы и зоны облучения

Черт. 1

Схема расположения в рабочей камере АИП двух угольных дуговых ламп и зоны облучения

1 - трубчатая ксеноновая лампа; 2, 2¢ - центры угольных дуговых ламп (дуги); 3 - крестовина вала барабана; 4 - экспозиционный барабан; А - расстояние между противолежащими образцами, расположенными в вертикальных кассетах; В - высота зоны облучения; О1О1 - вертикальная ось симметрии зоны облучения; О2О2 - горизонтальная ось симметрии зоны облучения; С1С1 и С2С2 - оси первого и второго источников облучения; F1F1 и F2F2 - линии центров угольных дуговых ламп.

Черт. 2

2.6. Устройство для дождевания образцов

2.6.1. Устройство должно обеспечивать дождевание водой облучаемой поверхности образцов в течение заданного промежутка времени. Вода, выходящая из сопел, не должна попадать на образец в виде струи.

2.6.2. Дистиллированная вода, применяемая для дождевания и замачивания образцов, должна удовлетворять требованиям ГОСТ 6709-72.

2.7. Температурный режим в рабочей камере аппарата искусственной погоды следует обеспечивать приточно-вытяжной вентиляцией и орошением наружной (нерабочей) поверхности экспозиционного барабана.

2.8. Для обеспечения заданных режимов испытаний могут применяться установки любого типа.

3. ПОДГОТОВКА К ИСПЫТАНИЮ

3.1. Подготовка образцов

3.1.1. До проведения испытания образцы должны быть выдержаны не менее 24 ч при температуре 20±2 °С.

3.1.2. Перед испытанием образцов в аппарате искусственной погоды должны быть определены и записаны в рабочий журнал физико-механические показатели испытуемого кровельного материала, по которым будет определяться стойкость материала на старение.

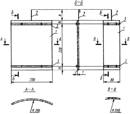
3.1.3. Образцы размерами 190´230 и 70´230 мм должны быть укреплены на металлические кассеты, размеры которых соответственно 200´240 и 80´240 мм (черт. 3). Между образцами и кассетой прокладывают целлофановую пленку. Образцы крепят к кассетам при помощи металлической пластинки. Кассеты должны иметь подвески (скобы) для установки их в барабане аппарата.

3.1.4. Образцы должны быть маркированы. Маркировку образцов производят по поверхности металлической пластинки.

3.1.5. Образцы в течение всего периода испытания по режиму, указанному в пп. 4.1.1 и 4.1.2, должны быть закреплены на кассете.

3.2. Подготовка аппаратуры

3.2.1. До начала испытаний образцов аппаратура должна быть отрегулирована на заданный режим по пп. 4.1.1 и 4.1.2.

3.2.2. Замена ксеноновой лампы и колпаков угольных дуговых ламп должна производиться по истечении гарантийного срока службы, указанного в паспортах.

3.2.3. Стеклянный колпак угольной дуговой лампы при смене углей должен быть вымыт теплой водой с мылом и вытерт насухо мягкой хлопчатобумажной тканью.

3.2.4. При установке стеклянного колпака угольной дуговой лампы должно быть обеспечено плотное присоединение его к корпусу лампы. Для этого между металлическим корпусом лампы и стеклянным колпаком устанавливают тонкую асбестовую прокладку. Плотный прижим колпака к асбестовой прокладке достигается регулировкой пружинного держателя.

1 - кассета, изогнутая по кривизне барабана; 2 - подвеска кассеты; 3 - пластинка для крепления образца; h - высота подвески в соответствии с размерами зоны облучения.

Черт. 3

3.2.5. Для контроля температуры в АИП используют термометр с «черной панелью».

3.2.6. Определение фактической и условной температур образца в процессе испытания его в АИП производят следующим образом.

При экспонировании образца в АИП температуру его поверхности устанавливают обычно выше температуры воздуха в рабочей камере. Разность температур поверхности образца и воздуха в рабочей камере возрастает с увеличением черноты образца.

Различают температуру поверхности образца фактическую и условную.

ОПРЕДЕЛЕНИЕ ФАКТИЧЕСКОЙ ТЕМПЕРАТУРЫ ОБРАЗЦА

Фактическую температуру поверхности образца из рубероида определяют при помощи термопар, введенных в покровной слой битума. В качестве датчика температуры используют хромель-капелевые термопары. При таких замерах держатель образцов должен быть неподвижен. Провода, соединяющие термопары с автоматическим потенциометром, выводят через смотровые отверстия, имеющиеся в рабочей камере.

Ввиду сложности этот метод не рекомендуется для текущего контроля температур и используется только при настройке АИП на определенный температурный режим.

ОПРЕДЕЛЕНИЕ УСЛОВНОЙ ТЕМПЕРАТУРЫ ОБРАЗЦА

За условную максимальную температуру нагрева образца принимают температуру нагрева «черной панели» с биметаллическим термометром (ГОСТ 17171-71).

При отсутствии биметаллического термометра промышленного изготовления допускается, применение стеклянного ртутного термометра со специальной панелью, окрашенной в черный цвет («черная панель»). «Черная панель» имеет размеры 80´35´10 мм и изготовляется из того же материала, что и кассета. Панель при помощи болтов или заклепок соединяют с кассетой, аналогичной кассете для установки образцов, но имеющей размеры 115´160 мм. При закреплении на кассете «черной панели» под нее подкладывают предварительно образец рубероида размерами 110´150 мм.

Для установки термометра в торце «черной панели» должно быть цилиндрическое гнездо глубиной 40 мм. Диаметр гнезда принимают на 2-4 мм больше, чем диаметр термометра в месте расположения резервуара со ртутью. В гнездо перед установкой термометра заливают масло индустриальное по ГОСТ 1707-51. Уровень масла при установленном термометре не должен доходить до верха на 5-8 мм. При установке термометр не должен касаться стенок гнезда. Высота подвески кассеты с термометром должна быть такой, чтобы резервуар ртути располагался на горизонтальной осевой линии зоны облучения.

При соблюдении указанных условий фактическую температуру нагрева (Тф) поверхности рубероида в центре образца при экспозиции его в АИП определяют по формуле

где Тусл - температура, показываемая термометром, °С.

При орошении образцов непосредственно в АИП на термометр надевают резиновый венчик, препятствующий попаданию воды в масло.

4. ПРОВЕДЕНИЕ ИСПЫТАНИЙ

4.1. Испытание на стойкость к старению образцов кровельного материала в лабораторных условиях может проводиться по двум режимам:

I режим испытания предусматривает условия, приближенные ко второму климатическому району территории СССР (приложение 2);

II режим испытания является условным и может быть применен для определения сравнительной стойкости материала к старению.

Сравнительная оценка стойкости кровельного материала должна производиться по результатам испытаний, полученным на одном и том же режиме.

Испытания на стойкость к старению образцов кровельного материала в условиях других климатических районов могут проходиться по методике, согласованной с базовой организацией по стандартизации кровельных материалов.

4.1.1. При определении стойкости к старению кровельного материала по I режиму испытание проводят по следующему циклу:

а) облучение образцов в течение 360 ч в аппарате искусственной погоды с ксеноновой лампой мощностью 6 кВт при температуре «черной панели». 50-55 °С с периодическим дождеванием образцов в течение 3 ч через каждый 21 ч.

При режиме работы ксеноновой лампы мощностью менее 6 кВт продолжительность облучения (t) вычисляют по формуле

где W - фактическая мощность работы используемой лампы, кВт.

Разрешается вместо дождевания производить замачивание образцов в течение 2 ч через каждые 22 ч облучения;

б) замачивание образцов в воле при температуре 20±2 °С в течение 24 ч с последующей выдержкой в течение 10 мин на воздухе при температуре плюс 20 °С для стекания воды;

в) замораживание образцов при температуре минус 40 °С в течение 72 ч;

г) 60 переходов через 0 °С по следующему температурному режиму одного перехода: 1 ч выдержки при температуре плюс 10 °С и 1 ч - при температуре минус 10 °С.

4.1.2. При определении стойкости к старению кровельного материала по II режиму испытание проводят с использованием ксеноновой или двух угольных ламп по следующему циклу:

а) облучение образцов при температуре «черной панели» 50-55 °С в течение 17 ч;

б) замачивание образцов в дистиллированной воде (или их дождевание) в течение 2 ч;

в) замораживание образцов при температуре минус 18-20 °С в течение 2 ч;

г) выдержка образцов при температуре 20±2 °С в течение 3 ч;

4.2. Испытания образцов по пп. 4.1.1 и 4.1.2 проводят без перерыва между циклами.

4.3. В процессе испытания кровельного материала производят осмотр, а также отбор образцов, прошедших определенное количество циклов испытаний, для определения их физико-механических показателей.

Стойкость образцов по изменению внешнего вида материала оценивают по этапам разрушения.

Количество циклов испытания, соответствующее определенному этапу разрушения, устанавливается в действующих стандартах, и технических условиях на каждый вид испытуемого материала.

Характеристика этапов разрушения приведена в таблице.

Этапы разрушения

Виды разрушения

I

На поверхности образца матовые пятна. Поверхность матовая с серыми и коричневыми пятнами. Поверхность матовая с серым налетом и коричневыми пятнами.

II

Волосные трещины очень тонкие, едва заметные невооруженным глазом. Волосные трещины распространяются по всей поверхности и образуют сетку. Волосные трещины увеличиваются в глубину и ширину и постепенно переходят в глубокие трещины.

III

Точечные исчезающие пузырьки и неисчезающие мелкие каверны.

IV

Крупные устойчивые пузырьки диаметром от 1 до 3 мм

V

Крупные устойчивые каверны диаметром от 1 до 5 мм

VI

Глубокие трещины, увеличение размеров каверн. Трещины разрастаются, образуя сетку.

VII

Трещины, доходящие до основы материала

4.4. Для определения прочности и относительного удлинения при разрыве из образцов размерами 190´230 мм, прошедших определенное количество циклов испытаний, вырубаются при помощи штанцевого ножа три образца в форме двусторонней лопатки (черт. 4). Образцы испытывают на разрыв со скоростью 30 мм/мин.

4.5. Для определения прочности и относительного удлинения при разрыве применяют разрывные машины с постоянной скоростью перемещения нижнего захвата (с маятниковым силоизмерителем) или машины с постоянной скоростью растяжения образца (с малоинерционным силоизмерителем).

Черт. 4

5. ОБРАБОТКА РЕЗУЛЬТАТОВ ИСПЫТАНИЯ

5.1. Определение стойкости к старению по изменению физико-механических показателей рулонного кровельного материала

5.1.1. За величину стойкости кровельного материала к старению принимают количество циклов, в течение которых физико-механические показатели материала снизились до величин, указанных в действующих стандартах и технических условиях на каждый вид материала.

5.1.2. За величину прочности при разрыве (R) и удлинения (D`l) принимают среднее арифметическое значение результатов испытаний образцов-лопаток, определяемых по формулам

  

где `Р - прочность при разрыве образца-лопатки, кгс;

Dl - удлинение при разрыве образца-лопатки, определяемое на базе между внутренними гранями захватов, мм;

п - количество испытанных образцов.

5.1.3. Относительную разрывную нагрузку (sр) в кгс/см определяют по формуле

где b - ширина рабочей части лопатки, см.

5.1.4. Относительную разрывную деформацию (eр) в процентах определяют по формуле

где l - расстояние между внутренними гранями захватов, мм.

5.2. Определение стойкости по внешнему виду рулонного кровельного материала

5.2.1. Стойкость рулонного кровельного материала к старению устанавливают по этапам разрушения материала. Стандартом предусматривается семь этапов разрушения, указанных в п. 4.3.

5.2.2. За величину стойкости кресельного материала к старению принимают количество циклов испытания материала в аппарате искусственной погоды, соответствующее пятому этапу разрушения, при котором 50 % поверхности образца будет подвергнуто разрушению данного вида.

5.2.3. Степень разрушения образцов на соответствующем этапе выражают в процентах от общей площади образца, который определяют по нижеприведенной методике.

Пластинку из прозрачного материала (стекло, оргстекло, целлулоид), на которой нанесена сетка со сторонами 10´10 мм, накладывают на поверхность испытуемого образца и подсчитывают количество клеток, в которых наблюдается тот или иной вид разрушения соответствующего этапа. Размер пластинки должен быть меньше размера самого образца по ширине и длине на 10 мм.

Разрушения поверхности образца (X) в процентах вычисляют по формуле

где п1 - количество клеток, в которых наблюдается вид разрушения определяемого этапа, а также разрушения, соответствующие более поздним этапам;

п - количество клеток на прозрачной пластинке.

Результаты осмотра и подсчета процента разрушения заносят в журнал наблюдения.

ПРИЛОЖЕНИЕ 1

ОПРЕДЕЛЕНИЕ ИНТЕНСИВНОСТИ ОСВЕЩЕНИЯ ОБРАЗЦОВ

Для определения освещенности образцов, помещенных в АПИ, замеряют интенсивность световой радиации на их поверхности. Результаты таких замеров служат только для выявления общей картины распределения светового потока в пространстве, поэтому должны применяться приборы, чувствительные в ультрафиолетовой и видимой или только в видимой частях спектра: пиранометр Янишевского, селеновый фотоэлемент и др.

При замерах датчик устанавливают в плоскости образца. При определении интенсивности света, падающего на образец, необходимо пропусти не менее четырех замеров по высоте зоны облучения в 10 точках, равно отстоящих друг от друга, на половине окружности барабана.

При замере освещенности образцов в АИП с угольными дуговыми лампами следует учитывать влияние загрязненности колпаков и изменения положения центра горящей дуги (максимум освещенности) по мере сгорания углей. Для этого указанные замеры следует производить несколько раз через равные промежутки времени, начиная от установки новых углей и до их сгорания. За результат определения принимают среднее арифметическое проведенных замеров.

Для осуществления замеров в АИП рекомендуется применять селеновый фотоэлемент, чувствительный в свету в области длин волн 290-700 нм. При этом необходимо соблюдать условие прямой пропорциональности между величиной фототока I и интенсивностью света Е. В этом случае произведение Il2 = const, где l - расстояние между источником излучения и рабочей поверхностью фотоэлемента. Для выполнения указанного условия при большой интенсивности света, падающего на фотоэлемент, применяют зачерненные металлические сетки, которые устанавливают перед фотоэлементом для уменьшения количества световой энергии, падающей на рабочую поверхность. Тогда

где i0 - величина ослабленного фототока;

k - степень ослабления освещенности рабочей поверхности фотоэлемента за счет сеток.

ПРИЛОЖЕНИЕ 2

УСЛОВИЯ, ПРИБЛИЖЕННЫЕ КО ВТОРОМУ КЛИМАТИЧЕСКОМУ РАЙОНУ ТЕРРИТОРИИ СССР (МЕТЕОРОЛОГИЧЕСКИЕ ДАННЫЕ МОСКВЫ)

Метеорологические факторы

Единица измерения

Численное значение

Среднегодовое количество ультрафиолетовой энергии на горизонтальной плоскости Qуф

кал/см2

6500

Среднегодовая продолжительность дождевых осадков

ч

423

Суммарная продолжительность солнечного сияния

ч

2829

Минимальная (усредненная) температура воздуха

град

Минус 40

Повторяемость минимальной (усредненной) температуры воздуха

дней/год

3

Количество переходов через 0 °С

переход/год

60

Примечание. Приведенный в таблице список метеорологических факторов может быть продолжен при условии обеспечения в лабораторных условиях агрессивных воздействий, аналогичных климатическим факторам.

СОДЕРЖАНИЕ

 




Rambler's Top100 Яндекс цитирования
  Copyright © 2008-2026, www.docload.ru