Бесплатная библиотека стандартов и нормативов www.docload.ru

Все документы, размещенные на этом сайте, не являются их официальным изданием и предназначены исключительно для ознакомительных целей.
Электронные копии этих документов могут распространяться без всяких ограничений. Вы можете размещать информацию с этого сайта на любом другом сайте.
Это некоммерческий сайт и здесь не продаются документы. Вы можете скачать их абсолютно бесплатно!
Содержимое сайта не нарушает чьих-либо авторских прав! Человек имеет право на информацию!

 

ГОСТ 5746-2003

(ИСО 4190-1-99)

МЕЖГОСУДАРСТВЕННЫЙ СТАНДАРТ

ЛИФТЫ ПАССАЖИРСКИЕ

Основные параметры и размеры

МЕЖГОСУДАРСТВЕННЫЙ СОВЕТ
ПО СТАНДАРТИЗАЦИИ, МЕТРОЛОГИИ И СЕРТИФИКАЦИИ

Минск

Предисловие

1 РАЗРАБОТАН Техническим комитетом по стандартизации ТК 209 «Лифты, строительные подъемники и эскалаторы»

ВНЕСЕН Госстандартом России

2 ПРИНЯТ Межгосударственным советом по стандартизации, метрологии и сертификации (протокол № 23 от 22 мая 2003 г.)

За принятие проголосовали:

Наименование государства

Наименование национального органа по стандартизации

Азербайджанская Республика

Азгосстандарт

Республика Армения

Армгосстандарт

Республика Беларусь

Госстандарт Республики Беларусь

Грузия

Грузстандарт

Республика Казахстан

Госстандарт Республики Казахстан

Кыргызская Республика

Кыргызстандарт

Республика Молдова

Молдовастандарт

Российская Федерация

Госстандарт России

Республика Таджикистан

Таджикстандарт

Туркменистан

Главгосслужба «Туркменстандартлары»

Республика Узбекистан

Узгосстандарт

Украина

Госстандарт Украины

3 Разделы (подразделы) настоящего стандарта, за исключением 4.1 (таблица 1) и 4.3 (таблица 2), представляют собой аутентичный текст ИСО 4190-1:1999 «Установка пассажирских и служебных лифтов. Часть 1. Лифты классов I, II, III и VI» с Изменением от 01.03.2001 (ISO 4190-1:1999 «Installation of passenger and service lifts - Part 1: Class I, II, III and VI lifts») (with corrections of 01.03.2001)

4 Постановлением Государственного комитета Российской Федерации по стандартизации и метрологии от 23 октября 2003 г. № 300-ст межгосударственный стандарт ГОСТ 5746-2003 введен в действие непосредственно в качестве национального стандарта Российской Федерации с 1 июля 2004 г.

СОДЕРЖАНИЕ

Введение

Настоящий стандарт содержит требования к основным параметрам и размерам лифтов, изложенным в международном стандарте ИСО 4190-1-99 «Установка пассажирских и служебных лифтов. Часть 1. Лифты классов I, II, III и VI».

Стандарт разработан с целью:

- создания благоприятных условий для потребителей лифтов за счет значительного увеличения номенклатуры и исполнений пассажирских лифтов, в том числе лифтов с гидроприводом, а также лифтов, оснащенных телескопическими дверями;

- расширения возможностей использования пассажирских лифтов инвалидами;

- обеспечения перевозки лежачих больных на носилках, каталках и других средствах горизонтального транспортирования с различными системами жизнеобеспечения;

- расширения ряда грузоподъемностей и скоростей пассажирских лифтов для зданий большой заселенности и этажности с интенсивными пассажиропотоками;

- уменьшения объемов, занимаемых лифтами в зданиях, за счет сокращения размеров шахт.

ГОСТ 5746-2003

(ИСО 4190-1-99)

МЕЖГОСУДАРСТВЕННЫЙ СТАНДАРТ

ЛИФТЫ ПАССАЖИРСКИЕ

Основные параметры и размеры

Passenger lifts.

Basic parameters and dimensions

Дата введения 2004-07-01

1 Область применения

1.1 Настоящий стандарт распространяется на пассажирские электрические и гидравлические лифты, устанавливаемые в глухих шахтах.

1.2 Пассажирские лифты, включенные в настоящий стандарт, предназначены для оборудования зданий (сооружений):

- строящихся;

- эксплуатирующихся (при замене лифтов);

- реконструируемых.

1.3 Настоящий стандарт не распространяется на лифты номинальной скоростью более 6 м/с. Требования стандарта являются рекомендуемыми, кроме требований, регламентированных национальными «Правилами устройства и безопасной эксплуатации лифтов» (ПУБЭЛ).

2 Нормативные ссылки

В настоящем стандарте использована ссылка на ГОСТ 8032-84 Предпочтительные числа и ряды предпочтительных чисел.

3 Определения

3.1 В настоящем стандарте применяют следующие термины с соответствующими определениями.

3.1.1 грузоподъемность лифта номинальная: Значение, равное массе груза, на транспортирование которого рассчитан лифт.

3.1.2 дверь (кабины, шахты) горизонтально-раздвижная: Дверь, створка(и) которой перемещается(ются) в горизонтальном направлении.

3.1.3 дверь кабины (шахты) телескопическая: Горизонтально-раздвижная дверь, створки которой перемещаются в параллельных плоскостях, при открывании заходя одна за другую.

3.1.4 дверь кабины (шахты) центрального открывания: Горизонтально-раздвижная дверь, створки которой перемещаются в противоположных направлениях от центра.

3.1.5 здания с интенсивными пассажиропотоками: Здания большой этажности и (или) заселенности.

3.1.6 кабина: Грузонесущее устройство, предназначенное для размещения людей (пассажиров).

3.1.7 лифт: Стационарная грузоподъемная машина периодического действия, предназначенная для подъема и спуска людей и (или) грузов в кабине, движущейся по жестким прямолинейным направляющим, у которых угол наклона к вертикали не более 15°.

3.1.8 лифт гидравлический: Лифт с электронасосным гидроприводом поступательного движения.

3.1.9 лифт пассажирский: Лифт, предназначенный, в основном, для подъема и спуска людей.

3.1.10 лифт электрический: Лифт с электроприводом.

3.1.11 лифт пассажирский для зданий лечебно-профилактических учреждений (больничный лифт): Пассажирский лифт, размеры кабины и конструкция которого позволяют перевозить пациентов лечебно-профилактических учреждений, в том числе на средствах горизонтального транспортирования (каталках, кроватях и т.д.) и (или) медицинское оборудование.

3.1.12 машинное помещение: Огороженное со всех сторон пространство, оснащенное дверью, в котором размещаются привод, вводное устройство, станция управления и другое оборудование лифта.

3.1.13 приямок шахты: Часть шахты, расположенная ниже уровня пола нижней посадочной (погрузочной) площадки.

3.1.14 скорость номинальная: Скорость движения кабины, на которую рассчитан лифт.

3.1.15 шахта: Сооружение, в котором движутся кабина и противовес.

3.2 Обозначение размеров

3.2.1 Внутренние размеры кабины и дверного проема (см. рисунок 1)

3.2.1.1 Ширина кабины b1* - горизонтальное расстояние между внутренними поверхностями стен кабины, измеренное параллельно передней стенке входа в кабину.

3.2.1.2 Глубина кабины d1* - горизонтальное расстояние между внутренними поверхностями передней и задней стен кабины, измеренное перпендикулярно ширине кабины.

* Должны измеряться, как указано на рисунке 1а, на высоте 1 м от уровня пола кабины. Декоративные или защитные панели или поручни (при наличии) должны размещаться внутри этих размеров.

3.2.1.3 Высота кабины h4 - вертикальное внутреннее расстояние между порогом входа в кабину и конструктивным потолком кабины.

Устройства освещения кабины и декоративные потолки размещены внутри этого размера.

3.2.1.4 Ширина дверного проема b2 - размер ширины входа в свету, измеренный при полностью открытых дверях кабины и шахты.

3.2.1.5 Высота дверного проема h3 - размер высоты входа в свету, измеренный при полностью открытых дверях кабины и шахты.

3.2.2 Внутренние размеры шахты (см. рисунки 2а и 2б)

3.2.2.1 Ширина шахты b3 - горизонтальное расстояние между внутренними поверхностями стен шахты, измеренное параллельно ширине кабины.

3.2.2.2 Глубина шахты d2 - горизонтальное расстояние, перпендикулярное ширине шахты.

3.2.2.3 Глубина приямка d3 - наименьшее расстояние, измеренное параллельно направляющим, от уровня пола нижней посадочной (погрузочной) площадки до пола шахты.

3.2.2.4 Высота шахты от верхней посадочной (погрузочной) площадки h1 - наименьшее расстояние, измеренное параллельно направляющим, от уровня чистого пола верхней посадочной (погрузочной) площадки до выступающих частей перекрытия над шахтой.

3.2.3 Внутренние размеры машинного помещения (см. рисунки 2а и 2б)

3.2.3.1 Ширина машинного помещения b4 - горизонтальный размер, измеренный параллельно ширине кабины.

3.2.3.2 Глубина машинного помещения d4 - горизонтальный размер, измеренный перпендикулярно ширине машинного помещения.

3.2.3.3 Высота машинного помещения h2 - наименьший размер между уровнем размещения лебедки (гидроагрегата) и потолком машинного помещения, измеренный в соответствии с положениями ПУБЭЛ.

4 Основные параметры

4.1 Числовые значения грузоподъемностей пассажирских лифтов выбирают из ряда чисел, близких к ряду предпочтительных чисел R10 по ГОСТ 8032.

Рекомендуемые значения номинальных грузоподъемностей пассажирских лифтов соответствуют ряду: 320, 630, 800, 1000, 1275, 1600, 1800, 2000, 2500 кг.

Значения грузоподъемностей пассажирских лифтов для зданий различных видов рекомендуется выбирать согласно таблице 1.

Таблица 1 - Значения грузоподъемностей лифтов для зданий различных видов

Вид здания

Жилые

Общественные и промышленные (сооружения)

Большой этажности и (или) заселенности (с интенсивными пассажиропотоками)

Лечебно-профилактические учреждения

Номинальные грузоподъемности лифтов, кг

400, 630, 1000

630, 800, 1000

1275, 1600, 1800, 2000

1275*, 1600*, 2000*, 2500*

* Для больничных лифтов.

4.2 Числовые значения скоростей пассажирских лифтов выбирают из ряда чисел, близких к ряду предпочтительных чисел R5 по ГОСТ 8032.

Рекомендуемые значения номинальных скоростей движения кабин пассажирских лифтов соответствуют ряду: 0,40; 0,63; 1,00; 1,60; 2,00; 2,50; 3,00; 3,50; 4,00; 5,00; 6,00 м/с.

Номинальные скорости для пассажирских лифтов в зависимости от привода следует принимать в диапазоне:

0,63 - 6,00 - электрический привод;

0,40 - 1,00 - гидравлический привод.

4.3 Для зданий различных видов высотой до 25 этажей включительно скорость лифта, как правило, принимают согласно таблице 2.

Для зданий высотой более 25 этажей выбор скорости лифта производят при проектировании в соответствии с расчетом и по согласованию с производителем лифта.

Таблица 2 - Значения скорости лифта в зависимости от этажности здания

Номинальная скорость лифта, м/с

Максимальное число этажей

Жилые здания

Общественные и промышленные здания (сооружения)

0,40; 0,63; 1,00*

9

5

1,00

16

10

1,60

25

16

2,00; 2,50

-

25

* Для электрических и гидравлических лифтов.

4.4 При невозможности оборудования зданий (сооружений) лифтами в соответствии с требованиями настоящего стандарта, применяют лифты с параметрами и размерами, отвечающими требованиям национальных ПУБЭЛ.

5 Основные размеры

5.1 Основные размеры (внутренние) кабин, шахт, машинных помещений выбирают по таблицам 3, 3.1, 4 и рисункам 1 - 6. Электрические лифты могут иметь исполнения, которые не предусматривают машинного помещения.

(Поправка, ИУС 8-2004).

5.2 Рисунки не определяют конструкцию лифтов, а также расположение машинных помещений (в плане) относительно шахт и входных дверей в машинное помещение.

Размеры машинных помещений указаны с учетом наличия демонтажного люка в полу и расположения оборудования одиночного лифта. Расстояние от уровня площадки, где располагается привод лифта, до выступающих частей перекрытия машинных помещений, а также размеры общего машинного помещения для двух и более лифтов определяются производителем лифтов с учетом требований ПУБЭЛ.

Пассажирские лифты могут иметь исполнение, не требующее наличия машинного помещения (лифты без машинных помещений).

Таблица 3 - Высота кабины, дверного проема, частей шахты пассажирских лифтов

Размеры в миллиметрах

Размер

Номинальная скорость νном, м/с

Жилые здания

Здания общественные и промышленные (сооружения)

Здания большой этажности и заселенности

Номинальная грузоподъемность, кг

320

630

1000

630

800

1000

1275

1275

1600

1800

2000

Высота кабины h4

-

2200

2300

2400

Высота дверного проема кабины и шахты h3

2000

2100

Глубина приямка d3

0,40

1400

*

0,63 - 1,00

1400

*

1,60

 

1600

2,00

1750

 

1750

2,50

2200

2200

3,00

*

3200

3,50

3400

4,00;

5,00

3800

6,00

4000

Высота шахты от верхней посадочной (погрузочной) площадки h1

0,40

3600

*

0,63

3800

4200

*

 

1,00

3700

 

1,60

3800

4000

4200

 

2,00

*

4300

*

4400

 

2,50

5000

5000

5200

5500

 

3,00

*

 

3,50 - 5,00

5700

6,00

6200

* Определяется поставщиком лифта.

Примечания

1 Высота кабины допускается 2100 мм.

2 Высота дверного проема лифтов грузоподъемностью более 320 кг допускается 2000 мм.

3 Высота верхнего этажа допускается 3500 мм для лифтов номинальной скоростью менее 1,00 м/с при высоте кабины 2100 мм.

Таблица 3.1 - Габариты машинного помещения пассажирских лифтов

Размеры в миллиметрах

Размер

Номинальная скорость νном, м/с

Номинальная грузоподъемность, кг

320; 630

800; 1000

1275; 1600

1800; 2000

Машинное помещение (в плане b4 × d4)

Электрический лифт

0,63 - 1,60

2500 × 3700

3200 × 4900

3200 ´ 4900

3000 × 5000

2,00 - 3,00

-

2700 × 5100

3000 × 5300

3300 × 5700

3,50 - 6,00

-

3000 × 5700

3000 × 5700

Гидравлический лифт

Ширина или глубина шахты × 2000

Таблица 4 - Высота кабины, дверного проема, частей шахты, габариты машинного помещения электрических больничных лифтов

Размеры в миллиметрах

Грузоподъемность, кг

1275

1600

2000

2500

Высота кабины h4

2300

Высота дверного проема кабины и шахты h3

2100

Глубина приямка d3 для лифтов номинальной скоростью νном, м/с

0,63

1,00

1,60

2,00

2,50

 

1600

1800

1700

1900

1900

2100

2100

2300

2500

Высота шахты от верхней посадочной (погрузочной) площадки h1 для лифтов номинальной скоростью νном, м/с

0,63 - 1,60

 

 

4400

4600

2,00

2,50

4600

4800

5400

5600

Машинное помещение для лифтов номинальной скоростью νном, м/с

0,63

Площадь, м2

25

27

29

Ширина b4

3200

3500

Глубина d4

5500

5800

1,60 - 2,50

Площадь, м2

25

27

29

Ширина b4

3200

3500

Глубина d4

5500 (3500*)

5800

* Только для номинальной скорости 2,00 м/с.

Примечания

1 Значения b4 и d4 минимально допустимые. Фактические размеры должны обеспечить площадь машинного помещения.

2 Высота кабины h4 допускается 2200 мм.

b1 - ширина кабины; b2 - ширина дверного проема; d1 - глубина кабины; h3 - высота дверного проема; h4 - высота кабины; 1 - отделочные (декоративные) панели; 2 - подвесной потолок

Рисунок 1 - Обозначения основных размеров кабины и дверных проемов, а также внутренних размеров шахты

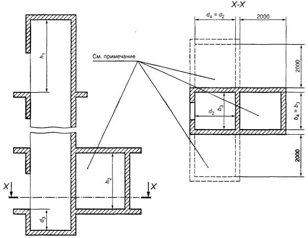
b3 - ширина шахты; b4 - ширина машинного помещения; d2 - глубина шахты; d3 - глубина приямка; d4 - глубина машинного помещения; h1 - высота шахты от уровня верхней посадочной площадки до выступающих частей перекрытия над шахтой; h2 - высота машинного помещения

Примечания

1 Машинное помещение должно быть оснащено дверью (на рисунке не указана).

2 Электрические лифты могут иметь исполнение, не предусматривающее машинное помещение.

Рисунок 2а - Регламентированные размеры шахты и машинного помещения электрических лифтов (одиночная установка)

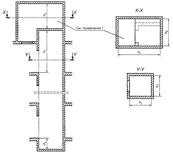
b3 - ширина шахты; b4 - ширина машинного помещения; d2 - глубина шахты; d3 - глубина приямка; d4 - глубина машинного помещения; h1 - высота шахты от уровня верхней посадочной (погрузочной) площадки до выступающих частей перекрытия над шахтой; 2, - высота машинного помещения

Примечание - Машинное помещение должно быть оснащено дверью (на рисунке не указана)

Рисунок 2б - Регламентированные размеры шахты и машинного помещения гидравлических лифтов (одиночная установка)

Примечания

1 Шахты лифтов скоростью более 2,50 м/с должны быть увеличены по ширине и глубине на 100 мм.

2 Лифты, обозначенные символом , доступны для инвалидов.

3 Лифты с кабинами в плане 1100 × 2100 мм доступны для транспортирования больного на носилках с убирающимися ручками (размер носилок 600 × 2000 мм).

Рисунок 3 - Пассажирские лифты для жилых зданий

Примечания

1 Шахты лифтов скоростью более 2,50 м/с должны быть увеличены по ширине и глубине на 100 мм.

2 Лифты, обозначенные символом , доступны для инвалидов.

3 Лифты, обозначенные символом , имеют габариты кабины, позволяющие инвалиду в кресле-коляске маневрировать.

4 Лифты с кабинами в плане 1100 × 2100 мм доступны для транспортирования больного на носилках с убирающимися ручками (размер носилок 600 × 200 мм).

Рисунок 4 - Пассажирские лифты для общественных и промышленных зданий (сооружений)

1) Только для лифтов скоростью 2,50 м/с.

Примечание - Лифты, обозначенные символом , имеют габариты кабины, позволяющие инвалиду в кресле-коляске маневрировать.

Рисунок 5 - Лифты скоростью 2,50 м/с и более для зданий большой этажности и заселенности с интенсивными пассажиропотоками

Примечания

1 Лифты, обозначенные символом , имеют габариты кабины, доступные для инвалидов.

2 Лифты, обозначенные символом , имеют габариты кабины, позволяющие инвалиду в кресле-коляске маневрировать.

3 Кабины лифтов предназначены для транспортирования больного на кроватях, максимальные габариты которых (см. символы на чертеже):

a) 900 × 2000 мм;

b) 1000 × 2300 мм;

c) 1000 × 2300 мм, с дополнительным медицинским оборудованием.

Рисунок 6 - Пассажирские лифты для зданий лечебно-профилактических учреждений (больничные лифты)

 

Ключевые слова: лифты пассажирские, габариты, грузоподъемность, скорость, габариты шахт машинных помещений.

 

 

Rambler's Top100 Яндекс цитирования
  Copyright © 2008, www.docload.ru

Добавить в Избранное