Бесплатная библиотека стандартов и нормативов www.docload.ru

Все документы, размещенные на этом сайте, не являются их официальным изданием и предназначены исключительно для ознакомительных целей.
Электронные копии этих документов могут распространяться без всяких ограничений. Вы можете размещать информацию с этого сайта на любом другом сайте.
Это некоммерческий сайт и здесь не продаются документы. Вы можете скачать их абсолютно бесплатно!
Содержимое сайта не нарушает чьих-либо авторских прав! Человек имеет право на информацию!

 

ПРАВИТЕЛЬСТВО МОСКВЫ

МОСКОМАРХИТЕКТУРА

ПОСОБИЕ
к МГСН 4.06-96

ОБЩЕОБРАЗОВАТЕЛЬНЫЕ УЧРЕЖДЕНИЯ

ПРЕДИСЛОВИЕ.

1. РАЗРАБОТАНО Институтом Общественных зданий при Минстрое РФ (канд. арх. Степанов А.В. - научный руководитель, автор: арх. Безсонова Г.А.);

при участии МНИИТЭП Москомархитектуры (инж. Добровольский А.Н., к.т.н. Грузинский М.М., к.т.н. Федоров Н.Н.) - разделы: электротехнические устройства, отопление и вентиляция, защита от шума).

2. ПОДГОТОВЛЕНО к утверждению и изданию. Управлением перспективного проектирования и нормативов Москомархитектуры (арх. Шалов Л.А., инж. Шипанов Ю.Б.).

3. СОГЛАСОВАНО Комитетом образования Москвы, Управлением архитектурного совета и согласования проектов Москомархитектуры, Мосгосэкспертизой.

4. УТВЕРЖДЕНО указанием Москомархитектуры от 14.03 1997г. № 11.

СОДЕРЖАНИЕ

1. Общие положения. 2

2. Концепция системы общего образования. 2

3. Основные положения комплексного решения проблемы. 3

Педагогический аспект. 3

Гигиенический аспект. 4

Архитектурно-типологический аспект. 4

Градостроительный аспект. 4

4. Педагогические требования к организации материальной среды. 5

5. Требования к организации сети, виды и типы общеобразовательных учреждений. 8

Основы формирования системы общеобразовательных учреждений. 8

Номенклатура видов и типов зданий общеобразовательных учреждений. 11

Внешкольные учреждения. 13

6. Земельный участок, примерный состав и площади элементов основных зон. 16

7. Требования к функциональным группам, составу и площадям помещений. 19

Система функциональных групп помещений:. 19

А) Номенклатура блок-модулей функциональных групп помещений, их содержание и назначение. 20

Б) Правила формирования из блок-модулей функциональных групп помещений различных видов общеобразовательных учреждений. 25

В) Комплексная (интегрированная) методическая сетка для определения функциональных групп и состава помещений в зависимости от вида здания. 31

8. Принципы расчета вместимости и пропускной способности общеобразовательных учебных зданий. 31

Расчет учебных помещений школ микрорайона. 31

Расчет учебных помещений школ районного уровня. 31

Расчет общешкольных помещений. 32

Комплексный подход к расчету пропускной способности учебной и общешкольной групп помещений общеобразовательных учреждений сетевого назначения. 33

9. Объемно-планировочное решение зданий. 36

А. Общие требования к структуре зданий. 36

Б. Принципы решения здания. 37

В. Проблема универсальности зданий. 39

Г. Комплексное решение универсальности здания. 41

10. Отопление и вентиляция. 43

11. Водоснабжение и канализация. 45

12. Электротехнические устройства. 46

13. Защита от шума, звукоизоляция, акустика помещений. 50

14. Технико-экономические показатели. 50

Приложение 1 примерный состав и площади помещений общеобразовательных учреждений. 51

1. ОБЩИЕ ПОЛОЖЕНИЯ.

Настоящее Пособие разработано в развитие и дополнение МГСН 4.06-96 "Общеобразовательные учреждения".

В Пособии сохранена структура и порядок изложения Норм (МГСН 4.06-96), но более глубоко развиты их основные положения.

Дополнительно введены разделы, касающиеся вопросов современной концепции обучения, особенностей функционирования общеобразовательных учреждений и педагогической технологии.

На основе Пособия возможно: (1) Планировать современную систему зданий общеобразовательных учреждений, состоящую из школ I, II и III ступеней обучения, гимназий, лицеев и включающую сопутствующие ей внешкольные учреждения; (2) Доводить (модернизировать) существующую сеть школьных зданий до уровня современных педагогических требований; (3) Формировать различные виды и типы зданий по организационно-педагогической структуре, составу и площадям помещений в зависимости от местных, региональных и общегородских условий и особенностей содержания обучения; (4) Создавать более современные объемно-планировочные решения, включая вопросы создания универсальных зданий для всей группы общеобразовательных учреждений.

Пособие дает также представление о нормативных показателях расчетной площади для наиболее массовых учреждений (традиционных школ, школ с профильным (дифференцированным) обучением, гимназий, лицеев). Содержит перспективную Номенклатуру типов зданий, составы и площади к ним.

Пособие предназначено для: (1) проектных организаций занимающихся планировкой, застройкой и реконструкцией жилых районов, а также проектированием новых современных зданий общеобразовательных учреждений и реконструкцией существующих зданий школ; (2) Префектур и отделов образования.

2. КОНЦЕПЦИЯ СИСТЕМЫ ОБЩЕГО ОБРАЗОВАНИЯ.

Школа выполняет социальную функцию центра учебно-воспитательной работы в жилой среде, что обусловливает ее открытый характер для активного приобщения населения, общественности и семьи к воспитанию детей и совместной развивающей деятельности по интересам.

Для управления, организации, проведения и контроля учебно-воспитательного процесса предусматривается широкое применение технических средств обучения, электронно-вычислительной техники в том числе на уровне системы обслуживания сети учебно-воспитательных зданий.

Материальной базой развития личности должно стать развитая сеть учебно-воспитательных учреждений, представляющая собой единую систему, состоящую из взаимодополняющих друг друга общеобразовательных учреждений (микрорайон - район); межшкольных и школьных учебно-производственных комбинатов и мастерских, массовых видов внешкольных учреждений (жилой район) и специализированных внешкольных учреждений и других учебно-воспитательных зданий (округ города - город).

В соответствии с концепцией общего среднего образования для широкого общеобразовательного и воспитательного процессов должны функционировать:

- Общеобразовательные школы:

          - I ступень - начальная школа.

          - II ступень - основная школа.

          - III ступень - старшая школа, гимназия, лицей;

- Учебно-воспитательные учреждения для трудового обучения;

- Внешкольные учреждения.

Эта концепция предполагает кардинальное изменение содержания и методов обучения на всех трех ступенях общего образования, а также всей совокупности отношений, делавших школу в старых условиях мало восприимчивой к нововведениям.

На начальной ступени школы осваивается новая идеология обучения, предполагающая изменения приоритетов, целей обучения и выдвижение на первый план его развивающей функции.

Обновление действующего содержания обучения осуществляется через введение специального курса развития познавательных способностей, создающего развивающую среду для учащихся, которые обучаются по действующим программам, а также через ведение новых интегрированных курсов "Математика и конструирование", "Природоведение и сельскохозяйственный труд", "Речь и культура общения", "Окружающий мир", параллельных учебников по чтению, математике, русскому языку, природоведению.

С целью расширения возможностей выбора учителями начальных классов общеобразовательных технологий создается банк идей и новых технологий обучения младших школьников; организуются и используются разработки перспективных программ развивающего обучения в начальных классах.

На средней ступени образования закладывается фундамент общего образования, оно является базовым. В рамках базового образования предусматривается введение разноуровневых программ индивидуально-ориентированного обучения, изменение соотношений обязательной (нормативной) части обучения и того, что выбирает сам учащийся. Для этой ступени образования организуются разработки новых концепций гуманитарного, эстетического и естественно-математического образования; новых учебных планов и программ; новых учебников и учебно-методических пособий; интегрированных курсов и пособий для получения дополнительного образования по различным предметам.

На третьей ступени завершение общего образования на основе дифференциации обучения, осуществляется свободный выбор учащимися направленности обучения, предметов в сфере гуманитарной, естественнонаучной и технической (кроме базовых).

Концепция общего образования влечет за собой пересмотр материальной среды школы, как по принципам организации сети и типам зданий, так и по реорганизации структуры, состава и площадей помещений.

3. ОСНОВНЫЕ ПОЛОЖЕНИЯ КОМПЛЕКСНОГО РЕШЕНИЯ ПРОБЛЕМЫ.

Современная общеобразовательная школа в оптимальном варианте трактуется как школа полного дня, в которой учащиеся будут получать образование, выполнять уроки, заниматься спортом, в различных кружках и студиях, отдыхать, питаться.

Ориентация обучения и воспитания в школе будет направлена на развитие личности ученика, выявление его склонностей и потенциальных возможностей в той или иной сфере человеческой деятельности. Воспитание творческой личности - генеральная задача школы.

Программа проектирования современных общеобразовательных учреждений опирается на утвержденную Министерством образования "Концепцию социально-функциональных требований к организации системы и проектирования общеобразовательной школы I, II и III ступеней обучения в части альтернативной (авторской) программы, в которой содержатся педагогический, гигиенический, архитектурно-типологический и градостроительный аспекты.

Педагогический аспект.

Организационно-педагогическая структура общеобразовательной школы (соотношение параллелей учащихся начальной, основной и старшей школ), должна обеспечивать возможность ее изменения, например, от автономной школы с равным числом параллелей классов до организации сетевой школы с повышенным числом параллелей классов старших возрастов (например от 2:2:2 до 1:2:4 (0:3:4).

Активизация обучения и развития творческого потенциала личности:

- в школе I ступени - игровые методы, создание среды для развивающего обучения;

- в школе II - III ступени обучение по системе ученик - группа - класс - поток;

- в школе II ступени создание материальной среды для базового образования и занятий по интересам каждого вне обязательной программы;

- в школе III ступени дифференциация обучения по направлениям (гуманитарное, естественнонаучное, техническое);

- широкое применение технических средств обучения (компьютеризация) и создание развитого учебно-информационного центра - библиотеки;

- разностороннее и творческое развитие каждого;

- повышение воспитательной функции школы во внеучебное время с привлечением семьи и взрослого населения;

- внедрение в учебно-воспитательный процесс "перемежающегося" режима дня с чередованием учебных уроков (в классах, кабинетах, мастерских) со спортом, творческими занятиями в кружках-студиях (искусство, техническое творчество, биолого-юннатская деятельность), практикумах-лабораториях, досугом и отдыхом;

- комплексный подход к разностороннему развитию подрастающего поколения детей.

Гигиенический аспект.

- повышение качественного уровня естественного и искусственного (комбинированного) освещения учебных помещений для организации, помимо фронтальных, групповых и индивидуальных форм занятий;

- улучшение условий воздушной среды обитания за счет повышения удельного объема и кратности обмена воздуха, а также воздушной аэрации;

- применение в начальной и основной школах преимущественно индивидуальных мобильных ученических столов;

- создание зонированных пространств для психологической разгрузки учащихся в учебных и внеучебных помещениях;

- применение экологически чистых строительных материалов;

- создание интересной психологической среды (окружение воспитывает).

Архитектурно-типологический аспект.

Разделение функциональных групп помещений на два комплекса: учебный и общешкольный.

Автономия учебных групп помещений по возрастному признаку и функциональной принадлежности:

- блок помещений начальной школы (1 и 2 - 4 классы - I ступень);

- блок кабинетов 5 - 8 (9) классов (II ступень);

- блок кабинетов (9) 10 - 11 классов (III ступень с дифференциацией обучения по направлениям);

- блок кабинетов по естественным наукам;

- блок учебных мастерских и практикумов (технология);

- учебно-методический - информационный центр - библиотека.

Горизонтальные связи между основными учебными группами помещений и учебно-методическим - информационным центром;

"Гибкая" организация учебных пространств, опирающаяся на укрупненный конструктивный модуль;

Создание центра досуга в составе форума, спорта, группы зрительного зала, студий, столовой, видеокафе, администрации;

Включение в группу спорта игровых спортзалов и бассейна.

Развитая среда помещений художественного воспитания, творческого развития в области техники и юннатско-биологической и опытнической деятельности.

Автономность функционирования комплекса по всем функциональным группам помещений общешкольного центра.

Органическая связь функциональных групп учебных помещений с учебно-опытной зоной и зоной отдыха земельной территории школы.

Достижение интересной и разнообразной архитектурной среды (среда воспитания) на основе синтеза современной педагогической технологии школы и архитектурного облика здания.

Градостроительный аспект.

Переход от единой общеобразовательной школы на трехступенчатую систему обучения в общеобразовательной школе влечет за собой усложнение формирования сети зданий и, как следствие, многообразие типов зданий по назначению (содержанию), организационно-педагогической структуре, и количеству классных помещений.

Для г. Москвы наиболее характерны по принципам организации сети две позиции: (1) средняя школа I, II и III ступеней обучения, предназначенная для новых городских микрорайонов и (2) старшая школа II-III ступеней с профильным обучением, обслуживающая сложившуюся сеть зданий.

Основная идея позиции (2) заключается в том, что в новый такой школьный комплекс переводятся учащиеся старших возрастов и часть верхнего эшелона учащихся средних возрастов, что отражается на особенностях возрастной структуры комплекса, где число параллелей старших возрастов (10 - 11 классы) превышает число параллелей основного (среднего) звена школы (5 - 9 или 8 - 9 классы).

При сложившейся материальной среде, когда на 1 учащегося в Российской Федерации приходится примерно 4,6 м2 плошали, а по новой концепции стабилизации и развития сферы образования требуется не менее 16 - 20 м2, а в школах III ступени обучения она может достигать и 25 м2, этот путь может считаться приоритетным, так как решает следующие задачи:

- дает возможность повысить комфорт материальной среды начальной и частично основной школ в соответствии с новыми социально-педагогическими требованиями за счет разукрупнения;

- обуславливает предпосылки для создания концентрированной базы дифференцированного профильного обучения, как в части оснащения материальными ресурсами, так и в части привлечения к обучению более высококвалифицированных преподавателей;

- предопределяет более экономное решение пути строительства новых школ за счет системного подхода, а не частного подхода к отдельным объектам (исключается строительство мелких объектов при каждой существующей школе).

4. ПЕДАГОГИЧЕСКИЕ ТРЕБОВАНИЯ К ОРГАНИЗАЦИИ МАТЕРИАЛЬНОЙ СРЕДЫ.

Педагогические требования включают: (1) классификацию видов общеобразовательных учреждений (таблица 1); (2) наполняемость классных групп; (3) базисный учебный план общеобразовательных учреждений (таблица 2); (4) примерное распределение времени школьников в течении учебной недели (таблица 3); (5) режим дня общеобразовательного учреждения (таблица 4).

4.1. Общеобразовательные учреждения классифицируются на общеобразовательные школы, общеобразовательные школы с профильным обучением, гимназии, лицеи. В таблице 1 показаны назначение общеобразовательных учреждений, какие классы и ступени они содержат (См. также приложение 2 МГСН 4.06-96).

4.2. Вместимость основной классной группы в общеобразовательном учреждении принимается не более 25 учащихся. Однако реально рекомендуется принимать 24 учащихся в класс, т.к. это связано с комплектованием учебных столов учащихся, особенно это важно для старших возрастов (оно должно быть четное), 26 мест, с одной стороны, нарушает закон об образовании, с другой, влечет за собой неоправданное увеличение нормы площади ради одного ученического места. В старших классах общеобразовательных школ с профильным обучением, а также в гимназиях и лицеях классная группа принимается 20 человек. В исключительных случаях, а также при модернизации сети зданий, число мест в классных группах может быть увеличено до 30х).

х) См. Рекомендации по реконструкции и модернизации существующего фонда школьных зданий в соответствии с современными педагогическими требованиями М. 1997 г.

Таблица 1.

КЛАССИФИКАЦИЯ ВИДОВ ОБЩЕОБРАЗОВАТЕЛЬНЫХ УЧРЕЖДЕНИЙ.

Виды учреждений

Ступени обучения

I

II

III

возраста классных групп

1

2

3

4

5

6

7

8

9

10

11

(12)

1. Общеобразовательная школа

 

 

 

 

 

 

 

 

 

 

 

 

- начальная

·

·

·

·

 

 

 

 

 

 

 

 

- основная

·

·

·

·

·

·

·

·

·

 

 

 

- старшая

 

 

 

 

 

 

 

 

 

·

·

(·)

- полная средняя

·

·

·

·

·

·

·

·

·

·

·

·

2. Общеобразовательная школа с профильным обучением

 

 

 

 

 

 

 

 

 

 

 

 

- полная средняя

·

·

·

·

·

·

·

·

·

·

·

(·)

- основная и старшая

 

 

 

 

·

·

·

·

·

·

·

(·)

3. Гимназия

 

 

 

 

·

·

·

·

·

·

·

(·)

4. Лицей

 

 

 

 

 

 

 

·

·

·

·

(·)

Названное положение является ключевым для расчета вместимости и определения типа здания той или иной градостроительной ситуации.

Для проведения практических работ в лабораториях, мастерских, и для занятий физкультурой в старших классах, классная группа делится пополам. Классная группа для изучения иностранного языка делится на 2 или 3 подгруппы. Это положение определяет реальное число ученических мест в названных помещениях при расчете их площади.

В студиях художественного воспитания, кружках технического творчества число мест принимается от 12 до 8 (соответственно занятиям в младших и старших группах).

4.3. Базисный учебный план (табл. 2) является основой для определения состава помещений, по содержанию и их количеству.

Вариативная часть учебного плана состоит из часов, отведенных на обязательные занятия по выбору и факультативные, индивидуальные и групповые занятия.

Часы обязательной и вариативной части могут быть использованы на предметы инвариантной части (в том числе и для углубленного изучения предметов), а также для изучения второго и третьего языков, на введение дополнительных предметов.

Таблица 2.

БАЗИСНЫЙ УЧЕБНЫЙ ПЛАН ОБЩЕОБРАЗОВАТЕЛЬНЫХ УЧРЕЖДЕНИЙ.

Общеобразовательные области

Предметы

Количество часов в неделю в классах

I

II

III

IV

V

VI

VII

VIII

IX

X

XI

Русский язык как государственный

 

3

3

3

3

3

3

3

3

3

 

 

Языки и литература

Родной, русский, иностранный языки и литература

4

4

4

4

8

8

6

5

5

4

4

Искусство

ИЗО, музыка, мировая художественная литература

2

2

2

2

2

2

2

2

 

 

 

Общественные дисциплины

История, право, человек и общество, современный мир, граждановедение

2

2

2

2

2

2

2

3

4

4

4

Естественные дисциплины

Естествознание, география, биология, физика, астрономия, химия, экология

-

-

-

-

2

3

6

8

8

4

4

Математика

Алгебра, геометрия, начало анализа, статистика, теория вероятностей, логика

4

4

4

4

5

5

5

4

5

3

3

Физкультура

Физкультура, ритмика, основы безопасности

2

2

2

2

2

2

2

2

2

3

3

Технология

Трудовое и профессиональное обучение, конструирование, ЭВТ, художественный труд, черчение, природоведение

2

2

2

2

2

2

2

3

3

2

2

Всего:

19

19

19

19

26

27

28

30

30

20

20

Обязательные занятия по выбору

1

3

5

5

3

3

4

2

3

12

12

Обязательная нагрузка учащегося:

20

22

24

24

29

30

32

32

33

32

32

Факультативные, индивидуальные и групповые занятия

2

3

3

3

3

3

3

3

3

6

6

Итого:

22

25

27

27

32

33

35

35

36

38

38

Вариативная факультативная часть используется на индивидуальные и групповые занятия.

Для школ с углубленным изучением ряда предметов, а также в целях обеспечения профессиональной ориентации и обучения вводятся интегрированные курсы по профилю обучения или получаемой специальности. В этом случае на предмет "Технология" используются как часы, отведенные инвариантной частью базисного учебного плана, так и необходимое количество часов, предусмотренное обязательной и факультативной составляющими вариантной части.

Таблица 3.

ПРИМЕРНАЯ МОДЕЛЬ РАСПРЕДЕЛЕНИЯ ВРЕМЕНИ-ШКОЛЬНИКА В ТЕЧЕНИИ УЧЕБНОЙ НЕДЕЛИ.

№№

Деятельность

Количество классов

Классы

1 (6 лет)

2 - 4 (7 - 10 лет)

5 (10 - 11 лет)

6 - 9 (11 - 15 лет)

10 - 11 (16 - 17 лет)

1.

Учебные и факультативные

См. Таблицу 2 (базисный учебный план)

2.

Самостоятельные занятий (подготовка домашних заданий)

6

6 - 12

12

15 - 18

24

3.

Внеучебная:

 

 

 

 

 

 

а) занятия в предметных кружках

-

-

1

2

1

 

б) творческая (в технических и юннатских кружках, свободное творчество)

2

2

2 - 3

2 - 4

2

 

в) воспитание (занятия музыкой, рисунком, лепкой, хореографией и т.п.)

4

2

4 - 3

4 - 2

 

 

г) пребывание на открытом воздухе (прогулки, активный отдых, дорога в школу и внешкольное учреждение и обратно)

18

14

13

9 - 8

6

 

д) занятия спортом (физкультурой)

4

3

4

4

3

 

е) спокойный отдых (чтение книг, игры, прослушивание радиопередач, просмотр телепередач, посещение культурно-просветительных учреждений и т.д.)

6

8 - 7

8 - 7

7

9

 

ж) общественно-полезный труд, помощь по дому

1

1

1 - 2

2

2 - 3

4.

Личное самообслуживание (прием пищи, туалет, гимнастика)

16

15

15

12

10

5.

Сон

69

69 - 64

60

55 - 53

54 - 50

Всего

144

144

144

144

144

Примечания:

1. Показатели времени по пп. 2, 3, 4 приведены с учетом использования их течении 6-ти дней в неделю.

2. Суммарное время, указанное в п. (а) и (б), может быть отдана только одному виду занятий.

3. Обязательные часы занятий физкультурой включены в п. 1.

4. В национальных школах время на внеучебную деятельность пропорционально сокращается (пп. а - ж) в связи с увеличением учебного времени на 2 - 3 часа.

5. Общественная деятельность включена в пп. а, б, е, ж.

6. Суббота планируется как день активного и творческого досуга учащихся, т.ч. с участием родителей.

7. Воскресенье - день восполнения духовных и физических сил учащихся.

Таблица 4.

ПРИМЕРНАЯ СХЕМА РЕЖИМА ДНЯ ОБЩЕОБРАЗОВАТЕЛЬНОЙ ШКОЛЫ С УЧЕТОМ АКТИВИЗАЦИИ ДЕЯТЕЛЬНОСТИ ВО ВНЕУЧЕБНОЕ ВРЕМЯ.

Режимный момент

Классы

1

2

3

4

5

6-7

8-9

10-11

1. Подъем

7.00

7.00

7.00

7.00

7.00

7.00

7.00

7.00

2. Утренняя гимнастика, туалет, уборка постели

7.00 - 7.30

7.00 - 7.30

7.00 - 7.30

7.00 - 7.30

7.00 - 7.30

7.00 - 7.30

7.00 - 7.30

7.00 - 7.30

3. Завтрак

7.30 - 8.00

7.30 - 8.00

7.30 - 8.00

7.30 - 8.00

7.30 - 8.00

7.30 - 8.00

7.30 - 8.00

7.30 - 8.00

4. Дорога в школу

8.00 - 8.30

8.00 - 8.30

8.00 - 8.30

8.00 - 8.30

8.00 - 8.30

8.00 - 8.30

8.00 - 8.30

8.00 - 8.30

5. Учебные занятия (второй завтрак, общественная работа)

8.30 - 10.15

8.30 - (11.35 - 12.30) ·

8.30 - (11.35 - 12.30) ·

8.30 - (11.35 - 12.30) ·

8.30 - (11.35 - 13.30) ·

8.30 - (11.35 - 14.00) ·

8.30 - (11.35 - 14.00) ·

8.30 - (11.35 - 14.30) ·

6. Прогулка - игры

10.30 - 13.00

12.30 - 13.00

12.30 - 13.00

12.30 - 13.00

13.30 - 14.00

-

-

-

7. Обед

13.00 - 13.30

13.00 - 13.30

13.00 - 13.30

13.00 - 13.30

14.00 - 14.30

14.00 - 14.30

14.00 - 14.30

14.30 - 15.00

8. Сон

13.30 - 15-30

13.30 - 15.00 ··

13.30 - 14.30 ··

-

-

-

-

-

9. Прогулка - активный отдых

15-30 - 17-30

15.00 - 16.00

14.30 - 16.00

13.30 - 16.00

14.30 - 16.00

14.30 - 16.00

14.30 - 16.00

15.00 - 16.00

10. Учебные занятия - приготовление домашних заданий - частично свободное время

-

16.00 - 17.00

16.00 - 17.30

16.00 - 17.30

16.00 - 18.00

16.00 - 18.00

16.00 - 18.00

16.00 - 18.00

11. Полдник

17.30

17.30

17.30

17.30

18.00

18.00

18.00

18.00

12. Свободные занятия

17.30 - 19.00

17.30 - 19.00

17.30 - 19.00

17.30 - 19.00

18.00 - 20.00

18.00 - 20.00

18.00 - 20.00

18.00 - 20.00

13. Дорога домой - прогулка

19.00 - 19.30

19.00 - 19.30

19.00 - 19.30

19.00 - 19.30

20.00 - 20.30

20.00 - 20.30

20.00 - 20.30

20.00 - 20.30

14. Ужин

19.30 - 20.00

19.30 - 20.00

19.30 - 20.00

19.30 - 20.00

20.30 - 21.00

20.30 - 21.00

20.30 - 21.00

20.30 - 21.00

15. Свободные занятия

-

-

-

-

-

-

21.00 - 21.30

21.00 - 21.30

16. Приготовление ко сну

20.00 - 20.30

20.00 - 20.30

20.00 - 20.30

20.00 - 20.30

21.00 - 21.30

21.00 - 21.30

21-30 - 22.00

22.00 - 22.30

17. Сон

20.30

20.30

20.30

20.30

21.30

21.30

22.00

22.30

· Время, указанное в скобках, обозначает замену учебных занятий приготовлением уроков в случае "перемежающегося" режима. Если вторая половина дня должна быть освобождена для различных мероприятий, посещений внешкольных учреждений и т.д., то учебные занятия полностью осуществляются в первой половине дня, а приготовление домашних заданий во второй половине.

·· Для детей с ослабленным здоровьем, для остальных прогулки, игры, свободное время.

Главное - это то, чтобы общая часовая загрузка помещений не превышала 30 часов в неделю, а по общему балансу часов по всей группе учебных кабинетов оставался люфт (свободного времени) не менее 5 часов, т.е. суммарная загрузка учебных кабинетов не должна превышать в неделю 25 часов (80 %).

4.4. Примерное распределение учебного и внеучебного времени школьника в течении учебной недели (таблица 3) необходимо для расчета загрузки помещений общешкольного центра во внеучебное время, содержащего зальные помещения, кружки, студии и для расчета баланса материальной среды школы во взаимодействии с внешкольными учреждениями города. Внеучебное время дано из расчета 6-ти дней в неделю, т.к. суббота планируется как день творческих занятий.

4.5. Примерная схема режима для учащегося (табл. 4) является основой для расчета границ времени, когда общешкольные помещения могут посещать учащиеся во внеурочное время и взрослое население жилого микрорайона или жилого района.

5. ТРЕБОВАНИЯ К ОРГАНИЗАЦИИ СЕТИ, ВИДЫ И ТИПЫ ОБЩЕОБРАЗОВАТЕЛЬНЫХ УЧРЕЖДЕНИЙ.

Основы формирования системы общеобразовательных учреждений

Идея развития - узловой момент новой школы. Постоянное развитие образования, превращает его в механизм развития личности и в действующий фактор развития общества - основные грани этой идеи.

Школа выполняет социальную функцию центра учебно-воспитательной роботы в жилой среде, что обусловливает ее открытый характер для активного приобщения населения, общественности и семьи к воспитанию детей и совместной развивающей деятельности по интересам.

Для управления, организации, проведения и контроля учебно-воспитательного процесса предусматривается широкое применение технических средств обучения, электронно-вычислительной техники на уровне системы обслуживания сети учебно-воспитательных зданий.

5.1. Материальной базой развития личности должна стать развитая сеть учебно-воспитательных учреждений, представляющих собой единую систему, состоящую из взаимодополняющих зданий общеобразовательных учреждений (жилой микрорайон - район); межшкольных и школьных учебно-производственных комбинатов и мастерских, массовых видов внешкольных учреждений (жилой район) и специализированных внешкольных учреждений и других учебно-воспитательных зданий (город).

5.2. В соответствии с концепцией общего среднего образования для широкого образовательного и воспитательного процессов должны функционировать следующие виды учреждений:

Учреждения общеобразовательные (структура):

- I ступень - начальная школа;

- II ступень - основная школа;

- III ступень - старшая школа, гимназия, лицей.

Учебно-воспитательные для трудового обучения:

- школьные учебно-производственные мастерские;

- межшкольные учебно-производственные комбинаты:

- городские Центры профориентации и трудового обучения школьника.

Внешкольные учреждения:

- Центры и Дома внешкольной деятельности районного уровня обслуживания (массовые);

- профильные (специализированные) Центры и Дома внешкольной деятельности учащихся городского уровня обслуживания;

- детские клубы по месту жительства.

5.3. Сеть общеобразовательных учреждений рассматривается как основное звено общей системы учебно-воспитательных знаний, включающей внешкольные учреждения и учреждения для трудового обучения, что предопределяет формирование разносторонне развитой личности.

Могут создаваться различные виды общеобразовательных учреждений с разнообразными возрастными организационно-педагогическими структурами, содержанием, формами и методами организации учебно-воспитательного процесса и направленностью проффилизации.

Школы различных ступеней обучения в зависимости от местных условий могут размещаться отдельно или формироваться в комплексы в разнообразных сочетаниях.

5.4. Общеобразовательные учреждения в единой системе учебно-воспитательных зданий могут кооперироваться с дошкольными и внешкольными учреждениями, учебно-производственными комбинатами и учебными заведениями, дающими профессию со средним образованием.

5.5. При расчете сети зданий следует предусматривать число мест в общеобразовательных учреждениях для 100% учащихся младшего и среднего школьного возраста и до 75% учащихся старшего школьного возраста при обучении в одну смену.

5.6. При расчете комплексной сети зданий и числа мест в общеобразовательных учреждениях необходимо иметь в виду что: 1) учебно-производительный труд для учащихся старших возрастов может быть организован в межшкольных учебно-производственных комбинатах (МУПК), школьных учебно-производственных мастерских (УПМ), школьных заводах и т.д., из расчета организации в них до 8% рабочих мест от общего числа учащихся; 2) занятия по интересам в соответствии с индивидуальными склонностями детей могут осуществляться во внешкольных учреждениях (ВУ), из расчета организации в них до 10% рабочих мест от общего числа школьников; 3) отдельные виды занятий могут быть организованы по месту жительства - школа, кружки, студии и клубы по интересам при группах жилых домов.

По месту жительства рекомендуется планировать детские клубы для охвата ими детей микрорайона, не вовлеченных в активные формы работы в школе или во внешкольных учреждениях из расчета: по спорту и туризму 35%, художественным воспитанием 35%, кружками юных натуралистов и техников 12%, прочими видами клубной работы 18%.

Число мест в здании общеобразовательного учреждения определяется по местным демографическим условиям и перспективам развития жилого района (в среднем по Москве 110 учащихся на 1000 жителей). Отклонения могут составить 90 - 130 учащихся на 1000 жителей.

При этом следует руководствоваться ориентировочной демографической структурой населения исходя из особенностей структуры города (МГСН 1.01-94 табл. 5.3 к пункту 5.7 для населения возрастных групп 6, 7 - 15, 16 - 17 лет).

5.7. Выбор типов зданий по вместимости определяется в зависимости от количества учащихся, приходящихся на 1000 жителей, числа жителей в жилом районе - микрорайоне, величины классной группы.

5.8. Количество, виды и типы зданий подбираются в соответствии с рекомендуемой номенклатурой общеобразовательных учреждений (см. табл. 6), но в пределах расчетного числа классных помещений (см. табл. 6).

5.9. Для модернизации сложившейся сети школьных зданий следует руководствоваться п. 5.15 МГСН 1.01-94, применяя в системе застройки сетевые здания средних школ II и III ступеней обучения (см. приложение 3, п. "е" и приложение 4 п. 4 к МГСН 4.06-96). При этом следует учитывать, что в действующих зданиях школ будет уменьшаться наполняемое классной группы.

Таблица 5.

Численность населения жилого микрорайона - района тыс. жителей

Расчетное количество классов в зависимости от обслуживаемого населения, числа учащихся на 1000 жителей и наполняемости классной группы

Число учащихся на 1000 жителей

90

110

130

Наполняемость классной группы

24 учащихся

20 учащихся

4 -6

15 - 23

18 - 27

18- 28

22 - 33

22 - 32

26 -39

7 - 9

26 - 34

32 - 40

32 - 40

38 - 50

38 - 48

46 - 58

10 - 12

38 - 45

45 - 54

46 - 55

55 - 66

54 - 65

65 - 78

13 - 15

48 - 56

58 - 68

60 - 68

72 - 82

70 - 80

84- 98

5.10. Для муниципальных районов с неразвитой инфраструктурой общественных зданий, не соответствующей укрупненным расчетным показателям обеспеченности жителей учреждениями обслуживания согласно МГСН-1.01-94 табл. 5.1 и 5.2 к пункту 5.3. рекомендуется проектировать средние школы с выделенным блоком общешкольного центра для обслуживания учащихся, а также населения во внеучебное время.

5.11. Сумма ученических мест в сети общеобразовательных учреждений в условиях новой и сложившейся застройки, должна соответствовать п. 4.5. МГСН 4.06-96.

5.12. Радиусы обслуживания от дома до общеобразовательного учреждения определяются максимальным временем доступности в соответствии с п. 4.12 МГСН 4.06-96.

5.13. Комплексная программа научно-технического прогресса, его социально-экономические последствий области градостроительства и архитектуры, народного образования ориентирует на преобразование традиционной общеобразовательной школы в школу открытого типа (полного дня) с развитым досугом учащихся во внеучебное время. В городских школах предусматривается на первом этапе охватить разнообразными формами деятельности в свободное время половину учащихся, а затем 2/3 учащихся, с учетам того, что оставшаяся 1/3 учащихся будет ориентирована на посещение внешкольных учреждений районного и городского уровня для занятий по интересам.

Одновременно ставится задача развития социальной среды обслуживания взрослого населения микрорайона за счет использования помещений самой школы, в том числе и родителями, что позволит включить активную часть населения в процесс воспитания подрастающего поколения: создать на базе школы социально-педагогический комплекс - центр учебно-воспитательной работы с детьми микрорайона.

5.14. Для решения поставленных задач предлагается формировать школьные здания в виде комплексов, состоящих из учебных блоков и блоков общешкольных помещений, предназначенных для использования во внеучебное время школьниками и населением в свободное от работы время.

В этих целях могут создаваться три типа общешкольных центров "А", "Б" "В" (клубно-спортивных и досуга). В них включаются группы помещений спортивных залов, учебных мастерских, зрительного зала, кружковых помещений и студий, библиотеки и обеденного зала. Общешкольные центры могут быть как с минимальным набором помещений (блок типа "А"), так и с расширенным составом помещений (блоки типа "Б" и "В"), что связано с решением задач преобразования традиционной школы в школу открытого типа с развитой материальной базой для проведения активного досуга в свободное время.

5.15. Рекомендуется опираться на следующие основные положения по составу и нормированию помещений общешкольных центров:

тип "А" с нормативным минимальным составом предназначен для школ (рассчитан на охват до 1/3 учащихся во внеучебное время);

тип "Б" - с расширенным составом помещений, включает дополнительно игровой спортзал и бассейн, кружковые помещения и универсальную мастерскую для населения (рассчитан на охват до 50 % учащихся школы в свободное время);

тип "В" - с рекреационным центром и расширенным составом помещений (по отношению к блоку "Б"); имеет более развитую материальную сферу для кружковой работы по техническому творчеству, биолого-юннатской и опытнической деятельности, эстетическому воспитанию, спорту с одновременным качественным преобразованием состава остальных функциональных групп помещений, включая учебно-производственные мастерские; (рассчитан на охват во внеучебное время до 2/3 учащихся).

Общешкольные центры, рассчитанные на охват 1/3, 1/2 и 2/3 учащихся школы внеучебной деятельностью, формируются с учетом того, что остальные школьники смогут в течении учебной недели посещать различные виды внешкольных учреждений города и учреждения для трудового обучения, имеющие профориентационное назначение.

В соответствии с этим состав помещений общешкольных центров школ, в совокупности с внешкольными учреждениями и межшкольными УПК, позволяет охватить практически всех учащихся различными видами деятельности в школе и вне ее.

В общешкольные центры типа "Б" и "В" дополнительно включается входная группа помещений вестибюля-гардероба и административно-хозяйственных помещений, что обеспечивает возможность их эксплуатации автономно от школы.

5.16. При расчете помещений общешкольных центров, а также формировании комплексной системы школ, внешкольных учреждений и зданий для трудового обучения следует руководствоваться Примерной моделью распределения времени школьника в течении учебной недели и режимом дня (см. табл. 3, 4), а также Методикой проектирования зданий общеобразовательных школ с выделенными блоками помещений для учащихся и населения (ЦНИИЭП учебных зданий М. 1989 г.).

5.17. Использование помещений выделенных общешкольных блоков населением (за исключением учебных) предусматривается по остаточному принципу, т.е. в часы, когда школьники в соответствии с учебно-воспитательным режимом дня не будут находиться в помещениях общешкольного назначения, в основном после 19 - 20.00 часов, за исключением помещений, непосредственно предназначенных для взрослого населения (клубные помещения, универсальная мастерская), а также в выходные дни.

Общешкольные центры дают возможность охватить различными видами деятельности в свободное время в среднем до 2000 - 3000 человек взрослого населения в течение рабочей недели, если опираться на составы помещений приведенные в Приложении 1.

Номенклатура видов и типов зданий общеобразовательных учреждений.

5.18. Для формирования системы зданий общеобразовательных учреждений города предлагается перспективная номенклатура видов и типов зданий (табл. 6):

Группа 1 - основные школы (I и II ступеней обучения) В составе 1 - 9 классов: с организационно-педагогической структурой 1:1:0, 2:2:0 и 3:3:0);

Группа 2 - средние полные школы (I, II III ступеней) в составе I - ХI классов, с организационно-педагогической структурой 1:1:1. 2:2:2 и 3:3:3), т.е. с равным числом параллелей классов по всем трем ступеням;

Группа 3 - средние полные школы с профилированным обучением и организационно-педагогической структурой 1:1:1, 2:2:2, 3:3:3 и 2:2:2+2:2:2;

Группа 4 - средние школы I - III ступени с профильным обучением, с организационно-педагогической структурой 0:2:4, 0:3:6,. 0:4:8 с разным числом параллелей 5 - 9 и 10 - 11 классов для решения проблемы обслуживания основных школ и действующих школ с устаревшей материально-технической учебной базой;

Группа 5 и 6 - гимназии и лицеи с организационно-педагогической структурой 0:1:1, 0.2:2, 0.3:3 и 0:2:2, 0:3:3, 0:0:9.

Таблица 6.

ПРИМЕРНАЯ НОМЕНКЛАТУРА ВИДОВ И ТИПОВ ЗДАНИЙ ОБЩЕОБРАЗОВАТЕЛЬНЫХ УЧРЕЖДЕНИЙ

Виды зданий

Типы зданий

Область применения

количество учащихся

соотношение кол-ва параллелей кл. I, II и III ступеней обучения

жилая группа

микрорайон

муниципальный район

округ города

1. Основная школа:

I - II ступени

 

 

 

 

- на 9 классов

225

1:1:0

 

·

 

 

- на 18 классов

450

2:2:0

 

·

 

 

2. Средняя полная школа:

I, II и III ступени

 

 

 

 

- на 11 классов

275

1:1:1

 

·

 

 

- на 22 класса

550

2:2:2

 

·

 

 

- на 33 класса

825

3:3:3

 

·

·

 

3. Средняя полная школа с профильным обучением:

 

 

 

 

 

- на 11 классов

225

1:1:1

 

·

 

 

- на 22 класса

550

2:2:2

 

·

 

 

- на 33 класса

825

3:3:3

 

·

·

 

- сблокированная школа на 22+22 класса

550+550

2:2:2+2:2:2

 

·

·

 

4. Средняя школа II - III ступеней с профильным обучением:

II - III ступени

 

 

 

 

- на 20 классов

500

0:2:4

 

 

·

 

- на 30 классов

750

0:3:6

 

 

·

·

- на 40 классов

1000

0:4:8

 

 

 

·

5. Гимназия:

 

 

 

 

 

в составе II - III ступеней:

- на 7(8) классов

140 (160)

0:1:1

 

 

·

 

- на 14(16) классов

280 (320)

0:2:2

 

 

·

·

- на 21 (24) класса

420 (480)

0:3:3

 

 

·

·

6. Лицей:

 

 

 

 

 

в составе II - III ступеней:

 

 

 

 

 

- на 8 (10) классов

160 (200)

0:2:2

 

 

·

 

- на 12 (16) классов

240 (300)

0:3:3

 

 

·

·

в составе III ступени:

 

 

 

 

 

- на 18 (27) классов

360 (540)

0:0:9

 

 

 

·

·) Номенклатура видов и типов зданий общеобразовательных учреждений разработаны в соответствии с МГСН 4.06-96 и согласованы Департаментом Образования г. Москвы (письмо от 31.07.96 № 2734-8-16).

5.19. Переход на трехступенчатую систему обучения в общеобразовательной школе влечет за собой усложнение формирования сети зданий и, как следствие, многообразие типов зданий как по организационно-педагогической структуре, так по количеству классных помещений.

Принципиальные модели организации сети зданий общеобразовательных учреждений в городе приведены на рисунке 1.

(а) - В микрорайоне размещается основная школа "НО" в составе школ I и II ступеней обучения (I - ХI классы). Она приближена максимально к жилой группе зданий. При этом учащиеся старших классов продолжают обучение в школе III ступени (градостроительный уровень - "жилой район").

(б) В микрорайоне размешается полная средняя общеобразовательная школа "НСС", которая организационно не связана со школами III ступени обучения.

(в) - В микрорайоне базовой школой является полная средняя школа в составе I, II и III ступеней обучения с дифференцированным (профилированным) обучением ("НОСП"). Функционирует автономно от остальной системы общеобразовательных учреждений.

(г) В жилом районе размещается средняя школа III ступени ("С") с увеличенным числом параллелей старших классов для обслуживания сети основных школ.

(д) - В жилом районе базовой школой является сетевая школа II и III ступени обучения с дифференцированным (профильным) обучением "ОСП", которая предназначена для обслуживания начальных и основных школ, рассчитана в основном на обслуживание сложившейся сети школ (см. п. 2 "Градостроительный аспект").

(е) В районе или вне его размешается гимназия "Г" в составе школ II и III ступеней, которая охватывает учащихся, оканчивающих начальные классы соседних школ.

(ж) В районе или вне его размешается лицей "Л" в составе школ II и III или III ступеней, предназначен для обслуживания основных школ.

Внешкольные учреждения.

5.20. Внешкольное воспитание (дополнительное образование) является неотъемлемой частью общего образования и осуществляется в целях создания условий для творческой деятельности, развития одаренных детей, укрепления здоровья, полноценного использования свободного времени, отдыха и общения учащихся.

Внешкольные учреждения, в первую очередь, являются организационно-массовыми центрами разнообразной внеучебной деятельности с детьми и подростками в школах. Одновременно они рассматриваются и как база проведения кружковой работы на более совершенной материальной основе и изучения современных технологий.

5.21. Сеть внешкольных учреждений (собственно внешкольные учреждения и учебно-производственные мастерские и комбинаты) в городе формируется в зависимости от численности населения, числа учащихся школьного возраста, с учетом местных условий.

При организации сети следует руководствоваться также примерным перечнем внешкольных учреждений различных ведомств: Центр внешкольной работы и детского творчество; Дом школьников и учащейся молодежи; Экологический центр учащихся; Станция (Дом) юных натуралистов; Центр (Дом, Клуб) технического творчества; Станция (Дом, Клуб) юных техников; Школы: математическая, физико-техническая и по другим отраслям науки и техники (не дающие общеобразовательной подготовки); Центр детского и юношеского туризма и экскурсий; Станция (Дом, база) юных туристов; Дворец спорта для детей и юношества; Детский стадион; Детско-юношеская спортивная (спортивно-техническая) школа всех типов и видов, в том числе с профильными лагерями и базами; Детско-юношеский клуб физической подготовки; Детский оздоровительно-экологический центр; Детский парк; Центр эстетического воспитания; Дом художественного творчества (воспитания); Детский Дом (Дворец) культуры; Музыкальная, художественная школа, школа искусств (за исключением школ, дающих профессиональное образование); Детско-юношеский Центр, студия по видам искусств; Детская картинная галерея; Клубы юных моряков, речников, авиаторов, космонавтов, парашютистов, десантников, пограничников, радистов, пожарников (с детским пожарным депо); Детский автогородок, Детский и подростковый клуб; Комната школьников; Детско-юношеский спортивно-оздоровительный и другие профильные лагеря; лагерь труда и отдыха (загородный, с дневным пребыванием) и туристическая база; Детско-юношеская библиотека.

5.22. В связи с характером и методами проводимой работы вместимость внешкольных учреждений характеризуется двумя показателями: 1) общим числом мест в помещениях, кружках, студиях, лабораториях (являются расчетными) и 2) количеством мест в зрительном зале или иных помещениях для массовой работы (при расчете сети зданий во внимание не принимаются - эпизодическая деятельность).

5.23. Комплексные внешкольные учреждения - Центры внешкольной работы. Дома и Дворцы школьников и учащейся молодежи организуют учебно-воспитательный процесс в кружках, студиях, клубах, любительских объединениях с учащимися II классов. В них функционируют следующие отделы: методический, массовый, технического творчества, юных натуралистов, художественного воспитания, туризма и краеведения, спортивный и др. Каждый кружок, клуб, студия Дома - это методическая лаборатория для кружков школ и внешкольных учреждений соответствующего профиля. Обучение может проходить как занятия индивидуальные, групповые и коллективные. Максимальная расчетная наполняемость помещений 15 (12) учащихся.

Комплексные внешкольные учреждения ведут работу по развитию художественного и технического творчества, юннатско-биологической и опытнической деятельности, туризму, физической культуре, спорту и других возникающих направлений детского творчества и досуга.

5.24. Детско-юношеская спортивная школа проводит учебно-тренировочную работу по различным видам спорта с учащимися II классов. В ней могут быть отделения двух и более видов спорта (акробатика, бокс, классическая борьба, самбо, баскетбол, волейбол, водное поло, велосипедный спорт, художественная гимнастика, гребля на байдарках и каноэ, спортивная гимнастика, академическая гребля, конькобежный спорт, легкая атлетика, лыжный спорт, плавание, теннис, бадминтон, парусный спорт, прыжки в воду, ручной мяч, стрельба, футбол, фигурное катание, фехтование, тяжелая атлетика, шахматы и шашки, хоккей с шайбой и мячом, конный спорт, стрельба из лука и т.д.). Отделения по видам спорта создаются с учетом местных условий, а также наличия собственной или арендуемой спортивной базы (залы, площадки, бассейны, учебно-спортивный инвентарь и оборудование).

Детско-юношеские спортивные школы и клубы физической подготовки всех видов и типов проводят оздоровительную и учебно-тренировочную работу по различным видам спорта с детьми 6 - 18 лет. Такие школы могут быть с одним-двумя или более отделениями видов спорта, которые создаются с учетом местных условий и традиций.

5.25. Профильные учреждения, такие как экологический центр учащихся, Дом, Центр, Станция юных техников и натуралистов, туристов, школы искусств и другие имеют специализированные составы помещений одного профиля.

Станция юных техников организует научно-техническую работу с учащимися II классов в отделах: технического творчества, организационно-массовом, физико-техническом, спортивно-техническом, научно-техническом, автоматики и радиоэлектроники, сельскохозяйственной техники и сельскохозяйственных машин, в центрах методическом и научной информации.

На станциях юных натуралистов занимаются учащиеся II классов. Она оказывает помощь школам и другим внешкольным учреждениям в создании кружков юных натуралистов, в организации общественно-полезного труда учащихся на учебно-опытных участках, ученическо-производственных бригадах, профильных лагерей и т.д. Станции юных натуралистов имеют отделы: методический, ботаники и растениеводства с опытно-производственным участком, зоологии и животноводства с зоолого-животноводческой базой и уголками живой природы, механизации сельского хозяйства, естествознания (начальные классы) и др. В летний период при станции могут быть организованы лагеря юных натуралистов.

Станция юных туристов предназначена для учащихся VI классов и оказание помощи школам в создании туристических и краеведческих кружков. На станции работают отделы: экскурсий, организационно-массовый и методический. Организуются постоянные и временные туристические базы, лагеря-школы подготовки туристского актива, пункты проката туристского инвентаря и др.

Детская школа искусств обеспечивает дифференцированный подход к учащимся с учетом широкой профессиональной ориентации и общего эстетического образования. В детских школах искусств организуются отделения: подготовительное для детей младшего возраста, музыкальное, хореографическое, изобразительного искусства, общего эстетического воспитания и образования. Кроме того, в одно-двухгодичных группах детям дают навыки ритмического и хорового воспитания, слушания музыки, сольфеджио и музыкальной грамоты, знакомят их с основами изобразительного искусства. Срок обучения в школе после подготовительного периода рассчитан на 6 - 7 лет (параллельно с окончанием 9 классов общеобразовательной школы).

Детская музыкальная школа проводит занятия с учащимися I-Х классов на отделениях: фортепьяно, струнных, народных, духовых и ударных инструментов. Для детей дошкольного возраста могут быть организованы подготовительные группы.

В детской художественной школе занимаются дети 11 - 17 лет, имеющие общеобразовательную подготовку не менее четырех классов. Для учащихся младших организуются подготовительные группы.

5.26. В перспективе значительно возрастает процент учащихся, которые будут использовать свое свободное время для активной творческой деятельности во внешкольных учреждениях. Это произойдет за счет увеличения возрастного и категорийного ценза, учащихся: это дошкольники, учащиеся школ, ПТУ, техникумов, частично и студентов ВУЗов.

Внешкольные учреждения должны обеспечивать базу для проведения различных занятий творчеством не менее 35 % учащихся общеобразовательных школ.

5.27. При формировании сети внешкольных учреждений в городе, районе, микрорайоне необходимо учитывать:

- распределение учебного и внеучебного времени учащегося в течении учебной недели;

- сменность занятий в учебно-воспитательных учреждениях различного вида;

- наличие в данном городе, районе (микрорайоне) других внешкольных и культурно-просветительных учреждений;

- заявки родителей, потребности и интересы учащихся;

- финансовые и кадровые возможности региона.

5.28. Сеть внешкольных учреждений представляет собой единую взаимодополняющую систему, в которой внешкольные учреждения рассчитаны на более специализированную организацию деятельности учащихся в зависимости от видов и профилей. Они должны функционировать в органическом единстве со школами I, II и III ступеней обучения.

Возможно создание единых учебно-воспитательных комплексов школ II - III и III ступеней обучения с внешкольными учреждениями.

5.29. В целях обеспечения гармонии учебно-воспитательного процесса по всей сети зданий в Центрах внешкольных учреждений предусматривается методическая работа, направленная на совершенствование программ, оказания помощи педагогическим коллективом школ, внешкольных учреждений районного уровня, детским клубам по месту жительства по соответствующим сферам деятельности.

В соответствии с профилем деятельности, видом, во внешкольных учреждениях создаются отделы, секторы, кабинеты, лаборатории.

5.30. Нормируемая площадь на одно место во внешкольных учреждениях среднем должна быть не менее 22 - 24 м2 в расчете на универсальный тип внешкольного учреждения.

5.31. Примерную номенклатуру видов и типов зданий ВУ см. таблицу 7.

5.32. Количество групп в межшкольных УПК районного уровня рекомендуется в пределах 6 - 20 с широкой номенклатурой специальностей. Они функционируют в органическом единстве с общеобразовательной школой.

В составе помещений межшкольных УПК помимо учебно-производственных мастерских необходимо иметь группу помещений общего назначения (лекторий, библиотека, методические кабинеты по профориентации, организации выставок работ учащихся, обеденный зал, администрация). В школьных УПМ - только учебно-производственные мастерские.

В учебно-воспитательных зданиях для трудового обучения и изучения технологий для каждого профиля необходимо предусматривать блок помещений, состоящий из специализированного учебного кабинета с лаборантской и учебно-производственной мастерской площадью от 90 м2 до 360 м2 в зависимости от назначения, плюс помещения для установки оборудования повышенной опасности и подсобных помещений.

Количество учащихся в учебной группе принимается 20 - 24 человека. Для работы в учебно-производственных мастерских группа делится пополам.

Таблица 7.

ПРИМЕРНАЯ НОМЕНКЛАТУРА ВИДОВ И ТИПОВ ЗДАНИЙ ВНЕШКОЛЬНЫХ УЧРЕЖДЕНИЙ (ВУ5)

Виды зданий

Вместимость здания (учащихся)

Область применения

микрорайон

муниципальный район

округ города

1. Центр внешкольной работы и детско-юношеского творчества (Дом школьников и учащейся молодежи, детская школа искусств, детско-юношеская спортшкола)

900 - 650

 

 

·

500 - 300

 

·

 

2. Центр (Дом) технического творчества, станция юных техников

450 - 200

 

·

·

3. Экологическо-биологический Центр учащихся, станция юных натуралистов

400 - 140

 

 

·

4. Детская школа искусств

150 - 420

 

·

 

5. Датские профильные музыкальные, художественные и хореографические школы

150 - 300

 

 

·

6. Центр эстетического воспитания (театр, хореография, народные танцы, музыка, хор, оркестр, изобразительное искусство, архитектура, дизайн, детская картинная галерея, синтез искусств и т.д.)

300 - 700

 

 

·

7. Центр детского и юношеского туризма, станция юных туристов

-

 

 

·

8. Детско-юношеский Центр спорта и физического развития

300 - 600

 

 

·

9. Детско-юношеский клуб физической подготовки

100 - 200

 

·

 

10. Детский оздоровительно-экологический Центр, детский парк

300 - 500

 

·

·

11. Детско-юношеская библиотека

-

 

·

 

12. Детский клуб по месту жительства

-

·

 

 

Примечание: Вместимость указана по кружковым помещениям, студиям и лабораториям. Число мест в зрительных, концертных залах, лекториях не учитывается.

Нормируемая площадь на одно ученическое место принимается в пределах 15 - 30 м2.

6. ЗЕМЕЛЬНЫЙ УЧАСТОК, ПРИМЕРНЫЙ СОСТАВ И ПЛОЩАДИ ЭЛЕМЕНТОВ ОСНОВНЫХ ЗОН.

6.1. Земельный участок - обязательный элемент общеобразовательного учреждения. Предназначен для учебно-воспитательного процесса, физкультурно-спортивных занятий, оздоровительной работы и отдыха учащихся как во время учебных занятий и перемен, так и во внеучебное время.

6.2. Земельный участок общеобразовательного учреждения представляет собой систему открытых площадок, разделенных по видам деятельности и возрастной принадлежности, на которых размещается оборудование, сооружения, малые архитектурные формы и озеленение с учетом функциональных и планировочных требований к каждой отдельной зоне и во взаимосвязи с окружающей селитебной территорией.

6.3. Как здание общеобразовательного учреждения, так и его участок, подчинены общей организационно-педагогической структуре, основанной на принципах возрастной дифференциации учащихся и разделения помещений и открытых площадок по видом деятельности с учетом педагогического режима и гигиенических требований. Возрастная дифференциация учащихся обусловлена психофизиологическими различиями между детьми разных возрастных групп.

6.4. В соответствии с МГСН 4.06-96 на земельных участках общеобразовательных учреждений рекомендуется предусматривать следующие основные зоны:

- физкультурно-спортивную (Ф-С);

- отдыха (О);

- учебно-опытную (У-О);

- хозяйственную (Х).

Кроме того, в структуру участка входят озеленение и, собственно, площадь застройки здания.

6.5. Площади основных зон земельных участков общеобразовательных школ, лицеев и гимназий следует принимать соответствии с табл. 8.

6.6. Состав и площади зон рассчитаны исходя из вместимости общеобразовательных учреждений, числа параллелей классов, соотношения потоков возрастных групп учащихся (1, 2 - 4, 5 - 9 и 10 - 11 классы), учебного и внеучебного времени проведения занятий и отдыха, интенсивности использования отдельных площадок, специфики видов занятий.

6.7. Для обеспечения максимальной эффективности использования земельных участков общеобразовательных учреждений рекомендуется: физкультурно-спортивную зону размещать вблизи блока общешкольных помещений; учебно-опытную приближать к хозяйственной, имеющей непосредственную связь с помещениями столовой; площадки отдыха, дифференцированные с учетом возрастных особенностей учащихся, максимально приближать к соответствующим учебным блоком.

Таблица 8.

ПРИМЕРНЫЙ СОСТАВ И ПЛОЩАДИ ЗОН ЗЕМЕЛЬНЫХ УЧАСТКОВ ОБЩЕОБРАЗОВАТЕЛЬНЫХ УЧРЕЖДЕНИЙ

Инд

Наименование зоны и рекомендуемый состав

Площадь м2 при количестве параллельных классов

число классов

начальная школа

основная школа

средняя полная школа, гимназия, лицей

1

4

1

9

1

11

2

22

3

33

2±2

22+22

1

2

3

4

5

6

7

8

Ф-С

Физкультурно-спортивная

842

5444

5606

6132

7754

7916

 

в том числе:

 

 

 

 

 

 

 

- школьный стадион (круговая беговая дорожка 250 м, совмещенная с прямой беговой дорожкой 110 м, комбинированное поле для футбола 60´28 и ручного мяча и двумя секторами для прыжков в высоту и длину);

 

4200

4200

4200

5260

5260

 

- площадка для спортивных игр (волейбольная 162 м2, баскетбольная 364 м2);

162

364

526

162+364

1052

324+728

1214

486+728

1376

648+728

 

- площадка для гимнастики 1 - 4 классов;

200

200

200

200

400

400

 

- площадка для гимнастики 5 - 11 классов;

 

200

200

200

400

400

 

- площадка комбинированная для спортивных игр, метания мяча и прыжков в высоту и длину.

480

480

480

480

480

480

О

Отдыха

480

480

705

1410

2115

2820

 

в том числе:

 

 

 

 

 

 

 

- для подвижных игр 1 классов;

180

180

180

360

540

720

 

- для подвижных игр 2 - 4 классов;

300

300

300

600

900

1200

 

- для подвижных игр 5 - 9 классов;

 

 

125

250

375

500

 

- для тихого отдыха 5 - 9 классов.

 

 

100

200

300

400

 

Суммарная площадь по зонам Ф-С и О

1322

842+480

5924

5444+480

6311

5606+705

7542

6132+1410

9869

7754+2115

10736

7916+2820

У-О

Учебно-опытная

240

900

1090

1430

1980

2510

 

в том числе:

 

 

 

 

 

 

 

- отдел начальных классов;

80

80

80

160

240

320

 

- отдел полевых и овощных культур;

 

280

340

450

610

830

 

- отдел плодового сада и питомника;

 

200

300

360

540

720

 

- отдел цветочно-декоративных растений;

40

100

100

100

100

100

 

- теплица (с зооуголком);

 

170

170

240

240

240

 

- зоолого-животноводческий отдел;

 

 

 

 

100

100

 

- отдел коллекции растений.

 

70

100

120

150

200

X

Хозяйственная.

500

500

500

625

750

750

Примечания: 1. Состав и площади элементов зон участков школ с уменьшенной наполняемостью классов определяются заданием на проектирование.

2. Отдел цветочно-декоративных растений учебно-опытной зоны допускается распределять в зоне озеленения.

3. По местным условиям допускается перераспределение площадей элементов зон земельного участка школы, кроме физкультурно-спортивной зоны и зоны отдыха.

4. Состав и площади зон земельных участков гимназий и лицеев определяется заданием на проектирование. Возможно также ориентация на показатели данной таблицы за исключением требований к начальной школе.

6.8. Состав физкультурно-спортивной зоны определяется в соответствии с требованиями Комплексной программы по физическому воспитанию учащихся 1-11 классов общеобразовательных школ (1985 г.). Физкультурно-спортивнуо зону следует распределять по возрастной принадлежности и в зависимости от видов занятий.

6.9. Для среднего и старшего возрастов учащихся (с 5 по 11 классы) в физкультурно-спортивной зоне рекомендуется выделять: школьный стадион, площадки для спортивных игр (волейбол, баскетбол) и площадку для гимнастики, площадку комбинированную для спортивных игр, метания мяча и прыжков в высоту и длину. Для учащихся младшего возраста (с 1 по 4 классы) - площадку для гимнастики.

6.10. В крупных учебных заведениях, рассчитанной на увеличенное число параллелей старших классов, допускается соответственно увеличивать число плоскостных спортплощадок и корректировать беговую дорожку.

6.11. При уменьшении общей площади земельных участков без изменения должны сохраняться размеры легкоатлетического ядра, спортивных площадок и площадок для подвижных игр.

6.12. Зону отдыха рекомендуется формировать из площадок, предназначенных для проведения отдыха и оздоровительной работы в учебное (во время перемен) и внеучебное время (для групп и классов продленного и полного дня). В зависимости от возрастных особенностей учащихся она может делиться на площадки:

- для подвижных игр 1 классов (6 - 7 лет), 2 - 4 классов (7 - 9 лет), 5 - 9 классов (10 - 14 лет);

- для спокойного отдыха 5 - 9 классов (10 - 14 лет).

Для учащихся 9 - 11 классов место для проведения активного отдыха во время перемен рекомендуется предусматривать в спортивной зоне.

6.13. Размеры и планировка площадок для подвижных игр должны обеспечивать размещение на них различного по назначению и габаритам оборудования, способствующего правильному физическому развитию и осанке, а также снятию гиподинамической нагрузки.

Площадки зоны отдыха для 1 и 2 - 4 классов предназначаются для подвижных игр, их площадь рассчитывается исходя из 100 % охвата учащихся этих возрастных групп.

Зону отдыха для учащихся 5 - 9 классов следует подразделять на площадку для подвижных игр, исходя из 50% охвата учащихся данной возрастной группы, и на площадку для спокойного отдыха для остальной части учащихся.

6.14. Зону отдыха "О" целесообразно разрабатывать в кооперации с зоной "Ф-С" с целью экономии территории и решения задач универсализации оборудования участка, при котором площадь зоны отдыха можно было бы использовать для физкультурных мероприятий, а спортивную для отдыха.

6.15. Учебно-опытная зона предназначена для изучения процессов жизни растений, выполнения работ по агротехнике и привития практических навыков по метеорологии, ботанике; биологии. Территорию для учебно-опытной зоны рекомендуется подбирать ровную, хорошо инсолируемую (в течении 5 ч. в сутки), защищенную от господствующих ветров. Подпочвенная вода должна находиться не ближе 2 м от поверхности грунта.

6.16. Состав и площади учебно-опытной зоны для различных типов общеобразовательных учреждений определены с учетом их назначения, а площади - в зависимости от вместимости здания. Так, для неполных средних и средних общеобразовательных учреждений на одну и две параллели учащихся общая площадь данной зоны принята по максимальным показателям, а для средних общеобразовательных учреждений на 3 и 2+2 параллели классов по минимальным. Элементы учебно-опытной зоны рекомендуется принимать в соответствии с таблицей 8.

6.17. В условиях дефицита территории допускается сокращать учебно-опытную зону, при условии обязательного сооружения парников, теплицы и устройства специального павильона для коллекционно-селекционной работы, до величины обеспечивающей потребности учебного процесса и, наоборот, для школ с биолого-экологическим уклоном допускается расширять номенклатуру закрытых сооружений (парники, теплицы, оранжереи, сооружения для хранения малогабаритной сельскохозяйственной техники и т.п.).

6.18. Хозяйственная зона предназначается для размещения сарая для хранения оборудования и инвентаря (разрешается размещать в подвальном или цокольном этаже здания), гаража для автомашин, мусоросборников и навеса для инвентаря. Навес для инвентаря допускается делать пристроенным к сараю. Кроме того, по местным условиям, в хозяйственной зоне допускается размещение овощехранилища.

6.19. Хозяйственную зону следует отделять от остальных зон защитной полосой зеленых насаждений. К сараю должен быть обеспечен подъезд грузовых машин, а также должна быть предусмотрена площадка для их разворота. Въезд в хозяйственную зону рекомендуется предусматривать самостоятельным с улицы или внутриквартального проема, изолированно от входа учащихся на участок.

6.20. Для школ с техническим уклоном на земельном участке допускается размещать плоскостные сооружения технического назначения.

6.21. Озеленение участка является средством, обеспечивающим санитарно-гигиенические требования: защиту от перегрева, ветра и шума, а также запыленности и загазованности воздуха. Кроме того, оно является одним из ограничителей отдельных элементов при планировке участка.

Озеленение имеет значение при условии эксплуатации школьных помещений и открытых площадок в летнее время. Зеленые насаждения снижают температуру воздуха на 1,5 - 2 градуса С, интенсивность солнечной радиации на 50 %, скорость ветра - до 60 %, загрязнение воздуха - на 25 - 40 %, относительную влажность воздуха - на 7 - 12 %.

Площадь озеленения должна составлять не менее 40 % общей площади участка общеобразовательного учреждения.

В площадь озеленения должны включаться площади зеленых насаждений, учебно-опытной зоны, физкультурно-спортивной и зоны отдыха, а также газонов, защитных полос и изгородей из кустарников вокруг участков.

6.22. Участок общеобразовательного учреждения рекомендуется изолировать от окружающей застройки живой изгородью или рядовой посадкой деревьев.

Деревья следует располагать на участке так, чтобы площадки могли хорошо проветриваться. Солнце должно освещать не менее 40% территории физкультурных площадок и площадок отдыха и полностью территорию учебно-опытной зоны.

6.23. Все элементы участка рекомендуется связывать сетью дорожек, проходов и проездов. Подъезд к хозяйственной зоне и пожарный объезд вокруг здания рекомендуется проектировать шириной 3,5 м. Дорожки, ведущие к зданию от основного входа на участок, рекомендуется проектировать шириной не менее 3,5 м и без препятствий по ходу движения для быстрого и удобного входа учащихся в здание. Остальные дорожки и проходы могут быть меньшей ширины и рассчитываться для удобного использования их отдельными группами и классами учащихся.

6.24. Участок должен быть обустроен малыми архитектурными формами, освещен; иметь мощеные покрытия и травяной газон, и гармонировать с архитектурой здания.

Среднюю горизонтальную освещенность следует принимать по СНиП 23-05-95 табл. 13.

6.25. При размещении зданий на затесненных участках допускается проектировать эксплуатируемые кровли, "вывешивать" отдельные части здания над уровнем 1-го этажа для устройства площадок отдыха и т.п.

С эксплуатируемой кровли следует предусматривать не менее двух эвакуационных выходов. Покрытие кровли и утеплитель должны быть несгораемыми.

Площадки, размещаемые на эксплуатируемой кровле, должны иметь ограждение высотой не менее 1,6 м без горизонтальных членений. Расстояние в свету между вертикальными элементами ограждения должно быть не более 0,1 м.

6.26. В зоне главного входа рекомендуется предусматривать мощеную площадку для сбора учащихся и проведения ритуальных мероприятий.

7. ТРЕБОВАНИЯ К ФУНКЦИОНАЛЬНЫМ ГРУППАМ, СОСТАВУ И ПЛОЩАДЯМ ПОМЕЩЕНИЙ.

Система функциональных групп помещений.

7.1. Функциональные группы, состав и площади помещений должны быть органически связаны с типом здания, его функционально-педагогической структурой и назначением.

7.2. Настоящий этап преобразования Народного образования характеризуется применением многообразия общеобразовательных учреждений, различающихся назначением, составом и площадями помещений, вместимостью. Поэтому старый подход к формированию материальной среды этих зданий потерял свою актуальность: невозможно создать некую стандартную программу, как это было в прошлом, отвечающую требованиям педагогики.

Новый этап обуславливает "гибкий" подход к формированию среды обитания учащихся. Такую гибкость дает возможность обеспечить предлагаемая система формирования функциональных групп помещений.

Система, представляющая собой определенную методику, включает:

а) Классификацию (номенклатуру) блок-модулей функциональных групп помещений общеобразовательных учреждений (см. табл. 9), их содержание и назначение, с минимально и максимально возможным составом помещений, обеспечивающим полноценный набор помещений для решения задач дифференцированного профильного обучения (см. табл. 10);

б) Правила формирования из названных компонентов любых общеобразовательных учреждений (см. табл. 11).

Гибкий подход может быть достигнут лишь на основе применения системы блок-модулей основных функциональных групп помещений характерных для общеобразовательных учреждений. Согласно таблиц 11 и 12.

А) Номенклатура блок-модулей функциональных групп помещений, их содержание и назначение.

7.3. Номенклатура блок-модулей функциональные групп помещений общеобразовательных учреждений приведена на табл. 9 с привязкой их к соответствующим приложениям (7 - 21) МГСН 4.06-96, а содержание и назначение приведены в табл. 10.

Дополнительно дана характеристика каждой функциональной группы, входящей в общеобразовательное учреждение.

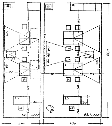
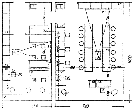
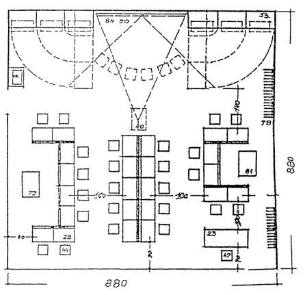
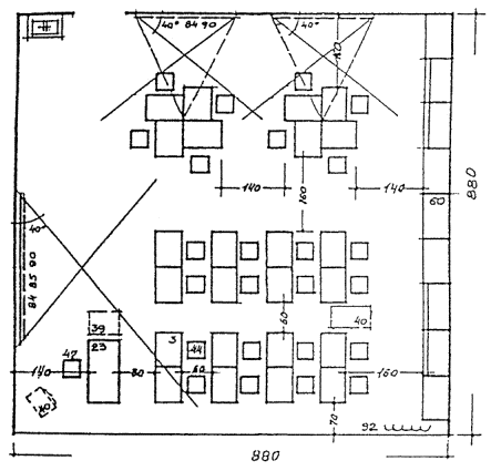
Таблица 9.

НОМЕНКЛАТУРА БЛОК-МОДУЛЕЙ ОСНОВНЫХ ФУНКЦИОНАЛЬНЫХ ГРУПП ПОМЕЩЕНИЙ ОБЩЕОБРАЗОВАТЕЛЬНЫХ УЧРЕЖДЕНИЙ

Индекс функциональной группы помещений

Наименование функциональной группы помещений

№ приложения по МГСН 4.06-96

У-КНШ

Классы начальной школы (1 - 4 классы)

7

У-КОШ

Классы-кабинеты основной школы (5 - 9 классы)

8

У-КСШ

Классы-кабинеты старшей школы (9) 10 - 11 классы)

9

У-СК

Специализированные учебные кабинеты основной и старшей школы

10

У-ТМ

Помещения изучения технологий и трудового обучения

11

У-ЦИБ

Группа методическо-информационного центра библиотеки

12

У-ВАМ

Вестибюльная группа, помещения администрации, медицинские комнаты

13

О-РЦ

Рекреационный центр (центр досуга)

14

О-ЗЗ

Группа зрительного зала

15

О-СЗ

Группа спортивно-оздоровительная (спортзалы)

16-17

О-Б

Бассейн с ваннами 25´11,5 и 10´6 м

 

О-ХВ

Группа художественного воспитания

18

О-ТТ

Группа технического творчества

19

О-БО

Группа биолого-опытнической деятельности

20

О-СК

Столовая

21

Таблица 10.

СОДЕРЖАНИЕ И НАЗНАЧЕНИЕ ФУНКЦИОНАЛЬНЫХ ГРУПП ПОМЕЩЕНИЙ ОБЩЕОБРАЗОВАТЕЛЬНЫХ УЧРЕЖДЕНИЙ

Индекс функциональных групп

Функциональная группа блоков помещений

Содержание

Назначение

1

2

3

4

УЧЕБНАЯ ГРУППА ПОМЕЩЕНИЙ:

У-КНШ*

Начальная школа блок помещений 1 - 4 классов

Классы и сопутствующие учебные и вспомогательные помещения

Входит в состав основной средней общеобразовательной школы и учебно-воспитательного комплекса

У-КОШ*

Классы-кабинеты основной школы 5 - 9 классы

Классы - учебные кабинеты и сопутствующие учебные и обслуживающие помещения

Входит в состав основной средней общеобразовательной школы; школы II - III ступени, гимназии, лицея, начиная с 8 класса, учебно-воспитательного комплекса

У-КСШ*

Классы-кабинеты старшей школы (9) 10 - 11 классы

Учебные кабинеты и сопутствующие учебные и вспомогательные помещения

Входит в состав средней общеобразовательной школы, шкота III ступени, гимназии, лицея, учебно-воспитательного комплекса

У-СК*

Специализированные учебные кабинеты основной и старшей школы

Содержит специализированные группы лабораторий и кабинетов

Входит в состав основной полной средней общеобразовательной школы, школ II - III и III ступеней, гимназии, лицея, учебно-воспитательного комплекса

У-ТМ*

Помещения изучения технологий и трудового обучения

Учебные и учебно-производственные мастерские, специализированные кабинеты

Входит в состав основной полной средней школы, школ II - III и III ступеней, гимназии, лицея, учебно-воспитательного комплекса

У-ЦИБ*

Группа центра информации библиотека

Справочно-информационный центр с зонами читательских мест

Входит в состав всех общеобразовательных учреждений

У-ВАМ*

Вестибюльная группа, помещения администрации, медицинские комнаты

Обслуживающая группа помещений

Входит в состав всех общеобразовательных учреждений

ОБЩЕШКОЛЬНАЯ ГРУППА ПОМЕЩЕНИЙ

О-РЦ*

Рекреационный центр (центр досуга)

Группа помещений досуга и обслуживания, включая форум

Входит в состав школ предназначенных для обслуживания населения, школ II - III ступени, учебно-воспитательного комплекса и отдельных профильных учреждений

О-ЗЗ*

Группа зрительного зала

Зрительный зал с обслуживающими помещениями

Входит в состав всех общеобразовательных учреждений

О-СЗ*

Группа спортивно-оздоровительная

Спортзалы: (12´15 м, 18´15 м, 24´15 (12) м, 36 (30)´18 м,42´24 м)

Входят в состав всех общеобразовательных учреждений

О-Б*

Бассейн

Бассейн с ваннами 25´11 и 10´6 м

Входит в состав средних общеобразовательных школ, школ II - III ступени, гимназии, лицея, учебно-воспитательного комплекса

О-ХВ*

Группа художественного воспитания

Студии и кружки изобразительного искусства, музыки и пения, хореографии

Входит в состав всех общеобразовательных учреждений

О-ТТ*

Группа технического творчества

Группа помещений специализированных кружков

Входит в состав основной средней школы, школ II - III ступени, лицея, учебно-воспитательного комплекса

О-БО*

Группа биолого-опытнической деятельности

Группа специализированных помещений

Входит в состав основной средней школы, школ II - III ступени, гимназии, лицея, учебно-воспитательного комплекса

О-СК*

Столовая

Обеденный зал с кухонным блоком

Входит в состав всех общеобразовательных учреждений

* В соответствии с индексами функциональных групп помещений в таблице 12 приведен полный состав помещений.

7.4. Дополнительные требования к составу помещений функциональных групп помещений общеобразовательных учреждений в зависимости от вида здания сводятся к следующему:

У-КНШ

(Приложение 7 МГСН 4.06-96)

Группа помещений начальной школы (1 - 4 классы) в составе общеобразовательной школы формируется из расчета минимально допустимого состава, в который входят классные помещения (п. 4), спальня-игровая для 1-х классов, универсальные помещения для групп продленного дня, комнаты труда, моделирования и технической игрушки, изобразительного искусства, природы. Для школ с перспективным методом обучения (игровым) класс принимается увеличенной площади (п. 1) и в состав дополнительно включаются комнаты тихого отдыха, учительская - методический кабинет. Для школ приспосабливаемых к новым условиям, допускается оставлять класс уменьшенного размера (п. 3).

Универсальное помещение принимается одно на одну параллель учащихся начальной школы.

Комната труда, моделирования и технической игрушки, изобразительного искусства, природы принимается одно на начальную школу в целом.

Площадь учительской - методического кабинета принимается в зависимости от числа параллелей классов, но не менее 40 м2. Допускается размещать за пределами учебной секции.

У-КОШ

(Приложение 8 МГСН 4.06-96)

Группа помещений основной школы (5 - 9 классы) для общеобразовательных школ традиционного типа формируется с минимально допустимым составом помещений и должны включать классы-кабинеты (п. 2). В общеобразовательных школах с профильным обучением, гимназиях и лицеях эти группы должны включать, помимо классов-кабинетов, ресурсные центры, рабочие комнаты для занятий по интересам.

Ресурсный центр допускается размещать в вариантах:

1) При каждом классе-кабинете;

2) Один на учебную секцию (на группу классов-кабинетов);

3) Централизованно на группу учебных секций в пределах одного этажа.

У-КСШ

(Приложение 9 МГСН 4.06-96)

Группа помещений старшей школы (10 - 11 классы) должна состоять из учебных кабинетов (в минимальном варианте), а для школ с профильным обучением, гимназий и лицеев она дополняется помещениями ресурсных центров и комнат для индивидуальных занятий.

У-СК

(Приложение 10 МГСН 4.06-96)

Группа специализированных кабинетов, состоящая из кабинетов естествознания, естественных наук, иностранного языка, технического черчения, информатики и вычислительной техники, компьютерных классов и специализированных помещений профильного обучения, набирается в зависимости от вида (назначения) общеобразовательного учреждения:

- в основной школе кабинет естествознания принимается с тремя лаборантскими;

- в общеобразовательной школе общего типа и гимназии принимаются учебные кабинеты по физике, химии, биологии с лаборантскими-практикумами;

- в общеобразовательной школе с профильным обучением - учебные кабинеты по физике, химии, биологии с двумя практикумами и лаборантскими на каждый предмет; в лицее с увеличенным числом практикумов (не менее 3-х) на каждую дисциплину;

- число кабинетов иностранного языка определятся программой обучения с начальных классов или со школы II ступени; количеством часов в неделю и делением класса на подгруппы (две или три);

- в гимназиях, как правило, должно быть максимальное число кабинетов иностранного языка с учетом деления группы на 3 подгруппы;

- в каждом учебном учреждении должно быть не менее чем по одному помещению кабинета информатики и вычислительной техники, компьютерного класса и специализированного помещения для профильного обучения. В профильных учебных заведениях их число увеличивается и определяется содержанием обучения.

У-ТМ

(Приложение 11 МГСН 4.06-96)

Группа помещений подразделяется на две подгруппы: первая (пп. 1 - 8) предназначена для основной школы, вторая - для старших классов, рассчитана на включение ее в состав общеобразовательных школ с профильным обучением и лицеев.

Комбинированная мастерская по металлу и дереву, мастерская по обработке металла и технологии, мастерская по обработке дерева и технологии, мастерская по обработке тканей и технологии, кулинария, бытовая техника, кабинет изучения технологий и инструментальная предназначены для школы II ступени.

Мастерская-цех (универсальный) обработки материалов, универсальная мастерская по техническим видам труда, автодело в составе кабинетов по теории и практической работе, электротехника, радиоэлектроника, кабинет машинописи и основ делопроизводства и комната мастера предназначены для школ III ступени.

Комбинированная мастерская по металлу и дереву предусматривается только в составе основной школы и гимназии вместо раздельных помещений по металлу и дереву.

Количество и площадь инструментальных, комнат мастеров, гардеробных и кладовых для хранения сырья, материалов и готовой продукции определяются в зависимости от назначения и состава помещений основной и старшей школы.

Из второй группы кабинет электрорадиотехнологии должен непременно включаться в каждую школу, где есть старшие классы.

Побор помещений по технологии и трудовому обучению, касающийся второй группы помещений, в основном определяется местными условиями и задачами профильного обучения.

У-ЦИБ

(Приложение 12 МГСН 4.06-96)

Группе помещений методическо-информационного центра - библиотеки придается особое значение в условиях широкого применения технических средств обучения от индивидуальных до групповых.

Новые программы компьютерного обучения значительно увеличивают объем обязательных профессиональных знаний учителей, как в области информатики, так и в области педагогической технологии, что связано с наличием в каждой школе информационного банка педагогических данных и средств новых коммуникационных технологий.

Учитель - первоисточник передачи знаний учащимся.

Учащийся в свою очередь непрестанно должен, добывая знания самостоятельно, пользоваться новейшей информацией.

Отсюда школьная библиотека должна стать справочно-информационным центром, оснащенным всеми видами ТСО, обеспечивать условия индивидуальных занятий учащихся с книгой и с применением компьютерной техники. Ее площадь принимается из расчета не менее 0,3 - 0,6 - 1 м2, на одного ученика в зависимости от типа здания. Наибольшая нормативная площадь должна быть в школах II - III ступени обучения, с дифференцированным обучением по направлениям, обслуживающих сеть зданий общеобразовательных школ низшей ступени.

Библиотека приобретает сложную структуру: зона читательских мест, зона читательских мест для групповых занятий учащихся младшего возраста, информационный пункт (выдача и прием литературы), места для работы с каталогами, фонды открытого доступа, фонды закрытого хранения, места для отдыха, общешкольный ресурсный центр, состоящий из зоны комплектования и обработки литературы и специализированный фонд хранения. В составе библиотеки предусматривается также зона с кабинками для индивидуальных занятий с ТСО и боксы хранения передвижных тележек.

Его площадь общеобразовательных учреждениях может колебаться от 115 до 670 м2 и соответственно состав зон в него входящих. Главное, что в профильных зданиях она должна быть значительно больше, чем в традиционных общеобразовательных школах.

О-РЦ

(Приложение 14 МГСН 4.06-96)

Группа помещений рекреационного центра, его наличие в общеобразовательном учреждении, во многом связано с местными условиями и задачами сетевого обслуживания. Если поставлена задача организации в стенах школы досуга взрослого населения или посещение ее учащимися старших классов соседних школ, то этот центр необходим.

Такой центр должен обязательно иметь зал-форум, вестибюльную группу помещений отдельную от школьной и свою администрацию. Эта группа помещений может носить коммерческий характер и планироваться как центр платных услуг.

О-ЗЗ

(Приложение 15 МГСН 4.06-96)

Группа зрительного зала состоит из собственно зрительного зала, эстрады, кладовой - инвентарной, артистической - костюмерной, киноаппаратной, технического центра, лекционной аудитории.

Зрительный зал следует проектировать с учетом использования его в качестве киноаудитории, учебной аудитории, занятий по музыке и пению, а эстраду использовать для хореографии.

По минимальному варианту в общеобразовательной школе следует предусмотреть зал, эстраду, киноаппаратную, технический центр. Расширенный (полный) состав предусматривается в сетевых общеобразовательных профильных школах, гимназиях, лицеях. В гимназиях искусств принимается расширенная эстрада для организации выступлений и концертов.

О-СЗ

 и

О-Б

(Приложение 16 МГСН 4.06-96)

Набор спортзалов группы учебно-оздоровительной может включать залы: 18´15, 24´15 (12), 30´18, 36´18 (21), 42´21 м. Число залов определяется исходя из нормы 1,4 м2 площади зала на 1 учащегося. В минимальном случае должны быть два зала: один для младших школьников, другой - для старших.

Для сетевых школ, отличающихся увеличенным контингентом учащихся старших школ (II - III ступени, гимназия, лицей) число залов может быть увеличено, т.к. при занятиях физкультурой учащиеся каждого класса делятся на две подгруппы, а в качественном отношении это должны быть залы игровые.

Количество и типы залов принимаются в зависимости от вида учреждения, количество учащихся в нем, учебной программы и задач обслуживания населения.

Бассейн предусматривается не в каждой школе, главным образом в школах большой вместимости, сетевых, а также в профильных учреждениях из расчета, что будут обслуживаться учащиеся соседних школ.

О-ХВ

(Приложение 18 МГСН 4.06-96)

В группе помещений художественного воспитания предусмотрен развернутый состав помещений, из которых можно формировать разные виды зданий.

Минимальный набор помещений ограничивается специализированными кружками и студиями (живопись, рисунок и скульптура; кинофотостудия; музыка и пение; хореография и драмкружок; прикладное искусство (дизайн) - общеобразовательная школа.

Для общеобразовательной профилированной школы следует дополнительно предусматривать кабинет эстетики, одну универсальную студию и клубные помещения.

Расширенный состав помещений предназначается для профильных школ с гуманитарным направлением и эстетическим развитием учащихся, гимназий.

Для гимназий, в сфере художественного воспитания, рекомендуется предусматривать весь набор помещений особенно за счет включения в состав помещений универсальных студий для занятий по углубленной программе музыкой, хореографией и изобразительным искусством и кабинета эстетики.

Число помещений и площадь подсобных помещений универсальных студий, определяются исходя из назначения студий (изобразительное искусство, хореография, музыка, драмкружок и т.д.).

О-ТТ

(Приложение 19 МГСН 4.06-96)

Группа технического творчества включает широкий диапазон специализированных помещений. По минимальной программе в школе достаточно иметь одно универсальное помещение технического творчества. Расширенный состав отделения технического творчества принимается для школ сетевого характера (школ II - III ступени с профильным обучением) и лицеев в зависимости от их направленности.

В расширенный состав входят помещения; кабинеты-практикумы по технике, физико-техническому творчеству, конструированию малой механизации, техническому моделированию, архитектуре и дизайну и др.

О-БО

(Приложение 20 МГСН 4.06-96)

Группа помещений биолого-опытнической деятельности в полном объеме предназначена для лицеев с соответствующей ориентацией обучения. Значительная доля этих сооружений предусматривается на участке школы. В минимальном варианте для традиционной общеобразовательной школы принимается один кружок юннатов (опытничество).

О-СК

(Приложение 21 МГСН 4.06-96)

Кухонный блок школьного обеденного зала может решаться в двух вариантах: с приготовлением пищи на сырье и на полуфабрикатах, с ориентацией на городскую кухню школьной базовой столовой.

Б) Правила формирования из блок-модулей функциональных групп помещений различных видов общеобразовательных учреждений.

7.5. Сочетание между собой программных блок-модулей функциональных групп помещений дает возможность формировать многообразные по содержанию и назначению виды и типы общеобразовательных учреждений по материальной среде, отвечающей поставленным педагогическим задачам, в т.ч. дифференцированному профилированному обучению в старших классах: физико-математическое, техническое; химико-биологическое, биоэкологическое; экономическое и т.д. (см. табл. 12).

7.6. Состав помещений общеобразовательных учреждений формируется из основных функциональных групп помещений согласно табл. 11 и 12.

Состав помещений основной школы I - III ступеней комплектуется из приведенных основных функциональных групп за вычетом У-КСШ, ОРЦ, сокращенного состава помещений У-СК и У-ТМ, минимальной библиотеки группы У-ЦИ, сокращенного состава помещений по функциональным группам О-ХВ, О-ТТ, О-БО, О-СЗ, О-Б.

Состав помещений средней общеобразовательной школы I, II и III ступеней комплектуется в соответствии с табл. 11 и 12 за вычетом помещений рассчитанных на профильное обучение.

Состав помещений средних общеобразовательных школ II - III ступеней с профильным обучением комплектуется в соответствии с. табл. 11 и 12 за вычетом функциональных групп соответственно У-КНШ с расширенным набором помещений основных функциональных групп, определяющих направление профилизации.

Состав помещений средней школы I, II и III ступеней обучения с профильным обучением комплектуется аналогично средней общеобразовательной школе, но с расширенным составом помещений, связанных с профильным обучением.

Состав помещений гимназии в составе II - III ступеней принимается за вычетом функциональных групп У-КНШ. Кроме того, сокращается набор помещений функциональная группа У-СК и У-ТМ. Одновременно расширяется состав помещений группы художественного воспитания О-ХВ за счет включения в нее ряда универсальных студий. Принимается расширенная группа У-ЦИ (библиотека) и группа О-БО по экологии.

Таблица 11.

ПРИМЕРЫ ФОРМИРОВАНИЯ ФУНКЦИОНАЛЬНЫХ ГРУПП ПОМЕЩЕНИЙ В ОБЩЕОБРАЗОВАТЕЛЬНЫХ УЧРЕЖДЕНИЯХ РАЗЛИЧНОГО НАЗНАЧЕНИЯ.

1. Основная школа:

Примечание: Количественный состав помещений и площади по каждой функциональной группе см. в приложениях 5 - 20 МГСН 4.06-96.

* Расширенный состав помещений.

Состав помещений лицеев II - III или только III ступеней формируется без функциональных групп начальной или основной школы. В основном расширяются составы помещений функциональных групп У-СК, У-ТМ; в соответствии с конкретным направлением профилизации, расширение группы естественных наук, техники.

В муниципальных районах с неразвитой инфраструктурой общественных зданий (культура, спорт) следует принимать общеобразовательные учреждения с развитой общешкольной группой помещений, включая функциональную группу рекреационного центра (О-РЦ).

Школы с развитой группой помещений общешкольного центра для учащихся и населения, а также школы полного дня, должны иметь полноценный состав по всем функциональным группам общешкольного центра.


Таблица 12

ФУНКЦИОНАЛЬНЫЕ ГРУППЫ И ПРИМЕРНЫЙ СОСТАВ ПОМЕЩЕНИЙ ОБЩЕОБРАЗОВАТЕЛЬНОГО УЧРЕЖДЕНИЯ

Инд. Функцион. групп

Перечень функциональных групп помещений

Наименование помещений

Общеобразовательная школа

Общеобразовательная школа с профильным обучением

Гимназия

Лицей

Основная I - II ступени

Средняя полная I - III ступени

Старшая III ступени

Средняя полная I - III ступени

Старшая II - III ступени

Гуманитарная

Языковая

Искусства

Физико-математический

Химико-биологический

Биолого-экологический

Технический

Сельскохозяйственный

1

2

3

4

5

6

7

8

9

10

11

12

13

14

15

16

УЧЕБНАЯ ГРУППА ПОМЕЩЕНИЙ

 

1. 1-е классы

- класс, с учетом организации групповых видов занятий

·

·

 

·

 

 

 

 

 

 

 

 

 

- спальня-игровая

·

·

 

·

 

 

 

 

 

 

 

 

 

- рекреация (зального типа)

·

·

 

·

 

 

 

 

 

 

 

 

 

У-КНШ

1. Начальные классы (2 - 4)

- класс с возможностью организации групповых и индивидуальных занятий, игровых методов ведения урока

·

·

 

·

 

 

 

 

 

 

 

 

 

- универсальное помещение для групп продленного дня

·

·

 

·

 

 

 

 

 

 

 

 

 

- комнаты тихих игр и уединения

·

·

 

·

 

 

 

 

 

 

 

 

 

- комната труда, моделирования и технической игрушки, изобразительного искусства, природы

·

·

 

·

 

 

 

 

 

 

 

 

 

- рекреация (зального типа)

·

·

 

·

 

 

 

 

 

 

 

 

 

- учительская - методический кабинет

·

·

 

·

 

 

 

 

 

 

 

 

 

У-КОШ

3. Классы-кабинеты основной школы (5 -9)

- класс - учебный кабинет, рассчитанный на организацию фронтальных, групповых и индивидуальных форм работы

·

·

 

·

·

·

·

·

·

·

·

·

·

- ресурсный центр

 

 

 

·

·

·

·

·

·

·

·

·

·

- рабочие комнаты для занятий по интересам

 

 

 

·

·

·

·

·

·

·

·

·

·

- рекреация (зального типа)

·

·

 

·

·

·

·

·

·

·

·

·

·

У-КСШ

4. Учебные кабинеты старшей школы (10 - 11)

- кабинеты универсального назначения (оснащенные в зависимости от профиля обучения)

 

·

·

·

·

·

·

·

·

·

·

·

·

- комнаты индивидуальных занятий

 

 

 

·

·

·

·

·

·

·

·

·

·

- ресурсный центр

 

 

 

·

·

·

·

·

·

·

·

·

·

- рекреация

 

·

·

·

·

·

·

·

·

·

·

·

·

У-СК

5. Специализированные учебные кабинеты основной и старшей школы

- кабинет естествознания

·

 

 

 

 

·

·

·

 

 

 

 

 

- учебные кабинеты по естественным наукам (физика, химия, биология) в составе:

 

 

 

 

 

 

 

 

 

 

 

 

 

- лаборатория

 

·

·

·

·

 

 

 

·

·

·

·

·

- практикум

 

 

 

·

·

 

 

 

·

·

·

·

·

- лаборантская-практикум

 

·

·

 

 

 

 

 

 

 

 

 

 

- лаборантская

·

 

 

·

·

·

·

·

·

·

·

·

·

- специализированные кабинеты в составе:

 

 

 

 

 

 

 

 

 

 

 

 

 

- иностранного языка

·

·

 

·

·

·

·

·

·

·

·

·

·

- информатики и вычислительной техники

·

·

·

·

·

·

·

·

·

·

·

·

·

- технического черчения и рисования

·

·

·

·

·

 

 

 

·

·

·

·

·

- компьютерный класс

 

 

 

·

·

 

 

 

·

·

·

·

·

- профильное обучение

 

 

 

·

·

·

 

·

·

·

·

·

·

У-ТМ

6. Помещения изучения технологий (трудовое обучение)

- мастерская по обработке металла и дерева (универсальная)

·

 

 

 

 

·

·

·

 

 

 

 

 

- мастерская по обработке металла и технологии

 

·

 

·

·

 

 

 

·

·

·

·

·

- инструментальная

·

·

 

·

·

 

 

 

·

·

·

·

·

- мастерская по обработке дерева и технологии

·

·

 

·

·

 

 

 

·

·

·

·

·

- мастерская по обработке тканей и технологии

·

·

 

·

·

·

·

·

·

·

·

·

·

- кулинария

·

·

 

·

·

·

·

·

·

·

·

·

·

- домоводство с бытовой техникой

·

·

 

·

·

·

·

·

·

·

·

·

·

- кабинет изучения технологий

 

 

·

·

·

 

 

 

 

 

 

 

 

- универсальная мастерская по техническим видам труда

 

 

·

 

 

 

 

 

·

·

·

·

·

- автодело

 

·

·

·

·

 

 

 

·

 

 

·

·

- электрорадиотехнологии

 

·

·

·

·

 

 

 

·

·

·

·

·

- электротехника

 

 

 

·

·

 

 

 

·

·

·

·

·

- радиоэлектроника

 

 

 

 

·

 

 

 

·

·

·

·

·

- кабинет машинописи и основ делопроизводства

 

 

 

 

·

·

·

·

 

 

 

 

 

- комната мастеров

 

 

 

·

·

 

 

 

 

 

 

·

·

У-ЦИБ

7. Группа центра информации - библиотеки

- библиотека - справочно-информационный центр с зонами читательских мест (в т.ч. для учащихся младшего возраста, информационный пункт, места для работы с каталогами, фонд открытого доступа, фонд закрытого хранения, общешкольный ресурсный центр, состоящий из зоны комплектования и обработки литературы и специализированного фонда хранения, индивидуальных занятий с ТСО

·

·

·

·

·

·

·

·

·

·

·

·

·

 

 

- технический центр

·

·

·

·

·

·

·

·

·

·

·

·

·

- методический кабинет с учительской и комнатой отдыха (для 5 - 11 классов)

·

·

·

·

·

·

·

·

·

·

·

·

·

У-ВА

8. Вестибюльная группа учебных помещений, администрация

- кабинет директора

·

·

·

·

·

·

·

·

·

·

·

·

·

- каб. замдиректора по учебно-воспитательной работе

·

·

·

·

·

·

·

·

·

·

·

·

·

- каб. организатора внеклассной и внешкольной работы

·

·

·

·

·

·

·

·

·

·

·

·

·

- каб. замдиректора по административно-хоз. работе

·

·

·

·

·

·

·

·

·

·

·

·

·

- канцелярия

·

·

·

·

·

·

·

·

·

·

·

·

·

- комната техперсонала

·

·

·

·

·

·

·

·

·

·

·

·

·

- кладовая уборочного инв.

·

·

·

·

·

·

·

·

·

·

·

·

·

- кабинет врача

·

·

·

·

·

·

·

·

·

·

·

·

·

- кабинет зубного врача

·

·

·

·

·

·

·

·

·

·

·

·

·

- санузлы учащихся

·

·

·

·

·

·

·

·

·

·

·

·

·

- санузлы персонала

·

·

·

·

·

·

·

·

·

·

·

·

·

- вестибюль-гардероб

·

·

·

·

·

·

·

·

·

·

·

·

·

ОБЩЕШКОЛЬНАЯ ГРУППА ПОМЕЩЕНИЙ

О-РЦ

9. Рекреационный центр (центр досуга)

- рекреационный центр в составе:

 

 

 

 

 

 

 

 

 

 

 

 

 

- форума

 

 

 

·

·

 

 

 

 

 

 

 

 

- вестибюля-гардероба

 

 

 

·

·

 

 

 

 

 

 

 

 

- кабинет директора

 

 

 

·

·

 

 

 

 

 

 

 

 

- кабинет коменданта

 

 

 

·

·

 

 

 

 

 

 

 

 

- канцелярия-бухгалтерия

 

 

 

·

·

 

 

 

 

 

 

 

 

- замдиректора по воспитательной работе

 

 

 

·

·

 

 

 

 

 

 

 

 

- комната родителей

 

 

 

·

·

 

 

 

 

 

 

 

 

- комната дежурного персонала

 

 

 

·

·

 

 

 

 

 

 

 

 

 

 

- помещение инженера и рабочих с подсобкой

 

 

 

·

·

 

 

 

 

 

 

 

 

- медкабинет

 

 

 

·

·

 

 

 

 

 

 

 

 

- санузлы

 

 

 

·

·

 

 

 

 

 

 

 

 

О-ЗЗ

10. Группа зрительного зала

- зрительный зал

·

·

·

·

·

·

·

·

·

·

·

·

·

- эстрада

·

·

·

·

·

·

·

·

·

·

·

·

·

- киноаппаратная

·

·

·

·

·

·

·

·

·

·

·

·

·

- кладовая-инвентарная

 

·

·

·

·

·

·

·

·

·

·

·

·

- артистические

 

 

 

·

·

·

·

·

·

·

·

·

·

- лекционная аудитория

 

 

 

 

 

·

·

·

·

·

·

·

·

О-ХВ

11. Группа художественного воспитания

- универсальная студия

 

 

 

·

·

·

·

·

·

·

·

·

·

- кабинет эстетики

 

 

 

·

·

·

·

·

·

·

·

·

·

- кружки к студии специализированные:

 

 

 

 

 

 

 

 

 

 

 

 

 

- живопись, рисунок, скульптура

·

·

·

·

·

·

·

·

·

·

·

·

·

- класс пения и музыки

·

·

·

·

·

·

·

·

·

·

·

·

·

- хореография и драмкружок

·

·

·

·

·

·

·

·

·

·

·

·

·

- прикладного искусства (дизайн)

 

 

 

 

 

·

·

·

 

 

 

·

 

- универсальные клубные помещения

 

 

 

·

·

 

 

 

 

 

 

 

 

- кладовая уборочного инвентаря

·

·

·

·

·

·

·

·

·

·

·

·

·

О-ТТ

11. Группа технического творчества

- универсальное помещение технического творчества

·

·

·

·

·

 

 

 

·

·

·

·

·

- кабинет-практикум по технике, радиотехническому конструированию

 

 

 

 

 

 

 

 

·

·

 

·

·

- физико-техническое творчество

 

 

 

 

 

 

 

 

·

 

 

·

 

- конструирование малой механизации

 

 

 

 

 

 

 

 

 

 

·

·

·

 

 

- техническое моделирование, авиамоделирование, автомоделирование, судомоделирование

 

 

 

 

·

 

 

 

·

 

·

·

·

- архитектура и дизайн

 

 

 

 

·

 

 

·

 

 

 

·

 

- кинофотолаборатория

 

·

·

·

·

·

·

·

·

·

·

·

·

О-БО

13. Группа биолого-опытнической деятельности

- кружок юннатов - помещение для опытнической деятельности

·

·

·

·

·

·

·

·

·

·

·

·

·

- биохимическая лаборатория

 

 

 

 

 

 

 

 

 

·

·

 

 

- лаборатория биологических наблюдений и экспериментов

 

 

 

 

 

 

 

 

 

·

·

 

 

- кабинет краеведения

 

 

 

 

 

 

 

 

 

·

·

 

·

- кабинет экологии

 

 

 

 

 

 

 

 

 

·

·

 

·

- кабинет сельхозтехники

 

 

 

 

 

 

 

 

 

 

 

 

·

- теплица с зооуголком

 

 

 

 

 

 

 

 

 

 

·

 

·

- теплица-оранжерея

 

 

 

 

 

 

 

 

 

 

·

 

·

- зимний сад

 

 

 

 

 

 

 

 

 

 

·

 

 

- зооуголок-зоопавильон

 

 

 

 

 

 

 

 

 

 

·

 

·

- помещение хранения малогабаритной техники

 

 

 

 

 

 

 

 

 

 

 

·

·

О-СЗ

14. Группа спортивно-оздоровительная

- спортзалы с подсобными помещениями 15´12, 18´15, 24´12 (15), 30´18, 36´18 (21), 42´34

·

·

·

·

·

·

·

·

·

·

·

·

·

О-З

15. Столовая

- обеденный зал

·

·

·

·

·

·

·

·

·

·

·

·

·

- кухонный блок с подсобными помещениями

·

·

·

·

·

·

·

·

·

·

·

·

·

О-Б

16. Бассейн

- бассейн с ваннами 25´11,5 и 10´6 и подсобными помещениями

 

 

 

·

·

 

 

·

 

 

 

·

·


Примеры комплектования функциональных групп помещений общеобразовательных учреждений см. табл. 11.

В остальных случаях группа общешкольных помещений формируется из функциональных групп в соответствии с назначением общеобразовательного учреждения.

Начальная школа, рассчитанная на игровые методы обучения, дополнительно может иметь соответствующую группу помещений, адекватную игровым пространствам.

Состав помещений общеобразовательной школы-лаборатории определяются заданием на проектирование.

7.7. В остальном составы и площади помещений принимаются согласно примечаниям Приложений 7 - 21 МГСН 4.06-96.

В) Комплексная (интегрированная) методическая сетка для определения функциональных групп и состава помещений в зависимости от вида здания.

7.8. Комплексная (интегрированная) методическая сетка для определения функциональных групп и состава помещений в зависимости от вида здания приведена в табл. 12.

Она содержит полный развернутый состав помещений для всех видов общеобразовательных учреждений за исключением площадей и их количества, которое определяется приложениями 7 - 21 МГСН 4.06-96 и приложением 1 настоящего пособия.

8. ПРИНЦИПЫ РАСЧЕТА ВМЕСТИМОСТИ И ПРОПУСКНОЙ СПОСОБНОСТИ ОБЩЕОБРАЗОВАТЕЛЬНЫХ УЧЕБНЫХ ЗДАНИЙ.

Расчет учебных помещений школ микрорайона.

Число учащихся общеобразовательного учреждения определяется числом основных учебных помещений - классов и классов-кабинетов.

Этот расчет предназначен для школ, размещаемых в жилых микрорайонах и являющихся наиболее массовыми. Суть его состоит в том, что названные выше основные учебные помещения (классы и классы-кабинеты) кроме учебной функции несут еще функцию "дома" в течении дня для определенной классной группы учащихся. Оно (помещение) является пространством для организации досуга и внеклассного времени во внеурочное время.

Отсюда следует, что одиннадцатилетняя школа должна иметь 11 классных помещений (1:1:1) или 22 (2:2:2) и т.д. (соответственно 264 или 528 учащихся).

Остальные помещения школ, как-то лаборатории, мастерские и др. в расчет не принимаются.

Расчет учебных помещений школ районного уровня

Расчет учебных помещений, школ районного уровня с увеличенным числом параллелей старших возрастов учащихся требующих большого числа специализированных кабинетов (школы с профильным обучением, лицеи, гимназии). Вместимость этой группы учебных зданий зависит от эффективного использования специализированных учебных кабинетов в максимально отведенное учебное время. Поэтому в расчет включаются не только классы и классы-кабинеты, но и группы помещений специализированных кабинетов. Основой здесь может служить учебный базисный план (Табл. 2), на основе которого, подставляя учебные часы по всем предметам учебного плана, можно определять дифференцированное количество учебных часов по предметам (математика, литература, обществоведение, естественные науки и т.д.) деля их на 30 учебных часов (предельная загрузка кабинета в неделю) и оставляя люфт в размере 15 % (примерно 5 часов).

Пример возможного расчета количества учащихся в однокомплектных, двухкомплектных и трехкомплектных школах на основе базисного учебного плана:

- в соответствии с базисным учебным планом количество часов отводимых учащимся 5 - 11 классов составляет 181 час;

- при расчетной величине 30 час. в неделю на 1 класс, требуется 6 учебных помещений на однокомплектную школу;

- в соответствии с учебными дисциплинами в школе 1:1:1 должно быть для 5 - 11 классов 7 универсальных кабинетов + 3 лаборатории естественных наук + кабинет искусства + кабинет технологии. Итого 12 помещений (это не считая помещений мастерских, спортзала, кружков и т.д.);

- следовательно число классных групп с 5 - 11 класс может быть удвоено, т.е. школа может функционировать со структурой 1:2:2 (18 классных групп вместо 11).

Пример показывает, что число учащихся по сравнению с расчетом первой системы может быть увеличено примерно, на 40 %.

Кроме того здесь следует учитывать направленность обучения старшего звена школы, что отражается на концепции состава принимаемых помещений (больше химии или ее меньше, больше математики или ее меньше и т.п.).

Расчет общешкольных помещений

Пропускная способность групп общешкольных помещений и определение их числа от поставленной задачи.

Общеобразовательная школа осуществляет односменные занятия с 8.30 до 14.05 часов. С учетом обеденного перерыва внеучебная деятельность может быть реализована с 15.00 до 22.00 часов (Табл. 4). При этом помещения общешкольного назначения могут быть использованы не только учащимися, но и населением микрорайона.

В связи с тем, что контингент учащихся все внеучебное время находится в школе (продленный или полный день), то для расчета количества помещений, за цикл принимается один день, а не неделя, как это принято при расчете внешкольных учреждений.

Учащиеся во внеучебное время могут заниматься в кружках в среднем в две смены: с 15.00 до 17.00 и с 17.30 до 19.30 часов ежедневно в течении учебной недели.

Население микрорайона может пользоваться общешкольными помещениями одну-две смены в день, т.е. с 20.00 до 22.00 (после официального окончания занятий учащимися школы), не считая помещений специально предназначенных для занятий населения. При этом необходимо учесть, что в отличие от учащихся, в течении недели в каждом из специализированных помещений можно осуществлять занятия с тремя группами взрослого населения (в силу специфики их работы, отдыха и т.д.), т.е. каждая группа может заниматься два раза в неделю из имеющихся пяти вакантных смен.

Зальная группа помещений (зрительный зал и лекторий) используется эпизодически для учебно-воспитательных занятий во внеурочное время, и поэтому эти помещения, исключаются из расчетов единовременной вместимости. Зал и лекторий эксплуатируются с учетом часов конкретных мероприятий (носящих иногда коммерческий характер).

В условиях пятидневной рабочей недели один-два выходных дня могут быть предоставлены для совместных занятий учащихся с родителями (населением) и в расчетах параметров функционирования общешкольных помещений на принимаются. Количество учащихся и взрослых, посещающих в воскресные (выходные) дни различные виды занятий, и их соотношение, зависят от многих факторов (время года, погода, мероприятий в расположенных рядом кинотеатрах и клубах, телевизионные программы конкретной недели и т.д.).

При единовременной вместимости блока (группы) общешкольных помещений, помимо зрительного зала и лектория, вне расчета остаются также библиотека, обеденный зал. Для населения исключаются помещения технического творчества и юннатско-биологической (опытнической) деятельности, в связи со спецификой видов деятельности в упомянутых помещениях.

Единовременная расчетная вместимость кружковых помещений в среднем принимается 10 мест (в практике она колеблется от 6 во 12 (15) мест в зависимости от вида деятельности и года занятий в данном кружке) (Табл. 13). Само помещение, его технология рассчитываются, как правило, на предельно возможное число мест.

Учебные мастерские, используемые во внеучебное время, рассчитываются на среднюю наполняемость кружкового помещения; т.е. на 10 человек. Мастерские, предназначенные только для населения, функционируют в течении дня и ориентировочно в них могут работать 4 группы ежедневно по 3 - 4 часа (т.е. примерно 40 человек).

В группе помещений спорта вместимость каждого зала или ванны бассейна принимается в соответствии с таблицей 13.

Таблица 13.

РАСЧЕТНАЯ ВЕЛИЧИНА (НАПОЛНЯЕМОСТЬ) ГРУППЫ ОБЩЕШКОЛЬНЫХ ПОМЕЩЕНИЙ.

Наименование помещений

Габариты, м, площадь, м2

Единовременная вместимость (уч-ся)

Спортзалы

18´9

12

18´12 (15)

17

24´12 (15)

24

30´18

24

36´18

32

42´24

24

Бассейн с ванной

25´11,5

32

10´6

12

Учебные мастерские по обработке металла, дерева, тканей, кулинарии; кабинет изучения технологий

90 - 108

12

Мастерские для учебно-производительного труда

240 - 360

24 (2´12)

Кружковые - студийные помещения:

 

 

- техническое творчество, универсальная мастерская

108

12

- кабинет черчения

72

10 - 12

- студия живописи, рисунка, дизайна, скульптуры, архитектуры

108

24 (8´3)

- зимний сад

80 - 150

10 - 20

- помещение для юннатско-биологической деятельности

36

5

54

7 - 8

- помещение для занятий драматическим искусством

72

10

108

12 - 20

- помещение для занятий хореографией

108

12

144

24

- кинофотостудия с фотолабораторией

36 - 72

8 - 12

- класс пения и музыки, музыкальная студия

50 - 72

10 - 15 (25)

- помещение для туристско-краеведческой деятельности

72

20

Формирование состава общешкольных помещений осуществляется на основе следующих параметров: 1) единовременная вместимость помещения; 2) количество помещений; 3) нормируемая площадь для конкретных функциональных групп помещений по видам деятельности.

Расчетные формулы К=Е/Н и П=Е´М (Е=П/М), (где К - количество помещений, Е - единовременная вместимость (чел.), Н - средняя наполняемость помещения (чел.), М - площадь на 1 место по конкретной функциональной группе помещений (м2), П - нормируемая площадь функциональной группы помещений) дадут возможность определить основные параметры для формирования состава помещения общешкольной группы помещений при проектировании и при реконструкции (приспособлении) школьного здания:

а) при проектировании нового здания при заданном проценте охвата или единовременной вместимости данной функциональной группы, помещений можно определить нормируемую площадь. Далее, определив площадь и габариты основных рабочих помещений по соответствующим приложениям МГСН 4.06-96, можно определить параметры помещений обслуживающего назначения;

б) при реконструкции существующего здания - на выделенной площади (при заданных видах деятельности) определяется примерная единовременная вместимость, количество помещений и конкретная площадь каждой функциональной группы помещений.

Процент охвата взрослого населения различными видами деятельности в свободное время предлагается определять исходя из реальной пропускной способности группы общешкольных помещений.

Комплексный подход к расчету пропускной способности учебной и общешкольной групп помещений общеобразовательных учреждений сетевого назначения.

Комплексный подход к расчету пропускной способности общеобразовательных учреждений сетевого назначения по методу Куркина - Ратушного (табл. 14, 15) ориентирована на сетевые-кустовые школы, поэтому их формирование зависит от определенных градостроительных условий.

Особенности формирования зданий школ III или II - III ступени с дифференцированным профилированным обучением включают: 1) градостроительный аспект, 2) структурный (организационно-педагогический) и 3) функциональный, касающийся учебных и общешкольных групп помещений.

Градостроительный аспект базируется на социально-педагогических требованиях, вытекающих из состояния сети зданий и ее материальной среды, соотнесенной на одного учащегося, или из задач нового строительства:

а) Базовый градостроительный принцип органически связан со сложившимся фондом зданий, когда на уже действующую систему планируется учебно-воспитательный центр для погашения дефицита площади по отношению к целевой нормативной программе по МГСН 4.06-96. По удельным показателям нормируемая площадь сложившегося фонда зданий примерно в 4 - 6 раз ниже расчетной (4,6 м2 вместо 16 - 25 м2). Отсюда типы школ с дифференцированным обучением должны рассчитываться на группы общеобразовательных школ I - II ступеней обучения с таким расчетом, чтобы часть учащихся старших возрастов перевести во вновь создаваемые школьные комплексы в составе школ II - III и III ступеней обучения. В этом случае за счет оттока старших школьников из действующих школ в эти центры повысится комфорт учебной среды обитания, для учащихся начальной и основной школ. Реально ее можно увеличить в 2 - 2,5 раза, т.е. выйти на учебные нормируемые площади порядка 8 - 10 м2 на одно место.

Школы II - III ступени обучения, исходя из названной градостроительной ситуации, могут включать учащихся 5 - 11, 6 - 11, 7 - 11, 8 - 11, 9 - 11 классов. При этом число параллелей учащихся среднего звена (II ступени обучения) должно быть меньше, чем учащихся старшего звена школы (III ступени обучения).

Оптимальной следует считать здесь организационно-педагогическую структуру, рассчитанную на охват 50 % учащихся среднего звена школы и 100 % учащихся старшей школы (0:3:6, 0:4:8, 0:6:12 и т.д.).

Особенность системы зданий заключается в том, что школьный комплекс в сочетании с действующими общеобразовательными школами образует учебно-производственное, воспитательное объединение, представляющее собой целостную систему учреждений народного образования жилого района города, взаимно дополняющую друг друга в решении задачи создания благоприятных условий для разностороннего развития человека.

б) Второй градостроительный принцип опирается на создание базовых средних школ с дифференцированным обучением в новых жилых микрорайонах, из расчета одна базовая средняя школа на группу основных школ. В этом случае число параллелей учащихся старших классов увеличивается в несколько раз в зависимости от числа и комплектности соседних основных школ и комплектности основной школы в собственно базовой средней школе (например 3:3:9 + 3:3:0 + 3:3:0). По сумме комплектов (параллелей) 1 - 11 классов система состоящая из базовой школы и основных, должна быть равнопараллельной.

в) Третий градостроительный принцип рассчитан на вынос школы III ступени обучения за пределы жилого микрорайона в жилой район с учетом обслуживания ею группы школ нескольких микрорайонов. В этом случае школа III ступени с дифференцированным обучением содержит только старшие классы 10 - 11 или 9 - 11 или 8 - 11. Рациональнее планировать в них по три возрастных звена (9 - 11 классы) (0:0:6, 0:0:9, 0:0:12).

г) В особо крупных микрорайонах возможно создание школ III ступени обучения внутри жилого микрорайона.

Организационно-педагогическая структура школ III ступени обучения может включать:

- старшие классы двух или трех возрастов;

- старшие классы в сочетании со средним звеном школы.

Соотношение числа параллелей классов старшего возраста и частично среднего возраста принимается, исходя из местных условий. Число параллелей старших классов желательно принимать при двух старших возрастах не минее четырех. В противном случае будет трудно создать надлежащие условия для дифференцированного профилированного обучения.

Дифференциация осуществляется по следующим направлениям:

- гуманитарное;

- языковое;

- физико-математическое;

- химико-биологическое;

- биолого-экологическое;

- техническое;

- сельскохозяйственное.

Возможны и другие направления, но они по педагогической технологии вписываются в составы помещений, требуемые по вышеназванным.

В соответствии с концепцией обучения и воспитания, школьный комплекс рекомендуется формировать из трех сфер: "Т" - сферы учебного назначения, "А" - сферы, связанной с движением и физическим развитием детей (спорт, труд, активная деятельность в свободных пространствах), И" - сферы творческого развития по интересам, что обуславливает такой количественный и качественный состав помещений, который обеспечил бы развитие не только собственно комплекса, но и части учащихся школ города (см. табл. 14).

Каждый учащийся течении дня (8 часов в день) должен опосредствовать все три сферы обучения и воспитания (см. табл. 15).

Учебно-воспитательный режим строится на основе перемещения учащихся в течении дня из учебной зоны в зону движения, из зоны движения в зону творческого развития. В этой связи предусматривается обучение детей потоками учащихся: в основной школе двумя потоками, в старшей школе - четырьмя потоками (см. табл. 15).

Обучение потоками обуславливает реальное сокращение числа классных помещений (кабинетов) по отношению к числу учебных групп в основной школе - в два раза, в средней школе в четыре раза, что предопределяет соответствующий эффект в экономии площади на одного учащегося по сравнение с требуемой.

Каждая из школ должна строится на модульном принципе, в основу которого положена учебная ячейка "класс-блок", состоящая из четырех основных учебных помещений (табл. 14, позиция "Т").

Таблица 14.

ПРИМЕРНАЯ СТРУКТУРА КОМПЛЕКСА ШКОЛЫ II - III СТУПЕНИ, ОСНОВАННОГО НА СФЕРАХ ДЕЯТЕЛЬНОСТИ

Теория Т

Каждодневное прохождение через атмосферы

Активность А

И Интерес

Т

Сфера теории формируется из модулей классов-блоков, содержащих по четыре класса-кабинета: естествознание, социум, математика. язык

В комплексе должно быть на менее 2-х модулей

Е    С   М Я

А

Сфера активной деятельности содержит: а) спортзалы, бассейн, форум, рекреационные пространства и другие помещения для проведения досуга; б) учебные мастерские

Полная номенклатура залов с высокими качественными характеристиками

И

Сфера интереса формируется из специализированных кружков, лабораторий, студий, залов, библиотеки и др. помещений:

а) техническое творчество, юннатская деятельность в сочетании с занятиями в павильонах природы, лабораториях естественных наук;

б) зрительный зал - сцена, музыкальная, художественная и хореографическая школы, прикладное искусство;

в) библиотека (индивидуальный познавательный интерес), информатика и вычислительная техника

Плюс дополнительные сооружения на участке

Таблица 15.

ОСНОВЫ ФОРМИРОВАНИЯ КОМПЛЕКСА ПО СФЕРАМ ДЕЯТЕЛЬНОСТИ И ЖИЗНЕДЕЯТЕЛЬНОСТИ В РЕЖИМЕ ДНЯ.

Время функционирования

Часы академических занятий

Основная школа (5 - 8 классы)

Старшая школа (9 - 11 классы)

основной поток 4 параллели

второй поток 4 параллели

первый поток

второй поток

третий поток

четвертый поток

8.30 - 9.05

1

Т

И

А

Т

И

 

 

9.10 - 9.45

2

Т

И

А

Т

И

 

 

9.55 - 10.10

3

Т

И

А

Т

И

 

 

10.35 - 11.10

4

Т

И

А

А

Т

И

А

11.20 - 11.55

5

Т

Т

Т

А

Т

И

А

12.00 - 12.35

6

И

А

Т

А

Т

И

А

12.45 - 13.20

7

И

А

Т

И

А

Т

И

13.25 - 14.00

8

И

А

Т

И

А

Т

И

14.10 - 14.45

9

А

И

А

И

 

 

А

Т

14.50 - 15.25

10

А

И

А

И

 

А

Т

15.35 - 16.10

11

А

И

А

И

А

Т

16.15 - 16.50

12

А

И

А

И

А

Т

Учебная группа рассчитывается на создание максимально благоприятных условий для обучения учащихся по системе "ученик - группа - класс -поток". Отсюда расширение библиотеки с учетом индивидуальных самостоятельных форм работы, групповое обучение в классе-кабинете с повышенной нормой площади по отношению к фронтальным видам работ. Площадь учебно-информационного центра - библиотеки принимается по максимальной норме. Лекционная аудитория проектируется с числом мест на одну возрастную параллель учащихся по 1 м2 на место.

Практические формы работы, являющееся основой профильного обучения, должны обеспечивать долговременное проведение практическо-исследовательских работ, соответствующих направленности дифференцированного обучения.

По естественным наукам кабинеты решаются как комплексы в составе лаборатории, ряда практикумов и лаборантских. Практикумы принимаются с количеством мест в половину группы и числом не менее трех при одной лаборатории. Возможны дополнительные помещения практикумов на меньшее количество учащихся.

Практикумы по изучению техники рассчитываются на 1/2 и 1/3 учащихся группы.

9. ОБЪЕМНО-ПЛАНИРОВОЧНОЕ РЕШЕНИЕ ЗДАНИЙ

А. Общие требования к структуре зданий.

1. Функциональная модель школы должна быть построена по принципу организации уровней в части обслуживания учащихся от первичного элемента к целому организму и охватывать все звенья учебного и воспитательного процессов:

- нижний уровень (повседневное обслуживание) - учебное помещение класс-кабинет;

- второй уровень - группа учебных помещений, связанных между собой единым взаимодополняющим процессом (учебная секция, технологическая группа), в которой не все помещения используются в течении дня, но служат базой для организации полноценного обучения в течении недели;

- третий уровень - группы учебных секций или технологических групп помещений, работающих в органической связи с информационно-методическим центром школы и отдельными специализированными учебными помещениями; используемыми в течении месяца и во внеучебное время;

- четвертый верхний уровень как целое, предусматривает необходимое функционирование и органическое взаимодействие между Учебным комплексом, Информационно-методическим центром и Общешкольной группой помещений в течении полного дня, недели, месяца, года, в котором тесно переплетается учебная и внеучебная деятельность; обеспечиваются в конечном итоге разностороннее развитие личности и ее творческого потенциала.

2. В соответствии с функциональной моделью архитектурно-типологическая структура школы должна иметь следующую пространственную организацию:

- Учебная группа <-> Информационно-методический центр <-> Общешкольная группа помещений (три комплекса связанных между собой в единое пространство с учетом их автономного функционирования и одновременно тесной связи);

- Учебная группа помещений в свою очередь должна быть дифференцирована на школы I, II, III ступеней обучения и технологические группы помещений обслуживающие эти возрастные школы:

- Общешкольная группа помещений должна быть подразделена на отдельные функциональные группы по назначениям - спорт, группа зрительного зала, технического творчества и биолого-опытнической деятельности, художественного воспитания (музыка, изобразительное искусство, хореография) и быта;

- Группа помещений центра информации - библиотеки, предназначенная для обслуживания учебной и общешкольной функциональных групп помещений, должна быть связующим звеном между учебными и общешкольными помещениями.

Пример: рис. 2 (Концепция функционального решения общеобразовательной школы перспективной модели).

3. Компактная педагогическая технология для функциональных групп учебных помещений. Учебные помещения, дифференцированные по возрастному принципу или педагогической технологии, должны решаться по принципу компактной их организации с пространственным центром в виде рекреационных залов, или аудиторий, или ресурсных или игровых центров и т.д., обеспечивающих, оптимальную организацию учебного процесса и внеурочного времени:

- в школе I ступени с игровым центром;

- в школе II - III ступени с ресурсным центром и универсальным рекреационным залом;

- в блоках специализированных учебных помещений, изучения технологий и труда с ресурсными или методическими центрами, без рекреационного зала.

Примеры схем решения компактных учебных секций приведены на рисунке 3.

4. Пространство класса - учебного кабинета. Основное помещение школы - класс - учебный кабинет должно отвечать требованиям активного ведения учебного урока с организацией как фронтальных, так групповых и индивидуальных форм обучения с широким привлечением технических средств. Иными словами класс-кабинет должен иметь принципиально новую пространственную структуру в отличии от традиционного класса (см. рис. 1, 2, 3 МГСН 4.06-96).

Помещение должно включать рабочую зону (размещение учебных столов учащихся), рабочую зону учителя, дополнительное пространство для размещения учебно-наглядных пособий, ТСО, личных вещей учащихся, зону для групповой работы и для индивидуальных занятий учеников (особо успевающих и неуспевающих) и возможности активной деятельности. Эти зоны, как сумма пространств, должны обеспечивать оптимальные условия среды обитания: углы рассматривания классной доски и наглядных пособий во время урока, по всему периметру стен (не менее 40 градусов), равномерность естественного освещения по всей плоскости помещения с КЕО не менее 2 - 2,5.

Помещение оборудуется одноместными легкими ученическими столами и значительным объемом встроенных шкафов, а также дополнительным мобильным оборудованием для решения проблем гибкой организации пространства с целью активизации обучения.

Не исключено создание части кабинетов только с верхними источниками естественного освещения, позволяющими трактовать весь периметр стен в качестве "экрана" познания и ориентировать на них учащихся при групповых видах работы (каждой группе свой участок стены-экрана).

В оптимальном варианте основные учебные помещения не должны располагаться выше 2-го этажа для решения поставленных задач.

Б. Принципы решения здания.

Каждое общеобразовательное учебное заведение, как правило, состоит из учебной группы помещений и общешкольной. Может также включать дополнительную группу помещений рекреационного центра.

От их взаиморасположения и трактовки планировочных элементов, входящих в эти группы, зависит эффект функционирования звания в целом.

Прежде всего Учебная группа помещений должна представлять собой обособленную, автономную систему не зависящую от общешкольной группы помещений и рекреационного центра. Поэтому вестибюльная группа учебных помещений должна решаться с учетом этих требований.

Общешкольная группа помещений, особенно в условиях использования ее учащимися и взрослым населением во внеучебное время также должна представлять собой автономную систему, позволяющую эксплуатировать ее независимо от учебной группы помещений.

В свою очередь Рекреационный центр, представляющий собой крупное пространство, рекомендуется располагать таким образом, чтобы он служил и связующим звеном между названными основными группами помещений, и одновременно являлся ядром пространственной системы помещений, служил бы архитектурной доминантой.

Первый Всесоюзный конкурс (1987 - 1988 гг.), проведенный в свое время на такую сложную композиционную систему выявил следующие положения.

При заданной принципиальной структуре здания, изложенной выше, его композиционные решения могут быть довольно разнообразными как по формированию пространств, так и по архитектурному облику здания (рис. 4).

1 группа - проекты имеют традиционное решение здания с полным выделением блока общешкольных помещений в самостоятельный объем. Связь между учебным корпусом и блоком общешкольных помещений осуществляется через одноэтажный теплый переход.

2 группа - композиционное построение сохраняет зрительную автономию выделенного блока общешкольных помещений, но решения здания принимается по принципу более тесной связи зальных помещений одновременно с общешкольным и с учебным блоками.

3 группа - композиционные решения основываются на тесном переплетении учебных помещений и групп помещений общешкольного блока. Более пластичное решение за счет некоторых потерь функциональных качеств здания по автономности основных его блоков.

4 группа - архитектурно-пространственная организация комплекса основывается на симметричном решении здания школы. Композиционным центром являются блок общешкольных помещений, по обе стороны от которого расположены учебные блоки. Помещения общешкольного блока формируются вокруг рекреационного центра.

5 группа - композиционные решения основываются на разделении здания школьного комплекса на четыре отдельные пространственные структуры: два блока для зоны учебных помещений (отдельно для младших и старших школьников) и два блока для зоны общешкольных помещений (отдельно для группы помещений спорта и клуба со зрительным залом). Основная идея сводится к тому, что названные структурные элементы в зависимости от местных условий предлагается размещать под разными углами один к другому, что позволяет предусматривать особенности местных градостроительных ситуаций.

Для решения гибких систем пространственного решения современного общеобразовательного учреждения может быть предложена примерная методика проектирования общеобразовательных учреждений с выделенными блоками, которые основываются на вышеизложенных принципах функционально-планировочного решения и формирования из заданных объемных элементов (рис. 5), включающих:

1) учебные блоки разной этажности на 11, 22 и 33 класса, разработанные на основе применения перспективных типов учебных ячеек, размером 18´18 м с зальными рекреациями, в свое время апробирование ЦНИИЭП учебных зданий при разработке экспериментальных проектов школ на 33 класса полного дня; школьного комплекса на 33+33 класса для г. Горького и в конкурсных проектах;

2) блоки общешкольных (клубно-спортивных) помещений четырех типов, разработанные с учетом их возможных сочетаний с вышеназванными учебными блоками и формирования таким образом школьных комплексов на 11, 22, 33, 22+22, 33+33 класса с достаточно пластическими архитектурными формами.

Рис. 5 иллюстрирует пример композиционных решений школьных зданий (показаны черным цветом) на основе сочетания учебных блоков с выделенным блоком общешкольных помещений типа "Б". Как видно из рисунка, применение перспективных учебных ячеек (18´16 м) с единым пространственным модулем дает возможность разработки достаточно разнообразных композиционных решений школ созвучных как масштабности архитектуры жилых и общественных зданий микрорайона, так и известной камерности решения по отношению к человеку. Одновременно универсализация элементов ячеек учебного корпуса в потенциале дает возможность снизить количество сборных конструктивных элементов. На этом рисунке приведены также примеры сочетаний общешкольных блоков не с "родственными" им учебными блоками (композиционные схемы выделены белым цветом).

Принятая система объемных элементов позволяет достичь известной степени архитектурной гармонии в объемно-пространственном построении школьных комплексов на основе различных композиционных взаимосвязей учебных блоков с блоками общешкольных помещений.

Кроме того показанные блоки (учебных и общешкольных помещений) могут использоваться для пристройки к существующим зданиям школ.

Особое значение в зданиях общеобразовательных учреждений, придается решению объемно-планировочной структуры учебной группы помещений, основанной на автономии учебных секций, отражающих как возрастные требования к формированию учебных помещений, так и требования к специфике формирования специализированных групп помещений. Учебная секция трактуется как группа помещений, включающая учебные помещения (классы, или классы-кабинеты, или специализированные кабинеты), рекреацию и санузлы.

Для начальной школы в учебную секцию включаются классные помещения (1 - 4, или 1 - 2, или 3 - 4, или 1 и 3 - 4 классы), рекреационное пространство зального типа для активизации двигательной активности ученика, санитарный узел и ряд обслуживающих помещений, в зависимости от вида здания, рассчитанного на традиционную систему занятий или на игровые методы обучения.

Такая или такие учебные секции должны быть автономными (изолированными) от других учебных секций учебного заведения. Это обусловлено особенностями организации учебно-воспитательного режима учащихся младших возрастов.

Учебные секции основной школы (5 - 9 или 5 - 8 классы) также рекомендуется обосабливать в автономные ячейки. Они должны содержать классы-кабинеты, рекреационный зал и ресурсные центры. Последние могут решаться централизовано (один на секцию) либо рассредоточено при каждой паре классов-кабинетов. Ресурсный центр это особое помещение, где сосредоточен дидактический материал, учебные пособия и ТСО, связанные с профильным обучением. В данном случае санитарные узлы могут быть вынесены за пределы учебной секции.

Учебные секции старшей школы могут состоять из учебных кабинетов, закрепленных за этими учащимися или размещаться в группе специализированных кабинетов, в зависимости от того как будет функционировать школа: с закреплением классов-кабинетов за каждой учебной группой или только в виде учебного кабинета со скользящим графиком обучения. Для этой категории учащихся не обязательна организация автономной секции.

В современной школе учебная секция должна решаться не в виде линейной системы классов "нанизанных" на коридор, а в виде компактных образований с тремя, четырьмя или шестью учебными помещениями, для введения активной системы организации уроков, когда учащиеся, в зависимости от педагогических задач урока могли бы перемещаться из одного помещения в другое и обратно (рис. 3).

В. Проблема универсальности зданий.

Универсальность зданий общеобразовательных учреждений продиктована не только многообразием видов и типов этих учреждений, но и многообразием местных условий вытекающих из множества вариантов построения сети зданий как в условиях нового строительства, тех и в условиях реконструкции сети зданий в сложившейся застройке.

Эта проблема решается по трем уровням, что должно быть отражено:

1) в составе помещений, который определяется исходя из возможного увеличения числа параллелей старших классов, требующих расширенной номенклатуры специализированных кабинетов;

2) в структуре здания, построенного по принципу автономных образований учебных секций или учебных блоков помещений, позволяющих создавать разные организационно-педагогические структуры в процессе эксплуатации здания в разных качествах по количеству параллелей классов (автономных с равным количеством параллелей классов начальной, основной и старшей школы и с увеличенным числом параллелей классов школ II и III ступеней (сетевых);

3) в универсальности принятых планировочных параметров основных учебных помещений, где планировочный модуль 9 м является предпочтительным для создания системы первичных учебных помещений, модульных этому размеру, как то: 3+6, 4,5+4,5, 9+3 м и т.д.

Идея концепции гибкой объемно-планировочной структуры здания показана на рис. 6 по схеме: планировочный модуль - учебная секция - здание.

1. В первую очередь возможности универсальной эксплуатации здания зависят от состава помещений, где преобладающими должны быть группы специализированных учебных помещений для реализации задач профильного, дифференцированного обучения учащихся старших классов, начиная с 8-го в общеобразовательной школе, лицее, гимназии, а также по возможности быть учебно-методическим центром для групп уже существующих школ со старой нормативной базой помещений.

Примером может служить разработанная программа для конкурса на перспективную модель школы для города Москвы (1995 - 96 гг.), где в основу школы были предложены не 22 традиционных класса, а 24, исходя из задач превращения ее в школу с увеличенным числом учащихся старших классов (организационно-педагогическая структура от 1:2:4 до 0:0:12).

2. Второе положение универсальности связано с особенностью решения учебных секций с таким расчетом, чтобы при разных вариантах эксплуатации (функционирования) здания, возрастные группы учащихся 1 - 4, 5 - 8 (9) и старших оказывались всегда в обособленных секциях.

Примером подхода к решению общеобразовательной школы как универсального здания может служить экспериментальный проект перспективной модели школы на 22 - 24 класса, отмеченный на конкурсе в г. Москве 1-ой премией (рис. 9).

Прежде всего состав и площади помещений школы приняты, исходя из возрастной структуры учащихся: начальная школа 1 - 4 классы, основная - 5 - 8 классы, старшая - 9 - 11 классы, в основу которой положен наиболее сложный состав школы с профильным обучением на 24 класса.

Здание запроектировано как универсальное, рассчитанное на функционирование:

1) в качестве полной средней школы с организационной структурой начальной, основной и старшей школы 2:2:2 (3) для применения в жилых микрорайонах с охватом 550 (625) учащихся, в том числе 200 учащихся начальной школы, 200 учащихся основной и 150 учащихся старшей школы, при закрепленных помещениях или 225 учащихся старших классов занимающихся по кабинетному принципу.

2) в качестве сетевой школы I, II и III ступеней или II и III ступеней обучения с организационно-педагогическими структурами соответственно 1:2:4 и 0:3:6, рассчитанными на обслуживание учащихся, кончающих начальную или основную школу в существующих школах муниципальных районов (округов). Число учащихся при закрепленных классах-кабинетах 600 человек, а при кабинетной системе обучения старших классов - 750 человек.

3) в качестве сетевой школы III ступени в сложившейся застройке для обучения учащихся оканчивающих основные школы с организационно-педагогической структурой 0:0:12 (900 учащихся).

4) в качестве гимназии или лицея с размещением в муниципальных районах или округах города.

Это оказалось возможным благодаря тому, что (1) все основные учебные секции (классов-кабинетов) сосредоточены на втором - верхнем этаже и связаны между собой горизонтальными коммуникациями и (2) каждая учебная секция включает в себя по 6 классных помещений, из которых 2 помещения связаны с внутренней общей коммуникацией и при трансформации могут служить дополнительными специализированными кабинетами, а 4 основных помещения учебной секции служат задачам возрастного деления школьников. Таким образом, по существу предложена как бы гибкая система 4+2, позволяющая по разному компоновать возрастные группы учащихся и спецкабинетов.

3. Третье положение универсальности упирается в трактовку планировки основного помещения здания.

По результатам многолетних исследований наиболее оптимальным является помещение размерами в плане 9´9 м. Особенно эго касается настоящего этапа, когда это реально можно осуществить при наполняемость класса 24 - 20 учащихся. Учебные помещения в указанных параметрах отвечает задачам (1) гибкой его эксплуатации в качестве класса-кабинета, (2) приспособления практически под всю гамму специализированных помещений, при условии, что планировка помещений будет корреспондироваться с модулем 9 м (это 3; 4,5; 6; 7,5 м).

На рис. 7 показано соответствие тех или иных основных и специализированных помещений общеобразовательных учреждений названному модулю. Они отвечают задачам новой педагогической технологии, связанной с профильным обучением.

На основе этих модулей показаны примеры решения планировочных элементов учебных помещений, рассчитанных на универсальность их эксплуатации. Сюда относятся классы начальной школы (8.1), спальная-игровая (8.2), универсальное помещение для групп продленного дня (8.3), комната труда, моделирования и технической игрушки, изобразительного искусства и природы (8.4), кабинет универсального назначения (8.5), комната индивидуальных занятий (8.6), лаборатория физики с лаборантской (8.7), лаборантская-практикум, практикум по физике (8.8), лаборатория биологии с лаборантской (8.9), лаборантская-практикум, практикум по биологии (8.10), лаборатория химии с лаборантской (8.11), лаборантская-практикум, практикум по химии (8.12), компьютерный класс (8.13), кабинет иностранного языка (8.14), кабинет технического черчения (8.15), универсальное помещение технического творчества (8.16), мастерская по изучению технологии и обработки металла (8.17), мастерская по изучению технологии и обработке древесины (8.18), мастерская по изучению технологии и обработке тканей (8.19), кабинет домоводства (кулинария и бытовая техника) (8.20), студия музыки и пения (8.21). (Примерный перечень мебели и оборудования к этим рисункам приведены на рис. 8.22).

Г. Комплексное решение универсальности здания.

Примером может служить экспериментальный проект школы на 22 - 24 класса перспективной модели для г. Москвы получивший на конкурсе первую премию в 1995 г. (рис. 9).

Комплекс школы четко разделен на две автономных группы помещений: учебную и общешкольную, объединенную между собой центром досуга (форумом). Последний, являясь архитектурным ядром, объединяет вокруг себя зрительный зал, видео-кафе, спортзалы, бассейн, студии художественного воспитания, клубные помещения (дополнительные мелкие помещения центра досуга), что создает интересную содержательную среду пребывания в ней учащихся и взрослого населения. Для ее полноценного функционирования предложена система автономных входов и гардеробов, позволяющих пользоваться отдельными функциональными группами помещений изолированно друг от друга из разных входных точек, не мешая общей работе всего комплекса (автономность эксплуатации входящих в комплекс залов).

В этих целях предусмотрены: 1) вестибюль-гардероб для учебной группы помещений; 2) вестибюль-гардероб для центра досуга (форума), зрительного зала и бассейна; 3) вестибюль-гардероб для спортзалов, бассейна, зрительного зала, студий художественного воспитания и дополнительный вестибюль для игрового спортзала и студий хореографии (завышенное число вестибюлей-гардеробов принята для улучшения эксплуатационных качеств функционирования всех групп зальных помещений).

Учебная группа помещений решена в два этажа.

Все классы-кабинеты выведены на 2-й (верхний) этаж. Это обстоятельство имеет весьма принципиальное значение для школы в целом (рис. 9.2):

1 - все 24 класса-кабинета, получают дополнительное верхнее естественное освещение, а следовательно высокую степень инсоляции помещений, что определяет свободную ориентацию школы по сторонам света при привязке к местным условиям и сквозное проветривание.

2 - Верхние источники естественного света предопределяют высокий комфорт световой среды в помещении (равномерность освещения по всей плоскости и повышенное К.Е.О. более 2,5), что необходимо для введения активных методов обучения при групповые и индивидуальных формах ведения урока.

3 - Создавать гибкие возможности комплектования системы классов и кабинетов в школах различной модификации 2:2:2, 1:2:4, 0:3:6, 0:2:5, т.е. в школах одиннадцатилетних, II и III ступеней обучения, школах III ступеней обучения, гимназиях, лицеях. В этих целях две средние учебные секции запроектированы по системе 4+2 (два кабинета связаны с внешней коммуникацией), о чем было сказано выше.

4 - Обеспечивать горизонтальные связи между учебно-методическим центром - библиотекой со всеми 24 классами-кабинетами, а также учебного центра с ресурсными центрами при учебных секциях для динамики использования дидактического учебного материала в процессе учебного года.

Учительские с методическими кабинетами расположены на периферии библиотеки - учебно-методического центра и организационно с ним связаны. Одна предназначена для младшей школы, вторая для старшей.

Классы сформированы в учебные секции, каждая из которых состоит из 6-ти классов-кабинетов, зальной рекреации и ресурсного центра. Зальные рекреации имеют повышенную высоту и стеклянный витраж. Учебные секции дают возможность эксплуатировать их автономно для школ I, II и III ступеней в зависимости от назначения и организационно-педагогической структуры здания.

На 1-м этаже (рис. 9.1) размещается основной вход в учебный корпус со своим вестибюлем-гардеробом, администрацией, столовой и группой учебно-воспитательных помещений для начальной школы, специализированных групп помещений по естественным наукам и технологические группы помещений, связанные с трудом и профильным обучением.

Эти группы помещений могут включаться в сферу внеучебной деятельности в купе с центром досуга (решены на одном горизонтальном уровне).

Специальные группы учебно-воспитательных помещений для начальной школы сгруппированы в компактную ячейку; состоящую из двух спален - групповых с раздвижной перегородкой и помещения труда, моделирования, природы, ИЗО, и приближенную к специальному детскому залу видео-кафе. Последнее может эксплуатироваться в виде дополнительного игрового пространства, т.к. основной обеденный зал может по нормам обеспечивать питание учащихся включая начальную школу.

Эта группа помещений для детей младшего возраста сознательно отделена от классов, т.к. школа трактуется как объект универсальной эксплуатации и классы могут превращаться в кабинеты. Эта группа может существовать также в качестве зоны "хранения" детей, когда их родители будут заняты в центре досуга.

В столовой, видеокафе и кухне предусмотрены верхние источники естественного освещения вдоль стен форума.

Кухня столовой расширена в 1,5 раза и рассчитана на обслуживание вечером посетителей центра досуга (имеет вторую раздаточную). Столики размещаются непосредственно на подиуме центрального зала (форума), прилегающего к зоне столовой.

Коммуникации 1-го этажа освещены через стеклянные "стаканы" лестниц, одновременно являющиеся зимними садиками (всего их четыре).

Учебная группа помещений связана с общешкольным центром по 2-му этажу и с центром досуга по 1-му этажу.

Система коммуникаций, в отличии от традиционных коридорных решений, предложена в виде криволинейных очертаний в сочетании с зальными помещениями и световыми "стаканами" лестниц. Они могут использоваться для выставок детских рисунков и пр. мероприятий. Решается задача преодоления синдрома обычной "коридорности" в школе.

Сочетание разнообразных по форме, очертаниям и размеру внутренних пространств по нашему мнению создает эффект интересной среды обитания, в которой центральное ее помещение - форум трактуется как многофункциональное помещение, т.к. имеет связь со зрительным залом через общую эстраду (раздвижная стена). Форум предназначен для театральных и эстрадных действий, собраний, проведения зимних елок, маскарадов, танцев, музыкальных мероприятий и просто досуга. При этом важное место отводится устройству декоративной сцены со сменной декорацией в течении года, связанной с деятельностью форума, что будет способствовать изменению архитектурно-психологической среды центра, его художественному воздействию на человека.

В проекте предусмотрены полноценные студии художественного воспитания по изобразительному искусству, хореографии и музыке с соответствующими обслуживающими помещениями.

Заложенный принцип дает также возможность иметь повышенный этаж в классах-кабинетах (3,6 вместо 3,3 м).

Архитектура фасадов решается на основе пластики, заложенной в кирпичной стене и серо-белых бетонных ее элементах. Особенность фасадов состоит в том, что они не традиционны для школ, которые всегда изрезанны монотонными окнами. На фасадах выявлены стеклянные фонари, двухсветные зальные рекреации по контрасту к плоскости стены (рис. 9.3).

Бассейн имеет две ванны для обучения плаванию 10´6 м (глубина 60 - 80 см) и ванна размером 25´11,5 м (глубина 1,2 - 13 м) для учебные занятий по плаванию и оздоровительных процедур. Зал бассейна решен как единое двухсветное пространство с двумя группами раздевален (всего четыре), оборудованных индивидуальными шкафами в одном уровне, душами и уборными. Зал освещается естественным светом через верхнее боковое стекло.

В школе предусмотрено две группы помещений администрации: при вестибюле учебного корпуса и при вестибюле группы зальных помещений. В составе последней имеется группа медицинских комнат.

Двух-трехсветный зрительный зал на 408 мест с эстрадой и артистическими оснащен оборудованием кино и видео показа. При зрительном зале расположен холл-фойе.

Кроме того, помещения общешкольного центра и мастерские могут дополнительно обслуживать в течении учебной недели от 1000 до 2000 учащихся соседних школ из расчета посещения ими центра 2 раза в неделю.

Здание рассчитано также на обслуживание спортивно - кружковыми мероприятиями взрослого населения в свободное от работы время. В этой связи общешкольный центр трактуется как клубно-спортивный с автономным функционированием.

10. ОТОПЛЕНИЕ И ВЕНТИЛЯЦИЯ.

10.1. Системы теплоснабжения общеобразовательных учреждений следует подключать к распределительным сетям городских систем теплоснабжения с устройством индивидуальных тепловых пунктов (ИТП) или автоматизированных узлов управления (АУУ) при подключении систем водоснабжения к распределительным сетям от ЦТП.

Подключение водонагревателей горячего водоснабжения в ИТП следует производить по параллельной схеме.

Размещение ИТП и АУУ надлежит производить в соответствии с требованиями МГСН 2.01-94.

10.2. Расчетную температуру воздуха для проектирования отопления и кратность обмена воздуха в помещениях следует принимать по приложению 25 МГСН 4.06-96.

10.3. При проектировании в помещениях учебной группы приточной вентиляции с механическим побуждением в учебных помещениях следует предусматривать естественную вытяжную вентиляцию из расчета однократного обмена в час. Располагаемый перепад давлений для движения воздуха в каналах естественной вытяжной вентиляции определяется на разность удельных весов наружного воздуха с температурой при параметрах А, определяемых по СНиП 2.04.05-91*, и внутреннего воздуха.

При воздушном отоплении помещений учебной группы и устройств перепускных каналов между классами и рекреацией вытяжные каналы из учебных помещений проектировать не следует.

10.4. Температура воздуха, подаваемого в рабочее время системами воздушного отопления, не должна превышать 40 градусов С.

10.5. Рециркуляция воздуха в системах воздушного отопления учебных помещений не допускается.

10.6. В зданиях общеобразовательных учреждений допускается применение децентрализованного притока не подогретого наружного воздуха при обеспечении нормируемых параметров внутренней среды обслуживаемых помещений.

10.7. При проектировании воздушного отопления, совмещенного с вентиляцией, следует предусматривать автоматическое управление системами, обеспечивающее включение и отключение системы в соответствии с режимом работы учебного заведения, поддержание в рабочее время в помещениях расчетной температуры и относительной влажности в пределах 30 - 60 %, а также обеспечение во внеучебное время температуры не ниже 12 градусов С.

При проектировании приточной вентиляции следует предусматривать автоматическое управление, обеспечивающее включение и отключение системы в соответствии с режимом работы учебного заведения, а также поддержание расчетной температуры приточного воздуха.

10.8. При воздушном отоплении помещений учебной группы в классах, в которых для возмещения теплопотерь при нормативном воздухообмене требуется подача приточного воздуха с температурой выше 40 градусов С, следует предусматривать дополнительное водяное отопление.

10.9. Водяное отопление помещений общешкольной группы, а также помещений учебной группы, при устройстве в них приточной вентиляции, следует проектировать с индивидуальным автоматическим регулированием отопительных приборов, устанавливая на подводках к отопительным приборам терморегуляторы повышенного гидравлического сопротивления с многопозиционной установкой на расчетный расход воды со встроенным или дистанционным датчиком с максимальной настройкой температуры на 21 градус С.

10.10. Система водяного отопления проектируется двухтрубной с нижней разводкой с расчетными температурами теплоносителя 95 - 70 градусов С.

10.11. Расчетные теплопотери помещений учебной группы определяется по следующей формуле:

О = /Е КF ´ (tвп- tп) ´ 24 + qинф ´ Fок ´ С (tвп- tп) ´ jотк - qбыт ´ nуч ´ jпр - Qдоп ´ 24/ jот,

(где:

Е КF - сумма теплопотерь наружных ограждений (стен, окон и перекрытий) при разности температур в градус С (К -коэффициент теплопередачи; F - поверхность теплопередачи);

tвп - расчетная температура воздуха в помещении;

qинф - удельная величина инфильтрации через 1 м2 окна в кг/ч;

С - весовая теплоемкость воздуха;

jотк - количество часов в сутки отключения приточной вентиляции или воздушного отопления;

qбыт - тепловыделения одного учащегося;

nуч - количество учащихся в помещении;

jпр - время пребывания учащихся в помещении;

jот - продолжительность работы отопления, для систем отопления при наличии приточной вентиляции jот = 24 часа;

Qдоп - расчетная теплопередача дополнительной системы отопления в помещении).

10.12. Величина удельной инфильтрации в помещениях учебной группы при воздушном отоплении определяется по следующей формуле:

(где:

 - суммарный объем удаляемого воздуха вытяжной вентиляции из помещения учебной группы (санузлы, лаборатории и т.д.);

р - плотность воздуха, кг/м3;

 - суммарная площадь окон всех помещений учебной группы;

Кэт - коэффициент, учитывающий неравномерность инфильтрации по высоте здания (принимается согласно таблице 16).

Таблица 16.

Число этажей

Этаж

Кэт

4

1

2,4

2

1,6

3

0,8

4

0

3

1

2

2

1

3

0

10.13. Величина удельной инфильтрации в помещении учебной группы при наличии приточной вентиляции определяется по формуле:

(где:

Zвыт- объем удаляемого воздуха вытяжной вентиляцией в рассчитываемом помещении, м3/ч;

Fок - площадь окон в рассматриваемом помещении).

10.14. Отдельные системы вытяжной вентиляции следует предусматривать для следующих помещений (групп помещений): классные помещения и учебные кабинеты (при отсутствии воздушного отопления), лаборатории, зрительные залы, лекционные аудитории, учебные мастерские, спортивные залы, бассейны, столовая, медпункт, киноаппаратная, санитарные узлы.

10.15. В учебных и учебно-производственных мастерских при размещении в них оборудования, имеющего укрытия и местные отсосы, следует проектировать соответствующие системы по удалению теплоизбытков, вредностей, пыли и т.п.

10.16. В школьные вестибюли, имеющие значительную поверхность наружного остекления или витражи и не оборудованные воздушно-тепловыми завесами, следует предусматривать подачу приточного воздуха в объеме двух кратностей в 1 час.

10.17. Подачу приточного воздуха в киноаппаратную допускается предусматривать от приточной системы зрительного зала при условии подключения воздуховода, идущего в киноаппаратную, к приточной системе зала ниже уровня пола киноаппаратной.

10.18. Воздушно-тепловые завесы следует проектировать для общеобразовательных учреждений на 3 и более параллелей классов.

Допускается устройство тепловых завес от приточной системы с установкой во втором тамбуре калорифера нагрева и автоматической воздушной заслонки.

10.19. В помещениях, перечисленных в пп. 3, 4, 11 табл. 25 МГСН 4.06-96, а также в кружковых помещениях, имеющих наружные окна с фрамугами или форточками, устройство вытяжных каналов допускается не предусматривать.

10.20. В общеобразовательных учреждениях с количеством учащихся до 200 допускается устройство вентиляции без организованного механического притока.

10.21. При устройстве в здании общеобразовательного учреждения воздухоприготовительного центра для системы воздушного отопления следует в непосредственной близости от машинного зала размещать помещения для ремонтных работ площадью 18 м2.

10.22. Для дисплейных классов и кабинетов вычислительной техники оптимальными параметрами являются температура 19 - 21 градусов С при влагосодержании 10 г/м3 и допустимыми параметрами 18 - 22 градусов С с влагосодержанием не менее 6 г/м3.

По результатам расчета на ассимиляцию тепловыделений от ЭВМ, людей и солнечной радиации определяются объем воздуха, подаваемый приточной вентиляцией. Подача воздуха наиболее целесообразна через подшивной перфорируемый потолок. Удаление воздуха рекомендуется из верхней зоны со стороны, противоположной оконным проемам. Подвижность воздуха в рабочей зоне учащихся должна быть не более 1 м/с. В целях поддержания влажностного режима могут быть использованы бытовые увлажнители.

Приспосабливаемые под дисплейные классы помещения существующих общеобразовательных учреждений следует оборудовать автономными кондиционерами. Кондиционеры устанавливаются в оконных проемах и подключаются к осветительной сети.

Наиболее благоприятной ориентацией для размещения этих помещений являются север и северо-восток.

10.23. При отсутствии специальных электронагревательных приборов или спиртовых горелок в лабораториях, зданий общеобразовательных учреждений допускается предусматривать использование природного газа, а также сжиженного газа от наружных баллонных установок в соответствии со СНиП 2.04.08-87 и Правилами безопасности в газовом хозяйстве, утвержденными Госгортехнадзором. Прокладка газопровода в подвалах и цокольных этажах не допускается.

11. ВОДОСНАБЖЕНИЕ И КАНАЛИЗАЦИЯ.

11.1. В зданиях общеобразовательных учреждений следует предусматривать хозяйственно-питьевое и горячее водоснабжение, канализацию и водостоки, которые необходимо проектировать в соответствии со СНиП 2.04.01-85 и МГСН 4.06-96.

11.2. Подводка холодной воды должна предусматриваться к раковинам химических лабораторных столов и демонстративных столов в лабораториях химии, физики и биологии, к смывным бачкам в санузлах, к умывальникам, устанавливаемым по одному в каждой классной комнате 1 - 4 классов и помещениях для групп продленного дня.

11.3. Подводка холодной и горячей воды должна предусматриваться к умывальникам, устанавливаемым по одному в кабинете черчения и изобразительных искусств, информатики и вычислительной техники, кружковых помещениях технического моделирования, юных натуралистов, студии живописи, рисунка, скульптуры, к умывальникам и мойкам в мастерских по обработке тканей и кулинарии, к умывальникам в учительской, пищеблоке, к водоразборным кранам, устанавливаемым для хозяйственных нужд, по одному в умывальной для учащихся, к раковинам в учебных мастерских, в комнате технического персонала и в помещениях уголка живой природы, к душевым кабинам и к приборам кабин личной гигиены, к ваннам (в том числе ножным); к двухсекционной мойке в фотолаборатории и кинофотолаборатории; к лабораторным шкафам в лабораториях химии, физики и биологии, а также к оборудованию столовых и буфетов, куда подводка холодней и горячей воды предусматривается согласно технологическим требованиям. Температура горячей воды, поступающей к смесителям приборов, не должна превышать 60 градусов С.

11.4. При использовании классных комнат 1 -4 классов и помещений продленного дня для организации в них летних оздоровительных лагерей, к умывальникам, установленным в этих помещениях, кроме холодной воды следует предусмотреть подводку горячей воды с установкой смесителя.

12. ЭЛЕКТРОТЕХНИЧЕСКИЕ УСТРОЙСТВА.

12.1. В зданиях общеобразовательных учреждений следует предусматривать электрооборудование, электрическое освещение, системы электросвязи и передачи информации в соответствии с требованиями следующих нормативных документов:

- СНиП 23-05-95 "Естественное и искусственное освещение;

- МГСН 2.01-94 "Энергосбережение в зданиях. Нормативы по теплозащите и тепловодоэлектроснабжению";

- ВСН 59-88 "Электрооборудование жилых и общественных зданий. Нормы проектирования";

Правила устройств электроустановок:

- СНиП 2.04.09-84 "Пожарная автоматика зданий и сооружений;

- МГСН 4.06-96 "Общеобразовательные учреждения";

и настоящего раздела.

12.2. Проектирование осветительных установок искусственного освещения следует выполнять на основе светотехнических расчетов с обязательным включением результатов расчетов в раздел "Электрооборудование".

12.3. Во всех помещениях общеобразовательных учреждений должна предусматриваться скрытая электропроводка, в кухне, санитарных узлах, кладовых, технических и остальных подсобных помещениях допускается открытая проводка.

12.4. В осветительных установках должны применяться световые приборы, электрооборудование и материалы промышленного изготовления, отвечающие требованиям государственных стандартов и технических условий.

12.5. В помещениях общеобразовательных учреждений должно быть предусмотрено рабочее, дежурное и аварийное (освещение безопасности и эвакуационное).

В учебных помещениях в сети рабочего освещения следует предусматривать подключение светильников местного освещения.

Дежурное освещение устраивается в коридорах, рекреациях, вестибюлях, залах и включается при уборке этих помещений. Для организации дежурного освещения выделяется часть светильников рабочего и аварийного освещения, присоединенных к отдельной групповой линии.

Освещение безопасности устраивается в электрощитовых, вентиляционных камерах, тепловых узлах, насосных, киноаппаратных, медицинских пунктах и постах охраны. Номинальная освещенность на полу при таком освещении должно составлять 5 % освещенности, нормируемой для рабочего освещения, но не менее 2 лк и не более 30 лк - для ламп накаливания. Превышение вышеуказанных значений допускается при наличии соответствующих обоснований.

Эвакуационное освещение устраивается в коридорах, рекреациях, на лестницах, в плавательных бассейнах, мастерских, спортивных, актовых и обеденных залах, гардеробных. Наименьшая освещенность должна быть не менее 0,5 лк. на полу помещения и 5 лк. на воде бассейна.

В актовых, спортивных и обеденных залах, а также других помещениях, где могут одновременно находиться более 100 человек, должны устанавливаться световые указатели "Выход".

Светильники аварийного и эвакуационного освещения, а также световые указатели "Выход", подключаются к отдельной линии аварийно-эвакуационного освещения, отличной от линии рабочего освещения. При этом они должны отличаться от рабочих светильников размером, типом или иметь на корпусе соответствующие знаки.

12.6. В помещениях общеобразовательных учреждений используется в основном система общего равномерного освещения. При этом в учебных помещениях должно быть предусмотрено дополнительное освещение классной доски.

Система комбинированного (в некоторых случаях локализованного) освещения предусматривается в кабинетах преподавателей, лабораториях, мастерских, кабинетах домоводства, помещениях для кружковой работы, читальных залах. Для подключения светильников местного освещения должны быть предусмотрены штепсельные розетки.

Способы освещения помещений с повышенными архитектурно-художественными требованиями (зрительные залы, помещения для выставок, вестибюли, зальные рекреации и др.) согласовываются с архитекторами.

12.7. Для общего освещения учебных помещений общеобразовательных учреждений следует применять, как правило, люминисцентные лампы. Люминисцентные светильники в учебных помещениях должны комплектоваться пускорегулирующими аппаратами с особо низким уровнем шума. В отдельных случаях допускается применение ламп накаливания. Тип люминисцентых ламп выбирается в зависимости от назначения помещения. Некоторые характеристики люминисцентных ламп отечественного производства, рекомендуемых для применения в осветительных установках образовательных учреждений, приведены в таблице 17.

Таблица 17.

Тип ламп

Номинальный световой поток, лм*

Средняя продолжительность горения, ч.

Индекс цветопередачи

Цветовая температура К

ЛБ

3200

15000

57

3500

ЛГБ

3100

15000

47

2700

ЛХБ

3000

15000

62

4300

ЛД

2500

15000

73

6500

ЛДЦ

2200

15000

92

6000

ЛЕЦ

2190

13000

85

3900

ЛБЦТ

3000

13000

88

2700

ЛХЕ

1930

5200

93

5200

ЛДЦУФ

1660

13000

92

6000

* Для ламп мощностью 40 Вт.

В учебных помещениях при отсутствии повышенных требований к цветопередаче рекомендуются люминесцентные лампы типа ЛБ, ЛХБ, ЛЕЦ.

Учебные помещения с повышенными требованиями к цветопередаче, такие, как кабинеты черчения и изобразительного искусства, кабинеты по обработке тканей и кулинарии, рекомендуется освещать люминесцентными лампами типов ЛДЦ, ЛБЦТ, ЛЕЦ, ЛХЕ. Для освещения спален-игровых, а также рекреаций, рекомендуется люминесцентные лампы типов ЛБТЦ, ЛЕЦ. Для освещения спален-игровых, а также рекреаций, рекомендуются люминесцентные лампы типов ЛБТЦ, ЛЕЦ. Для освещения зрительных залов рекомендуются люминисцентные лампы типов ЛБ, ЛБТЦ, ЛЕЦ, допускается применение галогенных ламп накаливания.

12.8. Для общего освещения классов, кабинетов, лабораторий, мастерских для трудового обучения учащихся младших классов, мастерских по обработке тканей и кулинарии рекомендуется применять светильники рассеянного света, направляющие в верхнюю полусферу не менее 15% излучаемого светового потока (типов ЛСС04, ЛСС05, ЛПО28, ЛПП33 и ЛПО31).

Светильники общего освещения принято устанавливать рядами, параллельно светопроемам, вдоль линии зрения учащихся. Включение рядов (групп) светильников должно осуществляться раздельно, либо плавно автоматически светорегуляторами в зависимости от уровня естественного освещения.

Ряды светильников могут быть непрерывными или с разрывами. В последнем случае расстояния между светильниками в ряду не должно превышать половины высоты подвеса относительно уровня рабочей поверхности.

При общем равномерном освещении рабочих поверхностей отношение расстояния между рядами светильников к высоте подвеса следует принимать в пределах: для светильников УСП с экранирующими решетками 0,8 - 1,2; для прочих исполнений светильников УСП и светильников ЛСО - 0,2 - 0,4, ЛПО02 - 1,2 - 1,4. Расстояние от крайних рядов светильников до стен следует принимать в пределах 0,3 - 0,5 расстояния между рядами.

12.9. Для освещения классной доски рекомендуется применять специальные люминесцентные светильники с несимметричным светораспределением (типа ЛПО30-40-125). Светильники устанавливаются непрерывным рядом непосредственно над доской. Допускается применение светильников прямого света, установленных наклонно.

12.10. Для освещения кабинетов информатики и вычислительной техники следует применять потолочные светильники прямого света с непрозрачными боковинами типа УСП-35 и ЛПО46. Возможно применение светильников других типов при условии, что допустимая яркость последних, отражающихся в экране дисплея, составляет не более 2000 кд/м2.

Рабочие места учащихся должны располагаться между отдельными светильниками или линиями светильников так, чтобы линия зрения была параллельна световым линиям. При работе с дисплеями уровень горизонтальной освещенности на рабочей поверхности рекомендуется выбирать в пределах 400 - 500 лк.

12.11. Для общего освещения мастерских по обработке металла и дерева следует применять пылезащищенные светильники типов ПВЛ и ПВЛП. Светильники следует располагать равномерно по потолку или рядами вдоль линии станков и верстаков.

12.12. Для освещения спален-игровых рекомендуется использовать те же светильники, что и для учебных помещений (см. п. 12.8.). При устройстве спальни и игровой в одном помещении следует предусмотреть раздельное включение 30% светильников или систему светорегулирования.

12.13. Для освещения помещений студии живописи, рисунка и скульптуры рекомендуется использовать светильники с лампами накаливания типа СК-300. Кружковые помещения природы и техники рекомендуется освещать с помощью светильников, указанных в п. 12.8. при этом их следует располагать равномерно по потолку.

12.14. Для освещения зрительных залов следует применять потолочные светильники прямого или преимущественно прямого света, желательно четырех или шестиламповые (типов УСП, ЛПО02, ЛПО34). Светильники рекомендуется располагать равномерно по потолку помещения.

Освещение эстрады следует выполнять потолочными светильниками, используемыми для общего освещения зрительного зала. Для дополнительного освещения планшета эстрады рекомендуется предусмотреть осветительные приборы, устанавливаемые на стенах.

12.15. Для освещения спортивных залов следует применять светильники прямого или преимущественно прямого света (типов ЛПО025 или УСП), перекрытые зашитой металлической сеткой.

Светильники рекомендуется располагать равномерно по потолку или вдоль длинной стороны помещения в верхней части стен. В последнем случае светильники возможно установить наклонно. Не следует располагать светильники на торцевых стенах.

12.16. Для освещения бассейнов рекомендуется применять брызгозащитные светильники с диффузными рассеивателями прямого или преимущественно прямого света (типов ПВЛП, ПВЛ1). Светильники должны располагаться на потолка или стенах над продольными краями ванны. Места расположения светильников должны находиться в зоне, доступной для обслуживания.

12.17. Расчет количества светильников для осветительных установок в учебных помещениях следует производить с учетом норм освещения, регламентированных нормативными документами (см. п. 12.1).

12.18. Эффективная работа системы искусственного освещения возможна только при правильной эксплуатации осветительных установок. Контроль уровня освещенности в учебных помещениях следует проводить один раз в год.

Правильная эксплуатация осветительных установок заключается в соблюдении времени работы (световой календарь) и своевременном проведении регламентных работ (чистка и ремонт светильников, замена источников света). Регламентные работы рекомендуется проводить один раз в два года.

Для проведения регламентных работ должен быть предусмотрен резерв источников света, светильников, пускорегулирующей аппаратуры и электроустановочными изделиями, а для выполнения самих работ - соответствующие средства, материалы и устройства (моющие средства, щетки, губки, ванны, стремянки и пр.). В здании общеобразовательного учреждения должно быть предусмотрено помещение для хранения выше перечисленного и выделены места для проведения регламентных работ в случае съема светильников.

В учебных помещениях с повышенной влажностью или с повышенным содержанием пыли следует применять светильники соответствующего исполнения. В спортивных залах необходимо предусмотреть меры защиты светильников от механических повреждений. В этом случае рекомендуется использовать экраны из металлической сетки или перекрывать световые отверстия механически стойким светопрозрачным материалом.

В учебных помещениях с высотой потолка не более 4 м источники света заменяются по мере выхода их из строя, в помещениях высотой более 4 м рекомендуется проводить групповую замену люминесцентных ламп, которая проводится один раз в два года.

12.19. Для обслуживания светильников, расположенных на высоте более 4 м, должны предусматриваться телескопические подъемники, складные подмости или стационарные подвесные мостки, находящиеся в зоне расположения светильников. Также необходимо предусмотреть место или помещение для хранения подъемных механизмов.

Регламентные работы должны проводиться специалистом по обслуживанию осветительных установок или под его руководством.

12.20. Для подключения диапроектора, кинопроектора и других технических средств обучения в классных комнатах, учебных кабинетах, лабораториях, кружковых помещениях и помещениях для организации продленного дня должны предусматриваться три штепсельные розетки: одна у классной доски, другая на противоположной от доски стене помещения, третья - на стене противоположной окнам. В учебных помещениях должна предусматриваться одна розетка с заземлением, за исключением компьютерного класса и кабинета информатики, где предусматривается не менее пяти таких розеток.

12.21. Радиофикация в зданиях общеобразовательных учреждений должна предусматриваться от радиотрансляционных сетей населенных пунктов.

Радиоточки должны предусматриваться в учительских, кабинетах директора, заместителя директора по учебно-воспитательной работе, старшего воспитателя, организатора внеклассной и внешкольной воспитательной работы, врача, в канцелярии, киноаппаратной, радиоузле, комнате мастера, кабинете инструктора физического воспитания, технического персонала и рекреационных помещениях.

В зрительном зале, в учебно-спортивных залах, рекреационном центре, рекреационных залах следует предусматривать установки звукоусиления.

12.22. В зданиях общеобразовательных учреждений необходимо предусматривать радиоузел с двухсторонней связью, устанавливаемой в помещении радиоузла, который надлежит располагать в непосредственной близости с кабинетом директора. Абонентские пульты устанавливается в учебных кабинетах, классах, лабораториях.

12.23. Установка телефонов должна предусматриваться в кабинете директора (с параллельным аппаратом в канцелярии), в кабинетах заместителя директора по учебно-воспитательной работе, организатора внеклассной и внешкольной воспитательной работы, в учительской, столовой, кабинете врача, комнате мастера, дежурного воспитателя, комнате инструктора физического воспитания и бассейне.

12.24. Установка электрочасов должна предусматриваться в вестибюлях, рекреационных помещениях, актовом зале лекционной аудитории, обеденном и учебно-спортивном залах.

12.25. Установку электрозвонков для регламентации учебного процесса, управляемую от сигнальных электрочасов, необходимо предусматривать в вестибюлях и рекреационных помещениях.

12.26. В классах, учебных кабинетах, лабораториях, мастерских, зрительном зале, лекционной аудитории, библиотеке, кружковых помещениях и помещениях для организации продленного дня, кабинете директора, учительской необходимо предусматривать сети для приема телевизионного вещания, применения видеотехники и замкнутых систем телевидения.

12.27. В зданиях должна предусматриваться тепловая автоматическая пожарная сигнализация в следующих помещениях: классах, учебных кабинетах, кабинетах черчения и изобразительных искусств, лабораториях физики и астрономии, химии, биологии, лаборантских физики, химии, биологии, лаборантских при учебных кабинетах, учебных мастерских для учащихся 5 - 9 классов по обработке металла, древесины, комбинированной мастерской по обработке металла и древесины, инструментальной - комнате мастера, универсальной мастерской по техническим видам труда, мастерских обслуживающих видов труда по обработке тканей, по кулинарии, учительской и учебно-методическом кабинете, раздевальных при учебно-спортивных залах, снарядные, кабинете инструктора физического воспитания, эстраде, кружковых помещениях, техническом центре (радиоузел, дикторская, комната для ремонта аппаратуры, фотолаборатория), инвентарной при зрительном зале, обеденном зале, кладовой сухих продуктов, загрузочной - тарной, бельевой при кухне, хозяйственной кладовой при кухне, канцелярии, комнате технического персонала и хозяйственной кладовой, в спальнях-игровых, комнатах хозяйственного инвентаря; медицинских комнатах.

В кабинетах информатики и электронно-вычислительной техники, кладовых для хранения сырья и готовой продукции, зрительном зале, лекционной аудитории, киноаппаратных, помещениях библиотеки, вестибюлях и гардеробных с сушилкой, гардеробных, кладовых индивидуального спортивного инвентаря необходимо предусматривать автоматическую пожарную сигнализацию, реагирующую на дым.

Сигнал о срабатывании АПС выводится в помещение с круглосуточным пребыванием дежурного персонала или в ближайшую пожарную часть.

12.28. По согласованию с местными органами охраны помещения общеобразовательного учреждения, в которых сосредоточены материальные ценности, следует оборудовать охранной сигнализацией по дополнительному заданию.

12.29. В зданиях общеобразовательных учреждений должно быть предусмотрено оповещение людей о пожаре по местному радиовещанию.

Системы оповещения людей о пожаре должны обеспечить передачу звуковых и световых сигналов во все помещения здания с постоянным и временным пребыванием людей. Системы оповещения должны обеспечивать реализацию разработанных планов эвакуации и обеспечивать передачу сигналов оповещения одновременно по всему зданию, а при необходимости последовательно или выборочно в отдельные его части. Рекомендуемый способ оповещения с помощью звуковых простейших автоматических и ручных систем и световых ручных и полуавтоматических систем. Количество оповещателей, их расстановка и мощность должны обеспечивать необходимую слышимость во всех местах постоянного и временного пребывания людей. Оповещатели не должны иметь регуляторов громкости и должны включаться без разъемных устройств. Сигналы оповещения должны отличаться от сигналов другого назначения. Автоматические, полуавтоматические системы оповещения, кроме трансляции фонограммы, должны иметь прямую трансляцию речевого оповещения и управляющих команд через микрофон. Требования по электроснабжению, выбору и прокладке сетей оповещения следует принимать по аналогии с автоматической пожарной сигнализацией. Схемные решения системы оповещения должны исключать ее самопроизвольное срабатывание или случайное включение. Управление системой оповещения должно осуществляться, как правило, из помещения пожарного поста или другого помещения, отвечающего требованиям, изложенным в СНиП 2.04.09-84. Пульт управления системы оповещения должен быть оборудован связью с инженерными службами и администрацией здания, пожарной охраной и милицией.

Разработанный проект системы оповещения должен согласовываться с органами Госпожнадзора. При проектировании системы оповещения рекомендуется использовать Временные рекомендации по устройству систем оповещения людей при пожарах в зданиях и сооружениях, разработанных ГУПО МВД.

Для обеспечения возможности ориентации людей в случае задымления здания или помещений следует предусматривать установку электрофицированных указателей эвакуационных путей и выходов. Рекомендуемая высота размещения световых указателей 1,5 - 1,8 м. Световые указатели у выходов в лестничные клетки должны быть сблокированы с датчиками пожарной сигнализации. Вид, окраску и форму световых указателей следует принимать в соответствии с требованиями ГОСТ.

13. ЗАЩИТА ОТ ШУМА, ЗВУКОИЗОЛЯЦИЯ, АКУСТИКА ПОМЕЩЕНИЙ.

13.1. На территориях, прилегающих непосредственно к общеобразовательным учреждениям (ВСН 2-85) уровень звука и эквивалентный уровень звука не должен превышать 45 дБА в ночное время суток (23.00 - 7.00) и 55 дБА в дневное время суток (7.00 - 23.00).

13.2. На стадии проектирования защита помещений от внешних и внутренних источников шума должна осуществляться проведением акустических расчетов с учетом рациональной планировки тихих и шумных помещений и с соблюдением мероприятий по звуко- и виброизоляции источников шума.

Рекомендуется также пользоваться *Рекомендациями по созданию оптимального акустического режима в учебных помещениях.

* М., 1983 г., ЦНИИЭП учебных зданий Госгражданстрой.

13.3. В учебных мастерских с повышенными уровнями шума должно быть предусмотрено применение индивидуальных средств защиты - противошумные вкладыши, наушники ВЦНИИОТ, ПШ-ОО.

14. ТЕХНИКО-ЭКОНОМИЧЕСКИЕ ПОКАЗАТЕЛИ.

Основным критерием, определяющим развитие материальной среды образования, являются расчетные (нормируемые) показатели площади, главным образом удельные (на одного учащегося).

Из таблицы 18 видно, что "разброс" этих показателей в зависимости от вида зданий колеблется от 13 м2 до 36 м2 на одного учащегося. Это обусловлено степенью развития материальной среды. Школы микрорайонного уровня с минимально допустимым составом помещений в среднем должна иметь 15 м2 на учащегося, школы с дифференцированным профильным обучением - порядка 19 м2, а гимназии и лицеи - 25 - 30 м2.

В системе общеобразовательных учреждений для выполнения главной задачи воспитания разносторонней, интеллектуальной личности, главным звеном должна быть общеобразовательная школа II - III ступени с профильным обучением. В этой связи городская сеть общеобразовательных учреждений, как нового строительства, так и реконструируемого должна "подтягиваться" к некоему среднему удельному показателю площади на уровень 19 - 20 м2.

Естественно, что эти задачи должны решаться экономичным путем, а они следующие:

1. Применять в строительстве по возможности относительно крупные школы (так разница в показателях между школой однокомплектной и трехкомплектной составляет соответственно 19 и 14 м2 на одного учащегося или 22 и 16 м2).

2. Решать проблему профильного образования за счет применения кустовых-сетевых общеобразовательных школ с удельными показателями площади порядка 18 - 22 м2 (см. п. 2-IV, 7.2, 7.4), то есть решать проблему в целом на сеть зданий, а не отдельных объектов.

3. Бассейн следует планировать, как правило, на группу школ.


Таблица 18.

РАСЧЕТНАЯ (НОРМИРУЕМАЯ) ПЛОЩАДЬ ОСНОВНЫХ ВИДОВ И ТИПОВ ЗДАНИЙ ОБЩЕОБРАЗОВАТЕЛЬНЫХ УЧРЕЖДЕНИЙ

Виды зданий

Основная школа

Средняя полная общеобразовательная школа

Средняя полная общеобразовательная школа I - III ступеней с профильным обучением

Средняя полная общеобразовательная школа II - III ступеней с профильным обучением

Гимназия

Лицей

Число учащихся

275

450

275

550

825

275

550

825

550 + 550

500

750

1000

140

160

280

320

420

480

160

200

240

300

360

540

Организационно-педагогическая структура

1:1:0

2:2:0

1:1:1

2:2:2

3:3:3

1:1:1

2:2:2

3:3:3

2:2:2 +2:2:2

0:2:1

0:3:6

0:4:8

0:1:1

0:2:2

0:3:3

0:1:2

0:3:3

0:0:9

Количество классов

9

12

11

22

33

11

22

33

22 + 22

20

30

40

7

8

14

16

21

24

8

10

12

15

18

27

Суммарная расчетная площадь (без бассейна)

3650

5978

5314

3195

11036

6103

10305

13155

20128

10737

12992

18087

5287

5527

7360

7741

10912

11432

6866

7259

10274

10794

12370

14005

На 1 учащегося (без бассейна)

16,22

13,28

19,32

14,90

13,37

22,19

18,73

15,94

18,30

21,47

17,32

18,09

37,74

34,54

26,28

24,19

25,98

23,82

42,99

36,29

42,81

35,98

34,36

25,94

Суммарная расчетная площадь (с бассейном)

4561

6889

6225

9106

11947

7014

11216

14066

21039

11648

13903

18998

6198

6431

8271

8732

11823

12343

7777

8170

11185

11705

13281

14916

На 1 учащегося (с бассейном)

20,24

15,31

22,64

16,56

14,48

25,51

20,39

17,05

19,13

23,30

18,54

19,00

44,27

40,24

29,54

27,29

28,15

25,71

48,61

40,85

46,60

39,02

36,89

27,62

Примечания: 1. Показатели составлены на основе номенклатуры, составов и площадей на названные виды и типы зданий (согласованы Департаментом Образования г. Москвы) см. приложение 1.

2. Количество учащихся в школе приняты по 1 варианту расчета вместимости с закрепленными классами-кабинетами за каждой возрастной группой учащихся (согласно п. 8.1 настоящего Пособия).

3. В знаменателе указано число учащихся при наличии 12-х классов.

Приложение 1.

ПРИМЕРНЫЙ СОСТАВ И ПЛОЩАДИ ПОМЕЩЕНИЙ ОБЩЕОБРАЗОВАТЕЛЬНЫХ УЧРЕЖДЕНИЙ

Инд. функциональных групп

№№ и перечень функциональных групп помещений

Наименование помещений

Основная школа

Средняя полная школа

Средняя полная школа с профильным обучением

Средняя школа II - III ступени с профильным обучением

Гимназия

Лицей

 

Число уч-ся

225

450

275

550

825

275

550

825

550 + 550

500

750

1000

140

160

280

320

420

480

160

200

240

300

360

540

 

Орг-пед. структура

1:1:0

2:2:0

1:1:1

2:2:2

3:3:3

1:1:1

2:2:2

3:3:3

2:2:2 + 2:2:2

0:2:4

0:3:6

0:4:4

0:1:1

0:2:2

0:3:3

0:2:2

0:3:3

0:0:9

 

Кол-во классов

9

18

11

22

33

11

22

33

22 + 22

20

30

40

7

8

14

16

21

24

8

10

12

15

18

27

 

Площадь м2 и число помещений

 

1

2

3

4

5

6

7

8

9

10

11

12

13

14

15

16

17

18

19

20

21

 

Учебная группа помещений

 

 

1. 1-е классы

 - Класс, расширенный с учетом организации групповых занятий

76

152

2´76

76

152

2´76

228

3´76

76

152

2´76

228

3´76

304

4´76

 

 

 

 

 

 

 

 

 

 

 

 

- Спальня-игровая

62

124

2´62

62

124

2´62

186

3´62

62

124

2´62

186

3´62

248

4´62

 

 

 

 

 

 

 

 

 

 

 

 

- рекреация зального типа

60

100

60

100

150

60

100

150

200

 

 

 

 

 

 

 

 

 

 

У-КНш

2. Начальные (2 - 4) классы

- Класс, с возможностью организации групповых, индивидуальных и игровых занятия

278

3´76

456

6´76

228

3´76

456

6´76

684

9´76

228

3´76

456

6´76

684

9´76

912

12´76

 

 

 

 

 

 

 

 

 

 

 

 

- Универсальные помещения, в т.ч. для организации продленного дня

60

120

2´60

60

120

2´60

180

3´60

60

120

2´60

180

3´60

240

4´60

 

 

 

 

 

 

 

 

 

 

 

 

- Комнаты тихих игр и уединения

 

 

 

 

 

30

60

90

120

 

 

 

 

 

 

 

 

 

 

 

 

- Комната труда, моделирования, и технической игрушки, изобразительного искусства, природы

108

108

108

108

108

120

120

120

240

2´120

 

 

 

 

 

 

 

 

 

 

 

 

- Рекреация (зального типа)

144

288

144

288

342

144

288

342

576

 

 

 

 

 

 

 

 

 

 

 

 

- учительская-методический кабинет

30

60

30

60

90

30

60

90

120

 

 

 

 

 

 

 

 

 

 

У-КОШ

3. Классы-кабинеты (5 - 9) основной школы

- Класс-учебный кабинет, рассчитанный на организацию фронтальных, групповых и индивидуальных форм работы

380

5´76

760

10´76

380

5´76

760

10´76

1140

15´76

380

5´76

760

10´76

1140

15´76

1520

20´76

760

10´76

1140

15´76

1520

20´76

380

5´76

760

10´76

1140

15´76

1520

20´76

760

10´76

 

 

 

 

- Ресурсный центр

 

 

 

 

 

60

120

180

240

120

180

240

60

120

180

240

48

72

 

 

 

- Рабочие комнаты для занятий по интересам

 

 

 

 

 

50

100

150

200

2´100

100

150

200

50

100

150

100

150

 

 

- Рекреация (зального типа)

250

500

250

500

750

250

500

750

1000

500

750

1000

250

500

750

500

750

 

 

У-КСШ

4. Учебные кабинеты (10 - 11) старшей школы

- Кабинеты универсального назначения (основные в зависимости от профиля обучения)

 

 

152

2´76

304

4´76

456

6´76

152

2´76

304

4´76

456

6´76

608

8´76

608

8´76

212

12´76

1216

16´76

152

2´76/

228

3´76

304

4´76/

456

6´76

456

6´76/

684

9´76

304

4´76/

456

6´76

456

6´76/

684

9´76

1368

18´76/

2052

27´76

 

- Комнаты индивидуальных занятий

 

 

 

 

 

30

60

90

120

120

180

240

30/45

60/90

90/135

60/90

90/135

270/415

 

- Ресурсный центр

 

 

 

 

 

20

40

60

80

80

120

160

20/30

40/60

60/90

40/60

60/90

180/270

 

- Резервация

 

 

100

200

300

100

200

300

400

400

600

800

100/200

200/300

300/400

200/300

300/400

720/1080

 

У-СК

5. Специализированные кабинеты основной и старшей школы

- Учебные кабинеты по естественным наукам (физика, химия, биология) в составе:

 

 

 

 

 

 

 

 

 

 

 

 

 

 

 

 

 

 

 

- лаборатория

 

 

228

3´76

228

3´76

228

3´76

228

3´76

228

3´76

228

3´76

228

3´76

228

3´76

228

3´76

228

3´76

228

3´76

228

3´76

228

3´76

228

3´76

228

3´76

228

3´76

 

- практикум

 

 

 

150

3´50

150

3´50

150

3´50

300

6´50

300

6´50

600

12´50

300

6´50

300

6´50

600

12´50

 

 

 

150

3´50

300

6´50

450

9´50

 

- лаборантская-практикум

108

3´36

108

3´36

108

3´36

 

 

 

 

 

 

 

 

 

 

 

 

108

3´36

216

6´36

324

9´36

 

 

 

- лаборантская

 

 

 

 

54

3´18

 

54

3´18

54

3´18

108

6´18

54

3´18

54

3´18

54

3´18

54

3´18

54

3´18

54

3´18

 

 

 

 

- кабинет естествознания

76

76

 

 

 

 

 

 

 

 

 

 

 

 

 

 

 

 

 

- Специализированные кабинеты:

 

 

 

 

 

 

 

 

 

 

 

 

 

 

 

 

 

 

 

- иностранного языка

80

2´40

160

4´40

160

4´40

240

6´40

360

9´40

160

4´40

240

6´40

360

9´40

480

12´40

240

6´40

360

9´40

480

12´40

320

8´40

480

12´40

400

10´40

240

6´40

320

8´40

400

10´40

 

- информатики и вычислительной техники

90

90

90

90

90

90

90

90

180

2´90

90

90

90

90

90

90

90

90

90

 

- технического черчения и рисования

76

76

76

76

76

76

100

100

100

100

100

100

76

100

100

100

200

2´100

300

3´100

 

- компьютерный класс

 

 

 

 

 

72

144

2´72

216

3´72

288

4´72

144

2´72

216

3´72

288

4´72

144

2´72

216

3´72

288

4´72

144

2´72

216

3´72

288

4´72

 

- профильного обучения

 

 

 

 

 

 

 

 

 

 

108

216

2´108

 

108

216

2´108

216

2´108

324

3´108

432

4´108

 

У-ТМ

6. Помещения изучения технологий (трудовое обучение)

- Мастерская по обработке металла и дерева (универсальная)

90

90

 

 

 

 

 

 

 

 

 

 

90

90

90

 

 

 

 

- Мастерская по обработке металла и технологии

 

 

90

90

90

90

90

90

90

90

90

90

 

 

 

108

108

108

 

- Инструментальная

18

18

18

18

24

18

18

24

24

18

24

24

18

18

18

36

36

36

 

- Мастерская по обработке и дерева и технологии

 

 

90

90

90

90

90

90

90

90

90

90

 

 

 

90

90

90

 

 

 

- Мастерская по обработке тканей и технологии

90

90

90

90

90

108

108

108

108

108

108

108

90

90

90

108

108

108

 

- Кулинария

50

50

50

50

50

50

50

50

50

50

50

50

50

50

50

50

50

50

 

- Домоводство с бытовой техникой

 

 

 

90

90

90

90

90

90

90

90

90

 

 

90

90

90

90

 

- Кабинет изучения технологий

90

90

90

90

90

90

90

90

90

90

90

90

 

 

 

90

108

108

 

- Универсальная мастерская по техническим видам труда

 

 

 

 

 

108

108

108

108

108

108

108

 

 

 

 

108

108

 

- Автодело

 

 

 

 

 

 

108

108

216

2´108

216

2´108

216

2´108

216

2´108

 

 

 

108

216

2´108

216

2´108

 

- Электрорадиотехнология

 

108

108

108

108

108

108

108

108

108

108

108

108

108

108

108

108

108

 

- Электротехника

 

 

 

 

 

 

 

108

108

108

108

108

 

 

 

108

108

108

 

- Радиоэлектроника

 

 

 

 

 

 

108

108

108

108

108

108

 

 

 

108

108

108

 

- Кабинет машинописи и основ делопроизводства

 

 

 

 

 

80

80

80

80

80

80

80

80

80

80

80

80

80

 

У-ЦИБ

7. Группа центра информации - библиотека

- Библиотека - справочно-информационный центр с зонами читательских мест

80

100

115

235

325

115

235

325

440

235

325

440

115

235

325

235

325

440

 

 

 

- Технический центр

72

72

72

72

72

72

72

72

72

72

72

72

72

72

72

72

72

72

 

- Методический кабинет с учительской и комнатой отдыха (5 - 11 классы)

 

 

60

90

120

60

90

120

180

2´90

90

120

180

60

90

120

60

90

120

 

У-ВА

8. Вестибюльная группа учебных помещений, администрация

- Кабинет директора

25

25

25

25

25

32

32

32

32

32

40

40

32

32

40

32

40

40

 

- Каб. замдиректора по учебно-воспитательной работе

10

10

10

10

10

10

10

10

20

2´10

10

20

2´10

20

2´10

10

10

20

10

20

20

 

- Каб. организатора внеклассной и внешкольной работы

12

12

12

12

12

12

12

12

24

2´12

12

24

2´12

24

2´12

12

12

24

24

24

24

 

- Каб. замдиректора по адм-хоз. работе

10

10

10

10

10

10

10

10

10

10

10

10

10

10

10

10

10

10

 

- Канцелярия

12

12

12

12

12

12

12

12

12

12

12

12

12

12

12

12

12

12

 

- Ком. техперсонала

12

12

12

12

12

12

12

12

24

2´12

12

24

2´12

24

2´12

12

12

24

24

24

24

 

- Кл. уборочного инвентаря

8

8

8

8

8

8

8

8

16

2´8

8

8

8

8

8

8

8

8

8

 

- Кабинет врача

21

21

21

21

21

21

21

21

21

21

21

21

21

21

21

21

21

21

 

- Процедурная

 

 

16

16

16

16

16

16

16

16

16

16

16

16

16

16

16

16

 

- Кабинет зубного врача

 

 

12

12

12

12

12

12

12

12

12

12

12

12

12

12

12

12

 

 

 

- Санузлы учащихся

34

68

42

83

124

42

83

124

165

75

113

150

21/24

42/48

63/72

24/30

36/45

54/81

 

- Санузлы персонала

10

10

10

10

20

10

10

20

20

2´10

10

10

20

10

10

20

10

10

20

 

- Вестибюль-гардероб

79

158

97

193

289

97

193

289

386

2´193

175

263

350

49/56

98/112

147/168

56/70

84/105

126/189

 

Общешкольная группа помещений

 

О-РЦ

9. Рекреационный центр (центр досуга)

- Рекреационный центр в составе:

 

 

 

 

 

 

 

 

 

 

 

 

 

 

 

 

 

 

 

- форума

 

 

 

 

 

 

 

 

1650

750

1125

1500

 

 

720

 

450

810

 

- вестибюля-гардероба

по расчету

 

- кабинета директора

 

 

 

 

 

 

 

 

25

25

25

25

 

 

25

 

25

25

 

- кабинета коменданта

 

 

 

 

 

 

 

 

25

25

25

25

 

 

25

 

25

25

 

- канцелярия-бухгалтерия

 

 

 

 

 

 

 

 

18

18

18

18

 

 

18

 

18

18

 

- замдиректора по воспитательной работе

 

 

 

 

 

 

 

 

8

8

8

8

 

 

8

 

8

8

 

- ком. дежурного персонала

 

 

 

 

 

 

 

 

12

12

12

12

 

 

12

 

12

12

 

- пом. инженера и техсотрудников

 

 

 

 

 

 

 

 

12

12

12

24

2´12

 

 

12

 

12

12

 

- пом. рабочих с подсобкой

 

 

 

 

 

 

 

 

12

12

12

12

 

 

12

 

12

12

 

- санузлы

 

 

 

 

 

 

 

 

165

75

113

150

 

 

72

 

45

81

 

О-ЗЗ

10. Группа зрительного зала

- Зрительный зал (мест

площадь)

153

107

302

211

187

131

374

262

590

413

187

131

374

262

590

413

748

524

340

238

510

357

640

448

98

69/

112

78

196

137/

224

157

294

206/

336

235

112

78/

150

105

168

118/

210

147

252

177/

378

265

 

 

 

- эстрада

72

72

72

72

180

72

180

108

180

108

180

108

180

108

180

108

180

108

 

 

с учетом использования для хореографии, оркестра и театральных представлений

 

- Лекционная аудитория

 

 

 

 

 

100

100

100

100

100

100

100

100

100

100

100

100

100

 

- Киноаппаратная

27

27

27

27

27

27

27

27

27

27

27

27

27

27

27

27

27

27

 

- Кладовая-инвентарная

12

12

12

12

36

12

36

36

36

36

36

36

36

36

36

36

36

36

 

- артистические

 

 

 

18

30

18

30

30

30

30

30

30

30

36

36

36

36

36

 

- технический центр

24

24

24

48

48

48

48

48

48

48

48

48

48

48

48

48

48

48

 

О-ХВ

11. Группа свободного творчества во внеучебное время

- Группа студий изобразительного искусства

108

3´36

108

3´36

108

3´36

108

3´36

108

3´36

108

3´36

108

3´36

108

3´36

108

3´36

108

3´36

108

3´36

108

3´36

108

3´36

108

3´36

108

3´36

108

3´36

108

3´36

108

3´36

 

О-ТТ

 

О-БЮ

- Кабинет эстетики

 

 

 

 

 

 

80

80

80

80

80

80

80

80

80

80

80

80

 

- Хореография и драмкружок

90

90

90

108

108

90

108

108

108

108

108

108

108

108

108

108

108

108

 

- Раздевальные при студии хореографии

18

18

18

40

40

18

40

40

40

40

40

40

40

40

40

40

40

40

 

- Музыка и пение

50

50

50

50

50

50

100

100

100

100

100

100

100

100

100

100

100

100

 

- Пом. хранения муз. инструментов

 

 

 

 

 

 

40

40

40

40

40

40

 

 

 

 

 

 

 

- Студия изобразительного искусства (универсальная)

 

 

 

 

 

 

184

144+40

184

144+40

368

2´144+80

184

144+40

368

2´144+80

552

3´144+120

184

144+40

368

2´144+80

552

3´144+120

 

184

144+40

184

144+40

 

- Кружок тех-творчества

 

 

90

90

90

108

216

216

216

216

216

216

 

 

 

108

216

216

 

 

 

- Фотокиностудия

 

 

36

36

54

36

54

54

54

54

54

54

36

54

54

54

54

54

 

- Группа помещений юннатско-биологической деятельности

72

2´36

72

2´36

72

2´36

90

90

90

180

180

180

180

180

180

90

90

90

90

180

2´90

180

2´90

 

О-СЗ

12. Группа спортивно-оздоровительная

- Спортзалы

288

576

2´288

648

828

628+180

1116

648+288+180

648

936

648+288

1116

648+288+180

1764

2´648+288+180

936

648+288

1116

648+288+180

1764

2´648+288+180

576

2´288

648

936

648+288

576

2´288

936

648+288

936

648+288

 

- Раздевальные

42

2´21

126

6´21

84

4´21

168

8´21

252

12´21

84

4´21

168

8´21

210

10´21

252

12´21

168

8´21

210

10´21

252

12´21

126

6´21

84

4´21

168

8´21

126

6´21

126

6´21

168

8´21

 

- Инвентарная (снарядная)

16

32

2´16<

32

48

32+16

64

32+2´32

32

48

32+16

64

32+2´32

64

32+2´32

48

32+16

64

32+2´32

80

2´(32+16)

48

32+16

48

32+16

48

32+16

48

32+16

48

32+16

48

32+16

 

- Пом. хранения уборочного инвентаря

4

4

4

4

4

4

4

4

8

4´2

4

4

4

4

4

4

4

4

4

 

- Комната инструктора

 

 

20

30

20+10

40

2´20

20

40

2´20

30

20+10

40

2´20

30

20+10

40

2´20

40

2´20

30

20+10

30

20+10

30

20+10

30

20+10

30

20+10

30

20+10

 

О-З

13. Столовая

- Обеденный зал с раздаточной и местами персонала

122

243

149

297

446

149

297

446

594

295

405

540

84/96

168/192

252/288

96/120

140/180

216/324

 

- кухонный блок с подсобными помещениями

100

127

127

185

243

127

185

243

370

185

243

370

127

185

243

127

185

243

 

О-В

14. Вестибюльная групп общественной зоны

- Вестибюль с гардеробом

137

228

168

273

307

132

240

331

409

280

389

477

134/142

179/194

250/272

142/162

190/212

269/349

 

Итого расчетная площадь

3650

5978

5314

8195

11036

6103

10305

13155

20128

10737

12992

18087

5287

5527

7360

7741

10912

11432

6866

7259

10274

10794

123

140

 

на 1 уч-ся

16,23

13,28

19,32

14,90

13,37

22,19

18,73

15,94

18,30

23,47

17,32

18,09

37,76

34,54

26,38

24,39

25,98

23,82

42,92

36,29

42,81

35,98

34,3

25,5

 

О-Б

15. Бассейн

- Бассейн

600

 

 

 

 

 

 

 

 

 

 

 

 

 

 

 

 

 

 

 

 

- Раздевальные со шкафами, душевыми, санузлами

260

4´65

 

 

 

 

 

 

 

 

 

 

 

 

 

 

 

 

 

 

- Инструкторская-кладовая спортинвентаря

18

12+6

 

 

 

 

 

 

 

 

 

 

 

 

 

 

 

 

 

 

- Пом. медсестры с лабораторией анализа воды

12

2´6

 

 

 

 

 

 

 

 

 

 

 

 

 

 

 

 

 

 

- бытовые помещения

9

 

 

 

 

 

 

 

 

 

 

 

 

 

 

 

 

 

 

 служебные помещения

12

 

 

 

 

 

 

 

 

 

 

 

 

 

 

 

 

 

 

 

Итого с учетом бассейна

4561

6889

6225

9106

11947

7014

11216

14066

21039

11648

13903

18998

6198

6438

8221

8732

11823

12343

7777

8170

11185

11705

1321

1491

 

 

на 1 уч-ся

20,27

15,31

22,64

16,56

14,48

25,51

20,39

17,05

19,13

23,30

18,54

19,00

44,27

40,24

29,54

27,29

28,15

25,71

41,61

40,85

46,60

39,02

36,8

27,6

 

 

Примечания: К общешкольному блоку типа "А" относятся группы общешкольных помещений общеобразовательных школ.

К общешкольному блоку типа "Б" относятся группы общешкольных помещений общеобразовательных школ с профильным обучением.

К общешкольному блоку типа "В" относятся группы общешкольных помещений в составе которых имеется рекреационный центр (О-РЦ).

В т.ч. для учащихся младшего возраста, информационного пункта, мест для работы с каталогами, фонда открытого доступа, фонда закрытого хранения общешкольного ресурсного центра (состоящего из зоны комплектования и обработки литературы и специализированного фонда хранения) индивидуальных занятий с ТСО.


Рисунок 1.

ПРИНЦИПЫ ОРГАНИЗАЦИИ СЕТИ ОБЩЕОБРАЗОВАТЕЛЬНЫХ УЧРЕЖДЕНИЙ

а - основная школа, тяготеющая к III ступени или профильному учреждению

б - средняя полная школа I, II и III ступеней

в - средняя полная школа I, II и III ступеней с профильным обучением

г - школа III ступени, обслуживающая группу основных школ

д - средняя школа II и III ступеней с профильным обучением, обслуживающая группу начальных и основных школ

е - гимназия в составе II и III ступеней, обслуживающая группу начальных школ

ж - лицей в составе III ступени, обслуживающий группу основных школ

Н - начальная школа

НО - основная школа

НО/2 - основная школа (неполный комплект)

НОС - средняя школа

С - старшая школа

Л - лицей

ОСП - основная и старшая школа с профильным обучением

НОСП - средняя школа с профильным обучением

Г - гимназия

ВУ - внешкольное учреждение

Рисунок 2.

КОНЦЕПЦИЯ ФУНКЦИОНАЛЬНОГО РЕШЕНИЯ ОБЩЕОБРАЗОВАТЕЛЬНОЙ ШКОЛЫ ПЕРСПЕКТИВНОЙ МОДЕЛИ

Объемная структура

учебная группа + общешкольный центр

1:2:4

2:2:2

гибкое и автономное функционирование школ 1, 2 и 3 ступени обучения

O - зимние садики

- - автономная система входов

 - пространственная связь между залами

 - архитектурное ядро - форум

Рисунок 3.

ПРИНЦИПЫ РЕШЕНИЯ КОМПАКТНЫХ СЕКЦИЙ

учебные секции с зальными рекреациями (6, 4, 3, 2 класса)

а - технологии

б - специализированные кабинеты с ресурсным центром

в - свободное пространство с ресурсным центром

г - естественных наук

Рисунок 4.

ВАРИАНТЫ КОМПОЗИЦИОННЫХ РЕШЕНИЙ ШКОЛ С ВЫДЕЛЕННЫМИ БЛОКАМИ ОБЩЕШКОЛЬНЫХ ПОМЕЩЕНИЙ ДЛЯ УЧАЩИХСЯ И НАСЕЛЕНИЯ (по материалам конкурса)

Рисунок 5.

МЕТОДИКА ПРОЕКТИРОВАНИЯ ОБЩЕОБРАЗОВАТЕЛЬНЫХ ШКОЛ С ВЫДЕЛЕННЫМИ БЛОКАМИ ОБЩЕШКОЛЬНЫХ ПОМЕЩЕНИЙ

Рисунок 6.

ИДЕЯ - КОНЦЕПЦИЯ ГИБКОЙ ПРОСТРАНСТВЕННОЙ СТРУКТУРЫ ОБЩЕОБРАЗОВАТЕЛЬНОГО УЧРЕЖДЕНИЯ

Рисунок 7.

СИСТЕМА УНИВЕРСАЛЬНЫХ ПОМЕЩЕНИЙ, ОСНОВАННАЯ НА ПЛАНИРОВОЧНОМ МОДУЛЕ 9 М.

 

 

Помещения начальной школы

Классные помещения

 

 

 

 

·

 

Спальня-игровая (комната отдыха)

 

 

 

 

·

 

Универсальное помещение для групп продленного дня

 

 

 

 

·

 

Комната труда, моделирования и технической игрушки, изобразительного искусства, природы

 

 

 

 

·

 

Классы и кабинеты основной и старшей школы

Кабинет универсального назначения

 

 

 

 

·

 

Комната индивидуальных занятий

·

·

 

 

 

 

Лаборатория естественных наук (физики, химии, биологии)

 

 

 

 

·

 

Лаборантская

·

 

 

 

 

 

Лаборантская-практикум

 

·

 

 

 

 

Практикум

 

 

·

 

 

 

Кабинет иностранного языка

 

 

·

 

 

 

Компьютерный класс

 

 

 

 

·

 

Кабинет технического черчения

 

 

 

 

·

 

Помещения обучения технологии и трудового обучения

Мастерская по обучению технологии и обработке металла

 

 

 

 

 

·

Мастерская по обучению технологии и обработке дерева

 

 

 

 

 

·

Мастерская по обучению технологии и обработке ткани

 

 

 

 

·

 

Кабинет домоводства (изучение кулинарии и бытовой электроники)

 

 

 

 

·

 

Помещения художеств. воспитания

Студия изобразительного искусства

 

 

 

 

·

 

Класс пения и музыки

 

 

 

·

 

 

Студия хореографии и драмкружок

 

 

 

 

·

 

Универсальное помещение технического творчества

 

 

 

 

·

 

ПРИМЕРЫ ОРГАНИЗАЦИИ ПЛАНОВ УЧЕБНЫХ ПОМЕЩЕНИЙ, ОСНОВАННЫХ НА ПЛАНИРОВОЧНОМ МОДУЛЕ 9 м.

Рисунок 8.1

КЛАСС НАЧАЛЬНОЙ ШКОЛЫ

Рисунок 8.2.

СПАЛЬНЯ - ИГРОВАЯ (КОМНАТА ОТДЫХА)

Рисунок 8.3.

УНИВЕРСАЛЬНОЕ ПОМЕЩЕНИЕ ДЛЯ ГРУПП ПРОДЛЕННОГО ДНЯ

Рисунок 8.4.

КОМНАТА ТРУДА, МОДЕЛИРОВАНИЯ И ТЕХНИЧЕСКОЙ ИГРУШКИ, ИЗОБРАЗИТЕЛЬНОГО ИСКУССТВА, ПРИРОДЫ

Рисунок 8.5.

КАБИНЕТ УНИВЕРСАЛЬНОГО НАЗНАЧЕНИЯ

Рисунок 8.6.

КОМНАТЫ ИНДИВИДУАЛЬНЫХ ЗАНЯТИЙ

Рисунок 8.7.

ЛАБОРАТОРИЯ ФИЗИКИ С ЛАБОРАНТСКОЙ

Рисунок 8.8.

ЛАБОРАНТСКАЯ - ПРАКТИКУМ, ПРАКТИКУМ ПО ФИЗИКЕ

Рисунок 8.9.

ЛАБОРАТОРИЯ С ЛАБОРАНТСКОЙ

Рисунок 8.10.

ЛАБОРАНТСКАЯ-ПРАКТИКУМ, ПРАКТИКУМ ПО БИОЛОГИИ

Рисунок 8.11.

ЛАБОРАТОРИЯ ХИМИИ С ЛАБОРАНТСКОЙ

Рисунок 8.12.

ЛАБОРАНТСКАЯ-ПРАКТИКУМ, ПРАКТИКУМ ПО ХИМИИ

Рисунок 8.13.

КОМПЬЮТЕРНЫЙ КЛАСС

Рисунок 8.14.

КАБИНЕТ ИНОСТРАННОГО ЯЗЫКА

Рисунок 8.15.

КАБИНЕТ ТЕХНИЧЕСКОГО ЧЕРЧЕНИЯ

Рисунок 8. 16.

УНИВЕРСАЛЬНОЕ ПОМЕЩЕНИЕ ТЕХНИЧЕСКОГО ТВОРЧЕСТВА

Рисунок 8.17.

МАСТЕРСКАЯ ПО ИЗУЧЕНИЮ ТЕХНОЛОГИИ И ОБРАБОТКЕ МЕТАЛЛА

Рисунок 8.18.

МАСТЕРСКАЯ ПО ИЗУЧЕНИЮ ТЕХНОЛОГИИ И ОБРАБОТКЕ ДРЕВЕСИНЫ

Рисунок 8.19.

МАСТЕРСКАЯ ПО ИЗУЧЕНИЮ ТЕХНОЛОГИИ И ОБРАБОТКЕ ТКАНИ

Рисунок 8.20.

КАБИНЕТ ДОМОВОДСТВА (КУЛИНАРИИ И БЫТОВОЙ) ЭЛЕКТРОНИКИ

Рисунок 8.21.

СТУДИЯ МУЗЫКИ И ПЕНИЯ

Рисунок 8.22.

ПРИМЕРНАЯ НОМЕНКЛАТУРА МЕБЕЛИ И ОБОРУДОВАНИЯ к рис. 8.1 - 8.21

1 - 5

Стол ученический

6 - 15

Стол ученический специализированный ученический

16 - 21

Стол демонстрационный - для опытов

22 - 27

Стол учителя специализированный

28 - 37

Стол ученический специализированный для практических работ

38 - 43

Подставки для ТСО

44 - 51

Стулья специализированные

52 - 77

Шкафы разных модификаций

78 - 83

Стеллажи и подставки

84 - 92

Доски классные разных модификаций

93 - 98

Оборудование переносное

99 - 116

Станки и оборудование для изучения технологий

117 - 122

Бытовые мебель и оборудование кабинетов

ПРИМЕР ОБЪЕМНО-ПЛАНИРОВОЧНОГО РЕШЕНИЯ

ЭКСПЕРИМЕНТАЛЬНЫЙ ПРОЕКТ ШКОЛЫ НА 22 - 24 КЛАССА ПЕРСПЕКТИВНОЙ МОДЕЛИ ДЛЯ г. МОСКВЫ

(по материалам московского конкурса 1995 г. первая премия)

(арх. Степанов В.И., Степанов А.В., Безсонова Г.А.)

Рисунок 9.1.

ПЛАН 1-го ЭТАЖА

Рисунок 9.2.

ПЛАН 2-го ЭТАЖА

Рисунок 9.3.

ОБЩИЙ ВИД (АКСОНОМЕТРИЯ)




Rambler's Top100 Яндекс цитирования
  Copyright © 2008-2025, www.docload.ru