Бесплатная библиотека стандартов и нормативов www.docload.ru

Все документы, размещенные на этом сайте, не являются их официальным изданием и предназначены исключительно для ознакомительных целей.
Электронные копии этих документов могут распространяться без всяких ограничений. Вы можете размещать информацию с этого сайта на любом другом сайте.
Это некоммерческий сайт и здесь не продаются документы. Вы можете скачать их абсолютно бесплатно!
Содержимое сайта не нарушает чьих-либо авторских прав! Человек имеет право на информацию!

 

МИНИСТЕРСТВО ВНУТРЕННИХ ДЕЛ
 РОССИЙСКОЙ ФЕДЕРАЦИИ

 

ГОСУДАРСТВЕННАЯ ПРОТИВОПОЖАРНАЯ СЛУЖБА

 

НОРМЫ ПОЖАРНОЙ БЕЗОПАСНОСТИ

 

ВАГОНЫ МЕТРОПОЛИТЕНА.

ТРЕБОВАНИЯ ПОЖАРНОЙ БЕЗОПАСНОСТИ

 

НПБ 109-96

 

 

МОСКВА

1997

 

Разработаны Государственным научно-исследовательским институтом вагоностроения (ГосНИИВ), Тверским институтом вагоностроения (ТИВ), Мосметрополитеном, Главным управлением Государственной противопожарной службы (ГУГПС) МВД России.

Внесены и подготовлены к утверждению отделом организации государственного пожарного надзора ГУГПС МВД России.

Утверждены главным государственным инспектором Российской Федерации по пожарному надзору.

Введены в действие приказом ГУГПС МВД России от 27.06.1996 г.    36.

Дата введения в действие 01.01.1997 г.*

Вводятся впервые

 

 


* Пункты 2.3.2 (в части уплотнений дверей и окон), 2.3.3 (в части облицовки стен), 2.5 (в части пожарной нагрузки 35 кг/м2), 5.9, 6.3 и 7.6 настоящих норм вводятся с 01.01.1998 г.

 

МИНИСТЕРСТВО ВНУТРЕННИХ ДЕЛ

РОССИЙСКОЙ ФЕДЕРАЦИИ

 

ГОСУДАРСТВЕННАЯ ПРОТИВОПОЖАРНАЯ СЛУЖБА

 

 

НОРМЫ ПОЖАРНОЙ БЕЗОПАСНОСТИ

 

 

ВАГОНЫ МЕТРОПОЛИТЕНА.

ТРЕБОВАНИЯ ПОЖАРНОЙ БЕЗОПАСНОСТИ

 

Underground vans. Fire Safety Reguirements

 

 

НПБ 109-96

 

1. Вводная часть

1.1. Настоящие нормы разработаны для повышения уровня безопасности пассажиров и обслуживающего персонала, а также для снижения материальных потерь в результате загораний вагонов и распространяются на проектирование и строительство новых вагонов, а также на реконструкцию (модернизацию), капитальный ремонт и эксплуатацию вагонов инвентарного парка и являются обязательными для всех юридических и физических лиц.

1.2. Вагоны метрополитена, построенные до введения настоящих норм, не прошедшие модернизацию и капитальный ремонт, должны соответствовать техническим условиям (ТУ) и существующей конструкторской документации на эти вагоны.

1.3. При внеплановых видах ремонта вагонов, построенных до введения настоящих норм, запрещается снижать их пожарную безопасность путем замены материалов, проводов и аппаратов на более пожароопасные.

1.4. Пожарная безопасность вагонов* должна быть обеспечена системами предотвращения пожара и противопожарной защиты, в том числе организационно-техническими мероприятиями на основе выполнения требований:

Федерального закона “О пожарной безопасности”;

Правил пожарной безопасности в Российской Федерации (ППБ 01-93);

ГОСТ 12.1.004-91;

ГОСТ, ОСТ, ТУ, норм проектирования и других нормативно-технических документов, утвержденным в установленном порядке.

1.5. Настоящие требования должны пересматриваться не реже одного раза в 5 лет.

------------------

* Определения основных терминов и числовые значения показателей горючести и токсичности, коэффициента дымообразующей способности и индекс распространения пламени приведены в ГОСТ 12.1.004-91 и ГОСТ 12.1.044-89.

2. Требования к материалам и конструкциям для внутренней отделки

2.1. На неметаллические материалы, применяемые во внутреннем оборудовании вагонов, должны быть документально подтвержденные испытаниями пожарно-технические характеристики, включающие в обязательном порядке значения горючести, распространения пламени, дымообразующей способности и токсичности газообразных продуктов горения в соответствии с ГОСТ 12.1.044-89..

Определение показателей пожарной опасности материалов должно проводиться только организациями, аттестованными и имеющими лицензии на данный вид работ.

2.2. Из материалов одной группы горючести выбирают материалы, имеющие более низкие показатели по дымообразующей способности и токсичности.

2.3. Предназначенные для использования в вагонах материалы (в зависимости от их показателей горючести) следует применять для изготовления следующих деталей и конструкций:

2.3.1. Потолки, вентиляционные решетки, диффузоры и воздуховоды вентиляционных установок, каркасы сидений и спинок диванов, ящики аккумуляторных батарей, огнезадерживающие перегородки между аппаратным отсеком, кабиной управления и пассажирским салоном, рассеиватели светильников пассажирского салона (для вновь проектируемых вагонов) должны быть изготовлены из негорючих материалов.

*2.3.2. Настилы полов, уплотнения дверей и окон должны быть изготовлены из трудногорючих (трудносгораемых) материалов. При этом показатели токсичности не должны быть менее 40 г/м3, а коэффициент дымообразования не более 1000 м2/кг.

*2.3.3. Облицовка стен, покрытия полов, обивки сидений и спинок диванов должны быть выполнены из материалов, не распространяющих или медленно распространяющих пламя. При этом их показатели токсичности не должны быть менее 40 г/м3, а коэффициент дымообразования не более 1000 м2/кг.

2.4. Деревянные детали должны быть подвергнуты глубокой пропитке или другим методам огнезащиты, обеспечивающим их трудногорючесть. Пропитка не должна ухудшать диэлектрических свойств деревянных клиц, соединительных реек и бруса токоприемника.

Перечень применяемых деревянных деталей для каждой модели вагонов согласовывается с заказчиком.

*2.5. Расчетная масса приведенной пожарной нагрузки вагона не должна превышать 40 кг/м2, а с 01.01.1998 г. 35 кг/м2. Методика расчета приведенной пожарной нагрузки приведена в приложении 1 настоящих норм.

2.6. Конструкция диванов не должна распространять горение при испытаниях по методике, приведенной в приложении 2 настоящих норм.

3. Требования к нагревательным приборам

3.1. Конструкция электронагревательных приборов и их установка в кабине управления и пассажирском салоне должны удовлетворять требованиям Правил устройства электроустановок, а также указаниям по эксплуатации, приведенным в инструкции завода-изготовителя этих приборов.

3.2. Поверхности стен и полов в зоне установки электронагревательных приборов должны быть экранированы металлическим листом, уложенным на негорючий термоизоляционный материал толщиной не менее 2 мм.

Расстояния от теплоизлучающих поверхностей электронагревательных приборов до ближайших конструктивных элементов должны быть выбраны с учетом нагревания последних в условиях эксплуатации не выше 60 оС.

3.3. Включенное состояние системы отопления вагона должно отображаться световой сигнализацией в кабине управления.

3.4. В вагонах должны применяться электронагревательные приборы только в защищенном (закрытом) исполнении. Каждый электронагревательный прибор должен иметь автоматическую защиту от превышения заданной температуры и величины допустимого тока.

Температура на поверхности приборов должна быть не выше 95 оС.

3.5. Конструкции контактных соединений приборов и комплектующих изделий должны обеспечивать требования пожарной безопасности.

4. Требования к электрооборудованию и его монтажу

4.1. Электрооборудование должно отвечать требованиям ГОСТ 2582-81, ГОСТ 9219-88, а также требованиям безопасности по ГОСТ 12.1.007-75 и ГОСТ 12.1.004-91.

Допускается применение электрооборудования по ГОСТ, ОСТ, ТУ или стандартам различных государств по согласованию с заказчиком в установленном порядке. При этом показатели, влияющие на пожарную безопасность их, должны быть не менее аналогичных показателей отечественного электрооборудования, что должно быть подтверждено сертификатом соответствия.

4.2. Параметры применяемых электрических аппаратов должны соответствовать напряжению бортовой сети вагона.

4.3. Конструкции аппаратов, узлов и электропроводов вновь изготовленных вагонов должны обеспечивать сопротивление изоляции цепей электрооборудования, МОм, не менее*:

---------------

* Указанные значения сопротивления изоляции приведены для нормальных климатических условий.

 

между главной силовой цепью и “землей”

2;

между вспомогательной высоковольтной цепью и “землей”

2;

между проводами силовых цепей и цепей управления

1,5;

между проводами цепи управления и “землей”

1,5;

между поездными проводами и “землей”

2,5;

поездные провода относительно друг друга

4,5;

электрические аппараты и аккумуляторные батареи относительно корпуса вагона

5;

провода тяговых электродвигателей относительно “земли”

5;

подвески аппаратов, выполненных на изоляторах

5.

Сопротивление изоляции у вагонов, находящихся в эксплуатации и при выпуске из ремонта, должно соответствовать требованиям “Норм допусков и износов оборудования вагонов метрополитена” 9.7170.30.00.001.00.РД2.

4.4. Электрическое оборудование и все электрические цепи должны иметь защиту от коротких замыканий (КЗ) и перегрузок.

Защита должна быть селективной, автоматической. В электрической схеме не должно быть незащищенных участков. Защита цепей управления, устанавливаемая в поездных проводах, должна обеспечивать надежную работу при наличии в составе до 10 вновь изготовленных и до 8 вагонов эксплуатационного парка.

4.5. Устройства защиты после их срабатывания должны исключать возможность подпитки электрических цепей током в местах возникновения КЗ. При перегорании плавких вставок корпусы предохранителей не должны разрушаться.

4.6. В вагонах необходимо применять фиксированный монтаж проводами с изоляцией, не распространяющей горение, в соответствии с ГОСТ 12176-89.

4.7. Футляры элементов аккумуляторных батарей и поддоны должны быть изготовлены из негорючих или трудногорючих материалов, их конструкция должна исключать возможность возникновения КЗ в результате протечек электролита.

4.8. Кабельные каналы, крышки желобов, распределительных коробок, ящиков подвагонного оборудования должны иметь крепления и уплотнения от попадания в них пыли и влаги.

4.9. Не допускаются совместная прокладка проводов электрических цепей, питающихся от контактной сети, и проводов, подключенных к бортовым источникам питания, в одних и тех же трубах, жгутах, а также совместный ввод (в одном жгуте) этих проводов в аппараты и шкафы. Запрещается прокладка проводов и кабелей по горючим материалам.

4.10. Провода в аппаратах, разрывающих ток, должны быть проложены так, чтобы при разрыве образующаяся электрическая дуга не могла вызвать возгорание или повреждение их изоляции и элементов крепления в аппаратах. Расположение наконечников проводов не должно уменьшать нормативного расстояния по воздуху от точек присоединения до заземленных частей.

4.11. Для исключения случаев возгораний при разбандажировке якорей тяговых электродвигателей система управления вагоном должна иметь устройство автоматического отключения силового питания на том вагоне, где произошли обрыв муфты или другие случаи, приведшие к резкому увеличению числа оборотов электродвигателя.

4.12. Электрооборудование на вагонах должно проектироваться, монтироваться и эксплуатироваться в соответствии с Правилами устройства электроустановок, Правилами технической эксплуатации электроустановок потребителей, Правилами техники безопасности при эксплуатации электроустановок потребителей, Инструкцией по монтажу электрооборудования вагонов метрополитена и другими нормативными документами.

5. Требования к средствам оповещения о пожарах

5.1. Вагоны должны быть оборудованы устройствами двухсторонней громкоговорящей экстренной связи “пассажир-машинист”.

5.2. Вагоны должны быть оборудованы автоматическими установками пожарной сигнализации, способными обнаруживать и оповещать о признаках пожара. Установки должны обеспечивать выдачу информации машинисту о номере вагона, на котором сработал извещатель, и место расположения извещателя на вагоне независимо от направления движения поезда.

5.3. Установка пожарной сигнализации при срабатывании извещателя должна автоматически (и одновременно с выдачей сигнала о признаках пожара) отключить питание силовых цепей на вагоне, где сработал извещатель.

5.4. Пожарные извещатели должны реагировать на тепловые и (или) дымовые признаки пожара.

Для каждой модели вагона перечень мест для установки пожарных извещателей определяется по согласованию с заказчиком.

5.5. Тепловые пожарные извещатели должны срабатывать при достижении внутри объема контролируемого помещения температуры от 75 ± 5 °С до 150 ± 10 °С или при скорости нарастания температуры внутри контролируемого объема, равной 10±2 °С/мин.

5.6. Дымовые пожарные извещатели должны срабатывать при достижении в контролируемых помещениях определенных значений задымленности.

5.7. Пределы срабатывания извещателей устанавливаются отдельно для каждого помещения, где размещены извещатели.

5.8. Конструкция и исполнение монтажа пожарных извещателей на вагоне должны обеспечивать легкосъемность их с применением специального инструмента.

*5.9. Для передачи вдоль поезда сигналов от средств оповещения о пожаре на вновь изготавливаемых вагонах должны быть отдельные линии связи, состоящие не менее чем из двух экранированных проводов.

6. Требования к оснащению средствами пожаротушения

6.1. Вагоны должны быть укомплектованы огнетушителями. Выбор типа и расчет необходимого количества огнетушителей необходимо проводить в зависимости от огнетушащей способности и предельной площади защищаемого помещения. Допускается применение самосрабатывающих порошковых огнетушителей, автоматическое срабатывание которых должно осуществляться при достижении в контролируемом помещении температуры не выше 100 ± 10 °С.

Для каждой модели вагона типы применяемых огнетушителей, их количество и места установки должны быть согласованы с заказчиком.

6.2. В каждом поезде должно находиться не менее двух асбестовых полотен размерами не менее 2 х 1 м.

*6.3. Аппаратные отсеки, элементы подвагонного оборудования и кабины управления головных вагонов должны быть оборудованы установками пожаротушения с автоматическим и (или) ручным управлением.

6.4. Установка пожаротушения должна включаться только после отключения на вагоне силового напряжения. В кабине головного вагона, из которой машинист управляет поездом, пуск установки пожаротушения во время срабатывания извещателя может осуществляться вручную.

6.5. Машинисты поезда должны обеспечиваться индивидуальными средствами защиты, позволяющими вести поезд в задымленных условиях.

7. Требования к огнезадерживающим конструкциям

7.1. Конструкции, отделяющие пассажирский салон от кабины управления, аппаратного отсека и подвагонного пространства должны быть огнезадерживающими с пределом огнестойкости не менее 0,75 ч, определяемом по методике, приведенной в приложении 3 настоящих норм.

7.2. Огнезадерживающие перегородки по наружному контуру должны быть доведены до металлической обшивки кузова.

7.3. Конструкция дверей аппаратных отсеков и их запорных устройств должна обеспечивать их работоспособность (надежное и легкое открытие и закрытие) при температуре не менее 800 °С.

7.4. Стыки элементов огнестойких конструкций, а также конструкции дверей, рам и крышек люков должны обладать такой же огнестойкостью, как и конструкция в целом.

7.5. Заделка отверстий в местах прохода через огнестойкие конструкции каркасов, желобов, кондуитных труб, труб пневматики, проводов и кабелей должна удовлетворять требованиям огнестойкости, изложенным в п. 7.1. настоящих норм.

*7.6. Остекление концевых стен вагонов должно обеспечивать пламенепроницаемость в течение 0,75 ч при испытаниях по методике, приведенной в приложении 3 настоящих норм.

8. Требования по обеспечению безопасных условий эвакуации пассажиров

8.1. Конструкции вновь изготавливаемых вагонов должны обеспечивать возможность передвижения пассажиров вдоль состава с выходом их на путь из головных вагонов.

8.2. Все вновь проектируемые и изготавливаемые вагоны должны быть оборудованы устройствами, позволяющими из кабины управления одновременно открыть замки переходных дверей всех вагонов поезда.

8.3. Вагоны должны иметь аварийное освещение.

8.4. В каждом вагоне (около устройств экстренной связи “пассажир-машинист”) должны быть вывешены правила поведения пассажиров в случаях обнаружения признаков возгорания, порядок эвакуации и рекомендации по защите от опасных факторов пожара.

 

ПРИЛОЖЕНИЕ 1

 

МЕТОДИКА
расчета приведенной пожарной нагрузки

 

Расчетная масса приведенной пожарной нагрузки mр определяется по формуле

 , кг/м2 ,

где Mi, Qi - масса и низшая теплота сгорания материалов, входящих в состав приведенной пожарной нагрузки, Мдж/кг; S - площадь пола вагона, м2; Qдр = 16,74 Мдж/кг - теплота сгорания условной древесины.

 

 

ПРИЛОЖЕНИЕ 2

 

МЕТОДИКА
оценки пожарной опасности конструкций
диванов вагонов метрополитена

 

Степень пожарной опасности диванов (сидений и спинок) вагона определяется на основании оценки их способности сопротивляться возгоранию при воздействии теплового импульса нормированной мощности (100 г газетной бумаги - метод А и газовой горелкой - метод Б).

1. Метод А

1.1. Образцы для испытаний

Испытаниям подвергают диван или его макет с размерами сиденья и спинки не менее 400 х 400 мм, соответствующих по исполнению реальным конструкциям.

При испытаниях спинка дивана должна быть расположена точно так же, как и в реальной конструкции (вертикально по отношению к поверхности сиденья).

1.2. Проведение испытаний

1.2.1. В качестве источника зажигания используют 100 г газетной бумаги, высушенной в течение 3 ч при температуре 70 °С.

1.2.2. Один лист бумаги (размерами около 600 х 420 мм) сгибают по середине параллельно меньшей стороне листа. Остальные листы бумаги мнут по отдельности и укладывают между половинками сложенного листа, скрепленного при помощи металлических скрепок так, чтобы получилась “подушка”.

1.2.3. Такую же “подушку” до опытов необходимо проверить на продолжительность горения. Для этого ее следует положить на асбестовую плиту толщиной 5 мм, длиной 600 мм и шириной 500 мм. После зажигания с четырех углов “подушка” должна гореть не менее 5 мин.

1.2.4. Испытания проводят в помещении без включения вентиляции. “Подушка” из листа газетной бумаги должна быть размещена (лежать) на сиденье дивана так, чтобы одна из ее продольных сторон соприкасалась со спинкой дивана.

1.2.5. “Подушку” зажигают с четырех углов и наблюдают за процессом горения, изменения которого фиксируют через каждые 30 с.

1.2.6. При отсутствии защитной плиты под сиденьем дивана необходимо провести дополнительный эксперимент, при котором указанная “подушка” должна быть положена на пол под сиденье.

1.3. Оценка результатов испытаний

1.3.1. Оценка пожарной опасности дивана проводится по результатам испытаний не менее двух образцов. Конструкция сиденья считается выдержавшей испытания по методу А, если по истечении 10 мин после начала эксперимента самостоятельное горение образца прекращается.

1.3.2. Не должны падать горящие части.

1.3.3. При продолжительности самостоятельного горения конструкции в течение 9 - 10 мин результат устанавливают на основании проведения испытаний не менее двух дополнительных образцов.

2. Метод Б

2.1. Образцы для испытаний

2.1.1. Для испытаний используют диван или его макет с размерами сиденья и спинки не менее 250 х 350 мм, соответствующих по исполнению реальным конструкциям.

2.1.2. Сиденья и спинки должны быть испытаны по отдельности.

2.2. Проведение испытаний

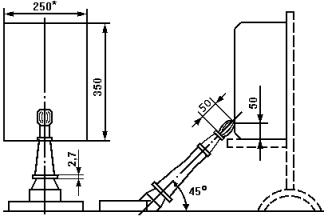
2.2.1. Расположение источника зажигания должно соответствовать размерам, приведенным на рис. 1 (при вертикальном расположении образца), и размерам, приведенным на рис. 2 (при горизонтальном расположении образца).

2.2.2. Испытания при горизонтальном расположении образца не требуются (рис. 2), если сиденье (снизу) или спинка (сзади) дивана имеют защитные покрытия.

2.2.3. Расстояние между отверстием горелки и поверхностью образца в обоих случаях должно составлять 50 мм.

2.2.4. В качестве источника зажигания используют горелку типа “Текле” с щелевой насадкой, размерами отверстия 40 х 5 мм. Расстояние кольцевой щели для подачи воздуха должно быть установлено на 2,2 мм. Горелка работает на природном газе (содержание метана около 95%) с избыточным давлением 48 ± 2 Мбар. Температура в верхней зоне газового пламени должна составлять около 950 °С.

2.2.5. Огневые испытания следует проводить в камере достаточных размеров. При этом необходимо обеспечить вертикальный поток воздуха со скоростью 0,8 м/с при продолжительности воздействия пламени - 3 мин (при вертикальном расположении образца - рис. 1) и 2 мин (при горизонтальном расположении образца - рис. 2).

2.3. Оценка результатов испытаний

2.3.1. Оценка пожарной опасности дивана проводится по результатам испытаний не менее двух образцов. Конструкция считается выдержавшей испытания по методу Б, если не позднее чем через 1 мин после окончания воздействия пламени самостоятельное горение образца прекращается.

2.3.2. Не должны падать горящие части.

2.3.3. При продолжительности самостоятельного горения образца в течение 50 - 60 с результат устанавливают на основании проведения испытаний двух дополнительных образцов.

Конструкция дивана вагона метрополитена считается нераспространяющей горения только при положительных результатах испытаний по обоим методам, т. е. по А и Б.

 

 

Рис. 1. Расположение горелки при вертикальном
расположении образца

 

 

Рис. 2. Расположение горелки при горизонтальном расположении образца

* Линейные размеры на рис. 1 и 2 даны в мм.

 

ПРИЛОЖЕНИЕ 3

МЕТОДИКА
испытаний на огнестойкость огнезадерживающих конструкций вагонов метрополитена

 

1. Цель и задачи огневых испытаний

Основная задача проведения испытаний заключается в определении фактического предела огнестойкости опытных образцов противопожарных конструкций, их узлов и деталей, предназначенных для применения в вагонах метрополитена.

В процессе испытаний дополнительно могут быть проведены:

предварительное изучение поведения отдельных элементов конструкций при пожаре;

проверка надежности конструктивных решений отдельных узлов и деталей в условиях огневого воздействия.

Испытания образцов противопожарных конструкций должны проводиться на огневых установках (печах), обеспечивающих равномерный тепловой поток в соответствии с температурным режимом развития реального пожара.

К испытаниям должны быть предъявлены образцы следующих размеров:

для конструкций перегородок между кабиной управления и салоном вагона - не менее 2000 х 2000 мм;

для остекленных торцевых стен - в натуральную величину;

для конструкций пола вагона - не менее 1100 х 1100 мм.

Образцы первых двух типов конструкций испытывают на вертикальной печи, а третьего типа - на горизонтальной печи.

Печи могут работать как на жидком топливе (керосине, мазуте), так и газе. Для создания, контроля и регулирования температурного режима печи оснащают специальными приборами.

Температуру внутри печи контролируют четыре хромель-алюмелевые термопары из проволоки диаметром 1,2 - 3,2 мм или им равноценные термопары, которые размещают в трубках из жаростойкого материала.

Термопары устанавливают в огневой камере таким образом, чтобы их участки длиной не менее 150 мм от горячего спая располагались на расстоянии 100 мм от обогреваемой поверхности опытного образца, а сами горячие спаи находились напротив середины каждой четверти площади обогреваемой поверхности образца.

Способ крепления опытного образца к печи при проведении эксперимента должен обеспечивать непроницаемость для пламени по всему периметру образца.

 

2. Температурный режим и давление при огневых испытаниях

В основу испытаний положена методика одностороннего нагрева опытного образца по температурному режиму реального пожара, согласно которому средняя температура в печи в определенные моменты времени должна составлять: через 5 мин - 400 °С, 12 мин - 800 °С, 15 мин - 750 °С, 20 мин - 650 °С, 30 мин - 550 °С, 45 мин - 500 °С.

Отклонения от реального температурного режима пожара не должны превышать ±15% в течение первых 10 мин испытаний, и 10% - в течение последующего времени до конца испытаний. График реального температурного режима пожара приведен на рисунке.

 

 

Давление в огневых камерах вертикальной печи на уровне 1/3 высоты образца и горизонтальной печи - на расстоянии 100 мм от поверхности образца в период испытаний должно быть равно давлению в помещении, где установлена печь.

 

3. Наблюдения в период огневых испытаний

В период проведения испытаний должен проводиться контроль за обеспечением температурного режима в печи и появлением признаков потери огнестойкости. Контроль пламенепроницаемости образца при испытании на огнестойкость осуществляется с помощью сухого ватного тампона размерами 10 х 10 х 2 см. Тампон необходимо подносить (через каждые 5 мин) к наиболее опасным местам необогреваемой поверхности испытуемого образца (к щелям, трещинам, зазору между полотном двери и ее рамой и т. д.) и в течение 30 с удерживать на расстоянии 25 мм от щели.

Момент воспламенения тампона характеризует потерю непроницаемости опытного образца для пламени.

При испытаниях необходимо фиксировать все изменения в поведении опытного образца (появление большого количества дыма, перекос и искривление дверного полотна, нарушение элементов крепления и фиксации и т. д.).

После окончания испытаний проводят фотографирование опытного образца, тщательный осмотр наружных поверхностей отдельных конструктивных элементов и деталей крепления и т. д.

 

4. Оценка результатов огневых испытаний

Предел огнестойкости противопожарной конструкции, а также ее отдельных узлов и деталей при испытаниях характеризуется моментом появления (с необогреваемой стороны) продуктов термического разложения и пламени.

Величину  фактического предела огнестойкости следует оценивать по результатам испытаний двух образцов.

Конструкция считается выдержавшей испытания, если в течение 45-минутного огневого воздействия оба образца сохраняют огнестойкость.

По результатам испытаний на огнестойкость составляется протокол по приведенной ниже форме с приложением графика измерения температур в камере сгорания.

 

ПРОТОКОЛ
испытания внутри вагонной конструкции
на огнестойкость

 

 

Назначение конструкции

 

Завод-изготовитель

 

Дата испытаний

 

п/п

Конструкция образца и характеристика материалов

Условия испытания

Поведение образца

Предел огнестойкости

 

 

 

 

 

 

 

 

Заключение

СОДЕРЖАНИЕ

1. Вводная часть. 2

2. Требования к материалам и конструкциям для внутренней отделки. 2

3. Требования к нагревательным приборам.. 3

4. Требования к электрооборудованию и его монтажу. 3

5. Требования к средствам оповещения о пожарах. 25

6. Требования к оснащению средствами пожаротушения. 36

7. Требования к огнезадерживающим конструкциям.. 43

8. Требования по обеспечению безопасных условий эвакуации пассажиров. 50

ПРИЛОЖЕНИЕ 1. 56

ПРИЛОЖЕНИЕ 2. 65

ПРИЛОЖЕНИЕ 3. 109

 

 




Rambler's Top100 Яндекс цитирования
  Copyright © 2008-2026, www.docload.ru