Бесплатная библиотека стандартов и нормативов www.docload.ru

Все документы, размещенные на этом сайте, не являются их официальным изданием и предназначены исключительно для ознакомительных целей.
Электронные копии этих документов могут распространяться без всяких ограничений. Вы можете размещать информацию с этого сайта на любом другом сайте.
Это некоммерческий сайт и здесь не продаются документы. Вы можете скачать их абсолютно бесплатно!
Содержимое сайта не нарушает чьих-либо авторских прав! Человек имеет право на информацию!

 

Госстрой России

Минтруд России

АО ЦНИИЭП им. Б.С. Мезенцева

РЕКОМЕНДАЦИИ
ПО ПРОЕКТИРОВАНИЮ ОКРУЖАЮЩЕЙ СРЕДЫ,
ЗДАНИЙ И СООРУЖЕНИЙ
С
УЧЕТОМ ПОТРЕБНОСТЕЙ ИНВАЛИДОВ И ДРУГИХ
МАЛОМОБИЛЬНЫХ ГРУПП
НАСЕЛЕНИЯ

Выпуск 14

Общественные здания и сооружения.
Кинотеатры, клубы, библиотеки, музеи

МОСКВА 1997

Содержат рекомендации по проектированию кинотеатров, клубов, библиотек и музеев с учетом потребностей инвалидов: общие требования к участкам и планировочные решения отдельных основных помещений, детали и элементы решений зрительных и выставочных залов.

Предназначены для инженерно-технических работников проектных и строительных организаций, органов социальной защиты, обществ инвалидов.

Разработаны АО ЦНИИЭП им. Б.С. Мезенцева (кандидаты архитектуры Н.Б. Мезенцева, Е.М. Лось, И.И. Маркова, д-р арх. В.И. Ревякин, архитекторы Е.А. Кругликова, А.И. Кравченко) при участии канд. арх. Г.И. Быковой.

Подготовлены к изданию редакционной коллегией Госстроя России (В.А. Цветков, А.Н. Якимова, Л.А. Викторова), Минтруда России (Ю.В. Колосов).

Предисловие

iКультура и досуг - это те сферы, где материально-пространственная среда должна быть наиболее гуманистически направленной, щадящей нервно-психическое состояние инвалида и рассчитанной не только на решение функциональных потребностей при проведении различных мероприятий, но и на возможность психологического восстановления общения. Изоляция инвалидов от сферы досуга в настоящее время объясняется отсутствием как условий доступности зданий, так и возможности полноценного обслуживания в них различных категорий инвалидов. В то же время трудно переоценить необходимость посещения досуговых мероприятий инвалидами, а также их участия в самостоятельных творческих занятиях. Поэтому данные рекомендации направлены на устранение не только строительных, но и морально-психологических барьеров путем создания возможности для инвалидов созерцать, сопереживать и творить вместе со всем обществом.

iНастоящие Рекомендации применяют при проектировании культурно-зрелищных зданий с учетом потребностей инвалидов: кинотеатров и киноконцертных залов, клубов, библиотек, музеев. Рекомендации являются развитием и дополнением положений ВСН 62-91*;

iПоложения настоящего документа имеют рекомендательный характер, но становятся обязательными для обеспечения возможности использования культурно-зрелищных зданий инвалидами при включении данных положений в архитектурно-планировочное задание на проектирование.

iРекомендации применимы к культурно-зрелищным объектам массового строительства, а также могут использоваться в качестве основы для составления заданий на проектирование уникальных объектов.

iВ Рекомендациях рассматриваются только специальные требования, в различной мере проявляющиеся в культурно-зрелищных зданиях. Все общие требования, которыми следует руководствоваться при проектировании, приведены в вып. 1 «Рекомендаций по проектированию окружающей среды, зданий и сооружений с учетом потребностей инвалидов и других маломобильных групп населения».

iВ кинотеатрах, киноконцертных залах и клубах специальные проектные требования предъявляются к:

выбору принципа определения числа мест для инвалидов различных категорий в зрительных залах;

размещению зрительских мест для инвалидов с учетом габаритов кресел-колясок, условий видимости и особенностей эвакуации;

выбору рациональных составов и планировочных решений для кружковых и студийных помещений с учетом различных видов деятельности посетителей-инвалидов.

iОсобенности формирования библиотечных зданий, обслуживающих инвалидов, состоят из:

организации сети библиотечного обслуживания (специализированные библиотеки, библиотеки-филиалы, центральные библиотеки);

средовой организации внутреннего пространства (читательских мест и мест работы с каталогами, стеллажей открытого доступа, кафедры выдачи книг, условий организации улучшенного освещения для слабовидящих, расположения визуальных знаков, отражающих планировку здания).

iК числу специальных требований к музейно-выставочным зданиям относятся:

оптимизация путей и способов перемещения инвалидов при осмотре экспозиции;

взаимоувязка музееведческих требований и психофизических особенностей инвалидов (освещение экспозиции, расположение экспонатов, конструкции витрин и другого музейно-выставочного оборудования);

применение технических средств показа экспозиции, организация передвижных выставок.

iВ каждом из типологических разделов Рекомендаций последовательно представлены:

общие положения (виды сооружений, их вместимость и назначение);

требования к участку;

общие планировочные принципы;

основные функциональные блоки;

особенности планировочных решений отдельных помещений;

возможности многоцелевого использования сооружений, кооперирование;

детали и элементы оборудования.

iРекомендации основаны на изучении отечественных и зарубежных нормативно-методических материалов, анализе опыта проектирования, строительства и эксплуатации ряда объектов, экспертном опросе специалистов в области культурно-просветительной работы, проведенных экспериментах.

iРекомендации рассчитаны на проектирование культурно-зрелищных зданий с учетом потребностей инвалидов различных категорий:

с поражением опорно-двигательного аппарата, использующих различные приспособления для ходьбы или кресла-коляски (ПОДА);

с дефектами зрения (ДЗ);

с дефектами слуха (ДС).

iНаибольшее количество специальных требований к культурно-зрелищным зданиям связано с инвалидами с ПОДА. Для инвалидов с дефектами зрения, которые затруднены в передвижении и ориентации, а также для инвалидов с дефектами слуха, затрудняющихся в получении информации, предусмотрен ряд специальных рекомендаций. Возможность использования культурно-зрелищных сооружений инвалидами зависит также и от степени тяжести заболевания. Инвалиды с нарушением функций внутренних органов, инвалиды с легкими формами дефектов психики, а также престарелые и другие маломобильные представители населения могут свободно пользоваться сооружениями, в которых учтены все требования для выделенных выше категорий.

iВ культурно-зрелищных зданиях при реализации специальных планировочных требований необходимо выбирать архитектурные средства и проектные решения, осуществляемые без акцента на целенаправленную заботу об инвалидах. Объекты сферы досуга (или их части), приспособленные для инвалидов, должны, как правило, войти в единую сеть культурно-зрелищных зданий, рассчитанную на совместное использование инвалидами и здоровыми людьми.

iВ данном выпуске Рекомендаций рассматриваются, главным образом, массовые типы культурно-зрелищных зданий. Таким уникальным объектам, как театры, театры-студии, цирки посвящен отдельный выпуск Рекомендаций.

iОсновная цель всех выпусков рекомендаций по проектированию культурно-зрелищных зданий с учетом потребностей инвалидов - совершенствование архитектурно-планировочной структуры объектов для равнокомфортного обслуживания всех категорий посетителей.

Кинотеатры и киноконцертные залы

ОБЩИЕ ПОЛОЖЕНИЯ

iКинотеатры, обслуживающие инвалидов и маломобильных посетителей, условно можно классифицировать по трем группам:

кинотеатры общего пользования, обслуживающие все группы потребителей, в том числе со слабой и частично умеренной степенью тяжести инвалидности, а также маломобильных посетителей;

специализированные кинозалы, предназначенные для постоянного использования людьми с тяжелой степенью инвалидности или маломобильными посетителями;

специализированные кинозалы, предназначенные для обслуживания людей одного вида инвалидности.

iПри расчете потребности числа мест в городской киносети, предназначенных для инвалидов в креслах-колясках, рекомендуется исходить из показателей, представленных в табл. 1.

Таблица 1

Вместимость зрительного зала, чел.

Процент мест для инвалидов

50 - 150

5

150 - 300

3

300 - 1000

2

Более 1000

20 (мест)

iПри определении числа мест в киносети, предназначенных для инвалидов, необходимо предлагаемый норматив использовать в качестве приблизительного ориентира, который должен уточняться в процессе предпроектного анализа:

структуры и характеристики городского населения;

городской инфраструктуры;

состояния и степени развитости всей сети культурно-досуговых учреждений.

iКроме этого, следует учитывать ориентировочную численность обслуживаемого кинотеатром населения (величину обслуживаемого района).

iЧисло мест для инвалидов, пользующиеся креслами-колясками, в кинотеатре устанавливается заданием на проектирование по согласованию с местными территориальными органами архитектуры и градостроительства, социального обеспечения и организацией общества инвалидов.

iПри этом необходимо также учитывать социальную и градостроительную значимость кинотеатра в городе, его функциональную роль в киносети.

iКиноконцертные залы, премьерные кинотеатры и другие крупные учреждения кинообслуживания, рассчитанные на население всего города, должны в своей структуре предусматривать число мест, предназначенных для инвалидов, большее, чем в периферийных районных кинотеатрах.

iЧисло мест для инвалидов в районных кинотеатрах рассчитывается на население, попадающее в зону их обслуживания, то есть на численность района.

iКиноместа для инвалидов распределяются между центрами и жилыми районами крупных и крупнейших городов примерно в соотношении 30 % и 70 %. В городах с численностью населения до 250 тыс. жителей - приблизительно поровну.

iПри определении числа мест в кино- и киноконцертных залах, адаптированных к обслуживанию инвалидов-колясочников и остальных категорий инвалидов, рекомендуется придерживаться их количественного соотношения 1:10.

ТРЕБОВАНИЯ К УЧАСТКУ

iПри выборе места размещения кинотеатра в структуре города необходимо исходить из условий доступности (транспортной и пешеходной) и удобства пользования как для основных групп посетителей, так и для маломобильной категории зрителей.

iКинотеатры районного значения желательно размещать в комплексе с другими учреждениями обслуживания, формируя многофункциональные общественные центры. При этом необходимо добиваться максимального сокращения расстояний от жилых зданий с квартирами, предназначенными для инвалидов, до этих центров.

iНа автомобильной стоянке перед кинотеатром необходимо выделять места для личного транспорта инвалидов на расстоянии не более 50 м от входа в кинотеатр.

iНа земельных участках кинотеатров следует предусматривать внутренние проезды и пешеходные пути, необходимые для беспрепятственного передвижения посетителей-инвалидов всех категорий и особенно колясочников.

iНа территории, прилегающей к кинотеатру, целесообразно выделить зону отдыха для инвалидов, обеспеченную необходимым оборудованием и средствами дизайна. Специально запроектированная садово-парковая архитектура, малые формы, мебель, скамейки, кресла, навесы, перголы, беседки - все это может значительно обогатить в функциональном и эстетическом отношении внешнюю среду кинотеатра.

iЗону отдыха для инвалидов необходимо размещать в стороне от транспорта и основного потока посетителей, в озелененном и тихом месте, в относительной близости от входа в кинотеатр, причем, желательно, с возможностью обзора входа.

ОБЩИЕ ПЛАНИРОВОЧНЫЕ ПРИНЦИПЫ

iПри кинотеатрах, прежде всего общегородского значения, размещаемых в центральных зонах городов, рекомендуется предусматривать площадки для остановки специализированных средств общественного транспорта, перевозящих инвалидов. Такие площадки не рекомендуется относить от здания кинотеатра на расстояние более 100 м.

iПланировочные решения автостоянок, пешеходных путей, зон отдыха приведены в вып. 2 Рекомендаций - «Градостроительные требования».

iОриентация в пространстве как внешней, так и внутренней среды кинотеатров для инвалидов может быть максимально облегчена за счет всех возможных средств дизайна, визуальной и звуковой информации.

iДля этого необходимо на стадии проектирования предусмотреть комплекс мер, включающий все эти вспомогательные средства, которые смогут помочь инвалидам без потери времени и самостоятельно найти кассовый вестибюль, вход в кинотеатр, ориентироваться в пространстве зрительских помещений.

iНаиболее важным является четкое обозначение входов в кинозалы, туалеты, мест размещения специализированных объектов и зон обслуживания инвалидов, а также выходов из кинотеатров.

iВ кассовом и входном вестибюлях необходимо предусматривать легко читаемые с достаточного расстояния схемы кинотеатра с отмеченными на них маршрутами движения инвалидов-колясочников, а также с указанием помещений и объектов обслуживания, рассчитанных на эту группу посетителей. На плане кинозала необходимо выделить места, предназначенные для инвалидов-колясочников и других категорий инвалидов, проходы к этим местам, а также зоны загрузки и эвакуации.

iВсе визуальные средства рекламы и информации в кинотеатрах должны быть легко доступны и читаемы как для основных посетителей, так и для инвалидов. Они должны изображаться на контрастном фоне на высоте не менее 1,5 и не более 4,5 м от уровня пола.

iНа путях движения инвалидов в пространстве кинотеатра необходимо предусматривать информационные сигналы и указатели, предупреждающие о строительных препятствиях. Особенно важно акцентировать входы на лестницы и лифты, перепады уровней, зоны наибольшей циркуляции публики.

iДля облегчения восприятия информации людьми с дефектами зрения рекомендуется визуальную информацию периодически дублировать звуковой.

iДля облегчения ориентации в пространстве зрительских помещений рекомендуется использовать и такой эффективный способ, как выделение цветом и фактурой материалов указанных зон. Таким образом можно решить задачу разнообразия колористического и стилистического решения интерьеров.

iЭлементы рекламы и информации, дизайна и мебели, предназначенные для инвалидов, требуют высокого качества исполнения, что может стать дополнительным средством функционального обогащения информационной насыщенностью внешней и внутренней среды кинотеатров.

iВсе зрительские помещения, а также услуги, предоставляемые в кинотеатрах посетителям, должны быть доступны для инвалидов. Этого наиболее легко можно добиться при планировочной схеме, предусматривающей расположение основных зрительских помещений в одном уровне и при их непосредственной взаимосвязи. Этот подход может быть использован при проектировании кинотеатров небольшой вместимости с ограниченным составом помещений.

iДля крупных кинотеатров и киноконцертных залов со сложной функционально-планировочной структурой проблема доступности различных помещений и видов услуг для инвалидов может быть решена в кинотеатрах за счет устройств и средств, облегчающих преодоление строительных и пространственных преград: устройство пандусов, специальных ограждений и перил, лифтов и эскалаторов, индивидуальных средств подъема.

iПри проектировании следует обязательно соблюдать пространственные параметры, необходимые для беспрепятственного передвижения и разворота инвалидных колясок.

iМебель и вспомогательное оборудование, предназначенные для инвалидов, должны проектироваться в соответствии с эргонометрическими требованиями, определяющими условия комфортного пребывания этой категории зрителей в кинотеатре.

iОбщие требования к параметрам зон и пространств, а также к устройствам и средствам, облегчающим преодоление инвалидами строительных и пространственных преград, подробно освещены в вып. 1 Рекомендаций.

ОСНОВНЫЕ ФУНКЦИОНАЛЬНЫЕ БЛОКИ

iКинотеатры, проектируемые с учетом потребностей инвалидов и маломобильных посетителей, могут быть как с обычным составом помещений, предназначенных для всех групп зрителей, так и включающие дополнительные помещения, а также зоны помещений, специально оборудованные для обслуживания инвалидов (в основном - колясочников).

iКассовый вестибюль рекомендуется размещать в смежном с входным вестибюлем помещении и предусматривать их непосредственную связь. Допускается проектирование проходного кассового вестибюля, но в этом случае необходимо кассовую зону размещать в стороне от основного потока входящих посетителей.

iПрилавок кассового окна, обслуживающего инвалидов, должен быть размещен на высоте не более 0,8 - 1 м от уровня пола вестибюля.

iПространство перед кассовым окном, обслуживающим инвалидов, должно быть достаточным для поворота коляски на 180°. Желательно выделение зоны обслуживания инвалидов на площади кассового вестибюля направляющими турникетами.

iВ кассовом вестибюле и фойе кинотеатра необходимо предусматривать телефоны-автоматы, размещенные на высоте, удобной для пользования инвалидов на колясках, - не более 1,4 м от пола до верха аппарата. Рядом с телефонами необходимо устанавливать скамейки для престарелых и инвалидов на костылях.

iРабочие поверхности киосков, буфетных и гардеробных стоек, прилавков, предназначенных для обслуживания инвалидов, должны размещаться на высоте не более 0,8 м от уровня пола.

iСанитарно-гигиенические помещения, обслуживающие инвалидов, следует проектировать, учитывая требования, изложенные в вып. 1 Рекомендаций.

iЗону отдыха для инвалидов рекомендуется оборудовать в стороне от транзитного движения и мест скопления большого числа посетителей, в выделенном какими-либо средствами дизайна пространстве. Нельзя размещать ее рядом с шумными помещениями и объектами обслуживания, например возле игровых автоматов, а также рядом с входами на лестницы, лифты и в другие помещения. Зону отдыха целесообразно совмещать с зимним садом, уголком живой природы, с зонами настольных игр, читальной.

iНецелесообразно зону отдыха инвалидов отделять от остальных посетителей. Они могут находиться в одном пространстве, но для инвалидов должны быть созданы необходимые условия.

iВ пространстве буфетов, баров, кафе места для обслуживания инвалидов необходимо оборудовать как непосредственно у стойки, так и за столами. Столы для инвалидов должны размещаться в стороне от входа, в непроходной зоне, с учетом беспрепятственного подъезда и поворота колясок.

Демонстрационный комплекс

iВ кино- и киноконцертных залах места, предназначаемые для инвалидов-колясочников, необходимо проектировать с учетом возможности установки (при необходимости) съемных секций (2 - 4 кресла) для обслуживания обычных посетителей.

iРекомендуется первые и последние ряды кинозалов оборудовать съемными секциями с тем, чтобы варьировать число мест для инвалидов в зависимости от потребности.

iВ зрительных залах, предназначенных для кинопоказа, а также в залах универсального назначения (кинодемонстрация, концерт, собрание) рекомендуется предусматривать зоны размещения инвалидов в пределах комфортной видимости.

iПараметры зон для инвалидов, отведенных в кинозалах, должны определяться в соответствии с габаритами кресел-колясок и пространства, необходимого для их поворота. Данные габариты даны в вып. 1 Рекомендаций - «Общие требования».

iВ кино- и киноконцертных залах вместимостью свыше 800 мест места для инвалидов-колясочников рекомендуется сосредотачивать в нескольких зонах. В кинозалах с одним или двумя выходами рекомендуется места для инвалидов по возможности размещать в непосредственной близости от зон эвакуации.

iПри проектировании кинотеатров, адаптированных к нуждам инвалидов-колясочников, необходимо уделить особое внимание объемно-планировочной структуре как всего здания, так и кинозала. Для облегчения загрузки (и эвакуации) инвалидов-колясочников на места, отведенные для них в зале, необходимо прежде всего предусмотреть допустимые для их передвижения уклоны пандусов и ширину проходов.

iПри реконструкции кинотеатров, где пандусы в залах превышают 5 % и при отсутствии возможности устройства более пологих уклонов, необходимо места для инвалидов-колясочников предусматривать на плоском полу по бокам первого ряда зрительских мест. Минимальная ширина прохода перед первым рядом - 1,2 м.

iВ кинозалах большой вместимости, где помимо боковых предусматриваются и другие продольные проходы, места для инвалидов-колясочников допускается размещать по бокам отрезков первого ряда.

iПри наличии поперечного прохода, ширина которого не менее 1,2 м, а также при возможности въезда коляски на его уровень непосредственно из фойе, допускается оборудование мест для инвалидов-колясочников по бокам отрезков рядов, ограничивающих пространство прохода.

iДля инвалидов на костылях и престарелых, при уклоне пандусов свыше 5 %, в местах примыкания пандуса к стенам необходимо предусмотреть перила.

iПандусы и ступени должны иметь подсветку для облегчения ориентации и передвижения инвалидов в затемненном зале. Желательно предусматривать и подсветку перил.

iДля облегчения доступа к местам инвалидов (в случае необходимости) рекомендуется в рядах их размещения предусматривать откидные сиденья и подлокотники кресел.

iДля подключения индивидуальных слуховых аппаратов, используемых лицами с ослабленным слухом, рекомендуется в кинозалах предусматривать места, связанные с акустической системой, работающей на основе индукционного контура приема частично модулированного сигнала или инфракрасного излучения.

iВ крупных киноцентрах, премьерных кинотеатрах, киноконцертных залах рекомендуется места, предназначенные для инвалидов, оборудовать наушниками, связанными с внутренней системой перевода фильмов с иностранных языков. Эта альтернативная субтитрам форма коммуникации может служить для облегчения восприятия текста и музыки для людей с ослабленным слухом. Специальные места для хранения наушников рекомендуется предусматривать в подлокотниках, для инвалидов-колясочников - в спинках кресел, впереди сидящих зрителей.

ОСОБЕННОСТИ ПЛАНИРОВОЧНЫХ РЕШЕНИЙ ОТДЕЛЬНЫХ ПОМЕЩЕНИЙ

iУстройство пандусов для колясочников за пределами кинозала рекомендуется при реконструкции с сохранением конструкции и наклона гребенки пола.

Пример решения загрузки и эвакуации инвалидов-колясочников из кинозала с уклоном пандуса более 1:12

А - разрез; Б - план; 1 - пути движения инвалидов; 2 - места для инвалидов; 3 - пути движения обычных посетителей

iИспользование инвалидами-колясочниками общих со всеми посетителями путей загрузки и эвакуации возможно в кинозалах с плоским полом или при уклоне продольных пандусов не более 1:12. Такие решения кинозалов характерны при их вместимости до 400 мест.

Пример решения загрузки и эвакуации инвалидов-колясочников в кинозалах с уклоном пандусов менее 1:12

А - разрез; Б - план; 1 - пути загрузки и эвакуации; 2 - места для инвалидов

iПревышение луча зрения, направленного на расчетную точку наблюдения (нижняя кромка киноэкрана) над уровнем глаз впереди сидящего зрителя, рекомендуется принимать 6 - 12 см.

Для обеспечения нормальной видимости следует учитывать, что высота сидящего на кресле-коляске на 4 - 6 см больше высоты сидящего на обычном кресле.

Построение видимости в зрительном зале с учетом инвалидов в креслах-колясках

1 - разница в превышении луча зрения а - б = 4 ... 6 см; 2 - превышение луча зрения для инвалида в кресле-коляске

iМеста для инвалидов на колясках должны размещаться на плоской площадке. В случае отсутствия промежуточных поперечных проходов их целесообразно размещать в переднем или заднем ряду с шириной площадки 850 мм и глубиной 1200 мм.

Оборудование мест для инвалидов-колясочников в зрительных залах

А - в первом ряду; Б - в последнем ряду; В - в поперечном проходе

iРекомендуется в фойе перед эстрадой организовать места для зрителей, в том числе и для инвалидов-колясочников.

iВ тех случаях, когда эстрада не оборудуется, рекомендуется на ее месте устройство зоны отдыха, которая образуется выделением из пространства фойе благодаря средствам дизайна. Зона должна быть отделена от движения посетителей.

 

Пример приспособления фойе типового кинотеатра ( 264-13-101) к посещению инвалидами

1 - тамбур; 2 - зона размещения схемы кинотеатра; 3 - возможное размещение зоны отдыха инвалидов; 4 - места для зрителей в фойе перед эстрадой; 5 - зона буфета

ДЕТАЛИ И ЭЛЕМЕНТЫ ОБОРУДОВАНИЯ

iРекомендуется в передних и задних рядах устраивать съемные секции мест, что позволит приспосабливать зал к присутствию различной численности инвалидов-колясочников. Для обеспечения удобного доступа сидящих зрителей к инвалидам рекомендуется на стационарных креслах устраивать опускающиеся подлокотники.

Оборудование зрительного зала

1 - съемные секции; 2 - кресла с откидными подлокотниками

Клубы

ОБЩИЕ ПОЛОЖЕНИЯ

iКлубные учреждения для инвалидов и маломобильной категории населения рекомендуется считать составной частью единой клубной сети.

iК клубным учреждениям относятся: клубы общего профиля с достаточно полным составом функциональных групп и помещений; специализированные клубные блоки - студийно-кружковые, досуговые, по клубным интересам и др. Клубы могут быть самостоятельными объектами, а также кооперированными с другими объектами (видами) обслуживания населения. Например, быть в составе общественного центра или же включать в свой состав отдельные объекты обслуживания (почту, кафе, парикмахерскую, торговый киоск, пункт проката инвентаря и т.п.).

iПосетителями клуба может быть активноспособное население, включая детей школьного возраста.

iТипология клубных объектов для инвалидов включает:

клубы для всего населения, в том числе для посетителей всех видов слабой и частично умеренной степеней тяжести инвалидности, а также для маломобильной категории населения;

клубы специализированные, посетителями которых кроме здоровых могут быть инвалиды какого-либо одного вида инвалидности независимо от степени тяжести;

клубы специального назначения, например, в местах стационарного пребывания инвалидов тяжелой степени инвалидности или маломобильной категории населения.

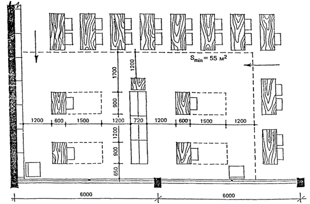
iПримерная численность мест для инвалидов в студийно-кружковых группах для различных градостроительных структур представлена в табл. 1.

iПриспособление клубных зданий для инвалидов наиболее целесообразно в центрально расположенных объектах, при обеспечении транспортной и пешеходной доступности.

iКоличество студийно-кружковых помещений в клубе для смешанного состава участников (инвалиды и здоровые) для различных градостроительных структур рекомендуется принимать из расчета 1 - 3 помещения или малый специализированный блок (с включением инвалидов с ПОДА и ДС) для городов с численностью жителей от 10 до 100 тыс.; полноценный студийно-кружковый блок - для городов с численностью жителей от 100 до 500 тыс.; специализированный клубный центр или клуб, ориентированный на инвалидов всех видов инвалидности и маломобильное население - со студийно-кружковым блоком и зрительным залом, студийными видами художественной самодеятельности для какого-либо вида инвалидности - для городов с численностью от 500 тыс. жителей и более.

iСтудии-мастерские кружковой направленности для инвалидов следует размещать на всей территории городского поселения в максимальной близости к жилью.

iПри выборе архитектурно-планировочного решения здания с учетом потребностей инвалидов рекомендуется такое, при котором обеспечиваются визуальные связи отдельных помещений между собой. Это способствует лучшей ориентации в здании, усилению зрелищной функции происходящих в клубе процессов и созданию большей причастности к этому посетителей с ограниченной мобильностью.

iПри устройстве пандусов в здании желательно на всей их протяженности создавать зрительные эффекты (выставки рисунков, подсвеченные панно, зеленые островки и т.п.), психологически помогающие преодолеть путь инвалиду.

Таблица 1

Численность населения города, тыс. чел.

Количество мест для инвалидов

всего, чел.

из них для

инвалидов на коляске, чел.

10 - до 50

25 - 125

1 - 5

50 - до 100

125 - 250

5 - 10

от 250

более 600

10 - 25

ТРЕБОВАНИЯ К УЧАСТКАМ

iЗоны участка, не занятые обязательным перечнем сооружений, рекомендуется оборудовать разнообразными малыми формами, создающими максимальную функциональную и информативную насыщенность среды: небольшими водными аттракционами, специально оборудованными детскими песочницами и клумбами для занятий любителей садоводства. В спортивную зону участка рекомендуется включать разнообразные игровые площадки раздевально-оздоровительного характера для активного отдыха инвалидов: площадки для крокета, кеглей, мини-гольфа, метательных игр и т.п.

Устройства для инвалидов на территории клуба

А - песочница для детей; Б - водные развлечения; В, Г - клумбы для занятий садоводством инвалидов-колясочников

ОСНОВНЫЕ ФУНКЦИОНАЛЬНЫЕ БЛОКИ

iОпределение числа мест в зрительном зале клубов для инвалидов в креслах-колясках и особенности их размещения - аналогично разделу «Кинотеатры».

iПри проектировании универсального зала, т.е. при ориентации клубного зрительного зала на «активные» мероприятия (вечера и клубные встречи по интересам) с участием групп инвалидов с ПОДА в качестве действующих лиц или зрителей, рекомендуется предусматривать устройство горизонтального пола от наружной кромки сцены (эстрады) в сторону зала на 6 - 12 м для размещения инвалидов-колясочников, а далее - стационарных зрительских мест с уклоном пола согласно требованию комфортной видимости. Причем, 2 - 5 рядов предназначаются для инвалидов ПОДА умеренной и слабой степени тяжести, с глубиной ряда 1 м и специальными антропометрически комфортными сиденьями. За ними располагаются ряды обычных мест.

iМеста для инвалидов-колясочников должны быть по возможности равномерно рассредоточены по залу, чтобы избежать их концентрации в местах эвакуации.

iНеобходимо предусматривать в залах не менее одного эвакуационного выхода, доступного для маломобильной части посетителей.

iВ залах, где возможна демонстрация слайдов, рекомендуется предусматривать экран как можно больших размеров, при этом оборудование на эстраде не должно его заслонять. Большие залы дополнительно следует оборудовать телемониторами.

iВ сценической части желательно предусмотреть помещения: артистическую уборную, гримерно-парикмахерскую, артистические кулуары, комнату отдыха, карман, уборную и душевую - в пределах удобной доступности для инвалидов на колясках, исключающей перепады поверхности пола от сцены к обслуживающим ее помещениям.

iНеобходимо обеспечить удобную связь мест с эстрадой, а также с входами и выходами, что возможно устройством пандуса (уклона) для посетителей с ограниченной мобильностью.

iВ сценической части рекомендуется эстрада типов Э-2 и Э-3, но с увеличением глубины планшета соответственно с 7,5 до 9 м и с 9 до 12, авансцены с 1,5 до 2,5 м, глубины пространства за сценой для возможности сквозного и беспрепятственного проезда инвалидов-актеров на колясках и участников программ. Рекомендуется высота эстрады 0,8 м.

iВ лекционных и других залах необходимо обеспечивать условия для выступлений инвалидов-колясочников, для чего рекомендуется устройство дополнительной трибуны меньшей высоты.

Демонстрационный комплекс для инвалидов с дефектами зрения

iЗал не имеет жестких ограничений по вместимости.

iНеобходимо обеспечивать возможно лучшие акустические условия для всех зрительских мест, а также требования комфортной видимости.

iСцена (эстрада) должна иметь плоский планшет, на ее плоскости не должно быть неожиданных преград, препятствующих передвижению слепых актеров.

iТребования к помещениям, обслуживающим сцену, те же, что и в залах для инвалидов с ПОДА.

Демонстрационный комплекс для инвалидов с дефектами слуха

iОптимальная вместимость зала от 200 до 300 мест с наибольшей удаленностью последнего ряда 10 - 13 м от микрофона.

iФорма зала определяется требованием равноудаленности мест последнего ряда от фокусной точки сцены (эстрады).

iДля частичной компенсации дефекта слухового восприятия необходимо обеспечить построение профиля зрительских мест по требованию видимости возможно лучшего качества.

iВ залах рекомендуется кроме обычной системы озвучания предусматривать специальную систему, обеспечивающую использование индивидуальных слуховых аппаратов на основе подключения к индукционному контуру, приема частотно модулированного сигнала или инфракрасного излучения.

iВ залах рекомендуется предусматривать осветительные мероприятия по усилению визуальной информации: рирпроектор, подсветку дактипереводчика на трибунах.

iВ вестибюле должны быть предусмотрены места для размещения осязаемого плана всего здания, обеспечивающего ориентацию в нем людей с дефектами зрения, и для раскладывания печатной информации, а также устройства для получения звуковой информации.

iВ зоне вестибюля, доступной для инвалидов, следует предусмотреть место для телефона-автомата, размещенного на высоте, доступной для инвалидов, с сиденьем при нем.

iПри проектировании буфетов и баров в клубах необходимо предусматривать зону для размещения одного-двух столиков для инвалидов-колясочников.

Студийно-кружковая работа

iВыбор видов деятельности для инвалидов практически не ограничивается и зависит от степени дефекта, навыка и желания. Рекомендуются занятия живописью, скульптурой, музыкой, театральным искусством, танцами, литературой, различными ремеслами, компьютерными играми, по развитию речи, по приобретению навыков садоводства и ведения домашнего хозяйства (домоводства) и т.д.

iПланировочное решение студийно-кружковых помещений должно обеспечивать комфортные и щадящие условия для деятельности инвалидов, естественное освещение, солнцезащиту, приспособленное для инвалидов технологическое оборудование (мебель, удобное подключение к электросетям) со свободным доступом к нему.

iВсе кружковые помещения рекомендуется оборудовать отопительными радиаторами с доступными регуляторами.

iПланировочное решение и техническое оснащение студийно-кружковых помещений должны обеспечивать возможность для расширения диапазона творческого поиска относительно выбранного занятия.

iЧисленность в кружках с участием инвалидов рекомендуется сократить до 10 - 12 человек. Целесообразен смешанный состав участников по группам инвалидности и возрастному составу. Так, инвалиды на колясках ориентировочно могут составить 20 - 25 %, здоровые - 30 - 40 %, 35 - 50 % - другие группы инвалидов.

iПлощадь на 1 посетителя кружка при смешанном его составе, а также помещений универсального назначения следует принимать на 20 - 50 % выше наибольшего значения, принимаемого для здоровых людей (табл. 2).

Таблица 2

Помещения

Площадь на 1 посетителя с учетом инвалидов, м2

Кружков:

 

хорового и универсальных

2,0 - 2,5

театрально-драматического, изобразительного искусства, кинофототехнического, домоводства, оркестрового

3,6 - 4,5

танцевального, циркового, технического, различных мастерских

7,2 - 9

Универсальные:

 

гостиная

2,2 - 2,7

зал

2,0 - 2,6

рекреация

3,8 - 4,8

ОТДЕЛЬНЫЕ ПОМЕЩЕНИЯ И ИХ СОЧЕТАНИЯ

iВестибюль является основным коммуникационным звеном в клубе и должен иметь распределительную, коммуникационную и рекреационную функции.

iВестибюль должен иметь зону спокойного отдыха с местами для сидения и естественным освещением, расположенную в прямой видимости от информационного табло, визуально доступным также из любой точки вестибюля. Табло должно быть ярко освещено, располагаться на контрастном фоне, на высоте не менее 1,5 м и не более 3,0 м от пола.

Зонирование вестибюля

1 - тамбур с мягким покрытием; 2 - навес; 3 - зона отдыха; 4 - полка с буклетами; 5 - билетная касса; 6 - информационное табло; 7 - телефон-автомат; 8 - лифт; 9 - контрастное покрытие пола перед лифтом

ОСОБЕННОСТИ ПЛАНИРОВОЧНЫХ РЕШЕНИЙ ОТДЕЛЬНЫХ ПОМЕЩЕНИЙ

iПомещение для занятий музыкой должно иметь параметры и оборудование, позволяющие размещение от одного до четырех колясочников. Оно должно иметь естественное освещение, звукоизоляцию и оборудуется двойными дверями.

iОборудование помещения для занятий музыкой (танцами) должно быть приспособлено к использованию его инвалидами: пристенную нотную доску рекомендуется делать откидной, размещение полок для хранения нот, книг, наушников и т.п. - на доступной высоте; розетки подключения в сеть - не только внизу стен, но и в различных зонах пола. Общее освещение в помещении должно быть рассеянным, а кроме того, на каждом пюпитре рекомендуется индивидуальное освещение.

Музыкальный класс

1 - места для инвалидов; 2 - пианино; 3 - полки для нот; 4 - пюпитры

iПомещение для занятий музыкой может использоваться как танцевальная студия, для чего рекомендуется оборудовать центральную зону специальными матами для инвалидов с ПОДА без кресел-колясок и небольшой эстрадой с пандусами для обеспечения доступа инвалидов. В общем танцевальном зале для инвалидов может быть оборудована специальная зона.

iПомещение для занятий музыкой лучше всего размещать в блоке с также приспособленной для инвалидов комнатой звукозаписи, мастерской по ремонту и настройке инструментов, помещением для хранения аудиокассет, дисков, каталогов.

iКомната звукозаписи должна рассчитываться на 2 - 4 человека и снабжаться картотекой с соответствующей специальной для слепых маркировкой, повторяющейся на аудиокассетах и пластинках.

Блок помещений для занятий музыкой, танцами, звукозаписью

1 - музыкальная комната; 2 - зона рассеянного освещения с мягкими матами для танцев; 3 - пюпитр с освещением; 4 - доска для написания нот; 5 - розетки для подключения инструментов; 6 - передвижной столик для нот; 7 - полки для нот, наушников, книг; 8 - эстрада; 9 - помещение для каталога, хранения кассет, дисков; 10 - мастерская для наладки и ремонта инструментов; 11 - комната звукозаписи; 12 - санузел

iПомещения кружков для различных ремесел (мастерские-студии) должны быть оборудованы местами с изменяющейся высотой рабочей поверхности. Материалы лучше складировать в нижних зонах оборудования. При мастерской желательно размещать складские комнаты для хранения материалов и готовой продукции. Все углы оборудования рекомендуется делать скругленными, чтобы избежать травматизма при передвижении на колясках.

Помещение мастерской

1 - рабочая зона с общим рассеянным освещением и индивидуальными светильниками; 2 - раздевальная со шкафом; 3 - бестумбовые рабочие места; 4 - розетки и выключатели; 5 - раковина с гибкой душевой насадкой, 6 - полки различной глубины; 7 - скругленные углы; 8 - кладовая

iПараметры помещения фототехнического кружка должны обеспечивать свободу передвижения инвалидов-колясочников к различному оборудованию. Высота оборудования - 700 мм, размеры минимального пространства под оборудованием для обеспечения удобного подъезда колясочников - 650 мм в высоту и 400 мм в глубину.

Помещение фототехнического кружка

1 - зона работы на кресле-коляске; 2 - вентилятор для подогрева фильтров; 3 - автоматический фотоувеличитель; 4 - угловое оборудование, облегчающее доступность; 5 - рабочее место высотой 700, глубиной 650 мм и свободной зоной для ног - 400 мм; 6 - ванна для проявки; 7 - полки различной ширины и высоты с закрыванием типа «шторки», а также небольшие индивидуальные шкафы на высоте, доступной инвалидам

iПараметры помещения изостудии и расстановка оборудования должны обеспечивать возможность размещения одного-трех колясочников в зонах наиболее комфортной видимости модели на подиуме и естественного освещения.

Кружковые помещения

А - студия живописи; Б - универсальное помещение; 1 - места для инвалидов; 2 - обычные кружковые места, 3 - место преподавателя

iВ лекционных залах и залах собраний следует предусматривать места для инвалидов-колясочников в количестве приблизительно 1 % при вместимости зала от 50 до 500 человек, а также обеспечивать возможность размещения рядом сопровождающих.

Возможные формы лекционных залов и рекомендуемые места размещения инвалидов-колясочников

А - амфитеатр с креслами и спусками в виде пандусов; Б - амфитеатр с партами и боковым размещением пандусов; 1 - места для инвалидов; 2 - пандусы

ДЕТАЛИ И ЭЛЕМЕНТЫ ОБОРУДОВАНИЯ

iВ ярусных амфитеатрах со встроенными партами рекомендуется расстояние между ними и их высоту увеличивать по сравнению с обычной. Крышки парт также должны быть шире обычных и иметь специальные планки, чтобы предохранить от падения карандаши и бумагу. Устройство индивидуальных светильников важно для инвалидов с дефектами зрения.

Размещение оборудования и места для инвалидов-колясочников в лекционных залах

ВОЗМОЖНОСТИ МНОГОЦЕЛЕВОГО ИСПОЛЬЗОВАНИЯ, КООПЕРИРОВАНИЕ

iКлубы для всего населения, формируемые с учетом потребностей маломобильной категории населения, могут быть как с обычным составом помещений, предназначенных для смешанных коллективов, включающих и здоровых людей, и инвалидов всех категорий, так и с дополнительными помещениями, специально оборудованными для инвалидов (в основном - колясочников).

iДополнительно могут включаться как отдельные специально оборудованные для инвалидов помещения (кабинет врача, душевые, санузлы), так и небольшие блоки помещений (для занятий музыкой и танцами, фотографией, различными ремеслами).

iРекомендуется кооперирование клубных помещений со спортивно-оздоровительными помещениями. При этом особое предпочтение целесообразно отдавать включению в их состав водной рекреации с разнообразными развлекательными устройствами (см. вып. 13 «Физкультурно-оздоровительные сооружения»).

Библиотеки

ОБЩИЕ ПОЛОЖЕНИЯ

iБиблиотечное обслуживание инвалидов различных групп, как правило, осуществляется всеми библиотеками. Рекомендации распространяются на проектирование новых и реконструируемых зданий и помещений массовых, универсальных научных и специальных научных библиотек, а также на специализированные библиотеки, ориентированные на обслуживание посетителей преимущественно какой-либо одной группы инвалидности.

iПри формировании градостроительно-планировочной и организационной структур библиотечного обслуживания инвалидов различных групп рекомендуется выполнение следующих требований:

предоставление инвалидам равноценных с другими группами читателей условий при пользовании услугами библиотечно-информационных учреждений (доступность библиотек для инвалидов всех категорий, проживающих в зоне обслуживания ЦБС)*;

* ЦБС - централизованная библиотечная система.

взаимодополняющее развитие сети стационарных объектов, имеющих специализированные отделы специальных библиотек, предназначенных для обслуживания инвалидов, передвижных и выездных форм и средств библиотечного обслуживания наименее подвижных категорий инвалидов.

iВ зависимости от местных условий и принятого функционально-планировочного решения в библиотеках может быть предусмотрена организация:

обслуживания всех категорий инвалидов во всех читательских отделениях библиотеки;

обслуживания инвалидов с ПОДА и ДЗ в специально оборудованных специализированных отделах;

специализированных функциональных подразделений ЦБС (филиалов), предназначенных для обслуживания инвалидов всех категорий.

iЧисло читательских мест, специально оборудованных и предназначенных для библиотечно-информационного обслуживания инвалидов всех категорий, следует определять для всех видов библиотек предпроектными исследованиями по расчету для каждого функционального подразделения, но не менее 5 % общего числа читательских мест в библиотеках ЦБС. Для обслуживания слепых и слабозрячих в читальных залах следует выделять часть книжного фонда из расчета не менее 10 - 12 специализированных экземпляров литературы с брайлевским шрифтом на одного читателя этой группы инвалидности.

iСпециализированные библиотеки-филиалы, предназначенные для обслуживания всех категорий инвалидов, могут быть организованы (как правило, одна на ЦБС) в условиях крупных и крупнейших городов с численностью инвалидов не менее 250 человек в зоне обслуживания, ограниченной 5 - 15 мин пешеходно-транспортной доступностью. Такие библиотеки рекомендуется организовывать в непосредственной близости с домами для престарелых и инвалидов, с другими специализированными учреждениями для взрослых или детей с нарушениями опорно-двигательного аппарата, зрения и т.д.

ТРЕБОВАНИЯ К УЧАСТКУ

iЗдания библиотек размещаются в соответствии с требованиями СНиП 2.07.01-89* и рекомендациями «Пособия по проектированию библиотек и архивов». Для зданий универсальных и научных библиотек и специализированных библиотек размеры земельных участков определяются заданием на проектирование. Открытые сооружения, включенные в состав участков библиотек, должны предусматривать возможность использования их инвалидами. На земельных участках библиотек подъезд к зданию и площади для стоянки автотранспорта рекомендуется проектировать с учетом возможности использования их инвалидами. С этой целью необходимо предусмотреть:

организацию безопасных и приспособленных для инвалидов переходов со стоянок общественного транспорта;

наиболее близкий подъезд автотранспорта инвалидов и организацию стоянок.

iГоризонтальную планировку озелененных территорий и площадок для чтения на открытом воздухе рекомендуется осуществлять с учетом возможности передвижения инвалидов с недостатками зрения, а также посетителей, пользующихся инвалидными колясками. С этой целью рекомендуется избегать устройства ступеней, неровностей пешеходных дорожек, ведущих к таким площадкам. Подробно требования к организации стоянок, проходов и мест для отдыха даны в вып. 2 Рекомендаций - «Градостроительные требования».

ОБЩИЕ ПЛАНИРОВОЧНЫЕ ПРИНЦИПЫ

iВ основу функционально-планировочного решения библиотек рекомендуется закладывать принцип совместного обслуживания всех категорий инвалидов, не выделяя специализированные помещения для какой-либо одной группы.

iПланировочные требования к среде обитания инвалидов заключаются в том, чтобы она способствовала социальной интеграции, реализации возможностей интеллектуальных контактов инвалидов.

iСоставы и площади помещений библиотек для инвалидов рекомендуется определять индивидуально для каждого случая по местным условиям. Они зависят от численности инвалидов всех категорий, проживающих в зоне обслуживания, от степени развитости функциональных подразделений (объемов фондов в каждом подразделении, характера и форм библиотечного обслуживания), характера и количества необходимых нормализованных функционально-технологических элементов и единичных показателей нормативов площадей на их размещение.

iЖелательно предусматривать простые и ясные типологические и функциональные связи между помещениями и различными функциональными подразделениями библиотеки, которые обеспечат для читателей-инвалидов быстроту ориентации в помещениях обслуживания, рациональную доставку книг читателям, удобные для сотрудников связи между служебными помещениями и помещениями обслуживания читателей.

iВ основу функционально-планировочных решений библиотеки рекомендуется закладывать создание ступенчато-подчиненных композиционных центров: вестибюль и аванзалы, вокруг которых группируются все остальные помещения.

iВ объемно-планировочных решениях библиотек для инвалидов рекомендуется соблюдать требование функционального зонирования помещений и групп помещений, которое должно выполняться преимущественно в одном уровне. Такое зонирование осуществляется как нестационарными средствами - технологическим библиотечным оборудованием и передвижными или раздвижными перегородками, так и стационарными средствами - капитальными стенами и перегородками для подразделений, связанных с аудиовизуальным обслуживанием.

iВ отдельных случаях возможна организация объемно-планировочного решения библиотек в двух уровнях с функциональным зонированием по вертикали. При этом основным противопожарным требованием является наличие двух эвакуационных выходов на каждом этаже.

iВ универсальных научно-технических библиотеках (областных и республиканских) рекомендуется предусматривать весь комплекс организационных технических и функционально-планировочных мер, обеспечивающих пользование библиотекой инвалидами различных групп в той зоне библиотеки, где предполагается организация обслуживания читателей-инвалидов.

iСледует предусмотреть возможность получения в этой зоне всего необходимого инвалиду объема информационных услуг - организацию автоматизированной системы каталога, отражающего фонды библиотеки, получение необходимых справочно-библиографических данных на компьютере, размещение фонда для слепых и слабозрячих.

iВ основе функционально-планировочных решений специализированных филиалов ЦБС для обслуживания инвалидов различных групп необходимо предусматривать:

централизацию обслуживания читателей на основе объединения аванзалов читательских подразделений в одном помещении, что значительно сокращает пути передвижения и упрощает ориентацию инвалидов в библиотеке;

свободный доступ к фондам абонемента и читальных залов, находящихся в открытом доступе, для инвалидов всех групп;

организацию разделения форм обслуживания читателей-инвалидов в читальных залах и абонементе в зависимости от физических недостатков;

создание максимально комфортных условий среды для работы с книгой, общения, взаимопомощи и отдыха инвалидов в библиотеке.

iПри разработке планировочных решений зданий и помещений библиотек необходимо предусматривать применение оборудования и приспособлений, обеспечивающих ориентацию инвалидов и облегчающих их передвижение по библиотеке: пандусы, лифты, поручни, световые табло, окраску стен, световые акценты на стенах и полу.

iВ читальных залах и в зонах читальных залов рекомендуется места, отведенные для читателей-инвалидов, размещать в непосредственной близости к кафедрам выдачи литературы или рядом с местом дежурного библиотекаря.

iВ вестибюлях, аванзалах, холлах и рекреациях, а также на всех основных путях следования инвалидов нежелательно наличие колонн и внешних углов.

ОСНОВНЫЕ ФУНКЦИОНАЛЬНЫЕ БЛОКИ

iВ зданиях (помещениях) библиотек следует предусматривать три основных функциональных блока: обслуживания читателей; хранения и служебно-административный. В наибольшей степени для пребывания инвалидов должен быть приспособлен первый блок.

iВсе помещения блока по обслуживанию читателей: помещения функциональных подразделений абонемента, общий читальный зал, зал специализированного читательского отдела аудиовизуального обслуживания, отдел массовой и групповой работы с читателями-инвалидами, вспомогательные помещения по обслуживанию читателей (помещение вестибюля, зоны отдыха, курительные и санузлы) - должны быть доступны для инвалидов.

iПри размещении в библиотеке буфета-кафетерия рекомендуется располагать его в непосредственной близости от вестибюля или в зоне кружковых, при буфете может быть предусмотрена возможность самостоятельного пользования оборудованием инвалидами.

iВ библиотеках с фондами более 200 тыс. единиц хранения обслуживание инвалидов может быть организовано в отдельном специализированном блоке, размещенном на первом этаже здания.

iСлужебная работа с фондом в небольших библиотеках может проводиться непосредственно в помещениях читательских подразделений сотрудниками-библиотекарями. Однако, учитывая специфику читательского контингента и необходимость в связи с этим увеличения штата сотрудников библиотеки, рекомендуется два небольших помещения выделить для служебной работы и отдыха сотрудников.

iОсновным требованием к функционально-пространственной организации блока обслуживания читателей должно быть создание условий отсутствия психологической изоляции инвалидов от здоровых читателей библиотеки и, напротив, максимальной адаптации их к окружающей среде. Для этого должен соблюдаться ряд условий:

организация обслуживания читателей-инвалидов, передвигающихся на колясках, в уровне первого этажа;

устройство лифтовых подъемников или пандусов на другие этажи библиотеки, где это необходимо для организации обслуживания инвалидов;

организация в читальных залах специальных читательских мест для инвалидов, передвигающихся с помощью коляски;

проведение технических и организационных мероприятий, обеспечивающих комфортные условия передвижения и ориентации инвалидов в библиотеке.

iДля обслуживания слепых и слабозрячих читателей, пользующихся специализированным книжным фондом, может быть рекомендована организация специализированного отдела или выделение читательской зоны в уровне первого этажа библиотеки.

iВ библиотеках желательно предусматривать блок помещений, включающий кружковые и лекционный зал-аудиторию. Все помещения блока должны быть доступны инвалидам. Особенности планировочных решений данного блока помещений даны в разделе «Клубы».

iВ специализированных библиотеках для инвалидов в зале-аудитории следует предусмотреть свободную площадь пола для размещений инвалидных колясок не менее трех мест на каждые 10 мест в аудитории.

ОСОБЕННОСТИ ПЛАНИРОВОЧНЫХ РЕШЕНИЙ ОТДЕЛЬНЫХ ПОМЕЩЕНИЙ

iПлощадь помещений функциональных подразделений должна определяться как сумма площадей, занимаемых набором необходимых нормируемых функционально-технологических элементов, рассчитанных и на здоровых читателей, и на инвалидов. Площадь читательского отдела и абонемента должна состоять из зоны аванзала, зоны (помещений) читального зала с зоной хранения фонда и абонемента:

зона помещения аванзала определяется как сумма площадей, занимаемых здоровыми посетителями и инвалидами, одновременно в нем находящихся, стеллажами выставки новых поступлений, каталожными шкафами с местами для работы, кафедрами выдачи литературы с подсобными фондами закрытого хранения;

зона помещения читального зала определяется как сумма площадей, занимаемых читательскими местами для здоровых людей;

местами для инвалидов, имеющих слабое зрение, инвалидов в креслах-колясках, другими группами инвалидов и престарелых;

стеллажами фондов открытого доступа справочной литературы, рабочими местами сотрудников-методистов, вспомогательным оборудованием;

зона абонемента определяется как сумма площадей занимаемых стеллажами с разными по габаритам и видам носителями информации в открытом доступе и закрытом хранении, рабочим местом сотрудника.

iВ абонементе часть фонда рекомендуется выделять для хранения литературы с брайлевским шрифтом, предназначенной для слепых и слабозрячих.

iВ городских библиотеках ЦБС для обслуживания читателей с недостатками зрения рекомендуется выделять фонд не менее 2,5 тыс. экземпляров литературы с брайлевским шрифтом и не менее четырех читательских мест. Общая площадь этой зоны принимается не менее 32 м2.

iВ зоне обслуживания слепых и слабозрячих читательские места и специальные стеллажи с литературой на брайлевском шрифте рекомендуется оборудовать добавочным освещением. При размещении читательских мест и фондов открытого доступа для читателей, обладающих слабым зрением, необходимо предусматривать высокий уровень естественной освещенности этой читательской зоны (КЕО - 2,5 %), а уровень освещения читательского стола не менее 1000 лк.

iНеобходимо предусмотреть отдельное помещение для функционального подразделения, где используются аудиовизуальные средства обслуживания. Для слабослышащих читателей помещения аудиовизуального обслуживания и помещения для групповой работы - кружковая и аудитория - должны быть изолированы планировочно, а также техническими средствами.

iВ помещении аудиовизуального обслуживания можно предусматривать зону для организации аутотренинга, предназначенного для психологической разгрузки, прослушивания музыки. Помещение должно быть радиофицировано, оборудовано аппаратурой для прослушивания музыки, креслами и при необходимости столами. Ряд кресел следует оборудовать специальным устройством для снятия мышечного напряжения с рук слепых.

iСпециальную зону для работы инвалидов в читальных залах рекомендуется оборудовать следующим образом: четыре читательских места за одноместными столами пригодны для работы инвалидов на колясках, специальные стеллажи с наклонными полками для размещения как обычной литературы, так и книг с брайлевским шрифтом (не менее двух стеллажей вблизи читательских мест). В зоне должны находиться несколько банкеток, кресел или стульев. Желательно наличие одного каталожного столика с каталогом, выполненным брайлевским шрифтом. Все проходы внутри зоны должны иметь ширину не менее 1,2 м. Размер рабочего места инвалида (без учета поверхности стола) должен быть 1,5´0,9 м.

Специализированное читальное отделение в городской библиотеке

ВОЗМОЖНОСТИ МНОГОЦЕЛЕВОГО ИСПОЛЬЗОВАНИЯ СООРУЖЕНИЙ, КООПЕРИРОВАНИЕ

iВозможно кооперирование библиотек с другими учреждениями культуры: музеями, клубами, архивами, книжной торговлей, учреждениями общества «Знание», центрами досуга и т.д. Кооперированное размещение библиотек должно быть основано на общей деятельности учреждений и создает значительные удобства для инвалидов в связи с увеличением выбора видов деятельности при единовременном посещении.

iВсе планировочные структуры библиотек и кооперируемых учреждений по назначению рекомендуется подразделять на три функционально-планировочные зоны.

iВ первую зону предлагается включать:

общие помещения для здоровых и инвалидов, в том числе вестибюль, гардероб, зоны отдыха, санитарные узлы, буфеты, помещения для реабилитационных занятий с инвалидами и т.д.

вводное пространство, включающее общее информационное обслуживание всех посетителей;

лекционно-демонстрационную группу помещений, помещения для групповой работы и индивидуальных занятий;

часть служебно-вспомогательных помещений, в том числе для обслуживающего персонала общественного совета, мастерские, помещения уборочного инвентаря;

производственно-вспомогательную группу помещений, в том числе, копировально-множительные службы, машбюро, экспедицию.

iВо вторую зону рекомендуется включить все помещения и группы помещений, которые могут быть объединены общими коммуникациями: административные, бытовые и служебно-вспомогательные, в том числе кабинеты дирекции, канцелярию, бухгалтерию, служебный вестибюль с гардеробом, душевые и санузлы, кладовые библиотечного, музейного, клубного или другого оборудования и технических средств. В эти помещения доступ инвалидов не обязателен.

iВ третью зону рекомендуется включать помещения и группы помещений, не имеющие совместного использования для кооперируемых учреждений. Такие планировочные зоны или блок-секции должны быть изолированы друг от друга: помещения читальных залов, специализированные читательские отделы для обслуживания инвалидов с недостатками зрения, помещения детских читальных залов и абонементы, помещения хранения, специализированные служебно-производственные функциональные подразделения.

iПомещения библиотек клубов и Домов культуры рекомендуется размещать в кружковой группе помещений при условии организации наиболее прямых и коротких связей с главным вестибюлем. Возможна организация отдельного вестибюля, обеспечивающего автономное функционирование библиотечно-кружковых помещений и создание наибольших удобств для пользования библиотекой инвалидами.

ДЕТАЛИ И ЭЛЕМЕНТЫ ОБОРУДОВАНИЯ

iПоверхность рабочего одноместного стола для инвалида должна иметь регулируемый наклон, матовую наружную поверхность. Стол должен быть оборудован книгодержателями и настольной лампой с жестким закреплением на столе. Габариты стола 900´600´730 мм. Он является модификацией рабочего стола ММБ-1. Стеллаж настенный должен иметь габариты 1080´208´1200 мм и наклонные полки. Он является модификацией стеллажа ММБ-30 и предназначен как для традиционного, так и для витринного размещения книг. Максимальная высота помещения стеллажа не должна превышать предела досягаемости инвалидом, сидящим в коляске - 1,6 м.

Библиотечное оборудование для инвалидов

А - рабочий стол; Б - зона расположения стеллажей для книг; В - секции стеллажей, общий вид

Музеи

ОБЩИЕ ПОЛОЖЕНИЯ

iВо всех типах музеев, независимо от места их размещения - городских, загородных (этнографические, мемориальные, археологические, ландшафтные), сельских - необходимо предусматривать меры по обеспечению доступности инвалидов.

iПо своей посещаемости различными группами инвалидов музеи занимают исключительное место. Особенной популярностью среди всех возрастных групп инвалидов пользуются художественные и историко-краеведческие, а также естественно-научные и технические музеи, в связи с чем при разработке специальных мер по обеспечению их доступности первоочередное внимание должно быть уделено этим группам музеев.

iРекомендуется при разработке тематико-эксплуатационных планов музеев отводить специальный раздел, посвященный комплексной разработке мероприятий по приспособлению и использованию их инвалидами.

ОБЩИЕ ТРЕБОВАНИЯ К УЧАСТКУ

iГрадостроительная ситуация, транспортная доступность и собственно участок музея имеют существенное значение в создании надлежащих условий для пребывания инвалидов в музеях. Рекомендуется по возможности центральное расположение музея в городе, что актуально для всего населения, а в особенности для маломобильной его категории. Соблюдение данного требования обеспечивает равнодоступность музея для здоровых посетителей и инвалидов из разных районов, экономию времени, разнообразие культурных программ благодаря кооперации различных учреждений культуры. Близость парка важна с точки зрения создания необходимых рекреационных зон и отдыха посетителей.

iС точки зрения посещаемости музеев инвалидами особое значение следует уделять соблюдению определенных требований в отношении входной, эксплуатационной и рекреационной зон участка музея.

iВходная зона служит для адаптации инвалидов перед посещением музея, местом сборов, экскурсий и ожидания. По своей площади она должна быть достаточной для размещений групп инвалидов на колясках. Здесь располагается реклама и информация, удобная для инвалидов. Стоянки для автобусов и автомашин следует размещать максимально близко от входа.

iСледует обеспечить беспрепятственный доступ всех категорий инвалидов в экспозиционную зону участка, которая является продолжением постоянной экспозиции здания и предназначается для размещения различных экспонатов под открытым небом: скульптур, архитектурных фрагментов, крупногабаритных экспонатов и т.д.

iПри наличии резких перепадов рельефа, ценных зеленых насаждений и т.д. возможно оборудование части зоны для приема посетителей с физическими недостатками. Благоустройству этой зоны, расположенной на открытом воздухе, надо уделять повышенное внимание, так как для некоторых категорий инвалидов она наиболее предпочтительна.

iЧасть рекреационной зоны музеев должна быть предназначена для инвалидов и иметь достаточную площадь для размещения небольших групп инвалидов на колясках. Обязательно наличие сидячих мест. Рекреационная зона может быть совмещена с входной или эксплуатационными зонами.

iОбщие требования к планировке участков подробно даны в вып. 2 Рекомендаций - «Градостроительные требования».

ОБЩИЕ ПЛАНИРОВОЧНЫЕ ПРИНЦИПЫ

iПри многоуровневой схеме размещения экспозиционных площадей рекомендуется схема осмотра сверху вниз. При этом верхние этажи отводятся под экспозицию, формируемую вокруг ядра вертикальных коммуникаций или многосветного пространства. Желательно чередовать участки осмотра с наклонной и с горизонтальной поверхностями передвижения.

iДля приема и перемещения инвалидов по музею возможно использование грузового лифта, который обычно располагается со стороны служебного входа в музей и проектируется для осуществления технологической связи фондохранилищ, мастерских и различных служб с экспозиционными залами.

iС учетом более медленного осмотра инвалидами экспозиции и более быстрой их утомляемости необходимо предусматривать в экспозиционных залах зоны для кратковременного отдыха.

iВ оборудование экспозиций необходимо включать разнообразные аудиовизуальные средства, облегчающие посетителям-инвалидам осмотр и усвоение представленного материала.

iДля посетителей-инвалидов важно не только побывать в экспозиционных помещениях, но и ознакомиться с работой реставраторов, увидеть процесс подготовки выставки, почувствовать свою причастность к различным функциональным процессам. В связи с этим желательно обеспечить доступ в служебные зоны, где отдельные помещения со стороны коридора остеклены.

Схема взаимосвязей основных зон музея, посещаемого инвалидами

iВысокий уровень комфортности пребывания инвалидов в музеях может быть достигнут при размещении экспозиции в одном уровне и благодаря устройству пандусов и лифтов при многоуровневой организации экспозиции. При этом желательно придерживаться общепринятой схемы расположения основных зон музея.

iНаиболее рациональной планировочной структурой для музеев с выставочной площадью от 2 до 5 тыс. м2 является двух (трех)-этажная композиция здания с зонированием помещений по схеме, когда экспозиционные залы, занимающие 45 - 50 % полезной площади, располагаются на втором (третьем) этажах вокруг многосветного вводного зала. Первый этаж отводится под вестибюль, вводный зал, кинолекционный зал и студии. Таким образом достигается максимальное сокращение пути перемещения посетителей-инвалидов по маршруту главный вход - вестибюль - экспозиционные залы, студии и выставки - выход.

Зонирование основных групп помещений при многоэтажной композиции здания музея, посещаемого инвалидами

1 - вестибюль; 2 - обслуживающие помещения; 3 - административные, рабочие помещения и фонды, 4 - 5 - экспозиционные залы; 6 - зоны расположения лифтов

ОСНОВНЫЕ ПЛАНИРОВОЧНЫЕ ПРИНЦИПЫ

iВ музеях с выставочной площадью до 10 тыс. м2 все помещения целесообразно располагать в одном горизонтальном уровне. Характерный вариант объемно-планировочной композиции - размещение экспозиционных залов и остальных помещений по разные стороны от главного входа. В вестибюле находятся гардероб, киоски, дальше - лекционный зал с самостоятельным входом, хранилища, административные помещения и библиотека. Функциональное разделение помещений на две основные группы закрепляется введением внутреннего дворика для экспозиций под открытым небом. Все помещения получают естественное освещение. Кольцевая экспозиция вокруг двора обеспечивает четкий график движения с возвратом ко входу.

Зонирование основных помещений музея при одноэтажной композиции здания музея, посещаемого инвалидами

1 - вестибюль; 2 - гардероб; 3 - информационное обслуживание; 4 - буфет; 5 - фонды и администрация; 6 - экспозиционные залы; 7 - внутренний дворик; 8 - выставки; 9 - доступные санузлы; 10 - лекционный зал

ОСНОВНЫЕ ФУНКЦИОНАЛЬНЫЕ БЛОКИ

iСодержание экспонатов и обслуживание посетителей составляют основу деятельности музеев, определяют структуру, взаимосвязь и площади помещений. Рекомендуется следующая степень доступности инвалидов в основные функциональные блоки.

Функция

Место

Степень доступности инвалидами

Содержание экспонатов

Показ

Экспозиционные и выставочные залы

Для всех групп

Сбор и хранение

Фондохранилища и реставрационные мастерские

В исключительных случаях

Изучение

Рабочие комнаты

Желательно оборудование специальных комнат

Обслуживание посетителей

Прием

Вестибюль, кинолекционный зал, кружковые

Для всех групп

Показ

Экспозиционные и кружковые залы

То же

Информация

Информационные службы, библиотека

Для всех групп, специальное оборудование и подготовка музейного персонала по приему инвалидов

iЦелесообразно включение в состав музея блока оборудованных для инвалидов помещений для занятий кружков и студий.

iС точки зрения обслуживания инвалидов при проектировании новых зданий музеев или реконструкции существующих из всей многофункциональной структуры музея преимущественное значение имеет планировочная организация вестибюльной, экспозиционной и выставочной, кинолекционной и студийной групп помещений.

Состав и взаимосвязь помещений музея

а - фондохранилище; 1 - приемная экспонатов; 2 - рабочее помещение; 3 - 7 - фондохранилище; 8 - техническое помещение; 9 - сотрудники; 10 - экспонаты; 11 - служебный вход; б - экспозиционная часть: 1 - постоянная экспозиция; 2 - временные выставки; 3 - зона отдыха; 4 - открытые экспозиции; в - дезинфекционная; г - фотолаборатория; д - реставрационная мастерская; е - склад музейного оборудования; ж, з - мастерские; и - канцелярия; к - комната общественных организаций; л - помощник научного сотрудника; м - библиотека; н - администрация; о - кружковая; п - касса; р - киоск; с - лекционный зал; т - посетители; у - главный вход, ф - контроль; х - охрана; ц - гардероб; ч - экскурсионное бюро; ш - курительная, туалет; щ - буфет

 - зоны наиболее вероятного посещения инвалидами

ОСОБЕННОСТИ ФУНКЦИОНАЛЬНО-ПЛАНИРОВОЧНЫХ РЕШЕНИЙ ОТДЕЛЬНЫХ ПОМЕЩЕНИЙ

iВестибюль является важным коммуникационным узлом, где начинаются и заканчиваются маршруты осмотра. Из вестибюля должна быть обеспечена возможность беспрепятственного доступа для инвалидов в экспозиционные и выставочные и кинолекционные залы, в администрацию и кружковые комнаты.

iПланировочная организация вестибюля музея должна учитывать возможность использования его инвалидами: место сбора индивидуальных посетителей и экскурсионных групп должно быть достаточным по площади для удобного размещения инвалидов на колясках, информационная зона должна учитывать специфику восприятия всех групп инвалидов, т.е. предоставлять информацию визуального, аудиовизуального и тактильного характера. Информация для инвалидов должна содержать сведения о расположении тематических залов, а также включать рекомендации наиболее удобных для них маршрутов осмотра. На площади вестибюля желательно предусматривать помещения для дежурных экскурсоводов, инвалидов и сопровождающих.

iС учетом приема маломобильных посетителей желательно расположение всех помещений вестибюльной группы в одном уровне и оборудование хотя бы одной сантехнической кабины специально для инвалидов. В крупных музеях следует предусматривать медпункт для оказания экстренной помощи инвалидам, расположенный недалеко от лифта и входа.

iДля обеспечения условий адекватного восприятия экспозиций особое внимание следует уделять организации среды экспозиционных залов.

iВ экспозиционных помещениях, предназначенных для слабовидящих инвалидов, экспонаты следует располагать на длинном столе, размещенном в центре зала, что обеспечивает к ним свободный доступ. Вокруг стола на расстоянии 10 см от края по полу нужно предусматривать полосу шириной 0,9 м, отличающуюся по своей фактуре и цвету от остальной части пола. Экспонаты должны располагаться на вращающихся подставках, на которых укреплены информационные пластинки с шрифтом Брайля. На несколько (3 - 4) экспонатов в столе монтируется вывод наушников с кнопкой включения, благодаря которым можно получить информацию об этих экспонатах.

iДля инвалидов на колясках требуется понижение высоты развески плоскостных материалов с 156 до 125 см.

iДля инвалидов с ослабленным зрением этикетаж рекомендуется выполнять объемным. Часть экспонатов возможно представлять в виде слепков, допускающих их ощупывание, внедряя тем самым программу «видеть посредством рук».

iВ кружковых помещениях рекомендуется выделять две зоны: для занятий 10 человек - площадью 40 м2 и для хранения материалов и инструментов - площадью 5 м2.

iС учетом порога утомляемости инвалидов (усредненное время оптимального восприятия экспозиции составляет 1,5 ч) ведущие экспонаты лучше всего размещать на пути основных маршрутов движения. При этом визуально важно ограждение выступающих, свободностоящих предметов.

iВ нижней части экспозиции, приближенной к полу, рекомендуется повышать уровень освещенности.

ОСОБЕННОСТИ ПЛАНИРОВОЧНЫХ РЕШЕНИЙ ОТДЕЛЬНЫХ ПОМЕЩЕНИЙ

iВ составе музеев желательно предусматривать экспозиционные помещения, используемые в целях организации специальных выставок для инвалидов с ослабленным зрением. Особенность таких помещений - ограниченное число экспонатов, в основном для тактильного и цветового восприятия объемных произведений искусства (скульптуры, макеты, предметы дизайна и т.п.). В таких помещениях желательно наличие дополнительных свободных зон для прослушивания сопровождающей музыки и тактильного восприятия экспонатов.

Планировка и оборудование экспозиционного зала для инвалидов

1 - обозначение направления движения; 2 - непрерывный поручень для рук между предметами; 3 - экспонаты на цоколе

ВОЗМОЖНОСТИ МНОГОЦЕЛЕВОГО ИСПОЛЬЗОВАНИЯ, КООПЕРИРОВАНИЕ

iВключение музея, посетителями которого являются и инвалиды, в комплекс учреждений культуры вместе с другими музеями, театром, выставочным залом, библиотекой и другими досуговыми учреждениями представляется чрезвычайно плодотворным. Кооперация дополняет функциональную программу музея и привлекает новые категории не только здоровых посетителей, но и инвалидов.

iПри кооперировании разнообразные функциональные зоны, наиболее посещаемые инвалидами (экспозиция, выставки, кружковые комнаты, лекционный зал, библиотека), по возможности должны быть приближены к вестибюлю.

iВозможно универсальное использование экспозиционных залов для проведения встреч, концертов, выступления артистов и вернисажей с участием инвалидов.

ДЕТАЛИ И ЭЛЕМЕНТЫ ОБОРУДОВАНИЯ

iВитрины в экспозиционных залах, посещаемых инвалидами на колясках, при навесном варианте должны размещаться на высоте, доступной для визуального восприятия с коляски, а при горизонтальном размещении - иметь достаточное пространство для ног при подъезде на коляске вплотную.

Варианты и основные параметры демонстрационных витрин для инвалидов на колясках

А - горизонтальные витрины; Б - навесные витрины

iОборудование в экспозиционных залах музеев для слепых и слабовидящих должно быть подобрано по принципу возможности осязания предметов. Витрины должны быть оборудованы системой информации для слепых (брайлевский шрифт, указатели и т.п.). Возможно наличие аудиопутеводителя.

iПри подсветке экспонатов необходимо устройство комбинированного (общего и местного) освещения, с целью компенсации недостатка в нем для инвалидов с низкой остротой зрения.

iПри разработке оборудования и проектировании интерьеров рекомендуется учитывать, что на ахроматическом фоне лучше других различаются красные и желтые цвета, а ахроматические объекты распознаются лучше на синем и желтом фоне.

Специальное музейное оборудование для слепых и слабовидящих

1 - удобный и безопасный ящик для ценных экспонатов с отверстиями для рук, чтобы «трогать»; 2 - крупный заголовок, расположенный под прямым углом к лучу зрения; 3 - надписи на брайлевском шрифте для горизонтального чтения; 4 - непрерывный деревянный поручень с округленными и хорошо обработанными краями (800 мм от пола); 5 - стрелки на цоколе для обозначения направления движения и мест поворотов

Приложение

ОБЩИЙ ПЕРЕЧЕНЬ РЕКОМЕНДАЦИЙ ПО ПРОЕКТИРОВАНИЮ ОКРУЖАЮЩЕЙ СРЕДЫ, ЗДАНИЙ И СООРУЖЕНИЙ С УЧЕТОМ ПОТРЕБНОСТЕЙ ИНВАЛИДОВ И ДРУГИХ МАЛОМОБИЛЬНЫХ ГРУПП НАСЕЛЕНИЯ

Номер выпуска

Наименование выпуска

1

Общие положения

2

Градостроительные требования

3

Жилые здания и комплексы

4

Общественные здания и сооружения. Учреждения бытового обслуживания населения и общественного питания

5

Общественные здания и сооружения. Учреждения торговли

6

Общественные здания и сооружения. Специализированные детские дошкольные учреждения

7

Общественные здания и сооружения. Учреждения учебно-воспитательные: общеобразовательные школы и профессиональные учебные заведения

8

Общественные здания и сооружения. Высшие учебные заведения

9

Общественные здания и сооружения. Стационарные коррекционные учреждения для детей-инвалидов: дома-интернаты, школы-интернаты

10

Общественные здания и сооружения. Учреждения лечебно-профилактические: поликлиники, аптеки

11

Общественные здания и сооружения. Учреждения санаторно-курортного лечения и отдыха

12

Общественные здания и сооружения. Спортивные сооружения

13

Общественные здания и сооружения. Физкультурно-оздоровительные сооружения

14

Общественные здания и сооружения. Кинотеатры, клубы, библиотеки, музеи

15

Общественные здания и сооружения. Театры, театры-студии, цирки, спортивно-зрелищные залы, стадионы

16

Общественные здания и сооружения. Учреждения управления и информации, проектные и научно-исследовательские организации

17

Общественные здания и сооружения. Учреждения кредитно-финансовые

18

Общественные здания и сооружения. Культовые здания и сооружения различных конфессий

19

Общественные здания и сооружения. Здания и сооружения транспортного назначения

20

Промышленные предприятия, здания и сооружения для труда инвалидов различных категорий

21

Реконструкция и модернизация зданий и сооружений

22

Мероприятия по обеспечению эвакуации инвалидов в экстремальных условиях

Список литературы

1. Клубы. Архитектору-проектировщику / Е. Милашевская, Н. Пряничников, М. Савченко. - М.: Стройиздат, 1990.

2. Инструкция по проектированию библиотек СИ-548-82 / Под ред. Я.И. Мышковского, А.С. Кравченко. - М.: Стройиздат, 1983.

3. Организация работы централизованной библиотечной системы: Инструкция и учет / Мин. культуры СССР. - М.: Книга, 1985.

4. Провести комплексное исследование по градостроительному нормированию и функционально-планировочной организации массовых библиотек в условиях централизации: Отчет о НИР. - М.: ВТИИЦ, гос. регистрации 81058548, 1983.

5. Countryside Commission. Interpretation in Visitors Centres, occasional paper, 10, 1978.

6. Keen, Carolyn et. Al. Visitor Services and People with a Desability, in Museum Journal, volume 84, 1. Gune/Guly 1984.

7. Mathingley Jenny. Volunteers in Museum and Gallenes, Volunteer Centre, 1984.

8. Coles, Peter Touch Repot an evaltuation of the British Museum exhibition of animal sculpture, Committee of Inquiry into the arts and Disabled People, 1984.

9. Miles, R. S. The Lesign of Educational Exhibits, allen and Unuin, 1984.

10. Lord, Geoggrey. The Arts and Desabilities, Mac Donald Publishers, Edinburgh, 1981.

11. Levete, Gina. No Handicap to Dance, Human Horizon Series of Souvenir Press London, 1982.

12. Association of Metropolitan Authorities. Leisure Services for the Desadvataged, AMA, London, 1982.

13. Disability Alliance, Spasties Society and Central Link Programme, Disability Rights Handbook, 1985.

14. Dobinson, Gohn. Access v Egress in Design for Special Needs, no 34, Centre on Environment for the Handicapped, May/August 1984.

15. Meredith, Priscilla, Employing Desabled Performers in Media Progect News, Equity. March 1985.

16. Committee of Inquiry into the Arts and Desabled People Art and Desabled People, report of the Attenbough Committee, Bedford Square press for Carnegie UK Trust, chapters. 10.32, 10.33, 1985.

СОДЕРЖАНИЕ

 




Rambler's Top100 Яндекс цитирования
  Copyright © 2008-2026, www.docload.ru