Бесплатная библиотека стандартов и нормативов www.docload.ru

Все документы, размещенные на этом сайте, не являются их официальным изданием и предназначены исключительно для ознакомительных целей.
Электронные копии этих документов могут распространяться без всяких ограничений. Вы можете размещать информацию с этого сайта на любом другом сайте.
Это некоммерческий сайт и здесь не продаются документы. Вы можете скачать их абсолютно бесплатно!
Содержимое сайта не нарушает чьих-либо авторских прав! Человек имеет право на информацию!

 

Проектирование предприятий розничной торговли

СПРАВОЧНОЕ ПОСОБИЕ К СНиП

МОСКВА

СТРОЙИЗДАТ

Государственный научно-проектный институт учебно-воспитательных, торгово-бытовых и досуговых зданий (Институт общественных зданий) Минстрой России

Серия основана в 1989 году

Проектирование предприятий розничной торговли

1992

Рекомендовано к изданию Научно-техническим Советом Института общественных зданий Минстроя России (бывший ЦНИИЭП учебных зданий Госкомархитектуры).

Редактор Л.В. Павлова

Проектирование предприятий розничной торговли/Государственный научно-проектный институт учебно-воспитательных, торгово-бытовых и досуговых зданий.

 

Разработано к СНиП 2.08.02-89 "Общественные здания и сооружения". Изложены рекомендации по объемно-планировочным и конструктивным решениям, противопожарным мероприятиям, применяемым материалам, инженерному оборудованию и экономике проектных решений зданий предприятий розничной торговли.

Для архитекторов и проектировщиков научно-исследовательских и проектных организаций.

Предисловие

Изложены рекомендации по объемно-планировочным и конструктивным решениям, противопожарным мероприятиям, применяемым материалам, инженерному оборудованию и экономике проектных решений зданий предприятий розничной торговли.

Пособие разработано ЦНИИЭП учебных зданий (канд. арх-ры И.П. Васильева, архит. А.Б. Варшавер).

В Пособии использованы материалы по проектированию предприятий розничной торговли, подготовленные ЦНИИЭП торгово-бытовых зданий и туристских комплексов (архит. А.Б. Варшавер, инж. Т.С. Максимова при участии:

инж. Т.Н. Полякова, канд. искусств М.А. Кликич, архит. М.П. Коробкова, инженеры Е.В. Калугин, Г.И. Мелкова, Г.А. Цаплинова, Т.А. Проскурина, А.А. Грибанов, Ф.М. Двосин, кандидаты техн. наук В.Л. Морозенский, Б.А. Дмитриев, А.С. Семченков, Е.И. Десятник, инженеры З.Н. Красник-Рудин, В.С. Городинский, Л.А. Пронштейн, И.М. Кириллова, Э.М. Журавлева, М.Б. Мирская, канд. техн. наук А.Д. Вепринский); КиевЗНИИП (кандидаты архит. А.А. Гайдученя, В.А. Абызова); Гипроторга (архит. О.А. Велихорецкий, инж. Л.Б. Немцова); Центросоюзпроект (канд архит. Е.В. Кувинова, инж. М.В. Синюгина); ЦНИИСК им. Кучеренко (д-р техн. наук В.Д. Райзер, кандидаты техн. наук А.А. Бать, А.П. Булычева).

1. ОБЩИЕ ПОЛОЖЕНИЯ

1.1. Пособие является рекомендательным документом по проектированию предприятий розничной торговли, оно способствует выполнению требований СНиП 2.08.02-89, СНиП 2.08.01-89 (для предприятий, встроенных в жилые дома), СНиП 2.01.02-85, а также СНиПов и других нормативных документов, упомянутых в СНиП 2.08.02-89, в которых формулируются требования по проектированию отдельных разделов проектов.

Кроме того, в Пособии использованы действующие указания и инструкции по проектированию предприятий розничной торговли Госстроя СССР, Госкомархитектуры, Минторга СССР, Главного государственного врача СССР и Главного государственного ветеринарного инспектора СССР.

1.2. Проектирование осуществляется с учетом климатических, экологических, гидрогеологических, демографических, национально-бытовых и других местных условий в конкретных районах строительства. При проектировании следует также руководствоваться СНиП 2.01.01-82 "Строительная климатология и геофизика" и дополнением в БСТ № 10, 1984 г. - карта II климатических районов.

При проектировании для строительства в сейсмических районах (7-9 - балльности), на вечномерзлых просадочных грунтах и подрабатываемых территориях учитываются специальные требования, соответствующие природным условиям конкретных площадок строительства.

1.3. Пособие распространяется на разработку индивидуальных и типовых проектов для строительства новых объектов и реконструкции действующих предприятий розничной торговли, расположенных в отдельно стоящих зданиях, встроенных и пристроенных к зданиям иного назначения, а также предприятий, которые включены в состав торговых, торгово-общественных и других многофункциональных объектов комплексного обслуживания населения, включая магазины при рыночных комплексах, независимо от ведомственной принадлежности предприятий розничной торговли.

В Пособии даны также рекомендации по проектированию магазинов заказов.

Предложения по проектированию предприятий розничной торговли разработаны для применения во всех городах и населенных пунктах страны.

Пособие не распространяется на разработку проектов по объектам рыночной торговли.

1.4. Расчетную величину (мощность) магазина следует определять размером торговой площади, в состав которой включается площадь для дополнительного обслуживания покупателей (кроме помещений для приема стеклопосуды).

Расчетная величина (м2 торговой площади) устанавливается заданием на проектирование. Возможность увеличения торговой площади в процессе проектирования и эксплуатации магазинов за счет неторговых (складских, подсобных и других) площадей используется по мере совершенствования товародвижения и внедрения прогрессивных систем механизации и автоматизации, а также доставки товаров в таре-оборудовании в фасованном и подготовленном к продаже виде.

Расчетная величина магазинов заказов определяется суммарной нормируемой площадью по группам помещений (прил. 3). Ранее действовавшая система определения величин магазинов заказов по количеству заказов не отражает фактическую мощность предприятия, ибо количество комплектуемых заказов не является величиной постоянной и зависит от содержания заказов (стандартные, индивидуальные) и количества наименований продуктов в каждом заказе. На 1 м2 нормируемой площади магазина заказов может комплектоваться от 1,5 до 4-5 заказов в смену.

1.5. Прогресс в проектных решениях предприятий розничной торговли может быть достигнут только на основе комплексного подхода к решению задач путем:

учета градостроительных условий размещения предприятий в системе городской (поселковой) застройки;

формирования объемно-планировочных структур, отвечающих технологическим требованиям и создающих оптимальную среду, как для покупателей, так и для персонала;

внедрения экономичных конструктивных систем, строительных и отделочных материалов, обеспечивающих возможность создания выразительных по архитектуре и интерьерам зданий;

применения высокопроизводительных, экономичных в эксплуатации типов инженерного оборудования в соответствии с санитарными требованиями и задачами повышения культуры эксплуатации предприятий.

1.6. Пособие по проектированию предприятий розничной торговли содержит рекомендации, отвечающие прогрессивным направлениям развития, приведенным в п. 1.5 Пособия, и состоит из 5 основных разделов; общие положения; размещение в системе городской (поселковой) застройки и генплан территории (участка); объемно-планировочная структура предприятий; конструкции и материалы; инженерное оборудование.

Обеспечение пожарной безопасности является важнейшим нормативными требованиями СНиПа. В составе Пособия это требование получило необходимое развитие во всех его разделах.

Пособие сопровождается приложениями, в которых приводятся:

термины, характеризующие специфику отдельных понятий, принятых в проектах предприятий; нормативные требования СНиП 2.08.02-89 (пункты, таблицы, приложения), обязательные для применения при проектировании предприятий розничной торговли; рекомендации по составу помещений в зависимости от специализации предприятий; примерные контрольные расчетные показатели величины нормируемой площади по группам помещений; нагрузки от оборудования, товаров и людей в торговых залах и кладовых.

Приводятся рекомендации по составу исходной документации для разработки проектов и по оценке технического уровня и качества разработанной документации.

Пособие иллюстрируется рисунками с примерами возможных решений генпланов и планировочными схемами отдельных магазинов и наиболее значимых планировочных узлов предприятий розничной торговли.

1.7. При использовании Пособия для разработки проектов реконструкции действующих предприятий необходимо обеспечить индивидуальный подход к каждому объекту с учетом его конкретных особенностей и создать современное по технологии предприятие, оснащенное прогрессивными средствами механизации и автоматизации производственных процессов, допуская отдельные отступления от СНиПа в соответствии с принятой методикой по разработке проектов реконструкции.1

___________

1 Рекомендации по проектированию реконструкции действующих торгово-бытовых предприятий с учетом возможности применения прогрессивных технологий/ЦНИИЭП торгово-бытовых зданий и туристских комплексов Госкомархитектуры (М., 1988).

По результатам реконструкции должно быть создано предприятие, приближающееся к требованиям для нового строительства.

На проектной стадии реконструкции должны быть проведены всесторонние обследования действующих предприятий с оценкой существующего положения (состояния несущих конструкций, объемно-планировочного и технологического решений, архитектуры, благоустройства, рекламы и т.п.) и рациональности проведения реконструкции, имея в виду задачу сокращения капитальных затрат по сравнению с новым строительством и возможное увеличение мощности предприятий, что и явится подтверждением приоритетности направления на реконструкцию действующих предприятий.

При разработке проектов реконструкции следует пользоваться действующими нормативными требованиями.1

____________

1  "Положение об организации и проведении реконструкции, ремонта и технического обследования жилых зданий, объектов коммунального хозяйства и социально-культурного назначения".

2. РАЗМЕЩЕНИЕ ПРЕДПРИЯТИЙ РОЗНИЧНОЙ ТОРГОВЛИ В СИСТЕМЕ ГОРОДСКОЙ (ПОСЕЛКОВОЙ) ЗАСТРОЙКИ И ГЕНЕРАЛЬНЫЙ ПЛАН ТЕРРИТОРИИ (УЧАСТКА)

2.1. Размещение предприятий в системе застройки города, поселка, сельского населенного пункта, их величину и специализацию следует определять предварительно разрабатываемыми перспективными планами (схемами) развития и размещения предприятий розничной торговли (желательно в комплексе с предприятиями культурно бытового назначения) с учетом как нового строительства, так и реконструкции действующих предприятий и возможностью (при необходимости) их переспециализации.

2.2. Перспективные планы должны отвечать требованиям внедрения рациональной системы торгового обслуживания населения, в составе которой взаимодействуют предприятия местного и городского (межселенного) обслуживания.

Предприятия местного значения размещаются относительно равномерно в жилой зоне города (населенного пункта) в пределах пешеходной доступности (до 500 м).

Предприятия городского (межселенного) значения (универсальные и специализированные магазины) характеризуются широким ассортиментом продовольственных и особенно непродовольственных товаров. Их размещение определяется, прежде всего транспортными связями. При этом возможно увеличить затраты времени на их посещение по сравнению с предприятиями местного значения.

Сеть городского обслуживания должна формироваться с учетом размещения предприятий на магистралях и площадях, вблизи остановок городского транспорта, станций метрополитена, железнодорожных и автобусных вокзалов, заводских территорий и т.д.

2.3. Объекты городского комплексного обслуживания населения (торговые, торгово-общественные и другие многофункциональные центры) рекомендуется размещать в одном-двух зданиях (кооперированная система) или в отдельных блоках. При блокированной системе центры обслуживания могут формироваться также с включением в их состав встроенных и пристроенных к жилым домам предприятий обслуживания населения.

2.4. Встроенные и встроенно-пристроенные предприятия следует размещать в жилых домах, ориентированных преимущественно на площади, магистрали и улицы и интенсивным движением городского транспорта и пешеходов.

2.5. Магазины заказов следует размещать в отдельно стоящих зданиях и располагать их, как правило, в коммунально-складских зонах, в периферийных районах городов, вблизи промпредприятий, при железнодорожных вокзалах, автобусных станциях и т.д.

Размещение магазинов заказов в коммунально-складской зоне является наиболее целесообразным, позволяющим централизовать производственный процесс комплектации, повысить его эффективность и укрупнить это предприятие, снизив объем капиталовложений и затраты на эксплуатацию.

2.6. Генеральный план участка отдельно стоящего здания магазина (рис. 1) следует зонировать, выделяя пешеходную зону, преимущественно перед главным фасадом здания и хозяйственную зону с организацией площадки для грузовых машин, опущенной, как правило, на 1,1-1,2 м относительно отметки пола 1-го этажа здания.

Главным критерием качества функциональной организации территории магазина является дифференциация пешеходных и транспортных потоков. При этом должен быть обеспечен проезд пожарных машин вдоль всех фасадов на расстоянии 5 м для одноэтажных зданий и 8 м для зданий, большей этажности.

Пешеходную зону следует рассматривать как зону отдыха и оснащать ее зелеными насаждениями и объектами архитектуры малых форм и рекламы в зависимости от величины, назначения и значимости магазина в соответствии, с заданиями на проектирование (скамейки, витрины, рекламные установки, навесы, киоски, фонтаны и т.п.)

Рис. 1. Планировка территории магазина

1 - здание универсама; 2 - пешеходная зона; 3 - зона сезонной торговли; 4 - кафетерий (летняя посадка); 5 - хозяйственный двор; 6 - автостоянка

Вблизи пешеходной зоны территория магазина и с учетом остановок городского транспорта и характера окружающей застройки следует предусматривать стоянки для легковых машин, обслуживающих покупателей.

Хозяйственную зону можно изолировать от остальной территории в случае, если это предусмотрено заданием на проектирование, и использовать ее для организации процессов разгрузки и отправки товаров и грузов, размещения объектов инженерных служб (при необходимости) и для отстоя грузовых машин.

На территории магазина можно предусматривать сезонную торговлю (по заданиям на проектирование).

Участок магазина должен быть благоустроен и соответствовать (со всеми размещенными на нем объектами) архитектурным требованиям к застройке города (поселка).

При проектировании следует руководствоваться СНиП 2.07.01-89.

2.7. Организация территории при магазине, встроенном и встроенно-пристроенном к жилому дому, требует прежде всего изоляции потоков проживающих в жилом доме от движения покупателей и транспортных потоков грузовых машин, доставляющих товары. 1

____________

1 Рекомендации по проектированию учреждений культурно-бытового обслуживания, встроенных и встроенно-пристроенных в первые этажи жилых домов. (М., 1984).

Одновременно следует учитывать рекомендации, предложенные в п. 2.6 Пособия для отдельно стоящих зданий, сообразуясь с конкретными условиями размещения предприятия.

При проектировании предприятий, встроенных и встроенно-пристроенных к жилым домам, рекомендуется рассматривать возможность организовывать эксплуатируемую кровлю над пристроенным объемом, что позволит (особенно при наличии технического этажа в жилом доме над магазином):

размещать пристраиваемый объем не только со стороны главного фасада, но с ориентацией его на дворовое пространство;

использовать плоскую кровлю над этим объемом для организации дополнительной сезонной торговли или в качестве зоны отдыха жильцов дома;

повысить декоративные качества кровли пристроенного объема и ее санитарное состояние, что имеет большую значимость при смешанной по этажности застройке.

Во всех случаях желательно, чтобы проектирование, встроенного и встроенно-пристроенного магазина осуществлялось одновременно с разработкой проекта жилого дома.

2.8. Генеральный план территории, на которой расположены торговый центр или другие центры многофункционального обслуживания населения, проектируется также с учетом необходимости дифференцирования пешеходных и транспортных потоков в зависимости от расположения отведенной для строительства территории и состава предприятий в центре обслуживания.

В конкретных условиях возможно использовать подземное пространство для организации погрузочно-разгрузочных работ, а пешеходную зону укрупнять для создания единой для всех предприятий площади, изолированной или примыкающей к подъездным магистралям (улицам).

Зонирование территории, ее оснащение и благоустройство следует предусматривать с частичным использованием рекомендаций, изложенных в п. 2.6 и 2.7 Пособия применительно к конкретным условиям проектирования, и учитывая большую архитектурную и функциональную значимости центра обслуживания в общей системе городской (поселковой) застройки (рис. 2).

Рис. 2. Планировка территории торгового центра

1 - здание торгового центра; 2 - пешеходная зона; 3 - хозяйственная зона; 4 - автостоянка; 5 - зона сезонной торговли

3. ОБЪЕМНО-ПЛАНИРОВОЧНАЯ СТРУКТУРА ПРЕДПРИЯТИЙ

Основные рекомендации

3.1. Объемно-планировочная структура должна определяться функциональной системой движения товаров, учитывать задачи внедрения прогрессивной технологии, новейшего оборудования и комплексной механизации и автоматизации производственных процессов и обеспечивать создание оптимальной среды для покупателей. Для решения этих задач рекомендуется:

внедрять новейшие средства механизации, автоматизации, а также методов индустриализации строительства, обеспечивающие совершенствование материально-технической базы отрасли и повышение эффективности строительства и эксплуатации зданий (предприятий);

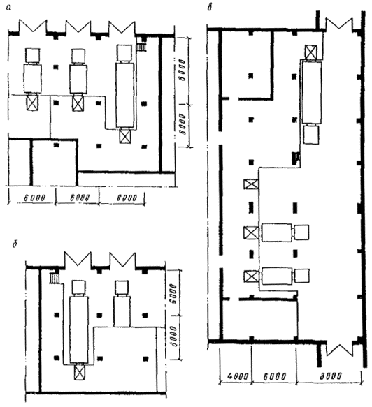
размещать, как правило, на одном этаже помещения для хранения товаров и соответствующие этим товарам отделы торгового зала и допускать их размещение (при оборудовании магазина прогрессивными средствами вертикального перемещения товаров) на разных этажах здания (рис. 3 и 4);

предусматривать кратчайшие связи между разгрузочной платформой, приемочной, грузовыми лифтами, помещениями для хранения товаров и соответствующими отделами торгового зала в последовательности, определяемой задачами сокращения путей товародвижения, как по горизонтали, так и по вертикали;

Рис. 3. Примерная схема одноэтажного универсама торговой площадью 400 - 1000 м2

1 - торговый зал; 2 - отделы заказов и кулинарии, кафетерий; 3 - кладовые, используемые для расширения торгового зала; 4 -кладовые (в том числе для ночного завоза); 5 - охлаждаемые камеры; 6 - приемочная; 7 - прием стеклотары; 8 - служебные и бытовые помещения; 9 - подсобные помещения; 10 - технические помещения; 11 - разгрузочная платформа; 12 - площадка автомобилей, разгружающих товары (может быть защищена тентовым покрытием)

Рис. 4. Примерная схема двухэтажного универсама торговой площадью 1500 м2 и более

а - 1 этаж; б - 2 этаж; 1 - торговый зал; 2 - кафетерий, отдел кулинарии, отдел заказов; 3 - кладовые, используемые для расширения торгового зала; 4 - кладовые (в том числе для ночного завоза); 5 - охлаждаемые камеры; 6 - прием стеклотары; 7 - приемочная; 8 - разгрузочная платформа; 9 - площадка для автомобилей, разгружающих товары (может быть защищена тентовым покрытием); 10 - служебные и бытовые помещения; 11 - подсобные помещения; 12 - технические помещения; 13 - киоски; 14 - камера пищевых отходов; 15 - помещение для приема продуктов в ночное время

Рис. 5. Примерная схема универсама двухъярусной структуры торговой площадью 1500 м2 и более

а - план на отм. 2,100; б - план на отм. 2,100; в - план на отм. 5,400; 1 - торговый зал; 2 - кафетерий (отдел кулинарии); 3 - отдел заказов; 4 - кладовые, используемые для, расширения торгового зала; 5 - кладовые; 6 - охлаждаемые камеры; 7 - подсобные помещения; 8 - помещения для разгрузки и погрузки; 9 -платформы для разгрузки и погрузки; 10 - прием стеклотары; 11 - технические помещения; 12 - служебные помещения; 13 - бытовые помещения

соблюдать единый уровень полов во всех помещениях каждого этажа предприятия (торговый зал, помещения приема и хранения, подсобные помещения), допуская возможность отклонения от этого требования только для служебных и бытовых помещений;

размещать вспомогательные, подсобные и служебно-бытовые помещения в стороне от основных направлений движения товаров;

пользоваться контрольными расчетными показателями нормируемой площади (прил. 4-6), а также показателями материалоемкости (в том числе металлоемкости и экономии энергоресурсов) и трудоемкости возведения и эксплуатации, установленными инструкциями и указаниями Госкомархитектуры и Минторга СССР. Кроме того, следует обеспечивать гибкую планировку предприятия и учитывать возможность изменения планировочного решения в процессе эксплуатации предприятия, имея в виду различные варианты:

техническое перевооружение предприятий новейшими средствами механизации и прогрессивным оборудованием без изменения его назначения и габаритов помещений;

трансформацию, а при необходимости реконструкцию помещений преимущественно в целях увеличения торговой площади за счет кладовых и других неторговых помещений, при сохранении назначения и габаритов предприятия (рис. 5);

переспециализацию действующих предприятий, предусматриваемую планами (схемами) развития и размещения торговой сети в городах и поселках и создание нового по назначению прогрессивного предприятия на основе использования существующих помещений и их (при необходимости) реконструкции;

расширение в отдельных случаях предприятий путем пристройки, надстройки или застройки внутренних двориков и лоджий магазина (при соответствующих архитектурных, инженерных и градостроительных обоснованиях).

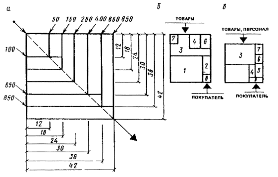
3.2. Гибкая планировка должна обеспечить возможность внедрения нового оборудования и учитывать соответствующие ему ширину коридоров, ширину и высоту дверных проемов, а также необходимость размещения помещений, предназначенных для увеличения торговой площади вблизи с торговым залом, а технических помещений - вне зоны расширения зала и возможность отказа от устройства перегородки между кладовыми и торговым залом в соответствии с п. 1.75 СНиП 2.08.02-89. Гибкие планировочные решения могут развиваться при внедрении унифицированных зданий магазинов, как это предложено Центросоюзпроектом (рис. 6), разработавшим серию типовых проектов на основе постепенного наращивания планировочного модуля при сохранении технологической структуры зданий.

3.3-3.5. Номенклатура предприятий розничной торговли (по величине и специализации) устанавливается для конкретных регионов страны республиканскими организациями (п. 2.32 СНиПа).

Предложенная в Пособии система определения контрольных технико-экономических показателей основана на принятой классификации предприятий по одинаковому соотношению нормируемых торговых и неторговых площадей с учетом распространения ее на любые конкретные условия специализации предприятий в различных регионах страны (табл. 1)

Рис. 6. Принципиальная схема серии унифицированных зданий магазинов различных мощностей для сельских местностей, разработанных Центросоюзпроектом на основе применения единой функционально-планировочной системы

а - схема развития планировки по диагонали квадрата; б - схема планировки магазинов торговой площадью 250 м2 и более; в - схема планировки магазинов торговой площадью до 150 м2; 1 - торговый зал; 2 - помещения дополнительного обслуживания, 3 - прием, хранение и подготовка товаров к продаже; 4 - трансформируемые помещения хранения товаров; 5 - служебно-бытовые помещения; 6 - подсобные помещения; 7 - технические помещения; 8 - вестибюль

Таблица 1

№ п.п.

Предприятия с одинаковым соотношением нормируемых торговых и неторговых площадей

1

2

 

Продовольственные магазины в городах и поселках

1

"Универсам", "Гастроном", "Диетпродукты"

2

"Хлебокондитерский" "Кондитерские изделия"

3

"Овощи - фрукты"

4

"Рыба"

5

"Соки - джемы", "Напитки"

 

Продовольственные магазины потребкооперации

6

Фирменные магазины

7

"Дары природы"

 

Продовольственные магазины в сельских населенных пунктах

8

"Товары повседневного спроса" (ТПС), "Универсам", "Продукты", "Сельхозпродукты"

 

Предприятия по комплектации продовольственных заказов

9

"Магазины заказов"

 

Непродовольственные магазины в городах и поселках

10

"Универмаг", "Детский мир"

11

"Для новобрачных", "Для молодежи", "Товары для детей", "Одежда", "Ткани", "Обувь", "Малыш"

12

"Спорт и туризм", "Бытовые машины и приборы", "Хозтовары" "Бытовая химия"

13

"Мебель", "Строительные материалы"

14

"Радиотовары", "Фотокинотовары", "Грампластинки", "Ювилирные изделия и часы", "Галантерея и парфюмерия"

15

"Книги"

16

"Цветы"

 

Предприятия комиссионной торговли непродовольственными товарами

17

"Комиссионные товары"

 

Непродовольственные магазины в сельских населенных пунктах

18

"Промтовары"

19

"Культтовары", "Товары для детей", "Техника"

20

"Универмаг"

21

"Хозтовары", "Приусадебное хозяйство", "Товары для дома"

3.6. В соответствии с предложенной классификацией и с учетом номенклатуры предприятий, применяемой в конкретных регионах страны, заданиями на проектирование устанавливается состав по каждому проектируемому магазину.

Если принятая номенклатура отличается от предложенной классификации, последнюю следует расширить с учетом специализации не учтенных в ней предприятий, сохраняя принятую классификацию по количеству разделов перечня и пользуясь прил. 3 и 4 Пособия.

3.7. Площади отдельных помещений устанавливаются в процессе проектирования в пределах суммарных площадей по каждой группе помещений, используя при этом рекомендации по контрольным технико-экономическим показателям согласно прил. 5-7 Справочного пособия.

Контрольные технико-экономические показатели характеризуют примерное соотношение нормируемых торговых и неторговых площадей по каждому типу предприятий.

Эти показатели приведены в расчете на размещение предприятия в одном этаже с разгрузочной платформой под навесом. Для двух- и более этажных зданий при разгрузке в помещениях, а также в случаях, когда заданиями разрешено предусматривать дополнительные неторговые площади, следует соответственно пересматривать суммарную нормируемую площадь.

Минимальная площадь отдельных помещений должна быть не менее 6 м2 (кроме санитарных узлов, главных касс и т.п.).

При изменении в процессе проектирования величины предприятия против задания в пределах, допущенных п. 1.2 СНиП 2.08.02-89, суммарные нормируемые площади по каждой группе неторговых помещений не пересматриваются.

Рис. 7. Примерная схема специализированного двухэтажного с подвалом непродовольственного магазина торговой площадью 1000-15000 м2

а - II этаж; б - I этаж; в - подвальные помещения; 1 - торговый зал; 2 - помещения дополнительного обслуживания покупателей; 3 - кладовые, используемые для расширения торговых залов; 4 -кладовые; 5 - подсобные помещения; 6 - кладовые крупногабаритных товаров; 7 - служебные и бытовые помещения; 8 - зал собраний и красный уголок; 9 - кладовые тары; 10 - технические помещения; 11 - площадка для автомобилей, разгружающих товары; 12 - разгрузочная платформа

Возможно рассматривать контрольные показатели в сторону уменьшения площадей неторговых помещений и в сторону их увеличения в соответствии с заданиями на проектирование.

Площади хранения товаров можно увеличить в полтора раза при проектировании предприятий в населенных пунктах, не обеспеченных постоянными транспортными связями с базами снабжения.

3.8. Структура объектов розничной торговли должна учитывать задачи экономии территории путем увеличения этажности и использования подземного пространства (рис. 7). Для встроенных и пристроенных к жилым домам предприятий следует не только обеспечивать необходимый технологический процесс торговли, но и создавать благоприятные условия для проживающих в жилых домах.

3.9. При размещении магазинов на одном или нескольких (до пяти) этажах, когда предусматривается дополнительный этаж, согласно примечанию к табл. 3 СНиП 2.08.02-89, требованиям к проектированию установок автоматического пожаротушения определяются по количеству этажей с торговыми залами.

3.10. Когда дымоудаление из торговых залов и кладовых без естественного освещения проектируется через специальные шахты, следует предусматривать проемы, оборудованные дистанционным устройством открывания, и располагать их в верхней зоне помещений. Общая площадь таких проемов должна быть не менее 0,2 % площади этих помещений. При пересечении пожарных стен воздуховодами следует предусматривать огнезащитные клапаны.

3.11. К отдельным нормативным требованиям СНиП 2.08.02-89 (прил. 9 и 10) приводятся следующие разъяснения по вопросам пожарной безопасности:

установками автоматического пожаротушения должны быть оборудованы: двухэтажные магазины торговой площадью св. 3500 м2, здания в три этажа и более независимо от торговой площади;

автоматической пожарной сигнализацией должны быть оборудованы: помещения непродовольственных магазинов (при отсутствии в этих помещениях установок автоматического пожаротушения), помещения продовольственных магазинов (при оборудовании магазина охранной сигнализацией).

Не следует предусматривать автоматическую пожарную сигнализацию в помещениях уборных, душевых, моечных, охлаждаемых камер, в помещениях хранения и подготовки к продаже мяса, рыбы, фруктов и овощей (в несгораемой упаковке и металлической посуде), несгораемых строительных материалов, на лестницах и т.п.

В зоне неторговых помещений допускается предусматривать внутренние лестничные клетки для технологической связи первым с подвальным (цокольным) этажом, не учитываемые в расчете эвакуации.

3.12. Архитектура проектируемых зданий должна соответствовать конкретным градостроительным условиям их размещения. При этом следует использовать возможности:

улучшения декоративных качеств кровли малоэтажных зданий, а в отдельных случаях - использовать кровли для размещения сезонной торговли, площадок отдыха и т.п. (п. 2.7);

раскрытия интерьеров через частично остекленное, наружное ограждение, размещение в витринах экспозиции товаров, устройство "Маркиз" и другой защиты от прямых солнечных лучей;

рекламного оформления и декоративного искусственного освещения;

повышения декоративных качеств стенового ограждения;

применения различиях художественных средств, используемых прежде всего для характеристики назначения предприятий. Эти средства следует дифференцировать на постоянные (мозаичные панно, стелы, эмблемы и т.д.) и периодически сменяемые (рекламные установки, указатели, экспозиция в витринах и т.п.).

Повышение художественного уровня архитектуры определяется также увеличением торговой площади (представительских помещений) в составе общей площади предприятий

Торговые помещения

3.13. К оптимальным размерам и положению торгового зала в плане следует отнести квадрат или прямоугольник с отношением сторон 1:1,5 и примыканием к нему преимущественно по длинной стороне группы кладовых и площадей для подготовки товаров к продаже (в составе кладовых). Эти соотношения могут меняться в пределах до 1:2. Допускается применять и другие формы торгового зала с учетом рационального размещения торгового оборудования.

3.14. Планировку торгового зала следует выполнять с учетом следующих рекомендаций:

предусматривать входы-выходы через тамбуры, оборудованные воздушно-тепловыми завесами (в IВ, II-III климатических районах), а в условиях IV климатического района при отсутствии кондиционеров допускать возможность отказа от устройства тамбуров;

для I климатического района (кроме IВ) следует предусматривать двойные тамбуры, а при устройстве продуваемого подполья размещать в них ступени (пандусы) для подъема на уровень пола торгового зала;

эвакуационные выходы из всех этажей располагать с внешней относительно торгового зала стороны расчетного узла (в неконтролируемой зоне); на каждом этаже размещать единый централизованный узел; при площади торгового зала более 1,5 тыс. м2 возможно размещать 2 (и более) расчетных узлов или предусматривать (в двух- и более этажных зданиях) на площади первого этажа единый для всех торговых залов расчетный узел. При организации централизованного расчетного узла торговое оборудование может расставляться по линиям, перпендикулярным расчетному узлу или основным эвакуационным проходам. Расчетный узел может проектироваться как по линейной системе, так и двойным рядом (шведский узел) (рис. 8) с условием обеспечения расчетной ширины основных эвакуационных выходов. Не занятое оборудованием пространство между линиями касс и выходами из торгового зада следует отделять свободно стоящими ограждениями, цветочницами или рекламными указателями, которые не должны препятствовать свободному выходу из зала.

В случаях, когда по расчету требуется не менее двух эвакуационных выходов из торгового зала, в качестве второго выхода можно использовать служебную лестничную клетку и выходы, связанные прямым проходом (коридором) с торговым залом.

3.15. При определении ширины основных эвакуационных проходов из торговых залов (табл. 10, п. 111 и 112 СНиПа) допускается при необходимости отказываться от турникетов и применять "шведские" расчетные узлы, сокращающие общую длину расчетных касс и позволяющих сохранить необходимую ширину основных эвакуационных проходов.

Рис. 8. Примерные схемы централизации расчетных узлов

а, б - линейные расчетные узлы; в - "шведский" расчетный узел;

1 - кассовая кабина; 2 - кассовый аппарат; 3 - стол для упаковки; 4 - прилавок - секция для хранения вещей; 5 - тележки, корзины; 6 - горка

Эскалаторы следует размещать в торговых залах (от 4 и выше этажей), располагая их вне контролируемой зоны, и обеспечивать их дымозащиту. Отступление от этого требования возможно только по согласованию с органами пожарного надзора.

3.16. Площадь, ширину и длину основных эвакуационных проходов считать постоянными величинами и расстановку оборудования подчинять этому требованию, допуская различные варианты размещения оборудования в пределах между основными эвакуационными проходами (рис. 9), не допускать уменьшения ширины основных эвакуационных проходов от наиболее удаленных участков этих проходов до эвакуационных выходов.

3.17. Расстояние между рассредоточенными эвакуационными проходами определяется в зависимости от площади торгового зала. При площади торгового зала до 150 м2 это расстояние должно быть не менее 10,5 м, а при площади 1500 и более м2 - не менее 20 м. При других площадях торгового зала можно руководствоваться методом интерполяции или экстраполяции.

3.18. В магазинах самообслуживания количество рабочих мест контролеров-кассиров следует принимать соответственно площади торгового зала: в продовольственных магазинах - из расчета одно рабочее место контролера-кассира на 80-100 м2 площади торгового зала; в непродовольственных магазинах - одно рабочее место на 140-160 м2 площади торгового зала.

Рис. 9. Примерная схема основных эвакуационных

проходов и выходов из торгового зала

1 - основные эвакуационные проходы; 2 - направления движения покупателей; 3 - наиболее удаленная точка торгового зала до ближайшего выхода из торгового зала

Количество контролеров-кассиров следует устанавливать соответственно площади торгового зала без учета площади отделов заказов и кулинарии, кафетерия и помещений для других видов услуг, расчет в которых производится через отдельные кассы.

В продовольственных магазинах торговой площадью не менее 1000 м2 и в непродовольственный торговой площадью 3500 м2 и более рекомендуется предусматривать место для администратора.

Площадь для расчетного узла должна составлять не более 15 % площади торгового зала.

3.19. Рекомендуется расширять торговлю через торговые автоматы (отдельно стоящие и расположенные в витринах (витроматы).

При расположении торговых залов в трех и более этажах допускается предусматривать дополнительные к кафетерию буфеты для покупателей с возможным использованием торговых автоматов.

3.20. В продовольственных магазинах входы в помещения приема и выдачи заказов, в зал кафетерия, в отдел кулинарии и буфеты должны располагаться с внешней стороны расчетного узла относительно торгового зала.

Площади помещений отдела заказов рекомендуется принимать в зависимости от торговой площади магазина согласно табл. 2.

3.21. фасовочные помещения отделов заказов рекомендуется при соответствующем планировочном решении совмещать с фасовочными помещениями для продовольственных магазинов, а при механизации процесса комплектования заказов, предусматривающих поточный метод сборки, фасовки и комплектования заказов, следует размешать в одном помещении суммарной площадью, предусмотренной для фасовки в комплектования.

Таблица 2

Помещения

Нормируемая площадь отдела заказов

на 10 м2 торговой площади магазина при базовой величине магазина до 400 м2

на каждые 10 м2 торговой площади св. 400 м2

Приема и выдачи заказов

0,3

0,26

Комплектации и фасовки продуктов

0,4

0,2

Примечание. На площади комплектовочной выделяется место для размещения одного-двух холодильных шкафов.

Для случая, когда комплектация предусмотрена централизованной (в магазинах заказов), а в отдел заказов магазина доставляются заказы только для выдачи населению, вместо комплектовочной и фасовочной следует предусматривать кладовую площадью от 6 м2 (при 250-650 м2 торговой площади) до 12 м2 (при 650-2000 м2 торговой площади).

3.22. Площади сок-баров, отделов кулинарии и т.п. рекомендуется принимать согласно табл. 3.

3.23. Важнейшей задачей правильного размещения торговых залов в универмагах является дифференциация торговых залов, торгующих непродовольственными товарами, и торгового зала по продаже продовольственных товаров. Одним из возможных вариантов является положение зала по продаже продовольственных товаров на уровне цокольного этажа, открытого со стороны входов в здание. В этом случае обеспечивается правильное решение функциональных задач и одновременно дается правильная характеристика основному назначению универмага (рис. 10).

Таблица 3

Помещения

Нормируемая площадь помещений общественного питания

на 10 м2 торговой площади при базовой величине магазина до 400 м2

дополнительно на каждые 10 м2 торговой площади св. 400 м2

на 10 м2 торговой площади при базовой величине магазина 1000 м2

дополнительно на каждые 10 м2 торговой площади св. 1000 м2

на 10 м2 торговой площади при базовой величине магазина 3500 м2

дополнительно на каждые 10 м2 торговой площади св. 3500 м2

Торговый зал

0,3

0,1

0,18

0,1

0,12

0,07

Подсобные

0,15

0,1

0,12

0,06

0,08

0,03

3.24. Оказание дополнительных услуг покупателям по подгонке готового платья, растяжке головных уборов и обуви и др. производится в отдельных помещениях, примыкающих к соответствующим отделам торгового зала. Раскрой ткани и подшивка штор, бюро обслуживания, оформление кредита и демонстрация новых товаров могут предусматриваться как в отдельных помещениях, так и на площади торгового зала. Помещение для оказания дополнительных услуг покупателям принимаются за счет торговой площади магазина.

Рис. 10. Примерная схема универмага торговой площадью 4500 м2 и более

а - план на отм. - 2,100; б - план на отм. 2,100; в - план на отм. 6,300 - 14,700; 1 - торговый зал; 2 - вестибюли, буфеты; 3 - кладовые, используемые для расширения торговых залов; 4 - кладовые и отделы заказов, кулинарии, кафетерии (при вестибюлях); 5 - подсобные помещения: прием стеклотары; 6 - служебные помещения; 7 - бытовые помещения; 8 - дополнительное обслуживание покупателей; 9 - технические помещения; 10 - помещения для грузовых автомобилей, разгружающих товары; 11 - разгрузочные платформы

Расширение объема дополнительных услуг (по требованию Минторга СССР) не должно приводить к уменьшению коэффициента установленной площади (0,25). Допускается предусматривать (по заданиям на проектирование) в крупных универмагах и магазинах "Детский мир" комнату для обслуживания покупателей с детьми, помещение для хранения детских колясок и другие дополнительные помещения обслуживания, а также сберкассу и телефонный пункт с расположением их на площади первого этажа около входов для покупателей. Такие помещения не должны включаться в состав торговой площади магазина.

Для сезонной торговли целесообразно предусматривать навесы (лоджии), примыкающие к торговым залам и соответствующим кладовым. Торговая площадь для сезонной торговли при определении мощности предприятия не учитывается.

3.25. Требование СНиПа обеспечить удобства для инвалидов, посещающих магазины, вызывает необходимость решать эту задачу при проектировании новых зданий (в 2 и более этажа) путем устройства пандусов (уклон 1:12), связывающих этажи, или предусматривать крупногабаритные лифты (не менее двух), рассчитанных на вертикальное перемещение покупателей в инвалидных колясках.

При решении этой задачи можно привлекать новейшие достижения техники, находящиеся в настоящее время в стадии экспериментальной проверки (пассажирские конвейеры, непрерывно действующие лифты с рольгангами и т.п.).

Особой сложностью отличается проблема создания необходимых для инвалида условий при модернизации действующих предприятий розничной торговли высотой 2 и более этажей.

Для этих случаев следует предпочесть устройство лифтов, занимающих меньшую площадь по сравнению с пандусами, а их размещение (при необходимости) организовать в пристройках к основному объему существующего здания.

Одновременно необходимо перед входами покупателей в магазин наряду с наружными ступенями предусматривать (как для нового строительства, так и при реконструкции) пандус для перемещения в инвалидных колясках, полезного также при пользовании детскими колясками и сумками на колесиках.

3.26. Ширину проходов между оборудованием в торговых залах следует определять согласно табл. 4.

Таблица 4

Проходы между оборудованием в торговых залах

Ширина проходов, м, в магазинах

городских и поселочных

в сельских населенных пунктах

1

2

3

Между кассовыми кабинами и торцами островных горок

2-2,5

1,6-2

Между прилавками для хранения личных вещей покупателей, стеллажами для инвентарных корзин и стеной (проход для посетителей в торговый зал)

1,7-2,5

1,5-2

Между линиями кассовых кабин расчетного узла и стеллажами для инвентарных корзин или столами для покупателей

1,5-2

1,2-1,5

Между параллельно расположенными островными горками или контейнерами

1,4-1,8

1,2-1,4

Между островными горками (контейнерами) и пристенным охлаждаемым оборудованием

1,6-2

1,4-1,6

Между кассовыми кабинами расчетного узла или прилавками обслуживания и установленными параллельно им горками или контейнерами

2-3

1,6-2

Между прилавками и оборудованием за прилавком

0,9

0,9

Между кабинами контролеров-кассиров

0,6

0,6

Между прилавками

2,8-3

2,4-2,8

Между прилавками и стеной

1,2-1,5

0,9-1,2

Примечание. Ширину проходов, по которым предусматривается перемещение товаров в таре-оборудовании с помощью подъемно-транспортных средств, следует увеличить до 2,2-2,7 м.

3.27. Магазины заказов следует размещать в отдельно стоящих зданиях или в объемах, входящих в состав различных блокированных комплексов.

Оптимальная этажность зданий: один этаж - для магазинов нормируемой площадью до 1500 м2 (рис. 11); два этажа - для магазинов нормируемой площадью св. 1500 м2.

Допускается увеличивать этажность до пяти этажей при нормируемой площади св. 3000 м2.

Высота зала комплектации заказов (при подвесном конвейере) должна быть не менее 4,2 м до низа выступающих конструкций. Высота этажа с остальными помещениями магазина заказов - 3 м.

При соответствующем объемно-планировочном решении допускается принимать общую с залом комплектации высоту этажа, где расположены другие помещения магазина заказов.

Рис. 11. Примерная схема одноэтажного магазина заказов нормируемой площадью до 1500 м2

1 - зал комплектации заказов; 2 - салон приема заявок на заказы и выдача скомплектованных заказов; 3 - приемочная продуктов; 4 - кладовые; 5 - охлаждаемые камеры; 6 - фасовочная; 7 - экспедиция по отправке скомплектованных заказов; 8 - подсобные помещения; 9 - служебные и бытовые помещения; 10 - технические помещения; 11 - разгрузочная платформа; 12 - платформа для погрузки и отправки скомплектованных заказов

3.28. В магазинах заказов планировочное решение должно учитывать такую последовательность технологического процесса: прием продуктов; хранение продуктов в кладовых и охлаждаемых камерах; фасовка продуктов (при необходимости); комплектация заказов; хранение скомплектованных заказов и отправка их через экспедицию или выдача через салон.

В двухэтажных зданиях разгрузку продуктов возможно предусматривать на уровень второго этажа с заездом грузовых машин ниже его отметки на 1,2 м (рис. 12). На уровне второго этажа в этом случае могут размещаться помещения хранения и фасовки продуктов, а на первом этаже - зал комплектации и помещения отправки заказов и экспедиция, салон приема и выдачи заказов, служебно-бытовые и другие помещения. Адресная доставка продуктов из приемочной в соответствующие кладовые и зал комплектации, а также отправка скомплектованных заказов в экспедицию (со второго на первый этаж) предусматриваются автоматизированными комплексами оборудованными специальными конвейерами.

При высоте магазина три и более этажей технологический процесс организуется по вертикали сверху вниз. На верхние этажи продукты доставляются для хранения лифтами. Количество и грузоподъемность грузовых лифтов определяются расчетом и принимаются по заданию на проектирование; из верхних этажей продукты опускаются на этаж с залом комплектации (лифтами или конвейерами); фасовка товаров предусматривается при группе помещений для хранения или при зале комплектации; на первом этаже размещаются помещения для отправки заказов и выдачи их через салоны. Расположение служебно-бытовых, технических и других помещений определяется проектом.

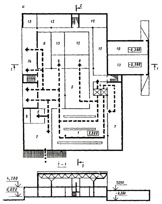
Рис. 12. Примерная схема двухэтажного магазина заказов

нормируемой площадью 2500 м2 и более

а - I этаж; б - II этаж; 1 - зал комплектации; 2 - салон приема заявок на заказы и выдачи скомплектованных заказов; 3 - приемочная продуктов, 4 - лифт-холл для транспортировки продуктов; 5 - кладовые, 6 - охлаждаемые камеры; 7 - фасовочные; 8 - экспедиция по отправке скомплектованных заказов; 9 - подсобные помещения; 10 - хранение тары; 11 - разгрузочная платформа; 12 - служебные и бытовые помещения; 13 - технические помещения; 14 - платформа для погрузки и отправки скомплектованных заказов

Интерьер торгового зала

3.29. Решая интерьер торгового зала, следует иметь в виду главную задачу - создание оптимальных условий для показа товаров.

В связи с тем, что в процессе эксплуатации магазина назначение торговых отделов и расстановка оборудования многократно изменяются, художественную характеристику основных элементов (стены, пол, потолок) помещения следует подчинять назначению торговых отделов, принятому к моменту разработки проекта.

Характер отделки вертикальных элементов ограждающих конструкций торговых залов зависит от товарной специфики предприятий (продовольственный, промтоварный, специализированный магазины).

3.30. В интерьерах торговых залов следует применять, как правило, нестационарные средства рекламы к тем, чтобы их можно было изменять в соответствии с пересмотром состава торговых отделов и перемещениями торгового оборудования, а также предусматривать специальные конструкции, которые обеспечивают возможность перестановки средств рекламы. Реклама должна информировать о наличии товаров, о ближайшем их поступлении, о расположении торговых отделов, мест отдыха, стола находок и т.п. Наряду с информационной рекламой следует развивать и другие средства рекламы, дающие художественную характеристику торговым отделам и продаваемым товарам, в виде различных торговых знаков, эмблем и т.п.

3.31. Экспозиция, расположенная в остекленном пространстве наружного ограждения, может быть доступной для обзора не только со стороны улицы, но и из интерьера. Допускается организация экспозиции, просматриваемой только с улицы, с тем, чтобы уменьшить площадь остекленных поверхностей, частично отказавшись от второго остекления со стороны торгового зала с заменой его глухим ограждением, что уменьшит теплопотери здания.

Решение витрин должно учитывать удобный доступ к выставленным образцам и торговым автоматам, если последние размещены в пространстве витрин, а также обеспечивать возможность протирки стекол и уборки пространства между ними (а также фонарей и фрамуг). Для дополнительного притока воздуха в торговый зал в верхней части остекления витрин (при отсутствии кондиционирования) необходимо предусматривать фрамуги-форточки.

Рекомендуется создавать в пространстве витрины неоновую рекламу, решающую задачу оформления витрины в ночное время, позволяющую отключать лампы накаливания, люминесцентное освещение и экономить электроэнергию, сохраняя при этом представительный вид фасада магазина.

3.32. Витрины с экспозицией в продовольственных магазинах предусматривать, как правило, не следует.

Витрины непродовольственных магазинов должны иметь экспозиционные площадки глубиной 1,2 - 2,5 м (в зависимости от ассортимента товаров). Пол экспозиционной площадки должен быть на высоте не более 0,6 м над тротуаром. Горизонтальное членение переплетов витрин на высоте менее 2 м над уровнем пола экспозиционной площадки не допускается.

Витрины, остекленные наружные проемы и входные двери магазинов, осуществляющих продажу ювелирных и других особо ценных товаров, должны быть оборудованы жалюзийными решетками в качестве защитной меры.

Отделку пола рекомендуется принимать в одном тоне и решать его геометрическим нейтральным рисунком, позволяющим, не нарушая композиционного решения интерьера, передвигать торговое оборудование в зале. Другим цветом и другим характером рисунка возможно выделить пол основных эвакуационных проходов, зоны централизованных расчетных узлов лестничных клеток, кафетериев, отдела заказов и т.д.

Подсобные помещения

Разгрузка и перемещение товаров

3.33. Разгрузочные операции и перемещение товаров должны быть основаны на взаимосвязях с торговыми залами, помещениями хранения товаров, системой товародвижения и оснащением предприятия средствами комплексной механизации.

3.34. Разгрузочные платформы должны быть, как правило, выше уровня площадки, где расположены автомобили, на 1,1-1,2 м.

Для малотоннажных автомобилей (в магазинах заказов для отправки) можно принимать высоту над уровнем площадки для автомобилей 0,6-0,8 м (по заданиям на проектирование).

Допускается по заданиям на проектирование размещать площадки для автомобилей на одном уровне с разгрузочной платформой при наличии разгрузочно-подъемных средств. Площадь разгрузочной платформы включается в состав нормируемой площади только при разгрузке в отапливаемых помещениях, когда прием товаров производится на разгрузочной платформе (рис. 13).

Глубина платформы прямоугольной формы должна быть 4-4,5 и (для сельских населенных пунктов и для разгрузки малотоннажных автомобилей 3 м), пилообразной формы - 2,5-3,5 м в наиболее узком месте.

В крупных продовольственных и непродовольственных магазинах и в магазинах заказов глубину платформы допускается увеличивать до 6 м (по заданиям на проектирование).

3.35. Количество разгрузочных мест в магазинах должно устанавливаться исходя из следующих рекомендаций: при торговой площади магазина до 400 м2 - 1 разгрузочное место; при торговой площади св. 400 до 1000 м2 - 2 разгрузочных места; при торговой площади св. 1000 м2 - 3 и более разгрузочных мест (по расчету).

В магазинах "Спорт и туризм", "Бытовые машины и приборы", "Хозтовары", "Мебель" и "Строительные материалы" следует предусматривать помимо разгрузочных мест места для отправки купленных товаров: при торговой площади до 1000 м2 - 1 место; при торговой площади св. 1000 м2 - 2 места (по расчету).

В магазинах заказов количество разгрузочных мест следует принимать из расчета 1 место на 1000 м2 нормируемой площади, а количество мест для отправки скомплектованных заказов - из расчета 2 места на 1000 м2 нормируемой площади.

Помещения приемочных пунктов следует предусматривать во всех магазинах при разгрузке товаров под навесами и при разгрузке в неотапливаемых помещениях.

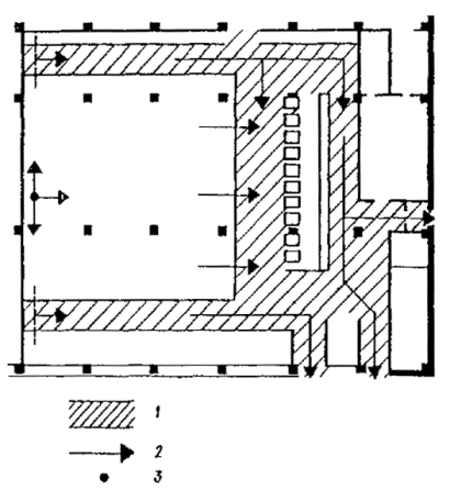
Рис. 13. Примеры схемы планировки разгрузочных помещений

Площадь приемочных пунктов следует принимать в расчете на одно разгрузочное место при торговой площади до 150 м2 - 12 м2, при торговой площади св. 150 м2 - 16 м2.

3.36. Разгрузочные платформы и платформы для отправки товаров рекомендуется размещать в зависимости от климатического района строительства и величины магазина:

I климатический район (кроме IВ климатического подрайона при температуре минус 30 °С и ниже) - в отапливаемых помещениях при величине магазина не менее 400 м2; при меньшей величине - в неотапливаемых помещениях (по заданию на проектирование);

IВ климатический подрайон (при температуре минус 30 °С и выше), II и III климатические районы (кроме IIIБ подрайона) - в отапливаемых и неотапливаемых помещениях или по заданиям на проектирование;

IIIБ климатический подрайон и IV климатический район - под навесами, в неотапливаемых помещениях (по заданию на проектирование).

Для загрузки продуктами помещений общественного питания следует выделять отдельную зону на разгрузочной платформе предприятия.

В магазинах заказов платформы для разгрузки и отправки скомплектованных заказов рекомендуется размещать во всех климатических районах и подрайонах преимущественно в отапливаемых или неотапливаемых помещениях в зависимости от климатических условий (по заданиям на проектирование).

Навесы должны полностью перекрывать разгрузочную платформу и на 1 м кузов автомобиля.

В случае когда разгрузочные места для ночного завоза товаров предусматривается (как исключение) вне основной разгрузочной платформы, допускается заменять платформу разгрузочно-погрузочными устройствами.

При реконструкции магазина разгрузка товаров организуется в соответствии с конкретными условиями реконструкции согласно заданиям на проектирование.

3.37. Положение разгрузочной платформы должно определяться требованием обеспечения кратчайших связей с торговым залом, имея в виду возможность продажи товаров из контейнеров, доставляемых в торговый зал, и отказ от перевалки товаров в торговое оборудование.

Между разгрузочной платформой и торговым залом (при разгрузке под навесом) целесообразно размещать приемочную и кладовую для ночного завоза товаров (в универсамах и продовольственных магазинах) (см. рис. 3 и 4).

3.38. Разгрузочные площадки перед грузовыми лифтами должны иметь глубину (перпендикулярно проему шахты лифта) для лифтов грузоподъемностью до 100 кг - не менее 1,7 м, для лифтов грузоподъемностью 500 кг - не менее 2,5 м, для лифтов грузоподъемностью 1000 кг и более - не менее 3 м.

3.39. В магазинах торговой площадью 6500 м2 и более съем железнодорожных контейнеров с автомашин должен выполняться средствами механизации (кран-балки, тельферы). Разгрузку железнодорожных контейнеров при этом можно предусматривать на отдельно стоящей или примыкающей к зданию разгрузочной платформе; высоту пространства под навесом следует принимать согласно техническим характеристикам применяемых разгрузочных средств.

3.40. При организации разгрузки товаров в подвале рационально предусматривать на том же уровне кладовые для хранения крупногабаритных и тяжелых товаров.

Допускается хранение товаров в подвале, а также в верхних этажах над торговыми залами при ограниченных размерах отведенного участка или особых архитектурных требованиях к повышению высоты зданий.

3.41. Тупиковое расположение машин в разгрузочном помещении рекомендуется при количестве разгрузочных мест до четырех. При большем количестве разгрузочных мест следует предусматривать сквозной проезд через разгрузочные помещения с воротами для въезда и выезда, что обеспечит оптимальные условия при разгрузке товаров и организации движения транспортных средств (см. рис. 13).

Разгрузочные платформы должны быть связаны с площадками для автомобилей лестницей шириной не менее 0,6 м или пандусом с уклоном не более 1:10.

Для магазинов торговой площадью до 250 м2, пристроенных к глухим торцам жилых домов, разгрузку товаров рекомендуется предусматривать под навесами. При торговой площади св. 250 м2 разгрузку можно предусматривать под навесами или в помещениях (отапливаемых или неотапливаемых). Желательно, чтобы разгрузка была предусмотрена со стороны фасада пристроенного объема, противоположного торцу жилого дома.

3.42. Для встроенных в жилые дома магазинов разгрузку рекомендуется предусматривать в отапливаемых и неотапливаемых помещениях, расположенных в торцах или в середине жилых домов, а также в пристройках к ним с подъездом транспорта со стороны магистрали (в этих случаях - возможно под навесами). Сквозные проезды по первому этажу жилого дома должны при этом обеспечиваться в соответствии с противопожарными требованиями.

Ширина ворот для проезда грузовых машин должна быть не менее 3,6 м, высота - не менее 4,2 м.

Для встроенных в жилые дома магазинов ширина и высота ворот должны приниматься в соответствии с конкретными условиями размещения магазинов.

Разгрузочные помещения на уровне подвального (цокольного) этажа допускается размещать при количестве разгрузочных мест не менее четырех.

Въезд в разгрузочное помещение, расположенное в подвальном (Цокольном) этаже, и выезд из него следует предусматривать по пандусам, размещение которых должно обеспечить минимальные потери территории. В случае выноса расположенного в подвале разгрузочного помещения за пределы площади, занятой первым этажом, необходимо предусматривать над ним перекрытие повышенной несущей способности.

3.43. Разгрузочное помещение при тупиковом расположении машин в расчете на автомашину средней грузоподъемности должно иметь глубину 8 м (от ворот до разгрузочной платформы), для большегрузных автомашин (рефрижераторы, автомашины с прицепом) - 12-14 м.

Разгрузка автомашин должна предусматриваться со стороны правого борта и торца автомашины, а высоту разгрузочного помещения или пространства под навесом от уровня проезжей части до выступающих конструкций следует принимать не менее 4,1 м.

Помещения и платформу с навесами для погрузочно-разгрузочных работ в отдельно стоящих зданиях рекомендуется предусматривать со стороны одного из фасадов зданий (преимущественно со стороны заднего фасада).

На путях проезда автомобилей и других транспортных средств колонны, стены, перегородки и откосы проемов должны быть защищены от механических повреждений на высоту не менее 1,6 м.

3.44. Разгрузка в ночное время хлеба и молока должна производиться на общую платформу. Дополнительных разгрузочных мест при этом предусматривать не следует.

Разгрузку товаров рекомендуется предусматривать в расчете на их доставку специализированным автотранспортом, преимущественно в таре-оборудовании, на поддонах (пакетах), вешалах и другом прогрессивном оборудовании для транспортировки, хранения и продажи продовольственных и непродовольственных товаров. Для разгрузки рекомендуется предусматривать выравнивающие устройства и подъемно-опускные механизмы, автопогрузчики, тельферы, кран-балки (для магазинов стройматериалов). Для отправки тары и стеклопосуды - специализированные люковые окна, оборудованные телескопическими ленточными транспортерами.

Применение телескопических ленточных транспортеров не исключает вывоз стеклопосуды с помощью тары-оборудования через разгрузочные платформы.

3.45. Для перемещения товаров в магазине следует использовать:

малогабаритный и электрифицированный напольный транспорт, а также роботизированные электронные тележки с адресной доставкой;

прогрессивные типы подъемников, как с системой управления самостоятельного пользования, так и подъемники непрерывного действия для подачи тарно-штучных грузов и товаров в таре-оборудовании;

автоматизированные комплексы, осуществляющие складирование, адресную отборку, транспортировку и подачу товаров.

3.46. Прием стеклопосуды может осуществляться в специальном помещении со входом из торгового зала или снаружи. Прием стеклопосуды из торгового зала и вход в помещение приема стеклопосуды должны предусматриваться с внешней стороны расчетного узла. Допускается совмещать помещение приема стеклопосуды с торговым залом кафетерия.

Сдача стеклопосуды должна быть основана, как правило, на системе самообслуживания. При площади помещения приема 36 м2 и более рекомендуется использовать средства механизации, применяемые в данном магазине.

3.47. Помещения для мусора и охлаждаемая камера пищевых отходов должны примыкать к разгрузочной платформе (рис. 14). На разгрузочной платформе следует предусматривать зону для выгрузки мусора и пищевых отходов при общем количестве разгрузочных мест не менее трех.

3.48. Мастерскую мелкого ремонта оборудования и рекламно-декорационную мастерскую рекомендуется размещать в зонах, примыкающих к помещениям хранения товаров или к служебно-бытовым помещениям.

Рис. 14. Камера пищевых отходов (а, б, в - варианты планировок)

1 - охлаждаемая камера; 2 - сборно-разборный шкаф для охлаждения; 3 - машинный агрегат охлаждения; 4 - платформа при разгрузочном помещении; 5 - опускное устройство

3.49. Ширину коридоров в группе помещений для хранения и подготовки товаров к продаже в зависимости от величины предприятий и применяемых транспортных средств следует принимать при площади торгового зала, м2: 250 - 1,6-1,7 м, св. 250 - 1,8-2 м и при использовании электрифицированного транспорта - 2,3-2,7 м (в том числе в магазинах заказов).

Двери кладовых и помещений для приема товаров должны быть двупольными шириной не менее 1,3 м и высотой не менее 2,3 м.

Двери между разгрузочной платформой и приемочной или другими помещениями должны быть двупольными шириной 1,6-2,2 м и высотой не менее 2,3 м.

Помещения для хранения товаров и вспомогательные помещения

3.50. Рекомендуется укрупнять площади кладовых, предусматривая хранение в общей кладовой, различных групп непродовольственных товаров (за исключением целлулоидных, парфюмерных, аэрозольных, пахучих товаров и горючих жидкостей) и продовольственных товаров, за исключением продуктов, эпидемиологическая характеристика которых требует отдельных помещений (хлебобулочные, кондитерские, молоко, овощи-фрукты).

При торговой площади до 100 м2 (в сельских населенных пунктах) продукты могут храниться в общей кладовой независимо от их эпидемиологической характеристики.

Подготовку товаров к продаже следует предусматривать, как правило, на площади кладовых.

3.51. Помещения для хранения и подготовки товаров к продаже не допускается размещать под уборными, душевыми и под местами с установкой трапов. При наличии технического этажа над встроенными в жилые дома и общественные здания предприятий розничной торговли размещение помещений хранения и подготовки к продаже товаров не ограничивается при условии, что канализационные стояки выведены за пределы этих помещений. Отметка полов в моечных, уборных и душевых должна быть на 2 см ниже отметки пола соседних помещений и иметь трапы для выпуска в канализацию.

3.52. Габариты кладовых зависят от вида товаров, средств механизации складского процесса и сроков хранения. При применении кранов-штабелеров подвесного типа КПП грузоподъемностью 250-500 кг, посредством которых минимальная высота укладки товаров должна составлять не менее 2,5 м, необходимо предусматривать кладовые (в 6-метровом модуле) длиной не менее 9 м. При этом высота этажа должна быть не менее 4,2 м.

3.53. Временное хранение тары и принятой от населения стеклопосуда рекомендуется предусматривать под навесами или в неотапливаемых помещениях с примыканием к разгрузочной платформе.

3.54. Охлаждаемые камеры следует проектировать, как правило, единым блоком с входом через шлюз шириной не менее 1 м. Допускается предусматривать входы через соответствующие кладовые, а при расположении одной-двух камер вне единого блока при расчетной температуре камер плюс 2 °С и выше шлюз не предусматривать. Вход в низкотемпературные камеры долины предусматриваться через отдельный шлюз.

Охлаждаемые камеры рассчитываются на кратковременное (в течение 2-3 сут.) хранение скоропортящихся продуктов. Теплоизоляцию ограждающей камеры конструкций следует предусматривать в соответствии с установленной расчетной температурой. В сельских местностях рекомендуется применять преимущественно сборно-разборные охлаждаемые камеры.

При размещении камер на междуэтажном перекрытии теплоизоляции пола в камерах должна выполняться из теплоизоляционных плит с устройством поверх них армированной цементной стяжки. Перед входом в такие камеры необходимо предусматривать пандусы. Пороги и ступени перед входом в камеры не допускаются.

3.55. При проектировании машинных отделений охлаждаемых камер следует руководствоваться действующими правилами. Необходимо предусматривать централизованную систему охлаждения прилавков в торговом зале с установкой агрегатов в специальном помещении рядом с торговым залом или под ним, обеспечивая протяженность трубопроводов от машинного отделения до прилавков в пределах 1000 диаметров всасывающего трубопровода.

Высота машинных отделений должна быть не менее 2,7 м и не более 3,5 м в чистоте для системы непосредственного охлаждения камер и не менее 3,7 м для рассольного охлаждения камер. Хладоновые агрегаты следует устанавливать в машинном отделении, расположенном рядом с камерой, или на выделенной площади около камеры, отгороженной от коридора металлической решеткой высотой не менее 1,5 м, с двухстворчатыми дверями.

Служебные и бытовые помещения

3.56. Служебные и бытовые помещения рекомендуется проектировать отдельным блоком и размещать в отдельных случаях на верхнем этаже здания, изолируя их от производственной части магазина.

Через блок служебных и бытовых помещений не допускается движение товаров.

Суммарные площади служебно-бытовых помещений (прил. 5 и 6) приняты по средней численности персонала соответствующих типов магазинов и уточняются в соответствии с численностью персонала, устанавливаемой в заданиях на проектирование.

В связи с ростом производительности труда и соответственно уменьшением количества производственного персонала допускается в процессе эксплуатации магазина менять назначение отдельных служебных помещений, приспосабливая их для расширения бытового обслуживания персонала.

В конкретных условиях допускается увеличивать площади служебных и бытовых помещений за счет сокращения площадей приема и хранения товаров.

Буфет или столовую для персонала, а также бельевую следует размещать в зоне служебно-бытовых помещений.

Помещение пожарно-сторожевой охраны и кабинет гражданской обороны следует предусматривать около служебного входа в здание.

4. КОНСТРУКЦИИ И МАТЕРИАЛЫ

4.1. Выбор конструктивного решения определяется анализом и оценкой индустриальной базы и местных строительных материалов в конкретных районах строительства, назначением, величиной и этажностью проектируемого объекта и размещением предприятия в отдельно стоящих зданиях, в помещениях, встроенных и пристроенных к жилым домам и к общественным зданиям.

Конструктивные решения должны учитывать задачи экономного расходования строительных материалов в соответствии с действующими требованиями Технических правил по экономному расходованию основных строительных материалов" ТП 101-81.

4.2. Задания предприятий розничной торговля могут быть полносборными железобетонными, с применением смешанных конструктивных систем, на основе использования местных материалов, из монолитного железобетона, из легких каркасных и блочных металлических конструкций, с применением различных облегченных конструкций, включая тентовые и воздухо-опорные конструкции (для сезонной торговля).

Основными конструктивными системами для отдельно стоящих зданий являются сборные каркасно-панельные, крупнопанельные, смешанные (сочетания каркасных и крупнопанельных конструкций), а также бескаркасные из местных строительных материалов.

4.3. Для встроенно-пристроенных предприятий торговли основной является комбинированная система каркасных и крупнопанельных конструкций с учетом конструкций жилого дома и принятой высоты этажа. В сельских населенных пунктах рекомендуется применять каркасные конструкции по неполной схеме со стенами из местных материалов и бескаркасные конструкции из местных строительных материалов.

4.4. Применение легких каркасных и блочных металлических конструкций допускается (с соответствующими технико-экономическими обоснованиями) при решении задачи ускоренного строительства на основе комплектной поставки, а также для строительства зданий во вновь осваиваемых и труднодоступных районах страны, не имеющих развитой местной базы индустрии, постоянно действующих строительных организаций (вахтовый способ строительства). Для временных поселков рекомендуется осуществлять строительство на основе инвентарных блок-контейнеров и применять деревянные конструкции для магазинов торговой площадью до 150 м2 в лесных районах страны.

4.5. Каркасно-панельные здания рекомендуется проектировать на основе использования индустриальных конструкций с высотами помещений 3-4,5 м (и до 6 м) с сетками колонн 6´6-9´12 м.

Бескаркасные крупнопанельные здания и здания со стенами из местных строительных материалов должны проектироваться с высотой помещений 3 м при шаге несущих стен (продольных или поперечных) 3-9 м.

Знания с комбинированной системой каркасных и крупнопанельных конструкций должны проектироваться с сеткой колонн в нижних этажах 3´6-7,2´7,2 м. В залах комплектации магазинов заказов сетка колонн должна быть не менее 6´12 м.

4.6. Торговые залы универмагов, универсамов и других крупных магазинов могут разрабатываться на основе применения эффективных пространственных и большепролетных конструкций покрытий с пролетами от 12 м и более в зависимости от величины пролетов:

сборные укрупненные железобетонные плиты размером "на пролет", структурные плиты из сборных армоцементных и железобетонных элементов, сборные плиты-оболочки;

сборные железобетонные фермы, балки и плиты, армоцементные складки из легких эффективных плоских и пространственных металлических конструкций;

покрытия в виде арок, оболочек, мембран, сетчатых систем, деревоклееных конструкций.

Навесы для сезонной торговли рекомендуется решать с применением легких конструкций преимущественно с тентовым покрытием.

4.7. Временные нормативные нагрузки на перекрытия (пола) для торговых залов и кладовых принимаются в соответствии со СНиП 2.01.07-85.

Нормативные значения временных эквивалентных нагрузок, указанных в прил. 8, включают в себя нагрузки от веса товаров, оборудования для складирования (стеллажей, поддонов, горок и т.п.) и людей.

Кладовые товаров с полным нормативным значением эквивалентной нагрузки более 8 кПа (800 кгс/м2) следует, как правило, располагать в подвалах и на первых этажах зданий (на полах по грунту).

При контейнерном способе доставки и размещения товаров нормативную нагрузку следует принимать по фактическим данным.

При наличии напольного подвижного механизированного оборудования (электропогрузчиков, электроштабелеров) нормативные значения эквивалентных нагрузок следует увеличивать: полных – на 2 кПа (200 кгс/м2); пониженных - на 1 кПа (100 кгс/м2).

Перегородки следует применять, как правило, сборные крупнопанельные. Каркасно-обшивные перегородки не допускаются для ограждения складских помещений и не рекомендуются в местах, где поверхности стен могут испытывать ударные воздействия (кладовые, разгрузочные, транспортные коридоры).

4.8. Витражи и витрины рекомендуется проектировать из алюминиевых сплавов в соответствии с техническими правилами по экономному расходованию основных строительных материалов.

4.9. В целях создания необходимых условий для эксплуатации инженерного и технологического оборудования в строительном разделе проекта должны быть предусмотрены возможности применения передвижных или стационарных подъемно-транспортных средств, а также предусмотрены проемы в соответствии с технологическим и санитарно-техническим разделами проекта.

4.10. Во внутренней отделке помещений магазинов рекомендуется применять крупноформатные облицовочные материалы возможно более полной заводской готовности с набором комплектующих элементов для их крепления. Для стен торговых залов магазинов рекомендуется применять сборно-разборные облицовки и различные виды листовых материалов. Пустоты между основанием и облицовками стен и пустоты в каркасных перегородках (при выборочном применении) заполняются несгораемыми материалами. Допускается устройство пустот, ограниченных со всех сторон несгораемыми материалами, площадью до 3 м2 при относе облицовки от основания до 50 мм.

4.11. Повышенной влагостойкостью должна обладать отделка моечных, душевых, умывальных, приемочных продовольственных товаров, охлаждаемых камер. Влагостойкой должна быть также отделка стен и потолков в непосредственной близости от входов с улицы и от больших площадей открываемого остекления. Покрытия полов в торговых залах следует проектировать, как правило, из износостойких каменных и бетонно-мозаичных материалов, крупноразмерных керамических плиток, шлакоситалла, прессованных ПВХ плиток толщиной 5 мм, прессованных резиновых плиток толщиной 6 мм и более. В торговых залах, где полы находятся во влажном состоянии, не рекомендуется применять шлакоситалл и полимерные плитки; керамические плитки должны иметь рифленую поверхность; каменные и мозаичные покрытия полов не должны иметь полированную фактуру.

4.12. Показатель теплоусвоения полов в местах постоянного (более 30 мин) промывания персонала магазина должен соответствовать действующим инструкциям. В местах постоянного пребывания персонала допускается настилка ковриков, деревянных щитов и т.п. Коэффициент поверхностного трения покрытия полов не должен быть менее 0,2, а на пандусах, десницах и в местах, где движение с грузом создает особую опасность при падении, не менее 0,3.

При определении типов полов следует руководствоваться СНиП 2.03.13-88, подбирая их соответственно требованиям условий эксплуатации.

Для крепления вывесок и рекламной информации следует предусматривать конструкции и закладные устройства на фасадах, в интерьерах торговых залов и в витринах предприятий розничной торговли.

5. ИНЖЕНЕРНОЕ ОБОРУДОВАНИЕ

5.1. При проектировании инженерного оборудования следует использовать вторичные энергоресурсы и применять прогрессивные типы санитарно-технических агрегатов и различных установок, электротехнического и другого оборудования, отличающиеся более высокими характеристиками по сравнению с изготавливаемыми отечественной промышленностью в настоящее время, в том числе более экономичных по металлоемкости и энергоемкости.

При проектировании следует руководствоваться СНиП 2.04.05-86, СНиП 2.04.01-85, СНиП 2.04.09-84, СНиП 2.04.08-87 и .

Отопление, вентиляция и кондиционирование воздуха

5.2. Расчетную температуру воздуха и кратность воздухообмена в неторговых помещениях следует принимать по табл. 5, в торговых помещениях - по табл. 24 СНиП 2.09.02-85

Таблица 5

№ пп

Помещения

Расчетная температура воздуха в помещениях для холодного периода года, °С

Кратность воздухообмена

приток

вытяжка

1

2

3

4

5

1

Разгрузочные

10

По расчету

2

Для подготовки товаров к продаже (при размещении в отдельном помещении), комплектовочные, приемочные, экспедиции

16

2

1

3

Для демонстрации новых товаров (при размещении в отдельном помещении)

16

2

2

4

Кладовые (неохлаждаемые):

 

 

 

 

хлеб, кондитерские изд.

16

-

0,5

 

гастрономия, рыба, молоко, фрукты, овощи, соления, вин, пиво, напитки

8

-

1

 

обувь, парфюмерия, товары бытовой химия, химчистки

16

-

2

 

прочие товары

16

-

0,5

5

Охлаждаемые камеры:

 

 

 

 

мясо, полуфабрикаты, гастрономия

0

-

-

 

рыба

2

-

-

 

фрукты, овощи, кондитерские изделия, напитки

4

4

4

 

мороженое, пельмени и т.п.

12

Периодически

 

пищевые отходы

2

-

10

6

Гладильная

16

По расчету

7

Разрубочная

10

3

4

8

Камера для мусора (неотапливаемая)

-

-

1

9

Помещения для хранения упаковочных материалов, инвентаря и т.п.

8

-

1

10

Бельевая

18

-

0,5

11

Здравпункт

20

1

1

12

Мастерские

18

2

2

13

Машинное отделение с воздушным охлаждением

По расчету

14

Машинное отделение охлаждаемых камер с водяным охлаждением

5

2

3

15

Помещения приема и выдачи заказов

12

-

1

16

Помещения приема стеклотары

16

-

1

Примечания: 1. Расчетная температура для охлаждения камер принята на все периоды года. 2. В кладовых с химическими, синтетическими и иными пахучими веществами, при размещении товаров на площади кладовых и при наличии постоянных рабочих мест следует предусматривать подачу приточного воздуха (для постоянно работающих) из расчета 60 м3 /ч на 1 рабочее место.

5.3. В торговых залах площадью 150 м2 и более, оборудованных системами водяного отопления и вентиляции, системы отопления следует проектировать из расчета поддержания температуры дежурного отопления в магазинах 10 °С. При этом внутреннюю температуру воздуха следует обеспечивать за счет повышения температуры воздуха, подаваемого системой приточной вентиляции.

5.4. Тамбуры входов для покупателей в магазинах торговой площадью не менее 150 м2 при расчетной температуре наружного воздуха для холодного периода года (расчетные параметры Б) минус 15 °С и ниже должны быть оборудованы воздушно-тепловыми завесами.

5.5. В продовольственных магазинах торговой площадью не менее 1500 м2 и в непродовольственных магазинах торговой площадью не менее 2500 м2 при расчетной температуре наружного воздуха минус 15 °С и ниже (параметры Б) ворота в разгрузочных помещениях следует оборудовать воздушно-тепловыми завесами.

Открывание ворот, оборудованных завесами, следует блокировать с пуском воздушно-тепловых завес, а также предусматривать включение воздушно-тепловой завесы при понижении температуры внутреннего воздуха в месте расположения ворот, до 10 °С.

5.6. При работе вентиляции и кондиционировании воздуха количество людей, находящихся в торговой зале, следует определять исходя из площади торгового зала на одного человека:

3,5 м2 - для магазинов мебели, музыкальных, электро- и радиоаппаратуры, книжных, спортивных, ювелирных и для магазинов в сельских населенных пунктах;

2,5 м2 - для продовольственных и других непродовольственных магазинов.

5.7. Теплопотери наружных дверей для входа покупателей и персонала и для входа в приемочные, не оборудованные тепловыми завесами, следует принимать с коэффициентов 5.

Нагревательные приборы следует располагать вдоль наружных ограждающих конструкций (витрин, окон).

Размещение нагревательных приборов и воздухонагревателей должно обеспечить доступ для их осмотра, ремонта и очистки.

Декоративные решетки, закрывающие нагревательные приборы, не должны увеличивать расчетную величину поверхности нагревательных приборов более чем на 15 %.

5.8. Общеобменную систему вытяжной вентиляции с механическим побуждением из кладовых и подсобных помещений допускается проектировать общими при условии установки в воздуховодах огнезадерживающих клапанов в местах пересечения стен и перегородок этих помещений.

5.9. В случаях, когда продажа продовольственных и непродовольственных товаров предусмотрена в одном зале, система вентиляции должна соответствовать требованиям к непродовольственным магазинам.

5.10. В магазинах торговой площадью не менее 3500 м2 при расчетной температуре наружного воздуха для теплового периода года (параметры А) 25 °С и выше следует предусматривать оптимальные параметры воздуха. В IV климатическом районе оптимальные параметры допускается принимать при торговой площади не менее 1000 м2.

5.11. Рекомендуется применять комбинированные отопительно-вентиляционные системы (система дежурного отопления, воздушного отопления, совмещенного с вентиляцией).

В торговых залах магазинов кроме торговых залов с химическими или иными пахучими веществами допускается применять рециркуляцию воздуха, при этом наружный воздух должен подаваться в объеме не менее 20 м3/ч на одного человека.

Вытяжную вентиляцию из кладовых для хранения товаров в сгораемой упаковке следует, как правило, выполнять с естественным побуждением раздельными каналами.

В случае проектирования раздельных каналов вытяжки вентиляции для кладовых и подсобных помещений требуется выполнение воздуховодов из несгораемых материалов с пределом огнестойкости 0,5 ч при отсутствии огнезадерживающих клапанов у каждого обслуживаемого помещения.

Приток воздуха в кладовые при наличии в них постоянных рабочих мест следует подавать непосредственно над рабочими местами.

5.12. Кондиционирование воздуха в торговых залах следует предусматривать соответственно нормативным требованиям и осуществлять с помощью центральных или местных кондиционеров или на основе бескомпрессорной системы кондиционирования воздуха.

Помещения магазинов рекомендуется оборудовать форточками, открывающимися фрамугами для естественного проветривания помещений (при отсутствии кондиционирования), а также потолочными вентиляторами независимо от устройства вентиляции.

5.13. Компоновку вентиляционных систем и размещение вентиляционных камер следует выполнять в соответствии со следующими требованиями: приточные камеры должны располагаться с учетом забора воздуха из незагрязненных зон; приточные системы рекомендуется располагать в нижних этажах здания, вытяжные - в верхних. При установке теплоутилизаторов допускается приточные и вытяжные венткамеры располагать в смежных помещениях.

5.14. В загрузочном помещении следует предусматривать общеобменную проточно-вытяжную вентиляцию, рассчитанную на разбавление и удаление вредных газов, выделяющихся при работе автомобилей.

Водоснабжение и канализация

5.15. При проектировании систем водоснабжения и канализации допускается не предусматривать внутренний водопровод и канализацию в проектах магазинов торговой площадью до 150 м2 в случаях, когда они размещаются в неканализационных районах, и применять люфт-клозеты (пудр-клозеты).

Нормы водопотребления, расчетные расходы воды и напоры у приборов следует принимать в соответствии с действующими нормативными требованиями, а расход на технологическое оборудование в соответствии с технологическим разделом проекта.

Во всех предприятиях розничной торговли горячую воду следует подводить к умывальникам, душам, производственным мойкам и раковинам.

6.16. Пожарные насосные агрегаты, устанавливаемые в зданиях магазинов, должны иметь 100 %-ный резерв. Если городской водопровод не обеспечивает расчетного расхода воды на наружное пожаротушение, необходимо предусматривать устройство пожарных резервуаров.

5.17. В торговом зале магазина "Рыба", когда проектируются аквариумы, необходимо предусматривать трубы для подвода воды и для опорожнения водопровода и канализации, а при необходимости - системы противопожарного водопровода, оборотного водоснабжения и водостока.

5.18. Отводные трубы от технологического оборудования и приборов следует присоединять к канализационной сети с разрывом струи не менее 20 мм.

5.19. Тамбуры для входа покупателей в магазины при наличии ливневой канализации можно оборудовать приямками с решеткой и подсоединять к дворовой сети (по заданиям на проектирование).

5.20. Прокладка труб фекальной канализации через складские помещения, помещения для приемки, хранения и подготовки товаров к продаже не допускается.

Трубы производственных и условно чистых стоков допускается прокладывать в помещениях для приема, подготовки продуктов к продаже, а также в подсобных помещениях без устройства прочисток и ревизии.

5.21. Шлюз камеры пищевых отходов следует оборудовать раковиной и поддоном размером 700´700´120 мм в строительных конструкциях с трапами и смесителями, с подводкой холодной и горячей воды для мытья бачков.

5.22. Градирни типа ГПВ для оборотного водоснабжения, обеспечивающего охлаждение конденсаторов холодильных машин, устанавливаются на плоской кровле или вне здания. Насосы и баки размещаются в отапливаемом помещении.

5.23. Смотровые колодцы на сетях производственной канализации допускается предусматривать в разгрузочных помещениях на площадках автомобилей при высоте разгрузочной платформы над площадкой не менее 0,6 м.

Системы канализации предприятий розничной торговли, расположенных в зданиях иного назначения или пристройках к ним, следует предусматривать, как правило, отдельными от систем канализации этих зданий.

5.24. Помещение водомерного узла должно размещаться в отапливаемом помещении и быть легкодоступным для осмотра. Высота помещения должна быть не менее 1,7 м до выступающих конструкций.

5.25. При недостаточном напоре в водопроводной сети используются хозяйственные и противопожарные насосы. Помещение с противопожарными насосами должно иметь отдельный вход. Площадь насосной следует принимать не менее 20 м2. Помещение водомерного узла может быть объединено с насосной, при этом площадь помещения должна быть не менее 22 м2.

5.26. Внутренний противопожарный водопровод следует объединять с хозяйственно-питьевым водопроводом, а при устройстве систем автоматического пожаротушения - присоединять к хозяйственно-питьевому водопроводу, включая установки пожарных насосов для внутреннего пожаротушения.

5.27. На каждом этаже магазинов в торговых залах и в помещениях для хранения уборочного инвентаря должны быть предусмотрены раковины, тралы и краны горячей и холодной воды, а в торговых залах непродовольственных магазинов торговой площадью не менее 8500 м2 и в продовольственных магазинах торговой площадью не менее 1000 м2, кроме того, - поливочные краны в мойках с учетом мокрой уборки полов.

5.28. Шлюз при камере пищевых отходов следует оборудовать мойкой для мытья бачков и раковин (см. рис. 14).

5.29. При наличии систем автоматического пожаротушения следует предусматривать присоединение к этим системам пожарных кранов.

Электротехнические устройства

Электрооборудование

5.30. Электроприемники предприятий розничной торговли в отношении обеспечения надежности электроснабжения следует относить:

к I категории - электродвигатели пожарных насосов, аварийное и эвакуационное освещение, питающие устройства пожарной и охранной сигнализации в предприятиях торговой площадью св. 2000 м2;

ко II категории – электроприемники в предприятиях торговой площадью 250 - 2000 м2;

к III категории - электроприемники в предприятиях торговой площадью менее 250 м2.

5.31. Для электроприемников I категории, включаемых в особых случаях (к пожарным насосам и т.п.), учет потребляемой энергии не требуется; при работе в длительном режиме (аварийное и эвакуационное освещение, пожарно-охранная сигнализация) следует предусматривать установку приборов учета.

5.32. В предприятиях торговой площадью от 250 м2 и выше предусматриваются два ввода от разных источников питания.

5.33. В целях экономии электрической энергии управление освещением помещений следует выполнять раздельно с учетом естественного освещения.

5.34. Питание электроприемников I категории должно осуществляться, как правило, от двух независимых источников.

В каждом отдельном здании следует устанавливать самостоятельное вводно-распределительное устройство (ВРУ).

При размещении торгового центра с предприятиями розничной торговли в одном здании и потребной мощности его электроприемников 400 кВ.А и более рекомендуется проектировать встроенную (пристроенную) трансформаторную подстанцию (ТП).

Щит низкого напряжения ТС следует использовать в качестве ВРУ здания.

Питание силовых электроприемников и освещение рекомендуется осуществлять от общих трансформаторов, добиваясь равной их загрузки.

Питание эвакуационного и аварийного освещения должно быть независимым от рабочего освещения и выполняться: при двух вводах в здание - от разных вводах, а при одном вводе - самостоятельными линиями начиная от ВРУ.

Питание аварийного и рабочего освещения помещений должно выполняться от разных источников. Возможно также автоматическое переключение аварийного освещения на второй источник при отключении источника, питающего рабочее освещение.

5.35. Управление освещением торговых залов и открытых для торговли площадок рекомендуется осуществлять централизованно от групповых осветительных щитков, управление освещением остальных помещений местное (выключателями).

В целях экономии электроэнергии следует предусматривать раздельное по групповое выключение светильников в зависимости от уровня естественной освещенности.

Управление рекламным освещением должно осуществляться автоматически посредством фотовыключателя или реле времени с блокировкой автоматического и ручного управления.

5.36. Для обеспечения безопасности при возникновении пожара рекомендуется предусматривать возможность одновременного автоматического отключения вентустановок во всех зданиях торгового центра, используя приборы пожарно-сторожевой (охранной) сигнализации всех объектов.

Автоматическое отключение вентиляции рекомендуется блокировать с устройствами пожаротушения, если они имеются в здании.

В кладовых с пожароопасными товарами проводку рекомендуется выполнять кабелем марки АВВГ, прокладываем открытым способом.

По деревянным конструктивным элементам навесов открытых торговых площадок проводку рекомендуется выполнять проводом с алюминиевыми: жилами и резиновой изоляцией в металлической фальцованной оболочке.

В помещениях предприятий розничной торговли следует применять систему общего равномерного освещения, дополняя ее местным освещением. Общее локализованное освещение следует применять в торговых залах площадью более 1000 м2.

5.37. Аварийное освещение проектируется в торговых залах, в электрощитовых, в главных кассах, в помещениях дежурных пожарных постов и пожарной охраны, в аккумуляторных, в гардеробах с числом мест хранения 300 и более и в разгрузочных помещениях.

В помещениях насосных, тепловых пунктах и бойлерных аварийное освещение проектируется только при постоянном пребывании дежурного персонала или если токоприемники данных помещений относятся к I категории надежности электроснабжения.

Эвакуационное освещение проектируется в магазинах торговой площадью не менее 100 м2 на путях выхода для посетителей и персонала, а также в транспортных тоннелях.

5.38. Входы в магазины, номерные знаки, указатели пожарных гидрантов (для отдельно стоящих магазинов) должны освещаться светильниками, присоединенными к сети внутреннего освещения, преимущественно эвакуационного или аварийного.

Наименьшая освещенность помещений, когда одновременно применяются люминесцентные лампы и лампы накаливания, должна устанавливаться из расчета освещения только люминесцентными лампами.

Необходимость освещения внутреннего пространства витрин определяется проектом. Освещенность витрин должна быть при люминесцентных лампах не менее 400 лк в плоскости расположения товаров.

Навесы с торговыми площадками должны освещаться светильниками для наружного освещения со сплошными рассеивателями.

Общее освещение следует выполнять преимущественно люминесцентными лампами.

Лампы накаливания следует, как правило, применять для освещения кладовых (при отсутствии в них постоянных рабочих мест), подсобных и технических помещений.

Освещение помещений магазинов, в которых производится сопоставление различных цветовых оттенков товаров (тканей и т.п., торговые залы специализированных магазинов, примерочные кабины, помещения для нарезки тканей), а также рекламно-декорационных мастерских и витрин следует, как правило, выполнять люминесцентными лампами улучшенной цветности.

5.39. В служебных помещениях для уменьшения яркостного контраста должны применяться, как правило, люминесцентные светильники, направляющие в верхнюю полусферу не менее 15 % излучаемого ими светового потока.

Освещение рабочих поверхностей, обладающих направленным, направленно-рассеянным или смешанным отражением, должно предусматриваться с учетом мер по ограничению отраженной блескости.

5.40. Общее освещение витрин, как правило, следует выполнять осветительными устройствами и светильниками преимущественно прямого света, размещенными в верхней зоне витрин. Направленное освещение товаров следует выполнять осветительными приборами концентрированного светораспределения и зеркальными лампами с узким и средним светораспределением. Осветительные приборы для направленного освещения следует размещать на нижних или верхних передних кромках витрин, за импостами по высоте витрин и в витринном пространстве.

Источники света, расположенные в верхней зоне витрин, должны быть защищены экранами и рассеивателями так, чтобы защитный угол в направлении наблюдателя был не менее 30° для осветительных приборов, установленных на высоте более 3 м, и 45° на высоте менее 3 м над полом помещения или тротуара.

Источники, устанавливаемые в средней и нижней зонах витрин (не выше 2 м. над тротуаром или полом помещения), должны быть защищены экранами и рассеивателями так, чтобы они не были видны снаружи.

5.41. Конструирование специальных осветительных устройств (световых карнизов, ниш, панелей, окон, куполов, балок) должно производится при соблюдении следующих требований:

отражающие поверхности при заданных строительных габаритах устройства должны иметь коэффициент отражения не менее 0,7;

отражающие поверхности должны выполняться на несгораемой основе и из несгораемых материалов;

в качестве светопропускающих материалов должны применяться стекла или пленки преимущественно с диффузным рассеиванием;

экранирующие решетки должны быть выполнены из материалов, отражающих или пропускающих свет диффузно или имеющих сумму коэффициентов отражения и пропускания не менее 0,7, и обеспечивать защитный угол не менее 30°.

В осветительных устройствах с лампами накаливания для светопропускающих поверхностей должны применяться несгораемые материалы. В устройствах с люминесцентными лампами для светопропускающих поверхностей допускается применять органическое стекло и подобные ему материалы.

При встраивании светильников в подвесные потолки из сгораемых материалов места их примыкания к конструкциям потолка должны быть защищены асбестовыми прокладками толщиной не менее 3 мм.

5.42. При расчете системы отопления и вентиляции помещений следует учитывать, что вся электрическая энергия, потребляемая источниками света, превращается в тепло (1 кВт. ч соответствует 3600 кДж). Люминесцентные светильники с решетчатыми заменителями, встраиваемые в подвесные потолки, выделяют 48 % тепловой энергии в освещаемое помещение и 52 % в пространство под потолком, а с рассеивателями - соответственно 40 и 60 %.

Связь и сигнализация

5.43. Проектирование устройств связи и сигнализации следует осуществлять в соответствии с действующими нормативными требованиями и руководящими указаниями ГУПО и УВО МВД СССР, а также с технической документацией заводов-изготовителей.

Для охраны материальных ценностей предприятию розничной торговли следует оборудовать устройствами пожарно-сторожевой (охранной) сигнализации.

Устройствами охранной сигнализации оборудуются периметр предприятия, при этом блокируются наружные двери, окна, форточки, люки и другие уязвимые места, а также дверные проемы кладовых, торговых залов и административных помещений. При возможности проникновения в здание снаружи на 2-й этаж следует блокировать проемы 2-го этажа. Охрана периметра является первым рубежом защиты.

5.44. Для усиления охраны в помещениях, где хранятся материальные ценности, предусматриваются дополнительные рубежи защиты на основе применения датчиков, выдающих сигнал тревоги при движении нарушителя или появлении открытого пламени в охраняемом помещении.

Способ защиты (блокировки) отдельных помещений определяется действующими инструкциями.

5.45. Автоматической пожарной сигнализацией должны быть оборудованы помещения, перечень которых установлен требованиями ГУПО МВД.

Сети связи и сигнализации в торговых залах, административных помещениях и в местах скопления людей рекомендуется выполнять скрытыми, в остальных помещениях - открытыми.

Для административно-хозяйственной связи в качестве стационарного устройства рекомендуется телефонная станция учрежденческого типа, для директорской связи - коммутатор связи. Емкость стационарных устройств определяется технологическим заданием.

При озвучивании торговых залов в качестве абонентских устройств звукоусилительной системы используются звуковые колонки или громкоговорители.

Радиоузел, как правило, следует размещать с максимальный приближением к торговым залам.

Помещение радиоузла должно быть оборудовано с учетом акустических требований. Допускаемый уровень шума, проникающего в радиоузел, не должен превышать 35 дБ.

Аппаратура, устанавливаемая в помещении радиоузла, используется для передач рекламного характера и для озвучивания торговых залов магазинов.

В радиоузлах запрещается прокладка магистральных сетей канализации, водопровода и газопровода.

Автоматизация инженерного оборудования

5.46. В системах автоматизации инженерного оборудования выбор объекта автоматизации (контроля, регулирования, защиты, блокировок, управления и сигнализации) должен осуществляться в целях поддержания необходимых параметров, обеспечения надежности, выполнения противопожарных требований, экономии тепла, холода и электроэнергии, сокращения обслуживающего персонала.

Для инженерного оборудования торговых зданий следует применять электрическую систему регулирования и защиты.

Для систем инженерного оборудования следует применять щиты автоматизации в соответствии с Указаниями Главмонтажавтоматики Минмонтажспецстроя СССР.

Для магазинов торговой площадью 8500 м2 и более рекомендуется предусматривать в составе технических помещений диспетчерскую инженерного оборудования, состоящую из аппаратной площадью 25-35 м2 и комнаты дежурного персонала- 16 м2.

В торговых зданиях, требующих применения для погрузочно-разгрузочных работ аккумуляторных погрузчиков, следует предусматривать, как правило, помещение зарядного поста при 1-2 погрузчиках и зарядную станцию с необходимым набором помещений (зарядная, щелочная или кислотная, щитовая, венткамера и кладовая нейтрализующих материалов) при 3-4 погрузочных.

5.47. Для монтажа средств автоматизации индустриальными методами следует предусматривать:

в архитектурно-строительном разделе проекта - проемы для прохода электрических и трубных проводок через стены и перекрытия, закладные трубы для скрытых проводок, конструкции для установки щитов;

в санитарно-технических разделах проекта - закладные устройства (бобышки, расширители, конусные переходы, ответные фланцы, трубные байпасы и др.) на технологическом оборудовании и трубопроводах для установки первичных приборов и средств автоматизации; регулирующие клапаны, соленоидные вентили, электрозадвижки регуляторы непосредственного действия, заслонки с исполнительными механизмами;

в разделе автоматизации - координацию электрических и трубных проводок с указанием способов прокладки и выбором основных монтажных изделий; координацию щитов, а также приборов и средств автоматизации, устанавливаемых на стенах, полу, колоннах зданий, технологических аппаратах и трубопроводах.

5.48. Оснащенность предприятий розничной торговли устройствами связи и сигнализации рекомендуется приникать согласно табл. 6.

5.49. Необходимость проектирования замкнутой системы телевидения должна устанавливаться заданиями на проектирование, а телевизионной сети для приема программ телевизионного вещания в соответствии с наличием в номенклатуре товаров телевизионных приемников.

Таблица 6

№ п.п

Виды устройств

Магазины торговой площадью, м

Магазины заказов нормируемой площадью, м2

до 3000

св. 3000 до 11000

св. 11000

до 1000

св. 1000

1

2

3

4

5

6

7

1

Городская телефонная связь

+

+

+

+

+

2

Административно-хозяйственная связь

-

+

+

-

+

3

Директорская связь

+

+

+

+

+

4

Громкоговорящая двухсторонняя директорская связь

-

-

+

-

+

5

Городская радиостанция

+

+

+

+

+

6

Озвучивание

+

+

+

-

+

7

Охранная сигнализация

+

+

+

+

+

8

Электрочасификация

+

+

+

-

+

Газоснабжение

5.50. Необходимость проектирования газоснабжения устанавливается заданием на проектирование в соответствии с п. 3.58 СНиП 2.08.02-89.

Приложение 1

Термины (к прил. 2 СНиП 2.08.02-89)

Универсам и магазины "Товары повседневного спроса" (ТПС)

- магазин самообслуживания с универсальным ассортиментом продовольственных товаров и отделом непродовольственных товаров повседневного спроса

Универмаг

- магазин с универсальным ассортиментом непродовольственных товаров и отделом продовольственных товаров. (В сельских районах - возможен без отдела продовольственных товаров)

Торговый центр

- комплекс взаимосвязанных предприятий розничной торговли, общественного питания и бытового обслуживания

Торгово-общественный центр

- комплекс многофункциональных предприятий торгового, коммунально-бытового и культурного обслуживания населения

Торговая площадь магазина

- сумма площадей торговых залов, помещений приема и выдачи заказов, зала кафетерия (сок-баров, буфетов для покупателей, отделов кулинарии и т.п.), площадей для дополнительных услуг покупателям

Основные эвакуационные проходы

- главные проходы в торговом зале, связывающие проходы между торговым оборудованием или отделы (секции) с эвакуационными выходами из зала

Коэффициент установочной площади

- отношение площади, занятой торгово-технологическим оборудованием, к площади торгового зала

Приложение 2

Нормативные требования СНиП 2.08.02-89, обязательные для применения при проектировании предприятий розничной торговли

№ п.п

Требования

Пункты, таблицы, приложения СНиПа

1

2

3

 

Вводная часть

 

1

Определение терминов

Прил. 2

2

Правила подсчета технико-экономических показателей

П. 1.1 и прил. 3

3

Допускаемые отклонения в сторону уменьшения против задания на проектирование

П. 1.2

4

Устройства для удобного доступа инвалидов

П. 1.3

5

Высоты помещений от пола до потолка

П. 1.4 и 1.5

6

Сквозные проезды в зданиях для пожарных автомобилей

П. 1.6

7

Отметка полов у входов в здание

П. 1.7

8

Перечень помещений, которые допускается размещать в подвальных и цокольных этажах

П. 1.8 и прил. 4

9

Проектирование помещений двойного назначения

П. 1.9

10

Выходы наружу из технического подполья и из каждого отсека подвала и цокольного этажа

П. 1.10 и 1.11

11

Расположение рабочих помещений и кабинетов постоянного пребывания людей с учетом смежных помещений

П. 1.13

12

Этажность зданий (предприятий)

П. 1.14 и табл. 3

13

Ограждающие конструкции переходов между зданиями

П. 1.15

14

Расположение предприятий розничной торговли в зданиях иного назначения

П. 71

15

Дымоудаление в торговых залах без естественного освещения

П. 1.72

16

Проектирование магазинов по продаже легковоспламеняющихся материалов и горючих жидкостей

П. 1.73

17

Размещение кладовых

П. 1.74, 1.75, 1.79 и 1.82

18

Светопрозрачные заполнения дверей, фрамуг и внутренних стен и перегородок

П. 1.83

19

Требования по раздвижным перегородкам

П. 1.84

20

Отделка стен и потолков помещений

П. 1.85, 1.86 и 1,09

21

Проектирование эвакуационных лестниц (лестничные марши, площадки, поручни, выходы, уклоны)

П. 1.90-1.93, 1.96 и 1.97

22

Уклон пандусов

П. 1.94

23

Винтовые и криволинейные лестницы

П. 1.98

24

Эвакуация с наружных открытых лестниц

П. 1.99 и 1.100

25

Естественная освещенность лестничных клеток

П. 1.101

26

Открытие лестница внутри здания

П. 1.102

27

Наружные пожарные лестницы

П. 1.104

28

Ширина эвакуационных выходов из коридора и ширина маршей лестниц

П. 1.105

29

Расстояния до ближайших эвакуационных выходов

П. 1.108 и табл. 9-11

30

Ширина основных эвакуационных проходов

П. 1.11-1.113

31

Второй выход из торговых залов магазинов в сельских населенных пунктах

П. 1.129

32

Входы для покупателей и персонала

П.1.130

33

Входы в кладовые

П. 1.130

34

Требования к коридорам

П. 1.132

35

Грузовые и пассажирские (для инвалидов) лифты

П. 1.141, 1.42, 1.144-1.147

36

Мусороудаление и пылеуборка

П. 1.147, 1.148, 1.151

37

Естественная освещенность и инсоляция

П. 1.156-1.160

 

Требования к основным помещениям - разд. 2

 

38

Размещение уборных и комнат гигиены для женщин

П. 2.30-2.31

39

Контрольные удельные показатели нормируемой площади

П. 2.32

 

Инженерное оборудование - разд. 3

 

40

Общие требования по системам отопления и вентиляции

П. 3.1-3.7

41

Проектирование вентиляции, расчетной температуры и объема вытяжки в торговых залах

П. 3.35 и 3.36, табл. 24

42

Водоснабжение и канализация

П. 3.51

43

Электротехнические устройства

П. 3.52-3.54

44

Газоснабжение

П. 3.55

45

Автоматическая пожарная сигнализация и автоматическое пожаротушение

прил. 9 и 10


Приложение 3

Рекомендации по составу помещений в продовольственных магазинах

№ п.п.

Помещения

Городские и поселковые магазины

Магазины потребкооперации

Магазины в сельских населенных пунктах

Магазины продовольственных заказов

"Универсам", "Гастроном", "Диетпродукты"

"Хлебно-кондитерский", "Кондитерские изделия"

"Овощи-фрукты"

"Рыба"

"Соки-джемы", "Напитки"

фирменные магазины

"Дары природы"

"Товары повседневного спроса", "Универсам", "Сельхозпродукты"

"Заказы"

1

2

3

4

5

6

7

8

9

10

11

 

ТОРГОВЫЕ ПОМЕЩЕНИЯ

 

 

 

 

 

 

 

 

 

1

Торговые залы (с торговыми автоматами)

+

+

+

+

+

+

+

+

+

2

Прием и выдача заказов

+

-

По заданию на проектирование

По заданию на проектирование

-

-

-

Только магазин товаров повседневного спроса и универсам

+

3

Кафетерий (сок-бары, отделы кулинарии, буфеты и т.п.)

ТП не менее 150 м2

ТП не менее 150 м2

-

-

+

+

+

То же

-

4

Стол (киоск) для справок, продажи пакетов, упаковки и т.п.

+

+

+

+

+

+

+

+

В помещении приема и выдачи заказов

 

ПОДСОБНЫЕ ПОМЕЩЕНИЯ

 

 

 

 

 

 

 

 

 

5

Помещения хранения товаров

+

+

+

+

+

+

+

+

+

6

Охлаждаемые камеры

+

По заданию на проектирование

+

+

-

+

+

+

+

7

Приемочная (при разгрузке под навесом или в не отапливаемом помещении)

+

+

+

+

-

+

+

+

Приемочная не зависимо от организации разгрузки. Дополнительное помещение для отправки заказов

8

Хранение контейнеров обменного фонда

+

+

+

+

+

+

+

+

+

9

Комплектовочная и фасовочная продовольственных заказов

+

-

По заданию на проектирование

По заданию на проектирование

-

-

-

Только магазин товаров повседневного спроса и универсам

+

10

Хранение тары (как правило под навесом)

+

+

+

+

+

+

+

+

Высокомеханизированный комплекс преимущественно в помещении

11

Механизированное прессование бумажных и древесностружечных отходов

По заданию на проектирование

-

-

-

-

По заданию на проектирование

По заданию на проектирование

-

+

12

Хранение упаковочных материалов, инвентаря и спецодежды

+

+

+

+

+

+

+

ТП не менее 250 м2

+

13

Хранение уборочного инвентаря, моющих и дезинфицирующих средств

+

+

+

+

+

+

+

То же

+

14

Моечная и подсобная при кафетерии

+

+

+

+

+

+

+

"

+

15

Бельевая

+

+

+

+

+

+

+

"

+

16

Мастерская мелкого ремонта инвентаря

ТП не менее 1000 м2

-

-

-

-

-

-

По заданию на проектирование

+

17

Рекламно-декорационная мастерская

ТП не менее 1500 м2

-

-

-

-

-

-

-

-

18

Охлаждаемая камера для пищевых отходов

ТП не менее 400 м2

-

ТП не менее 400 м2

-

-

+

+

ТП не менее 250 м2

+

19

Помещение для сбора мусора

Как правило под навесом

-

Как правило под навесом

+

-

Как правило под навесом

Как правило под навесам

Как правило под навесом

+

20

Помещение комплектации заказов

+

-

По заданию на проектирование

-

-

По заданию на проектирование

По заданию на проектирование

По заданию на проектирование

При помещении выдачи заказов

21

Помещение для приема стеклотары

+

-

-

-

+

-

-

ТП не менее 150 м2

-

 

СЛУЖЕБНЫЕ И БЫТОВЫЕ ПОМЕЩЕНИЯ

 

 

 

 

 

 

 

 

 

22

Кабинет директора и секретаря

Отдельное помещение при торговой площади не менее 650м2

-

-

-

-

Отдельное помещение при площади не менее 650 м2

Отдельное помещение при площади не менее 650 м2

Общее помещение

-

23

Контора

+

+

+

+

+

Общее

Общее

Общее

+

24

Комната техперсонала

Отдельное помещение при торговой площади не менее 1000м2

-

-

-

-

помещение

помещение

помещение

+

25

Комната персонала (прием пищи)

+

+

+

+

+

+

+

+

+

26

Буфет для персонала

ТП не менее 1000 м2

-

-

-

-

По заданию на проектирование

По заданию на проектирование

ТП не менее 1000 м2

Столовая и буфет

27

Красный уголок

То же

-

-

-

-

-

-

То же

+

28

Помещение общественных организаций

+

+

+

+

-

-

-

-"-

+

29

Главная касса

ТП не менее 400 м2

-

ТП не менее 400 м2

-

-

-

+

ТП не менее 650м2

+

30

Радиоузел

ТП не менее 1000 м2

-

-

-

-

-

-

ТП не менее 1000 м2

+

31

Пожарно-сторожевая охрана и милиция

ТП не менее 1500 м2

-

-

-

-

-

-

ТП не менее 1500м2

+

32

Здравпункт

ТП не менее 1500 м2

+

-

-

-

-

-

ТП не менее 1500м2

+

33

Гардеробные

+

+

+

+

+

+

+

+

+

34

Уборные

+

+

+

+

-

+

+

+

+

35

Душевые

+

-

+

+

-

+

+

+

+

36

Помещение гигиены женщин

ТП не менее 650 м2

-

ТП не менее 650 м2

ТП не менее 650 м2

-

ТП менее 650 м2

ТП менее 650 м2

ТП не менее 650 м2

+

Приложение 4

Рекомендации по составу помещений в непродовольственных магазинах

 

 

Городские и поселочные помещения

№ п.п.

Помещения

"Универмаг", "Детский мир"

"Для новобрачных", "Для молодежи", "Товары для детей" "Ткани", "Обувь", "Малыш"

"Спорт и туризм", "Бытовые машины и приборы", "Бытовая химия"

"Мебель", "Строительные материалы"

"Радиотовары", "Фотокинотовары", Грампластинки", "Ювелирные изделия и часы", "Галантерея и парфюмерия"

"Книги"

"Цветы"

"Комиссионные магазины"

1

2

3

4

5

6

7

8

9

10

 

ТОРГОВЫЕ ПОМЕЩЕНИЯ

 

 

 

 

 

 

 

 

1

Торговые помещения (с торговыми автоматами)

+

+

+

+

+

+

+

(без торговых автоматов)

2

Прием и выдача заказов

По заданию на проектирование

-

-

По заданию на проектирование

-

-

-

-

3

Кафетерий (сок-бары, буфеты)

+

ТП не менее 650 м2

ТП не менее 650 м2

ТП не менее 650 м2

ТП не менее 650 м2

-

-

-

4

Стол (киоск) для справок, продажи пакетов, упаковки и т.п.

+

+

+

+

+

+

+

+

 

ПОДСОБНЫЕ ПОМЕЩЕНИЯ

 

 

 

 

 

 

 

 

5

Помещения хранения товаров (при наличии продовольственных отделов с охлажденными камерами)

+

-

-

-

-

-

-

-

6

Приемочная (на разгрузочной платформе - при разгрузке в помещении; в отдельном помещении при разгрузке под навесом или в неотапливаемом помещении)

+

+

+

+

+

+

-

Прием на комиссию в помещении (от населения)

7

Хранение контейнеров обменного фонда

+

+

+

+

+

+

+

+

8

Хранение тары (как правило, под навесом)

+

+

+

+

+

+

+

+

9

Механизированное прессование бумажных и древесностружечных отходов

ТП не менее 3500 м2

-

-

ТП не менее 1000 м2

-

-

-

-

10

Хранение упаковочных материалов, инвентаря и спецодежды

+

+

+

+

+

+

+

+

11

Хранение уборочного инвентаря, моющих и дезинфицирующих средств

+

+

+

+

+

+

Встроенный шкаф при ТП до 250 м2

Встроенный шкаф при ТП до 250м2

12

Моечная

ТП не менее 3500 м2

-

-

-

-

-

-

-

13

Бельевая

То же

-

-

-

-

-

-

-

14

Подсобные при кафетериях и буфетах

+

+

+

+

+

+

-

-

15

Мастерская мелкого ремонта оборудования

+

ТП не менее 1000 м2

ТП не менее 1000 м2

ТП не менее 1000 м2

-

-

-

-

16

Рекламно-декорационная мастерская

При ТП 1000 м2 и более

-

-

-

-

-

-

-

17

Охлаждаемая камера пищевых отходов

При отделе продовольственных заказов

-

-

-

-

-

-

-

18

Сбора мусора (как правило, под навесом)

+

+

+

+

+

+

+

+

19

Помещение комплектации заказов

По заданию на проектирование

-

-

-

-

-

-

-

20

Помещение для оформления посылочной торговли

То же

-

-

-

-

-

-

-

21

Экспедиция для доставки товаров на дом

ТП не менее 1000 м2

-

-

ТП не менее 400 м2

-

-

-

-

 

СЛУЖЕБНЫЕ И БЫТОВЫЕ ПОМЕЩЕНИЯ

 

 

 

 

 

 

 

 

22

Кабинет директора и секретаря

+

Отдельное помещение при ТП не менее 650 м2

Отдельное помещение при ТП не менее 650 м2

Отдельное помещение при ТП не менее 650 м2

Отдельное помещение при ТП не менее 650 м2

Общее помещение

Общее помещение

-

23

Контора

+

То же

То же

То же

То же

Общее помещение

Общее помещение

+

24

Комната технического персонала

+

ТП не менее 650 м2

ТП не менее 650 м2

ТП не менее 650 м2

ТП не менее 650 м2

-

-

-

25

Комната персонала (прием пищи)

+

ТП не менее 1000 м2

ТП не менее 1000 м2

ТП не менее 1000 м2

ТП не менее 1000 м2

ТП не менее 650 м2

ТП не менее 650 м2

-

26

Буфет для персонала

ТП не менее 1000 м2

ТП свыше 1000 м2

ТП свыше 1000 м2

ТП свыше 1000 м2

ТП свыше 1000 м2

-

-

-

27

Столовая-раздаточная для покупателей

ТП не менее 8500 м2

-

-

-

-

-

-

-

28

Столовая для персонала

ТП не менее 8500 м2

-

-

-

-

-

-

-

29

Красный уголок

ТП не менее 1000 м2

ТП не менее 1000 м2

ТП не менее 1000 м2

ТП не менее 1000 м2

ТП не менее 1000 м2

-

-

-

30

Общественные организации

+

+

+

+

+

+

-

-

31

Зал собраний

ТП не менее 8500 м2

-

-

-

-

-

-

-

32

Главная касса

+

+

+

+

+

-

-

-

33

Кабинет гражданской обороны

ТП не менее 3500 м2

-

-

-

-

-

-

-

34

Радиоузел

+

+

+

+

+

+

+

+

35

Пожарно-сторожевая охрана

+

+

+

+

+

-

-

-

36

Здравпункт

ТП не менее 1500 м2

ТП не менее 1500 м2

ТП не менее 1500 м2

ТП не менее 1500 м2

ТП не менее 1500 м2

-

-

-

37

Гардеробные

+

+

+

+

+

+

+

+

38

Уборные

+

+

+

+

+

+

+

+

39

Душевые

+

-

-

+

-

-

-

-

40

Помещение гигиены женщин

+

ТП не менее 1000 м2

ТП не менее 1000 м2

ТП не менее 1000 м2

ТП не менее 1000 м2

-

-

-

41

Туалетные для покупателей

+

-

-

-

-

-

-

-

42

АТС

+

ТП не менее 3000 м2

-

-

-

-

-

-

Продолжение прил. 4

№ пп.

Помещения

Магазины в сельских населенных пунктах

"Промтовары

Культтовары", "Товары для детей", "Техника"

"Универмаг"

"Хозтовары", Приусадебное хозяйство", "Товары для дома"

1

2

3

4

5

6

 

ТОРГОВЫЕ ПОМЕЩЕНИЯ

 

 

 

 

1

Торговые залы (с торговыми автоматами)

+

+

+

+

2

Прием и выдача заказов

-

-

По заданию на проектирование

-

3

Кафетерий (сок-бары, буфеты)

ТП не менее 400 м2

-

ТП не менее 650 м2

-

4

Стол (киоск) для справок, продажи пакетов, упаковки и т.п.

+

+

+

+

 

ПОДСОБНЫЕ ПОМЕЩЕНИЯ

 

 

 

 

5

Помещения хранения товаров (при наличии продовольственных отделов с охлаждаемыми камерами)

-

-

+

-

6

Приемочная (на разгрузочной платформе - при разгрузке в помещении; в отдельном помещении - при разгрузке под навесом или в неотапливаемом помещении)

+

+

+

+

7

Хранение контейнеров обменного фонда

+

+

+

+

8

Хранение тары (как правило, под навесом)

+

+

+

+

9

Механизированное прессование бумажных и древесностружечных отходов

-

-

-

-

10

Хранение упаковочных материалов, инвентаря и спецодежды

ТП не менее 250 м2

ТП не менее 250 м2

ТП не менее 250 м2

ТП не менее 250 м2

11

Хранение уборочного инвентаря, моющих и дезинфицирующих средств

Встроен шкаф при ТП до 250 м2

Встроен шкаф при ТП до 250 м2

+

Встроен шкаф при ТП до 250 м2

12

Моечная

-

-

ТП не менее 250 м2

-

13

Бельевая

-

-

То же

-

14

Подсобные при кафетериях и буфетах

-

-

При кафетериях

-

15

Мастерская мелкого ремонта оборудования

-

-

ТП не менее 1000 м2

-

16

Рекламно-декорационная мастерская

-

-

То же

-

17

Охлаждаемая камера пищевых отходов

-

-

При отделе продовольственных товаров

-

18

Сбора мусора (как правило, под навесом)

+

+

+

+

19

Помещение комплектации заказов

-

-

по заданию на проектирование

-

20

Помещение для оформления посылочной торговли

-

-

-

-

21

Экспедиция для доставки товаров на дом

-

-

ТП не менее 1000 м2

-

 

СЛУЖЕБНЫЕ И БЫТОВЫЕ ПОМЕЩЕНИЯ

 

 

 

 

22

Кабинет директора и секретаря

Общее

Общее

ТП не менее 1000 м2

Общее

23

Контора

помещение

помещение

+

помещение

24

Комната технического персонала

-

-

ТП не менее 650 м2

-

25

Комната персонала (прием пищи)

+

+

+

+

26

Буфет для персонала

-

-

-

-

27

Столовая-раздаточная для покупателей

-

-

-

-

28

Столовая для персонала

-

-

-

-

29

Красный утолок

-

-

ТП не менее 1000 м2

-

30

Общественные организации

ТП не менее 950 м2

ТП не менее 650 м2

ТП не менее 650 м2

ТП не менее 650 м2

31

Зал собраний

-

-

-

-

32

Главная касса

+

+

ТП не менее 1000 м2

-

33

Кабинет гражданской обороны

-

-

-

-

34

Радиоузел

-

-

ТП не менее 1000 м2

-

35

Пожарно-сторожевая охрана и милиция

+

+

+

+

36

Здравпункт

-

-

ТП не менее 1000 м

-

37

Гардеробные

+

+

+

+

38

Уборные

+

+

+

+

39

Душевые

-

-

+

-

40

Помещение гигиены женщин

-

-

+

-

41

Туалетные для покупателей

-

-

-

-

42

АТС

-

-

+

-

Приложение 5

Примерные контрольные расчетные показатели нормируемой площади по группам неторговых помещений городских и поселковых продовольственных магазинов

Таблица 1

Группы помещений

"Универсам", "Гастроном", "Диетпродукты"

"Универсам", Гастроном", "Диетпродукты"

"Хлебокондитерский", "Кондитерские изделия"

на 10 м2 ТП при величине предприятия 400 м2

на каждые 10 м2 ТП свыше или менее 400 м2

на 10 м2 ТП при величине предприятия 1000 м2

на каждые 10 м2 ТП св. 1000 м2

на 10 м2 ТП при величине предприятия 250 м2

на каждые 10 м2 ТП свыше или менее 250 м2

Приема, хранения и подготовки товаров к продаже

5,1

±14,56

4,58

4,4

3,76

±2,26

Подсобные

2,27

±1,1

1,55

1,45

1,44

+0,8

Служебные и бытовые

1,78

±1,72

2,07

1,44

1,8

±1,2

Итого

9,15

±7,38

8,2

7,29

7

±4,26

Продолжение табл. 1

Группы помещений

"Овощи-фрукты"

"Рыба"

"Соки-джемы", "Напитки"

на 10 м ТП при величине предприятия 250 м2

на каждые 10 м2 ТП свыше или менее 250 м2

на 10 м2 ТП при величине предприятия 250 м2

на каждые 10 м2 ТП свыше или менее 250 м2

на 10 м2 ТП при величине предприятия 250 м2

на каждые 10 м2 ТП свыше или менее 250 м2

Приема, хранения и подготовки товаров я продаже

4,8

±4,33

3,64

±2,66

3,8

± 2,73

Подсобные

2,16

±1,4

1,52

±1

2,72

±1,4

Служебные и бытовые

1,8

±1,2

1,8

±1,2

1,8

±1,2

Итого

8,76

±6,93

6,96

±4,86

8,32

±5,33


Таблица 2

Группы помещений

Магазины потребкооперации

Фирменные

"Дары природы"

на 10 м2 ТП при величине предприятия 250 м2

на каждые 10 м2 ТП свыше или менее 250 м2

на 10 м2 ТП при величине предприятия 250 м2

на каждые 10 м2 ТП свыше или менее 250 м2

Приема, хранения и подготовки товаров к продаже

6,9

±4

6,1

±4,8

Подсобные

2

±0,65

1,9

±1,4

Служебные и бытовые

2

±1,4

2

±1,6

Итого

10,9

±6,05

10

±7,8

Таблица 3

Группы помещений

Магазины в сельских населенных пунктах "Продукты", "Сельхозпродукты", "Товары повседневного спроса", "Универсам"

на 10м2 ТП, при величине предприятия 100 м2

на каждые 10 м2 ТП свыше или менее 100 м2

Приема, хранения и подготовки товаров к продаже

6,9

±4,2

Подсобные

2,3

±1,1

Служебные и бытовые

1,6

±0,8

Итого

10,8

±6,1

Таблица 4

Группы помещений

% нормируемой площади по группам помещений магазинов заказов при нормируемой площади предприятий, м2

600

1500

3000

5000

Хранения и выдачи заказов

6

5,5

5

4,5

Приема и хранения продуктов

35,5

36

37

38

Комплектации продуктов

20

21

21,5

22

Хранения и отправки скомплектованных заказов

9,5

10

10,5

11

Подсобные

14

13

12

11,5

Служебные и бытовые

15

14,5

14

13

Итого

100

100

100

100

Примечание. Для других величин магазинов заказов процент устанавливается методом интерполяции или экстраполяции.


Приложение 6

Примерные контрольные расчетные показатели нормируемой площади по группам неторговых помещений городских и поселковых непродовольственных магазинов

Таблица 1

Группы помещения

"Универмаг", "Детский мир"

"Универмаг", "Детский мир"

"Для новобрачных ", "Для молодежи", "Товары для детей", "Одежда", "Обувь", "Ткани", "Малыш"

на 10 м2 ТП при величине предприятия 2500 м2

на каждые 10 м2 ТП свыше или менее 2500 м2

на 10 м2 при величине предприятия 8500 м2

на каждые 10 м2 ТП св. 8500 м2

на 10 м2 ТП при величине предприятия 250 м2

на 10 м2 ТП свыше или менее 250 м2

на 10 м2 ТП при величине предприятия 1000 м2

на каждые 10 м2 ТП св. 1000 м2

Приема, хранения и подготовки товаров к продаже

3,8

±3,54

3,62

3,46

3,6

±3,2

3,1

3

Подсобные

0,62

±0,4

0,46

0,32

1,2

±0,36

0,57

0,51

Служебные и бытовые

2,06

±1,43

1,54

1,05

1,44

±1,13

1,6

0,9

Итого

6.48

±5,37

5,62

4,83

6,24

±4,69

5,27

4,41


Продолжение прил. 6 табл. 1

Группа помещений

"Спорт и туризм", "Бытовые машины и приборы", "Хозтовары", "Бытовая химия"

на 10 м2 ТП при величине предприятия 250 м2

на каждые 10 м2 ТП свыше или менее 250 м2

на 10 м2 при величине предприятия 1000 м2

на каждые 10 м2 ТП свыше 1000 м2

Приема, хранения и подготовки товаров к продаже

6

±5,3

5,25

5

Подсобные

1,2

±0,64

0,78

0,66

Служебные и бытовые

1,44

±1,13

1,65

1,16

Итого

8,64

±7,07

7,68

6,62

Продолжение табл. 1

Группы помещений

"Мебель", "Строительные материалы"

на 10 м2 ТП при величине предприятия 400 м2

на каждые 10 м2 ТП свыше или менее 400 м2

на 10м2 ТП при величине предприятия 1000 м2

на каждые 10 м2 ТП свыше 1000 м2

Приема, хранения и подготовки к продаже

7,22

±6,9

6,88

6,4

Подсобные

1,4

±1,07

1,2

1,07

Служебные и бытовые

1,13

±1,1

1,59

0,71

Итого

9,75

±9,07

9,47

8,18


Продолжение табл. 1

Группы помещений

"Радиотовары", Фото-кинотовары", Грампластинки", Ювелирные изделия и часы", "Галантерея и парфюмерия"

"Книги"

"Цветы"

на 10 м2 ТП при величине предприятия 250м2

на каждые 10 м2 ТП свыше или менее 250 м2

на 10 м2 ТП при величине предприятия 1000 м2

на каждые 10 м2 ТП свыше 1000 м2

на 10 м2 ТП при величине предприятия 250 м2

на каждые 10 м2 ТП свыше или менее 250 м2

на 10 м2 ТП при величине предприятия 1000 м2

на каждые 10 м2 ТП свыше 1000 м2

на 10 м2 ТП при величине предприятия 250 м2

на каждые 10 м2 ТП свыше или менее 250 м2

Приема, хранения и подготовки к продаже

3,8

±3,47

3,2

3,08

4,2

±3,6

3,45

3,3

1,8

±1,66

Подсобные

1.2

±0,64

0,78

0,38

1,08

±0,28

0,48

0,18

1,2

±0,2

Служебные и бытовые

1,32

±0,9

1,52

1,06

1,32

±0,9

1,53

1,06

1,32

±0,9

Итого

6,32

±5,01

5,51

4,52

6,6

±4,78

5,46

4,54

4,32

±2,76


Таблица 2

Группы помещений

Комиссионные магазины

на 10 м2 ТП при величине предприятия 250 м2

на каждые 10 м2 ТП свыше или менее 250 м2

на 10 м2 ТП при величине предприятия 1000 м2

на каждые 10 м2 ТП св. 1000 м2

Для приемщиков

1,08

±0,57

0,8

0,58

Подсобные

0,72

±0,12

0,27

0,18

Служебные и бытовые

1,24

±0,9

1,49

0,82

Итого

3,04

±1,59

2,56

1,58


Таблица 3

Группы помещений

Непродовольственные магазины в сельских населенных пунктах

"Промтовары"

"Культтовары", "Товары для детей", "Техника"

"Универмаг"

"Хозяйственные товары", "Товары для дома", "Приусадебное хозяйство"

на 10 м2 ТП при величине предприятия 150 м2

на каждые 10 м2 ТП свыше или менее 150 м2

на 10 м2 ТП при величине предприятия 250 м2

на каждые 10 м2 ТП свыше или менее 250 м2

на 10 м2 при величине предприятия 650 м2

на каждые 10 м2 ТП св. 650 м2

на 10 м2 ТП при величине предприятия 150 м2

на каждые 10 м2 ТП свыше или менее 150 м2

Приема, хранения и подготовки товаров к продаже

4,8

12,7

4,7

±4,1

3,5

2,9

6,6

5,7

Подсобные

0,9

±0,4

0,76

±0,73

0,8

0,6

0,9

±0,4

Служебные и бытовые

1

±1

1

±0,9

1

0,9

1

±0,9

Итого

6,7

±4,1

6,46

±5,73

5,3

4,4

8,5

±7


Приложение 7

Методика определения технико-экономических показателей по проектам предприятий розничной торговли согласно прил. 5 и 6

Методика определения величины нормируемой площади иллюстрируется на примере магазина "Овощи-фрукты" торговой площадью 250 м2 (базовая величина), 150 и 400 м2.

Группы помещений, м2

Магазин "Овощи-фрукты"

при базовой величине ТП 250 м2

при величине ТП, м2

150

400

1

2

3

4

Приема, хранения и подготовки к продаже

Подсобные помещения

Служебные и бытовые

Итого нормируемая площадь неторговых помещений

219

149,7

322,95

Примечание. В случаях когда помимо базовой величины предприятия предусматриваются две базовые величины (универсамы торговой площадью 400 и 1000 м2, универмаги "Детский мир" торговой площадью 2500 и 8500 м2 и др.), расчет проводится по интервалам в пределах между базовыми величинами.

Приложение 8

Нагрузка от оборудования, товаров и людей в торговых залах и кладовых

Нормативные значения эквивалентных равномерно-рапределительных нагрузок от оборудования (стеллажей, поддонов, горок и т.п.), товаров и людей, действующие на перекрытия зданий торговли, приведены в таблице. Их следует применять в дополнении к действующему СНиП "Нагрузки и воздействия".

№ п.п.

Товарная группа

Нормативные значения нагрузки, кПа (кгс/м2

полные

пониженные

1

2

3

4

1

Торговые залы

 

 

 

продовольственные товары

4,5(450)

2,5(250)

 

непродовольственные товары:

 

 

 

хозяйственные, скобяные, краски, удобрения

7(700)

4(400)

 

остальные

3,5(350)

2(200)

2

Кладовые

 

 

 

продовольственные товары:

 

 

 

бакалейные

7(700)

4(400)

 

кондитерские и хлебобулочные изделия, рыбные, молочные товары, гастрономия

5(500)

3(300)

 

мясопродукты, овощи, фрукты, винно-водочные изделия, безалкогольные напитки

4(400)

2(200)

 

непродовольственные товары:

 

 

 

керамические плиточные изделия, листовое железо (кровельное), цемент

Не менее 15(1500)

Не менее 8(800)

 

книги, краски

10(1000)

5(500)

 

электротовары, сантехника, хозтовары, посуда, бытовая химия

8(800)

4(400)

 

канцтовары, ткани, ковры

7(700)

4(400)

 

радиотовары, фототовары, музтовары, спорттовары, фарфор, хрусталь, мебель

6(600)

3(300)

 

детские игрушки, ювелирные изделия, часы

5(500)

2,5(250)

 

обувь, одежда, галантерея, парфюмерия, белье, трикотаж

4(400)

2(200)

Примечания: 1. При наличии напольного подвижного механизированного оборудования (электропогрузчиков, электроштабелеров) нормативные значения эквивалентных нагрузок, указанные в таблице, следует учитывать: полных - на 2 кПа (200 кгс/м2), пониженных - на 1 кПа (100 кгс/м2). 2. При контейнерном способе размещения товаров нормативные значения эквивалентных нагрузок следует принимать по физическим данным. 3. При расчете ригелей, колонн, фундаментов и несущих стеновых панелей полные нормативные значения нагрузок, указанные в таблице, следует снижать в зависимости от грузовой площади А, м2, соответствующего элемента на каждом перекрытии умножением на коэффициент сочетания y, равный при А > А1 = 36 м2:

в торговых залах ;

в кладовых

Приложение 9

Исходная документация для проектирования

Состав исходной документации, установленный действующими документами, дополняется следующими документами, необходимыми при разработке проектов предприятий розничной торговли:

1. Заданием на проектирование от ведомственной организации, устанавливающей:

количество персонала (по профессиям);

перечень технологического оборудования, рекомендуемого для применения;

перечень подъемно-транспортного оборудования, рекомендуемого для доставки, разгрузки и перемещения товаров в магазине;

технологические требования по процессу товародвижения.

2. Технические условия на разработку проектов с характеристикой рекомендуемых для применения конструкций, строительных и отделочных материалов, типов инженерного оборудования, согласованные проектной и строительной организациями и утвержденные заказчиком-титулодержателем.

3. Характеристики гидрогеологических условий для строительства на отведенном участке и заключение специализированной организации о состоянии несущих конструкций (в случае необходимости) и возможности дальнейшего использования здания и, в том числе, его надстройки (при реконструкции).

4. Другие исходные материалы, необходимые при проектировании в конкретных условиях и для различных регионов страны (климатические, экономические, демографические и национально-бытовые условия).

В заданиях на разработку типовых проектов должны учитываться возможности распространения проектов в различных регионах страны на основе общих для них климатических, гидрогеологических условий с использованием вариантности конструктивных решений и применения различных строительных материалов.

Приложение 10

Оценка технического уровня и качества документации

Оценка осуществляется на основе действующих директивных указаний1.

__________

1 Временные положения об оценке технического уровня качества проектов на строительство, расширение и реконструкцию предприятий, утвержденные Госстроем СССР и ГНТК СССР 10 июня 1988 г., № 23-Д.

Приводится следующая номенклатура показателей, используемых для оценки технического уровня и качества документации на строительство предприятий розничной торговли.

Производительность труда одного работающего, руб.

Прибыль, на рубль розничного товарооборота, коп.

Фондоотдача, руб/руб.

Трудоемкость строительства: чел.-дн/ед. мощн., чел.-дн/млн. руб. СМР.

Удельный расход строительных материалов (металла, цемента, лесоматериалов) в соответствующих единицах.

Удельные капитальные вложения, руб/м2 торговой площади, в том числе строительно-монтажные работы, руб/м2 торговой площади.

Оценка проектной документации осуществляется методом сравнительного анализа значений показателей, достигнутых в документации и установленных в задании (ТЭР или ТЭО) на ее разработку.

Значение показателей в задании на проектирование должно базироваться на утвержденных в установленном порядке "Основных прогрессивных показателях технического уровня проектов", разработанных на период до 2000 г. с выведением значений показателей 1990 и 1995 гг.

В проектной документации должны быть достигнуты или улучшены значения показателей, предусмотренных номенклатурой, выполнены требования к природоохранным мероприятиям и к качественным характеристикам проектируемого предприятия.

При разработке рабочей документации не допускается применение технических решений, ухудшающих технико-экономические показатели утвержденного проекта и снижающих экологическую безопасность проектируемого предприятия.

Прогрессивность принятых в проекте решений указывается в "Карте технического уровня и качества", которая является неотъемлемой частью проекта.

В карте технического уровня и качества приводятся: торговая площадь, м2; розничный товарооборот, тыс. руб.; численность работающих, чел., в том числе торгово-производственного персонала, чел.; общая площадь здания, м2; стоимость строительства, тыс. руб., в том числе оборудования, тыс. руб.; договорная цена на строительство, тыс. руб.; сроки строительства и освоения проектных мощностей, мес.; продолжительность строительства по нормам, мес.; срок окупаемости вложений, год.

СОДЕРЖАНИЕ

Предисловие. 1

1. Общие положения. 1

2. Размещение предприятий розничной торговли в системе городской (поселковой) застройки и генеральный план территории (участка) 4

3. Объемно-планировочная структура предприятий. 6

Основные рекомендации. 6

Торговые помещения. 15

Интерьер торгового зала. 25

Подсобные помещения. 26

Разгрузка и перемещение товаров. 26

Помещения для хранения товаров и вспомогательные помещения. 31

Служебные и бытовые помещения. 32

4. Конструкции и материалы.. 33

5. Инженерное оборудование. 35

Отопление, вентиляция и кондиционирование воздуха. 35

Водоснабжение и канализация. 37

Электротехнические устройства. 39

Электрооборудование. 39

Связь и сигнализация. 41

Автоматизация инженерного оборудования. 42

Газоснабжение. 43

Приложение 1 Термины (к прил. 2 СНиП 2.08.02-89) 43

Приложение 2 Нормативные требования СНиП 2.08.02-89, обязательные для применения при проектировании предприятий розничной торговли. 44

Приложение 3 Рекомендации по составу помещений в продовольственных магазинах. 46

Приложение 4 Рекомендации по составу помещений в непродовольственных магазинах. 50

Приложение 5 Примерные контрольные расчетные показатели нормируемой площади по группам неторговых помещений городских и поселковых продовольственных магазинов. 56

Приложение 6 Примерные контрольные расчетные показатели нормируемой площади по группам неторговых помещений городских и поселковых непродовольственных магазинов. 59

Приложение 7 Методика определения технико-экономических показателей по проектам предприятий розничной торговли согласно прил. 5 и 6. 64

Приложение 8 Нагрузка от оборудования, товаров и людей в торговых залах и кладовых. 64

Приложение 9 Исходная документация для проектирования. 65

Приложение 10 Оценка технического уровня и качества документации. 65




Rambler's Top100 Яндекс цитирования
  Copyright © 2008-2026, www.docload.ru