|
|
ГЛАВГОСЭКСПЕРТИЗА РОССИИ ПОРЯДОК Москва 1999 Содержание 1. Область примененияПорядок подготовки и
оформления документов разработан в соответствии с ГОСТ
Р 6.30-97 «Унифицированные системы документации. Унифицированная система
организационно-распорядительной документации. Требования к оформлению
документов». Настоящий порядок
распространяется на организационно-распорядительные документы, предусмотренные
Унифицированной системой организационно-распорядительной документации (УСОРД)
(далее документы) - постановления, распоряжения, приказы, решения, протоколы,
акты, письма и др., которые фиксируют решения административных и
организационных вопросов, а также вопросов управления, взаимодействия,
обеспечения и регулирования деятельности: - федеральных органов
государственной власти, органов государственной власти субъектов Российской
Федерации, включая субъекты Российской Федерации, имеющие наряду с русским
языком в качестве государственного национальный язык, органов местного
самоуправления; - предприятий, организаций и их объединений независимо от организационно-правовой формы и вида деятельности. 2. Состав реквизитов документовПри подготовке и оформлении
служебных документов используются следующие
реквизиты (приложение 1): 2.1. 01 - Государственный герб
Российской Федерации; 02 - герб субъекта
Российской Федерации; 03 - эмблема организации или
товарный знак (знак обслуживания); 04 - код организации; 05 - код формы документа; 06 - наименование
организации; 07 - справочные данные об
организации; 08 - наименование вида
документа; 09 - дата документа; 10 - регистрационный номер
документа; 11 - ссылка на
регистрационный номер и дату документа; 12 - место составления или
издания документа; 13 - гриф ограничения
доступа к документу; 14 - адресат; 15 - гриф утверждения
документа; 16 - резолюция; 17 - заголовок к тексту; 18 - отметка о контроле; 19 - текст документа; 20 - отметка о наличии
приложения; 21 - подпись; 22 - гриф согласования
документа; 23 - визы согласования
документа; 24 - печать; 25 - отметка о заверении
копии; 26 - отметка об исполнителе; 27 - отметка об исполнении
документа и направлении его в дело; 28 - отметка о поступлении
документа в организацию; 29 - отметка для
автоматического поиска документа. 2.2.
Для изготовления бланков документов используют следующие реквизиты 01, 02, 03,
04, 05, 06, 07, 08, а также отметки для расположения реквизитов 09, 10, 11, 12,
14, 17, 18, 19. Возможно использование реквизита 19 при применении трафаретных
текстов документов 2.3.
При оформлении документов используют следующие реквизиты 09, 10, 11, 13, 14,
15, 16, 17, 18, 19, 20, 21, 22, 23, 24, 25, 26, 27, 28, 29. Документ должен иметь
следующие обязательные реквизиты:
наименование автора документа (наличие бланка организации), название вида
документа (кроме писем), заголовок к тексту, дату, регистрационный номер,
текст, визы, подпись, отметку об исполнении документа и направлении его в дело. В процессе подготовки и
оформления служебных документов состав реквизитов может быть дополнен другими
реквизитами. Дополнительными реквизитами документа являются гриф утверждения (для заключений
обязательно), адресат (для писем обязательно), отметка о заверении копии, печать,
гриф внешнего согласования, отметка о наличии приложения, индекс предприятия
связи (почтовый и телеграфный адрес, номер абонентского телеграфа, номер
телефона), место составления или издания, фамилия исполнителя и номер его
телефона (для писем обязательно), ссылка на индекс и дату входящего документа. 3. Требования к оформлению реквизитов документов3.1.
Государственный герб Российской Федерации помещают на бланках документов в
соответствии с Положением о Государственном гербе Российской Федерации. 3.2.
Герб субъекта Российской Федерации помещают на бланках документов в
соответствии с правовыми актами субъектов Российской Федерации. 3.3.
Эмблему организации или товарный знак (знак обслуживания) помещают на бланках
организаций в соответствии с уставом (положением об организации). Эмблему не
воспроизводят на бланке, если на нем помещен Государственный герб Российской
Федерации или герб субъекта Российской Федерации. 3.4.
Код организации по Общероссийскому классификатору предприятий и организаций
(ОКПО). 3.5.
Код формы документа проставляют по Общероссийскому классификатору
управленческой документации (ОКУД). 3.6.
Наименование организации, являющейся автором документа, должно соответствовать
наименованию, закрепленному в ее учредительных документах. Над наименованием
организации указывают сокращенное, а при его отсутствии - полное наименование
вышестоящей организации. Наименования организаций
субъектов Российской Федерации, имеющих наряду с русским языком в качестве
государственного национальный язык, печатают на двух языках - русском и
национальном. Сокращенное наименование
организации приводят в тех случаях, когда оно закреплено в учредительных
документах организации. Сокращенное наименование (в скобках) помещают ниже
полного. Наименование на иностранном
языке воспроизводят в тех случаях, когда оно закреплено в уставе (положении об
организации). Наименование на иностранном языке располагают ниже наименования
на русском языке. Наименование филиала,
территориального отделения, представительства, структурного подразделения
организации указывают в том случае, если оно является автором документа, и
располагают ниже наименования организации. Автором документа может быть
должностное лицо, представляющее организацию. 3.7.
Справочные данные об организации включают почтовый адрес, номера телефонов и
другие сведения по усмотрению организации (номера факсов, телексов, счетов в
банке, адресов электронной почты и др.). 3.8.
Наименование вида документа, составленного или изданного организацией,
регламентируется уставом (положением об организации) и должно соответствовать
видам документов, предусмотренным УСОРД. В письмах наименование вида
документа не указывается. 3.9.
Датой документа является дата его подписания или утверждения, для протокола -
дата заседания (принятия решения), для акта - дата события. Если авторами
документа являются несколько организаций, то датой документа является наиболее
поздняя дата подписания. Дату документа проставляет
должностное лицо, подписывающее документ, непосредственно при подписании. При
подготовке проекта документа печатается только обозначение месяца и года, а
число проставляется непосредственно при подписании. Дату документа оформляют
тремя парами цифр в следующей последовательности: день месяца, месяц, год.
Например, дату 4 июля 1999 года следует оформлять: 04.07.99, дату 1 января 2000
года - 01.01.2000. При подготовке нормативных и
финансовых документов допускается словесно-цифровой способ оформления даты (без
кавычек), например 4 июля 2000 года. 3.10.
Регистрационный номер документа состоит из его порядкового номера, который
можно дополнять по усмотрению организации индексом дела по номенклатуре дел,
информацией о корреспонденте, исполнителях и др. Регистрационный номер
документа, составленного совместно двумя и более организациями, состоит из
регистрационных номеров документа каждой из этих организаций, проставляемых
через косую черту в порядке указания авторов в документе. 3.11.
Ссылка на регистрационный номер и дату документа включает регистрационный номер
и дату документа, на который дается ответ. Ссылка в тексте на
какой-либо документ должна включать наименование, дату и регистрационный номер
документа, а также наименование организации, например: …постановлением Правительства Российской Федерации от 01.01.99 №124
предусмотрено…,
при этом сначала указывается дата, затем номер. При подготовке ответа
конкретному адресату на конкретное обращение обязательна ссылка на
регистрационный (исходящий) номер и дату документа адресата (проставляется в
левом верхнем углу перед заголовком к тексту). 3.12. Место составления или
издания документа указывают в том случае, если затруднено его определение по
реквизитам «Наименование организации» и «Справочные данные об организации».
Место составления или издания указывают с учетом принятого административно-территориального
деления, и оно включает только общепринятые сокращения. 3.13.
Гриф ограничения доступа к документу (секретно, для служебного пользования,
конфиденциально и др.) проставляют без кавычек на первом листе документа, и его
можно дополнять данными, предусмотренными законодательством об информации,
отнесенной к государственной тайне и конфиденциальной информации. 3.14.
В качестве адресата могут быть организации, их структурные подразделения,
должностные или физические лица. Наименование организации и ее структурного
подразделения указывают в именительном
падеже, например: Верховный Суд Российской Федерации Хозяйственное
управление Должность лица, которому
адресован документ, указывают в
дательном падеже, например: Заместителю Министра экономики Российской Федерации Коссову В.В. или Генеральная прокуратура Российской Федерации Старшему помощнику генерального прокурора Российской Федерации Мельникову
А.Т. Если документ отправляют в
несколько однородных организаций или в несколько структурных подразделений
одной организации, то их следует указывать обобщенно в именительном падеже, например: Территориальные органы государственной вневедомственной экспертизы субъектов Российской Федерации Полный почтовый адрес указывается
при направлении документа разовым корреспондентам в соответствии с Почтовыми
правилами, при этом сначала указывается наименование организации, затем
почтовый адрес, например: АО «Пермгражданпроект» 614099, г. Пермь, ул. Т. Хасана,
д.7а Адрес не проставляется на
документах, направляемых в вышестоящие органы и постоянным корреспондентам. В
этом случае применяются конверты с заранее оформленными адресами. При направлении документа
физическому лицу указывают почтовый адрес, затем фамилию и инициалы получателя.
Например: 460002, г. Оренбург, ул. Постникова, д.32а Ушакову Н.М. Документ не должен содержать
более четырех адресатов. Слово «Копия» перед вторым, третьим и четвертым
адресатами не указывают, например: Минэкономики России Минфин России Минюст России Минтруд России При направлении документа
более чем в четыре адреса составляется список рассылки документа, например: Министерства и ведомства Российской Федерации (по списку) 3.15. Документ утверждаются
должностным лицом (должностными лицами) или издаваемым документом. Гриф утверждения располагают
в верхнем правом углу документа. Гриф утверждения документа должен состоять из
слова УТВЕРЖДАЮ (без кавычек и двоеточий), оформленного прописными буквами,
наименования должности лица, утверждающего документ, его подписи, инициалов,
фамилии и даты утверждения, например: УТВЕРЖДАЮ Начальник Главгосэкспертизы России личная подпись Ю.Б. Жуковский 04.08.99 При утверждении документа
двумя должностными лицами их подписи располагают на одном уровне. Например:
При утверждении документа
приказом или протоколом гриф утверждения состоит из слова УТВЕРЖДЕНО (баз
кавычек и двоеточий), оформленного прописными буквами, наименования
утверждающего документа в именительном
падеже, его даты и номера. Например: УТВЕРЖДЕНО Приказ Главгосэкспертизы России от 01.03.99 №6. 3.16.
Резолюция - реквизит документа, оформляемый соответствующим должностным лицом и
содержащий принятое решение по данному документу. Резолюция включает фамилии
исполнителей, содержание поручения, срок исполнения, подпись и дату, например: Зайцевой А.В. Егоровой Е.М. Прошу подготовить проект ответа. Срок исполнения - 15.12.99. личная подпись 01.12.99 Резолюция оформляется на
бланке формата А6 (10,4 мм ´ 14,5 мм) или оформляется от
руки на подлиннике документа на свободном от текста месте. 3.17.
3аголовок к тексту документа - краткое изложение содержания документа. Он
должен быть максимально кратким, точно передавать смысл текста. Заголовок оформляется от
левого поля и начинается с предлога «О» или «Об». Заголовок должен
грамматически согласовываться с названием документа. Например: приказ (о чем?) Об архиве Главгосэкспертизы России или: письмо (о чем?) О проведении экспертизы проектно- сметной документации При этом краткое содержание
может быть дополнено информацией, конкретизирующей наименование вида документа,
входящий номер и дату, например: О Порядке проведения государственной экспертизы градостроительной и проектной документации в Российской Федерации Поручение Госстроя России от 02.03.99 №ПП-377 Заголовок не составляется к
тексту документов, оформленных на бланках формата А5. 3.18.
Отметка о контроле - это отметка о контроле за исполнением документа, которую
обозначают буквой «К», словом или штампом «Контроль». 3.19.
Текст документа составляют на русском или национальном языке в соответствии с
законодательством Российской Федерации и субъектов Российской Федерации о
государственных языках. Тексты пишут только на
русском языке при направлении их: - в федеральные органы
государственной власти, органы государственной власти субъектов Российской
Федерации; - на предприятия, в
организации и их объединения, не находящиеся в ведении данного субъекта
Российской Федерации или расположенные на территории других субъектов
Российской Федерации. Текст документа должен
содержать достоверную и аргументированную информацию. Подготавливаемые служебные
документы должны быть краткими, обоснованными, конкретными и логически
последовательными. Текст должен излагаться простым и ясным языком, быть
тщательно отредактирован. Содержание текста должно быть увязано с ранее
изданными по данному вопросу документами. В тексте документа,
подготовленного на основании документов других организаций или ранее изданных
документов, указывают их реквизиты, наименование документа, наименование
организации-автора документа, дату документа, регистрационный номер документа,
заголовок к тексту. Тексты документов оформляют
в виде связного текста, анкеты, таблицы или соединения этих форм (например,
договор на выполнение экспертных работ). Если текст содержит
несколько решений, выводов и т.д., то его следует разбивать на разделы, подразделы,
пункты, которые нумеруют арабскими цифрами. В письмах необходимо
использовать следующие формы изложения: ¨ от первого лица
множественного числа («просим направить», «направляем на рассмотрение»); ¨ от первого лица
единственного числа («считаю необходимым», прошу командировать»); ¨ от третьего лица
единственного числа («Главгосэкспертиза России не возражает»,
«Главгосэкспертиза России считает возможным»). В распорядительных документах (приказ, распоряжение и т.п.), а также в документах, адресованных вышестоящей организации, изложение должно идти от первого лица единственного числа «приказываю», «предлагаю», «прошу». 3.20.
Если документ имеет приложения, названные в тексте, то отметка о них
оформляется от левого поля по следующей форме: Приложение: на
10 л. в 3 экз. Если документ имеет
приложение, не названное в тексте, то указывают его наименование, количество
листов и количество экземпляров, при наличии нескольких приложений их нумеруют,
например: Приложение: 1. Заключение
Главгосэкспертизы России от 01.01.99 №24-5-1/10-22 на 30 л. в 1 экз. 2.
Проектно-сметная документация - 4 книги. Если приложения
сброшюрованы, то количество листов не указывают. Если приложение направляется
не во все указанные в документе адреса, то отметку о его наличии оформляют следующим
образом: Приложение: на
3 л. в 1 экз. в первый адрес. Если к документу прилагается
другой документ, также имеющий приложение, отметку о его наличии оформляют
следующим образом: Приложение: письмо
Администрации Воронежской области от 18.02.99 №2-1/8 и приложение к нему, всего на 30 л. В приложении к документу на
первом его листе в правом верхнем углу пишут «Приложение» с указанием
наименования документа, его регистрационного номера и даты, например: Приложение 1 к приказу Главгосэкспертизы России
от 03.07.99 №11. 3.21.
В состав реквизита «Подпись» входят
наименование должности лица, подписавшего документ (полное, если документ
оформлен не на бланке документа, и сокращенное - на документе, оформленном на
бланке), личная подпись, расшифровка подписи (инициалы, фамилия), например: Начальник Главгосэкспертизы России личная подпись Ю.Б. Жуковский Начальник личная
подпись Ю.Б. Жуковский При оформлении документа на
бланке должностного лица, должность этого лица в подписи не указывается. Например,
при оформлении письма на бланке Председателя Госстроя России подпись
оформляется так: личная
подпись А.Ш. Шамузафаров При подписании документа (не
на бланке) несколькими должностными лицами организации их подписи располагаются
одна над другой в последовательности, соответствующей занимаемой должности,
например: Начальник Главгосэкспертизы России личная
подпись Ю.Б. Жуковский Главный бухгалтер личная
подпись Т.И. Политова При подписании документа на
бланке организации наименование организации не указывается. Например: Начальник личная
подпись Ю.Б. Жуковский Главный бухгалтер личная
подпись Т.И. Политова При подписании
документа несколькими лицами равных должностей подписи располагают на одном
уровне.
В документах, составленных
комиссией, указывают не должности лиц, подписывающих документ, а их обязанности
в составе комиссии в соответствии с распределением, например: Председатель
комиссии личная
подпись Ю.Б. Жуковский Ответственный секретарь комиссии личная
подпись И.В. Савин Документ может быть подписан
исполняющим обязанности должностного лица с указанием его фактической должности
и фамилии. При этом не допускается ставить предлог «За», надпись от руки «Зам»,
или косую черту перед наименованием должности. Необходимо указывать фактическую
должность лица, подписавшего документ и его фамилию. 3.22.
Гриф согласования документа состоит из слова СОГЛАСОВАНО (без кавычек и
двоеточий), оформленного прописными буквами, должности лица, с которым
согласовывается документ (включая наименование организации), личной подписи,
расшифровки подписи (инициалов, фамилии) и даты согласования, например: СОГЛАСОВАНО Заместитель директора Государственного архива Российской Федерации личная подпись И.Ю. Горбунов 23.02.99 Если согласование
осуществляют письмом, протоколом и др., гриф согласования оформляют по
следующей форме: СОГЛАСОВАНО Письмо Госстроя России от 20.02.99 №АШ-3297/24 Гриф согласования может
располагаться на отдельном листе согласования, в этом случае в документе перед
подписью делается отметка «Лист согласования прилагается». Лист согласования
оформляется следующим образом: ЛИСТ СОГЛАСОВАНИЯ
и т.д. 3.23.
Внутреннее согласование документа оформляют визой, которая включает подпись
визирующего, расшифровку подписи (инициалы, фамилия) и дату, при необходимости
- должность визирующего. Визы проставляются на
последнем листе подлинника распорядительного документа, на копии отправляемого
документа (письма). Возможно оформление виз распорядительного документа на
отдельном листе. При наличии замечаний к
документу визу оформляют следующим образом: Замечания прилагаются. Личная подпись В.Н. Шульц 12.08.99 3.24.
Печать заверяет подлинность подписи должностного лица на документах,
предусмотренных специальными нормативными актами, удостоверяющих права лиц,
фиксирующих факты, связанные с финансовыми средствами. Документы заверяют печатью
организации. 3.25.
При заверении соответствия копии документа подлиннику ниже реквизита «Подпись»
проставляют заверительную надпись «Верно», должность лица, заверившего копию,
личную подпись, расшифровку подписи (инициалы, фамилию), дату заверения,
например: Начальник Главгосэкспертизы России Личная подпись Ю.Б. Жуковский Верно Начальник сектора кадров Л.А. Лебедева Допускается копию документа
заверять печатью, определяемой по усмотрению организации. 3.26.
Отметка об исполнителе включает фамилию исполнителя документа и номер его
телефона. Отметку об исполнителе
располагают на лицевой или оборотной стороне последнего листа документа в левом
нижнем углу, например: Станкевич 925-80-43 или Станкевич Владимир Иосифович 925-80-43 3.27.
Отметка об исполнении документа делается в левом нижнем углу документа и
включает краткие сведения об исполнении, если отсутствует документ,
свидетельствующий об исполнении, или, при наличии такого документа, ссылку на
его дату и номер, отметку «В дело», номер дела, в котором будет хранится документ,
дату, подпись исполнителя документа, например: Исполнено. Письмо
Главгосэкспертизы России от 12.07.99 №24-1-9/250 в адрес Минэкономики за подписью Жуковского. Дело 24-1-9. 15.07.99. личная подпись И.В. Савин 3.28.
Отметка о поступлении документа в организацию содержит порядковый номер и дату
поступления документа (при необходимости - часы и минуты). Допускается отметку о
поступлении документа в организацию проставлять в виде штампа. 3.29.
Отметка для автоматического поиска документа может включать имя файла, код
оператора, а также другие поисковые данные, устанавливаемые в организации. Примеры оформления
реквизитов документов приводятся в приложении 2. 4. Требования к бланкам документов и оформлению документов4.1.
Документы изготавливают на бланках. ГОСТ
Р 6.30-97 установлено два основных формата бланков документов -А4 и А5,
допускается использование бланков форматов А3 и А6 по ГОСТ 9327. Бланки документов должны
иметь поля не менее, мм 20 - левое; 10 - правое; 20 - верхнее; 10 - нижнее. 4.2.
Бланки документов следует изготавливать на белой бумаге или бумаге светлых
тонов. Бланки документов
допускается изготавливать с помощью средств вычислительной техники
непосредственно при изготовлении конкретного документа. Исключение составляют
бланки организаций с изображением Государственного герба Российской Федерации
или гербов субъектов Российской Федерации, порядок изготовления которых
приведен в разделе 6 настоящего Порядка. 4.3.
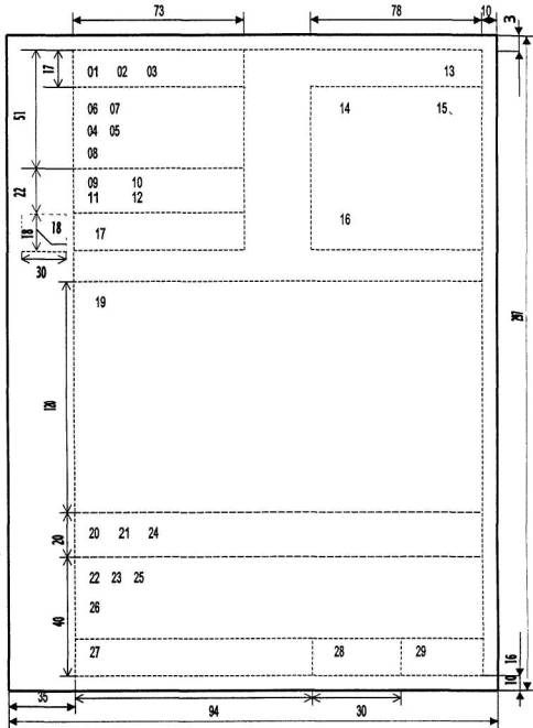
Бланки документов проектируют в соответствии с приложением 1.
Сплошными линиями обозначены фиксированные границы зон расположения реквизитов,
пунктиром – переменные. Каждая зона определяется совокупностью входящих в нее
реквизитов 4.4.
Устанавливают два варианта расположения реквизитов на бланках - угловой и
продольный в соответствии с приложением
3. 4.5.
Реквизиты 01, 02, 03 располагают над серединой реквизита 06. Реквизит 06
допускается располагать на уровне реквизита 03. Реквизиты 06, 07, 08, 12,
ограничительные отметки для реквизитов 09, 10, 11 в пределах границ зон
расположения реквизитов размещают одним из способов: - центрованным (начало и
конец каждой строки реквизита равно удалены от границ зоны расположения
реквизитов); - флаговым (каждая строка
реквизита начинается от левой границы зоны расположения реквизитов). 4.6.
Для организации, ее структурного подразделения, должностного лица устанавливают
следующие виды бланков документов: - общий бланк; - бланк письма; - бланк конкретного вида
документа, кроме письма. Общий бланк используют для
изготовления любых видов документов, кроме письма. Бланки структурного
подразделения организации или должностного лица проектируют в том случае, если
руководитель подразделения или должностное лицо имеют право подписи. 4.7.
Общий бланк в зависимости от учредительных документов организации включает
реквизиты 01, 02, 03, 06. Бланк письма в зависимости
от учредительных документов организации включает реквизиты 01,02,03,04,06,07 и,
при необходимости, ограничительные отметки для верхних границ зон расположения
реквизитов 09, 10, 11, 12, 17, 18. 4.8.
На бланках субъектов Российской Федерации, имеющих наряду с русским языком в
качестве государственного национальный язык, реквизиты 06,07,12 печатают на
двух языках русском и национальном, на одном уровне продольного бланка. 5. Правила изготовления документов с помощью печатающих устройств, включая средства электронно-вычислительной техники5.1.
Документы изготавливаются с помощью печатающих устройств. Даты и
регистрационные номера также оформляются с помощью печатающих устройств Отдельные внутренние
документы, авторами которых являются должностные лица, могут писаться от руки
(заявление, объяснительная записка) 5.2.
При наборе текста документа должны выдерживаться следующие поля, не менее левое - 20 мм; правое - 10 мм; верхнее - 20 мм; нижнее - 10 мм. 5.3.
Документы изготавливаются на пишущей машинке или при помощи печатающих
устройств средств вычислительной техники. 5.4.
При изготовлении документов на двух и более страницах вторая и последующие
страницы должны быть пронумерованы. Номера страниц проставляют
арабскими цифрами посередине верхнего поля листа. 5.5.
Допускается печать документов с использованием оборотной стороны листа
(заключения, обобщения, договора на выполнение экспертных работ и т.п.). 5.6.
Если направляется совместное письмо организации с какой-либо другой организацией,
то в этом случае оно оформляется без бланка. 5.7.
При составлении документов на средствах электронно-вычислительной технике (ЭВТ)
рекомендуется использовать редакторская оболочка «WORD»,
позволяющая автоматизировать процесс изготовления документов. В ГОСТе не нашло
отражение положение о том, какими видами шрифтов следует пользоваться при
изготовлении документов при помощи печатающих устройств средств ЭВТ, поэтому
основное требование к шрифтам заключается в том, чтобы они были хорошо
читаемыми. В то же время, в целях
обеспечения унификации и соблюдения единого порядка подготовки и оформления
документов, создаваемых в организации при наборе текста заключений
рекомендуется пользоваться шрифтом «Times New Roman» с
размером букв «14» (данный документ
оформлен с использованием этих рекомендаций). При использовании локальных
заключений в качестве составляющего материала при подготовке сводного
заключения, специалистам организации необходимо откорректировать шрифт, размер
букв, поля и межстрочные интервалы, обеспечить единую нумерацию, установить
единообразие разбивки текста на разделы, подразделы, пункты и т.п. Реквизиты документа отделяют
друг от друга 2-4 межстрочными интервалами. Набор реквизита «Текст»
рекомендуется осуществлять на пишущих машинах через 1,5 интервала
(соответствует 1 интервалу в печатающих устройствах ЭВТ). Реквизиты документа (кроме
текста), состоящие из нескольких строк, набирают также через 1 межстрочный
интервал на пишущих машинах, (1 интервал в печатающих устройствах ЭВТ). Составные
части реквизитов «Адресат», «Гриф утверждения документа», «Отметка о наличии
приложения», «Гриф согласования» отделяют друг от друга 1,5-2 межстрочными
интервалами, например: СОГЛАСОВАНО (2 межстрочных интервала)
отдела (1
межстрочный интервал) (2 межстрочных интервала) Инициалы, фамилия Инициалы и фамилия в реквизите «Подпись»
оформляются на уровне последней строки наименования должности, например: Начальник Главгосэкспертизы России _______________________________Ю.Б. Жуковский Наименование вида документа
оформляется прописными буквами, например: ПРИКАЗ 6. Требования к учету, использованию и хранению бланков с воспроизведением государственного герба Российской Федерации, гербов субъектов Российской Федерации6.1.
Бланки документов с воспроизведением Государственного герба Российской
Федерации и гербов субъектов Российской Федерации (далее - гербовые бланки)
подлежат учету. 6.2.
Гербовые бланки хранят в надежно запираемых и опечатываемых шкафах. 6.3.
Уничтожение гербовых бланков осуществляют по акту с отметкой в
регистрационно-учетной форме. 6.4.
Контроль за изготовлением, использованием и хранением гербовых бланков
возлагают на подразделение организации, ответственное за делопроизводство
организации (управление делами, канцелярия, общий отдел). Лица, персонально
ответственные за учет, использование и хранение бланков, назначаются
распорядительным документом руководителя организации. 6.5.
Регистрационно-учетные формы включают в номенклатуру дел организации. 6.6.
Проверку наличия, использования и хранения гербовых бланков проводят не реже
раза в год комиссией, назначаемой распорядительным документом руководителя
организации. О проведенных проверках делают отметки в учетно-регистрационных
формах после последней записи. В случае обнаружения нарушений при изготовлении,
учета, хранении и использовании гербовых бланков комиссия проводит служебной
расследование, результаты которого оформляют актом и доводят до сведения руководителя
организации. 6.7.
Допускается тиражирование средствами оперативной полиграфии организации
документов на гербовом бланке, предназначенных для рассылки, при условии
заверения каждой копии документа печатью организации. Приложение 1к Порядку подготовки и оформления документов СХЕМЫ
| |||||||||||||||||||||||||||||||||||||||||||||||||||||||||||||||||||||||||||||||||||||||||||||||||||||||||||||||||||||||||||||||||||||||||||||||||||||||||||||||||||||||||||||||||||||||||||||||||||
|
|
Образец 1 |
|
||||
|
ГОСУДАРСТВЕННЫЙ
КОМИТЕТ РОССИЙСКОЙ
ФЕДЕРАЦИИ ПО
СТРОИТЕЛЬСТВУ И ЖИЛИЩНО- КОММУНАЛЬНОМУ
КОМПЛЕКСУ |
Правительство Российской Федерации |
||||
|
ПРЕДСЕДАТЕЛЬ |
|
||||
|
117987, ГСП-1, Москва, ул.
Строителей, 8, корп. 2 |
|
||||
|
28.08.99 |
№ |
АШ-2781/24 |
|
||
|
На № НА-П5-26215 от
07.08.99 |
|
||||
О представлении проекта
постановления Правительства
Российской Федерации
В соответствии с поручением Правительства Российской Федерации от 07.08.99 № НА-П5-26215 Госстрой России представляет проект постановления Правительства Российской Федерации «О порядке проведения комплексной государственной экспертизы градостроительной, предпроектной и проектной документации в Российской Федерации», разработанный Госстроем России и Минэкономики России и согласованный Минздравом России (Солодкий В.А.), МПР России (Пинчук Н.П.), Минтрудом России (Киселев С.Г.), МЧС России (Локтионов Н.И.).
Приложения: 1. Проект постановления Правительства
Российской
Федерации на
10 л. в 1 экз.;
2.
Пояснительная записка к проекту постановления
Правительства
Российской Федерации на 2 л. в 1 экз.;
3. Справка о согласовании
постановления Правительства
Российской
Федерации на 6 л. в 1 экз.
А.Ш. Шамузафаров
Савин
924-34-02
|
|
Образец 2 |
||
|
ГОСУДАРСТВЕННЫЙ
КОМИТЕТ РОССИЙСКОЙ
ФЕДЕРАЦИИ ПО
СТРОИТЕЛЬСТВУ И ЖИЛИЩНО- КОММУНАЛЬНОМУ
КОМПЛЕКСУ |
Министерство
финансов Российской
Федерации |
||
|
ПЕРВЫЙ |
|
||
|
117987, ГСП-1, Москва, ул.
Строителей, 8, корп. 2 |
|
||
|
01.07.99 |
№ |
СК-2183/24 |
|
|
На № ________________________ |
|
||
О финансировании строительства
Московского метрополитена в 1999 году
Поручение Правительства Российской
Федерации от 25.05.99 №СС-П10-02143
В соответствии с поручением
Правительства Российской Федерации Госстрой России рассмотрел вопрос финансирования
развития Московского метрополитена из средств федерального бюджета в 1999 году
и сообщает.
Межведомственной комиссией
Госстроя России совместно с Минэкономики России и Минфином России в феврале
1998 года была определена технологически обоснованная потребность в средствах
из федерального бюджета на строительство метрополитена в Москве в 1999 году в
объеме 2389,0 млн. рублей.
Решением Правительства
Российской Федерации (протокол от 19.10.98 № ВГ-П10-6пр) Госстрою России было
поручено совместно с Минэкономики России, Минфином России и Правительством
Москвы рассмотреть вопрос максимального сокращения объемов государственного
финансирования строительства новых линий метрополитенов на 1999 год. В
результате рассмотрения изыскана возможность сокращения объемов государственных
капитальных вложений на строительство Московского метрополитена в 1999 году до
1716,0 млн.рублей или на 39,2 процента.
Учитывая необходимость
развития метрополитена в Москве, а также в целях обеспечения безопасности
подземных выработок и сохранности выполненных конструкций в условиях
ограниченности государственных бюджетных ассигнований, предусмотренных в 1999
году на строительство новых линий метрополитенов, Госстрой России считал бы
целесообразным рассмотреть дополнительно вопрос о возможности увеличения
государственных инвестиций на строительство Московского метрополитена в 1999
году с учетом исполнения федерального бюджета за I квартал 1999 г.
С.И. Круглик
Кельчевский
924-73-21
|
|
Образец 3 |
||
|
ГОСУДАРСТВЕННЫЙ
КОМИТЕТ РОССИЙСКОЙ
ФЕДЕРАЦИИ ПО
СТРОИТЕЛЬСТВУ И ЖИЛИЩНО- КОММУНАЛЬНОМУ
КОМПЛЕКСУ |
Управляющему
делами Президента Российской
Федерации |
||
|
ЗАМЕСТИТЕЛЬ ПРЕДСЕДАТЕЛЯ |
Бородину
П.П. |
||
|
117987, ГСП-1, Москва, ул.
Строителей, 8, корп. 2 |
|
||
|
05.07.99 |
№ |
АТ-2244/24 |
|
|
На № |
УДИ-2088 от 01.07.99 |
|
|
О разработке ТЭО реконструкции
здания МИД
На Ваше обращение Госстрой
России сообщает.
В соответствии с
установленным порядком рабочая документация на строительство и реконструкцию объектов
должна разрабатываться на основании утвержденных ТЭО (проектов).
Однако, учитывая сжатые
сроки реконструкции служебного здания, МИД и то, что Министерство финансов
Российской Федерации выделило лимиты на проведение проектно-конструкторских и
других подготовительных работ, Госстрой России считает возможным разрешить, в
виде исключения, выполнение работ по первому пусковому комплексу реконструкции
здания (левое крыло) по рабочим чертежам и сметам на отдельные виды работ до
утверждения ТЭО на весь объем реконструкции.
В целях повышения качества
проектной документации сокращения сроков ее разработки и исключения бросовых
работ и затрат, проектной организации необходимо предварительно согласовать с
Главгосэкспертизой России основные принципиальные решения по первому пусковому
комплексу, в связи с чем заказчику целесообразно заключить с Главгосэкспертизой
России договор на экспертное сопровождение разработки ТЭО реконструкции здания
МИД.
Н.В. Зацаринский
Росляков
923-19-76
|
|
Образец 4 |
||
|
ГОСУДАРСТВЕННЫЙ
КОМИТЕТ РОССИЙСКОЙ
ФЕДЕРАЦИИ ПО
СТРОИТЕЛЬСТВУ И ЖИЛИЩНО- КОММУНАЛЬНОМУ
КОМПЛЕКСУ |
Министерства
и ведомства Российской
Федерации (по списку) |
||
|
ГОССТРОЙ РОССИИ |
|
||
|
117987, ГСП-1, Москва, ул.
Строителей, 8, корп. 2 |
|
||
|
11.02.99 |
№ |
НЗ-439/25 |
|
|
На № |
|
|
|
В соответствии с поручением
Правительства Российской Федерации (от 18.11.98 № ВГ-10-33398) Госстрой России
уточнил с учетом требований вновь принятых федеральных законов Порядок проведения
государственной экспертизы градостроительной и проектной документации в
Российской Федерации и направляет его на согласование.
О результатах просьба
сообщить Госстрою России в возможно короткий срок.
Приложение: на
8 л.
Заместитель Председателя Н.В. Зацаринский
Савин
924-34-02
|
|
Образец 5 |
||
|
ГОСУДАРСТВЕННЫЙ
КОМИТЕТ РОССИЙСКОЙ
ФЕДЕРАЦИИ ПО
СТРОИТЕЛЬСТВУ И ЖИЛИЩНО-КОММУНАЛЬНОМУ КОМПЛЕКСУ |
368600, Республика Дагестан, г. Дербент, ул.
Шахбазова, д.60 |
||
|
ГЛАВГОСЭКСПЕРТИЗА
РОССИИ |
Омарову О.Р. |
||
|
117987, ГСП-1, Москва, ул.
Строителей, 8, корп. 2 |
|
||
|
27.08.99 |
№ |
КОЛ-6 |
|
|
На № |
|
|
|
О строительстве высоковольтной
линии электропередачи (ВЛ)
Главгосэкспертиза России по поручению
руководства Госстроя России рассмотрела направленное Вами заявление жителей
совхоза «Ленинский» и сообщает.
В соответствии с
действующими Правилами устройства электроустановок (ПУЭ) при прохождении по
населенной местности расстояния по горизонтали от крайних проводов
высоковольтных воздушных линий электропередачи (ВЛ) при наибольшем их
отклонении до ближайших выступающих частей зданий и сооружений должны быть не
менее: 2 м для ВЛ до 20 кВ, 4 м для ВЛ 35-110 кВ и 6 м для ВЛ 220 кВ.
Никаких других ограничений
для прохождения указанных ВЛ по территориям городов и поселков нет.
Для ВЛ 330 кВ в целях защиты
населения от воздействия электрического поля, создаваемого воздушной линией
электропередачи, санитарными правилами и нормами СанПиН
2.2.1/2.1.1.567-96 установлена санитарно-защитная зона с расстоянием 20 м
от проекции на землю крайних фазных проводов в направлении, перпендикулярном к
ВЛ.
При меньшем расстоянии до
жилых домов сооружение ВЛ 330 кВ недопустимо.
Первый заместитель
начальника Ш.М.
Гордезиани
Шестериков
(095)923-50-25
Образец 6

ГОСУДАРСТВЕННОЙ
КОМИТЕТ РОССИЙСКОЙ ФЕДЕРАЦИИ
ПО
СТРОИТЕЛЬСТВУ И ЖИЛИЩНО-КОММУНАЛЬНОМУ КОМПЛЕКСУ
ГЛАВГОСЭКСПЕРТИЗА
РОССИИ
|
|
УТВЕРЖДАЮ Первый заместитель начальника Главгосэкспертизы России Ш.М. Гордезиани 20.09.90 |
ЗАКЛЮЧЕНИЕ № 24-2-1/30-27-11
по технико-экономическому обоснованию строительства ПС 200 кВ с заходами ВЛ 220 кВ для внешнего электроснабжения второй очереди строительства Южной водопроводной системы города Москвы и Московской области
1. Разработчик - институт «Энергосетьпроект», Москва
2. Заказчик - АООТ «Мособлжилкомхоз».
3. Подрядная строительная организация - АООТ «Спецсетьстрой»
4. Основание для проектирования:
- письмо ОАО «Мосэнерго» от 07.04.98
№34-12/53-1606 «О внешнем электроснабжении II очереди строительства Южной
водопроводной системы»,
- письмо ГСПИ Минатома
России от 30 10 96 №1226,
- заключение
Главгосэкспертизы России по ТЭР «Внешнее электроснабжение второй очереди
строительства Южной водопроводной системы города Москвы и Московской области.
5. Основные данные и принятые технические решения.
5.1.
Хозяйственная необходимость и
целесообразность строительства
………………………………………………………………………………………………
………………………………………………………………………………………………
5.2. Основные технологические
решения.
………………………………………………………………………………………………
………………………………………………………………………………………………
5.3. Организация эксплуатации.
………………………………………………………………………………………………
………………………………………………………………………………………………
5.4.
Основные строительные решения
………………………………………………………………………………………………
………………………………………………………………………………………………
5.5.
Генеральный план, транспорт, инженерные
сети
………………………………………………………………………………………………
………………………………………………………………………………………………
5.6. Охрана окружающей среды
………………………………………………………………………………………………
………………………………………………………………………………………………
5.7. Организация строительства
………………………………………………………………………………………………
………………………………………………………………………………………………
6. Основные технико-экономические показатели.
………………………………………………………………………………………………
………………………………………………………………………………………………
7. Результаты экспертизы.
………………………………………………………………………………………………
………………………………………………………………………………………………
8. Замечания и предложения.
………………………………………………………………………………………………
………………………………………………………………………………………………
ВЫВОДЫ
………………………………………………………………………………………………
………………………………………………………………………………………………
Начальник
Отдела тяжелой индустрии Е.И.
Мурашов
Главный
специалист В.Г.
Шестериков
к Порядку подготовки
и оформления документов
Образец
углового бланка письма организации

Образец
продольного бланка письма организации

Образец
продольного бланка письма должностного лица

Образец
бланка конкретного вида документа организации

|
|
|
|