Бесплатная библиотека стандартов и нормативов www.docload.ru

Все документы, размещенные на этом сайте, не являются их официальным изданием и предназначены исключительно для ознакомительных целей.
Электронные копии этих документов могут распространяться без всяких ограничений. Вы можете размещать информацию с этого сайта на любом другом сайте.
Это некоммерческий сайт и здесь не продаются документы. Вы можете скачать их абсолютно бесплатно!
Содержимое сайта не нарушает чьих-либо авторских прав! Человек имеет право на информацию!

 

АДМИНИСТРАЦИЯ МОСКОВСКОЙ ОБЛАСТИ

МИНИСТЕРСТВО СТРОИТЕЛЬСТВА

НОРМИРОВАНИЕ И СТАНДАРТИЗАЦИЯ

ТЕРРИТОРИАЛЬНЫЕ СТРОИТЕЛЬНЫЕ НОРМЫ

Требования по установке и применению автономных пожарных извещателей, устройств защитного отключения электроэнергии.
Проектирование систем мусороудаления
и автоматического пожаротушения мусоропроводов
в жилых домах, общественных зданиях и на объектах
коммунального хозяйства на территории Московской области

ТСН 21-302-2000 МО

МОСКВА 2000

НОРМИРОВАНИЕ И СТАНДАРТИЗАЦИЯ

ТЕРРИТОРИАЛЬНЫЕ СТРОИТЕЛЬНЫЕ НОРМЫ

Требования по установке и применению автономных пожарных извещателей, устройств защитного отключения электроэнергии.

Проектирование систем мусороудаления и автоматического
пожаротушения мусоропроводов в жилых домах, общественных
зданиях и на объектах коммунального хозяйства
на территории Московской области

Утверждены распоряжением
Минмособлстроя от 17.12.99 № 339
в соответствии с постановлением
Правительства МО от 13.04.98г. №38/11

ТСН 21-302-2000 МО

МИНИСТЕРСТВО СТРОИТЕЛЬСТВА МОСКОВСКОЙ ОБЛАСТИ

МОСКВА 2000 г.

Разработаны: КНЦ «Научный центр» г. Зеленограда (Ю. С. Смирнов, к.т.н.), ВНИИПО (Е. В. Гришин, к.т.н., В. А. Пехотиков к.т.н., В. В. Смирнов, к.т.н.), ЦНИИСК им. Кучеренко (В. Н. Зигерн-Корн, к.т.н.), Мособлгосэнергонадзором (В. В. Попета), УГПС ГУВД МО (В. Ф. Рубцов, И. А. Чернышев, А. В. Мартынов, П. Н. Марчук), АООТ «Прана» (А. М. Белощин), Министерством строительства Московской области (И. Б. Захаров, к.т.н.), ГУ Госархстройнадзор (Н. В. Чернов), Лицензионно-экспертным управлением Московской области (В. И. Мищерин, И. В. Пастухова).

СОДЕРЖАНИЕ

Введение. 2

Раздел 1. Порядок применения на объектах московской области автономных пожарных извещателей. 2

1.1. Область применения. 2

1.2. Нормативные документы.. 2

1.3. Термины и определения. 3

1.4. Общие положения. 3

1.5. Требования к размещению автономных пожарных извещателей. 5

1.6. Требования к подключению автономных пожарных извещателей. 5

1.7. Порядок проверки автономных пожарных извещателей. 6

Раздел 2. Применение устройств защитного отключения (узо) 6

2.1. Область применения УЗО.. 6

2.2. Нормативно-технические документы по УЗО.. 6

2.3. Требования по установке и подключению УЗО.. 7

2.4. Монтаж и эксплуатация УЗО.. 7

Раздел 3. Проектирование систем мусороудаления и автоматического пожаротушения в жилых и общественных зданиях. 8

3.1. Область применения. 8

3.2. Нормативные ссылки. 8

3.3. Термины и определения. 8

3.4. Общие технические требования. 8

3.5. Технические требования к механизму прочистки, промывки и дезинфекции ствола мусоропровода и его размещению.. 10

3.7. Требования к автоматике пожаротушения в Системах мусороудаления. 13

3.8. Требования к мусоросборной камере. 13

3.9. Требования охраны окружающей среды.. 14

Приложение 2.1 к разделу 2 Карта контроля узо.. 14

Приложение 3.1. к разделу 3 Состав системы мусороудаления и автоматического пожаротушения. 14

Приложение 3.2. к разделу 3 Схема вариантов исполнения системы мусороудаления и пожаротушения типа см. 15

Приложение 3.3 к разделу 3 автоматика перекрытия нижней части ствола при возгорании в мусоросборной камере (без электроавтоматики). 16

Приложение 3.3 к разделу 3 Установка СПСМ на последнем жилом этаже с загрузочным клапаном (привод во взрывозащищенном исполнении встроен в ствол). 18

Приложение 3.5 к разделу 3 Установка СПСМ на последнем жилом этаже с загрузочным клапаном (привод на стволе). 18

Приложение 3.6 к разделу 3 Установка СПСМ на техническом этаже (привод во взрывозащищенном исполнении встроен в ствол). 19

Приложение 3.7 к разделу 3 Установка СПСМ на техническом этаже (привод на стволе). 19

Приложение 3.9 к разделу 3 Установка СПСМ на техническом этаже в изолированном, запираемом помещении (крепление привода к полу здания). 20

 

Московская область

Территориальные строительные нормы

ТСН 21-302-2000 МО

Требования по установке и применению автономных пожарных извещателей, устройств защитного отключения электроэнергии и проектированию систем мусороудаления и автоматического пожаротушения этих систем в жилых домах, общественных зданиях и на объектах коммунального хозяйства на территории Московской области

Дата введения 01.01.2000 г.

ВВЕДЕНИЕ.

Настоящие нормы разработаны с целью усиления пожаробезопасности на объектах Московской области путем их оснащения извещателями раннего обнаружения пожара, реагирующими на начальную стадию его возникновения и устройствами защитного отключения электроэнергии - одним из наиболее эффективных защитных средств, в том числе для повышения электробезопасности электрических установок зданий.

Настоящие нормы устанавливают требования, предъявляемые к извещателям раннего обнаружения пожара - классу автономных пожарных извещателей (далее - АПИ), устройствам защитного отключения (далее - УЗО) и системам мусороудаления с автоматическим пожаротушением этих систем при проектировании, строительстве, реконструкции, капитальном ремонте и эксплуатации жилых домов, (индивидуального малоэтажного жилищного строительства, коттеджей, садовых домиков и т. п. (далее - «жилых домов»); общественных зданий, в том числе торговых павильонов и киосков, а также передвижных торговых точек на базе автомобильных прицепов и объектов коммунального хозяйства (в том числе строительных вагончиков-бытовок, других инвентарных временных сооружений) независимо от форм собственности (далее - «общественных зданий»).

Рекомендуется применение автономных пожарных извещателей в индивидуальных гаражах, в комнатах отдыха индивидуальных бань-саун, в хозблоках, в помещениях для охраны и т. д.

Применение данных норм позволяет по согласованию с органами Госпожнадзора проводить мероприятия по снижению стоимости строительства за счет соответствующего изменения архитектурно-строительных решений.

РАЗДЕЛ 1. ПОРЯДОК ПРИМЕНЕНИЯ НА ОБЪЕКТАХ МОСКОВСКОЙ ОБЛАСТИ АВТОНОМНЫХ ПОЖАРНЫХ ИЗВЕЩАТЕЛЕЙ

1.1. Область применения

1.1.1. Настоящие Требования разработаны с целью уточнения вопросов применения автономных пожарных извещателей (АПИ) раннего обнаружения пожара, и учитывают опыт применения подобных зарубежных устройств.

1.1.2. Настоящие Требования обязательны при проектировании, строительстве, реконструкции, капитальном ремонте и эксплуатации жилых домов и общественных зданий, объектов коммунального хозяйства и объектов, указанных в разделе «Введение», кроме объектов, подлежащих оборудованию автоматической пожарной сигнализацией

1.1.3. Требования соответствуют действующим нормативным документам.

Требования не распространяются на применение АПИ во взрывоопасных помещениях.

1.2. Нормативные документы

В настоящих нормах используются ссылки на следующие стандарты:

ГОСТ Р 50009-92 Совместимость технических средств охранной, пожарной и охранно-пожарной сигнализации электромагнитной.

ГОСТ Р 50898-96 Извещатели пожарные. Огневые испытания.

СНиП 2.08.01-89* Жилые здания.

СНиП 21-01-97* Пожарная безопасность зданий и сооружений.

СНиП 2.04.08-87 Газоснабжение.

СНиП 2.01.02-85 Противопожарные нормы проектирования зданий и сооружений.

СНиП 2.08.02-89* Общественные здания и сооружения.

ППБ 01-93 Правила пожарной безопасности в Российской Федерации.

НПБ 66-97 Извещатели пожарные автономные.

НПБ 57-97 Приборы и аппаратура автоматических установок пожаротушения и пожарной сигнализации. Помехоустойчивость и помехоэмиссия. Общие технические требования. Методы испытаний.

НПБ 104-95 Проектирование систем оповещения людей о пожаре в зданиях и сооружениях.

НПБ 110-99 Перечень зданий, сооружений, помещений и оборудования, подлежащих защите автоматическими установками пожаротушения и автоматической пожарной сигнализацией.

ТСН РК-97 МО Порядок проведения на территории Московской области реконструкции и капитального ремонта жилых зданий первых массовых серий и объектов коммунального хозяйства.

ТСН КР-97 МО Кровли. Технические требования и правила приемки.

ВСН 60-89 Устройство связи, сигнализации и диспетчеризации инженерного оборудования жилых и общественных зданий.

1.3. Термины и определения

Извещатель раннего обнаружения пожара (ИРОП) - извещатель, реагирующий на начальную (раннюю) стадию пожара - на возгорание или тление, и имеющий, как правило, в своем составе собственный источник питания, обеспечивающий длительное функционирование (не менее 1 года) извещателя, а также обеспечивающий оповещение о возгорании в месте установки извещателя. К данным извещателям относятся автономные пожарные извещатели, в том числе, автономные дымовые пожарные извещатели и автономные комбинированные пожарные извещатели.

Автономный пожарный извещатель (АПИ) - пожарный извещатель, реагирующий на определенный уровень концентрации аэрозольных продуктов горения (пиролиза) веществ и материалов, дымов, и, возможно, других факторов пожара, в корпусе которого конструктивно объединены автономный источник питания и все компоненты, необходимые для обнаружения пожара и непосредственного оповещения о нем.

Автономный дымовой пожарный извещатель (АДПИ) - автономный пожарный извещатель, реагирующий на определенный уровень концентрации аэрозольных продуктов (в твердой, жидкой или газообразной фазе), дымов, образующихся при горении (пиролизе) веществ и материалов.

Автономный комбинированный пожарный извещатель (АКПИ) - автономный пожарный извещатель, реагирующий не только на аэрозольные продукты горения, дымы, но и дополнительно на другие (один или несколько) факторы, сопутствующие начальной стадии пожара: газообразные продукты, температуру, оптическое излучение пламени и др.

Локальная сеть автономных пожарных извещателей - электрическое соединение группы автономных пожарных извещателей, находящихся в одном или нескольких помещениях защищаемого объекта, обеспечивающее дублирующую сигнализацию (оповещение) о пожаре и в случае срабатывания любого из них.

1.4. Общие положения

1.4.1. В ИРОП, как правило, должно быть обеспечено:

- длительное функционирование извещателя до замены внутреннего источника питания (не менее 1 года);

- регулярное мигание не реже одного раза в течение 30 с индикатора красного цвета в дежурном режиме работы;

- выдача периодического, не реже одного раза в 30с. звукового сигнала о необходимости замены источника питания (начало оповещения не менее чем за 7 суток);

- выдача в течении не менее 4 мин. звукового сигнала «Тревога» (уровень звукового давления на расстоянии 1 м от извещателя не менее 85 дБ и не более 110 дБ.) и сохранение в дальнейшем нормального функционирования извещателя после 3-х кратного повторения режима тревоги, а также формирование сигнала о пожаре с помощью переключающихся контактов (ток коммутации до 50 мА, напряжение до 50 В, время коммутации не менее 2 с);

- инерционность срабатывания, проверяемая с помощью встроенного устройства контроля, не более 5 с.;

- простота и надежность проверки работоспособности извещателя на высоте установки без лестницы с помощью специального приспособления, входящего в комплект поставки из расчета одного на квартиру;

- возможность подключения к внешним информационным цепям, например, к сети диспетчеризации;

- формирование сигнала «Тревога» до стадии образования взрывоопасной смеси в защищаемом помещении;

- конструктивное исполнение как для стационарного так и для переносного вариантов, а также конструктивное исполнение в обычном и в вандалозащищенном виде;

- работоспособность в закрытом помещении при температуре от минус 10 до плюс 55 град. С.

1.4.2. По функциональной возможности ИРОП класса автономные пожарные извещатели (ИРОП-АПИ), разделяются на два типа:

- автономные дымовые пожарные извещатели (АДПИ);

- автономные комбинированные пожарные извещатели (АКПИ).

1.4.3. По принципу действия дымовые автономные пожарные извещатели подразделяются на оптико-электронные и радиоизотопные*.

1.4.4. АКПИ раннего обнаружения пожара (ИРОП типа АКПИ) для жилых домов и объектов, где природный газ используется в качестве топлива, должен конструктивно объединять газовый с дымовым (АКПИгд) или с другим типом автономных пожарных извещателей: пламени (АКПИгп), тепловой (АКПИгт) и т.п.

1.4.5. Независимо от этажности жилого дома, жилые комнаты, кухни и другие помещения квартиры (за исключением коридоров, ванных, постирочных, душевых, санузлов и саун) и общие (внеквартирные) коридоры следует оборудовать извещателями раннего обнаружения пожара класса АПИ, как правило, автономными дымовыми пожарными извещателями (ИРОП типа АДПИ). АДПИ должны устанавливаться также и в холле (коридоре) квартиры при площади холла (коридора) более 20 кв. м.

Извещатели устанавливаемые в квартирах должны иметь обычное исполнение, а извещатели устанавливаемые в общих (внеквартирных) коридорах, как правило, - вандалозащищенное исполнение.

При надстройке мансардным этажом жилых домов АДПИ устанавливаются также на путях эвакуации людей и в помещениях, по которым может происходить распространение дыма при пожаре (коридоры, лестничные клетки). В этих коридорах и в лестничных клетках должны устанавливаться извещатели в обычном исполнении.

В жилых домах, оборудованных газовыми плитами и (или) нагревательными колонками, независимо от этажа кухни квартир и помещения с установленными в них газовым оборудованием рекомендуется оснащать, как правило, автономными комбинированными газа и дымовыми пожарными извещателями (ИРОП типа АКПИгд).

*Примечание

Оптико-электронные автономные дымовые пожарные извещатели более чувствительны к «светлым» дымам, образующимся на стадии тления древесины или хлопка, т. е. на ранней стадии возгорания. Наиболее эффективно применение оптико-электронных автономных дымовых пожарных извещателей в жилых помещениях.

Радиоизотопные автономные дымовые пожарные извещатели более чувствительны к пламенному горению древесины, т. е. при значительном развитии пожара и на «темные» дымы - продукты горения нефте- и органикосодержащих материалов. Наиболее эффективно применение радиоизотопных автономных дымовых пожарных извещателей в производственных зданиях и в помещениях с электротехническим оборудованием.

Автономные пожарные извещатели радиоизотопные до появления нормативных документов разрешительного характера от Госсанэпиднадзора и Госатомнадзора на применение их в жилых домах и административно-общественных зданиях, а также до появления норм учета, утилизации радиоизотопных пожарных извещателей в настоящие ТСН МО не могут быть включены.

1.4.6. В жилых домах с отметкой пола менее 26,5 м (9 этажей и менее) ИРОП типа АДПИ следует, как правило, подключать к системе диспетчеризации инженерного оборудования зданий с выводами сигнала на диспетчерский пункт или к интегральной автоматизированной системе учета электроэнергии (ИАСУЭ), где эта система предусмотрена.

1.4.7. В жилых домах с отметкой пола выше 26,5 м (10 этажей и более) ИРОП типа АДПИ следует подключать к системе противодымной защиты с выводом сигнала на диспетчерский пункт.

1.4.8. В домах индивидуального малоэтажного жилищного строительства, коттеджах, садовых домиках и т. п. следует устанавливать ИРОП типа АДПИ в помещениях дома в т. ч. в биллиардных, в спортивных залах, в холлах, в лестничных клетках и в коридорах и др. (за исключением санузлов, ванных, душевых, постирочных и саун). При этом извещатели, установленные в разных помещениях рекомендуется объединять в единую локальную сеть для организации коллективной (солидарной) сигнализации. При наличии системы диспетчеризации сигналы от ИРОП следует передавать на пульт диспетчера.

1.4.9. В торговых павильонах и киосках, а также в передвижных торговых точках на базе автомобильных прицепов следует устанавливать ИРОП типа АДПИ. При использовании в данных объектах в качестве топлива природного газа рекомендуется устанавливать ИРОП типа АКПИгд.

1.4.10. Каждый объект коммунального хозяйства и каждое помещение в нем, предназначенного для постоянного или временного пребывания людей, в том числе строительные вагончики-бытовки и другие инвентарные временные сооружения должны быть оборудованы ИРОП типа АДПИ. При использовании в объектах коммунального хозяйства природного газа в качестве топлива рекомендуется устанавливать ИРОП типа АКПИгд.

1.4.11. Для ИРОП допускается использование внешнего источника питания в качестве основного при условии наличия внутреннего резервного источника питания.

1.4.12. Конструкция ИРОП должна исключать возможность проникновения во внутренний объем корпуса бытовых насекомых и обеспечивать возможность надежной фиксации в месте крепления и быстрый съем извещателя, а также простоту и несложность проверки его работоспособности.

1.4.13. При проектировании и установке автономных пожарных извещателей должны выполняться требования норм техники безопасности, действующих правил по охране труда и норм гигиенической безопасности.

1.5. Требования к размещению автономных пожарных извещателей

1.5.1. Установку ИРОП класса АПИ, следует проводить согласно действующим нормам.

1.5.2. Количество ИРОП класса АПИ на каждое указанное в п. 1.3.6. помещение жилой квартиры необходимо определять из расчета не менее одного извещателя на каждые полные и неполные 30 кв. м. помещения и с учетом характеристик ИРОП конкретного типа извещателя.

1.5.3. ИРОП следует, как правило, устанавливать на потолке. При невозможности установки извещателей на потолке допускается их установка на стенах, балках, колоннах, но не более 0,3 м от перекрытия и на расстоянии верхнего края чувствительного элемента извещателя на расстоянии от потолка не менее 0,10 м.

1.5.4. Извещатели независимо от площади помещения следует устанавливать в каждом отсеке потолка, ограниченном строительными конструкциями (балками, прогонами, ребрами плит и т. п.), выступающими от потолка на 0,4 м и более.

При наличии на потолке выступающих частей от 0,08 до 0,4 м контролируемая площадь уменьшается на 25 %.

1.5.5. При наличии в контролируемом помещении площадок шириной более 0,75 м, имеющих сплошную конструкцию и отстоящих по нижней отметке от потолка на расстоянии более 0,4 м, под ними, необходимо дополнительно устанавливать автономные пожарные извещатели.

1.5.6. Извещатели следует устанавливать в местах, где скорость воздушного потока не превышает 1,0 м/с (например, над дверями квартиры и других подобных местах).

1.5.7. Не следует устанавливать извещатели в местах с прямой засветкой их солнечными лучами и в непосредственной близости от отверстий приточной и вытяжной вентиляции.

1.6. Требования к подключению автономных пожарных извещателей

1.6.1. Подключение ИРОП класса АПИ к системе диспетчеризации жилых домов или к локальной сети должно проводится в соответствии с проектом и с технической документацией на конкретный тип извещателя, при этом каждый извещатель должен быть опломбирован.

1.6.2. Прокладку проводов, кабелей следует выполнять в соответствии с требованиями ГОСТ Р 50571.15-97 «Электроустановки зданий. Выбор и монтаж электрооборудования», Правил устройства электроустановок, СНиП III-33-76, Нормами технологического проектирования ВНТП 116-80 «Проводные средства связи. Линейно-кабельные сооружения» и с учетом настоящих ТСН.

1.6.3. Выбор проводов, кабелей следует производить в соответствии с требованиями Правил устройства электроустановок, СНиП 2.04.09-84, с учетом требований настоящих рекомендаций и технической документации на конкретные типы извещателей.

1.7. Порядок проверки автономных пожарных извещателей

1.7.1. Проверку потребителем функционирования ИРОП следует проводить с интервалом не реже одного раза в три месяца согласно технической документации на конкретный тип извещателя (в том числе, силами специализированной организации).

1.7.2. Рекомендуется проводить отметку об итоге проверки в журнале проверок. Если при контроле функционирования автономный пожарный извещатель не выдает звукового (или какого-либо другого) сигнала об исправности, необходимо заменить источник питания и повторно проверить его функционирование.

Периодичность замены источника питания в автономном пожарном извещателе должна соответствовать указаниям технической документации на извещатель.

1.7.3. Порядок обслуживания автономных пожарных извещателей должен проводиться в соответствии с инструкцией по эксплуатации.

1.7.4. При длительном хранении автономного пожарного извещателя следует удалять из его корпуса источник питания во избежание порчи извещателя.

РАЗДЕЛ 2. ПРИМЕНЕНИЕ УСТРОЙСТВ ЗАЩИТНОГО ОТКЛЮЧЕНИЯ (УЗО)

2.1. Область применения УЗО

2.1.1. Настоящие нормы обязательны при проектировании, строительстве, реконструкции и капитальном ремонте электроустановок объектов, указанных в разделе «Введение».

2.1.2. Настоящие требования распространяются на применение УЗО, установленных как самостоятельно, так и входящих в состав электрощитов.

2.1.3. Область применения УЗО должна соответствовать действующим нормативным документам, приведенным в приложении 2.1 с учетом требований настоящих норм.

2.1.4. Требования не распространяются на использование УЗО во взрывоопасных помещениях.

2.2. Нормативно-технические документы по УЗО

1. Правила устройства электроустановок (ПУЭ) Изд. 6-е, 1986 г.

2. ГОСТ 12.4.155-85 «Устройства защитного отключения. Классификация. Общие требования».

3. ГОСТ Р 50807-95 (МЭК 755-83) «Устройства защитные, управляемые дифференциальным (остаточным) током».

4. ГОСТ Р 50571.3-94 (МЭК 364-4-41-92) «Электроустановки зданий. Требования по обеспечению безопасности. Защита от поражения электрическим током».

5. ГОСТ Р 50571.8-94. (МЭК 364-4-47-81) «Электроустановки зданий. Часть 4. Требования по обеспечению безопасности. Общие требования по применению мер защиты для обеспечения безопасности. Требования по применению мер защиты от поражения электрическим током».

6. ГОСТ Р 50571.11-96 (МЭК 364-7-701-84) «Электроустановки зданий. Часть 7. Требования к специальным электроустановкам. Раздел 701. Ванные и душевые помещения».

7. ГОСТ Р 50 669-94 «Электроснабжение и электробезопасность мобильных (инвентарных) зданий из металла или с металлическим каркасом для уличной торговли и бытового обслуживания населения. Технические требования».

8. ГОСТ Р 50571.16-98 (МЭК 364-5-53) (на стадии утверждения) «Электроустановки зданий. Часть 5. Выбор и монтаж электрооборудования. Коммутационная аппаратура и аппаратура управления».

9. ГОСТ Р 50571.17-98 (МЭК 1200-53) (на стадии утверждения) «Электроустановки зданий. Глава 53. Выбор и монтаж электрооборудования. Коммутационная аппаратура и аппаратура управления. Требования к устройству электроустановок зданий».

10. Ведомственные строительные нормы - ВСН 59-88 «Электрооборудование жилых и общественных зданий».

11. Нормы Государственной противопожарной службы МВД России. НПБ 243-97 «Устройства защитного отключения. Требования пожарной безопасности. Методы испытаний». Дата введения 01.10.97.

12. Временные указания по применению устройств защитного отключения в электроустановках жилых зданий. И. П. Главгосэнергонадзора России от 29.04.97 № 42-6/9-ЭТ.

13. Московские городские строительные нормы МГСН 3.01-96 «Жилые здания».

14. Территориальные строительные нормы ТСН РК-97 МО «Порядок проведения на территории Московской области реконструкции и капитального ремонта жилых зданий первых массовых серий и объектов коммунального хозяйства».

15. Область применения устройств защитного отключения (УЗО) в жилых и общественных здания, стоящихся в г. Москве, март 1993 года. Правительство Москвы.

2.3. Требования по установке и подключению УЗО

2.3.1. Выбор мест установки УЗО в электроустановках зданий должен удовлетворять требованиям действующих нормативных документов, приведенных в разделе 2.2 и настоящих норм.

2.3.2. УЗО, как правило, следует размещать в электрощитах. При этом в этажных, квартирных и групповых щитках должен быть обеспечен свободный и безопасный доступ неквалифицированному персоналу к органам включения УЗО и его эксплуатационного контроля (кнопке «Тест»).

2.3.3. В случае установки УЗО вне электрощитов оно должно иметь конструктивное исполнение, обеспечивающее его безопасную эксплуатацию неквалифицированным персоналом.

2.3.4. На вводе в квартиры жилых домов, садовые домики и коттеджи, также торговые павильоны, киоски, гаражи, вагончики-бытовки и другие инвентарные временные сооружения должны, как правило, устанавливаться УЗО с защитой от сверхтоков. При этом УЗО, установленные перед счетчиком, могут использоваться в качестве отключающего аппарата для безопасной замены счетчика.

Рекомендуется также, чтобы эти УЗО осуществляли защиту электроприемников от недопустимого перенапряжения в сети.

2.3.5. Допускается применение УЗО в качестве временной меры повышения электро- и пожаробезопасности действующих электроустановок до проведения полной их реконструкции путем установки УЗО на двухпроводных групповых линиях или на ответвленных от них к электроприемникам, установленным в опасных и особо опасных помещениях (например, ванная, душевая, санкабина и т. п.).

2.4. Монтаж и эксплуатация УЗО

2.4.1. Монтаж электрощитов с УЗО так же, как и монтаж отдельно установленных УЗО, должен выполняться квалифицированным персоналом, имеющим лицензию на проведение электромонтажных работ.

2.4.2. Рекомендуется до начала монтажа УЗО провести замеры естественных токов утечки в защищаемой сети при включении всех ее стационарных электроприемников.

2.4.3. Для этой цели должны использоваться приборы (специального и общего назначения), прошедшие необходимую аттестацию и имеющие соответствующий сертификат.

2.4.4. Проверку функционирования установленных УЗО проводят представители подрядной организации совместно с эксплуатирующей организацией при участии надзорных организаций с оформлением соответствующего акта проверки.

2.4.5. При сдаче электроустановки в эксплуатацию владелец электроустановки получает карту эксплуатационного контроля (см. приложение 2.1), в которую он будет вносить данные с ежемесячных проверок работоспособности УЗО.

2.4.6. Проверка работоспособности УЗО осуществляется владельцем электроустановки путем нажатия кнопки «Тест», до этого необходимо убедиться о наличии напряжения в электроустановке здания.

2.4.7. При нажатой кнопке «Тест» должно происходить немедленное срабатывание и отключение защищаемых УЗО электрических сетей.

2.4.8. После чего для восстановления питания необходимо взвести рукоятку включения УЗО в положение «Вкл». При этом рукоятка включения УЗО должна четко зафиксироваться в положении «Вкл» и в электрической сети, защищаемой УЗО, появится напряжение.

2.4.9. В случае несрабатывания УЗО при нажатии кнопки «Тест» (п. 2.3.7) или невосстановления напряжения в электрической сети, защищаемой УЗО (п. 2.3.8), следует вызвать специалиста-электрика для установления неисправностей сети или замены УЗО.

2.4.10. Результаты проверок работоспособности УЗО заносятся в соответствующую графу карты контроля (приложение 2.1).

РАЗДЕЛ 3. ПРОЕКТИРОВАНИЕ «СИСТЕМ МУСОРОУДАЛЕНИЯ И АВТОМАТИЧЕСКОГО ПОЖАРОТУШЕНИЯ» В ЖИЛЫХ И ОБЩЕСТВЕННЫХ ЗДАНИЯХ

3.1. Область применения

Настоящие нормы распространяются на проектирование «Систем мусороудаления и автоматического пожаротушения» (далее «Система») для удаления бытового мусора во вновь строящихся и реконструируемых жилых и административно-общественных зданиях и объектах коммунального хозяйства.

3.2. Нормативные ссылки

ВСН-72 Указания по проектированию мусоропроводов в жилых и общественных зданиях.

СНиП 2.01.02.-85 Противопожарные нормы.

СН 3072-84 Санитарные нормы.

ПУЭ-85 Правила устройства электроустановок.

ГОСТ 14254-80 Изделия электротехнические. Оболочки. Степени защиты. Обозначения. Методы испытания.

ТУ 4859-010-05763777-98 Система мусороудаления и пожаротушения типа СМ.

ГОСТ 12.3.038-85. ССБТ Строительство. Работы по тепловой изоляции оборудования и трубопроводов. Требования безопасности.

3.3. Термины и определения

3.3.1. Система мусороудаления и автоматического пожаротушения - составная часть комплекса инженерного оборудования жилых и административно-общественных зданий и сооружений, предназначенная для сбора, транспортирования и временного хранения (накопления) твердых бытовых отходов и включающая в себя: мусоросборную камеру; ствол мусоропровода; загрузочные клапаны; шибер; механизм промывки, прочистки и дезинфекции; автоматику пожаротушения.

3.3.2. Мусоросборная камера - помещение для временного хранения (накопления) твердых бытовых отходов.

3.3.3. Ствол системы мусороудаления - устройство для приема и гравитационного транспортирования твердых бытовых отходов.

3.3.4. Загрузочный клапан - устройство для загрузки твердых бытовых отходов в ствол системы мусороудаления и перекрытия его приемных отверстий.

3.3.5. Шибер системы мусороудаления - нормально-открытое устройство с ручным приводом для перекрытия разгрузочного отверстия патрубка ствола в мусоросборной камере, должен совмещать функции противопожарного клапана и срабатывать в автоматическом режиме при температуре 75 °С.

3.3.6. Механизм промывки, прочистки и дезинфекции - устройство, предназначенное для периодической прочистки, промывки и дезинфекции внутренней поверхности ствола системы мусороудаления.

3.3.7. Автоматика пожаротушения в системах мусороудаления - устройства автоматически подающие воду при возгорании и отключающие подачу воды при локализации возгорания, устанавливаемые в верхней части ствола мусоропровода и в мусоросборной камере, а так же шибер системы мусороудаления, имеющий совмещенную функцию огнеотсекающего клапана.

3.4. Общие технические требования

3.4.1. Системы мусороудаления и автоматического пожаротушения должны устанавливаться в жилых многоэтажных домах и общественных зданиях без ограничения строительной высоты, и располагаться в непримыкающих к жилым помещениям, специально выделенных для этого помещениях, как правило, в отапливаемых лестнично-лифтовых узлах. Примерная схема установки Системы приведена в приложениях к разделу 3.

3.4.2. Мусоросборные камеры должны быть обеспечены удобными подъездами для мусоровозного транспорта. При невозможности организации непосредственного подъезда к камере, должен быть предусмотрен удобный подвоз тележки с контейнером или вынос мусоросборника (объемом не более 100 л.) к месту остановки мусоровозного транспорта или сбора мусора.

Мусоросборные камеры должны быть обеспечены канализационным стоком (трапом).

3.4.3. Отметка пола мусоросборной камеры должна возвышаться над уровнем тротуара или проезжей части дороги на 50 - 100 мм. Для вкатывания тележки должен быть утроен пандус с уклоном не более 8 %.

Размещение мусоросборных камер на другом уровне допускается, как исключение, при привязке дома на местности с большим уклоном, при этом должна быть обеспечена механизация перемещения и подъема контейнеров или мусоросборников к месту подъезда мусоровозного транспорта.

3.4.4. Мусоросборная камера должна иметь самостоятельный вход, изолированный глухими стенами от рядом расположенных окон и входов на лестничную клетку.

Над входом в мусоросборную камеру жилого дома следует предусматривать козырек, выходящий за пределы наружной стены здания.

3.4.5. Мусоросборные камеры следует устраивать с учетом обеспечения непосредственной загрузки мусора из «Системы» в контейнеры или мусоросборники.

3.4.6. Загрузочные клапаны «Системы» в жилых домах следует предусматривать, как правило, расположенными на основных или промежуточных площадках лестничных клеток или в поэтажных холлах. При этом, загрузочные клапаны и ствол «Системы» не должны сужать установленные нормами пути эвакуации людей и препятствовать открыванию и очистке окон. К мусороприемным клапанам должны быть обеспечены удобные и освещенные подходы.

На промежуточных площадках лестничных клеток, загрузочные клапаны допускается размещать через этаж.

В общественных зданиях загрузочные клапаны «Системы», как правило, должны располагаться в комнатах для обслуживающего персонала, помещениях для хранения предметов уборки и других подсобных помещениях.

При размещении мусороприемной камеры на первом этаже загрузочный клапан на первом этаже не устанавливается.

3.4.7. Расстояние от дверей квартир до ближайшего загрузочного клапана не должно превышать в жилых домах 25 м, а в общественных зданиях (от служебных помещений до помещений с загрузочным клапаном) - 50 м.

3.4.8. Механизм прочистки, промывки, дезинфекции и автоматика пожаротушения должны, как правило, располагаться на техническом этаже здания, в отдельном запираемом помещении. При отсутствии в здании технического этажа, механизм прочистки, промывки, дезинфекции и автоматики пожаротушения устанавливают на последнем жилом этаже выше уровня верхнего загрузочного клапана.

3.4.9. «Системы» следует рассчитывать исходя из нормативов суточного накопления мусора:

- в жилых домах - 0,25 л. на 1 кв. м жилой площади;

- в общежитиях и гостиницах - 0,2 л. на 1 кв. м жилой площади;

- в административных зданиях - 0,15 л. на 1 кв. м. рабочей площади, обслуживаемой «Системой».

В других зданиях - по проекту в зависимости от специальных технологических и гигиенических требований к удалению мусора из этих зданий.

При суточном накоплении мусора до 1500 л. должна устанавливаться одна «Система».

3.4.10. Применяемые в «Системах» конструкции должны быть промышленного изготовления из негорючих влагостойких материалов. Их исполнение должно соответствовать требованиям действующих стандартов и технических условий.

Стальные детали «Системы» должны иметь стойкое антикоррозионное покрытие.

3.4.11. «Система» мусороудаления должна содержать элементы активной и пассивной защиты обслуживающего персонала от поражения электрическим током. Все входящие в ее состав механизмы должны быть травмобезопасны, а помещения, в которых они установлены, - отвечать требованиям пожарной и электробезопасности в соответствии со СНиП 2.01.02 - 85 и МГСН 3.01-96.

Таблица 3.1

Основные параметры системы мусороудаления и пожаротушения

Наименование показателя

Значение

1. Объем удаляемого бытового мусора, л сутки -1

2500

2. Периодичность прочистки ствола мусоропровода, мес.-1, не реже

1

3. Установленная электрическая мощность, потребляемая оборудованием и освещением, кВт, не более

1,0

4. Расход воды на одну прочистку ствола, л · ч -1

150 - 300

5. Уровень шума при работе оборудования, дБ "А", не более

82

6. Ток питания переменный В\Гц

380 \ 50

7. Средняя расчетная температура в помещениях,°С, не менее

5

8. Средний ресурс работы оборудования механизма прочистки ствола, циклов, не менее

15000

9. Средний ресурс работы шибера, циклов, не менее

15000

10. Средний ресурс работы загрузочного клапана циклов, не менее

15000

11. Срок службы «Системы», лет, не менее

30

12. Масса прочистного устройства, кг, не более

150

13. Скорость подъема-опускания прочистного устройства, м · с -1

0,375

14. Диаметр каната механизма подъема прочистного устройства, мм

2,0 ... 4,5

15. Внутренний диаметр ствола мусоропровода, мм

368 ... 400

16. Емкость ковша загрузочного клапана, л, не менее

12

17. Масса загрузочного клапана, кг, не более

18

18. Огнестойкость ствола, часов не менее

0,75

19. Огнестойкость клапана загрузочного, часов не менее

0,5

20. Огнестойкость шибера, выполняющего функции противопожарного клапана, часов не менее

0,75

21. Усилие на рукоятке ручного привода механизма подъема прочистного устройства, Н (кгс), не более

117,6 (12)

22. Усилие открывания шибера, Н (кгс), не более

49 (5)

23. Усилие открывания загрузочного клапана, Н (кгс), не более

44,3 (4,5)

24. Нижняя температура срабатывания автоматического механизма закрывания створок шибера при пожаре, °С

75+/-10

25. Инерционность механизма автоматического закрывания створок шибера при пожаре, (с момента срабатывания термоэлемента), с.

1,5 ± 0,2

26. Расход воды на тушение пожара в стволе мусоропровода и мусоросборной камере, л · с -1, не менее

0,45

27. Допустимая утечка дезинфицирующего раствора или воды через совокупную поверхность одного стыка патрубков ствола или ствола и клапана, л · ч -1, не более

1,3

28. Грузоподъемность тележки для мусора, Н (кгс)

784 (80)

29. Масса тележки, кг

12

3.4.13. Внешняя электропроводка Системы мусороудаления и автоматического пожаротушения должна соответствовать требованиям для электропроводок в помещениях повышенной опасности, имеющих влажные бетонные полы и стены.

3.4.14. «Система» должна обеспечивать в течение всего срока работы до капитального ремонта входящего в ее состав оборудования стабильность параметров, указанных в табл. 1, и безопасность эксплуатации при воздействии на нее факторов внешней и рабочей среды (температура, влажность, моющие и дезинфицирующие средства).

3.5. Технические требования к механизму прочистки, промывки и дезинфекции ствола мусоропровода и его размещению

3.5.1. Габариты и планировка помещения, в котором устанавливается механизм прочистки, промывки и дезинфекции должны обеспечивать возможность легкого доступа ко всем агрегатам механизма, для проведения эксплутационных, ремонтных и профилактических работ.

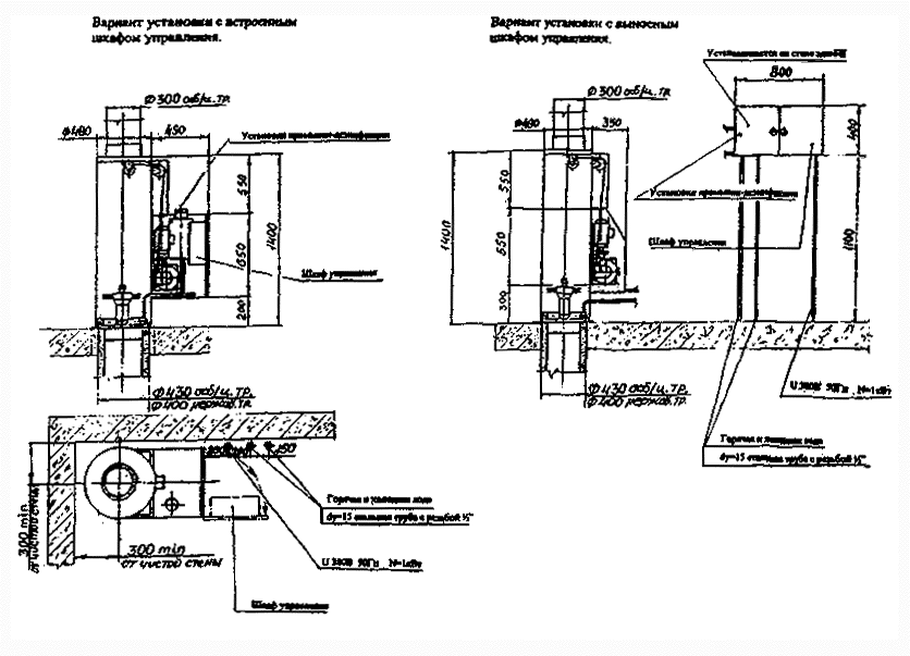
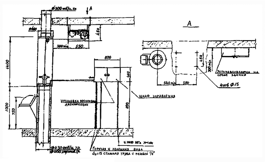
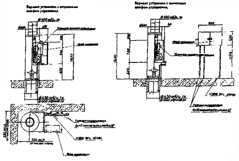
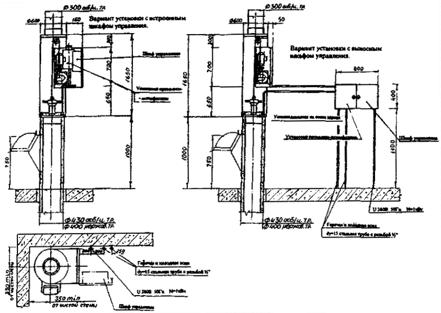
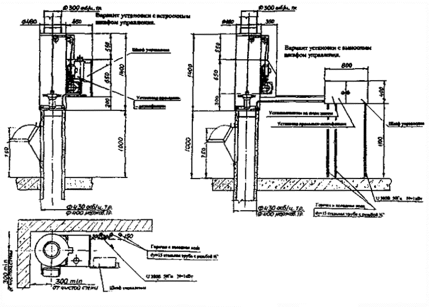
3.5.2. При установке механизма прочистки, промывки и дезинфекции в отдельном помещении, привод механизма должен располагаться по схеме (см. приложения 3.4 - 3.9 к разделу 3), при этом предпочтителен вариант, когда шкаф управления расположен отдельно.

При отсутствии в здании технического этажа, привод механизма устанавливается на стволе мусоропровода на последнем жилом этаже выше уровня загрузочного клапана или под потолком.

Пульт управления механизмом, как правило, устанавливается отдельно от механизма привода.

3.5.3. Механизм прочистки должен обеспечивать:

а) аварийный ручной подъем при помощи рукоятки ручного привода, промывочного (щеточного) узла в верхнее крайнее положение с укладкой троса на барабан и опускание, в случае отключения электроэнергии в момент прочистки или при поломке привода, в т. ч. эл. двигателя;

б) автоматическое отключение привода при достижении верхнего и нижнего положений на устройстве прочистки в стволе мусоропровода;

в) автоматическое отключение привода при провисании троса в моменты опускания и подъема устройства прочистки с подачей звукового и светового сигнала;

г) автоматическое отключение привода при его перегрузке;

д) при расположении электропривода и/или системы управления в стволе мусоропровода, конструкция должна обеспечивать пыле-водонепроницаемость и электровзрывобезопасность;

е) должно быть предусмотрено устройство, позволяющее производить непрерывное смешивание дезраствора с водой, с возможностью регулировки необходимой концентрации дезраствора в воде в зависимости от типа дезраствора;

ж) плотную укладку каната на барабане за счет применения канатоукладчика;

з) наличие устройства, предотвращающего попадание дезраствора в систему водоснабжения;

и) управление приводом механизма должно осуществляться от напряжения не более 24 В.

3.5.4. Грузовой канат механизма должен состоять из одного куска. Сращивание каната не допускается.

Применение сварки при изготовлении клиновой втулки промывочного (щеточного) узла не допускается.

3.5.5. Оболочки привода, в которых заключены электроаппараты и вводы кабелей, должны иметь степень защиты не ниже IР 44, а пост управления системой прочистки не ниже IР 30 по ГОСТ 14254-80.

Сопротивление изоляции проводов электрических цепей относительно корпуса механизма системы прочистки должно быть не менее 9,5 МОм.

Изоляция электрических цепей должна выдерживать без пробоя и перекрытия испытания напряжением 1 кВ переменного тока промышленной частоты.

Сопротивление цепей заземления любой точки механизма системы прочистки относительно корпуса не должно превышать 4 Ом.

3.5.6. Каждый механизм подъема прочистного устройства должен выдерживать статическую нагрузку, превышающую максимальный вес прочистного устройства на 25 %.

3.5.7. Конструкции механизмов прочистки, промывки и дезинфекции не должны снижать площадь проходного сечения ствола системы мусороудаления (клапана вентиляции системы мусороудаления) более, чем на 5 %.

3.5.8. Система прочистки ствола мусоропровода может содержать вентиляционную установку, обеспечивающую удаление из ствола дыма, газов, пыли.

3.6. Технические требования к стволу мусоропровода и загрузочным клапанам.

3.6.1. Ствол мусоропровода должен быть дымо- и воздухонепроницаемым и выполненным из стальной трубы (нержавеющей или с износостойким антикоррозионным покрытием) облицованной снаружи кирпичом, либо газопенобетоном или перлитоцементом (приложение 3.2. к разделу 3). Условный проход 368 ... 400 мм.

Трубы с условным проходом более 400 мм допускается применять в зданиях, где по условиям эксплуатации имеются увеличенные габариты сбрасываемого мусора.

Внутренняя поверхность ствола должна быть гладкой, без раковин, трещин и наплывов.

3.6.2. Конструкция стволов систем мусороудаления должна быть выполнена из негорючих и огнестойких материалов и иметь предел огнестойкости не менее 0,75 часа (Е 45 по СНиП 21-01).

3.6.3. Стыки труб в стволах мусоропровода, места соединения ствола с клапанами, шибером и системой прочистки должны быть выполненными без внутренних уступов, герметичны и не допускать протечек дезраствора и воды в помещения, кроме мусороприемной камеры, а также проникновение запахов и дыма.

3.6.4. Ствол мусоропровода должен располагаться вертикально и соосно по всей его длине.

3.6.5. Мусоропроводы не должны примыкать к стенам, а также располагаться в стенах, ограждающих жилые комнаты или служебные помещения общественных зданий, уровень шума в которых ограничивается нормами.

3.6.6. Ствол мусоропровода закрепляется на месте установки заливкой цементно-песчаным раствором во внешней футеровке, имеющей первую степень огнестойкости (выполненной из кирпича, керамзитобетонных, перлитоцементных или пенобетонных блоков), и опираться на металлический фланец, установленный и закрепленный на перекрытии первого этажа здания. На верхний обрез ствола мусоропровода должен надеваться и крепиться механическим способом (болтовым, винтовым, байонетным соединением, хомутом и т. п.) переходный металлический патрубок (в/на котором расположен механизм прочистного устройства) (см. приложения 3.4 - 3.7 к разделу 3.).

3.6.7. Толщина стенок патрубков ствола мусоропровода должна составлять от 0,8 до 3,0 мм.

Патрубки ствола мусоропровода должны стыковаться между собой самофиксирующимся соединением, выдерживающим осевую сжимающую весовую нагрузку не менее 150 кг.

Каждый патрубок ствола мусоропровода в соответствии со схемой монтажа должен содержать на верхнем конце заходную часть в виде уширения с внутренним диаметром, соответствующим внешнему диаметру нижнего конца. Разность диаметров стыкового соединения должна обеспечивать монтажный боковой зазор не менее наибольшей толщины стенки патрубка. Длина патрубков и количество стыков на стволе мусоропровода не регламентируются и определяются конструктивной схемой объекта, на котором применяются. Количество стыков патрубков на этаже здания не более трех.

Масса одного патрубка любой модификации не должна превышать 50 кг.

3.6.8. Конструкция загрузочного клапана должна обеспечивать свободную выгрузку мусора из стандартного ведра в ковш загрузочного клапана и беспрепятственное сбрасывание его при закрытии ковша загрузочного клапана в ствол мусоропровода. Конструкция загрузочного клапана должна также удовлетворять следующим требованиям:

а) размеры ковша загрузочного клапана должны быть такими, чтобы в него нельзя было заложить предметы длиной более внутреннего диаметра ствола мусоропровода. Приемное отверстие ковша должно иметь минимальные габариты по ширине 240 мм и по высоте 270 мм;

б) ковш должен легко открываться и закрываться и иметь в крайних положениях плотный притвор с упругими прокладками, обеспечивающими дымо-, водо- и воздухонепроницаемость загрузочного клапана. Во всех промежуточных положениях ковша должна исключаться возможность непосредственной загрузки мусора в ствол;

Проверку плотности прилегания крышки ковша к корпусу клапана производят методом «на краску», для чего смазывают опорную плоскость уплотнительного элемента тонким слоем масляной краски или минерального масла, а затем закрывают клапан медленно без удара об опорную поверхность корпуса, предварительно подложив на нее бумагу или кальку вокруг проема гнезда ковша. Разрыв в отпечатке следа контакта не допускается;

в) крепление загрузочных клапанов к стволу мусоропровода следует производить с применением резиновых прокладок и/или герметика и обеспечивать герметичность «Системы»;

г) ковш загрузочного клапана при любом его положении не должен перекрывать внутреннее проходное сечение ствола мусоропровода;

д) при открытом ковше его загрузочное отверстие должно фиксироваться в положении, близком к горизонтальному;

е) загрузочные клапан и ковш должны обеспечивать свободное перемещение мусора в стволе мусоропровода. Угол наклона днища загрузочного ковша в закрытом положении - не более 30° к вертикали;

ж) внутренняя поверхность ковша загрузочного клапана должна иметь гладкую поверхность и стойкое антикоррозионное покрытие.

Ковш изготавливаться из листовой стали толщиной 1,5 ÷ 2 мм. Ручка ковша должна быть гладкой;

з) конструкция загрузочного клапана должна предусматривать возможность снятия ковша для его замены или проведения аварийных работ.

3.6.9. Загрузочный клапан должен устанавливаться так, чтобы загрузочное отверстие ковша находилось на высоте 0,7 - 0,8 м от уровня пола.

3.7. Требования к автоматике пожаротушения в Системах мусороудаления

3.7.1. В верхней части ствола мусоропровода устанавливается специальное устройство автоматически подающие воду от сети внутреннего водоснабжения при возгорании мусора или отложений в стволе «Системы», и автоматически отключающие подачу воды при локализации возгорания.

3.7.2. Мусоросборные камеры должны оснащаться специальными системами пожаротушения, обеспечивающими автоматическую подачу воды, в случае возгорания, и автоматическое отключение воды, при локализации возгорания. При условии обеспечения необходимого давления допускается подсоединение системы пожаротушения непосредственно к сети хозяйственного водопровода.

3.7.3. Шибер системы мусороудаления имеет совмещенные функции огнеотсекающего клапана. В рабочем состоянии створки шибера открыты. Шибер конструктивно выполнен таким образом, что при возгорании и повышении температуры в мусоросборной камере, за счет расплавления плавкой вставки (выполненной из сплава Вуду, температура плавления 76 °С), срабатывает механизм, автоматически закрывающий створки шибера, в результате чего ствол мусоропровода оказывается локализованным от возгорания в мусоросборной камере.

3.7.4. Автоматика пожаротушения должна работать без применения электроавтоматики.

3.8. Требования к мусоросборной камере

3.8.1. Габариты и планировка мусоросборной камеры определяются проектом с учетом размещения и нормального обслуживания стандартных контейнеров и мусоросборников, средств для их перемещения.

Высота мусоросборной камеры в свету должна быть не менее 2,5 м.

3.8.2. Устанавливаемые в камере стандартные контейнер или мусоросборник определяются проектом с учетом суточного накопления, а также устанавливаемых сроков вывозки, сбора и транспортировки мусора в районе строительства здания.

3.8.3. Нижняя часть ствола мусоропровода должна перекрываться шиберным устройством (Приложение 3.3. к разделу 3). Шибер устанавливается на высоте не менее 1350 мм от пола мусоросборной камеры до его нижней точки при закрытых створках.

3.8.4. Конструкция шибера имеет два варианта исполнения:

а) типа ШМП с прямым (соосным) патрубком

б) типа ШМН патрубком, наклоненным на 20° к продольной оси шибера.

3.8.5. Каждый шибер должен быть оснащен механизмом автоматического закрывания створок в случае возникновения пожара в мусороприемной камере.

3.8.6. Толщина стенок патрубка и корпуса шибера должна быть не менее 3 мм, створок, тяг управления не менее 5 мм, а фланца опоры ствола мусоропровода не менее 6 мм.

3.8.7. Створки шибера должны четко фиксироваться в закрытом положении. При закрывании створок в тягах должно быть создано усилие натяга, обеспечивающее плотное закрытие створок.

3.8.8. Шибер должен выдерживать падение металлического груза массой 1 кг с высоты 50 м.

3.8.9. Масса шибера без патрубка не должна превышать 70 кг.

3.8.10. Запрещается использование шиберов «маятникового» или «задвижечного» типа.

3.8.11. Ограждающие строительные конструкции мусоросборной камеры должны быть дымо- и воздухонепроницаемыми и несгораемыми с пределом огнестойкости не менее 1 часа и нулевым пределом распространения огня (REI 60 и К0).

3.8.12. Дверь мусоросборной камеры должна быть облицована с внутренней стороны листовой сталью, иметь по контуру плотный притвор и запорное устройство. Дверь должна открываться в сторону улицы.

Ширина дверного проема должна быть достаточной для провоза тележки с контейнером или мусоросборником.

3.8.13. Стены мусоросборной камеры должны быть облицованы керамической плиткой.

3.8.14. Пол мусоросборной камеры должен быть водонепроницаемым, облицованным метлахской плиткой с уклоном 0,01 к трапу.

3.8.15. В мусоросборной камере следует предусматривать устройство водопровода с краном диаметром 15 мм и шлангом для промывки мусоросборников, а также для мойки стен и пола камеры.

3.8.16. Для стока воды в полу мусоросборной камеры должен быть трап площадью не менее 80 кв. см. Трап в полу мусоросборной камеры, расположенном выше отметки крышки канализационного колодца, должен присоединяться к канализации.

3.8.17. Расчетную температуру в мусоросборной камере следует принимать 4 - 5 °С.

3.8.18 Камеры должны иметь электрическое освещение с установкой светильников в пыленепроницаемом влагозащищенном исполнении.

3.8.19. Тележки, грузоподъемные механизмы и другое оборудование, необходимое для перемещения мусора к мусоровозному транспорту, должны быть предусмотрены проектом и сметой на устройство мусоропровода.

3.9. Требования охраны окружающей среды

3.9.1. Материалы, применяемые для изготовления и монтажа системы мусороудаления, не должны содержать вредных для здоровья человека химических и биологических веществ.

3.9.2. Прочистка, промывка и дезинфекция ствола мусоропровода должна обеспечивать улучшение общего санитарного состояния жилого дома или общественного здания и тем самым способствовать повышению экологического качества, безопасности и комфортности жилья.

3.9.3. Перечень применяемых при прочистке ствола мусоропровода дезинфицирующих средств должен иметь регистрационное удостоверение и быть согласованным с органами санитарного надзора.

3.9.4. Ствол, места соединения его с клапанами, шибером и системой прочистки должны быть герметичны и не допускать протечек дезраствора и воды в помещения, кроме мусороприемной камеры, а также проникновение запахов и дыма.

3.9.5. Шум в помещении, где расположен механизм прочистки, промывки и дезинфекции, от движения прочистного устройства в стволе мусоропровода во время прочистки не должен превышать 82 дБА.

Приложение 2.1 к разделу 2

(ОБРАЗЕЦ)

КАРТА КОНТРОЛЯ УЗО №

Адрес_____________________________________________________________________

Ф.И.О. ответственного за электроустановку ____________________________________

Дата выдачи и № сертификата на электроустановку _____________________________

Год

Месяц

Янв.

Фев.

Март

Апр.

Май

Июнь

Июль

Авг.

Сент.

Окт.

Нояб.

Дек.

1999

 

 

 

 

 

 

 

 

 

 

 

 

2000

 

 

 

 

 

 

 

 

 

 

 

 

2001

 

 

 

 

 

 

 

 

 

 

 

 

2002

 

 

 

 

 

 

 

 

 

 

 

 

2003

 

 

 

 

 

 

 

 

 

 

 

 

2004

 

 

 

 

 

 

 

 

 

 

 

 

2005

 

 

 

 

 

 

 

 

 

 

 

 

Ответственный за электроустановку __________________________________________

Проверяющий _____________________________________________________________

Приложение 3.1. к разделу 3.

СОСТАВ СИСТЕМЫ МУСОРОУДАЛЕНИЯ И АВТОМАТИЧЕСКОГО ПОЖАРОТУШЕНИЯ.

В комплектацию системы мусороудаления входят:

1. Система прочистки, промывки, дезинфекции и пожаротушения ствола мусоропровода с автоматикой управления.

(возможна любая компоновка в здании)

Устройство пожаротушения в стволе мусоропровода с автоматикой подачи воды при возгорании и автоматическим отключением подачи воды, при локализации возгорания.

2. Труба мусоропровода:

- экологически-чистая труба, на основе нержавеющей стали.

- экологически-чистая стальная труба с антикоррозионным покрытием.

3. Клапана мусоропровода:

- полная герметизация прилегания к стволу мусоропровода

- герметичное прилегание ковша к клапану

4. Шибера с автоматикой локализации возгорания в мусоросборной камере.

При возгорании в мусоросборной камере, гарантирует не попадание огня и дыма в ствол мусоропровода.

Автоматика пожаротушения в мусоросборной камере

- автоматическая подача воды при возгорании и отключение подачи воды, при локализации возгорания.

5. Верхняя оконечность ствола (дефлектор).

6. Тележки для мусора и контейнеры.

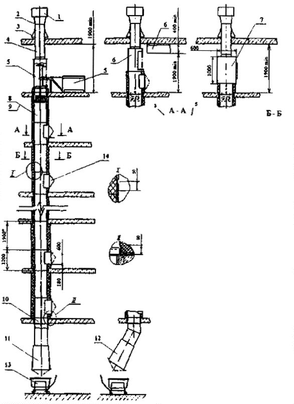
Приложение 3.2. к разделу 3

Рис. 1

СХЕМА ВАРИАНТОВ ИСПОЛНЕНИЯ СИСТЕМЫ МУСОРОУДАЛЕНИЯ И ПОЖАРОТУШЕНИЯ ТИПА СМ.

1 - дефлектор Д-280; 2 - фланец дефлектора; 3 - фартук Ф-280; 4 - патрубок дефлектора ПД-280; 5 - система прочистки ствола мусоропровода СПСМ-1; 6 - система прочистки ствола мусоропровода СПСМ-2; 7 - система прочистки ствола мусоропровода СПСМ-3; 8 - ствол мусоропровода СМН-1; 9 - ствол мусоропровода СМН-2; 10 - опора ствола ОС-400; 11 - шибер ШМП; 12 - шибер ШМН; 13 - тележка грузовая (контейнер); 14 - клапан навесной КН.

ВАРИАНТЫ ИСПОЛНЕНИЯ СТВОЛА

1 - ствол СМН-1; 2 - ствол СМН-2; 3 - проем для клапана; 4 - кладочный раствор; 5 - обрамление проема; 6 - облицовочный блок ОБК (керамзитобетонный); 7 - облицовочный блок ОБП (пенобетонный, газобетонный); 8 - кирпич ГОСТ 530-80.

d - толщина металлической оболочки ствола из нержавеющей стали 0,9 … 1,4 мм (0,8 - 3,0 мм - для обычной стали с антикоррозийным покрытием).

* Общая длина набора из одного-двух патрубков определяется по заказу на поставку в зависимости от строительного проекта.

Приложение 3.3 к разделу 3

Рис. 7.

Шибер типа ШМП

Рис. 8.

Шибер типа ШМН

1 - автоматика перекрытия нижней части ствола при возгорании в мусоросборной камере (без электроавтоматики).

Обозначение

Тип

Рис.

L, мм

Масса, кг

ШМ-00 000

ШМП-480

7.1

480

68

- 01

ШМП-1670

1670

102

- 02

ШМП-2100

2100

115

- 03

ШМП-750

7.2

750

86

- 04

ШМП-1940

1940

120

- 05

ШМП-2370

2370

132

- 06

ШМП-490

8.1

480

68

- 07

ШМП-1670

1670

102

- 08

ШМП-2100

2100

115

- 09

ШМП-750

8.2

750

86

- 10

ШМП-1940

1940

120

- 11

ШМП-2370

2370

132





Rambler's Top100 Яндекс цитирования
  Copyright © 2008-2026, www.docload.ru