ГОСТ
12847-67
МЕЖГОСУДАРСТВЕННЫЙ СТАНДАРТ
ТЕЛЕЖКИ ГРУЗОВЫЕ С
ПОДЪЕМНЫМИ УСТРОЙСТВАМИ
ТИПЫ. ОСНОВНЫЕ ПАРАМЕТРЫ И РАЗМЕРЫ
ИПК ИЗДАТЕЛЬСТВО СТАНДАРТОВ
Москва
ИНФОРМАЦИОННЫЕ
ДАННЫЕ
1.
РАЗРАБОТАН И ВНЕСЕН Министерством автомобильного и сельскохозяйственного
машиностроения СССР
РАЗРАБОТЧИКИ
Р.Д. Антипов, Р.Д. Серова, Г.П. Рындин, В.И. Лагункова, А.В.
Балякин
2. УТВЕРЖДЕН И ВВЕДЕН В ДЕЙСТВИЕ Постановлением Комитета
стандартов, мер и измерительных приборов при Совете Министров СССР от 18.04.67
3. ССЫЛОЧНЫЕ НОРМАТИВНО-ТЕХНИЧЕСКИЕ
ДОКУМЕНТЫ
|
Обозначение НТД, на который дана ссылка
|
Номер пункта
|
|
ГОСТ 5883-89
|
8
|
|
ГОСТ 11112-70
|
8
|
4. Ограничение
срока действия снято по протоколу № 5-94 Межгосударственного Совета по
стандартизации, метрологии и сертификации (ИУС 11-12-94)
5. ПЕРЕИЗДАНИЕ (декабрь 1998 г.) с Изменениями № 1, 2,
утвержденными в декабре 1985 г., июне 1990 г. (ИУС 4-86, 9-90)
МЕЖГОСУДАРСТВЕННЫЙ
СТАНДАРТ
|
ТЕЛЕЖКИ ГРУЗОВЫЕ С
ПОДЪЕМНЫМИ УСТРОЙСТВАМИ
Типы, основные
параметры и размеры
Cargo-trucks
with lifting devices.
Types, basic parameters and dimensions
|
ГОСТ 12847-67
|
Дата введения 01.01.69
1. Настоящий стандарт
распространяется на грузовые тележки с подъемными устройствами грузоподъемностью
от 125 до 1250 кг, транспортируемые вручную или буксирными механизмами по
твердым и ровным покрытиям со скоростью не более 5 км/ч, предназначенные для
механизации погрузочно-разгрузочных работ, штабелирования и перевозки грузов.
2. Тележки с подъемными
устройствами должны изготовляться следующих типов, указанных в табл. 1.
Таблица 1
|
Обозначение типов
|
Наименование и
характеристика
|
Номинальная
грузоподъемность, кг
|
Область применения
|
|
1
|
Тележки с подъемными вилами
|
250;
|
Погрузочно-разгрузочные
работы и транспортирование грузов на стандартных поддонах и в таре в складах,
эстакадах, цехах предприятий, железнодорожных вагонах
|
|
500;
|
|
1250
|
|
2
|
Тележки с подъемной платформой
|
250;
|
Погрузочно-разгрузочные
работы и транспортирование грузов на специальных поддонах и подставках в
складах, цехах предприятий
|
|
500;
|
|
1000
|
|
3
|
Тележки-штабелеры
|
125;
|
Погрузочно-разгрузочные
работы, штабелирование и транспортирование грузов на стандартных поддонах и в
таре в складах, цехах предприятий
|
|
250;
|
|
500
|
|
4
|
Тележки-столы
|
250;
|
Погрузочно-разгрузочные и
ремонтные работы, транспортирование грузов в складах, цехах предприятий
|
|
500;
|
|
1000
|
|
5
|
Тележки-краны
|
250;
|
|
500;
|
|
1000
|
(Измененная редакция, Изм. № 1).
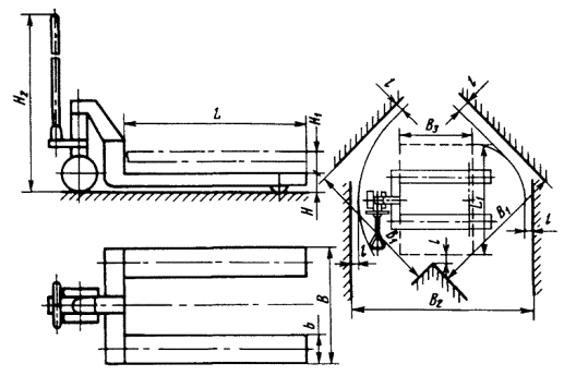
3. Основные параметры и размеры
тележек типа 1 должны соответствовать черт. 1 и табл. 2.

Черт. 1
Примечание. Чертеж не предопределяет конструкцию тележек.
Таблица
2
|
Наименование основных параметров и размеров
|
Нормы по типоразмерам
|
|
11
|
12
|
13
|
14
|
15
|
|
Номинальная
грузоподъемность, кг
|
250
|
500
|
1250
|
|
Высота поверхности вил от
пола Н, мм, не более
|
85
|
|
Высота подъема груза H1, мм
|
125
|
|
Высота рукоятки от пола H2, мм, не более
|
1500
|
|
Расстояние от края тележки до
стенки при развороте l, мм
|
100
|
|
Размеры вил, мм
|
Длина L
|
800
|
1000
|
1250
|
1000
|
1250
|
|
Общая ширина В
|
не более 560
|
560
|
|
Ширина b, не более
|
160
|
|
Наименьшая ширина проездов B1, пересекающихся под углом
90°, мм
|
1400
|
1600
|
|
Наименьшая ширина проездов B2 при развороте тележки на
90°, мм
|
1900
|
2300
|
|
Наибольший размер
транспортируемого груза, мм
|
Длина L1
|
800
|
1200
|
|
Ширина В3
|
600
|
800
|
|
Масса тележки, кг, не более
|
70
|
80
|
100
|
Пример
условного обозначения тележки типа 1, номинальной грузоподъемностью 500
кг, с длиной вил L = 1250 мм:
Тележка
13 ГОСТ 12847-67
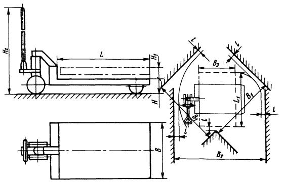
4. Основные параметры и размеры
тележек типа 2 должны соответствовать черт. 2 и табл. 3.

Черт. 2
Примечание. Чертеж не предопределяет конструкцию тележек.
Таблица 3
|
Наименование основных параметров и размеров
|
Нормы по типоразмерам
|
|
21
|
22
|
23
|
24
|
25
|
|
Номинальная
грузоподъемность, кг
|
250
|
500
|
1000
|
|
Высота поверхности
платформы от пола Н, мм
|
125
|
160
|
200
|
|
Высота подъема груза H1, мм
|
80 - 125
|
|
Высота рукоятки от пола H2, мм, не более
|
1500
|
|
Расстояние от края тележки до
стенки при развороте l, мм
|
100
|
|
Габаритные платформы, мм
|
Длина L
|
630
|
800
|
630
|
800
|
1250
|
|
Ширина В
|
400
|
630
|
400
|
630
|
800
|
|
Наименьшая ширина проездов B1, пересекающихся под углом
90°, мм
|
1300
|
1700
|
|
Наименьшая ширина проездов B2, при развороте тележки на
90°, мм
|
1800
|
2300
|
|
Наибольший размер
транспортируемого груза, мм
|
Длина L1
|
800
|
1200
|
|
Ширина B3
|
600
|
800
|
|
Масса тележки, кг, не более
|
60
|
80
|
100
|
Пример
условного обозначения тележки типа 2, номинальной грузоподъемностью 1000
кг, с платформой длиной L = 800 мм, шириной В = 630 мм и высотой
от пола Н = 160 мм:
Тележка
24 ГОСТ 12847-67
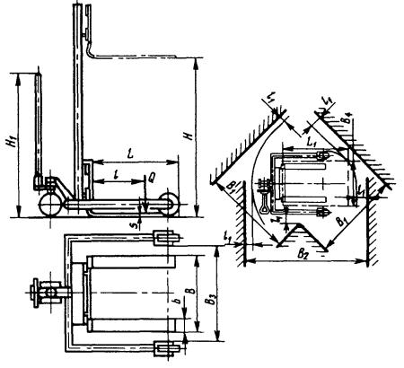
5. Основные параметры и размеры
тележек типа 3 должны соответствовать черт. 3 и табл. 4.

Черт.
3
Примечание. Чертеж не
предопределяет конструкцию тележек.
Таблица
4
|
Наименование основных параметров и размеров
|
Нормы по типоразмерам
|
|
31
|
32
|
33
|
|
Номинальная
грузоподъемность, кг
|
125
|
250
|
500
|
|
Расстояние центра тяжести
груза от спинки вил l, мм, не более
|
400
|
600
|
|
Высота подъема груза Н,
мм
|
1500
|
1800
|
|
Высота рукоятки от пола H1, мм, не более
|
1500
|
|
Расстояние от края тележки
до стенки при развороте l1, мм
|
100
|
|
Размеры вил, мм
|
Длина L, не более
|
600
|
800
|
|
Общая ширина вил В
|
наименьшая
|
320
|
|
наибольшая
|
600
|
750
|
|
Ширина b, не более
|
160
|
|
Толщина s, не более
|
50
|
|
Ширина рамы
тележки-штабелера в свету B3, мм
|
700
|
900
|
|
Наименьшая ширина проездов B1, пересекающихся под углом
90°, мм
|
1400
|
1700
|
|
Наименьшая ширина проездов B2, при развороте тележки-штабелера
на 90°, мм
|
2000
|
2500
|
|
Наибольший размер
штабелируемого груза, мм
|
Длина L1
|
800
|
1200
|
|
Ширина B4
|
600
|
800
|
|
Масса тележки, кг, не более
|
80
|
170
|
250
|
Пример
условного обозначения тележки типа 3, номинальной грузоподъемностью 500
кг, с высотой подъема Н = 1800 мм:
Тележка
33 ГОСТ 12847-67
6. Основные параметры и размеры
тележек типа 4 должны соответствовать черт. 4 и табл. 5.

Черт.
4
Примечание. Чертеж не
предопределяет конструкцию тележек.
Таблица
5
|
Наименование основных параметров и размеров
|
Нормы по типоразмерам
|
|
41
|
42
|
43
|
44
|
45
|
|
Номинальная грузоподъемность,
кг
|
250
|
500
|
1000
|
|
Высота поверхности стола от
пола Н, мм, не более
|
350
|
|
Высота подъема поверхности
стола от пола H1, мм, не более
|
1000
|
1250
|
|
Высота рукоятки от пола H2, мм, не более
|
1500
|
|
Расстояние от края тележки
до стенки при развороте l, мм
|
100
|
|
Габариты платформы стола,
мм
|
Длина L
|
800
|
1250
|
800
|
1250
|
|
Ширина В
|
630
|
800
|
630
|
800
|
|
Наименьшая ширина проездов B1, пересекающихся под углом
90°, мм
|
1300
|
1550
|
1300
|
1550
|
|
Наименьшая ширина проездов B2 при развороте тележки 90°,
мм
|
1900
|
2400
|
1900
|
2400
|
|
Масса тележки, кг, не более
|
150
|
250
|
300
|
Пример
условного обозначения тележки типа 4, номинальной грузоподъемностью 500
кг, с платформой стола длиной L
= 1250 мм и шириной В = 800 мм:
Тележка
43 ГОСТ 12847-67
7. Основные параметры и размеры
тележек типа 5 должны соответствовать черт. 5 и табл. 6.

Черт. 5
Примечание. Чертеж не предопределяет конструкцию тележек.
Таблица
6
|
Наименование основных параметров и размеров
|
Нормы по типоразмерам
|
|
51
|
52
|
53
|
|
Номинальная
грузоподъемность, кг
|
250
|
500
|
1000
|
|
Высота крюка от пола Н,
мм, не более
|
600
|
700
|
|
Высота подъема крюка от
пола Н1, мм, не более
|
2000
|
2500
|
|
Высота рукоятки от пола Н2,
мм, не более
|
1500
|
|
Расстояние от края тележки
до стенки при развороте l, мм
|
100
|
|
Вылет стрелы L, мм,
не менее
|
1000
|
1250
|
|
Ширина рамы тележки-крана в
свету B, мм
|
800
|
900
|
|
Наименьшая ширина проездов B1, пересекающихся под углом
90°, мм
|
1600
|
1800
|
|
Наименьшая ширина проездов B2 при развороте
тележки-крана на 90°, мм
|
2600
|
2800
|
|
Масса тележки, кг, не более
|
100
|
150
|
250
|
Пример условного обозначения тележки типа 5,
номинальной грузоподъемностью 500 кг, с высотой подъема крюка H1 = 2500 мм:
Тележка
52 ГОСТ 12847-67
3 - 7. (Измененная редакция,
Изм. № 1, 2).
8. Типы, основные
параметры и размеры колес - по ГОСТ 11112; массивные шины - по ГОСТ 5883.
Примечание. Для задних колес тележек типа 1 допускается
применять специальные типы колес.
9. (Исключен, Изм. № 1).
|