Бесплатная библиотека стандартов и нормативов www.docload.ru

Все документы, размещенные на этом сайте, не являются их официальным изданием и предназначены исключительно для ознакомительных целей.
Электронные копии этих документов могут распространяться без всяких ограничений. Вы можете размещать информацию с этого сайта на любом другом сайте.
Это некоммерческий сайт и здесь не продаются документы. Вы можете скачать их абсолютно бесплатно!
Содержимое сайта не нарушает чьих-либо авторских прав! Человек имеет право на информацию!

 

ПРАВИТЕЛЬСТВО МОСКВЫ
МОСКОМАРХИТЕКТУРА

РЕКОМЕНДАЦИИ
по проектированию центров
реабилитации инвалидов

1999

ПРЕДИСЛОВИЕ

1. РАЗРАБОТАНЫ МНИИП объектов культуры, отдыха, спорта и здравоохранения (кандидат архитектуры А.А. Архангельская, старший научный сотрудник А.П. Булычева, инженер К.А. Голендеров) при участии Центрального НИИ экспертизы трудоспособности и организации труда инвалидов - ЦИЭТИН (кандидаты медицинских наук О.С. Андреева, Д.И. Лаврова).

2. ПОДГОТОВЛЕНЫ к утверждению и изданию Управлением перспективного проектирования и нормативов Москомархитектуры (архитектор Л.А. Шалов, инженер Ю.Б. Щипанов).

3. СОГЛАСОВАНЫ с Комитетом социальной защиты населения Москвы и УПП и Н Москомархитектуры

4. УТВЕРЖДЕНЫ и введены в действие указанием Москомархитектуры от 25.11.1999г. №47.

СОДЕРЖАНИЕ

ОБЩИЕ ПОЛОЖЕНИЯ.. 1

1. Типологические характеристики центров реабилитации инвалидов. 2

2. Функциональная структура территориальных центров реабилитации инвалидов. 3

3. Требования к размещению, участку и территории. 4

4. Требования к архитектурно-планировочным решениям. 5

4.1. Функциональное зонирование и технологические связи подразделений и помещений. 5

4.2. Требования к проектированию основных помещений. 13

5. Нормативные ссылки. 18

Приложение 1 Примерные состав и площади помещений окружного центра реабилитации инвалидов. 18

Приложение 2 Примерные состав и площади помещений муниципального центра реабилитации инвалидов. 20

ОБЩИЕ ПОЛОЖЕНИЯ

Центр реабилитации инвалидов - учреждение, предназначенное для комплексной - медицинской и социальной с элементами профессиональной реабилитации инвалидов в амбулаторных условиях с целью социальной адаптации и восстановления социального статуса инвалида как полноценного члена общества.

Рекомендации по проектированию центров реабилитации инвалидов разработаны в развитие нормативно-методических документов по проектированию среды жизнедеятельности инвалидов, действующих на территории г. Москвы.

Настоящие Рекомендации распространяются на проектирование наиболее массовых медико-социальных центров системы Комитета социальной защиты населения г. Москвы - территориальных центров реабилитации окружного и муниципального значения.

Настоящие Рекомендации не распространяются на проектирование реабилитационных центров городского значения - многопрофильных, для детей и подростков, а также специализированных: для инвалидов с поражением опорно-двигательного аппарата определенных локализаций, с психическими расстройствами, с болезнями эндокринной системы, по зрению, по слуху, геронтологических и др. Эти центры являются единичными городскими объектами и должны проектироваться индивидуально по отдельным заданиям на проектирование, определяющим их назначение, структуру, состав, площади помещений, основные требования к оборудованию и оснащению и т.п.

Территориальные центры медико-социальной реабилитации обслуживают лиц, нуждающихся в оптимальном восстановлении независимого образа жизни, поддержании удовлетворительного состояния здоровья и психологической адаптации в семье и обществе. Наиболее многочисленный контингент, обслуживаемый центрами инвалидов - лица с нарушениями опорно-двигательного аппарата, речевыми нарушениями, отсутствием или потерей бытовых и профессиональных навыков, навыков общения, общим снижением адекватности поведения в результате различных заболеваний и травм.

В Рекомендациях приведены типологические характеристики и функциональная структура окружного и муниципального центров реабилитации инвалидов, планировочные связи отделений, принципы группирования и связей помещений, а также примерные состав, набор и площади помещений окружного и муниципального центров реабилитации.

Проектирование элементов зданий и территорий центров реабилитации - участков, входов в здания, проемов, проходов, переплетов окон, ручек дверей, габаритов и деталей лифтов, лестниц, пандусов, туалетов, мебели, оборудования, визуальной информации, покрытия полов и пр.; остановок общественного транспорта, автостоянок и пр. должно осуществляться с соблюдением требований и рекомендаций нормативно-методических документов, приведенных в разделе 5 «Нормативные ссылки».

1. Типологические характеристики центров реабилитации инвалидов

1.1. Территориальные центры реабилитации инвалидов призваны осуществлять направленную индивидуальную медико-социальную реабилитацию инвалидов в амбулаторных условиях с максимальным приближением к их местожительству.

1.2. Целью деятельности реабилитационных центров является восстановление социального статуса инвалида и его социальная адаптация путем проведения медицинских, психологических, профессиональных и социальных реабилитационных мероприятий.

1.3. Основными задачами центров реабилитации являются:

корректировка и реализация индивидуальных программ реабилитации инвалидов;

проведение медицинской реабилитации инвалидов, включающей восстановительную терапию и ортезирование 1);

проведение профессиональной реабилитации инвалидов, включающей профориентацию и содействие в выборе профессии;

проведение социальной реабилитации инвалидов, включающей социально-средовую ориентацию 2) и социально-бытовую адаптацию инвалидов;

________________

1) ортезирование - применение аппаратов и приспособлений, закрепляющих части тела в нужном положении или способствующих оптимизации функционирования кистей рук, ступней и т.п. для разных видов жизнедеятельности (еды, телефонного разговора, чтения, работы с письменными принадлежностями и т.п.)

2) - развитие навыков общения

динамический контроль процесса реабилитации инвалидов;

оказание консультативно-методической помощи по вопросам реабилитации организациям и отдельным гражданам.

1.4. Рекомендуемые типы территориальных центров реабилитации инвалидов представлены в таблице 1.1.

При определенных сложившихся ситуациях застройки или в порядке частного предпринимательства допускается проектировать отдельные структурные части центров.

Таблица 1.1.

Типы территориальных центров реабилитации инвалидов

Наименование центров реабилитации

Примерное количество жителей обслуживаемой территории (тыс.чел.)

Мощность, количество пациентов в день

1. Окружной центр реабилитации инвалидов

1000,0

50

2. Муниципальный центр реабилитации инвалидов

100,0-200,0

15-20

2. Функциональная структура территориальных центров реабилитации инвалидов.

2.1. Функциональная структура, состав и площади помещений территориальных центров определяются заданием на проектирование.

Территориальные центры, как правило, включают в себя следующие отделения:

· приемно-регистрационное;

· социальной реабилитации;

· профессиональной реабилитации в окружном и кабинет профессиональной реабилитации в муниципальном центре;

· медицинской реабилитации;

· юридическую консультативную службу;

· организационно-методический кабинет;

· административно-хозяйственные службы;

· а также службы и кабинеты, общие для отделений центра.

2.2. Приемно-регистрационное отделение обеспечивает: прием и регистрацию инвалидов; формирование базы данных инвалидов, обслуживающихся в Центре; контроль за порядком прохождения инвалидом различных служб в процессе реабилитации; учет назначений и контроль надомного обслуживания.

2.3. Отделение социальной реабилитации осуществляет определение степени ограничения различных функций инвалида, обеспечивает восстановление его социального статуса инвалида и обучение методам и навыкам независимой жизнедеятельности на основе целенаправленной работы входящих в отделение специальных служб.

2.3.1. Служба эрготерапии осуществляет:

- подбор и апробацию технических средств передвижения;

- проведение консультаций по индивидуальному функциональному приспособлению жилья инвалида для его самостоятельной жизнедеятельности с учетом характера его физических и психологических ограничений;

- обучение пациента и его семьи обращению с техническими средствами реабилитации;

2.3.2. Служба психологической реабилитации включает следующие задачи:

- оптимизация психологического настроя пациента;

- обучение членов семьи пациента правильному обращению с ним;

- обучение пациента методам общения с внешним миром в непривычных для него условиях физических и психологических ограничений;

- восстановление речевых навыков.

2.3.3. Служба обучения навыкам самостоятельного проживания ставит своей целью:

- обучение навыкам самообслуживания (личной гигиене, уходу за внешностью, пользованию телефоном, кухонными принадлежностями и т.п.);

- обучение навыкам самоконтроля и социальной безопасности;

- обучение навыкам общения.

2.3.4. Служба рекреационной реабилитации организует и проводит акции общения, культурного досуга и развлечений.

2.4. Отделение профессиональной реабилитации окружного центра определяет степень и направленность трудовых и творческих способностей, желаний и возможностей пациента, проводит его профессиональную ориентацию, апробацию, оказывает помощь в устройстве на работу. В муниципальном центре помощь инвалиду оказывается в кабинете профессиональной ориентации.

2.5. Отделение медицинской реабилитации осуществляет индивидуальные программы реабилитации, динамический контроль процесса реабилитации и дальнейшее поддержание удовлетворительного состояния здоровья и жизненного тонуса средствами лечебной физкультуры (в т.ч. в воде), тренировок, спортивной реабилитации, массажа, рефлексотерапии, трудотерапии, ортезирования, специализированной врачебной помощи реабилитолога, терапевта, невропатолога, психиатра в контакте с социальными работниками.

2.6. Юридическая консультативная служба осуществляет правовое просвещение пациента и его семьи, оказывает поддержку в охране и защите прав инвалида.

2.7. Организационно-методический кабинет:

- ведет статистический учет и анализ деятельности центра по комплексу отделений;

- осуществляет связь с системой учреждений реабилитации в городе (подключается к городской информационно-справочной системе).

2.8. Административно-хозяйственные службы осуществляют функции управления, кадровой политики, финансового, материального и эксплуатационно-технического обеспечения, ремонта и охраны.

2.9. Состав и площади помещений окружного и муниципального центров реабилитации инвалидов представлены в приложениях 1 и 2. Рекомендуемая функциональная структура и ориентировочные суммарные рабочие площади помещений подразделений обоих центров даны в таблицах 2.9.1 и 2.9.2.

Таблица 2.9.1

Функциональная структура и ориентировочные площади отделений окружного центра реабилитации инвалидов

Наименование групп помещений

Площадь помещений, м2

1. Приемно-регистрационное отделение

200

2. Службы и кабинеты, общие для отделений центра

121

3. Отделение социальной реабилитации

921

В том числе:

 

- общие помещения отделения;

71

- служба эрготерапии;

220

- служба психологической реабилитации;

102

- служба обучения навыкам самостоятельного проживания;

50

- служба рекреационной терапии.

478

4. Отделение профессиональной реабилитации, в том числе:

110

- кабинет профессиональной ориентации;

15

- кабинет трудовых проб;

60

- помещения бизнес-центра.

35

5. Отделение медицинской реабилитации, в том числе:

1780

- общие помещения отделения;

197

- служба восстановительной терапии;

1280

- служба ортезирования;

45

- трудотерапия.

258

6. Административные и хозяйственные службы

250

ИТОГО:

3382

Таблица 2.9.2.

Функциональная структура и ориентировочные площади отделений муниципального центра реабилитации инвалидов

Наименование групп помещений

Площадь помещений, м2

1. Приемно-регистрационное отделение

155

2. Службы и кабинеты, общие для отделений центра

57

3. Отделение социальной реабилитации, в том числе:

551

- общие помещения отделения;

51

- служба эрготерапии;

155

- служба психологической реабилитации;

75

- служба обучения навыкам самостоятельного проживания;

50

- служба рекреационной терапии.

220

4. Отделение медицинской реабилитации, в том числе:

1163

- общие помещения отделения;

180

- служба восстановительной терапии;

813

- трудотерапия.

170

5. Административные и хозяйственные службы

219

ИТОГО:

2145

3. Требования к размещению, участку и территории

3.1. Территориальные реабилитационные центры следует размещать на территории жилой застройки или общественных центров жилых районов с расстоянием от остановки общественного транспорта не более 100 м до входа в здание.

3.2. Площадь участка следует принимать в зависимости от объемно-композиционного решения и площади застройки здания с учетом подъездных и пешеходных путей и площади автостоянок, но не менее: 0,8 га для окружного и 0,6 га для муниципального центра.

3.3. В составе территории предусматриваются следующие функциональные зоны:

- главного входа, въезда, площадки посадки и высадки и автостоянок;

- рекреационная;

- хозяйственная.

3.4. Площадка для посадки и высадки пациентов должна размещаться перед входом в здание и иметь габариты, достаточные для въезда, разгрузки и разворота одинарного городского автобуса.

3.5. Автостоянки рекомендуется проектировать: для окружного центра в количестве 30 машиномест (из них 20 стандартных и 10 специальных для инвалидов, в т.ч. две - универсальные), для муниципального центра в количестве 20 машиномест (из них 15 стандартных и 5 специальных для инвалидов, в т.ч. одна - универсальная). Примеры решений см. соответствующие Рекомендации - раздел 5, п.п. 4.2 и 4.8. и Пособие - раздел 5, п. 6.1. настоящих Рекомендаций.

3.6. В рекреационной зоне рекомендуется предусматривать дорожки с двусторонними перилами для прогулок, площадки и скамейки для отдыха, газоны, цветники (примеры решений см. соответствующее Пособие - раздел 5, п. 6.1. настоящих Рекомендаций).

3.7. Хозяйственная зона должна размещаться со стороны загрузочных помещений кафе и мастерских и иметь отдельный въезд.

3.8. Земельные участки территориальных реабилитационных центров должны иметь ограждения по всему периметру, высотой не менее 1,5-2м с проходной для охраны в соответствии с требованиями СН 441-72*. Участок должен быть освещен в соответствии с требованиями СНиП 23-05-95.

3.9. На участках реабилитационных центров следует предусмотреть не менее двух въездов (один хозяйственный), с устройством проездов с твердым покрытием, шириной не менее 3 м, обеспечивающих подъезды пожарных машин к зданиям а также возможность объезда вокруг зданий (СНиП 21-01-97).

4. Требования к архитектурно-планировочным решениям.

4.1. Функциональное зонирование и технологические связи подразделений и помещений.

4.1.1 Функциональные структуры центров, связи отделений и группирование помещений представлены на рис. 1. и 2.

4.1.2. Приемно-регистрационная группа объединяет в один блок следующие помещения: главный холл с вестибюлем, регистратурой и местом для отдыха и ожидания пациентов и центральный транспортный узел. Из этого блока помещений должна предусматриваться равная доступность посетителей ко всем основным отделениям (отделениям социальной, профессиональной, медицинской реабилитации) и общим службам и кабинетам (кабинет юриста, оргметодкабинет, администрация).

4.1.3. В холле для ожидания и отдыха рекомендуется размещать различные виды информации и вызывной сигнализации, а также места для дежурного персонала регистратуры.

4.1.4. Кабинеты приема специалистов отделения медицинской реабилитации должны находиться в зоне непосредственной и простой доступности для пациентов.

4.1.5. Для группы помещений рекреационной реабилитации и зала для спортивных игр, куда посетители могут приходить помимо занятий и процедур для проведения досуга, рекомендуется обеспечить удобную связь с главным холлом (см. рис. 1. и 2.).

4.1.6. Отделение профессиональной реабилитации функционально связано с помещениями трудотерапии отделения медицинской реабилитации (см. рис. 1.).

4.1.7. Группа помещений службы психологической реабилитации должна быть планировочно обособлена и иметь необходимую звукоизоляцию, чтобы исключить возможные причины нарушения атмосферы контакта пациентов со специалистом.


Рис. 1 ФУНКЦИОНАЛЬНАЯ СТРУКТУРА И ТЕХНОЛОГИЧЕСКИЕ СВЯЗИ ОТДЕЛЕНИЙ ОКРУЖНОГО ЦЕНТРА РЕАБИЛИТАЦИИ ИНВАЛИДОВ

Рис. 2 ФУНКЦИОНАЛЬНАЯ СТРУКТУРА И ТЕХНОЛОГИЧЕСКИЕ СВЯЗИ ОТДЕЛЕНИЙ МУНИЦИПАЛЬНОГО ЦЕНТРА РЕАБИЛИТАЦИИ ИНВАЛИДОВ


4.1.8. Помещения отделений и служб (см. раздел 2) рекомендуется объединять в планировочные блоки. Помещения службы восстановительной терапии рекомендуется делить на три блока: спортивный зал и залы ЛФК, кабинеты массажа и иглорефлексотерапии, лечебно-плавательный бассейн.

4.1.9. Этажность зданий центров реабилитации определяется заданием на проектирование или проектом. Как правило, высота зданий не должна превышать 3-х этажей. На затесненных территориях и в случаях приспособления существующих зданий под центры реабилитации допускается предусматривать большую этажность по согласованию с территориальными органами социальной защиты населения и государственного пожарного надзора.

При числе этажей 2 и более здания должны оборудоваться лифтами.

4.1.10. Входы в здания центров, пандусы и лестницы, коммуникации и пути эвакуации, лифты и подъемники, средства и приспособления (поручни и т.п.) следует проектировать в соответствии с требованиями СНиП 2.08.02-89*, изменение № 3; ВСН 62-91* и Пособия по проектированию окружающей среды для людей с физическими ограничениями (вып. 1 и 2).

4.1.11. Высота помещений и другие общие требования, в том числе противопожарные, следует принимать в соответствии с требованиями СНиП 2.08.02-89* и СНиП 21-01-97.

4.1.12. Инженерное оборудование зданий центров следует проектировать в соответствии с требованиями СНиП 2.08.02.-89* и других нормативных документов, действующих на территории г. Москвы.

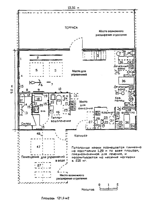
4.1.13. На рис. 3, 4 и 5 представлены примеры планировочных решений центра реабилитации и отделения медицинской реабилитации.


Рис. 3 Архитектурно-планировочное решение центра восстановления трудоспособности в Торонто

Экспликация к рис. 3

1. Гимнастический зал                                                                                                                                                                                28. Служебное помещение

2. Служебное помещение                                                                                                                                                                                29. Комната отдыха и буфет для сотрудников

3. Помещение для хранения имущества                                                                                                                                                                                30. Кабинет консультанта

4. Женский гардероб                                                                                                                                                                                31. Кабинет для осмотра пациентов

5. Столовая для пациентов                                                                                                                                                                                32. Заведующий отделением медицинской реабилитации

6. Кухня                                                                                                                                                                                33. Секретарь

7. Столовая для сотрудников                                                                                                                                                                                34. Координационный лечебный пункт

8. Кабинет заведующего центром                                                                                                                                                                                35. Заведующий отделением физиотерапии

9. Помещение отдела по обучению каждодневным видам деятельности и ванная комната                                                                                                                                                                                36. Служебное помещение

10. Кухня отдела по обучению каждодневным видам деятельности                                                                                                                                                                                37. Рабочее помещение

11. Процедурный кабинет                                                                                                                                                                                38. Заведующий служебными помещениями

12. Типографский цех                                                                                                                                                                                39. Регистратура

13. Столярная мастерская                                                                                                                                                                                40. Женский комитет

14. Место для курения                                                                                                                                                                                41. Речевая терапия

15. Помещение для хранения имущества                                                                                                                                                                                42. Социальное обслуживание

16. Помещение для легкого труда                                                                                                                                                                                43. Комната для отдыха пациентов

17. Помещение для хранения имущества                                                                                                                                                                                44. Бассейны для терапии

18. Туалетная комната для пациентов                                                                                                                                                                                45. Мужской гардероб

19. Туалетная комната для пациентов                                                                                                                                                                                46. Лекционная аудитория

20. Комната для копирования                                                                                                                                                                                47. Шкафчики с замками для врачей-практикантов

21. Ткацкая мастерская                                                                                                                                                                                48. Помещения для ведения домашнего хозяйства

22. Кабинет по предварительному определению степени профессиональной трудоспособности                                                                                                                                                                                49. Служебное помещение

23. Художественная мастерская                                                                                                                                                                                50. Заведующий отделом по ведению домашнего хозяйства

24. Слесарная мастерская                                                                                                                                                                                51. Перевязочный пункт самообслуживания

25. Гончарная мастерская                                                                                                                                                                                52. Гидротерапия

26. Шкафчики с замками для мужского персонала                                                                                                                                                                                53. Электротерапия

27. Шкафчики с замками для женского персонала                                                                                                                                                                                54. Шкафчики с замками для сотрудников

Рис. 4 Пример планировочного решения малого блока медицинской реабилитации (вариант линейного размещения)


Рис. 5 Пример планировочного решения малого блока медицинской реабилитации (вариант компактного размещения)

Экспликация к рис. 4 и рис. 5

1. Зеркало для наблюдением за положением тела

2. Параллельные брусья

3. Лестница для упражнений

4. Шведская стенка

5. Гимнастический мат

6. Велотренажер

7. Держатель головы системы Сейера, прикрепленный к потолку

8. Грузы на блоках

9. Колесо для вращения плечом

10. Крюки для гимнастических матов

11. Тележки с открытыми полками

12. Открытые полки

13. Инвалидные коляски

14. Полка

15. Стенные крюки

16. Стенной шкаф

17. Умывальник

18. Унитаз

19. Перила

20. Мусорный ящик

21. Переносное оборудование

22. Регулируемое кресло

23. Бассейн

24. Кресло

25. Стол

26. Кресло, предпочтительно с поручнями

27. Каталка

28. Письменный стол

29. Вращающееся кресло

30. Канцелярский шкаф для регистраторов

31. Книжный шкаф

32. Информационный стенд

33. Конторка (прилавок с нижней полкой)

34. Умывальник с педалью

35. Стенной шкаф с замком

36. Лечебный стол с нижними полками

37. Зеркало и стеклянная полка над умывальником

38. Регулируемый стул

39. Корзина для грязного белья

40. Раковина.

41. Парафиновая ванна

42. Стеклянная полка над раковиной

43. Трапеция над кроватью

44. Три штепсельных розетки для групповых цепей (одна двухполюсная и две трехполюсные)

45. Раздвижная дверь.

46. Занавес в боксе

47. Оборудование для подводных упражнений

48. Потолочный подъемник

49. Вешалки для верхней одежды

50. Телефонная розетка

4.1.14. При разработке программ и заданий на проектирование центров для определения состава и площадей помещений следует руководствоваться Приложениями 1 и 2.

4.2. Требования к проектированию основных помещений

4.2.1. Входной тамбур должен обеспечивать беспрепятственный вход-выход посетителей, в том числе на инвалидных колясках. Наружную дверь следует обозначать знаком доступности (человек в кресле-коляске) и оборудовать смотровым глазком и кнопкой звонка на высоте 1065 мм от уровня входной площадки. Наружная лестница должна иметь пандус шириной 90 см до отметки уровня первого этажа - лифтового холла (примеры решений см. соответствующее Пособие - раздел 5, п. 6.2. настоящих Рекомендаций).

4.2.2. Главный холл должен иметь три основные зоны:

вестибюльную с гардеробом верхней одежды, раздевальной кабиной с занавеской и местом для хранения колясок, ходилок и других опорных приспособлений для перемещения по центру;

рабочую зону регистратуры, включающей службу надомного обслуживания, оборудованную стойкой с пониженной конторкой для пациентов на креслах-колясках (рис. 6), столами с компьютерными местами, рабочими столами, компьютерами, принтерами, ксероксом, телефонами, факсом, вращающимися шкафами для картотеки, шкафами-сейфами для хранения документации строгой отчетности;

зону отдыха и ожидания посетителей с мягкими диванами и креслами, удобными для пользования установками с информацией о Центре и услугах, доступным телефоном-автоматом (примеры решений см. соответствующие Пособия - раздел 5, п. 6.2. настоящих Рекомендаций). Планировка холла должна обеспечивать удобство доступа в основные зоны, к оборудованию и информации.

Рис. 6. Стойка регистратуры с пониженной конторкой

4.2.3. Кабинет тестирования функций оснащается динамометрами, аппаратурой биомеханики и биостатики.

4.2.4. Помещения квартиры, оснащенной техническими средствами реабилитации (жилая комната, спальня, кухня, прихожая, туалетная комната), предназначены для практического ознакомления пациента и его семьи со специальным техническим оборудованием жилья для инвалидов и для выбора наиболее удобных вариантов его исполнения для данного случая физических ограничений пациента (форма дверных ручек, высота поручней, крючков и полок, места расположения поручней, оборудование кровати, набор приспособлений для ванны или душа, для кухни, комплекты специальной мебели и т.д.). Примеры оборудования жилых помещений и санитарных узлов для инвалидов см. в соответствующих Рекомендациях - раздел 5, п. 4.3. настоящих Рекомендаций.

Помещения квартиры для удобства осмотра и апробации оснащения целесообразно проектировать в виде открытых отсеков, примыкающих к коридору.

4.2.5 Кабинет адаптации жилья инвалида предназначен для подготовки проекта оптимально возможного приспособления существующего жилья пациента для его самостоятельной жизнедеятельности. В помещении должно быть рабочее место консультанта-проектировщика, компьютерное рабочее место, стенные полки, шкафы.

4.2.6. Учебная комната для адаптационного обучения инвалидов и членов их семей по пользованию средствами технической реабилитации должна быть оснащена экраном, телевизором, видеомагнитофоном, оверхедом. Планировка, освещение и акустика помещения, а также расстановка оборудования и мебели должны обеспечивать условия видимости и слышимости для людей с нарушениями зрения и слуха. В набор мебели должны входить: большой общий стол, стулья, кресла, диван, стенные шкафы, полки. Пример общего вида учебной комнаты представлен на рис. 7.

Рис. 7. Общий вид учебной комнаты

4.2.7 Кабинеты психотерапевта и психолога должны проектироваться с соответствующей звукоизоляцией ограждающих конструкций и двери, ковровым покрытием пола, мягкой мебелью для пациентов. В кабинетах для индивидуальных занятий предусматриваются рабочие столы и компьютерные места для психотерапевта (психолога). В кабинете для групповых занятий с психотерапевтом необходимо иметь 10-12 мягких кресел, диван, круглый стол, музыкальный центр, аппаратуру для светомузыки.

4.2.8. Кабинет логопеда должен иметь соответствующую звукоизоляцию ограждающих конструкций и двери, а также две звукоизолированные кабины для тренировки речи с использованием магнитофона.

4.2.9. Помещения службы обучения навыкам самостоятельного проживания включают:

- учебную комнату с мебелью и оборудованием, соответствующими оснащению учебной комнаты адаптационного обучения (пункт 4.2.6.);

- кухню и туалетную комнату со стандартными габаритами и оборудованием.

4.2.10. Актовый зал должен иметь не менее 20% зрительских мест для людей на креслах-колясках и возможность проезда на кресле-коляске на сцену из зрительного зала. Артистическая должна иметь выезд на сцену. Примеры размещения кресел-колясок в залах см. в соответствующих Рекомендациях и Пособиях - раздел 5. п. 4.7. и п. 6.2. настоящих Рекомендаций.

4.2.11. Библиотека, видеотека должны обеспечивать свободный доступ людей на кресле-коляске к самостоятельному обозрению и выбору книг и кассет (примеры решений см. в соответствующих Рекомендациях - раздел 5. п. 4.7. настоящих Рекомендаций).

4.2.12. Помещение для игр должно обеспечивать проведение настольных игр как между двумя партнерами, так и игр группы пациентов (сидящих каждый за своим столиком). Место ведущего должно быть приподнято над уровнем пола на 0,8 м. Помещение радиофицируется с установкой микрофона на месте ведущего.

4.2.13. Кабинет профессиональной ориентации оснащается рабочим столом, компьютерным рабочим местом, аппаратурой для психофизиологического тестирования, телевизором, видеомагнитофоном.

4.2.14. Кабинеты трудовых проб оснащаются компьютерными рабочими местами и местами с оборудованием, имитирующим различные виды трудовой деятельности: сборка деталей, работа с металлом, деревом, тканью, обработка информации и др.

42.15. Помещения бизнес-центра предназначены для подготовки пациентов к предпринимательской деятельности и помощи им в трудоустройстве. Оснащается компьютерными местами для обработки информации, стенными шкафами, столами и стульями для проведения совещаний (занятий). Компьютеры бизнес-центра должны быть подключены к ГИСС (городской информационно-справочной системе) и системе «Интернет».

4.2.16. Зал для спортивных игр рассчитывается на такие спортивные игры как волейбол, баскетбол, ручной мяч. Вокруг спортивной площадки предусматривается соответствующей ширины обходная дорожка (рис. 8), Специальное оборудование зала см. в соответствующих Рекомендациях - раздел 5, п.п. 4.5.; 4.6.; 5 настоящих Рекомендаций.

4.2.17. Гимнастический зал оснащается параллельными брусьями для тренировки в ходьбе, зеркалами, шведскими стенками, опрокидывающимся столом, фрикционным колесом, гимнастическими матами, кольцами, потолочными крюками и др. (рис. 9).

4.2.18. Кабинет массажа оборудуется массажными столами с гидравлическим подъемом и спуском для удобного пересаживания пациентов с кресел-колясок и обратно, для массажа головы, шеи и плеч в положении сидя предусматривается специальный массажный столик. Вокруг массажных столов предусматривается соответствующая рабочая зона (рис. 10).

Рис. 8. Обходная дорожка спортивной площадки

Рис. 9. Оборудование гимнастического зала

4.2.19. Лечебно-плавательный бассейн проектируется с зеркалом воды 13х18 м и габаритами помещения 18х24 м, что дает возможность устройства пандуса спуска в бассейн (уклон 1:12), при этом пациенты на креслах-колясках пересаживаются со своего кресла в специальную кресло-коляску для движения по пандусу. Этим же пандусом с перилами пользуются и все другие пациенты. На рис. 11 показан пример совмещения пандуса и лестницы при входе в бассейн.

4.2.20. Помещение службы ортезирования для приема пациентов, примерки и подгонки аппаратов и приспособлений - оборудуется рабочим местом специалиста по индивидуальной подгонке изделий, кушеткой, рабочим креслом и столом с зеркалом для пациента, выставочными полками и большим столом для наглядного демонстрирования аппаратов и приспособлений при различных ограничениях в движениях: для еды, чтения лежа (см. рис. 12) и сидя, разговора по телефону, работы с письменными принадлежностями и т.д.

Рис. 10. Технологические габариты помещения

массажной (1) и рабочих мест массажиста у массажного стола (2) и массажного столика (3)

Рис. 11. Вход в бассейн

Рис. 12. Приспособление для чтения лежа

5. Нормативные ссылки

В настоящих Рекомендациях приведены ссылки на следующие нормативно-методические документы:

1.     СНиП 2.08.02-89* Общественные здания и сооружения (с изменениями №№ 1, 2, 3).

2.     СНиП 21-01-97 Пожарная безопасность зданий и сооружений.

3.     ВСН-62-91* «Проектирование среды жизнедеятельности с учетом потребностей инвалидов и маломобильных групп населения».

4.     Рекомендации по проектированию окружающей среды, зданий и сооружений с учетом потребностей инвалидов и других маломобильных групп населения:

4.1.  Выпуск 1. «Общие положения». М., 1995г.

4.2.  Выпуск 2. «Градостроительные требования»; М., 1995г.

4.3.  Выпуск 3. «Жилые здания и комплексы». М., 1994г.

4.4.  Выпуск 10. «Учреждения лечебно-профилактические: поликлиники, амбулатории, аптеки». М., 1998г.

4.5.  Выпуск 12. «Спортивные сооружения». М., 1997г.

4.6.  Выпуск 13. «Физкультурно-оздоровительные сооружения». М., 1997г.

4.7.  Выпуск 14. «Кинотеатры, клубы, библиотеки, музеи». М., 1997г.

4.8.  Выпуск 19. «Здания и сооружения транспортного назначения» М., 1997г.

5.     «Руководство по учету потребностей инвалидов при градостроительном и объемном проектировании для г. Москвы и ЛПЗП». М., 1995г.

6.     Пособие по комплексному проектированию окружающей среды для людей с физическими ограничениями.

6.1.  Выпуск 1. «Элементы городской среды». М., 1996г.

6.2.  Выпуск 2. «Элементы зданий». М., 1997г.

Приложение 1

Примерные состав и площади помещений окружного центра реабилитации инвалидов

Наименование помещений

Площадь помещений в м2

1

2

1. Приемно-регистрационное отделение

 

1.1. Главный холл:

 

- вестибюль

30

- регистратура

30

- гардероб верхней одежды

30

- раздевальная

5

- место для хранения колясок, ходилок и опорных приспособлений

15

- место для отдыха пациентов и размещения информационно-справочных материалов

40

1.2. Уборные для пациентов

50

25х2

Итого:

200

2. Службы и кабинеты, общие для отделений центра

 

2.1. Кабинет юриста

12

2.2. Оргметодкабинет

18

2.3. Буфет и комната отдыха сотрудников

51

15+36

2.4. Гардеробные со шкафчиками, души и уборные для сотрудников

40

Итого:

121

3. Отделение социальной реабилитации

 

Общие помещения отделения

 

3.1. Кабинет заведующего отделением

15

3.2. Кабинет тестирования функций

20

3.3. Кабинеты социальных работников

36

12х3

Итого:

71

Служба эрготерапии

 

3.4. Помещение для подбора и апробации технических и опорных средств передвижения:

 

- выставочное помещение

30

- место для передвижения

30

- кладовая

20

3.5. Помещение квартиры, оснащенной техническими средствами реабилитации:

 

- жилая комната

15

- спальня

12

- кухня

10

- прихожая

8

- туалетная комната

10

3.6. Кабинет адаптации жилья инвалида

15

3.7. Учебная комната для адаптационного обучения инвалидов и членов их семей

30

3.8. Помещение для ремонта и хранения технических средств реабилитации

 

- мастерская

20

- склад

20

Итого:

220

Служба психологической реабилитации

 

3.9. Кабинет психолога

12

3.10. Кабинет психотерапевта

12

3.11. Кабинет для групповых занятий с психотерапевтом

36

3.12. Кабинет логопеда с двумя звукоизолированными кабинами

30

18+6х2

3.13. Кабинет проблем семьи

12

Итого:

102

Служба обучения навыкам самостоятельного проживания

 

3.14. Учебная комната

20

3.15. Кухня

15

3.16. Туалетная комната

15

Итого:

50

Служба рекреационной терапии

 

3.17. Актовый зал (конференц-зал) на 100 мест

180

3.18. Фойе

50

3.19. Артистическая при зале

24

3.20. Столовая (буфет):

 

- зал с раздаточной

60

- подсобное помещение

12

- моечная столовой посуды

12

3.21. Библиотека

40

3.22. Видеотека

18

3.23. Музыкальная гостиная

40

3.24. Помещение для игр

6

3.25. Парикмахерская 12+6

18

3.26. Педикюрный кабинет 12+6

18

Итого:

478

Всего по отделению:

921

4. Отделение профессиональной реабилитации

 

4.1. Кабинет профессиональной ориентации

15

4.2. Кабинет трудовых проб

60

30х2

4.3. Помещения бизнес-центра

35

15+20

Всего по отделению:

110

5. Отделение медицинской реабилитации

 

Общие помещения отделения

 

5.1. Кабинет заведующего отделением

12

5.2. Кабинет главной медицинской сестры с помещением для хранения имущества

25

5.3. Кабинеты врачей:

 

- реабилитолога

12

- ортопеда-травматолога с перевязочной

34

12+22

- терапевта

12

- невропатолога

12

- психиатра

12

- консультанта

12

5.4. Процедурная

20

5.5. Ординаторская

20

5.6. Сестринская с индивидуальными шкафчиками, душевой и уборной

20

5.7. Комната сестры-хозяйки

15

5.8. Кладовые (чистого и грязного белья, предметов уборки)

15

5х3

Итого:

197

Служба восстановительной терапии

 

5.9. Зал для спортивных игр

432

18х24

5.10. Кабинет механотерапии

50

5.11. Тренажерный зал

50

5.12. Гимнастический зал

72

5.13. Помещение для хранения имущества

30

5.14. Раздевальные с душевыми и уборными при залах ЛФК

50

25х2

5.15. Кабинет врача ЛФК

12

5.16. Кабинет массажа на 2 массажных стола и 1 массажный столик

30

5.17. Комната методистов ЛФК и массажистов со шкафчиками, душем и уборной

20

5.18. Кабинет иглорефлексотерапии (кабинет врача, процедурная на 2 места)

32

12+20

5.19. Помещение лечебно-плавательного бассейна (зеркало воды 13х18 м)

432

18х24

5.20. Раздевальные, душевые и уборные при бассейне

50

25х2

5.21. Помещение для хранения имущества

20

Итого:

1280

Служба ортезирования

 

5.22. Помещение для приема пациентов, примерки и подгонки аппаратов и приспособлений

30

5.23. Помещение для хранения имущества

15

Итого:

45

Трудотерапия

 

5.24. Компьютерный класс

36

5.25. Комната для ручного труда

36

5.26. Художественная мастерская

36

5.27. Мастерская сборки и ремонта радиоэлектронной аппаратуры

20

5.28. Мастерская для работы с деревом

40

5.29. Мастерская для работы с металлом

40

5.30. Мастерская для работы с тканью

20

5.31. Помещение для хранения имущества

30

Итого:

258

Всего по отделению:

1780

6. Административные и хозяйственные службы

 

6.1. Помещения директора центра:

 

- кабинет директора с санитарным узлом

20

15+5

- приемная с рабочим местом для секретаря-референта

30

20+10

6.2. Кабинет заместителя директора

12

6.3. Отдел кадров

12

6.4. Бухгалтерия, касса

17

12+5

6.5. Кабинет заместителя директора по хозяйственной работе

15

6.6. Помещение для ксерокса

10

6.7. Мастерская мелкого ремонта мебели и оборудования

30

6.8. Помещение охраны

10

6.9. Склады

100

Итого:

250

Всего по помещениям окружного центра реабилитации инвалидов:

3382

Приложение 2

Примерные состав и площади помещений муниципального центра реабилитации инвалидов

Наименование помещений

Площадь помещений в м2

1

2

1. Приемно-регистрационное отделение

 

1.1. Главный холл:

 

- вестибюль

20

- регистратура

20

- гардероб верхней одежды

20

- раздевальная

5

- место для хранения колясок, ходилок и опорных приспособлений

10

- место для отдыха пациентов и размещения информационно-справочных материалов

30

1.2. Уборные для пациентов

50

25х2

Итого:

155

2. Службы и кабинеты, общие для отделений центра

 

2.1. Кабинет юриста

12

2.2. Оргметодкабинет

15

2.3. Буфет и комната отдыха сотрудников

32

12+20

2.4. Гардеробные со шкафчиками, души и уборные для сотрудников

30

Итого:

57

3. Отделение социальной реабилитации

 

Общие помещения отделения

 

3.1. Кабинет заведующего отделением

12

3.2. Кабинет тестирования функций

15

3.3. Кабинеты социальных работников

24

12х2

Итого:

51

Служба эрготерапии

 

3.4. Помещение для подбора и апробации технических и опорных средств передвижения с местом для хранения имущества

40

25+15

3.5. Помещение квартиры, оснащенной техническими средствами реабилитации:

 

- жилая комната

15

- спальня

12

- кухня

10

- прихожая

8

- туалетная комната

10

3.6. Учебная комната для адаптационного обучения инвалидов и членов их семей

20

3.7. Помещение для ремонта и хранения технических средств реабилитации

40

20+20

Итого:

155

Служба психологической реабилитации

 

3.8. Кабинет психотерапевта

36

3.9. Кабинет психолога

12

3.10. Кабинет проблем семьи

12

3.11. Кабинет профессиональной ориентации

15

Итого:

75

Служба обучения навыкам самостоятельного проживания

 

3.12. Учебная комната

20

3.13. Кухня

15

3.14. Туалетная комната

15

Итого:

50

Служба рекреационной терапии

 

3.15. Актовый зал на 50 мест

90

3.16. Фойе - музыкальная гостиная

40

3.17. Артистическая при зале

20

3.18. Помещение для игр

30

3.19. Кухня-столовая на 20 мест

40

Итого:

220

Всего по отделению:

551

4. Отделение медицинской реабилитации

 

Общие помещения отделения

 

4.1. Кабинет заведующего отделением

12

4.2. Кабинет главной медицинской сестры с помещением для хранения имущества

18

12+6

4.3. Кабинеты врачей:

 

- реабилитолога

12

- ортопеда-травматолога с перевязочной

34

12+22

- невропатолога

12

- консультанта

12

4.4. Процедурная

20

4.5. Сестринская с индивидуальными шкафчиками, душевой и уборной

15

4.6. Ординаторская

20

4.7. Комната сестры-хозяйки

10

4.8. Кладовые (чистого и грязного белья, предметов уборки)

15

5х3

Итого:

180

Служба восстановительной терапии

 

4.9. Гимнастический зал

72

4.10. Тренажерный зал

40

4.11. Кабинет механотерапии

40

4.12. Помещение для хранения имущества

20

4.13. Раздевальные с душевыми и уборными при залах ЛФК

50

25х2

4.14. Кабинет врача ЛФК

12

4.15. Кабинет массажа на 2 массажных стола и 1 массажный столик

30

4.16. Комната методистов ЛФК и массажистов со шкафчиками, душем и уборной

20

4.17. Кабинет иглорефлексотерапии (кабинет врача, процедурная на 2 места)

32

12+20

4.18. Помещение лечебно-плавательного бассейна (зеркало воды 13х18 м)

432

18х24

4.19. Раздевальные, душевые и уборные при бассейне

50

25х2

4.20. Помещение для хранения имущества

15

Итого:

813

Трудотерапия

 

4.21. Компьютерный класс

30

4.22. Комната для ручного труда

30

4.23. Художественная мастерская

30

4.24. Мастерская для работы с деревом

40

4.25. Мастерская для работы с металлом

20

4.26. Помещение для хранения имущества

20

Итого:

170

Всего по отделению:

1163

5. Административные и служебные помещения

 

5.1. Помещения директора центра:

 

- кабинет директора

15

- приемная местом для секретаря

20

5.2. Отдел кадров

10

5.3. Бухгалтерия, касса

17

12+5

5.4. Кабинет заместителя директора по хозяйственной работе

12

5.5. Помещение для ксерокса

5

5.6. Мастерская мелкого ремонта мебели и оборудования

30

5.7. Склады

100

5.8. Помещение охраны

10

Итого:

219

Всего по помещениям муниципального центра реабилитации инвалидов:

2145

 




Rambler's Top100 Яндекс цитирования
  Copyright © 2008-2026, www.docload.ru