Бесплатная библиотека стандартов и нормативов www.docload.ru

Все документы, размещенные на этом сайте, не являются их официальным изданием и предназначены исключительно для ознакомительных целей.
Электронные копии этих документов могут распространяться без всяких ограничений. Вы можете размещать информацию с этого сайта на любом другом сайте.
Это некоммерческий сайт и здесь не продаются документы. Вы можете скачать их абсолютно бесплатно!
Содержимое сайта не нарушает чьих-либо авторских прав! Человек имеет право на информацию!

 

ПРАВИТЕЛЬСТВО МОСКВЫ МОСКОМАРХИТЕКТУРА

РЕКОМЕНДАЦИИ
по дальнейшему использованию и развитию
различных конструктивных систем,
применяемых в жилищном строительстве г. Москвы,
на основе технико-экономического анализа

1999

ПРЕДИСЛОВИЕ

1. Разработаны: Московским научно-исследовательским и проектным институтом типологий, экспериментального проектирования (МНИИТЭП) - инж. Максименко В.А Никитин Е.Е., Воробьев Г.А., Гриневский А.А., Смирнова Э.А.;

Институтом общественных зданий Госстроя России (ГУП ИОЗ Госстроя России) эк. Короткова Г.П.

2. Подготовлены к утверждению и изданию Управлением перспективного проектирования и нормативов (арх. Зобнин А.П., Ревкевич Л.П., инж. Щипанов Ю.Б.)

3. Утверждены указанием Москомархитектуры от 27.12.1999г. №51

СОДЕРЖАНИЕ

Введение. 1

Глава 1. Строительно-конструктивные системы жилых зданий и их элементы.. 2

Глава 2. Методические положения анализа и выбора строительно-конструктивных систем жилых домов. 18

Глава 3. Интегральные стоимостные и удельные показатели строительно-конструктивных систем жилых домов. 43

Глава 4. Выводы и предложения. 71

Литература. 75

Приложение 1 Сроки службы конструктивных элементов, инженерного оборудования и нормативы расходов и затрат. 75

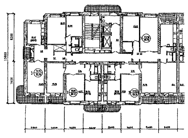
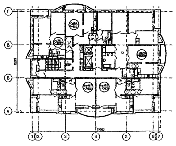
Приложение 2 Планы типовых этажей рассмотренных жилых домов. 81

Приложение 3 Термины, понятия и определения. 86

ВВЕДЕНИЕ

Одним из важнейших факторов повышения эффективности инвестиций, направляемых в жилищное строительство и обеспечивающих дальнейшее увеличение объемов и повышение качества жилья является выбор строительно-конструктивной системы здания.

В этой связи целью настоящей работы является анализ и выбор рациональных строительных систем и способов возведения жилых зданий для массового строительства в г.Москве.

Исследование должно обеспечить:

- наибольшую экономическую эффективность технических решений жилых домов, рациональное использование материальных, трудовых и финансовых ресурсов;

- перспективы внедрения прогрессивных технических решений в строительство жилья, отвечающих требованиям строительных норм и правил, способствующих дальнейшему развитию индустриализации строительного производства;

- высокую степень долговечности зданий и их эксплуатационных параметров;

- одинаковый методический подход к выбору строительно-конструктивных систем и оценке технико-экономических показателей проектов.

Работа содержит характеристики строительно-конструктивных систем, положения по рациональной области их применения, методику выбора рациональных строительных систем и методов возведения зданий, конкретные технико-экономические показатели проектов зданий в различных конструктивных системах, разработанные различными проектными организациями города.

Результаты работы предназначены для технико-экономической оценки и выбора рациональных строительных систем жилых зданий различной этажности, для конкретных условий строительства, для обоснований вариантов развития строительства жилья, его производственной базы.

Работа рассчитана на использование в проектных и строительных организациях, субъектами федерации, инвесторами и спонсирующими фирмами, а также в других организациях, занимающихся вопросами строительства массового жилья.

ГЛАВА 1.

СТРОИТЕЛЬНО-КОНСТРУКТИВНЫЕ СИСТЕМЫ ЖИЛЫХ ЗДАНИЙ И ИХ ЭЛЕМЕНТЫ

1.1. КРУПНОПАНЕЛЬНЫЕ СИСТЕМЫ

Панельной конструктивной системой (бескаркасной конструктивной системой) называют несущую систему, в которой вертикальными элементами являются стены, собираемые из панелей.

Крупнопанельными называют здания, выполненные, в основном, из панелей размером не менее, чем на комнату. Крупнопанельные здания подразделяют на поперечно-, продольно- и перекрестно-стеновые.

В зависимости от расстояния между несущими стенами крупнопанельные здания подразделяют на здания с узким шагом несущих стен и здания с широким шагом несущих стен. При этом под шагом несущих стен понимают расстояние в осях между несущими стенами.

Иногда понятие шага несущих стен заменяют пролетом перекрытий, и тогда крупнопанельные системы подразделяют на малопролетные (соответствуют узкому шагу несущих стен), среднепролетные и большепролетные. Малопролетными называют перекрытия, в которых в зданиях с несущими поперечными стенами вдоль фасада располагается одна комната, среднепролетными и большепролетными - соответственно две и три (или более) комнаты.

Шаг поперечных стен обычно принимают от 2,4 до 4,8 м для малопролетных систем, от 5,4 до 7,2 - для среднепролетных систем и от 9,0 до 15,0 - для большепролетных систем.

В зданиях с поперечно- и перекрестно-стеновыми системами чаще всего применяют мало- и среднепролетные перекрытия, в зданиях с продольно-стеновой системой - среднепролетные.

Крупнопанельные системы с узким шагом несущих стен

Крупнопанельные системы с узким шагом несущих стен включают следующие конструктивные элементы: несущие (и ненесущие) панели внутренних стен, панели перекрытий и фундаменты, являющиеся элементами несущей системы, панели наружных ограждений, которые могут быть элементами несущей системы или входить в состав несущих конструктивных элементов, и ненесущие элементы системы, в число которых входят изделия для лестниц, тюбинги лифтов, перегородки, изделия для внутреннего обустройства и инженерного оборудования зданий и др.

Крупнопанельные системы с узким шагом, позволяющие создавать здания с мелкоячеистой внутренней структурой, предопределяют области использования систем: жилищное строительство, здания гостиничного типа, административные здания без зальных помещений, общежития с высотой этажа (от пода до пола) 2,8 м.

Основной областью использования крупнопанельных систем с поперечным узким шагом несущих стен является жилищное строительство. Эти системы с точки зрения экономичности, высокой степени индустриальности, технологичности производства изделий и монтажа зданий являются для данного вида строительства наиболее оптимальными и распространенными.

Конструктивные элементы и узлы их соединения

Панели внутренних стен подразделяют в зависимости от формы панелей на сплошные беспроемные, с проемами, типа «флажок», плоские и с консолями для опирания настилов или лестничных площадок; в зависимости от способа производства - на панели кассетной, стендовой, конвейерной, прокатной технологии. Кроме того, панели внутренних стен варьируются по способу армирования, закладным деталям, классам железобетона, способам прокладки электротехнических коммуникаций, способам закрепления дверных коробок, показателям звукоизоляции и т.д.

В большинстве случаев панели внутренних межквартирных стен изготовляют из тяжелого железобетона толщиной 160 ... 180 мм и из легкого бетона толщиной 180 ... 200 мм; межкомнатные - из тяжелого железобетона толщиной 100 ... 140 мм. Толщина панелей определяется прочностью стыка панелей, условиями опирания перекрытий на панель, требованиями по огнестойкости панелей и звукоизоляции стен от воздушного шума и др.

Для несущих стен применяют бетон класса от В1,25 до В25. Панели армируются двумя арматурными сетками из низкомарочной стали или пространственными каркасами, состоящими из поперечных плоских каркасов, объединенных горизонтальными стержнями. В панели, работающие в условиях значительных напряжений, в зоне стыка укладывают дополнительные поперечные (горизонтальные) сетки или каркасы.

Для устройства каналов для скрытой сменяемой электропроводки в тело панели в настоящее время, как правило, закладывают металлические или пластмассовые трубы. Бесканальная, плинтусная электропроводка является наиболее перспективной, т.к. позволяет значительно упростить конструкцию, сократить число марок, для чего используют устанавливаемые в процессе строительства специальные пластмассовые плинтусы. Замоноличенная электропроводка (замоноличенный в процессе формования панели электропровод) является бесконтрольной и неремонтоспособной.

Для обеспечения работы панели в конструктивной системе в горизонтальных и вертикальных швах иногда предусматривают металлические закладные детали, роль которых в горизонтальном шве могут выполнять подъемные петли.

Стык панелей стен и перекрытий (горизонтальный стык) конструктивной системы с узким шагом несущих стен - платформенный, т.е. такой, в котором передача вертикальной нагрузки с панели на панель происходит через опорные участки панелей перекрытий, опертых в зоне стыка на панели несущих стен и слой раствора между вертикальными торцами плит. Платформенный стык может быть шпоночным и бесшпоночным.

Платформенный стык панелей имеет ограничения в несущей способности в зависимости от толщины панели, класса бетона панели (и способа армирования стыковой зоны; панели). Указанное ограничение с учетом оптимальной толщины стен и классов бетона определяет максимальную этажность зданий мелкоячеистой структуры (пролеты перекрытий 3,6 ... 4,2 м) в 22 ... 25 этажей.

Для повышения несущей способности стыка панелей стен и перекрытий иногда применяют контактные монолитные комбинированные стыки. В контактном стыке нагрузка передается непосредственно через слой раствора или упругие прокладки, толщина которых значительно меньше соединительных деталей.

Панели в вертикальных швах соединяют между собой закладными деталями или замоноличенными шпонками, позволяющими передавать сдвигающие усилия с панели на панель.

Панели перекрытий в системах с узким шагом поперечных стен изготовляют преимущественно размером на комнату, что позволяет исключать швы в перекрытиях и соответственно улучшать показатели звукоизоляции. По способу работы в несущей системе панели перекрытий подразделяют на балочные, т.е. опертые на две (поперечные) стены, опертые по трем сторонам и опертые по контуру, в том числе и на панели наружных ограждений.

Наиболее эффективными (имеющими лучшие показатели по расходу основных строительных материалов) являются панели, опертые по контуру. Однако в этом случае наружные ограждения должны быть несущими (на всю высоту здания или этаж), что несколько осложняет их конструкцию и узлы крепления ограждений к внутренним (поперечным) стенам. В отдельных случаях, например, когда имеются ограничения подъемно-транспортного характера, комнату (чаще всего кухню) можно перекрывать двумя панелями.

Одной из разновидностей панелей перекрытий являются панели, имеющие консольные участки для образования балконов. В этом случае в зоне пересечения панелью наружных ограждений укладывают специальные термовкладыши. В настоящее время панели перекрытий имеют толщину 140 мм, их изготовляют из бетона класса В15 и В25 и армируют сварными сетками из арматуры классов А-I, А-II, А-III В панели для образования дисков перекрытий, как элементов несущей системы, устанавливают закладные детали для соединения их между собой и с наружными ограждениями. Для организации скрытой электропроводки в панелях устраивают каналы или закладывают в тело панели металлические или пластмассовые трубки. Па некоторых заводах крупнопанельного домостроения изготовляют панели калиброванные, что создает возможность для устройства полов непосредственно на поверхности плиты.

Конструктивное решение панели перекрытия (толщина плиты) предопределяет конструкцию пола, так как они являются показателями звукоизоляции конструкции. Поэтому наиболее перспективными являются сплошные панели толщиной 160 мм, позволяющие устраивать полы без устройства дополнительной звукоизолирующей конструкции.

Панели наружных ограждений подразделяют в зависимости от количества перекрываемых шагов на одно- и двухмодульные (одно- и двухшаговые); в зависимости от наличия проемов - на глухие, с оконными проемами, с оконными и балконными проемами; в зависимости от их роли в несущей системе - на несущие и самонесущие (навесные); в зависимости от применяемых материалов - на железобетонные трехслойные, асбестоцементные трехслойные и др. Кроме того, панели наружных стен подразделяют в зависимости от характера внешней отделки, способа производства (например, «лицом вниз»; со вскрытой фактурой и т.д.), типа и места (завод - постройка) установки столярных изделий, наличия вмонтированных в процессе производства панелей нагревательных приборов, типа подоконников и т.д.

Одной из разновидностей трехслойных панелей являются панели на гибких связях, отличающиеся тем, что их внутренний и внешний слой соединяются между собой не железобетонными контурными ребрами или шпонками, а стальными деталями, которые имеют различную жесткость по осям их поперечного сечения. При этом виде связи в направлении большей жесткости обеспечивается необходимая передача сдвигающих усилий, а в направлении меньшей жесткости - свобода относительного смещения слоев. Панели на гибких связях обладают значительно более высокими теплотехническими показателями, однако требуют специальных мероприятий по защите от коррозии металлических соединительных деталей.

Перспективными являются панели армированные базальтовой, графитовой, композитной арматурой, стеклосетками и др.

Стыки панелей наружных ограждений бывают двух видов: закрытые и открытые. При закрытом стыке герметизация стены осуществляется путем заделки устья стыка герметизирующими материалами и цементным раствором. В горизонтальном стыке кроме заделки его герметизирующими материалами предусматривается устройство в конструкции панели водозащитного гребня. Разновидностью закрытого стыка является стык внахлестку, применяемый для однослойных панелей.

В конструкции открытого стыка устье с наружной стороны остается открытым. Преградой для воды в вертикальном стыке является устанавливаемая в глубине устья водоотбойная лента из неопрена, алюминия, пластмассы и других материалов. Пространство за лентой - декомпрессивный канал - обеспечивает выравнивание давлений внутри и снаружи стыка, в результате чего исключается подсос воды. В случае проникновения за ленту воды она отводится к нижней части панели и через специальное отверстие выводится наружу. В горизонтальном стыке устраивается водозащитный гребень, не герметизируемый снаружи. Для обеспечения требуемых теплотехнических качеств стыков в них вводится в процессе монтажа слой теплоизолирующего материала (пенополистирол, полужесткие минераловатные плиты).

Панели наружных стен соединяют с внутренними монтажной сваркой или болтами. Конструкция узла соединения стен определяется ролью ограждающих конструкций в несущей системе. Панели могут быть свободно стоящими с узлами соединения с внутренними стенами, обеспечивающими восприятие только горизонтальных сил, горизонтальных и вертикальных сдвигающих сил; навесными на поперечные стены (с опорой на консоли, столики или непосредственно стены). При этом перекрытия могут опираться на панели наружных стен или не иметь на них опоры.

Элементы лестничных клеток состоят из лестничных маршей и площадок. Наибольшее распространение получила конструкция лестничного марша с плоской нижней плитой.

Лестничные площадки в большинстве случаев представляют плоскую плиту, опирающуюся на наружную и внутреннюю поперечные стены с мощным ребром в месте опирания на нее лестничных маршей. Для опирания лестничной площадки в стенах устраивают консоли или в процессе монтажа к закладным деталям приваривают металлические опорные столики.

Конструкции крыши (плиты покрытия, поддерживающие панели внутренних стен и т.д.) могут включаться или не включаться в несущую систему здания (рассматриваться автономно). Из плит покрытия наибольшее распространение получили плиты, совмещающие несущие и ограждающие функции. В этом случае плиты могут быть изготовлены из легкобетонных материалов или трехслойными с внешними слоями, из железобетона и внутренним из эффективного утеплителя. Часто плиты покрытия опираются на специальные панели-рамки. При безрулонных мастичных кровлях в состав плит покрытия входят водосборные лотки.

Фундаменты крупнопанельных зданий имеют множество различных конструктивных решений.

В качестве фундаментов многоэтажных крупнопанельных зданий часто применяют монолитные плоские плитные фундаменты. Монолитные плитные и перекрестные ленточные фундаменты используют также в сложных геологических условиях, например, в районах с проявлением карстово-суффозионных процессов и на подрабатываемых территориях.

В целях предотвращения возможных прогрессирующих обрушений при чрезвычайных ситуациях следует предусматривать комплекс мероприятий, содержащихся в соответствующих рекомендациях.

Производство изделий

Для производства железобетонных и керамзитобетонных крупноразмерных изделий крупнопанельных систем в зависимости от местных условий, масштабов производства, видов изделий и т.д. применяют в различных модификациях следующие методы: стендовый, агрегатно-поточный, кассетный, конвейерно-кассетный, конвейерный и вибропрокатный.

Для производства панелей внутренних стен и панелей перекрытий наибольшее распространение получил кассетный и вибропрокатный способ, для панелей наружных стен - конвейерный и вибропрокатный, а для отдельных деталей - стендовый.

Монтаж

Наибольшее распространение получили три основных метода монтажа: свободный, с применением обычных геодезических инструментов и приспособлений: пространственной самофиксации; с применением кондукторных приспособлений. В состав работ по монтажу надземной части здания входят: монтаж сборных элементов несущей системы и ненесущих элементов, устройство стыков сборных элементов, монтаж ограждений балконов, лоджий и лестниц; монтаж конструкций для инженерного оборудования здания.

Монтаж надземной части здания осуществляют башенными кранами грузоподъемностью, соответствующей максимальной массе монтируемых сборных элементов.

Организация крупнопанельного домостроения

Основой организации строительства является поточный метод возведения зданий в соответствии с единым графиком поточного строительства. Такой график устанавливает поэтапные сроки возведения объектов (нулевой цикл, монтаж надземной части здания, отделочные работы и др.), позволяющие организовать поточную работу комплексных бригад, строительных и монтажных управлений, домостроительных комбинатов и трестов. График является основным производственным документом оперативного управления строительством на всех уровнях руководства, во всех организациях, участвующих в строительстве. Он позволяет производить расчеты номенклатурных планов ежедневной отгрузки деталей, полуфабрикатов, материалов и определять потребность во всех ресурсах каждого подразделения в целом на год, квартал, месяц.

Основной формой организации возведения крупнопанельных домов являются домостроительные комбинаты, которые ведут строительство методом непрерывного долгосрочного сквозного потока. Такой метод организации строительства способствует наиболее полной согласованности в работе заводов, транспорта и строительно-монтажных подразделений на длительный период, создает условия для высокой степени механизации монтажных и строительных работ, повышения заводской готовности изделий, наиболее четкой инженерной комплектации и на этой основе - снижения трудовых затрат и себестоимости, сокращения продолжительности строительства, роста производительности труда.

Организационная структура ДСК различна. Как правило, в состав ДСК входят заводы сборных железобетонных конструкции, монтажные управления и управления комплектации. В состав ДСК могут входить специализированные управления по монтажу подземной части здания, внутриквартальным инженерным коммуникациям и благоустройству, специализированные управления отделочных работ и др.

Отделочные виды работ, например, такие, как монтаж лифтов, внутреннего сантехнического оборудования, электромонтажные и слаботочные работы, газификация, чаще всего выполняют специализированные субподрядные организации. Отдельные ДСК являясь генподрядной строительной организацией, кроме строительства жилых домов возводят и объекты культурно-бытового назначения (детские дошкольные учреждения, школы, административные и учебные здания, предприятия общественного питания и др.).

Технико-экономические показатели

Технико-экономические показатели зданий на основе крупнопанельных систем конструкций (равно как и других систем) в значительной мере зависят от множества факторов, в том числе этажности, конфигурации (в плане), типа кровли (совмещенная, чердачная, чердачная с теплым чердаком), типа наружных ограждающих конструкций, набора типов квартир (малая однокомнатная, большая однокомнатная, малая двухкомнатная и т.д.), планировочного решения секции жилого дома, уровня инженерного обеспечения, степени заводской готовности изделий и их отделки.

Технико-экономическое сопоставление различных вариантов конструктивных схем жилых домов малой и средней этажности с первыми жилыми этажами (без первых нежилых этажей, организуемых на так называемых столах) в одинаковых инженерно-геологических, демографических и других условиях показывает преимущества крупнопанельных систем с узким шагом несущих стен по отношению к другим индустриальным системам и, в первую очередь, по такому важнейшему показателю, как построечная трудоемкость.

Сопоставление крупнопанельных жилых домов с индустриальными кирпичными показывает значительно большую построечную трудоемкость возведения последних при меньших удельных показателях расхода стали и бетона.

Следует иметь в виду, что крупнопанельные системы с узким шагом несущих стен применяют практически только в жилищном строительстве, поэтому их относительно высокие технико-экономические показатели нельзя механически сопоставлять с показателями других видов гражданского строительства.

Продольно-стеновые системы отличаются обязательным участием панелей наружных ограждений в работе здания на вертикальные (и горизонтальные) нагрузки, т.е. включение ограждающих конструкций в несущую систему здания. В связи с тем, что в структуре жилых зданий поперечный шаг стен меньше продольного, в продольно-стеновых системах настилы перекрытий имеют большие пролеты, чем в поперечно-стеновых. Поперечные стены в продольно-стеновых системах не выполняют несущих функций, т.е. не входят в состав несущей системы и являются вспомогательными.

Продольно-стеновые системы в отличие от поперечно-стеновых обладают большей свободой в формировании внутренней среды, возможностью трансформации планировочной структуры. Однако они снижают этажность здания в связи с относительно небольшой несущей способностью ограждающих конструкций, а также ограничивают возможности формообразования, так как для аналогичных объемных решений требуют большей номенклатуры индустриальных изделий, чем при поперечно-стеновых системах. В остальном (изготовление, монтаж, конструктивные элементы и др.) система практически мало отличается от поперечно-стеновой.

Крупнопанельные системы с широким шагом несущих стен первоначально нашли применение в жилищном строительстве, где за счет их внедрения снизилось общее количество типоразмеров и марок индустриальных изделий, получено новое архитектурное качество объектов строительства. Однако в связи с более высокой построечной трудоемкостью строительства, а в некоторых случаях и материалоемкостью объектов эти системы широкого развития в отечественной строительной практике не получили. Следует отметить, что этим системам для строительства жилья уделяется большое внимание за рубежом из-за возможности внутренней перепланировки в связи с изменяющимися требованиями к структуре жилища, а также использования гибкой технологии производства фасадных элементов, определяющих эстетические качества застройки.

1.2. КАРКАСНАЯ СИСТЕМА

Каркасная система применяется для строительства жилых и общественных зданий, в ней вертикальными элементами являются колонны, а также связи, диафрагмы и ядра жесткости.

По способу обеспечения пространственной жесткости каркасные системы разделяют на:

- рамные;

- рамно-связевые;

- связевые.

Схема расположения рам каркаса делит системы на:

- системы с пространственными рамами;

- системы с плоскими (продольными и поперечными) рамами. По типу применяемых горизонтальных несущих конструкций системы делятся на:

- ригельные;

- безригельные.

Наибольшее развитие в жилищно-гражданском строительстве для обычных условий строительства получили связевые каркасы. Они наиболее предпочтительны для строительства зданий с пролетами 1,8-9 м; высотой этажей 2,4-6 м и полезными нагрузками на перекрытия от 6 до 12,5 кН/м. Наиболее эффективным модулем по высоте является 3М в плане - 6М или 15М.

Конструктивные элементы и узлы их соединений

Связевой каркас включает в себя: колонны, ригели, плиты перекрытий и покрытий, распорки, диафрагмы жесткости, подколенники; фундаменты, являющиеся элементами несущей системы; наружные ограждения; лестницы, изделия для вертикального транспорта (стены или тюбинги шахт лифтов); изделия для инженерного оборудования зданий; элементы внутреннего обустройства (например, перегородки), не являющиеся элементами несущей системы. Каждый элемент системы, как правило, выполняет определенную, заранее заданную функцию, определенным образом ориентируется в пространстве и соотносится с другими элементами системы.

Колонны - вертикальные элементы несущей системы, но местоположению в плане различаются на: - рядовые, фасадные, торцевые, связевые и т.д.; по несущей способности, например в 2000, 3000, 4000, 5000 и 6000 кН и др.; по этажности - одно-, двух-, трехэтажные и т.д.; по виду поперечного сечения - прямоугольные и квадратные; по типу стыка - без металла, с плоскими металлическими торцами, с центрирующими прокладками, с выпусками свариваемой на монтаже арматуры и т.д.; по условиям опирания ригелей - рамными, упругопластическими, шарнирными узлами, с консолями, безконсольными, со скрытыми консолями и т.д.; по классу - класса В15, В25, В30, В40, В45 и др.; по способу армирования ствола колонн - с периферийным армированием, с центральным армированием, со спиральной арматурой, с металлическими сердечниками и т.д.; по способу производства (например, центрифугированные).

Наиболее распространенным типом колонн являются двух, трех- и четырехэтажные.

По условиям работы в несущей системе предпочтительным является квадратное поперечное сечение колонн 300х300 и 400х400 мм; класс бетона - В25, В30, В40 и В45. Армирование ствола колонн выполняется арматурными стержнями диаметром 12...40 мм из стали А-II, А-III, А-V и А-VI.

В практике строительства применяются стыки колонн: сборные, сборно-монолитные, монолитные, со сваркой продольной арматуры и без сварки, металлические и без металла. По форме стыки бывают плоские, сферические и с подрезкой бетона в зоне стыка. Наиболее эффективны стыки со сваркой продольной арматуры при различных формах подрезки бетона для оголения ее концевых участков.

Ригели - горизонтальные элементы несущей системы, воспринимающие вертикальные нагрузки, передаваемые на них преимущественно плитами перекрытия и распорками, а также, непосредственно к ним приложенные, и передающие их колоннам. В связевой системе ригели кроме восприятия вертикальных нагрузок участвуют в работе перекрытий на горизонтальные нагрузки, воспринимая растягивающие и сжимающие усилия, возникающие в перекрытиях при изгибе в своей плоскости.

Ригели различаются: по местоположению в несущей системе - рядовые, фасадные, торцевые, лестничные и т.д.; несущей способности; перекрываемому пролету - однопролетные, двухпролетные; консольные и т.д.; виду поперечного сечения - прямоугольные, тавровые с полкой внизу, с односторонним и двухсторонним опиранием настилов; типу стыка с колонной - ригели рамного каркаса, с подрезкой на опоре, с выпусками продольной арматуры; классу бетона; способу армирования; способу производства - предварительно напряженные с механическим натяжением арматуры, с электротермическим способом натяжения арматуры и т.д.

Диафрагмы жесткости - вертикальные элементы несущей системы, обеспечивающие восприятие горизонтальных нагрузок и передачу их на фундаменты, кроме того диафрагмы жесткости воспринимают вертикальные нагрузки, непосредственно к ним приложенные, от ригелей, плит перекрытий, лестниц, инженерного оборудования и др.

Диафрагмы жесткости формируются из сборных железобетонных элементов, либо монолитных конструкций (ядра жесткости). Форма диафрагмы жесткости в плане - линейная, а также - пространственная - в виде уголков, птвеллеров, прямоугольников и т.д. Сборные элементы диафрагм жесткости различаются: по виду поперечного (вертикального) сечения - консольные и безконсольные; типу горизонтального стыка диафрагм - с закладными деталями в горизонтальном шве, со шпонками, с безметалльным контактным стыком; по наличию дверных проемов - проемные и беспроемные, Г-образные и т.д.; значению воспринимаемых диафрагмами сдвигающих сил и вертикальных нагрузок.

Сборные железобетонные элементы диафрагм жесткости - одноэтажные толщиной 140 и 180 мм, проемные или беспроемные, плоские или с консолями для опирания перекрытий.

Панели диафрагм жесткости устанавливаются в пролетах от колонны до колонны и рассчитаны на совместную с ними работу.

Панели диафрагм изготовляются из бетона класса В 15 и В25.

Плиты (панели) перекрытия и покрытия - элементы несущей системы выполняют функцию восприятия вертикальных нагрузок, непосредственно к ним приложенных, и передачи их на ригели; кроме того воспринимают сжимающие и сдвигающие усилия, возникающие в диске перекрытия при его работе на изгиб в своей плоскости.

Перекрытия выполняются из сборных железобетонных панелей, которые опираются на полки ригелей или консоли диафрагм жесткости. Основным видом являются многопустотные панели перекрытия высотой 220 мм, которые обеспечивают экономию материалов и снижение массы конструкции.

Панели перекрытия делятся на следующие виды: рядовые; распорки внутренние, укладываемые по фасадным рядам колонн и способные нести нагрузку от ограждающих конструкций; распорки доборные, укладываемые у диафрагм жесткости, ригелей второго направления, лестничных клеток и т.д.; распорки сантехнические, укладываемые в местах пропуска коммуникаций и заглубленных санитарно-технических сетей и др.

Лестницы состоят из площадок и маршей или из 2-образных элементов, объединяющих лестничные марши с площадками.

При расположении лестничной клетки внутри здания она выгораживается диафрагмами жесткости со всех сторон, при расположении на фасаде - с трех сторон.

Подколенники обеспечивают распределение вертикальной нагрузки от колонн по поверхности фундамента, а также для фиксации колонн в плане. По способу фиксации колонн подколенники различаются на стаканного типа и пирамидальные. Подколенники опираются на фундаменты здания свободно через растворные швы. Подколенники пирамидального типа выполняются из бетона класса В25 и армируются арматурой из стали класса А-III

Фундаменты - это конструктивный элемент здания, обеспечивающий передачу на грунт сосредоточенных нагрузок, достигающих 15000 кН и выше. Различаются фундаменты для каркасных зданий на естественном основании и в виде свай. Фундаменты на естественном основании применяются следующих типов: - ленточные - в виде параллельных и перекрестных; плитные - в виде ребристых или безбалочных плит; коробчатые - высотой в один, реже, два этажа; отдельно стоящие - для малоэтажных зданий. Свайные фундаменты применяются в виде забивных свай квадратного или прямоугольного сечения, набивных свай различных систем, свай - оболочек. Фундаменты в виде плит используются, как правило, в зданиях большой этажности (свыше 16 этажей), т.е. с более высокими нагрузками на колонны.

Плоские плиты по сравнению с ребристыми имеют повышенный расход бетона (до 20%) и стали (до 15-25%); они позволяют вести работы по возведению фундамента индустриальными методами, значительно сокращают построечную, трудоемкость, уменьшают объем опалубочных работ (часто не требуют опалубки), значительно упрощают арматурные работы.

Наружные ограждающие конструкции, как правило, выполняют функцию защиты здания от внешней среды. Наружные ограждающие конструкции делятся:

- по виду материала - на железобетонные, алюминиевые, асбестоцементные и др.;

- по конструктивному решению ограждений - на трехслойные, комбинированные и т.д.;

- по виду материала отделки фасадных поверхностей;

- по способу крепления конструкций к элементам несущей системы и т.д.

Наилучшими технико-экономическими показателями обладают трехслойные (железобетонные со средним слоем из эффективных утеплителей, трехслойные легкие металлические и асбестоцементные панели), они имеют лучшие теплотехнические параметры.

Разновидностью каркасных зданий являются здания с несущими кирпичными наружными стенами и кирпичными диафрагмами жесткости. Наружные навесные кирпичные стены выполняются как сплошными, так и облегченными, толщиной в один кирпич и два кирпича, с утеплением изнутри и в середине кладки эффективными теплоизолирующими материалами (пенополистирол, пеностекло, фибролит, минераловата и др.). Учитывая высокую трудоемкость возведения кирпичных стен, этот вариант наружных ограждений может получить достаточно широкое применение в условиях реконструкции городов и в ситуациях, когда необходимо обеспечить высокую пластику фасадов, облицованных естественным камнем или каменными материалами.

Здания с немассивными фасадами могут ограждаться конструкциями с применением стальных или алюминиевых профилей, что обусловлено долговечностью и эстетическими данными. Металлические профили, в основном, использовались в качестве каркасов Навесных стеклопанелей, в состав которых входили также асбестоцементные листы и эффективный утеплитель, возможны и другие варианты легко-металлических слоистых панелей.

Технико-экономические показатели каркасно-панельных систем со связевым каркасом характеризуются среднестатистическими данными, приведенными ниже.

По сравнению с неиндустриальными конструктивными схемами, (стальные, монолитные каркасы, кирпичные здания), а также по сравнению с крупноблочными и панельно-блочными системами связевой каркас значительно менее трудоемок (построечная и суммарная трудоемкость) и имеет лучшие показатели по расходу основных строительных материалов, стоимости и срокам возведения.

Технико-экономические показатели монтажа сборных железобетонных конструкций (на 1 м2 общей площади)

Таблица 1.1

Показатели

Одиночные кондукторы

Групповые кондукторы

Наружные панели - ленточные навесные

Наружное ограждение - глухая стена

Себестоимость, руб.*)

46

37

56

62

Трудоемкость, чел. дн.

4,1

3,2

4,3

5,0

Удельные капиталовложения (без учета стоимости монтажа крана), руб.

44

41

17

20

Расход электроэнергии, кВт-ч

212

168

49

49

Технико-экономические показатели связевого каркаса для зданий высотой 20 ... 30 этажей (на 1м3 объема здания)

Расход бетона, м3

0,065

Расход стали, кг

25

Трудовые затраты на монтаж каркаса и перекрытий, чел.дн.

0,16

Продолжительность возведения каркаса здания (на 100м2), дн

2,3

Затраты на устройство каркаса и перекрытий, руб:

настройке

0,54

на заводе

0,34

*Стоимостные показатели приведены в ценах 1984 года.

Следует иметь в виду, что в настоящее время каркас системы КМС запрещен для жилищного строительства в связи с чем, при необходимости применения каркасной несущей системы, следует ориентироваться на предварительно-напряженные монолитные и сборно-монолитные каркасы.

Технико-экономические показатели предварительно напряженного каркаса

По сравнению со связевым каркасом при одинаковой планировочной структуре и идентичности несущей системы, предварительно напряженный каркас обеспечивает снижение расхода стали на 25% и бетона на 33% за счет применения ребристых перекрытий, работающих в двух направлениях по неразрезной схеме, исключения стальных закладных деталей колонн в вертикальных диафрагм жесткости в соединениях между ними и перекрытиями, отсутствия железобетонных полок панелей, диафрагм и ригелей, использования эффективного армирования сборно-монолитных скрытых ригелей. Трудоемкость возведения здания несколько выше каркасно-панельных, однако суммарные трудозатраты не возрастают.

Технико-экономические показатели предварительно напряженного каркаса по расходу основных строительных материалов в сопоставлении с аналогичным связевым каркасом приведены в таблице 1.2

Сопоставительные технико-экономические показатели связевого и преднапряженного каркасов

Таблица 1.2

Элементы и виды работ

Расход материалов на 1000 м2 общей площади

Бетон, м3

Сталь, кг

связевой

преднапряженный

связевой

преднапряженный

Колонны

21

21

7

4

Вертикальные диафрагмы

45

37

7

3

Ригели и перекрытия

175

105

13

9

Замоноличивание и стыкование конструкций

21

17

1

5

Итого

262

180

28

21

Технико-экономические показатели по расходу основных строительных материалов на среднюю секцию длиной в осях 6 м при ширине 30 м на все железобетонные элементы 2-го сверху этажа высотой 4,3 м приведены в таблице 1.3.

Расход материалов на железобетонные элементы на 1 м2 площади перекрытия 2-го сверху этажа

Таблица 1.3

Количество пролетов

Бетон, см/м

Сталь (натуральная), кг, при временных нормативных длительных нагрузках, кПа

сборный

монолитный

всего

50

100

150

200

250

300

5

22

19

24

24

24

27

28

35

37

Безригельные каркасы представляют собой конструктивные системы, состоящие из вертикальных несущих конструкций в виде колонн и безбалочных перекрытий. Безригельные конструктивные системы включают в себя колонны, капители, плиты перекрытий (пролетные и надколенные) и др. конструктивные элементы.

Каркасы с безбалочными перекрытиями, как правило, представляют собой рамные схемы, хотя и встречаются связевые и рампо-связевые схемы, включающие диафрагмы жесткости, или связи одного или двух направлений.

Ограждающие конструкции в индустриальном варианте выполняются из сборных керамзитобетонных, железобетонных (трехслойных) или легкометаллических конструкций. Достаточно частыми являются кирпичные стены (с эффективной кирпичной кладкой).

Безригельный каркас нашел свое применение при строительстве гражданских зданий, где предъявляются требования к безригельности перекрытий, а также в зданиях малой этажности со значительными нагрузками на перекрытия (гаражи, книгохранилища, складские помещения, предприятия торговли и общественного питания; в жилищном строительстве - система «КУБ»).

Конструкции систем серии «КУБ» отличаются от традиционных сборно-монолитных каркасных систем отсутствием ригелей, роль которых выполняют плиты перекрытия, наличием многоярусных колонн без выступающих частей, а также надежной работой в эксплуатационной стадии благодаря монолитной связи элементов каркаса и многократной статической неопределимости системы.

Пространственная жесткость и устойчивость каркаса, работающего по рамной или рамно-связевой схеме, обеспечена надежной работой замоноличенных стыков соединения элементов.

Надежность основных конструктивных решений отдельных узлов и системы в целом, а также методика расчета каркасов серии «КУБ» подтверждены достаточным объемом экспериментальных исследований в статическом и динамическом режимах.

Универсальность конструкции, возможность быстрого освоения ее при минимальных капиталовложениях в базу, экономичность, простота изготовления и монтажа обеспечили значительное внедрение ее в строительстве жилья и объектов соцкультбыта в регионах, где нет развитой строительной индустрии. Серия «КУБ» содержит следующие системы:

Система КУБ-2К - усовершенствованная модификация системы КУБ-1, предусматривающая использование ее в строительстве жилых и общественных зданий, а также в промышленном строительстве в зданиях с нагрузками на перекрытие не более 1000 кг/м2.

В сравнении с системой КУБ-1 в системе КУБ-2 достигается экономия стали на 8-10% в сопоставимых условиях.

Система КУБ-2КМ - модификация системы КУБ-2 с техническими характеристиками системы КУБ-2 с монолитными перекрытиями и использованием изделий перекрытий системы КУБ-2 в качестве оставляемой опалубки.

Усредненные показатели на кв.м перекрытия каркаса системы КУБ-2

Таблица 1.4

Сталь

Натуральная, кг

Бетон, м3

Цемент, кг

Трудоемкость монтажа, чел/час

сборный

монолитный

13,2

0,151

0,021

65,0

0,7

Количество типоразмеров - 2

Максимальная нагрузка на перекрытия - 1200 кг/м2

Схема - рамно-связевая

Максимальная этажность - 16

1.3. БЛОЧНАЯ СИСТЕМА

Блочная система предполагает использование блоков, панелей и настилов (перекрытий) в одной конструктивной системе. При этом блоки выполняют роль вертикальных несущих конструкций (внутренние несущие конструкции стен и наружные ограждающие конструкции), панели -вертикальных несущих и ненесущих (ограждающих) конструкций, а элементами .перекрытий являются настилы (размером, как правило, меньше, чем на комнату).

В блочные системы могут не входить панели и в этом случае система конструкций превращается в «чисто» блочную.

Блочные системы, содержащие крупные панели, иногда называют панельно-блочными, подчеркивая названием их более высокий индустриальный уровень, чем «чисто» блочных. В этом случае название совпадает с панельно- (объемно-) блочными системами.

Блочные системы используют для строительства жилых домов, в которых, по функциональным требованиям максимальный пролет между несущими, вертикальными конструкциями не должен превышать (может быть ограничен) 6,6...7,2 м.

Конструктивные элементы и узлы их соединения

Блоки внутренних стен представляют собой сплошные или многопустотные железобетонные призматические изделия, выполняющие роль вертикальных несущих конструкций и конструкций, обеспечивающих восприятие горизонтальных нагрузок и общую устойчивость несущей системы (наряду с блоками наружных ограждений).

Пустоты в блоках выполняют две функции: уменьшают плотность блоков и используются в качестве каналов для элементов инженерно-технического обеспечения здания (вентиляции).

Внутренние стены, выполняемые в блоках, как правило, имеют двухрядную (по высоте) разрезку. При этом нижний ряд блоков имеет относительную универсальность (используется в зданиях различного назначения без изменения конструктивного решения), в то время, как конструкция блоков верхнего ряда зависит от типа здания. Так, в жилых домах блоки верхнего рада представляют собой железобетонный пояс таврового сечения с полками понизу для опирания настилов; в общественных зданиях верхний ряд блоков представляет собой элемент прямоугольного сечения, поверх которого укладываются настилы перекрытий.

Нижние блоки имеют различные размеры, из которых наиболее распространены следующие: высота - 2150 мм, толщина - 390 мм, длина - 790, 990, 1190, 1390, 1790, 1990 и 2190 мм.

Передача вертикальных нагрузок с этажа на этаж происходит по-разному: в жилых домах стык блоков и настилов перекрытия носит характер контактного стыка, а в общественных зданиях - платформенного. При заполнении цементным раствором швов между настилом и поясным блоком настилы перекрытия в контактном стыке включаются в работу на передачу вертикальных нагрузок на поясной блок.

Блоки изготовляют из бетона классов В 15 и В25 в зависимости от воспринимаемых блоком нагрузок. Нижние блоки армируют в основном конструктивной арматурой класса А-I. Верхние блоки армируют сварными каркасами и сетками из арматуры классов А-I, А-II, и А-III.

Настилы перекрытий многопустотные, предварительно напряженные, высотой 220 мм. Наряду с настилами, в составе элементов перекрытия используют корытообразные элементы, аналогичные санитарно-техническим распоркам и предназначенные для разводки инженерно-технических коммуникаций.

В связи с тем, что перекрытия участвуют (или могут участвовать) в передаче вертикальных нагрузок, торцы многопустотных настилов усиливают. Усиление заключается в том, что пустоты одного из торцов суживают, а сами пустоты заделывают с обоих торцов цементным раствором (на расширяющемся цементе).

В качестве настилов перекрытия применяют также калиброванные сплошные керамзитобетонные плиты из тяжелого керамзитобетона класса В20, которые могут передавать более значительные вертикальные нагрузки в стыках платформенного типа. В этом случае вертикальные инженерно-технические коммуникации пропускают через отверстия в плитах перекрытия или через унифицированные «отдавлины» в плитах для пробивки отверстий.

Блоки наружных стен представляют собой призматические сплошные керамзитобетонные изделия, разрезанные на простенки, ленточные и доборные блоки. Толщину блоков выбирают, исходя из соображений прочности и обеспечения необходимого приведенного коэффициента теплопередачи. Она колеблется от 400 до 600 мм.

Блоки выполняют из тяжелого керамзитобетона класса В15 плотностью 1200 ... 1600 кг/м3 и армируют арматурой классов А-I, А-II, А-III в виде каркасов и сеток. Арматуру подбирают по расчету.

Блоки наружных стен в малоэтажном строительстве могут нести вертикальные нагрузки от перекрытий (системы с продольными несущими стенами), однако чаще наружные стены являются самонесущими (несут нагрузку только от собственной массы), участвующими в определенных случаях в восприятии горизонтальных нагрузок, направленных вдоль наружных стен, а также в обеспечении общей устойчивости несущей системы.

Панели наружных стен навесные, ненесущие, однослойные, керамзитобетонные толщиной 270 мм, преимущественно «глухие», применяют, в основном, в торцах зданий в качестве утеплителя торцевых стен из тяжелого бетона.

Кроме указанных элементов в состав конструктивной системы включаются элементы лестничных клеток (площади и марши), элементы чердаков и кровель, балконов и лоджий и др. Конструктивные решения всех элементов системы аналогичны соответствующим по функциям элементам других инженерно-технических систем.

В настоящее время технико-экономические показатели блочных систем по сравнению, например, с крупнопанельными и каркасно-панельными при решении аналогичных задач ниже, особенно по показателям трудоемкости и материалоемкости. Вместе с тем некоторые объекты общественного назначения из блочных конструкций имеют лучшие показатели по стоимости строительно-монтажных работ, чем крупнопанельные с широким шагом несущих стен, что в определенной мере является следствием высокого уровня цен на вновь осваиваемые крупнопанельные конструкции с высоким уровнем заводской готовности. Следует отметить, что блочные системы начали, развиваться одними из первых среди индустриальных систем и в настоящее время широко используются в некоторых зарубежных странах.

1.4. КОНСТРУКТИВНАЯ СИСТЕМА ЖИЛЫХ ЗДАНИЙ ИЗ МОНОЛИТНОГО ЖЕЛЕЗОБЕТОНА

Строительство монолитных и сборно-монолитных жилых домов получило перспективы применения помимо районов со сложными геологическими условиями, при возведении зданий и комплексов важных в градостроительном отношении.

Монолитное и сборно-монолитное домостроение, как основное направление индустриализации строительства многоэтажных зданий с использованием местных материалов, рекомендуется при следующих условиях:

отсутствии или недостаточной производственной мощности базы панельного домостроения;

непригодности выпускаемых изделий для применения в проектных решениях при заданных архитектурно-планировочных параметрах зданий;

необходимости создания проектов здании по архитектурно-планировочным или другим требованиям, отличающихся от, применяемых в массовом строительстве с использованием сборных индустриальных изделий;

Необходимости осуществления многоэтажной, жилой, застройки, при которой конструкции зданий не могут быть решены с использованием индустриальных изделий.

В монолитном и сборно-монолитном домостроении могут быть применены следующие конструктивные системы:

I Бескаркасная со смешанным или большим шагом несущих стен, при поперечном или продольном их расположении, а также с наружными ненесущими стенами из сборных индустриальных изделий; перекрытия монолитные или сборно-монолитные. Система целесообразна при строительстве зданий значительной протяженности и различной этажности. Строительство таких зданий осуществляется с использованием инвентарной блочно-щитовой, крупнощитовой или объемно-переставной опалубки.

II Бескаркасная с перекрестными наружными и внутренними продольными и поперечными несущими монолитными сценами и монолитными, или сборными перекрытиями. Система целесообразна при строительстве односекционных домов башенного типа, осуществляемом с применением инвентарной крупнощитовой или скользящей опалубки.

III. Каркасно-ствольная, панельно-ствольная или ствольная, применяемая при строительстве домов с одним или несколькими стволами (ядрами) жесткости из монолитного бетона в сочетании со сборными конструкциями.

Для возведения стволов жесткости целесообразно применение скользящей опалубки.

К наиболее широкому внедрению в строительство рекомендуется первая из перечисленных систем. Она позволяет обеспечить комплексное проектирование жилых и некоторых типов общественных зданий, а также способствует наибольшему насыщению сборно-монолитного здания сборными конструкциями. Осуществляется с использованием монолитного тяжелого и легкого бетонов.

Вторая система целесообразна при возведении отдельных зданий или групп зданий акцентного характера. Осуществляется преимущественно с использованием легких бетонов.

Третья система рекомендуется к применению в случаях необходимости увеличения этажности полносборных зданий, когда несущая способность конструкций из сборных элементов оказывается недостаточной.

Высокий уровень индустриальности конструкций из монолитного и сборно-монолитного бетона обеспечивается путем применения комплексной технологии возведения зданий. Для этого необходимы: создание унифицированной инвентарной оснастки, рассчитанной на вариантное проектирование зданий; обеспечение строительства средствами для приготовления, транспортирования, подачи и распределения бетонной смеси, организация производства укрупненных арматурных сеток и каркасов; применение пластифицирующих добавок и ускорителей твердения бетона.

В зависимости от архитектурного, конструктивного и технологического решений зданий и материально-технической базы строительства применяются различные варианты конструктивных элементов:

- наружные стены - монолитные однослойные с использованием различных видов пористых заполнителей; сборно-монолитные с утеплением снаружи и внутри;

сборные, из штучных материалов,

- внутренние стены - монолитные;

- перекрытия - монолитные, сборно-монолитные, сборные.

Недостатками монолитного домостроения является относительно большая трудоемкость возведения конструкций, т.к. в отличие от крупнопанельного, индустриальное монолитное строительство предполагает максимальную концентрацию затрат труда на строительной площадке, более высокая стоимость по сравнению с изделиями заводского изготовления при существующей системе ценообразования.

Методами монолитного домостроения являются:

- в скользящей опалубке;

- в переставной крупнощитовой опалубке;

- в переставной блочной опалубке;

- в объемно-переставной опалубке.

Существенным достоинством монолитного метода возведения является:

- меньшие капитальные вложения в производственную базу (30-40%);

- меньший расход стали и энергетических затрат (на 10-20%).

Местами рационального применения монолитного домостроения могут быть:

- объекты подземного пространства для нужд городского хозяйства;

- устройство цельномонолитных гражданских и производственных зданий, которые по своему назначению не могут быть выполнены из стандартных сборных железобетонных конструкций;

- устройство «столов» для панельных зданий, располагаемых на магистралях города, которые позволяют получать современные решения магазинов и других крупных предприятий обслуживания населения;

- возведение сборно-монолитных конструкций многоэтажных зданий каркасных или панельных с монолитными ядрами жесткости;

- устройство монолитных плоских безбалочных перекрытий под тяжелые нагрузки, необходимые для овоще- и фруктохранилищ, холодильников, мясокомбинатов и т.д.;

- устройство фундаментных плит и опор для больших нагрузок от наземной части здания;

- изготовление отдельных нестандартных элементов общественных и производственных зданий - опорных конструкций, порталов, перекрытий, амфитеатров, балконов и др;

- устройство большепролетных конструкций;

- устройство малых архитектурных форм, элементов внешнего благоустройства;

- реконструкция существующих зданий - жилых, общественных, производственных.

Конструктивные системы зданий из монолитного железобетона разделяются на:

- монолитные здания с несущими внутренними стенами;

- монолитные здания с несущими наружными и внутренними стенами;

- монолитные здания с каркасной системой конструкций;

- сборно-монолитные каркасные конструкции с пространственными ядрами жесткости;

- сборно-монолитные крупнопанельные системы;

- система из монолитного железобетона с использованием легкого бетона на пористых заполнителях.

Широкие перспективы открывает применение для многоэтажного строительства сборно-монолитных каркасных конструкций с пространственными ядрами жесткости, выполняемыми в монолитном железобетоне. Эти конструктивные системы позволяют возводить здания с усложненной конфигурацией в плане и разнообразными объемно-планировочными решениями. Подобные конструктивные системы позволяют снизить по сравнению с обычными сборными конструкциями технико-экономические показатели, приведенные к одному метру площади: трудоемкость- 10-15%, капитальные вложения на возведение конструкций - до 15%, расход стали" - до 30%, цемента - до 10%.

Скорость возведения ядра составляет 3-4 метра в сутки. Все несущие конструкции, кроме ядра жесткости, а также ограждающие элементы и элементы «начинки» дома осуществляются в сборных железобетонных, керамзитобетонных и гипсобетонных конструкциях из унифицированных изделий.

Другим эффективным направлением в строительстве многоэтажных зданий является применение сборно-монолитной крупнопанельной системы, обеспечивающее возведение зданий свыше 25 этажей, благодаря сочетанию панельной системы с монолитным ядром жесткости, которое воспринимает все горизонтальные нагрузки, действующие на здание, «освобождая» панели для работы только на вертикальные нагрузка. Разновидностью такой системы является выполнение ядра жесткости в сборно-монолитном железобетоне, где монолитный бетон укладывается между типовыми сборными панелями.

Рациональной областью применения монолитного железобетона являются конструкции перекрытий под большие нагрузки - безбалочные перекрытия, возведение таких перекрытий методом подъема обеспечивает значительные достоинства:

- возможность создания разнообразных обьемно-планировочных решений;

- комплексная механизация процессов возведения зданий;

- возможность обеспечения выполнения значительной части работ на уровне земли;

- возможность исключить опалубочные и упростить арматурные работы;

- автоматический режим подъема перекрытий или этажей до заданной отметки;

- возможность производства работ в условиях ограниченной строительной площадки;

- возможность снижения трудоемкости возведения зданий. Значительные перспективы расширения возможностей применения монолитного железобетона в строительстве обеспечит решение ряда вопросов:

- производство работ в зимнее время;

- система инвентарной опалубки и оснастки.

В настоящее время разработаны несколько индустриальных систем инвентарной опалубки и оснастки для возведения различных по функциональному назначению и архитектурному решению жилых и массовых общественных зданий. Основой системы унифицированных опалубок является набор унифицированных щитов, крупно и мелко размерных по ширине и по высоте.

В крупнощитовой опалубке могут формироваться наружные и внутренние стены, в этом случае перекрытия, как правило, сборные или сборно-монолитные. В случае формования внутренних стен и перекрытий, чаще всего для наружных стен применяются сборные панели.

Крупные щиты могут собираться в объемные элементы, которые бывают двух типов:

- блочная опалубка, извлекаемая после формования вверх;

- обьемно-переставная (тоннельная), извлекаемая после формования в сторону фасада.

В первом типе используются сборные или сборно-монолитные перекрытия, во втором - сборные панели наружных стен.

Достоинством крупноблочной опалубки при применении в архитектурно-планировочных решениях с ограниченным числом г повторяющихся объемно-пространственных элементов является сокращение продолжительности и трудоемкости опалубочных работ по сравнению с использованием крупнощитовой опалубки на захватке. К тому же этот тип опалубки обеспечивает меньшую оборачиваемость в течение года по сравнению с крупнощитовой.

Применение объемно-пространственной (тоннельной) опалубки практикуется при четком построении протяженных домов с поперечными несущими стенами, при этом есть возможность сочетания монолитного бетона внутренних конструкций с навесными панелями, при ограниченном числе пролетов между поперечными стенами, обеспечивается некоторая экономия трудовых затрат на изготовление внутренних стен и перекрытий, но сравнению с сочетанием крупнощитовой опалубки для стен и столовой опалубки для перекрытий.

По данным ЦНИИПИ «Монолит» монолитные здания высотой 9 этажей в расчете на 1 млн.м2 общей площади обеспечивают по сравнению с крупнопанельными снижение:

- капитальных вложений в организацию производственной базы домостроения на 34%;

- сметной стоимости строительства - 5%;

- заводской трудоемкости - 47%;

- расход цемента марки 400 - 4%;

- расход энергоресурсов на возведение зданий и исходные материалы и конструкции - 27%.

1.5. ЖИЛЫЕ ЗДАНИЯ ИЗ КИРПИЧА И КЕРАМИЧЕСКИХ КАМНЕЙ

Массовое строительство зданий со стенами из кирпича на современном техническом уровне его производства и прочностных характеристик возможно при возведении домов высотой не более 12 этажей.

Строительство кирпичных домов большой этажности нецелесообразно из-за чрезмерного утяжеления несущих стен особенно на II этапе энергосбережения.

В строительстве кирпичных домов имеются существенные резервы технического совершенствования конструктивных решений при применении кирпича повышенной прочности (марки М200, М250 и М300). Увеличение прочностных характеристик кирпичных стен позволяет повысить границу рациональной этажности таких зданий, а также сократить массу несущих стен на 10-30%.

Применение индустриальных конструкций стен в зданиях из кирпича и мелких блоков (несущих внутренних стен из панелей. Отформованных из высокомарочного кирпича, наружных - из эффективных керамических камней или легких небетонных материалов) обеспечивает возможность доведения кирпичного строительства до уровня панельного по основным показателям при большей архитектурно-пространственной маневренности и выразительности. Применение таких индустриальных конструкций кирпичных стен должно стать генеральным направлением совершенствования этой строительной системы.

1.6. СИСТЕМЫ НАВЕСНЫХ (НЕНЕСУЩИХ) ВНЕШНИХ ОГРАЖДАЮЩИХ КОНСТРУКЦИЙ

Системы внешних ограждающих конструкций подразделяют на:

- кирпичные (эффективная кирпичная кладка);

- блочные легкобетонные;

- железобетонные трехслойные сборные и монолитные;

- монолитные железобетонные с утеплением снаружи;

- легкометаллические;

- тонколистовые слоистые сборные;

- комбинированные.

Системы могут иметь различные виды отделки фасадных поверхностей.

Навесные внешние ограждающие конструкции применяются практически во всех видах несущих систем, кроме систем с несущими наружными стенами и, в том числе, в каркасных, монолитных, панельных, безригельных.

Ориентировочные стоимостные показатели различных видов стен приведены в таблице 1.5.

Таблица 1.5

№№ пп

Варианты наружных стен

Стоимость 1 кв.м стены без учета стоимости оконных и дверных ограждений, в руб. 1998г.

1

2

3

1.

При «открытых» фасадах

Сборные навесные однослойные керамзитобетонные панели

426

2.*

Сборные навесные трехслойные панели тяжелого бетона с гибкими связями из нержавеющей стали и утеплителем ПСБ

592

3.

Сборные навесные трехслойные панели из тяжелого бетона со связями в виде пшонок и утеплителем ПСБ

585

4.

Сборные навесные трехслойные панели из тяжелого бетона с гибкими связями из нержавеющей стали и утеплителем из минеральной ваты

639

5.

Сборные навесные трехслойные панели с внутренним слоем из тяжелого бетона и наружного слоя из легкого бетона с гибкими связями и утеплителем ПСБ

750

6.

Сборные навесные трехслойные панели с внутренним слоем из тяжелого бетона тонким наружным слоем из искусственного камня с гибкими связями и утеплителем ПСБ

924

7.*

Сборные навесные многослойные легкометаллические панели с наружной отделкой

 

 

- штукатурка до пластмассовой сетке

450

 

- окрашенный алюминиевый лист

511

 

- естественный камень на относе

817

8.*

Навесные кирпичные из эффективной кладки с утеплителем внутри кладки ПСБ с расшивкой швов и штукатуркой (обшивкой) изнутри

205

9.

Навесные из легких штучных материалов типа газобетонных блоков с утеплителем внутри кладки или без него, со штукатуркой фасадов и изнутри

273

10.*

Навесные кирпичные или из штучных материалов с утеплителем внутри кладки со штукатуркой (облицовкой) изнутри и отделкой фасадных поверхностей

 

- цветное стекло

280

- плитка керамическая

375

- листовой крашеный алюминий

420

- камень на относе

820

- штукатурка по пластмассовой сетке

210

11.

При «закрытых» фасадах

Сборные навесные слоистые легкометаллические панели с отделкой фасадных поверхностей

 

- штукатурка по пластмассовой сетке

460

- листовой крашеный алюминий

520

12.*

Навесная кирпичная кладка с утеплителем из минеральной ваты и расшивкой швов

225

13.*

Навесной плитный утеплитель (минеральная вата) по бетону с отделкой фасадных поверхностей

 

- цветное стекло

245

- листовой крашенный алюминий

420

- камень на относе

800

-штукатурка по пластмассовой сетке

270

14.

Трехслойная монолитная стена с утеплителем -средний слой ПСВ и гибкими связями

490

15.*

При "полузакрытых" фасадах

Навесной штучный материал со штукатуркой изнутри и отделкой фасадной поверхности

 

- цветное стекло

250

- листовой крашенный алюминий

490

- камень на относе

800

- штукатурка по пластмассовой сетке

290

ПРИМЕЧАНИЯ:

1. «Открытые» фасады - фасады не имеющие железобетонных стен. Применяются в здания до 18 этажей. «Закрытые» фасады - фасады с наружными монолитными железобетонными несущими стенами. Применяются в зданиях 18-40 этажей.

«Полузакрытые» фасады - фасады, имеющие участки монолитных несущих стен. Применяются в зданиях 14-30 этажей.

2. Стоимостные показатели - ориентировочные с использованием данных завода «Бекерон», завода «Мосмек» в г. Видное и конфиденциальных данных строительных фирм, работающих вне городского заказа.

3. Представленные стоимостные показатели относятся к стенам, имеющим раз. личное сопротивление теплопередаче.

4. Наиболее эффективные и технологичные решения стен отмечены *.

В последнее время развивается производство нового отечественного конструкционного материала - полистиролбетона, имеющего высокие технико-экономические и теплофизические показатели. Особенно эффективно его применение в навесных наружных стенах в виде кладки из блоков, укладываемых на специальные клеи.

Сопоставление стоимости навесных стен из полистиролбетонных блоков и навесной эффективной кирпичной кладки приведено в таблице 1.6.

СРАВНИТЕЛЬНЫЕ ТЕХНИКО-ЭКОНОМИЧЕСКИЕ ПОКАЗАТЕЛИ СТРОИТЕЛЬСТВА НАРУЖНЫХ СТЕН ИЗ ПОЛИСТИРОЛБЕТОННЫХ ЭЛЕМЕНТОВ

Изменение №3 СНиП II-3-79* на примере Московского региона.

Второй этап внедрения R0 = 3,01 м2 С/Вт

цены январь 99г. Таблица 1.6

Строительная система

Ненесущие стены (без ограничения этажности)

Показатели

Система ЮНИКОН (сплошные блоки)

Эффективная кирпичная кладка

Характеристика конструкции стены

1. Штукатурка по стене

1. Штукатурка по сетке

1. Лицевой кирпич 120 мм

1. Кирпич 250 мм в т.ч. лицевой 120 мм

2. Сплошные ПСБ блоки 300 мм плотностью 250 кг/м3

2. Сплошные ПСБ блоки 375 мм плотностью 350 кг/м3

2. Сплошные ПСБ блоки 300 мм плотностью 250 кг/м3

2. Утеплитель ПСВ 150 мм

3. Штукатурка по сетке

3. Штукатурка по сетке

3. Штукатурка по сетке

3. Кирпич 120 мм

 

 

 

4. Штукатурка

Стоимость (в руб. без НДС):

2 стены

395

458

454

644

%

100

115

114

163

Затраты труда рабочих, чел.-час.

2,8

2,8

2,33

6,51

%

120

120

100

279

ПСВ - полистирольные плиты ПСБ - полистиролбетонные блоки

ГЛАВА 2.

МЕТОДИЧЕСКИЕ ПОЛОЖЕНИЯ АНАЛИЗА И ВЫБОРА СТРОИТЕЛЬНО-КОНСТРУКТИВНЫХ СИСТЕМ ЖИЛЫХ ДОМОВ

Методические положения распространяются на анализ различных конструктивных систем жилых домов и предназначены для обеспечения единого методического подхода к оценке конструктивных систем, порядка определения технико-экономических показателей и условий сопоставимости.

В качестве исходной базы для анализа принимаются технические решения конструктивных систем, применяемые в типовых проектах и в проектах повторного применения, предназначенных для массового жилищного строительства, а также намечаемые для перспективного строительства.

Технико-экономический анализ различных конструктивных систем представляет собой экономическую работу, охватывающую следующие основные вопросы:

- выбор критерия и метода оценки;

- выбор эталона (аналога) и соблюдение условий сопоставимости;

- определение системы технико-экономических показателей;

- определение расчетных единиц измерения показателей.

Настоящая оценка не учитывает следующие условия строительства: инженерную геологию, состояние и перспективы развития производственно-технической базы объем и структуру строительства, условия ценообразования.

Технико-экономический анализ последовательно включает в себя следующие этапы:

- типологическая характеристика зданий, определяемая назначением здания, со ставом помещений квартир в блок-секциях, числом блок-секций, и т.д.;

- объемно-планировочная характеристика жилых зданий, включающая информацию об этажности, планировочном типе (коридорный, секционный и т.п.), числе квартир; числе секций; общей и жилой площади; площади застройки; площади летних помещений; площади внеквартирных коммуникаций; общей площади этажа, приходящейся на один лестнично-лифтовой узел; наличии встроенных в жилой дом нежилых помещений и др.;

- конструктивная характеристика, определяемая строительной системой (каркасной, крупнопанельной, блочной, монолитной, кирпичной, смешанной и т.д.); конструктивной схемой здания - с поперечными или продольными несущими стенами; шагами и пролетами основных несущих конструкций; конструктивным решением и материалом основных несущих и ограждающих конструкций;

- характеристика отделки фасадов, определяемая видом отделки фасадов; внутренней отделкой стен и перегородок, наличием художественного декора, типом подов и др.;

- характеристика инженерного оборудования здания, информирующая о типе систем водоснабжения, канализации, отопления и вентиляции; наличии лифтов и мусоропроводов, установок кондиционирования воздуха и др.

Анализ строительных систем производится при обеспечении условий сопоставимости сравниваемых вариантов по объемно-планировочным решениям домов, для чего используются проекты, имеющие близкие объемно-планировочные решения, этажность, количество и состав квартир, конфигурацию плана здания, средние общие площади квартир и т.д. В случаях отсутствия проектов зданий с близкими или сопоставимыми объемно-планировочными решениями используются усредненные удельные значения по конструктивным элементам, т.е. количество единиц измерения конструктивного элемента, приходящееся на один квадратный метр общей площади. При этом затраты по сравниваемым строительно-конструктивным системам определяются как произведение затрат на единицу измерения конструктивного элемента и его удельного значения.

Обязательным условием сравниваемости является единство назначения, условий строительства.

Вторым по значимости является единство норм проектирования, применяемых при разработке вариантов. Кроме того, должно быть обеспечено условие сопоставимости показателей;

- по времени осуществления затрат и получения результатов;

- по методологии определения технико-экономических показателей;

- по кругу включаемых затрат;

- по ценам, принятым для расчета;

- по достоверности расчетных показателей;

- по единству методологии проведения технико-экономического сравнения.

Важным условием является требование одинаковой степени готовности вариантов.

Анализ конструктивных систем должен проводится по следующим показателям:

- стоимостные показатели;

- показатели потребности в основных строительных материалах;

- показатели затрат труда;

- показатели продолжительности строительства;

- эксплуатационные затраты.

В качестве основного показателя принимается показатель сметной стоимости. Вместе с тем, в зависимости от целей отдельных сравнений, в качестве критерия могут быть приняты и другие перечисленные показатели.

Показатели сметной, стоимости строительства жилых домов включают в себя:

- общую сметную стоимость строительства,

в том числе:

- стоимость общестроительных работ;

- стоимость санитарно-технических работ;

- стоимость электроосвещения;

- стоимость слаботочных устройств;

- стоимость оборудования и монтажа пассажирских лифтов;

- стоимость прочих работ.

Показатели сметной стоимости определяются: на здание в целом, в расчете на один метр квадратный общей площади; на одну квартиру; на одного человека.

Определение стоимости строительных работ осуществляется отдельно по конструктивным элементам и видам работ:

- земляные работы;

- фундаменты и стены подвала;

- каркас;

- стены наружные;

- стены внутренние;

-перекрытия и покрытия;

- перегородки;

- лестницы;

- окна;

- двери;

- полы;

- кровля;

- внутренняя отделка;

- наружная отделка;

- разные работы.

Определение затрат по внутренним инженерным сетям осуществляется по разделам:

- санитарно-технические работы;

- электрооборудование и электроосвещение;

- сети связи;

- КИП и автоматика;

- слаботочные устройства.

Показатели стоимости строительно-монтажных работ по зданию в целом определяются как сумма затрат по элементам, изменяемым в зависимости от строительной системы, и неизменяемым элементам, а также накладных расходов и лимитированных затрат. К изменяемым конструктивным элементам относятся:

- подземная часть здания: - наружные стены;

- внутренние стены;

- фундаменты;

- надземная часть здания: -  наружные стены, включая наружную и внутреннюю отделки;

- внутренние стены;

-  перекрытия, с учетом перекрытия над технически! подпольем;

- перегородки;

-  элементы крыши, с учетом перекрытия над верхних этажом;

- доборные элементы бетонные и железобетонные, включая лестничные марши и площадки, плита лоджий и балконов, стенки лоджий, элементы входа.

Технико-экономические показатели по изменяемым конструктивным элемента» и видам работ определяются на соответствующую расчетную единицу конструктивного элемента: - по элементам надземной части и стенам подземной части - 1м2 конструкций;

- по остальным элементам подземной части и доборным элементам надземное части на 1 м2 конструкций.

Расчетными единицами измерения при опенке отдельных конструктивных элементов являются:

- стены наружные и внутренние     1 м2 поверхности за вычетом проемов;

- перекрытия                                      1 м2 поверхности;

- перегородки                                    1 м2 поверхности за вычетом проемов;

- крыши и покрытия                         1 м2 площади горизонтальной проекции;

- лестничные марши и площадки    1 м2 горизонтальной проекции;

- окна двери                                       1 м2 площади проема, измеренного по наружному обводу коробок.

Все технико-экономические показатели по изменяемым конструктивным элементам и видам работ относятся на один квадратный метр общей площади.

К неизменяемым или условно-постоянным конструктивным элементам и видам работ относятся:

- по подземной части - земляные работы;

- внутренние отделочные работы;

- полы технического подполья;

- по надземной части - общестроительные работы (полы, внутренние отделочные работы, не учтенные в составе изменяемых элементов (обои, окраска, облицовка плиткой и др.; встроенная мебель, мусоропровод, кровля, двери, дополнительный вертикальный транспорт, разные работы);

- санитарно-технические работы;

- электротехнические работы;

- слаботочные устройства;

- лифты.

Следующей группой показателей, по которой осуществляется технико-экономический анализ конструктивных систем являются показатели затрат труда, включающие затраты труда на строительной площадке; на транспортировке; в заводских условиях и суммарные затраты труда.

Трудоемкость строительной продукции определяется затратами рабочего времени на производство единицы продукции по формуле:

, где                                                           (2.1)

t - отработанное время в чел.-часах или чел.-днях;

Vнат - объем продукции в натуральном выражении, произведенной за это время.

Трудоемкость исчисляется на единицу конечной продукции, единицу измерения конструкции, на 1 м2 общей площади.

Заводская трудоемкость определяется по всем изменяемым конструктивным элементам на основе проектных данных заводов, при этом учитываются затраты труда рабочих основного и вспомогательного производства. Построечная трудоемкость принимается по СНиП на основе смет к проектам рассматриваемых систем.

Принимая во внимание, что производительность труда на заводе обычно значительно выше, чем на строительной площадке, основной задачей индустриализации строительства является снижение затрат труда на стройплощадке и превращение ее в «сборочный цех» или в высокомеханизированный комплекс.

Расчет заводских затрат на изготовление сборных конструкций, приготовление бетона и раствора; изготовление товарной арматуры, закладных деталей по каждому конструктивному элементу и крупному виду работ, где используются отдельные виды вышеуказанной продукции, выпускаемой предприятиями промышленности строительных материалов, конструкций и деталей, определяется суммой произведений затрат труда на изготовление сборных конструкций и изделий по i-му конструктивному элементу, удельных затрат труда на единицу измерения учитываемой продукции число видов конструкций и изделий при выполнении i-го конструктивного элемента.

Удельные заводские затраты труда в расчете на единицу измерения конструктивного элемента определяются делением общих заводских затрат труда на изготовление сборных конструкций i-го вида на объем его изготовления.

В качестве справочного материала для некоторых случаев экспресс оценки приводятся показатели затрат труда на производство сборных железобетонных изделий для жилищного строительства, в которых учтены затраты труда по всем переделам заводского производства по основным и вспомогательным цехам заводов при производстве изделий следующих видов (чел. ч)*, таблица 2.1.

Таблица 2.1

№№

пп

Виды изделий

Единица измерения

Удельная трудоемкость на единицу продукции в чел.ч

1.

Наружные стеновые панели

м2

2,2

2.

Покрытия

м2

1,8

3.

Внутренние стены

м2

1,2

4.

Перекрытия

м2

0,6

5.

Доборные изделия

м2

0,9

6.

Плиты пустотного настила

м2

0,8

7.

Элементы каркаса

м2

6,0

8.

Товарный бетон

м2

0,4

9.

Товарная арматура

т

35

10.

Закладные детали

т

40

*См. Ю.С. Остринский. Технико-экономическая оценка результатов экспериментального строительства жилых зданий. М. Стройиздат. 1980, с. 33-34.

Затраты труда на производство других материалов и изделий в заводских условиях в человеко-часах на единицу измерения могут быть приняты в соответствии с таблицей 2.2

Таблица 2.2

№№

пп

Виды материалов и изделий

Единица измерения

Удельная трудоемкость на единицу продукции в чел.ч

1.

Глиняный обыкновенный кирпич

1000 шт.

12,5

2.

Керамический лицевой кирпич

1000 шт.

15,7

3.

Камни керамические кладочные

1000 шт.

28,7

4.

Оконные блоки с двойным остеклением

2 блока

2,5

5.

Внутренние щитовые двери

2 площади двери

1,0

6.

Балконные двери

2 блока

3,1

7.

Наружные двери

2 блока

1,7

Общие затраты труда определяются суммой затрат труда на строительной площадке, определяемых по сметным нормативам и заводских затрат труда.

Комплексный подход к технико-экономическому анализу конструктивных систем помимо сопоставления сметной стоимости и сметных затрат труда предполагает и в расходе основных строительных материалов, изделий и конструкций, тем более, что на базе учета-материалоемкости, производится расчет удельных капитальных вложений с целью включения их в состав приведенных затрат.

Затраты основных видов материальных ресурсов чаще всего определяются по следующей номенклатуре:

1. Бетон и железобетон, м3:

- монолитный (по маркам, классам);

- сборный (по маркам, классам);

в том числе: тяжелый;

легкий;

ячеистый (автоклавный).

2. Сталь (в натуральном исчислении и приведенная к стали класса А-1):

- общий расход на конструкции, кг;

в том числе, на изготовление сборных изделий, кг.

3. Цемент (приведенный к марке М-400);

- общий расход, кг;

в том числе, на изготовление сборных изделий, кг.

4. Кирпич, тыс-шт.

5. Лесоматериалы (в переводе на круглый лес), м3.

6. Эффективные термоизоляционные материалы (с указанием их объемной массы), м3.

Определение потребности в исходных сырьевых материалах производится на основе сметных норм СНиП, а в части расхода материалов на продукцию предприятий сборного железобетона - типовых норм Госстроя РФ по расходу цемента.

Расчет расхода основных строительных материалов, основных конструктивных элементов осуществляется суммированием затрат данного вида конструкций, изделий и материалов, при выполнении определенного вида; работ для конкретного конструктивного элемента.

Расход основных видов строительных материалов на единицу измерения конструктивного элемента и основного вида работ определяется делением общего расхода ресурсов в разрезе основных конструктивных элементов на объем, применения этих элементов.

Потребность в основных строительных материалах определяется на основании рабочей документации и приводится:

- в спецификациях - потребность в конструкциях и изделиях;

- в ведомостях потребности в материалах - потребность в материалах на производство строительно-монтажных работ и на изготовление конструкций и изделий;

- в ведомости металлоконструкций по видам профилей и в ведомостях металлоконструкций по маркам металла - потребность в материалах на изготовление металлических конструкций по рабочим чертежам основного комплекта марки КМ;

- в ведомости объемов сборных бетонных и железобетонных конструкций по рабочим чертежам основного комплекта марки КЖ - потребность в бетонных и железобетонных конструкциях и изделиях по укрупненной номенклатуре;

- в сводной ведомости потребности в материалах - потребность в материалах здание и сооружение.

Ведомость потребности в материалах (ВМ), а также спецификации и другие ведомости, разрабатываются по чертежам, входящим в следующие основные комплекты рабочих чертежей зданий и сооружений: архитектурные решения (АР); конструкции железобетонные (КЖ); конструкции металлические (КМ); конструкции деревянные (КД); архитектурно-строительные решения (АС); интерьеры (АИ); внутренний водопровод и канализация (ВК); отопление и кондиционирование воздуха (ОВ); наружные сети водоснабжения и канализации (НВК); тепловые сети (ТС); антикоррозийная защита конструкций (АЗ); генеральный план и транспорт (ГТ); газоснабжение (ГС); электроснабжение (ЭС).

В основном комплекте рабочих чертежей марки КЖ потребность в стали стержневой арматурной на изготовление железобетонных конструкций, а также стали сортовой конструкционной и в листовом прокате на изготовление закладных и комплектующих деталей определяется в ведомостях потребности в материалах раздельно на изготовление сборных и монолитных железобетонных и бетонных конструкций. В данные о потребности в ВМ приводятся с учетом коэффициентов отходов.

В ВМ для сборного железобетона потребность в стали стержневой арматурной определяется по классам с подведением итогов по каждому классу, а также по диаметрам. Итоги по классам стали определяются для типовых и стандартных конструкций на основании действующих индустриальных каталогов, а для индивидуальных конструкций и изделий по соответствующим строкам ВМ. Далее определяется общая потребность в стали стержневой арматурной.

Потребность в стали сортовой конструкционной и в листовом прокате определяется в стали класса С 38/23 и подсчитывается на основании действующих индустриальных каталогов. Кроме того, здесь же учитывается потребность в стали для закладных деталей на конструкции и изделия.

Далее устанавливается общая потребность в стали в натуральной массе на изготовление железобетонных конструкций, в том числе указывается потребность в укрупненных видах сортамента: сталь среднесортная; сталь мелкосортная (без обручной); катанка; сталь толстолистовая (от 4 мм); сталь тонколистовая толщиной 1,9-3,9 мм; сталь тонколистовая толщиной 1-1,8 мм.

Затем определяется потребность в проволоке и сетке для армирования по классам, а также в стальных канатах для армирования строительных конструкций с подведением итога - "Итого металлоизделий промышленного назначения".

В ВМ определяется потребность в сортовом прокате стали обыкновенного качества и металлоизделиях промышленного назначения для армирования железобетонных конструкций, приведенной к стали класса А-1, и потребность в стали сортовой конструкционной и листовом прокате, приведенной к стали класса С 38/23 с учетом соответствующих коэффициентов, приведенных в следующих таблицах:

Таблица 2.3

Коэффициенты, учитывающие приведение по массе сталей различных классов, эффективных видов проката и экономичных профилей к стали класса С 38/23

№№

пп

Эффективные классы стали, экономичные виды профилей проката

коэффициенты приведения к стали класса С 38/23

1.

Прокат из стали высокопрочной низколегированной с пределом текучести 45-60 кг/мм2 (С 60/45 и С 70/60)

1,55

2.

Прокат из стали низколегированной общего назначения с пределом текучести 33-40 кг/мм2 (С 46/33 и С 52/40)

1,25

3.

Прокат из стали упроченной углеродистой с пределом текучести 30 кг/мм2 (С 44/29)

1,13

4.

Балки широкополочные двутавровые

1,07

5.

Профили гнутые открытые

1,14

6.

Профили гнутые замкнутые

1,69

7.

Настил профилированный

1,0

8.

Отходы при изготовлении стальных конструкций в прочих изделий

1,037

9.

Отходы стали сортовой и листовой для закладных деталей

1,01

Таблица 2.4

Коэффициенты, учитывающие приведение по массе различных классов стали к классу А-1 и отходы при изготовлении арматуры и закладных деталей для железобетонных конструкций

№№

пп

Класс стали

Коэффициент приведения к стали класса А-1

Коэффициент отходов

1

2

3

4

1.

А-I

1

1,01

2.

А-II

1,21

1,01

3.

А-III

1,43

1,01

4.

А-III со знаком качества, Ат-III

1,49

1,01

5.

А-IV

1,95

1,02

6.

Ат-IV

1,95

1,06

7.

А-V

2.2

1,02

8.

Ат-V

2.2

1,06

9.

Ат-VI

2,4

1,06

10.

Ат-VII, Атк

2,8

1,06

11.

Проволока стальная низкоуглеродистая обыкновенного качества для железобетона В-1

1,39

1,02

12.

Сетка стальная сварная арматурная В-1

1,39

1,01

13.

Проволока стальная низкоуглеродистая периодического профиля Вр-1

1,47

1,02

14.

Проволока стальная высокопрочная для железобетона В-II, Вр-II; пряди и канаты из стальной высокопрочной проволоки для армирования

2,8

1,05

Потребность в цементе на изготовление бетонных и железобетонных конструкций и изделий определяется по нормам расхода портландцемента раздельно в рекомендуемых марках М300, М400, М500, М600 и приведенной к марке М400. При определении объемов бетона и раствора по рабочим чертежам дополнительно учитываются потери цемента, исчисляемые от общего его расхода.

- 1,5% - при возведении армированных и неармированных монолитных конструкций;

- 0,6% - при изготовлении сборных конструкций.

При определении объемов бетона и растворов по сметным нормам, указами дополнительный расход цемента не учитывается.

Определение расхода цемента в пересчете на цемент марки М 400 осуществляется с помощью коэффициентов, представленных в таблице 2.5.

Таблица 2.5

Коэффициенты перевода расхода цемента различных марок к расходу цемента марки М400

Марка цемента

Коэффициент перевода

Марка цемента

Коэффициент перевода

100

0,7

500

1,1

200

0.8

600

1,2

300

0,9

700

1,3

400

1,0

800

1,4

Усредненные нормы расхода портландцемента рекомендуемых марок в тот на 1 м3 тяжелых бетонов в конструкциях и деталях приводятся в таблице 2.6.

Таблица 2.6.

Конструкции и детали

Марка бетона

Расход портландцемента, рекомендуемых марок, т

300

400

500

600

1

2

3

4

5

6

Конструкции монолитные неармированные

 

 

 

 

 

Конструктивные элементы зданий и сооружений (кроме подземных и гидротехнических; безрельсовых дорог и аэродромов)

100

0,176

-

-

-

150

0,209

-

-

-

200

-

0,224

-

-

250

-

0,256

-

-

300

-

0,304

-

-

Конструктивные элементы подземных сооружений

100

0,181

-

-

-

150

0,228

-

-

-

200

-

0,247

-

-

250

-

0,290

-

-

300

-

0,334

-

-

350

-

-

0,337

-

400

-

-

0,375

-

450

-

-

0,418

-

500

-

-

-

0,413

Бетоны монолитные для заделки стыков и рвов сборных конструкций

200

-

0,345

-

-

250

-

0,385

-

-

300

-

0,440

-

-

350

-

-

0,45

-

400

-

-

0,52

-

Конструкции монолитные армированные

Конструктивные элементы зданий и сооружений (кроме подземных и гидротехнических, безрельсовых дорог и аэродромов):

 

 

 

 

 

- с линейными размерами сечений 1000 мм и более, ростверки по сваям и плиты толщиной 500 мм и более

100

0,215

-

-

-

150

0,224

-

-

-

200

-

0,237

-

-

250

-

0,280

-

-

300

-

0,318

-

-

- с линейными размерами сечения от 300 до 1000 мм, плиты и стены толщиной от 200 до 500 мм

100

0,215

-

-

-

150

0,243

-

-

-

200

-

0,261

-

-

250

-

0,308

-

-

300

-

0,348

-

-

350

-

-

0,356

-

400

-

-

0,4

-

с линейными размерами сечений менее 300 мм, плиты и стены толщиной менее 200 мм

100

0,215

-

-

-

150

0,268

-

-

-

200

-

0,286

-

-

конструкции с содержанием арматуры более 1%

250

-

0,343

-

.

300

-

0,386

-

-

350

-

-

0,395

-

400

-

-

0,443

-

450

-

-

0,492

-

500

-

-

-

0,480

Конструкции и детали сборные неармированные

Блоки оснований, фундаментов, опор мостов, путепроводов, золошлакопроводов

 

 

 

 

 

100

0,210

-

-

-

150

0,250

-

-

-

200

-

0,260

-

-

250

-

0,290

-

-

300

-

0,330

-

-

350

-

-

0,325

-

400

-

-

0,360

-

Блоки стеновые крупные (включая блоки стен подвала)

100

0,210

-

-

-

150

0,250

-

-

-

200

-

0,260

-

-

250

-

0,290

-

-

300

-

0,330

-

-

350

-

-

0,325

-

400

-

-

0,360

-

Плиты покрытия дорожек и тротуаров, камни бордюрные

200

-

0,310

-

-

250

-

-

0,310

-

300

-

-

0,365

-

350

-

-

0,400

-

400

-

-

0,495

-

Ступени мозаичные, блоки мусоропроводов, элементы оград

150

0,290

-

-

-

200

-

0,295

-

-

250

-

0,335

-

-

300

-

0,385

-

-

350

-

-

0,380

-

400

-

-

0,420

-

Конструкции и детали сборные железобетонные

Конструкции и детали фундаментов:

- конструкции и детали фундаментов (кроме свай) с обычным армированием

 

 

 

 

 

 

 

 

 

 

100

0,210

-

-

-

150

0,250

-

-

-

200

-

0,260

-

-

250

-

0,290

-

-

300

-

0,330

-

-

350

-

-

0,325

-

400

-

-

0,360

-

- сваи преднапряженные

200

-

0,325

-

-

250

-

-

0,355

-

300

-

-

0,380

-

350

-

-

0,435

-

400

-

-

0,505

-

450

-

-

0,555

-

500

-

-

-

0,540

- сваи обычные с армированием

200

-

0,310

-

-

250

-

0,355

-

-

300

-

-

0,355

-

350

-

-

0,410

-

400

-

-

0,460

-

450

-

-

0,535

-

500

-

-

-

0,520

Конструкции и детали каркаса зданий и сооружений:

- конструкции и детали жилых и общественных зданий

- балки, в том числе фундаментные, ригели, прогоны, перемычки, распорки преднапряженные

 

 

 

 

 

 

 

 

 

 

200

-

0,320

-

-

250

-

0,370

-

-

300

-

-

0,270

-

350

-

-

0,415

-

400

-

-

0,465

-

450

-

-

0,545

-

500

-

-

-

0,525

- балки, в том числе армированные, ригели, прогоны, перемычки, распорки с обычным армированием

200

-

0,290

-

-

250

-

0,330

-

-

300

-

0,385

-

-

350

-

-

0,360

-

400

-

-

0,405

-

- колонны и элементы рам с обычным армированием

200

-

0,315

-

-

250

-

0,360

-

-

300

-

0,410

-

-

350

-

-

0,390

-

400

-

-

0,435

-

450

-

-

0,500

-

500

-

-

-

0,485

Конструкции и детали стен и перегородок

- панели стеновые наружные и внутренние, перегородки преднапряженные горизонтального формования с вибрацией, сплошные

200

-

0,315

-

-

250

-

0,360

-

-

300

-

0,410

-

-

350

-

-

0,390

-

400

-

-

0,435

-

450

-

-

0,500

-

500

-

-

-

0,485

- панели стеновые наружные и внутренние, перегородки преднапряженные горизонтального формования с вибрацией, многопустотные

200

-

0,280

-

-

250

-

0,315

-

-

300

-

0,365

-

-

350

-

-

0,350

-

400

-

-

0,385

-

- панели стеновые наружные и внутренние, перегородки с обычным армированием горизонтального формования с вибрацией, сплошные

150

0,290

-

-

-

200

-

0,295

-

-

250

-

0,335

-

-

300

-

0,385

-

-

350

-

-

0,380

-

400

-

-

0,420

-

- панели стеновые наружные и внутренние перегородки с обычным армированием, изготовляемые в кассетах

150

0,335

-

-

-

200

-

0,350

-

-

250

-

0,395

-

-

300

-

0,450

-

-

блоки стеновые с обычным армированием

100

0,210

-

-

-

150

0,250

-

-

-

200

-

0,260

-

-

250

-

0,290

-

-

300

-

0,330

-

-

350

-

-

0,325

-

400

-

-

0,360

-

Плиты, панели и настилы перекрытий и покрытий - плиты покрытий и перекрытий преднапряженные горизонтального формования с вибрацией, сплошные

200

-

0,315

-

-

250

-

0,360

-

-

300

-

0,410

-

-

350

-

-

0,390

-

400

-

-

0,435

-

450

-

-

0,500

-

500

-

-

-

0,485

- плиты покрытий и перекрытий преднапряженные горизонтального формования с вибрацией, многопустотные

200

-

0,280

-

-

250

-

0,315

-

-

300

-

0,365

-

-

350

-

-

0,350

-

400

-

-

0,385

-

- плиты покрытий и перекрытий с обычным армированием горизонтального формования с вибрацией, сплошные

150

0,290

-

-

-

200

-

0,295

-

-

250

-

0,335

-

-

300

-

0,385

-

-

350

-

-

0,380

-

400

-

-

0,420

-

- плиты покрытий и перекрытий с обычным армированием, изготавливаемые в кассетах

150

0,335

-

-

-

200

-

0,350

-

-

250

-

0,395

-

-

Усредненные нормы портландцемента рекомендуемых марок на 1 м3 легких ячеистых бетонов и строительных растворов в конструкциях и деталях приведены в таблице 2.7.

Таблица 2.7

Наименование конструкций, деталей и растворов

Марка бетона или раствора

Расход портландцемента, т

Рекомендуемых марок

300

400

500

1

2

3

4

5

Конструкции и летали из легких и ячеистых бетонов

Конструкции и детали из легкого цементного бетона (кроме изготовляемых прокатным способом)

 

 

 

 

25

0,150

-

-

35

0,180

-

-

50

-

0,225

-

75

-

0,240

-

100

-

0,265

-

150

-

0,280

-

200

-

0,355

-

250

-

-

0,350

300

-

-

0,390

Конструкции и детали из ячеистого цементного бетона

8

0,135

-

-

12

0,170

-

-

25

-

0,250

-

35

-

0,285

-

50

-

0,305

-

75

-

0,325

-

Конструкции и детали из ячеистого бетона на смешанном вяжущем

8

0,085

-

-

12

0,100

-

-

25

-

0,160

-

35

-

0,175

-

50

-

0,190

-

75

-

0,215

-

Растворы строительные

Растворы цементные:

- для устройства полов и стяжек, для заделки стыков и швов сборных конструкций и раструбов труб

 

 

 

 

 

 

 

 

100

-

0,315

-

150

-

0,485

-

200

-

0,590

-

300

-

-

0,700

- для изоляционных работ и затирки открытых поверхностей после снятия опалубки

100

-

0,325

-

150

-

0,500

-

150

-

0,610

-

300

-

-

0,720

- для фактурных слоев панелей и блоков наружных стен

100

-

0,360

-

150

-

0,415

-

Растворы цементно-известковые для каменных кладок, монтажа панелей и штукатурно-отделочных работ

25

0,105

-

-

50

0,200

-

-

75

0,295

-

-

100

-

0,295

-

150

-

0,455

-

200

-

0,555

-

300

-

-

0,655

Растворы асбестосодержащие для теплоизоляционных работ:

- асбестоцементные

- асбесто-диатомоцементные

- асбозурито-цементные

 

 

 

 

-

1,170

-

-

-

0,670

-

-

-

0,290

-

-

Лесоматериалы в круглом лесе определяются на основе потребности лесоматериалов по соответствующим разделам в ВМ и коэффициентов пересчета лесоматериалов в круглый лес, таблица 2.8 или в пересчете на пиломатериалы таблица 2.9.

Таблица 2.8

Коэффициенты перевода в пиломатериалы

Виды изделий

Коэффициенты

Оконные блоки

1,3

Дверные блоки

1,25

Погонажные столярные изделия (наличники, плинтусы и др.)

1,5

Поручни

5,4

Брусья для полов

1,3

Прочие деревянные изделия (стропилы, перголы, фермы и др.)

1,1

Коэффициенты перевода в круглый лес

Таблица 2.9

Виды лесоматериалов

Единица измерения

Коэффициент

Фанера

3

5,0

ДВП

100м2

2,0

ДСП

3

2,9

Клееные конструкции

3

2,0

Пиломатериалы

3

1,5

Продолжительность строительства

Осуществление технико-экономического анализа по критерию «продолжительность строительства» необходимо при:

- обосновании применения новых конструктивных элементов или укрупненных конструкций;

- обосновании применения конструкций повышенной заводской готовности;

- обосновании внедрения более рациональных методов производства работ и технологических решений;

- обосновании проектного варианта с меньшим объемом строительно-монтажных работ, обеспечивающим снижение трудоемкости;

- обосновании принятия решения о предпочтении выбора между стоимостью и продолжительностью строительства;

- обосновании решения о перспективах использования и развития различных конструктивных систем и в других случаях.

Важность показателя «продолжительность строительства» определяется фактом, что этап «строительство» является наиболее длительным во всем инвестиционном процессе, по сравнению с проектированием и освоением мощностей.

Продолжительность строительства - это период времени, необходимый для производства подготовительных и основных работ до сдачи объекта в эксплуатацию.

В практике строительства различаются фактическая и нормативная продолжительность строительства.

Нормативная продолжительность строительства устанавливается отдельно по типам и видам зданий на основе норм продолжительности строительства, в основу разработки которых положены укрупненные сетевые и линейные графики производства работ по выбранным объемам-представителям, имеющим типовые и наиболее экономичные проектные решения.

Нормативная продолжительность рассчитывается методом «критического пути», по которому все расчеты и графики составляются только по работам и объектам, лимитирующим продолжительность строительства объекта, все остальные работы осуществляются параллельными потоками в этих же пределах продолжительности и строительства.

В настоящее время на территории Российской Федерации действует СНиП 1.04.03-85 «Нормы продолжительности строительства и задела в строительстве предприятий, зданий и сооружений» (Изменение № 4) М. 1990 г. Нормы продолжительности строительства охватывают период от даты начала выполнения внутриплощадочных подготовительных работ до даты ввода объекта в эксплуатацию. Нормы продолжительности строительства предполагают выполнение строительно-монтажных работ основными строительными машинами в две смены, а остальных работ - в среднем в 1,5 смены.

Нормами предусмотрено строительство жилых зданий с техническим подпольем без встроенных и пристроенных нежилых помещений, выполнение всех работ по благоустройству территории, а также устройство всех видов инженерных сетей от зданий до ближайших колодцев внутриквартальной сети.

Продолжительность строительства здания (Э ср), состоящего из участков разной этажности, определяется по строке норм соответствующей конструкции и общей площади квартир всего здания для средней этажности, определяется по формуле:

,                                                            (2.2)

где Sn - площадь застройки отдельного участка;

dзд - площадь застройки всего здания;

Эn - число этажей отдельного участка;

n - порядковый номер отдельного участка.

Продолжительность строительства подземной и надземной частей здания установлена при условии работы одного монтажного крана на каждых четырех секциях протяженного здания, или на здании, состоящем из четырех, или менее секций.

При строительстве жилых зданий, с квартирами, оборудованными по заказам населения, нормативную продолжительность периода отделки здания допускается увеличивать до 50%. При этом общая продолжительность увеличивается на соответствующую величину, но не более одного месяца. В таблице 2.10 приводятся отдельные нормы продолжительности строительства жилых зданий в различных конструктивных системах, различной этажности и с различной общей площадью квартир.

Таблица 2.10

Наименование объекта

Характеристика

Нормы продолжительности строительства, мес.

Общая

В том числе

Подготовительный период

Подземная часть

Надземная часть

Отделка

1

2

3

4

5

6

7

Здание пятиэтажное

Общей площадью квартир, м2

1500

 

 

 

 

 

- крупнопанельное

5

1

1

2

1

- крупноблочное

6

1

1

3

1

- объемно-блочное

3

1

0,5

1

0,5

- монолитное

6

1

1

3

1

- кирпичное и из мелких блоков

6,5

1

1

3

1,5

 

2500

 

 

 

 

 

- крупнопанельное

5,5

1

1

2,5

1

- крупноблочное

6,5

1

1

3,5

1

- объемно-блочное

4

1

1

1,5

0,5

- монолитное

6,5

1

1

3,5

1

- кирпичное и из мелких блоков

7

1

1

3,5

1

4000

 

 

 

 

 

- крупнопанельное ;

6

1

1

3

1

- крупноблочное

7

1

1

4

1

- объемно-блочное

4.5

1

1

2

0,1

- монолитное

7,5

1

1

4,5

1

- кирпичное и из мелких блоков

8

1

1

4,5

1,5

6000

 

 

 

 

 

- крупнопанельное

6,5

1

1

3,5

1

- крупноблочное

8

1

1

5

1

- объемно-блочное

4,5

1

1

2

0,5

- монолитное

8

1

1

5

1

- кирпичное и из мелких блоков

9

1

1

5,5

1,5

Здание девятиэтажное

Общей площадью квартир м2

3000

 

 

 

 

 

- крупнопанельное

5

1

1

2

1

- крупноблочное

6,5

1

1

3,5

1

- каркасно-панельное

1

1

1

4

1

- объемно-блочное

4

1

1

1,5

0,5

- монолитное

7,5

1

1

4,5

1

- кирпичное и из мелких блоков

8

1

1

4,5

1,5

6000

 

 

 

 

 

- крупнопанельное

6.5

1

1

3,5

1

- крупноблочное

8

1

1

4,5

1,5

- каркасно-панельное

9

1

1

6

1

- объемно-блочное

4,5

1

1

2

0,5

- монолитное

9,5

1

1

6

1,5

- кирпичное и из мелких блоков

10

1

1,5

5,5

2

8000

 

 

 

 

 

- крупнопанельное

6,5

1

1

3,5

1

- крупноблочное

8

1

1

4,5

1,5

- каркасно-панельное

9

1

1

6

1

- объемно-блочное

5

1

1

2,5

0,5

- монолитное

10,5

1

1

7

1,5

- кирпичное и из мелких блоков

11

1

1

6,5

2

 

10000

 

 

 

 

 

- крупнопанельное

7

1

1

4

1

- крупноблочное

9

1

1,5

5

1,5

- каркасно-панельное

10

1

1,5

6

1,5

- объемно-блочное

5,5

1

1

3

0,5

- монолитное

11

1

1

7,5

1,5

- кирпичное и из мелких блоков

12

1

1,5

7,5

2

12000

 

 

 

 

 

- крупнопанельное

8

1

1

4,5

1,5

- крупноблочное

10

1

1,5

6

1,5

- каркасно-панельное

11

1

1,5

7

1,5

- объемно-блочное

5,5

1

1

3

0,5

- монолитное

12

1

 

8,5

1,5

- кирпичное и из мелких блоков

12,5

1

1,5

8

2

Здание десятиэтажное

Общей площадью квартир, м2

3500

 

 

 

 

 

- крупнопанельное

6

1

1

3

1

- крупноблочное

6,5

1

1

3,5

1

- каркасно-панельное

7

1

1

4

1

- объемно-блочное

3,5

1

1

1

0,5

- монолитное

8

1

1

5

1

- кирпичное и из мелких блоков

8

1

1

4,5

1,5

7000

 

 

 

 

 

- крупнопанельное

7

1

1

4

1

- крупноблочное

7,5

1

1

4,5

1

- каркасно-панельное

8,5

1

1

5

1,5

- объемно-блочное

4,5

1

1

2

0,5

- монолитное

9

1

1

5,5

1,5

- кирпичное и из мелких блоков

9,5

1

1

5,5

2

9000

 

 

 

 

 

- крупнопанельное

7

1

1

4

1

- крупноблочное

8

1

1

5

1

- каркасно-панельное

9

1

1

5,5

1,5

- объемно-блочное

5

1

1

2,5

0,5

- монолитное

10

1

1

6,5

1,5

- кирпичное и из мелких блоков

10,5

1

1,5

6

2

11000

 

 

 

 

 

- крупнопанельное

8

1

1,5

4

1,5

- крупноблочное

9

1

1,5

5

1,5

- каркасно-панельное

9,5

1

1,5

5,5

1,5

- объемно-блочное

5

1

1

25

0,5

- монолитное

11

1

1

7

2

- кирпичное и из мелких блоков

11,5

1

1,5

7

2

13000

 

 

 

 

 

- крупнопанельное

9

1

1,5

5

1,5

- крупноблочное

9,5

1

1,5

5,5

1,5

- каркасно-панельное

10,5

1

1,5

6,5

1,5

- объемно-блочное

5,5

1

1

3

0,5

- монолитное

12

1

1

8

2

- кирпичное и из мелких блоков

12,5

1

1,5

8

2

Здание двенадцатиэтажное

Общей площадью квартир, м2

4000

 

 

 

 

 

- крупнопанельное

7

1

1

3,5

1,5

- крупноблочное

8

1

1

4,5

1,5

- каркасно-панельное

9

1

1

5,5

1,5

- объемно-блочное

4,5

1

1,5

1,5

0,5

- монолитное

9

1

1

5,5

1,5

- кирпичное

9,5

1

1,5

5

2

8000

 

 

 

 

 

- крупнопанельное

8

1

1,5

4

1,5

- крупноблочное

9

1

1,5

5

1,5

- каркасно-панельное

9,5

1

1,5

5,5

1,5

- объемно-блочное

5,5

1

1,5

2

1

- монолитное

10

1

1

6,5

1,5

- кирпичное

10,5

1

1,5

6

2

12000

 

 

 

 

 

- крупнопанельное

9,5

1

1.5

5,5

1,5

- крупноблочное

10,5

1

1,5

6,5

1,5

- каркасно-панельное

11

1

1,5

7

1,5

- объемно-блочное

6,5

1

2

2,5

1

- монолитное

13

1

1

9

2

- кирпичное

13,5

1

2

8,5

2

Здание четырнадцатиэтажное

Общей площадью квартир, м2

5000

 

 

 

 

 

- крупнопанельное

8

1

1,5

4

1,5

- крупноблочное

9

1

1,5

5

1,5

- каркасно-панельное

9,5

1

1,5

5,5

1,5

- объемно-блочное

6

1

2

2

1

- монолитное

9

1

1

5,5

1,5

- кирпичное

9,5

1

1,5

5

2

8000

 

 

 

 

 

- крупнопанельное

9

1

1,5

5

1,5

- крупноблочное

9,5

1

1,5

5,5

1,5

- каркасно-панельное

10,5

1

1,5

6,5

1,5

- объемно-блочное

6,5

1

2

2,5

1

- монолитное

10

1

1

6,5

1,5

- кирпичное

11

1

1,5

6,5

2

 

12000

 

 

 

 

 

- крупнопанельное

9,5

1

1,5

5,5

1,5

- крупноблочное

10,5

1

1,5

6,5

1,5

- каркасно-панельное

11

1

1,5

7

1,5

- объемно-блочное

7,5

1

2

3,5

1

- монолитное

13

1

1

9

2

- кирпичное

13,5

1

2

8,5

2

Здание шестнадцатиэтажное

Общей площадью квартир, м2

6000

 

 

 

 

 

- крупнопанельное

8

1

1,5

4

1,5

- каркасно-панельное

9,5

1

1,5

5,5

1,5

- объемно-блочное

6

1

2

2

1

- монолитное

12

1

2

6

3

12000

 

 

 

 

 

- крупнопанельное

9

1

1,5

5

1,5

- каркасно-панельное

10,5

1

1,5

6,5

1,5

- объемно-блочное

6,5

1

2

2,5

1

- монолитное

14

1

3

7

3

18000

 

 

 

 

 

- крупнопанельное

9,5

1

1,5

5,5

1,5

- каркасно-панельное

10,5

1

1,5

6,5

1,5

-объемно-блочное

7,5

1

3

2,5

1

- монолитное

16

1

3

9

3

Здание двадцатидвухэтажное

Общей площадью квартир, м2

8000

 

 

 

 

 

- крупнопанельное

9,5

1

1,5

5,5

1,5

- каркасно-панельное

11

1

1,5

7

1,5

- объемно-блочное

6

1

2

2

1

- монолитное

14

1

3

7

3

16000

 

 

 

 

 

- крупнопанельное

11

1

2

6

2

- каркасно-панельное

13

1

г

8

2

- объемно-блочное

7,5

1

2

3,5

1

- монолитное

18

1

3

11

3

Здание двадцатипятиэтажное

Общей площадью квартир, м2 9000

 

 

 

 

 

- крупнопанельное

9,5

1

1,1

5,5

1,5

- каркасно-панельное

11

1

1,5

7

1,5

- объемно-блочное

6,5

1

2

2,5

1

- монолитное

16

1

3

9

3

18000

 

 

 

 

 

- крупнопанельное

11

1

2

6

2

- каркасно-панельное

13

1

2

8

2

- объемно-блочное

7,5

1

2

3,5

1

- монолитное

20

1

3

13

3

В случаях различия продолжительности строительства домов разных конструктивных систем учитывается эффект, получаемый от снижения условно-постоянных накладных расходов.

Экономический эффект от сокращения продолжительности строительства домов одной строительной системы по сравнению с домами другой определяется по формуле:

,                                                           (2.3)

где Эу - экономический эффект от снижения величины условно-постоянных накладных расходов, (руб.);

Н - величина условно-постоянных накладных расходов по строительной системе с продолжительностью строительства дома Т1, (руб.);

Т1 и Т2 - продолжительность строительства по сравниваемым вариантам (соответственно большая и меньшая), (мес. или год).

К условно-постоянным накладным расходам относятся: административно хозяйственные расходы, расходы по содержанию пожарной и сторожевой охраны, благоустройству строительной площадки, культурным мероприятиям, содержанию лаборатории по испытанию материалов и конструкций и др. Доля условно-постоянных накладных расходов может укрупненно приниматься в размере 50% общей суммы накладных расходов.

В зависимости от целей технико-экономического анализа строительно-конструктивных систем возможно расширение номенклатуры анализируемых показателей, в частности, могут быть использованы показатели технологичности проектных решений:

- вес конструкций и материалов на 1 м2 общей площади (кг);

- число типоразмеров и марок сборных изделий:

- типоразмеров (шт);

- марок (шт);

- вес монтажных элементов:

- наибольший (кг);

- средний (кг).

Кроме того, практикуется анализ конструктивных систем по показателям сборности. Различают два показателя, характеризующие сборность в строительстве:

- уровень сборности;

- коэффициент сборности отдельных конструктивных элементов.

Уровень сборности определяется соотношением сметной стоимости сборных элементов (франко-строительная площадка) - Ссб к общей сметной стоимости всех конструкций, материалов и изделий - Собщ.

Усб = Ссб : Собщ                                                            (2.4)

Коэффициент сборности отдельных конструктивных элементов - отношение стоимости сборных конструкций, израсходованных на данный конструктивный элемент или часть здания, к общей стоимости всех израсходованных материалов и деталей.

Определение технико-экономических показателей осуществляется в следующей последовательности:

- устанавливаются сравниваемые конструктивные системы;

- подбираются проекты в выбранных конструктивных системах с обеспечением условий сопоставимости;

- устанавливаются группы изменяемых и неизменяемых конструктивных элементов и видов работ;

- устанавливаются изменяемые затраты по конструктивным элементам и видам затрат;

- определяется сметная стоимость по сравниваемым конструктивным системам;

- определяются затраты по неизменяемым конструктивным элементам и видам работ;

определяются показатели затрат труда по проектам в сравниваемых конструктивных системах;

- определяются расход основных строительных материалов по проектам в сравниваемых конструктивных системах;

- устанавливаются нормативные сроки продолжительности строительства по проектам в сравниваемых конструктивных системах;

- на основе комплексного анализа полученных технико-экономических показателей даются предложения по дальнейшему развитию и использованию строительно-конструктивных систем.

Для более полного сопоставления строительно-конструктивных систем в дополнение к указанному анализу проводится дополнительное сопоставление по фактору «Эксплуатационные затраты» если таковые имеют заметные различия.

Эксплуатационные затраты, методы расчета

Эксплуатационные расходы по содержанию жилых зданий включают в себя совокупность материальных, энергетических и трудовых затрат на проведение соответствующих работ и мероприятий по содержанию в технически исправном состоянии элементов и отдельных конструкций здания и обеспечению внутри здания необходимого уровня комфорта и климата, выраженную в стоимостной форме.

Полные эксплуатационные расходы можно разделить на следующие основные группы:

- затраты на восстановление и ремонт зданий;

- затраты на эксплуатацию систем инженерного оборудования;

- затраты на содержание зданий и территорий;

- административно-управленческие затраты;

- прочие условно-постоянные расходы;

Затраты на восстановление и ремонт зданий включают в себя:

- амортизационные отчисления на реновацию (восстановление) здания;

- амортизационные отчисления на капитальный ремонт здания;

- затраты на текущий ремонт здания.

В затраты на эксплуатацию систем инженерного оборудования входят расходы на:

- отопление;

- водоснабжение и канализацию;

- вентиляцию и кондиционирование воздуха;

- электроосвещение;

- эксплуатацию лифтов;

- мусоропроводы;

- систему противопожарной защиты и дымоудаление.

Затраты на содержание зданий и территорий включают в себя расходы на:

- санитарно-гигиенические работы (уборка полов, протирка стен, мытье окон, очистка кровли от снега);

- придомовые территории;

- внешние инженерные сети;

- вывоз мусора.

Административно-управленческие затраты включают в себя заработную плату административно-управленческого персонала жилищно-эксплуатационных организаций, обязательные платежи и отчисления (кроме амортизационных) и другие управленческие расходы.

Прочие расходы (условно-постоянные) по учреждению представляют собой затраты, необходимые для нормальной его работы, не зависящие от проектного решения (в том числе НДС).

Удельный вес отдельных статей эксплуатационных затрат для разных типов жилых зданий различен.

Так, по жилым, домам усредненная структура эксплуатационных затрат приведена в следующей таблице:

Таблица 2.11

№№

пп

Статьи затрат

Удельный вес статьи в общей сумме эксплуатационных трат(%)

1.

Затраты на восстановление и ремонт зданий:

23-31

 

- амортизационные отчисления на реновацию

6-8

 

- затраты на текущий ремонт

4-6

2.

Затраты на эксплуатацию систем инженерного оборудования:

 

 

- отопление

12-14

 

- водоснабжение и канализация

11-14

 

- электроосвещение

-

 

- эксплуатация лифтов

5-26

 

- мусоропроводы

1-2

3.

Затраты на содержание зданий и территорий:

 

 

- санитарно-гигиенические работы

2-3

 

- придомовые территории

2-4

 

- внешние инженерные сети

15-18

4.

Административно-управленческие расходы

2-3

Показатели эксплуатационных затрат измеряются в рублях в год в расчете единицу вместимости, удельную единицу площади или строительного объема, а также на соответствующие расчетные единицы измерения конструктивных элементов зданий.

Определение эксплуатационных расходов может быть произведено на основе: - данных проекта-аналога; - базовых удельных показателей стоимости эксплуатации с применением соответствующих коэффициентов инфляции (БУПэ), или по отдельным видам, как произведение сметной стоимости элементов на норматив соответствующих отчислений, которые в свою очередь, определяются исходя из долговечности строительных конструкций материалов, капитальности здания и из типа и сроков службы конструктивных элементов инженерного оборудования.

В соответствии с «Положением о проведении планово-предупредительного ремонта жилых и общественных зданий» по степени капитальности и долговечности жилые здания подразделяются на шесть групп с нормативными усредненными сроками службы от 15 до 150 лет, в соответствии с этим установлена периодичность ремонтов жилых и общественных зданий:

Периодичность ремонтов жилых зданий в годах

Таблица 2.12

Виды ремонта

Группа зданий по капитальности

I

II

III

IV

V

VI

Текущий профилактический

3

3

3

3

2

2

Капитальный выборочный

6

6

6

6

6

5

Капитальный комплексный

30

30

24

18

-

-

Величина показателей на восстановление (реновацию), обусловленное полным возмещением износа конструктивных элементов и систем инженерного оборудования, определяется умножением сметной стоимости элементов на норматив отчислений. Нормативы отчислений для конструкций и конструктивных элементов определяются исходя из их долговечности, а для инженерного оборудования в зависимости от его типа.

Сроки службы конструктивных элементов и элементов инженерного оборудования приведены в таблице 1 Приложения 1, а оборудования и элементов санитарно-технических систем (отопление и вентиляция) в таблице 2 Приложения 1.

Нормативы отчислений на реновацию строительных конструкций в зависимости от их долговечности приведены в табл. 3 и 4 Приложения 1. Так, для зданий I - III групп капитальности со сроком службы 100-150 лет норматив ежегодных отчислений составляет - 0,67% от сметной стоимости конструкций.

Нормативы амортизационных отчислений на восстановление и капитальный ремонт по внутренним санитарно-техническим системам приведены в таблице 5 Приложения 1 и составляют по системам центрального отопления 5-7%, по санитарно-техническим системам - 4,4-11,0%, по системам кондиционирования воздуха 4,9-12,5% от сметной стоимости.

Размер ежегодных отчислений на проведение капитального ремонта жилых и общественных зданий, необходимый для замены и восстановления отдельных частей или целых конструкций и оборудования в связи с их физическим износом и разрушением, а также для устранения последствий морального износа конструкций, определяется умножением единичной сметной стоимости конструкций на норматив затрат на капитальный ремонт (см; табл. 4, 5, 6 Приложения 1), в пределах от 4,3 до 0,19 в зависимости от срока службы от 10 до 150 лет.

Затраты на текущий ремонт жилых зданий, представляющий комплекс работ по предупреждению преждевременного износа конструкций, отделки и инженерного оборудования, включает в себя заработную плату рабочих (с начислениями), стоимость эксплуатации машин и механизмов и стоимость материалов и энергоресурсов.

Расходы на текущий ремонт определяются произведением единичной стоимости конструктивных элементов и нормативов затрат на текущий ремонт табл. 8, 9, 10, 11 Приложения 1. Для жилых зданий I - III групп капитальности норма отчислений составляет 0,75 - 1,0% от восстановительной стоимости*. Затраты на содержание систем инженерного оборудования включают в себя:

- отопление;

- электроосвещение;

- водоснабжение и канализация;

- вентиляция и кондиционирование;

- лифты;

-мусоропроводы;

- система противопожарной защиты и дымоудаления.

* стоимость, определяемая по действующим в момент переоценки основных по ставкам, ценам, тарифам.

Расходы на отопление рассчитываются исходя из показателей годового расхода тепла, стоимости удельных единиц тепла, удельных теплопотерь здания, продолжительности отопительного периода, с учетом площади ограждающих конструкций и тепловых характеристик.

Расход тепла определяется в соответствии с МГСН 2.01-99 «Энергосбережения в зданиях. Нормативы по теплозащите и тепло-водо-электроснабжению», а также с учетом требований СНиП по отоплению, вентиляций и кондиционированию воздуха и главы СНиП по строительной теплотехнике.

Величина затрат на вентиляцию (кондиционирование) определяется суммированием расходов на подогрев (охлаждение) наружного воздуха и на силовую электроэнергию, потребляемую кондиционерами и вентиляционными установками.

Размер затрат зависит от продолжительности работы установок, режима эксплуатации здания и определяется исходя из тех же показателей, что используются и при расчете затрат на отопление.

Сумма затрат на силовую электроэнергию определяется на основе данных мощности эксплуатируемых электродвигателей и режима работы учреждения.

Стоимость электроосвещения зависит от режима работы учреждения, мощности осветительных установок, степени одновременности их включения и стоимости расчетной единицы потребляемой энергии и определяется с учетом действующих тарифов стоимости единицы электроэнергии и удельного норматива ее расхода на 1 м2 общей площади. Затраты по эксплуатации систем водоснабжения и канализации состоят из:

- затрат на горячее водоснабжение;

- затрат на повышение напора воды.

Затраты на горячее водоснабжение определяются с учетом нормативов потребления воды, разницы начальной и конечной температуры воды, тарифов на горячую воду.

Затраты на обеспечение должного уровня напора воды складываются из стоимости электроэнергии, потребляемой повысительными насосами, с учетом числа их работы в сутки, стоимости амортизационных отчислений на восстановление и ремонт системы затрат на ее текущий ремонт.

Расходы по эксплуатации лифтов складываются из заработной платы персонала обслуживания, стоимости электроэнергии, технического надзора и ремонта и зависят:

- для жилых зданий:

- от этажности, количества площади в этаже, секции, количества устанавливаемых в секции лифтов;

Затраты по эксплуатации мусоропроводов в жилых домах состоят из заработной платы обслуживающего персонала, расходов на текущий ремонт системы и зависят от расположения сборной камеры (в цокольной части дома на уровне двора, в подвале, в подвале с затесненными проходами) и среднего размера квартир.

Заработная плата персонала по обслуживанию и ремонту и амортизационные отчисления подсистем, зависят от числа квартир на этаже и этажности здания.

Затраты на содержание зданий и территорий включают в себя расходы на поддержание заданного уровня санитарно-гигиенических и эксплуатационно-технических требований по:

- местам общего пользования в здании;

- придомовым территориям;

- внешним инженерным сетям;

- вывозу мусора.

Группа затрат на санитарно-гигиенические работы определяется исходя из отдельных показателей стоимости работ и площадей уборки.

Затраты на содержание придомовых территорий состоят из заработной платы персонала по уборке, стоимости уборочных машин и механизмов, материалов, топлива и наружного освещения, амортизации инструмента и определяются исходя из этажности здания, площади зеленых насаждений и асфальтированных участков, норм обслуживания на одного работника.

Расходы на содержание инженерных сетей состоят из амортизационных отчислений и стоимости текущего ремонта коллекторов и сетей (в среднем составляют 7% от их сметной стоимости).

Ежегодно на содержание жилого фонда расходуются значительные средства, эти расходы продолжаются в течении всего срока службы зданий - в итоге в несколько раз превышают единовременные затраты на их возведение. Отсюда очевидна важность учета показателей эксплуатационных затрат при оценке проектных решений, чтобы в результате избежать убытков в стремлении к снижению стоимостных показателей за счет ухудшения эксплуатационных параметров зданий.

Стоимость эксплуатации зависит от воздействия многих факторов, среди которых:

- величина города;

- климатические условия;

- плотность и характер застройки;

- качество строительства;

- техническая оснащенность жилищных организаций;

- наличие нежилых помещений, сдаваемых в аренду, но самое значительное воздействие, оказываемое на размер эксплуатационных затрат, принадлежит типу здания, его планировочному и конструктивному решению.

Очевидна зависимость затрат на отопление от варианта конструктивного решения и решения наружных стен. То же можно сказать о величинах затрат на капитальный ремонт, так, за счет ремонта стыков в крупнопанельных зданиях эти затраты выше чем в кирпичных зданиях.

В этой связи статьи эксплуатационных затрат по признаку зависимости от проектного решения можно разделить на статьи прямо зависящие от него и связанные с ним косвенно.

К первой группе относятся расходы по реновации, капитальному и текущему ремонту, коммунальным расходам (отопление, содержание и эксплуатация лифтов, мусоропроводов и др.); ко второй группе - административно-управленческие расходы, расходы на содержание обслуживающего персонала, обязательные платежи и отчисления.

Для оценки проектных решений затраты первой группы НИИЭС предложено разделить на эксплуатационно-конструктивные и эксплуатационно-функциональные. К эксплуатационно-конструктивным отнесены расходы на текущий и капитальный ремонты, реновационные отчисления, т.е. затраты, обеспечивающие нормальное функционирование конструкций.

К эксплуатационно-функциональным расходам отнесены затраты на отопление, вентиляцию, кондиционирование, холодное и горячее водоснабжение, электроснабжение, канализацию, содержание лифтов и мусоропроводов - т.е. затраты, обеспечивающие нормальное функционирование жилого дома и его блок-секций в соответствии его назначением.

В процессе эксплуатации здания к моменту окончательной потери домом своей первоначальной стоимости реновационные отчисления создают базу для возмещения его восстановительной стоимости, с учетом морального износа и ценовых изменений.

В силу различного конструктивного решения отдельных элементов зданий, разных функций они снашиваются неравномерно, что вызывает необходимость частичного возмещения их износа посредством капитального ремонта. Двоякий характер возмещения основных фондов предопределяет разделение этих средств на две части - реновационные отчисления и средства на капитальный ремонт.

При оценке конструктивных элементов с разным сроком службы, а также зданий с различной степенью капитальности важно учитывать трансформирование первоначальной стоимости в восстановительную, а отсюда и изменение размеров годовых отчислений на восстановление.

На размер затрат по капитальному ремонту оказывает воздействие тип смежных конструкций, например, ремонт мягкой кровли в домах с совмещенной крышей и внутренним водостоком стоит меньше, чем при чердачной крыше с деревянными стропилами и с разводкой отопления на чердаке.

Наиболее частыми конструктивными элементами, подвергающимися капитальному ремонту, являются кровля, полы, стыки, столярные изделия, фасады, отделочные работы, сантехническое оборудование.

В связи с тенденцией повышения этажности жилой застройки происходит удорожание эксплуатации здания за счет:

- эксплуатации лифтов;

- возрастания расходов по эксплуатации санитарно-технических устройств.

Так, если в зданиях, не оборудованных лифтами, основная доля эксплуатационных расходов приходится на реновацию и ремонт, а также на затраты на отопление, при этом затраты на содержание мест общего пользования (лестницы) незначительны, в домах повышенной этажности эксплуатационные расходы значительно возрастают за счет затрат на содержание лифтов.

В состав этих затрат входят:

- заработная плата обслуживающего персонала;

- стоимость технического обслуживания;

- стоимость планово-предупредительного ремонта;

- стоимость электроэнергии. На величину этих затрат влияют:

- грузоподъемность лифта;

- месторасположение машинного помещения;

- стены шахты;

- система обслуживания;

- число этажей;

- размер площади дома, обслуживаемой одним лифтом.

В этой связи, основной резерв снижения расходов на содержание лифтов в зданиях повышенной этажности - это увеличение нагрузок на лифт путем применения многоквартирных секций.

Методика проведения технико-экономического анализа на примере монолитных зданий

1. Анализ информационных технико-экономических и стоимостных показателей проектов жилых зданий проводится в следующей последовательности: наименование объекта; год разработки проекта; стадия разработки; строительно-конструктивная система; уровень цен, в которых определена сметная стоимость проекта, показатели в целом сформулированы в последовательности, изложенной а таблице 2.13

Таблица 2.13

№№

пп

Показатели объекта

1.

Наименование объекта

2.

Год разработки

3.

Организация разработчик

4.

Стадия разработки

5.

Год строительства

6.

Адрес строительства

7.

Строительно-конструктивная система

8

Основные планировочные и конструктивные чертежи: планы, разрезы

9.

Указать в ценах, введенных с какого года разработана сметная документация

10.

Указать, по каким сборникам ЕР и каким единичным расценкам на возведение монолитных железобетонных конструкций составлена сметная документация

2. Характеристика конструктивных элементов здания по анализируемому проекту представляется по форме, изложенной в таблице 2.14

Характеристика конструктивных элементов

по__________________________________________________________________

(наименование объекта, адрес строительства)

Таблица 2.14

№№

пп

Наименование конструктивных элементов и видов работ

Характеристика конструктивных элементов

 

Подземная часть

 

1.

Фундаменты

 

2.

Стены наружные

(толщина; марка бетона)

3.

Стены внутренние

(толщина; марка бетона)

4.

Перекрытия

 

 

Надземная часть

 

5.

Наружные стены

(толщина, площадь, марка бетона)

6.

Внутренние стены

(толщина, площадь, марка бетона)

7.

Перекрытия

 

8.

Крыша

 

9.

Лестницы

 

10.

Перегородки

 

11.

Внутренняя отделка

 

12.

Наружная отделка

 

13.

Вертикальный транспорт

 

3. Анализ показателей, включающий объемно-планировочные показатели:

этажность, число секций, число квартир, площадь застройки, общая, средняя площадь квартир, строительный объем; общая сметная стоимость здания, показатели расхода ресурсов, трудоемкости, основных строительных материалов, осуществляя по форме следующей таблицы 2.15

Технико-экономические показатели

по ____________________________________________________________

(наименование объекта, адрес строительства)

Таблица 2.15

№№

пп

Наименование показателей

Единицы измерения

Показатель

1

2

3

4

1.

Этажность

эт.

 

2.

Число секций

-

 

3.

Число квартир

кв.

 

4.

Площадь застройки

м2

 

5.

Общая площадь дома (блок-секции)

м2

 

- общая (с учетом летних помещений)

м2

 

- то же, без учета летних помещений

м2

 

6.

Средняя площадь квартир

м2

 

-то же, без учета летних помещений

м2

 

7.

Строительный объем

 

 

- всего здания в. т.ч.

м3

 

- подземной части в т.ч.

м3

 

- жилой части

м3

 

- пристроенной части

м3

 

- встроенной части

м3

 

- подземной части всего, в т.ч.

м3

 

- пристроенной части

м3

 

- встроенной части

м3

 

- жилой части

м3

 

8.

Общая сметная стоимость (в ценах- указать год) (по сводной смете)

(тыс. руб)

 

- всего

(руб.)

 

- на м2 общей площади

(руб.)

 

9.

Общая стоимость (по объектной смете)

 

 

-всего

(руб.)

 

-на 1 м2 общей площади

(руб.)

 

10.

Стоимость строительно-монтажных работ

 

 

- всего

(руб.)

 

- на 1 м2 общей площади

(руб.)

 

11.

Стоимость 1 м2 монолитного железобетона

(руб.)

 

12.

Стоимость 1 м2 сборного железобетона

(руб.)

 

13.

Эксплуатационные показатели

 

 

- расход: воды

3/сут.)/(м3/час)

 

- холодной

3/сут.)/(м3/час)

 

- горячей

3/сут.)/(м3/час)

 

- канализационные стоки

3/сут.)/(м3/час)

 

- тепла:

(ккал/час.)

 

- на отопление

(ккал/час.)

 

- на горячее водоснабжение

(ккал/час.)

 

- потребная электрическая мощность

(квт)

 

14.

Трудоемкость

 

 

-всего

чел./час.

 

- на 1 м2 общей площади

чел./час.

 

15

Расход основных строительных материалов (всего и на 1 м2 общей площади)

 

 

- цемент

т

 

- цемент, приведенный к марке М-400

т

 

- сталь

т

 

- сталь, приведенная к классу А-1

т

 

- бетон и железобетон (всего и на 1 м2 общей площади)

т

 

 

- монолит

м3

 

- сборный

м3

 

 

- лесоматериалы, приведенные к круглому лесу

 

 

 

-кирпич

тыс.шт.

 

 

-стекло

м2

 

4. Анализ показателей сметной стоимости общестроительных работ по анализируемым проектам осуществляется по номенклатуре показателей, включающей сметные затраты по конструктивным элементам я видам работ, указанным в таблице 2.16

Показатели сметной стоимости общестроительных работ

по___________________________________________________________

(наименование объекта, адрес строительства) года)

Таблица 2.16

№№

пп

Наименование конструктивных элементов и видов работ

Сметная стоимость общестроительных работ

Удельный вес показателя в процентах к итогу

сборно-панельные

монолитные

1

2

3

4

5

 

Подземная часть

(отдельно по жилой части, встроенной и пристроенной)

 

 

 

1.

Земляные работы

 

 

 

2.

Фундаменты

 

 

 

3.

Наружные стены

 

 

 

4.

Внутренние стены

 

 

 

5.

Перекрытия

 

 

 

6.

Лестницы

 

 

 

7.

Двери

 

 

 

8.

Перегородки

 

 

 

9.

Полы

 

 

 

10.

Отделочные работы

 

 

 

11.

Разные работы

 

 

 

 

Итого по разделу

 

 

 

 

Надземная часть

(встроенно-пристроенная, 1-2-ые этажи)

 

 

 

12.

Стены

 

 

 

13.

Перекрытия

 

 

 

14.

Кровля

 

 

 

15.

Лестницы

 

 

 

16.

Перегородки

 

 

 

17.

Полы

 

 

 

18.

Двери

 

 

 

19.

Витражи (окна)

 

 

 

20.

Подвесные потолки

 

 

 

21.

Отделка (внутренняя)

 

 

 

22.

Наружная отделка

 

 

 

23.

Разные работы

 

 

 

 

Итого по разделу

 

 

 

 

Надземная часть (жилая часть)

 

 

 

24.

Наружные стены

 

 

 

25.

Внутренние стены

 

 

 

26.

Перекрытия

 

 

 

27.

Крыша

 

 

 

28.

Полы

 

 

 

29.

Лестницы

 

 

 

30.

Сантехкабины

 

 

 

31.

Окна

 

 

 

32.

Двери

 

 

 

33.

Перегородки

 

 

 

34.

Отделочные работы

 

 

 

35.

Наружная отделка

 

 

 

36.

Фасад

 

 

 

37.

Мусоропровод

 

 

 

38.

Разные работы

 

 

 

39.

Вертикальный транспорт

 

 

 

 

Итого по разделу

 

 

 

 

Всего по зданию

 

100%

 

5. Анализ показателей затрат труда по общестроительным работам по номенклатуре конструктивных элементов и видов работ осуществляется по форме, изложенной в таблице 2.17

Затраты труда по общестроительным работам

по____________________________________________________________

(наименование объекта, адрес строительства)

Таблица 2.17

№№

пп

Наименование конструктивных элементов и видов работ

Нормативная трудоемкость (чел.ч)

Удельный вес показателя в процентах к итогу

сборно-панельные

монолитные

1

2

3

4

5

 

Подземная часть

(отдельно по жилой части, встроенной и пристроенной)

 

 

 

1.

Земляные работы

 

 

 

2.

Фундаменты

 

 

 

3.

Наружные стены

 

 

 

4.

Внутренние стены

 

 

 

5.

Перекрытия

 

 

 

6.

Лестницы

 

 

 

7.

Двери

 

 

 

8.

Перегородки

 

 

 

9.

Полы

 

 

 

10.

Отделочные работы

 

 

 

11.

Разные работы

 

 

 

 

Итого по разделу:

 

 

 

12.

Стены

 

 

 

13.

Перекрытия

 

 

 

14.

Кровля

 

 

 

15.

Лестницы

 

 

 

16.

Перегородки

 

 

 

17.

Полы

 

 

 

18.

Двери

 

 

 

19.

Витражи (окна)

 

 

 

20.

Подвесные потолки

 

 

 

21.

Отделка (внутренняя)

 

 

 

22.

Наружная отделка

 

 

 

23.

Разные работы

 

 

 

 

Итого по разделу:

 

 

 

 

Надземная часть

(жилая часть)

 

 

 

24.

Наружные стены

 

 

 

25.

Внутренние стены

 

 

 

26.

Перекрытия

 

 

 

27.

Крыша

 

 

 

28.

Полы

 

 

 

29.

Лестницы

 

 

 

30.

Сантехкабины

 

 

 

31.

Окна

 

 

 

32.

Двери

 

 

 

33.

Перегородки

 

 

 

34.

Отделочные работы

 

 

 

35.

Наружная отделка

 

 

 

36.

Фасад

 

 

 

37.

Мусоропровод

 

 

 

38.

Разные работы

 

 

 

39.

Вертикальный транспорт

 

 

 

 

Итого по разделу

 

 

 

 

Всего по разделу

 

100%

 

6. Анализ расхода основных строительных материалов по рассматриваемым проектам осуществляется по номенклатуре, включающей:

- расход цемента;

- расход стали натуральной, приведенной;

- расход бетона и ж/бетона (в т.ч. сборного и монолитного);

- расход лесоматериалов;

- расход кирпича и др. материалов.

Показатели расхода основных строительных материалов

по_____________________________________________________________________

(наименование объекта и характеристика объекта) (адрес строительства)

Таблица 2.18

№№

пп

Наименование материалов

Единица измерения

Расход

всего

на 1м2 общей площади

1

2

3

4

5

1.

Цемент натуральный

 

 

 

- всего

 

 

 

в т.ч. - 300

т

 

 

- 400

т

 

 

- 500

т

 

 

2.

Цемент, приведенный к марке М-400

- всего

 

т

 

 

в т.ч. - на изготовление монолитных железобетонных конструкций

т

 

 

- на изготовление сборных железобетонных конструкций

т

 

 

- на растворы

т

 

 

- на производство работ

т

 

 

3.

Сталь, натуральная

т

 

 

4.

Сталь, приведенная к классу А-1:

в т.ч. - на изготовление монолитных и бетонных конструкций

т

т

 

 

- на изготовление сборных железобетонных и бетонных конструкций

т

 

 

- на строительные стальные конструкции

т

 

 

- на вентиляционные и сантехнические устройства

т

 

 

- на производство работ

т

 

 

5.

Бетон и железобетон, монолитный

т

 

 

6.

Бетон и железобетон сборный

т

 

 

7.

Лесоматериалы, приведенные к круглому лесу

м3

 

 

8.

Легкие кровельные материалы

 

 

 

9.

Алюминий

т

 

 

10.

Кирпич

тыс.шт.

 

 

11.

Стекло

м2

 

 

7. Анализ расхода сборных железобетонных конструкций в расчете одного кубического метра конструкций на один метр квадратный общей площади по основным наименованиям элементов конструкций проводится по форме, приведенной в таблице 2.19.

Показатели расхода сборных железобетонных конструкций

по_______________________________________________________________

(наименование объекта, адрес строительства)

Таблица 2.19

№№

пп

Наименование элементов конструкций

Единица измерения

Количество

Расход в расчет 1м2 общей площади

1.

Сваи

м3

 

 

2.

Перемычки

м3

 

 

3.

Распорки

м3

 

 

4.

Панели стеновые наружные

м3

 

 

5.

Блоки стеновые

м3

 

 

6.

Плиты покрытий

м3

 

 

7.

Плиты перекрытий

м3

 

 

8.

Плиты дорожные

м3

 

 

9.

Детали смотровых колодцев

м3

 

 

10.

Конструкции и детали каналов и открытых водоемов

м3

 

 

11.

Элементы лестниц

м3

 

 

12.

Элементы входов и приямков зданий

м3

 

 

13.

Детали лифтовых и вентиляционных шахт

м3

 

 

14.

Элементы лоджий и балконов

м3

 

 

15.

Итого, сборных конструкций

м3

 

 

8. Показатели удельных значений основных конструктивных элементов, зависящих от строительно-конструктивной системы по рассматриваемым проектам приводится отдельно по подземной и надземной частям здания по наименованиям основных конструктивных элементов и в расчете на один квадратный метр общей площади по форме, приведенной в таблице 2.20.

Удельные значения основных конструктивных элементов, зависящих от строительно-конструктивной системы

по проекту_____________________________________________________

(наименование объекта, адрес строительства)

Таблица 2.20

№№

пп

Наименование элементов конструкций

Единица измерения

Количество

Расход в расчете на 1м2 общей площади

1

2

3

4

5

 

Подземная часть

(отдельно по жилой части, встроенной, пристроенной)

 

 

 

1.

Фундаменты

м3

 

 

2.

Наружные стены

м3

 

 

3.

Внутренние стены

м3

 

 

4.

Перекрытия

м3

 

 

 

Надземная часть

(отдельно по первым нежилым этажам, встроенным и пристроенным и жилой части)

 

 

 

5.

Наружные стены

м2

 

 

 

- глухие

м2

 

 

 

- с проемами

м2

 

 

 

Всего

м2

 

 

 

- блоки из ячеистого бетона

м2

 

 

6.

Внутренние стены

м2

 

 

7.

Перекрытия

м2

 

 

8.

Перегородки

м2

 

 

9.

Крыша

м3

 

 

Правила определения сметной стоимости строительства жилых домов с первыми и подвальными этажами, предназначенными для размещения предприятий общественного стенного питания и культурно-бытового обслуживания населения

Сводом правил по определению стоимости строительства в составе предпроектной и проектно-сметной документации (СП 81-01-94) предопределяется, что для объектов жилищного строительства, осуществляемого в микрорайонах, кварталах городов, поселках городского типа и сельских населенных пунктах, а также на отдельных участках, сметная стоимость строительства жилых домов, первые (цокольные) и подвальные этажи которых предназначаются для размещения магазинов, предприятий общественного питания и культурно-бытового обслуживания (включая книжные магазины, аптеки и учреждения банка), а также жилых домов с пристроенными к ним для размещения указанных предприятий помещениями, определяется раздельно по жилой и нежилой частям дома в следующем порядке:

1. в сметную стоимость каждой из частей дома (жилой и нежилой) наряду со средствами на устройство основных конструктивных элементов и на выполнение работ, относящихся к ним непосредственно (стены, перегородки, заполнения оконных и дверных проемов, полы, санитарно-технические и электротехнические устройства, отделочные работы и др.), включаются также соответствующие доли общих для этих частей дома затрат, связанных с выполнением работ нулевого цикла (земляные работы, фундаменты, стены и перекрытия над техническими подпольями и подвалами) и на устройство крыши в размерах, пропорциональных строительным объемам жилой и нежилой (только встроенной) частей дома;

2. затраты по работам нулевого цикла и устройству крыши и покрытий по пристраиваемым к жилым домам помещениям для указанных предприятий относятся целиком на сметную стоимость строительства нежилой части дома;

3. затраты по устройству лестничных клеток и лифтовых шахт в первом (цокольном) и подвальном этажах дома относятся целиком на сметную стоимость нежилой части дома в случаях, когда встроенные помещения занимают первый (цокольный) и подвальный этажи целиком. Если встроенные помещения занимают часть первого (цокольного) и подвального этажей, то затраты по устройству в них лестничных клеток и лифтовых шахт распределяются между сметной стоимостью жилой и нежилой частей дома пропорционально занимаемой ими в первом (цокольном) и подвальном этажах общей (полезной) площади;

4. затраты по оборудованию жилых домов пассажирскими лифтами относятся целиком на сметную стоимость жилой части дома;

5. средства на устройство перекрытия над размещенными в первом (цокольном) этаже дома нежилыми помещениями включаются в сметную стоимость нежилой части дома без учета затрат на устройство полов с подготовкой, которые относятся на сметную стоимость жилой его части;

6. при устройстве в жилом доме технического этажа, необходимость в котором вызывается использованием первого этажа под нежилые помещения, средства на устройство технического этажа включаются в сметную стоимость нежилой части дома;

7. средства на оборудование, хозяйственный инвентарь и приспособления для эксплуатационных нужд предприятий, размещаемых во встроенных (встроенно-пристроенных) помещениях, включаются в отдельную смету и целиком относятся на сметную стоимость нежилых помещений;

8. сметная стоимость строительства жилых домов, в которых предусматривается использование для размещения нежилых помещений и верхний этаж (например, для мастерских художников), определяется также раздельно по жилой и нежилой части дома. При этом средства на выполнение работ нулевого цикла и на устройство крыши распределяются между жилой и нежилой частями пропорционально их строительной объему, средства на устройство чердачного перекрытия, а также на устройство чистого пола с подготовкой в верхнем этаже включаются в сметную стоимость строительств нежилой части дома. Средства на устройство перекрытия под нежилым верхним этажом (без стоимости пола) относятся на сметную стоимость жилой части дома. Сметная стоимость работ, относящихся непосредственно к жилой и нежилой частям дома, включается в соответствующие разделы сметной документации на эти части дома;

9. при размещении в первом (цокольном) и подвальном этажах жилого дома предприятий торговли, общественного питания и бытового обслуживания населения или при пристройке к жилому дому для этих предприятий специальных помещений в верхнем этаже затраты на инженерное оборудование и благоустройство территории микрорайона, квартала или поселка относятся как на жилую, так и на нежилую части дома пропорционально строительным объемам жилой и нежилой частей дома;

10. на сметную стоимость строительства каждого из жилых домов, размещаемых в жилых микрорайонах, кварталах и поселках, относятся пропорционально их строительному объему затраты, связанные с освоением территории строительства, прокладкой наружных сетей, благоустройством территории и т.п., общий размер которых определяется сводными сметными расчетами или сводками затрат по микрорайону, кварталу или поселку;

11. показатели сметной стоимости жилых домов на 1 м2 общей площади определяются путем деления сумм всех затрат, перечисленных в пунктах 8, 9 и 10 на общую площадь жилого дома (жилых домов);

12. в случаях размещения в первых этажах жилых домов или в пристраиваемых к ним специальных помещениях различных по назначению предприятий и учреждений сметная стоимость всей нежилой части дома распределяется между этими предприятиями и учреждениями пропорционально их строительным объемам.

ГЛАВА 3.

ИНТЕГРАЛЬНЫЕ СТОИМОСТНЫЕ И УДЕЛЬНЫЕ ПОКАЗАТЕЛИ СТРОИТЕЛЬНО-КОНСТРУКТИВНЫХ СИСТЕМ ЖИЛЫХ ДОМОВ

Принимая во внимание тот факт, что среди рассматриваемых проектов присутствуют, как типовые, так и индивидуальные решения, проекты осуществленные строительством, проекты зданий различной планировки и этажности, проекты зданий, конструктивные решения по которым характеризуются различным сроком строительства и разной долговечностью конструктивных элементов, представляется очевидной необходимостью приведения этих проектов к условиям сопоставимости.

Методологически это приведение осуществляется путем корректировки стоимостных показателей проектов с учетом следующих факторов:

- корректировка с учетом привязки подземной части здания (для типовых проектов);

- корректировка с учетом мероприятий по энергосбережению;

- корректировка с учетом этажности зданий;

- корректировка с учетом планировочных решений (по составу квартир);

- корректировка с учетом срока службы несущих конструкций;

- корректировка с учетом стоимости земли, занимаемой предприятиями домостроительных комбинатов;

- корректировка с учетом продолжительности строительства зданий различных строительных систем;

- корректировка с учетом изрезанности периметра стен.

Корректировка стоимостных показателей проводилась поэлементно, отдельно по каждому из факторов с возможностью дальнейшего использования результатов этой корректировки в зависимости от наличия тех или иных отличий в проектах путем суммирования результатов корректировки присутствующих характеристик отличий.

Анализ технико-экономических показателей проводится на примере следующих проектов жилых зданий:

- 87-квартирный, 22 этажный жилой дом в монолите;

- 124-квартирный, 16-этажный жилой дом в монолите;

- 92-квартирный, 18-этажный жилой дом в монолите;

- 132-квартирный, 24-этажный каркасно-панельный жилой дом;

- 88-квартирный, 11-этажный жилой дом в кирпиче;

- 67-квартирный, 17-этажный жилой дом системы «ЭКО»;

-111-квартирный, 16-этажный блочный дом серии П-68;

- 147-квартирный, 7-этажный жилой дом системы «КУБ»;

- 154-квартирный, 24-этажный жилой дом в монолите;

- 548-квартирный, 17-этажный жилой дом в монолите с широким шагом;

- 68-квартирный, 17-этажный крупнопанельный жилой дом системы П-4-1/17.

Ниже приводятся технико-экономические показатели по рассматриваемым проектам. (Стоимостные показатели приведены в ценах 1984 года).

Объемно-планировочные показатели проектов жилых домов различных конструктивных систем

Таблица 3.1

№№

пп

Наименование проектов

Общая площадь квартир (м2)

Строительный объем (м2)

1.

87 квартирный жилой дом в монолите 22 эт.

11232,2

42399,9

2.

124 квартирный жилой дом в монолите 16 эт.

11346,6

56935,0

3.

92 квартирный жилой дом в монолите 18 эт.

7108.6

31617,36

4.

132 квартирный каркасно-панельный жилой дом 24 эт.

7546,4

38846,15

5.

88 квартирный жилой дом в кирпиче 11 эт.

6225,1

36785,8

6.

67 квартирный жилой дом «ЭКО» 17 эт.

3781,0

16754,0

7.

111 квартирный жилой блочный дом (П-68) 16 эт.

5690,3

23995,9

8.

147 квартирный жилой дом системы «КУБ» (безригельный каркас) 7 эт.

13212,2

58262,7

9.

154 квартирный жилой дом в монолите 17 эт.

9551,8

41366,2

10.

548 квартирный жилой дом в монолите 24 эт.

29466,2

118450,9

11.

68 квартирный жилой дом П-44-1/17 (тип 1-1) 17 эт.

3810,0

15464

Планы типовых этажей домов-представителей см. приложение 2.

Удельные показатели стоимости общестроительных работ по жилым домам (подземная и надземная жилая часть) в различных конструктивных системах

(руб/м2)                                                  (в ценах 84 года)                                     Таблица 3.2

№№

пп

Наименование элементов и видов работ

Удельные показатели стоимости в расчете на 1 м2 общей площади квартир по типам жилых зданий и конструктивных систем (руб.)

87 кв. жилой дом монолит. 22 эт.

124 кв. жилой монолитный дом 16 эт.

92 кв. жилой монолитный дом 18 эт.

132 кв. жилой каркасно-панельный дом 24 эт.

88 кв. жилой дом в кирпиче 11 эт.

67 кв. жилой дом «ЭКО» 17 эт.

111 кв. жилой домП-б8(блоки) 16 эт.

147 кв. жилой дом «КУБ»

7 эт.

154 кв. жилой дом в монолите 24 эт.

548 кв. жилой дом с широким шагом в монолите 17 эт.

68 кв.

П44-1/17

1-1

17 эт.

1

2

3

4

5

6

7

8

9

10

11

12

13

А. Подземная жилая часть

1.

Земляные работы

4,36

1,70

2,01

0,72

1,17

1,06

0,75

0,19

4,15

0,17

0,99

2.

Фундаменты

4,71

5,24

3,42

10,13

2,93

4,01

21,97

9,14

6,9

6,84

0,10

3.

Каркас

-

-

-

1,58

-

-

-

1,99

-

-

-

4.

Стены

2,68

3,66

2,27

1,62

6,1

2,64

9,67

5,0

4,7

0,48

1,99

5.

Перекрытия

1,31

1,44

1,13

1,10

1,65

1,42

4,33

3,05

2,4

6,12

0,83

6.

Лестницы

-

-

0,15

-

0,23

-

-

0,36

0,30

0,044

0,23

7.

Перегородки

-

0,28

0,02

0,08

0,30

-

-

0,77

0,04

-

-

8.

Окна

0,006

0,08

0,03

0,005

0,02

-

-

0,21

0,06

-

-

9.

Двери

0,015

0,69

0,05

0,03

0,2

0,02

0,12

0,64

0,09

-

-

10.

Полы

-

0,05

0,16

0,29

0,4

0,08

0,69

0,77

0,05

0,83

0,10

11.

Внутренние отделочные работы

0,05

0,05

0,05

0,087

0,26

-

0,21

0,43

0,09

-

0,0001

12.

Наружные отделочные работы

0,08

0,02

0,06

0,077

0,19

0,05

-

-

0,11

-

-

13.

Разные работы

0,10

0,37

-

1,15

0,78

0,07

2,67

4,08

-

-

0,41

Итого по подземной

части

13,32

13,58

9,35

16,87

14,23

9,38

40,39

23,68

18,83

14,51

4,96

Б. наземная часть жилого дома

14.

Каркас

-

-

-

50,70

-

-

-

8,63

-

-

-

15.

Своды, перемычки стены, ограждения балконов

59,29

72,30

34,55

31,41

29,41

48,34

142,36

34,0

42,51***

16,93

39,34

16.

Перекрытие

32,32

35,08

25,44

27,72

12,16

21,50

56,94

26,56

44,68

20,70

13,29

17.

Лестницы

2,06

1,61

0,68

1,31

1,28

0,66

4,19

1,87

1,0

1,12

3,09

18.

Вентиляционные блоки

-

-

-

-

-

-

-

-

-

-

0,74

19.

Кровля

1,03

2,99

1,35

2,71

2,86

7,33

18,49

13,77

4,75 кровля 3,04 крыша

1,53

4,62

20.

Перегородки

4,94

5,61

3,2

5,38

3,3

1,99

19,94

7,30

14,07

2,79

 0,66

21.

Витражи, зимний сад и входы

-

5,99

0,72

-

-

-

1,18

-

-

-

-

22.

Двери

6,57

8,96

6,17

7,34

4,19

6,11

32,63

6,25

7,25

1,74

4,77

23.

Встроенные шкафы

-

-

1,68

-

-

-

-

-

-

-

-

24.

Окна

14,65

19,72

2,88

23,88

1,96

14,55

18,20

11,15

24,6

0,39

**

25.

Внутренняя отделка

2,47

8,57

9,53

3,43

8,78

6,08

21,38

4,53

9,52

2,44

3,43

26.

Полы

4,27

5,21

14,36

17,66

11,86

16,08

67,83

17,72

25,6

13,64

9,75

27.

Сантехкабины

-

-

-

15,10

-

-

43,20

13,38

-

-

12,06

28,

Наружная отделка

0,35

-

-

1,88

-

3,71

15,91

1,55

1,44

5,33

0,1

29.

Разные работы

2,01

1,66

4,48

27,16

3,41

5„21

35,39

6,96

9,91

 

10,03

30.

Мусоропровод

0,07

0,24

0,17

0,42

0,16

0,30

0,51

0,27

0,16

0,176

0,28

31.

Вертикальный транспорт

5,3 "

2,08

2,8

4,25,,

6,20

3,30

31,78

1,92

17,76****

1,058

17,60*

Итого по надземной части

136,3

170,07

108,0

220,35

85,57

135,16

509,9

154,93

206,3

67,87

119,72

Всего по подземной и надземной жилым частям лома

149,6

183,65

117,42

237,22

99,79

144,54

550,36

178,61

225,19

82,38

124,68

* - шахты лифтов, вертикальный транспорт, лифты

** - окна, см. раздел «Наружные стены, окна и балконные двери»

*** - включая вентиляционные блоки и шахты лифтов

**** - включая лифты.

Структура показателей сметной стоимости общестроительных работ по сравниваемым проектам жилых домов в различных конструктивных системах (некорректированный вариант)

Таблица 3.3

№№

пп

Наименование элементов и видов работ

Показатели соотношения удельных показателей в процентах

87 кв. жилой дом в монолите

124 кв. жилой монолитный дом

92 кв. жилой монолитный дом

132 кв. жилой каркасно-панельный дом

88 кв. жилой дом в кирпиче

67 кв. жилой дом «ЭКО»

111 кв. жилой дом II-68 (блоки)

147 кв. жилой дом «КУБ»

154 кв. жилой дом в монолите

548 кв. жилой дом с широким шагом в монолите

68 кв.

П44-1/17 1-1

1

2

3

4

5

6

7

8

9

10

11

12

13

А. Подземная жилая часть

1.

Земляные работы

2,9

0,93

1,71

0,30

1,17

0,73

0,14

0,10

1,84

0,22

0,79

2.

Фундаменты

3,15

2,85

2,91

4,27

2,93

2,78

3,99

5,12

3,06

8,32

0,08

3.

Каркас

-

-

-

0,67

-

-

-

1,12

-

-

-

4.

Стены

1,79

1,99

1,93

0,68

6,11

1,83

1,76

2,80

2,09

0,58

1,60

5.

Перекрытия

0,88

0,78

0,96

0,46

1,65

0,98

0,79

1,71

1,07

7,43

0,67

6.

Лестницы

-

-

0,13

-

0,23

-

-

0,20

0,13

0,05

0,18

7.

Перегородки

-

0,15

0,02

0,03

0,30

-

-

0,43

0,02

-

-

8.

Окна

0,004

0,04

0,03

0,002

0,02

-

-

0,12

0,03

-

-

9.

Двери

0,01

0,38

0,04

0,013

0,2

0,02

0,01

0,36

0,04

-

-

10.

Полы

-

0,03

0,14

0,13

0,4

0,06

0,13

0,43

0,02

1,01

0,08

11.

Внутренние отделочные работы

0,03

6,03

0,04

0,04

0,26

-

0,04

0,24

0,04

-

0,0001

12.

Наружные отделочные работы

0,05

0,01

0,05

0,03

0,19

0,03

-

-

0,05

-

-

13.

Разные работы

0,07

0,20

-

0,48

0,78

0,06

0,48

0,61

-

-

0,33

Итого по подземной части

8,9

7,39

7,98

7,11

14,26

6,49

7,34

13,26

8,39

17,61

3,98

Надземная часть жилого дома

14.

Каркас

-

-

-

21,37

-

-

-

4,83

-

-

-

15.

Своды, перемычки, стены; ограждения балконов

39,63

39,36

29,42

13,24

29,47

33,44

25,87

19,04

18,88

20,55

31,55

16.

Перекрытие

21,6

19,10

21,67

11,69

12,19

14,87

10,35

14,87

19,84

25,13

10,66

17.

Лестницы

1,38

0,87

0,58

0,55

1,28

0,46

0,76

1,05

0,44

1,36

2,48

18.

Вентиляционные блоки

-

-

-

-

-

-

-

-

-

-

0,59

19.

Кровля

0,69

1,63

1,15

1,14

2,87

5,07

3,36

7,71

3,46

1,86

3,71

20.

Перегородки

3,3

3,05

2,73

2,27

3,3

1,38

3,62

4,09

6,25

3,39

0,53

21.

Витражи, зимний сад и входы

-

3,26

0,61

-

-

-

0,21

-

-

-

-

22.

Двери

4,39

4,88

5,25

3,09

4,20

4,23

5,93

2,94

3,22

2,11

3,83

23.

Встроенные шкафы

-

-

1,43

-

-

-

-

-

-

-

-

24.

Окна

9,79

10,74

2.45

10,07

1,96

10,07

3,31

6,24

10,92

0,47

*

25.

Внутренняя отделка

1,65

4,67

8,12

1,45

8,80

4,21

3,89

2,54

4,23

2,98

2,75

26.

Полы

2,85

2,83

12,23

7,44

11,88

11,12

12,32

9,92.

11,37

16,58

7,82

27.

Сантехкабины

-

-

-

6,37

-

-

7,85

7,49

-

-

9,67

28.

Наружная отделка

0,23

-

-

0,79

-

2,57

2,89

0,87

0,64

6,47

0,08

29.

Разные работы

1,34

0,90

3,82

11,45

3,42

3,60

6,43

3,90

4,4

-

8,04

30.

Мусоропровод

0,05

0,13

0,14

0,18 ,

0.16

0,21

0,09

0,16

0,07

0,21

0,22

31.

Вертикальный транспорт

3,54

1,13

238

1,79

6.21

2,28

5,78,1,

1,08

7,89

1,28

14,12

Итого по надземной части

91,10

92,61

92,02

93,15

85,74

93,51

92,66

86,74

91,61

82,39

96,02

Всего по подземной и надземной жилым частям дома

100%

100%

100%

100%

100%

100%

100%

100%

100%

100%

100%

* - см. п. 15

Соотношение удельных показателей сметной стоимости общестроительных работ по жилым домам (подземная и надземная жилая часть) различных конструктивных систем по отношению к панельной конструктивной системе П44

Таблица 3.4

№№

пп

Наименование элементов и видов работ

Показатели соотношения удельных показателей в процентах

124 кв. жилой монолитный дом

92 кв. жилой монолитный дом

132 кв. жилой каркасно-панельный дом

88 кв. жилой дом в кирпиче

67 кв. жилой дом «ЭКО»

111 кв. жилой дом II-68(блоки)

147 кв. жилой дом «КУБ»

154 кв. жилой дом в монолите

548 кв. жилой дом с широким шагом в монолите

68 кв.

П44-1/17 1-1

1

2

3

4

5

6

7

8

9

10

11

12

А. Подземная жилая часть

1.

Земляные работы

171,71

203,03

72,72

118,18

107,07

75,75

35,35

-

17,17

100%

2.

Фундаменты

5240,0

3420,0

10130,0

2930,0

4010,0

21970,0

17500,0

-

6840,0

100%

3.

Каркас

-

-

-

-

-

-

-

-

-

-

4.

Стены

183,91

114,07

100,0

376,88

132,66

485,92

481,40

-

24,12

100%

5.

Перекрытия

173,49

136,14

132,53

198,79

171,08

521,68

704,81

-

737,34

100%

6.

Лестницы

-

65,21

-

100

-

-

295,65

-

19,13

100%

7.

Перегородки

-

-

-

-

-

-

-

-

-

-

8.

Окна

-

-

-

-

-

-

-

-

-

-

9.

Двери

-

-

-

-

-

-

-

-

-

-

10.

Полы

50,0

160,0

290,0

400,0

80,0

690,0

1480,0

-

830,0

100%

11.

Внутренние отделочные работы

50000,0

50000,0

87000,0

26000,0

-

210000,0

820000,0

-

-

100%

12.

Наружные отделочные работы

-

-

-

-

-

-

-

-

-

-

13.

Разные работы

90,24

-

280,48

190,24

17,07

651,21

507,31

-

-

100%

Итого по подземной части

273,79

188,50

347,58

315,12

189,11

814,31

913,10

397,9

292,54

100%

Б. Надземная часть жилого дома

14.

Каркас

-

-

-

-

-

-

-

 

-

-

15.

Своды, перемычки, стены, ограждения балконов

176,15

87,82

98,19

91,91

122,87

361,87

165,30

108,1

43,03

100%

16.

Перекрытия

263,95

191,42

208,57

91,49

161,77

428,44

382,31

336,2

155,75

100%

17.

Лестницы

52,10

22,00

42,39

41,42

21,35

135,59

115,85

32,36

36,24

100%

18.

Вентиляционные блоки

-

-

-

-

-

-

-

-

-

100%

19.

Кровля

64,71

29,22

72,07

75,97

158,65

400,21

570,34

168,6

33,11

100%

20.

Перегородки

850,0

484,84

815,15

500,0

301,5

3021,2

2115,0

2131,8

422,72

100%

21.

Витражи, зимний сад и входы

-

-

-

-

-

-

-

-

-

-

22.

Двери

62,47

129,35

153,87

87,84

128,09

684,06

210,48

151,9

36,47

100%

23.

Встроенные шкафы

-

-

-

-

-

-

-

-

-

-

24.

Окна

-

-

-

-

-

-

-

-

-

учтены в гр.15

25.

Внутренняя отделка

249,85

277,84

100,0

285,13

177,25

623,32

252,76

277,5

71,13

100%

26.

Полы

32,92

147,28

183,89

131,89

164,92

695,69

347,69

262,5

139,89

100%

27.

Сантехкабины

-

-

125,20

-

-

358,20

212,18

-

-

100%

28.

Наружная отделка

-

-

1880,0

-

3710,0

15910,0

2980,0

1440,0

5330,0

100%

29.

Разные работы

10,76

44,66

270,78

73,87

51,94

352,84

132,80

98,80

-

100%

30.

Мусоропровод

85,71

60,71

150,0

57,14

107,14

182,14

189,28

57,14

62,85

100%

31.

Вертикальный транспорт

11,81

15,90

24,14

586,0

18,75

180,56

20,96

100,9

6,01

100%

Итого по надземной части

130,71

90,21

195,75

77,87

112,89

425,91

247,49

172,3

56,69

100%

Всего по подземной и надземной жилым частям дома

147,29

94,17

201,29

87,31

115,92

441,41

273,98

180,61

66,07

100%

Структура трудоемкости общестроительных работ по подземной и надземной жилой части жилых домов в различных конструктивных системах (в расчете на 1м2 общей площади квартир)

Таблица 3.5

№№

пп

Наименование элементов и видов работ

Показатели соотношения удельных показателей в процентах

124 кв. жилой монолитный дом

92 кв. жилой монолитный дом

132 кв. жилой каркасно-панельный дом

88 кв. жилой дом в кирпиче

67 кв. жилой дом «ЭКО»

111 кв. жилой дом II-б8(блоки)

147 кв. жилой дом «КУБ»

154 кв. жилой дом в монолите

548 кв. жилой дом с широким шагом в монолите

68 кв.

П44-1/17 1-1

А. Подземная жилая часть

1.

Земляные работы

0,48

1,64

0,74

2,77

1,18

1,43

0,64

-

0,15

-

2.

Фундаменты

1,77

1,08

2,32

1,09

2,05

4,58

7,04

-

1,07

-

3.

Каркас

-

-

0,61

-

-

-

0,59

-

-

-

4.

Стены

2,33

1,53

0,79

3,48

1,77

1,58

2,27

-

0,95

-

5.

Перекрытия

0,73

0,48

0,35

0,84

0,87

0,53

0,98

-

5,79

-

6.

Лестницы

-

0,11

-

0,11

-

-

0,17

-

0,08

-

7.

Перегородки

0,48

0,03

0,1

0,46

-

-

0,72

-

-

-

8.

Окна

0,02

0,01

0,001

0,01

-

-

0,08

 

-

-

9.

Двери

0,26

0,02

0,013

0,07

0,005

0,01

0,22

-

-

-

10.

Полы

0,09

0,14

0,18

1,23

0,10

0,30

0,76

-

2,59

-

11.

Внутренние отделочные работы

0,26

0,14

0,22

0,88

-

0,16

1,96

-

-

-

12.

Наружные отделочные работы

0,04

0,09

0,04

0,21

0,02

-

-

-

-

-

13.

Разные работы

0,30

-

0,70

0,60

0,05

0,46

1,39

-

-

-

Итого по подземной части

6,87

5,3

6,04

10,99

6,04

9,05

16,76

-

10,62

-

1 Б. Надземная часть жилого дома

14.

Каркас

-

-

14,14

-

-

-

3,39

-

-

-

15.

Своды, перемычки, стены, ограждения балконов

43,56

27,50

11,82

21,28

31,42

18,18

16,18

-

24,93

-

16.

Перекрытия

12,19

16,47

8,84

4,39

13,06

6,70

8,44

-

25,56

-

17.

Лестницы

0,48

0,40

0,35

0,32

0,25

1,20

0,45

-

1,22

-

18.

Вентиляционные блоки

-

-

-

-

-

-

-

-

-

-

19.

Кровля

1,17

0,51

1,27

2,67

2,85

3,14

6,90

-

2,04

-

20.

Перегородки

3,85

3,94

3,37

4,32

2,85

3,74

4,93

-

7,43

-

21.

Витражи, зимний сад и входы

1,73

0,45

-

-

-

0,28

-

-

-

-

22.

Двери

0,99

3,6

3,77

1,72

1,88

4,07

3,34

 

0,45

-

23.

Встроенные шкафы

-

0,34

-

-

-

-

-

-

-

-

24.

Окна

1,21

0,94

3,72

0,84

4,23

2,57

3,34

-

0,18

-

25.

Внутренняя отделка

21,52

26,31

7,88

35,18

20,18

18,03

12,84

-

13,04

-

26.

Полы

3,07

8,93

8,54

11,48

9,45

16,70

7,26

-

10,49

-

27.

Сантехкабины

-

-

1,71

-

-

2,70

1,85

-

-

-

28.

Наружная отделка

-

-

1,14

-

2,12

1,60

1,63

-

2,35

-

29.

Разные работы

0,95

1,36

22,55

6,57

1,59

5,34

8,07

-

-

-

30.

Мусоропровод

0,22

0,17

0,39

0,21

0,29

0,22

0,28

-

0,21

-

31.

Вертикальный транспорт

2,12

3,74

4,73

-

3,79

6,55

4,18

-

1,73

-

Итого по надземной части

97,45

94,70

93,96

89,0

93,96

91,02

83,08

-

89,63

-

Всего по подземной и надземной жилым частям дома

100%

100%

100%

100%

100%

100%

100%

-

100%

-

Показатели удельной трудоемкости в расчете на 1 м2 общей площади квартир по жилым домам (подземная и надземная жилая часть) в различных конструктивных системах

(чел/часы /1 м2 общ. пл. кв.)                                                                             Таблица 3.6

№№ пп

Наименование элементов и видов работ

Удельные показатели трудоемкости общестроительных работ в расчете на 1м2 общей площади квартир по типам жилых ломов в различных конструктивных системах

124 кв. жилой монолитный дом

92 кв. жилой монолитный дом

132 кв. жилой каркасно-панельный дом

88 кв. жилой дом в кирпиче

67 кв. жилой дом «ЭКО»

111 кв. жилой дом II-б8(блоки)

147 кв. жилой дом «КУБ»

154 кв. жилой дом в монолите

548 кв. жилой дом с широким шагом в монолите

68 кв. П44-1/17 1-1

1

2

3

4

5

6

7

8

9

10

11

12

А. Подземная жилая часть

1.

Земляные работы

0,11

0,58

0,17

0,79

0,24

0,19

0,23

-

0,13

-

2.

Фундаменты

0,41

0,38

0,53

0,31

0,42

0,61

2,51

-

0,95

-

3.

Каркас

-

-

0,14

-

-

-

0,19

-

-

-

4.

Стены

0,54

0,54

0,18

0,99

0,36

0,21

0,81

-

0,84

-

5.

Перекрытия

0,17

0,17

0,08

0,24

0,18

0,07

0,35

-

5,12

-

6.

Лестницы

-

0,04

-

0,03

-

-

0,06

-

0,07

-

7.

Перегородки

0,11

0,011

0,022

0,13

-

-

0,25

-

-

-

8.

Окна

0,004

0,005

0,0002

0,004

-

-

0,03

-

-

-

9.

Двери

0,06

0,006

0,003

0,02

0,001

0,001

0,08

-

-

-

10.

Полы

0,02

0,05

0,04

0,35

0,02

0,04

0,27

-

2,29

-

11.

Внутренние отделочные работы

0,06

0,05

0,05

0,25

-

0,02

0,70

-

-

-

12.

Наружные отделочные работы

0,01

0,03

0,01

0,06

0,004

-

 

-

-

-

13.

Разные работы

0,07

-

0,16

0,17

0,01

0,06

0,49

-

-

-

Итого по подземной части

1,59

1,87

1,38

3,13

1,23

1,21

5,98

-

9,39

-

Б. Надземная часть жилого дома

14.

Каркас

-

-

3,23

-

-

-

1,21

-

-

-

15.

Своды, перемычки, стены, ограждения балконов

10,08

9,7

2,70

6,06

6,40

2,43

5,77

6,68

22,03

-

16.

Перекрытия

2,82

5,81

2,02

1,25

2,66

0,89

3,01

4,60

22,59

-

17.

Лестницы

0,11

0,14

0,08

0,09

0,05

0,16

0,16

0,10

1,08

-

18.

Вентиляционные блоки

-

-

-

-

-

-

-

-

-

-

19.

Кровля

0,27

0,18

0,29

0,76

0,58

0,42

2,46

0,55

1,8

-

20.

Перегородки

0,89

1,39

0,77

1,23

0,58

0,50

1,76

3,42

6,57

-

21.

Витражи, зимний сад и входы

0,40

0,16

-

-

-

0,03

-

-

-

-

22.

Двери

0,23

1,27

0,77

0,49

0,38

0,54

1,19

0,70

0,40

-

23.

Встроенные шкафы

-

0,12

-

-

-

-

-

-

-

-

24.

Окна

0,28

0,33

0,85

0,24

0,86

0,34

1,19

1,21

0,16

-

25.

Внутренняя отделка

4,98

9,28

1,80

10,02

4,11

2,41

4,58

4,45

11,53

-

26.

Полы

0,71

3,15

1,95

3,27

1,92

2,23

2,59

1,96

9,27

-

27.

Сантехкабины

-

-

0,39

-

-

0,36

0,66

-

-

-

28.

Наружная отделка

-

-

0,26

-

0,43

0,21

0,58

0,14

2,08

-

29.

Разные работы

0,22

0,48

5,15

1,87

0,32

0,71

2,88

0,71

-

-

30.

Мусоропровод

0,05

0,06

0,09

0,06

0,06

0,03

0,10

0,03

0,19

-

31.

Вертикальный транспорт

0,49

1,32

1,08

-

0,77

0,87

1,49

2,18

1,53

-

Итого по надземной части

22,59

33,40

21,46

25,35

19,14

12,17

29,69

26,78

78,99

-

Всего по подземной и надземной жилым частям дома

23,14

35,27

22,84

28,48

20,37

13,37

35,67

-

88,38

-

Расчет годовых эксплуатационных затрат по жилым домам (по изменяемым конструктивным элементам общестроительной части) 87 квартирный жилой дом в монолите

Таблица 3.7

(цены 84г.)                                                                           На 1 м2 общей площади квартир

Наименование

Сметная стоимость,

(руб.)

Амортизационные отчисления

Текущее обслуживание и ремонт

Всего годовые эксплуатационные затраты, (руб.)

Всего,

(руб.)

в том числе

%

руб.

восстановление

капитальный ремонт

%

руб.

%

руб.

Фундаменты

4,71

0,0405

0,67

0,0316

0,19

0,0089

-

-

0,0405

Стены всего

61,97

0,5329

0,67

0,4152

0,19

0,1177

-

-

0,5329

В том числе содержание фасадов

0,05

-

-

-

-

-

0,14

0,0001

0,0001

Перегородки железобетонные

4,94

0,0425

0,67

0,0331

0,19

0,0094

-

-

0,0425

Перекрытия

33,63

0,2892

0,67

0,2253

0,19

0,0639

-

-

0,2892

Полы

4,27

0,1964

3,3

0,1409

1,3

0,0555

0,22

0,0094

0,2058

Конструктивные элементы крыши

-

-

0,67

-

0,19

-

-

-

-

Кровля

1,03

0,1731

12,5

0,1288

4,3

0,0443

0,32

0,0033

0,1764

Оконные и балконные дверные блоки

21,24

1,4443

5,0

1,0620

1,8

0,3823

0,27

0,0573

1,5016

Мусоропровод

0,07

0,0010

1,0

0,0007

0,37

0,0003

-

-

00010

Прочие конструктивные элементы

5,3

0,0726

1,0

0,0530

0,37

0,0196

-

-

0,0726

Разные работы

2,11

0,0289

1,0

0,0211

0,37

0,0078

-

-

0,0289

Всего

 

2,8214

 

2,1117

 

0,7097

-

0,0701

2,8915

Расчет, годовых эксплуатационных затрат по жилым домам
(по изменяемым конструктивным элементам общестроительной части)
124 квартирный жилой дом в монолите

Таблица 3.8

(цены 84г.)                                                                       На 1 м2 общей площади квартир

Наименование

Сметная стоимость,

(руб.)

Амортизационные отчисления

Текущее обслуживание и ремонт

Всего годовые эксплуатационные затраты, (руб.)

Всего,

(руб.)

в том числе

%

руб.

восстановление

капитальный ремонт

%

руб.

%

руб.

Фундаменты

5,24

0,045

0,67

0,0351

0,19

0,0099

-

-

0,0450

Стены всего

72,96

0,6724

0,67

0,4888

0,19

0,1386

-

-

0,6724

В том числе содержание фасадов

0,02

-

-

-

-

-

0,14

0,00003

0,00003

Перегородки железобетонные

5,89

0,0506

0,67

0,0394

0,19

0,0112

-

-

0,0506

Перекрытия

36,52

0,3139

0,67

0,2446

0,19

0,0693

-

-

0,3139

Полы

3,26

0,1498

3,3

0,1075

1,3

0,0423

0,22

0,0071

0,1569

Конструктивные элементы крыши

1,99

0,0170

0,67

0,0133

0,19

0,0037

-

-

0,0170

Кровля

1,0

0,1680

12,5

0,125

4,3

0,045

0,32

0,0032

0,1712

Оконные и балконные дверные блоки

23,47

1,5959

5,0

1,1735

1,8

0,4224

0,27

0,0633

1,6592

Мусоропровод

0,24

0,0032

1,0

0,0024

0,37

0,0008

-

-

0,0032

Прочие конструктивные элементы

2,08

0,0285

1,0

0,0208

0,37

0,0077

-

-

0,0285

Разные работы

1,45

0,0199

1,0

0,0145

0,37

0,0054

-

-

0,0199

Всего

 

3,0642

 

2,2649

 

0,7543

 

0,0736

3,1378

Расчет годовых эксплуатационных затрат по жилым домам
(по изменяемым конструктивным элементам общестроительной части)
92 квартирный монолитный жилой дом

Таблица 3.9

(цены 84г.)                                                                       На 1 м2 общей площади квартир

Наименование

Сметная стоимость, (руб.)

Амортизационные отчисления

Текущее обслуживание и ремонт

Всего годовые эксплуатационные затраты, (руб.)

Всего,

(руб.)

в том числе

%

руб.

восстановление

капитальный ремонт

%

руб.

%

руб.

Фундаменты

3,42

0,0294

0,67

0,0229

0,19

0,0065

-

-

0,0294

Стены всего

36,82

0,3166

0,67

0,2467

0,19

0,0699

-

-

0,3166

В том числе содержание фасадов

0,04

-

-

-

-

-

0,14

0,00006

0,00006

Перегородки железобетонные

3,22

0,3442

0,67

0,0215

0,19

0,0061

-

-

0,3442

Перекрытия

26,57

0,2285

0,67

0,1780

0,19

0,0505

-

-

0,2285

Полы

14,52

0,8963

3,3

0,4791

1,3

0,1887

0,22

0,0319

0,9282

Конструктивные элементы крыши

0,9

0,0077

0,67

0,0060

0,19

0,0017

-

-

0,0077

Кровля

0,45

0,0755

12,5

0,0562

4,3

0,0193

0,32

0,0014

0,0769

Оконные и балконные дверные блоки

9,13

0,62208

5,0

0,4565

1,8

0,1643

0,27

0,0246

0,6454

Мусоропровод

0,17

0,0023

1,0

0,0017

 0,37

0,0006

-

-

0,0023

Прочие конструктивные элементы

2,8

0,0384

1,0

0,028

0,37

0,0104

-

-

0,0384

Разные работы

4,88

0,0668

1,0

0,0488

0,37

0,0180

-

-

0,0668

Всего

 

2,0814

 

1,5454

 

0,536

 

0,0579

2,6845

Расчет годовых эксплуатационных затрат по жилым домам
(по изменяемым конструктивным элементам общестроительной части)
132 квартирный жилой каркасно-панельный дом

Таблица 3.10

(цены 84г.)                                                                       На 1 м2 общей площади квартир

Наименование

Сметная стоимость, (руб.)

Амортизационные отчисления

Текущее обслуживание и ремонт

Всего годовые эксплуатационные затраты, (руб.)

Всего,

(руб.)

в том числе

%

руб.

восстановление

капитальный ремонт

%

руб.

%

руб.

Фундаменты

10,13

0,0871

0,67

0,0679

0,19

0,0192

-

-

0,0871

Стены всего

33,03

0,4525

1,0

0,3303

0,37

0,1222

-

-

0,4525

В том числе содержание фасадов

0,03

-

-

-

-

-

0,14

0,0001

0,0001

Каркас

52,37

0,45504

0,67

0,3509

0,19

0,0995

-

-

0,4504

Перегородки железобетонные

5,46

0,07481

1,0

0,0546

0,37

0,0202

-

-

0,0748

Перекрытия

28,82

0,2479

0,67

0,1931

0,19

0,0548

-

-

0,2479

Полы

18,22

0,8382

3,3

0,6013

1,3

0,2369

0,22

0,0401

0,8783

Конструктивные элементы крыши

1,63

0,0140

0,67

0,0109

0,19

0,0031

-

-

0,0140

Кровля

1,08

0,1814

12,5

0,1350

4,3

0,0464

0,32

0,0035

0,1849

Оконные и балконные дверные блоки

31,51

2,1427

5,0

1,5755

1,8

0,5672

0,27

0,0851

2,2278

Мусоропровод

0,42

0,0058

1,0

0,0042

0,37

0,0016

-

-

0,0058

Прочие конструктивные элементы

19,35

0,2651

1,0

0,1935

0,37

0,0716

-

-

0,2651

Разные работы

28,31

0,3878

1,0

0,2831

0,37

0,1047

-

-

0,3878

Всего

 

5,1477

 

3,8003

 

1,3474

 

0,1288

5,2765

Расчет годовых эксплуатационных затрат по жилым домам
(по изменяемым конструктивным элементам общестроительной части)
88 квартирный жилой дом в кирпиче

Таблица 3.11

(цены 84г.)                                                                       На 1 м2 общей площади квартир

Наименование

Сметная стоимость, (руб.)

Амортизационные отчисления

Текущее обслуживание и ремонт

Всего годовые эксплуатационные затраты, (руб.)

Всего

(руб.)

в том числе

%

руб.

восстановление

капитальный ремонт

%

руб.

%

руб.

Фундаменты

2,93

0,0252

0,67

0,0196

0,19

0,0056

-

-

0,0252

Стены всего

35,51

0,3800

0,80

0,2841

0,27

0,0959

-

-

0,3800

В том числе содержание фасадов

0,02

-

-

-

-

-

0,14

0,0001

0,0001

Перегородки железобетонные

3,6

0,0644

1,3

0,0468

0,49

0,0176

-

-

0,0644

Перекрытия

13,81

0,1187

0,67

0,0925

0,19

0,0262

-

-

0,1187

Полы

13,26

0,6100

3,3

0,4376

1,3

0,1724

0,22

0,0291

0,6391

Конструктивные элементы крыши

1,72

0,0148

0,67

0,0115

0,19

0,0033

-

-

0,0148

Кровля

0,64

0,1075

1,25

0,0800

4,3

0,0275

0,32

0,0020

0,1095

Оконные и балконные дверные блоки

6,37

0,4332

5,0

0,3185

1,8

0,1147

0,27

0,0172

0,4504

Мусоропровод

7,41

0,1015

1,0

0,0741

0,37

0,0274

-

-

0,1289

Прочие конструктивные элементы

6,2

0,0849

1,0

0,0620

0,37

0,0229

-

-

0,0849

Разные работы

8,19

0,1122

1,0

0,0819

0,37

0,0303

-

-

0,1122

Всего

 

2,0524

 

1,5086

 

0,5438

 

0,0484

2,1282

Расчет годовых эксплуатационных затрат по жилым домам
(по изменяемым конструктивным элементам общестроительной части)
67 квартирный жилой дом «ЭКО»

Таблица 3.12

(цены 84г.)                                                                       На 1 м2 общей площади квартир

Наименование

Сметная стоимость,

(руб.)

Амортизационные отчисления

Текущее обслуживание и ремонт

Всего годовые эксплуатационные затраты, (руб.)

Всего,

(руб.)

в том числе

%

руб.

восстановление

капитальный ремонт

%

руб.

%

руб.

Фундаменты

4,01

0,0344

0,67

0,0268

0,19

0,0076

-

-

0,0344

Стены всего

50,98

0,4384

0,67

0,3415

0,19

0,0969

-

-

0,4384

В том числе содержание фасадов

0,04

-

-

-

-

-

0,14

0,0001

0,0001

Перегородки железобетонные

1,99

0,0171

0,67

0,0133

0,19

0,0038

-

-

0,0171

Перекрытия

22,92

0,1971

0,67

0,1536

0,19

0,0435

-

-

0,1971

Полы

16,16

0,7434

3,3

0,5333

1,3

0,2101

0,22

0,0355

0,7789

Конструктивные элементы крыши

4,40

0,0379

0,67

0,0295

0,19

0,0084

-

-

0,0379

Кровля

2,93

0,4923

12,5

0,3663

4,3

0,1260

0,32

0,0094

0,5017

Оконные и балконные дверные блоки

20,68

1,4062

5,0

1,0340

1,8

0,3722

0,27

0,0558

1,4620

Мусоропровод

0,30

0,0041

1,0

0,0030

0,37

0,0011

-

-

0,0041

Прочие конструктивные элементы

3,30

0,0452

1,0

0,0330

0,37

0,0122

-

-

0,0452

Разные работы

5,28

0,0723

1,0

0,0528

0,37

0,0195

-

-

0,0723

Всего

 

3,4884

 

2,5871

 

0,9013

 

 

3,5892

Расчет годовых эксплуатационных затрат по жилым домам
(по изменяемым конструктивным элементам общестроительной части)
111 квартирный блочный жилой дом

Таблица 3.13

(цены 84г.)                                                                    На 1 м2 общей площади квартир

Наименование

Сметная стоимость (руб.)

Амортизационные отчисления

Текущее обслуживание и ремонт

Всего годовые эксплуатационные затраты, (руб.)

Всего,

(руб.)

В том числе

%

руб.

восстановление

капитальный ремонт

%

руб.

%

руб.

Фундаменты

21,97

0,1491

0,67

0,14720

 0,19

0019

-

-

0,1491

Стены всего

152,03

1,6723

0,80

1,2162

0,30

0,4561

-

-

1,6723

В том числе содержание фасадов

0,10

-

-

-

-

-

0,14

0,0014

0,0014

Перегородки железобетонные

19,34

0,2127

0,80

0,1547

0,30

0,0580

-

-

0,2127

Перекрытия

61,27

0,6740

0,80

0,4902

0,30

0,1838

-

-

0,6740

Полы

68,04

3,1298

3,3

2,2453

1,3

0,8845

0,22

0,1497

3,2795

Конструктивные элементы крыши

11,09

0,1630

0,67

0,0743

0,80

0,0887

-

-

 

Кровля

7,4

1,2432

12,5

0,9250

4,3

0,3182

0,32

0,0237

1,2669

Оконные и балконные дверные блоки

50,95

3,4646

5,0

2,5475

1,8

0,9171

0,27

0,1376

3,6022

Мусоропровод

0,51

0,0070

1,0

0,0051

0,37

0,0019

-

-

0,0070

Прочие конструктивные элементы

74,98

1,0272

1,0

0,7498

0,37

0,2774

-

-

1,0272

Разные работы

38,06

0,5214

1,0

0,3806

0,37

0,1408

-

-

0,5214

Всего

 

12,2643

 

8,9359

 

3,3284

 

0,3124

12,4137

Расчет годовых эксплуатационных затрат по жилым домам
(по изменяемым конструктивным элементам общестроительной части)
147 квартирный жилой дом в безригельном каркасе «КУБ»

Таблица 3.14

(цены 84г.)                                                                       На 1 м2 общей площади квартир

Наименование

Сметная стоимость,

(руб.)

Амортизационные отчисления

Текущее обслуживание и ремонт

Всего годовые эксплуатационные затраты, (руб.)

Всего,

(руб.)

в том числе

%

руб.

восстановление

капитальный ремонт

%

руб.

%

руб.

Фундаменты

9,14

0,0785

0,67

0,0612

0,19

0,0173

-

-

0,0785

Стены всего

38,6

0,5288

1,0

0,3860

0,37

0,1428

-

-

0,5288

В том числе содержание фасадов

0,04

-

-

-

-

-

0,14

0,0001

0,0001

Каркас

10,62

0,0913

0,67

0,0712

0,19

0,0201

-

-

0,0913

Перегородки железобетонные

8,07

0,1105

1,0

0,0807

0,37

0,0298

-

-

0,1105

Перекрытия

28,86

0,2482

0,67

0,1934

0,19

0,0548

-

-

0,2482

Полы

18,49

0,8628

3,3

0,6224

1,3

0,2404

0,22

0,0407

0,9035

Конструктивные элементы крыши

7,91

0,0680

0,67

0,0530

0,19

0,0150

-

-

0,0680

Кровля

5,27

0,8854

12,5

0,6588

4,3

0,2266

0,32

0,0169

0,9023

Оконные и балконные дверные блоки

17,55

1,1934

5,0

0,8775

1,8

0,3159

0,27

0,0473

1,2407

Мусоропровод

0,27

0,0037

1,0

0,0027

0,37

0,0010

-

-

0,0037

Прочие конструктивные элементы

15,3

0,2096

1,0

0,1530

0,37

0,0566

-

-

0,2096

Разные работы

11,04

0,1512

1,0

0,1104

0,37

0,0408

-

-

0,1512

Всего

 

4,4314

 

3,2703

 

1,1611

 

0,1050

4,5364

Расчет годовых эксплуатационных затрат по жилым домам
(по изменяемым конструктивным элементам общестроительной части)
154 квартирный жилой дом в монолите

Таблица 3.15

(цены 84г.)                                                                         На 1 м общей площади квартир

Наименование

Сметная стоимость,

(руб.)

Амортизационные отчисления

Текущее обслуживание и ремонт

Всего годовые эксплутационные затраты, (руб.)

Всего,

(руб.)

в том числе

%

руб.

восстановление

капитальный ремонт

%

руб.

%

руб.

Фундаменты

6,9

0,0593

0,67

0,0462

 0,19

0,0131

-

-

0,0593

Стены наружные, всего

47,11

0,4051

0,67

0,3156

0,19

0,0895

-

-

0,3951

В том числе содержание фасадов

0,02

-

-

-

-

-

0,14

0,0001

0,0001

Перегородки железобетонные

14,11

6,1213

0,67

0,0945

0,19

0,0268

-

-

0,1213

Перекрытия

46,98

0,4039

0,67

0,3147

0,19

0,0892

-

-

0,4039

Полы

25,69

1,1816

3,3

0,8477

1,3

0,3339

0,22

0,0565

1,2381

Конструктивные элементы крыши

3,04

0,0260

0,67

0,0203

0,19

0,0057

-

-

0,0260

Кровля

4,75

0,7979

12,5

0,5937

4,3

0,2042

0,32

0,0152

0,8131

Оконные и балконные дверные блоки

32,0

2,1760

5,0

1,6000

1,8

0,5760

0,27

0,0864

2,2624

Мусоропровод

0,16

0,0021

1,0

0,0016

0,37

0,0005

-

-

0,0021

Прочие конструктивные элементы

17,76

0,2433

1,0

0,1776

0,37

0,0657

-

-

0,2433

Разные работы

9,91

0,1357

1,0

0,0991

0,37

0,0366

-

-

0,1357

Всего

208,43

5,5522

 

4,1110

 

1,4412

 

0,1582

5,7104

Расчет годовых эксплуатационных затрат по жилым домам
(по изменяемым конструктивным элементам общестроительной части)
548 квартирный жилой дом в монолите с широким шагом

Таблица 3.16

(цены 84г.)                                                                       На 1 м2 общей площади квартир

Наименование

Сметная стоимость,

(руб.)

Амортизационные отчисления

Текущее обслуживание и ремонт

Всего годовые эксплуатационные затраты, (руб.)

Всего,

(руб.)

в том числе

%

руб.

восстановление

капитальный ремонт

%

руб.

%

руб.

Фундаменты

6,84

0,0588

0,67

0,0458

0,19

0,0130

-

-

0,0588

Стены, всего

17,41

0,1497

0,67

0,1166

0,19

0,0331

-

-

0,1497

В том числе содержание фасадов

0,04

-

-

-

-

-

0,14

0,0001

0,0001

Перегородки железобетонные

2,79

0,0240

0,67

0,0187

0,19

0,0053

-

-

0,0240

Перекрытия

26,82

0,2307

0,67

0,1797

0,19

0,0510

-

-

0,2307

Полы

14,47

0,6656

3,3

0,4775

1,3

0,1881

0,22

0,0318

0,6974

Конструктивные элементы крыши

0,92

0,0079

0,67

0,0062

0,19

0,0017

-

-

0,0079

Кровля

0,61

0,1025

12,5

0,0763

4,3

0,0262

0,32

0,0020

0,1045

Оконные и балконные дверные блоки

2,13

0,1448

5,0

0,1065

1,8

0,0383

0,27

0,0058

0,1506

Мусоропровод

0,18

0,0025

1,0

0,0018

0,37

0,0007

-

-

0,0025

Прочие конструктивные элементы

1,06

0,0145

1,0

0,0106

0,37

0,0039

-

-

0,0145

Разные работы

-

-

1,0

-

0,37

-

-

-

-

Всего

 

1,4010

 

1,0397

 

0,3613

 

0,0397

1,4407

Расчет годовых эксплуатационных затрат по жилым домам
(по изменяемым конструктивным элементам общестроительной части)
П44-1/17

Таблица 3.17

(цены 84г.)                                                                         На 1 м общей площади квартир

Наименование

Сметная стоимость, (руб.)

Амортизационные отчисления

Текущее обслуживание и ремонт

Всего годовые эксплуатационные затраты, (руб.)

Всего,

(руб.)

в том числе

%

руб.

восстановление

капитальный ремонт

%

руб.

%

руб.

Фундаменты

0,10

0,0014

1

0,001

0,37

0,00037

-

-

0,0014

Стены, всего

38,33

0,5251

1

0,3833

0,37

0,1418

-

-

0,5251

В том числе содержание фасадов

0,03

-

-

-

-

-

0,14

0,00004

0,00004

Перегородки железобетонные

0,66

0,0240

1

0,0066

0,37

0,0024

-

-

0,0090

Перекрытия

14,12

0,1934

1

0,1412

0,37

0,0522

-

-

0,1934

Полы

9,85

0,2649

2

0,197

0,69

0,0679

0,22

0,0216

0,2865

Конструктивные элементы крыши

3,12

0,0425

1

0,031

0,37

0,0115

-

-

0,0540

Кровля

1,50

0,1845

8,3

0,1245

4

0,060

0,32

0,0048

0,1893

Оконные и балконные дверные блоки

7,77

0,2719

2,5

0,1942

1

0,0777

0,27

0,0210

0,2929

Мусоропровод

0,28

0,0038

1

0,0028

0,37

0,0010

-

-

0,0048

Прочие конструктивные элементы (сантехкабины, шахты лифтов, лифты)

29,66

0,4063

1

0,2966

0,37

0,1097

-

-

0,516

Разные работы

10,44

0,4396

1

0,401

0,37

0,03862

-

-

0,4782

Всего

 

2,3424

 

1,7792

 

1,1031

 

0,0474

2,3898

Показатели приведенных затрат по изменяемым конструктивным элементам общестроительной части жилых домов (до корректировки)

Таблица 3.18

(цены 84г.)                                                                       На 1 м2 общей площади квартир

№№

пп

Наименование проектов

Сметная стоимость (руб.)

Эксплуатационные расходы

(руб.)

Приведенные затраты (руб.)

Эксплуатационные расходы за весь период эксплуатации здания (руб.)

Приведенные затраты с учетом эксплуатационных расходов за весь период эксплуатации здания (руб.)

1.

87-квартйрный жилой дом в монолите 22 эт.

139,3

2,89

20,84

433,5

451,5

2.

124-квартирный жилой дом в монолите 16 эт.

154,12

3,14

21,63

471,0

489,50

3.

92-квартирный жилой дом в монолите 18 эт.

102,92

2,68

15,30

402,0

414,4

4.

132-квартирный каркасно-панельный жилой дом 24 эт.

230,36

5,28

32,92

660,0

687,6

5.

88-квартиный жилой дом в кирпиче 11 эт.

99,66

2,13

14,09

319,5

413,9

6.

67-квартирный жилой дом «ЭКО» 17 эт.

132,99

3,59

19,54

538,5

554,5

7,

111-квартирный жилой блочный дом (П-68) 16 эт.

505,74

12,41

73,09

1241,0

1301,7

8,

147-квартирный жилой дом «КУБ» 7 эт.

171,16

4,54

25,08

681,0

701,54

9.

154-квартирный жилой дом в монолите 24 эт.

208,43

5,71

30,72

856,5

881,5

10.

548-квартирный жилой дом в монолите 17 эт.

73,27

1,44

10,23

216,0

224,8

11.

68-квартирный жилой дом П-44-1/17 17 эт.

115,86

2,39

16,29

358,5

372,4

Корректировка с учетом привязки подземной части здания (для типовых проектов)

Среди рассматриваемых проектов присутствуют индивидуальные, повторно применяемые и типовые проекты. Последние требуют соблюдения условий сопоставимости в части учета дополнительных затрат на привязку «нулевого цикла». Расчеты, проводились только в отношении подземной жилой части домов.

Корректировка проводилась по проектам следующих жилых домов:

- 67-квартирный, 17-этажный жилой дом «ЭКО»;

- 111-квартирный, 16-этажный панельно-блочный жилой дом серии II-68;

- 548-квартирный, 17-этажный жилой дом с широким шагом в монолите;

- 68-квартирный, 17-этажный жилой дом серии П-44 из унифицированных изделий территориального каталога.

На основании изучения показателей изменения стоимостных показателей в результате привязки подземной части жилых домов, в качестве расчетного принято, что усредненное увеличение составляет 9,5% увеличения стоимости общестроительных работ по подземной части.

Ниже приводятся показатели корректировки в результате привязки подземной части дома.

Таблица 3.19

(цены 84 года)

№№

пп

Наименование проектов

Величина корректировки стоимости общестроительных работ подземки части жилого дома (руб./м2 общ.пл.квартир) «+ - » увеличение)

1.

67 кв., 17 эт. жилой дом («ЭКО»)

+0,89

2.

111 кв., 16 эт. жилой дом серии П-68

+3,83

3.

548 кв., 17 эт. жилой дом в монолите

+1,38

4.

68 кв., 17 эт. жилой дом серии П-44

+0,47

Корректировка показателей с учетом мероприятий по энергосберегающим мероприятиям

Требованиями Московских городских строительных норм МГСН 2.01-99 «Нормативы по теплозащите и тепловодоэлектроснабжению» и Изменением № 3 к СНиП II-3-79 «Строительная теплотехника» установлены параметры приведенного сопротивления теплопередаче в панелях наружных стен, в том числе для нового строительства начиная с 1 июня 1996 года. Это вызывает необходимость в корректировке стоимостных показателей ряда проектов, не отвечающих установленным требованиям, в части проведения теплосберегающих мероприятий:

- проект 132-квартирного, 24-этажного жилого дома в каркасно-панельных конструкциях;

- проект 88-квартирного, 11-этажного жилого дома в кирпиче.

Усредненная величина удорожания стоимости общестроительных работ за счет проведения энергосберегающих мероприятий составляет 24% от суммарной стоимости по разделам «Стены» и «Окна», что в расчете на один квадратный метр площади квартир по корректируемым проектам составит соответственно удорожание на 13,76 и 9,07 рублей.

Корректировка показателей по этажности

Уровень технико-экономических показателей проектов жилых зданий среди прочих факторов зависит от этажности. При этом необходимо учитывать размер общей площади, обслуживаемой лифтами и решение лестнично-лифтовых узлов и внеквартирных коммуникаций.

Исследования ЦНИИЭП жилища (см. «Экономическое прогнозирование городского жилищного строительства», Д.Г. Тонский) показывают, что в группе 6-9-этажных однолифтовых домов наиболее экономичны 9-этажные, а в группе 10-16-этажных жилых зданий с двумя лифтами - 12-16-этажные дома.

Устройство двух лифтов, незадымляемой противопожарной лестницы, дополнительное усиление несущих конструкций в 16-этажных зданиях вызывают рост стоимости строительства 1 м2 общей площади до 10% по сравнению с 9-этажными зданиями

Увеличение этажности до 25 этажей, влекущее за собой необходимость установки большего количества лифтов, еще большее усиление несущих конструкций, усложнение санитарно-технических систем, влечет за собой еще более значительное возрастание стоимости одного квадратного метра общей площади - до 30%.

Еще более интенсивно чем единовременные затраты увеличиваются по мере возрастания этажности текущие расходы: так эксплуатационные расходы в расчете на 1 м2 общей площади в домах в 16 этажей на 25-30%, а в домах в 25 этажей - на 6% выше, чем в 9-этажных зданиях.

В результате приведенные затраты по зданиям увеличиваются в 16-этажных на 15-20%, в 25-этажных - до 50% по сравнению с 9-этажными.

В 1997 году в МНИИТЭПе проводилось исследование изменения технико-экономических показателей по жилым домам в зависимости от этажности. На примере 9-12-16-25 этажей по следующим конструктивным системам: кирпичная, панельная, блочная, каркасная, монолитная с кирпичными наружными стенами.

В пределах каждой конструктивной системы этажность в 9 этажей принималась за 100% и по отношению к ней рассматривалось изменение показателей стоимости и материалоемкости в расчете на один квадратный метр общей площади квартир. По всем рассматриваемым системам выявлена тенденция относительного роста удельных показателей при увеличении этажности. Результаты сопоставлений приведены в таблице 3.20

Увеличение сметной стоимости строительно-монтажных работ в связи с увеличением этажности в различных строительно-конструктивных системах

(на 1 м2 общей площади квартир)                                                                    Таблица 3.20

№№

пп

Строительно-конструктивная система

Этажность

Средний показатель роста сметной стоимости с.м.р. на каждый дополнительный этаж (%)

9

12

16

25

1.

Кирпичная

100%

+8,5%*,

-

-

+2,8%

2,8%**

2.

Панельная

100%

+4,3%

+24.8%

+62,4%

+2,95%

+1,43%

+3,54%

+3,9%

3.

Блочная

100%

+2,3%

+15,9%

-

+1,52%

+0,77%

+2,2%

4.

Каркасная

100%

+2,3%

+17,2%

+44,8%

+2,01%

+0,77%

+2,46%

+2,8%

5.

Монолитная с кирпичными наружными стенами

-

-

100%

+23,6%

+2,62%

+2,62%

 

Среднее значение по всем системам

 

 

 

 

+2,4%

* - увеличение в расчете па всю этажность по сравниваемым зданиям.

** - увеличение в расчете на каждый дополнительный этаж.

Повышение этажности жилых домов является одним из важнейших факторов, влияющих на экономичность показателей строительства, ибо при этом происходит усложнение архитектурно-планировочной структуры здания: включение лифта в планировочное решение влечет за собой увеличение площади лестнично-лифтового узла в появление внеквартирных коридоров; происходит усложнение конструктивного решения в связи с необходимостью усиления вертикальных несущих конструкций нижних этажей, фундаментов и т.д., что в итоге приводит к росту стоимости несущих конструкций и инженерного оборудования.

Методически корректировка стоимостных показателей по этажности осуществлялась следующим образом: в качестве проекта - аналога принят проект дома серии П-44 и к его этажности в 17 этажей приводилась этажность по другим рассматриваемым проектам.

При этом, по проектам зданий с меньшей чем 17-этажностыо стоимость увеличивалась, а по проектам с большей, чем 17 этажей соответственно уменьшалась из расчета 2,4% стоимости на каждую единицу в разности этажности по сравнению с аналогом.

В итоге величина корректировки стоимости общестроительных работ в расчете на 1 м2 общей площади квартир составила ("+" увеличение; "-" уменьшение):

- 87 кв., 22 эт. (монолит) - 17,95 руб.

- 124 кв., 16 эт. (монолит) + 4,4 руб.

- 92 кв., 18 эт. (монолит) - 2,82 руб.

- 132 кв., 24 эт. (каркасно-панельный) - 39,85 руб.

- 88 кв., 11 эт. (кирпич) + 14,37 руб.

- 67 кв., 17 эт. («ЭКО» сборно-монолит.) -

- 111 кв., 16 эт. (панельно-блочный) + 13,21 руб.

- 147 кв., 7 эт. («КУБ» безригельный каркас) + 42,86 руб.

- 154 кв., 24 эт. (монолит) - 37,83 руб.

- 548 кв., 17 эт. (монолит) -

Корректировка с учетом планировочных решений (по составу квартир)

Среди многих факторов, оказывающих воздействие на экономичность жилых домов необходимо отметить размер квартир. В последнее время отмечается четкая тенденция к росту площадей подсобных, жилых и дополнительных помещений, а, следовательно, и квартиры в целом. Новые требования по уровню комфорта жилища получили отражение в МГСН 3.01-96 «Жилые здания», в которых введена классификация квартир по уровню комфорта на I и II категории; при этом I категория предполагает нормируемые ограничения нижних пределов площадей квартир с учетом достигнутого уровне жилищного стандарта и не ограничивает верхние пределы, II категория регламентирует нормирование и нижних и верхних пределов площадей квартир.

Рассматриваемые в настоящей работе проекты жилых домов также отличаются между собой по составу квартир: далее приводится эта характеристика:

Таблица 3.21

Типы квартир

Число квартир

Жилая площадь квартиры / общая площадь квартиры

% квартир данного типа

1

2

3

4

- 124 квартирный, 24 этажный жилой дом (монолит), в том числе:

1 комнатных

32

19,6м2

54,5м2

26%

2 комнатных

45

36,8м2

76,2м2

36%

3 комнатных

31

60,3м2

109,1м2

25%

4 комнатных

16

89,2м2

141,5м2

13%

- 92 квартирный, 18 этажный жилой дом (монолит), в том числе:

1 комнатных

9

20,7м2

50,92м2

9,7%

2 комнатных

20

28,7м2

60,1м2

21,7%

2 комнатных

20

33,1м2

66,5м2

21,7%

2 комнатных

9

34,22%

73,91%

9,7%

3 комнатных

14

49,1м2

79,37м2

15,2%

3 комнатных

14

49,7м2

79,97м2

15,2%

4 комнатных

6

70,59м2

129,59м2

6,8%

- 132 квартирный, 24 этажный жилой дом (каркасно-панельный), в том числе:

1 комнатных

44

18,38м2

38,08м2

33,3%

2 комнатных

44

29,12м2

53,88м2

33,3%

2 комнатных

44

44,68м2

71,99м2

33,3%

- 88 квартирный, 11 этажный жилой дом в кирпиче, в том числе:

1 комнатных

1

 

1,1%

2 комнатных

49

57,25м2

60,32м2

57,01м2

60,11м2

55,7%

3 комнатных

14

79,20м2

83,36м2

85,30м2

88,90м2

43,2%

- 67 квартирный, 17 этажный жилой дом в «ЭКО», в том числе:

1 комнатных «М»

17

17,35м2

33,95м2

17,99м2

34,20м2

25,4%

2 комнатных «М»

34

27,11м2

45,79м2

50,7%

3 комнатных «М»

16

41,78м2

64,71м2

23,9%

- 111 квартирный, 16 этажный панельно-блочный жилой дом серии II-68, в том числе

1 комнатных «Б»

47

19,05м2

38,21м2

42,3%

3 комнатных «Б»

32

28,19м2

54,17м2

29,0%

3 комнатных «М»

1

34,24м2

58,61м2

0,9%

3 комнатных «Б»

31

45,99м2

67,69м2

27,9%

- 147 квартирный, 7 этажный жилой дом (безригельный каркас со сборно-монолитными перекрытиями), в том числе:

1 комнатных «Б»

5

21,6м2

62,6м2

3,4%

2 комнатных «Б»

67

36,5м2

73,0м2

37.7м2

74,7м2

45,6%

3 комнатных «Б»

47

48,4м2

89,8м2

44,6м2

80,3м2

32%

4 комнатных «Б»

6

66,1м2

110,2м2

4,1%

Двухуровневых 2 комнатных «Б»

1

60,1м2

130,1м2

42.7м2

96,6м2

0,7%

4 комнатных «Б»

13

70,4м2

140,3м2

74,4м2

145,5м2

8,8%

6 комнатных «Б»

7

83,1м2

157,5м2

81,7м2

156,5м2

4,1%

7 комнатных «Б»

1

96,4м2

197,5м2

0,7%

-154 квартирный, 24 этажный жилой дом в монолите, в том числе:

1 комнатных «Б»

60

17,3м2

35,8м2

39%

2 комнатных «Б»

44

31,9м2

58,8м2

22%

3 комнатных «Б»

60

45,5м2

75,4м2

39%

- 548 квартирный, 17 этажный жилой дом в монолите, в том числе:

1 комнатных «М»

286

32,62м2; 34,41м2

52,2%

2 комнатных «М»

31

44,5м2; 47,84м2

5,7%

2 комнатных «Б»

1

52,76м2

0,2%

3 комнатных «М»

140

59,84м2; 60,46м2; 63,62м2; 63,96м2; 64,29м2; 64,68м2

25,5%

3 комнатных «Б»

4

66,72м2; 67,59м2

0,7%

4 комнатных «Б»

30

83,26м2

5,5%

5 комнатных «М»

44

89,66м2

8,0%

5 комнатных «Б»

12

93,56м2; 97,29м2

2,2%

- 68 квартирный, 17 этажный жилой дом серии П-44, в том числе:

1 комнатных «Б»

-17

18,9м2

37,8м2

19,1м2

38,0м2

25%

2 комнатных «Б»

-34

30,3м2 31,8м2

50,2м2 55,9м2

32.2м2 33.7м2

56,3м2 57,8м2

50%

3 комнатных «Б»

-17

42,9м2 43,3м2 44,8м2

71,9м2 72,3м2 73,8м2

25%

Корректировка показателей проектов с различными по составу наборами квартир осуществляется с помощью системы расчетных коэффициентов, разработанной МНИИТЭП, в которой за единицу принимается двухкомнатная квартира категории «Б* по МГСН 3.01-96, а остальные квартиры получили соответственно большие или меньшие коэффициенты в зависимости от количества комнат и их площади:

1 комнатная «М» -1,06

1 комнатная «Б» -1,05

2 комнатная «М» -1,01

2 комнатная «Б» -1,0

3 комнатная «М» -0,98

3 комнатная «Б» -0,97

4 комнатная «М» -0,95

4 комнатная «Б» -0,96

5 комнатная «М» -0,95

5 комнатная «Б» -0,94

В результате величина корректировки стоимостных показателей в зависимости от состава квартир по рассматриваемым проектам составила: («+» увеличение, «-» «уменьшение) (в расчете на 1 м2 общей площади квартир):

124 кв. 16 эт. (монолит) +0,04 руб.

92 кв. 18 эт. (монолит) -3,14 руб.

132 кв. 24 эт. (каркасно-панельный) -0,81 руб.

88 кв. 11 эт. (кирпич) -1,24 руб.

67 кв. 17 эт. («ЭКО») +2,23 руб.

111 кв. 16 эт. (панельно-блочный) +7,47 руб.

147 кв. 7 эт. (безригельный каркас) -2,84 руб.

154 кв. 24 эт. (монолит) -1,75 руб.

548 кв. 11 эт. (монолит) -1,53 руб.

68 кв. 17 эт. (П-44) -0,61 руб.

Корректировка с учетом срока службы несущих конструкций

Долговечность зданий и конструкций оказывает непосредственное влияние на уровень технико-экономических показателей проектов, ибо с увеличением срока службы уменьшается частота капитальных ремонтов и абсолютная величина отчислений на их проведение, также снижается размер годовых отчислений на реновацию и текущий ремонт, что при прочих равных условиях сокращает размер эксплуатационных затрат на содержание зданий.

Определение экономического результата при этом осуществлялось исходя из следующих предпосылок: более длительный по сравнению с панельной серией срок службы конструкций (кирпич, каркасно-панельные, монолитные) предполагает необходимость строительства панельного здания после истечения срока службы дома-аналога для обеспечения сопоставимых условий, в то время как более долгосрочные конструктивные сравниваемые системы еще продолжают функционировать, что непосредственно снижает стоимость в конструкциях с большим сроком службы в связи с приведением к одинаковому периоду (150, 125 лет) эксплуатации.

При этом эксплуатационные расходы по сравниваемым вариантам, приходящиеся на период превышающий норматив долговечности в 100 лет (50 и 25 лет по вариантам) пересчитанные на срок службы соответствующих строительных систем, обеспечат относительное снижение удельных величин эксплуатационных затрат по этим системам.

Вместе с тем, необходимо отметить, что с увеличением срока службы конструкций обеспечивается возможность более длительной эксплуатации жилого дома, что в свою очередь, позволяет получать дополнительный экономический результат, выраженный через сумму амортизационных отчислений за период более длительной эксплуатации.

Величины этого экономического результата по рассматриваемым проектам по сравнению с проектом П-44 приводится в нижеследующей таблице.

Расчет экономического результата от более длительного срока службы конструкций по сравнению с аналогом проектом П-44-1/17

Таблица 3.22

(в ценах 84 г.)                                                             (руб. /1м2 общей площади квартиры)

№№ пп

Наименование проектов

Удельные показатели эксплуатационных расходов

Срок службы

Превышение срока к сроку службы аналога (+ ув., - ум.)

Эксплуатационные расходы за период превышения срока службы в 100 лет

Экономия экспл. расходов в расчете на годовую размерность за весь период эксплуатации

1.

124 кв. жилой дом в монолите, 16 эт.

3,14

150

+50

157

1,04

2.

92 кв. жилой дом в монолите, 18 эт.

2,68

150

+50

134

0,89

3.

132 кв. каркасно-панельный жилой дом, 24 эт.

5,28

125

+25

132

1,06

4.

88 кв. жилой дом в кирпиче 11 эт.

2,13

150

+50

106,5

0,71

5.

67 кв. жилой дом «ЭКО»,17 эт.

3,59

150

+50

179,5

1,20

6.

111 кв. жилой блочный дом (П-68), 16 эт.

12,41

100

-

-

-

7.

147 кв. жилой дом «КУБ», 7 эт.

8,64

150

+50

432

2,81-

8.

154 кв. жилой дом в монолите, 24 эт.

5,71

150

+50

285,5

1,90

9.

548 кв. жилой дом в монолите, 17 эт.

1,44

150

+50

72

0,48

10.

68 кв. жилой дом П-44, 17эт.

2,39

100

-

-

-

Корректировка показателей с учетом стоимостной оценки территорий, занимаемых ДСК

В целях рационального использования земельных ресурсов и повышения эффективности инвестиций в строительстве существует объективная необходимость в экономической оценке территорий для определения наиболее эффективного варианта строительства.

Земли, отведенные под строительство, не однородны и имеют различную природную ценность и качественную пригодность для размещения строительства.

Использование одних и тех же территорий под различное назначение - жилищное, коммунальное, промышленное и др. виды строительства - обеспечивает неодинаковый экономический и социальный результат, как в период строительства, так и в последующей эксплуатации застроенных территорий.

Отечественная практика оценки земель, отводимых под строительство, пользуется различными критериями ее оценки: инженерно-строительные качества территорий определяющие их пригодность к застройке; расположение участков относительно сложившихся и возможных транспортных связей, с районами поставки сырья и потребления продукции и т.д.; близость к инженерным сооружениям и магистральным коммуникациям; природное и сложившееся окружение; природная ценность отчуждаемых земель и другие.

Комплексная экономическая оценка территорий, отводимых под строительство, учитывает три категории показателей:

- I категория - затраты на инженерное освоение;

- II категория - оценка экономических последствий от изменения предшествующего строительству характера использования земель (компенсация от сноса и изъятия природоценных земель и др.);

- III категория - социально-экономическая ценность территории (экономическая оценка удобств территории для проживания людей, размещения промышленного, административного и др. вида строительства; санитарно-гигиенических условий территорией т.д.).

В настоящее время земельные отношения - предоставление и изъятие земельных участков в городе Москве регулируются Московским Земельным Комитетом.

С 1997 года действует Закон города Москвы «Об основах платного землепользования в городе Москве».

В соответствии с территориальным зонирование город разделен на сорок зон, для каждой из которых устанавливается дифференцированная базовая ставка ежегодной арендной платы за 1 га территории.

При оценке различных строительно-конструктивных систем в этой связи приобретают большое значение вопросы производственной базы домостроения и, в частности площади городских территорий, занимаемые предприятиями домостроительных комбинатов.

Размеры занимаемых ДСК территорий представляют собой порой очень значительные цифры в общем балансе территорий города. Система с замкнутым производственным циклом предполагает наличие заводов по производству керамзита, товарного бетона, сборных железобетонных конструкций и т.д., автобазы, ремонтного хозяйства, различных управлений и трестов и т.д. Так, например, ДСК-1 включает в себя 4 специализированных завода Тушинский (панели перекрытий). Ростокинский (панели внутренних стен, доборные элементы). Краснопресненский (панели наружных стен) и Хорошевский (санитарно-технические кабины).

Площадь, занимаемая заводом крупнопанельного домостроения средней мощности составляет 9-10 га, причем половина этой территории занята под здания и сооружения, площадь главного производственного корпуса типового завода средней мощности составляет 15-18 тыс.м2, а завода большой мощности свыше 65 тыс.м2 (см. Ю.Г. Граник Заводское производство .элементов полносборных домов, Москва, Стройиздат, 1984г. стр.8-30).

Отсюда очевидна правомерность учета стоимостной оценки земли; занимаемой строительной базой для производства той или иной строительно-конструктивной системой и перенесенной на стоимость единицы окончательной продукций - 1 м2 общей площади жилого дома.

В настоящее время вопросы методики такого учета в экономике строительства еще не получили должного отражения, более того решение этих вопросов предполагает сбор большого массива данных, касающихся состава предприятий ДСК Москвы, их мощностей, производственных и технологических характеристик, площадей цехов и участков, размеров и параметров генеральных планов и т.д. что в рыночных условиях сопряжено со значительными трудностями, в том числе и материальными.

Учитывая вышеизложенное в настоящей работе лишь методологически поставлена проблема и учет данной проблемы в количественном аспекте решён достаточно условно, а именно: влияние фактора учета стоимостной оценки территорий, отведенных под ДСК для производства индустриальных конструкций, против монолитного домостроения, где основная сфера деятельности «производства конструкций» переносится на строительную площадку, осуществляется с помощью коэффициента равного 0,075 (принято, на основе экспертных оценок). Величина корректировки удельных стоимостных показателей при этом составит:

-132 кв. 24 эт. жилой каркасно-панельный дом + 17,79 руб.

- 88 кв. 11 эт. жилой дом в кирпиче + 7,48 руб.

- 111 кв. 16 эт. панельно-блочный жилой дом (П-68) + 41,27 руб.

- 147 кв. 7 эт. жилой дом (безригельный каркас) + 13,39 руб.

- 68 кв. 17 эт. крупнопанельный жилой дом + 9,35 руб.

Корректировка показателей с учетом фактора продолжительности строительства

Показатель продолжительности строительства в новых условиях приобретает особое значение, ибо его влияние на размер прибыли строительных организаций весьма существенно.

Фактор продолжительности строительства может выступать в роли критерия в случаях обоснования применения конструкций повышенной заводской готовности, внедрения более рациональных методов производства и технологических решений, проектного варианта с меньшим объемом строительно-монтажных работ, обеспечивающим снижение трудоемкости и т.д.

Продолжительность строительства, как период времени, необходимый на производство подготовительных и основных работ до сдачи объекта в эксплуатацию, различается на нормативную и фактическую.

В соответствии со СНиП 1.04.03-85 «Нормы продолжительности строительства и задела в строительстве предприятий зданий и сооружений» (Изменение № 4) М. 1990г. продолжительность строительства по жилым зданиям в различных конструктивных системах по сравнению с крупнопанельной системой отличается следующим образом:

Таблица 3.23

Этажность
Общая площадь квартир

Строительно-конструктивные системы

крупнопанельная

крупноблочная

объемно-блочная

монолитная

кирпичная и из мелких блоков

каркасно-панельная

5-этажные 1500м2

100%

120%

60%

100%

130%

-

5-этажные 2500м2

100%

118%

72,7%

118%

127,2%

-

5-этажные 6000м2

100%

123%

69,2%

123%

138,5%

-

9-этажные 3000м2

100%

130%

80%

150%

160%

140%

9-этажные 12000м2

100%

125%

68,75%

150%

156,3%

137,5%

10-этажные 3500м2

100%

108,3%

58,3%

133,3%

133,3%

116,6%

10-этажные 9000м2

100%

114,3%

71,42%

142,8%

150,0%

128,5%

12-этажные 4000м2

100%

114,3%

64,3%

128,5%

135,7%

128,5%

12-этажные 12000м2

100%

110,5%

68,4%

136,8%

142,1%

115,8%

14-этажные 5000м2

100%

112,5%

75%

112,5%

118,8%

118,7%

14-этажные 12000м2

100%

110,5%

78,9%

136,8%

142,1%

115,8%

16-этажные 12000м2

100%

-

72,2%

155,5%

-

116,6%

16-этажные 18000м2

100%

-

78,9%

168,4%

-

110,5%

22-этажные 8000м2

100%

-

63,2%

147,4%

-

115,8%

22-этажные 16000м2

100%

-

68,2%

163,6%

-

118,8%

25-этажные 9000м2

100%

-

68,4%

168,4%

-

115,8%

25-этажные 18000м2

100%

-

68,2%

181,8%

-

118,8%

В случаях различия продолжительности строительства жилых домов разных строительных систем необходимо учитывать эффект, получаемый от снижения условно-постоянных накладных расходов, к которым могут быть отнесены: административно-хозяйственные расходы, расходы на содержание пожарной и сторожевой охраны, благоустройству строительной площадки, испытанию материалов и конструкций. Доля условно-постоянных накладных расходов укрупненно принимается в размере 50% общей суммы накладных расходов.

Экономический эффект (ущерб) от сокращения (увеличения) продолжительности строительства домов одной строительной системы по сравнению с домами другой определяются по формуле:

, где:

Эу - экономический эффект от снижения величины условно-постоянных накладных расходов (руб.);

Н - величина условно-постоянных накладных расходов по строительной системе с продолжительностью строительства (Т1), (руб.);

Т1 и Т2 - продолжительность строительства по сравниваемым вариантам (соответственно большая и меньшая).

В нижеследующей таблице приводятся показатели увеличения условно-постоянных накладных расходов по проектам рассматриваемых жилых домов в различных строительно-конструктивных системах по сравнению с аналогом П 44-1/17.

Расчет эффекта (ущерба) от изменения продолжительности строительства жилых домов в различных строительных системах

Таблица 3.24

(цены 84 г.)                                                       (в расчете на 1 м2 общей площади квартир)

№№ пп

Наименование проектов

Нормативная продолжительность строительства (мес.)

Увеличение (+) снижение (-) продолжительности строительства по сравнению с П-44-1/17 (мес.)

Экономия (-) перерасход (+) условно-постоянных расходов

(руб.)

1.

87 квартирный жилой дом в монолите 22 эт.

16,0

+8,0

+5,78

2.

124 квартирный жилой дом в монолите 16 эт.

16,0

+8,0

+6,39

3.

92 квартирный жилой дом в монолите 18 эт.

12,0

+4,0

+2,90

4.

132 квартирный каркасно-панельный жилой дом 24 эт.

11,0

+3,0

+5,16

5.

88 квартирный жилой дом в кирпиче 11 эт.

10,5

+2,5

+1,98

6.

67 квартирный жилой дом «ЭКО» 17 эт.

12,0

+4,0

+3,75

7.

111 квартирный жилой блочный дом (11-68) 16 эт.

9,5

+1,5

+6,72

8.

147 квартирный жилой дом «КУБ» 7 эт.

9,0

+1,0

+1,70

9.

154 квартирный жилой дом в монолите 24 эт.

16,0

+8,0

+8,65

10.

548 квартирный жилой дом в монолите 17 эт.

20,0

+12,0

+3,65

11.

68 квартирный жилой дом П-44-1-17 17эт.

8,0

-

-

Другим эффектом, возникающим при различии продолжительности строительства домов разных строительных систем, является эффект получения дополнительных средств в виде амортизационных отчислений за период, на который различаются сроки этой продолжительности. Величины этого недополученного эффекта по рассматриваемым проектам по сравнению с П-44 приводятся в следующей таблице:

Расчет эффекта от различной продолжительности строительства зданий с разными строительно-конструктивными системами

Таблица 3.25

(цены 84г.)                                                                           (руб. на 1 м2 общей пл. квартир)

№№

пп

Наименование проектов

Продолжительность строительства (мес.)

Изменение (увеличение +) продолжительности строительства по сравнению с аналогом (мес.)

Экономический эффект (ущерб) от более позднего по сравнению с аналогом ввода в эксплуатацию (недополученные амортиз. отчисл.) (руб./год)

1.

87 квартирный жилой дом в монолите 22 эт.

16

+8,0

1,40

2.

124 квартирный жилой дом в монолите 16 эт.

16,0

+8,0

1,51

3.

92 квартирный жилой дом в монолите 18 эт.

12,0

+4,0

0,39

4.

132 квартирный каркасно-панельный жилой дом 24 эт.

11,0

+3,0

0,95

5.

88 квартирный жилой дом в кирпиче 11 эт.

10,5

+2,5

0,31

6.

67 квартирный жилой дом «ЭКО» 17 эт.

12,0

+4,0

0,86

7.

111 квартирный жилой блочный дом (11-68)16 эт.

9,5

+1,5

1,12

8.

147 квартирный жилой дом «КУБ» 7 эт.

9,0

+1,0

0,52

9.

154 квартирный жилой дом в монолите 24 эт.

16,0

+8,0

2,74

10.

548 квартирный жилой дом в монолите 17 эт.

20,0

+12,0

1,04

11.

68 квартирный жилой дом П-44-1/17 17 эт.

8,0

-

-

Кроме того, различие в продолжительности строительства оказывает непосредственное влияние на сроки и размер получения прибыли заказчиком в случае коммерческой реализации построенного жилья, обеспечивая сокращение периода оборачиваемости или возврата вложенных инвестиций. В данной работе количественная сторона этого эффекта не рассматривается.

Корректировка стоимостных показателей с учетом компактности планировочного решения здания

Экономичность проектного решения жилого дома зависит от размеров здания в и его конфигурации, что обусловлено тем, что в зданиях различной конфигурации габаритов на одну и ту же площадь застройки приходится различная протяженность наружного ограждения.

Принимая во внимание, что на долю наружных стен в стоимости общестроительных работ приходится по рассматриваемым проектам от 13,2 до 39,6 процентов (надземная часть), становится очевидной необходимость учета изрезанности очертания здания при технико-экономической оценке. Этот учет возможно осуществить с помощью коэффициента компактности К3, который определяется отношением площади ограждающих конструкций к общей площади здания.

Площадь ограждающих конструкций представляет собой сумму площадей вертикальных и горизонтальных ограждений.

Размер коэффициента компактности зависит от этажности здания, площади застройки, ширины корпуса, изрезанности периметра стен, его величина изменяется в широких рамках - от 0,75 в крупных многоэтажных зданиях до 2,5 в небольших одноэтажных зданиях.

Изменение коэффициента компактности влияет на размер годовых эксплуатационных расходов.

Это влияние осуществляется через изменение величин затрат на реновацию, отчислений на капитальный и текущий ремонты, размеры этого влияния уже учтены в настоящей работе при расчетах эксплуатационных затрат по общестроительной части.

Другое влияние фактора изрезанности периметра стен на величину эксплутационных расходов происходит через изменение размера затрат на отопление, однако, в настоящей работе расчеты этих изменений не приводятся из-за их существенной трудоемкости.

Расчетные коэффициенты компактности по проектам жилых домов в различных конструктивных системах

Таблица 3.26

№№ пп

Наименование объектов

Коэффициент компактности К3

1.

124 кв. 16 эт. жилой дом в монолите

0,918

2.

92 кв. 18 эт. жилой дом в монолите

0,894

3.

132 кв. 24 эт. каркасно-панельный жилой дом

1,251

4.

88 кв. 11 эт. жилой дом в кирпиче

1,097

5.

67 кв. 17 эт. жилой дом системы М6-«ЭКО» "-

1,49

6.

111 кв. 16 эт. Блочный дом П-68

0,99

7.

147 кв. 7 эт. жилой дом в безригельном каркасе «КУБ»

1,128

8.

154 кв. 24 эт. жилой дом в монолите

1,89

9.

548 кв. 17 эт. жилой дом с широким шагом в монолите

1,369

10.

68 кв. 17 эт. жилой дом в панельных конструкциях П-44

1,060

Далее в таблице 3.27 приводятся сводные результаты корректировки показателей.

Корректировка удельных стоимостных показателей и показателей эксплуатационных расходов

Таблица 3.27

(в ценах 84г.)                                                                     (руб./м2 общей площади квартир)

№№

пп

Наименование элементов и видов работ

Удельные показатели стоимости общестроительных работ и эксплуатационных расходов по подземной и надземной жилой части дома

124 кв. жилой монолитный дом 16 эт.

92 кв. жилой монолитный дом 18 эт.

132 кв. жилой каркасно-панельный дом 24 эт.

88 кв. жилой дом в кирпиче 11 эт.

67 кв. жилой дом «ЭКО» 17 эт.

111 кв. жилой домП-68 (блоки) 16 эт.

147 кв. жилой дом «КУБ»

7 эт.

154 кв. жилой дом в монолите 24 эт.

548 кв. жилой дом с широким шагом в монолите 17 эт.

68 кв. П44-1/17 1-1 17 эт.

1

2

3

4

5

6

7

8

9

10

11

12

Корректировка показателей по энергосберегающим мероприятиям

1.

Всего до корректировки

183,65

117,42

237,22

99,79

144,54

550,36

178,61

225,19

82,38

124,68

2.

Отношение показателей к проекту П44-1/17 в процентах

147,29

94,17

190,26

80,03

115,92

441,41

143,25

180,61

66,07

100

3.

Величина корректировки (+ увеличение, - снижение)

-

-

+13,76

+9,07

-

-

-

-

-

-

4.

Всего после корректировки

183,65

117,42

250,98

108,86

144,54

550,36

178,61

225,19

82,38

124,68

5.

Отношение показателей после корректировки к проекту П44-1/17 в процентах

147,29

94,17

201,29

87,31

115,92

441,41

143,25

180,6

66,07

100

Корректировка показателей по этажности

6.

Всего до корректировки

183,65

117,42

237,22

99,79

144,54

550,36

178,61

225,19

82,38

124,68

7.

Отношение показателей к проекту П44-1/17 в процентах

147,29

94,17

190,26

80,03

115,92

441,41

143,25

180,61

66,07

100

8.

Величина корректировки (+ увеличение, - снижение)

+4,4

-2,82

-39,85

+14,37

-

+13,21

+42,86

-37,83

-

-

9.

Всего после корректировки

188,05

114,6

.197,37

114,16

144,54

563,57

221,47

187,36

82,38

124,68

10.

Отношение показателей после корректировки к проекту П44 1/17 в процентах

150,83

91,91

158,3

91,56

115,92

452,01

177,63

150,27

66,07

100

Корректировка показателей по привязке подземной части

11.

Всего до корректировки

183,65

117,42

237,22

99,79

144,54

550,36

178,61

225,19

82,38

124,б8

12.

Отношение показателей к проекту П44-1/17 в процентах

147,29

94,17

190,26

80,03

115,92

441,41

143,25

180,61

66,07

100

13.

Величина корректировки

-

-

-

-

9,38х0,095=+0,89

40,39х0,095=+3,83

-

-

14,51х0,095=+1,38

4,96х0,095=+0,47

14.

Всего после корректировки

183,65

117,42

237,22

99,79

145,43

554,19

178,6

225,19

83,76

125,15

15.

Отношение показателей к проекту П44-1/17 после корректировки в процентах

146,78

93,82

189,55

79,73

116,20

442,82

143,25

179,94

66,93

100

Корректировка по составу квартир

16.

Величина показателей до корректировки

183,65

117,42

237,22

99,79

144,54

550,36

178,61

225,19

82,38

124,68

17.

Отношение показателей к проекту П44-1/17 в процентах

147,29

94,17

190,26

80,03

115,92

441,41

143,25

180,61

66,07

100

18.

Величина корректировки (+ увеличение, - уменьшение)

+9,04

-3,14

-0,81

-1,24

+2,23

+7,47

-2,84

+1,75

+1,53

+0,61

19.

Величина показателя после корректировки

183,69

114,28

236,41

98,55

146,77

557,83

175,77

226,94

83,81

125,29

20.

Отношение показателей к проекту П-44 после корректировки

146,61

91,21

188,69

78,65

117,14

445,23

140,29

181,13

66,89

-

Корректировка с учетом стоимости оценки территории, занимаемых ДСК

21.

Величина показателей до корректировки

183,65

117,42

237,22

99,79

144,54

550,36

178,61

225,19

82,38

124,68

22.

Отношение показателей к проекту-аналогу П-44 в процентах

147,29

94,17

190,26

80,03

115,92

441,41

143,25

180,61

66,07

100

23.

Величина корректировки ("+" увеличение "-" снижение)

-

-

+17,79

+7,48

-

+41,27

+13,39

-

-

+9,35

24.

Величина показателя после корректировки

183,65

117,42

255,01

107,27

144,54

591,63

193,0

225,19

82,38

134,03

25.

Отношение показателей к показателям проекта-аналога после корректировки в процентах

137,02

87,60

190,26

80,03

107,84

441,41

143,99

168,0

61,46

-

Корректировка стоимостных показателей с учетом продолжительности строительства

26.

Величина показателей до корректировки

183,65

117,42

237,22

99,79

144,54

550,36

178,61

225,19

82,38

124,68

27.

Отношение показателей к проекту-аналогу (П-44-1/17) в процентах

147,29

94,17

190,26

80,03

115,92

441,41

143,25

180,61

66,07

100

28.

Величина корректировки (+ увеличение)

+12,29

+3,93

+5,95

+2,07

+4,83

+7.0

+2,86

+15,08

+8,27

-

29.

Величина показателя после корректировки

195,94

121,35

243,17

101,86

149,37

557,36

181,47

240,27

90,65

-

30.

Отношение показателей к показателям проекта-аналога после корректировки в процентах

157,15

97,33

195,03

81,70

119,8

447,03

145,54

192,71

72,70

-

Корректировка эксплуатационных показателей с учетом продолжительности строительства

31.

Величина показателей до корректировки

3,14

2,68

5,28

2,13

3,59

12,41

8,64

5,71

1,44

2,39

32.

Отношение показателей к проекту-аналогу до корректировки в процентах

131,38

112,13

220,9

89,12

150,21

519,24

361,5

238,9

60,25

-

33.

Величина корректировки (+ увеличение)

+1,51

+0,39

+0,95

+0,31

+0,86

+1,12

+0,52

+2,74

+1,04

-

34.

Величина показателей после корректировки

4,65

3,07

6,23

2,44

4,45

13,53

9,16

8,45

2,48

-

35.

Отношение показателей к проекту-аналогу после корректировки в процентах

195,6

128.5

260,7

102,1

186,2

566,1

383,3

353,5

103,8

-

Корректировка эксплуатационных показателей с учетом срока службы строительных конструкций

36.

Величина показателей до корректировки

183,65

117,42

237,22

99,79

144,54

550,36

178,61

225,19

82,38

124,68

37.

Отношение показателей к проекту-аналогу (П-44-1/17) в процентах

147,29

94,17

190.26

80,03

115,92

441,41

143,25

180,61

66,07

100

38.

Величина корректировки (+увеличение, - снижение)

-91,82

-58.71

-59,3

-49,83

-72,27

-

-89,3

-112,59

-41,19

-

39.

Величина показателей после корректировки

91,83

58,71

177,92

49,83

72,27

550,36

89,3

112,59

41,19

124,68

40.

Отношение показателей к аналогу после корректировки в процентах

73,65

47,08

142,7

39,96

57,96

441,41

71,62

90,30

33,04

100

Корректировка эксплуатационных показателей с учетом срока службы строительных конструкций

41.

Величина показателей до корректировки

3,14

2,68

5,28

2,13

3,59

12,41

8,64

5,71

1,44

2,39

42.

Отношение показателей к проекту-аналогу в процентах

131,38

112,13

220,9

89,12

150,21

519,24

361,5

238,9

60,25

-

43.

Величина корректировки (- снижение)

-1,04

-0,89

-1,06

-0,71

-1,20

-

-2,88

-1,90

-0,48

-

44.

Величина показателей после корректировки

2,1

1,79

4,22

1,42

2,39

12,41

5,76

3,81

0,96

-

Отношение показателей к аналогу после корректировки в процентах

87,87

74,89

176,57

59,41

100

519,24

241,0

159,4

40,17

-

46.

Суммарная величина корректировки стоимостных показателей

-75,09

-61,53

-62,46

-18,08

-64,32

+72,78

-33,03

-133,59

-30,01

+10,43

47.

Суммарная величина корректировки эксплуатационных показателей

+0,47

-0,50

-0,11

-0,4

-0,34

+1,12

-2,36

+0,84

+0,56

-

Интегральные стоимостные удельные показатели

Таблица 3.28

(цены 84 г.)                                                                                                           (руб./м2)

№№

пп

Наименование показателей

Удельные показатели стоимости общестроительных работ по подземной и надземной жилой части дома

124 кв. 16 эт. жилой дом в монолите

92 кв. 18 эт. жилой дом в монолите

132 кв. 24 эт. жилой каркасно-панельный дом

88 кв. 11 эт. жилой дом в кирпиче

67 кв. 17 эт. жилой дом «ЭКО»

111 кв. 16 эт жилой дом П-68.

147 кв. 7 эт. жилой дом «КУБ»

154 кв. 24 эт жилой дом в монолите.

548 кв. 17 эт. жилой дом в монолите

68 кв. 17 эт. панельный жилой дом

1

2

3

4

5

6

7

8

9

10

11

12

1.

Стоимость общестроительных работ в расчете на 1м2 общей площади квартир до корректировки

183,65

117,42

237,22

99,79

144,54

550,36

178,61

225,19

82,38

124,68

2.

Отношение к аналогу в процентах

147,29

94,17

190,26

80,03

115,92

441,41

143,25

180,61

66,07

100

3.

Суммарная величина корректировки (+ увеличение, - снижение)

-75,09

-61,53

-62,46

-18,08

-64,32

+72,78

-33,03

-133,59

-30,01

+10,43

4.

Стоимость общестроительных работ в расчете на 1м2 общей площади квартир после корректировки

108,56

55,89

174,76

81,71

80,22

623,14

145,58

91,6

52,37

135,11

5.

Отношение показателя к аналогу в процентах

80,35

41,37

129,35

60,47

59,37

461,21

107,75

67,80

38,76

100

6.

Эксплуатационные расходы на 1 м2 общей площади квартир по общестроительной части до корректировки

3,14

2,68

5,28

2,13

3,59

12,41

4,53

5,71

1,44

2,39

7.

Отношение показателя к аналогу в процентах

131,38

112,13

220,9

89,12

150,29

519,2

189,5

238,9

60,25

100

8.

Суммарная величина корректировки (+увеличение, - снижение)

+0,47

-0,50

-0,11

-0,4

-0,34

+1,12

-2,36

+0,84

+0,56

-

9.

Эксплуатационные расходы на 1 м2 общей площади квартир по общестроительной части после корректировки

3,61

2,18

5,17

1,73

3,25

13,53

2,17

6,55

2,0

2,39

10.

Отношение показателя к аналогу в процентах

151,05

91,21

216,32

72,38

136,98

566,1

90,79

274,06

83,68

100

11.

Приведенные затраты по общестроительной части на 1м2 общей площади квартир до корректировки по изменяемой конструктивной части

21,63

15,30

32,90

14,09

19,54

73,09

25,08

30,72

10,23

16,29

12.

Отношение показателя к аналогу до корректировки в процентах

132,8

93,9

201,9

86,5

119,9

448,7

153,9

188,6

63,0

100

13.

Приведенные затраты по общестроительной части на 1м2 общей площади квартир после корректировки по изменяемой конструктивной части

14,54

8,06

26,49

11,52

12,11

83,69

18,9

16,72

7,59

17,45

14.

Отношение к аналогу после корректировки в процентах

83,32

46,19

151,80

66,02

69,40

479,60

108,3

95,82

43,50

100

По результатам корректировки стоимостных и эксплуатационных показателей проектов итоговые величины их изменения колеблются в диапазоне от:

- стоимостные показатели

(руб./м2 общей пл. кв.)                       -        «-» 133,59  -          «+» 10,43

(«+» увеличение «-» снижение)

-эксплуатационные расходы

(руб./м2 общей пл. кв.)                       -        «-» 2,36      -         «+» 0,84

При этом необходимо отметить различное влияние факторов корректировки на изменение показателей, так в наибольшей степени происходит изменение стоимости общестроительных работ подземной и надземной части здания по изменяемым конструктивным элементам при корректировке по фактору «срок службы строительных конструкций» - (от «-» 41,19- до «-» 112,59 руб./м2); по фактору «этажность» - (от «+» 42,86 до «-» 39,85).

Наибольшее воздействие оказывает фактор «состав квартир» - от «-» 3,14 до «+»7,47.

В таблице 3.27 приводятся итоговые показатели до и после пофакторной корректировки и соответствующее их отношение к аналогу.

Как следует из таблицы 3.27 по показателю приведенных затрат после корректировки по всем проектам жилых домов в монолите наблюдается снижение по сравнению с аналогом (43,50 - 95,82%).

Также ниже аналога показатель приведенных затрат и в доме из кирпича (66,02%), примерно на таком же уровне находится показатель в системе «ЭКО».

По показателю сметной стоимости общестроительных работ выявлено следующее их соотношение после корректировки по отношению к панельной конструктивной системе (100%):

- монолит - 43,50% - 95,82% (в среднем по группе проектов 67,2%)

- кирпич - 66,02%

- каркасно-панельная - 151,8%

- «ЭКО» - 69,4%

- «КУБ» - 108,3%

- П-68 - 479,6%

Показатель эксплуатационных затрат в расчете на 1 м2 общей площади квартир по изменяемым конструктивным элементам по рассматриваемым конструктивным системам представляется по отношению к аналогу - панельная система (100%) следующим образом:

- кирпичная - 72,38%

- монолитная - 150,0% (от 83,68% - до 274,06%)

- каркасно-панельная - 216,32%

- «ЭКО» - 135,98%

- П-68 - 566,1%

- «КУБ» - 90,79%

ГЛАВА 4. ВЫВОДЫ И ПРЕДЛОЖЕНИЯ

Анализ рассмотренных конструктивных систем: крупнопанельной, каркасно-панельной, крупноблочной, кирпичной, монолитной железобетонной, смешанной показывает, что в сопоставимых условиях (этажность, планировочные решения, энергоэффективность, уровень отделки и др.) эти системы при одинаковом уровне проработки инженерно-технических и архитектурно-планировочных решений имеют сопоставимые удельные стоимостные показатели, кроме крупноблочной, и могут иметь право на одновременное существование в сложившейся финансово-экономической ситуации.

Крупноблочные конструктивные системы по отношению к другим не эффективны - превышение удельных показателей по сравнению с панельной, принятой за аналог, составляет:

- сметная стоимость - более 4-х раз;

- эксплуатационные расходы - более 5 раз.

В связи с этим эти системы не могут быть рекомендованы к дальнейшему использованию и развитию.

Наибольшую привлекательность начинают приобретать монолитные, сборно-монолитные и кирпичные конструктивные системы с широким шагом несущих (стеновых) конструкций. Свобода в архитектурно-планировочных и градостроительных решениях, отсутствие однообразия, легкость в перепланировке помещений, что в настоящее время весьма актуально; высокая степень надежности, в том числе и в чрезвычайных ситуациях и др., создают импульс для более интенсивного развития этих систем.

Нельзя не отметить и присущие этим системам недостатки: более длительные сроки возведения, чем крупнопанельных и, соответственно, обращение финансовых ресурсов, сложности возведения несущих систем в зимнее время и более высокая построечная трудоемкость. Продолжительность строительства монолитной системы по сравнению с панельной по зданиям разной этажности составляет на 12,5 - 81,8% больше.

Вместе с тем, эти недостатки могут сниматься при соответствующем совершенствовании материально-технической базы монолитного домостроения и методов производства строительно-монтажных работ.

Сопоставление стоимостных удельных показателей по проектам жилых домов в различных конструктивных системах до пофакторной корректировки по параметрам: мероприятия по энергосбережению, этажности, планировочных решений, срок службы несущих конструкций, продолжительности строительства, изрезанности периметра стен и др. показало следующее соотношение к панельному аналогу П-44, принятому за 100%:

- монолитная система - 66,07 - 180,61% (в среднем 122,0%)

- кирпичная система - 80,03%

- сборно-монолитная система «ЭКО» - 115,92%

- каркасно-панельная система - 190,26%

- «КУБ» - 143,25%

Анализ структуры сметной стоимости общестроительных работ по рассматриваемым конструктивным системам показал ее следующее распределение по подземной и надземной частям жилой части дома (до корректировки):

подземная часть                        надземная часть

- панельная система                             3,98%                                       96,02%

- монолитная система                          7,39%-17,61%                         82,39%-92,61%

- кирпичная система                            14,26%                                     85,74%

- «ЭКО»                                                 6,49%                                       93,51%

- каркасно-панельная система            7,11%                                       93,15%

- «КУБ»                                                  13,26%                                     86,74%

В результате рассмотрения структуры стоимости общестроительных работ по подземной части выявлено, что наибольший удельный вес приходится на фундаменты, стены, земляные работы и перекрытия. При этом по проектам в монолитной конструктивной системе удельный вес фундаментов колеблется от 2,85 до 8,32% (в среднем составляет 4,0% от стоимости общестроительных работ по подземной и надземной жилым частям); в кирпичной системе - 2,93%; в каркасно-панельной - 4,27%; «ЭКО» -78%; «КУБ» - 5,12%.

Удельный вес стен по подземной части в монолите составляет в пределах 0,58 - 2,09%; в кирпиче - 6,11%; в каркасно-панельной системе - 0,68%; «ЭКО» - 1,83%; КУБ» - 2,8%.

Стоимость общестроительных работ по перекрытиям подземной части составляет- 0,78-7,43% (разброс объясняется толщиной перекрытий 14-22 см) в среднем - 1,65%.

По надземной части жилого дома наибольший удельный вес приходится на общестроительных работ по стенам; со следующей дифференциацией по конструктивным системам:

- монолитная                                                  - 18,88% - 39,63% (в среднем 29,6%)

- кирпичная                                                    - 29,5%

- каркасно-панельная                                    - 13,2%

- «ЭКО»                                                           - 33,4%

- «КУБ»                                                           - 19,0%

- панельная                                                     - 31,55%

Более высокий показатель стоимости общестроительных работ по разделу «стены» в монолите, в большой мере обусловлен насыщенностью помещений монолитными стенами большей толщины, также сказывается влияние изрезанности периметра наружных стен (более высокие значения коэффициента комнатности).

Удельный вес перекрытий в надземной части стоимости общестроительных работ подземной и надземной части по конструктивным системам составляет:

- монолит                                                        - 19,1% - 25,13% (в среднем - 21,5%)

- кирпич                                                          - 12,2%

- каркасно-панельная                                    - 11,7%

- «ЭКО»                                                           - 14,9%

- «КУБ»                                                           - 14,9%

- панельная                                                     - 10,7%

Разброс показателя по монолиту также зависит от толщины перекрытий.

Существенное влияние на общую стоимость общестроительных работ оказывает стоимость по разделам «Окна», «Двери» и «Полы», что в определенной мере связано с уровнем отделки и качеством применяемых изделий и покрытий.

При этом необходимо отметить, что стоимость работ по этим разделам мало зависит от конструктивной системы зданий, и в значительной степени является отражением качественных параметров создаваемого комфорта жилища.

По группе рассматриваемых проектов удельный вес стоимости работ по этим разделам составил:

«Окна»                  «Двери»                «Полы»

- монолитные дома                       6,9%                      4,0%                    9,2%

- кирпичный дом                           2,0%                      4,2%                    11,9%

- каркасно-панельный дом           10,6%                    3,1%                    7,4%

- дом в системе «ЭКО»                 10,0%                    4,2%                    11,1%

- дом я системе «КУБ»                 6,2%                      2,9%                    9,9%

- панельный дом                            7,0%                      3,8%                    7,8%

Работы по разделу «Внутренняя отделка», также прямо не связанные со строительной системой, отражают качественный уровень комфорта в стоимостном выражении имеют удельный вес:

- монолит                                       - 1,65%-8,12% (в среднем 4,3%)

- кирпич                                          - 8,8%

- каркас                                           - 1,5%

- «ЭКО»                                          - 4,2%

- «КУБ»                                           - 2,5%

- панели                                          - 2,8%

от стоимости общестроительных работ по подземной и надземной частям.

Сопоставление стоимостных показателей с аналоговой панельной системой после корректировки показало следующее распределение:

- панельная                                     - 100%

- монолитная                                  - 43,5 - 95,8% (в среднем 67,2%)

- кирпичная                                    - 66,02%

- «ЭКО»                                          - 69,4%

- каркасно-панельная                    - 151,8%

- «КУБ»                                           - 108,3%

В заключение можно отметить, что строительство монолитных жилых домов должно получить широкие перспективы из-за ряда существенных преимуществ, таких как:

- отсутствие необходимости в индустриальной базе по производству железобетонных деталей (домостроительные комбинаты, заводы сборного железобетона);

- возможность свободной объемно-планировочной композиции зданий и достижение разнообразия архитектурных решений;

- более высокое качество монолитных домов (отсутствие стыков, более высокая звуко- и теплоизоляция), большая капитальность здания;

- отсутствие потребности в специальных транспортных средствах (панелевозы и т.п.).

Недостаточные объемы строительства монолитных зданий и сложность получения проектной информации пока еще не дают возможности получения достаточно устойчивых данных и твердых количественных рекомендаций по их применению.

По полученным по ограниченному числу проектов данным затраты на строительство монолитных зданий находятся на уровне, или незначительно выше уровня крупнопанельных зданий.

По интегральным же показателям с учетом всех факторов, включая сроки эксплуатации монолитных зданий, они являются наиболее эффективными и перспективными (см. графики 1, 2, 3).

В дальнейшем представляется целесообразным шире практиковать возведение монолитных жилых домов для совершенствования методов строительства, получения устойчивых показателей на базе больших массивов информации и определения области рационального применения монолитной системы.

Развитие монолитного и кирпичного домостроения должно приводить к соответствующему сокращению крупнопанельного и каркасно-панельного. При этом возможно исключение каркасно-панельных систем из области домостроения.

Сокращение крупнопанельного домостроения должно идти не равномерно по видам производств (комбинатов), а путем ликвидации менее эффективных ДСК с освобождением занимаемых ими земель под жилищное или другие виды строительства.

Следует отметить, что в монолитном домостроении начинают развиваться эффективные подсистемы и, в частности, подсистема с широким шагом несущих стен и возможностью трансформации помещений за счет образования в стенах широких проемов заполняемых штучными более дешевыми, чем железобетон материалами, например кирпичом, блоками из ячеистых бетонов, полистиролбетонных системы «Юникон» и др.

Разработаны Нормали на проектирование жилых домов этой конструктивной системы, позволяющие избегать ошибок и неэффективных технических решений при проектировании.

Необходимо отметить также и то, что монолитные (равно, как и кирпичные) жилые дома имеют большую товарную привлекательность, что в условиях рыночных взаимоотношений дает не учитываемую настоящей работой норму прибыли (более высокая разница в стоимости и себестоимости).

Следует отметить также и то, что крупнопанельное домостроение, учитывая длительную работу по его совершенствованию, практически исчерпало возможности по снижению стоимости строительства на данном этапе развития науки и техники, в то время монолитное домостроение, равно, как и кирпичное имеют перспективный ресурс по дальнейшему снижению стоимости строительства.

В монолитном домостроении к таковым ресурсам относятся:

1. Применение прогрессивных систем опалубки и, в том числе, отечественного производства.

2. Использование для приготовления бетонов мобильных бетонозаводов и гидравлических систем подачи бетонов.

3. Применение высокопрочных бетонов и высокомарочных сталей.

ГРАФИК 1 РАСПРЕДЕЛЕНИЯ СТОИМОСТНЫХ ПОКАЗАТЕЛЕЙ ПО КОНСТРУКТИВНЫМ СИСТЕМАМ

ГРАФИК 2 РАСПРЕДЕЛЕНИЯ СТОИМОСТИ ОБЩЕСТРОИТЕЛЬНЫХ РАБОТ ПО КОНСТРУКТИВНЫМ СИСТЕМАМ ПОСЛЕ КОРРЕКТИРОВКИ ПО СИСТЕМЕ ПОКАЗАТЕЛЕЙ

ГРАФИК 3 РАСПРЕДЕЛЕНИЯ ИНТЕГРАЛЬНЫХ СТОИМОСТНЫХ ПОКАЗАТЕЛЕЙ (СКОРРЕКТИРОВАННЫЙ ПО ВСЕМ ПАРАМЕТРАМ, ВКЛЮЧАЯ СРОК ЭКСПЛУАТАЦИИ)

ЛИТЕРАТУРА

1. Максименко В. А. Индустриальные инженерно-технические системы жилых и общественных зданий М., «Высшая школа», 1987г.

2. Методические рекомендации по экономическому обоснованию применения конструктивных элементов и технологий, обеспечивающих повышение эффективности инвестиций за счет снижения эксплуатационных затрат, повышения долговечности зданий и сооружений, сокращения продолжительности строительства и других эффективных решений при повышении единовременных затрат при проектировании и строительстве и одновременном росте сметной стоимости. М., 1998г.

3. Московские городские строительные нормы «Жилые здания» МГСН 3.01-96 М., 1996г.

4. Нормы продолжительности строительства и задела в строительстве предприятий, зданий и сооружений. СНИП 1.04.03-85 (Изменение. №4) М., 1990 г.

5. Рекомендации по технико-экономической оценке проектов жилых и общественных зданий и сооружений М., ЦНИИЭП жилища, 1988г.

6. Рекомендации по определению укрупненных показателей стоимости строительства, изыскательских и проектных работ (базовые цены) для составления титульных списков ПИР по объектам, расположенным в Москве и Лесопарковом защитном поясе и финансируемым за счет средств городского (муниципального) бюджета. МРР-3.1.03-93. Система ценообразования в проектном комплексе. М., 1993г.

7. Рекомендации по составлению бизнес-планов для территорий, отдельных объектов, комплексов нового строительства и реконструкции. Экономическая эффективность проектных решений М., 1995г.

8. Энергосбережение в зданиях. Нормативы по теплозащите и тепловодоэлектроснабжению. МГСН 2.01-99. М., 1999г.

9. Допустимые параметры шума, вибрации и требования к звукоизоляции в жилых и общественных зданиях. МГСН 2.04-97. М., 1997г.

10. Рекомендации по предотвращению прогрессирующих обрушений крупнопанельных зданий. М., 1999г.

ПРИЛОЖЕНИЕ 1

СРОКИ СЛУЖБЫ КОНСТРУКТИВНЫХ ЭЛЕМЕНТОВ, ИНЖЕНЕРНОГО ОБОРУДОВАНИЯ И НОРМАТИВЫ РАСХОДОВ И ЗАТРАТ

Сроки службы конструктивных элементов и инженерного оборудования*

Нормативные показатели для расчета эксплуатационных расходов по жилым и общественным зданиям

Таблица 1

Характеристика конструктивного элемента и инженерного оборудования

Срок службы в годах

1

2

1. фундаменты:

- бетонные, железобетонные, ленточные и свайные

150

- бутовые на сложном растворе или цементном растворе, бутобетоне

150

- бутовые на известковом растворе

100

2. Стеньг:

- капитальные, кирпичные при толщине стен в 2,5-3,5 кирпича на сложном или цементном растворе

150

- кирпичные с железобетонным или металлическим каркасом

150

- крупноблочные толщиной 40 см и более, из шлакобетонных или керамзитобетонных блоков на цементном растворе

125

- кирпичные с толщиной стен в 2,0-2,5 кирпича на известковом растворе

125

- крупноблочные из шлакобетонных и керамзитобетонных блоков толщиной 40 см

125

- крупноблочные из силикальцитных, кирпичных, легкобетонных и зольно-сланцевых блоков

100

- крупнопанельные однослойные из шлакобетона, керамзитобетона

125

- многослойные из железобетонных плит и утеплителя, керамзитобетонные, виброкирпичные с утеплителем, кирпичные облегченные при толщине 1,5-2 кирпича

100

3. Перекрытия железобетонные: - монолитные, сборно-монолитные

150

- сборные из панелей и настилов толщиной более 10 см.

150

- толщиной 10 см и менее 10 см и ребристое

70

- сборные по ж/б балкам

150

- железобетонные или бетонные по металлическим балкам

125

4. Полы:

- из метлахской и керамической плитки по бетонному основанию

80

- паркетные дубовые

80

- то же, буковые

50

- дощатые

30

- из поливинилхлоридных плиток, линолеума

10

5. Лестницы:

- из сборных железобетонных элементов, из каменных, бетонных и железобетонных плит по металлическим и железобетонным косоурам

100

6. Крыши: А. Несущие элементы:

- из сборных железобетонных настилов

150

- из железобетонных стропил и обрешетки

150

- железобетонные совмещенные крыши

100

Б. кровля из:

- керамической первосортной черепицы

80

- асбестоцементных плит и волнистого асбошифера

30

- оцинкованной стали

25

- черной листовой стали, окрашенной масляными или синтетическими красками

15

-рулонных материалов

8

7. Перегородки:

- железобетонные

150

- шлакобетонные, бетонные, кирпичные, оштукатуренные

75

- гипсовые, гипсоволокнистые, гипсобетонные

60

- деревянные оштукатуренные или обитые сухой штукатуркой

40

8. Двери и окна:

- дверные и оконные блоки

20

9. Внутренняя отделка:

- штукатурка по бетонным и кирпичным стенам

50

- штукатурка по деревянным перегородкам

35

- масляная окраска

6

- оклейка стен обоями

4

10. Инженерное оборудование;

- водопровод и канализация

30

- отопление

30

- горячее водоснабжение

10

- вентиляция

30

- электроосвещение

15

- электроплиты

20

- газооборудование

20

- лифты

20

11. Благоустройство придомового участка:

- благоустройство участка

15

12. Наружная отделка:

- облицовка стен естественным камнем

125

Облицовка стен керамическими плитками

75

- терразитовая штукатурка с мраморной крошкой

50

- облицовка ковровой плиткой

35

- штукатурка по кирпичу на сложном растворе

30

- штукатурка по кирпичу на известковом растворе

20

- штукатурка по дереву

15

- окраска

5

* Методические рекомендации по технико-экономической оценке санитарно-технических систем (отопление и вентиляция) зданий ЦНИИЭП ипж. оборуд. М., 85г.

Срок службы оборудования и элементов санитарно-технических систем (отопление и вентиляция) зданий*

Таблица 2

Наименование

Срок службы в годах

1. Вентиляторы

8

2. Отопительные агрегаты

8

3. Воздухоохлаждающие агрегаты

7

4. Водонагреватели

8

5. Калориферы

8

6. Отопительные приборы:

 

- радиаторы чугунные

40

- радиаторы стальные штампованные

15

- регистры из стальных труб

30

- конвекторы стальные

25

7. Фильтры (масляные, сетчатые, сухие, рулонные, ячейковые)

6

8. Оборудование механической и электрической очистки газов (пылевые камеры, циклоны, скрубберы)

6

9. Клапаны, заслонки

10

10. Дымососы

6

11. Насосы

8

12. Воздуховоды

15

13. Воздухораспределители

15

14. Трубопроводы системы отопления:

- водяного

- парового

 

30

10

* Методические рекомендации по технико-экономической оценке санитарно-технических систем (отопление и вентиляция) зданий ЦНИИЭП инж. оборуд. М., 85г.

Нормативы на восстановление строительных конструкций зданий в зависимости от долговечности

Таблица 3

Долговечность в годах

Норматив ежегодных отчислений в % от сметной стоимости конструкции

Долговечность в годах

Норматив ежегодных отчислений в % от сметной стоимости конструкция

Долговечность в годах

Норматив ежегодных отчислений в % от сметной стоимости конструкции

Долговечность в годах

Норматив ежегодных отчислений в % от сметной стоимости конструкции

2

50

26

3,8

50

2

74

1,35

4

25

28

3,6

52

1,9

76

1,3

6

16,7

30

3,3

54

1,8

78

1,28

8

12,5

32

3,1

56

1,79

80

1,25

10

10

34

2.9

58

1,72

85

1,1

12

8,3

36

2,7

60

1,65

90

1,11

14

7,1

38

2,6

62

1,61

95

1,05

16

6,2

40

2,5

64

1,56

100

1,0

18

5,6

42

2,4

66

1,52

125

0,8

20

5

44

2,3

68

1,47

150

0,67

22

4,5

46

2.2

70

1,43

 

 

24

4,2

48

2,1

72

1,4

 

 

Нормативы амортизационных отчислений на полное восстановление (реновацию) и капитальный ремонт в зависимости от конструктивного решения жилых зданий в %

Таблица 4

Жилые здания

Норматив отчислений от восстановительной стоимости

На полное восстановление

На капитальный ремонт

Здания каменные, особо капитальные, стены кирпичные толщиной в 2,5-3,5 кирпича или кирпичные с железобетонными или металлическими каркасами, перекрытия железобетонные или бетонные

0,7

1,0

Здания с кирпичными стенами толщиной в 1,5-2,5 кирпича, перекрытия ж/б, бетонные или деревянные, с крупноблочными стенами

0,8

1,1

Здания со стенами облегченной кладки из кирпича, монолитного и легких шлакоблоков, перекрытия ж/б или бетонные

1,0

1,0

Здания с крупнопанельными стенами, перекрытия ж/б

0,7

1,1

Здания со стенами крупноблочными, или облегченной кладки из кирпича, монолитного шлакобетона, мелких шлакоблоков, перекрытия деревянные

1,0

1,2

Здания со стенами смешанными, деревянными, рублеными или брусчатыми

2,0

1,9

Нормативы амортизационных отчислений на восстановление и капитальный ремонт по внутренним санитарно-техническим системам жилых зданий

Таблица 5

Наименование систем

Норматив отчислений в % от сметной стоимости

Системы центрального отопления:

- с чугунными радиаторами и стальными плинтусными конвекторами

7,0

- со стальными конвекторами в кожухе

5,5

-с нагревательными элементами в стенах и перекрытиях (панельные системы)

5,0

- воздушные

6,0

Системы кондиционирования воздуха:

- центральные одно и двухканальные

6,0

- с эжекционными доводчиками

4,9

- с вентиляторными кондиционерами и отопительно-охладительными агрегатами

6,6

- с радиационным охлаждением

5,6

- автономные кондиционеры

12,5

Санитарно-технические системы:

- холодное водоснабжение

7,1

- горячее водоснабжение

11,0

- канализация

4,4

- внутренние водостоки

5,3

- внутреннее газоснабжение

5,7

- вентиляция с естественным побуждением

5,5

Нормативы ежегодных отчислений на капитальный ремонт конструкции в % от сметной стоимости

Таблица 6

Срок службы

Нормативы

Срок службы

Нормативы

Срок службы

Нормативы

10

4,3

40

1,0

68

0,54

12

4,0

42

0,96

70

0,52

14

3,4

44

0,90

76

0,49

16

3,0

46

0,85

80

0,45

18

2,4

48

0,80

86

0,44

20

1,8

50

0,69

90

0,43

22

1,7

52

0,68

96

0,40

24

1,6

54

0,66

100

0,37

26

1,5

56

0,64

106

0,35

28

1,4

58

0,62

110

0,34

30

1,3

60

0,59

120

0,3

32

1,2

62

0,59

130

0,23

34

1,2

64

0,58

140

0,21

36

1,1

66

0,56

150

0,19

38

1,1

-

-

-

-

Структура стоимости видов работ и конструктивных элементов при капитальном ремонте жилых зданий

Таблица 7

Виды работ и конструктивные элементы

Удельный вес стоимости, в % к сметной стоимости капитального ремонта

по общестроительным работам

по общестроительным и специальным работам

по свободной смете

1

2

3

4

Общестроительные работы

Ремонт:

- фундаментов

0,97

0,77

0,71

- стен

10

8,1

7,4

- перекрытий

16,04

12,75

11,65

- крыш

4,7

3,74

3,41

- перегородок

7,33

5,84

5,33

- полов

14,37

11,45

6,65

- проемов

9,07

7,29

6,65

- лестниц

1,4

1,11

1,01

Штукатурные

5,46

4,35

3,97

Малярные

6,39

5,09

4,64

Разные

1,25

1,0

0,91

Разборка конструкций и вывоз строительного мусора

4,3

3,42

3,13

Итого прямые затраты

81,28

64,91

59,25

Накладные расходы, резерв, технадзор, перевозка имущества жильцов

18,72

14,67

13,38

Итого стоимость общестроительных работ

100

79,58

72,63

Специальные работы

Ремонт:

- фасадов

-

4,52

4,13

- центрального отопления

-

5,35

4,79

- сетей водопровода и канализации

-

3,57

3,25

- газопроводов

-

1,63

1,48

- сетей горячего водоснабжения

-

0,44

0,4

- электросетей

-

3,59

3,27

- слаботочных сетей

-

1,31

1,2

- вентиляции

-

0,01

0,01

Итого по зданию

-

100

91,16

Вешнее благоустройство

Ремонт:

- сетей водопровода

-

-

0,29

- газопроводов

-

-

0,62

- сетей канализации

-

-

0,63

- теплосетей

-

-

0,09

- электросетей

-

-

0,13

- слаботочных сетей

-

-

0,16

Разборка зданий

-

-

1,38

Благоустройство, озеленение

-

-

1,89

Проектно-сметные работы

-

-

2,0

Зимнее удорожание

-

-

1,65

Всего по смете

-

-

100

Нормы расхода на текущий ремонт жилых зданий*

Таблица 8

Группы зданий по капитальности

Нормы расхода на текущий ремонт, в % от восстановительной стоимости

I

0,75

II

0,85

III

1,0

IV

1,15

V

1,3

VI

1,5

VII

-

VIII

-

IX

-

* «Положение о проведении планово-предупредительного ремонта жилых и общественных зданий»

Нормативы ежегодных затрат на текущий ремонт конструктивных элементов жилых зданий

Таблица 9

Конструкции и конструктивные элементы

Затраты на текущий ремонт в % от сметной стоимости

1

2

Стены наружные:

- панельные однословные из легких или ячеистых бетонов

0,14

- то же, слоистые из тяжелого бетона с эффективным утеплителем

0,18

- то же, слоистой конструкции из листовых материалов (алюминия, асбестоцемента и т.п.) с высокоэффективным утеплителем

0,1

- то же, облегченной конструкции для малоэтажного строительства

1,48

- то же, деревянные

2,05

- крупноблочные из керамзитобетона, пеносиликата и т.д.

0,19

- мелкоблочные из шлакобетона толщиной 38 см

0,51

- то же, толщиной 51 см

0,38

- кирпичные с оштукатуренным фасадом толщиной 38 см

0,34

- то же, толщиной 51 см

0,25

- то же, толщиной 64 см

0,2

- кирпичные с неоштукатуренным фасадом толщиной 38 см

0,6

- то же, толщиной 51 см

0,45

- то же, толщиной 64 см

0,36

- из естественного камня (известняка, туфа и др.)

0,1

- железобетонные монолитные на основе тяжелых и легких бетонов

0,1

- деревянные из бруса

1,9

Степы внутренние:

- деревянные брусчатые

0,81

- то же, щитовые

1,02

Перегородки:

- деревянные обшитые сухой штукатуркой

1,05

- то же, для санитарно-технических узлов

3,35

Перекрытия:

- деревянные

0,35

- то же, для санитарно-технических узлов

0,56

Крыши чердачные с деревянными стропилами

1,14

Полы из:

- досок

0,22

- керамических плиток

0.17

- линолеума

0,1

- плиток на синтетической основе

0,15

Кровельное покрытие из:

- рулонных материалов, двухслойное

0,44

- то же, трехслойное

0,32

- оцинкованной стали

0,22

- асбестоцементных плиток и волнистого асбошифера

0,78

- деревянного гонта, драни, стружки

3,1

Окна и двери:

- оконные и балконные дверные блоки с одинарным остеклением и одинарными переплетами

0,27

- то же, с двойным остеклением и спаренными переплетами

0,21

- то же, с двойным остеклением и раздельными переплетами

0,15

- то же, с тройным остеклением и раздельно-спаренными переплетами

0,08

- дверные блоки со сплошным заполнением

0,27

- то же с решетчатым заполнением

0,35

Внутренняя отделка:

- штукатурка по каменной и бетонной поверхности стен в жилых помещениях

1,3

- то же, в лестничных клетках и вестибюлях

2

- то же в санитарно-технических узлах

3,15

- штукатурка по деревянной поверхности стен в жилых помещениях

1,42

- то же, в санитарно-технических узлах

2.27

- штукатурка по каменной и бетонной поверхности потолков в жилых помещениях

0,75

- то же, в лестничных клетках и вестибюлях

1,13

- штукатурка по деревянной поверхности потолков в жилых помещениях

1,0

- то же, в санитарно-технических узлах

1,62

Защитные покрытия проступей и поручней из полимерных материалов

0,31

Показатели годового объема текущего ремонта зданий в процентах от балансовой стоимости зданий непроизводственного назначения

Таблица 10

Характеристика капитальности зданий

Норматив

1. С железобетонным или металлическим каркасом, с заполнением каркаса каменными материалами

2,2

2. С каменными стенами из штучных камней или крупноблочные, колонны и столбы железобетонные или кирпичные, перекрытия железобетонные

2,3

3. То же, перекрытия деревянные

2,5

4. Со стенами облегченной каменной кладки, колонны и столбы кирпичные или железобетонные, перекрытия железобетонные

2,5

5. Со стенами облегченной каменной кладки, колонны и столбы кирпичные или деревянные, перекрытия деревянные

2,6

6. Деревянные с брусчатыми или бревенчатыми рублеными стенами

3,5

7. Деревянные каркасные и щитовые

2,9

Нормативы ежегодных затрат на текущее обслуживание внутренних санитарно-технических систем жилых зданий

Таблица 11

Наименование систем

Затраты в % от сметной стоимости систем

Водяное отопление

5

Холодное водоснабжение и канализация

5

Горячее водоснабжение

4

Водостоки

2

Газоснабжение

2

Вентиляция и воздушное отопление с механическим побуждением

6

ПРИЛОЖЕНИЕ 2

ПЛАНЫ ТИПОВЫХ ЭТАЖЕЙ РАССМОТРЕННЫХ ЖИЛЫХ ДОМОВ

124 КВАРТИРНЫЙ ЖИЛОЙ ДОМ В МОНОЛИТЕ 16 ЭТАЖЕЙ

ПЛАН ТИПОВОГО ЭТАЖА

92 КВАРТИРНЫЙ ЖИЛОЙ ДОМ В МОНОЛИТЕ 18 ЭТАЖЕЙ

ПЛАН 3-10 ЭТАЖЕЙ

ПЛАН 11-16 ЭТАЖЕЙ

132 КВАРТИРНЫЙ КАРКАСНО-ПАНЕЛЬНЫЙ ЖИЛОЙ ДОМ 24 ЭТАЖА

ПЛАН ТИПОВОГО ЭТАЖА

88 КВАРТИРНЫЙ ЖИЛОЙ ДОМ В КИРПИЧЕ 11 ЭТАЖЕЙ

ФРАГМЕНТ ПЛАНА ТИПОВОГО ЭТАЖА

67 КВАРТИРНЫЙ ЖИЛОЙ ДОМ «ЭКО» 17 ЭТАЖЕЙ

ПЛАН

111 КВАРТИРНЫЙ ЖИЛОЙ БЛОЧНЫЙ ДОМ СЕРИИ П-68 16 ЭТАЖЕЙ

ПЛАН ТИПОВОГО ЭТАЖА

147 КВАРТИРНЫЙ ЖИЛОЙ ДОМ СИСТЕМЫ «КУБ» 7 ЭТАЖЕЙ

ФРАГМЕНТ ПЛАНА ТИПОВОГО ЭТАЖА

154 КВАРТИРНЫЙ ЖИЛОЙ ДОМ В МОНОЛИТЕ 24 ЭТАЖА

ПЛАН ТИПОВОГО ЭТАЖА

548 КВАРТИРНЫЙ ЖИЛОЙ ДОМ В МОНОЛИТЕ 17 ЭТАЖЕЙ

ПЛАНЫ ТИПОВЫХ ЭТАЖЕЙ

68 КВАРТИРНЫЙ ЖИЛОЙ ДОМ СЕРИИ П-44 17 ЭТАЖЕЙ

ПЛАН ТИПОВОГО ЭТАЖА

ПРИЛОЖЕНИЕ 3

ТЕРМИНЫ, ПОНЯТИЯ И ОПРЕДЕЛЕНИЯ

Индустриальными инженерно-техническими системами называют системные строительные процессы, включающие взаимоувязанные стадии: планирование, проектирование объектов, производство, комплектацию и монтаж. При этом конструкционные (конструктивные) элементы системы изготовляют в заводских (или приравненных к заводским) условиях.

Конструктивная система - несущая система определенного типа, характеризуемая конструктивным решением составляющих систему элементов, их взаимным расположением и способом передачи усилий. Здания в зависимости от типа сборных элементов конструктивной системы подразделяют на панельные, крупнопанельные, блочные, панельно-блочные, объемно-блочные, каркасные, каркасно-панельные и др.

Несущая система - пространственная конструкция, основа здания, состоящая из стержневых, плоскостных или объемных элементов, обеспечивающая прочность, жесткость, устойчивость и пространственную неизменяемость здания в целом.

Несущая конструкция (конструктивный элемент) - конструкция, воспринимающая внешние нагрузки и передающая их другим конструкциям или основанию.

Комбинированная несущая система состоит из различных типов несущих систем, например из стержневых и панельных.

Рама - плоская или пространственная стержневая часть несущей системы, элементы которой соединяются жесткими, шарнирными или упругоподатливыми узлами.

Диафрагма - плоская несущая конструкция, составляющая часть несущей системы. Диафрагмы могут быть вертикальными в виде стен и горизонтальными в виде дисков.

Диск перекрытия - горизонтальная диафрагма, способная воспринимать усилия, действующие в горизонтальной плоскости, и объединяющая вертикальные несущие конструкции в единую пространственную систему.

Перекрытие - элемент несущей системы, выполняющий функцию восприятия полезных нагрузок и передачи их вертикальным несущим конструкциям. Перекрытия кроме основной функции в зависимости от типа конструктивной системы выполняют и другие функции, например функцию диска перекрытия.

Рамная конструктивная система состоит из жестко соединенных колонн и ригелей, образующих плоские и пространственные рамы, объединенные перекрытиями.

Связевая конструктивная система состоит из колонн, шарнирно присоединенных к ним ригелей и системы связей, в которые входят диафрагмы жесткости и диски перекрытий.

Рамно-связевая конструктивная система состоит из жестких рам и связей в виде вертикальных конструкций и дисков перекрытий, объединяющих рамы в единую пространственную конструкцию.

Безригельная конструктивная система - такая, в которой отсутствуют ригели, и перекрытия в общем случае работают как плиты, опертые на отдельные опоры в виде колонн.

Ограждающими конструкциями называют вертикальные (или наклонные) конструкции, разделяющие пространства внутри здания на отдельные объемы или ограждающие внутренний объем здания от внешней среды.

Расчет здания любой конструктивной системы - это выбор и составление расчетной модели; выявление и подсчет всех нагрузок, воспринимаемых несущими конструкциями; вычисление усилий в элементах расчетной модели от всех видов нагрузок и воздействий; проверка общей устойчивости здания; определение перемещений расчетной модели и проверка прочности, устойчивости, жесткости и трещиностойкости элементов расчетной модели.

Индустриальное строительство - это механизированный поточный процесс возведения зданий и сооружений из крупноразмерных конструкций и деталей заводского изготовления. В последнее время к индустриальному строительству принято условно относить и строительство, осуществляемое высокомеханизированным способом, превращающим строительную площадку в подобие завода.

Стыком называется соединение сборных элементов здания.

Замоноличивание стыков сборных элементов - это заполнение швов, ниш, пространств между монтируемыми изделиями цементным раствором или бетоном. При этом бетон замоноличивания может выполнять несущую, ограждающую, декоративную функцию или совмещать несколько.

Монтажным оборудованием называется инвентарный инструмент, оборудование, механизмы и приспособления многократного использования для выполнения определенных операций по сборке здания.

Технологическая линяя - это производственная линия, обеспечивающая изготовление индустриальных изделий от момента подачи материала до выхода изделия определенной степени заводской готовности со склада готовой продукции или транспортных средств.

Под технологичностью железобетонных изделий понимают прежде всего минимальную трудоемкость изготовления на данном конкретном предприятии в сочетании с минимальной материалоемкостью изделий и соответственно их стоимостью. В зависимости от оснащенности предприятия тем или иным оборудованием, загруженности этого оборудования, принятой технологии производства одно и то же изделие на одном заводе может считаться технологичным, а на другом - нетехнологичным. Например, на отдельных предприятиях считается технологичной фиксация закладных деталей к бортам форм, а на других - к арматурному каркасу, хотя в последнем случае труднее обеспечить требуемую точность установки закладных деталей.

Важными факторами при сравнительной оценке технологичности изделий являются сложность, масса и стоимость оборудования и форм, время, необходимое для установки арматуры и закладных деталей, объем сварочных работ и др. На технологичность изделий существенное влияние оказывают также особенности отдельных технологических процессов, в связи с чем можно отдельно рассматривать технологичность изготовления арматурных изделий и закладных деталей, сварку арматуры и установку ее в формы, облицовку или отделку железобетонного изделия, укладку и уплотнение бетонной смеси - технологичность формования.

В понятие технологичности входят также и технологические операции, наиболее соответствующие данному типу конструкции, в частности, способы фиксации арматуры, методы установки строповочных петель и др.

Конструктивным элементом называют часть конструктивной системы, предназначенную для выполнения какой-либо одной или нескольких функций. К конструктивным элементам относятся, в частности, колонны, ригели, плиты перекрытий, стеновые панели и блоки, объемные блоки, элементы жесткости и т.д.

Расход основных строительных материалов - это их абсолютный или относительный (например, на 1м2 или 1 м3 здания) расход по видам материалов (например, стали, цемента, бетона). Под приведенным расходом материалов понимают расход данного вида материалов приведенный к единым для условий сопоставления или анализа физико-техническим характеристикам (например, сталь, приведенная к классу А-1, или расход цемента, приведенный к В40 (М400).

Нормативные технико-экономические показатели - это установленные нормами предельно допустимые показатели для данного вида продукции, типа конструктивной системы, вида производства или типа здания.

Материалоемкость, отдельных видов продукции и материалоемкость объектов строительства в целом, определяемая как интегральный показатель материалоемкости отдельных видов изделий и дополнительного расхода материалов, реализуемых на постройке.

Построечная трудоемкость возведения зданий из данной системы конструкций, определяемая техническими решениями системы и частичными решениями конкретного объекта.

Инвестиции - денежные средства государства, предприятия или физического лица, направляемые на создание, обновление основных фондов, расширение действующих производственных мощностей.

Капитальные вложения - это затраты на: строительно-монтажные работы при возведении зданий и сооружений, приобретение, монтаж и наладку машин и оборудования; проектно-изыскательские работы; содержание дирекции строящегося предприятия; подготовку и переподготовку кадров, затраты по отводу земельных участков и переселению в связи со строительством.

Сметная стоимость строительства - размер всех затрат, связанных со строительством (реконструкцией) предприятия, отдельного здания, сооружения или их комплексов; цена продукции в строительстве.

Эксплуатационные затраты - текущие расходы или текущие издержки производства или содержания объекта, здания и т.д.

Приведенные затраты - сумма сметной стоимости и эксплуатационных затрат, приведенных к годовой размерности с помощью соответствующих коэффициентов.




Rambler's Top100 Яндекс цитирования
  Copyright © 2008-2026, www.docload.ru