Бесплатная библиотека стандартов и нормативов www.docload.ru

Все документы, размещенные на этом сайте, не являются их официальным изданием и предназначены исключительно для ознакомительных целей.
Электронные копии этих документов могут распространяться без всяких ограничений. Вы можете размещать информацию с этого сайта на любом другом сайте.
Это некоммерческий сайт и здесь не продаются документы. Вы можете скачать их абсолютно бесплатно!
Содержимое сайта не нарушает чьих-либо авторских прав! Человек имеет право на информацию!

 

ПРАВИТЕЛЬСТВО МОСКВЫ
МОСКОМАРХИТЕКТУРА

ПОСОБИЕ
к МГСН 4.10-97

ЗДАНИЯ БАНКОВСКИХ УЧРЕЖДЕНИЙ

ВЫПУСК 1

Коммерческие банки

1999

Предисловие

1. Разработано: ЗАО ЦНИИЭП зданий и комплексов культуры, спорта и управления им. Б. С. Мезенцева (канд. арх. Лернер И. И., арх. Шулика И. А., техник Гаврилина В. А.), при участии: арх. Подолянского И. В. (ЦБ РФ), инж. Кобецкого Д. И. (Банкпроект).

2. Подготовлено к изданию Управлением перспективного проектирования и нормативов Москомархитектуры (арх. Шалов Л. А., инж. Щипапов Ю. Б.).

3. Согласовано: Ассоциацией Российских банков.

4. Утверждено указанием Москомархитектуры от 8 февраля 1999 года № 9.

СОДЕРЖАНИЕ

1. Введение. 1

2. Концептуальные положения проектирования зданий коммерческих банков. 2

3. Функциональное зонирование зданий банков, группировка и взаимосвязь помещений. 3

4. Требования к помещениям кассового и операционного блоков зданий банков. 6

4.1. Кассовый узел. 6

4.2. Кассовый зал. 21

4.3. Операционный и операционно-кассовый залы.. 24

4.4 Группа специальных помещений по обслуживанию клиентов. 30

4.5. Помещения индивидуальных сейфов (депозитарий) 33

5. Требования к помещениям информатизации, офисным и вспомогательным помещениям.. 34

5.1. Помещения информатизации. 34

5.2. Офисные помещения. 35

5.3. Вспомогательные помещения. 42

6. Требования к помещениям охраны и службы безопасности. 46

Приложение 1 Толщина ограждающих конструкций в зависимости от материала и требуемого класса устойчивости к взлому. 49

1. Введение

1.1. Настоящее пособие разработано в развитие и дополнение МГСН 4.10-97 «Здания банковских учреждений» и будет состоять из двух выпусков.

Выпуск 1. Коммерческие банки.

Выпуск 2. Учреждения Сберегательного банка России.

1.2. В настоящем выпуске на основе МГСН 4.10-97 даны развернутые рекомендации по проектированию зданий центральных офисов и филиалов коммерческих банков с учетом современных требований банковских технологий.

Излагаются требования к функциональному составу и взаимосвязи основных групп помещений, даны рекомендации по планировке как отдельных помещений, так и их функциональных блоков, оборудованию рабочих мест, а также конструктивные требования к ряду помещений с учетом их классификации по защите от взлома.

1.3. Выпуск содержит примеры планировки рабочих мест для различных категорий сотрудников банка, помещений и функциональных групп помещений различного назначения, а также схемы и другие графические материалы.

2. Концептуальные положения проектирования зданий коммерческих банков.

2.1. Большинство крупных коммерческих банков имеет центральные офисы и филиалы в Москве. Кроме того, в Москве размещаются филиалы многих региональных, а также иностранных коммерческих банков.

Коммерческие банки осуществляют финансовое обслуживание небюджетных учреждений, организаций и предприятий страны.

Постепенно в сфере их обслуживания появляются бюджетные организации. Большинство коммерческих банков работает также с некорпоративными клиентами, т.е. с физическими лицами, с населением.

2.2. Основные принципы, закладываемые в концепцию функционирования коммерческого банка:

а) наиболее широкая гамма предоставляемых банком услуг, удобство и безопасность обслуживания клиентов;

б) максимальная сохранность денег и ценностей.

Объемно-планировочные и технологические решения зданий коммерческих банков должны отвечать, прежде всего, именно этим основным принципам.

2.3. Большинство банков предназначено для обслуживания как юридических, так и физических лиц, а перечень услуг, предоставляемых банками своим клиентам достаточно широк.

Услуги, предоставляемые банком юридическим лицам, как правило, включают:

- ведение счетов, в т.ч. перевод денег на корреспондентские счета по платежным поручениям заказчиков;

- обналичивание счетов;

- оформление кредитных операций и предоставление кредитов;

- предоставление индивидуальных сейфов;

- предоставление возможности сдавать выручку через автоматический ночной сейф (ночной депозитарий);

- оформление кредитных карт;

- продажа ценных бумаг;

- инвестиционные операции, операции с недвижимостью, осуществляемые через менеджеров банка и другие операции.

Основные услуги, предоставляемые банком физическим лицам:

- открытие и ведение счетов по вкладам и депозитам;

- операции с вложенными денежными средствами по желанию клиента (в частности, оплата коммунальных и других услуг со счета клиента);

- обмен валюты через пункт обмена;

- обмен валют и размен купюр через автоматический обменный пункт (банкомат);

- оформление кредитных карт и получение денег через банкомат со счета по кредитной карте;

- предоставление индивидуальных сейфов и другие операции.

2.4. Современные банковские технологии, получающие все большее распространение в Российских коммерческих банках, в значительной степени направлены на то, чтобы как можно большее число операций осуществлялось без обращения клиентов к операционистам и кассирам, т.е. в автоматическом режиме. Для этого предназначены залы для автоматического обслуживания клиентов, оборудованные системами (ячейками) банковской почты и электронными информационными киосками, банкоматы и электронные кассиры, ночные сейфы и др.

Вопросы устройства и планировки указанных помещений, сравнительно новые для нашей практики проектирования и не нашедшие отражение в МГСН 4.10-97, рассматриваются в настоящем пособии.

2.5. Данное пособие имеет целью показать специфику проектирования коммерческих банков, в связи с чем наибольшее внимание уделяется проектированию помещений, обязательных в банковском технологическом процессе.

Ряд помещений вспомогательного и обслуживающего назначения, не являющихся специфическими для данного типа зданий (такие как конференц-залы, буфеты, ремонтные мастерские и хозяйственные кладовые и т.п.) в пособии не рассматриваются.

3. Функциональное зонирование зданий банков, группировка и взаимосвязь помещений

3.1. Исходя из основных принципов функционирования коммерческого банка, в здании можно выделить два основных укрупненных блока - операционно-кассовый блок и блок, включающий помещения информатизации, офисные помещения и сопутствующие им вспомогательные помещения, а также помещения охраны и службы безопасности.

Операционно-кассовый блок является главным функциональным звеном в зданиях банков и, как правило, составляет до 70 % от общего объема здания.

В его состав входят:

а) кассовый узел;

б) кассовый и операционный залы или операционно-кассовый зал (залы) для обслуживания юридических и физических лиц;

в) группа специальных помещений по обслуживанию клиентов (обмена валюты, банкоматов, ночного сейфа, автоматического обслуживания);

г) помещения индивидуальных сейфов (депозитарий).

Для подразделений информации предназначены помещения центральных устройств локальных сетей ЭВМ, помещения аппаратуры связи и др. помещения технологического обеспечения.

Офисные помещения включают кабинеты и приемные руководства банка, помещения отделов, включая помещения бухгалтерии.

К этой группе примыкают помещения вспомогательного и обслуживающего назначения (помещения для совещаний и переговоров, для хранения, обработки и размножения документации, предприятий общественного питания и др.).

Самостоятельной группой являются помещения охраны и службы безопасности.

3.2. По степени доступности помещения банка группируются следующим образом:

I - помещения свободного доступа. Включающие вестибюль, холлы для ожидания, кассовый и операционный залы (или операционно-кассовые залы), специальные помещения по обслуживанию клиентов;

II - помещения ограниченного и подлежащего контролю доступа клиентов, сотрудников - депозитарий, помещения информатизации и офисные помещения;

III - помещения, доступ в которые разрешен строго ограниченному кругу работников банка - кассовый узел и помещения охраны и службы безопасности.

На рис. 3.1. приведена схема взаимосвязи помещений коммерческого банка.

При проектировании здания банка рекомендуется также учитывать следующие условия:

а) Основной поток посетителей коммерческого банка проходит по маршруту: вестибюль - операционный зал - кассовый зал - вестибюль или вестибюль - операционно-кассовый зал - вестибюль. Из этого следует необходимость удобной планировочной взаимосвязи между этими помещениями.

б) Между операционистами и кассирами операционных касс должна быть обеспечена техническая или курьерская связь для оперативной передачи документов. Конкретный способ решения этой задачи должен учитываться при взаиморасположении зон операционистов в операционном или операционно-кассовом зале и операционных касс.

в) Кассовый узел должен проектироваться функционально автономным.

Доступ в него разрешен только работающему в нем персоналу и материально ответственным лицам руководящего состава.

Кассовый узел должен иметь, как правило, один служебный вход, оборудованный тамбуром-шлюзом, который контролируется техническими средствами или находится под наблюдением поста охраны. Запасные эвакуационные выходы, оснащенные устойчивыми к взлому дверями, в нормальном положении закрыты и оборудуются средствами контроля доступа, видеоконтроля и сигнализации.

Посты охраны должны находиться за пределами кассового узла. Доступ в него охрана получает в конце рабочего дня, когда ценности опечатаны.

Нахождение инкассаторов в кассовом узле за пределами бокса для инкассаторских машин и помещений для передачи ценностей не допускается.

г) В целях сокращения путей перемещения денег операционные кассы, кассы пересчета и кладовые (сейфовые) с предкладовыми должны располагаться как можно ближе друг к другу.

д) Помещения для центральных устройств локальных сетей ЭВМ (серверные), телекоммуникаций и криптозащиты рекомендуется располагать компактно.

3.4. Функциональная группировка помещений и требования к их взаимосвязи в значительной степени определяют объемно-планировочное построение здания.

Основным принципом этого построения является четкое функциональное и структурное зонирование.

Функциональное зонирование предполагает выделение в здании зон, предназначенных для обслуживания посетителей, зон с ограниченным доступом и недоступных для посторонних.

Структурное зонирование предполагает разграничение зон с различной конструктивно-планировочной структурой - зальной и мелкоячеистой.

3.5. В зданиях коммерческих банков помещениями, предназначенными для обслуживания посетителей, являются вестибюль, операционный и кассовый залы (или единый операционно-кассовый зал), а также специальные помещения для клиентов (см. п. 3.1.в). Кроме того, должен быть обеспечен доступ посетителей в депозитарий и в ряд офисных помещений (к руководству, в бухгалтерию, в кредитный и др. отделы). Доступ посторонних в остальные помещения банка, особенно в кассовый узел должен быть исключен.

Необходимость такого функционального зонирования определяет требования к размещению групп помещений в здании:

- кассовый зал, тесно связанный с кассовым узлом, рекомендуется размещать на первом этаже; он должен иметь вход для клиентов непосредственно из вестибюля или операционного зала;

- операционный зал должен быть в удобной связи с вестибюлем и кассовым залом; при размещении его на втором этаже или выше он должен находиться вблизи узла вертикальных транспортных коммуникаций;

- посещаемые клиентами офисные помещения должны быть расположены таким образом, чтобы в них можно было попасть из вестибюля или из клиентской зоны операционного (операционно-кассового) зала непосредственно или по лестнице (лифтом);

- рекомендуется предусматривать непосредственную связь депозитария и специальных помещений по обслуживанию клиентов с вестибюлем, минуя операционный и кассовый залы.

Рекомендуется следующее размещение групп помещений по этажам:

- кассовый блок, связанный с обслуживанием посетителей, загрузкой кладовой ценностей и инкассацией, рекомендуется размещать в первом этаже (часть помещений может размещаться в подвальном или цокольном этажах);

- операционный блок может размещаться на первом или втором этаже; при организации операционно-кассового зала его желательно располагать на первом этаже;

- офисные помещения могут находиться на втором или вышележащих этажах;

- депозитарий рекомендуется размещать в первом или подвальном (цокольном) этаже.

3.6. Для зданий коммерческих банков характерно структурное зонирование, т.е. выделение зон (части этажа, целого этажа, блока) с различной конструктивно-планировочной структурой, поскольку в них имеются зальные помещения - операционный и кассовый залы (или операционно-кассовые залы), которые могут быть большепролетными или с промежуточными опорами, и помещения небольших размеров, создающие ячеистую структуру - помещения кассового узла, офисные и вспомогательные помещения.

3.7. Основным элементом функциональной структуры коммерческого банка является операционно-кассовый блок, а размещение наиболее крупных его помещений - операционного и кассового залов в значительной степени определяет характер объемно-планировочной структуры здания. Наиболее характерны следующие варианты взаимного расположения операционного и кассового залов:

А - операционный и кассовый залы размещаются на одном (первом этаже); они могут располагаться по обе стороны от вестибюля или холла, или смежно в глубине здания за вестибюлем (в этом случае наиболее рациональна организация единого операционно-кассового зала);

Б - операционный и кассовый зал размещаются на разных этажах (передача документов из операционного зала в кассовый осуществляется в этом случае при помощи технических средств); они могут располагаться как один над другим, так и в разных частях здания.

При варианте «А» в зависимости от способа размещения залов по отношению к другим помещениям и формы самих залов здание в плане может иметь компактную, протяженную или сложную форму.

При варианте «Б», как правило, образуются здания с компактной формой плана.

Размещение операционного и кассового залов как на одном этаже, так и на разных этажах одинаково оправдано с точки зрения технологии банковской работы.

Применение компактной, протяженной или сложной формы плана здания должно определяться условиями конкретной градостроительной ситуации.

При наличии небольшого земельного участка или потребности сокращения площади застройки здания целесообразно применение планировочной схемы по варианту «Б» с размещением офисных помещений, не связанных в своей работе с посетителями, на третьем и вышележащих этажах.

При наличии достаточно большого свободного участка возможно использование планировочной схемы по варианту «А» с размещением большинства помещений банка в первом этаже.

УСЛОВНЫЕ ОБОЗНАЧЕНИЯ

   - основные маршруты посетителей

   - основные маршруты перемещения денег

   - основные технологические связи

              - контрольный тамбур-шлюз

Рис. 3.1. СХЕМА ВЗАИМОСВЯЗИ ПОМЕЩЕНИЙ КОММЕРЧЕСКОГО БАНКА

4. Требования к помещениям кассового и операционного блоков зданий банков

4.1. Кассовый узел.

Согласно МГСН 4.10-97 кассовый узел коммерческого банка включает следующие основные помещения:

- кладовую ценностей с предкладовой или сейфовую комнату с предсейфовой;

- операционные кассы (кассовые кабины);

- кассы пересчета банкнот и монет;

- вечернюю кассу;

- помещение по приему-выдаче денег инкассаторам и бокс для инкассаторских машин;

- комнаты для хранения личных вещей и отдыха кассиров.

4.1.1. В здании коммерческого банка могут быть устроены одна или несколько кладовых ценностей для хранения отечественной и иностранной валюты и ценных бумаг. Как правило, каждая из кладовых должна иметь собственную предкладовую. В случаях, когда это целесообразно, особенно в условиях реконструкции, одна предкладовая может предусматриваться на две и более кладовых. Возможно также в пределах одной защитной оболочки кладовой выделение отсеков для разных видов хранения при помощи решетчатых или глухих перегородок.

Кладовые ценностей оборудуются стационарными металлическими стеллажами с решетчатыми дверьми или специальными металлическими шкафами для хранилищ.

В крупных кладовых ценностей (площадью более 100 м2) возможно применение контейнерного хранения ценностей на передвижных платформах или хранение на передвижных стеллажах для компактного хранения.

На рис. 4.1 - 4.4 приведены примеры планировки кладовых с предкладовыми при различных способах хранения ценностей.

В соответствии с требованием ЦБ РФ для коммерческих банков (Положение «О порядке ведения кассовых операций в кредитных организациях на территории Российской Федерации» № 56 от 25 марта 1997 г.), по которому защитная оболочка кладовой ценностей должна иметь класс защиты от взлома не ниже V по ГОСТ Р50862-96, и по аналогии с требованиями к кладовым ценностей для расчетно-кассовых центров устойчивость к взлому защитной оболочки кладовой должна быть не ниже следующих классов:

V - в кладовых площадью до 100 м2;

VI - в кладовых площадью 100 - 200 м2;

VII - в кладовых площадью свыше 200 м2.

Толщину конструкций защитной оболочки кладовой и других ограждающих конструкций в зависимости от материала и требуемого класса устойчивости к взлому см. в Приложении 1. При организации сейфовой комнаты для хранения ценностей должны применяться несгораемые сейфы класса устойчивости к взлому не ниже IV (ГОСТ Р50862-96) и имеющие соответствующий сертификат. Они могут размещаться в помещениях, не оборудованных фибробетонной оболочкой и бронедверью.

На рис. 4.5 приведена планировка сейфовой комнаты с предсейфовой.

4.1.2. Операционные кассы (кассовые кабины) могут выходить своим фронтом непосредственно в кассовый зал или же перед каждой кассой могут организовываться индивидуальные кабины для пересчета денег клиентами.

На рис. 4.6 - 4.9 приведены примеры организации нескольких операционных касс: кассовой кабины со стандартным набором оборудования, кассовой кабины уменьшенной площади для стесненных условий реконструкции, операционной кассы с дополнительным боковым окном для выдачи крупных сумм наличности непосредственно в помещение пересчета денег клиентами и кассовой кабины увеличенной площади для старшего кассира.

На рис. 4.10 и 4.11 показаны операционные кассы с индивидуальными кабинами для клиентов.

4.1.3. В коммерческих банках должны, как правило, предусматриваться отдельные помещения для кассы пересчета банкнот и для кассы пересчета монет.

В кассе пересчета банкнот работают сотрудники, занимающиеся собственно пересчетом денежных билетов, их сортировкой и вакуумной упаковкой. Рабочее место пересчетчиков банкнот включает стол рабочий, на котором размещается машина для счета банкнот и машина для обандероливания пачек денег, стул рабочий подъемно-поворотный и закрытую тележку (передвижной сейф) для транспортировки денег. В помещении для пересчета банкнот требуется также установка настольного вакуумного упаковщика обандероленных пачек в брикеты, покрытые полиэтиленовой пленкой, а также настольного банковского пресса. Для установки этого оборудования требуется дополнительный стол, а также дополнительная тележка для транспортировки брикетов.

Рабочее место пересчетчика монет включает 2 рабочих стола, на одном из которых размещается машина для счета монет, на другом - мешки с монетами, предназначенными для пересчета. Кроме того, в рабочее место входит стул подъемно-поворотный и закрытая тележка-сейф для перевозки монет.

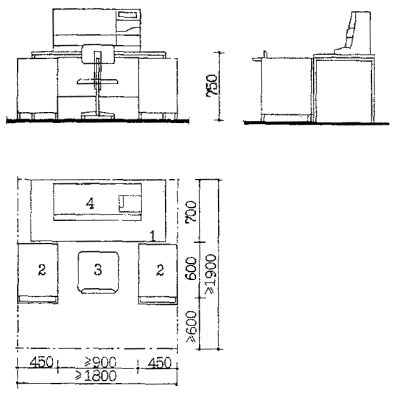
Рабочие места кассиров - пересчетчиков приведены на рис. 4.12 - 4.17. Примеры планировки касс пересчета банкнот и монет с различной численностью сотрудников приведены на рис. 4.18 - 4.22.

Как правило, кассы пересчета работают в течение всего рабочего дня. Первую половину дня кассы пересчета обрабатывают денежную массу, поступившую из вечерней кассы, вторую половину дня - поступившую через операционные кассы в течение операционного дня.

4.1.4. Вечерняя касса предназначена для временного (ночного) хранения ценностей, поступающих от инкассаторов в вечернее время, когда основные кладовые ценностей уже опечатаны и поставлены на охрану. Она может быть запроектирована в нескольких вариантах:

а) Вечерняя касса в составе кладовой и кабины кассира, перед которой образуется предкассовая зона для инкассаторов. Кладовая вечерней кассы имеет ограждающие конструкции в виде защитной фибробетонной оболочки.

б) Вечерняя касса в виде специальной комнаты, оснащенной несгораемыми сейфами и имеющей небольшую предсейфовую.

В случае, когда кассир вечерней кассы принимает деньги у инкассаторов через помещение передачи ценностей при боксе для инкассаторских машин, вместо кабины кассира вечерней кассы перед кладовой временного хранения предусматривается небольшая предкладовая.

В случае, если коммерческий банк имеет собственную инкассаторскую службу и в здании предусматриваются специальные помещения для ее размещения, то сейфовая комната для хранения вечерней выручки в инкассаторских мешках может быть организована в зоне инкассаторской службы.

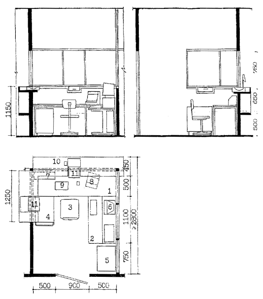
Планировка помещений вечерней кассы приведена на рис. 4.23.

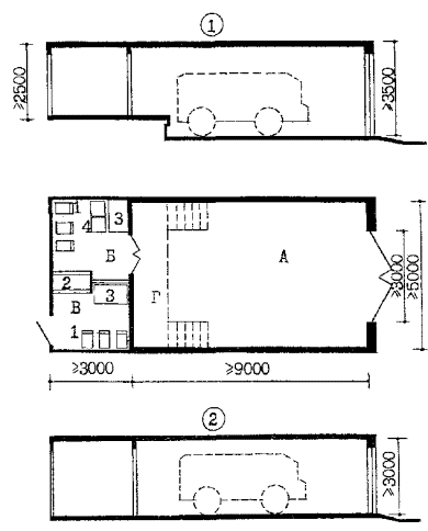
4.1.5. Помещение по приему-выдаче (передаче) денег инкассаторам должно устраиваться в здании коммерческого банка во всех случаях, в том числе, если не предусматривается бокс для инкассаторских машин.

При отсутствии бокса доставка денег осуществляется через специальный служебный вход с контрольным шлюзом. При организации в здании бокса для инкассаторских машин инкассаторы попадают в помещение передачи денег непосредственно из него.

Помещение передачи денег рекомендуется разделять на два помещения - для инкассаторов и для сотрудников банка. Для передачи ценностей предусматривается передаточное окно-шлюз, имеющее раздвижные дверцы из пулезащитного стекла, которые открываются поочередно.

Размер и устройство бокса (с рампой или без нее) зависит от типа применяемых инкассаторских машин (рис. 4.24).

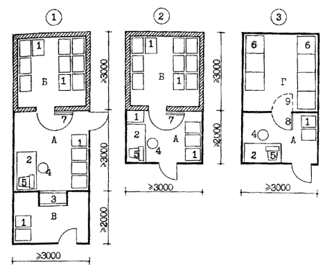
4.1.6. В кассовых узлах банков рекомендуется устраивать комнаты хранения личных вещей и отдыха кассиров. В условиях реконструкции под банки зданий иного назначения эти помещения допускается не предусматривать.

При недостатке площадей возможно совмещение в одном помещении обеих функций. При организации отдельной комнаты для отдыха кассиров желательно, чтобы она была приспособлена для приема пищи.

Примеры планировки указанных помещений приведены на рис. 4.25.

А - предкладовая

Б - смотровой коридор

В - кладовая ценностей

1 - стационарные металлические стеллажи с решетчатыми дверцами

2 - стол рабочий

3 - тумба

4 - модуль с сургучницей и вытяжкой

5 - стул рабочий подъемно-поворотный

6 - закрытые тележки /передвижные сейфы/ для транспортировки денег

7 - решетчатая металлическая дверь

8 - бронедверь

9 - решетчатые перегородки с запирающимися дверьми /для выделения зон в кладовой/

Рис. 4.1. КЛАДОВАЯ ЦЕННОСТЕЙ С ПРЕДКЛАДОВОЙ /ВАРИАНТ 1/

А - предкладовая

Б - смотровой коридор

В - кладовая ценностей

1 - стационарные металлические стеллажи с решетчатыми дверцами

2 - стол подсобный

3 - закрытые тележки /передвижные сейфы/ для транспортировки денег

4 - стул рабочий подъемно-поворотный

5 - стол рабочий

6 - тумба

7 - модуль с сургучницей и вытяжкой

8 - решетчатая металлическая дверь

9 - бронедверь

Рис. 4.2. КЛАДОВАЯ ЦЕННОСТЕЙ С ПРЕДКЛАДОВОЙ /ВАРИАНТ 2/

А - предкладовая

Б - смотровой коридор

В - кладовая ценностей

1 - контейнеры для хранения ценностей

2 - передвижные платформы для контейнеров

3 - стол рабочий

4 - тумба для оргтехники

5 - модуль с сургучницей и вытяжкой

6 - стул рабочий подъемно-поворотный

7 - тележки для транспортировки контейнеров

8 - решетчатая металлическая дверь

9 - бронедверь

Рис. 4.3. КЛАДОВАЯ ЦЕННОСТЕЙ С ПРЕДКЛАДОВОЙ /ВАРИАНТ 3/

А - предкладовая

Б - смотровой коридор

В - кладовая ценностей

1 - передвижные стеллажи для хранения ценностей

2 - стол рабочий

3 - тумба для оргтехники

4 - модуль с сургучницей и вытяжкой

5 - стул рабочий подъемно-поворотный

6 - тумба выкатная

7 - закрытая тележка /передвижной сейф/ для транспортировки ценностей

8 - решетчатая металлическая дверь

9 - бронедверь

Рис. 4.4. КЛАДОВАЯ ЦЕННОСТЕЙ С ПРЕДКЛАДОВОЙ /ВАРИАНТ 4/

А - сейфовая

Б - предсейфовая

1 - сейф

2 - стол рабочий

3 - тумба

4 - стул подъемно-поворотный

5 - закрытая тележка /передвижной сейф/ для перевозки ценностей

6 - металлическая дверь сплошная

7 - дверь решетчатая

Рис. 4.5. СЕЙФОВАЯ КОМНАТА С ПРЕДСЕЙФОВОЙ

1 - рабочий стол

2 - компьютерный стол

3 - стул подъемно-поворотный

4 - передвижной сейф /закрытая тележка/ для транспортировки денег

5 - сейф

6 - компьютер

7 - сортировка

8 - машина для счета банкнот

9 - прибор для контроля банкнот

10 - переговорное устройство

11 - передаточный лоток в пулезащитном исполнении

Рис. 4.6. ОПЕРАЦИОННАЯ КАССА

1 - рабочий стол

2 - компьютерный стол

3 - стул подъемно-поворотный

4 - передвижной сейф /закрытая тележка/ для транспортировки денег/

5 - сейф

6 - компьютер

7 - сортировка

8 - машина для счета банкнот

9 - прибор для контроля банкнот

10 - переговорное устройство

11 - передаточный лоток в пулезащитном исполнении

Рис. 4.7. ОПЕРАЦИОННАЯ КАССА ДЛЯ СТЕСНЕННЫХ УСЛОВИЙ

1 - рабочий стол

2 - компьютерный стол

3 - стул подъемно-поворотный

4 -передвижной сейф /закрытая тележка/ для транспортировки денег

5 - сейф

6 - компьютер

7 - сортировка

8 - машина для счета банкнот

9 - прибор для контроля банкнот

10 - переговорное устройство

11 - передаточный лоток в пулезащитном исполнении или контейнер для передачи крупных сумм денежной наличности

Рис. 4.8. ОПЕРАЦИОННАЯ КАССА С ДОПОЛНИТЕЛЬНЫМ БОКОВЫМ ЛОТКОМ ДЛЯ ВЫДАЧИ ДЕНЕГ

1 - рабочий стол

2 - компьютерный стол

3 - стул подъемно-поворотный

4 - передвижной сейф /закрытая тележка/ для транспортировки денег

5 - сейф

6 - компьютер

7 - сортировка

8 - машина для счета банкнот

9 - прибор для контроля банкнот

10 - стол подсобный

11 - стул

12 - факс

13 - переговорное устройство

14 - передаточный лоток в пулезащитном исполнении

Рис. 4.9. ОПЕРАЦИОННАЯ КАССА ДЛЯ СТАРШЕГО КАССИРА

А - операционная касса

Б - кабина для клиентов

1 - стол рабочий

2 - передаточный лоток в пулезащитном исполнении

3 - стул рабочий подъемно-поворотный

4 - передвижной сейф /закрытая тележка/ для транспортировки денег

5 - компьютерный стол

6 - сейф

7 - компьютер

8 - машина для счета банкнот

9 - переговорное устройство

Рис. 4.10. ОПЕРАЦИОННАЯ КАССА С ИНДИВИДУАЛЬНОЙ КАБИНОЙ ДЛЯ КЛИЕНТОВ

А - операционная касса

Б - кабина для клиентов

1 - стол рабочий

2 - передаточный лоток в пулезащитном исполнении

3 - переговорное устройство

4 - компьютерный стол

5 - передвижной сейф /закрытая тележка/ для транспортировки денег

6 - стул рабочий подъемно-поворотный

7 - стол подсобный

8 - металлический шкаф /сейф/

9 - машина для счета банкнот

10 - компьютер

Рис. 4.11. ОПЕРАЦИОННАЯ КАССА ДЛЯ СТАРШЕГО КАССИРА С ИНДИВИДУАЛЬНОЙ КАБИНОЙ ДЛЯ КЛИЕНТОВ

1 - стол рабочий

2 - стул подъемно-поворотный

3 - закрытая тележка /передвижной сейф/ для транспортировки денег

4 - машина для счета банкнот

5 - машина для обандероливания

6 - ограждение из матового стекла

Рис. 4.12. РАБОЧЕЕ МЕСТО СОТРУДНИКА КАССЫ ПЕРЕСЧЕТА БАНКНОТ /ВАРИАНТ 1/

1 - стол кассовый для пересчета

2 - машина для счета банкнот

3 - машина для обандероливания

4 - стул рабочий подъемно-поворотный

5 - закрытая тележка/передвижной сейф/ для транспортировки денег

6 - контейнер для мусора

7 - ограждение из матового оргстекла

Рис. 4.13. РАБОЧЕЕ МЕСТО СОТРУДНИКА КАССЫ ПЕРЕСЧЕТА БАНКНОТ /ВАРИАНТ 2/

1 - машина для пересчета и сортировки денег /типа DLR 3700/

2 - машина для обандероливания

3 - стол рабочий /120 х 75 х 75 см/

4 - стол рабочий /150 х 75 х 75 см/

5 - стул рабочий подъемно-поворотный

6 - закрытая тележка /передвижной сейф/ для транспортировки денег

7 - контейнер для мусора

Рис. 4.14. РАБОЧЕЕ МЕСТО ОПЕРАТОРА МАШИНЫ ДЛЯ ПЕРЕСЧЕТА И СОРТИРОВКИ БАНКНОТ

1 - стол рабочий

2 - закрытая тележка /передвижной сейф/ для транспортировки денег

3 - стул подъемно-поворотный

4 - машина для сортировки банкнот

Рис. 4.15. РАБОЧЕЕ МЕСТО ОПЕРАТОРА МАШИНЫ ДЛЯ СОРТИРОВКИ БАНКНОТ

1 - вакуумный упаковщик

2 - пресс банковский настольный

3 - стол специальный для вакуумного упаковщика

4 - закрытая тележка /передвижной сейф/ для транспортировки денег

5 - стул подъемно-поворотный

Рис. 4.16. РАБОЧЕЕ МЕСТО ДЛЯ ВАКУУМНОЙ УПАКОВКИ БАНКНОТ

1 - рабочий стол

2 - тумба

3 - закрытая тележка /передвижной сейф/ для транспортировки ценностей

4 - стол

5 - стул рабочий подъемно-поворотный

6 - машина для счета и сортировки монет

Рис. 4.17. РАБОЧЕЕ МЕСТО СОТРУДНИКА КАССЫ ПЕРЕСЧЕТА МОНЕТ

ВАРИАНТ 1 - помещение площадью 16 м2 на 2 кассира-пересчетчика;

ВАРИАНТ 2 - помещение площадью 18 м2 на 2 кассира-пересчетчика;

ВАРИАНТ 3 - помещение площадью 24 м2 на 3 кассира-пересчетчика;

ВАРИАНТ 4 - помещение площадью 36 м2 на 5 кассиров-пересчетчиков.

1 - рабочее место сотрудника кассы пересчета - см. рис. 4.12

2 - рабочее место для вакуумной упаковки банкнот - см. рис. 4.16

3 - шкаф металлический

4 - стол подсобный

5 - контейнер для мусора

Рис. 4.18. ПОМЕЩЕНИЯ КАСС ПЕРЕСЧЕТА БАНКНОТ НА 2, 3 И 5 РАБОЧИХ МЕСТ

ВАРИАНТ 1 - помещение площадью 16 м2 на 2 кассира-пересчетчика;

ВАРИАНТ 2 - помещение площадью 18 м2 на 3 кассира-пересчетчика;

ВАРИАНТ 3 - помещение площадью 36 м2 на 5 кассиров-пересчетчиков.

1 - рабочее место сотрудника кассы пересчета - см. рис. 4.13

2 - рабочее место для вакуумной упаковки банкнот - см. рис. 4.16

3 - шкаф металлический

4 - стол подсобный

Рис. 4.19. ПОМЕЩЕНИЕ КАСС ПЕРЕСЧЕТА БАНКНОТ НА 2, 3 И 5 РАБОЧИХ МЕСТА

ВАРИАНТ 1 - помещение на 4 машины

ВАРИАНТ 2 - помещение на 2 машины

ВАРИАНТ 3 - помещение на 3 машины

1 - рабочее место оператора машины для пересчета и сортировки банкнот - см. рис. 4.14

2 - стол для вакуумного упаковщика

3 - закрытая тележка /передвижной сейф/ для транспортировки денег

4 - стул подъемно-поворотный

5 - металлический шкаф

Рис. 4.20. ПОМЕЩЕНИЯ КАСС ПЕРЕСЧЕТА БАНКНОТ, ОСНАЩЕННЫЕ МАШИНАМИ ТИПА DLR 3700

ВАРИАНТ 1 - помещение площадью 36 м2 на 7 кассиров-пересчетчиков

ВАРИАНТ 2 - помещение площадью 72 м2 на 10 кассиров-пересчетчиков

1 - рабочее место сотрудника кассы пересчета - см. Рис. 4.12

2 - рабочее место для вакуумной упаковки банкнот - см. Рис. 4.16

3 - рабочее место оператора машины для сортировки банкнот - см. Рис. 4.15

4 - контейнер для мусора

5 - шкаф металлический

Рис. 4.21. ПОМЕЩЕНИЯ КАСС ПЕРЕСЧЕТА БАНКНОТ НА 7 И 10 РАБОЧИХ МЕСТ

ВАРИАНТ 1 -помещение площадью 9,6 м2 на 1 рабочее место

ВАРИАНТ 2 - помещение площадью 12 м2 на 2 рабочих места

ВАРИАНТ 3 - помещение площадью 18 м2 на 2 рабочих места

1 - рабочее место сотрудника кассы пересчета монет - см. рис. 4.17

2 - контейнер для мусора

3 - шкаф металлический

Рис. 4.22. ПОМЕЩЕНИЯ КАСС ПЕРЕСЧЕТА МОНЕТ НА 1 И 2 РАБОЧИХ МЕСТА

ВАРИАНТ 1 - вечерняя касса с кладовой и предкассовой зоной для инкассаторов

ВАРИАНТ 2 - вечерняя касса с кладовой

ВАРИАНТ 3 - вечерняя касса с сейфовой

А - вечерняя касса

Б - кладовая вечерней кассы

В - предкассовая зона для инкассаторов

Г - сейфовая вечерней кассы

1 - передвижной сейф /закрытая техника/ для перевозки ценностей

2 - рабочий стол кассира вечерней кассы

3 - передаточное пулезащитное окно-шлюз

4 - стул подъемно-поворотный

5 - компьютер

6 - сейф

7 - бронедверь

8 - металлическая дверь

9 - решетчатая дверь

Рис. 4.23. ВЕЧЕРНЯЯ КАССА С КЛАДОВОЙ /СЕЙФОВОЙ/

ВАРИАНТ 1 - с разгрузочно-погрузочной рампой

ВАРИАНТ 2 - без рампы

А - бокс погрузки-разгрузки инкассаторских машин

Б - помещение передачи ценностей - зона инкассаторов

В - помещение передачи ценностей - зона сотрудников банка

Г - разгрузочно-погрузочная рампа

1 - закрытая тележка /передвижной сейф/ для транспортировки ценностей

2 - передаточное пулезащитное окно-шлюз

3 - стол подсобный

4 - стул

Рис. 4.24. БОКС ДЛЯ ИНКАССАТОРСКИХ МАШИН И ПОМЕЩЕНИЕ ДЛЯ ПЕРЕДАЧИ ЦЕННОСТЕЙ

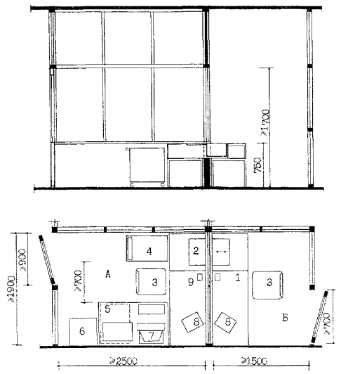
А - помещение для хранения личных вещей кассиров на 12 человек

Б - помещение для хранения личных вещей кассиров на 17 человек

В - помещение отдыха и приема пищи в расчете на 12 человек

Г - помещение отдыха и приема пищи в расчете на 18 человек

Д - помещение для хранения личных вещей кассиров, отдыха и приема пищи на 7 человек

1 - двухсекционный шкаф для одежды

2 - скамья

3 - мини-кухня /блок комплексной поставки/

4 - стол обеденный четырехместный

5 - стол обеденный двухместный

6 - стол журнальный

7 - кресло для отдыха

8 - диван

9 - стул

10 - стеллажи для аудиовидеотехники и периодики

Рис. 4.25. ПОМЕЩЕНИЕ ДЛЯ ХРАНЕНИЯ ЛИЧНЫХ ВЕЩЕЙ КАССИРОВ, ОТДЫХА И ПРИЕМА ПИЩИ

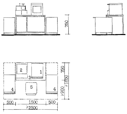
4.2. Кассовый зал

4.2.1. Кассовый зал предназначен для получения-выдачи денег и ценных бумаг физическим и юридическим лицам. Кассовый зал, в который выходит фронт операционных касс, включает зону ожидания для клиентов и помещения или кабины для пересчета денег клиентами.

Планировка индивидуальных кабин для клиентов приведена на рис. 4.10 и 4.11. Индивидуальные кабины рассчитаны на сидящего клиента и могут быть использованы для обслуживания инвалидов-колясочников.

При организации в кассовом зале общего помещения для пересчета денег клиентами места для клиентов могут оборудоваться так, как показано на рис. 4.26 и 4.27.

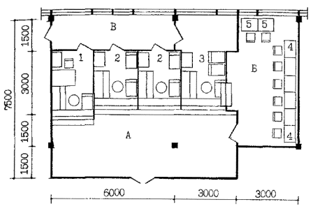
4.2.2. Планировка кассового зала с четырьмя операционными кассами и помещением для пересчета денег клиентами приведена на рис. 4.28, а при оборудовании касс индивидуальными кабинами для клиентов - на рис. 4.29.

Пример планировки кассового узла совместно с кассовым залом приведен на рис. 4.30.

1 - стол

2 - подвесные полки для портфелей

3 - машина для счета банкнот

4 - стул

5 - ограждение из матового оргстекла

Рис. 4.26. МЕСТА ДЛЯ КЛИЕНТОВ В ПОМЕЩЕНИИ ПЕРЕСЧЕТА ДЕНЕГ ПРИ КАССОВОМ ЗАЛЕ /ВАРИАНТ А/

1 - стол

2 - машина для счета банкнот

3 - машина для счета монет

4 - стул

Рис. 4.27. МЕСТА ДЛЯ КЛИЕНТОВ В ПОМЕЩЕНИИ ПЕРЕСЧЕТА ДЕНЕГ ПРИ КАССОВОМ ЗАЛЕ /ВАРИАНТЫ Б и В/

А - кассовый зал

Б - помещение для пересчета денег клиентами

В - закассовое пространство

1 - операционная касса - см. Рис. 4.9

2 - операционная касса - см. Рис. 4.6

3 - операционная касса - см. Рис. 4.7

4 - место для клиента в помещении пересчета денег - см. Рис. 4.27 /вариант Б/

5 - место для клиента в помещении пересчета денег - см. Рис. 4.27 /вариант В/

Рис. 4.28. КАССОВЫЙ ЗАЛ С 4 ОПЕРАЦИОННЫМИ КАССАМИ И ПОМЕЩЕНИЕМ ДЛЯ ПЕРЕСЧЕТА ДЕНЕГ КЛИЕНТАМИ

А - кассовый зал - зона ожидания для клиентов

Б - операционные кассы

В - индивидуальные кабины для клиентов

Г - закассовое пространство

1 - операционная касса см. Рис. 4.10

2 - индивидуальная кабина для клиентов - см. Рис. 4.10

Рис. 4.29. КАССОВЫЙ ЗАЛ НА 6 ОПЕРАЦИОННЫХ КАСС С ИНДИВИДУАЛЬНЫМИ КАБИНАМИ ДЛЯ КЛИЕНТОВ

- . -             - маршрут движения поступающих денег

- -               - маршрут движения выдаваемых денег

1 - предкассовый холл

2 - кассовый зал и помещение для пересчета денег клиентами

3 - касса пересчета банкнот

4 - касса пересчета монет

5 - кабинет заведующего кассами

6 - комната отдыха и приема пищи

7 - комната для хранения личных вещей кассиров

8 - кладовая расходных материалов

9 - кладовая уборочного инвентаря

10 - предкладовая

11 - кладовая ценностей

12 - санитарные узлы

13 - курительная

14 - бокс для инкассаторских машин

15 - помещение передачи ценностей

16 - санитарный узел для инкассаторов

17 - пост охраны

18 - контрольный тамбур-шлюз

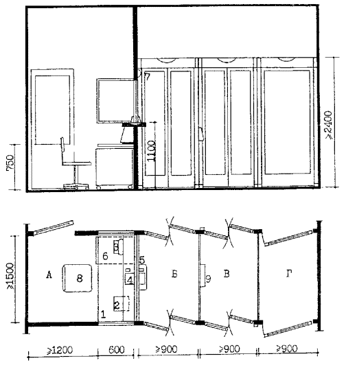
Рис. 4.30. ПРИМЕР ПЛАНИРОВКИ КАССОВОГО УЗЛА

4.3. Операционный и операционно-кассовый залы

4.3.1. Для обслуживания юридических и физических лиц предусматриваются операционные залы для работы с документацией или операционно-кассовые - для работы с документами и выдачи - получения денег. Для обслуживания юридических лиц в центральных офисах крупных коммерческих банках предусматриваются, как правило, операционные залы, а в небольших филиалах банков - операционно-кассовые. Для обслуживания физических лиц, как правило, предусматриваются операционно-кассовые залы.

4.3.2. Функционально в операционном зале выделяются две зоны - для клиентов и операционных работников (операционистов). Это зонирование в операционных залах осуществляется следующими способами:

а) операционный зал разделяется на две примерно равные по площади зоны барьером для обслуживания стоящих клиентов, который имеет горизонтальную панель на высоте 1,0 - 1,15 м от пола, а над панелью на высоту 60 - 45 см - защитное остекление с окнами или щелью для передачи документов;

б) операционный зал разделяется на две зоны барьером высотой не более 85 см с защитным остеклением, для обслуживания сидящих клиентов;

в) операционный зал разделяется на две зоны рядом рабочих столов, с одной стороны которых размещаются операционисты, а с другой - клиенты; защитное остекление в этом случае не применяется;

г) рабочие места операционистов группами размещаются на площади операционного зала, при каждом из них имеются места для клиентов; зоны в этом случае четко не выделяются.

Способ зонирования операционного зала зависит от характера работы конкретного банка, количества обслуживаемых клиентов и ряда других специфических факторов и определяется заданием на проектирование. Вариант «г» используется в основном для обслуживания VIP-клиентов.

4.3.3. В операционно-кассовых залах для юридических лиц к зоне для клиентов обращен барьер, за которым размещаются рабочие места операционистов, и фронт операционных касс (кассовых кабин). Планировка операционно-кассового зала должна обеспечивать удобную связь операционных касс с другими помещениями кассового узла.

4.3.4. Планировка операционно-кассовых залов для обслуживания физических лиц, предназначенных для приема и выдачи вкладов, продажи ценных бумаг, обмена валюты, выдачи кредитов, оформления кредитных карт и т.п., может иметь следующие варианты:

а) рабочие места операционистов (контролеров) и кассиров, размещаются за барьером, чередуясь между собой, при этом кассовые кабины должны быть обеспечены соответствующей защитой в соответствии с требованием МГСН 4.10-97;

б) рабочие места операционистов и кассовые кабины группируются на площади зала в отдельные блоки;

в) рабочие места кассиров - контролеров, обслуживающих клиентов, в виде кассовых кабин с соответствующей защитой размещают в ряд или образовывают группы на площади зала.

4.3.5. В практике проектирования и строительства коммерческих банков в Москве в последнее время все чаще встречаются операционно-кассовые залы, в которых обслуживаются как юридические, так и физические лица. В этом случае применяется сочетание в одном зале нескольких из указанных выше вариантов планировочных решений. При таких залах наиболее целесообразно предусматривать помещения автоматического обслуживания клиентов, которые будут представлены ниже.

Организацию рабочих мест операционистов см. на рис. 4.31 - 4.35. Рабочие места операционистов отделяются друг от друга перегородками, остекленными от поверхности стола до высоты 1,6 - 1,75 м от пола. Остекление над барьером и разделительные перегородки применяются в целях звукоизоляции и устранения взаимных помех при работе операционистов.

Примеры планировки операционных и операционно-кассовых залов разного назначения и устройства приведены на рис. 4.36 - 4.41.

4.3.6. В крупных операционно-кассовых залах, рассчитанных на обслуживание большого количества клиентов, целесообразно применение «Системы электронной очереди» типа Q Matic. Принцип работы этой системы следующий:

Клиент на входе в операционно-кассовый зал в номерковом аппарате получает номер своей очереди и ждет вызова в зале. Кассир вызывает клиента нажатием на своем пульте клавиши «следующий». Клиент оповещается звуком гонга и мигающим номером очереди клиента, номером кассы и стрелкой, указывающей расположение кассы, на основном табло системы в зале и одновременно мигающим номером кассы и номером очереди клиента на табло, смонтированном на кассе.

Применение системы электронной очереди типа «Q Matic» в операционно-кассовом зале обеспечивает:

- внедрение современной технологии обслуживания клиентов, распределение и оптимизацию потоков клиентов;

- сокращение времени обслуживания клиентов при повышении качества работы кассиров и улучшения условий их работы;

- получение оперативной информации в реальном масштабе времени о текущей работе каждого кассира, количестве работающих касс, количестве обслуженных клиентов, количестве клиентов, ждущих в очереди и др. получение статистической информации (в виде графиков и диаграмм по различным отрезкам времени) о работе каждого кассира, для оценки производительности труда каждого кассира и планирования работы;

- получение информации о среднем времени обслуживания клиента, при этом выдаются рекомендации о том, как лучше укомплектовать кассы персоналом и каким при этом будет время ожидания и обслуживания клиента.

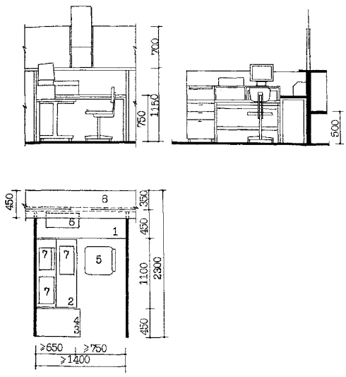
4.3.7. При операционном и операционно-кассовом залах целесообразно предусматривать зоны или помещения для менеджеров и консультантов, ведущих прием посетителей (клиентов) на предмет консультаций, составления документов, оформления покупки ценных бумаг, оформления кредитов и кредитных карт, операций с недвижимостью и других операций. Для конфиденциальных переговоров предусматриваются помещения, выгороженные глухими перегородками.

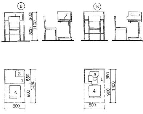
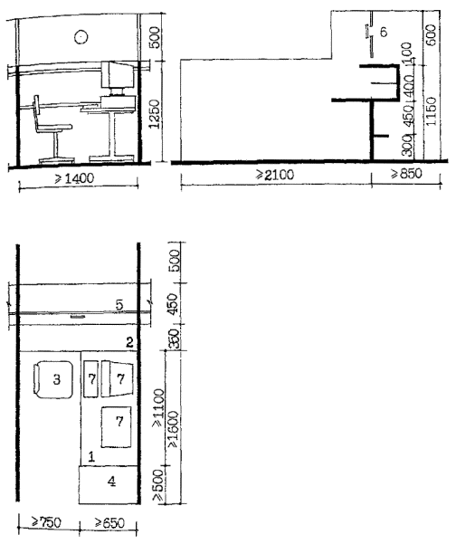
Рабочее место менеджера (консультанта) оборудуется Г-образным столом (или столом с приставкой), персональным компьютером с принтером, подкатной тумбой для бумаг, подъемно-поворотным стулом. Для посетителей перед столом устанавливается несколько кресел.

1 - стол

2 - стол компьютерный

3 - тумба

4 - сейф настольный

5 - стул подъемно-поворотный

6 - сортировка

7 - компьютер

8 - барьерная стойка

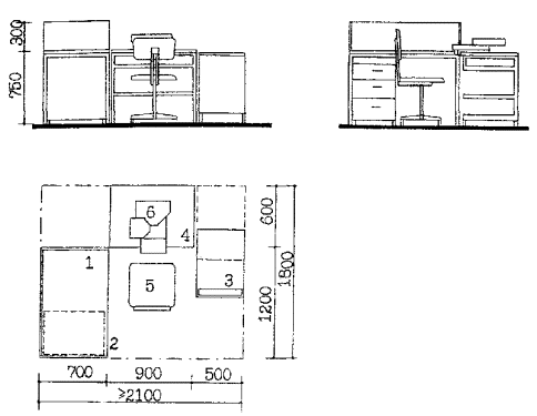
Рис. 4.31. РАБОЧЕЕ МЕСТО ОПЕРАЦИОНИСТА В ОПЕРАЦИОННОМ ЗАЛЕ /ВАРИАНТ 1/

1 - стол компьютерный

2 - стол приставной

3 - тумба

4 - шкаф металлический

5 - стул подъемно-поворотный

6 - компьютер

7 - барьерная стойка

Рис. 4.32. РАБОЧЕЕ МЕСТО ОПЕРАЦИОНИСТА В ОПЕРАЦИОННОМ ЗАЛЕ /ВАРИАНТ 2/

1 - стол компьютерный

2 - барьерная стойка

3 - подъемно-поворотный стул

4 - шкаф металлический

5 - оргстекло или обычное стекло, усиленное защитной противоударной пленкой

6 - переговорное отверстие /при наличии переговорного устройства не предусматривается/

7 - компьютер

Рис. 4.33. РАБОЧЕЕ МЕСТО ОПЕРАЦИОНИСТА В ОПЕРАЦИОННОМ ЗАЛЕ /ВАРИАНТ 3/

А - рабочее место операциониста

Б - место для клиента

1 - стол рабочий

2 - стол компьютерный

3 - компьютер

4 - тумба

5 - сейф настольный

6 - стул подъемно-поворотный

7 - стулья клиента

8 - полка барьера для клиента

9 - защитное остекление

Рис. 4.34. РАБОЧЕЕ МЕСТО ОПЕРАЦИОНИСТА В ОПЕРАЦИОННОЙ ЗАЛЕ /ВАРИАНТ 4/

1 - стол рабочий

2 - стол компьютерный

3 - вставка для дисплея

4 - тумба

5 - кресло подъемно-поворотное

6 - стул

7 - шкаф металлический

8 - компьютер

9 - факс

Рис. 4.35. РАБОЧЕЕ МЕСТО РУКОВОДИТЕЛЯ ОПЕРАЦИОННОГО ОТДЕЛА

А - операционный зал площадью 36 м2 на 3 сотрудников

Б - операционный зал площадью 60 м2 на 5 сотрудников

1 - рабочее место руководителя операционного отдела - см. Рис. 4.35

2 - рабочее место операциониста - см. Рис. 4.31

3 - стол для заполнения документов клиентами

4 - стул

Рис. 4.36. ОПЕРАЦИОННЫЕ ЗАЛЫ С БАРЬЕРОМ НА 3 И 5 СОТРУДНИКОВ

А - зона операционистов

Б - зона для клиентов

1 - рабочее место операциониста /вариант 4/ - см. Рис. 4.34

2 - место для клиента - см. Рис. 4.34

3 - стол для клиента

4 - стул для клиента

Рис. 4.37. ОПЕРАЦИОННЫЙ ЗАЛ НА 7 СОТРУДНИКОВ С БАРЬЕРОМ И МЕСТАМИ ДЛЯ КЛИЕНТОВ

А - зона операционистов

Б - зона для клиентов

1 - стол рабочий

2 - стол компьютерный

3 - стол-вставка

4 - стул

5 - компьютер

6 - стул (кресло)

Рис. 4.38. ОПЕРАЦИОННЫЙ ЗАЛ СО СТОЛАМИ ОПЕРАЦИОНИСТОВ (ВМЕСТО БАРЬЕРА)

1 - стол рабочий

2 - стол компьютерный

3 - стол-вставка

4 - стул рабочий подъемно-поворотный

5 - стул /кресло/ для клиентов

6 - компьютер

Рис. 4.39. ОПЕРАЦИОННЫЙ ЗАЛ С ГРУППАМИ СТОЛОВ ОПЕРАЦИОНИСТОВ

А - клиентская зона

Б - операционно-кассовая зона

1 - операционная касса - см. Рис. 4.10

2 - рабочее место операциониста /вариант 1/ - см. Рис. 4.31

3 - стол для клиента

4 - стул для клиента

Рис. 4.40. ОПЕРАЦИОННО-КАССОВЫЙ ЗАЛ С ЧЕРЕДУЮЩИМИСЯ КАССАМИ И МЕСТАМИ ОПЕРАЦИОНИСТОВ

А - зона для клиентов

Б - операционные кассы

В - индивидуальные кабины для клиентов

Г - закассовое пространство

Д - зона операционистов

1 - операционная касса см. Рис. 4.10

2 - индивидуальная кабина для клиентов - см. Рис. 4.10

3 - рабочее место операциониста /вариант 1/ - см. Рис. 4.10

4 - бокс для клиента

5 - стол для клиента

6 - банкетка

Рис. 4.41. ОПЕРАЦИОННО-КАССОВЫЙ ЗАЛ

4.4 Группа специальных помещений по обслуживанию клиентов

Специальными помещениями по обслуживанию клиентов являются:

- пункт обмена валюты;

- помещения банкоматов;

- помещения ночного сейфа;

- зал автоматического обслуживания клиентов.

4.4.1. Пункт обмена валюты состоит, как правило, из помещения для клиентов и одной-двух кассовых кабин. Вход в помещение для клиентов может быть организован с улицы, из вестибюля банка или же из операционно-кассового зала. Возможно также размещение касс обмена валюты в самом зале. Кассовые кабины обменного пункта должны быть устроены подобно кассовым кабинам операционно-кассового зала с пулезащитной перегородкой и пулезащитным остеклением, специальным лотком для передачи денег и переговорным устройством. Оборудование касс обменного пункта включает рабочий стол, подъемно-поворотный стул, счетчик банкнот, детектор валют, персональный компьютер с принтером для документального оформления обмена.

Перед кассовой кабиной или между кассами размещается стол для пересчета денег клиентами.

4.4.2. Помещения банкоматов и ночного сейфа.

Банкоматы могут устанавливаться непосредственно в операционно-кассовом зале. Однако, предпочтительно предусматривать специальные помещения для банкоматов со входом с улицы или из тамбура входа в банк, а также устанавливать банкоматы на улице непосредственно на фасадах здания, для круглосуточного доступа к ним.

Позади банкомата, как правило, предусматривается специальное техническое помещение для его обслуживания.

Обычно уличный банкомат только выдает наличные деньги. Банкомат, установленный в помещении может быть снабжен встроенным депозитным модулем и производить операции по выдаче наличных денег по кредитной карте, по обмену валюты, но и приему денег на текущий счет.

Банкомат выполняет функции:

- автоматического обмена валюты на рубли всех действующих номиналов;

- обмена 6 основных видов валют друг на друга;

- размена купюр;

- работы с кредитными карточками;

- выдачи клиенту документа, подтверждающего обмен валют (с внесением паспортных данных, при покупке валюты);

- подведения баланса операций за день с проведением тестовой распечатки;

- проведения корректировки курса валют (дистанционным управлением);

- распознавания 150 наименований купюр;

- выдачи денег пользователю;

- работы с пластиковыми картами в мультивалютном режиме.

Банкомат представляет собой автоматизированный обменный пункт с широким спектром операций - с использованием пластиковых карт (магнитных и микропроцессорных).

Для депонирования денег клиента на текущий счет может устанавливаться автомат типа «Селф-Элоун» (Self-Alone).

Автомат «Селф-Элоун» предназначен для работы клиента со своим счетом без операциониста и кассира банка и осуществляет депонирование денежных средств на текущий счет клиента.

«Селф-Элоун» выполняет следующие операции:

вклад на текущий счет;

валютный вклад в соответствии с курсом текущего дня;

комбинированные депозиты наличных и валют.

Ночной сейф предназначен для обслуживания юридических лиц в любое удобное для них время. Вход в помещение ночного сейфа обычно предусматривается из помещения, где размещается банкомат или непосредственно с улицы. В состав помещений ночного сейфа входит также техническое помещение. Ночной сейф оснащается системой звуковой сигнализации, а также компьютерным самотестированием неисправности сейфа.

4.4.3. Зал автоматического обслуживания клиентов размещается, как правило, перед входом в операционно-кассовый зал и оснащается ячейками банковской почты (абонентскими ящиками) и автоматическими информационными киосками различной банковской информации.

Ячейки банковской почты предусматриваются двух типов: с открыванием при помощи магнитной карты и при помощи ключа.

В зале автоматического обслуживания устанавливается несколько информационных киосков (мультикиосков типа Euro IT - 1). Доступ клиента к информации осуществляется при помощи магнитной карты. Наличие принтера позволяет получить информацию в печатном виде. Через информационный киоск можно получить следующую информацию:

- состояние счета;

- часы работы банка;

- предоставляемые банком услуги и др. в зависимости от программного обеспечения киоска.

Примеры планировки рассмотренной в данном разделе группы помещений приведены на рис. 4.42 - 4.44.

А - кассовая кабина

Б - пункт обмена валюты - зона клиентов

В - тамбур

1 - стол

2 - стол компьютерный

3 - стул подъемно-поворотный

4 - закрытая тележка /передвижной сейф/ для транспортировки денег

5 - шкаф металлический

6 - компьютер

7 - машина для пересчета банкнот

8 - прибор для контроля банкнот

9 - переговорное устройство

10 - лоток для передачи денег

11 - стойка

Рис. 4.42. ПУНКТ ОБМЕНА ВАЛЮТЫ

А - тамбур главного входа в банк

Б - помещения для клиентов, пользующихся банкоматом

В - техническое помещение банкоматов

Г - помещение для клиентов, пользующихся ночным сейфом

Д - техническое помещение ночного сейфа

1 - ночной автосейф

2 - банкомат

3 - банкомат встроенный (уличный)

Рис. 4.43. ПОМЕЩЕНИЯ БАНКОМАТОВ И НОЧНОГО СЕЙФА

А - тамбур главного входа или вестибюль

Б - зал автоматического обслуживания клиентов.

1 - ячейки банковской почты /с открыванием магнитной картой/

2 - ячейки банковской почты /с открыванием ключом/

3 - компьютерный информационный киоск

4 - перегородка

5 - кресло

Рис. 4.44. ЗАЛ АВТОМАТИЧЕСКОГО ОБСЛУЖИВАНИЯ КЛИЕНТОВ

4.5. Помещения индивидуальных сейфов (депозитарий)

4.5.1. В соответствии с МГСН 4.10-97 депозитарий предназначен для хранения ценностей клиентов (в индивидуальных сейфах) и представляет собой кладовую с фибробетонной оболочкой или же сейфовую комнату с несгораемыми сейфами класса устойчивости к взлому не ниже IV ( по ГОСТ Р50862-96) со встроенными ячейковыми индивидуальными сейфами.

4.5.2. Состав помещений депозитария зависит от количества сдаваемых в наем клиентам сейфовых ячеек.

Депозитарий с количеством ячеек не более 1000 состоит из кладовой (сейфовой) и предкладовой (предсейфовой). В этом случае кладовая является хранилищем, а предкладовая - помещением для ожидания и идентификации клиента и размещения рабочего места сотрудника, оснащенного контрольной картотекой и устройством (сейфом) для хранения вторых ключей от ячеек.

Предкладовая депозитария оборудуется техническими средствами контроля доступа.

4.5.3. Депозитарий с количеством ячеек 1000 и более включает следующие помещения:

- контрольный тамбур-шлюз;

- помещение приема и идентификации клиентов;

- помещение сотрудника депозитария предкладовую с картотекой (электронной или на бумажных носителях) и вторыми ключами от сейфовых ячеек;

- хранилище с индивидуальными сейфами.

Для увеличения пропускной способности депозитария в хранилище могут быть устроены закрывающиеся дверьми боксы для индивидуальной работы клиентов. Индивидуальные боксы оснащаются вызывной связью с сотрудниками депозитария. При отсутствии боксов в хранилище единовременно может находиться только один клиент.

При невозможности устройства боксов для клиентов непосредственно в хранилище допустим вход в них из предкладовой.

В зависимости от типа хранилища - кладовая в фибробетонной оболочке или сейфовая комната - вход в него оборудуется специальной бронированной или металлической дверью. В обоих случаях в том же проеме устанавливается дополнительная решетчатая дверь для изоляции кладовой (сейфовой), когда сотрудник депозитария работает в ней с клиентом при открытой бронированной (металлической) двери.

На рис. 4.45 приведены примеры планировки депозитария с сейфовым хранилищем и боксами для индивидуальной работы клиентов, а на рис. 4.46 - депозитария с предкладовой.

Помещение для оформления документов на аренду сейфов должно находиться за пределами депозитария.

А - помещение ожидания и идентификации

Б - помещение для сотрудников депозитария /предсейфовая/

В - депозитарий сейфовый /сейфовая комната/

Г - контрольный тамбур-шлюз

1 - стол рабочий

2 - компьютер

3 - шкаф-картотека

4 - стул подъемно-поворотный

5 - сейф для ключей

6 - сейф депозитный ячейковый

7 - бокс для клиентов

8 - стол

9 - стул

10 - стол журнальный

11 - кресло для ожидания

Рис. 4.45. ДЕПОЗИТАРИЙ СЕЙФОВЫЙ

А - депозитарий

Б - предкладовая /помещение сотрудника и приема клиентов/

1 - сейф ячейковый

2 - стол для клиента

3 - стул

4 - стол рабочий

5 - компьютер

6 - шкаф-картотека

7 - стул подъемно-поворотный

8 - стул /кресло/ для клиентов

Рис. 4.46. ДЕПОЗИТАРИЙ С ПРЕДКЛАДОВОЙ (В ФИБРОБЕТОННОЙ ОБОЛОЧКЕ)

5. Требования к помещениям информатизации, офисным и вспомогательным помещениям

5.1. Помещения информатизации

Состав и планировка помещений информатизации коммерческого банка зависит от его назначения, степени развития телекоммуникационной сети, от того, является ли данное здание центральным офисом или филиалом, и от многих других факторов.

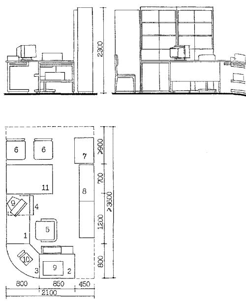
Центр информатизации крупного коммерческого банка имеющего центральный офис, филиалы, должен включать:

а) узел приема-передачи и первичной обработки данных в составе: помещения технических средств связи и помещения операторов;

б) центр обработки и хранения электронной информации в составе: помещения для серверов, комнаты операторов, помещения или зоны архива электронных носителей информации;

в) помещения программного обеспечения в составе: комнаты программистов и помещения или зоны архивов электронных носителей информации (специализированные сейфы);

г) помещения технического обслуживания.

Некоторые коммерческие банки, расположенные в г. Москве, для обработки данных по каждому операционному дню пользуются услугами Межрегионального центра информации (МЦИ) при Центральном банке Российской Федерации, обеспечивающего проведение межбанковских операций кредитных учреждений Московского региона. Для банков, пользующихся услугами МЦИ, состав помещений информационного обслуживания может быть ограничен серверной и помещением аппаратуры связи.

Для филиалов коммерческих банков характерно наличие локальных вычислительных сетей, обеспечиваемых работой серверной и терминальных устройств телекоммуникационной сети данного банка.

5.2. Офисные помещения

В состав офисных помещений входят рабочие комнаты отделов, кабинеты и приемные руководства структурных подразделений и банка в целом.

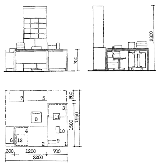
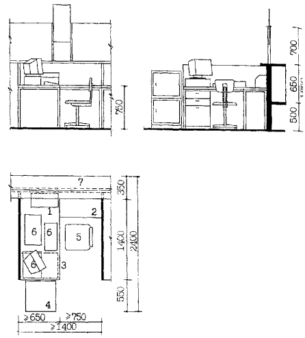
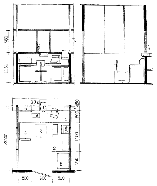
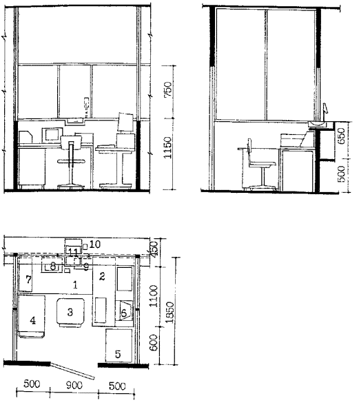
Все рабочие места сотрудников оснащаются современной организационной и компьютерной техникой. Типы рабочих мест руководителей подразделений, сотрудников отделов банка, сотрудников управленческих и хозяйственных подразделений, а также секретаря в приемной приведены на рис. 5.1 - 5.7.

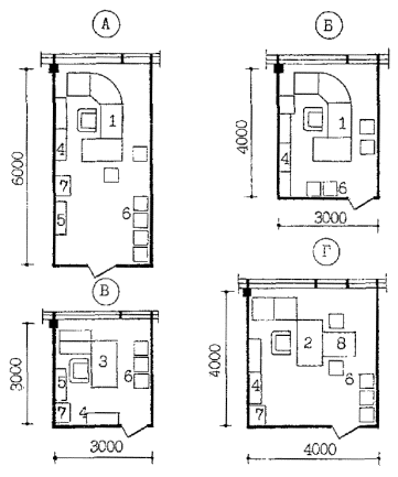
На рис. 5.8 показан пример решения блока помещений руководства центрального офиса коммерческого банка, а на рис. 5.9 - руководства его филиала.

Планировка кабинетов начальников отделов показана на рис. 5.10, а общих рабочих комнат с числом сотрудников от двух до шести на рис. 5.11 и 5.12.

Блок помещений для работы с секретной документацией приведен на рис. 5.13.

1 - стол рабочий

2 - стол компьютерный

3 - кресло подъемно-поворотное

4 - стулья для посетителей

5 - шкаф для документов

6 - тумба

7 - персональный компьютер

8 - факс

Рис. 5.1. РАБОЧЕЕ МЕСТО РУКОВОДИТЕЛЯ ОТДЕЛА /ВАРИАНТ 1/

1 - стол рабочий

2 - стол компьютерный

3 - стол-вставка

4 - тумба

5 - кресло подъемно-поворотное

6 - стул для посетителей

7 - шкаф металлический

8 - шкаф для документов

9 - персональный компьютер

10 - факс

11 - стол для приема посетителей

Рис. 5.2. РАБОЧЕЕ МЕСТО РУКОВОДИТЕЛЯ ОТДЕЛА /ВАРИАНТ 2/

1 - стол рабочий

2 - стол компьютерный

3 - стол-вставка

4 - тумба

5 - кресло подъемно-поворотное

6 - стулья для посетителей

7 - шкаф металлический

8 - персональный компьютер

9 - факс

Рис. 5.3. РАБОЧЕЕ МЕСТО РУКОВОДИТЕЛЯ ОТДЕЛА /ВАРИАНТ 3/

1 - стол рабочий

2 - тумба

3 - стол компьютерный

4 - стул подъемно-поворотный

5 - персональный компьютер

Рис. 5.4. РАБОЧЕЕ МЕСТО СОТРУДНИКА ОТДЕЛА БАНКА /ВАРИАНТ 1/

1 - стол рабочий

2 - стол компьютерный

3 - стол-вставка

4 - тумба

5 - стул подъемно-поворотный

6 - персональный компьютер

Рис 5.5. РАБОЧЕЕ МЕСТО СОТРУДНИКА ОТДЕЛА БАНКА /ВАРИАНТ 2/

1 - стол рабочий

2, 3 - тумба

4, 5 - стол рабочий

6 - стол компьютерный

7 - стол-вставка

8 - стул подъемно-поворотный

9 - стул

10 - персональный компьютер

11 - факс

Рис. 5.6. РАБОЧИЕ МЕСТА СОТРУДНИКОВ УПРАВЛЕНЧЕСКИХ И ХОЗЯЙСТВЕННЫХ ПОДРАЗДЕЛЕНИЙ БАНКА

1 - стол рабочий

2 - тумба

3 - стол для компьютера или пишущей машины

4 - стул подъемно-поворотный

5 - стул

6 - шкаф-картотека

7 - персональный компьютер или пишущая машина

8 - факс

9 - корзина для мусора

Рис. 5.7. РАБОЧЕЕ МЕСТО СЕКРЕТАРЯ В ПРИЕМНОЙ

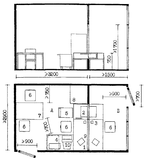
А - кабинет руководства - 54 м2

Б - комната отдыха - 9 м2

В - санитарный узел с душевой кабиной - 4,5 м2

Г - помещение для обслуживания деловых встреч и совещаний - 4,5 м2

Д - приемная - 24 м2

Е - кабинет первого заместителя - 24 м2

1 - стол рабочий

2 - кресло подъемно-поворотное

3 - стол компьютерный

4 - шкаф-витрина

5 - шкаф для документов

6, 7 - стол для совещаний

8 - сейф

9 - стул

10 - кресло для отдыха

11 - стол журнальный

12 - диван

13 - стул подъемно-поворотный

14 - рабочее место секретаря

15 - шкаф для одежды

16 - стол рабочий

17 - тумба

18 - персональный компьютер

19 - набор кухонный мебели /бытовой/

Рис. 5.8. БЛОК ПОМЕЩЕНИЙ РУКОВОДСТВА КОММЕРЧЕСКОГО БАНКА /ЦЕНТРАЛЬНЫЙ ОФИС/

А - кабинет начальника - 24 м2

Б - приемная - 18 м2

В - кабинет заместителя - 18 м2

1 - стол рабочий

2 - стол-приставка для посетителей

3 - стол компьютерный

4 - шкаф-витрина

5 - шкаф для документов

6 - сейф

7 - стул для посетителей и участников совещаний

8 - стол журнальный

9 - рабочее место секретаря

10 - персональный компьютер

11 - стол для совещаний

12 - кресло подъемно-поворотное

Рис. 5.9. БЛОК ПОМЕЩЕНИЙ РУКОВОДСТВА ФИЛИАЛА КОММЕРЧЕСКОГО БАНКА

А - кабинет площадью 18 м2 /количество мест для посетителей - до 6/

Б - кабинет площадью 12 м2 /количество мест для посетителей - до 4/

В - кабинет площадью 9 м2 /количество мест для посетителей - до 3/

Г - кабинет площадью 16 м2 /количество мест для посетителей - до 5/

1 - рабочее место руководителя отдела - см. Рис. 5.2

2 - рабочее место руководителя отдела - см. Рис. 5.1

3 - рабочее место сотрудников отделов банка - см. Рис. 5.4

4 - шкаф для одежды

5 - шкаф для документов

6 - стулья для посетителей

7 - шкаф металлический

8 - стол приставной для посетителей

Рис. 5.10. КАБИНЕТЫ РУКОВОДИТЕЛЕЙ ОТДЕЛОВ

А - помещения на 2 рабочих места - 12 м2

Б - помещение на 3 рабочих места - 16 м2

В - помещение на 4 рабочих места - 24 м2

Г - помещение на 3 рабочих места -18 м2

Д - помещение на 4 рабочих места - 24 м2

Е - помещение на б рабочих мест - 36 м2

1 - комплект рабочего места - см. Рис. 5.4

2 - стул для посетителей

3 - шкаф для одежды

4 - шкаф для документов

Рис. 5.11. ОБЩИЕ РАБОЧИЕ КОМНАТЫ НА 2 - 6 РАБОЧИХ МЕСТ /ВАРИАНТ 1/

А - помещение на 2 рабочих места - 12 м2

Б - помещение на 3 рабочих места - 16 м2

В - помещение на 4 рабочих места - 24 м2

Г - помещение на 3 рабочих места - 18 м2

Д - помещение на 4 рабочих места - 24 м2

Е - помещение на 6 рабочих мест - 36 м2

1 - комплект рабочего места - см. Рис. 5.5

2 - стул для посетителей

3 - шкаф для одежды

4 - шкаф для документов

Рис. 5.12. ОБЩИЕ РАБОЧИЕ КОМНАТЫ НА 2 - 6 РАБОЧИХ МЕСТ /ВАРИАНТ 2/

А - служебное помещение на 1 рабочее место

Б - помещение для хранения документов

В - помещение для приема и выдачи документов

Г - помещение для работы посетителей с документами.

1, 2 - столы рабочие

3, 4 - тумбы

5 - стул подъемно-поворотный

6 - стул

7 - шкаф металлический для документов

8 - машина для уничтожения бумаг

9 - контейнер для сухого мусора

10 - шкаф канцелярский для документов

11 - сейф

12 - передаточное окно

Рис. 5.13. БЛОК ПОМЕЩЕНИЙ ДЛЯ РАБОТЫ С ДОКУМЕНТАМИ ОГРАНИЧЕННОГО РАСПРОСТРАНЕНИЯ

5.3. Вспомогательные помещения

В состав вспомогательных помещений входят помещения для оперативных совещаний и переговоров при руководстве и помещения для хранения, обработки и размножения документации.

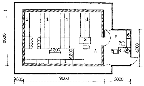
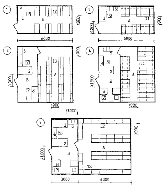
Примеры планировки залов для оперативных совещаний и переговоров при руководстве банка приведены на рис. 5.14. В залах, где предусматривается использование видеопроекции, на окнах рекомендуется применять шторы и жалюзи.

Планировка архива финансовых документов и архивов делопроизводственных документов зависит от способа их хранения - в металлических шкафах, на передвижных стеллажах или на открытых стационарных стеллажах. Первые два способа рекомендуются для хранения финансовых документов, третий - характерен в основном для делопроизводственных архивов. Примеры планировки помещений архивов с различными способами хранения документации приведены на рис. 5.15.

В архиве финансовых документов рекомендуется предусматривать специальный настольный сейф для хранения ключей электронной подписи, паролей доступа и т.п.

Ограждающие конструкции, двери и окна архива финансовых документов должны быть устойчивы к взлому. Класс устойчивости определяется заданием на проектирование. Требования к архивам электронных носителей информации см. в разделе 5.1. данного пособия.

Помещения архивов должны оборудоваться автоматическим пожаротушением, а архивов финансовых документов также охранной сигнализацией. Отделка помещений не должна являться источником пыли.

Примеры устройства рабочих мест машинистки, оператора текстового компьютера, оператора настольного ксерокопировального аппарата и сотрудников экспедиции приведены на рис. 5.16 - 5.19.

ВАРИАНТ 1 - зал совещаний на 20 мест

ВАРИАНТ 2 - зал совещаний на 20 мест с оборудованием для видеопроекции и местом для стенографистки

1 - стол для заседаний

2 - стол аудиторный

3 - кресло для заседаний

4 - стул

5 - тумба передвижная для видеопроекционной аппаратуры

6 - видеопроекционный аппарат

7 - экран для видеопроекции

Рис. 5.14. ЗАЛ ДЛЯ ОПЕРАТИВНЫХ СОВЕЩАНИЙ

ВАРИАНТ 1 и 3 - с хранением документов на открытых стеллажах

ВАРИАНТ 2 и 4 - с хранением документов на передвижных стеллажах

ВАРИАНТ 5 - с хранением документов в металлических шкафах

А - помещение для хранения

Б - помещение для архивариуса и обслуживания посетителей

1 - стол для обработки документов

2 - стол для обработки документов и обслуживания посетителей

3 - стол для обслуживания посетителей

4 - тумба для оргтехники

5 - каталожный бокс настольный

6 - каталожный шкаф

7 - стул подъемно-поворотный

8 - стол читательский

9 - стул

10 - стеллажи стационарные

11 - стеллажи передвижные

12 - металлические шкафы

Рис. 5.15. ПОМЕЩЕНИЯ АРХИВОВ

1 - рабочее место машинистки

2 - рабочее место оператора текстового компьютера

1 - стол для машинистки

2 - тумба

3 - стол для дисплея

4 - стол для принтера

5 - стол-вставка

6 - стул подъемно-поворотный

7 - персональный компьютер

8 - пишущая машина

Рис. 5.16. РАБОЧЕЕ МЕСТО МАШИНИСТКИ И ОПЕРАТОРА ТЕКСТОВОГО КОМПЬЮТЕРА

ВАРИАНТ 1 - со шкафом для документов

ВАРИАНТ 2 - с тумбой для хранения документов

1 - стол

2 - тумба

3 - шкаф для документов

4 - стул подъемно-поворотный

5 - ксерокопировальный аппарат

Рис. 5.17. РАБОЧЕЕ МЕСТО ОПЕРАТОРА НАСТОЛЬНОГО КСЕРОКОПИРОВАЛЬНОГО АППАРАТА

1, 2 - рабочие столы

3 - стол для компьютера или пишущей машины

4 - тумба

5 - шкаф для документов

6 - стул подъемно-поворотный

7 - контейнер для сухого мусора

8 - пачковязальная машина

9 - персональный компьютер или пишущая машина

10 - весы

11 - конвертозаклеивающая машина

12 - машина маркировальная

13 - нумератор

Рис. 5.18. РАБОЧЕЕ МЕСТО ЭКСПЕДИТОРА НА ОБРАБОТКЕ ОТПРАВЛЯЕМОЙ КОРРЕСПОНДЕНЦИИ

1, 2 - рабочие столы

3, 4 - тумбы

5 - шкаф-картотека

6 - контейнер для сухого мусора

7 - машина для уничтожения бумаг

8 - стул подъемно-поворотный

9 - нумератор

10 - сшиватель документов

11 - машина для вскрытия конвертов

12 - лоток для бумаг

Рис. 5.19. РАБОЧЕЕ МЕСТО ЭКСПЕДИТОРА НА ОБРАБОТКЕ ПОСТУПАЮЩЕЙ КОРРЕСПОНДЕНЦИИ

6. Требования к помещениям охраны и службы безопасности

6.1. В состав помещений охраны банка входят:

- пультовая для технических средств охраны;

- помещение для хранения, заряжения и чистки оружия;

- комната отдыха охраны;

- посты охраны;

- кабинеты и рабочие комнаты службы безопасности.

Примеры планировки помещений пультовой и хранения, заряжания и чистки оружия приведены на рис. 6.1 и 6.2.

Помещение пультовой оснащается приемно-контрольными устройствами охранно-пожарной сигнализации, контроля доступа и видеонаблюдения.

Окна помещения пультовой должны иметь защитное остекление класса В3 (по РД 78.148-94/МВД России «Защитное остекление, классификация, методы испытаний»), а низ оконных проемов рекомендуется размещать не ниже 1,8 м от уровня земли.

Помещения для хранения, заряжания и чистки оружия не должны иметь окон, расположение их у наружных стен не рекомендуется. Стены помещений должны быть устойчивы к взлому, класс устойчивости должен определяться заданием на проектирование. Вход в помещение для хранения оружия рекомендуется организовывать из помещения дежурного, ведающего выдачей оружия. В дверном проеме должна устанавливаться сплошная металлическая наружная дверь и решетчатая - внутренняя.

Между помещениями для хранения и заряжания оружия должно устраиваться передаточное окно на высоте 1 м от пола, шириной 20 см и высотой 80 см. Высота передаточного отверстия от уровня консольных столиков - 15 см (см. рис. 6.2). Остекление передаточного окна следует делать пуленепробиваемым.

Помещение для заряжания и чистки оружия должно иметь противорикошетную обшивку внутренних поверхностей досками толщиной 40 мм. Пристенные стойки для чистки оружия рекомендуется располагать на высоте 1 м от пола.

6.2. В зданиях банков, как правило, предусматривается пропускная система, за исключением операционно-кассовых залов, обслуживающих физических лиц.

Бюро пропусков (рис. 6.3 и 6.4), располагается, как правило, вблизи главного входа на границе с доконтрольной зоной (аванвестибюлем). Количество рабочих мест в бюро пропусков определяется заданием на проектирование. Площадь на одно место принимается не менее 4 м2. Конструкции, отделяющие бюро пропусков от аванвестибюля должны быть устойчивы к взлому. Класс устойчивости определяется заданием на проектирование. Это требование относится также к наружным стенам и окнам, если они имеются в помещении сотрудников бюро пропусков.

Бюро пропусков может быть запроектировано с отдельным входом с улицы.

Вход в здание предусматривается через контрольно-пропускной блок, включающий пост охраны (рис 6.5).

Планировка помещения поста охраны должно обеспечивать возможность визуального контроля шлюза и подходов к нему с обеих сторон. Ограждающие конструкции поста охраны должны быть пулезащитными.

Количество контрольных тамбуров-шлюзов определяется расчетом исходя из потока посетителей и пропускной способности шлюзов конкретного типа.

ВАРИАНТ 1 - для зданий общей площадью 1 - 2 тыс. м2

ВАРИАНТ 2 - для зданий общей площадью 2 - 3,5 тыс. м2

ВАРИАНТ 3 - для зданий общей площадью 3,5 - 6 тыс. м2

1 - модули для размещения аппаратуры видеонаблюдения

2 - стойки для коммутационного и электропитающего оборудования

3 - приемная аппаратура охранной и пожарной сигнализации

4 - рабочее кресло подъемно-поворотное

5 - металлический шкаф для документации, расходных материалов и оперативного архива

6 - стол

7 - тумба

8 - диван

9 - холодильник

Рис. 6.1. ПОМЕЩЕНИЕ ПУЛЬТОВОЙ ДЛЯ ТЕХНИЧЕСКИХ СРЕДСТВ ОХРАНЫ

А - помещение для хранения оружия

Б - помещение для чистки и заряжания оружия

1 - шкаф металлический для хранения оружия

2 - стол подсобный

3 - шкаф для хранения оружейных масел и ветоши

4 - передаточное окно с консольными столиками

5 - пристенная стойка для чистки оружия

6 - дверь металлическая сплошная

7 - дверь металлическая решетчатая

Рис. 6.2. ПОМЕЩЕНИЯ ДЛЯ ХРАНЕНИЯ, ЗАРЯЖАНИЯ И ЧИСТКИ ОРУЖИЯ

1 - стол компьютерный

2 - стол рабочий

3 - лоток для передачи документов

4 - переговорное устройство

5 - шкаф металлический

6 - стул подъемно-поворотный

7 - сейф

8 - тумба для оргтехники

9 - сортировочная настольная полка

10 - компьютер

11 - светильник настенный

Рис. 6.3. ПОМЕЩЕНИЕ БЮРО ПРОПУСКОВ НА 1 РАБОЧЕЕ МЕСТО /ВАРИАНТ 1/

1 - стол рабочий

2 - тумба

3 - сортировочная настольная полка

4 - лоток для передачи документов

5 - переговорное устройство

6 - стул подъемно-поворотный

7 - шкаф металлический

8 - сейф

9 - светильник настенный

Рис. 6.4. ПОМЕЩЕНИЕ БЮРО ПРОПУСКОВ НА 1 РАБОЧЕЕ МЕСТО /ВАРИАНТ 2/

А - пост охраны

Б - тамбур-шлюз для прохода с разовыми пропусками

В - тамбур-шлюз для прохода с постоянными пропусками

Г - запасной выход для экстренной эвакуации

1 - рабочий стол

2 - пульт управления

3 - телефон

4 - лоток для передачи документов

5 - переговорное устройство

6 - тумба

7 - светильник настенный

8 - стул подъемно-поворотный

9 - устройство для магнитной карты

Рис. 6.5. КОНТРОЛЬНО-ПРОПУСКНОЙ БЛОК НА ВХОДЕ В ЗДАНИЕ

Приложение 1
Толщина ограждающих конструкций в зависимости от материала и требуемого класса устойчивости к взлому.

Материалы ограждающих конструкций

Толщина ограждающих конструкций, мм, для класса устойчивости к взлому по ГОСТ Р50862-96

I

II

III

IV

V

VI

VII

VIII

Сталефибробетон на основе бетона класса В35 (со стержневым армированием и фиброармированем)

-

-

-

100

120

150

200

250

Сталефибробетон на основе бетона класса В45 (со стержневым армированием и фиброармированем)

-

-

-

-

100

150

200

250

Железобетон класса В35 (со стержневым армированием)

-

-

-

100

150

200

250

300

Гипсобетон на основе бетона марок не ниже Д1000 (со стержневым армированием)

-

-

120

150

200

250

350

-

Кирпичная кладка (из кирпичей марки 50 на растворе марки не менее 50, армирование через 4 ряда горизонтально расположенной стальной сеткой)

-

250

385

385

510

770

-

-

Каменная кладка (требования - аналогично кирпичной кладке)

-

250

350

400

500

750

-

-

Стальные листы (углеродистая сталь обыкновенного качества, ГОСТ 380-71)

8

12

18

40

60

-

-

-

 




Rambler's Top100 Яндекс цитирования
  Copyright © 2008-2026, www.docload.ru