Бесплатная библиотека стандартов и нормативов www.docload.ru

Все документы, размещенные на этом сайте, не являются их официальным изданием и предназначены исключительно для ознакомительных целей.
Электронные копии этих документов могут распространяться без всяких ограничений. Вы можете размещать информацию с этого сайта на любом другом сайте.
Это некоммерческий сайт и здесь не продаются документы. Вы можете скачать их абсолютно бесплатно!
Содержимое сайта не нарушает чьих-либо авторских прав! Человек имеет право на информацию!

 

ГОСТ 30530-97

МЕЖГОСУДАРСТВЕННЫЙ СТАНДАРТ

Шум

МЕТОДЫ РАСЧЕТА
ПРЕДЕЛЬНО ДОПУСТИМЫХ ШУМОВЫХ
ХАРАКТЕРИСТИК СТАЦИОНАРНЫХ МАШИН

МЕЖГОСУДАРСТВЕННЫЙ СОВЕТ
ПО СТАНДАРТИЗАЦИИ, МЕТРОЛОГИИ И СЕРТИФИКАЦИИ

Минск

Предисловие

1 РАЗРАБОТАН Акционерным обществом «Научно-исследовательский институт полиграфического машиностроения» (АО «НИИполиграфмаш»)

ВНЕСЕН Госстандартом России

2 ПРИНЯТ Межгосударственным Советом по стандартизации, метрологии и сертификации (протокол № 12 от 21 ноября 1997 г.)

За принятие проголосовали:

Наименование государства

Наименование национального органа по стандартизации

Азербайджанская Республика

Азгосстандарт

Республика Армения

Армгосстандарт

Республика Белоруссия

Госстандарт Белоруссии

Республика Казахстан

Госстандарт Республики Казахстан

Киргизская Республика

Киргизстандарт

Российская Федерация

Госстандарт России

Республика Таджикистан

Таджикгосстандарт

Туркменистан

Главная государственная инспекция Туркменистана

3 Постановлением Государственного комитета Российской Федерации по стандартизации, метрологии и сертификации от 28 апреля, 1998 г. № 158 межгосударственный стандарт ГОСТ 30530-97 введен в действие непосредственно в качестве государственного стандарта Российской Федерации с 1 января 1999 г.

4 ВЗАМЕН ГОСТ 12.1.023-80 в части 2.4, 2.6-2.8

5 ПЕРЕИЗДАНИЕ. Апрель 2001 г.

Введение

Настоящий стандарт - второй (первый - ГОСТ 27409) из серии стандартов, устанавливающих принципы, правила и методы технического нормирования шума машин, а также порядок обеспечения нормативных значений шумовых характеристик при разработке оборудования.

Цели разработки настоящего стандарта - обеспечить проведение технического нормирования шума машин на базе санитарного нормирования и дать разработчикам, изготовителям и пользователям машин средства для определения предельных значений шумовых характеристик, удовлетворение которым гарантирует выполнение санитарных норм шума на рабочих местах с учетом условий эксплуатации оборудования в цехах промышленных предприятий: групповая установка машин и наличие отраженного звука от ограждающих поверхностей помещения.

Применение стандарта позволит:

- формулировать требования к шумовым характеристикам оборудования;

- при разработке машин определять необходимость и экономическую целесообразность реализации мероприятий по снижению шума в источнике, т.е. проводить акустическое проектирование машин;

- при постановке машин на производство предлагать, при необходимости, мероприятия по снижению шума на пути его распространения от источника до рабочего места;

- оценивать уровень выпускаемой техники на соответствие требованиям к шуму, т.е. определять качество акустической проработки конструкции машины;

- определять необходимость проведения работ, направленных на снижение шума выпускаемого оборудования.

Задачи разработки стандарта - установить методы расчета предельно допустимых шумовых характеристик (ПДШХ) стационарных машин, являющихся технической нормой шума машин по ГОСТ 27409, которые позволяют учесть различные условия эксплуатации промышленного оборудования.

Основное назначение ПДШХ - служить ориентиром для разработчиков малошумной техники и проектировщиков помещений с источниками шума. В связи с этим ПДШХ обязательно должны быть указаны в техническом задании на разработку или проект.

Изготовители и покупатели машиностроительной продукции также должны иметь информацию о ПДШХ, с тем чтобы представлять, в каких случаях производимая (приобретаемая) продукция удовлетворяет требованиям безопасности, а в каких необходимо дополнительное снижение ее акустической активности или применение вторичных мер по снижению шума на пути его распространения от источника до рабочего места.

Настоящий стандарт устанавливает два метода расчета значений ПДШХ машин: для случая равномерного размещения в помещении однотипного оборудования и для случая произвольного расположения машин различных типов. В первом случае расчет базируется на принятом в ГОСТ 12.1.023 алгоритме, когда совместное функционирование источников звука учитывается с помощью двух интегральных параметров: поправки на групповую установку машин, значения которой определены эмпирически, и поправки на акустические характеристики помещения. Во втором случае решают конкретную обратную задачу с учетом схемы расположения оборудования и рабочих мест в помещении.

Оба метода предназначены для расчета предельно допустимых значений октавных уровней звуковой мощности, которые являются исходными данными для расчета предельно допустимых значений остальных шумовых характеристик: корректированного уровня звуковой мощности, уровней звука и звукового давления излучения. Соответствующие процедуры расчета также установлены настоящим стандартом.

Диапазон частот ограничен 45-11200 Гц. После разработки методов расчета шумовых характеристик в октавной полосе со среднегеометрической частотой 31,5 Гц они будут введены в настоящий стандарт.

Стандарт имеет рекомендательный характер. Он предназначен, в первую очередь, заказчикам и разработчикам оборудования, а также проектировщикам производственных помещений для обеспечения контрактных отношений в части соблюдения санитарных норм шума на рабочих местах. Он может быть использован изготовителями (поставщиками) машиностроительной продукции для оценки допустимости шума машины в регламентированных условиях эксплуатации и определения мер по устранению ограничений на использование машин, налагаемых санитарными нормами шума.

СОДЕРЖАНИЕ

1 Область применения. 3

2 Нормативные ссылки. 3

3 Определения. 3

4 Рассчитываемые величины.. 3

5 Методы расчета предельно допустимых значений октавных уровней звуковой мощности. 3

5.1 Общие положения. 3

5.2 Метод обратной задачи. 4

5.3 Метод поправок. 5

6 Расчет предельно допустимых значений корректированных уровней звуковой мощности, уровней звука и звукового давления излучения на рабочих местах и в других характерных точках. 6

Приложение А Метод решения системы уравнений. 6

Приложение Б Расчет элементов матрицы системы уравнений. 8

Приложение В Оптимизация предельно допустимых значений уровней звуковой мощности. 11

Приложение Г Повышение предельно допустимых значений уровней звуковой мощности путем выбора рационального положения рабочего места. 13

Приложение Д Сведения о программе PDHX для расчета предельно допустимых значений уровней звуковой мощности с помощью ЭВМ.. 14

Приложение Е Пример расчета ПДШХ методом обратной задачи. 14

Приложение Ж Библиография. 17

МЕЖГОСУДАРСТВЕННЫЙ СТАНДАРТ

Шум

МЕТОДЫ РАСЧЕТА ПРЕДЕЛЬНО ДОПУСТИМЫХ ШУМОВЫХ
ХАРАКТЕРИСТИК СТАЦИОНАРНЫХ МАШИН

Noise. Methods for calculation of limit admissible noise characteristics of
stationary machines

Дата введения 1999-01-01

1 Область применения

Настоящий стандарт распространяется на машины, механизмы и другое стационарно установленное производственное оборудование (далее - машины), шумовые характеристики которых могут быть определены с помощью методов по ГОСТ 23941, ГОСТ 27243 или по стандартам на машины отдельных видов, а условия эксплуатации приводят к необходимости учета шума, создаваемого одновременно работающими в помещении машинами, и звука, отраженного от ограждающих поверхностей помещения.

Настоящий стандарт устанавливает методы расчета значений предельно допустимых шумовых характеристик (далее - ПДШХ), принятых в качестве нормативных значений шумовых характеристик машин по ГОСТ 27409.

2 Нормативные ссылки

В настоящем стандарте использованы ссылки на следующие стандарты:

ГОСТ 12.1.003-83 Система стандартов безопасности труда. Шум. Общие требования безопасности

ГОСТ 12.1.023-80 Система стандартов безопасности труда. Шум. Методы установления значений шумовых характеристик стационарных машин

ГОСТ 12.1.026-80 Система стандартов безопасности труда. Шум. Определение шумовых характеристик источников шума в свободном звуковом поле над звукоотражающей плоскостью. Технический метод

ГОСТ 23941-79 Шум. Методы определения шумовых характеристик. Общие требования

ГОСТ 27243-87 Шум. Ориентировочный метод определения уровня звуковой мощности шума машин при помощи образцового источника звука

ГОСТ 27409-97 Шум. Нормирование шумовых характеристик стационарного оборудования. Основные положения

3 Определения

В настоящем стандарте применены термины с соответствующими определениями по ГОСТ 27409.

4 Рассчитываемые величины

4.1 Рассчитывают предельно допустимые значения следующих шумовых характеристик:

- корректированного уровня звуковой мощности LWA дБ A;

- октавного уровня звуковой мощности LW, дБ;

- уровня звука излучения на рабочем месте и в других характерных точках LpA, дБ A;

- октавного уровня звукового давления излучения на рабочем месте и в других характерных точках Lp, дБ.

4.2 Предельно допустимые значения октавных уровней звуковой мощности LW и октавных уровней звукового давления излучения Lp вычисляют в диапазоне частот 45-11300 Гц в октавных полосах со среднегеометрическими частотами 63, 125, 250, 500, 1000, 2000, 4000 и 8000 Гц.

5 Методы расчета предельно допустимых значений октавных уровней звуковой мощности

5.1 Общие положения

Предельно допустимые значения октавных уровней звуковой мощности рассчитывают методами:

- обратной задачи;

- поправок.

Метод обратной задачи используют при эксплуатации машин различных типов, произвольным образом расположенных в помещении. Метод поправок применяют при эксплуатации однотипного оборудования, равномерно расположенного в помещении.

Допускается использовать специальные методы расчета ПДШХ в соответствии с нормативными документами на машины конкретных типов, учитывающими особенности эксплуатации, конструкции машины, а также эффективность средств защиты от воздушного шума, предусмотренных в проекте, задающем условия эксплуатации машины.

5.2 Метод обратной задачи

5.2.1 В соответствии с заданными условиями эксплуатации машин в помещении определяют число п одновременно работающих машин и число пp рабочих мест. По схеме расположения оборудования каждой машине присваивают порядковый номер j от 1 до п и каждому рабочему месту - порядковый номер j от 1 до пp.

5.2.2 Предельно допустимые значения звуковой мощности в октавных полосах частот определяют, решая систему линейных алгебраических уравнений (далее - система или система уравнений)

,                                             (1)

где        Рi - предельно допустимое значение звуковой мощности в октавной полосе частот i-й машины, Вт;

             аji - элементы матрицы системы, м-2;

             I - предельно допустимое значение интенсивности звука в октавной полосе частот на рабочем месте, Вт/м2.

Алгоритм рекомендуемого метода решения системы дан в приложении А.

5.2.3 Элементы аji матрицы системы (1) состоят из двух слагаемых:

,                                                      (2)

где        - слагаемое, описывающее долю прямого звука, приходящего в j-ю точку от i-го источника шума, м-2;

              - слагаемое, описывающее долю отраженного звука в j-й точке для i-го источника шума, м-2.

Значения слагаемых зависят от взаимного расположения рабочих мест и источников шума, а также от акустических характеристик помещения. Способ их вычисления приведен в приложении Б.

5.2.4 Предельно допустимые значения интенсивности звука I в октавных полосах частот определяют по формуле

I = I0100,1L,                                                            (3)

где        I0 - опорное значение интенсивности звука, I0 = 1 пВт;

L - предельно допустимое значение уровня звукового давления в октавной полосе частот на рабочих местах по ГОСТ 12.1.003, дБ.

5.2.5 Предельно допустимые значения октавных уровней звуковой мощности LW вычисляют по предельно допустимым значениям звуковой мощности Р по формуле

,                                                        (4)

где        Р0 - опорное значение звуковой мощности, равное 1 пВт.

5.2.6 При наличии в помещении только одного рабочего места предельно допустимые значения октавных уровней звуковой мощности машин LWi вычисляют по формуле

                                  (5)

где        а1j - элемент аji, матрицы системы (1), соответствующий i-й машине и единственному рабочему месту (j = 1), м-2;

         а0 = 1 м-2.

5.2.7 Допускается, используя фактические значения октавных уровней звуковой мощности машин, оптимизировать рассчитанные по 5.2.2-5.2.6 значения ПДШХ, повышая их для машин, являющихся мощными источниками шума, за счет понижения до фактических значений рассчитанных предельно допустимых значений уровней звуковой мощности машин - слабых источников шума.

Фактические значения уровней звуковой мощности следует принимать по нормативной и технической документации на машины. Для разрабатываемых машин следует использовать данные о шумовых характеристиках машин, принятых при разработке за прототип.

Процедуры оптимизации, а также определения мощных и слабых источников шума приведены в приложении В.

5.2.8 Допускается повышать рассчитанные по 5.2.2 - 5.2.7 значения ПДШХ путем изменения положения рабочего места в помещении, если это положение не фиксировано выполняемым технологическим процессом. Алгоритм соответствующей процедуры повышения значений ПДШХ дан в приложении Г.

5.2.9 Расчеты по 5.2.2 - 5.2.8 выполняют для каждой октавной полосы нормируемого диапазона частот из указанных в 4.2.

Расчеты могут быть выполнены на персональной ЭВМ (ПЭВМ) с помощью программы PDHX, сведения о которой даны в приложении Д.

5.3 Метод поправок

5.3.1 Предельно допустимые значения уровней звуковой мощности в октавных полосах частот определяют по формуле

,                                           (6)

где        LW - предельно допустимое значение уровня звуковой мощности машины в октавной полосе частот, дБ;

             L - предельно допустимое значение уровня звукового давления в октавной полосе частот на рабочих местах по ГОСТ 12.1.003, дБ;

             S - площадь воображаемой поверхности, окружающей машину и удаленной на одинаковое расстояние d от ее внешнего контура, м2;

             S1 = 1 м2;

             DLпом - поправка, учитывающая влияние отраженного звука в помещении, дБ;

             DLгруп - поправка на групповую установку машин, дБ.

Если фактические значения октавных уровней звукового давления на рабочих местах при типовых условиях эксплуатации машины меньше установленных ГОСТ 12.1.003, они должны быть подставлены в формулу (6) в качестве L.

5.3.2 Площадь воображаемой поверхности определяют при расстоянии d:

- менее или равном 1м - аналогично площади измерительной поверхности по ГОСТ 12.1.026*, принимая d = 1 м;

- более 1 м - по формуле

S = 2pR2,                                                             (7)

где        R - расстояние от рабочего места до акустического центра машины, м. За акустический центр принимают проекцию геометрического центра огибающего машину параллелепипеда на пол.

* На территории Российской Федерации действует ГОСТ Р 51401-99.

5.3.3 Поправку DLпом вычисляют по формуле

,                                               (8)

где        a - коэффициент звукопоглощения в помещении (способ вычисления a дан в приложении Б);

         Sп. - параметр, зависящий от формы помещения, м2.

Для соразмерных помещений значение Sп равно суммарной площади Sогр ограждающих поверхностей (стен, пола, потолка) помещения. Для несоразмерных помещений Sп = 10H2, где Н - высота помещения, м.

5.3.4 Поправку DLгруп принимают по таблице 1.

Для одиночно устанавливаемых машин в типовых условиях эксплуатации принимают DLгруп = 0 дБ.

Для машин конкретного типа допускается устанавливать другие значения DLгруп, обоснованные расчетами или экспериментально.

Таблица 1 - Значения поправки DLгруп, дБ, в зависимости от числа рядов машин в помещении и расстояния между машинами

Число рядов машин в помещении

Расстояние между машинами, м, менее или равно

3

5

8

10

15

20

1

5

4

3

2

1

1

2 и более

9

7

5

4

3

2

6 Расчет предельно допустимых значений корректированных уровней звуковой мощности, уровней звука и звукового давления излучения на рабочих местах и в других характерных точках

6.1 Предельно допустимые значения корректированных уровней звуковой мощности LWA вычисляют по допустимым значениям октавных уровней звуковой мощности LW по формуле

,                                                (9)

где        КAi - поправочный коэффициент, соответствующий частотной характеристике А шумомера для i-й октавной полосы, дБ.

Значения КA для октавных полос приведены в таблице 2.

Таблица 2- Значения поправочного коэффициента KА, соответствующего частотной характеристике А шумомера для октавных полос

Среднегеометрическая частота октавной полосы, Гц

KА, дБ

Среднегеометрическая частота октавной полосы, Гц

KА, дБ

63

-26,0

1000

0,0

125

-16,1

2000

1,2

250

-8,6

4000

1,0

500

-3,2

8000

-1,1

Примечание - При использовании метода обратной задачи допускается оптимизировать и повышать предельно допустимые значения корректированных уровней звуковой мощности РAi в соответствии с 5.2.7 и 5.2.8. При этом значение среднего коэффициента звукопоглощения в помещении, необходимое для расчета слагаемого , следует определять по формулам (Б.7) - (Б.9).

6.2 Предельно допустимые значения уровней звука и октавных уровней звукового давления излучения вычисляют по допустимым значениям корректированных уровней звуковой мощности и октавных уровней звуковой мощности по формулам:

;                                                       (10)

,                                                       (11)

где        S и S1, - те же величины, что в 5.3.1.

ПРИЛОЖЕНИЕ А

(справочное)

Метод решения системы уравнений

А.1 Решение системы (1) выполняют с помощью метода подбора, схему которого используют в вычислительной практике для решения некорректно поставленных обратных задач. Рассматривают совокупность прямых задач и, начиная с нулевого приближения, решение системы подбирают таким образом, чтобы на каждом следующем k-м шаге приближения значение интенсивности звука , вычисленное по формуле

,                                            (A.1)

приближалось к допустимому значению I, стоящему в правой части системы (1).

В формуле (А.1)  - решение системы (1) на k-м шаге приближения; аji, п, пp - те же величины, что в формуле (1).

А.2 За нулевое приближение принимают допустимые значения звуковой мощности машин, соответствующие их индивидуальной работе и определяемые по формуле

,                                                            (A.2)

где индекс ji - номер рабочего места, ближайшего к i-й машине.

А.3 Каждое следующее (k + 1) приближение определяют с помощью рекурентной формулы

                      (А.3)

где        - коэффициент, показывающий, во сколько раз для k-го шага приближения значение интенсивности звука  шума, создаваемого i-й машиной на j-м рабочем месте, меньше максимального значения :

              - коэффициент, показывающий, во сколько раз для k-го шага приближения вычисленное по формуле (А.1) значение интенсивности суммарного шума , создаваемого всеми машинами на j-м рабочем месте, отличается от допустимого значения I:

.

А.4 Процесс подбора решения системы (далее - процесс подбора или подбор) для j-го рабочего места прекращается, если выполняется одно из условий

,                                              (А.4)

где        D - допускаемая погрешность расчета, дБ.

Вычисления повторяют последовательно для каждого рабочего места, начиная с первого, при этом в качестве нулевого приближения для каждого последующего рабочего места принимают значения , обеспечивающие выполнение условий (А.4) на предыдущем рабочем месте.

После завершения процесса подбора для последнего рабочего места вычисляют по формуле (А.1) для каждого рабочего места значения  (К - общее число шагов приближения) и сравнивают их с допустимым значением I. Если для какого-либо рабочего места значение  оказывается более чем в 100,1D раз меньше допустимого значения I, повышают определенное в результате подбора значение мощности ближайшей к этому рабочему месту машины в 1/g(K) раз. Процедуру повышения значений звуковых мощностей отдельных машин повторяют до тех пор, пока на всех рабочих местах не будет выполнено условие

                                               (A.5)

А.5 Определенные в соответствии с процедурами А.2 - А.4 значения звуковых мощностей машин принимают за допустимые значения.

А.6 В соответствии с описанным алгоритмом составлена программа численного решения системы (1) для персонального компьютера, совместимого с IBM PC/XT/AT. В виде подпрограммы она включена в состав общей программы PDHX, сведения о которой даны в приложении Д.

ПРИЛОЖЕНИЕ Б

(обязательное)

Расчет элементов матрицы системы уравнений

Б.1 Расчет слагаемого  описывающего долю прямого звука

Б.1.1 Слагаемое  рассчитывают по формуле

,                                                          (Б.1)

где        kji- параметр, учитывающий влияние ближнего звукового поля на значения уровней шума, создаваемого i-й машиной на j-м рабочем месте;

             Sji - площадь воображаемой поверхности, проходящей через j-е рабочее место, окружающей i-ю машину и удаленной на одинаковое расстояние dji от огибающего ее параллелепипеда, м2.

Б.1.2 Параметр kji определяют по графику на рисунке Б.1 в зависимости от отношения расстояния Rji, от акустического центра i-й машины до j-го рабочего места к максимальному размеру lmax i i-й машины.

Рисунок Б.1 - График для определения параметра kji учитывающего влияние ближнего звукового поля на значения уровней шума, создаваемого i-й машиной на j-м рабочем месте

Б.1.3 Площадь Sji, вычисляют по формулам:

- при Rji менее 2 lmax i

Sji = 4(eji fji + fjigji + ejigji),                                          (Б.2)

где        eji, fji и gji - размеры воображаемой поверхности Sji м:

             li1, li2, li3 - размеры i-й машины, м;

- при Rji более или равном 2lmax i,

                                                        (Б.3)

где        W - телесный угол, в который излучает звук i-я машина, ср.

В зависимости от расположения машины относительно стен помещения принимают следующие значения W:

- 2p - при удалении более 2lmax i, от стен;

- p - при удалении менее 2lmax i от одной стены;

- p/2 - при удалении менее 2lmax i от двух стен.

Б.2 Расчет акустических характеристик помещений

Б.2.1 Акустическими характеристиками помещений, необходимыми для расчета слагаемого , являются: наименование группы, к которой относится помещение; средний коэффициент звукопоглощения ограждающих поверхностей a0; средняя длина свободного пробега звуковых лучей в помещении между последовательными отражениями, м; средний коэффициент звукопоглощения a в помещении; функция J(a,r), описывающая поле отраженного звука в несоразмерном помещении.

Б.2.2 Наименование группы, к которой относится помещение, определяют в зависимости от его размеров (длины D, ширины G и высоты Н) из следующих условий:

- при отношении наибольшего размера к наименьшему не более 5 - соразмерное;

- при отношении D/H более 5 и G/Н не менее 4 - плоское;

- при отношении D/H более 5 и G/H менее 4 - длинное.

Примечание - Если помещение не прямоугольное, используют усредненные значения D, G и Н, определяя их по принципу равных площадей.

Б.2.3 Средний коэффициент звукопоглощения ограждающих поверхностей a0 принимают в зависимости от типа помещения по таблице Б.1. Допускаются другие значения a0 установленные соответствующими нормативными документами.

Б.2.4 Среднюю длину  свободного пробега звуковых лучей в помещении между последовательными отражениями определяют по формуле

,                                                         (Б.4)

где      V - объем помещения, м3;

       Sогр - суммарная площадь ограждающих поверхностей помещения, м2.

Б.2.5 Средний коэффициент звукопоглощения α в помещении определяют по формулам:

- в октавных полосах со среднегеометрическими частотами 63 - 1000 Гц

a = a0;                                                              (Б.5)

- в октавных полосах со среднегеометрическими частотами 2000 - 8000 Гц

                    (Б.6)

где        т - постоянная затухания звука в воздухе, м-1.

Таблица Б.1 - Средний коэффициент звукопоглощения ограждающих поверхностей помещения a0 в зависимости от типа помещения в октавных полосах частот

Тип помещения

Октавная полоса со среднегеометрической частотой, Гц

63

125

250

500

1000

2000

4000

8000

1 Машинные залы, генераторные, испытательные стенды, вентиляционные камеры, цехи предприятий пищевой промышленности с ограждающими поверхностями, облицованными моющейся плиткой

0,07

0,08

0,08

0,08

0,08

0,08

0,09

0,09

2 Механические и металлообрабатывающие цехи; цехи агрегатной сборки в авиационной и судостроительной промышленности

0,10

0,10

0,10

0,12

0,12

0,12

0,12

0,12

3 Цехи предприятий деревообрабатывающей и текстильной промышленности, посты управления, лаборатории, конструкторские бюро, рабочие помещения управлений

0,11

0,11

0,12

0,13

0,14

0,14

0,14

0,14

4 Машинные и дизель-генераторные отделения судов

0,04

0,08

0,11

0,14

0,17

0,20

0,24

0,27

5 Машинные отделения судов на подводных крыльях

0,04

0,06

0,08

0,10

0,12

0,14

0,16

0,18

Примечания

1 Для плоских помещений приведенные значения следует увеличить в 1,4 раза, для длинных - в 1,2 раза. 2 Для помещений типов 4 и 5 данные приведены в соответствии с действующим в судостроении руководящим документом [1].

Значения т принимают по таблице Б.2.

При необходимости составления системы (1) для корректированных звуковых мощностей (см. примечание к 6.1) средний коэффициент звукопоглощения a в помещении определяют по формуле

                                                     (Б.7)

где        np - число рабочих мест в помещении;

         aj - значение коэффициента звукопоглощения, определенное для j-го рабочего места по формуле

                              (Б.8)

где      Sогр - суммарная площадь ограждающих поверхностей помещения, м2;

       IA доп - допустимое значение корректированной по А интенсивности звука; IA доп = 0,000151 Вт/м2;

       n - число одновременно работающих машин - источников шума в помещении;

       РAi - предельно допустимое значение корректированной звуковой мощности i-й машины, Вт;

        P0 = 1 пВт, LWAi вычисляют по 6.1.

Примечание - Так как используемые в формуле (Б.8) значения корректированных звуковых мощностей вычисляют посредством суммирования корректированных по А значений звуковых мощностей в октавных полосах частот, в качестве допустимого значения уровня звука принято значение 81,8, получаемое в результате суммирования корректированных по А допустимых значений уровней звукового давления в октавных полосах частот.

Таблица Б.2 - Постоянная затухания звука в воздухе m, м-1, при нормальном атмосферном давлении в зависимости от температуры и относительной влажности воздуха в октавных полосах частот

Температура, °С

Относительная влажность, %

Октавная полоса со среднегеометрической частотой, Гц

2000

4000

8000

30

10

0,0060

0,0200

0,0590

20

0,0032

0,0100

0,0350

40

0,0028

0,0063

0,0190

60

0,0032

0,0057

0,0150

80

0,0035

0,0058

0,0130

20

10

0,0092

0,0250

0,0450

20

0,0044

0,0155

0,0480

40

0,0025

0,0078

0,0290

60

0,0022

0,0057

0,0190

80

0,0022

0,0049

0,0150

10

10

0,0100

0,0160

0,0200

20

0,0074

0,0210

0,0390

40

0,0035

0,0120

0,0390

60

0,0023

0,0081

0,0290

80

0,0020

0,0062

0,0220

При наличии данных о времени реверберации Трев, с, a следует вычислять по формуле

.                                              (Б.9)

Б.2.6 Функцию J(a,r) определяют по графику на рисунке Б.2 или по формуле

,                                         (Б.10)

где        r - приведенное расстояние, вычисляемое по формуле

,                                                (Б.11)

где        R - расстояние от расчетной точки, в которой вычисляют значение функции J(a,r), до акустического центра источника шума.

Рисунок Б.2 - График для определения функции J(a, r), описывающей поле отраженного звука в несоразмерном помещении

Б.3 Расчет слагаемого , описывающего долю отраженного звука

Б.3.1 Слагаемое  рассчитывают по формулам:

- для соразмерного помещения

                                                      (Б.12)

- для плоского помещения

                                           (Б.13)

- для длинного помещения

                                        (Б.14)

Примечание - В соответствии с приведенными формулами составлены программы расчетов элементов матрицы и акустических характеристик помещения для персонального компьютера, совместимого с IBM PC/XT/AT. В виде подпрограммы они включены в состав общей программы PDHX, сведения о которой даны в приложении Д.

ПРИЛОЖЕНИЕ В

(рекомендуемое)

Оптимизация предельно допустимых значений уровней звуковой мощности

B.1 Идея оптимизации

B.1.1 Если среди одновременно работающих машин имеются слабые источники шума (далее - слабые источники), для которых решения системы (1) и соответствующие им допустимые значения корректированных и (или) октавных уровней звуковой мощности LWд больше фактических значений их уровней звуковой мощности LWф, и мощные источники шума (далее - мощные источники), для которых LWд меньше LWф, то может быть выполнена оптимизация рассчитанных значений LWд. Идея оптимизации заключается в том, чтобы приравнять для слабых источников значения LWд к значениям LWф и использовать образовавшийся запас звуковой энергии для повышения ПДШХ мощных источников.

В.1.2 Образовавшийся за счет понижения ПДШХ слабых источников запас звуковой энергии можно использовать следующим образом:

- распределить между всеми мощными источниками, повысив их ПДШХ на одну и ту же величину;

- использовать весь запас звуковой энергии на повышение ПДШХ одного или нескольких наиболее мощных источников, увеличивая допустимые значения их мощностей на максимально возможное значение;

- последовательно повышать до фактических значений ПДШХ машин, начиная с наиболее мощного источника, определяя тем самым группу машин, для которых это может быть сделано одновременно. Указанным возможностям соответствуют две процедуры оптимизации ПДШХ:

- равномерная оптимизация;

- последовательная оптимизация.

В.2 Равномерная оптимизация

В.2.1 Для рабочих мест, ближайших к машинам - мощным источникам шума, определяют значение интенсивности , до которого можно повысить суммарную долю мощных источников, по формуле

                                (В.1)

где      k0 - номер первого слабого источника шума;

       n1 - число мощных источников шума;

       ji - номер рабочего места, ближайшего к i-му мощному источнику шума;

       i1 - номер первого мощного источника шума;

       Рфk - фактическое значение звуковой мощности k-го слабого источника шума.

Штрих у знака суммы показывает, что суммирование ведется только по слабым источникам.

В.2.2 Составляют новую систему уравнений только для n1 мощных источников и решают ее методом подбора, определяя новые значения звуковых мощностей мощных источников.

В.2.3 В случае одного общего рабочего места для всех мощных источников допустимые значения их звуковых мощностей определяют по формуле

,                                                        (В.2)

где        а1i - элемент матрицы системы, соответствующий i-му мощному источнику шума, м-2.

В.3 Последовательная оптимизация

В.3.1 Для каждого мощного источника определяют наибольшее допустимое значение интенсивности звука , которое он может создавать на ближайшем рабочем месте за счет использования всего запаса звуковой энергии на повышение его мощности, по формуле

,                                  (В.3)

где        k1 - номер первого мощного источника шума;

         Рдk - неоптимизированное допустимое значение звуковой мощности k-го мощного источника шума, определенное в результате решения системы уравнений (1), Вт.

Штрих у знака суммы показывает, что суммирование ведется только по мощным источникам.

В.3.2 Наибольшие значения звуковых мощностей мощных источников Рi max которые могут быть получены, определяют по формуле

.                                            (В.4)

В.3.3 Определяют источники, для которых значения Рi max оказываются больше фактических значений звуковых мощностей Рфi. Значения ПДШХ для этих источников могут быть повышены до фактических значений.

В.3.4 Допустимое значение звуковой мощности Рдq наиболее мощного q-го из источников, для которых выполняется условие В.3.3, приравнивают к фактическому значению его звуковой мощности Рфq и определяют значения, до которых могут быть повышены допустимые значения интенсивности звука на ближайшем рабочем месте  и звуковой мощности Рq+1 следующего за ним q+1-го мощного источника за счет оставшегося запаса звуковой энергии, по формулам:

;                                             (В.5)

.                                                         (В.6)

Если Рq+1 оказывается больше Рфq+1 приравнивают допустимое значение звуковой мощности Рдq+1 q+1-го источника к фактическому значению его звуковой мощности Рфq+1 и повторяют аналогичную процедуру для оставшихся мощных источников шума. При Рq+1 менее Рфq+1 повторение проводят без соответствующего приравнивания и уменьшения запаса звуковой энергии.

Таким образом определяют номера мощных источников, допустимые значения звуковых мощностей которых могут быть повышены до фактических значений одновременно со звуковой мощностью q-го мощного источника.

В.3.5 Процедуру В.3.4 повторяют, начиная с q+1, q+2 и т.д. мощных источников шума, определяя таким образом группы источников, допустимые значения мощностей которых могут быть одновременно повышены до их фактических значений.

Для остальных источников вычисляют разности LWф-LWд, которые показывают, насколько необходимо снижать с помощью технических средств уровень создаваемого ими шума.

В.3.6 В соответствии с алгоритмами процедур оптимизации составлена программа для персонального компьютера. В виде подпрограммы она включена в состав программы PDHX, сведения о которой даны в приложении Д.

ПРИЛОЖЕНИЕ Г

(рекомендуемое)

Повышение предельно допустимых значений уровней звуковой мощности путем выбора рационального положения рабочего места

Г.1 С помощью описанных в Г.2 - Г.5 процедур можно либо повысить определенные в результате решения системы уравнений (1) допустимые значения звуковой мощности, либо подтвердить, что рабочее место с акустической точки зрения расположено удачно.

Г.2 В свободном от оборудования пространстве помещения выбирают сетку расчетных точек и вычисляют в них значения уровней звукового давления Lj в октавных полосах частот по формуле

                                (Г.1)

где        LWi - определенные в результате решения системы (1) допустимые значения октавных уровней звуковой мощности машин, дБ;

             аji - коэффициент, значения которого зависят от расположения i-й машины относительно j-й расчетной точки и акустических характеристик помещения, м-2 [значения аji, определяют по формуле (2)];

         пc - число расчетных точек - узлов сетки, выбранной в помещении.

Г.3 В каждой расчетной точке вычисляют значения уровня звука LAj. по формуле

                             (Г.2)

где        Lji - вычисленное по формуле (Г.1) значение уровня звукового давления для i-й полосы частот, дБ;

             КAi - поправочный коэффициент, принимаемый по таблице 2, дБ.

Г.4 Среди точек, для которых получено LAj меньше допустимого уровня звука по ГОСТ 12.1.003, находят точку с наименьшим значением уровня звука и располагают в ней рабочее место.

Г.5 Повторяют расчет допустимых значений звуковой мощности по 5.2.2 - 5.2.7 для нового положения рабочего места.

Г.6 При наличии в помещении нескольких рабочих мест процедуры по Г.2 - Г.5 выполняют для тех из них, положения которых могут быть изменены, сохраняя положения остальных без изменения, и находят оптимальное расположение рабочих мест, при котором ПДШХ машин - наиболее мощных источников шума - достигают наибольших значений.

Г.7 В соответствии с алгоритмом описанных процедур составлена программа для персонального компьютера. В виде подпрограммы она включена в состав программы PDHX, сведения о которой даны в приложении Д.

ПРИЛОЖЕНИЕ Д

(справочное)

Сведения о программе PDHX для расчета предельно допустимых значений уровней звуковой мощности с помощью ЭВМ

Д.1 Программа PDHX предназначена для расчета ПДШХ машин с помощью метода обратной задачи.

Д.2 Программа обеспечивает:

- расчет предельно допустимых уровней звуковой мощности при одновременной работе группы машин с учетом схемы расположения машин и рабочих мест в помещении;

- оптимизацию рассчитанных значений с учетом фактических уровней звуковой мощности машин;

- расчет уровней шума в помещении и выбор рационального положения рабочего места, при котором ПДШХ наиболее шумных машин принимают максимальные значения.

Д.3 Программа реализована на персональном компьютере, совместимом с IBM PC/XT/AT, функционирующем под управлением операционной системы МС ДОС.

ПРИЛОЖЕНИЕ Е

(справочное)

Пример расчета ПДШХ методом обратной задачи

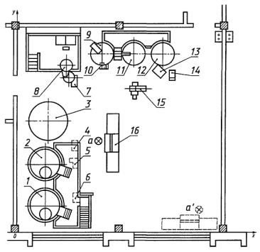
Необходимо рассчитать предельно допустимые значения уровней звуковой мощности оборудования для приготовления творога в цехе детского питания. Оборудование в составе 15 машин расположено в помещении прямоугольной формы размерами 14,5 х 14,0 х 6,0 м без звукопоглощающих облицовок и конструкций. В помещении имеется одно рабочее место, расположенное у пульта управления. Схема размещения оборудования представлена на Е.1. Источники шума на схеме пронумерованы. Известны фактические значения корректированных уровней звуковой мощности машин.

1 и 2 - асептические резервуары В6-ОКМ/1; 3- резервуар А1-ОМС/1; 4 и 10 - насосы 36-3Ц-3,5-10; 5 - насос П8-ОНБ; 6 и 14 - насосы 50-3Ц-7,1-20; 7 и 13 - насосы для творога П8-ОНД; (8 - сепаратор для творога А1-ОДБ/3; 9 - ванна для сливок Б6 -ОДБ/10; 11 и 12 - резервуары для творога Б6-ОДБ/6; 15 - смеситель Б6-ОДБ/5; 16 - пульт управления; а - исходное положение рабочего места; а’ - оптимальное положение рабочего места

Рисунок Е.1 - Схема размещения оборудования для приготовления творога

Расчет выполняли по методу обратной задачи с помощью программы PDHX с вычислением предельно допустимых значений уровней звуковой мощности в октавных полосах частот и корректированных уровней звуковой мощности.

Используемые для расчета исходные данные приведены на рисунке Е.2.

Число источников шума n = 15

Число рабочих мест пp = 1

Погрешность расчета Sm = 0,25 дБ

Номер источника шума

i

Размеры источника шума, м

Угол ориентации, градус

Координаты акустического центра источника шума, м

li1

li2

li3

xi

yi

zi

1

1,700

1,700

4,600

0

1,55

1,60

0,00

2

1,700

1,700

4,600

0

1,55

4,00

0,00

3

2,200

2,200

2,800

0

1,75

6,60

0,00

4

0,520

0,230

0,510

90

3,30

5,00

0,00

5

0,650

0,600

0,400

90

3,30

4,00

0,00

6

0,870

0,820

0,690

90

3,30

2,00

0,00

7

0,770

0,700

0,440

90

3,20

9,00

0,00

8

1,150

1,100

1,450

90

2,60

10,00

1,00

9

1,250

1,250

2,000

0

5,40

10,40

0,00

10

0,520

0,230

0,510

0

5,40

10,00

0,00

11

1,000

1,000

2,500

0

7,20

10,40

0,00

12

1,000

1,000

2,500

0

8,80

10,40

0,00

13

0,770

0,700

0,440

135

8,60

9,60

0,00

14

0,870

0,820

0,690

90

9,40

9,20

0,00

15

1,800

0,800

1,950

90

7,40

8,60

0,00

Номер и координаты рабочего места, м

j

xi

yi

zi

1

4,60

5,20

1,50

Фактические корректированные уровни звуковой мощности источников шума LWAф

Номер источника шума i

LWAф дБА

Номер источника шума i

LWAф дБА

Номер источника шума i

LWaф дБА

1

82,1

6

94,7

11

81,1

2

82,1

7

89,1

12

81,1

3

86,4

8

105,5

13

89,1

4

85,6

9

82,5

14

94,7

5

91,3

10

85,6

15

94,3

Характеристики помещения

Длина D = 14,5 м, ширина G = 14,0 м, высота H == 6,0 м.

Объем V = 1218,0 м3, площадь ограждающих поверхностей Sогр = 748,0 м2.

Температура воздуха - 20 °С, относительная влажность воздуха - 60 %.

Рисунок Е.2 - Исходные данные для расчета ПДШХ оборудования для приготовления творога

Результаты расчета даны в таблице E.1.

Сопоставление рассчитанных значений со значениями уровней звуковой мощности, приведенными на рисунке Е.2, показывает, что фактические значения уровней звуковой мощности 12 машин превышают полученные для них ПДШХ, т.е. для данных условий эксплуатации эти машины следует признать шумоопасными по ГОСТ 27409. При этом требуется снижение шума от 1 дБ (для машины 2) до 23 дБ (для машины 8). Не улучшает ситуацию попытка оптимизировать допустимые значения в соответствии с приложением В и повысить значения ПДШХ путем нахождения в помещении зоны с наименьшим уровнем звука и перенесения туда рабочего места (вместе с пультом управления - см. рисунок Е.1) в соответствии с приложением Г. Полученные для нового положения рабочего места значения ПДШХ возросли всего на 0,3-2,4 дБ.

Таблица E.1 - ПДШХ оборудования для приготовления творога при эксплуатации в необлицованном помещении

Номер источника по рисунку Е.1

Уровень звуковой мощности, дБ, в октавной полосе со среднегеометрической частотой, Гц

Корректированный уровень звуковой мощности, дБА

63

125

250

500

1000

2000

4000

8000

1

94,2

86,8

81,8

77,9

75,1

73,4

72,5

72,3

82,2

2

93,8

86,4

81,4

77,5

74,7

72,9

71,9

71,5

81,7

3

93,9

86,4

81,5

77,6

74,7

73,0

72,0

71,6

81,8

4

92,8

85,2

80,2

76,3

73,4

71,6

70,3

69,3

80,4

5

93,2

85,7

80,7

76,8

73,9

72,1

70,9

70,1

80,9

6

94,1

86,6

81,7

77,8

75,0

73,2

72,3

72,0

82,0

7

94,2

86,8

81,9

78,0

75,1

73,4

72,6

72,4

82,2

8

94,1

86,6

81,7

77,8

74,9

73,2

72,3

72,0

82,0

9

94,1

86,7

81,7

77,8

75,0

73,3

72,4

72,1

82,1

10

94,4

87,0

82,0

78,1

75,3

73,6

72,8

72,8

82,4

11

94,2

86,8

81,8

78,0

75,1

73,4

72,5

72,4

82,2

12

94,3

86,9

82,0

78,1

75,3

73,5

72,7

72,7

82,4

13

94,5

87,1

82,1

78,3

75,4

73,7

73,0

73,1

82,6

14

94,5

87,1

82,2

78,3

75,5

73,8

73,0

73,1

82,6

15

94,3

86,9

81,9

78,1

75,2

73,5

72,7

72,6

82,3

Причина создавшейся ситуации - в высокой гулкости помещения [низких значениях коэффициента звукопоглощения, рассчитанного по формулам (Б.7) и (Б.8): a<0,1].

Оптимальное решение в данном случае - изменить типовые условия эксплуатации, снизив диффузность звукового поля в помещении посредством повышения звукопоглощения потолка и стен.

Результаты повторного расчета значений ПДШХ оборудования, выполненного для условий облицовки потолка и части стен (общей площадью Sобл = 488 м2) типовой звукопоглощающей конструкцией ([2], таблица 26, позиция 26), приведены в виде диаграммы корректированных уровней звуковой мощности на рисунке Е.3 (значение α в этом случае возросло более чем в шесть раз и составило 0,63).

1 - фактические значения; II-IV - предельно допустимые значения, рассчитанные посредством решения системы уравнений (1): для необлицованного помещения (II), с частичной облицовкой стен и потолка и исходным положением рабочего места (III), то же, что III, но с рациональным расположением рабочего места (IV); V - то же, что IV, но с оптимизацией рассчитанных значений звуковой мощности; VI - соответствует максимально возможному значению для источника 8

Рисунок Е.3 - Корректированные уровни звуковой мощности оборудования для приготовления творога

В новых условиях эксплуатации предельно допустимые значения корректированных уровней звуковой мощности возросли от 3 дБ (для машины 4) до 9 дБ (для машин 13 и 14) при исходном положении рабочего места. При перенесении рабочего места в зону с наименьшими значениями уровня звука допустимые значения корректированных уровней звуковой мощности увеличились на 2 дБ (для машин 13 и 14) и на 10 дБ (для машины 4). В результате вместо 12 только для четырех машин (6, 8, 14 и 15) значения ПДШХ превышают фактические значения уровней звуковой мощности (см. рисунок Е.3). При этом оптимизация допустимых значений в соответствии с приложением В позволяет исключить из числа шумоопасных машины 6, 14 и 15, требуя снижения шума только сепаратора 8 (см. рисунок E.1) на 5 дБ.

Кроме того, разработчикам машин и проектировщикам помещений может быть предложен выбор (см. столбцы 5 и 6 на рисунке Е.3): снижать шум только одной машины (машины 8) на 5 дБ либо весь образовавшийся при оптимизации запас энергии направить на повышение ПДШХ только этого наиболее мощного источника, оставив значения трех остальных без изменения. В результате потребуется снижение шума уже четырех машин, но не более чем на 2 дБ. В зависимости от требуемых экономических затрат может быть выбран любой из предложенных вариантов.

ПРИЛОЖЕНИЕ Ж

(информационное)

Библиография

[1] РД5.0173-87. Уровни шума в судовых помещениях. Методика расчета

[2] Руководство по расчету и проектированию шумоглушения в промышленных зданиях. - М.: Стройиздат, 1981.- 128 с.

Ключевые слова: шум, стационарное оборудование, предельно допустимая шумовая характеристика, уровень звуковой мощности, уровень звукового давления излучения, уровень звука излучения, метод расчета, алгоритм расчета, программа расчета на ЭВМ




Rambler's Top100 Яндекс цитирования
  Copyright © 2008-2026, www.docload.ru