Бесплатная библиотека стандартов и нормативов www.docload.ru

Все документы, размещенные на этом сайте, не являются их официальным изданием и предназначены исключительно для ознакомительных целей.
Электронные копии этих документов могут распространяться без всяких ограничений. Вы можете размещать информацию с этого сайта на любом другом сайте.
Это некоммерческий сайт и здесь не продаются документы. Вы можете скачать их абсолютно бесплатно!
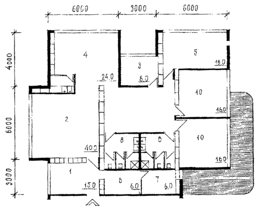
Содержимое сайта не нарушает чьих-либо авторских прав! Человек имеет право на информацию!

 

ПРАВИТЕЛЬСТВО МОСКВЫ
МОСКОМАРХИТЕКТУРА

ПОСОБИЕ

к МГСН 4.07-96

ДОШКОЛЬНЫЕ УЧРЕЖДЕНИЯ

1997

ПРЕДИСЛОВИЕ

1. РАЗРАБОТАНО Институтом общественных зданий Минстроя России (канд. архитектуры Смывина Л.А. - автор и руководитель разработки, канд. архитектуры Гарнец A.M. - общая редакция, арх. Дунаева Т.Г. - графическое оформление); Институт Пединноваций АПН и Минобразования РФ (чл.-корр. АПН Петровский В.А., канд. психологии Стрелкова Л.Л., канд. пед. наук Кларина Л.М.), МНИИТЭП (канд. технических наук Авдеев Г.К., канд. технических наук Грудзинский М.М. - отопление и вентиляция; инж. Добровольский А.Н., инж. Лапшин A.Ю. - естественное и искусственное освещение, электротехнические устройства; канд. технических наук Федоров Н.Н. - защита от шума, звукоизоляция, акустика помещений).

2. ПОДГОТОВЛЕНО к утверждению и изданию Управлением перспективного проектирования и нормативов Москомархитектуры (арх. Шалов Л.А., инж. Щипанов Ю.Б.).

3. СОГЛАСОВАНО с Департаментом образования г. Москвы, Центром Госсанэпиднадзора г. Москвы, Мосгосэкспертизой, Москомархитектурой.

4. УТВЕРЖДЕНО указанием Москомархитектуры от 25.06.1997 № 23.

СОДЕРЖАНИЕ

Введение. 2

1. Социально-функциональные основы системы дошкольных образовательных учреждений. 2

2. Организация сети, архитектурные типы зданий и комплексов, размещение в жилой застройке. 4

3. Требования к размещению и организации земельного участка. 6

3.1 Общие требования к земельному участку. 6

3.2 Планировка и оборудование элементов участка. 9

3.3 Благоустройство в озеленение. 12

4. Требования к объемно-планировочным решениям.. 13

4.1 Функциональная структура дошкольных учреждений. 13

4.2 Общие требования к функционально-планировочной организации зданий. 16

5. Объемно-планировочная организация групповых ячеек. 20

5.1 Универсальные групповые ячейки. 20

5.2. Специализированные групповые ячейки. 24

6. Объемно-планировочная организация специализированных помещений для работы с детьми. 29

7. Объемно-планировочная организация сопутствующих помещений. 32

7.1 Медицинские помещения. 32

7.2 Пищеблок. 33

7.3 Постирочная. 34

7.4 Служебно-бытовые помещения. 34

8. Системы инженерного оборудования. 35

8.1 Отопление и вентиляция. 35

8.2 Водоснабжение и канализация. 36

8.3 Естественное и искусственное освещение, электротехнические устройства. 37

8.4 Защита от шума, звукоизоляция, акустика помещений. 40

Приложение 1 Номенклатура и основные размеры оборудования для физкультурных площадок. 83

Приложение 2 Примерный ассортимент зеленых насаждений (для детского сада на 10 групп) 84

Приложение 3 Рекомендуемый состав смеси трав (в граммах на 1 м2) 84

Приложение 4 Наполняемость детских групп с компенсирующей направленностью.. 84

Приложение 5 Состав и площади помещений групповых ячеек дошкольных учреждений для детей с нарушениями слуха, зрения и интеллекта. 85

Приложение 6 Состав и площади помещений групповых ячеек дошкольных учреждений для детей с нарушением опорно-двигательного аппарата. 85

Приложение 7 Ширина проходов в производственных помещениях пищеблока. 86

Приложение 8 Расчетная температура при проектировании отопления и кратность обмена воздуха в помещениях дошкольных учреждений. 86

Приложение 9 Основное санитарно-техническое оборудование в дошкольных учреждениях. 86

Приложение 10 Основные характеристики люминесцентных ламп, рекомендуемых для дошкольных учреждений. 87

ВВЕДЕНИЕ

1. Настоящее Пособие разработано в развитее и дополнение МГСН 4.07-96 “Дошкольные учреждения” и распространяется на проектирование массовых типов дошкольных учреждений, в первую очередь, муниципальных, предназначенных для практически здоровых детей и для детей с недостатками развитая, подлежащими коррекции и компенсации в процессе подготовки к школе. Настоящее Пособие не рассматривает вопросы проектирования детских домов, детских домов для детей с нарушениями развития, а также дошкольных отделений в школах-интернатах для детей с нарушениями развития.

2. Настоящее Пособие разработано в помощь проектировщикам-архитекторам, технологам, инженерам с целью показать возможные пути достижения конкретных нормативных требований в проектных решениях зданий дошкольных учреждений и их участков, а также дать рекомендации по функциональной структуре и объемно-планировочному решению зданий, параметры составов и площадей которых превышают минимально допустимые нормами. В Пособии даются рекомендации по эффективному использованию капвложений по отношению к нормативному минимуму, в направлении создания развивающей среды и повышения качества архитектуры зданий.

3. В Пособие включены также разделы по расчету сети, новой типологии зданий и комплексов, по организации дошкольных учреждений и участков в особых условиях - на затесненной территории, встроенными, объединенными с общеобразовательной школой.

1. СОЦИАЛЬНО-ФУНКЦИОНАЛЬНЫЕ ОСНОВЫ СИСТЕМЫ ДОШКОЛЬНЫХ ОБРАЗОВАТЕЛЬНЫХ УЧРЕЖДЕНИЙ

1.1 Деятельность всех видов государственных муниципальных дошкольных образовательных учреждений регулируется Типовым положением о дошкольном образовательном учреждении, которое для негосударственных дошкольных учреждений выступает в качестве примерного.

1.2 Дошкольное образовательное учреждение обеспечивает обучение (реализует общеобразовательные программы дошкольного образования различной направленности), присмотр, уход и оздоровление детей в возрасте от 2-х месяцев до 7-ми лет.

Основными задачами дошкольных учреждений являются:

- охрана жизни и укрепление здоровья детей;

- обеспечение интеллектуального, личностного и физического развития ребенка;

- приобщение детей к общечеловеческим ценностям;

- взаимодействие с семьей для обеспечения полноценного развития ребенка;

- осуществление необходимой коррекции отклонений в развитии ребенка.

1.3 Система дошкольных учреждений формируется различными видами дошкольных образовательных учреждений в соответствии с направленностью их деятельности:

- детский сад;

- детский сад общеразвивающего вида с приоритетным осуществлением одного или нескольких направлений развития воспитанников (интеллектуального, художественного, физического и др.);

- детский сад компенсирующего вида с приоритетным осуществлением квалифицированной коррекции отклонений в физическом и психическом развитии воспитанников;

- детский сад присмотра и оздоровления с приоритетным осуществлением санитарно-гигиенических, профилактических и оздоровительных мероприятий и процедур;

- детский сад комбинированного вида (в состав комбинированного детского сада могут входить общеразвивающие, компенсирующие и оздоровительные группы в любом сочетании);

центр развития ребенка - детский сад с осуществлением физического и психического развития, коррекции и оздоровления всех воспитанников.

1.4 В соответствии с Типовыми положениями, дошкольные образовательные учреждения (далее по тексту ДОУ) могут, по желанию родителей и решению администрации менять профиль обслуживания всего учреждения в целом или отдельных детских групп.

1.5 Все ДОУ предназначены для обслуживания практически здоровых детей и детей, имеющих незначительные отклонения в развитии, которые компенсируются в процессе подготовки ребенка к обучению в общеобразовательной школе.

В настоящем Пособии не рассматриваются специальные учреждения для детей со значительными нарушениями физического и психического развития.

1.6 Одной из важнейших задач дошкольного воспитания является правильное психическое развитие ребенка, создание в дошкольном учреждении благоприятного психологического климата. Этому способствуют гуманизация среды ДОУ, создание интерьеров, фасадов, фрагментов участка, по характеру напоминающих жилую среду.

Основным принципом создания соответствующей среды для детей является выделение ее развивающего начала. Среда детского учреждения должна содержать пространственные и предметные стимулы творческого и эмоционального развития ребенка и, кроме того, быть динамичной, не допуская привыкания к однообразию.

1.7 Обслуживание практически здоровых детей осуществляет дошкольное образовательное учреждение типа Детский сад. Этот тип учреждения в принципе универсален и предоставляет педагогические и медицинские услуги (в том числе компенсирующие недостатки физического и психического развития) по обучению и оздоровлению детей, в то же время осуществляя бытовые функции ухода и присмотра. Компенсирующие услуги направлены на коррекцию зрения, слуха, произношения, движений, устранение задержек психического и интеллектуального развития.

1.8 Детские сады, как образовательные учреждения, могут избрать одно или несколько направлений в своей основной деятельности в качестве приоритетных, которые определяют вид учреждения: общеразвивающее, оздоровительное, компенсирующее, комбинированное - на основе сочетания вышеуказанных направлений.

Здания для дошкольных учреждений различных видов, как правило, следует проектировать универсальными. Целесообразность проектирования универсальных зданий обосновывается возможностью, предусмотренной в Уставе ДОУ, менять приоритетные направления обслуживания детей в соответствии с изменением спроса потребителей (пожелания родителей). Московскими городскими строительными нормами заложены принципы проектирования универсальных детских садов, которые в равной степени могут работать как развивающие, оздоровительные, компенсирующие для детей с легкой степенью нарушений развития, а также комбинированные. Специализация ДОУ достигаться наличием в их составе дополнительных помещений, имеющих специальное оборудование. Это позволяет обеспечить условия полноценного функционирования здания при изменении вида образовательного дошкольного учреждения, которое достигается заменой оборудования дополнительных помещений.

1.9 Особого внимания требует проектирование компенсирующих дошкольных учреждений. Компенсирующие ДОУ для детей с нарушениями слуха (глухих и слабослышащих), с нарушением зрения (слабовидящих; с косоглазием и амблиопией), с нарушением опорно-двигательного аппарата и интеллекта следует проектировать в виде специальных зданий с сокращенными площадями основных помещений групповой ячейки (т.к. практически вдвое сокращается нормативная наводняемость детских групп) и составом дополнительных помещений, согласуемых с заказчиком на стадии разработки задания на проектирование.

При некоторых видах компенсирующей деятельности для организации таких учреждений вполне могут подойти универсальные здания ДОУ, например, логопедический детский сад. Отдельные компенсирующие услуги могут быть оказаны не всем, а лишь части детей (или части детских групп) в комбинированном дошкольном учреждении, для размещения которого также подойдет универсальное здание.

1.10 Компенсирующие дошкольные учреждения, в свою очередь, могут проектироваться как специализированные: для детей с нарушениями слуха, зрения, опорно-двигательного аппарата, психического развития, или как универсальные компенсирующие, когда в одном здании могут функционировать учреждения с любой из указанных здесь компенсирующих направленностей.

1.11 Проектировать здания ДОУ специализированными целесообразно в жилых комплексах с повышенной селитебной плотностью, когда сеть ДОУ достаточно плотная, и перевод ребенка, в случае необходимости, из одного учреждения в другое не отразится на радиусе доступности. Примерное соотношение числа мест в таких специализированных учреждениях ориентировочно можно принять следующим:

общеразвивающие - 40 %;

оздоровительные - 30 %;

компенсирующие - 30 %.

Данные о конкретной потребности мест в ДОУ должны быть уточнены в местных органах образования или в соответствии с результатами социологических обследований.

1.12 В жилых комплексах (микрорайонах) могут быть предусмотрены комплексные многопрофильные и методические центры системы ДОУ. Они могут представлять собой такой вид дошкольного учреждения как Центр развития ребенка с осуществлением физического и психического развития, поддержки и оздоровления всех воспитанников.

В качестве дополнительных услуг в ДОУ любого типа могут предусматриваться такие мероприятия как родительские семинары, консультации родителям по уходу и воспитанию, психологическая помощь семье, а также детские кружки и секции, в том числе для дошкольников, не являющихся постоянными воспитанниками данного ДОУ. К дополнительным услугам и мероприятиям могут также относиться организация детских утренников и спектаклей, посещение бассейна, консультации специалистов по части компенсирующих мероприятий.

1.13 Сеть ДОУ может быть содержать прогулочные группы для детей, которые организуются как оздоровительные или общеразвивающие и размещаются в первых этажах многоквартирных жилых домов. Дети в этих группах преимущественно гуляют на свежем воздухе до и после обеда, спят и обедают дома. Число мест в прогулочных группах может составлять 15 - 40 % в зависимости от спроса на них в среде социально благополучных и обеспеченных семей.

1.14 К системе ДОУ относятся также "семейные детские сады" - частные дошкольные учреждения на 0,5 и 0,25 детской группы - т.е. на 10 и 5 детей, размещаемые непосредственно в жилых квартирах (частных жилых домах) владельца ДОУ.

1.15 В жилых комплексах могут предусматриваться дежурные группы кратковременного присмотра - дневные, где ребенка можно оставить на несколько часов, и круглосуточные - оказывающие услуги по уходу и присмотру в течение нескольких суток. Дежурные группы кратковременного присмотра могут выполнять роль приюта сроком до нескольких недель, с оказанием ребенку психологической помощи.

1.16 При определении общего расчетного числа мест в ДОУ жилого комплекса (микрорайона) ДОУ типа "Семейный детский сад" и дежурные группы кратковременного присмотра не учитываются.

2. ОРГАНИЗАЦИЯ СЕТИ, АРХИТЕКТУРНЫЕ ТИПЫ ЗДАНИЙ И КОМПЛЕКСОВ, РАЗМЕЩЕНИЕ В ЖИЛОЙ ЗАСТРОЙКЕ

2.1 Архитектурная типология ДОУ определяется главным образом градостроительными условиями применения и размещения в жилой застройке. Система зданий и комплексов ДОУ и их отделений в жилых образованиях может решаться как самостоятельная, или в сочетании с учреждениями общего образования (школами).

2.2 Выбор архитектурных типов зданий и комплексов ДОУ в конкретных градостроительных условиях рекомендуется осуществлять с учетом показателя селитебной плотности (средневзвешенной этажности жилых зданий). Малые ДОУ вместимостью от 0,5 до 3 детских групп нормативной наполняемости рекомендуются в малоэтажной жилой застройке (усадебная, коттеджная с постоянно проживающим населением, коттеджная дачная - для сезонно организуемых частных детских садов с режимом кратковременного пребывания детей, малоэтажная блокируемая и т.п.).

При средней этажности жилой застройки 3-7 этажей рекомендуется применение отдельно стоящих ДОУ общего типа вместимостью от 4 до 10 детских групп с условием обеспечения радиуса охвата не более 300 м. Если здания ДОУ проектируются как специализированные, желательно вместимость оздоровительных ДОУ предусматривать не более 6 групп.

Прогулочные группы весьма экономичны, не содержат спален и кухонь, и при размещении в первых этажах жилых зданий способствуют экономии занимаемой территории микрорайона.

При повышенной селитебной плотности (при средневзвешенной этажности жилой застройки более 7-9 этажей) целесообразно применять здания ДОУ на 8-10 групп.

ДОУ вместимостью до 8 групп могут предусматриваться встроенными в первые (нижние два) этажи жилых зданий и встроенно-пристроенными - вместимостью до 10 групп, а при применении ранее разработанных типовых проектов или при реконструкции - до 12 групп.

При средней и повышенной селитебной плотности в системе ДОУ возможно предусматривать по согласовыванию с органами образования и Госсанэпиднадзора Центры дошкольного воспитания. В отдельных случаях Центр дошкольного воспитания может не содержать детские группы, а осуществлять обслуживание детских групп из близрасположенных ДОУ жилого комплекса (микрорайона): бассейн, детские кружки и секции, праздничные утренники, детские спектакли и др. Центр дошкольного воспитания может содержать консультационные пункты для родителей, обеспечивать методическое и организационное руководство системой ДОУ в микрорайоне.

В системе ДОУ микрорайона (жилого комплекса) по согласованию с органами образования и Госсанэпиднадзора могут предусматриваться централизация приготовления пищи и стирки белья.

2.3 ДОУ могут быть блокированы или интегрированы в общеобразовательные школы: I, I и II, а также I, II и III ступеней при условии объединения в одном здании не более 350 детей. Блокированные здания (Детский сад - школа) в основном применяются при низкой селитебной плотности. Учреждения, интегрированные на базе объединения учебных программ, а также специализированных и сопутствующих помещений - Учебно-воспитательные комплексы (далее по тексту УВК), практически могут использоваться при любых градостроительных условиях. Их применение при низких селитебных плотностях сокращает радиусы доступности (как правило, младших классов); при повышенных селитебных плотностях достигается снижение общей вместимости здания школы, в первую очередь, младших классов.

2.4 Определение числа мест в дежурных группах кратковременного присмотра (дневных и круглосуточных) осуществляется на основе социологических обследований или по МГСН 4.07-96 "Дошкольные учреждения".

2.5 Соотношение возрастных групп детей в ДОУ, а также приоритетные направления обслуживания в отдельных группах или в ДОУ в целом определяются заданием на проектирование или проектом по согласованию с органами образования.

2.6 Градостроительные системы комплексов и зданий ДОУ или их элементов могут иметь место при застройке или реконструкции больших жилых образований от 5 до 15 -20 тыс. жителей. При этом функциональная организация этой системы должна обеспечивать ее органичное вхождение в архитектурно-градостроительный ансамбль застройки.

При низкоплотной жилой застройке здания ДОУ (особенно объединенные со школой) могут представлять собой градостроительные акценты, более крупные по объему и этажности, чем индивидуальные или блокируемые 1-2х-этажные жилые дома. В условиях многоэтажной жилой застройки, как правило, двухэтажные здания ДОУ имеют подчиненный характер и могут контрастировать в своем архитектурном решении с мелкоячеистой фактурой фасадов жилых домов укрупненными деталями и укрупненным ритмом.

2.7 В функциональном отношении системы ДОУ могут формироваться универсальными зданиями ДОУ одинаковой или разной вместимости. Когда применяются учреждения разной вместимости - этот прием можно эффективно использовать для предпочтительного размещения в более крупных зданиях общеразвивающих ДОУ, в зданиях меньшей вместимости - оздоровительных ДОУ. При этом компенсирующие дошкольные учреждения, как правило, лучше предусматривать крупными (на 6-10 детских групп) - для эффективного использования особой планировочной структуры здания, специального оборудования, квалифицированного персонала.

2.8 Здания общеразвивающих ДОУ, специализирующихся на одном или нескольких направлениях развития (художественно-эстетическом, интеллектуальном, физическом и т.п.) лучше предусматривать вместимостью 4-6 групп, чтобы можно было укомплектовать группы с сохранением нормативного радиуса обслуживания.

2.9 Здания ДОУ могут размещаться во внутридворовом пространстве жилых групп в виде отдельно стоящих зданий, играть роль торцевого элемента, элемента рядовой или поворотной вставки в блокируемой жилой застройке, быть встроенно-пристроенными с выступающими компактными или протяженными объемами вдоль фасадных сторон многоквартирных жилых зданий. Блокируемые элементы-вставки могут быть одно-, двух- или трехэтажными, встроенные (встроенно-пристроенные) объемы - одно- или двухэтажными.

2.10 При проектировании в составе градостроительной системы здания Центра дошкольного воспитания (далее по тексту ЦДВ) следует предусматривать центральное расположение этого здания в жилом комплексе. Следует иметь ввиду, что расстояние от здания Центра до обслуживаемых им остальных ДОУ не должно превышать 300 - 350 м. ЦДВ и обслуживаемые им ДОУ образуют комплексы дошкольного воспитания (КДВ). Частным случаем решения КДВ является обслуживание зданием Центра встроенных или встроенно-пристроенных ДОУ. Такие КДВ особо эффективны, когда встроенные ДОУ малы и не содержат в своем составе залов для музыкальных и гимнастических занятий, бассейна, дополнительных помещений для специализированных занятий (например, компьютерный класс), помещений для занятий детских кружков и секций, которые концентрируются в ЦДВ. В этом случае отдельные небольшие по вместимости ДОУ целесообразно предусматривать специализированными - в соответствии с приоритетными направлениями развития детей или компенсирующей деятельности: только общеразвивающим, только оздоровительным или только компенсирующим, причем, с определенным профилем: логопедическое, для детей с нарушением зрения и т.п.

2.11 В качестве градостроительной системы могут проектироваться объединенные комплексы дошкольных учреждений (отделений) и общеобразовательных школ (школьных отделений) как в виде раздельных зданий этих учреждений, так и единых учебно-воспитательных комплексов. Например, при повышенных селитебных плотностях, могут проектироваться комплексы зданий школ, имеющих по 2-3 филиала "Детский сад - начальная школа", в которых находятся дошкольники преимущественно старших возрастных групп, а более младшие возрастные группы дошкольников могут размещаться в небольших по вместимости отдельно стоящих или встроенных ДОУ.

3. ТРЕБОВАНИЯ К РАЗМЕЩЕНИЮ И ОРГАНИЗАЦИИ ЗЕМЕЛЬНОГО УЧАСТКА

3.1 Общие требования к земельному участку

3.1.1 Планировочную структуру участка рекомендуется разрабатывать в увязке с планировочным решением здания ДОУ и с учетом требований к составу и площадям элементов участка, озеленению и благоустройству.

3.1.2 Наибольшее расстояние, с которого взрослый человек (воспитатель) с нормальным зрением различает действия детей, приблизительно равно 135 м, а с которого различает лицо ребенка - 20-25 м. Размеры участка ДОУ, а также групповых и общих площадок рекомендуется устанавливать, исходя из этих данных.

3.1.3 При планировке участка следует учитывать его природное окружение, а также характер архитектуры как самого здания ДОУ, так и окружающей застройки. При благоустройстве территории ДОУ не следует перегружать ее малыми архитектурными формами.

Следует учитывать эстетическое воздействие на детей красивого здания и элементов благоустройства, а также аккуратно стриженного газона с организованными группами деревьев и кустарников.

3.1.4 Уровень шума на участке ДОУ не должен превышать 60 дБА, Здание детского сада может проектироваться как "шумозащищенное" (групповые обращены в сторону, противоположную от источника шума). В этом случае игровую территорию следует располагать со стороны групповых, в "шумовой" тени.

3.1.5 Здания должны размещаться в зоне пониженных скоростей преобладающих ветровых потоков, в аэродинамической (ветровой) тени, образуемой жилой застройкой. Зоной аэродинамической тени считается территория за экранирующим объектом на расстоянии пяти его высот, где происходит снижение скорости ветра не менее чем в два раза.

3.1.6 Размещение здания на участке определяет его градостроительная маневренность (ориентация окон групповых по сторонам горизонта), исходя из условий обеспечения не менее трехчасовой непрерывной инсоляции групповых.

3.1.7 В состав земельного участка ДОУ общего типа входят две основные зоны: игровая - зона пребывания детей, и хозяйственная. Зона игровой территории включает в себя групповые площадки, индивидуальные для каждой группы, площадью не менее 180 м2 каждая; площадь озеленения -120 м2 на каждую детскую группу; общую физкультурную площадку площадью 200 м2 для ДОУ (отделений) вместимостью от 4 до 8 групп и 250 м2 для ДОУ с числом групп 9 и более. В площадь озеленения включаются защитные полосы, обеспечивающие санитарные разрывы между отдельными площадками и элементами игровой территории.

3.1.8 В состав хозяйственной зоны входит хозплощадка, с местом разгрузки и площадкой для мусоросборников, площадью 100 м2 для ДОУ общего типа, 75 м2 - для малых ДОУ, 120 м2 - для ЦДВ на 10 и более детских групп. Хозяйственная площадка должна быть расположена у входа в загрузочную пищеблока. Мусоросборники могут размещаться на асфальтированной площадке при въезде на участок со стороны хозяйственного автомобильного проезда.

На территории участка дошкольного учреждения подъезд к хозяйственной площадке рекомендуется делать минимальной длины и таким образом, чтобы он не пересекал пешеходные дорожки к групповым площадкам.

Вблизи хозяйственной площадки следует предусматривать место для стоянки 3-4-х легковых автомобилей (личного автотранспорта персонала).

3.1.9 На площади участка ДОУ необходимо предусматривать круговой автомобильный проезд (или место, позволяющее проехать на автомобиле вокруг здания). При ДОУ, пристроенном к торцу жилого дома, вокруг пристройки должен предусматриваться полукольцевой объезд.

3.1.10 В составе игровой зоны дополнительно можно предусматривать солярий, парк крупноразмерных игрушек, лыжню, зимний каток, велосипедную дорожку, площадку для изучения правил дорожного движения.

3.1.11 В состав хозяйственной зоны дополнительно разрешается включать овощехранилище (площадью не более 50 м2), огород, ягодник, фруктовый сад, площадку для содержания домашних животных и птиц.

Иные дополнения в состав участка допускаются по согласованию с органами Госсанэпиднадзора.

3.1.12 Размеры земельных участков определяются из расчета 650 м2 на одну группу в ДОУ при размещении его в отдельно стоящем здании и 570 м2 - при встроенном. Значения площадей даны минимально допустимыми: с учетом размещения на участке только обязательных элементов благоустройства и здания ДОУ. В условиях затесненной застройки (при реконструкции), а также в жилых комплексах с повышенной интенсивностью использования территории (в центральной части Москвы) допускается сокращение нормируемой площади участка за счет сокращения площади озеленения при сохранении санитарных разрывов между площадками:

не менее 3 м между групповыми площадками, между групповой и общей спортивной площадками;

не менее 6 м между групповой и хозяйственной площадками;

не менее 2 м между ограждением участка и групповыми или общей физкультурной площадками.

3.1.13 При прогулочных группах, размещаемых в первых этажах жилых зданий, при встроенных ДОУ (групповых отделениях) вместимостью не более 4-х групп, а также при малых ДОУ блокируемых с жилыми домами, в качестве игровой территории допускается предусматривать на придомовой территории только групповые площадки, с необходимыми отступами и санитарными разрывами между ними.

3.1.14 Для ДОУ типа "Семейный детский сад" выделяется групповая площадка площадью 60 м2 на озелененной придомовой территории (с соответствующими разрывами от зданий и красной линии) с живой изгородью.

3.1.15 Для групп кратковременного присмотра предусматриваются групповые площадки площадью 60 м2 для каждой группы детей с необходимыми отступами и санитарными разрывами между ними. Площадки могут заменяться открытыми террасами при здании, с площадью террас не менее 30 м2 для каждой группы.

3.1.16 Участок может примыкать к зданию ДОУ лишь с части сторон. Выходы из здания детских групп должны в этом случае предусматриваться со стороны примыкающего участка.

3.1.17 В отдельных случаях (встроенное ДОУ, недостаточная или неинсолируемая территория у здания ДОУ и т.п.) по согласованию с органами Госсанэпиднадзора часть или всю игровую территорию допускается размещать в отрыве от здания (участка) ДОУ к нему примыкающего. Расстояние от входов в здание (участка) до участка, размещаемого в отрыве от здания, не должно превышать 50 м. В отрыве может решаться вся или часть игровой территории: групповые и общие площадки с соответствующей площадью озеленения, необходимыми отступами и санитарными разрывами между площадками.

3.1.18 При традиционном решении участка ДОУ общего типа на каждой групповой площадке следует предусматривать теневые навесы с деревянным (дощатым) полом, огороженные от ветра с трех сторон. Площадь навеса принимается от 20 до 40 м2 По согласованию с органами Госсанэпиднадзора могут быть приняты иные решения солнцезащиты на групповых площадках; легковозводимые пляжные тенты, зонты, декоративные перголы, стойки и стенки с маркизами, постройки из облегченных сборных конструкций комплектной поставки, а также небольшие капитальные постройки, в том числе, решаемые в едином ансамбле с оградой и малыми формами участка.

1.1.19 В соответствии с образовательной программой каждого ДОУ, могут вноситься уточнения в решение элементов групповых площадок. Например, теневые навесы могут оборудоваться скамьями (и столиками) для занятий и игр на открытом воздухе, групповые площадки могут оборудоваться выполняемыми по индивидуальному заказу или серийно выпускаемыми комплектами физкультурно-игрового оборудования и т.п.

3.1.20 Общая физкультурная площадка площадью 200 м2 используется для единовременного занятия с одной группой детей, площадью 250 м2 - для занятий с двумя группами одновременно.

Планировка, организация и оборудование физкультурной площадки должны обеспечивать условия проведения с детьми утренней зарядки, подвижных игр с элементами спорта, физкультурных занятий, спортивных и игровых праздников.

На общей физкультурной площадке рекомендуется предусматривать зеленую лужайку для подвижных игр, кольцевую или прямую беговую дорожку, ямы для прыжков в длину и высоту, площадку для двухкомандных спортивных игр, зону с физкультурно-игровым оборудованием, гимнастическими и спортивными снарядами, а также "полосу препятствий",

3.1.21 На участках зданий Центров дошкольного воспитания, содержащих 8 и более детских групп детей 3-6(7) лет, следует размещать две физкультурные площадки общей площадью не более 400 м2 и дифференцировать их по видам игровой деятельности: одна - для подвижных игр с мячом (волейбола, футбола, баскетбола, а также городков или хоккея); другая - со стационарным физкультурно-игровым оборудованием, спортивными и игровыми снарядами для лазания, прыжков, равновесия и пр.

3.1.22 Применение стационарного физкулътурно-игрового оборудования, выполняемого по индивидуальному заказу, а также трансформируемых бассейнов необходимо согласовывать с органами Госсанэпиднадзора.

3.1.23 Предметно-пространственная среда групповых площадок ясельных и младших дошкольных групп должна обеспечивать различные виды деятельности детей, в связи с чем рекомендуется выделять зоны, оборудованные для игр с песком и водой, занятий по развитию речи, для сюжетных, дидактических и подвижных игр.

3.1.24 Групповые площадки детей дошкольного возраста допускается проектировать специализированными и тематическими. К специализированным относятся площадки:

для игр с песком и водой;

для игр строительным материалом;

для сюжетно-ролевых игр;

для подвижных игр;

для тихих творческих игр и занятий;

с крупноразмерными подвижными игрушками.

К тематическим: "Транспортная", "Театральная", "Строительная", "Приключенческая", "Зоологическая", "Сказочная", "Усадьба" и т.п.

Набор специализированных и тематических площадок на участке определяется заданием на проектирование или проектом.

3.1.25 Специализированные и тематические площадки закрепляются за соответствующими группами, но используются разными группами детей поочередно. Это разнообразит игровую деятельность детей, обеспечивает дополнительные стимулы физического и эмоционального развития.

3.1.26 Для обучения правилам дорожного движения и поведения пешеходов на участке следует создавать соответствующую предметно-пространственную среду, имитирующую дорожную сеть с улицами, тротуарами, переходами, перекрестками. Для этой цели используется вся территория участка с автомобильными проездами и дорожками, на которых производится разметка и установка знаков.

3.1.27 В составе участка ДОУ следует предусматривать кольцевую дорожку для катания на велосипедах, роликовых коньках, детских крупноразмерных педальных и аккумуляторных автомобилях, которую рекомендуется оснастить средствами для изучения правил дорожного движения (разметка, знаки).

Кольцевая дорожка может соединять групповые площадки

3.1.28 Важнейшим компонентом благоустройства участка является озеленение, которое должно составлять не менее 50 % его территории. При строительстве новых зданий необходимо максимально сохранять существующие зеленые насаждения.

3.1.29 Принципиальные схемы участков ДОУ в обычных и особых условиях их размещения показаны на рис. 1.

Примеры планировочных решений земельных участков различных типов ДОУ в нетрадиционных условиях представлены на рис. 2.

3.2 Планировка и оборудование элементов участка

3.2.1 Организация полноценных условий для воспитания и оздоровления детей на участке ДОУ зависит от качества и количества размещаемого игрового оборудования, способствующего физическому развитию детей и соответствующего их возрастным особенностям.

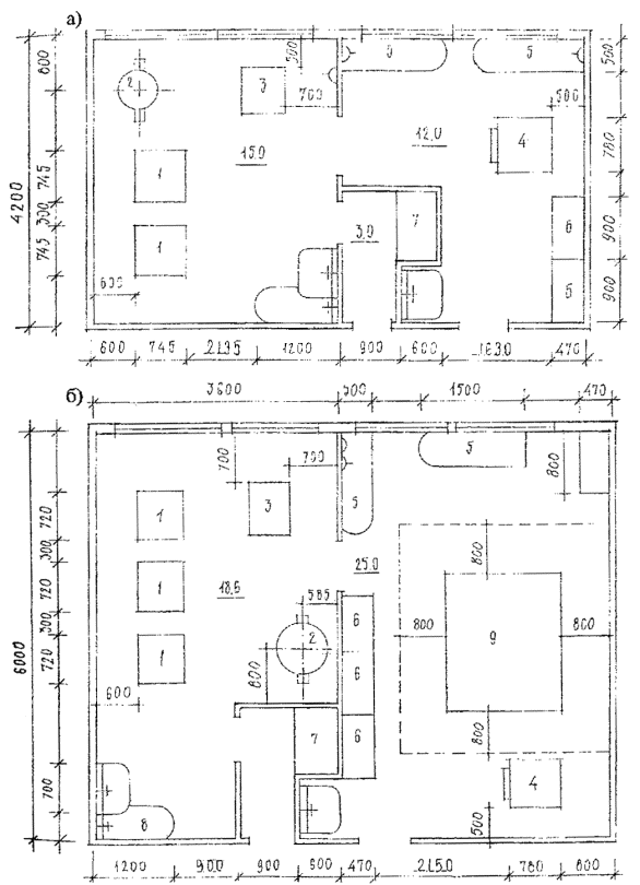
3.2.2 Каждая групповая площадка оборудуется в соответствии с возрастом детей. Рекомендуемые комплекты оборудования представлены на рис. 3-8, общая номенклатура и габаритные размеры оборудования в Приложении 1 (справочное).

3.2.3 Каждый вид оборудования может иметь различное проектное решение, отличающееся материалом, технологией изготовления, габаритами, дизайном. Вместо единичных элементов оборудования на каждой групповой или общей площадках могут применяться единые объемно-пространственные физкультурно-игровые комплексы.

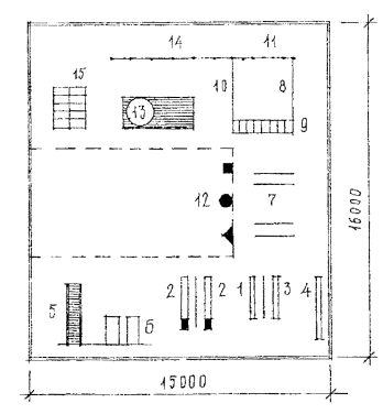
3.2.4 Оборудование общей физкультурной площадки рекомендуется применять в комплекте, разработанном НИИ дошкольного воспитания АПН. Примерное размещение оборудования на общей физкультурной площадке показано на рис. 9. Номенклатура и основные размеры оборудования представлены в Приложении 1 (справочное).

3.2.5 Размещать оборудование на групповых площадках следует в соответствии с эргономертическими данными и функциональными рабочими зонами элементов оборудования.

3.2.6 Теневой навес, предусматриваемый в составе каждой групповой площадки, не должен мешать двигательной активности детей, а также создавать "визуальную тень" для воспитателя, наблюдающего за детьми. Их ставят на границе групповой площадки, желательно, с ее северной стороны.

Навесы могут быть "сдвоенными" - на две смежные группы, а также могут быть сблокированы на 3-4 детские группы, но с условием сохранения групповой изоляции площадок.

Навесы для ясельных групп рекомендуется пристраивать к зданию.

3.2.7 Полы теневых навесов следует делать деревянными (желательно из палубного бруса или рейки).

Вертикальная планировка участка должна обеспечить защиту пола теневого навеса от затекания дождевой воды: отметка пола должна быть выше отметки земли.

3.2.8 Конструкции теневых навесов должны быть выполнены из современных экологически чистых материалов.

Применение асбоцементных труб, а также кровельных асбоцементных листов и шифера не допускается.

3.2.9 Внутри теневого навеса может находиться различная переносная встроенная мебель и оборудование: детские стульчики и столики, стол и стул для воспитательницы, встроенная или пристроенная низкая и длинная скамейка вдоль стены для детей, встроенные или пристроенные шкафы для игрушек.

3.2.10 На групповой площадке для детей 0-1 года непосредственно у теневого навеса устанавливается барьер для овладевания ходьбой из четырех секций, столик-барьер, манежи в рассеянной тени от зелени.

3.2.11 На групповой площадке для детей 1-2 лет размещается оборудование, на котором дети упражняются в ходьбе, беге, лазаний и других движениях. Для детей, только овладевающих ходьбой, необходим барьер из четырех секций. Кроме того, на участке рекомендуется предусмотреть горку-манеж, состоящую из лестницы с ограждением, площадки и ската с боковыми бортиками, оборудования для профилактики плоскостопия.

Оборудование расставляется по периметру площадки и среда зелени таким образом, чтобы воспитатель хорошо видел всех детей. Утрамбованная площадка должна оставаться свободной для подвижных и индивидуальных игр с колясками, каталками, машинами.

3.2.12 Обязательным элементом групповой площадки для детей 1-2 лет является песочница или песочный столик, с откидными бортиками для песочных изделий. Песочницы лучше делать приподнятыми от земли для игры стоя. В этом случае предусматриваются переносные скамеечки для игр с песком. Лучше применять песочницы из небольших секций, что удобно для смены загрязненного песка. Песочницы и песочные столики размещаются у деревьев или кустарника, дающих рассеянную тень.

3.2.13 На групповых площадках для детей 2-3 и 3-4 лет устанавливается оборудование, стимулирующее детей к упражнениям в основных движениях. Для упражнения в лазании младших детей рекомендуется лесенка-стремянка высотой 1 м, для более старших - вертикальная лесенка (гимнастическая лестница) высотой 2 м.

Для упражнения в равновесии устанавливаются столбики одинаковой высоты, балансиры. Для забрасывания мяча в горизонтальную цель можно использовать корзину, а в вертикальную обруч, прикрепленный к гимнастической стенке.

Для упражнения в пролезании используются дуги, арки, тоннели.

В оборудование площадок входят разнообразные качалки и качели, позволяющие развивать вестибулярный аппарат и чувство равновесия. Качалки могут быть одно-двухместные, простые и фигурные. Качели должны соответствовать росту детей: при росте 80, 90, 100 см сидение качелей устанавливается на расстоянии 0,17; 0,20; 0,24 м от земли.

3.2.14 На групповых площадках для детей 2-3 и 3-4 лет необходимо создавать условия для спокойных игр: строительных, игр с песком, куклами, мелкосборными конструкторами, крупными игрушками. Следует устраивать песочные дворики, которые могут быть разнообразной формы и легко вписываться в планировку участка. Песочный дворик располагают таким образом, чтобы он обязательно частично освещался солнцем. Желательно иметь тент-зонт.

Для игр с водой удобны надувные чаши из пластика (переносные); из строительных и гидроизоляционных материалов можно выполнить небольшие ванны-корытца и канальчики - для игры с корабликами и пр.

3.2.15 Для сюжетно-ролевых игр требуется легкое переносное оборудование: ажурные домики, строительный конструктор, декоративные объемные фрагменты ситуаций ("Джунгли", "Замок", "Ковбойская деревня", Полицейская станция", "Аэродром", "Логово пиратов" и пр.).

В зимнее время на участке создаются снежные горки или используются горки высотой 1,2 - 1,5 м. Наверху горки должна быть ровная площадка 1,2х1,2 м, чтобы установить санки и сесть на них. Скат для малышей должен быть пологий, расширенный книзу.

3.2.16 На групповых площадках для детей 4-6(7) лет должны быть созданы условия для разнообразной деятельности детей: совершенствования основных движений, закрепления конструктивных навыков развития трудовых навыков; для сюжетно-ролевых игр.

Необходимо не только правильно подобрать оборудование и рационально разместить его на участке, но и определить места для игр, которые требуют специальных условий.

При применении на групповой площадке физкультурно-игрового оборудования, предполагающего возможность залезания (перелезания) ребенком на высоту более 1м, под таким оборудованием внизу натягивается защитная, подстраховывающая от удара при падении, сетка.

3.2.17 Старшим дошкольникам доступны игры спортивного характера (городки, кегли, серсо, бадминтон). Для игр в городки выбирается площадка длиной 4-5 м. В кегли можно играть на площадке для городков. На групповой площадке детей 6-7 лет можно создать условия для игры в настольный теннис.

Укреплению вестибулярного аппарата детей и совершенствованию чувства равновесия помогают разные движущиеся устройства: качели, балансиры, бумы-балансиры. Для строительных игр необходим крупный строительный материал: кубы, бруски, цилиндры, призмы, дуги. Для спокойных игр устанавливается песочный дворик. Для игр с водой устраиваются короткие бетонированные ручейки, каналы. Могут устанавливаться специальные фирменные столики для мелкосборных конструкторов - LEGO и т.п., напольные и настольные трассы для механических и радиоуправляемых машинок и др.

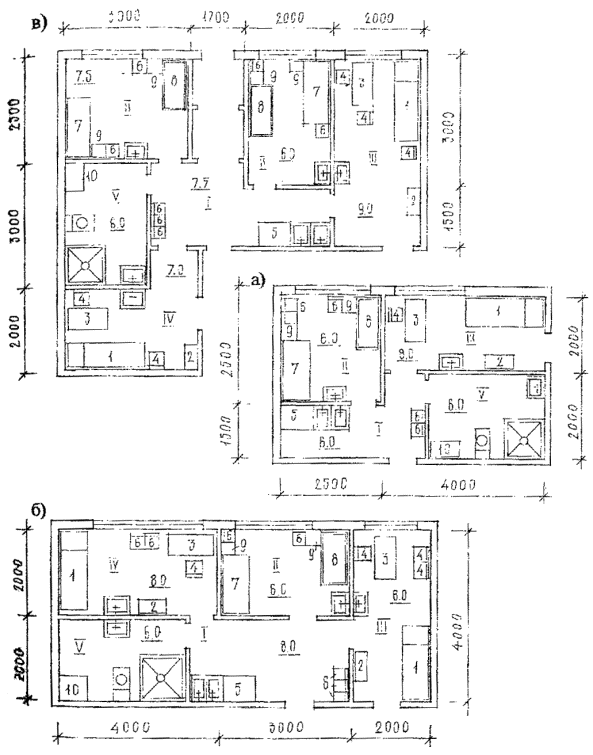
Примеры планировки и оборудования групповых площадок для различных возрастных групп детей показаны на рис. 3-8.

Примечание: номера экспликации к рисункам даны в соответствии с Перечнем оборудования, малых архитектурных форм и элементов благоустройства участков (Рекомендации по размещению, планировке и оборудованию участков дошкольных учреждений, М., ЦНИИЭП учебных зданий, 1984 г.)

3.2.18 Физкультурная площадка по своей организации и оборудованию является наиболее сложным и дорогостоящим элементом участка дошкольного учреждения. На ней должны быть; беговая дорожка, яма для прыжков, травяное поле для подвижных игр, спортивная площадка для двухкомандных игр, зона для размещения стационарного физкультурно-игрового, гимнастического и спортивного оборудования.

Беговая дорожка может быть замкнутой и проходить по периметру площадки или отрезком прямой. Длина кольцевой беговой дорожки может быть 100 м, а отрезка прямой - 30 м, ширина - 1,5-2 м.

Для покрытия беговой дорожки используются специальные смеси или современные синтетические покрытия. Применение асфальтового покрытия не допускается.

3.2.19 Около ямы для прыжков в длину и в высоту, размеры которой 2-4 х 1,5-2 м и глубина 0,3 - 0,4 м, должна быть дорожка для разбега длиной 8-14 м. По краям ямы устанавливается деревянный бортик, который для безопасности опускают ниже уровня земли на 0,01-0,02 м. Заполняется яма мелкозернистым песком, смешанным с опилками. На расстоянии 0,2-0,3 м от ямы на уровне земли укладывается деревянная планка для отталкивания шириной 0,2 м. Для прыжков в высоту на расстоянии 0,1 -0,2 м от края ямы (в сторону заполнения) вкапываются две вертикальные стойки, на которые кладется рейка.

3.2.20 Спортивная площадка для двухкомандных игр имеет размеры 10х8, 9х7 м; зеленая лужайка для подвижных игр с элементами спорта от 60 до 160 м2.

Площадка может иметь покрытие из естественного грунта или спецсмеси. По коротким сторонам площадки для игры в баскетбол устанавливаются деревянные щиты 1,0х0,8 м на металлических стойках. К щитам на высоте 1,8-2 м от земли закрепляются баскетбольные кольца с сетками.

Для игры в волейбол и бадминтон на расстоянии 0,5 м от боковых линий площадки устанавливаются металлические стойки, на которые натягивается сетка на 0,2 м выше поднятой вверх руки ребенка.

В спортивном ядре можно организовать площадку для игр в городки, кегли, серсо. На городошной площадке, размеры которой 7х10 м или 8х12 м, расчерчиваются: площадка "города", линии "кон" и "полукон". Площадка "города" может иметь грунтовое, бетонное или блочное покрытие. На расстоянии 2-3 м от нижней линии "города" наносится линия "полукон", на расстоянии 4-6 м - линия "кон". В 1,5-2м от верхней линии "города" устанавливается заборчик или сетка для перехвата бит.

3.2.21 Зеленая лужайка может быть произвольной конфигурации. На лужайке можно установить переносные воротца - 1,9х0,7 м для игр в футбол, хоккей; теннисный стол размерами 2,5х1,3 м и высотой 0,7 м; по краям лужайки - скамеечки для отдыха и болельщиков.

3.2.22 Зону с гимнастическим оборудованием и спортивными снарядами желательно размещать рядом с зеленой лужайкой. Рекомендуется устанавливать пространственно-стержневые конструкции и игровые гимнастические комплексы, в структуру которых входят стойки, перекладины, канат, гимнастическая стенка, сетка, наклонный бум, горизонтальные площадки и наклонные спуски.

Может применяться иное оборудование, способствующее укреплению костно-мышечной системы ребенка, предназначенное для лазания, балансирования, подлезания, пролезания, подтягивания, отжимания, развития меткости. Оборудование должно иметь сертификаты, - гигиенический и соответствия.

Из отдельно стоящих элементов оборудования рекомендуются: горки и столбики для спрыгивания из отрезков бревен разной высоты; горки-ступеньки из досок, уложенных на металлические стойки высотой 0,2-1,0 м; гимнастические стенки из 5-6 пролетов шириной по 0,7 м каждый и высотой 1,5-2,5 м; бревна-балансиры, которые укладываются непосредственно на землю или металлические опоры высотой 0,35-0,5 м, параллельно; по два в ряд, в "цепочку"; разновысокие перекладины и др.

3.2.23 Для упражнений в подлезании на площадке устанавливаются прямоугольные или арочные воротца разной высоты - 0,6-1,0 м, выполненные из гнутых металлических стержней или железобетонных элементов. Они размещаются в ряд или группами, образуя тоннели, лабиринты.

Для развития меткости используются стенки для игры в мяч и экраны для метания в цель, которые дополняются кольцами, корзинами, сетками для забрасывания мяча.

3.2.24 Над физкультурной площадкой, желательно предусматривать тентовое покрытие для полного или частичного ее затенения от солнца. Для этого по краям зеленой лужайки или спортивного ядра устанавливаются металлические штанги, на которых крепят тентовое покрытие. У физкультурной площадки можно предусмотреть устройство душа.

3.2.25 Конструктивное решение монтируемого оборудования должно обеспечивать безопасность: снаряды следует устанавливать на прочном железобетонном фундаменте, под снарядами высотой до 1м - укладывать песчаную подушку слоем 0,3 м, у снарядов выше 1м - предусматривать подстраховывающее устройство в виде натянутой горизонтальной сетки. Сетка натягивается на раму, по типу батута, охватывая площадь под снарядом радиусом (расстоянием от конфигурации снаряда до края сетки) не менее 1,2 м. Высота установки сетки - 0,6 м при ее натяжении, не позволяющем, в случае падения ребенка с высоты 2 м, коснуться поверхности земли.

3.2.26 Площадка по обучению правилам поведения пешеходов на улице в своем составе может иметь имитируемые улицы, тротуары, перекрестки, сложные развязки. Для развития у детей зрительного восприятия кодовых элементов города, на улицах устанавливаются светофоры, дорожные знаки и указатели, в местах перехода наносятся "зебры", обозначения "переход", "стоп", "стоянка". Ширина проезжей части "улицы" - две встречные "машины" - 2,0 м, ширина тротуаров - 0,6 -1,0 м. В составе автострады можно предусмотреть "гаражи", "автостоянки", "автозаправочную станцию", "Пост ГАИ" и пр.

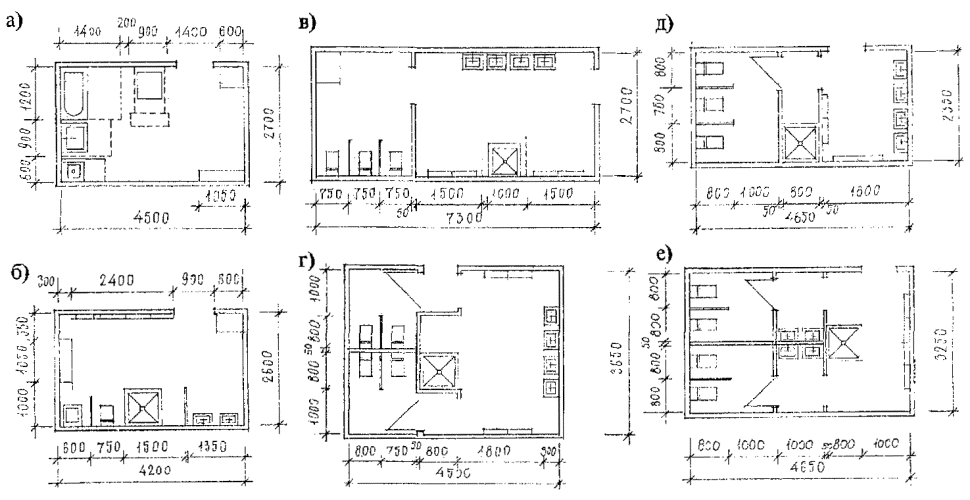
Пример планировки и оборудования площадки для обучения детей правилам дорожного движения показан на рис. 10.

3.2.27 Покрытие "улиц" и "тротуаров" автогородка допускается выполнять из асфальта или бетона с цветным заполнителем. На серое асфальтовое покрытие можно нанести слой цветной полимерной мастики. Цветом можно выделить важные моменты игры, используя для этого локальные пятна красного, желтого, зеленого цвета.

3.2.28 Хозяйственная площадка оборудуется мусоросборниками, может иметь хозсарай с местом для хранения садового и уборочного инвентаря. Однако, последнее является принадлежностью в большей степени загородных территорий. В городе хозкладовую и кладовую садового инвентаря следует предусматривать в здании.

Хозплощадка одновременно используется как разворотная площадка для грузового автомобиля, поэтому в габаритах разворота не следует размещать хозяйственное оборудование или хозяйственные постройки.

3.2.29 Примеры планировки и оборудования групповых и общих специализированных (лечебно-гимнастических) площадок для детей с нарушениями развития (компенсирующих детских групп) представлены на рис. 12-16.

3.3 Благоустройство в озеленение

3.3.1 По периметру участка, как правило, устраивается зеленая защитная полоса, способствующая улучшению воздушной среды, снижению уровня шума и скорости ветра. Ширина полосы - не менее 1,5 м, а со стороны улицы - не менее 6м.

Ветрозащитные полосы могут быть в виде одно-двухрядной или групповой посадки деревьев с расстоянием между деревьями не менее 4м.

При ориентации окон на юг, юго-восток и юго-запад, линия посадки должна быть удалена от здания на расстояние не менее двух высот полного роста дерева для лиственных пород и пяти высот - для хвойных. При восточной ориентации деревья могут высаживаться на расстоянии одной высоты полного роста дерева.

3.3.2 При озеленении допускается посадка фруктового сада. Не разрешается применять деревья и кустарники с ядовитыми плодами, колючками или засоряющие территорию при цветении, а также привлекающие большое количество насекомых.

3.3.3 Группы деревьев и кустарника рекомендуется располагать на открытом газоне, в местах пересечения дорожек, у групповых площадок, возле общей физкультурной площадки и в других местах, требующих затенения.

В зависимости от общего архитектурного решения всего ансамбля здания ДОУ, характера окружающей архитектуры и организации благоустройства, высадка деревьев и кустарника, их оформление (подстрижка) могут носить стильный, регулярный характер, однако в любом случае следует стремиться организовать рассеянную тень от деревьев над игровым пространством для детей.

3.3.4 В рекомендуемый ассортимент зеленых насаждений входят деревья: липа, береза, клен, сосна, ель, лиственница, ясень, вяз, рябина; кустарник: кизильник, сирень, жасмин, вяз кустовой, клен татарский.

Пример ассортимента зеленых насаждений (для ДОУ на 10 групп) предложен в Приложении 2.

3.3.5 Для обеспечения необходимых условий инсоляции и солнцезащиты на групповых площадках рекомендуется создавать две контрастные по режиму радиационные зоны - открытую и затененную.

Для изоляции групповых площадок применяется зеленая изгородь из кустарника в одну полосу шириной 0,75-1,0 м.

Расстояние между кустами в зеленой изгороди зависит от породы растений и величины их кроны. Рекомендуемая высота зеленой изгороди - 1,0-1,25 м; при изоляции хоздвора она может быть увеличена до 2,5м.

3.3.6 Важнейшим элементом озеленения является газон. Для его устройства применяется смесь трав, наиболее устойчивая к вытаптыванию: мятник, тимофеевка, клевер. Соотношения смеси трав для газонов приведены в Приложении 3.

3.3.7 Стрижка газона - обязательное условие его содержания; она придает эстетичный вид участку, озонирует его.

3.3.8 На групповых площадках детей от 0 до 2 лет должно быть сплошное травяное покрытие, за исключением подходов к теневым навесам и мощения вокруг песочниц.

Физкультурная площадка может быть полностью засажена травой (кроме беговой дорожки и площадки для прыжков).

3.3.9 На групповых площадках для детей старше трех лет кроме травяного применяется покрытие из утрамбованного грунта площадью не более 60 м2. Гравийное покрытие (толщиной не менее 0,15 м, с уклоном 1 -2 %) сверху засыпается слоем глины с отсевами гравия и несколько раз прокатывается.

Твердое плиточное покрытие устраивают перед теневыми навесами и скамьями, т.к. трава в этих местах быстро вытаптывается. Вокруг песочных двориков укладывают плиты шириной 1,0-1,5 м.

3.3.10 Обязательным условием благоустройства является покрытие подъездов к участку, а также мощение дорожек. Для устройства твердого покрытия на площадках и дорожках можно использовать природные или близкие к ним материалы: кирпичную крошку, бетонную плитку, изоловые покрытия, цветной бетон с добавками или нанесенным слоем цветной мастики, которая дает яркую однотонную поверхность.

3.3.11 Применять асфальтовое покрытие для групповых площадок, общей физкультурной площадки, специализированных площадок для игр и занятий с детьми (кроме площадки для изучения правил дорожного движения) - не допускается.

Допускается применение асфальтового покрытия для пешеходных дорожек, велосипедной дорожки.

Хозяйственная площадка, площадка для мусоросборников, грузовой автомобильный проезд к зданию должны иметь асфальтовое покрытие.

3.3.12 Около групповых площадок и здания могут быть высажены многолетние или однолетние декоративные цветы, не требующие сложного ухода, разнообразные по цвету и запаху. Цветы нужно подобрать так, чтобы они, сменяя общую цветовую гамму, цвели в течение всего сезона.

3.3.13 В огороде-ягоднике высаживают овощи и ягоды. Ширина грядок должна быть 0,6-0,7 м, рабочие дорожки между грядками - 0,4 м, направление грядок - широтное. Маршрутная дорожка при подходе к огороду ягоднику - шириной 1 м.

3.3.14 При благоустройстве участка требуются мероприятия по отводу дождевых и вешних вод с территории, а также подводка воды к плескательному или плавательному бассейну. Прокладка труб должна предусматриваться подземной.

3.3.15 На участках ДОУ устраивается электрическое освещение. Групповые площадки, вход на участок и входы в здание должны быть освещены. Рекомендуется освещать лыжню, зимний каток, другие площадки, которыми пользуются зимой в темное время суток.

Столбы с осветительной арматурой ставятся у площадок и возле пешеходных дорожек. Для освещения входов в ДОУ применяется наружная осветительная арматура, крепящаяся к стенам или элементам крылец у входов в здание.

Может быть применено декоративное освещение - фасадов здания или пейзажных фрагментов участка.

3.3.16 Возможные технические решения разных типов твердых покрытий на участках показаны на рис. 17-18; примеры посадки кустарников и решения живой изгороди - на рис. 19; рекомендуемые приемы посадки деревьев - на рис. 20.

4. ТРЕБОВАНИЯ К ОБЪЕМНО-ПЛАНИРОВОЧНЫМ РЕШЕНИЯМ

4.1 Функциональная структура дошкольных учреждений

4.1.1 Функциональную структуру ДОУ определяет принятая в учреждении Программа воспитания и обучения. В сегодняшних условиях педагогическим коллективам предоставлена свобода выбора программ. Это может быть Программа, разработанная как в государственных системах образования, так и собственная, авторская. Однако при проектировании ДОУ следует учитывать ряд особенностей режима, дня в детских группах и санитарно-гигиенических требований, имеющих общее значение,

4.1.2 Кормление детей в ДОУ осуществляется одновременно во всех группах 3-4 раза в день. Как правило, в одно и то же время во всех группах проводятся фронтальные занятия со всей группой детей одновременно (в первой половине дня, сразу после завтрака). После этих занятий все группы выводятся на прогулку (на групповые площадки земельного участка).

4.1.3 В разновозрастных группах или в группах детей младшего возраста (до 3-4 лет) дневной сон детей может быть для одних детей двухразовым, для других - одноразовым. В этой связи целесообразно проектирование спальни в виде двух сообщающихся пространств, с сохранением общей визуальной связи между ними. Также в разных режимах могут проходить занятия по подгруппам детей. При этом, если в составе групповой ячейки не предусматривается специальное помещение для занятий по подгруппам, следует организовать соответствующее зонирование площади групповой, чтобы с помощью столиков с защитными кранами, ширм, барьеров-перегородок, стульев с высокими спинками и т.п. выделить автономные зоны, предназначенные для занятий по подгруппам.

4.1.4 В компенсирующих ДОУ (компенсирующих группах в ДУ общего типа) программы общеразвивающие и общеоздоровительные сочетаются с лечебно-восстановительными мероприятиями, коррегирующими основной дефект развития или компенсирующими утраченные способности.

4.1.5 Компенсирующие ДОУ следует проектировать с учетом создания необходимых условий для:

обучения и воспитания детей с аномалиями развития по специальным программам и учебным планам;

коррекции недостатков физического, психического и интеллектуального развития в процессе специальных занятий по исправлению дефектов развития, а также лечебно-профилактических мероприятий,

4.1.6 Следует иметь ввиду, что в компенсирующих ДОУ или в компенсирующих группах специальные занятия проводятся с каждым ребенком по очереди непрерывно в течение дня и независимо от остальных мероприятий в группе; ребенка на занятия могут пригласить с обеда или с прогулки. Это обстоятельство обусловливает определенные требования к размещению и планировочному решению компенсирующих групповых ячеек: их целесообразно проектировать в одном уровне, компактными, с удобной связью с комнатой коррекции и с групповой площадкой на участке.

Если комната коррекции предусматривается не в составе групповой ячейки, при комнате коррекции следует предусматривать детскую раздевальную верхней одежды на 4-6 мест.

4.1.7 Классическая функциональная модель ДОУ общего типа состоит из набора групповых ячеек, одного или двух залов музыкальных и гимнастических занятий, возможно, иных специализированных помещений для работы с детьми, а также сопутствующих групп помещений (медицинские, пищеблок, построчная) и служебно-бытовых помещений (администрации, персонала, туалеты, кладовые).

4.1.8 В ДОУ общего типа степень групповой изоляции должна быть достаточно высокой. В функциональном отношении каждая групповая ячейка в здании автономна. Детские группы поочередно и организованно выводятся в залы для музыкальных и гимнастических занятий, иные специализированные помещения или на участок для прогулок или занятий на общей физкультурной площадке. Готовую пищу из пищеблока персонал поставляет непосредственно в групповую ячейку (в буфетную), где происходит порционирование с использованием комплекта столовой посуды. Каждая группа имеет собственный комплект столовой посуды, мытье и хранение которой осуществляется в буфетной.

4.1.9 Для детей старшего возраста (4-7 лет) могут применяться так называемые сдвоенные групповые ячейки, которые характеризуются наличием общих помещений служебно-бытового назначения (комната персонала, туалет персонала, помещение для сушки одежды), а также помещений для детей, которые двумя группами используются поочередно (комната для занятий по подгруппам, комната коррекции, комната психологической разгрузки, функциональные игровые модули - "Модуль-мастер", "Модуль-театр", "Модуль-гладиатор" - физкультурно-игрового оборудования), а также холлы, открытые террасы или остекленные веранды, входящие в планировочную структуру сдвоенных групповых ячеек.

4.1.10 Принципиальная модель функциональной структуры ДОУ заключается в том, что групповые ячейки распределяются по периферии здания, имея хороший фронт естественного освещения, а специализированные и сопутствующие помещения, для удобства пользования, размещаются в центре здания, при сохранении удобных и коротких связей с каждой групповой ячейкой.

4.1.11 Медицинские помещения в ДОУ на 4-7 групп представлены медицинской комнатой (12 м2), совмещающей функции медицинского кабинета (педиатра) и процедурного (прививочного) кабинета. В ДОУ на 8-10 групп предусматриваются два помещения: медицинская комната (10 м2) и процедурный кабинет (8 м2). В состав медицинских помещений входит изолятор, содержащий 1-2 палаты на 1-2 места каждая, приемную изолятора, оборудуемую мойкой и навесным шкафом для хранения посуды, а также туалет, который, как правило, в том числе используется для приготовления дезрастворов.

4.1.12 Пищеблоки в ДОУ общего типа предполагаются работающими на сырье и содержат загрузочную, кладовые продуктов, кухню и раздаточную, моечную кухонной посуды. В зданиях крупной вместимости (8-10 групп) в составе кухни выделяется холодный цех.

Построчная в ДОУ работает из расчета старки 1/3 общего объема стираемого белья, при стирке остального белья в городских прачечных.

4.1.13 Укрупнение зданий (увеличение числа детских групп) в определенной степени повышает эффективность использования его специализированных и сопутствующих помещений.

4.1.14 В малых ДОУ нет зальных помещений (их включение не предусмотрено МГСН 4.07-96 как обязательное). Составы и площади специализированных и сопутствующих помещений могут быть сведены к минимуму: медицинская комната используется для временного размещения заболевшего ребенка, комната персонала (общая), кабинет-оффис для заведующего (как правило, совмещающего обязанности воспитателя) и приема посетителей, кладовая.

4.1.15 Комплексы дошкольного воспитания преследуют цель сохранить психологический комфорт малых ДОУ одновременно с эффективностью централизованного использования помещений для работы с детьми, бассейна, зала-арены, и пр. а также сопутствующих помещений - пищеблока, прачечной, медицинского блока, помещений коррекции, которые, могут быть лучше оснащены и иметь более развитый состав.

4.1.16 Если в КДВ предусматривается централизованный пищеблок, он работает на основе автотранспортной доставки готовой пищи (например, в специальных термоконтейнерах); централизованная прачечная - на основе автотранспортной доставки белья.

4.1.17 По части компенсирующей деятельности, коррекции и медицинского обслуживания в групповых отделениях КДВ - медперсонал и узкие специалисты осуществляют работу с детьми непосредственно в групповых отделениях - в медицинской комнате и комнате коррекции.

4.1.18 По статусу дошкольное образовательное учреждение, размещаемое непосредственно в здании ЦДВ - это может быть ДОУ общего типа с одним или несколькими приоритетными направлениями развития детей, а также Центром развитии ребенка с оказанием педагогических, медицинских услуг, услуг по коррекции и психологической помощи в развитии, поддержке и оздоровлении всех воспитанников.

4.1.19 Достаточно эффективными в экономическом отношении являются прогулочные группы, не содержащие пищеблока, постирочной, не имеющих спален в групповых ячейках. В их составе предусматривается помещение для подстирки и функциональная зона кухни, где можно разогреть чай. Если для размещения прогулочных групп используется специально выделенная незаселенная жилая квартира, для этих целей используются санитарный узел и кухня жилой квартиры.

4.1.20 В дежурных группах кратковременного присмотра дети могут находиться от нескольких часов до нескольких суток (группы могут быть дневные и круглосуточные). Дети в них образуют разновозрастные - детские группы с постоянно меняющимся составом и численностью детей.

Организация питания и стирки белья в дежурных группах кратковременного присмотра должна строиться на основе договоров с предприятиями общественного питания или продовольственных торговых предприятий по поставкам полуфабрикатов или готовых блюд. Эти условия на стадии разработки задания на проектирование должны быть предварительно согласованы с органами Госсанэпиднадзора. Стирка белья может осуществляться в городских прачечных, а также своими силами в бытовых стиральных машинах.

4.2 Общие требования к функционально-планировочной организации зданий

4.2.1 Все групповые ячейки (набор помещений основного пребывания детей, принадлежащий только одной детской группе) в ДОУ должны проектироваться универсальными. Для этого необходимо в составе групповой ячейки иметь пять помещений (раздевальная, групповая, спальня, буфетная и туалетная) с соответствующими площадями, определяемыми МГСН 4.07-96. Соответствие антропометрическим и возрастным особенностям детей, программным требованиям к детским группам разного возраста и с различными принципами комплектации по возрастам (одно-, двух- или трехвозрастные) в универсальных групповых ячейках достигаются, главным образом, подбором и установкой санитарно-технических и осветительных приборов, мебели и оборудования. Сюда же относится оборудование, обеспечивающее трансформацию планировочного решения отдельных помещений - это глухие или светопрозрачные трансформируемые перегородки, ширмы, перегородки-барьеры.

Целесообразность иметь групповые ячейке в зданиях ДОУ универсальными определяется динамикой соотношения детских групп детей разного возраста в процессе эксплуатации здания, а также возможностью, определяемой Типовым положением о дошкольном образовательном учреждении, по желанию родителей, в соответствии с конъюнктурой спроса, менять приоритетные направления работы с детьми - как в отдельных группах, так и во всем дошкольном учреждении в целом.

4.2.2 По условиям комплектации детских групп (Типовое положение о государственном дошкольном образовательном учреждении), они могут быть одновозрастными, с детьми, диапазон возраст которых не превышает одного года, и разновозрастными - с возрастным диапазоном в 2 и 3 года, т.е. двухвозрастные и трехвозрастные группы. При принятии решения о создании в проектируемом детском саду разновозрастных групп, требуются специальные предварительные разработки по режиму, уходу за детьми, оснащению мебелью и санитарно-техническим оборудованием групповых ячеек, при соответствующем согласовании с органами Госсанэпиднадзора.

4.2.3 Детские группы для детей до 3-х лет традиционно называются ясельными.

В крупных ДУ общего типа могут предусматриваться по 1-2 ясельные группы - для детей до 3-х лет. Как правило, это бывают группы детей от 1,5-2 до 3 лет.

В составе КДВ могут предусматриваться отдельные ясельные отделения, (групповые отделения на 2-4 ясельные группы). В жилых комплексах при повышенной селитебной плотности детские ясли могут предусматриваться как самостоятельные учреждения.

В случаях, когда социологический прогноз обещает устойчивый спрос на ясельные группы - групповые ячейки в проектируемых или реконструируемых зданиях могут предусматриваться меньшей площади (из расчета на 15 мест).

В остальных случаях групповые ячейки по составу и площадям помещений рекомендуется проектировать универсальными - способными вместить как ясельную группу, так и группы детей от 3-х лет.

4.2.4 Специализация групповых ячеек в соответствии с приоритетными направлениями педагогических программ может достигаться включением при проектировании в их состав дополнительных помещений. Компенсирующие групповые ячейки также могут использоваться в качестве специализированных: для детей с нарушениями слуха, зрения, опорно-двигательного аппарата, интеллектуального развития.

4.2.5 Группы детей могут быть полнокомплектными (соответствующими нормативам наполняемости детских групп) и малокомплектными (ниже нормативной наполняемости детских групп). Сокращение наполняемости детских групп осуществляется ДОУ как дополнительная платная услуга населению.

В муниципальных ДОУ общего типа (не специализированной компенсирующей направленности) не допускается проектирование групповых ячеек с площадями помещений ниже нормируемых в МГСН 4.07-96 "Дошкольные учреждения". Эти здания должны предусматриваться для размещения полнокомплектных детских групп.

4.2.6 Здания ДОУ со специализированной компенсирующей направленностью:

для детей с нарушением слуха (глухих и слабослышащих);

для детей с нарушением зрения (слабовидящих; с косоглазием и амблиопией);

для детей с нарушением опорно-двигательного аппарата;

для детей с нарушением интеллекта;

для детей с задержкой психического развития;

для детей со сложными дефектами (2 и более дефекта) - формируются из групповых ячеек, рассчитанных по площадям помещений на размещение малокомплектных детских групп, равных 0,5 стандартной полнокомплектной детской группы, т.е. из расчета на 10 мест в каждой групповой ячейке. В соответствии с этим определяется количество единиц индивидуальной детской мебели, оборудования, сaнитapнo-теxничecкиx приборов.

4.2.7 Компенсирующее ДОУ для детей:

с нарушениями речи;

с туберкулезной интоксикацией;

часто болеющих;

а также для детей с иными отклонениями в развитии - имеют вместимость детских групп в этом случае 15 детей, но групповые ячейки в таких зданиях по составу и площадям помещений проектируются как для полнокомплектной детской группы (на 20 мест).

4.2.8 Здания ДОУ компенсирующей направленности, проектируемые с малокомплектными групповыми ячейками, в свою очередь, целесообразно делать универсальными - способными разместить ДОУ с разными направлениями компенсирующей деятельности, указанными в п. 4.2.6. При изменении компенсирующей направленности в здании ДОУ компенсирующего типа, меняется назначение и оборудование комнаты коррекции, входящей в состав каждой групповой ячейки, а также общих помещений в здании, предназначенных для компенсирующей и коррекционной работы с детьми всех детских групп.

4.2.9 В ДОУ общеразвивающего профиля, с приоритетным направлением развития художественно-эстетическим, интеллектуальным, физическим и т.д. в составе групповой ячейки целесообразно предусмотреть помещение для занятий детей по подгруппам, а также помещение (или зону) для индивидуальной работы с ребенком. Функциональная структура такой ячейки может быть дополнена специализированным модулем в зависимости от конкретных направлений приоритетной работы с детьми:

"Модуль-мастер" (для изобразительного творчества - лепки, живописи, рисования мелом, углем, склеивания моделей и т.п.);

"Модуль-театр" (сцена со сменными декорациями);

"Модуль-гладиатор" (пространственная структура с закрепленным спортивно-игровым оборудованием).

В случае унификации габаритов функционально-пространственных модулей, они могут меняться в разных групповых ячейках, обеспечивая разнообразие и более эффективные условия использования затраченных средств.

4.2.10 Функциональная модель ДОУ общего типа представляет собой набор групповых ячеек (от 4 до 10) и общих для всех детей специализированных (специально оборудованных) помещений. Это, прежде всего, универсальный зал для музыкальных и гимнастических занятий с кладовой, а также кружковые помещения с кладовыми и комнатой преподавателей, бассейн со вспомогательными и техническими помещениями. Бассейн в ДОУ предусматривается, как правило, с ванной площадью от 20 до 30 м2.

4.2.11 Помещения для музыкальных и гимнастических занятий являются обязательным элементом ДОУ общего типа и предусматривал в виде одного зала площадью 100 м2 в зданиях ДОУ вместимостью от 4 до 7 детских групп и двух залов - в зданиях ДОУ вместимостью 8-10 групп.

Когда в здании предусматривается два зала, они оба могут проектироваться как универсальные - для музыкальных и гимнастических занятий каждый (площадью по 75 м2), или как специализированные - для музыкальных занятий (не более 50 м2), для физкультурных занятий (не более 100 м2). Целесообразность иметь два одинаковых универсальных зала в ДОУ иногда определяется удобством пользования при поэтажном их размещении. Два одинаковых зала удобно иметь также в случае, если здание проектируется двумя автономными блоками (например, соединяемыми протяженным переходом).

4.2.12 Зал для музыкальных и гимнастических занятий, кроме основного назначения, используется еще для проведения праздничных утренников, детских спектаклей. По желанию заказчика в залах, в связи с этим, можно предусматривать стационарно оборудуемые места для зрителей и приподнятую над уровнем пола эстраду, (площадью не более 25-30 м2). Следует иметь ввиду, что в зале могут находиться единовременно не более двух детских групп и гости - родители. Число стационарных мест для зрителей рекомендуется в пределах 80.

4.2.13 В ДОУ общего типа целесообразно предусматривать универсальное кружковое помещение площадью 35- 55 м2. В разных ситуациях оно может использоваться как универсальное классное помещение, помещение для занятий изобразительным творчеством (рисунок, лепка, аппликация, ручной труд), включенным в программу дошкольного воспитания. Это помещение может также использоваться для занятий детских кружков и секций - иностранного языка, подготовки детей к школе, изо, ритмики и т.п., а также для просмотра диа- видео- и телепрограмм, для компьютерных игр.

4.2.14 Бассейн в ДОУ является эффективным оздоровительным фактором. Целесообразность включения бассейна в состав помещений ДОУ возрастает в зданиях крупной вместимости.

В ванне бассейна с зеркалом воды 20-30 м2 одновременно может заниматься группа детей не более 10-12 человек (с одним тренером-инструктором по плаванию), что в муниципальных ДОУ соответствует 0,5 стандартной группы детей. Как правило, занятия в бассейне проводятся с детьми старше 3-х лет. При бассейне может предусматриваться дополнительное помещение (или площадка в зале с ванной бассейна) площадью 36 - 54 м2 - для разминки и подготовительных занятий (сухого плавания).

4.2.15 Бассейн с ванной 60-75 м2 в здании ДОУ общего типа может использоваться для одновременных занятий с двумя подгруппами детей по 10-12 человек каждая (с двумя тренерами). Применение в ДОУ общего типа бассейна с ванной площадью 60-75 м2 должно согласовываться на стадии разработки задания на проектирование с местными органами образования.

4.2.16 Бассейн в ДОУ может использоваться также для обучения плаванию детей прилегающих жилых территорий по согласованию органами образования и санэпиднадзора, при условии обеспечения автономного доступа в бассейн.

4.2.17 В малых ДОУ вместимостью 1- 3 детские группы допускается раздевальные всех групп размещать при входной части здания, т.е. выходящими в холл, вестибюль или коридор, но с выделением технологическим оборудованием (шкафами для верхней одежды) индивидуальных для каждой группы зон, которые не должны быть проходными для детей из других групп.

4.2.18 Общими для всех групп в малых ДОУ целесообразно предусматривать дополнительные помещения групповой ячейки: комнат персонала с туалетом (может быть увеличена до 10-12 м2), помещение для занятий по подгруппам (или класс для занятий), помещение для индивидуальной работы с ребенком (или комната коррекции). Общими могут также проектироваться комната психологической разгрузки для детей ("Домашний уголок" или комната сказок), ванна-бассейн, остекленная веранда, открытая терраса или терраса-солярий. Общими, при условии поочередного использования разными детскими группами, могут предусматриваться пространственные тематические модули: "Модуль-мастер", "Модуль-театр", "Модуль-джунгли", "Модуль-замок" и т.п.

4.2.19 В качестве общего для всех групп помещения в малых ДОУ может предусматриваться универсальная комната площадью от 18 до 75 м2, используемая для просмотра диа-, теле- и видеопрограмм, ручного труда, как зал для музыкальных и гимнастических занятий (при площади 50-75 м2), а также для занятий детских кружков и секций. Наличие этого помещения в малом ДОУ весьма эффективно: включение его в состав помещений при наличии дополнительных средств, рекомендуется в первую очередь.

4.2.20 В малых ДОУ, по желанию заказчика, может предусматриваться бассейн с ванной площадью 20-30 м2 или ванна-бассейн площадью 6-12 м2. При применении ванны-бассейна на согласование органов Госсанэпиднадзора должны быть представлены предложения по режиму и организации его использования, а также сертификаты гигиенический и соответствия на конструкцию и материал ванны.

4.2.21 В здании Центра дошкольного воспитания рекомендуется предусматривать развитый состав специализированных помещений для работы с детьми: бассейн (с ванной площадью 60-75 м2; с двумя ваннами по 20-30 м2; с двумя ваннами 60-75 и 20-30 м2), зал-арена для организации детских праздничных утренников и спектаклей с местами для зрителей (на 4 детские группы), а также помещения детских кружков и секций иностранных языков, ИЗО, подготовки к школе, ритмики и т.д. В кружках и секциях занимаются также приходящие дети из групповых отделений и близрасположенных дошкольных учреждений, а также дети, не посещающие дошкольных учреждений.

4.2.22 В здании ЦДВ с детскими группами групповые ячейки решаются как и в ДОУ общего типа. Целесообразно в здании ЦДВ размещать группы детей возраста 4-6 (7) лет, имея ввиду наличие развитого состава специализированных помещений и как правило, более крупную вместимость этого здания.

4.2.23 В групповых отделениях КДВ при числе групп не превышающем 3-х, групповые ячейки могут решаться как в малых ДОУ, при числе групп 4 и более - как в ДОУ общего типа.

4.2.24 Во встроенных групповых отделениях на 4 группы зал для музыкальных и гимнастических занятий может не предусматриваться, а если предусматривается - его площадь может не превышать 50 м2. Вместо зала может предусматриваться универсальное кружковое помещение площадью порядка 36 м2.

4.2.25 Групповые ячейки дошкольных отделений УВК проектируются как в ДОУ общего типа, с той разницей, что групповые должны иметь площадь не менее 60 м2, а спальни - не менее 50 м2. Это необходимо в связи с тем, что УВК должен иметь возможность гибко менять соотношение детских групп и ученических классов, чтобы, в случае необходимости, в групповой ячейке смог разместиться ученический класс школьного отделения. В этом случае групповая используется как классное помещение, а спальня - как спальня для первого класса или рекреация для других классов. В УВК медицинские, специализированные помещения для работы с детьми и пищеблок проектируются общими на школьное и дошкольное отделения.

4.2.26 Групповая ячейка прогулочных групп не содержит спальни. Групповая может иметь площадь не более 36 м2, специализированные помещения для работы с детьми в прогулочных группах могут не предусматриваться.

4.2.27. В компенсирующем ДОУ, необходимо предусматривать дополнительно кабинет врача-специалиста (9 м2), физиотерапевтический (18 м2), массажа - (9 м2), В компенсирующих ДОУ комната коррекции (площадью 18 м2) предусматривается в каждой групповой ячейке. Заданием на проектирование, в зависимости от профиля учреждения, может предусматриваться одна комната коррекции на каждые 2-4- детские группы. В ДОУ, не являющихся компенсирующими, достаточно иметь одну комнату коррекции, в которой постоянно или периодически могут работать специалисты одного или нескольких направлений коррекции, например, логопед.

4.2.28 Наиболее распространенная схема традиционных ДОУ общего типа строится на основе объемных (двухэтажных) блоков групповых ячеек и блока (как правило, также двухэтажного), объединяющего специализированные, сопутствующие и служебно-бытовые помещения.

4.2.29 Блок специализированных, сопутствующих и служебно-бытовых помещений располагается в центре здания с целью достижения наиболее коротких и удобных связей этих помещений с групповыми ячейками,

4.2.30 Блоки групповых ячеек целесообразно делать с идентичным планировочным решением поэтажных планов, тогда легче решаются вертикальные коммуникации, а также инженерные коммуникации систем ОВ и ВК. При этом, если на первом этаже располагается ясельная групповая ячейка (для детей до 3-х лет) с сокращенными площадями групповой и спальни по сравнению с другими групповыми ячейками, излишек площади первого этажа используется, как правило, для устройства остекленной веранды или открытой террасы (теневого навеса).

4.2.31 Блок групповых ячеек может формироваться из двух ячеек (поэтажно размещаемых друг над другом) или из четырех - по две групповые ячейки в плане каждого этажа. Первый способ дает возможность эффективнее решать вопросы двухсторонней инсоляции групповых, второй способ создает возможности для проектирования сдвоенных групповых ячеек - с выделением общими на две группы таких помещений, как комната и туалет персонала, функциональные блок-модули ("Модуль-мастер", "Модуль-театр", Модуль-гладиатор"- физкультурно-игрового оборудования, класс или комната для занятий по подгруппам, комната коррекции и пр.).

4.2.32 При традиционном составе блока общих помещений баланс площадей поэтажных планов складываются таким образом, что при двухэтажном решении на первом этаже предусматривается пищеблок, постирочная и медицинские помещения с изолятором, на втором этаже - залы для музыкальных и гимнастических занятий, методический кабинет, комната ручного труда (изобразительных видов деятельности), помещения детских кружков и секций.

4.2.33 Если в двухэтажном здании ДОУ предусматривается два универсальных зала (каждый из них - и для музыкальных, и для гимнастических занятий) - имеет смысл в этом случае предусматривать по одному залу на каждом этаже. Короткие связи с залом в этом случае обеспечивают детям дополнительные удобства - например, возможность поочередно каждой группе проводить в зале утреннюю зарядку. При этом для сохранения поэтажного баланса площадей, на втором этаже могут быть расположены медицинские помещения и общие помещения компенсирующего назначения (комната коррекции, физиотерапевтический кабинет и др.).

4.2.34 Зал с ванной бассейна в ДОУ целесообразно размещать таким образом, чтобы под днищем ванны предусматривалось техническое помещение для контроля за его состоянием. Такое решение обеспечивает и более благоприятные условия для канализования.

В планировочном отношении зал с ванной бассейна целесообразно иметь смежным с залом для физкультурных занятий, который может использоваться как зал разминки,

4.2.35 Весьма эффективным является решение, когда в планировочной структуре здания ДОУ анфиладно (последовательно) размещаются залы для музыкальных и гимнастических занятий, зал с ванной бассейна, холл - перед залом для музыкальных и гимнастических занятий, зал разминки - при зале бассейна и т.п. Перегородки между этими помещениями могут выполняться из светопрозрачных материалов, что обеспечит эффектное сочетание с освещением фонарями верхнего света и позволит преодолеть в интерьерах общих помещений ДУ ощущение затесненного замкнутого пространства.

4.2.36 Малые ДОУ на 1-2 группы целесообразно проектировать одноэтажными, на 3 группы могут иметь весьма чистую схему в двухэтажном решении, когда хозяйственные и служебно-бытовые помещения, плюс одна групповая ячейка (желательно детей более младшею возраста) размещаются на первом этаже, а две другие групповые ячейки - на втором. При этом окна кухни не должны располагаться под окнами групповой или спальни.

4.2.37 Групповые отделения КДВ, встроенные в жилые дома, могут быть одно- или двухэтажными. В планировочном отношении их лучше решать симметричными, размещая групповые ячейки справа и слева от блока общих помещений. Групповые отделения целесообразно проектировать на четное число групповых ячеек (2 или 4). В этом случае в секционных многоквартирных жилых зданиях одноэтажные встроенные групповые отделения на 2 группы и двухэтажные на 4 группы хорошо решаются в пространстве между двумя лестнично-лифтовыми узлами двух смежных секций. Одноэтажное групповое отделение на 4 группы может быть решено во встроенно-пристроенном объеме между двумя лестнично-лифтовыми узлами двух смежных секций жилого дома.

4.2.38 Основная проблема проектирования встроенных ДОУ в жилых домах, где первые этажи проектируются по аналогии с рядовыми - мелкоячеистая конструктивная структура жилой секции, частое расположение лестнично-лифтовых узлов, сантехнических шахт и т.п. Схема встроенных ДОУ получается чище, если они проектируются вместимостью не более 2-4-х групп в пределах только первого этажа, занимая межлестничное пространство двух-трех смежных жилых секций. Пример решения встроенных групповых отделений показан на рис. 58.

4.2.39 Одной из проблем встроенных ДОУ является организация принудительной вытяжки вентиляции пищеблока. Этот вопрос решается просто, когда ДОУ с глухого торца жилого здания имеет выступающий за пределы жилого дома объем. Вытяжка организуется через кровлю выступающего объема.

Важным принципом проектирования встроенных ДОУ является обеспечение их необходимой изоляции от жилых секций: автономные входы, желательно, с противоположной от входов в жилую часть стороны.

4.2.40 Функциональная структура и примеры объемно-планировочных решений разных типов ДОУ показаны на рис. 21, 22, 45-60.

5. ОБЪЕМНО-ПЛАНИРОВОЧНАЯ ОРГАНИЗАЦИЯ ГРУППОВЫХ ЯЧЕЕК

5.1 Универсальные групповые ячейки

5.1.1 В ДОУ общего типа групповые ячейки следует проектировать универсальными, т.е. имеющими необходимые (обязательные в соответствии с МГСН 4.07-96) состав и площади помещений, позволяющие размещать в них полнокомплектные (в соответствии с нормативной наполняемостью) детские группы, и обеспечивающими программную деятельность учреждения:

с приоритетным направлением одного или нескольких направлений развития (интеллектуальное, художественно-эстетическое, физическое);

с приоритетным направлением укрепления здоровья детей;

с приоритетным направлением компенсирующей деятельности.

5.1.2 В универсальной групповой ячейке предусматриваются:

групповая - для игр, занятий, приема пищи, отдыха;

спальня - для дневного (в круглосуточных группах - и ночного) сна детей;

раздевальная - для переодевания детей, хранения и сушки верхней одежды;

туалетная - для гигиены и проведения закаливающих и оздоровительных процедур;

буфетная - для хранения и мытья столовой посуды, принадлежащей данной группе детей.

Эти помещения обеспечивают оптимальные условия для интеллектуального, физического и психического развития детей, занятий, отдыха, игр, приема пищи, гигиены, мероприятий по уходу за детьми, их оздоровлению.

5.1.3 В составе универсальной групповой ячейки могут предусматриваться дополнительные функциональные зоны - как за счет увеличения площади, так и за счет создания дополнительных помещений.

5.1.4 Дополнительная функциональная зона (помещение) для игр и занятий детей по подгруппам в одновозрастной и в разновозрастной детских группах используется для проведения занятий по дифференцированным программам по подгруппам детей, индивидуальной работы с ребенком, а также для тихих игр, изолированно (полуизолированно) от общего игрового пространства.

5.1.5 Дополнительными функциональными зонами (помещениями) универсальной групповой ячейки являются также комната психологической разгрузки ("Домашний уголок"), ванна-бассейн с кабиной для переодевания; остекленная веранда (веранда-оранжерея) и открытая терраса (терраса-манеж, солярий).

Дополнительными помещениями групповой ячейки являются комната персонала с санузлом, помещение для сушки одежды.

5.1.6 Групповая ячейка в своей планировочной структуре может иметь дополнительные унифицированные зоны (помещения) со стационарной или сменной установкой модулей "Мастер", "Театр", "Каскадер", "Джунгли", "Стройка", "Мегабайт" "Замок" и пр.

5.1.7 В универсальных групповых ячейках при любых образовательных программах, целесообразно предусматривать объемно-пространственный модуль физкультурно-игрового оборудования ("Модуль-гладиатор"), имеющий размер площади ориентировочно от 1,5 до 4-6 м2. "Модуль-гладиатор" может быть установлен в зоне подвижных игр. Для сохранения жилого характера интерьера групповой, спортивный модуль может быть размещен в раздевальной (на дополнительной площади) или в рекреационном пространстве.

5.1.8 С целью создания благоприятных условий для физического и эмоционального развития детей, в составе групповой ячейки в качестве дополнительной площади для двигательной активности детей целесообразно предусматривать открытую террасу (террасу-манеж или террасу-солярий) и остекленную отапливаемую в зимнее время веранду. Их площади ориентировочно составляют: терраса - от 10 до 25 - 40 м2, веранда (веранда-оранжерея) - от 1 до 6-12 м2.

5.1.9 Все дополнительные функциональные зоны (помещения) групповой ячейки могут предусматриваться на две смежно расположенные групповые ячейки. При этом в помещениях для детей планировочными средствами обеспечиваются условия поочередного использования каждой группой.

5.1.10 Взаимосвязь всех помещений групповой ячейки осуществляется через групповую, которая функционально должна быть связана с раздевальной, спальней, туалетной и буфетной. Целесообразно предусматривать также функциональную связь спальни с туалетной, туалетной с раздевальной, а также раздевальной ясельной группы с открытой террасой (через входные тамбуры).

Остекленные веранды и открытые террасы следует размещать под окнами групповой для обеспечения визуальной связи с ними.

5.1.11 Все помещения групповой ячейки следует размещать, как правило, на одном этаже.

Допускается в групповых, ячейках для детей старше 3 лет предусматривать перепады уровней в пол-этажа, при сохранении визуальной и пространственной связи всех зон, формирующих игровое пространство.

Для детей старшего возраста могут проектироваться двухуровневые групповые ячейки с двухсветным пространством групповой и раскрывающимися в него остальными помещениями групповой ячейки. Помещения второго уровня решаются как антресоли.

5.1.12 Если игровое пространство для детей в групповой ячейке решается не одним помещением (групповая), а с подключением помещений для занятий по подгруппам, психологической разгрузки ("Домашний уголок"), остекленной веранды или открытой террасы, необходимо обеспечить возможность визуальной связи групповой с этими помещениями, используя применение светопрозрачных, решетчатых, сетчатых перегородок, перегородок-барьеров, ширм и т.д.

5.1.13 Раздевальные групповых ячеек детей от 3-х лет, расположенных на втором и третьем этажах, допускается размещать на первом этаже здания. Это позволит детям в теплой одежде и грязной обуви не подниматься на второй- третий этаж.

5.1.14 В групповой ячейке отдельные помещения или зоны в них могут быть универсальными и использоваться поочередно по разным назначениям, например, помещение для занятий по подгруппам может использоваться для тихих игр детей: "Домашний уголок" - для индивидуальной работы с ребенком, "зона столиков" - для программных занятий с детьми и для приема пищи.

5.1.15 При подборе и расстановке мебели и оборудования руководствуются эргономическими параметрами ребенка дошкольного возраста и взрослого человека.

5.1.16 Для правильной организации учебно-воспитательных и рабочих процессов в групповой ячейке каждое помещение делится и соответствии с назначением и видом деятельности на функциональные зоны, оснащенные соответствующей мебелью и оборудованием.

Площади и параметры функциональных зон определяются условиями размещения соответствующих комплектов мебели и оборудования с учетом рабочих зон на основе антропометрических параметров участников процесса.

5.1.17 В универсальных малокомплектных групповых ячейках (на 0,5 стандартной детской группы) для ДОУ компенсирующей направленности площади помещений следует принимать не менее: раздевальной -12 м2; групповой 36 м2; спальни - 24 м2; буфетной - 3 м2; туалетной -10 м2.

Раздевальные

5.1.18 Раздевальные должны быть просторными и хорошо освещенными, учитывая то, что дети дважды в день выходя на прогулку, приходя утром и уходя вечером одеваются и раздеваются практически одновременно всей группой. Кроме того, для младших детей процесс переодевания одновременно является учебным (освоением бытовых навыков).

5.1.19 Раздевальные детей от (1,5) 2 - 7 лет, как правило, оборудуются одноярусными пятиместными шкафами для верхней одежды, в комплекте со скамьями для переодевания. Помещения делятся на зону хранения одежды и зону переодевания детей.

Учитывая обстоятельства, изложенные в п. 5.1.18, сквозной проход через раздевальные не следует устраивать вдоль или по диагонали помещения.

5.1.20 Если в составе групповой ячейки, не предусматривается специального помещения для сушки детской одежды, шкафы для детской одежды в раздевальных следует предусматривать оборудованными подогревом (от системы горячего водоснабжения) и вентиляцией (вытяжными коробами), Вентиляционный короб должен находиться на расстоянии от пола не менее 1,3 м.

5.1.21 Шкафы для верхней одежды в раздевальных желательно размещать по периметру помещения для удобства наблюдения за переодеванием детей и организации вентиляционной вытяжки из шкафа. Следует предусматривать свободные проходы к шкафам; достаточное пространство для открывания дверок и хорошую освещенность мест для переодевания и распознавания опознавательных знаков на дверках шкафа.

Шкафы для верхней одежды детей должны быть надежно стационарно закреплены.

Блок-модуль из 5-ти шкафов имеет размер 1,35 м, длина 4-х сблокированных модулей (для 20 детей) - 5,4 м. Минимальная ширина раздевальной, необходимая для размещения двух рядов шкафов и скамей между ними составляет 2,9 м.

Групповая

5.1.22 Помещение групповой должно обеспечивать условия для игр, занятий детей и приема пищи, а также возможность для детей самостоятельно регулировать психологическую дистанцию с воспитателем или сверстниками, вплоть до относительного уединения. Последнее достигается разделением игровой зоны с помощью оборудовании на полузамкнутые отсеки площадью от 2 до 6 м2, а также созданием зон психологической разгрузки - "Домашний уголок", остекленной веранды, помещения (зоны) для занятий по подгруппам и тихих игр детей. Фрагменты групповой могут решаться как полузамкнутые пространства (по типу алькова, с верхним светом) или пространства, частично попадающие в визуальную тень (например, при расстановке игрового оборудования в шахматном порядке).

5.1.23 Пространство, отводимое для фронтальных и самостоятельных занятий детей, а также их питания - "Зона столиков". Каждый ребенок в группе должен иметь индивидуальное место за детским столом. Для детей в возрасте от 1 года до 4 лет применяются четырехместные столы, для детей от 4 до 6-7 лет - используются двухместные столы, которые размещаются во время занятий аналогично ученическим столам в школе. В группах детей от 3-х лет целесообразно предусматривать пространство, позволяющее разместить столы для занятий веерообразно.

При размещении детских столов необходимо обеспечить свободный доступ к каждому ребенку, а также достаточный проход между рядами. Во время занятий расстояние между рядами столов должно быть не менее 0,5 м, а во время питания - не менее 1,2 м для свободного продвижения раздаточного стола.

5.1.24 При индивидуальном изготовлении мебели, столики могут решаться полудугами на 3-5 детей или общей подковообразной стойкой, с внешней стороны которой размещаются дети, а с внутренней - воспитатель, лучше на разных уровнях пола (на 0,5 м) - для обеспечения особо благоприятной формы общения с ребенком -"глаза-в-глаза".

5.1.25 Для обеспечения нормальной зрительной работы детей во время занятий, особенно в группах более старшего возраста, должна быть предусмотрена возможность симметричного размещения столов относительно грифельной доски. Расстояние от первого ряда столов до грифельной доски должно быть не менее 1,1 м, наибольшее расстояние от доски не должно превышать 9 м.

5.1.26 "Зона столиков" должна иметь нормируемое естественное освещение: слева, КЕО = 1,5. Рабочее место ребенка должно находиться вне ослепляющей зоны окна. Расстояние от детского стола до стены с окном должно быть не менее 0,5 м.

5.1.27 С учетом левостороннего освещения рабочих мест должна располагаться и грифельно-приколочная (или маркерная) доска. При рассмотрении доски сбоку допустимый угол обзора без искажения равен 45 градусам к оси предмета.

5.1.28 Зона приема пищи должна располагаться вблизи буфетной.

5.1.29 Стол и стул воспитателя размещаются в углу помещения для удобства его обзора, вблизи грифельной доски, у "зоны столиков", рядом со шкафом для учебных материалов и пособий.

5.1.30 Для разнохарактерных или тематических игр ("стройка", "конструктор", "дом", "зоопарк", настольные игры, и пр.) целесообразно выделить с помощью оборудования 2, 3 или 4 полузамкнутых пространства по 3-4 м2 каждое. Хранение игрового и учебного материала лучше организовать вблизи "зоны столиков", используемых в свободное от еды или организованных занятий время для самостоятельных игр и занятий.

5.1.31 Для игр может использоваться также подоконный ленточный стол. В этом случае вблизи от ленточного стола следует разместить емкости для детской литературы, настольных игр, мелкого строительного материала.

5.1.32 Помещение для занятий по подгруппам (из расчета на 10-12 мест) оборудуется детскими двух- или одноместными столами, стульями, грифельной (маркерной) доской, стеллажом для игр и пособий. Помещение имеет многоцелевое назначение - групповые и индивидуальные занятия с детьми, с учетом их индивидуальных наклонностей или особенностей развития. Помещение может использоваться для занятий коррекцией (например, речи), как помещение для тихих игр, показа теле- и видео-программ, а также психологической разгрузки.

5.1.33 "Домашний уголок" оборудуется как фрагмент гостиной с мебелью, озеленением, аквариумом, аудио- и видеоаппаратурой и т.п.

5.1.34 Зона уголка живой природы должна иметь естественное освещение. При этом размещение аквариума, цветов не должно сокращать уровень естественной освещенности в помещении.

5.1.35 В групповых для детей 4-7 лет целесообразно предусматривать зону ручного труда: она может совмещаться с "зоной столиков" или, если позволяет площадь групповой, - может предусматриваться для ручного труда "Модуль-мастер."

5.1.36 Игральная детей от 1 до 2 лет делится на 6 функциональных зон: зону игр и занятий детей, зону переодевания детей, зону кормления, зону уголка живой природы, а также рабочую зону сестры-воспитательницы. Рабочее место сестры-воспитательницы должно располагаться с учетом удобного обзора всего помещения групповой, а также спальни.

5.1.37 В связи с тем, что дети двухлетнего возраста продолжительное время проводят, играя за детскими столами, эти столы следует располагать под углом 45 градусов по отношению к плоскости оконного проема. Такое расположение мебели обеспечит наилучшую освещенность рабочих поверхностей столиков.

"Зона столиков" - зона кормления детей 1-2 лет должна находиться в непосредственной близости от буфетного помещения.

Для кормления детей в возрасте от 1 до 2 лет используются детские двухместные столы и детские кресла с подножкой.

5.1.38 Значительная часть помещения групповой детей 1-2 лет должна быть отведена для игр. В зоне подвижных игр необходимо не менее 3,55 х 1,2м площади пола для катальной горки.

Спальни

5.1.39 Спальни групповых ячеек детей от 2-х лет оборудуются индивидуальными детскими кроватями, в группах детей до 2-х лет - кровати оборудуются защитными сетками.

5.1.40 Расположение детских кроваток должно обеспечивать удобство подхода и переодевания детей. Минимальное расстояние между кроватями, с учетом безопасности инфекционных заболеваний, равно 0,3 м; при меньшем расстоянии между кроватями необходим экран высотой от ложа кровати не менее 0,3 м.

Одежду в спальнях дети складывают на детские стульчики.

5.1.41 Для разнорежимного сна или незапланированного отдыха детей в спальнях целесообразно выделять отдельные 2-3 зоны расстановкой кроватей или с применением перегородок-барьеров. В группах детей от 4-х лет рекомендуется разделение спальни на две зоны для мальчиков и девочек.

5.1.42 Применение новых типов облегченных кроваток, кроваток-ковриков или трансформируемых одно- или двухуровневых кроваток требует согласования с органами Госсанэпиднадзора.

Туалетные

5.1.43 Туалетные делятся на умывальную зону и зону санитарных кабин.

5.1.44 Умывальные оборудуются одинаково во всех детских группах. В них должно быть по три детских умывальника, вешалка для полотенец, душевой поддон, как правило имеющий доступ с трех сторон для проведения закаливающих процедур с детьми.

5.1.45 Функциональные связи основных и дополнительных помещений групповой ячейки показаны на рис. 22; приемы размещения мебели в раздевальных (приемных) детей разных возрастов - на рис. 23-25; основные функциональные зоны групповой, разные варианты размещения мебели в отдельных зонах и в помещениях в целом показаны на рис. 26-30; примеры организации функциональных зон спален детей разных возрастов и с применением разных типов кроваток показаны на рис. 31-32; функциональные зоны туалетных детских групп - на рис. 33.

5.2. Специализированные групповые ячейки

Групповые ячейки детских групп с приоритетом одного или нескольких направлений развития (интеллектуальное, художественно-эстетическое, физическое)

5.2.1. В групповой ячейке с приоритетным направлением интеллектуального развития целесообразно иметь помещение для занятий детей по подгруппам, площадью 12-18 м2 или классное помещение площадью 40-50 м2 для занятий группы, с кладовой для пособий и оборудования. Классное помещение целесообразно предусматривать одно на две расположенные рядом групповые ячейки.

5.2.2 Помещение для занятий детей по подгруппам и классное помещение оборудуется по аналогии со школьным классом индивидуальными одноместными или двухместными столами. Характер оборудования определяется конкретной образовательной программой и указывается в задании на проектирование.

5.2.3 В составе групповой ячейки с приоритетным направлением интеллектуального развития или на две размещаемые радом такие групповые ячейки, желательно иметь комнату персонала, используемую для хранения методического материала, аудио- видеоаппаратуры, а также в качестве комнаты для приходящих преподавателей. При классном помещении целесообразно предусматривать комнату преподавателей. Комната преподавателей должна быть оборудована шкафом для верхней одежды, стеллажом или шкафом для пособий и оборудования, рабочим столом, стульями.

5.2.4 В групповой ячейке с художественно-эстетическом направлением развития могут предусматриваться те же помещения или планировочные приемы размещения оборудования, что и в универсальной групповой ячейке, не имеющей дополнительных помещений. Классное помещение, или комната занятий по подгруппам в составе такой групповой ячейки оборудуются как изостудия: детскими мольбертами, табуретками, тумбами для постановочных композиций, гончарными кругами и т.п. Для освещения постановок используются трансформируемые светильники на стойках, для освещения ученических мест - подвесные светильники с направленным освещением вниз, фиксируемые на высоте 2 м от уровня пола.

5.2.5 В составе групповой ячейки с художественно-эстетическим направлением рекомендуется в помещении групповой или рядом с ним при наличии визуальной связи предусматривать установку пространственного элемента "Модуль-мастер" (площадью от 4 до 12 м2), В зоне "Модуль-мастера" следует предусмотреть подводку воды и детскую раковину. "Модуль-мастер" может используется в качестве игровой функциональной зоны, где ребенок предоставлен сам себе, не боится что-либо испачкать или испачкаться сам. Задача модуля - стимулировать детей к самостоятельному творчеству и при этом обеспечить условия чистоты и сохранности остального пространства помещения, где он установлен.

5.2.6 В помещении групповой детской группы с художественно-эстетическим направлением развития в зависимости от педагогической программы, могут быть рекомендованы для размещения "Модуль-театр" или "Модуль-музыка".

"Модуль-театр" - сцена площадью от 6 до 12-15 м2, высотой 0,2 -0,5 м, с занавесом и сменными декорациями.

"Модуль-музыка" - подиум в форме сцены, с аудио-центром. Аудио-центр должен устанавливаться так, чтобы ребенок мог принимать участие в работе с пультом во время занятий и быть защищенным от поломок в остальное время. По внешнему периметру "Модуль-музыка" может оборудоваться фиксируемыми простыми музыкальными инструментами или звучащими предметами - цимбалы, бубны, колокольчики, треугольник, дудки, барабан и т.д.

5.2.7 Функциональные модули могут предусматриваться общими на две детские группы при поочередном использовании детьми разных групп. Как частный случай, помещения с модулями могут размещаться между групповыми рядом расположенных групповых ячеек и поочередно раскрываться то в одну, то в другую сторону. Трансформация может сопровождаться применением выдвижных или поворотных платформ (сцены, музыкального подиума), когда весь Модуль поворачивается либо выдвигается то в одну, то в другую сторону. Кроме экономической целесообразности этот прием имеет важное значение с точки зрения новизны ощущений при периодической трансформации внутреннего пространства помещений групповой, что положительно влияет на эмоциональное развитие ребенка.

5.2.8 В интерьере групповой с направленностью художественно-эстетического развития выделяются места (фрагменты) самостоятельного эстетического освоения детьми окружающего пространства: подставки или ниши для икебаны, тумбы для скульптур, пустые рамки или паспарту для картин, в которые дети вставляют собственные рисунки.

Для воспитания у детей представления о цветовом дизайне, в составе интерьера групповой, на стенах или перегородках полезно иметь съемные заменяемые рамы-панели, имеющие разные цвет, декоративный рисунок, фактуру.

Для развития представления о световом дизайне, в зоне игрового пространства групповой рекомендуется предусмотреть варианты разнохарактерного освещения ("мерцающие светлячки", "камин" - для чтения сказок или прослушивания музыки, "светящийся каскад" или "бегущая дорожка" - для праздников, игр и т.д.).

Групповые ячейки детских групп с приоритетным направлением укрепления здоровья детей.

5.2.9 Для детей с ослабленным здоровьем устанавливается щадящий режим: в неблагоприятную погоду дети не гуляют, с ними проводят ряд лечебных, закаливающих и оздоровительных процедур - ингаляции, солнечные и воздушные ванны, водные процедуры, физиотерапия и т.п. Немаловажным является укрепление психического здоровья, для чего в групповой ячейке должны быть предусмотрены помещения или отдельные зоны для релаксации, отдыха, а также обеспечена ребенку возможность регулирования психологической дистанции с окружающими детьми и персоналом.

5.2.10 Щадящий режим для детей с ослабленным здоровьем, в связи с сокращением времени пребывания детей на воздухе в плохую поводу, предполагает создание открытых и полуоткрытых пространств в составе групповой ячейки: открытые террасы (площадью до 40 - 60 м2), оборудуемые трансформируемыми солнцезащитными устройствами, и остекленные веранды (площадью до 20 м2). Террасы должны оборудоваться как солярий и иметь ветрозащитное ограждение на уровне 1 м от пола, а также иметь трансформируемые солнцезащитные устройства. В качестве солнцезащитных устройств можно предусмотреть маркизы, пляжные зонты, тенты и другое оборудование комплектной поставки.

Наличие веранды и террасы в групповой ячейке увеличивает зону двигательной активности у детей, создает удобные условия для проведения утренней зарядки, увеличивает общее время пребывания на свежем воздухе.

5.2.11 На площади открытой террасы может быть предусмотрена ванна-бассейн с подогревом воды. Возможны разные варианты. Ванна-бассейн может предусматриваться и в отдельном помещении с трансформируемым съемным или раздвижным светопрозрачным ограждением.

Вместо стационарной ванны-бассейна может быть использован надувной или сборный детский бассейн. Забор и слив воды в бассейн не должен осуществляться через соответствующие инженерные системы здания. Применительно к сборным или надувным бассейнам можно использовать гибкие шланги и портативные бытовые электронасосы.

5.2.12 Ванна-бассейн в групповой ячейке оздоровительной группы может быть расположена в отдельном помещении или непосредственно на площади умывальной зоны (соответственно увеличенной по площади). При ванне-бассейне следует предусматривать душевую кабину и кабину для переодевания детей.

5.2.13 При применении ванны-бассейна необходимо предварительно разработать и представить на согласование органов Госсанэпиднадзора режим и порядок ее эксплуатации в детской группе, а также иметь сертификаты - гигиенический и соответствия - на конструкцию и материалы ванны.

5.2.14 Веранду целесообразно предусматривать сообщающейся с открытой террасой.

Веранду следует проектировать с расчетной температурой внутреннего воздуха - + 10-12 С.

Веранда может быть с элементами озеленения, декоративными композициями из растений и элементов благоустройства. Температура и влажность воздуха в этом случае должны предусматриваться в зависимости от выбранных растений - районированных сезонных, растений прерий или тропических.

5.2.15 Если в составе групповой ячейки веранда не предусматривается, на террасе желательно предусмотреть ветрозащитные ограждения.

5.2.16 Веранда и терраса должны органично входить в состав групповой (общего игрового пространства групповой ячейки). При этом следует сохранять визуальную связь между всеми открытыми, полуоткрытыми и закрытыми помещениями игрового пространства, т.к. дети единовременно, по собственному выбору могут находиться в любой из этих зон. Такая связь обеспечивается, например, если терраса и веранда примыкают со стороны групповой, имеющей в наружной стене витраж или оконные проемы с балконной дверью.

Остекленная веранда может быть проходной, выполняя роль тамбура при выходе на террасу.

5.2.17 В составе помещений групповой ячейки оздоровительной группы желательно иметь комнату психологической разгрузки для детей - "Домашний уголок", а также комнату коррекции.

Комната коррекции предназначается для работы специалиста с одним или несколькими детьми единовременно. В соответствии с программой это помещение может оборудоваться как физиокабинет.

5.2.18 Часть оздоровительных и закаливающих мероприятий могут осуществляться с использованием душевого поддона в умывальной зоне. Для процедур с водой предусматривается дополнительная душевая сетка, закрепляемая внизу непосредственно над поддоном. Доступ к душевому поддону должен быть обеспечен с трех сторон.

5.2.19 В составе оздоровительной групповой ячейки должны предусматриваться места для установки пространственного модуля физкультурно-игрового оборудования ("Модуль-гладиатор") или физкультурно-оздоровительных тренажеров: в групповой, в раздевальной, на веранде или в рекреационном пространстве групповой ячейки, входящем в общее игровое пространство групповой ячейки при соответствующем увеличении площадей.

Групповые ячейки детских групп с приоритетной компенсирующей направленностью.

5.2.20 Групповые ячейки с компенсирующей направленностью в соответствующих ДОУ и в ДОУ общего типа следует проектировать изолированными от других групповых ячеек. Общими на 2 или более групповых ячеек допускается предусматривать медицинские, процедурные и физиотерапевтические кабинеты, помещения для определенных видов компенсирующей деятельности.

5.2.21 Наполняемость детских групп с компенсирующей направленностью принимается в соответствии и Типовым положением о дошкольном образовательном учреждении и приведена в Приложении 4 (обязательное).

5.2.22 Для ряда направлений компенсирующей деятельности могут быть использованы универсальные групповые ячейки ДОУ общего типа. В универсальных групповых ячейках могут также размещаться группы детей с фонетико-фонематическими нарушениями речи, которые организуются только для детей старше 3-х лет и имеют наполняемость - до 12 детей, а также для детей с туберкулезной интоксикацией, часто болеющих, с иными отклонениями, не указанными в табл. Приложения 4 (направленность - 10 мест в ясельных и 15 мест - для детей 3 и более лет).

5.2.23 Групповая ячейка дошкольного учреждения компенсирующего назначения имеет расширенный состав помещений. Планировочная структура компенсирующей групповой ячейки должна быть основана на центральном расположении групповой и комнаты коррекции (для специальных занятий), которые, в свою очередь, функционально связаны с раздевальной, спальней, туалетной и буфетной.

5.2.24 Групповые ячейки компенсирующей направленности для детей с нарушениями развития могут проектироваться универсальными. В такую групповую ячейку должно входить помещение для специальных занятий площадью не менее 18 м2, которое, в зависимости от вида нарушения у детей может использоваться как:

класс занятий для детей с нарушением слуха, интеллекта, с последствиями полиомиелита и церебральных параличей;

кабинет тифлопедагога для слепых и слабовидящих детей;

плеопто-ортоптическая комната для детей с косоглазием и амблиопией;

кабинет логопеда для детей с нарушением речи.

5.2.25 Остальные помещения универсальной групповой ячейки компенсирующей направленности имеют следующие площади:

раздевальная - 15 м2; групповая - 36-40 м2; спальня - 30 м2; буфетная - 5 м2; туалетная - 12 м2.

5.2.26 Комната коррекции может предусматриваться на 2 или более групповые ячейки по согласованию с органами образования.

5.2.27 В составе групповой ячейки компенсирующей направленности целесообразно также предусматривать террасу, остекленную веранду, зону психологической разгрузки - "Домашний уголок".

5.2.28 Необходимый состав и площади помещений специализированных компенсирующих групповых ячеек дошкольных учреждений для детей с нарушением слуха, зрения и интеллекта следует принимать по приложению 5 (обязательное), опорно-двигательного аппарата - по Приложению 6 (обязательное).

5.2.29 В дошкольном учреждении для детей с нарушениями развития с круглосуточным пребыванием детей в течение рабочей недели или более длительного времени в составе групповой ячейки дополнительно следует предусматривать помещение столовой (площадью не менее 16 м2) в комплексе с буфетной.

5.2.30 В групповых ячейках ДОУ, работающих в круглосуточном (5-6 дневном) режиме, целесообразно спальню разделять на 2-4 зоны - для достижения комфорта и в целях полового воспитания детей. Между спальней и групповой должна предусматриваться визуальная связь.

5.2.31 В групповых ячейках для детей с нарушением слуха (слабослышащих) в классе для занятий наряду с основным естественным освещением слева следует предусматривать дополнительное верхнее освежение позади сидящих (на высоте не ниже 1,5 м от уровня пола).

Входы в класс для занятий и групповую следует оборудовать двухстворчатыми дверями.

Следует предусматривать изоляцию труб и металлических деталей в помещениях, где находятся дети.

Следует предусматривать непосредственную связь между туалетной, групповой и спальней в групповой ячейке.

5.2.32 Класс для занятий детей с нарушением слуха предусматривается для, систематических занятий с использованием сурдотехнической аппаратуры, по сохранению и развитию остаточного слуха, а также формированию словесной речи (зрительному, тактильно-вибрационному).

В этом классе стены и потолок должны иметь акустическую отделку. Хозяйственные помещения с электрооборудованием (кухня, постирочная) должны быть удалены от классов для занятий.

5.2.33 В групповых ячейках для детей с нарушением зрения (с косоглазием и амблиопией) следует предусматривать плеопто-ортоптическую комнату длиной не: менее 6 м и ориентировать ее на север (с отклонением до 22,5 градусов в обе стороны) или применять солнцезащитные устройства. В этом помещении осуществляется корректировка и лечение зрения на специальной аппаратуре.

Функциональная зона длиной 6 м в плеопто-ортоптической комнате нужна как линейная дистанция, вдоль которой ребенок передвигается при работе с аппаратами или при проверке зрения, ширина той зоны может составлять не более 1,5 м.

В плеопто-ортоптической комнате следует выделить темное помещение площадью 6 м2 (для работы на большом безрефлексном офтальмоскопе) с окраской стен в темно-зеленый цвет.

Плеопто-ортоптическую комнату не следует располагать смежно с помещениями, имеющих электрооборудование.

Плеопто-ортоптическая комната и помещения обслуживаемой групповой ячейки должны быть расположены на одном этаже и вблизи друг от друга, так как детям после процедур требуется отдых и первые 3-5 минут после процедуры они плохо видят.

Плеопто-ортоптическая комната предусматривается одна на две групповые ячейки детей дошкольного возраста с косоглазием и амблиопией.

5.2.34 В состав групповой ячейки для слепых и слабовидящих детей входит кабинет тифлопедагога для занятий одновременно с двумя-тремя детьми. При оборудовании кабинета необходимо выделять свободное пространство для развития у детей двигательных навыков.

5.2.35 Кабинет тифлопедагога и классы для занятий не следует располагать в непосредственной близости от залов для музыкальных и гимнастических занятий.

5.2.36 Ограждающие поверхности и оборудование в групповых ячейках для детей с нарушением зрения должны быть окрашены матовыми красками светлых тонов, коэффициенты отражения которых должны быть не ниже: потолка - 70 %, стен -50-60 %, пола - 25-30 %, столов - 45 %.

5.2.37 В групповых ячейках для детей с нарушением зрения в перегородках между групповой и спальней, между групповой и туалетной целесообразно предусматривать остекленные двери, проемы.

5.2.38 В групповых ячейках для детей с нарушением зрения целесообразно:

между помещениями групповой (игровой), спальни (спален), в отдельных случаях буфетной и туалетной (умывальная зона) предусматривать раздвижные двери, а также двери с фиксированными в распахнутом состоянии створками или вообще не предусматривать заполнения дверных проемов, чтобы не представлять препятствий при движении детей;

избегать выступов, внешних углов или скруглять их (радиус 0,05-0,1 м);

предусматривать контрастную окраску дверей, границ ступеней, мебели и оборудования по отношению к окраске стен.

5.2.39 В групповой для детей с нарушениями интеллекта, отличающихся повышенной возбудимостью, "зона столиков" оборудуется одноместными столиками для проведения коррекционно-воспитательных занятий по формированию у детей элементарных математических представлений, развитию речи, изобразительной деятельности, восприятия и мышления, для возможно более полного восстановления их нервно-психической деятельности и по подготовке к обучению в школе.

Если в составе групповой ячейки предусматривается класс - занятия проводятся в классе, который также оборудуется одноместными столиками.

5.2.40 В логопедической комнате для детей с нарушением интеллекта проводятся индивидуальные занятия с ребенком. Логопедическая комната должна быть связана с групповой или раздевальной.

5.2.41 В групповой ячейке для детей с нарушениями интеллекта должны соблюдаться следующие требования:

входы в туалетную должны быть предусмотрены и из групповой и из спальни;

в спальне следует предусматривать двери с уплотнителями притворов;

в помещениях, где находятся дети, выступающие углы должны быть закруглены (радиус не менее 0,05 м).

5.2.42 В групповых (классах) групповых ячеек детей с нарушениями опорно-двигательного аппарата (с последствиями полиомиелита и церебральных параличей) проводятся занятия по развитию речи, внимания, памяти, слуха, пространственно-временных представлений.

"Зона столиков" в групповой (классе) оборудуется ученическими столами и шкафом для пособий. Для передвижения детей по периметру "зоны столиков" следует предусматривать свободные проходы, оборудованные опорным поручнем на высоте 0,5 м от уровня пола. Диаметр поручня - 0,05 м. Столы и стулья должны жестко крепиться к полу. При размещении столов необходимо обеспечить свободный доступ к каждому ребенку, проходы шириной не менее 0,75 м между столами, между рядами столов и стеной или иным оборудованием, сохраняя возможность самостоятельного передвижения детей с нарушенной моторикой.

5.2.43 В раздевальных для детей с нарушением опорно-двигательного аппарата зону переодевания и хранения одежды следует располагать рядом.

Кровати и скамьи для переодевания в спальнях для этих детей следует дополнительно жестко фиксировать, не допуская возможности их перемещения при пользовании детьми, а скамьи для переодевания оснастить дополнительными жесткими поручнями.

5.2.44 Функциональные связи основных помещений компенсирующей групповой ячейки показаны на рис. 34; пример планировочного решения групповой ячейки детской группы с компенсирующей направленностью - на рис. 35; пример расстановки оборудования в комнатах коррекции для детей с нарушением зрения - на рис. 36,

6. ОБЪЕМНО-ПЛАНИРОВОЧНАЯ ОРГАНИЗАЦИЯ СПЕЦИАЛИЗИРОВАННЫХ ПОМЕЩЕНИЙ ДЛЯ РАБОТЫ С ДЕТЬМИ

Залы для музыкальных и гимнастических занятий

6.1 Зал для музыкальных и гимнастических занятий предназначается для детей в возрасте от 1,5 до 7 лет.

В соответствии с функциональным использованием помещение зала делится на следующие зоны: гимнастических и музыкальных занятий, хранения предметов и игрушек, используемых во время занятий (мячи, обручи и пр.), просмотра теле-видео и диапрограмм, прослушивания музыкального воспроизведения.

6.2 Залы для музыкальных и гимнастических занятий рекомендуется проектировать с соотношением сторон 1:1,5 но не более 1:2. Наилучшая форма зала - квадратная.

6.3 Окна в зале рекомендуется размещать с одной стороны. Дополнительно могут быть предусмотрены с противоположной стороны высоко расположенные окна для подсвета или верхний свет.

6.4 В залах (зонах) для гимнастических занятий должны быть предусмотрены устройства для крепления спортивного оборудования: в потолке - крюк для каната; стационарные или трансформируемые детские баскетбольные шиты, стойки или крюки в стенах - двухкомандных игр (пионербол, бадминтон, детский теннис). Вдоль стен зала общей длиной 15-20 м может предусматриваться стационарный балетный станок с зеркалом (за станком) на высоту не менее 1,6 м. Может предусматриваться другое стационарное оборудование по заданию на проектирование при согласовании с органами образования и Госсанэпиднадзора.

6.5 Расстановка мебели и оборудования должна обеспечивать оптимальные условия для двигательной активности детей. Наиболее целесообразно предметы оборудования, особенно стационарные, располагать по периметру зала.

При организации зоны просмотра теле- и видеопрограмм необходимо учитывать, что наилучшее восприятие изображения обеспечивается в том случае, когда изображение перпендикулярно лучу зрения. При рассмотрении сбоку допустимый угол обзора без искажения равен 45 градусам к оси изображения. В вертикальной плоскости оптимальный угол обзора равен 0-30 градусов (т.е. от линии взора и до 30 градусов вверх), допустимый - 30 градусов вверх и 40 градусов вниз от линии взора.

6.6 Место для проведения праздничных выступлений меняется в зависимости от характера праздника.

Для проведения новогодних торжеств зону праздничных выступлений целесообразно располагать на центральном месте в помещении. Места для зрителей (детские стульчики) размещаются по периметру зала. Во время проведения других праздников или во время детских (кукольных) спектаклей зона выступлений обычно располагается у одной из стен помещения, с учетом удобного обзора.

6.7 Для оформления детских утренников и спектаклей рекомендуется одну торцевую стену зала оставлять свободной от крупногабаритного стационарного оборудования, без оконных и, желательно, дверных проемов, чтобы обеспечить возможность создания импровизированной или стационарной сцены, которая может быть трансформируемой (выкатной, поворотной), может выдвигаться из помещения артистической и т.п.

6.8 При залах (зонах) музыкальных занятий следует предусматривать кладовые (зоны хранения оборудования), т.к. во время занятий часто меняются предметы, с которыми занимаются дети (флажки, обручи и т.п.).

Стационарное оборудование (пианино и т.п.) следует располагать по периметру зала (зоны), высвобождая основное пространство для двигательной активности детей, поскольку музыкальные занятия нередко сопровождаются танцами, ритмикой.

6.9 Многофункциональное использование помещений залов для музыкальных и гимнастических занятий требует предусматривать возможность трансформации внутреннего пространства этих помещений с целью наилучшего их соответствия одной или другой функциям, а также с целью привнесения дополнительной возможности разнообразить интерьер, характер окружающей ребенка среды, создавая дополнительные стимулы эмоционального развития. Возможность изменения пространственной среды должна быть заложена прежде всего в оборудовании помещения зала.

6.10 Трансформация зальных помещений может также осуществляться с изменением планировочной структуры - объединением смежных помещений. Могут объединяться рядом расположенные залы для музыкальных и гимнастических занятий; зал для музыкальных и гимнастических занятий и холл; зал разминки при бассейне, или артистическая, которая увеличивает общий объем сцены и др. Залы могут объединяться также с зимним садом, террасой, галереей.

6.11 Внутри зального помещения трансформация может осуществляться с помощью складной и трансформируемой мебели, в том числе мебели-игрушки, тренажеров.

Эффективно применение раздвижных перегородок, при большой площади зала отгораживающих сцену, стационарное оборудование и пр. Наиболее целесообразны раздвижные или складчатые (гармончатые) перегородки.

Перегородки могут быть с остеклением, не ниже 1,25 м от пола. При более низком расположении остекления должно применяться безопасное или армированное стекло, либо остекление должно иметь защитные элементы (рейки, поручни, решетки).

Раздвижные перегородки могут иметь жесткую обшивку или мягкое покрытие из пластиков.

Все вновь применяемые материалы (пластики) должны иметь сертификаты гигиенический и соответствия.

6.12 В зале физкультурных занятий для детей с нарушением опорно-двигательного аппарата следует предусматривать стационарное оборудование по периметру стен, чтобы освободить середину зала для ковра, на котором проводится большая часть занятий. В торце зала, в непосредственной близости с ковром устанавливается большое настенное зеркало минимальной высотой 1,8 м.

6.13 Залы для музыкальных занятий в ДОУ для групп детей с нарушением слуха следует располагать вдали от помещений пищеблока постирочной, работающих на электрооборудовании.

6.14 В залах музыкальных и физкультурных занятий в ДОУ для детей с нарушением интеллекта полы следует предусматривать с покрытием, образующим геометрический рисунок, облегчающий детям процесс построения.

6.15 Для залов музыкальных и гимнастических занятий наиболее рациональными являются 9- или 12-метровые пролеты. Возможны другие конструктивные решения залов, но без промежуточных опор и с пропорциями помещения не более двух квадратов.

6.16 Зал-арену следует проектировать в 12-метровом пролете, двухсветным, желательно решаемым в единстве с коммуникационно-рекреационным пространством, холлом, входной группой помещений.

6.17 Габариты отдельных функциональных зон и расстановка оборудования в залах для музыкальных и гимнастических занятий в универсальных и специализированных ДОУ показаны на рис. 37-39.

Бассейны

6.18 Планировочная структура плавательных бассейнов для дошкольников должна определяться функциональными требованиями процесса обучения детей плаванию.

6.19 Бассейн с ванной размером 10-12,5х6 м проектируется на единовременную пропускную способность 20-24 человека (две подгруппы по 10-12 детей); бассейн с ванной 6-7х3 м рассчитан на единовременную пропускную способность 10-12 человек (на одну подгруппу детей).

6.20 В ДОУ общего типа, как правило, применяются бассейны с ванной размером 6-7х3 м. Ванны с размерами 10-12х6 м рекомендуется предусматривать в Центрах дошкольного воспитания, в учебно-воспитательных комплексах, а также в отдельно стоящих крытых бассейнах, предназначенных для обслуживания приходящих групп Детей из нескольких рядом расположенных детских садов.

6.21 В состав бассейна в ДОУ общего типа должны входить: зал с ванной, две раздевальные с душевой и туалетом каждая, комната тренера, комната медсестры, лаборатория анализа воды, узел управления бассейном, кладовая инвентаря и технические помещения, связанные с обслуживанием бассейна.

6.22 Раздевальные при бассейне в ДОУ общего типа проектируются отдельно для мальчиков и для девочек из расчета по 10-12 мест каждая. В зданиях Центров дошкольного воспитания или в отдельных зданиях бассейнов, обслуживающих детские группы из разных ДОУ, в гигиенических целях следует не увеличивать число мест в раздевальных, а предусмотреть увеличенное количество их комплектов: при ванне бассейна с зеркалом воды от 60 м2 следует иметь два комплекта раздевальных для мальчиков и девочек (т.е. всего - четыре), каждая на 10-12 мест, с душевой и туалетом.

6.23 Площадь раздевальных при бассейне следует принимать не менее 1,0 м2 на 1 место единовременной пропускной способности, т.е. в общем случае каждая раздевальная для мальчиков и девочек в ДОУ общего типа должна быть не менее 10 м2. При бассейнах в ДОУ небольшой вместимости при меньшей, чем стандартная, наполняемости групп, раздевальные могут предусматриваться на 5-8 мест, с соответствующей площадью по 5-8 м2.

6.24 При каждой раздевальной следует предусматривать душевые: по 2-3 душевые сетки при каждой раздевальной (в зданиях ДОУ крупной вместимости лучше иметь по 3 сетки - для сокращения цикла купания одной группы и увеличения пропускной способности бассейна). При каждой раздевальной следует предусматривать также туалет на один унитаз и один умывальник.

В местах выхода из душевой на обходную дорожку должно предусматриваться устройство проходного ножного душа. Площадь поддона ножного душа должна быть не менее 0,8х0,8 м, глубина -0,1м.

Путь следования детей из раздевальной к залу с ванной бассейна обязательно должен проходить через душ и ножную ванну.

Туалетные следует устраивать до входа в душевые.

6.25 В зале с ванной бассейна желательно иметь место для разминки площадью 25-35 м2 или иметь для этой цели непосредственную связь с залом для музыкальных и гимнастических занятий.

6.26 В бассейне с ванной 10 (12,5) х 6 м целесообразно предусмотреть зал для разминки площадью 54 м, т.к. бассейн с такой ванной используется для обучения детей плаванию. Кладовая инвентаря при таком зале должна составлять не менее 12 м2. При таком бассейне комната тренера должна проектироваться с кабиной для переодевания, туалетом и душем общей площадью не менее 9 м2.

6.27 Комната медсестры, лаборатория анализа воды и узел управления бассейном должны размещаться смежно, суммарная площадь их должна быть не менее 18 м2.

6.28 Ванна бассейна для дошкольников должна проектироваться переменной глубиной от 0,6 до 0,8 м. По периметру ванны следует предусматривать обходные дорожки шириной не менее 0,75 м и 1,5 м - со стороны выхода из душевых.

6.29 Внутренняя поверхность ванн должна быть облицована керамической плиткой, дно - шероховатой керамической плиткой.

В ваннах должны быть устроены пенные корытца, переливные желоба, лестницы в боковых стенах, отверстия для подачи и спуска воды.

В ваннах без бортика необходимо увеличить глубину ванны на 0,3-0,35 м с устройством пенных корытец ниже обходной дорожки на это расстояние, сохраняя глубину воды 0,6-0,8 м.

6.30 Лаборатория анализа воды должна располагаться недалеко от места взятия контрольных проб в ванне; это помещение желательно предусматривать с естественным освещением. Это помещение используется и для приготовления обеззараживающих растворов, поэтому в нем необходимо предусматривать вентиляцию соответственно, нормам.

6.31 Схема функциональных связей, планировка и оборудование помещений бассейна приведены на рис. 40-41.

6.32 В ДУ компенсирующей направленности для спуска в ванну бассейна предусматривается лестница шириной не менее 1,2 м с размерами проступи и подступенка соответственно 0,32 и 0,14 м. Ступени не должны иметь выступающих краев и должны выполняться из материала, не вызывающего скольжения. С двух сторон лестница огораживается перилами высотой 0,6 м. У боковых стен бассейна, по его периметру, следует предусматривать поручни на высоте 0,6 м от отметки днища ванны и на высоте 0,05 м от поверхности воды.

6.33 В плавательном бассейне для детей с нарушением зрения необходимо края ванны бассейна обтянуть резиной, для спуска в ванну предусмотреть две лестницы с перилами, вокруг ванны и вдоль стен - поручни с перилами. Перила крепятся на высоте 0,3 и 0,5 м от уровня пола.

7. ОБЪЕМНО-ПЛАНИРОВОЧНАЯ ОРГАНИЗАЦИЯ СОПУТСТВУЮЩИХ ПОМЕЩЕНИЙ

7.1 Медицинские помещения

7.1.1 В ДОУ независимо от типа и приоритетных направлений развития детей должны предусматриваться помещения общего медицинского обслуживания.

Допускается не предусматривать медицинские помещения в прогулочных группах, дежурных группах кратковременного присмотра, ДОУ типа "Семейный детский сад".

7.1.2 В ДОУ общего типа на 4-6 групп при численности детей от и до 120 мест допускается предусматривать только одну медицинскую комнату площадью не менее 12 м2, которая является кабинетом педиатра и одновременно прививочным (процедурным) кабинетом. В зданиях ДОУ на 7 и более групп с числом детей более 120 и в ДОУ компенсирующего назначения медицинская комната и процедурный кабинет предусматриваются раздельными помещениями с соответствующей площадью 10-12 и 8 м2.

7.1.3 В составе медицинских помещений дошкольных учреждений предусматривается изолятор, состоящий из одной палаты площадью не менее 6 м2 в ДОУ на 4-6 групп и двух палат 6+4 м2 - в ДОУ на 7 и более групп (6 м2 - минимальная площадь двухместной палаты, 4 м2 одноместной). В изоляторе предусматривается приемная, используемая для регистрации состояния больных, а также для хранения и мытья посуды, и туалет, который кроме прямого назначения используется для приготовления дезинфекционных растворов. Приемная изолятора оборудуется двухкамерной мойкой посуды, навесным шкафом для хранения столовой посуды и столом или тумбочкой со стулом. Туалет оборудуется детским унитазом, детской раковиной, душевым поддоном и сливом-видуаром.

7.1.4 Медицинская комната должна иметь самостоятельный вход из рекреационно-коммуникационного пространства здания и размещаться смежно с палатой (одной из палат) изолятора. Между ними следует предусматривать устройство остекленного проема на 1,2 м от уровня пола - для наблюдения со стороны медицинского персонала за больными.

Палаты не должны быть проходными.

7.1.5 В малых ДОУ, а также в групповых отделениях КДВ допускается не предусматривать изолятор, выделяя в медицинской комнате место (кушетку) для временного нахождения заболевшего ребенка.

7.1.6 Медицинские помещения рекомендуется располагать на первом этаже вблизи входа в здание (если не предусматривается самостоятельный наружный выход из изолятора).

7.1.7 В ДОУ общего типа и в зданиях ЦДВ наряду с медицинскими помещениями следует предусматривать комнату коррекции площадью 12-18 м2. Она используется для коррекции недостатков развила детей, в т.ч. отдельных компенсирующих групп детей в комбинированных ДОУ.

В ДОУ компенсирующего назначения комната коррекции выполняет роль кабинета врача-специалиста. При этом в здании ДОУ компенсирующего назначения, не имеющего отдельного кабинета врача-окулиста, комнату коррекции следует проектировать длиной не менее 6 м.

При комнате коррекции целесообразно предусматривать место, где могут переодеться 2-4 ребенка, приглашенных на занятия с прогулки.

7.1.8 Коррекционно-восстановительная работа включает коррекцию двигательных, слуховых, речевых, зрительных нарушений, а также коррекцию интеллектуального развития.

Коррекция двигательных нарушений предполагает комплексное системное воздействие, включающее медикаментозное, физиотерапевтическое и ортопедическое лечение, различные виды массажа, лечебную физкультуру. При этом лечебная физкультура тесно связана с проведением физкультурных занятий и ручного труда. Коррекция речевых нарушений основывается на тесном единстве с мероприятиями, направленными на развитие двигательных функций.

7.1.9 В компенсирующих ДОУ следует дополнительно предусматривать: кабинет врача-специалиста площадью 9 м2, физиотерапевтический кабинет площадью 18 м2, кабинет массажа площадью 9 м2. Комнату коррекции, физиотерапевтический кабинет и кабинет массажа следует располагать в непосредственной близости друг от друга,

7.1.10 В компенсирующих ДОУ следует предусматривать логопедический кабинет (за исключением специализированных ДОУ для детей с нарушением речи, в которых логопедическая комната входив в состав каждой групповой ячейки), а также класс предметно-практического обучения.

Логопедический кабинет площадью 12 м2 предусматривается из расчета один на четыре группы. Класс предметно-практического обучения площадью 24 м2 - один на учреждение.

7.1.11 При логопедическом кабинете целесообразно предусматривать место для раздевания на 4-5 детей, т.к. дети приглашаться на занятия прямо с прогулки.

7.1.12 Физиотерапевтический кабинет с проведением процедур светолечения предусматривается площадью 18 м2 и предназначается для ДОУ компенсирующего назначения всех профилей. В ДОУ для детей с нарушением зрения, последствиями полиомиелита и церебральных параличей предусматриваются кабинеты свето- и теплолечения площадью 18+18 м2.

7.1.13 Примеры планировочных решений и расстановки оборудования медицинских помещений показаны на рис. 42.

7.2 Пищеблок

7.2.1 В проектах ДОУ (кроме прогулочных групп и дежурных групп кратковременного присмотра) следует предусматривать пищеблок, как правило, работающий на сырье. Иная организация приготовления пищи должна определяться заданием на проектирование или проектом по согласованию с органами Госсанэпиднадзора.

7.2.2 В состав пищеблока должны входить кухня с раздаточной, моечная кухонной посуды, заготовочный цех, кладовая овощей, кладовая сухих продуктов, загрузочная, комната персонала, душевая и уборная для персонала.

7.2.3 Производственные цехи рекомендуется размещать в одном помещении, разделяя их перегородками на высоту 1,5-1,8 м или соответствующим зонированием и расстановкой технологического оборудования (с местными отсосами, охлаждающими поверхностями и т.п.).

7.2.4 В кухнях следует предусматривать установку оборудования, работающего на электричестве.

Количество единиц технологического оборудования следует принимать в соответствии со СНиП IV-13-84. Приложение. Сборник сметных норм затрат на оборудование и инвентарь общественных и административных зданий. Сб. № 5.3 "Детские дошкольные учреждения".

7.2.5 Из пищеблока следует предусматривать самостоятельный выход наружу.

Не допускаются проходные кладовые и проход в кладовую через кухню.

Кладовые продуктов и охлаждаемые камеры не следует размещать под моечными, душевыми и санитарными узлами, а также под производственными помещениями с трапами.

7.2.6 В пищеблоке, работающем на полуфабрикатах (например, в дежурных группах кратковременного присмотра), вместо заготовочного цеха и кладовой овощей предусматриваются доготовочный цех и место для хранения и мойки тары полуфабрикатов.

7.2.7 В ДОУ или его филиалах (групповом отделении) в системе КДВ может предусматриваться доставка готовой пищи. В этом случае в них вместо пищеблока предусматривается загрузочная и помещение мойки и хранения тары готового питания (термоконтейнеров), а в централизованном пищеблоке - помещения хранения тары и экспедиции.

7.2.8 Пищеблок рекомендуется размещать на первом этаже, обеспечивая наиболее удобную связь с остальными группами помещений.

7.2.9 Ширину проходов в производственных помещениях следует принимать по Приложению 7.

7.2.10 Примеры планировки и расстановки оборудования пищеблоков приведены на рис. 43.

7.3 Постирочная

7.3.1 В целях улучшения условий внутренней среды в зданиях ДОУ, не рекомендуется предусматривать построчные, рассчитанные на стирку более чем 0,26 кг белья в день на одно место в ДОУ, что составляет 1/3 общего объема стираемого белья. Стирку остального белья следует производить в специализированных городских предприятиях коммунально-бытового обслуживания.

7.3.2 В малых ДОУ на 1-3 детские группы и групповых отделениях КДВ с числом групп не более 3-х или в ДОУ с числом детей не более 60 стиральную, и гладильную допускается размещать в одном помещении. В ДОУ с числом групп 4 (60 мест) и более постирочная должна состоять из двух помещений: стиральной и гладильной. Входы в стиральную и гладильную следует проектировать раздельными. Вход в стиральную должен проектироваться с тамбуром.

7.3.3 В зданиях ДОУ с числом детей до 160 и групповых отделений КДВ, полностью обслуживаемых фабрикой-прачечной или централизованной прачечной в составе КДВ, следует предусматривать помещение для сдачи и сортировки грязного белья площадью 6 м2 с отдельным наружным входом и площадью 10 м2 - при числе мест в ДОУ более 160.

7.3.4 Примеры планировочных решений и расстановки оборудования постирочных показаны на рис. 44.

7.4 Служебно-бытовые помещения

7.4.1 В состав служебно-бытовых помещений ДОУ должны входить кабинет заведующего (директора), комната завхоза, методический кабинет, комната персонала, хозяйственная кладовая, туалеты персонала и комната личной гигиены женщин, помещение охраны.

7.4.2 В малых ДОУ и групповых отделениях КДВ в качестве служебно-бытовых помещений предусматриваются кабинет-оффис заведующего или директора (роль которого может выполнять по совместительству один из воспитателей), комната персонала, а также туалет, хозкладовая и кладовая чистого белья.

7.4.3 Уборные для персонала должны проектироваться на один унитаз и один умывальник. Необходимо, чтобы уборные для персонала предусматривались на каждом этаже.

7.4.4 При входах с участка в здание ДОУ рекомендуется предусматривать туалеты для детей, которыми дети могут пользоваться во время прогулки. Туалеты могут предусматриваться на 1-2 кабины с детскими унитазами и одним детским умывальником.

7.4.5 В ДОУ общего типа, зданиях ЦДВ, содержащих детские группы, рекомендуется выделять главный вход с холлом площадью порядка 12-18 м2.

Холл предназначен для организации информационных стендов, выставок детского творчества, мест ожидания посетителей.

7.4.7 В ДОУ компенсирующего назначения следует предусматривать холл минимальной площадью 12 м2 на 4 группы детей и 18 м2 - на 8 групп.

В компенсирующих ДОУ для детей с нарушением слуха следует предусматривать комнату радиотехника площадью 9 м2.

8. СИСТЕМЫ ИНЖЕНЕРНОГО ОБОРУДОВАНИЯ

8.1 Отопление и вентиляция

8.1.1 При расчете отопления следует учитывать:

потери теплоты через ограждающие конструкции в соответствии с приложением 9 СНиП 2.04.05-91*;

расход теплоты на нагревание инфильтрующего наружного воздуха по формуле:

Q = 0, 28 ´ Gj ´ с ´ (tp-tj) ´ k, вт

где Gj - расход инфильтрующегося воздуха, кг/ч;

с - удельная теплоемкость воздуха, равная 1 кДж/(кг ´ 0С);

tp ´ tj - расчетные температуры воздуха, 0С, соответственно в помещении и наружного воздуха в холодный период года (параметры Б);

k - коэффициент учета влияния встречного теплового потока, равный 0,8 - в помещениях с окнами и балконными дверями с раздельными переплетами и 1,0 с окнами и балконными дверями со спаренными переплетами.

8.1.2 Расход инфильтрующегося воздуха определяется по формуле:

Gj = r ´ (Zв - Zпр), кг/ч

где r - плотность воздуха в помещении, кг/м3;

Zb - объем воздуха, удаляемого из помещения вытяжной вентиляцией, м3/ч, или через открывающиеся фрамуги в соответствии с нopмaтивнoй кратностью воздухообмена;

Zпp - объем воздуха, поступающего в помещение от приточной вентиляции, м3/ч.

8.1.3 У отопительных приборов следует устанавливать автоматические терморегуляторы повышенного гидравлического сопротивления с многопозиционной установкой на расчетный расход воды.

8.1.4 Система водяного отопления проектируется двухтрубной с нижней разводкой с расчетными температурами теплоносителя 95-70 °С.

8.1.5 В тепловых пунктах ДОУ следует предусматривать автоматическое регулирование температуры воды, подаваемой в систему отопления, в зависимости от температуры наружного воздуха и автоматическое поддержание постоянного перепада давления для циркуляции в системе отопления.

8.1.6 В помещениях основного пребывания детей в качестве отопительных приборов могут применяться радиаторы и конвекторы.

При установке отопительных приборов расстояние от пола до низа прибора следует принимать не менее 0,05 м.

Защитные экраны у отопительных приборов из асбоцементных листов и древесно-стружечных плит не допускаются.

8.1.7 В одноэтажных зданиях малых ДОУ с общим числом мест не более 60 (сооружаемых в пригородных поселениях ЛПЗП) допускается устройство печного отопления. Топочные отверстия и печные заслонки должны обслуживаться из подсобных помещений, имеющих окна с форточками и каналы вытяжной естественной вентиляции.

8.1.8 Для временного обогрева летних помещений ДОУ, не имеющих источников теплоснабжения (остекленные веранды и т.п.), допускается использование маслонаполненных электроотопительных радиаторов, при наличии на приборах гибких питающих электрошлангов и штепсельных соединений.

8.1.9 Расчетную температуру при проектировании Отопления и кратность обмена воздуха в помещениях ДОУ, не указанных в приложении 14 к МГСН 4.07-96 "Дошкольные учреждения", следует принимать согласно Приложению 8 настоящего Пособия.

8.1.10 В туалетных комнатах без оконных проемов в наружных стенах рекомендуется на каждом вытяжном канале устанавливать по одному осевому малогабаритному вентилятору.

8.1.11 В служебно-бытовых помещениях, имеющих окна с фрамугами или форточками, или окна, оборудованные устройством, поворачивающим окно вокруг горизонтальной оси (за исключением душевых и туалетов), устройство вытяжных каналов естественной вентиляции допускается не предусматривать.

8.1.12 Для подогрева наружного воздуха, подаваемого в помещения стиральной и гладильной, могут применяться приточные шкафы с использованием в качестве нагревательных элементов калориферов, конвекторов или радиаторов, для постирочных, не оборудованных сушильными барабанами, подогрев поступающего воздуха допускается обеспечивать за счет отопительных приборов.

8.1.13 Относительную влажность воздуха в помещениях основного пребывания детей следует принимать 40-55 %, в кухне и постирочной до 60-70%.

8.1.14 Самостоятельные вытяжные системы следует проектировать от комплекса пищеблока, стиральной-гладильной, помещений бассейна.

Для медицинских помещений следует предусматривать обособленные вытяжные каналы.

8.1.15 Объем воздуха, удаляемого от одного шкафа для сушки детской одежды, принимается в количестве 10 м3/ч.

В помещениях стиральной и гладильной следует предусматривать, как правило, механический приток и вытяжку воздуха.

В туалетных групповых ячеек вытяжку воздуха следует предусматривать из зоны санитарных кабин.

В туалетных детских групп, проектируемых без естественного освещения, вытяжка должна быть не менее 3-х кратной.

8.1.16 Расчетную температуру воздуха в помещениях пребывания детей оздоровительных или компенсирующих групповых ячеек следует принимать на 1 С выше указанной в Приложении 14 к МГСН 4.07-96 "Дошкольные учреждения", но не более 23 С.

8.2 Водоснабжение и канализация.

8.2.1 Основное санитарно-техническое оборудование в ДОУ рекомендуется предусматривать в соответствии с Приложением 9.

Высоту установки детских санитарных приборов от пола помещения до верха борта прибора следует принимать, м:

умывальников - 0,5;

ванн на постаментах - 0,6;

глубокого душевого поддона в ясельных группах - 0,6;

мелкого душевого поддона в дошкольных группах - 0,3.

Высота расположения душевой сетки с гибким шлангом над днищем поддона должна быть 1,5 м. На высоте 0,15 м над бортом поддона следует предусматривать установку дополнительного кронштейна для подвески душевой сетки.

8.2.2 Нагревательные приборы в шкафах для сушки одежды детей в раздевальных, а также полотенцесушители в туалетных должны присоединяться к системе горячего водоснабжения.

8.2.3 В качестве нагревательных приборов для шкафов сушки одежды детей следует применять гладкие или ребристые трубы, а также конвекторы.

8.2.4 Температура горячей воды, поступающей в здание ДОУ, должна быть не ниже 60 °С.

8.2.5 В туалетных групповых ячеек установку трапов предусматривать не следует.

8.2.6 Температура воды в ванне бассейна поддерживается равной 29 °С.

8.2.7 В бассейнах при устройстве водообмена с рециркуляцией воды пополнение свежей водой должно составлять не менее 10 % объема ванны в сутки.

Для бассейнов площадью зеркала воды 20-30 м2 следу предусматривать непрерывный поток свежей воды питьевого качества и расчета не менее 20 % объема ванны в час.

8.2.8 При проектировании бассейнов следует предусматривать мероприятия по обеззараживанию воды.

8.2.9 Обеззараживание осуществляется путем приготовления в специальном помещении концентрированного раствора дезинфектанта, который вводится механически в систему рециркуляции или добавляется непосредственно в ванну бассейна равномерным выливанием раствора из пластмассовой емкости по периметру ванны.

8.2.10 В качестве дезинфицирующих средств для обеззараживания могут быть использованы следующие вещества: известь хлорная или белильная термостойкая, двутретьосновная соль гипохлорида кальция, нейтральный гипохлорид кальция, гипохлорит натрия марки А, 5,5-димитил-1,3-дибромгидантоин. При применении других средств требуется согласование с органами Госсанэпиднадзора. Концентрация остаточного хлора в воде должна поддерживаться на уровне 0,3 мг/л, остаточного брома - 0,7 мг/л.

Применение электролизных установок для получения гипохлорита при обслуживании малых бассейнов весьма затруднено из-за несоответствия производительности установок и реальной потребностью в дезинфектанте, а также ввиду отсутствия в дошкольных учреждениях специалистов по обслуживанию электролизных установок.

8.2.11 Обходные дорожки ванн крытых детских бассейнов следует обогревать с поддержанием температуры поверхности в пределах 26-30 °С.

Допускается не предусматривать обогрев дорожек в случае, когда стены, граничащие с обходными дорожками, являются внутренними и обходные дорожки устраиваются над теплым помещением (подвалом или техническим подпольем). При отсутствии обогрева дорожки, дорожки должны быть покрыты синтетическими ковриками с низкой теплопроводностью.

8.2.12 Отверстия для отвода воды из ванны следует размещать на расстоянии не менее 1 м от стенок. Скорость входа воды в отводящих отверстиях не должна превышать 0,4 м/сек. Скорость истечения воды из подающих отверстий в ванну бассейна следует принимать не более 2 м/сек.

Отводящие отверстия должны быть перекрыты решетками с площадью живого сечения в два раза больше сечения отводящей трубы.

Отводные трубопроводы бассейнов должны присоединяться к канализационным сетям с разрывом струи 0,02 м.

8.2.13 Узел управления бассейном следует располагать на одном с ним уровне и в непосредственной связи с залом бассейна. В помещении узла управления бассейном следует располагать распределительную гребенку, механизмы управления наполнения и сброса воды бассейна. Приборы для определения химического и физического качества воды должны находиться в лаборатории анализа воды.

8.3 Естественное и искусственное освещение, электротехнические устройства.

8.3.1 Все помещения, связанные с длительным пребыванием де должны иметь естественное освещение. При этом коэффициент естественной освещенности (КЕО) в групповой должен быть не менее 1,5 %, в спальне - не более 1 %.

8.3.2 Освещать естественным верхним светом допускается - раздевальные и туалетные групповых ячеек, комнаты психологической разгрузки детей ("Домашний уголок") и взрослых, комнаты персонала, залы для музыкальных и гимнастических занятий, зал с ванной бассейна, зал разминки при бассейне, помещения детских кружков и секций, коммуникационно-рекреационные пространства.

8.3.3 Освещение вторым светом допускается согласно МГСН 4.0-96 "Дошкольные учреждения" в туалетных групповых ячеек.

8.3.4 Допускается не предусматривать естественного освещения буфетных, приемных изолятора, комнатах персонала, кладовых (в том числе кладовой чистого белья, если комната кастелянши предусматривается отдельно), моечной кухонной посуды.

8.3.5 Ориентацию окон помещений по сторонам горизонта следует принимать:

групповой -180 градусов (оптимальная) при допускаемой в секторе от 85 до 275 градусов;

спальни, медицинской и процедурной комнат, комнаты коррекции - 90 градусов (оптимальная) при допускаемой любой;

кухни, заготовочного цеха - 360 градусов, при допускаемой любой.

8.3.6 Для исключения перегрева помещений необходимо предусматривать солнцезащиту при ориентации окон групповых, спален, залов для музыкальных и физкультурных занятий, кружковых помещений, комнаты коррекции, палат изолятора, кухни, заготовочного цеха, обращенных на азимуты 200-275 градусов.

8.3.7 Солнцезащитные устройства должны полностью экранировать прямые солнечные лучи и защищать помещение от перегрева. В отдельных случаях регулируемые солнцезащитные устройства могут использоваться для снижения или полного исключения естественного освещения. Конструкция регулируемых солнцезащитных устройств в исходном положении не должна уменьшать площадь оконного проема и снижать нормируемую величину КЕО, а также не препятствовать проветриванию помещения через элементы оконного заполнения.

Регулируемые солнцезащитные устройства должны соответствовать размерам световых проемов и типу их заполнения, быть надежными в работе и удобными в эксплуатации.

В ДОУ могут применяться внутренние, межстекольные и наружные солнцезащитные устройства. Внутренние солнцезащитные устройства используются для ограничения блескости и обеспечения светового комфорта, межстекольные и наружные - для защиты от перегрева и обеспечения светового комфорта.

В зависимости от ориентации оконных проемов могут быть рекомендованы:

козырьки - для южной ориентации;

веранды, крытые террасы - при южной, юго-западной и юго-восточной ориентации;

ячеистые солнцезащитные элементы - при южной, юго-западной и юго-восточной ориентации;

вертикальные солнцезащитные элементы - при западной и восточной ориентации;

теплопоглощающие стекла - применяются дня снижения проникающей радиации при любой ориентации.

8.3.8 По степени надежности электроснабжения потребители электроэнергии дошкольные учреждения относятся ко II категории.

8.3.9 Электроснабжение осуществляется, как правило, кабельными линиями, прокладываемыми в земле, в траншее или в коллекторе.

8.3.10 Распределение электроэнергии к силовым распределительным щитам и пунктам осуществляется по магистральной схеме.

Вводно-распределительное устройство (ВРУ) устанавливается в электрощитовом помещении, располагаемом на первом этаже здания. ВРУ составляется из вводных и распределительных панелей. К водной панели подводятся две питающие линии от разных трансформаторов двух трансформаторных подстанций.

Количество распределительных панелей, точки установки автоматических выключателей выбираются при составлении схемы магистральных сетей и после проверки распределительных магистралей по потере напряжения.

8.3.11 Силовые распределительные пункты следует устанавливать в центре нагрузок.

Силовые распределительные сети выполняются:

открыто - проводами с алюминиевыми жилами в пластмассовых трубах, на лотках в техническом подполье, небронированными кабелями, проводом АВП по стенам в защищенном от механических повреждений коробе;

проводом в стальных трубах - выводами к технологическому оборудованию, установленному в отдалении от стен помещений;

при варианте перегородок из гипсокартонных листов по деревянному каркасу электрические сети выполняются проводом с алюминиевой жилой в стальных трубах.

8.3.12 Электрические сети выбираются в соответствии с Правилами устройства электроустановок (ПУЭ) по условиям допустимого нагрева, потерь напряжения и соответствия принятых сечений токам аппаратов защиты.

8.3.13 Учет электроэнергии осуществляется на вводно-распределительном устройстве, для пищеблока - самостоятельный, и осуществляется на распределительной панели.

8.3.14 Во всех помещениях ДОУ должна предусматриваться скрытая электропроводка, в кухне, санитарных узлах, кладовых, технических и остальных подсобных помещениях допускается открытая проводка.

8.3.15 Сети освещения выполняются:

проводом с алюминиевой жилой - открыто в пустотах плит перекрытий (при несовпадении трассы с пустотами плит перекрытий - в пластмассовых трубах поверх плит перекрытий в подготовке пола и кровли), в бороздах перегородок;

кабелем небронированным открыто: на скобах в техническом подполье, моечной, кладовой, горячем цехе (кухне), вентиляционной камере, электрощитовой, стиральной, гладильной.

8.3.16 В осветительных установках должны применяться световые приборы, электрооборудование и материалы промышленного изготовления, отвечающие требованиям государственных стандартов и технических условий.

8.3.17 В помещениях ДОУ должно быть предусмотрено рабочее, дежурное и аварийное освещение (освещение безопасности и эвакуационное).

8.3.18 К сети рабочего освещения подключаются светильники общего и местного освещения. Величины освещенностей рабочего освещения принимаются по СНиП 23-05-95 "Естественное и искусственное освещение" и МГСН 2.01-94 "Энергосбережение в зданиях. Нормативы по теплозащите и тепловодоэлектроснабжению" указываются на планах этажей здания.

8.3.19 Проектирование осветительных установок искусственного освещения следует выполнять на основе светотехнических расчетов с обязательным включением результатов расчетов в раздел "Электрооборудование".

8.3.20 Дежурное освещение устраивается в спальнях, палатах изолятора, кабинете заведующего и помещениях охраны. Для организации дежурного освещения выделяется часть светильников рабочего и аварийного освещения, присоединенных к отдельной групповой линии. Для дежурного ночного освещения спальных помещений, помещений для заболевших детей и палат изоляторов ДУ следует применять специальные светильники со стеклом синего цвета и экранирующей решеткой.

8.3.21 Освещение безопасности устраивается в электрощитовых, вентиляционных камерах, тепловых узлах, насосных, медицинских помещениях, комнате охраны. Минимальная освещенность на полу при таком освещении должна составлять 5% освещенности, нормируемой для рабочего освещения, но не менее 2 лк и не более 30 лк для разрядных ламп и не более 10 лк - для ламп накаливания. Превышение вышеуказанных значений допускается при наличии соответствующих обоснований.

8.3.22 Эвакуационное освещение устраивается в групповых, раздевальных, коридорах, на лестницах, в плавательных бассейнах, кухнях и стиральных. Наименьшая освещенность должна быть не менее 0,5 лк на полу помещения и 5 лк на воде бассейна.

Светильники аварийного и эвакуационного освещения подключаются к отдельной линии аварийно-эвакуационного освещения и выделаются из числа светильников рабочего освещения специальными знаками.

8.3.23 В помещениях ДОУ используется в основном система общего равномерного освещения.

Система комбинированного (или локализованного) освещения рекомендуется в приемных для лучшего осмотра детей.

8.3.24 Для общего освещения ДОУ следует применять, как правило люминесцентные лампы. Люминесцентные светильники должны комплектоваться пускорегулирующими аппаратами с особо низким уровнем шума. В отдельных случаях допускается применение ламп накаливания. Тип люминесцентных ламп выбирается в зависимости от назначения помещения. Некоторые характеристики люминесцентных ламп отечественного производства, рекомендуемых для применения в осветительных установках образовательных учреждений приведены в Приложении 10.

В помещениях ДОУ при отсутствии повышенных требований к цветопередаче рекомендуются люминесцентные лампы типа ЛБ, ЛХБ, ЛЕЦ.

Помещения с повышенными требованиями к цветопередаче (помещения для изобразительных видов творчества, изостудии и др.) рекомендуется освещать люминесцентными лампами типов ЛБЦТ, ЛЕЦ, ЛХЕ. Для освещения групповых, спален, рекреаций рекомендуются люминесцентные лампы типов ЛБТЦ, ЛЕЦ.

8.3.25 Для общего освещения групповых, залов для музыкальных гимнастических занятий рекомендуется применять светильники рассеянного света с люминесцентными лампами, направляющие в верхнюю полусферу не менее 15 % излучаемого светового потока (типов ЛСО 0,4, ЛСО 0,5, ЛПО 28, ЛИП 33, ЛПО 31) или светильники с лампами накаливания.

В "домашнем уголке" следует предусматривать настенные светильники (бра).

Включение рядов (групп) светильников должно осуществляться раздельно, либо автоматически светорегуляторами в зависимости от уровня естественного освещения.

8.3.26 Для освещения комнат компьютерных игр (компьютерных классов) следует применять потолочные светильники прямого света с непрозрачными боковинами типа ЛПО 46. Возможно применение светильников других типов при условии, что допустимая яркость последних, отражающихся в экране дисплея, составляет не более 2000 кд/м2.

8.3.27 Для освещения бассейнов рекомендуется применять брызгозащищенные светильники с диффузными рассеивателями прямого или преимущественно прямого света (типов ПВЛП, ПВЛ 1). Светильники должны располагаться на потолке или стенах над продольными краями ванны. Места расположения светильников должны находиться в зоне, доступной для обслуживания.

8.3.28 На земельных участках освещение предусматривается при средней горизонтальной освещенности групповых площадок и крылец входов в здание - 10 лк, проходов (пешеходных дорожек) и проездов - 6 лк.

8.3.29 В компенсирующих ДОУ (групповых ячейках), проектируемых как логопедические, в комнатах коррекции около зеркала следует предусматривать настенные светильники местного освещения на кронштейне, на высоте 1,2 м от уровня пола, позволяющем менять угол наклона и высоту закрепления светильника.

8.3.30 Установку штепсельных розеток следует предусматривать в следующих помещениях: комнате коррекции, раздевальных, медицинской комнате, приемной изолятора, процедурном кабинете, кабинете заведующего, комнатах персонала, завхоза, кастелянши, в комнатах психологической разгрузки ("домашнем уголке" групповой ячейки), в комнате занятий по подгруппам и индивидуальных занятий с ребенком, в комнатах детских кружков и секций, а также в общем коммуникационно-рекреационном пространстве.

В групповой и залах для музыкальных и гимнастических занятий, в классах, для использования технических средств обучения предусматриваются по две штепсельные розетки.

В компьютерном классе (комнате компьютерных игр) - по числу устанавливаемых компьютеров).

Штепсельные розетки и выключатели для общего освещения должны находиться на высоте 1,8 м от уровня пола.

8.3.31 В компенсирующих ДОУ (группах) для детей с нарушением зрения, в комнатах коррекции следует предусматривать по четыре двойных штепсельных розетки на высоте 1,0 м от уровня пола в соответствии с размещением оборудования.

8.3.32 Двухсторонняя селекторная связь предусматривается между кабинетом заведующего со следующими помещениями: групповыми, медицинской комнатой, пищеблоком, построчной, комнатой завхоза комнатой кастелянши.

8.3.33 Проектирование систем автоматизации санитарно-технических систем следует выполнять в соответствии с Указаниями по проектированию систем автоматизации технологических процессов ВСН 281-75.

Телефонизацию следует проводить от наружной телефонной сети по конкретным техническим условиям.

Радиотрансляцию - от наружной радиотрансляционной сети, уплотненной системой трехпрограммного радиовещания, по конкретным техническим условиям.

Пожарную сигнализацию - от приемно-контрольных охранно-пожарных приборов, устанавливаемых в кабинете заведующего (или в помещении охраны).

8.4 Защита от шума, звукоизоляция, акустика помещений.

8.4.1 При размещении дошкольных учреждений (ЦДВ, групповых отделений КДВ, УВК), в отдельно стоящих зданиях или встроенных в жилой дом, следует учитывать воздействие внешнего шума, излучаемого различными источниками (транспортные магистрали, РТС, ТП, ЦТП и др.), расположенными вблизи места застройки.

8.4.2 В помещениях ДОУ должны соблюдаться нормативные требования по шуму, звукоизоляции внутренних и наружных ограждающих конструкций (в том числе окон) согласно СНиП II-12-77, СНиП II-76-78, ВСН 2-85.

8.4.3 При проектировании ДОУ должна быть предусмотрена рациональная планировка с точки зрения размещения тихих и шумам помещений.

8.4.4 Во встроенных в жилой дом дошкольных учреждениях должны предусматриваться противошумные мероприятия в зависимости от шумовых и вибрационных параметров технологического, вентиляционного и прочего оборудования (постирочных, пищеблока, лифтов, грузовых подъемников, залов для музыкальных и физкультурных занятий). Шумозащитные мероприятия (звукоизоляция, виброизоляция, звукопоглащение), в соответствии с акустическими расчетами, должны обеспечить нормативные параметры проживания жилом доме (ВСН 2-85).

8.4.5 Системы вентиляции должны предусматривать глушители шума, которые подбираются в соответствии с акустическими paсчетами. Снижение воздушной составляющей шума вентиляционного оборудования должно рассчитываться с учетом работы вентиляции в ночное время.

Вентиляционное и технологическое оборудование должно размещаться на соответствующих виброизолированных устройствах во избежание передачи звука и вибраций по строительным конструкциям здания.

8.4.6 При размещении помещений с инженерным и технологическим оборудованием, являющимся источником шума и вибраций смежно с групповыми ячейками, следует проводить соответствующий акустический расчет и специальные мероприятия для обеспечения нормативных параметров шума и вибраций в групповых ячейках.

8.4.7 В зданиях ЦДВ и УВК в зальных помещениях (бассейн, зал гимнастических и музыкальных занятий, зал-арена), должны соблюдаться требования СНиП II-76-78 "Нормы проектирования спортивных сооружений" по обеспечению требуемого времени реверберации. Акустическая комфортность может достигается путем применения различных звукопоглащающих материалов или конструкций как в сухих помещениях, так и в помещениях с повышенной влажностью.


Рис. 1 Принципиальные схемы решения участков ДУ

а - в обычных условиях; б - при примыкании участка к зданию; в - в отрыве от здания

1 - здание ДУ; 2 - групповые площадки ясельных групп; 3 - групповые площадки детей 3-6 (7) лет; 4 - теневой навес; 5 - общая физкультурная площадка; 6 - специализированные площадки; 7 - плательный бассейн; 8 - огород-ягодник; 9 - площадка для домашних животных и птиц; 10 - хозплощадка (мусоросборники); 11 - место для стоянки личных автомобилей персонала; 12- место ожидания родителями детей; 13 - кольцевая велосипедная дорожка; 14 - кольцевой автомобильный проезд; 15 - озеленение

Рис. 2 Примеры решения участков в нестандартной ситуации

а - при примыкании к зданию ДОУ:

1 - здание (площадь застройки); 2 - групповые площадки; 3 - теневые навесы; 4 - пешеходные дорожки; 5 - озеленение; 6 - хозплощадка; 7 - мусоросборники; 8 - общая физкультурная площадка;

б - при УВК:

1А - школьное отделение; 1Б - дошкольное отделение; 2 - теневой навес; 3 - групповая площадка; 4 - физкультурная площадка дошкольного отделения; 5 - площадка для животных и птиц; 6 - огород-ягодник; 7 - хозплощадка; 8 - площадка для двухкомандных игр; 9 - гимнастическая площадка; 10 - беговая дорожка; 11 - площадка для отдыха; 12 - участок плодового сада; 13 - участок овощных и плодовых культур; 14 - метеорологическая и геологическая площадка;

в - в отрыве от зданий ДОУ, пристроенных к жилым домам:

1 - здания ДОУ; 2 - участки игровой территории.

Рис. 3 Размещение оборудования на групповых площадках

а - детей 0-1 года; б - детей 1-2 лет

2.1. (здесь и далее цифровые обозначения даны в соответствии с Приложением 3 к Рекомендациям по размещению, планировке и оборудованию участков дошкольных учреждений. М., ЦНИИЭП учебных зданий, 1984 г.) - столик для игр; 2.2 - скамья со спинкой для детей; 2.3 - манеж; 2.4 - столик-барьер; 2.5 - барьер; 2.6 - песочница-столик; 3.1 - горка-манеж; 3.5 - оборудование для профилактики плоскостопия; 3.10 - лесенки-ступеньки; 3.19 - корзина для забрасывания мяча; 4.4 - пароход; 6.1 - скамья для взрослых; 6.2 - цветочница


Рис. 4 Размещение оборудования на площадке для детей 2-3 лет

2.1 - столик для игр; 2.2 - скамья со спинкой для детей; 2.7 - песочница; 3.3 - качели; 3.5 - оборудование для профилактики плоскостопия; 3.6 - столбики, 3.7 - балансир; 3.10 - лесенки-ступеньки; 3.11 - лестница наклонная; 3.13 - гимнастическая лестница; 3.14 - оборудование для лазания и игр с мячом; 3.17 - игровая стенка; 4.3 - автомобиль; 5.1 - чаша с водой; 6.1 - скамья для взрослых; 6.2 - цветочница

Рис. 5 Размещение оборудования на площадке для детей 3-4 лет

2.1 - столик для игр; 2.2 -скамья со спинкой для детей; 2.7 - песочница; 3.2 - горка-скат; 3.3 - качалка; 3.4 - качели; 3.5 - оборудование для профилактики плоскостопия; 3.7 - балансир; 3.8 - бум; 3.11 - лестница наклонная; 3.12 - лесенки-перекладины; 3.14 - оборудование для пролезания; 3.17 - игровая стенка; 3.19 - корзина для забрасывания мяча; 4.1 - домик; 4.3 - автомобиль; 5.1 - чаша с водой; 6.1 - скамья для взрослых; 6.2 - цветочница


Рис. 6 Размещение оборудования на площадке для детей 4-5 лет

2.1 - столик для игр; 2.2 - скамья для детей; 2.8 - песочный дворик; 3.2 - горка-скат; 3.4 - качели; 3.8 - бум; 3.12 - лесенки-перекладины; 3.13 - гимнастическая лестница; 3.14 - оборудование для лазания и игр с мячом; 3.15 - лиана для лазания; 3.17 - игровая стенка; 3-19 - корзина для забрасывания мяча; 4.1 - домик; 4.3 автомобиль; 5.7 - короба для пускания корабликов; 6.2 - цветочница


Рис. 7 Размещение оборудования на площадке для детей 5-6 лет

2.1 - столик для игр; 2.2 - скамья со спинкой для детей; 2.3 - песочный дворик; 3.2 - горка-скат для съезжания; 3.4 - качели; 3.5 - оборудование для профилактики плоскостопия; 3.7 - балансир; 3.8 - бум-лесенка; 3.12 - лесенки-перекладины; 3.13 - гимнастическая лестница; 3.14 - оборудование для лазания и игр с мячом; 3.15 - лиана для лазания; 3.17 - игровая стенка; 3.18 - стол для тенниса; 4.1 - домик; 5.2 - канал для пускания корабликов; 6.1 - скамья для взрослых; 6.2 - цветочница

Рис. 8 Размещение оборудования на площадке для детей 6-7 лет

2.1 - столик для игр; 2.2 - скамья со спинкой для детей; 2.8 - песочный дворик; 3.2 - горка-скат; 3.4 - качели; 3.5 - оборудование для профилактики плоскостопия; 3.8 - бум-лесенка; 3.9 - бум-балансир; 3.13 - гимнастическая лестница; 3.17 - игровая стенка; 3.18 - теннисный стол; 4.1 - домик; 4.2 - ракета; 5.2 - канал для пускания корабликов; 6.1 - скамья для взрослых; 6.2 - цветочница


Рис. 9 Размещение оборудования на физкультурной площадке:

I - беговая дорожка; II - спортивная площадка для игр в волейбол, бадминтон, баскетбол, городки; III - зеленая лужайка для подвижных игр с элементами соревнования; IV - зона с гимнастическим оборудованием и спортивными снарядами; V - яма для прыжков в длину и в высоту; VI - полоса препятствий

1 - щит для игры в баскетбол; 2 - сетка волейбольная; 3 - ворота хоккейные или футбольные; 4 - теннисный стол; 5 - игровой гимнастический комплекс: а - разновысокие перекладины; б - канат для лазания; в - сетки; г - перекладина; д - шест и веревочная лестница; е - бум; 6 - гимнастическая стенка; 7 - фигурное вонтанирующее устройство; 8 - арка для подлезания; 9 - лиана; 10 - душ; 11 - скамьи без спинок для детей; 12 - цветочница; 13 - урна

Рис. 10 Пример планировки и оборудования площадки для обучения детей правилам дорожного движения

1 - пешеходный переход; 2 - осторожно, дети; 3 - перекресток; 4 - главная дорога; 5 - конец главной дороги; 6 - STOP; 7 - движение запрещено; 8 - место стоянки; 9 - движение направо; 10 - движение налево; 11 - указатель пешеходного перехода; 12 - светофор; 13 - металлическое ограждение; 14 - информационный стенд; 15 - физкультурная площадка; 16 - групповая площадка; 17 - бассейн; 18 - гимнастическая вышка - мост


Рис. 11 Пример решения песочного дворика (опыт Болгарии)

а - план; б - разрез

1 - бетонный модульный элемент; 2 - деревянный элемент, 3 - планка; 4 - песок (30 см); 5 - кирпич; 6 - песок, глина; 7 - бетон

Рис. 12 Групповая площадка для детей с нарушением слуха

1 - карусель; 2 - кольцеброс; 3 - качели шинные; 4 - песочница; 5 - система обручей для пролезания; 6 - макет корабля; 7 - качалки на пружинах; 8 - теневой навес; 9 - доска с планочками; 10 - односкатная горка; 11 - скамья; 12 - одноярусный лабиринт алфавитный; 13 - вкопанные шины; 14 - наклонная лестниц

Рис. 13 Лечебно-гимнастическая площадка для детей с нарушением зрения

1 - бревно на грунте; 2 - бревно на стойках; 3 - доска на грунте; 4 - циклотренажер; 5 - наклонная лестница; 6 - наклонная доска; 7 - шагоход; 8 - следоступ; 9 - волнистая доска; 10 - доска «елочка»; 11 - ребристая доска; 12 - велотренажер; 13 - дорожки из различных покрытий; 14 - дорожки из щитов; 15 - дорожки из дощечек; 16 - звуковые ориентиры; 17 - вертикальные гимнастические лестницы

Рис. 14 Лечебно-гимнастическая площадка для детей с последствиями полиомиелита и церебральных параличей

1 - вертикальные гимнастические лестницы; 2 - дорожка для дифференцирования движений; 3 - шведская стенка; 4 - скамья; 5 - наклонная лестница; 6 - наклонная доска; 7 - циклотренажер; 8 - наклонная плоскость; 9 - батут; 10 - разные виды подъемников; 11 - ориентиры на грунте для построения детей; 12 - дорожки с различными покрытиями; 13 - валиковые дорожки; 14 - волнистая доска; 15 - доска «елочка»; 16 - следоступы; 17 - дорожка с разделителем; 18 - велотренажер

Рис. 15 Гимнастическая площадка для детей с нарушением слуха

1 - бревно на стойках; 2 - скамья; 3 - наклонная лестница; 4 - наклонная доска; 5 - бум; 6 - брусья; 7 - перекладина; 8 - рукоход; 9 - подъемник со страховкой; 10 - доска для укрепления пресса; 11 - шесты; 12 - кольца; 13 - ориентиры на грунте для построения детей; 14 - шведские стенки; 15 - различные виды подъемов; 16 - фиксированная штанга; 17 - силовой балансир ножной; 18 - силовой балансир ручной

Рис. 16 Гимнастическая площадка для детей с последствиями полиомиелита и церебральных параличей

1 - бревно на грунте; 2 - бревно на стойках; 3 - доска на грунте; 4 - скамья; 5 - наклонная лестница; 6 - наклонная доска; 7 - брусья; 8 - перекладина; 9 - рукоход; 10 - шесты; 11 - кольца; 12 - ориентиры на грунте для построения детей; 13 - шведские стенки; 14 - вертикальные гимнастические лестницы; 15 - доска с планками

Рис. 17 Твердые покрытия на групповых площадках ДОУ

а - с применением бетонной тротуарной плитки; б - деревянное

Рис. 18 Твердые покрытия для пешеходных дорожек

а - асфальтовое; б - настил из гравия

Рис. 19 Посадка кустарников и организация живой изгороди

а - однорядная; б - двухрядная

Рис. 20 Посадка деревьев

а - плотная рядовая широтного направления; б - меридионального направления; в - гармоническая группа; г - контрастная группа

 - групповая ячейка

 - ученический класс школы

 - общие помещения компенсирующей и коррекционной деятельности

____ - связи для детей

- - - - - связи для персонала

 - сопутствующие помещения (медицинские, пищеблок, прачечная и др.)

 - специализированные помещения для работы с детьми

Рис. 21 Функциональная структура ДУ (состав и взаимосвязь функциональных элементов)

а - Малые ДУ; б - ДУ общего типа; в - компенсирующие ДУ; г - КДВ; д - УВК

Рис. 22 Связи основных и дополнительных помещений групповых ячеек

а - оздоровительной группы детей возраста до 3 нет; б - разновозрастной группы детей возраста до 3 лет; в - одновозрастной группы дети возраста 3-6 (7) лет; г - разновозрастной группы детей возраста 3-6 (7) лет; д - групповой ячейки группы «шестилеток» (с классным помещением); е - мало комплектной группы «семейный детский сад»; ж - прогулочных групп; и - дневной группы кратковременного присмотра; к - круглосуточной дежурной группы кратковременного присмотра

Р - раздевальная; ГР - групповая; СП - спальня; Б - буфетная; Т - туалетная; КП - комната персонала; ПР - комната психологической разгрузки («Домашний уголок»); РП - помещение для занятий (работы) по подгруппам; OB - остекленная веранда; ОТ - открытая терраса; ВБ - ванна-бассейн; КЛ - классное помещение; ИР - помещение для индивидуальной работы с ребенком

Рис. 22 (продолжение)

Рис. 22 (продолжение)

Рис. 23 Функциональные зоны в раздевальных

а - ясельных групп детей; б - в группах детей 3-6 (7) лет

1 - шкаф для верхней одежды детей; 2 - пеленальный стол; 3 - скамья для переодевания детская

Рис. 24 Примеры размещения мебели в раздевальных:

а - группы дети 0-1 года; б - детей 1-2 лет;

1 - стол туалетно-пеленальный; 2 - стол воспитателя; 3 - стол для корма матери; 4 - шкаф для одежды грудников; 5 - шкаф для одежды детей 1-2 лет; 6 - отделения для хранения комплектов белья; 7 - шкаф для одежды персонала; 8 - шкаф для одежды матерей; 9 - стул; 10 - табурет для ног; 11 - раковина; 12 - табурет; 13 - скамья для переодевания, детская; 14 - шкаф для детской одежды

Рис. 25 Примеры размещения мебели в раздевальных:

а - группы детей 2-3 лет; б - детей 3-6 (7) лет; 1 - шкаф для одежды персонала; 2 - табурет; 3 - скамья для переодевания, детская; 4 - шкаф для детской одежды

Рис. 26 Различные схемы размещения мебели в функциональных зонах групповой детей 1-2 лет

а - размещение столов для кормления детей; б - шкафы для игр и пособий; в - горка-манеж; г - стол уголка живой природы; д - зона воспитателя; е - варианты размещения детских четырехместных столов

1 - стол воспитателя; 2 - стул; 3 - стол для кормления детей 1-2 лет; 4 - кресло детское с подножкой; 5 - табурет для персонала; 6 - шкаф для игрушек и пособий; 7 - стол четырехместный; 8 - стул детский; 9 - горка-манеж; 10 - стол для уголка живой природы

Рис. 27 Различные схемы размещения мебели в групповой детей 0-1 года

1 - стол туалетно-пеленальный; 2 - стол туалетно-массажный; 3 - выдвижная секция для детской одежды и весов; 4 - стол для кормления; 5 - стул воспитателя; 6 - стол детский четырехместный; 7 - стул датский; 8 - манеж общий; 9 - барьер; 10 - бревно для перелезания; 11 - каталка; 12 - шкаф для белья; 13 - шкаф для игрушек и пособий; 14 - стол воспитателя

Рис. 28 Примеры размещения мебели в групповой детей 1-2 лет

1 - стол туалетно-пеленальный; 2 - стол для кормления; 3 - стол детский четырехместный; 4 - стол воспитателя; 5 - стол для уголка живой природы; 6 - кресло детское с подножкой; 7 - стул воспитателя; 8 - детское сиденье для кормления детей; 9 - шкаф для комплектов детской одежды; 10 - шкаф для игрушек и пособий

Рис. 29 Разные приемы организации «зоны столиков» в групповых детей 3-6 (7) лет во время еды и занятий, для которых данная организация пространства является желательной

Рис. 30 Примеры размещения мебели в групповых

а - детей 2-3 лет; б - детей 3-4 лет; в - детей 4-6 (7) лет

1 - стол детский четырехместный; 2 - стол детский двухместный; 3 - стол воспитателя; 4 - стол для уголка живой природы; 5 - стол-верстак; 6 - стол ленточный подоконный; 7 - стул детский; 8 - стул воспитателя; 9 - шкаф для посуды; 10 - шкаф для игрушек; 11 - шкаф для строительного материала; 12 - доска; 13 - горка; 14 - гимнастическая стенка

Рис. 31 Функциональные зоны при размещении детских кроваток в спальнях

а - размещение индивидуальных кроваток; б - размещение встроенных откидных кроваток

Рис. 32 Приемы размещения мебели в спальнях

а - размещение в помещениях площадью 46-50 м2 с индивидуальными кроватками; б - со встроенными откидными кроватками; в - размещение в одном помещении площадью 36-40 м2; г - размещение с двумя подзонами по 18-20 м2


Рис. 33 Функционально-габаритные схемы туалетных

а - детей 0-1 года; б - детей от 1 до 3 лет; в - детей от 3 до 5 лет; г, д, е - для детей 5-6 (7) лет


Рис. 34 Связи основных помещений компенсирующей групповой ячейки

а - с преимущественно дневным пребыванием детей; б - с преимущественно круглосуточным пребыванием детей

Р - раздевальная; ГР - групповая; СП - спальня; Б - буфетная; Т - туалетная; КК - комната коррекции; КП - комната персонала; СТ - столовая; КЛ - кладовая личных вещей детей

Рис. 35 Пример планировочного решения групповой ячейки детской группы с компенсирующей направленностью

1 - раздевальная; 2 - игровая;. 3 - комната воспитателя; 4 - столовая; 5 - класс; 6 - сушильная; 7 - кладовая; 8 - туалетная; 9 - буфетная; 10 - спальня; 11 - веранда

Рис. 36 Оборудование комнат коррекции для детей с нарушением зрения

а - кабинет тифлопедагога; б - плеопто-ортоптическая комната; в - плеопто-ортоптическая комната, совмещенная с кабинетом окулиста

1 - стол педагога; 2 - стол детский; 3 - стол винтовой для оборудования; 4 - шкаф для пособий; 5 - шкаф для медикаментов; 6 - шкаф для одежды; 7 - стул винтовой

Рис. 37 Габариты отдельных функциональных зон в зале для музыкальных и гимнастических занятий

а - организация зоны просмотра теле- и видеопрограмм; б - площадь для проведения физзарядки

Рис. 38 Расстановка оборудования в залах для музыкальных и физкультурных занятий

а - для физкультурах занятий площадью 100 м2; б - то же, площадью 75 м2; в - для музыкальных занятий

1 - стенка гимнастическая; 2 - канат; 3 - кольцо для пролезания; 4 - мостик-качалка; 5 - скамья гимнастическая; 6 - стойка для игровых пособий; 7 - стойка для прыжков; 8 - бревно гимнастическое; 9 - бревно круглое; 10 - шкаф для спортинвентаря; 11 - стул детский; 12 - пианино; 13 - табурет для пианино; 14 - шкаф для пособий

Рис. 39 Расстановка оборудования в залах для музыкальных и физкультурных занятий компенсирующих дошкольных учреждений

а - для физкультурных занятий детей без нарушения функции движения; б - то же, для детей с нарушением опорно-двигательного аппарата; в - для музыкальных занятий

1 - стенка гимнастическая; 2 - канат; 3 - кольцо для пролезания; 4 - мостик-качалка; 5 - скамья гимнастическая; 6 - стойка для игровых пособий; 7 - стойка для прыжков; 8 - зеркало; 9 - ковер; 10 - шкаф для спортинвентаря; 11 - стеллаж; 12 - пианино; 13 - табурет для пианино; 14 - стул детский; 15 - стол; 16 - магнитофон (магнитола, музыкальный центр); 17 - геометрический рисунок пола; 18 - шкаф для пособий

Рис. 40 Схема функциональной взаимосвязи помещений бассейна

1 - зал с ванной бассейна; 2 - место для разминки; 3 - душевая; 4 - туалетная; 5 - раздевальная; 6 - комната тренера с душем и туалетом; 7 - инвентарная; 8 - комната медсестры; 9 - лаборатория анализа воды; 10 - зал «сухого» плавания; 11 - вестибюль с гардеробом; 12 - служебные помещения

Рис. 41 Примеры планировки и оборудования помещений бассейна с ванной размером:

а - 7´3 м; б - 12,5´6 м

I - зал с ванной; II - раздевальная; III - душевая

1 - шкафы для одежды детей; 2 - скамья детская для переодевания; 3 - сушильный барабан; 4 - душевая кабина; 5 - ножная ванна; 6 - фен для сушки волос

Рис. 42 Примеры планировки медицинских помещений в ДУ:

а - на 4-6 групп; б - на 8-10 групп; в - в Центрах дошкольного воспитания на 12 групп

I - приемная; II - палата; III - медицинский кабинет; IV - процедурный кабинет; V - туалет изолятора

1 - кушетка медицинская; 2 - шкаф для медикаментов; 3 - стол воспитателя; 4 - стул для взрослых; 5 - стол сервировочный; 6 - стул детский; 7 - кровать детская стационарная; 8 - кровать детская с ограждением; 9 - тумбочка медицинская; 10 - шкаф для хранения дезинфицирующих средств


Рис. 43 Примеры планировки и оборудования пищеблоков:

а - Малых ДОУ, б - ДОУ на 4-6 групп; в - ДОУ на 8-10 групп

I - кухня с раздаточной; II - заготовочный цех; IV - моечная кухонной посуды; VI - охлаждаемая камера; VII - кладовая сухих продуктов; VIII - кладовая овощей; IX - загрузочная

1 - плита электрическая; 2 - вставка; 3 - шкаф жарочный электрический; 4 - котел пищеварочный электрический; 5 - электрокипятильник непрерывного действия; 6 - агрегат фреоновый компрессорный; 7 - шкаф холодильный; 8 - универсальный привод на тележке; 9 - картофелечистка; 10 - стол со встроенной моечной ванной; 11 - стол производственный; 12 - стол для дочистки картофеля; 13 - шкаф для хлеба; 14 - ванна моечная; 15 - стеллаж производственный; 16 - подтоварник металлический; 17 ларь для овощей; 18 - весы товарные; 19 - стеллаж производственный передвижной; 20 - песколовка с одной воронкой; 21 - раковина производственная


Рис. 44 Примеры планировки и оборудования постирочных

а - в ДУ вместимостью 8-10 групп; б - в Центрах дошкольного воспитания на 12 (14) групп

1 - машина стирально-отжимная автоматизированная с электрообогревом; 2 -центрифуга для отжима выстиранного белья; 3 - котел или электрическое варочное устройство; 4 - барабан сушильный; 5 - стол гладильный; 6 - секция для белья; 7 - ларь для грязного белья; 8 - ванна для замачивания; 9 - пресс гладильный для сушки и глажения выстиранного и отжатого прямого и фасонного белья

Рис. 45 Пример проектного решения малого дошкольного учреждения на 1 группу детей (15 мест)

Арх. Л. Смывина, Б. Гранцев, Институт общественных зданий

1 - раздевальная-холл; 2 - групповая; 3 - спальня; 4 - буфетная; 5 - туалетная; 6 - ванна-бассейн; 7 - остекленная веранда; 8 - открытая терраса; 9 - медицинская комната; 10 - кухня; 11 - постирочная; 12 - кабинет-офис

Рис. 46 Малое ДОУ на 2 группы (15 + 15 мест). План 1 этажа

Арх. Л. Смывина, Б. Гранцев. Институт общественных зданий

1 - холл-раздевальная на 2 группы; 2 - групповая; 3 - спальня; 4 - туалетная; 5 - буфетная; 6 - помещение для занятии по подгруппам; 7 - «домашний уголок»; 8 - ванна-бассейн; 9 - остекленная веранда; 10 - открытая терраса с теневым навесом; 11 - медицинская комната; 12 - кухня

Рис. 47 Малое ДОУ на 3 группы (10 + 15 + 20 мест). План I этажа

Арх. Л.Смывина, Б. Гранцев. Институт общественных зданий

1 - раздевальная-холл на 3 группы; 2 - групповая; 3 - спальня; 4 - туалетная; 5 - буфетная; 6 - помещение для занятий по подгруппам; 7 - ванна-бассейн; 8 - остекленная веранда; 9 - открытая терраса; 10 - комната персонала; 11 - пищеблок

Рис. 48 Примеры планировочных решений зданий дошкольных учреждений общего типа на 4-6 групп

а - ДУ общего типа на 4 группы

Арх. Н. Согомонян. ЦНИИЭП жилища

1 - раздевальная; 2 - групповая; 3 - спальня; 4 - туалетная; 5 - буфетная; 6 - помещение для занятий по подгруппам; 7 - ванна-бассейн; 8 - остекленная веранда; 9 - открытая терраса; 10 - зал для музыкальных и гимнастических занятий; 11 - служебно-бытовые помещения

Рис. 49 ДУ общего типа на 6 групп

Арх. Л. Смывина, Б. Гранцев

План 1 этажа

1 - групповая; 2 - спальня; 3 - туалетная; 4 - раздевальная; 5 - буфетная; 6 - остекленная веранда; 7 - открытая терраса; 8 - раздевальная на 4 группы детей, размещаемых на II этаже; 9 - медицинские помещения; 10 - служебно-бытовые помещения; 11 - кухня; 12 - построчная; 13 - двухуровневый зимний сад

Второй уровень
групповых ячеек

План II этажа

1 - двухсветная групповая; 2 - туалетная; 3 - спальня (на антресоли второго уровня групповой ячейки); 4 - буфетная; 5 - туалет персонала; 6 - помещение для занятий по подгруппам; 7 - комната персонала; 8 - зал-атриум для музыкальных и гимнастических занятий

Рис. 49 (продолжение)

Рис. 50 Пример планировочного решения детского сада с мансардным этажом

Арх. С. Новоселов, Е. Смирнова

1 - помещения групп детей ясельного возраста; 2 - помещения групп детей дошкольного возраста; 3 - зал для музыкальных и гимнастических занятий; 4 - бассейн; 5 - кухня; 6 - построчная; 7 - помещения администрации; 8 - медицинские помещения; 9 - остекленные веранды ясельных групп; 10 - остекленные веранды

Рис. 51 Пример планировочного решения детского сада компенсирующего типа на 4 группы

1 - раздевальная; 2 - групповая; 3 - спальня; 4 - туалетная; 5 - класс; 6 -логопедический кабинет; 7 - кабинет врача-специалиста; 8 - массажный кабинет; 9 - физиотерапевтический кабинет; 10 - процедурная; 11 - изолятор; 12 - хозпомещения; 13 - пищеблок; 14 - построчная; 15 - универсальный зал; 16 - кабинет заведующего

Рис. 52 Пример проектного решения Центра дошкольного воспитания на 6 групп

Арх. Л. Смывина. Институт общественных зданий

1 - групповая; 2 - спальня; 3 - зал-арена; 4 - бассейн; 5 - изостудия; 6 - компьютерный класс; 7 - физкультурный зал; 8 - гардероб для приходящих групп детей из других ДУ; 9 - медицинские помещения; 10 - прачечная; 12 - гараж; 13 - служебно-бытовые помещения

Рис. 53 ЦДВ на 6 групп

Арх. Л. Смывина, Б. Гранцев

План II этажа. 1 - групповая; 2 спальня; 3 - раздевальная; 4 - туалетная; 5 - буфетная; 6 - зал-арена; 7 - спортивный зал; 8 - бассейн; 9 - служебно-бытовые помещения

Рис. 54 Пример планировочного решения детского сада на 12 групп

Арх. Чунарева (Мосгражданпроект)

а - план 1 этажа

1 - раздевальная; 2 - групповая; 3 - «домашний уголок»; 4 - буфетная; 5 - спальня; 6 - туалетная; 7 - комната персонала; 8 - остекленная веранда; 9 - открытая терраса; 10 - зал для гимнастических занятий; 11 - зал-арена; 12 - бассейн с ванной 12,6´6 м; 13 - терраса-солярий; 14 - медицинские помещения; 15 - пищеблок; 16 - построчная; 17 - служебно-бытовые помещения; 18 - тамбур-шлюз

Рис. 54 (продолжение) б - план II этажа


Рис. 55 ЦДВ на 12 групп

Арх. Л.Смывина, Б. Гранцев. Институт общественных зданий

План I этажа

1 - групповая; 2 - спальня; 3 - туалетная; 4 - раздевальная; 5 - терраса; 6 - зал для музыкальных занятий; 7 - зал для физкультурных занятий; 8 - классные помещения для специализированных занятий; 9 - зал-арена; 10 - бассейн; 11 - сопутствующие помещения


Рис. 56 Групповое отделение на 4 группы

Арх. А. Воловер, Л. Смывина. Институт общественных зданий

1 - раздевальная; 2 - групповая; 3 - спальня; 4 - туалетная; 5 - буфетная; 6 - медицинская комната; 7 - кабинет-офис; 8 - загрузочная и моечная термоконтейнеров; 9 - кладовая грязного белья; 10 - кладовая чистого белья; 11 - зал для музыкальных и гимнастических занятий; 12 - теневые навесы; 13 - открытая терраса

Рис. 57 Групповое отделение на 4 группы, пристраиваемое или блокируемое с жилой застройкой

Арх. Л. Смывина. Институт общественных зданий

1 - раздевальная; 2 - туалетная; 3 - спальная зона с откидными и выкатными кроватками; 4 - туалетная; 5 - буфетная; 6 - зал дня музыкальных и гимнастических занятий; 7 - комната персонала; 8 - загрузочная и моечная термоконтейнеров; 9 - медицинская комната - помещение заболевшего ребенка; 10 - кладовая; 11 - туалет; 12 - туалет, помещение для подстирки белья

Рис. 58 Встроенно-пристроенные групповые отделения на 2 и 4 детские группы, размещаемые в межлестничном пространстве двух смежных жилых секций

Арх. Л. Смывина. Институт общественных зданий

а - на 2 группы; б - на 4 группы

1 - раздевальная; 2 - групповая; 3 - спальня; 4 - туалетная; 5 - открытая терраса; 6 - колясочная; 7 - кладовая; 8 - комната персонала; 9 - медицинская комната; 10 - туалетперсонала; 12 - загрузочная и моечная термоконтейнеров; 13 - зал для музыкальных и гимнастических занятий; 14 - лестнично-лифтовые площадки жилых зданий; 15 - жилые или нежилые помещения первых этажей жилых зданий, оставшиеся незанятыми групповым отделением в пределах секции

Рис. 59 Учебно-воспитательный комплекс на 6 групп и 4 начальных класса

Арх. Щербакова (ГИПРОПРОС)

а - план 1 этажа

1 - групповая; 2 - спальня; 3 - кладовая; 4 - домашний уголок; 5 - холл; 6 - буфетная; 7 - обеденная; 8 - комната индивидуальных занятий; 9 - туалетная; 10 - раздевальная; 11 - рекреация; 12 - комната персонала; 13 - класс; 14 - рекреация; 15 - комната преподавателей; 16 - кухня-ниша; 17 - спортивный зал; 18 - актовый зал; 19 - бассейн; 20 - обеденный зал; 21 - обеденная персонала; 22 - горячий цех; 23 - холодный цех; 24 - холодильная камера; 25 - тарная; 26 - загрузочная; 27 - кладовая; 28 - умывальная; 29 - моечная столовой посуды; 30 - моечная кухонной посуды; 31 - комната администрации; 32 - палата изолятора, 33 - процедурная; 34 - медицинская комната; 35 - стиральная; 36 - гладильная; 37 - гардероб персонала

Рис. 59 (продолжение)

б - план II этажа

1 - групповая; 2 - спальня; 3 - туалетная; 4 - комната индивидуальных занятий; 5 - обеденная комната; 6 - раздевальная; 7 - класс; 8 - кабинет; 9 - рекреация; 10 - комната преподавателей; 11 - лаборатория; 12 - балкон; 13 - кружковая комната; 14 - кладовая; 15 - техническое помещение; 16 - венткамера; 17 - домашний уголок; 18 - буфетная; 19 - комната персонала; 20 - терраса; 21 - кинопроекционная

Рис. 60 Пример проектного решения учебно-воспитательного комплекса на 3 группы и 11 классов

Арх. Л. Смывина, Б. Гранцев. Институт общественных зданий

а - план 1 этажа

1 - дошкольное отделение на 3 группы; 2 - отделение начальных классов; 3 - отделение старших классов; 4 - зал-арена; 5 - бассейн (технические помещение); 6 - пищеблок, обеденный зал

Рис. 60 (продолжение)

б - план II этажа

1 - дошкольное отделение; 2 - отделение начальных классов; 3 - отделение старших классов; 4 - зал-арена; 5 - бассейн; 6 - рекреация, зимний сад

В работе над Пособием использованы следующие материалы

1. Проектирование детских дошкольных учреждений. Справочное пособие к СНиП. М., ЦНИИЭП учебных зданий, 1992 г.

2. Рекомендации по проектированию специальных школ-интернатов для детей с нарушениями физического и умственного развития. М., ЦНИИЭП учебных зданий, 1989 г.

3. Рекомендации по размещению, планировке и оборудованию участков дошкольных учреждений, 1984 г.

4. Пособие по проектированию интерьера детских яслей-садов. М., Стройиздат, 1982 г.

5. Пособие по проектированию детских дошкольных учреждений (к СНиП II-64-80). М., Стройиздат, 1985 г.

6. Инструкция по проектированию дошкольных учреждений для детей с нарушениями физического и умственного развития. ВСН 28-76, М., Госгражданстрой, 1977 г.

7. Инструкция по проектированию дошкольных учреждений для детей с нарушениями физического и умственного развития. М., Стройиздат, 1983 г.

8. Петровский В.А., Кларина Л.М., Смывина Л.А., Стрелкова Л. П. Построение развивающей Среды в дошкольном учреждении. М., Научно-методическое объединение «ТВОРЧЕСКАЯ ПЕДАГОГИКА», Малое предприятие «НОВАЯ ШКОЛА»

Приложение 1
(справочное)

Номенклатура и основные размеры оборудования для физкультурных площадок

№№ пп

Наименование изделий

Параметры

Размеры, мм

1

2

3

4

1.

Стенка гимнастическая

Высота над уровнем площадки

3000 + 15

Ширина

800 + 10

Расстояние между перекладинами

220 + 10

Диаметр перекладины

26 + 1

2.

Устройство для подвески спортивных снарядов

Высота над уровнем площадки

3000 + 15

а. Лестница веревочная

Длина

3000 + 15

Ширина

400 + 5

Расстояние между перекладинами

220 + 5

Диаметр перекладины

26 + 1

б. Канат для лазания

Длина

3000 + 15

Диаметр

30 + 5

3.

Башня для влезания

Высота

2500 + 15

4.

Стенка сплошная

Высота над уровнем площадки

2000 + 15

Ширина

1600 + 10

5.

Стенка с перекладинами

Высота над уровнем площадки

1000 + 10

Ширина

1000 + 10

Расстояние между перекладинами

300 + 5

6.

Заборчик с вертикальными перекладинами

Высота над уровнем площадки

600 + 10

Расстояние между перекладинами

400 + 10

Диаметр перекладины

26 + 1

7.

Рукоход

Высота над уровнем площадки

1500 + 10

Ширина

600 + 10

Длина

2000 + 15

Расстояние между перекладинами в верхней части

150 + 5

Расстояние между перекладинами

220 + 10

Диаметр перекладины

26 + 1

8.

Рукоход кольцевой

Высота над уровнем площадки

1500 + 10

Расстояние между перекладинами

150 + 5

Диаметр перекладины

26 + 1

Диаметр верхнего кольца

1800 + 30

9.

Ворота для пролезания

Высота над уровнем площадки

800 + 10

500 + 10

Ширина

300 + 10

500 + 10

1300 + 15

10.

Препятствие для пролезания

Высота над уровнем площадки

800 + 10

Длина

1000 + 10

Диаметр верхнего бруса

200 + 50

11.

Бум разновысокий

Длина

6000 + 50

Высота над уровнем площадки высокого бревна

600 + 10

Высота над уровнем площадки низкого бревна

300 + 10

Диаметр бревна

200 + 50

Расстояние между бревнами

200 + 10

12.

Бум параллельный

Длина

3000 + 15

Высота над уровнем площадки

300 + 10

Диаметр бревна

100 + 10

Расстояние между бревнами

200 + 10

13.

Качающийся балансир

Длина

3000 + 15

Высота над уровнем площадки

300 + 5

Ширина рабочей поверхности

150 + 5

14.

Грибок для чехарды

Высота над уровнем площадки

400 + 10

Диаметр опорной поверхности

200 + 10

15.

Стойка (съемная) для упражнений

Высота

1500 + 10

16.

Стол для настольного тенниса

Длина

2000 + 15

Ширина

1200 + 15

Высота над уровнем площадки

600 + 10

17.

Щит баскетбольный

Высота над уровнем площадки до кольца

1900 + 10

Щит

(1000 + 10) ´ (800 + 10)

Диаметр кольца корзины

370 + 10

18.

Ворота футбольные

Ширина

2000 + 15

Высота

1500 + 15

19.

Стойки волейбольные

Высота над уровнем площадки

188 + 15

20.

Фишки для разметки спортивных площадок

Высота

300 + 10

500 + 10

800 + 10

Примечание. К основным размерам показаны возможные допуски на углубление, изменение габаритных размеров или расстояния между элементами оборудования.

Приложение 2
(справочное)

Примерный ассортимент зеленых насаждений (для детского сада на 10 групп)

№№ пп

Растения

Количество, шт.

Возраст, лет

1

2

3

4

 

Деревья

 

 

1.

Липа мелколистная

15

12-16

2.

Клен остролистный

26

12-16

3.

Вяз шершавый

4

12-16

4.

Рябина обыкновенная

6

8-10

5.

Рябина черноплодная

9

6-8

6.

Ива белая плакучая

1

6

7.

Ель колючая (Н = 15)

4

 

 

Итого:

65 шт.

 

 

Кустарники

 

 

8.

Спирея японская

385/77

2-3

9.

Сирень обыкновенная

18/6

3-4

10.

Спирея иволистная

400/8

3-4

11.

Клен Гиннала

310/100

4-5

 

Итого:

1113/266 шт./м2

 

12.

Цветы однолетние

900/18 шт./м2

Однолетние

13.

Газон обыкновенный

2451 м2

 

Состав травосмеси:

 

 

Мятник луговой

9,8 кг

 

Полевица обыкновенная

14,71 кг

 

Райграс пастбищный

24,51 кг

 

14.

Газон обыкновенный на групповых и общей физкультурной площадках

2215 м2

 

Состав травосмеси:

 

 

Овсяница красная

33,22 кг

 

Райграс пастбищный

8,86 кг

 

Клевер белый

2,22 кг

 

Приложение 3
(справочное)

Рекомендуемый состав смеси трав (в граммах на 1 м2)

№№ пп

Сорта трав

Менее плодородные, сухие почвы

Влажные, увлажненные почвы

1

2

3

4

1.

Овсяница (овечья или красавка)

15

8

2,

Райграс пастбищный

4

 

3.

Мятлик (луговой, сплюснутый)

 

10

4.

Клевер белый

1

 

5.

Полевица (белая, обыкновенная)

 

2

 

Всего:

20

20

Приложение 4
(обязательное)

Наполняемость детских групп с компенсирующей направленностью

№№ пп

Вид нарушений развития детей

В группах детей до 3-х лет

В группах детей старше 3-х лет

1.

Для детей с тяжелыми нарушениями речи

6

10

2.

Для детей с фонетико-фонематическими нарушениями речи

 

12

3.

Для глухих детей

6

6

4.

Для слабослышащих детей

6

8

5.

Для слепых детей

6

6

6.

Для слабовидящих детей, для детей с косоглазием и амблиопией

6

10

7.

Для детей с нарушением опорно-двигательного аппарата

6

8

8.

Длин детей с нарушением интеллекта (умственной отсталостью)

6

10

9.

Для детей с задержкой психического развития

6

10

10.

Для детей с глубокой умственной отсталостью

 

8

11.

Для детей с туберкулезной интоксикацией

10

15

12.

Для детей, часто болеющих

10

15

13.

Для детей со сложными дефектами (2 и более дефекта)

5

5

14.

Для детей с иными отклонениями в развитии

10

15

Приложение 5
(обязательное)

Состав и площади помещений групповых ячеек дошкольных учреждений для детей с нарушениями слуха, зрения и интеллекта

2 на одно место при соответствующих нарушениях)

№№ пп

Помещения

Слуха (глухих и слабослышащих)

Зрения (слабовидящих)

Зрения (с косоглазием и амблиопией)

Интеллекта

1

2

3

4

5

6

1.

Раздевальная

1,0

1,0

0,8

1,0

2.

Помещение для личных вещей детей

0,41

0,41

0,33

0,41

3.

Групповая

3,0

4,16

3,33

4,16

4.

Класс для занятий

2,0

3,0

 

 

5.

Спальня

2,5

3,0

2,4

3,0

6.

Буфетная

0,25

0,25

0,2

0,25

7.

Туалетная

0,83

0,83

0,65

1,0

8.

Плеопто-ортоптическая комната

 

2,0

1,6

 

9.

Логопедическая комната

 

 

 

1,0

Примечание: в дошкольных учреждениях для детей с косоглазием и амблиопией плеопто-ортоптическая комната предусматривается одна на каждые 2 группы.

Приложение 6
(обязательное)

Состав и площади помещений групповых ячеек дошкольных учреждений для детей с нарушением опорно-двигательного аппарата

2 на 1 место)

№№ пп

Помещения

для детей до 3-х лет

для детей старше 3-х лет

1

2

3

4

1.

Приемная

1,0

 

2.

Раздевальная

 

1,0

3.

Помещение для личных вещей детей

0,41

0,41

4.

Игральная-столовая

3,0

 

5.

Групповая

 

4,16

6.

Спальня

3,0

3,0

7.

Буфетная

0,25

0,25

8.

Помещение для хранения спальных мешков и постельных принадлежностей

0,16

0,16

9.

Туалетная (горшечная)

0,83

0,83

10.

Комната логопеда для групповых и индивидуальных занятий с детьми, страдающими расстройством речи

 

1,5

11.

Процедурная комната медицинской сестры

1,5

 

12.

Остекленная веранда

3

3

Примечания: 1. Комната логопеда предусматривается одна на каждые две группы.

Приложение 7
(справочное)

Ширина проходов в производственных помещениях пищеблока

№№ пп

Проходы

Ширина, м

1.

Между технологическими линиями оборудования (столами, моечными ваннами и т.п.) при расположении рабочих мест в проходе в два ряда при длине линии оборудования, м:

 

до 3

1,2

более 3

1,3

2.

Между стеной и технологической линией оборудования (со стороны рабочих мест)

1,0

3.

Между технологическими линиями оборудования (столы, коечные ванны и т.п.) и линиями оборудования, выделяющими тепло

1,3

4.

Между технологическими линиями оборудования, выделяющими тепло

1,5

Приложение 8
(справочное)

Расчетная температура при проектировании отопления и кратность обмена воздуха в помещениях дошкольных учреждений

№№ пп

Помещения

Расчетная температура воздуха

Кратность обмена воздуха в 1 час

Приток

Вытяжка

1

2

3

4

5

1

Медицинские

22

 

1

2

Служебно-бытовые

18

 

1

3

Кухня

15

По расчету

По расчету

4

Стиральная

18

5

5

5

Гладильная

16

5

5

6

Физиотерапевтический кабинет, кабинет массажа

28

 

1,5

7

Душевая бассейна

28

 

5

8

Раздевальная бассейна

26

 

5

Примечание. 1. В помещениях стиральной и гладильной следует осуществлять, как правило, механические приток и вытяжку воздуха.

2. В туалетных детских групп вытяжку воздуха следует предусматривать из уборной.

3. В туалетных детских групп, проектируемых без естественного освещения, вытяжка должна быть не менее 3-х кратной.

Приложение 9
(справочное)

Основное санитарно-техническое оборудование в дошкольных учреждениях

№№ пп

Помещения

Детский умывальник с туалетным краном

Умывальник для взрослых со смесителем

Унитаз детский

Унитаз для взрослых

Слив (видуар) со смесителем

Водоразборный кран

Ванна с комбинированным смесителем

Поддон с душевой сеткой на гибком шланге

Мойка со смесителем

Полотенцесушитель

1.

Буфетная

 

 

 

 

 

 

 

 

1 трехкамерная

 

2.

Туалетная группы детей до 3 лет

2

1

1

1

1

 

 

1 глубокий

 

1

3.

Туалетная группы детей старше 3-х лет

4

 

3

1

 

 

 

1 мелкий

 

1

4.

Туалетная компенсирующей группы детей

3

 

2

 

1

 

1

1

 

1

5.

Зал бассейна

 

 

 

 

 

1

 

 

 

 

6.

Душевая и туалет при раздевальных бассейна

1

 

1

 

 

 

 

по 3 душевые сетки на каждую подгруппу

 

 

7.

Медицинская комната

 

1

 

 

 

 

 

 

 

 

8.

Приемная изолятора

 

 

 

 

 

 

 

 

1 двухкамерная

 

9.

Палата изолятора

1

 

 

 

 

 

 

 

 

 

10.

Туалет изолятора

 

1

 

 

1

 

 

1

 

 

Приложение 10
(справочное)

Основные характеристики люминесцентных ламп, рекомендуемых для дошкольных учреждений

Тип ламп

Номинальный световой поток, лм (для ламп мощностью 40 Вт)

Средняя продолжительность горения, ч

Индекс цветопередачи

Цветовая температура, К

ЛБ

3200

15000

57

3500

ЛХБ

3000

15000

62

4300

ЛЕЦ

2190

13000

85

3900

ЛБЦТ

3000

13000

88

2700

ЛХЕ

1930

5200

93

5200

ЛДЦУФ

1660

13000

92

6000

 




Rambler's Top100 Яндекс цитирования
  Copyright © 2008-2025, www.docload.ru