Бесплатная библиотека стандартов и нормативов www.docload.ru

Все документы, размещенные на этом сайте, не являются их официальным изданием и предназначены исключительно для ознакомительных целей.
Электронные копии этих документов могут распространяться без всяких ограничений. Вы можете размещать информацию с этого сайта на любом другом сайте.
Это некоммерческий сайт и здесь не продаются документы. Вы можете скачать их абсолютно бесплатно!
Содержимое сайта не нарушает чьих-либо авторских прав! Человек имеет право на информацию!

 

СИСТЕМА НОРМАТИВНЫХ ДОКУМЕНТОВ В СТРОИТЕЛЬСТВЕ

СВОД ПРАВИЛ
ПО ПРОЕКТИРОВАНИЮ И СТРОИТЕЛЬСТВУ

РЕКОНСТРУКЦИЯ И ПРИСПОСОБЛЕНИЕ
ЗДАНИЙ ДЛЯ УЧРЕЖДЕНИЙ
СОЦИАЛЬНОГО ОБСЛУЖИВАНИЯ
ПОЖИЛЫХ ЛЮДЕЙ

СП 35-114-2003

ГОСУДАРСТВЕННЫЙ КОМИТЕТ РОССИЙСКОЙ ФЕДЕРАЦИИ
ПО СТРОИТЕЛЬСТВУ И ЖИЛИЩНО-КОММУНАЛЬНОМУ КОМПЛЕКСУ
(ГОССТРОЙ РОССИИ)

Москва

2003

ПРЕДИСЛОВИЕ

1 РАЗРАБОТАН ФГУП «Научно-проектный институт учебно-воспитательных, торгово-бытовых и досуговых зданий» (Институт общественных зданий) Госстроя России

2 ВНЕСЕН Министерством труда и социального развития Российской Федерации

3 ПРЕДСТАВЛЕН Управлением архитектуры, Управлением технического нормирования, стандартизации и сертификации в строительстве и ЖКХ Госстроя России

4 ОДОБРЕН И РЕКОМЕНДОВАН к применению в качестве нормативного документа Системы нормативных документов в строительстве постановлением Госстроя России от 15 сентября 2003 г. № 165

5 ВВЕДЕН впервые

СОДЕРЖАНИЕ

Введение. 2

1 Общие положения. 3

Нормативные ссылки. 4

2 Основы модернизации жилых, общественных зданий и элементов городской среды.. 4

Архитектурные принципы.. 4

Конструктивные принципы.. 5

3 Требования к жилым зданиям.. 8

Общие требования. 8

Социальное жилище. 11

Массовые жилые дома со специализированными элементами для ЛСВ.. 12

4 Требования к зданиям учреждений обслуживания населения. 14

Специализированные, медицинские и оздоровительные учреждения. 15

Предприятия торговли, общественного питания и бытового обслуживания. 17

Культурно-зрелищные и досуговые учреждения. 17

5 Рекомендации по реновации зданий социального обслуживания населения. 18

Дома-интернаты (пансионаты) 18

Специализированные учреждения новых видов. 20

Приложение А Дополнительный перечень рекомендуемых нормативно-методических документов. 34

Приложение Б Примеры адаптации типовых жилых домов массовых серий. 34

Приложение В Методические приемы, используемые при адаптации среды жизнедеятельности для пожилых людей. 53

Справочный материал. 55

ВВЕДЕНИЕ

Настоящий Свод правил разработан в развитие СНиП 35-01-2001 «Доступность зданий и сооружений для маломобильных групп населения».

Необходимость существенного увеличения объемов реконструкции и модернизации фонда недвижимости в нашей стране диктуется рядом обстоятельств:

- несоответствием динамики социально-экономических процессов составу и качеству зданий гражданского назначения;

- потребностью широкого внедрения мероприятий по адаптации среды обитания (проживания и пребывания) для лиц старших возрастов и инвалидов с учетом принципиально меняющейся концепции жизнеобеспечения этих групп населения в рамках государственной политики РФ;

- моральным старением объемно-планировочных решений, низким уровнем архитектурно-художественного оформления существующих зданий и сооружений, в том числе специализированных учреждений для лиц старших возрастов (в дальнейшем - ЛСВ);

- значительным физическим износом основных конструкций, инженерного оборудования и элементов обустройства;

- низкой энергоэффективностью жилых и общественных зданий, приводящей к непосильным для государства и населения эксплуатационным затратам.

Проблема преобразования сложившейся застройки связана с необходимостью решения комплекса социальных, экономических, экологических и архитектурно-художественных задач. Для эффективного выполнения работ по адаптации среды жизнедеятельности и объектов социальной сферы к потребностям ЛСВ должны быть проведены соответствующие организационные и организационно-технические мероприятия, направленные на существенную экономию затрат, финансовых и материально-технических ресурсов при обеспечении последовательного и поэтапного завершения работ в максимально сжатые сроки.

Опыт предыдущих десятилетий по реконструкции и модернизации массовых жилых и общественных зданий свидетельствует о том, что аспекту приспособления - адаптации зданий и сооружений для нужд ЛСВ практически не уделялось внимания.

На некоторых запроектированных и реализованных объектах реконструкции в лучшем случае делались попытки переустройства квартир первого этажа для семей с инвалидами на креслах-колясках. При этом в качестве нормативно-методической базы проектирования использовались нормы и правила реконструкции жилых зданий (ВСН 61-89р), не содержащие каких-либо указаний и требований по жизнеобеспечению пожилых людей, и нормативные положения по обеспечению доступности зданий для инвалидов (ВСН 62-91*).

Поворотным моментом можно считать введение Госстроем России в 1999 г. базового блока нормативных документов (НД) 35-го комплекса в систему нормативной документации в строительстве и разработку СНиП 35-01-2001 «Доступность зданий и сооружений для маломобильных групп населения» и четырех сводов правил к нему.

Данный Свод правил 35-114-2003 «Реконструкция и приспособление зданий для учреждений социального обслуживания пожилых людей» развивает и конкретизирует содержательную часть базового блока НД в области требований конкретной части маломобильного населения - лиц старших возрастов - к реконструкции и приспособлению зданий гражданского назначения, а также элементов городской среды.

Архитектурные решения рекомендуется ориентировать одновременно на компенсацию возрастных нарушений здоровья в области опорно-двигательного аппарата, слуха, зрения, сердечно-сосудистой системы, психики и на облегчение труда по уходу за ЛСВ. Отмечена в том числе совокупная специфика ЛСВ, отличающая данную категорию от других групп маломобильного населения, а именно: потребность в более высокой степени освещенности и обогрева помещений, насыщенности среды легко воспринимаемыми информирующими предметами и приборами, оснащение коммуникационных пространств большим количеством мест отдыха и т.п.

Нормативный документ разработали: руководитель разработки Свода правил - арх. Н.П. Малиночка; ответственный исполнитель канд. техн. наук В.Ф. Кротюк (разделы текста и компьютерная графика) при участии канд. техн. наук А.Н. Спивака, инж. Л.В. Сигачевой.

Консультативное участие в составлении сводной редакции документа - канд. архит. A.M. Гарнеца (руководителя работ по разделу «ФЦП "Старшее поколение"»).

Внесен Департаментом по делам ветеранов, пожилых людей и приема населения Минтруда России.

Представлен к утверждению Управлением стандартизации, технического нормирования и сертификации в строительстве и ЖКХ Госстроя России (В.В. Тишенко, С.Ю. Сопоцько), Управлением архитектуры Госстроя России (Э.А. Шевченко, Н.Н. Якимова).

Согласован Федеральным центром сертификации в строительстве Госстроя России (Л.А. Викторова), ГУГ противопожарной службы МЧС России, Госсанэпиднадзором Минздрава России, Главгосэкспертизой России, Минтрудом России.

В тексте и графической части частично использованы материалы:

Рекомендации по проектированию окружающей среды, зданий и сооружений с учетом потребностей инвалидов и других маломобильных групп населения. Выпуски 1, 3 - 5, 10 - 12, 21.

СВОД ПРАВИЛ ПО ПРОЕКТИРОВАНИЮ И СТРОИТЕЛЬСТВУ

РЕКОНСТРУКЦИЯ И ПРИСПОСОБЛЕНИЕ ЗДАНИЙ
ДЛЯ УЧРЕЖДЕНИЙ СОЦИАЛЬНОГО ОБСЛУЖИВАНИЯ
ПОЖИЛЫХ ЛЮДЕЙ

RECONSTRUCTION AND ADAPTATION
OF BUILDINGS ACCESSIBLE
FOR ELDERLY PERSONS

1 ОБЩИЕ ПОЛОЖЕНИЯ

1.1 Требования настоящего Свода правил направлены на оптимизацию среды жизнедеятельности пожилых людей за счет переустройства и переоборудования помещений жилых и общественных зданий, создание полноценной архитектурной среды, обеспечивающей в реконструируемых зданиях и сооружениях необходимый уровень доступности для лиц старших возрастов (ЛСВ), комфортность условий проживания и беспрепятственность пользования услугами, предоставляемыми для них.

Требования документа распространяются на все элементы массовых гражданских зданий и сооружений, входящих в систему жизнедеятельности ЛСВ, в том числе учреждений различных форм собственности и различных организационно-правовых форм.

1.2 Положения Свода правил рекомендуется применять совместно с требованиями СНиП 35-01, а также СП 35-101.

1.3 В документе приведен набор требований, рекомендуемых элементов архитектурного решения и проектных мероприятий, которые желательно предусмотреть при реконструкции, а также при приспособлении зданий для учреждений социального обслуживания пожилых людей. Выбор применяемого состава мероприятий, конкретизация требований и определение этапов их реализации устанавливаются заданием на проектирование, а также в процессе проектирования.

1.4 При реконструкции и приспособлении зданий к объектам нормирования архитектурной среды для ЛСВ следует относить:

- благоустройство и озеленение участка здания;

- входные и аварийно-эвакуационные зоны здания;

- планировочное решение коммуникационных путей;

- планировку групп помещений и отдельных помещений;

- устройство мест проживания, обслуживания и мест отдыха.

1.5 Набор нормативных положений Свода правил допускает возможность выбора вариантов проектных решений исходя из требований, предъявляемых к объекту с целью обеспечения комфортного доступа к нему и использования его ЛСВ.

НОРМАТИВНЫЕ ССЫЛКИ

1.6 В настоящем СП даны ссылки на следующие нормативные документы:

СНиП 2.03.01-84* «Бетонные и железобетонные конструкции»;

СНиП 2.08.02-89* «Общественные здания и сооружения»;

СНиП 21 -01-97* «Пожарная безопасность зданий и сооружений»;

СНиП 23-02-2003 «Тепловая защита зданий»

СНиП II-12-77 «Защита от шума»;

СНиП II-22-81 «Каменные и армокаменные конструкции»;

СНиП II-23-81* «Стальные конструкции»;

СНиП 35-01-2001 «Доступность зданий и сооружений для маломобильных групп населения»;

СП 35-101-2001 «Проектирование зданий и сооружений с учетом доступности для маломобильных групп населения. Общие положения»;

СП 35-102-2001 «Жилая среда с планировочными элементами, доступными инвалидам»;

СП 35-103-2001 «Общественные здания и сооружения, доступные маломобильным посетителям»;

СП 35-107-2003 «Здания учреждений временного пребывания лиц без определенного места жительства»;

МГСН 2.01-99 «Энергосбережение в зданиях. Нормативы по теплозащите и тепловодоэнергоснабжению»;

НПБ 88-2001* «Установки пожаротушения и сигнализации. Нормы и правила проектирования»;

НПБ 104-03 «Системы оповещения и управления эвакуацией людей при пожарах в зданиях и сооружениях»;

Рекомендации по проектированию окружающей среды, зданий и сооружений с учетом потребностей инвалидов и других маломобильных групп населения. Выпуски 1, 3 - 5, 10 - 15, 21.

1.7 Дополнительный перечень нормативно-методических документов, рекомендуемых к использованию по теме данного СП в качестве справочных, приведен в приложении А.

2 ОСНОВЫ МОДЕРНИЗАЦИИ ЖИЛЫХ, ОБЩЕСТВЕННЫХ ЗДАНИЙ И ЭЛЕМЕНТОВ ГОРОДСКОЙ СРЕДЫ

АРХИТЕКТУРНЫЕ ПРИНЦИПЫ

2.1 Общим принципом адаптации среды жизнедеятельности ЛСВ может служить принцип индивидуального, свободного выбора места проживания и пребывания пожилого человека на каждом временном этапе, обусловленном возрастными нарушениями здоровья, в режиме необходимого и достаточного благоприятствования (ухода и опеки).

2.2 При реконструкции зданий и сооружений рекомендуется ориентироваться на приоритетное развитие внестационарных форм оказания помощи нетрудоспособным лицам, отвечающих условиям возможного максимального пребывания человека в привычной для него домашней обстановке, сохранения контактов с окружающей средой.

Этим условиям удовлетворяет, прежде всего, надомное обслуживание, осуществляемое в старых микрорайонах массовой городской и сельской жилой застройки в реконструируемых и приспособленных зданиях под специализированные жилые дома с комплексом служб социально-бытового и медицинского назначения, а также под специализированные жилые комплексы.

2.3 Процесс реновации должен быть обеспечен на элементах следующих объектов (1.4):

- придомовые территории, основные эксплуатируемые функциональные площадки и коммуникации;

- основные микрорайонные пешеходные коммуникации, связывающие жилые здания, в том числе с целевыми реконструируемыми квартирами, с объектами повседневного и периодического обслуживания (магазины, универсамы и минимаркеты, специализированные предприятия торговли и отделы «хлебобулочные изделия», «молочные продукты», «бакалея», киоски и торговые киоски-автоматы; аптеки и аптечные киоски; столовые, кафе и закусочные, в том числе пирожковые, чайные, молочные и т.п.; ремонтные мастерские и мастерские экспресс-обслуживания, приемные пункты прачечных и химчисток, прачечные самообслуживания, пункты проката, бюро комплексного обслуживания; поликлиники и общесоматические больницы; многофункциональные здания клубов по месту жительства и клубов по интересам; сбербанки и почты; административные здания социальной сферы; храмы и ритуальные здания), а также с рекреационными площадками (зонами отдыха) и остановками общественного транспорта;

- входные узлы жилых и общественных здании (наружные лестницы, пандусы и подъемники; входные площадки; наружные и тамбурные двери; тамбуры и холлы первого этажа; аварийно-эвакуационные выходы; вертикальные коммуникации, обеспечивающие доступность посадочной площадки лифтов);

- внутренние, коллективно используемые, в том числе ЛСВ, коммуникации зданий (устройство и оснащение лестниц, пандусов, лифтов, подъемников, коридоров, галерей и т.д.);

- заполнение внутренних дверных проемов (габариты, запорные и сигнальные устройства, безопасность используемых материалов и т.д.);

- помещения индивидуального использования (габариты коридоров, проходов; мебель; подсобные помещения; функциональные зоны; балконы и лоджии);

- инженерно-техническое оснащение и оборудование помещений и зон индивидуального использования: электроосветительные и нагревательные системы и приборы; вентиляция и кондиционирование; слаботочные системы и устройства (системы охраны и оповещения; телекоммуникационные системы и устройства, в том числе телефония, радио, компьютерные сети и телевидение); шумозащитные мероприятия.

2.4 Для удобства ориентации и комфортности пребывания ЛСВ в пределах одного объекта целевой адаптации (города, района, микрорайона, учреждения) рекомендуется единая информационная система (СП 35-101 и СП 35-103).

КОНСТРУКТИВНЫЕ ПРИНЦИПЫ

2.5 Объектами реконструкции могут быть жилые здания, полностью или частично адаптируемые под специализированное социальное жилище, и общественные здания, адаптируемые под учреждения обслуживания ЛСВ.

Состав и объем реконструкционных мероприятий в значительной степени определяются типом адаптируемого здания.

2.6 Используемые для адаптации общественные здания характеризуются значительным разнообразием конструктивных типов: это могут быть здания с несущими продольными или поперечными стенами из кирпича, бетонных блоков или железобетонных панелей и перекрытиями из сборных железобетонных плит, а также каркасно-панельные здания с наружными стенами навесными или самонесущими.

При адаптации жилых зданий наиболее вероятно использование типовых массовых серий, выполненных в крупнопанельной конструктивной системе, как правило, с поперечными несущими стенами и наружными (продольными) несущими стенами навесными или самонесущими.

С целью снижения затрат на адаптацию в проекте реконструкции следует максимально учитывать особенности конструктивного типа здания.

2.7 Проект реконструкции адаптируемого здания разрабатывается после обследования состояния существующих конструкций с выявлением степени их физического износа и определением состава конструктивных мероприятий по их усилению в случае, если они не удовлетворяют требованиям СНиП II-22, СНиП II-23 и СНиП 2.03.01 по прочности и жесткости.

2.8 В зависимости от исходного типа здания и проекта его адаптации может предусматриваться реконструкция различного объема - в пределах существующего строительного объема здания или с увеличением его за счет пристроек, надстроек или устройства эксплуатируемого подвала (таблица В.1 приложения В).

Реконструкционные мероприятия могут предусматривать модернизацию наружных стен, изменение расположения дверных проемов во внутренних несущих стенах, возведение новых встроенных или пристроенных конструкций, а также монтаж новых перегородок, инженерных систем и т.п.

При адаптации зданий, как правило, необходимо выполнение ремонтно-строительных мероприятий, включающих, например, разборку старых ненесущих конструкций, ремонт и усиление отдельных частей несущих конструкций и наружных стен, демонтаж старых и монтаж новых инженерных систем и т.п.

2.9 Наружные стены реконструируемых зданий, не удовлетворяющие современным нормативным требованиям по сопротивлению теплопередаче, - СНиП 23-02 и МГСН 2.01, следует модернизировать за счет применения дополнительных слоев теплоизоляции, в том числе в сочетании с пароизоляцией, воздушной прослойкой и отражательной теплоизоляцией. Выбор конкретного варианта утепления рекомендуется производить в соответствии с предложениями, приведенными в альбоме «Технические решения утепления наружных ограждений домов первых массовых серий», утвержденном и введенном в действие приказом Госстроя России от 10 ноября 1998 г. № 8.

Радикальное повышение теплозащиты жилых зданий может производиться при их глубокой реконструкции, предусматривающей пристройки ризалитов или сплошных уширений корпуса с полной или частичной разборкой существующих наружных стен и возведением новых, отвечающих указанным требованиям по сопротивлению теплопередаче.

Сохраняемые внутренние стены и полы, не удовлетворяющие требованиям СНиП II-12 по звукоизоляции, следует модернизировать за счет применения дополнительных слоев звукопоглощающих материалов.

2.10 Повышение теплозащиты здания может осуществляться за счет сплошного остекления имеющихся или пристраиваемых лоджий, а на крыше - размещения теплицы.

2.11 При реконструкции здания в пределах существующего его объема может предусматриваться встраивание в него входных тамбуров, шахт лифтов или подъемников, дополнительных лестничных клеток, небольших бассейнов, а также устройство вместо существующей кровли (на всей ее площади или на отдельном участке) плоской эксплуатируемой крыши для размещения открытых озелененных террас, соляриев и т.п.

При встраивании в здание лифтов или подъемников следует применять гидравлические механизмы с ограждением шахт легкими металлическими конструкциями.

2.12 Размещение и размеры новых дверных проемов в несущих наружных и внутренних стенах при перепланировках помещений в реконструируемых зданиях и технические решения по компенсации ослабленных конструкций следует согласовывать с организацией-разработчиком проекта данного здания.

2.13 При реконструкции адаптируемого здания могут пристраиваться:

сооружения входной группы - крыльца, подиумы (открытые террасы), лестницы, пандусы, тамбуры;

наружные лифтовые шахты и лестничные клетки;

наружные летние помещения - лоджии, веранды, террасы;

пристройки, увеличивающие площади существующих помещений здания, - ризалиты, а также сплошные уширения корпуса;

пристройки в виде целых блоков (корпусов).

Пристраиваемые части здания должны, как правило, иметь собственные фундаменты, отделенные от существующих конструкций осадочным швом и расположенные на отметке ненарушенного грунта.

2.14 При реконструкции адаптируемого здания могут надстраиваться отдельные объемы, например, для машинных отделений встраиваемых лифтов, а также рядовой или мансардный этажи по всей площади нижележащего этажа или ее части. Разновидностью мансардного этажа являются возводимые на крыше теплицы (оранжереи).

Для возведения на крыше здания рекомендуются теплицы с выращиванием растений на стеллажах. Опирание стеллажей рекомендуется предусматривать преимущественно на несущие конструкции здания, при необходимости применяя систему вспомогательных распределительных балок.

2.15 Надстройки этажей рекомендуется проектировать по конструктивной схеме, принятой в существующем здании. При реконструкции зданий, выстроенных в сборных железобетонных конструкциях ранних серий, снятых с производства, могут применяться легкие металлические, кирпичные или монолитные железобетонные конструкции в сочетании с эффективными утеплителями при условии обеспечения степени огнестойкости не ниже II.

Надстройки мансардного этажа рекомендуется проектировать в легких эффективных конструкциях.

Надстраиваемые этажи должны быть обеспечены путями эвакуации в соответствии со СНиП 21-01, для чего могут надстраиваться существующие в здании лестницы, а также предусматриваться дополнительные новые.

2.16 С целью снижения затрат на адаптацию здания в проекте реконструкции, предусматривающем встраивание и надстраивание дополнительных объемов, рекомендуется принимать решения, не приводящие к такому увеличению нагрузки на фундаменты, которое потребует их усиления или укрепления под ними основания.

2.17 Дополнительные площади для ряда помещений вспомогательного назначения могут быть получены в подземной части здания за счет реконструкции существующего техподполья и преобразования его в полноценный подвал. Целесообразность устройства подвала в этих случаях должна определяться с учетом глубины заложения фундамента, уровня грунтовых вод и условия обеспечения устойчивости основания на внутреннем крае фундамента после устранения пригружающего действия грунта, удаленного из подвала.

3 ТРЕБОВАНИЯ К ЖИЛЫМ ЗДАНИЯМ

ОБЩИЕ ТРЕБОВАНИЯ

3.1 Среду проживания пожилых людей рекомендуется адаптировать путем реконструкции и модернизации, а также приспособления жилых зданий под специальные (социальные) жилые дома (специализированные жилые комплексы), а в массовом неспециализированном жилом фонде в части предназначаемых для использования ЛСВ элементов зданий - секций, этажей, групп квартир (рисунок 1). Необходимый уровень обслуживания ЛСВ осуществляется при этом:

• в первом случае - путем выделения/организации (главным образом, перепланировкой) непосредственно в жилом здании блока медико-социальных и культурно-бытовых помещений, в том числе встроенно-пристроенного;

• во втором случае - организационным путем (самостоятельного посещения ЛСВ районных (территориальных) медицинских и социальных центров обслуживания или патронажа на дому).

3.2 Принцип прогрессивной реновации среды жизнедеятельности или, главным образом, проживания ЛСВ, базируется на необходимости внедрения в проектно-строительную практику при реконструкции жилых зданий разработок, облегчающих жизнедеятельность ЛСВ, а также деятельность патронажных служб по уходу за данными категориями.

3.3 Материализация принципа приоритетности многопоколенной семьи подразумевает осуществление комплекса взаимосвязанных организационных, социальных и проектно-строительных мероприятий. Реконструкционные мероприятия предполагают совокупность проектно-строительных действий, направленных на поддержание комфортной среды жизнедеятельности семей с членами старших возрастных групп (в том числе выделение специальных зон отдыха и/или постоянного пребывания ЛСВ, доступных для обслуживания).

3.4 Концепция обменного жилого фонда содержит рекомендуемый комплекс целевых реконструкционных мероприятий, осуществляемых в объемах, необходимых в конкретной ситуации по усмотрению региональных, муниципальных и т.п. ответственных органов, в среде массового неспециализированного жилья. Суть предложения состоит в возможности обеспечения индивидуального выбора дееспособного и самостоятельного в обслуживании пожилого человека (или семьи ЛСВ) в месте проживания вне стационара.

3.5 Основные направления адаптации жилых зданий для ЛСВ приведены в таблице 1 (варианты 1 - 3).

Таблица 1 - Основные направления адаптации среды проживания для лиц старших возрастов

Варианты адаптации

Целевые реконструкционные мероприятия

Дополнительные мероприятия

1

2

3

1 Адаптация всего здания (полная)

Приспособление жилого дома путем реконструкции и модернизации под специализированное социальное жилище для ЛСВ. Обустройство придомовой территории

Капитальный ремонт с заменой конструктивных элементов и оборудования; косметический ремонт.

1.1 Доступность вертикальных и горизонтальных коммуникаций

1.1.1 Реконструкция входных узлов, устройство входов универсального типа:

- устройство наружных и внутренних пандусов, аппарелей;

- оборудование лестниц поручнями, специальной маркировкой и разметкой;

- дополнительное освещение (в том числе аварийное) входных площадок и тамбуров;

- устройство подъемников;

- оборудование охранными и информационными устройствами входных дверей;

- выделение мест для кратковременного отдыха вне габаритов путей движения;

- выделение мест для хранения индивидуальных средств передвижения (колясок);

- обеспечение нормативных габаритов проходов и проемов (СНиП 35-01)

1.1.2 Устройство специализированных, в том числе индивидуальных входов на 1-й этаж:

- устройство индивидуальных входов (площадка + пандус + лестница);

- устройство подиума (открытой террасы) вдоль корпуса до отм. +0,000;

- пробивка проемов и установка входных дверей со стороны подиума или площадки;

- устройство пандусов и лестниц для подъема на подиум;

- дополнительное оборудование: освещение, поручни, ограждения, разметка и маркировка, охранные и сигнальные устройства;

1.1.3 Пристройка лестнично-лифтовых шахт:

- применение лифтовых кабин универсального и/или специализированного типа;

- устройство грузопассажирского лифта;

- устройство дополнительных поручней и мест отдыха вдоль путей движения и у лифтов;

- устройство выхода на эксплуатируемую кровлю;

- дополнительное освещение

Навесы над входной зоной; контролируемый доступ; переговорные устройства, в том числе специализированного типа (для ЛСВ с недостатками зрения и дефектами слуха); дистанционное управление входной дверью; откидные и стационарные места для сидения, опорные поручни для отдыха вдоль путей движения; приспособления для кратковременного хранения ручной клади в зонах отдыха (полки, кронштейны, крючки); энергосберегающее оборудование, в том числе сенсорные устройства контроля освещения; устройство межквартирных холлов

1.2 Адаптация жилых ячеек

1.2.1 Перепланировка секций в 1 - 2-комнатные квартиры;

1.2.2 Обеспечение необходимых габаритов проемов и проходов вне и внутри квартир;

1.2.3 Устройство единой зоны «кухня-столовая», оборудование кухонь-ниш;

1.2.4 Выделение специализированных зон (по уходу за лежачими, для индивидуальной работы);

1.2.5 Устройство застекленных лоджий, в том числе взамен балконов

Аварийное электро- и водоснабжение; счетчики учета расхода воды, электроснабжения, горячего водоснабжения; мусоропровод

1.3 Приспособление части помещений под помещения обслуживания и вспомогательного назначения

1.3.1 Перепланировка части секций, как правило 1 - 2 этажа, под помещения обслуживания;

1.3.2 Встроенно-пристроенные блоки для обслуживающих учреждений;

1.3.3 Оборудование помещений для временного или круглосуточного дежурства (медперсонал, охрана и наблюдение) с оборудованными местами хранения средств индивидуальной защиты;

1.3.4 Устройство помещений для хранения уборочного инвентаря, подсобного назначения

Встроенно-пристроенные магазины специализированного обслуживания (типа «Ветеран»); аптечные киоски; кафе-молочные; минимаркеты; медицинские кабинеты

1.4 Увеличение эксплуатируемой площади

1.4.1 Устройство эксплуатируемого подвала для размещения помещений досуговых и обслуживающих функций для ЛСВ;

1.4.2 Устройство эксплуатируемой кровли для активного и пассивного отдыха ЛСВ;

1.4.3 Надстройка корпуса, в том числе мансардным этажом;

1.4.4 Расширение и удлинение корпуса жилого здания;

1.4.5 Пристройка корпусов и блоков

Вертикальные подъемники для доступности подвальных помещений и эксплуатируемой кровли; аварийное освещение оборудованных помещений и открытых площадок

1.5 Перепланировка и благоустройство придомовой территории

1.5.1 Мощение дополнительных дорожек, в том числе ведущих к подъему на пандус и к индивидуальным входам;

1.5.2 Обустройство коллективных площадок (пассивного и активного отдыха, автостоянок, хозяйственного назначения):

- беседки, навесы, перголы, скамьи и столы и другие малые формы;

1.5.3 Озеленение декоративное и защитное;

1.5.4 Освещение

Периметральное ограждение придомовой территории. Контролируемый доступ для входа и въезда на территорию; физкультурное оборудование; декоративные водоемы, фонтанчики, подпорные стенки, альпийские горки, пешеходные пандусы и т.д.

2 Частичная адаптация здания (по вертикали)

Приспособление части жилого здания под специализированное социальное жилище путем реконструкции и модернизации нескольких секций, обособление части придомовой территории и ее обустройство

Улучшение общей архитектурной пластики фасадов, локальные цветовые и пластические решения

2.1 Обособление торцевой (торцевых) секций

2.1.1 Устройство специализированных входов, в том числе с торцевой стороны корпуса:

- устройство индивидуальных входов (площадка + пандус + лестница);

- устройство торцевого подиума (открытой террасы) до отм. +0,000;

- пробивка проемов и установка входных дверей со стороны подиума или площадки;

- устройство пандусов и лестниц для подъема на подиум;

- пристройка навесов и тамбуров соответствующих габаритов;

2.1.2 Встроенно-пристроенные блоки обслуживания, в том числе с помещениями коллективного использования;

2.1.3 Оборудование контролируемых входов;

2.1.4 Перепланировка квартир;

2.1.5 Пристройка дополнительных объемов в выделенных секциях:

- локальное расширение и удлинение корпуса;

- пристройка лестнично-лифтовых шахт;

- пристройка застекленных лоджий;

- надстройка рядовых и мансардного этажей;

2.1.6 Дополнительные мероприятия по тепло- и шумозащите;

2.1.7 Перепланировка квартир на верхних этажах:

- под помещения коллективного использования, в том числе в мансарде;

- возможный выход на эксплуатируемый участок кровли;

2.1.8 Оборудование эксплуатируемого подвала:

- устройство помещений коллективного пользования;

- устройство помещений хозяйственно-бытового и вспомогательного назначения (мелкий ремонт, хранение негорючих материалов, инвентаря и инструмента);

2.1.9 Устройство эксплуатируемого участка кровли

 

2.2 Адаптация рядовой (рядовых) секции

2.2.1 Реконструкция входных участков, устройство входов универсального типа (п. 1.1.1);

2.2.2 Реконструкция 1 - 2 сблокированных секций (пп. 2.1.2 - 2.1.9)

-

2.3 Выделение части придомовой территории

2.3.1 Мощение и обустройство площадок для ЛСВ;

2.3.2 Ограждение выделенных площадок

Зеленые изгороди и зонирование; устройство дополнительного подъема (прохода)

3 Частичная адаптация здания (горизонтальная)

Приспособление части жилого здания под специализированное социальное жилище путем реконструкции и модернизации первых этажей

Обеспечение комфортной доступности для ЛСВ как уровня жилых помещений, так и придомовой территории

3.1 Реконструкция 1-го этажа

3.1.1 Устройство адаптированных входов по универсальной схеме;

3.1.2 Устройство специализированных и индивидуальных входов с противоположной продольной стороны здания (полное обособление);

3.1.3 Устройство дополнительных подходов, подъездов, площадок (подиумов), тамбуров;

3.1.4 Дополнительное освещение, охранно-сигнальные устройства;

3.1.5 Перепланировка квартир в секциях для немощных и активных ЛСВ;

3.1.6 Встроенно-пристроенные помещения для учреждений обслуживания;

3.1.7 Застекленные лоджии (террасы);

3.1.8 Эксплуатируемый подвал

 

3.2 Реконструкция 1 - 2 этажей

3.2.1 Устройство универсальных входов;

3.2.2 Устройство двухуровневых квартир с выделение зоны по уходу за немощными ЛСВ в уровне 1-го этажа (входа) в секциях с 3 - 4-комнатными квартирами;

3.2.3 Устройство индивидуальных входов в секции для ЛСВ на креслах-колясках;

3.2.4 Застекленные лоджии;

3.2.5 Эксплуатируемый подвал (во всю длину корпуса или его части)

-

3.3 Зонирование придомовой территории

3.3.1 Расположение специализированных площадок вдоль продольной стороны здания (со стороны расположения специализированных входов);

3.3.2 Дополнительное мощение, освещение и обустройство адаптированных площадок для ЛСВ

-

СОЦИАЛЬНОЕ ЖИЛИЩЕ

3.6 Приспособление/перепрофилирование существующего жилищного фонда под специализированное социальное жилище путем реконструкции и модернизации зданий включает ряд мероприятий:

- адаптацию квартир и/или жилых ячеек;

- замену существующих санитарных кабин на универсальные, в том числе рассчитанные на использование ЛСВ с нарушениями ОДА;

- установку лифтов, подъемников, оборудование пандусов;

- оборудование мусоропроводов;

- организацию группы обслуживающих помещений, в том числе с помощью пристройки специализированных блоков.

3.7 Кроме адаптации самого здания, обязательному приспособлению подлежит придомовая территория, предназначенная для выполнения рекреационных, лечебно-трудовых, лечебно-физкультурных и спортивно-оздоровительных функций.

3.8 При адаптации жилого здания набор реконструкционных мероприятий рекомендуется формировать с учетом справочных материалов приложений Б и В.

3.9 При реконструкции жилого здания часть первого этажа рекомендуется приспосабливать под 1 - 2-комнатные квартиры для использования ЛСВ (в том числе инвалидами) на креслах-колясках.

В качестве реконструкционных мероприятий рекомендуются: оборудование не менее двух адаптированных входов общего пользования (пандус + лестница + место хранения индивидуальных средств передвижения); устройство адаптированных входов индивидуального пользования для ЛСВ, в том числе на креслах-колясках (пандус/подъемник или лестница на уровень террасы первого этажа при спальном помещении); устройство адаптированных вертикальных коммуникаций, в том числе пристройка лифтовых шахт (для 2 - 3-этажных зданий - для пассажирского лифта; для 4 - 9-этажных зданий - для пассажирского + грузового лифтов).

3.10 Реализация архитектурно-типологических решений по адаптации жилой среды осуществляется с помощью конструктивно-технологических мероприятий (см. подраздел 2 «Конструктивные принципы»).

3.11 Оборудование жилой ячейки/квартиры аналогично и в социальном, и в неспециализированном жилом фонде. Адаптации подлежат прежде всего зоны: коммуникационная, кухонная, спальня, санитарный узел и балкон-лоджия (терраса).

Размеры дверных проемов, коридоров и их оборудование при реконструкции жилых зданий должны соответствовать нормам СНиП 35-01, СП 35-101 и СП 35-102.

Если при реконструкции квартиры/жилой ячейки для нужд ЛСВ нет возможности обеспечить минимальный размер кухонного помещения (не менее 8 м2 для однокомнатной и не менее 9 м2 для двух- и более комнатных квартир), то рекомендуется отказаться от автономного помещения кухни и оборудовать многофункциональное пространство гостиной/общей комнаты с обеденной зоной и кухней-нишей. При проектировании универсальных ячеек, учитывающих возможное размещение ЛСВ с поражением ОДА, размер кухни должен быть не менее 12 м2. Организация кухни-ниши рекомендуется максимально компактной и упрощенной конфигурации, ее минимальные размеры для однокомнатной квартиры - 4,5 - 5,0 м2.

Размеры и организация спальной зоны зависят от ее предназначения (на одного человека или супружескую пару) и от особенностей физического состояния пользователей.

Рекомендуемые приемы адаптации и дооснащения санитарно-гигиенических помещений приведены на рисунке 2.

3.12 При реконструкции социального жилого фонда желательно отразить тенденцию в практике проектирования последних лет по созданию многофункциональных комплексов, включающих, кроме квартирного дома с обслуживанием, также дом-интернат и центр обслуживания.

Специфика организации подобного комплекса состоит в максимально целесообразной компактности, минимальной протяженности основных пешеходных коммуникаций и функциональных связей.

Пребывание и проживание ЛСВ в подобном комплексе имеет для него, прежде всего, психологические адаптационные преимущества.

МАССОВЫЕ ЖИЛЫЕ ДОМА СО СПЕЦИАЛИЗИРОВАННЫМИ ЭЛЕМЕНТАМИ ДЛЯ ЛСВ

3.13 Адаптацию (приспособление) жилых зданий к потребностям ЛСВ осуществляют путем реконструкции или модернизации отдельных жилых помещений (квартир) и мест общего пользования. Реконструкционные мероприятия при этом должны быть направлены на реализацию требований СНиП 35-01, относящихся к жилым зданиям.

В состав архитектурно-типологических мероприятий при целевой реконструкции жилых зданий и/или их частей целесообразно включать:

- перепланировку секций или отдельных квартир и модернизацию их инженерного оборудования;

- устройство летних помещений (террас, балконов или лоджий) при реконструкции квартир первого этажа;

- реконструкцию входов в здание с устройством пандусов, ликвидацией порогов, расширением дверных проемов и т.д.;

- оснащение лифтами;

- модернизацию благоустройства придомовой территории, включая малые архитектурные формы, освещение, дорожные покрытия, газоны, ограждения.

3.14 В качестве объекта реконструкции (модернизации) рекомендуется использовать жилые здания, конструктивная схема которых позволяет осуществлять перепланировку помещений и другие усовершенствования объемно-планировочных решений с наименьшими затратами.

Адаптация жилых домов для нужд ЛСВ может осуществляться выделением секций и/или этажей под квартиры социального жилища для одиноких пожилых людей и семей ЛСВ, в том числе с обслуживанием, а также для заселения многопоколенными семьями с ЛСВ (обменный жилой фонд).

3.15 Поскольку приспособлению для социальных нужд чаще всего подвергается малоценный фонд существующих зданий, реконструкции следует подвергать здания, степень эксплуатационной изношенности которых не превышает величины, за которой возникает угроза безопасности. Факторами, снижающими прочность и жесткость частей здания и, вследствие этого, надежность его эксплуатации, могут быть:

- широкое раскрытие трещин в плитах перекрытий или несущих стенах, пересекающих расчетные сечения конструкции;

- отколы бетона или защитного слоя в железобетонных плитах или панелях с обнажением арматуры на значительных участках;

- коррозия арматуры и закладных деталей со значительным уменьшением их расчетных сечений;

- местные разрушения несущих кирпичных стен вследствие выветривания, вымывания, неравномерных осадок, ослаблений стен при ранее произведенных перестройках и т.д.

При снижении несущей способности конструкции более чем на 25 % степень ее поврежденности (эксплуатационной изношенности) считается значительной.

3.16 Рекомендации по размещению ЛСВ в реконструируемом жилищном фонде приведены в таблице 2.

3.17 Примеры адаптации для нужд ЛСВ типовых жилых домов массовых серий приведены в приложении Б.

Таблица 2

Типы жилищ

Типы жилых ячеек, квартир

Контингент проживающих

Вместимость, мест

Размещение

Дома массовой жилой застройки

Специальные квартиры* с числом комнат до 6

1. Семьи ЛСВ (в том числе одиночки)

-

Первый этаж

 

 

2. Многопоколенные семьи

-

При наличии лифта - на любом этаже, при отсутствии - не выше 2-го

Специальные квартирные дома (или группы квартир) с обслуживанием**

Специальные 1 - 2-комнатные квартиры

ЛСВ (одинокие и супружеские пары)

20 - 30

(не более 80 квартир в доме)

В структуре селитебной территории

Жилые секции интернатного типа (постоянного проживания)

1 - 2-комнатные жилые ячейки

ЛСВ (одинокие и супружеские пары), нуждающиеся в постоянном уходе

30 - 50

Не более 80 мест

В составе домов-интернатов, территориальных центров, больниц

Жилые секции пансионатного типа (временного пребывания)

То же

ЛСВ (одинокие и супружеские пары)

60 - 80

Не более: 120 мест для 1 - 2 месяцев; 30 мест для недельного или дневного пребывания

В составе домов-интернатов, территориальных центров или самостоятельно в структуре селитебной территории

* Рекомендуемые минимальные площади специальных квартир в домах массовой застройки, м2:

для многопоколенных семей с ЛСВ:

трехкомнатная (для 3 чел.) - 70;

четырехкомнатная (для 4 чел.) - 82;

пятикомнатная (для 5 чел.) - 100;

шестикомнатная (для 6 - 7 чел.) - 105 - 113;

для одиноких и семей ЛСВ:

однокомнатная (для 1 чел.) - 36;

двухкомнатная (для 2 чел.) - 53;

трехкомнатная (для 3 чел.) - 65.

** Рекомендуемое количество однокомнатных квартир от общего числа адаптируемых - не менее 70 %.

4 ТРЕБОВАНИЯ К ЗДАНИЯМ УЧРЕЖДЕНИЙ ОБСЛУЖИВАНИЯ НАСЕЛЕНИЯ

4.1 Существующие общественные здания и сооружения (входящие в состав так называемых учреждений социальной инфраструктуры), использование которых ЛСВ без целевой адаптации затруднено, подлежат реконструкции.

В числе первоочередных и обязательных должны предусматриваться мероприятия по обеспечению условий доступности для ЛСВ во все здания и помещения учреждений управления, органов социальной защиты населения, а также организаций коммунальных служб, обслуживающих людей пенсионного возраста.

Проектные решения по обеспечению доступности ЛСВ в существующие помещения и зоны обслуживания следует принимать в соответствии с требованиями, указаниями и рекомендациями СНиП 35-01, СП 35-101 и СП 35-103.

4.2 К группе учреждений обслуживания людей пенсионного возраста условно отнесены те виды, в которых значительную часть массы клиентов составляют ЛСВ. К ним относятся в первую очередь: кредитно-финансовые учреждения, предприятия связи, социальные и коммунальные службы, нотариальные и адвокатские конторы.

4.3 В качестве варианта перепланировки может быть предложено создание специальной общественной приемной, расположенной вблизи от доступного для ЛСВ входа. В этом случае работа учреждения должна быть организована таким образом, чтобы в помещение общественной приемной могли приглашаться соответствующие специалисты тех или иных служб и подразделений учреждения для проведения необходимых консультаций и других работ с населением. В непосредственной близости от такой приемной должны быть расположены туалеты, приспособленные и оборудованные для пользования всеми категориями ЛСВ.

В непосредственной близости от приемной следует предусмотреть также зону ожидания приема с местом для ознакомления с документами и оформления документов, а также стационарными (или откидными, при необходимости) сидениями.

В приемных или в зонах ожидания приема следует предусматривать возможность дооснащения рабочей зоны наушниками усиления звука, компенсационными устройствами усиления звука или другим оборудованием, обеспечивающим возможность работы с посетителями, имеющими нарушения функций слуха и зрения.

4.4 В каждом из учреждений, работа которых связана с возможностью получения и передачи информации по линиям телефонной связи, необходимо установить не менее одного текстофона для работы с абонентами, имеющими недостатки функций слуха.

СПЕЦИАЛИЗИРОВАННЫЕ, МЕДИЦИНСКИЕ И ОЗДОРОВИТЕЛЬНЫЕ УЧРЕЖДЕНИЯ

4.5 Первоочередными задачами реконструкции и модернизации стационаров для ЛСВ (домов-интернатов для инвалидов и престарелых, домов для ветеранов войны и труда, пансионатов и т.д.) являются:

1. Оптимизация вместимости учреждений до рекомендуемой врачами и социологами (150 - 200 мест).

2. Повышение комфортности проживания для различных категорий ЛСВ путем:

- приоритетности 1 - 2-местного заселения спальных помещений для активных и дееспособных категорий;

- развития группы специализированных и вспомогательных помещений, обеспечивающих необходимый уровень сервиса и медико-социального обслуживания;

- повышения доступности и удобства пользования санитарно-гигиеническими помещениями (рисунок 3), а также коммуникационными помещениями и пространствами, в том числе и в экстерьере;

- повышения доступности и удобства пользования коммуникационными помещениями и пространствами, в том числе и в экстерьере;

- улучшения декоративных и экологических качеств отделочных материалов;

- создания единой системы средств информационной поддержки ЛСВ (для существующих и вновь введенных элементов среды) с использованием адаптированных приборов;

- оснащения необходимым и достаточным оборудованием (медицинским, инженерно-техническим), а также мебелью и бытовыми приборами, в том числе индивидуальными спасательными устройствами и индивидуальными средствами изолирующего действия для защиты органов дыхания, которые должны храниться непосредственно на рабочем месте обслуживающего персонала.

3. Капитальный ремонт зданий, обеспечивающий в том числе ликвидацию последствий физического износа конструкций зданий.

4.6 Территориальные центры социального обслуживания предназначены для оказания ЛСВ медико-социальных и культурно-бытовых услуг как непосредственно на дому, так и в условиях дневного пребывания. Актуальным адаптационным мероприятием в сложившейся застройке в связи с этим является реконструкция или приспособление зданий под данные учреждения. Группа помещений службы срочной социальной помощи может быть организована также вне структуры центра, в первых нежилых этажах домов массовой застройки.

4.7 Наиболее распространенной и рекомендуемой формой является центр, включающий два отделения: социальной помощи на дому и дневного пребывания. В состав отделения социальной помощи следует включать: телефонизированную диспетчерскую, психологическую службу «телефон доверия», кабинеты психолога и юриста.

4.8 Отделениями для временного пребывания (проживания) ЛСВ в территориальных центрах социального обслуживания, как правило, могут стать: отделение дневного пребывания (не более 50 мест) и/или пансионатное отделение с пребыванием до 1 мес. (не более 25 - 30 мест).

4.9 При реконструкции зданий лечебно-профилактических учреждений (рисунок 4) для обеспечения доступности вестибюлей стационара и поликлиники для посетителей, а также приемного отделения и его помещений, предназначенных для поступающих в больницу и сопровождающих их лиц, рекомендуется переоборудовать наружные входы; обеспечить доступность коммуникационного пространства; адаптировать один приемно-смотровой бокс для приема немощных, в том числе на кресле-коляске или каталке.

4.10 Для предотвращения травматизма необходимо:

- устранить у наружных входов для пациентов и посетителей устройства, способные нанести травму (двери с вращающимися полотнами, турникеты и т.п.);

- остеклить входные двери небьющимся стеклом, что позволит увидеть ЛСВ инвалида, идущего/едущего навстречу, и установить на входных дверях противоударные полосы на высоте 0,3 м на уровне ног инвалида на кресле-коляске.

4.11 В палатных отделениях и на маршрутах, связывающих их с другими подразделениями, рекомендуется обеспечить при реконструкции безопасность пересечения коридоров для ЛСВ планировочными (например, срезанием углов) и информационными (например, установкой предупреждающих знаков) средствами.

4.12 Путем расширения коридоров или создания «карманов» за счет части помещений (СП 35-101, СП 35-103) рекомендуется организовать в коридорах лечебно-диагностических отделений зоны отдыха и зоны для ожидания процедур.

4.13 Рекомендуется адаптировать одну из проходных кабин для раздевания (при входе в отсеки ванного и грязевого залов) и примыкающий к этой кабине функциональный отсек (за счет уменьшения смежных помещений или сокращения общего числа функциональных отсеков).

4.14 При реконструкции открытых плоскостных сооружений по их периметру следует предусматривать защитную буферную зону шириной 3 м, свободную от всякого рода препятствий.

4.15 При реконструкции «тропы здоровья» в целях обеспечения доступности трассы для ЛСВ следует выделять специальные зоны с размещением альтернативных снарядов и тренажеров, а перепады рельефа трассы следует отмечать повышением или понижением направляющего поручня. Протяженность, уклоны, степень сложности для прохождения маршрута «тропы здоровья» следует выполнять в соответствии с конкретными условиями и рекомендациями СНиП 35-01.

Повороты пешеходных дорожек для безопасности ЛСВ с недостатками зрения рекомендуется обозначать изменением качества и фактуры покрытия.

4.16 Рекомендуется предусматривать мягкую обивку стен на высоту 2 м в залах для занятий оздоровительной гимнастикой.

Зоны отдыха в физкультурно-оздоровительных зданиях и сооружениях рекомендуется оборудовать скамьями.

Для пола и стен следует применять контрастные, но не яркие цвета (голубой и желтый). Яркие цвета (красный, оранжевый) рекомендуется применять лишь в зонах «особого внимания» и кратковременного пребывания, в том числе у отдельных тренажеров.

4.17 При реконструкции помещений плавательных бассейнов следует увеличить ширину обходных дорожек до нормативных (СП 35-103) и предусмотреть зоны для размещения дополнительного вспомогательного оборудования.

Для реконструируемого покрытия обходной дорожки рекомендуется применять шероховатую плитку с уклоном в сторону трапа не более 2 %, а по периметру обходной дорожки рекомендуется предусматривать сплошной поручень.

Вместо ножных проходных ванн при выходе из раздевальных в зал бассейна рекомендуется предусматривать коврики, пропитанные антисептиком.

4.18 Глубину встраиваемых ванн бассейнов следует принимать не более:

0,6 - 0,85 м - оздоровительно-тренировочная (размером 6 ´ 12 м);

0,8 - 1,35 м - учебная для обучения плаванию взрослых (размер 8 ´ 16 м);

1,2 - 1,45 - для физкультурно-оздоровительного плавания всех категорий пользователей (размер 11 ´ 25 м).

Варианты встраивания и схемы конструктивных решений различны при выборе уровня (этажа) размещения ванны (таблица В.1).

ПРЕДПРИЯТИЯ ТОРГОВЛИ, ОБЩЕСТВЕННОГО ПИТАНИЯ И БЫТОВОГО ОБСЛУЖИВАНИЯ

4.19 В реконструируемых зданиях следует адаптировать: пути эвакуации, специальные зоны с местами обслуживания, помещения/пространства сопутствующего обслуживания (информационное сопровождение, торговые киоски, предприятия питания, кассовые залы, рекреационные пространства, прилегающая парковая или рекреационная зона на участке), помещения дежурного администратора, медицинский пункт, общественный туалет и т.п.

4.20 Доступность ЛСВ в операционно-кассовые залы учреждений и предприятий обслуживания и возможность получения полного ассортимента услуг при реконструкции следует обеспечивать адаптацией всех элементов оборудования для обслуживания (прилавков, окон касс, проходов через турникеты и ряды кассовых аппаратов, оборудования самообслуживания и проходов между оборудованием и т.д.). Возможна организация специальной зоны (помещения) для престарелых и инвалидов (автоматы самообслуживания, кресло в парикмахерской, косметолога и т.п.).

4.21 В целях предотвращения травм и других негативных последствий контакта ЛСВ с движущимися, горячими, острыми или хрупкими деталями оборудования, химически опасными препаратами, электрооборудованием (связанным с использованием высокого напряжения) и т.п. при реконструкции следует предусматривать меры дополнительной безопасности: ограждения, барьеры, визуальные и тактильные предупредительные информационные обозначения, обозначения ограничения или запрещения доступа.

4.22 В зонах обслуживания или самообслуживания ЛСВ (в том числе, специализированных магазинов или секций типа «Ветеран») следует:

- предусматривать полузамкнутые кабины (зоны) индивидуального обслуживания (примерочные кабины, выбор товаров по образцам, оформление документов и кассовых расчетов), где ЛСВ в более комфортной обстановке могут получить услугу и отдохнуть после ее получения;

- предусматривать зону пешеходной полосы, оборудованную поручнями высотой 0,5; 0,7 и 0,9 м;

- организовать удобные места временного хранения индивидуальных вещей (сумок, покупок, ручной клади);

- организовать зону отдыха.

4.23 При реконструкции объектов обслуживания рекомендуется в пределах одного города (района) устанавливать одинаковые рекламные установки для обозначения однотипных предприятий обслуживания, легко распознаваемые на расстоянии.

4.24 В реконструируемых залах при одной полосе движения (на прямых участках) допустимая ширина прохода обусловливается прохождением человека на двух костылях и составляет 0,95 м. Рекомендуемая ширина прохода - 1,0 м.

Проходы в торговых рядах рекомендуется оборудовать поручнями на высоте 0,8 м (или 0,7 и 0,9 м).

КУЛЬТУРНО-ЗРЕЛИЩНЫЕ И ДОСУГОВЫЕ УЧРЕЖДЕНИЯ

4.25 При реконструкции музеев, художественных галерей, выставочных комплексов зально-павильонной структуры доступность экспозиции и комфортность среды пребывания рекомендуется обеспечивать для всех категорий посетителей ЛСВ (включая инвалидов) в соответствии со СНиП 35-01 и СП 35-103.

Участки пола при приближении к лестницам, пандусам, а также при приближении к потенциально опасным фрагментам экспозиции и оборудованию/конструкциям следует выделять особым рельефным или ковровым покрытием.

4.26 Места для лиц с недостатками функций слуха следует размещать на расстоянии не более 13 м от источника звука или оборудовать специальными персональными приборами усиления звука.

4.27 В целях создания условий полноценного психологического комфорта при ознакомлении с экспозицией, а также условий психологической разгрузки и отдыха в выставочных залах возможно, при соответствующем обосновании, применение следующих мероприятий:

- выделение специальных зон отдыха непосредственно в залах;

- устройство мест для сидения и отдыха в местах основных видовых точек для продолжительного восприятия экспозиции или информации;

- оснащение поручнями всего маршрута осмотра экспозиции;

- организация зоны отдыха в прилегающем коммуникационно-рекреационном пространстве, в том числе при выходе из зала (здания).

4.28 Рекомендуется устройство дополнительной подсветки ступеней, перепадов уровней, мест приближения к светопрозрачным, зеркальным или хрупким конструкциям или травмоопасному оборудованию.

Вдоль свободных участков стен общего коммуникационно-рекреационного пространства здания и основных помещений рекомендуется предусматривать опорные поручни, устройство систем визуальной и тактильной информации, внутренней и внешней связи.

4.29 Столик с каталогом на шрифте Брайля рекомендуется размещать в читальном зале в специально выделенной зоне обслуживания ЛСВ с дефектами зрения. Ряд кресел в этой зоне рекомендуется оборудовать специальным устройством для снятия мышечного напряжения рук.

5 РЕКОМЕНДАЦИИ ПО РЕНОВАЦИИ ЗДАНИЙ СОЦИАЛЬНОГО ОБСЛУЖИВАНИЯ НАСЕЛЕНИЯ

ДОМА-ИНТЕРНАТЫ (ПАНСИОНАТЫ)

5.1 Реконструкция жилых отделений домов-интернатов (пансионатов) для ЛСВ любой возрастной патологии (с нарушениями ОДА, психоневрологических, с дефектами зрения и т.д.) обусловлена необходимостью повышения комфорта проживания и удобства обслуживания (патронажа). Комплекс мероприятий следует направлять на обустройство жилых блоков (групп помещений) для трех основных категорий пользователей: самостоятельных в обслуживании (I), нуждающихся в наблюдении (II) и нуждающихся в постоянном уходе (III), лежачих. Возможны как автономная организация каждого блока, так и объединение двух последних.

Рекомендуемый набор и вместимость жилых комнат приведены в таблице 3.

5.2 Для учреждений, в которых количество ЛСВ группы III достигает 70 - 90 % общего числа проживающих, рекомендуется перепрофилирование существующих зданий под размещение геронтологических больниц, платных пансионатов, обеспечивающих более комфортные условия проживания и более высокий уровень медицинского обслуживания. На базе пансионатов возможна организация домов сестринского ухода с различной продолжительностью пребывания, а также интернатов малой вместимости для тяжелобольных (нуждающихся в особой терапии, аналогично хосписам).

5.3 Рекомендации по реновации типовых зданий домов-интернатов приведены в таблице 4.

Примеры реновации зданий типовых домов-интернатов приведены на рисунках 5, 6 (а - б) и 7 (а - в).

Таблица 3

Вид учреждения

Вместимость жилых комнат, чел.

Категория пользователей

% для группы, не менее

Категория пользователей

% для группы, не менее

Категория пользователей

% для группы, не менее

Пансионаты

1

I

80 %

II - III

10 %

III

20 %

 

2

 

20 %

 

 

 

90 %

 

4

 

 

 

 

 

 

Психоневрологические дома-интернаты

2 - 4

Для I, II и III (при 25 - 30 чел. в каждой группе).

Рекомендуемая норма жилой площади - 7 м2/чел.

Таблица 4

№ п. п.

Существующее здание (типовой проект)

Адаптация

1

2

1

Т.П. 1Р-03-1/68

Дом-интернат для престарелых и инвалидов на 100 мест

Двухэтажное здание

Конструктивная система:

- продольные кирпичные несущие стены;

- перекрытия из сборных ж/б плит;

- крыша совмещенная плоская с внутренними водостоками;

- перегородки кирпичные, толщ. 0,12 м;

- лестницы из сборного ж/б;

- стены лестничных клеток (внутренние) кирпичные, толщ. 0,38 м

Лифты отсутствуют

Функциональные недостатки - перенаселенность жилых комнат; малая площадь, приходящаяся на 1 чел.; совмещение престарелых и инвалидов

Дом-интернат для ЛСВ на 100 мест

Реконструкционные мероприятия:

- надстройка этажа на корпусе с жилыми комнатами при сохранении конструктивной системы;

- пристройка лоджий с обеих сторон жилого корпуса;

- пристройка лифтовых шахт (на два лифта);

- достройка лестничных клеток.

Конструкции:

стены - кирпичная облегченная кладка;

лоджии - железобетонные монолитные плиты и несущие стенки, кирпичные ограждения;

перегородки - кирпичные, толщ. 0,12 м (1-й вариант), каркасные по элементной сборке из листов гипсокартона (2-й вариант);

кровля - плоская малоуклонная с внутренними водостоками (существ.)

2

Т.П. 2С-05-08

Лечебные корпуса для спокойных хроников (психоневрологической больницы)

Двухэтажное здание

Конструктивная система:

- продольные кирпичные несущие стены;

- перекрытия из сборных ж/б плит;

- крыша с чердаком односкатная (над большей частью здания); частично - плоская, совмещенная;

- перегородки кирпичные, толщ. 0,25 м и 0,12 м;

- лестницы из сборного ж/б;

- стены лестничных клеток кирпичные, толщ. 0,38 м

Лифты отсутствуют

Дом-интернат для ЛСВ на 100 мест

Реконструкционные мероприятия:

надстройка этажа центральной части с сохранением конструктивной системы.

Конструкции:

стены - кирпичные облегченной кладки;

перекрытия - из сборных ж/б плит;

перегородки - кирпичные;

кровля - плоская с внутренними водостоками.

Надстройка мансардного этажа над центральной частью здания:

каркас мансарды - стальные рамы (двухпролетные) с продольными, вертикальными и горизонтальными связями;

утеплитель - минераловатные плиты;

кровля - металлочерепица.

Конструкции:

внутренняя обшивка - гипсокартонные листы;

окна - типа Velux;

перегородки - каркасно-обшивные с гипсокартонными листами.

Пристройка двух отдельных лифтовых шахт со стенами из кирпича

3

Т.П. 1р-03-2/68

Дом-интернат для престарелых и инвалидов на 300 мест

Конструктивная система - см. № 1 табл.

1. Гериатрическая больница на 100 коек.

2. Дом-интернат для престарелых и инвалидов на 150 мест.

3. Интернат для психоневрологических больных на 200 мест

Реконструкционные мероприятия:

перепланировка помещений.

Конструкции:

перегородки - кирпичные, толщ. 0,12 м

4

Т.П. 164-90-59

Дом-интернат для престарелых и инвалидов на 100 мест

Конструктивная система - см. № 1 табл.

Лифт - 1 шт.

Дом-интернат для ЛСВ на 100 мест

Реконструкционные мероприятия:

- надстройка этажа.

Конструкции:

а) в кирпиче для среднего блока помещений, объединяющего лифты и лестничную клетку;

б) в легких металлических конструкциях для центрального корпуса здания, колонны, ригели и балки - стальные прокатные профили; перекрытие - ж/б монолитное по профнастилу; стены - панели типа «сэндвич» толщ. 0,12 м.

Пристройка лифтовой шахты на два лифта;

стены - кирпичные наружные, толщ. 0,51 м; внутренние - 0,38 и 0,25 м

СПЕЦИАЛИЗИРОВАННЫЕ УЧРЕЖДЕНИЯ НОВЫХ ВИДОВ

5.4 Учреждения социальной защиты для лиц без определенного места жительства - специализированные учреждения, предназначенные для временного пребывания людей старшего возраста, включают: социальные гостиницы, приюты, дома ночного пребывания и центры социальной адаптации. Приспособление зданий под перечисленные учреждения следует осуществлять в соответствии с СП 35-107.

5.5 При проектировании рекомендуется различать два основных типа.

Тип 1 - социальное учреждение, объемно-планировочные параметры которого определяются минимально необходимым набором помещений и нормативом площадей. Отклонения при проектировании зданий учреждений первого типа от основных социальных и санитарно-гигиенических требований, влияющих на возможное ухудшение условий пребывания в зданиях ЛСВ, не рекомендуются.

Тип 2 - учреждение временного пребывания, при проектировании которого обязательные требования учитываются в качестве базовых, а набор рекомендательных требований не ограничивается. Расширение состава функциональных групп, количества помещений и увеличение размера удельной (жилой и общей) площади на 1 чел. определяются в задании на проектирование конкретного объекта.

5.6 Социальная гостиница. При реконструкции зданий, отводимых под данное учреждение, следует обеспечивать минимально необходимый набор функциональных групп помещений, гарантирующий стандартные условия для временного проживания ЛСВ в течение от 10 до 30 сут. Данный набор включает:

- жилую группу (с жилыми комнатами на 2 - 6 человек, санузлами и гардеробными);

- группу бытового обслуживания и самообслуживания (гостиная, буфетная, прачечная самообслуживания, гладильная, пункты приема химчистки и прачечной, ремонта обуви и проката бытового оборудования, пункт связи, парикмахерская);

- столовую (обеденный зал, кухня, моечные, кладовые, в том числе холодильные камеры, загрузочная);

- санпропускник с вестибюльной группой;

- административные и служебно-бытовые помещения.

5.7 Приют (дом временного пребывания). Набор функциональных групп помещений, обеспечиваемый при приспособлении зданий под данное социальное учреждение, практически аналогичен социальной гостинице. Специфика заключена в более длительном пребывании (временном проживании) ЛСВ - от 30 до 60 сут.

5.8 Дом ночного пребывания. Время проживания ЛСВ в здании, приспособляемом под данное учреждение, - до 10 сут. В составе функциональных групп следует предусмотреть помещения социально-медицинской адаптации с кабинетом психолога, комнатой фельдшера и постом медсестры. Группу бытового обслуживания рекомендуется организовывать без помещений самообслуживания и минимальной по площади (приемный пункт + фотолаборатория).

5.9 Центр социальной адаптации. Для ЛСВ должно быть обеспечено проживание до 6 мес. Данное учреждение характеризует необходимость группы медико-реабилитационных помещений (с кабинетами врача-терапевта и психотерапевта, психолога, нарколога и трудоинспектора), а также мастерских трудотерапии и досуговых помещений.

5.10 В адаптируемых зданиях необходимо обеспечить полное соблюдение противопожарных требований. Все помещения (кроме помещений с мокрыми процессами), следует оборудовать автоматическими системами пожарной сигнализации и пожаротушения в соответствии с НПБ 88. Кроме того, все спальные помещения и другие помещения длительного пребывания ЛСВ следует оборудовать автономными пожарными извещателями.

5.11 При переоборудовании зданий социальных учреждений следует предусматривать систему оповещения в соответствии с НПБ 104. При этом учет возрастных отклонений в восприятии сигналов осуществляется также через дублированную (звуковую и визуальную) сигнализацию, подключенную к системе оповещения людей о пожаре, либо устанавливают стандартные штепсельные розетки, подключенные к системе, при которой возможно включение в них, при необходимости, соответствующих сигнальных приборов или устройств.

5.12 Вестибюли адаптируемых общественных зданий рекомендуется дооборудовать звуковыми информаторами по типу таксофонов, текстофонами или комплексным оборудованием, которым могут пользоваться все посетители ЛСВ вне зависимости от дефекта органов зрения и/или недостатка слуха.

5.13 В кабинах, организуемых для ЛСВ и размещаемых в туалетах общего пользования, следует предусматривать установку кнопки звонка, которой можно пользоваться с унитаза или от двери кабины. Электрический звонок или оповещатель должен располагаться в дежурной комнате при туалете.

Не менее одной из рядовых кабин туалетов общего пользования следует оборудовать поручнями, расположенными по боковым сторонам.

ИЛЛЮСТРАТИВНЫЙ МАТЕРИАЛ

(примеры проектных решений)

Варианты адаптации жилых зданий

Рис. 1

 - основные, универсальные входы

 - адаптированные, специализированные входы

 - зона специализированного социального жилища для ЛСВ

 - зона специализированных площадок для ЛСВ

 

Адаптация помещений для ослабленных категорий пожилых людей

Рис. 2, а, б, в

АДАПТАЦИЯ САНИТАРНО-ГИГИЕНИЧЕСКИХ ПОМЕЩЕНИЙ

 

Адаптация помещений для ослабленных категорий пожилых людей

Рис. 2, г, д

АДАПТАЦИЯ САНИТАРНО-ГИГИЕНИЧЕСКИХ ПОМЕЩЕНИЙ

 

Адаптация зданий специализированных учреждений

Рис. 3

ПРИМЕР АДАПТАЦИИ ВАННЫХ ПОМЕЩЕНИЙ В ПАНСИОНАТАХ ДЛЯ ВЕТЕРАНОВ ТРУДА

1 - раздвижная дверь; 2 - разбираемая перегородка; 3 - поручень трубчатый, диам. 40 мм; 4 - стойка-поручень, диам. 40 мм; 5 - крепление поручня к стенке; 6 - опоры поручня высотой 710 мм; 7 - умывальник; 8 - унитаз с бачком; 9 - настенное зеркало; 10 - кнопка вызова персонала; 11 - ванна сидячая (замена); 12 - подъемник ПДВ-160

Проектное решение для целевого капитального ремонта зданий пансионатов для ветеранов труда (№ 9, 17, 19) с частичной перепланировкой и дооснащением помещений в Москве. (АПИО-Центр, ФГУП «ИОЗ»; архитектор И.П. Малиночка, конструктор В.Ф. Кротюк.)

 

Пример адаптации лечебного здания

Рис. 4

Типовой проект лечебного корпуса для спокойных хроников на 150 мест

(для психоневрологических больных)

(ТП 2С-05-08)

Адаптация - дом-интернат общего типа на 100 мест

Адаптацией предусматривается:

- внутренняя перепланировка с разукрупнением жилых помещений;

- надстройка 3-го этажа в центральной части здания в осях 5 - 8;

- надстройка мансарды над боковыми частями здания в осях 1 - 5 и 8 - 12;

- пристройка лифтовых шахт в центральной части

 

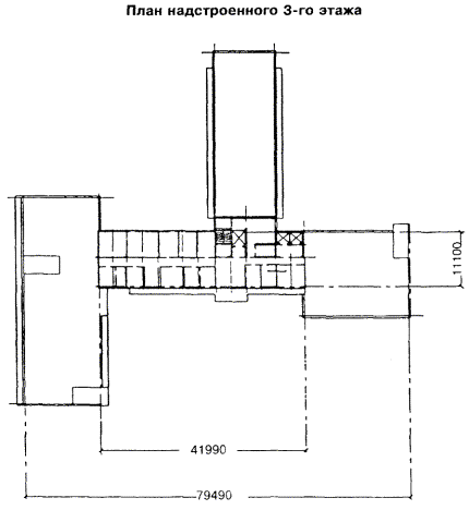
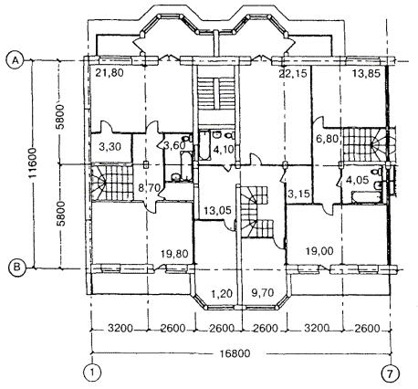
Пример адаптации здания дома-интерната

Рис. 5

Типовой проект дома-интерната для престарелых и инвалидов на 100 мест

(ТП 1Р-03-1/68)

Фасад

Адаптацией предусматривается:

- внутренняя перепланировка с разукрупнением жилых помещений;

- надстройка 3-го этажа большого корпуса;

- пристройка лоджий к жилым комнатам;

- пристройка лифтовых шахт в центральной части здания

 

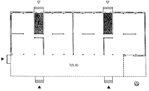
Пример адаптации здания дома-интерната

Рис. 6, а

а - типовой проект дома-интерната для престарелых и инвалидов на 100 мест

(ТП 164-90-59)

Примечание - Пример реновации проекта ТП 164-90-59 см. на с. 23.

 

Пример адаптации здания дома-интерната

Рис. 6, б

б - адаптация - дом-интернат для лиц старших возрастов на 100 мест

Адаптацией предусматривается:

- внутренняя перепланировка с разукрупнением жилых помещений;

- надстройка этажа в легких металлических конструкциях над центральной частью здания;

- пристройка лифтовых шахт в центральной части

 

Пример адаптации здания дома-интерната

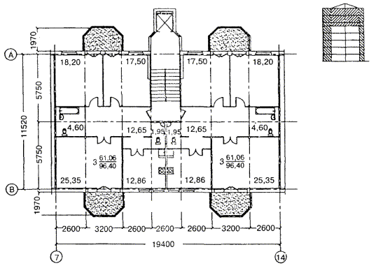
Рис. 7, а

Типовой проект дома-интерната для престарелых и инвалидов на 300 мест

(ТП 1р-03-2/68)

1 - жилая комната на 2 чел.; 2 - жилая комната на 3 чел.; 3 - комната отдыха; 4 - комната персонала; 5 - холл; 6 - хозинвентарная; 7 - чистка одежды; 8 - радиоузел; 9 - теплица - зимний сад; 10 - прогулочная терраса

Фрагмент плана 3-го этажа

Адаптация - дом-интернат общего типа на 150 мест

Примечание - Примеры адаптации представлены для заштрихованного фрагмента плана здания.

 

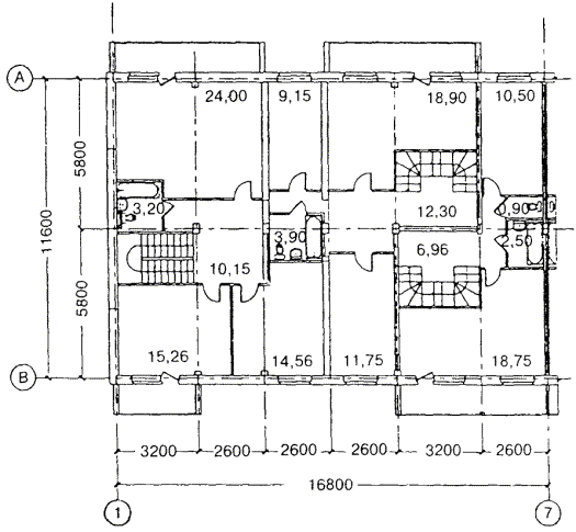
Примеры адаптации здания дома-интерната

Рис. 7, б

Типовой проект дома-интерната для престарелых и инвалидов на 300 мест

(ТП 1р-03-2/68)

1 - жилая комната на 1 чел.; 2 - жилая комната на 2 чел.; 3 - жилая комната на 3 чел.; 4 - гостиная; 5 - санузел; 6 - душевая; 7 - комната на 1 койку; 8 - комната на 2 койки; 9 - комната на 3 койки; 10 - клизменная; 11 - кабинет врача; 12 - процедурная; 13 - буфетная; 14 - комната хранения колясок; 15 - комната отдыха

Примечание - Примеры адаптации представлены для заштрихованного фрагмента плана 1-го этажа здания.

 

Примеры адаптации здания дома-интерната

Рис. 7, в

Типовой проект дома-интерната для престарелых и инвалидов на 300 мест

(ТП 1р-03-2/68)

1 - комната на 1 койку; 2 - комната на 2 койки; 3 - комната на 3 койки; 4 - комната для занятий; 5 - кружковая комната; 6 - комната общественных организаций; 7 - курительная; 8 - мастерская; 9 - кладовая готовых изделий; 10 - библиотека; 11 - санузел; 12 - холл-фойе; 13 - зальное помещение; 14 - комната отдыха

Примечание - Примеры адаптации представлены для заштрихованного фрагмента плана здания.

ПРИЛОЖЕНИЕ А

(справочное)

ДОПОЛНИТЕЛЬНЫЙ ПЕРЕЧЕНЬ РЕКОМЕНДУЕМЫХ НОРМАТИВНО-МЕТОДИЧЕСКИХ ДОКУМЕНТОВ

1. СП 35-106-2003 «Расчет и размещение учреждений социального обслуживания пожилых людей».

2. СП 35-115 «Обустройство помещений социального и медицинского обслуживания пожилых людей».

3. РДС 35-201-99 «Порядок реализации требований доступности для инвалидов к объектам социальной инфраструктуры».

4. РСН 00.4-92/Госкомархстроя РСФСР «Жилища квартирного типа и специализированные жилые комплексы»

5. ВСН 57-88(р) «Положение по техническому обследованию жилых зданий».

6. ВСН 53-86(р) «Правила оценки физического износа жилых зданий».

7. ВСН 61-89(р) «Реконструкция и капитальный ремонт жилых домов. Нормы проектирования».

8. Методические рекомендации по выбору рациональных архитектурно-планировочных решений реконструкции жилых зданий различных конструктивных систем. Утверждены приказом Госстроя России от 10.11.1998 г. № 8.

9. Технические решения утепления наружных ограждений домов первых массовых серий.

10. Рекомендации по проектированию различных типов жилища для маломобильных групп населения (престарелых и инвалидов). РСН 00.0-91. - Иваново, 1991.

11. Методические рекомендации по реновации существующих домов-интернатов для престарелых с частичным перепрофилированием в дома-интернаты для психохроников и гериатрические больницы (заключительный отчет по теме 5/91). - Иваново, 1991.

12. Методические рекомендации по проектированию объектов жилищно-гражданского назначения, а также приспособлению существующих зданий, с учетом специфических особенностей и жизненных потребностей людей с физическими недостатками. - М.: МНИИПОКОЗ, 1990.

13. Нормали планировочных элементов жилых и общественных зданий. Выпуск НП 1.4-75. Дома-интернаты для престарелых. - М.: Стройиздат, 1977.

14. Нормали планировочных элементов жилых и общественных зданий. Выпуск 1.7-82. Психоневрологические интернаты. - М.: Стройиздат, 1985.

15. Формирование пространств для жизнедеятельности старшей возрастной группы. Жилые здания. Обзорная информация, выпуск 1. - М., 1988.

16. Жилые дома квартирного типа для престарелых. Жилые здания. Обзорная информация. Выпуск 3. - М., 1977.

ПРИЛОЖЕНИЕ Б

(справочное)

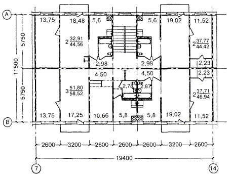
ПРИМЕРЫ АДАПТАЦИИ ТИПОВЫХ ЖИЛЫХ ДОМОВ МАССОВЫХ СЕРИЙ

Серия 1-335 (рисунки Б.1 - Б.7)

Предложения по реновации существующего фонда приведены на примере торцевой секции в следующих вариантах (рисунок Б.1):

I - капитальный ремонт с перепланировкой;

II - модернизация с перепланировкой в существующих габаритах и/или надстройкой 6-го этажа;

III - реконструкция с пристройкой дополнительных объемов.

I. Перепланировку домов при капитальном ремонте (с временным отселением жителей, рисунок Б.2) рекомендуется осуществлять с соблюдением следующих принципов:

- сохранение четырехквартирной структуры секций;

- устройство раздельных санузлов в глубине квартир и увеличение за счет этого кухонь и прихожих;

- переход (при возможности) с газовых на электроплиты с целью объединения пространства общей комнаты и кухни;

- сохранение структуры однокомнатных квартир.

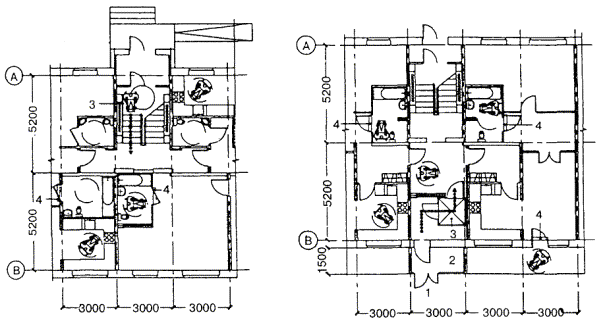
При выделении квартир на первом этаже для семей с инвалидами на креслах-колясках (рисунок Б.3) рекомендуется устройство индивидуальных подъемников. При этом осуществляются углубление тамбуров и устройство пандусов при входе.

Рекомендуется устройство лоджий глубиной не менее 1,5 м.

II, III. Надстройка зданий и пристройка дополнительных объемов существенно обогащают пластику фасадов (рисунки Б.4 и Б.5).

При реконструкции домов серии 1-335 с пристройкой дополнительных объемов рекомендуется:

- демонтировать наружные стеновые панели в кухнях и пристроить в этих местах ризалиты;

- в трехкомнатных квартирах переместить санузел, сделав его раздельным, и увеличить таким образом площадь прихожей и кухни;

- ликвидировать проходные комнаты в трехкомнатных квартирах;

- демонтировать балконные плиты и устроить на их месте лоджии глубиной не менее 1,2 м;

- сохранять, при возможности, структуры одно- и двухкомнатных квартир.

При устройстве квартир в двух уровнях на пятом и шестом этажах рекомендуется:

- вертикально зонировать квартиру, разместив спальные помещения на втором уровне;

- обеспечить двустороннюю ориентацию квартир для сквозного проветривания;

- разместить над ризалитами остекленные летние помещения и предусмотреть лоджии в качестве пожарных отстойников;

- не доводить основную лестницу до уровня пола шестого этажа, ограничившись металлической стремянкой для выхода на кровлю.

При приспособлении отдельных секций (к примеру, торцевой) под специализированное (социальное) жилище рекомендуется разместить на первом этаже помещения обслуживания. В составе блока обслуживания: медико-социальные службы, административные помещения и бытовые и вспомогательные помещения.

Пример адаптации первого этажа двухсекционного здания под учреждения повседневного, специализированного обслуживания приведен на рисунках Б.6 и Б.7.

Серия 1-447 (рисунок Б.8)

В отличие от серии 1-335 для данной серии рекомендуются варианты реконструкции с перепланировкой и пристройкой дополнительных объемов, в том числе с шахтой лифта (рисунок Б.8, IV).

Серия 1-464 (рисунки Б.9 - Б.11)

Для серии предлагаются варианты реновации (рисунок Б.9):

- капитальный ремонт с перепланировкой в существующих габаритах (рисунок Б.10);

- реконструкция с перепланировкой и пристройкой дополнительных объемов, в том числе с устройством лифта (рисунок Б.11, а).

При перепланировке в существующих габаритах рекомендуется:

- осуществить переход на трехквартирные секции;

- переместить санузлы в трех- и четырехкомнатных квартирах;

- ликвидировать проходные комнаты;

- в одно- и двухкомнатных квартирах расположить кухни вдоль фасада с Г-образным размещением оборудования, при этом объединяются помещения бывших кухонь через широкие проемы;

- демонтировать балконы, заменив их лоджиями глубиной не менее 1,2 м.

При реконструкции с пристройкой дополнительных объемов рекомендуется:

- демонтировать наружные стеновые панели в шаге 2,6 и пристроить ризалиты, увеличив тем самым площадь кухонь и прихожих;

- переместить санузлы вглубь квартир, оставив около входа только гостевой санузел;

- ликвидировать проходные комнаты.

При надстройке здания двумя и более этажами следует оборудовать лифт, перейти от системы с узким шагом поперечных несущих стен к каркасной системе, которая позволит реализовать принцип свободной планировки, а также рекомендуется устройство технического этажа, позволяющего не связывать планировку двух этажей надстройки с планировкой существующей части.

Пластическое решение фасадов включает развитый объем торцевой пристройки, а также разнообразие конфигураций пристраиваемых помещений, лоджий, балконов и эркеров в пределах каждой секции (прямоугольные, трапециевидные, трехгранные и циркульные).

В многокомнатных квартирах на 6 - 7-м этажах (с возможным заселением многопоколенными семьями с ЛСВ) рекомендуются усложненная планировка, просторные холлы на этаже надстройки; выходящие в них помещения (включая санузлы) имеют скошенные углы (см. рисунок Б.11, б, вариант Д).

Серия 1-468 (рисунки Б.12, Б.13)

Конструктивным отличием данной серии от предыдущей является «смешанный» шаг поперечных несущих стен - 3 и 6 м.

Типовые проекты жилых домов серии 1-468 разрабатывались с 1961 г. в институте ЦНИИЭП-жилища (арх. Животов Д.Ф., инж. Левонтин Н.Б., Острецов В.М.). Несущим остовом зданий являются поперечные наружные стены. Максимально распространенный вид - четырехсекционный. Наружные стеновые панели - ячеистый/легкий бетон; перекрытия - многопустотные железобетонные плиты с опорой на поперечные несущие железобетонные стены. Продольные стены - самонесущие. Преимущества данной серии - возможность демонтажа основной части продольных стен, что обеспечивает широкие возможности для пристройки дополнительных объемов.

Для данной серии рекомендуются варианты устройства адаптированных и универсальных входов для ЛСВ, использующих кресла-коляски (рисунок Б.13).

Реконструкция и модернизация жилых домов серии 1-335

Рис. Б.1

ВАРИАНТЫ РЕНОВАЦИИ СУЩЕСТВУЮЩЕГО ЖИЛИЩНОГО ФОНДА НА ПРИМЕРЕ ТОРЦЕВОЙ СЕКЦИИ

(Проектные предложения ЦНИИЭПжилища)

I. Перепланировка при капитальном ремонте

II. Перепланировка в существующих габаритах

III. Перепланировка в существующих габаритах с надстройкой

IV. Реконструкция с пристройкой дополнительных объемов (Вариант 1)

V. Реконструкция с пристройкой дополнительных объемов (Вариант 2)

1 - 4 - число комнат квартиры после реконструкции

 

Реконструкция и модернизация жилых домов серии 1-335

Рис. Б.2

А. Существующее положение

План торцевой секции

Б. Проектное предложение - реконструкция с перепланировкой в существующих габаритах

План торцевой секции

Реконструкционные мероприятия:

- перенос санузлов к межсекционным стенам;

- увеличение площади кухонь, Г-образная расстановка оборудования;

- частичный демонтаж межквартирных стен

- демонтаж балконов;

- пристройка лоджий

 

Реконструкция и модернизация жилых домов серии 1-335

Рис. Б.3

ПРИМЕР АДАПТАЦИИ СЕКЦИИ ПЕРВОГО ЭТАЖА ДЛЯ ПРОЖИВАНИЯ СЕМЕЙ С ПОЖИЛЫМИ ЛЮДЬМИ - ИНВАЛИДАМИ НА КРЕСЛЕ-КОЛЯСКЕ

Реконструкционные мероприятия:

- перенос санузлов и увеличение их площади;

- увеличение площади кухонь;

- перепланировка с ликвидацией проходных комнат;

- устройство адаптированных специализированных входов

 

Реконструкция и модернизация жилых домов серии 1-335

Рис. Б.4

В. Проектное предложение - вариант перепланировки 5-го этажа

Г. Проектное предложение - план надстройки 6-го этажа

Реконструкционные мероприятия:

- перенос санузлов к межсекционным стенам;

- увеличение площади кухонь, «Г»-образная расстановка оборудования;

- частичный демонтаж межквартирных стен;

- демонтаж балконов;

- пристройка лоджий;

- переход на квартиры в двух уровнях на 5 - 6 этажах

 

Реконструкция и модернизация жилых домов серии 1-335

Рис. Б.5

ВАРИАНТ РЕКОНСТРУКЦИИ С ПРИСТРОЙКОЙ ДОПОЛНИТЕЛЬНЫХ ОБЪЕМОВ И НАДСТРОЙКОЙ

Д. Проектное предложение - план 5-го этажа секции

Е. Проектное предложение - план надстройки 6-го этажа секции

Реконструкционные мероприятия:

- перенос санузлов к межсекционным стенам;

- увеличение площади кухонь;

- частичный демонтаж межквартирных стен;

- демонтаж балконов;

- пристройка лоджий и ризалитов

 

Реконструкция и модернизация жилых домов массовых серий 1-335

Рис. Б.6

ПРИМЕР РЕКОНСТРУКЦИИ СЕКЦИИ 1-ГО ЭТАЖА С ПРИСПОСОБЛЕНИЕМ ПОД НЕЖИЛЫЕ ПОМЕЩЕНИЯ

СХЕМА ОРГАНИЗАЦИИ БЛОКА ОБСЛУЖИВАНИЯ В СЕКЦИИ СОЦИАЛЬНОГО ЖИЛЬЯ

 - допустимый демонтаж                                  А - медицинская зона

 - вход в жилье                                                            Б - администрация

 - вход в нежилые помещения                                  В - бытовые и вспомогательные помещения

 

Реконструкция и модернизация жилых домов серии 1-335

Рис. Б.7

ВАРИАНТЫ ПРИСПОСОБЛЕНИЯ 1-ГО ЭТАЖА 2-СЕКЦИОННОГО ДОМА ПОД УЧРЕЖДЕНИЯ ОБСЛУЖИВАНИЯ (РЕКОНСТРУКЦИЯ С ПЕРЕПЛАНИРОВКОЙ И ПРИСТРОЙКОЙ)

 - вход в жилье

 - вход в нежилые помещения

 - загрузка

1 - библиотека; 2 - мастерские мелкого ремонта; 3 - РЭУ (ДЕЗ); 4 - кухня; 5 - продовольственный магазин; 6 - промтоварный магазин; 7 - универсальный магазин «Ветеран»

 

Реконструкция и модернизация жилых домов серии 1-447

Рис. Б.8

ВАРИАНТЫ РЕНОВАЦИИ СУЩЕСТВУЮЩЕГО ЖИЛОГО ФОНДА

I. Перепланировка при капитальном ремонте (количество квартир - 70, без прироста общей площади)

II. Перепланировка в существующих габаритах (количество квартир - 852, прирост общей площади 653 кв. м)

III. Реконструкция с пристройкой дополнительных объемов (1-й вариант) (количество квартир - 60, прирост общей площади 1349 кв. м)

IV. Реконструкция с пристройкой дополнительных объемов (2-й вариант) (количество квартир - 100, прирост общей площади 1624 кв. м)

1 - 4 - число комнат квартиры после реконструкции

 

Реконструкция и модернизация жилых домов серии 1-464

Рис. Б.9

ВАРИАНТЫ РЕНОВАЦИИ СУЩЕСТВУЮЩЕГО ЖИЛИЩНОГО ФОНДА

I. Перепланировка при капитальном ремонте (количество квартир - 80, без прироста общей площади)

II. Перепланировка в существующих габаритах (количество квартир - 60, без прироста общей площади)

III. Реконструкция с пристройкой дополнительных объемов (1-й вариант) (количество квартир - 80, прирост общей площади 2051 кв. м)

IV. Реконструкция с пристройкой дополнительных объемов (2-й вариант) (количество квартир - 64, прирост общей площади 1280 кв. м)

1 - 4 - число комнат квартиры после реконструкции

 

Реконструкция и модернизация жилых домов серии 1-464

Рис. Б.10

ВАРИАНТ ПЕРЕПЛАНИРОВКИ В СУЩЕСТВУЮЩИХ ГАБАРИТАХ С ПРИСТРОЙКОЙ ЛОДЖИЙ

А. Существующее положение

План типового этажа рядовой секции 2-2-2-3

Б. Проектное предложение

План типового этажа рядовой секции 2-3-4

Реконструкционные мероприятия:

- перенос санузлов к межсекционным стенам;

- увеличение площади кухонь;

- частичный демонтаж межквартирных стен;

- демонтаж балконов;

- пристройка лоджий

 

Реконструкция и модернизация жилых домов серии 1-464

Рис. Б.11, а

Варианты перепланировки с пристройкой и надстройкой

В. Проектное предложение

План 6 - 7 этажей рядовой секции над техническим этажом

Реконструкционные мероприятия:

- переход на 3-кв. секции;

- перенос санузлов к межсекционным стенам;

- увеличение площади кухонь;

- частичный демонтаж межквартирных стен;

- демонтаж балконов;

- пристройка эркеров;

- пристройка лифтовой шахты;

- пристройка технического и двух жилых этажей

Г. Проектное предложение

План 6-го этажа рядовой секции 2-2-2-3

Реконструкционные мероприятия:

- перенос санузлов;

- увеличение площади кухонь;

- перепланировка с ликвидацией проходных комнат;

- демонтаж балконов и наружных стен в шаге 2,6 м;

- пристройка уширений корпусов (ризалитов) с лоджиями и лифтовой шахтой;

- надстройка двух этажей

 

Реконструкция и модернизация жилых домов серии 1-464

Рис. Б.11, б

Варианты перепланировки с пристройкой и надстройкой

Д. Проектное предложение

План 6-го этажа рядовой секции

Схема разреза

Реконструкционные мероприятия:

- надстройка двух этажей;

- демонтаж балконов и наружных стен в шаге 2,6 м;

- пристройка уширений корпуса (ризалитов) с лоджиями и лифтовой шахтой;

- переход на 4-квартирные секции с квартирами в 2 уровнях;

- перенос санузлов;

- увеличение площади кухонь;

- перепланировка с ликвидацией проходных комнат;

- просторные холлы на этажах надстройки;

- скошенные углы помещений, выходящих в холл

 

Реконструкция и модернизация жилых домов серии 1-468

Рис. Б.12

ВАРИАНТЫ РЕНОВАЦИИ СУЩЕСТВУЮЩЕГО ЖИЛИЩНОГО ФОНДА

I. Перепланировка в существующих габаритах, надстройка шестого этажа, устройство квартир в двух уровнях на пятом и шестом этажах (1-й вариант)

II. Перепланировка в существующих габаритах, надстройка шестого этажа, устройство квартир в двух уровнях на пятом и шестом этажах (2-й вариант)

1 - 4 - число комнат квартиры после реконструкции

 

Реконструкция и модернизация жилых домов серии 1-468

Рис. Б.13

ВАРИАНТЫ АДАПТАЦИИ ВХОДОВ И ПОМЕЩЕНИЙ КВАРТИР ДЛЯ ПОЖИЛЫХ ЛЮДЕЙ, ИСПОЛЬЗУЮЩИХ КРЕСЛА-КОЛЯСКИ

(специальное жилище)

А. Проектное предложение

Единый универсальный вход, доступный пожилым людям на креслах-колясках

Б. Проектное предложение

Дополнительный вход с вертикальным подъемником

В. Проектное предложение

Дополнительный вход с наклонным подъемником

1 - дополнительный вход; 2 - отдельный тамбур; 3 - индивидуальный подъемник; 4 - небольшой пандус у порога

Реконструкционные мероприятия:

- перепланировка санузлов и кухонь;

- увеличение ширины дверных проемов до 0,90 м;

- пристройка лоджий шириной 1,5 м с приподнятым съемным решетчатым фальшполом;

- снижение высоты порогов дверей до 3 см;

- устройство небольших пандусов у дверей в санузлы и на лоджию

По варианту «А»:

- устройство пандуса при входе;

- увеличение глубины тамбура до 1,5 м;

- устройство индивидуального пристенного подъемника

По варианту «Б»:

- устройство отдельного входа с уровня земли с демонтажем части перекрытия в шаге 3,0 м;

- устройство индивидуального вертикального подъемника

По варианту «В»:

- устройство отдельного входа с уровня земли с демонтажем части перекрытия в шаге 3,0 м;

- устройство индивидуального наклонного подъемника

ПРИЛОЖЕНИЕ В

(справочное)

МЕТОДИЧЕСКИЕ ПРИЕМЫ, ИСПОЛЬЗУЕМЫЕ ПРИ АДАПТАЦИИ СРЕДЫ ЖИЗНЕДЕЯТЕЛЬНОСТИ ДЛЯ ПОЖИЛЫХ ЛЮДЕЙ

Таблица В.1 - Принципиальные схемы реконструкции зданий при приспособлении для учреждений социального обслуживания пожилых людей

Объем реконструкции

Метод реконструкции

Состав реконструкции

Схема

В пределах существующего объема

Встраивание отдельных элементов и модернизация

Модернизация конструкций и оборудования

Встраивание тамбуров, лифтов, подъемников, лестниц и т.п.

Устройство эксплуатируемого подвала в здании

С увеличением строительного объема здания

Надстройка существующего здания

Надстройка лестничных клеток, лифтовых шахт

Надстройка рядового этажа

Надстройка мансардного этажа

Пристройка к существующему зданию

Пристройка крылец, тамбуров и пандусов

Пристройка лестничных клеток и шахт лифтов и подъемников

Пристройка лоджий, террас, галерей и т.п.

Пристройка ризалитов и сплошных уширений здания

Пристройка блоков

Пристройка корпусов

Таблица В.2 - Приемы адаптации на примере двухэтажного дома-интерната для инвалидов и престарелых

Объем реконструкции

Метод реконструкции

Состав конструктивно-технологических мероприятий

1

2

3

1 В пределах существующего объема здания

1.1 Перепланировка здания, переоборудование помещений, ремонт и замена отдельных конструктивных элементов

- разборка существующих перегородок;

- осуществление мероприятий по обеспечению нормативной звукоизоляции перегородок, не подлежащих разборке;

- установка перегородок в соответствии с новым планировочным решением;

- замена полов и их оснований с обеспечением нормативной звукоизоляции междуэтажных перекрытий;

- замена оконных блоков или их модернизация в соответствии с требованиями по теплозащите (замена внутреннего стекла стеклопакетом, уплотнение притворов, замена фурнитуры);

- устройство внутренних разводок систем инженерного оборудования;

- выполнение отделочных работ;

- установка встроенной мебели

1.2 Утепление наружных ограждений существующего здания в соответствии с новыми нормативными требованиями

- установка дополнительного утеплителя;

- отделка фасадов;

- замена или модернизация светопрозрачных наружных ограждений (окон, входных и балконных дверей, витражей и т.д.)

1.3 Модернизация систем инженерного оборудования

- устройство двухтрубной системы отопления, оснащение отопительных приборов регулирующими устройствами (приборами учета и контроля расхода теплоносителя);

- оснащение систем горячего и холодного водоснабжения приборами учета и контроля расхода горячей и питьевой воды (в целом по дому-интернату);

- замена системы силового электропитания с установкой распаячных коробок, электрошкафов и электроразводок;

- замена существующих и устройство новых слаботочных систем (телефония, телевидение, в том числе кабельное или спутниковое многоканальное, сигнализация, радиовещание и т.д.)

2 Пристройка дополнительных объемов к существующему зданию

2.1 Общие приемы при пристройке дополнительных объемов

- устройство автономных фундаментов;

- возведение наружных стен пристраиваемых объемов с устройством их утепления в соответствии с новыми нормативными требованиями и стыков со стенами существующего здания;

- устройство монолитных, сборно-монолитных или сборных железобетонных перекрытий в пристраиваемом объеме;

- возведение покрытия и устройство кровли на пристраиваемом объеме;

- разборка части существующих наружных стен здания, примыкающих к пристроенному объему;

- установка оконных и дверных блоков;

- выполнение отдельных работ в пристроенной части здания;

- монтаж инженерного оборудования в пристроенной части здания;

- замена систем инженерного оборудования всего комплекса

2.2 Пристройка застекленного тамбура при переустройстве входа в здание

- устройство отмостки перед входом;

- устройство пола тамбура на одной отметке с полом 1-го этажа;

- устройство водоотвода с площадки входа;

- устройство двустворчатых распашных дверей двустороннего открывания;

- устройство тепловой завесы

2.3 Возведение пристроенной шахты лифта

- монтаж лифтового оборудования (машинное отделение, кабина лифта)

2.4 Возведение пристроенных лоджий-этажерок, галерей, соляриев

- остекление лоджий

3 Надстройка дополнительного объема

3.1 Общие приемы при надстройке дополнительных объемов

- разборка существующей кровли;

- возведение внутренних вертикальных несущих конструкций;

- наращивание лестничной клетки на два марша с устройством междуэтажной и верхней площадок;

- устройство полов в надстраиваемом этаже в соответствии с новыми нормативными требованиями по звукоизоляции;

- устройство межкомнатных перегородок, в том числе частично или полностью остекленных;

- установка дверей и элементов встроенной мебели;

- устройство металлической пожарной лестницы для выхода на кровлю

3.2 Надстройка мансардного этажа

- возведение наружных ограждающих конструкций - боковых и верхних, с обеспечением нормативных требований теплозащиты, звукоизоляции и пожарной безопасности;

- установка мансардных окон

3.3 Надстройка рядового этажа

- возведение стен и монтаж покрытия этажа с обеспечением нормативных требований теплозащиты и звукоизоляции;

- установка окон;

- устройство кровли и водосточной системы

4 Благоустройство придомовой территории

- ремонт существующих и прокладка новых удобных для ЛСВ прогулочных дорожек, в необходимых случаях с пандусами, перилами и ограждениями;

- оборудование светильников;

- ремонт и замена малых архитектурных форм;

- ремонт существующих и возведение новых сооружений для отдыха (беседок, соляриев, летних павильонов и т.д.);

- модернизация озеленения придомовой территории (выпиливание и выкорчевывание больных деревьев и кустарников, санитарная обрезка деревьев, устройство новых и обновление существующих цветников и газонов)

СПРАВОЧНЫЙ МАТЕРИАЛ

ТЕРМИНЫ И ОПРЕДЕЛЕНИЯ

Адаптация - позднелат. adaptatio - прилаживание, приспособление, от лат. adapto - приспособляю.

Адаптация зданий к потребностям людей (лиц) старших возрастов (ЛСВ) - комплекс организационно-технических и ремонтно-строительных мероприятий, направленных на обеспечение жизнедеятельности ЛСВ, в том числе и на облегчение функционирования патронажных служб.

Адаптированная квартира - квартира в существующем жилом доме, приспособленная для проживания маломобильных категорий, включая ЛСВ, с учетом их психофизических особенностей.

Адаптопригодность здания или сооружения для использования ЛСВ - условно используемый термин, характеризующий степень целесообразности и эффективности целевых реконструкционных мероприятий для конкретного объекта.

Биосоциальная активность ЛСВ - совокупная характеристика физического состояния организма, степени двигательной активности, интеллектуальной и социальной активности (сохранности жизненных интересов, ценностных ориентаций).

Визуальные средства информации - носители информации, передаваемой ЛСВ с дефектами слуха и недостатками зрения, в виде зрительно различимых знаков, символов, текста и т.п.

Доступность - возможность для ЛСВ достичь определенного места, зоны, помещения, здания или сооружения с минимальными, сообразно состоянию здоровья, затратами времени и сил, а также возможность воспользоваться предметом, оборудованием, мебелью или услугой.

Доступные для ЛСВ здания и сооружения - те здания и сооружения, в которых реализуется комплекс инженерно-технических, конструкционных и организационных мероприятий для обеспечения их полноценной жизнедеятельности и безопасности.

Капитальный ремонт - проведение комплекса строительных работ и организационно-технических мероприятий по устранению физического и морального износа, не связанных с изменением основных технико-экономических показателей здания и функционального назначения, предусматривающих восстановление его ресурса с частичной заменой, при необходимости, конструктивных элементов и систем инженерного оборудования, а также улучшения эксплуатационных показателей.

Люди (лица) старших возрастов - женщины старше 55 и мужчины старше 60 лет, клиенты социальных служб.

Маломобильные группы населения - обобщающая категория граждан, выделяемая на основе каких-либо ограничений в мобильности (по совокупности возрастных и/или медицинских отклонений в здоровье). В ее состав входят и лица старших возрастов (ЛСВ).

Многопоколенная семья - семья с ЛСВ, включающая родственников нескольких поколений, проживающих вместе.

Реконструкция - проведение строительных работ в целях изменения существующих технико-экономических показателей объекта и повышения эффективности его использования, предусматривающих один или несколько видов работ.

Текстофон - специальная приставка к обычному телефону, снабженная клавиатурой и «бегущей строкой». С помощью такой приставки пожилой человек с дефектами слуха способен передавать и получать информацию по телефону в текстовом режиме.

Учреждения социального обслуживания (УСО) - учреждения и предприятия, осуществляющие (реализующие) социальные услуги для ЛСВ, в том числе специализированные (по возрастному контингенту или диапазону услуг). Отделения УСО - группа помещений для оказания социальных услуг в составе другого учреждения.

Таблица 1 - Характеристика ЛСВ и их потребности в адаптации среды жизнедеятельности

Возрастная характеристика ЛСВ (специфика биосоциальной активности)

Проблема возраста

Подход к решению проблемы

Направления социальной деятельности и компенсирующие мероприятия

- (55)60 - 74 - пожилые люди (активные, дееспособные или условно пассивные)

1-я группа: инициативность, полная или частичная экономическая самостоятельность, политическая активность

2-я группа: избирательная активность, определяемая соотношением «характер-обстоятельства»; частичное иждивенчество

1 Поддержание социального статуса

Принцип социальной адаптации

- общественно-полезная деятельность

- коммерческий проект

- социальная реабилитация

- поддержка семье

- социальный патронаж

- 75 - 89 - люди старческого возраста (условно дееспособные, пассивные)

Смиренное «доживание», апатичность, частичное или полное иждивенчество

2 Сужение зоны индивидуального (личностного) комфорта

Принцип расширения зоны индивидуального комфорта

- адаптация городской среды

- адаптированное жилище

- «хобби-проект»

- «сервис-проект»

- духовное возрождение (мировоззрение, философия, религия)

- старше 90 - долгожители (условно недееспособные, асоциальные)

Утрата социального статуса и частичной или полной контактности («люди-растения»)

3 Возрастные недуги

Принцип гарантированного долголетия

- оздоровление и реабилитация

- медицинско-психологический патронаж

- расширение сети услуг (приоритет геронтологии и гериатрии)

Таблица 2 - Рекомендуемый перечень реконструкционных мероприятий для материальной среды жизнедеятельности ЛСВ

Социальные программы

Перечень организационных и реконструкционных мероприятии

Возрастные группы, годы

(55) 60 - 65

65 - 75

> 75

1

2

3

4

5

Коммерческий проект

1 Реконструкционные мероприятия по обеспечению доступности рабочих мест и комфортности пребывания в производственных зданиях, офисах, учебных заведениях, предприятиях бытового обслуживания и т.д.

+++

++

-

2 Адаптация жилой среды для частной коммерческо-творческой деятельности (дом-офис), в том числе занятия ремеслами и рукоделием; обустройство специализированного рабочего места (кабинета) со вспомогательными помещениями и/или зонами.

+++

+++

+

3 Компьютеризация рабочего места (компьютер, телефон, факс-модем и т.д.), охранные системы

+++

++

+

Обществено-полезная деятельность

4 Воспитание подрастающего поколения (лекции, периодические выступления) - обеспечение доступности зданий культурно-зрелищных и образовательных учреждений (ДК, клубов, учебных, дошкольных и внешкольных учреждений, специализированных клубов - военно-патриотических, ДОСААФ, ветеранских и т.д.)

+++

++

+

5 Благотворительность и милосердие: патронаж детских домов, приютов; сбор пожертвований; работа с инвалидами, беженцами; патронаж старших возрастных категорий.

+++

++

+

 

 

 

6 Клубы по интересам («Хобби-проект»).

+++

++

+

7 Деятельность по месту жительства - домкомы, поддержание общественного порядка, экологический контроль.

+++

+++

+

8 Консультация экспертов.

+++

+++

+

9 Литературное (в том числе мемуарное) и художественное творчество

+++

+++

+

Поддержка семье

10 Адаптация жилой среды:

- создание обменного жилого фонда, учитывающего возрастную специфику и социальную динамику каждой группы ЛСВ; реконструкция и модернизация существующих жилых зданий под целиком и/или частично специализированное жилье; перепланировка и переоборудование первых этажей под квартиры обменного жилого фонда (в том числе для многопоколенных семей);

+++

+++

+++

- модернизация инженерно-технического оборудования жилья, обеспечение контроля за средой проживания (лифты, подъемники, пандусы, вентиляция, отопление, освещение, шумозащита, компьютеризация и телефония и т.д.).

+++

+++

+++

11 Градостроительные мероприятия: развитие сети, учет доступности и удаленности социально значимых объектов; адаптация основных микрорайонных и межрайонных коммуникаций; адаптация остановок и доступность общественного транспорта; обустройство придомовых территорий и контактных с ними зон.

+++

+++

+++

12 Реконструкция специализированных медико-социальных учреждений, в том числе:

- организация надомно-патронажной службы (доставка продуктов и медикаментов, выезд специалистов с необходимым оборудованием);

- организация благотворительных подразделений (защита от насилия, наркомании и алкоголизма и т.д.);

- развитие групп вспомогательных помещений для персонала и оборудования

+++

+++

+++

Социальная реабилитация

13 Реконструкция и модернизация социальных служб, занимающихся проблемами:

 

 

 

- обучения и трудоустройства ЛСВ;

+++

-

-

- вынужденной миграции ЛСВ.

+++

+++

+++

14 Создание сети, приспособление и реконструкция ночлежных домов, приютов для ЛСВ-БОМЖ, бывш. осужденных и т.д.

+++

+++

+++

15 Обеспечение доступности государственных и коммерческих юридических служб (нотариальные и адвокатские конторы и т.д.), а также религиозных объектов (храмы, общины, монастыри и т.д.)

+++

+++

+++

Социальный патронаж

16 Опека одиноко проживающих и семей ЛСВ («сервис-проект») - компьютеризация жилья: экспресс-диагностика, экспресс-анализ (виртуальный доктор); виртуальное общение, покупка/доставка через интернет-магазины и интернет-обслуживание

+++

+++

++

17 Медико-психологическая помощь, в том числе компьютерно-телефонные консультации и посещение по месту проживания.

+++

+++

++

18 Уход в стационарных учреждениях (обеспечение материально-технической базы).

+

+++

+++

19 Юридические и нотариальные услуги на дому.

+

+++

++

20 Ритуальные услуги

 

 

 

Примечание - Степень рекомендуемости применения реконструкционных мероприятий: +++ - высокая; ++ - средняя; + - малая.

Таблица 3 - Номенклатура типов жилищ для лиц старших возрастов

Тип домов

Тип квартир

Вместимость, чел.

Этажность

Контингент

Обслуживание

1 Специализированные дома с обслуживанием* (социальное жилище)

1 - 2-комнат-ные

150 - 200

5 - 9 в городах, 1 - 2 в сельской местности

Одинокие ЛСВ (супружеские пары) и инвалиды

Минимально необходимое медико-социальное и бытовое

2 Дома массовой застройки

1 - 5-комнатные

По заданию на проектирование

2 - 5 - рекомендуемая;

9 - 12 - допускаемая

ЛСВ (одинокие и супружеские пары);

семьи с ЛСВ

Надомное

3 Специальные жилые комплексы**

Тип А:

 

 

 

 

 

- жилой дом с обслуживанием

1 - 2-комнатные

150 - 200

До 3

Одинокие ЛСВ (супружеские пары) и инвалиды

Минимально необходимое медико-социальное и бытовое

- дом-интернат

Жилые группы на 20 - 25 чел. с комнатами на 2 - 3 чел.

До 50

9 - 12

То же (с постоянным уходом)

Полное стационарное

- центр обслуживания

-

50 - 100

1 - 3

Проживающие и прикрепленные ЛСВ

Медико-социальное и культурно-бытовое

Тип Б:

- жилой дом с обслуживанием

1 - 3-комнатные

150 - 200

9 - 12

Одинокие ЛСВ (супружеские пары) и инвалиды, главным образом, с нарушением ОДА

Минимально необходимое медико-социальное и бытовое

- центр реабилитации

-

50 - 100

1 - 3

Медико-восстановительное лечение

* Рекомендуемые минимальные параметры земельных участков для условий реконструкции (м2/1 чел.):

специальный жилой дом с обслуживанием для вместимости, чел.:

до 50 - 100 - 125

51 - 100 - 80 - 100

101 - 200 - 100 - 125.

** Жилой комплекс для ЛСВ вместимостью 200 чел. - 100 - 125.

Примечание - Справочно-методической основой реконструкции сельских жилых зданий для размещения многопоколенных семей с ЛСВ может служить использование проектных материалов институтов: ЦНИИЭПграждансельстроя (Т.П. 144-12-13), МосгипроНИИсельстроя, Роснечерноземиндустрпроекта и СевКазЗНИИЭПсельстроя в части индивидуальных и типовых проектов сельских усадебных жилых домов для сложных семей с пожилыми родителями.

Таблица 4 - Характеристика групп мобильности пожилых людей

Группа мобильности

Обозначение

Характеристика группы

Примечания

I

Без ограничений или с легким ограничением мобильности, способность к полному самообслуживанию.

Активный образ жизни.

Периодический медицинский контроль

Минимально необходимая степень адаптации

II

Физическая ослабленность, средняя степень ограничения мобильности.

Затрудненное самообслуживание.

Избирательная социальная активность.

Постоянный медицинский надзор и периодический уход

Адаптация по типу «инвалид на кресле-коляске»

III

Физическая немощность, неспособность к самообслуживанию, неактивные, в том числе недееспособные ЛСВ.

Постоянный медицинский надзор, помощь и уход

Рекомендуемое содержание в стационаре

Ключевые слова: модернизация жилых зданий и элементов городской среды, адаптация зданий к потребностям ЛСВ, реновация зданий социального обслуживания, доступность для ЛСВ зданий и сооружений




Rambler's Top100 Яндекс цитирования
  Copyright © 2008-2026, www.docload.ru