Бесплатная библиотека стандартов и нормативов www.docload.ru

Все документы, размещенные на этом сайте, не являются их официальным изданием и предназначены исключительно для ознакомительных целей.
Электронные копии этих документов могут распространяться без всяких ограничений. Вы можете размещать информацию с этого сайта на любом другом сайте.
Это некоммерческий сайт и здесь не продаются документы. Вы можете скачать их абсолютно бесплатно!
Содержимое сайта не нарушает чьих-либо авторских прав! Человек имеет право на информацию!

 

ПРАВИТЕЛЬСТВО МОСКВЫ

МОСКОМАРХИТЕКТУРА

НОРМАЛИ
типовых деталей и узлов

полистиролбетонных

ограждающих конструкций

теплоэффективных зданий

системы "Юникон"

для проектирования

и строительства в г. Москве

Издание второе,

переработанное и дополненное

2005

ПРЕДИСЛОВИЕ

1. РАЗРАБОТАНЫ коллективом в составе: членкор. РААСН, проф. - Рахманова В.А. (руководитель работы), с.н.с., к.т.н. Мелихова В.И. (зам. руководителя работы), инж. Казарина С.К., с.н.с., к.т.н. Лемыша Л.Л., с.н.с., к.т.н. Мишукова Н.Е. (ВНИИжелезобетон); действительного члена РААСН, проф. Григорьева Ю.П., инж. Никитина Е.Е. (МНИИТЭП).

2. ПОДГОТОВЛЕНЫ к утверждению и изданию Управлением перспективного проектирования, нормативов и координации проектно-изыскательских работ Москомархитектуры.

3. СОГЛАСОВАНЫ: ЦНИИСК им. В.А. Кучеренко, ГУ МЧС России по городу Москве, Территориальным управлением Федеральной службы по надзору в сфере защиты прав потребителей и благополучия человека по городу Москве (ТУ Роспотребнадзора по городу Москве) и Мосгосэкспертизой.

4. УТВЕРЖДЕНЫ приказом Москомархитектуры от .25.11.2005 г. №. 155.

 

СОДЕРЖАНИЕ

ПРЕДИСЛОВИЕ

ВВЕДЕНИЕ

НОРМАТИВНЫЕ И РЕГЛАМЕНТИРУЮЩИЕ ДОКУМЕНТЫ

СПРАВОЧНЫЕ МАТЕРИАЛЫ

ПОЯСНИТЕЛЬНАЯ ЗАПИСКА

УСЛОВНЫЕ ОБОЗНАЧЕНИЯ

НОМЕНКЛАТУРА ПОЛИСТИРОЛБЕТОННЫХ ИЗДЕЛИЙ ЗАО "ЮНИКОН-ЗСК"

ФРАГМЕНТ ФАСАДНОЙ НЕНЕСУЩЕЙ СТЕНЫ. ПРИМЕР РАСКЛАДКИ ПОЛИСТИРОЛБЕТОННЫХ БЛОКОВ ТОЛЩИНОЙ 375 мм

РЕКОМЕНДУЕМЫЕ ПАРАМЕТРЫ ЖИЛЫХ И ОБЩЕСТВЕННЫХ ЗДАНИЙ С ОГРАЖДАЮЩИМИ КОНСТРУКЦИЯМИМ СИСТЕМЫ «ЮНИКОН»

НОРМАЛЬ H1. НЕНЕСУЩАЯ СТЕНА ИЗ ПОЛИСТИРОЛБЕТОННЫХ БЛОКОВ ТОЛЩИНОЙ 295 мм И ВЫСОТОЙ 375 мм С КИРПИЧНОЙ ОБЛИЦОВКОЙ ФАСАДА (ВЕРТИКАЛЬНЫЙ РАЗРЕЗ ПО ОКНУ)

НОРМАЛЬ Н2-1. НЕНЕСУЩАЯ СТЕНА ИЗ ПОЛИСТИРОЛБЕТОННЫХ БЛОКОВ ТОЛЩИНОЙ 330 мм И ВЫСОТОЙ 295 мм С ОБЛИЦОВКОЙ ФАСАДА УТОЛЩЕННЫМ КИРПИЧОМ (ВЕРТИКАЛЬНЫЙ РАЗРЕЗ ПО ОКНУ)

НОРМАЛЬ Н2-2. НЕНЕСУЩАЯ СТЕНА ИЗ ПОЛИСТИРОЛБЕТОННЫХ БЛОКОВ ТОЛЩИНОЙ 330 мм И ВЫСОТОЙ 395 мм С ОБЛИЦОВКОЙ ФАСАДА УТОЛЩЕННЫМ КИРПИЧОМ (ВЕРТИКАЛЬНЫЙ РАЗРЕЗ ПО ОКНУ)

НОРМАЛЬ Н3. НЕНЕСУЩАЯ СТЕНА ИЗ ПОЛИСТИРОЛБЕТОННЫХ БЛОКОВ ТОЛЩИНОЙ 375 мм И ВЫСОТОЙ 295 мм С КИРПИЧНОЙ ОБЛИЦОВКОЙ ФАСАДА (ВЕРТИКАЛЬНЫЙ РАЗРЕЗ ПО ОКНУ)

НОРМАЛЬ Н4. НЕНЕСУЩАЯ СТЕНА ИЗ ПОЛИСТИРОЛБЕТОННЫХ БЛОКОВ ТОЛЩИНОЙ 330 мм С МОНОЛИТНЫМИ НЕСУЩИМИ ЖЕЛЕЗОБЕТОННЫМИ КОЛОННАМИ И КИРПИЧНОЙ ОБЛИЦОВКОЙ ФАСАДА (ГОРИЗОНТАЛЬНЫЙ РАЗРЕЗ)

НОРМАЛЬ H5. ПЕРЕКРЫТИЕ НАД НЕНЕСУЩИМИ СТЕНАМИ ИЗ ПОЛИСТИРОЛБЕТОННЫХ БЛОКОВ С КИРПИЧНЫМ ФАСАДОМ (ГОРИЗОНТАЛЬНЫЙ РАЗРЕЗ)

НОРМАЛЬ Н6. ВАРИАНТЫ УЗЛОВ ОПИРАНИЯ ФАСАДНОЙ КИРПИЧНОЙ КЛАДКИ НАД ПРОЕМАМИ НЕНЕСУЩИХ СТЕН

НОРМАЛЬ Н7. ВАРИАНТЫ УЗЛОВ ОПИРАНИЯ НА ПЕРЕКРЫТИЕ ФАСАДНОЙ КИРПИЧНОЙ КЛАДКИ И ПОЛИСТИРОЛБЕТОННЫХ БЛОКОВ В НЕНЕСУЩИХ И САМОНЕСУЩИХ СТЕНАХ

ПОЯСНЕНИЯ К НОРМАЛЯМ Н1-Н7

НОРМАЛЬ Н8. НЕНЕСУЩАЯ СТЕНА ИЗ ПОЛИСТИРОЛБЕТОННЫХ БЛОКОВ ТОЛЩИНОЙ 295 мм, ОШТУКАТУРЕННАЯ С ФАСАДА И ИЗНУТРИ (ВЕРТИКАЛЬНЫЙ РАЗРЕЗ ПО ОКНУ)

НОРМАЛЬ Н9. НЕНЕСУЩАЯ СТЕНА ИЗ ПОЛИСТИРОЛБЕТОННЫХ БЛОКОВТОЛЩИНОЙ 375 мм, ОШТУКАТУРЕННАЯ С ФАСАДА И ИЗНУТРИ (ВЕРТИКАЛЬНЫЙ РАЗРЕЗ ПО ОКНУ)

НОРМАЛЬ Н10. НЕСУЩАЯ ЖЕЛЕЗОБЕТОННАЯ СТЕНА С УТЕПЛЕНИЕМ ПОЛИСТИРОЛБЕТОННЫМИ БЛОКАМИ, ОШТУКАТУРЕННАЯ С ФАСАДА (ВЕРТИКАЛЬНЫЙ РАЗРЕЗ)

ПОЯСНЕНИЯ К НОРМАЛЯМ Н8 – Н10

НОРМАЛЬ 11. НЕНЕСУЩАЯ СТЕНА ИЗ МОНОЛИТНОГО ПОЛИСТИРОЛБЕТОНА С КИРПИЧНОЙ ФАСАДНОЙ ОБЛИЦОВКОЙ, ОШТУКАТУРЕННАЯ ИЗНУТРИ (ВЕРТИКАЛЬНЫЙ РАЗРЕЗ ПО ОКНУ)

ПОЯСНЕНИЯ К НОРМАЛИ Н11

НОРМАЛЬ Н12-1. КРЕПЛЕНИЕ ОБЛИЦОВОЧНЫХ ШТУКАТУРНЫХ И КИРПИЧНЫХ СЛОЕВ К КЛАДКЕ ИЗ ПОЛИСТИРОЛБЕТОННЫХ БЛОКОВ В ПРОСТЕНКАХ

НОРМАЛЬ Н12-2. КРЕПЛЕНИЕ КИРПИЧНЫХ И ШТУКАТУРНЫХ СЛОЕВ НА УЧАСТКАХ, ПРИЛЕГАЮЩИХ К ОКОННЫМ (ДВЕРНЫМ) ПРОЕМАМ

НОРМАЛЬ Н12-3. КРЕПЛЕНИЕ ОБЛИЦОВОЧНОГО КИРПИЧА К ПОЛИСТИРОЛБЕТОННЫМ БЛОКАМ ПРИ НЕСОВПАДЕНИИ ГОРИЗОНТАЛЬНЫХ ШВОВ

НОРМАЛЬ Н12-4. КРЕПЛЕНИЕ ВНУТРЕННЕГО ОБЛИЦОВОЧНОГО СЛОЯ ИЗ ГВЛ К ПОЛИСТИРОЛБЕТОННЫМ БЛОКАМ

ПОЯСНЕНИЯ К НОРМАЛЯМ Н12-1 - Н12-4

НОРМАЛЬ Н13. КРЕПЛЕНИЕ ОКОННЫХ (ДВЕРНЫХ) БЛОКОВ К СТЕНАМ ИЗ ПОЛИСТИРОЛБЕТОНА

ПОЯСНЕНИЯ К НОРМАЛИ Н13

НОРМАЛЬ Н 14-1. КРЕПЛЕНИЕ КЛАДКИ ИЗ ПОЛИСТИРОЛБЕТОННЫХ БЛОКОВ К ЖЕЛЕЗОБЕТОННЫМ ПЕРЕКРЫТИЯМ В СТЕНАХ С КИРПИЧНЫМ ФАСАДОМ

НОРМАЛЬ Н14-2. КРЕПЛЕНИЕ ПОЛИСТИРОЛБЕТОННЫХ ПЕРЕМЫЧЕК К ЖЕЛЕЗОБЕТОННЫМ ПЕРЕКРЫТИЯМ В СТЕНАХ С КИРПИЧНЫМ ФАСАДОМ

НОРМАЛЬ 14-3. КРЕПЛЕНИЕ КЛАДКИ ИЗ ПОЛИСТИРОЛБЕТОННЫХ БЛОКОВ К ЖЕЛЕЗОБЕТОННЫМ ПЕРЕКРЫТИЯМ В СТЕНАХ С ОШТУКАТУРИВАЕМЫМ ФАСАДОМ

НОРМАЛЬ 14-4. КРЕПЛЕНИЕ ПОЛИСТИРОЛБЕТОННЫХ ПЕРЕМЫЧЕК В СТЕНАХ С ОШТУКАТУРИВАЕМЫМ ФАСАДОМ

НОРМАЛЬ Н14-5. КРЕПЛЕНИЕ КЛАДКИ ИЗ ПОЛИСТИРОЛБЕТОННЫХ БЛОКОВ К ВНУТРЕННИМ ЖЕЛЕЗОБЕТОННЫМ СТЕНАМ И КОЛОННАМ

ПОЯСНЕНИЯ К НОРМАЛЯМ Н14-1 – Н14-5

НОРМАЛЬ Н15. КРЕПЛЕНИЕ НАВЕСНОГО ОБОРУДОВАНИЯ К СТЕНАМ ИЗ ПОЛИСТИРОЛБЕТОНА

НОРМАЛЬ H16. КРЕПЛЕНИЕ НАВЕСНЫХ УСТРОЙСТВ К ФАСАДАМ СТЕН ИЗ ПОЛИСТИРОЛБЕТОНА

ПОЯСНЕНИЯ К НОРМАЛЯМ Н15 - Н16

НОРМАЛЬ Н17. УТЕПЛЕНИЕ ПОКРЫТИЙ ЗДАНИЙ С ИСПОЛЬЗОВАНИЕМ МОНОЛИТНОГО ПОЛИСТИРОЛБЕТОНА

НОРМАЛЬ 18. УТЕПЛЕНИЕ ЧЕРДАЧНОГО ПЕРЕКРЫТИЯ С ИСПОЛЬЗОВАНИЕМ ПЛИТНОГО ПОЛИСТИРОЛБЕТОНА

НОРМАЛЬ Н19. УТЕПЛЕНИЕ ПЕРЕКРЫТИЯ НАД ХОЛОДНЫМИ ПОДВАЛАМИ (ПОДПОЛЬЯМИ, ПРОЕЗДАМИ) С ИСПОЛЬЗОВАНИЕМ ПЛИТНОГО ПОЛИСТИРОЛБЕТОНА

ПОЯСНЕНИЯ К НОРМАЛЯМ Н17-Н19

НОРМАЛЬ Н20. УЗЛЫ ОПИРАНИЯ КИРПИЧНОЙ КЛАДКИ И КРИВОЛИНЕЙНОЙ ПЕРЕМЫЧКИ В ЗДАНИЯХ С КРИВОЛИНЕЙНЫМ (Rкр<12 м) ФАСАДОМ (ВЕРТИКАЛЬНЫЙ И ГОРИЗОНТАЛЬНЫЙ РАЗРЕЗЫ)

ПОЯСНЕНИЯ К НОРМАЛИ Н20

ПРИЛОЖЕНИЕ 1. ВЫПИСКА ИЗ ТУ 5741-159-00284807-96 (с изм. 1, 2, 3, 4) "БЛОКИ ИЗ ПОЛИСТИРОЛБЕТОНА СТЕНОВЫЕ СПЛОШНЫЕ"

ПРИЛОЖЕНИЕ В (Справочное)

Расчетные теплотехнические показатели полистиролбетонов

ПРИЛОЖЕНИЕ 2. ВЫПИСКА ИЗ ТУ 5760-160-00284807-96 (с изм. 1,2) "ПЛИТЫ ПОЛИСТИРОЛБЕТОННЫЕ ТЕПЛОИЗОЛЯЦИОННЫЕ"

Приложение Б (справочное)

Расчетные теплотехнические показатели полистиролбетона в теплоизоляционных плитах

ПРИЛОЖЕНИЕ 3. ИСХОДНЫЕ ДАННЫЕ ДЛЯ ПРОЕКТИРОВАНИЯ ОГРАЖДАЮЩИХ КОНСТРУКЦИЙ ЗДАНИЙ СИСТЕМЫ "ЮНИКОН"

ПРИЛОЖЕНИЕ 4. РАСЧЕТНЫЕ НАГРУЗКИ И РЕКОМЕНДУЕМЫЕ КРЕПЕЖНЫЕ ЭЛЕМЕНТЫ В СТЕНАХ СИСТЕМЫ "ЮНИКОН» ИЗ ПОЛИСТИГОЛБЕТОННЫХ БЛОКОВ

ПРИЛОЖЕНИЕ 5. РЕКОМЕНДАЦИЯ ПО ТЕХНОЛОГИИ МОНТАЖА И ОБЛИЦОВКИ НАРУЖНЫХ СТЕН ИЗ ПОЛИСТИРОЛВЕТОННЫХ ИЗДЕЛИЙ СИСТЕМЫ "ЮНИКОН"

ПРИЛОЖЕНИЕ 6. РЕКОМЕНДАЦИИ ПО ВОЗВЕДЕНИЮ ОГРАВДАЮЩИХ КОНСТРУКЦИЙ СИСТЕМЫ "ЮНИКОН" ИЗ МОНОЛИТНОГО ПОЛИСТИРОЛБЕТОНА

ПРИЛОЖЕНИЕ 7. НАВЕСНЫЕ МОНТАЖНЫЕ ЛЕСА

ПРИЛОЖЕНИЕ 8. ПОДМОСТИ КОНСТРУКЦИИ ЗАО «ЖИЛСТРОЙ»

ПРИЛОЖЕНИЕ 9. ТЕХНИКО-ЭКОНОМИЧЕСКИЕ ПОКАЗАТЕЛИ ВАРИАНТОВ НАРУЖНЫХ НЕНЕСУЩИХ СТЕН ЖИЛЫХ ЗДАНИЙ С КИРПИЧНЫМ ФАСАДОМ

ПРИЛОЖЕНИЕ 10. ТЕХНИЧЕСКОЕ СВИДЕТЕЛЬСТВО № ТС-07-0800-03 "ТЕПЛОЭФФЕКТИВНАЯ СТРОИТЕЛЬНАЯ СИСТЕМА "ЮНИКОН"

ТЕХНИЧЕСКОЕ СВИДЕТЕЛЬСТВО

 

ВВЕДЕНИЕ

Настоящие Нормали разработаны в развитие и дополнение "Рекомендаций по проектированию энергоэффективных ограждающих конструкций зданий системы "Юникон" (Москомархитектура, 2002 г.). Они учитывают накопленный в 1999-2003 гг. опыт проектирования и строительства зданий с применением полистиролбетонных изделий и новую нормативно-техническую и разрешительную документацию, утвержденную за этот период, вследствие чего заменяют разработанные ранее "Нормали на проектирование и строительство зданий системы "Юникон" с применением полистиролбетонных изделий" (Москомархитектура, 1999г.).

Настоящие Нормали предназначены для проектных и строительных организаций, связанных с возведением жилых, общественных, административных и бытовых зданий с ограждающими конструкциями системы "Юникон" ВНИИжелезобетона на территории г. Москвы.

Типовые детали и узлы полистиролбетонных ограждающих конструкций, включенные в настоящие Нормали, разработаны с учетом особенностей строительства в г. Москве, включая климатические условия и возможности строительных организаций.

В настоящих Нормалях рассматриваются конструктивные решения ненесущих (самонесущих) наружных стен, а также утепленных покрытий и перекрытий зданий с применением сборных изделий сплошного сечения (блоков, перемычек, плит) и монолита из экологически чистого полистирол бетона, изготовляемых ЗАО "Юникон-ЗСК".

Система ограждающих конструкций зданий с применением полистиролбетонных изделий ("Юникон"), включает в себя:

- ненесущие и самонесущие наружные стены и сплошных полистиролбетонных блоков, включая перемычечные (перемычки), укладываемые на клею, и монолитного полистирол бетона для зданий высотой до 25 этажей включительно;

- утепленные покрытия и перекрытия зданий с применением теплоизоляционного плитного или монолитного полистирол бетона.

При проектировании зданий конкретные технические решения могут корректироваться по согласованию с ведущим разработчиком настоящих Нормалей (ВНИИжелезобетоном) в зависимости от особенностей проектируемого объекта.

НОРМАТИВНЫЕ И РЕГЛАМЕНТИРУЮЩИЕ ДОКУМЕНТЫ

Техническое свидетельство № ТС-07-0800-03 "Тепло эффективная строительная система "Юникон"

СНиП 23-02-2003 "Тепловая защита зданий"

СП 23-101-2000 "Проектирование тепловой защиты зданий"

СНиП 23-01-99 "Строительная климатология"

СНиП 2.08.01-89* "Жилые здания"

СНиП 2.09.04-87* "Административные и бытовые здания"

СНиП II-22-81 "Каменные и армокаменные конструкции"

СНиП 52-01-03 "Бетонные и железобетонные конструкции"

СНиП 3.01.01-85* "Организация строительного производства"

СНиП 3.03.01-87 "Несущие и ограждающие конструкции"

СНиП 2.01.07-85 "Нагрузки и воздействия"

СНиП 21-01-97* "Пожарная безопасность зданий и сооружений"

СНиП 2.03.11-85 "Защита строительных конструкций от коррозии"

ГОСТ Р 51263-99 "Полистиролбетон. Технические условия"

ГОСТ 30494-96 "Здания жилые и общественные. Параметры микроклимата в помещениях"

ГОСТ 24700-99 "Блоки оконные деревянные со стеклопакетами. Технические условия"

ГОСТ 30971-2002 "Швы монтажные узлов примыканий оконных блоков к стеновым проемам. Общие технические условия"

СанПиН 2.1.2.729-99 "Полимерные и полимерсодержащие строительные материалы, изделия и конструкции. Гигиенические требования безопасности"

СП 2.6.1.758-99 "Нормы радиационной безопасности" (НРБ-99)

СанПиН 2.2.3.1385-03 "Гигиенические требования к предприятиям производства строи тельных материалов и конструкций"

СанПиН 2.2.3.1384-03 "Гигиенические требования к организации строительного производства"

СанПиН 2.1.7.1322-03 "Гигиенические требования к размещению и обезвреживанию отходов производства и потребления"

ГН 2.1.6.1338-03 "ПДК загрязняющих веществ в атмосферном воздухе населенных мест"

ГН 2.1.6.1339-03 "ПДК вредных веществ в воздухе рабочей зоны"

ТУ 5741-159-00284807-96* (с изм. 1, 2, 3, 4) "Блоки из полистиролбетона стеновые сплошные. Технические условия"

ТУ 5760-160-00284807-96* (с изм. 1, 2) "Плиты полистиролбетонные теплоизоляционные. Технические условия"

ТУ 5745-013-05668056-99 Смесь сухая растворная "Клей строительный для стеновых пористых материалов", рецепт 26ЯМ

ТУ 5745-001-46478149-99 "Смеси сухие строительные штукатурные, штукатурно-плиточные, клеевые, универсальные, шпаклевочные, кладочные и монтажные "Победит"

ТУ 5772-001-58251652-2002 "Композиции сухие строительные"

ТУ 5745-228-00284807-02 "Смеси сухие строительные для оштукатуривания стен из полистиролбетонных блоков"

ТР 030/228-00284807-02 "Технологический регламент на оштукатуривание стен из полистиролбетонных блоков"

ТИ 011.0-4-00284807-01 (с изм. 3, 4) "Комплекс мероприятий по обеспечению экологической безопасности применения полистиролбетонных изделий и конструкций в жилищном строительстве", ВНИИжелезобетон, 2001 г

Рекомендации по проектированию энергоэффективных ограждающих конструкций зданий системы "Юникон". Москомархитектура, 2002 г.

Указания по проектированию перемычек из полистиролбетона для наружных стен зданий системы "Юникон", ВНИИжелезобетон, 2000 г. (согласованы НИИЖБ и рекомендованы Госстроем РФ письмом от 15.08.00г. №ЛБ-3517/9)

Полистиролбетонные армированные перемычки для теплоэффективных стен зданий системы "Юникон" ВНИИжелезобетона. Рабочие чертежи полистиролбетонных перемычек с армированием растянутой зоны стальными каркасами (шифры 22-2000 и 22-2000К)

МГСН 2.01-99 "Энергосбережение в зданиях"

Пособие к МГСН 2.01-99, Москомархитектура, 2000г.

Методика расчета несущей способности стен зданий с применением полистиролбетона (Основные положения). Приложение к письму ЦНИИСК им. В.А.Кучеренко от 31.10.2001г. № 4-914

СПРАВОЧНЫЕ МАТЕРИАЛЫ

Сертификаты соответствия № RU.МСС.168.611.1.ПР.3.6981 на блоки стеновые сплошные типа СБР из полистиролбетона и № RU.МСС.168.611.1.ПР.3.6992 на плиты теплоизоляционные типа ПТ из полистиролбетона

Гигиеническое заключение на полистиролбетонные изделия системы "Юникон" №77.ФЦ.12.574.П.000388.11.02 от 04.11.02 г. Федерального центра Госсанэпиднадзора Минздрава России

Заключение по пожарной безопасности системы "Юникон" от 25.12.2000г. Госстроя РФ (№9-18/604) и МВД РФ (№20/22/4578)

Сертификаты пожарной безопасности № ССПБ.RU.ОП031.Н.00074 на блоки из полистиролбетона сплошные стеновые и № ССПБ.RU.ОП031.Н.00075 на плиты полистиролбетонные теплоизоляционные

Заключение НИИСФ от 26.08.99г. по теплофизическим свойствам наружных самонесущих стен жилых и общественных зданий из полистиролбетонных блоков плотностью 250 кг/м3

Заключение по теплотехническим свойствам ненесущих наружных стен системы "Юникон" ВНИИжелезобетона из полистиролбетонных блоков с толщиной кладки 295 мм (приложение к письму Мосгосэкспертизы от 26.12.2000г. №МГЭ-3/1724)

Заключение по теплотехническим свойствам ненесущих наружных стен жилых зданий с кирпичным фасадом из полистиролбетонных блоков толщиной 295 мм системы "Юникон" ВНИИжелезобетона (приложение к письму Мосгосэкспертизы от 05.07.2002г. № МГЭ-9/1081)

Заключение НИИСФ от 11.06.02 г. о снижении значений коэффициентов теплопроводности полистиролбетона при изготовлении по специальной технологии полистиролбетонных изделий на ЗАО "Юникон-ЗСК"

Заключение ЦНИИСК им. В.А. Кучеренко от 28.12.2000 г. по несущей способности простенков с применением полистиролбетонных блоков в многоэтажных зданиях при действии на них ветрового напора

Письмо ЦНИИСК им. В.А. Кучеренко от 06.07.2001 г. № 5-575 о кирпичной облицовке наружных стен из полистиролбетона с воздушным внутренним зазором и противопожарными рассечками

Патент № 2163285 "Изгибаемый и внецентренно сжатый элемент из особо легкого бетона" Патент № 2230717 "Конструкционно-теплоизоляционный экологически чистый полистиролбетон, способ изготовления из него изделий и способ возведения из них теплоэффективных ограждающих конструкций зданий по системе "Юникон"

Полезные модели № 2004122062 от 21.07-04 г. "Строительный стеновой элемент из полистиролбетона", № 2004122061 от 21.07.04г. "Стеновая надпроемная перемычка" и № 2004122063 от 21.07.04 г. "Строительный теплоизоляционный плитный элемент"

ПОЯСНИТЕЛЬНАЯ ЗАПИСКА

1. Строительная система ограждающих конструкций жилых и общественных зданий Юникон» ВНИИжелезобетона с применением особо легкого бетона - полистиролбетона (Техническое свидетельство ТС-07-0800-03) распространяется на теплосберегающие ограждающие конструкции: наружные стены, покрытия, чердачные перекрытия, перекрытия над холодными подвалами, техподпольями и проездами. В совокупности эти конструкции создают вокруг здания теплоизолирующую оболочку, обеспечивающую высокое термическое сопротивление и экологическую безопасность. При этом для системы "Юникон" могут использоваться различные несущие конструктивные схемы (каркасные, каркасно-стеновые, стеновые) из различных материалов (железобетона - сборного и монолитного, стали, кирпича и др.).

2 Полистиролбетон и сборные изделия и конструкции из него (стеновые блоки, перемычки, плиты утеплителя) изготавливаются по технологии ВНИИжелезобетона на его дочернем предприятии ЗАО «Юникон-ЗСК» по ТУ 5741-159-00284807-96 (с изм. 1-4) и ТУ 5760-160-00284807-96 (с изм. 1-2).

3. Полистиролбетон по ГОСТ Р 51263-99 представляет собой теплоизоляционно-конструкционный (плотностью 150-300 кг/м3) и конструкционно-теплоизоляционный (плотностью 350-550 кг/м3) материал на цементном вяжущем и вспученном полистирольном заполнителе.

Полистиролбетон, изготовляемый на ЗАО "Юникон-ЗСК", является экологически чистым материалом, разрешенным Госсанэпиднадзором для применения в жилых и общественных зданиях. Его применение в ограждающих конструкциях зданий обеспечивает выполнение требований СНиП 23-02-2003, СП 23-101-2000 и МГСН 2.01-99 по теплосбережению с минимальными стоимостными и трудовыми затратами.

По технико-экономическим соображениям рекомендуется применять в наружных стенах полистиролбетонные блоки толщиной 295 мм плотностью 0250 для жилых зданий (см. Приложение 9) и толщиной 330-375 мм плотностью 0250-0300 для общественных зданий.

Полистиролбетон относится к трудногорючим материалам, имеющим группу горючести Г1, и как стеновой материал может применяться при использовании защитных облицовочных покрытий (штукатурка, кирпич, ГВЛ, плитка) в наружных стенах многоэтажных зданий до 25 этажей.

Полистиролбетон обладает прочностью и морозостойкостью, достаточной для его использования в наружных ограждающих конструкциях жилых и общественных, а также административных и бытовых производственных зданиях.

4. Полистиролбетонные изделия для ограждающих конструкций подлежат санитарно эпидемиологической экспертизе с получением санитарно-эпидемиологического заключения, подтверждающего безопасность данного вида продукции.

Предприятия, производящие полистиролбетонные изделия, должны соблюдать требования санитарного законодательства (СанПиН 2.1.2.729-99, СанПиН 2.2.3.1385-03, СанПиН 2.2.3.1384-03).

5. Строительная система "Юникон", основанная на применении изделий и конструкций из полистиролбетона включает в себя:

- ненесущие стены из сплошных полистиролбетонных блоков плотностью 250-300 кг/м3 для жилых зданий высотой до 25 этажей включительно (при высоте этажа до 3,3 м) и плотностью 300-400 кг/м3 (при высоте этажа от 3,3 до 6,0 м) для общественных зданий высотой до 16-ти этажей (с поэтажным опиранием кладки из блоков на перекрытия);

- самонесущие стены (при высоте этажа 6-9 м) из сплошных полистиролбетонных блоков плотностью 350-550 кг/м3, используемых в общественных зданиях различной этажности;

- утепленные покрытия и перекрытия с использованием теплоизоляционного полистиролбетона низкой плотности - 150-200 кг/м3 (плитного или монолитного);

- ненесущие и самонесущие наружные стены из монолитного полистиролбетона для строительства зданий высотой до 17 этажей включительно;

- сборные, армированные полистиролбетонные надпроемные перемычки (перемычечные блоки).

6. Для зданий с ограждающими конструкциями из полистиролбетона системы "Юникон" не допускается:

- устройство системы навесных фасадов на относе с креплением к блокам из полистиролбетона (для зданий высотой более 2-х этажей);

- применение полистиролбетонных изделий в подземных и цокольных частях зданий.

7. Настоящее издание Нормалей отличается от предыдущего новыми сведениями о последних разработках института "ВНИИжелезобетон". В них приведены конструктивные решения ограждающих конструкций системы "Юникон", позволяющие при соблюдении новых повышенных теплотехнических требований СНиП 23-02-2003 свести к минимуму материальные и трудовые затраты.

На ЗАО "Юникон-ЗСК" освоена новая номенклатура и типоразмеры калиброванных (допуски 1,0-1,5 мм) полистиролбетонных изделий (рядовые блоки, перемычки, доборные элементы), позволяющие в условиях строительного производства свести к минимуму затраты на распиловку полистиролбетонных изделий и сократить количество отходов полистиролбетона до нормируемых 1%.

8. В настоящих Нормалях приведены рекомендуемые принципиальные конструктивно-технические решения наружных стен и их узлов из сплошных полистиролбетонных блоков и монолитного полистиролбетона, а также утепления покрытий и перекрытий с использованием сборного (теплоизоляционные плиты) и монолитного полистиролбетона.

В Нормалях приводятся примеры креплений полистиролбетонных стен к несущим конструкциям здания, оконных (дверных) блоков к полистиролбетонным стенам, облицовочных (отделочных) слоев, а также навесного оборудования и устройств к этим стенам.

9. В Приложениях к настоящим Нормалям приведены: выписки из технических условий на полистиролбетонные блоки, перемычки, теплоизоляционные плиты; исходные данные для проектирования зданий системы "Юникон"; представлены рекомендации по технологии монтажа и облицовке наружных стен из полистиролбетонных блоков, а также сравнительные технико-экономические показатели наружных ненесущих стен жилых зданий с кирпичным фасадом системы "Юникон" и ближайших аналогов.

УСЛОВНЫЕ ОБОЗНАЧЕНИЯ

ЖЕЛЕЗОБЕТОН

ПОЛИСТИРОЛБЕТОН

КИРПИЧ

ЦЕМЕНТНО-ПЕСЧАНАЯ ШТУКАТУРКА, ГВЛ

АРМИРОВАННАЯ ЦЕМЕНТНО-ПЕСЧАНАЯ ШТУКАТУРКА

НЕГОРЮЧИЙ ЭФФЕКТИВНЫЙ УТЕПЛИТЕЛЬ (МИНВАТА НГ И ДР.)

ПЕНОПОЛИУРЕТАН (МОНТАЖНАЯ ПЕНА)

ДРЕВЕСИНА

ГИДРОИЗОЛЯЦИЯ ИЛИ ПАРОИЗОЛЯЦИ (РУБЕРОИД, ПОЛИЭТИЛЕН, МАСТИКА, ГЕРМЕТИК И ДР.)

ШОВ КЛАДКИ 

АРМИРОВАННЫЙ ШОВ КЛАДКИ 

ОСАДОЧНЫЙ (ДЕФОРМАЦИОННЫЙ) ШОВ, ЗАПОЛНЯЕМЫЙ МЯГКИМ НЕГОРЮЧИМ МАТЕРИАЛОМ

НЕГОРЮЧАЯ ПРОКЛАДКА (БАЗАЛЬТОВОЕ ВОЛОКНО, АСБЕСТОКАРТОН И ДР.)

 

НОМЕНКЛАТУРА ПОЛИСТИРОЛБЕТОННЫХ ИЗДЕЛИЙ ЗАО "ЮНИКОН-ЗСК"

Вид изделий

Эскиз

Марка

Размеры, мм

Класс (марка) по прочности на сжатие

Марка по средней плотности

Масса изделия масса стали, кг

В (Н)

Н (В)

L(В)

1

2

3

4

5

6

7

8

9

Рядовые блоки

СБР6-B0,35D250

295

(375)

375

(295)

595

 

В0,35

(М5)

250

 

20,3

-

СБР6-В0,5D300

295

(375)

375

(295)

595

 

В0,5

 

D300

 

24,2

-

СБР7- В0,35D250

295

(375)

375

(295)

295

 

В0,35

(М5)

D250

 

10,05

-

СБР7-B0,5D300

295

(375)

375

(295)

295

 

В0,5

 

D300

 

12,0

-

СБР8-B0,35D250

295

 

295

 

595

 

В0,35

(М5)

D250

 

16,1

-

СБР8- B0,5D300

295

 

295

 

595

 

В0,5

 

D300

 

19,2

-

СБР9-B0,35D250

295

 

295

 

295

 

В0,35

(М5)

D250

 

8,0

-

СБР9-B0,5D300

295

 

295

 

295

 

В0,5

 

D300

 

9,6

-

СБР10-B0,35D250

295

(395)

395

(295)

595

 

В0,35

(М5)

D250

 

21,5

-

СВР 10- B0,5D300

295

(395)

395

(295)

595

 

В0,5

 

D300

 

25,6

-

СБР11- B0,35D250

295

(395)

395

(295)

295

 

В0,35

(М5)

D250

 

10,65

-

СБРН-B0,5D300

295

(395)

395

(295)

295

 

В0,5

 

D300

 

12,72

-

СБР12-B0,35D250

330

 

375

 

595

 

В0,35

(М5)

D250

 

22,8

-

СБР12- B0,5D300

330

 

375

 

595

 

В0,5

 

D300

 

27,2

-

СБР13-B0,35D250

330

 

375

 

295

 

В0,35

(М5)

D250

 

11,3

-

СБР13- B0,5D300

330

 

375

 

295

 

В0,5

 

D300

 

13,5

-

СБР14- B0,35D250

330

 

295

 

595

 

В0,35

(М5)

D250

 

18,0

-

СБР14-B0,5D350

330

 

295

 

595

 

В0,5

 

D300

 

21,4

-

СБР15-B0,35D250

330

 

295

 

295

 

В0,35

(М5)

D250

 

8,9

-

СБР15-B0,5D300

330

 

295

 

295

 

В0,5

 

D300

 

10,64

-

СБР16-B0,35D250

330

 

395

 

595

 

В0,35

(М5)

D250

 

24,0

-

СБР16-B0,5D300

330

 

395

 

595

 

В0,5

 

D300

 

28,7

-

СБР17-B0,35D250

330

 

295

 

295

 

В0,35

(М5)

D250

 

11,9

-

СБР17-B0,5D300

330

 

295

 

295

 

В0,5

 

D300

 

14,2

-

 

Лист 14

Листов 135

Простеночные блоки

CБПpl-B0,35D250

295

 

375

 

595

 

В0,35

(М5)

D250

 

19,0

-

СБПр1-B0,5D300

295

 

375

 

595

 

В0,5

 

D300

 

22,7

-

СБПр2-B0,35D250

375

 

295

 

595

 

В0,35

(М5)

D250

 

18,6

-

СБПр2-B0,5D300

375

 

295

 

595

 

В0,5

 

D300

 

22,2

-

СБПр3-B0,35D250

295

 

375

 

295

 

В0,35

(М5)

D250

 

8,8

-

СБПр3- B0,5D300

295

 

375

 

295

 

В0,5

 

D300

 

10,5

-

СБПр4-B0,35D250

375

 

295

 

295

 

В0,35

(М5)

D250

 

9,2

-

СБПр4- B0,5D300

375

 

295

 

295

 

В0,5

 

D300

 

11,0

-

СБПр5-B0,35D250

295

 

375

 

595

 

В0,35

(М5)

D250

 

17,6

-

СБПр5-B0,5D300

295

 

375

 

595

 

В0,5

 

D300

 

21,1

-

СБПр6-B0,35D250

375

 

295

 

595

 

В0,35

(М5)

D250

 

17,2

-

СБПр6-B0,5D300

375

 

295

 

595

 

В0,5

 

D300

 

20,5

-

Доборные элементы

СБД1- B0,5D300

295

(120)

120

(295)

295

 

В0,5

 

D300

 

3,86

-

СБД2-B0,5D300

295

(120)

120

(295)

595

 

В0,5

 

D300

 

7,79

-

СБД3- B0,5D300

295

(120)

120

(295)

895

 

В0,5

 

D300

 

11,7

-

СБД4-B0,5D300

295 (120)

120

(295)

1195

 

В0,5

 

D300

 

15,65

-

СБД5-B0,5D300

295

(140)

140

(295)

295

 

В0,5

 

D300

 

4,51

-

СБД6-B0,5D300

295

(140)

140

(295)

595

 

В0,5

 

D300

 

9,1

-

СБД7- B0,5D300

295

(140)

140 (295)

895

 

В0,5

 

D300

 

13,67

-

СБД8-B0,5D300

295

(140)

140

(295)

1195

 

В0,5

 

D300

 

18,26

-

СБД9-B0,5D300

115

(295)

295

(115)

295

 

В0,5

 

D300

 

3,7

-

СБД10-B0,5D300

115

(295)

295

(115)

595

 

В0,5

 

D300

 

7,47

-

СБД11-B0,5D300

115

(295)

295

(115)

895

 

В0,5

 

D300

 

11,23

-

СБД12- B0,5D300

115

(295)

295

(115)

1195

 

В0,5

 

D300

 

15,0

-

СБД13- B0,5D300

140

(295)

295

(140)

235

 

В0,5

 

D300

 

3,6

-

СБД14-B0,5D300

140

 

235

 

595

 

В0,5

 

D300

 

7,24

-

СБД15- B0,5D300

140

 

235

 

895

 

В0,5

 

D300

 

10,8

-

СБД16- B0,5D300

140

 

235

 

1195

 

В0,5

 

D300

 

14,46

-

 

Лист 15

Листов 135

Доборные элементы

СБД17- B0,5D300

180

(295)

295

180)

295

 

В0,5

 

D300

 

5,8

-

СБД18-B0,5D300

180

(295)

295

180)

595

 

В0,5

 

D300

 

11,69

-

СБД19- B0,5D300

180

(295)

295

180)

895

 

В0,5

 

D300

 

17,58

-

СБД20- B0,5D300

180

(295)

295

180)

1195

 

В0,5

 

D300

 

23,48

-

СБД21-B0,5D300

180

(295)

295

180)

235

 

В0,5

 

D300

 

4,6

-

СБД22- B0,5D300

180

 

235

 

595

 

В0,5

 

D300

 

9,3

-

СБД23-B0,5D300

180

 

235

 

895

 

В0,5

 

D300

 

14,0

-

СБД24-B0,5D300

180

 

235

 

1195

 

В0,5

 

D300

 

18,7

-

СБД25-B0,35D250

295

(375)

115

 

375

(295)

В0,35

(М5)

D250

 

3,94

-

СБД25- B0,5D300

295

(375)

115

 

375

(295)

В0,5

 

D300

 

4,71

-

СБД26-B0,5D300

295

(375)

140

 

375

(295)

В0,5

 

D300

 

5,73

-

СБД27- B0,5D300

295

(375)

180

 

375

(295)

В0,5

 

D300

 

7,37

-

СБД28- B0,5D300

375

 

140

 

235

 

В0,5

 

D300

 

4,56

-

СБД29-B0,5D300

375

 

180

 

235

 

В0,5

 

D300

 

5,86

-

СБД30-B0,35D250

330

 

115

 

295

 

В0,35

(М5)

D250

 

3,46

-

СБД30-B0,5D300

330

 

115

 

295

 

В0,5

 

D300

 

4,14

-

СБД31-B0,35D250

330

 

115

 

375

 

В0,35

(М5)

D250

 

4,40

-

СБД31- B0,5D300

330

 

115

 

375

 

В0,5

 

D300

 

5,26

-

СБД32-B0,35D250

330

 

115

 

395

 

В0,35

(M5)

D250

 

4,64

-

СБД32-B0,5D300

330

 

115

 

395

 

В0,5

 

D300

 

5,54

-

СБД33-B0,35D250

330

 

145

 

295

 

В0,35

(М5)

D250

 

4,37

-

СБД33-B0,5D300

330

 

145

 

295

 

В0,5

 

D300

 

5,22

-

СБД34-BO.35D25O

330

 

145

 

375

 

В0,35

(M5)

D250

 

5,56

-

СБД34- B0,5D300

330

 

145

 

375

 

В0,5

 

D300

 

6,64

-

СБД35-B0,35D250

330

 

145

 

395

 

B0,35

(М5)

D250

 

5,86

-

СБД35-B0,5D300

330

 

145

 

395

 

В0,5

 

D300

 

7,0

-

СБД36-B0,35D250

330

 

195

 

295

 

В0,35

(М5)

D200

 

5,88

-

СБД36- B0,5D300

330

 

195

 

295

 

В0,5

 

D300

 

7,02

-

 

Лист 16

Листов 135

Доборные элементы

СБД37-B0,35D250

330

 

195

 

375

 

В0,35

(М5)

D250

 

7,48

-

СБД37- B0,5D300

330

 

195

 

375

 

В0,5

 

D300

 

8,93

-

СБД38- B0,35D250

330

 

195

 

395

 

В0,35

(М5)

D250

 

7.88

-

СБД38- B0,5D300

330

 

195

 

395

 

В0,5

 

D300

 

9,4

-

СБД39- B0,35D250

295

 

145

 

375

 

В,35

(М5)

D250

 

4,97

-

СБД39- B0,5D300

295

 

145

 

375

 

В0,5

 

D300

 

5,90

-

СБД40- B0,35D250

295

 

195

 

375

 

В0,35

(М5)

D250

 

6,69

-

СБД40- B0,5D300

295

 

195

 

375

 

В,0,5

 

D300

 

7,98

-

СБД41- B0,35D250

295

 

115

 

395

 

В0,35

(М5)

D250

 

4,15

-

СБД41- B0,35D250

295

 

115

 

395

 

В0,5

 

D300

 

4,94

-

СБД42-B0,35D250

295

 

145

 

395

 

В0,35

(М5)

D250

 

5,24

-

СБД42-B0,5D300

295

 

145

 

395

 

В0,5

 

D300

 

6,25

-

СБД43-B0,35D250

295

 

195

 

395

 

В0,35

(М5)

D250

 

7,04

-

СБД43- B0,5D300

295

 

195

 

395

 

В0,5

 

D300

 

8,41

-

СБД44-B0,35D250

375

 

55

 

595

 

В0,35

(М5)

D250

 

3,8

-

СБД44-B0,5D300

375

 

55

 

595

 

В0,5

 

D300

 

4,5

-

СБД45 B0,35D250

295

 

55

 

595

 

В0,35

(М5)

D250

 

3,0

-

СБД45 B0,5D300

295

 

55

 

595

 

В0,5

 

D300

 

3,6

-

СБД46 B,35D250

395

 

55

 

595

 

В0,35

(М5)

D250

 

4,0

-

СВД46 B0,5D300

395

 

55

 

595

 

В0,5

 

D300

 

4,8

-

Перемычечные блоки (перемычки)

СБП-120.I/50

180

 

295

 

1195

 

В0,5

 

D300

 

24,0

0,516

СБП-120.I/100

180

 

295

 

1195

 

B0,75

 

D350

 

27,9

0,63

СБП-120.II/50

140

 

295

 

1195

 

В0,5

 

D300

 

18,76

0,462

СБП-120.II/100

140

 

295

 

1195

 

В0,75

 

D350

 

21,75

0,534

СБП-120.III/50

180

 

235

 

1195

 

В0,5

 

D300

 

19,22

0,516

СБП-120.III/100

180

 

235

 

1195

 

В0,5

 

D350

 

22,36

0,63

 

Лист 17

Листов 135

Перемычечные блоки (перемычки)

СБП-

120.IV/50

140

 

235

 

1195

 

В0,5

 

D300

 

18,08

0,534

СБП-120.IV/100

140

 

235

 

1195

 

В0,75

 

D350

 

17,54

0,63

СБП-

120.VI/50

115

 

295

 

1195

 

В0,5

 

D300

 

15,49

0,494

СБП-120.VI/100

115

 

295

 

1195

 

В0,75

 

D350

 

18,0

0,566

СБП-

150.I/50

180

 

295

 

1495

 

В0,5

 

D300

 

30,1

0,65

СБП-150.I/100

180

 

295

 

1495

 

В0,75

 

D350

 

34,9

0,8

СБП-

150. II /50

140

 

295

 

1495

 

В0,5

 

D300

 

23,51

0,674

СБП-

150.III/100

140

 

295

 

1495

 

В0,75

 

D350

 

27,35

0,802

СБП-

150.П1/50

180

 

235

 

1495

 

В0,5

 

D300

 

24,05

0,65

СБП-

150.Ш/100

180

 

235

 

1495

 

В0,75

 

D350

 

27,99

0,802

СБП-

150.IV/50

140

 

235

 

1495

 

В0,5

 

D300

 

18,93

0,728

СБП-

150.IV/100

140

 

235

 

1495

 

В0,75

 

D350

 

22,05

0,888

СБП-

150.VI/50

115

 

295

 

1495

 

В0,5

 

D300

 

19,39

0,622

СБП-

150.VI/100

115

 

295

 

1495

 

В0,75

 

D350

 

22,47

0,664

СБП-

180.I/50

180

 

295

 

1795

 

В0,5

 

D300

 

36,3

0,98

СБП-

180.I/100

180

 

295

 

1795

 

В0,75

 

D350

 

42,2

1,22

СБП-

180.II/50

140

 

295

 

1795

 

В0,5

 

D300

 

28,25

0,816

СБП-

180.II/100

140

 

295

 

1795

 

В0,75

 

D350

 

32,86

0,976

СБП-

180.III/50

180

 

235

 

1795

 

В0,5

 

D300

 

29,08

0,976

СБП-

180.III/100

180

 

235

 

1795

 

В0,75

 

D350

 

33,87

1.216

СБП-

180.IV/50

140

 

235

 

1795

 

В0,5

 

D300

 

22,83

0.976

СБП-

180.IV/100

140

 

235

 

1795

 

В0,75

 

D350

 

26,56

1,166

СБП-

180.VI/50

115

 

295

 

1795

 

В0,5

 

D300

 

23,4

0,872

СБП-

180.VI/100

115

 

295

 

1795

 

В0,75

 

D350

 

27,21

1,022

СБП-

210.I/50

180

 

295

 

2095

 

В0,5

 

D300

 

42,2

1,06

СБП-

210.I/100

180

 

295

 

2095

 

В0,75

 

D375

 

49,2

1,37

СБП-

210.II/50

140

 

295

 

2095

 

В0,5

 

D300

 

33,08

1,062

СБП-

210.II/100

140

 

295

 

2095

 

В0,75

 

D350

 

38,54

1,342

СБП-

210.III/50

180

 

235

 

2095

 

В0,5

 

D300

 

33,85

1,062

 

Лист 18

Листов 135

Перемычечные блоки

(перемычки)

СБП-

210.III/100

180

 

235

 

2095

 

В0,75

 

D350

 

39,48

1,372

СБП-

210.IV/50

140

 

235

 

2095

 

В0,5

 

D300

 

26,74

1,234

СБП-

210.IV/100

140

 

235

 

2095

 

В0,75

 

D350

 

31,14

1,50

СБП-

210.VI/50

115

 

295

 

2095

 

В0,5

 

D300

 

27,49

1,204

СБП-210.VI/100

115

 

295

 

2095

 

В0,75

 

D350

 

31,98

1,42

СБП-

240.I/50

180

 

295

 

2395

 

В0,5

 

D300

 

48,6

1,5

СБП-

240.I/100

180

 

295

 

2395

 

В0,75

 

D350

 

56,6

1,9

СБП-

240.II/50

140

 

295

 

2395

 

В0,5

 

D300

 

38,05

1,462

СБП-

240.II/100

140

 

295

 

2395

 

В0,75

 

D350

 

44.26

1,726

СБП-

240.III/50

180

 

235

 

2395

 

В0,5

 

D300

 

39,0

1,522

СБП-

240.III/100

180

 

235

 

2395

 

В0,75

 

D350

 

45,44

1,882

СБП-

240.IV/50

140

 

235

 

2395

 

В0,5

 

D300

 

30,75

1,586

СБП-

240.IV/100

140

 

235

 

2395

 

B1

 

D450

 

45,72

1,586

СБП-

240.VI/50

115

 

295

 

2395

 

В0,5

 

D300

 

31,46

1,386

СБП-

240.VI/100

115

 

295

 

2395

 

В0,75

 

D350

 

36,71

1,77

СБП-

270.I/50

180

 

295

 

2695

 

B0,5

 

D300

 

54,9

1,97

СБП-

270.I/100

180

 

295

 

2695

 

В0,75

 

D350

 

63,5

1,97

СБП-

270.II/50

140

 

295

 

2695

 

В0,5

 

D300

 

42,99

1,812

СБП-

270.II/100

140

 

295

 

2695

 

B0,75

 

D350

 

49,92

2,064

СБП-

270.III/50

180

 

235

 

2695

 

В0,5

 

D300

 

44,13

1,968

СБП-

270.III/100

180

 

235

 

2695

 

В1

 

D450

 

65,81

1,968

СБП-

270.IV/50

140

 

235

 

2695

 

В0,75

 

D350

 

39,67

1,548

СБП-

270.IV/75

140

 

235

 

2695

 

В1,5

 

D500

 

56,3

1,32

СБП-

270.VI/50

115

 

295

 

1695

 

В0,5

 

D300

 

35,69

1,856

СБП-270.VI/100

115

 

295

 

1695

 

B1

 

D450

 

52,92

1,724

СБП-

300.I/50

180

 

295

 

2995

 

В0,5

 

D300

 

60,3

1,49

 

Лист 19

Листов 135

Перемычечные блоки (перемычки)

 

СБП-300.I/100

180

 

295

 

2995

 

В0,75

 

D350

 

69,9

1,5

СБП- 300.II/50

140

 

295

 

2995

 

В0,5

 

D300

 

47,84

2,066

СБП-300.II/100

140

 

235

 

2995

 

В1,5

 

D500

 

78,18

1,492

СБП-300.III/50

180

 

235

 

2995

 

В0,75

 

D350

 

55.,98

1,492

СБП-300.Ш/75

180

 

235

 

2995

 

В1,5

 

D500

 

79,78

1,226

СБП-300.IV/50

140

 

235

 

2995

 

B1

 

D450

 

56,67

1,492

СБП-300.IV/75

140

 

295

 

2995

 

В1,5

 

D500

 

62,58

1,492

СБП-300.VI/50

115

 

295

 

2995

 

В0,75

 

D350

 

45,25

1,558

СБП-300.VI/75

115

 

295

 

2995

 

В1,5

 

D500

 

64,35

1,348

Теплоизоляционные плиты

ПТ9.6.1-D150

600

 

100

 

900

 

М2

 

D150

 

10,3

 

ПТ9.6.1-D175

600

 

100

 

900

 

М2;

М2,5

D175

 

11,9

 

ПT9.6.1-D200

600

 

100

 

900

 

М2,5;

М3

D200

 

13,5

 

ПТ6.6.0,8-D175

600

 

80

 

600

 

М2

 

D175

 

6,4

 

ПТ6.6.0,8-D200

600

 

80

 

600

 

М2,5

 

D200

 

7,2

 

 

Лист 20

Листов 135

 

Примечания:

1. Масса блоков, перемычек и плит приведена с учетом максимальной отпускной влажности в % по объему; 4 - для D150; 4,5 - для D175; 5 - для D200; 6 - для D250; 7 - для D300; 8 - для D350; 10- для D400; 11 - для D450 и 12-для D500.

2. При возведении стен блоки всех видов (кроме перемычек) могут укладываться в любом положении.

3. Номенклатура рядовых, простеночных и доборных стеновых блоков принята в соответствии с ТУ 5741-159-00284807-96 (с изм. 1 - 4).

4. Номенклатура теплоизоляционных плит принята в соответствии с ТУ 5760- 160- 00284807-96 (с изм. 1, 2).

5. Номенклатура перемычек принята в соответствии с Альбомом рабочих чертежей (шифр 22-2000К) "Полистиролбетонные армированные перемычки для теплоэффективных стен зданий системы "Юникон" ВНИИжелезобетона" и ТУ 5741-159-00284807-96 (с изм. 1-4).

6. Меньшие размеры L для всех видов блоков (кроме перемычек) могут быть получены поперечным распиливанием.

7. Для теплоизоляционных плит размеры L и В являются максимальными. Меньшие размеры L и В могут быть получены распиливанием плит.

8. Глубина опирания полистиролбетонных перемычек не должна быть менее 150 мм.

9. По согласованию заказчика с изготовителем номенклатура полистиролбетонных изделий может предусматривать другие размеры, классы по прочности и марки по плотности, которые не приведены в указанных выше технических условиях и Альбоме рабочих чертежей перемычек,

10. Расчетные теплотехнические показатели полистиролбетона различной плотности приведены в Приложении 1 (табл. В-1).

 

ФРАГМЕНТ ФАСАДНОЙ НЕНЕСУЩЕЙ СТЕНЫ. ПРИМЕР РАСКЛАДКИ ПОЛИСТИРОЛБЕТОННЫХ БЛОКОВ ТОЛЩИНОЙ 295 мм

 

мм

ФРАГМЕНТ ФАСАДНОЙ НЕНЕСУЩЕЙ СТЕНЫ. ПРИМЕР РАСКЛАДКИ ПОЛИСТИРОЛБЕТОННЫХ БЛОКОВ ТОЛЩИНОЙ 375 мм

РЕКОМЕНДУЕМЫЕ ПАРАМЕТРЫ ЖИЛЫХ И ОБЩЕСТВЕННЫХ ЗДАНИЙ С ОГРАЖДАЮЩИМИ КОНСТРУКЦИЯМИМ СИСТЕМЫ «ЮНИКОН»

№№

пп

Параметры

Обозначение

Единица измерения

Номинальные значения размеров, параметров

1.

Шаги в продольном направлении между несущими стенами (колоннами)

Z

мм

3300, 3600, 4200, 4800; 5400, 6000, 6600, 7200

2.

Высота этажа

Н

мм

2800, 3000, 3300

3.

Усредненная высота оконного проема

hок

м

1,2; 1,5; 1,8

4.

Усредненная ширина проемов (без учета толщины четверти и оштукатуривания откосов)

вок

м

0,9; 1,2; 1,5; 1,8; 2,1; 2,4; 2,7

5.

Толщина перекрытий

мм

140, 160,180,200,220

6.

Толщина внутренних несущих стен

мм

140, 160, 180, 200

7.

Число этажей, не более

N

-

25

8.

Расстояние между температурными швами, не более

Zt

м

100

 

Примечание. Приведенная в таблице высота этажа Н и оконных проемов hок относится к жилым зданиям.

НОРМАЛЬ H1. НЕНЕСУЩАЯ СТЕНА ИЗ ПОЛИСТИРОЛБЕТОННЫХ БЛОКОВ ТОЛЩИНОЙ 295 мм И ВЫСОТОЙ 375 мм С КИРПИЧНОЙ ОБЛИЦОВКОЙ ФАСАДА (ВЕРТИКАЛЬНЫЙ РАЗРЕЗ ПО ОКНУ)

 

НОРМАЛЬ Н2-1. НЕНЕСУЩАЯ СТЕНА ИЗ ПОЛИСТИРОЛБЕТОННЫХ БЛОКОВ ТОЛЩИНОЙ 330 мм И ВЫСОТОЙ 295 мм С ОБЛИЦОВКОЙ ФАСАДА УТОЛЩЕННЫМ КИРПИЧОМ (ВЕРТИКАЛЬНЫЙ РАЗРЕЗ ПО ОКНУ)

 

НОРМАЛЬ Н2-2. НЕНЕСУЩАЯ СТЕНА ИЗ ПОЛИСТИРОЛБЕТОННЫХ БЛОКОВ ТОЛЩИНОЙ 330 мм И ВЫСОТОЙ 395 мм С ОБЛИЦОВКОЙ ФАСАДА УТОЛЩЕННЫМ КИРПИЧОМ (ВЕРТИКАЛЬНЫЙ РАЗРЕЗ ПО ОКНУ)

НОРМАЛЬ Н3. НЕНЕСУЩАЯ СТЕНА ИЗ ПОЛИСТИРОЛБЕТОННЫХ БЛОКОВ ТОЛЩИНОЙ 375 мм И ВЫСОТОЙ 295 мм С КИРПИЧНОЙ ОБЛИЦОВКОЙ ФАСАДА (ВЕРТИКАЛЬНЫЙ РАЗРЕЗ ПО ОКНУ)

НОРМАЛЬ Н4. НЕНЕСУЩАЯ СТЕНА ИЗ ПОЛИСТИРОЛБЕТОННЫХ БЛОКОВ ТОЛЩИНОЙ 330 мм С МОНОЛИТНЫМИ НЕСУЩИМИ ЖЕЛЕЗОБЕТОННЫМИ КОЛОННАМИ И КИРПИЧНОЙ ОБЛИЦОВКОЙ ФАСАДА (ГОРИЗОНТАЛЬНЫЙ РАЗРЕЗ)

НОРМАЛЬ H5. ПЕРЕКРЫТИЕ НАД НЕНЕСУЩИМИ СТЕНАМИ ИЗ ПОЛИСТИРОЛБЕТОННЫХ БЛОКОВ С КИРПИЧНЫМ ФАСАДОМ (ГОРИЗОНТАЛЬНЫЙ РАЗРЕЗ)

Горизонтальный разрез 1-1 (см. нормали Н1 и Н3)

НОРМАЛЬ Н6. ВАРИАНТЫ УЗЛОВ ОПИРАНИЯ ФАСАДНОЙ КИРПИЧНОЙ КЛАДКИ НАД ПРОЕМАМИ НЕНЕСУЩИХ СТЕН

НОРМАЛЬ Н7. ВАРИАНТЫ УЗЛОВ ОПИРАНИЯ НА ПЕРЕКРЫТИЕ ФАСАДНОЙ КИРПИЧНОЙ КЛАДКИ И ПОЛИСТИРОЛБЕТОННЫХ БЛОКОВ В НЕНЕСУЩИХ И САМОНЕСУЩИХ СТЕНАХ

ПОЯСНЕНИЯ К НОРМАЛЯМ Н1-Н7

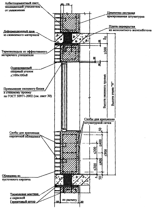
Нормали Н1 и Н3 представляют собой принципиальное решение наружных ненесущих стен (вертикальный разрез по оконному проему) из сплошных полистиролбетонных блоков толщиной 295 мм и высотой 375 мм плотностью 250 кг/м3 и толщиной 375 мм при высоте 295 мм плотностью 250-300 кг/м3, облицованных с фасадной стороны лицевым пустотелым кирпичом и оштукатуренных с внутренней стороны. В нормалях Н2-1 и Н2-2 - принципиальные решения не несущей стены толщиной 330 мм я высотой 295 и 395 мм плотностью 250-300 кг/м3, облицованной с фасадной стороны пустотелым утолщенным кирпичом. Во всех случаях возможна также облицовка с внутренней стороны гипсоволокнистыми листами (ГВЛ).

Представленные решения для блоков толщиной 295 и 375 мм увязаны с примерами раскладки полистиролбетонных блоков, показанных на листах 21 и 22.

Принципиальное решение иллюстрируется на примере наружных ненесущих стен здания с высотой этажа Н=3000 мм, поминальной высотой оконного проема hок=1520 (1489) мм, монолитным перекрытием толщиной  или 200 мм, имеющим под полистиролбетонными стеновыми блоками термовкладыши из негорючего утеплителя; кирпичная облицовка на уровне верха перекрытия опирается на консольный участок плиты перекрытия (Н7, узел 2-1) или на стальной уголок 160х100х9, который приваривается к закладной детали (Н7, узел 2-3). Толщина стены с учетом отделочных слоев составляет 438 мм при толщине блоков В=295 мм и 520 мм при толщине В=375 мм.

Кирпичная кладка и полистиролбетонные блоки отстоят друг от друга на расстоянии 5 мм, и между ними может предусматриваться: воздушный зазор (что улучшает теплозащитные свойства и экономические показатели стены) или кладочный клей (раствор), необходимость в котором определяется как требованиями пожарной безопасности, так и требованиями по обеспечению сопротивления ветровым нагрузкам. Поэтому воздушный зазор между кладками должен предусматриваться на максимально возможной площади глухой части фасада здания, но не более 3м2.

Штукатурные слои из цементно-песчаного раствора толщиной 20 мм (на откосах - 30 мм) армированы стальной сеткой из проволоки Ø 1...1,2 мм с ячейкой 10...20 мм.

Облицовка внутренней стороны гипсоволокнистыми листами (ГВЛ) толщиной 10 мм состоит из двух слоев общей толщиной 20 мм на внутренних участках стен или трех слоев общей толщиной 30 мм на откосах (см. рис. Нормаль 12-4.).

Крепление штукатурных слоев и ГВЛ к полистиролбетонным блокам показано в нормали Н12.

Полистиролбетонные перемычки крепятся к фасадной кирпичной кладке кладочным клеем или раствором без воздушного зазора.

Толщина блоков 295, 330 или 375 мм выбирается исходя из результатов расчетов стен по прочности на ветровое давление и по теплозащите. При обеспечении требований по сопротивлению ветровому давлению и теплозащите, предпочтение по экономическим соображениям должно отдаваться блокам толщиной 295 мм.

В подоконной части стены при толщине блоков 295 мм укладываются два ряда рядовых блоков СБР6 (СБР7) и один ряд доборных элементов СБД21, при толщине блоков 330 мм высотой 295 мм - три ряда рядовых блоков СБР14 (СБР15) и высотой 395 мм - два ряда рядовых блоков СБР16 (СБР17), а при толщине блоков 375 мм - три ряда блоков СБР6 (СБР7).

В надоконной части стены укладываются две равновысокие полистиролбетонные перемычки шириной 140 (180) мм и высотой 295 (235) мм с замкнутой воздушной прослойкой между ними.

На перемычки для стен из блоков толщиной 330 и 375 мм укладываются доборные стеновые элементы (Н2-1, Н2-2 и Н3).

Функции верхней горизонтальной четверти проема выполняет: оцинкованный опорный уголок (Н6, узел 1-1) или фигурный кирпич, установленный на уголок (Н6, узел 1-2), или железобетонная перемычка (Н6, узел 1-3).

На участке между перекрытием и верхом оконного (дверного) проема кирпичная облицовка опирается на стальной уголок 100х100х8, расположенный над проемом (Н6, узлы 1-1 и 1-2), или на железобетонную перемычку (Н6, узел 1-3).

Уголок имеет опорные пластины из стального листа, привариваемого к нему на концевых участках и заходящего в горизонтальные швы кладки из полистиролбетонных элементов (блоков, перемычек) в простенках (см. узел 1-2 Н6). Опорные пластины крепятся к полистиролбетонным блокам дюбелями FUR 8х80Т. При ширине проема более 1,5 м опорный стальной уголок в обязательном порядке закрепляется в перемычку с использованием дюбеля FUR 8х80Т, устанавливаемого в середине пролета на монтажной пене, в который через раззенкованное отверстие в уголке завинчивается стальной шуруп с потайной головкой.

Опорные стальные уголки (на уровне перекрытий и над проемами) применяются с обязательной антикоррозионной покраской в соответствии со СНиП 2.03.11-85.

Между перекрытием и перемычками или доборными стеновыми блоками предусмотрен зазор толщиной 20-30 мм, заполненный сжимаемым негорючим материалом (например, негорючей минеральной ватой плотностью 55-75 кг/м3 по ГОСТ 4640-93), предназначенный для того, чтобы не допустить передачу давления на полистиролбетонные элементы стен при прогибе перекрытия. Такой же зазор с сжимаемым материалом предусматривается в варианте с опиранием кирпичной облицовки на стальной уголок - между ним и верхом кирпичной облицовки (Н7, узел 2-3).

По узлам нормали Н7 обеспечивается полное опирание (без консольных свесов) полистиролбетонных стеновых блоков на перекрытие, что повышает их устойчивость в стадии воз ведения во время действия ветрового давления.

Для устройства кирпичных фасадов применяется лицевой полнотелый кирпич или пустотный с лицевыми и боковыми поверхностями, отстоящими от пустот на расстояние не менее 40 мм. Допускается применение пустотелого лицевого кирпича при условии полного заполнения кладочным раствором пустот, примыкающих к наружной поверхности кирпича.

Кирпичная облицовка выполняет функции боковой четверти (Н4), благодаря чему оконный блок удален от внутренней поверхности стены (что улучшает теплотехнические характеристики стены).

Нормаль Н4 дает принципиальное решение использования кирпичной облицовки несущей железобетонной колонны с наружной (фасадной) стороны, которая утепляется вставками из пенополистирола толщиной 100 мм. Угловая колонна утепляется по двум сторонам, примыкающим к углу.

Кирпичная облицовка прикрепляется к полистиролбетонным блокам с помощью анкеров (скоб), которые устанавливаются в каждый горизонтальный клеевой шов между стеновыми полистиролбетонными блоками (см. Н12). При кладке кирпичной облицовки и стеновых блоков необходимо следить за тем, чтобы горизонтальные швы, в которых располагаются скобы, совпадали по уровню.

Толщина вертикальных швов кладки из полистиролбетонных блоков составляет 1-3 мм (расчетная 2 мм), толщина горизонтальных швов - 3-5 мм (расчетная 4 мм). Расчетная толщина шва между плитами перекрытий и первым рядом кладки из полистиролбетонных блоков составляет 5 мм, так как в этот шов укладывается штукатурная сетка, например по ГОСТ 3826-82.

Нормаль Н5 (горизонтальный разрез 1 - 1 по перекрытию) показывает, что в плите перекрытия предусматриваются термовкладыши из эффективного негорючего утеплителя толщиной 175 или 200 мм. Между термовкладышами расположены железобетонные шпонки, соединяющие основную и консольную части плиты перекрытия. Размеры и армирование шпонок определяются расчетом их прочности. Однако с целью повышения термического сопротивления стены при проектировании следует ширину шпонок принимать минимально возможной, например равной 80 мм с армированием ее сдвоенными рабочими арматурными стержнями и увеличивать шаг шпонок (но не более 1200 мм).

НОРМАЛЬ Н8. НЕНЕСУЩАЯ СТЕНА ИЗ ПОЛИСТИРОЛБЕТОННЫХ БЛОКОВ ТОЛЩИНОЙ 295 мм, ОШТУКАТУРЕННАЯ С ФАСАДА И ИЗНУТРИ (ВЕРТИКАЛЬНЫЙ РАЗРЕЗ ПО ОКНУ)

НОРМАЛЬ Н9. НЕНЕСУЩАЯ СТЕНА ИЗ ПОЛИСТИРОЛБЕТОННЫХ БЛОКОВТОЛЩИНОЙ 375 мм, ОШТУКАТУРЕННАЯ С ФАСАДА И ИЗНУТРИ (ВЕРТИКАЛЬНЫЙ РАЗРЕЗ ПО ОКНУ)

НОРМАЛЬ Н10. НЕСУЩАЯ ЖЕЛЕЗОБЕТОННАЯ СТЕНА С УТЕПЛЕНИЕМ ПОЛИСТИРОЛБЕТОННЫМИ БЛОКАМИ, ОШТУКАТУРЕННАЯ С ФАСАДА (ВЕРТИКАЛЬНЫЙ РАЗРЕЗ)

ПОЯСНЕНИЯ К НОРМАЛЯМ Н8 – Н10

Нормали Н8 и Н9 представляют собой принципиальное решение наружной ненесущей стены (вертикальный разрез по оконному проему) из сплошных полистиролбетонных блоков плотностью 250 кг/м3, соответственно, толщиной 295 мм и высотой 375 мм и толщиной 375 мм и высотой 295 мм (решение стены с толщиной блоков 330 мм условно не по казано), оштукатуренной с фасадной и внутренней стороны (или с облицовкой внутренней стороны ГВЛ).

Принципиальное решение иллюстрируется на примере стен здания с параметрами:

высота этажа Н=3000 мм, высота оконного проема hок =1520мм и hок=1499 мм, перекрытие - монолитное железобетонное толщиной  мм, перемычки полистиролбетонные высотой 295 и 235 мм, толщина стены (с учетом отделочных слоев) 335 мм и 415 мм.

Полистиролбетонные блоки поэтажно монтируются на междуэтажных перекрытиях с неполным опиранием и вылетом консольной части, не превышающей 1/3 толщины блока.

В стенах помимо полистиролбетонных блоков используются доборные элементы СДБ, которые изготавливаются по резательной технологии на дочернем предприятии института "ВНИИжелезобетон" - ЗАО "Юникон-ЗСК", или могут изготавливаться на строи тельной площадке резкой полистиролбетонных блоков или плит.

В подоконной части стены толщиной 295 мм укладывается два ряда стеновых блоков и один ряд доборных элементов высотой 180 мм. При расчетной толщине указанных горизонтальных клеевых швов 5 и 4 мм общая высота подоконной части стены составляет 903 мм. При толщине стены 375 мм общая высота подоконной части будет равна 898 мм.

В надоконной части стены при толщине стеновых блоков 295 мм укладываются две равновысокие перемычки высотой 295 мм или разновысокие перемычки высотой 295 мм (толщиной 115 мм) и высотой 235 мм (толщиной 180 мм). В надоконной части стены при толщине стеновых блоков 375 мм укладываются две равновысокие перемычки высотой 235 мм и один ряд доборных элементов высотой 140 мм. Функцию верхней четверти выполняют или штукатурный слой по низу наружной перемычки толщиной 30 мм, или перемычка толщиной 115 мм.

Между перекрытиями и расположенными ниже полистиролбетонными элементами предусмотрен зазор толщиной 23 и 24 мм, заполняемый мягким негорючим материалом (негорючей минватой плотностью 55-75 кг/м3 по ГОСТ 4640-93). Толщина зазора принята из условия недопущения давления на полистиролбетонные элементы при прогибе перекрытия, значения которого не должны превышать  мм.

Оконный блок расположен на расстоянии 120 мм от наружной поверхности полистиролбетонных блоков, исходя из толщины боковой четверти 115 мм простеночных полистиролбетонных блоков и зазора между четвертью и оконным блоком 5 мм, заполняемого герметиком. Примыкание оконных блоков к проемам должно выполняться в соответствии с решениями ГОСТ 30971-2002.

Торец перекрытия утепляется вставками из теплоизоляционных полистиролбетонных плит ПТ плотностью 150-200 кг/м3 толщиной 100 мм.

Облицовка стен армированной штукатуркой или гипсоволокнистыми листами (ГВЛ) выполняется по аналогии с решениями, принятыми в нормалях Н1-Н4 и пояснениях к ним, а крепления ГВЛ по нормали Н12-4.

В нормали Н10 представлено утепление полистиролбетонными блоками несущих железобетонных стен, которые находятся в торце здания, а также к случаям, когда такие стены выходят на фасадную сторону.

Для утепления используются полистиролбетонные блоки плотностью 250 кг/м3 толщиной 295 (330, 375) мм. Выбор толщины блоков производится на основе теплотехнического расчета.

В приведенном решении полистиролбетонные блоки опираются на консольный выпуск перекрытия, выступающего за наружную грань железобетонной стены.

Штукатурные отделочные слои крепятся к кладке из полистиролбетонных блоков в соответствии с указаниями к нормали Н12. К железобетонной стене полистиролбетонные блоки крепятся кладочным клеем. Расчетная толщина клеевого шва - 2 мм.

В наружном штукатурном отделочном слое рекомендуется предусматривать горизонтальный руст на уровне перекрытия каждого этажа, что позволяет избежать образования хаотичных усадочных и температурных трещин в этом слое. Кроме того, должны предусматриваться вертикальные температурно-усадочные русты, отстоящие друг от друга на расстоянии не более 6 м.

НОРМАЛЬ 11. НЕНЕСУЩАЯ СТЕНА ИЗ МОНОЛИТНОГО ПОЛИСТИРОЛБЕТОНА С КИРПИЧНОЙ ФАСАДНОЙ ОБЛИЦОВКОЙ, ОШТУКАТУРЕННАЯ ИЗНУТРИ (ВЕРТИКАЛЬНЫЙ РАЗРЕЗ ПО ОКНУ)

ПОЯСНЕНИЯ К НОРМАЛИ Н11

Нормаль Н11 дает принципиальные технические решения наружной самонесущей стены применением монолитного полистиролбетона, в т.ч. с облицовкой фасадной стороны ненесущей стены лицевым пустотелым или полнотелым кирпичом (см. пояснения к Н1-Н7) и оштукатуриванием внутренней стороны. В нормали приведен вертикальный разрез ненесущей стены по оконному проему.

Облицовку стен лицевым пустотелым кирпичом толщиной 120 мм целесообразно использовать в качестве несъемной (оставляемой) опалубки. При этом она должна быть проверена расчетом на давление полистиролбетонной смеси и при необходимости усилена временными креплениями, установленными при возведении стены.

В стенах с применением монолитного полистиролбетона должно предусматриваться расчетное или (и) конструктивное армирование, в т.ч. продольная арматура, препятствующая появлению и развитию усадочных трещин, и поперечная арматура в виде сеток, препятствующая осадке полистиролбетона. Эти сетки по высоте стены располагаются с шагом не более 600 мм.

Конструктивное армирование должно быть предусмотрено у наружных и внутренних поверхностей стены, под и над оконными (дверными) проемами, в местах резкого изменения размеров сечения стены и в углах здания.

При армировании стен должны быть предусмотрены выпуски арматуры из проволоки Ø3 BpI (Ø3 ВI) для крепления облицовки из кирпича или сетки штукатурного слоя. Выпуски закрепляются к арматуре стены с помощью вязальной проволоки. Они пропускаются через отверстия в опалубке. После снятия опалубки концы выпусков загибаются для образования крючков, к которым затем привязывается стальная сетка штукатурного слоя или стержни Ø6 АI расположенные в горизонтальных швах кирпичной кладки. Выпуски (штыри из проволоки) располагаются с шагом 600 мм по горизонтали и 300...400 мм по вертикали,

Монолитная перемычка над оконным (дверным) проемом армирована пространственным каркасом с замкнутыми хомутами, что позволяет ей воспринимать крутящие моменты от кирпичной облицовки, опирающейся на стальной уголок, который приваривается к закладной детали перемычки.

Кирпичная облицовка и армированные штукатурные слои толщиной 20 мм защищают полистиролбетон стен от огневого воздействия при пожаре.

Железобетонное перекрытие, на которое опирается монолитный полистиролбетон, в стенах с кирпичным фасадом имеет термовкладыши из эффективного негорючего утеплителя.

Чтобы защищать термовкладыши от контакта с монолитным полистиролбетоном при его укладке, над ними укладываются плоские асбестоцементные листы.

Через отверстия в плитах перекрытий для термовкладышей возможно производить бетонирование монолитным полистиролбетоном стен нижележащего этажа. Рекомендации по возведению ограждающих конструкций из монолитного полистиролбетона представлены в Приложении 6.

Между перекрытием и расположенным под ним монолитным полистиролбетоном стены предусмотрен зазор (деформационный шов), заполняемый сжимаемым негорючим материалом. Ширина зазора должна быть не менее прогиба перекрытия при длительном действии полной нагрузки на него.

Толщина части стены из монолитного полистиролбетона определяется прочностным и теплофизическим расчетами, а также возможностями применения унифицированной съемной опалубки.

НОРМАЛЬ Н12-1. КРЕПЛЕНИЕ ОБЛИЦОВОЧНЫХ ШТУКАТУРНЫХ И КИРПИЧНЫХ СЛОЕВ К КЛАДКЕ ИЗ ПОЛИСТИРОЛБЕТОННЫХ БЛОКОВ В ПРОСТЕНКАХ

НОРМАЛЬ Н12-2. КРЕПЛЕНИЕ КИРПИЧНЫХ И ШТУКАТУРНЫХ СЛОЕВ НА УЧАСТКАХ, ПРИЛЕГАЮЩИХ К ОКОННЫМ (ДВЕРНЫМ) ПРОЕМАМ

НОРМАЛЬ Н12-3. КРЕПЛЕНИЕ ОБЛИЦОВОЧНОГО КИРПИЧА К ПОЛИСТИРОЛБЕТОННЫМ БЛОКАМ ПРИ НЕСОВПАДЕНИИ ГОРИЗОНТАЛЬНЫХ ШВОВ

НОРМАЛЬ Н12-4. КРЕПЛЕНИЕ ВНУТРЕННЕГО ОБЛИЦОВОЧНОГО СЛОЯ ИЗ ГВЛ К ПОЛИСТИРОЛБЕТОННЫМ БЛОКАМ

ПОЯСНЕНИЯ К НОРМАЛЯМ Н12-1 - Н12-4

Нормали Н12-1 - Н12-3 дают принципиальные технические решения крепления отделочных слоев из армированной штукатурки и кирпичной облицовки к полистиролбетонным сплошным стеновым блокам, а нормаль Н12-4 крепление внутреннего слоя из гипсоволокнистых листов (ГВЛ).

Крепление штукатурки и кирпичной облицовки выполняется с помощью гибких связей (анкеров) в форме скоб из проволоки Ø3 BpI. Скобы помещаются в клеевых горизонтальных швах толщиной 3-5 мм между стеновыми элементами (полистиролбетонными блоками и (или) полистиролбетонными доборными блоками) с шагом по горизонтали 600 мм и по вертикали 300...400 мм.

К скобам привязываются вязальной проволокой стальная мелкоячеистая сетка из проволоки Ø 1 ...1,2 мм с ячейкой 10...20 мм, армирующая штукатурный слой толщиной 20 мм из цементно-песчаного раствора или цементно-песчано-известкового (сложного) раствора, или стальной стержень из Ø6АI, расположенный в горизонтальном растворном шве кладки из лицевого пустотелого кирпича.

В горизонтальном клеевом шве каждая связь состоит из двух скоб, расположенных параллельно с расстоянием между ними  60 мм и с перепуском (нахлесткой)  100 мм. При этом осуществляется соединение наружного и внутреннего отделочных слоев, но не допускается образование "мостика холода".

Кирпичная облицовка, кроме того, приклеивается к полистиролбетонным блокам вертикальными и горизонтальными полосами размером 70х5 мм из клея с участками между ни ми площадью не более 3,0 м2. Таким образом, создаются замкнутые воздушные прослойки, повышающие термическое сопротивление стен, и противопожарные рассечки из клеевых полос. По условиям обеспечения сопротивления наружных стен ветровым нагрузкам (для многоэтажных зданий) возможен вариант сплошного приклеивания кирпичной кладки к полистиролбетонной стене. Такой вариант обязателен для полистиролбетонных перемычек.

Штукатурные слои на откосах оконных (дверных) проемов толщиной 20...30 мм (30 мм в местах сопряжения со столярными блоками) также армируются стальной мелкоячеистой сеткой, но их крепление к полистиролбетонным блокам с помощью скоб выполняется чаще, чем на остальных участках стены.

Крепежные элементы (скобы, анкерующие наружную отделку и стержень Ø6АI), а также стальная штукатурная сетка, расположенная в наружном (фасадном) штукатурном слое, должны быть оцинкованы.

При фасадной кирпичной облицовке, если не предусматривается сплошное приклеивание кирпичной кладки к кладке из полистиролбетонных блоков, оцинкованные проволочные анкера в слое между кладками толщиной 5 (10) мм должны быть дополнительно защищены слоем клея (раствора) толщиной не менее 20 мм. Эта защита может обеспечиваться размещением анкеров в упомянутых выше противопожарных вертикальных и горизонтальных полосах шириной 50 мм, а вне таких полос - устройством специальной обмазки клеем или раствором.

Четверть из кирпичной кладки в углах простеночного блока (Н12-2) усиливается оцинкованной стальной сеткой С1, размещаемой в каждом горизонтальном шве полистиролбетонных блоков и совпадающим с ним шве кирпичной кладки.

Кирпичная кладка из утолщенного кирпича (Н12-3) при несовпадении швов с кладкой из полистиролбетонных блоков также анкеруется скобами из проволоки Ø3 ВрI, которые устанавливаются в пропил пустотелого кирпича. Пропил после установки скоб заделывается кладочным раствором.

Крепление ГВЛ к стенам из полистиролбетонных блоков (Н12-4) осуществляется с помощью универсальных рамных дюбелей типа FUR 10х160Т, устанавливаемых в просверленных заранее отверстиях на монтажной пене. Крепление 2-го и 3-го слоя ГВЛ к предыдущему слою осуществляется самонарезающими винтами (шурупами) Ø5х30 мм с потайными головками.

НОРМАЛЬ Н13. КРЕПЛЕНИЕ ОКОННЫХ (ДВЕРНЫХ) БЛОКОВ К СТЕНАМ ИЗ ПОЛИСТИРОЛБЕТОНА

ПОЯСНЕНИЯ К НОРМАЛИ Н13

Нормаль Н13 дает принципиальные технические решения крепления деревянных (пластиковых) оконных и дверных блоков к стенам из полистиролбетонпых блоков и к стенам из монолитного полистиролбетона.

Столярные блоки крепятся, как правило, по боковым и нижним сторонам. При необходимости усиления стандартных полистиролбетонных перемычек, армированных только в растянутой зоне плоским горизонтальным стальным каркасом, возможно также крепление к перемычкам верхней части столярных блоков.

В основном крепление к стенам выполняется с помощью круглых заостренных штырей из стальных стержней Ø16 AI, забиваемых в полистиролбетон стен.

В тех случаях, когда по расчету на ветровые нагрузки из условия недопущения смятия полистиролбетона требуется увеличение площади поверхности штырей, через которую пере дается давление на полистиролбетон, могут использоваться плоские штыри (монтажные элементы) толщиной 4-5 мм и шириной до 50 мм.

Размеры штырей определяется расчетом креплений на действие положительного (аэродинамический коэффициент 0=0,8) или отрицательного (С=-2) ветрового давления, определяемых в соответствии с указаниями СНиП 2.01.07-85 "Нагрузки и воздействия".

Круглые или плоские штыри забивают в полистиролбетон стен через заблаговременно подготовленные (высверленные или выбранные фрезой) отверстия или пазы в столярных блоках. Штыри со стороны, забиваемой в полистиролбетон, должны иметь заостренные концы и располагаться не ближе 50 мм от боковой поверхности полистиролбетонной части стены.

В нормали показан вариант технического решения противопожарной защиты полистиролбетона в местах его контакта с оконными (дверными) блоками с использованием про кладки из базальтового волокна или из асбестокартона толщиной не менее 5 мм.

НОРМАЛЬ Н 14-1. КРЕПЛЕНИЕ КЛАДКИ ИЗ ПОЛИСТИРОЛБЕТОННЫХ БЛОКОВ К ЖЕЛЕЗОБЕТОННЫМ ПЕРЕКРЫТИЯМ В СТЕНАХ С КИРПИЧНЫМ ФАСАДОМ

НОРМАЛЬ Н14-2. КРЕПЛЕНИЕ ПОЛИСТИРОЛБЕТОННЫХ ПЕРЕМЫЧЕК К ЖЕЛЕЗОБЕТОННЫМ ПЕРЕКРЫТИЯМ В СТЕНАХ С КИРПИЧНЫМ ФАСАДОМ

НОРМАЛЬ 14-3. КРЕПЛЕНИЕ КЛАДКИ ИЗ ПОЛИСТИРОЛБЕТОННЫХ БЛОКОВ К ЖЕЛЕЗОБЕТОННЫМ ПЕРЕКРЫТИЯМ В СТЕНАХ С ОШТУКАТУРИВАЕМЫМ ФАСАДОМ

 

НОРМАЛЬ 14-4. КРЕПЛЕНИЕ ПОЛИСТИРОЛБЕТОННЫХ ПЕРЕМЫЧЕК В СТЕНАХ С ОШТУКАТУРИВАЕМЫМ ФАСАДОМ

НОРМАЛЬ Н14-5. КРЕПЛЕНИЕ КЛАДКИ ИЗ ПОЛИСТИРОЛБЕТОННЫХ БЛОКОВ К ВНУТРЕННИМ ЖЕЛЕЗОБЕТОННЫМ СТЕНАМ И КОЛОННАМ

ПОЯСНЕНИЯ К НОРМАЛЯМ Н14-1 – Н14-5

Нормали Н14-1 - Н14-5 дают принципиальные технические решения крепления не несущих (самонесущих) стен из полистиролбетона (монолитного или сплошных блоков) к несущим конструкциям здания (монолитным железобетонным перекрытиям, колоннам, железобетонным стенам - поперечным внутренним и наружным).

Основной способ крепления состоит в забивке в полистиролбетон блоков стальных монтажных элементов, которые представляют собой штыри прямоугольного сечения с одним заостренным концом (забиваемым в блоки) и другим - пристреливаемым дюбелями к деталям железобетонных несущих конструкций.

Возможно соединение штырей с монолитным железобетонным перекрытием без использования дюбелей. Для этого в перекрытии высверливаются технологические "окна", через которые в расположенные ниже полистиролбетонные элементы забивают стальные штыри круглого сечения с заостренным концом. Затем штыри замоноличивают, заполняя "окна" цементно-песчаным раствором.

При расчете стен на ветровые нагрузки усилия на монтажные элементы (штыри) находят при учете положительного давления ветра (аэродинамический коэффициент С=0,8) и отрицательного давления ветра (С=-2) в соответствии с требованиями СНиП 2.01.07-85 "На грузки и воздействия". В этом случае полистиролбетон рассматривается как упругое основание, а часть штыря, через которую передается давление на полистиролбетон, как балка на этом основании.

Расчет должен обеспечивать прочность полистиролбетона на смятие под поверхностью штырей, передающих давление от ветровой нагрузки, а также прочность самих штырей на изгиб. Методика и примеры расчета приведены в "Рекомендациях по проектированию энергоэффективных ограждающих конструкций зданий системы "Юникон".

При полном (без свесов) опирании полистиролбетонных блоков на перекрытие (в стенах с кирпичным фасадом) стальные монтажные пластинчатые (прямолинейные и П-образные) элементы, забиваются в полистиролбетон через термовкладыши (Н 14-1).

Крепление ненесущих полистиролбетонных стен к перекрытию или консолям несущих железобетонных стен при неполном опирании полистиролбетонных блоков производится с помощью Г-образных стальных пластинчатых элементов, забиваемых в полистиролбетонные блоки и пристреливаемые дюбелями к перекрытию (Н14-3).

Крепление ненесущих полистиролбетонных стен к несущим внутренним железобетонным поперечным стенам производится посредством Г-образных перфорированных стальных пластин толщиной 4 мм, прикрепляемых одним концом дюбелями к железобетону и располагаемых другим концом в горизонтальных клеевых швах кладки из полистиролбетонных блоков (Н14-5-1 и Н14-5-3).

Крепление к колоннам осуществляется прямолинейными пластинчатыми монтажными элементами (Н14-5-2).

НОРМАЛЬ Н15. КРЕПЛЕНИЕ НАВЕСНОГО ОБОРУДОВАНИЯ К СТЕНАМ ИЗ ПОЛИСТИРОЛБЕТОНА

 

НОРМАЛЬ H16. КРЕПЛЕНИЕ НАВЕСНЫХ УСТРОЙСТВ К ФАСАДАМ СТЕН ИЗ ПОЛИСТИРОЛБЕТОНА

ПОЯСНЕНИЯ К НОРМАЛЯМ Н15 - Н16

Нормаль Н15 дает примеры технических решений крепления навесного оборудования внутренней стороны полистиролбетонных стен.

Крепление навесного отопительного оборудования осуществляется при использовании рамных пластмассовых дюбелей со стальными шурупами. При нагрузках от отопительного оборудования достаточны только крепления с помощью дюбелей, которые устанавливаются в просверленные отверстия на монтажной пене. При производстве работ следует обеспечить полное заполнение монтажной пены между дюбелем и полистиролбетоном. Для этого просверленное отверстие, например Ø20 мм заполняется монтажной пеной, в него вставляется рамный дюбель, например типа FUR 10х160Т, который не следует трогать до полного затвердения монтажной пены. Только после затвердения монтажной пены производится установка отопительного оборудования (конвекторов), закрепляемых стальными шурупами, или вкручивание специальных кронштейнов для подвески радиаторов.

Расчетные нагрузки и рекомендуемые крепежные элементы в стенах из полистиролбетона приведены в Приложении 4.

Расчетные усилия на крепежные элементы при установке навесного оборудования принимаются с понижающими коэффициентами надежности, зависящими от типа усилия (осевое выдергивание или изгиб шурупа) типа крепежного элемента, а также на какой стороне стены (внутренней или фасадной) закрепляется оборудование. Самые высокие коэффициенты запаса приняты для заделки крепежных элементов насухо на фасадной стороне стены при расчете их на осевое выдергивание.

Нормаль Н16 дает примеры технических решений крепления устройств (кондиционеры, телевизионные тарельчатые антенны, растяжки и др.) к фасадам полистиролбетонных стен.

Один из вариантов технического решения крепления растяжек на фасаде предусматривает устройство дюбеля в плите перекрытия для винтов с метрической резьбой М12 и вин та с оцинкованным кольцом DIN 444 12х98/90.

Для стен, оштукатуренных с внешней стороны, возможно крепление кронштейнов с помощью универсальных рамных дюбелей типа РЦК 10х1605 с их установкой на монтажной пене. Надежное закрепление устройств обеспечивается тем, что верхние дюбели закрепляются в торце железобетонного перекрытия.

НОРМАЛЬ Н17. УТЕПЛЕНИЕ ПОКРЫТИЙ ЗДАНИЙ С ИСПОЛЬЗОВАНИЕМ МОНОЛИТНОГО ПОЛИСТИРОЛБЕТОНА

НОРМАЛЬ 18. УТЕПЛЕНИЕ ЧЕРДАЧНОГО ПЕРЕКРЫТИЯ С ИСПОЛЬЗОВАНИЕМ ПЛИТНОГО ПОЛИСТИРОЛБЕТОНА

НОРМАЛЬ Н19. УТЕПЛЕНИЕ ПЕРЕКРЫТИЯ НАД ХОЛОДНЫМИ ПОДВАЛАМИ (ПОДПОЛЬЯМИ, ПРОЕЗДАМИ) С ИСПОЛЬЗОВАНИЕМ ПЛИТНОГО ПОЛИСТИРОЛБЕТОНА

ПОЯСНЕНИЯ К НОРМАЛЯМ Н17-Н19

Нормали Н17 - Н19 дают технические решения утепления кровельных покрытий зданий, чердачных перекрытий и перекрытий над холодными подвалами (подпольями, проезда ми) из монолитного полистиролбетона и полистиролбетонных теплоизоляционных плит.

Для утепления используется полистиролбетон плотностью 150-200 кг/м3, марки по прочности на сжатие М2-М5.

Толщина теплоизоляционного слоя (число слоев теплоизоляционных плит) определяется теплотехническим расчетом по СНиП 23-02-2003 "Тепловая защита здания" и МГСН 2.01-99 "Энергосбережение в зданиях".

Гидроизоляционный ковер кровельного покрытия укладывается по теплоизоляционному слою из монолитного полистиролбетона с выполнением выравнивающей растворной стяжки толщиной не более 5 мм. Использование монолитного полистиролбетона позволяет организовать уклоны для внутреннего водостока (Н17).

Для сведения к минимуму потерь тепла из внутреннего помещения под железобетонным перекрытием через кирпичный парапет предусматривается использование полистиролбетонных доборных элементов толщиной 100-120 мм плотностью D250-D300, на которые опирается кирпичная кладка парапета. Для обеспечения устойчивости кирпичного парапета используются хомуты из стальной проволоки Ø6-8 A-I одним концом закрепляемые в горизонтальном шве кирпичной кладки, а другим - крепящиеся дюбелями к железобетонному перекрытию. Шаг хомутов не более 2 м.

При утеплении полистиролбетоном перекрытия неотапливаемого чердака на теплоизоляционный слой укладывается армированная растворная стяжка толщиной 15-25 мм, распределяющая на полистиролбетон нагрузку от людей и оборудования в чердачном помещении (Н18).

Нагрузки от людей и оборудования, передаваемые на перекрытие над неотапливаемым подвалом (холодным подпольем, проездом), могут быть значительными. Поэтому по теплоизоляционному слою из полистиролбетона плотностью D200 требуется выполнение армированной цементно-песчаной стяжки толщиной 40...50 мм (Н19).

Во всех приведенных вариантах теплоизоляционный слой из полистиролбетона укладывается на железобетонное перекрытие по слою пароизоляции, предохраняющей полистиролбетон от увлажнения.

НОРМАЛЬ Н20. УЗЛЫ ОПИРАНИЯ КИРПИЧНОЙ КЛАДКИ И КРИВОЛИНЕЙНОЙ ПЕРЕМЫЧКИ В ЗДАНИЯХ С КРИВОЛИНЕЙНЫМ (Rкр<12 м) ФАСАДОМ (ВЕРТИКАЛЬНЫЙ И ГОРИЗОНТАЛЬНЫЙ РАЗРЕЗЫ)

ПОЯСНЕНИЯ К НОРМАЛИ Н20

В зданиях с криволинейным кирпичным фасадом кладка из облицовочного кирпича в надпроемных участках опирается на гнутый стальной уголок 100х100х8, который имеет опорные пластины из стального листа (аналогично решению, показанному на листе 30) и в обязательном порядке закрепляется на расстоянии не более I м по горизонтали в перемычку с использованием дюбеля FUR 8х80Т на монтажной пене.

В зданиях с криволинейными фасадами с радиусом кривизны более 12 м в надпроемных участках возможно использование обычных (прямоугольных) полистиролбетонных блоков и перемычек, выпускаемых ЗАО "Юникон-ЗСК" (см. листы Номенклатура полистролбетонных изделий ЗАО «Юникон-ЗСК»).

В зданиях с наружными криволинейными кирпичными фасадами радиусом кривизны менее 12 м рекомендуется использование монолитных криволинейных или сборных полистиролбетонных перемычек.

В нормали Н20 приведен вариант технического решения крепления сборной криволинейной перемычки, не допускающего ее опрокидывания, с использованием стального уголка, приваренного к закладной детали в монолитном железобетонном перекрытии. На этот уголок перемычка опирается серединой верхней части наружной грани.

ПРИЛОЖЕНИЕ 1.

 ВЫПИСКА ИЗ ТУ 5741-159-00284807-96 (с изм. 1, 2, 3, 4) "БЛОКИ ИЗ ПОЛИСТИРОЛБЕТОНА СТЕНОВЫЕ СПЛОШНЫЕ"

Настоящие Технические условия распространяются на блоки стеновые сплошные далее блоки) из полистиролбетона, изготавливаемые на ЗАО «Юникон-ЗСК». Блоки предназначены для кладки ненесущих, самонесущих и несущих наружных стен жилых и общественных зданий с нормальным влажностным режимом помещений.

Обязательные требования к качеству блоков, обеспечивающие их экологическую и пожарную безопасность, изложены в п.п .2.3.8, 2.9, 3.5, 4.7, 4.8, 6.3, 6.5 настоящих технических условий.

Блоки обозначаются марками в соответствии ГОСТ 23009-78. Марка блока состоит из двух буквенно-цифровых групп, разделенных дефисом.

Для блоков всех типов (кроме перемычек) в первой группе указывают сокращенное наименование, вид и тип блока, а во второй группе - класс полистиролбетона по прочности на сжатие и его марку по средней плотности.

Для перемычек в первой группе укалывают сокращенное наименование изделия, а во второй группе - длину в см, тип поперечного сечения и через наклонную черту - расчетную нагрузку в кгс/м.

Пример условного обозначения рядового блока типа 6 из полистиролбетона класса по прочности на сжатие В0,35 и марки по средней плотности D250:

СБР6-В0.35 0250 ТУ 5741-159-00284807.96

(Изм.4)

Пример условного обозначения перемычки II-го типа поперечного сечения длиной 240 см под расчетную нагрузку 50 кгс/м:

СБП-240.П/50 ТУ 5741-159-00284807-96

(Изм.4)

Требования к использованию условных обозначений блоков изложены в п.п. 2.7 и 3.8.

1. Типы, основные параметры и размеры

1.1 Блоки подразделяют на четыре вида:

СБР - рядовые;

СБПр - простеночные (с четвертями);

СБД - доборные;

(Изм.4)

СБП - перемычечные (перемычки).

Перемычки подразделяют на следующие основные типы по размерам поперечного сечения (ширина × высота):

140×295 мм - тип II;

180×235 мм-тип III;

140×235 мм-тип IV;

115×295мм-тип V1,

1.2 Форма, типы, основные параметры и размеры блоков основной номенклатуры должны соответствовать указанным в Приложениях А и Б. (Изм.4)

Таблица 1 перенесена в Приложение Б (таблица Б1)

(Изм.4)

(См. номенклатуру листы 14-20)

2. Технические требования

2.1 Блоки следует изготовлять в соответствии с требованиями настоящих Технических условий по технологическому регламенту и ТИ 011.0-4-00284807-01, утвержденным изготовителем, и рабочих чертежей, приведенных в Приложении А, а также рабочих чертежей перемычек (шифр 22-2000 и шифр 22-2000К).            

(Изм. 4)

2.2 Стальные формы для изготовления блоков должны удовлетворять требованиям ГОСТ 25781-83.

2.3 Требования к полистиролбетону:

2.3.1 Полистиролбетон (ПСБ), применяемый для изготовления блоков, должен удовлетворять требованиям ГОСТ Р 51263-99. (Изм.2)

2.3.2 Класс полистиролбетона по прочности на сжатие в зависимости от назначения блоков принимают: В0,35; В0,5; В0,75; В1,0; В1,5; В2,0. (Изм.2)

Значение нормируемой отпускной прочности следует принимать равным 80% от класса полистиролбетона по прочности на сжатие для блоков СБР, СБПр и СБД и 90% для перемычек. (Изм. 1, 2 и 4)

фактическая прочность полистиролбетона (проектная и отпускная) не должна быть ниже требуемой, определяемой по ГОСТ 18105-86 в зависимости от среднего партионного коэффициента вариации по прочности на сжатие - Vп. Величину требуемой прочности принимают по ГОСТ 18105-86 как для ячеистого бетона согласно таблицы Г1, приведенной в приложении Г. (Изм.4)

2.3.3. Марку полистиролбетона по средней плотности принимают; D250; D300; D350; D400; D450; D500 в зависимости от назначения блоков. (Изм. 4)

Фактическая средняя плотность полистиролбетона не должна превышать значений номинальной величины (марки) не более чем на 10% для блоков с маркой по средней плотности D250-D300, 8% для блоков D350-D400 и 6% для блоков D450-D500. (Изм. 1, 4)

2.3.3.а. Объем межзерновых пустот - по ГОСТ Р 51263-99. (Изм. 4)

2.3.4. Предел прочности на растяжение при изгибе должен быть не менее, МПа: 0,25 - для класса В0,35; 0,35 - для В0,5; 0,5 - для В0,75; 0,6 – для В1,0; 0,65 - для В1,5; 0,7 - для В2,0.

(Изм. 1, 2)

2.3.5. Классы по прочности на сжатие и марки по морозостойкости для полистиролбетона в блоках конкретных видов в зависимости от значений среднего партионного коэффициента вариации по прочности на сжатие назначают с учетом требований таблицы 1а. (Изм. 1, 4)

Таблица 1а

Марка полистиролбетона по средней плотности

Класс полистиролбетона по прочности на сжатие при значениях среднего партионного коэффициента вариации по прочности

Марка полистиролбетона по морозостойкости при значениях среднего партионного коэффициента вариации по прочности

более 12%

12% и менее

более 12%

12% и менее

D250

D300

D350

D400

D450

D500

В0,35

В0,5

В0,75

В0,75

В1

В1,5

В0,35

В0,5

В0,75

В1

В1,5

В2

F25; F35

F35

F35; F50

F50

F50; F75

F75

F35

F35; F50

F50

F50; F75

F75

F75; F100

 

2.3.6. При значениях среднего партионного коэффициента вариации Vp=12% и менее требуемые значения прочности полистиролбетона (отпускной и в проектном возрасте) устанавливаются в соответствии ГОСТ 18105-86 и должны быть не менее значений указанных в таблице 1б. (Изм. 4)

2.3.7. Отпускная влажность полистиролбетона в процентах по объему не должна превышать следующих значений: для D250-6; для D300-7; для D350-8; для D400-10, для D450-11 и для D500-12. (Изм. 2, 4)

 

Таблица 1б

Класс полистиролбетона по прочности на сжатие

Минимальные значения требуемой прочности на сжатие полистиролбетона при значениях среднего партионного коэффициента вариации 12% и менее, МПа

отпускной

в проектном возрасте

для блоков СБР, СБПр и СБД

для перемычек

В0,35

В0,5

В0,75

В1

B1,5

В2

0,33

0,47

0,7

0,94

1,4

1,87

-

0,53

0,79

1,05

1,58

2,11

0,41

0,58

0,88

1,17

1,76

2,34

 

2.3.7а. Коэффициент теплопроводности полистиролбетона в сухом состоянии при температуре 25°С не должен более чем на 10% превышать значений, приведенных в таблице 1в. Расчетные теплотехнические показатели полистиролбетона приведены в Приложении В. (Изм.4)

Таблица 1в

Марка полистиролбетона по средней плотности

Коэффициент теплопроводности в сухом состоянии, Вт/(м°С), при значениях среднего партионного коэффициента вариации по прочности на сжатие

более 12%

12% и менее

D250

D300

D350

D400

D450

D500

0,075

0,085

0,095

0,105

0,115

0,135

0,073

0,079

0,090

0,099

0,108

0,116

 

2.3.8. Требования безопасности и охраны окружающей среды:

2.3.8.1. Требования безопасности и охраны окружающей среды к материалам, применяемым для приготовления полистиролбетона, - по действующим стандартам и техническим условиям на эти материалы согласно п.2.3.1 настоящих Технических условий.

2.3.8.2. Требования безопасности изготовления и применения полистиролбетонных блоков - по настоящим Техническим условиям, технологической инструкции ТИ 011.0-4-00284807-01, предусматривающим комплекс мероприятий по обеспечению экологической безопасности применения полистиролбетонных изделий и конструкций из них в жилищном строительстве.

2.3.8.3 Блоки полистиролбетонные, изготовленные в соответствии с требованиями п.п.2.1 и 2.3.1 настоящих Технических условий, экологически безопасны. Выделение вредных примесей не превышает ПДК, утвержденных Госкомсанэпиднадзором РФ.

2.3.8.4. Исключен. (Изм.1)

2.4. Требования к точности геометрических параметров блоков:

2.4.1. Требования к точности геометрических параметров блоков обеспечиваются точностью изготовления металлических форм или калибровкой.

2.4.2. Значения действительных отклонений габаритных размеров блоков, приведенных рабочих чертежах (Приложение А) и таблице Б.1, не должны превышать предельных, указанных в таблице 2.

Таблица 2

Габаритные размеры

Предельные отклонения, мм

Блоки СБР и СБПр

Блоки СБД и СБП

Длина, L

±2,5

±2,5

Высота, Н

+0,5; -1,5

±2,0

Ширина (толщина), В

±1,0

±1,5

 

Примечание. Предельные отклонения для блоков СБР и СБПр по высоте и ширине указаны для условий их укладки в стенах толщиной 293 мм, при толщине в стене 375 мм (высота 293 мм) допуски по высоте составляют ±1 мм, по ширине (толщине) +0,5; -1,5 мм. (Изм.4)

 

2.4.3. Значения действительных отклонений геометрических параметров блоков (кроме указанных в п.2.4.2), не должны превышать предельных указанных в табл.2а. (Изм. 1, 2, 4)

 

Таблица 2а

Вид отклонения геометрического параметра

Геометрический параметр

Предельное отклонение, мм

Линейные (негабаритные) размеры - только для блоков типа СБПр

Размеры четвертей

±1

Отклонение от прямолинейности

Прямолинейность профиля калиброванных поверхностей:

 

на участке длиной 1000

1,0

на всей длине блока

2,0

некалиброванных поверхностей:

 

предназначенных для склеивания:

 

на участке длиной 1000

2,0

на всей длине блока:

 

до 1500

3,0

свыше 1500

4,0

предназначенных под отделку:

 

на участке длиной 1000

5,0

на всей длине блока:

 

до 1500

7,0

свыше 1500

8,0

Отклонение от перпендикулярности

Перпендикулярность граней смежных плоскостей на участке длиной 300

1,0

Отклонение от плоскостности

Плоскостность лицевых поверхностей при измерениях от условной плоскости, проходящей через три угловые точки блока (перемычки) длиной

 

до 1,2м

1,0

свыше 1,2м до 2,1 м

1,5

свыше 2.1 м до 3,0 м

2,0

 

2.5. Требования к качеству поверхности, внешнему виду и массе блоков.

2.5.1. Размеры раковин и местных выемок на поверхностях блоков не должны превышать указанных в таблице 3.

 

Таблица 3 в миллиметрах

Раковины

Местные выемки

диаметр

глубина

наибольший размер на поверхности

глубина

30

7

40

5

 

2.5.2. Глубина повреждений ребер не должна быть более 5 мм, их длина на 1 м ребра не более 50 мм.

2.5.3. Глубина повреждения углов блоков не должна быть более 15 мм. (Изм. 1)

2.5.4. В бетоне блоков не должно быть трещин за исключением местных, поверхностных, усадочных и других технологических трещин шириной не более 0,1 мм.

2.5.5. На поверхности блоков жировые пятна не допускаются.

2.5.6. В блоках допускается размещение деревянных калибровочных элементов, выходящих на наружную поверхность, без последующей заделки их торцов на поверхности готовых изделий. Количество элементов в одном блоке не более двух. Размер сечения калибровочного элемента не более 40мм. (Изм.4)

2.6. Требования к армированию перемычек.

2.6.1. Для армирования перемычек следует применять сварные каркасы и сетки, изготовленные из стали видов и классов, указанных в альбоме рабочих чертежей (шифр 22-2000 и шифр 22-2000К). (Изм.4)

2.6.2. Арматурная сталь должна удовлетворять требованиям стандартов или технических условий на эти стали.

2.6.3. Форма и размеры каркасов, сеток и их положение в перемычках должны соответствовать указанным в рабочих чертежах.

2.6.4. Величина защитного слоя бетона должна быть не менее 20 мм.

2.7. Маркировка

2.7.1. Маркировку блоков следует производить по ГОСТ 13015.2-81.

2.7.2. Маркировку следует наносить на боковой поверхности несмываемой краской. Допускается наносить на блоки сокращенное обозначение марки с указанием номера партии.

2.7.3. На сертифицированные блоки наносят знак соответствия по ГОСТ Р 50460-92.

2.7.4. При поставках, блоков в контейнерах маркировке подлежат не менее 1/6 от их количества в контейнере. При этом с каждой стороны контейнера должна быть видна маркировка как минимум на одном блоке.

2.7.5. Для перемычек дополнительно на верху торцевой и одной из боковых граней наносится надпись "Верх". (Изм.4)

2.8. Комплектность

В случаях, предусмотренных в рабочих чертежах или заказе, блоки поставляются комплектно. (Изм.1)

2.9. Требования к пожарно-техническим характеристикам продукции:

2.9.1. В соответствии со СНиП 21-01-97* пожарная опасность блоков стеновых сплошных из полистиролбетона определяется следующими пожарно-техническими характеристиками: горючестью, воспламеняемостью, дымообразующей способностью.

2.9.2. Пожарно-технические характеристики продукции:

Блоки и перемычки из полистиролбетона стеновые сплошные (марка 0250-0500):

группа горючести Г 1 (слабогорючие) по ГОСТ 30244-94;

группа воспламеняемости В 1 (трудновоспламеняемые) по ГОСТ 30402-96;

группа дымообразующей способности:

D 250 – Д 2 (умеренная дымообразующая способность) по ГОСТ 12.1.044-89;

D 300-D 500 – Д 1 (малая дымообразующая способность) по ГОСТ 12.1.044-89.

(Изм.4)

2.9.3. Пожарно-технические характеристики блоков должны соответствовать протоколу сертификационных испытаний.

2.9.4. Пожарно-технические характеристики определяют: каждые три года, и/или при постановке продукции на производство, и/или при изменениях в составе продукции или технологии изготовления.

2.9.5.При сертификации продукции периодичность испытаний определяется требованиями Системы сертификации ГОСТ Р в строительстве и/или Системы сертификации в области пожарной безопасности.

4. Методы контроля

4.1. Размеры, отклонения от прямолинейности, неплоскостности и перпендикулярности, ширину раскрытия трещин, размеры раковин и наплывов проверяют методами, установленными ГОСТ 26433.0-85 и ГОСТ 26433.1-89. (Изм.4)

4.2. Контроль глубины повреждения ребер и углов проводят по методике ГОСТ 21520-89.

4.3. Прочность бетона на сжатие и растяжение при изгибе определяют по ГОСТ 10180-90.

4.4. Определение средней плотности полистиролбетона и отпускной влажности изделий производят по ГОСТ 12730.1-78 и ГОСТ 12730.2-78 на образцах, предназначенных для определения прочности бетона по п.4.3. Сушку бетона производят при температуре не выше 80°С.

4.4.а. Объем межзерновых пустот в уплотненной полистиролбетонной смеси определяют испытанием затвердевших образцов по методике ГОСТ 12730.4-78 (объем открытых пор).

(Изм. 4)

4.5. Морозостойкость полистиролбетона определяют по ГОСТ 10060.0-95 и ГОСТ 10060.1-95. (Изм.2)

4.6. Теплопроводность полистиролбетона определяют по ГОСТ 7076-99.

4.7. Группу горючести полистиролбетона блоков определяют по ГОСТ 30244-94, группу воспламеняемости - по ГОСТ 30402-96, дымообразующую способность - по ГОСТ 12.1.044-89. (Изм.1)

4.8. Экологическую безопасность полистиролбетона определяют по методике Госкомсанэпиднадзора РФ № 03-92, утв. 13.03.92г.

5. Транспортирование и хранение

5.1. Транспортировать и хранить блоки следует в соответствии с требованиями ГОСТ 13015.4-84 и настоящих Технических условий.

5.2. Транспортировку и хранение блоков следует производить в штабелях. Число рядов блоков в штабеле должно быть не более шести. Хранение блоков на складе допускается по высоте не более 2-х штабелей. Штабели должны быть защищены от атмосферных осадков по периметру полиэтиленовыми, лавсановыми и другими видами пленочных покрытий.

(Изм.2)

5.3. Запрещается производить погрузку блоков навалом и разгрузку их сбрасыванием.

5.4. Погрузку, разгрузку и транспортирование блоков можно осуществлять как поштучно, так и целиком штабелями. При этом должны быть приняты меры, исключающие механические повреждения изделий или их падение. Рекомендуется при транспортировании применять инвентарные контейнеры.

5.5. При погрузке, разгрузке, транспортировке и хранении перемычек должно соблюдаться их положение относительно вертикальной оси, определяемое надписью "Верх".

5.6. При перевозке блоки следует укладывать правильными рядами продольной осью в направлении движения транспортных средств.

5.7. Блоки следует хранить на складе, рассортированными по маркам и укладывать при хранении так, чтобы были видны маркировочные надписи.

6. Указания по применению

6.1 .При монтаже наружных стен блоки укладывают вручную без кранового оборудования по технологическому регламенту, согласованному с разработчиком настоящих ТУ.

(Изм.4)

6.2. Монтаж стен из полистиролбетонных блоков должен производиться на клеевых составах типа 26ЯМ по ТУ 5745-013-05668056-99, или типа ТМ-17М по ТУ 5745-001-46478149-99, или типа ЮК-1М по ТУ 5772-001-58251652-2002. (Изм.4)

6.3. Обеспечение экологической безопасности применения полистиролбетонных блоков в жилищном строительстве по ТИ 011.0.-4-00284807-01.

6.4. Допускается обработка - резка и штробовка блоков (кроме перемычек) на строительной площадке.             (Изм.4)

6.5. Условия применения полистиролбетона по пожарной безопасности в ограждающих конструкциях жилых и общественных зданий определены совместным письмом (Заключением) от 25.12.2000г. Госстроя России (№ 9-18/664) и МВД России (№ 20/22/4578).

(Изм. 2, 4)

ПРИЛОЖЕНИЕ В (Справочное)

Расчетные теплотехнические показатели полистиролбетонов

Таблица В-1

Марка по средней плотности

Расчетные коэффициенты при условиях эксплуатации

теплопроводности, Вт/(м° С)

Паропроницаемости (А,Б), мг/(мчПа) по обычной и спецтехнологии

А

Б

обычный 

приготовленный по специальной технологии

обычный

приготовленный по специальной технологии

250

0,085

0,082

0,090

0,087

0,110

300

0,095

0,090

0,105

0,096

0,100

350

0,110

0,102

0,120

0,112

0,090

400

0,120

0,114

0,130

0,124

0,085

450

0,130

0,122

0,140

0,130

0,080

500

0,140

0,131

0,155

0,148

0,075

(Изм.4)

Примечания: 1.Расчетная массовая влажность: для условий эксплуатации А-4% для обычного полистиролбетона и 3,5 % для полистиролбетона, изготовленного по спецтехнологии; для условий эксплуатации Б - 8 % для обычного полистиролбетона и 7 % для полистиролбетона, изготовленного по спецтехнологии.

2.Удельная теплоемкость - 1,06 кДж/(кг°С)

ПРИЛОЖЕНИЕ 2.

 ВЫПИСКА ИЗ ТУ 5760-160-00284807-96 (с изм. 1,2) "ПЛИТЫ ПОЛИСТИРОЛБЕТОННЫЕ ТЕПЛОИЗОЛЯЦИОННЫЕ"

Настоящие технические условия распространяются на плиты полистиролбетонные теплоизоляционные (далее - плиты), изготовляемые на опытно-производственной базе ВНИИжелезобетона (с 03.11.2000 г. - ЗАО "Юникон-ЗСК") и предназначаемые для тепло изоляции строительных ограждающих конструкций (стен, покрытий, кровли) в зданиях различного назначения с обеспечением экологической безопасности применения плит в жилищном строительстве по ТИ 011.0-4-00284807-01. (Изм. 2)

Плиты обозначают марками в соответствии с требованиями ГОСТ 23009-78. Марка плиты состоит из двух буквенно-цифровых групп, разделенных дефисом.

В первой группе указывают сокращенное наименование (вид) плиты и размеры в дм, во второй - марку полистиролбетона по средней плотности и вид бетона.

Пример условного обозначения (марки) плиты теплоизоляционной длиной 15 дм, шириной 9 дм, толщиной 1 дм из полистиролбетона марки по средней плотности D200 при заказе:

ПТ 9.6.1-Р200 ПСБ ТУ 5760-160-00284807-96 (Изм. 2)

1.Основные параметры в размеры

1.1.Плиты изготовляют в форме прямоугольного параллелепипеда с размерами: по длине и ширине кратными модулю 3М, по толщине - модулю М/5.

Основные размеры плит приведены в табл. 1.

 

Таблица 1 в мм

Марка

Сокращенное обозначение

Размеры, мм

Марка по прочности

Марка по средней плотности

Масса изделий

длина

ширина

толщина

ПТ9.6.1-D150

ПТ-2

900

600

100

М2

D150

10,3

ПТ9.6.1-D175

ПТ-2

900

600

100

М2; М2,5

D175

11,9

ПТ9.6.1-D200

ПТ-2

900

600

100

М2; М2,5

D200

13,5

ПТ6.6.0,8-D175

ПТ-1

600

600

80

М2

D175

6,4

ПТ6.6.0,8-D200

ПТ-1

600

600

80

М2,5

D200

7,2

(Изм. 2)

 

Примечания:

1. Допускается по согласованию с потребителем изготовление плит других размеров.

2. При необходимости плиты по толщине могут быть склеены.

3. Плиты могут быть изготовлены формованием или путем резки плит больших размеров.

2.Технические требования

2.1. Плиты следует изготовлять в соответствии с требованиями настоящих технических условий, по технологическому регламенту и технологической инструкции ТИ 011.0-4-00284807-01, утвержденным изготовителем.

2.2. Требования к полистиролбетону

2.2.1. Полистиролбетон (ПСБ), применяемый для изготовления плит, должен удовлетворять требованиям ГОСТ Р 51263-99 и настоящих ТУ (Изм. 1)

2.2.2. Марки по средней плотности полистиролбетона плит - D150, D175, D200. Предельные отклонения -5; +10% для плит плотностью 0150 и 0175 и -3,5;+10% для плит плотностью D200.

2.2.3. Значения физико-механических показателей полистиролбетон плит должны соответствовать указанным в табл.2. Расчетные теплотехнические показатели приведены в Приложении Б. (Изм. 1)

 

Таблица 2

Наименование показателей

Единица измерения

Значения

D150

D175

D200

Предел прочности в проектном возрасте на сжатие, не менее

МПа

0,2

0,22

0,25

Предел прочности на растяжение при изгибе, не менее

МПа

0,08

0,085

0,09

Коэффициент теплопроводности в сухом состоянии

Вт/(м °С)

0,055

0,06

0,065

Отпускная влажность по объему, не более

%

4

4,5

5

Отпускная прочность, не менее

МПа

0,18

0,2

0,23

Марка по морозостойкости, не менее

-

-

F25

F25

 

Примечание - Допускается превышение фактических значений коэффициента теплопроводности по сравнению с номинальными значениями, приведенными в табл.2, на 10%.

(Изм. 1)

 

2.3. Требования к точности геометрических параметров плит, внешнему виду и качеству поверхностей.

2.3.1. Требования к точности геометрических параметров плит обеспечивают их изготовлением в металлических формах, удовлетворяющих требованиям ГОСТ 25781-83.

2.3.2 Значения действительных отклонений геометрических параметров от указанных в табл. 1, не должны превышать, в мм:

по длине +5, -10; по ширине ±5; по толщине ±3.

2.3.3. Отклонения по прямолинейности профиля плиты на всю длину не должно превышать 3 мм.

2.3.4. Отклонение от перпендикулярности граней смежных плоскостей не должно превышать 3 мм на 500 мм длины грани.

2.3.5. Разность длин диагоналей - не более 5 мм.

2.3.6. На поверхности плиты не допускаются раковины глубиной и наплывы высотой более 5 мм.

2.3.7. Размеры отбитостей и притупленностей углов и ребер плиты не должны превышать 30 мм по длине и 20 мм по глубине. Общая длина отбитостей не должна превышать 15% от длины периметра наибольшей из граней плиты.

2.4. Маркировка.

2.4.2. На боковой грани одной из 10 плит должна быть наклеена этикетка или нанесены несмываемой краской: штамп ОТК, вид и марка плиты.

2.6. Требования по пожарно-техническим характеристикам продукции.

2.6.2. Пожарно-технические характеристики плит полистиролбетонных теплоизоляционных по ТУ 5760-160-00284807-96 (марки по плотности П150-0200) должны соответствовать следующим:

- группа горючести по ГОСТ 30244 – Г 1;

- группа воспламеняемости по ГОСТ 30402 – В 2;

- группа дымообразующей способности по ГОСТ 12.1.044 (п.2.14.2 и п.4.18) –Д 2.

2.6.4. Пожарно-технические характеристики определяют: каждые три года, и/или при постановке продукции на производство, и/или при изменениях в составе продукции или технологии изготовления.

5. Транспортирование и хранение

5.1. Транспортирование и хранение - по ГОСТ 13015.4-84 и настоящим техническим условиям.

5.2. Плиты следует хранить раздельно по маркам, уложенными на деревянные поддоны или в контейнеры плашмя штабелями. Высота штабеля - не более 1,2 м. При хранении плиты должны быть защищены от атмосферных осадков - хранение в крытых складах или защита полиэтиленовой, лавсановой и другими видами пленочных покрытий

5.3. При погрузке, выгрузке, хранении и транспортировании должны быть приняты меры, предохраняющие плиты от механического повреждения.

5.4. Отгрузка плит потребителю производится не ранее, чем через двое суток выдержки на складе готовой продукции.

5.5. Транспортирование производится в соответствии с правилами перевозки грузов, действующими на соответствующих видах транспорта.

7. Указания по применению

7.1. При монтаже плиты укладывают вручную, при необходимости склеивают согласно технологическому регламенту, утвержденному изготовителем.

7.2. Для склеивания плит применяют композиции клеевые минеральные типа ТМ-17 ТУ 5745-001-46478149-99, типа 26 ЯМ ТУ 5745-013-05668056-99.    (Изм. 2)

7.3. Допускается обработка - резка плит на строительной площадке.

7.4. Обеспечение экологической безопасности применения полистиролбетонных плит в жилищном строительстве – по ТИ011.0-4-00284807-01. (Изм. 2)

Приложение Б (справочное)

Расчетные теплотехнические показатели полистиролбетона в теплоизоляционных плитах

Таблица Б1

Марка по средней плотности

Расчетные коэффициенты

теплопроводности Вт/(м °С), при условиях эксплуатации

паропроницаемости (А, Б), мг/(м ч Па)

А

Б

D150

0,057

0,060

0,135

D175

0,064

0,068

0,128

D200

0,070

0,075

0,120

 

Примечания:

1. Расчетное массовое отношение влаги в материале при условиях эксплуатации

 

А - 4%

Б - 8%

 

2. Удельная теплоемкоемкость - 1,06кДж/(кг°С)

 

ПРИЛОЖЕНИЕ 3.

ИСХОДНЫЕ ДАННЫЕ ДЛЯ ПРОЕКТИРОВАНИЯ ОГРАЖДАЮЩИХ КОНСТРУКЦИЙ ЗДАНИЙ СИСТЕМЫ "ЮНИКОН"

1. Расчет ограждающих конструкций по несущей способности

Основные положения по расчету

1.1. Ограждающие конструкции из полистиролбетона (из стеновых сплошных блоков и монолитные) рассчитываются в соответствии с подходом СНиП 2.03.01-84* "Бетонные и железобетонные конструкции". При этом влияние клеевых швов между стеновыми блоками учитывается с помощью коэффициента условий работы К<1, на который умножаются расчетные сопротивления полистиролбетона. При расчете монолитных стен коэффициент условий работы К=1.

1.2. При расчете стен из кладки с применением сплошных полистиролбетонных блоков коэффициент условий работы К<1 учитывает особенности работы кладки из этих блоков на клеевой композиции при толщине швов 2...4 мм. В отличие от кладки из кирпича или блоков из обычных легких бетонов на растворе, в кладке из полистиролбетонных блоков прочность клеевого шва существенно выше прочности самого полистиролбетона. В результате при нагружении кладки разрушение происходит не по шву, а по телу полистиролбетона в пришовной зоне, как правило, на расстоянии 2-3 см от клеевого шва. Это связано с неравномерным нагружением полистиролбетона и образованием концентраций напряжений на отдельных участках этой зоны, что является причиной снижения прочности и повышения деформативности кладки по сравнению с монолитным полистиролбетоном.

1.3. На основе опытных данных принято: при расчете кладки из сплошных блоков на клеевой композиции расчетное сопротивление сжатию полистиролбетона Rв, умножают на коэффициент К=0,7; сопротивление полистиролбетона осевому растяжению Rвt и растяжению при изгибе Rвtf умножают на коэффициент К=0,85; начальный модуль упругости кладки Ео равен начальному модулю упругости полистиролбетона Ев, умноженному на коэффициент 0,8.

1.4. При расчете полистиролбетонных конструкций по формулам СНиП 2.03.01-84* значения коэффициентов условий работы, учитывающих вид бетона, принимаются таки ми же, как для ячеистых бетонов.

1.5. При проектировании ограждающих конструкций системы "Юникон" различают обычный полистиролбетон, расчетные характеристики которого приведены в ГОСТ Р 51263-99 "Полистиролбетон. Технические условия"; и модифицированный полистиролбетон с улучшенными теплотехническими характеристиками, повышенной прочностью и морозостойкостью, изготавливаемый ВНИИжелезобетоном по спецтехнологии.

1.6. Классы и марки обычного полистиролбетона в соответствии с ГОСТ Р 51263-99 принимают по табл. 1.

Таблица 1

Марка по прочности

Класс по прочности на сжатие

Марка по

плотности

морозостойкости

М2

-

D150, D200

He нормируется

М2,5

-

D15O, D2OO

М3,5

В0,25

D200 ,D250

М5

B0,35

D200, D250, D300

F25-F35

-

В0,5

D250, D300 ,D350

F35-F50

-

В0,75

D300, D350, D400

F35-F50

-

В1,0

D350, D400, D450

F35-F50

-

В1,5

D400, D450, D500

F35-F75

-

В2,0

D500, D550

F50-F100

-

В2,5

D500, D550

F50-F100

 

1.7. При проектировании конструкций с применением полистиролбетона следует, учитывать реальные (достигнутые на предприятии ЗАО "Юникон-ЗСК") соотношения между его плотностью и прочностью (табл.2)

Таблица 2

Вид конструкций

Характеристика полистиролбетонных конструкций и изделий

Марка полистиролбетона по плотности

Класс (марка) полистиролбетона по прочности на сжатие

Наружные стены из блоков

Ненесущие стены зданий до 25 этажей включительно со слоем полистиролбетона толщиной 295 или 330 мм (для жилых зданий) и 330 или 375 мм (для общественных зданий), оштукатуренные с наружной и внутренней сторон по стальной мелкоячеистой сетке или облицованные с наружной стороны эффективным кирпичом и оштукатуренные с внутренней стороны по стальной мелкоячеистой сетке или облицованные ГВЛ

D250-D300

В0,35-В0,5

Самонесущие стены с опиранием на перекрытия через два этажа при высоте здания не более 6-ти этажей

D350-D400

В0,75-В1,0

Самонесущие стены с опиранием на перекрытие через два-три этажа при высоте здания не более 8-ми этажей

D400

В1,0

Несущие стены зданий высотой до двух этажей

D450-D550

В1,5-В2

Монолитные наружные стены

Ненесущие стены зданий до 25 этажей со слоем полистиролбетона толщиной 275-400 мм с кирпичным фасадом

D250-D350

В0.35-0,75

Перемычки

Перемычки длиной 1,2-3,0 м шириной 115-180 мм высотой 235 и 295 мм под вертикальные нагрузки 50-100 кг/м

D300-D500

В0,5-В1,5

Утепляемые покрытия и перекрытия

Монолит и сборные плиты для утепления кровельных покрытий и чердачных перекрытий, а также торцов перекрытия

D150-D200

М2-М2,5

Плиты сборные для утепления перекрытий над холодными подвалами, техподпольями, проездами

D200

М2,5-М3

 

Расчетные характеристики полистиролбетона и кладки из полистиролбетонных блоков на клеевой композиции

1.8. В соответствии с ГОСТ Р 51263-99 нормативные сопротивления полистиролбетона обычного и модифицированного принимают по табл.3.

Таблица 3

Вид сопротивления

Нормативные сопротивления полистиролбетона и расчетные сопротивления полистиролбетона, МПа, для предельных состояний второй группы при классе бетона по прочности на сжатие

В0,35

В0,5

В0,75

В1,0

В1,5

В2,0

В2,5

Сжатие осевое (призменная прочность)

 

 

 

 

 

 

 

Rвn и Rв.ser

0,35

0,5

0,75

1,0

1,5

1,8

2,1

Растяжение осевое

 

 

 

 

 

 

 

Rвtn и Rвt.ser

0,12

0,15

0,21

0,26

0,3

0,32

0,35

Растяжение при изгибе

 

 

 

 

 

 

 

Rвtfn и Rвtf.ser

0,23

0,27

0,38

0,47

0,55

0,58

0,64

 

В соответствии с ГОСТ Р 51263-99 расчетные сопротивления полистиролбетона обычно го и модифицированного принимают по табл.4.

Таблица 4

Вид сопротивления

Расчетные сопротивления полистиролбетона, МПа, для предельных состояний первой группы при классе бетона по прочности на сжатие

В0,35

В0,5

В0,75

В1,0

В1,5

В2,0

В2,5

Сжатие осевое (призменная прочность), Rв

0,25

0,35

0,55

0,75

1,05

1,4

1,75

Растяжение осевое, Rвt

0,07

0,09

0,12

0,15

0,18

0,2

0,23

Растяжение при изгибе, Rвtf

0,14

0,16

0,22

0,28

0,32

0,35

0,4

 

1.10. соответствии с ГОСТ Р 51263-99 начальный модуль упругости Eв полистиролбетона обычного и модифицированного принимают по табл.5.

Таблица 5

Марка полистиролбетона по средней плотности

Начальный модуль упругости полистиролбетона при сжатии - растяжении , МПа, при классе бетона по прочности на сжатие

В0,35

В0,5

В0,75

В1,0

В1,5

В2,0

В2,5

D250

0,35

0,45

-

-

 

-

-

D300

0,40

0,50

0,60

-

-

-

-

D350

0,50

0,60

0,70

1,1

-

-

-

D400

-

0,70

0,80

1,2

1,3

-

-

D450

-

-

-

1,3

1,4

1,6

-

D500

-

-

-

-

1,45

1,7

1,9

D550

-

-

-

-

1,52

1,75

2,0

 

1.11. При расчете стен из сплошных полистиролбетонных блоков на клеевой композиции в тех случаях, когда работают на растяжение (сжатие) горизонтальные швы, расчетные сопротивления кладки сжатию и осевому растяжению определяются с использованием соответствующих значений Rв и Rвt„ (табл.4) с умножением их на коэффициент условий работы К<1 (п.1.3).

1.12. Начальный модуль упругости кладки из сплошных полистиролбетонных блоков на клеевой композиции Ео определяется в соответствии с п.1.3 при использовании значений Ев (табл.5).

1.13. Модуль деформативности кладки из полистиролбетонных блоков на клеевых композициях при кратковременном действии нагрузки Е принимается равным начальному модулю упругости кладки Ео (п. 1.12), умноженному на коэффициент 0,5, а при длительном действии нагрузки - равным модулю деформативности кладки Ео, умноженному на коэффициент 0,25.

1.14. Деформации усадки кладки из полистиролбетонных блоков принимаются равными .

Расчет несущей способности кладки стен из полистиролбетонных блоков с учетом сопротивления штукатурной и кирпичной облицовки

1.15. Согласно п.1.1 стены из полистиролбетонных блоков с облицовкой или без нее рассчитываются по СНиП 2.03.01-84*. При этом допускается учитывать сопротивление штукатурных слоев, удовлетворяющих требованиям п. 1.16, и кирпичной облицовки с учетом положений п.1.17.

1.16. При расчете элементов стен (монолитных или из блоков), оштукатуренных цементно-песчаным раствором с одной или с обеих сторон по стальной сетке, сопротивление штука турки учитывается при выполнении следующих условий:

а) прочность цементно-песчаного штукатурного раствора на сжатие выше соответствующей прочности полистиролбетона;

б) обеспечена прочность на сдвиг контактного шва между штукатурным слоем и полистиролбетоном; при этом должно выполняться условие , где т - касательное напряжение по плоскости сопряжения штукатурного слоя и полистиролбетона, определяемое как для упругого материала,  - расчетное сопротивление полистиролбетона осевому растяжению (табл.4), К - коэффициент условия работы кладки из полистиролбетонных блоков, принимаемый согласно п.1.3.

1.17. При расчете прочности комплексного сечения, включающего слои усиления (армированные штукатурные слои, удовлетворяющие требованиям п. 1.16), в сжатой зоне учитывается только сопротивление штукатурного слоя, т.е. сопротивление сжатию штукатурной сетки во внимание не принимается.

В растянутой зоне работа штукатурного слоя не учитывается, а вертикальные стержни штукатурной сетки рассматриваются как продольная растянутая арматура.

1.18. Кирпичная облицовка, соединенная с основной частью стены гибкими связями, в состав комплексного сечения основной части стены не входит. Принимается, что усилия от поперечной (ветровой) нагрузки распределяются между основной частью стены и кирпичной облицовкой пропорционально их жесткости ЕJ. При этом основная часть стены рассчитывается согласно п.1.17 с односторонним расположением штукатурного слоя.

1.19. В расчете простенков на ветровую нагрузку при их опирании на стойки фахверка или на несущие поперечные стены, т.е. в тех случаях, когда работают на растяжение вертикальные клеевые швы, в расчет комплексного сечения вводится дополнительный коэффициент =0,85 учитывающий возможное неполное заполнение клеем вертикальных швов.

1.20. Расчет стен из полистиролбетона по наклонным сечениям производится по общим правилам, приведенным в СНиП 2.03.01-84* "Бетонные и железобетонные конструкции", как для элементов без поперечной арматуры. При этом оценка прочности выполняется, исходя из сопротивления полистиролбетона в составе поперечного сечения.

1.21. Расчет по раскрытию трещин стен со слоями усиления (армированные штукатурные слои, удовлетворяющие требованиям п.1.16) производится по общим правилам, приведенным в СНиП 2.03.01-84* "Бетонные и железобетонные конструкции". При этом в расчете учитывается работа слоев усиления в составе полного поперечного сечения.

1.22. Расчет кладки из кирпича для облицовки стен из полистиролбетонных блоков производится по СНиП II-22-81 "Каменные и армокаменные конструкции".

1.23. Физико-технические характеристики штукатурных растворов, в том числе нанесенных на стальную заанкеренную в стене сетку, принимаются по СНиП 2.03.01-84*, как для мелкозернистого бетона группы Б классов В3,5-В7,5.

1.24. Расчет прочности, трещиностойкости и деформативности перемычек производится согласно "Указаниям по проектированию перемычек из полистиролбетона для наружных стен зданий системы "Юникон", разработанным ВНИИжелезобетоном и рекомендованным Госстроем РФ (письмо от 15.08.00 №ЛБ-3517/9).

1.25. Площадь поверхности монтажных элементов, через которую передается давление на полистиролбетон, для крепления наружных стен к несущим элементам здания, а также оконных (дверных) блоков для их крепления к стенам, забиваемых в полистиролбетон стен, определяется из условия недопущения смятия полистиролбетона. Расчетное сопротивление полистиролбетона смятию принимается равным его сопротивлению осевому сжатию Rв.

2. Расчетные теплотехнические характеристики

2.1. Ограждающие конструкции зданий из полистиролбетона (наружные стены, утепленные конструкции покрытий, чердачных перекрытий, перекрытий над холодными подвалами, техподпольями и проездами) должны удовлетворять теплотехническим требованиям по сопротивлению теплопередаче, воздухопроницанию и паропроницанию, в соответствии с указания ми СНиП 23-02-2003 "Тепловая защита зданий", СП 23-101-2000 "Проектирование тепловой защиты зданий" и ТСН НТП-99 МО "Нормы теплотехнического проектирования зданий с учетом энергосбережения".

2.2. Теплотехнические характеристики полистиролбетона, изготавливаемого по обычной технологии, используемые в теплотехнических расчетах, в соответствии с ГОСТ Р 51263-99 приведены в табл.6.

Таблица 6

Марка по средней плотности

Удельная теплоемкость, КДж/ (кг °С)

Коэффициент теплопроводности в сухом состоянии, Вт/(м°С)

Расчетное массовое отношение влаги в материале, %, при условиях эксплуатации

Расчетные коэффициенты при условиях эксплуатации

Теплопроводность, Вт/(м°С)

Паропроницаемость, мг/(м ч Па) А, Б

A

B

A

B

A, B

150

1,06

0,055

4

8

0,057

0,060

0,135

200

1,06

0,065

4

8

0,070

0,075

0,120

250

1,06

0,075

4

8

0,085

0,090

0,110

300

1,06

0,085

4

8

0,095

0,105

0,100

350

1,06

0,095

4

8

0,110

0,120

0,090

400

1,06

0,105

4

8

0,120

0,130

0,085

450

1,06

0,115

4

8

0,130

0,140

0,080

500

1,06

0,135

4

8

0,140

0,155

0,075

550

1,06

0,135

4

8

0,155

0,175

0,070

 

2.3.Теплотехнические характеристики модифицированного полистиролбетона, изготавливаемого на ЗАО "Юникон-ЗСК" по спецтехнологии, используемые в теплотехнических расчетах в соответствии с Заключением НИЙСФ от 11.06.02 г., приведены в табл.7

Таблица 7

Марка по средней плотности

Коэффициент теплопроводности в сухом состоянии, Вт/(м°С)

Расчетное массовое отношение влаги в материале, %, при условиях эксплуатации

Расчетные коэффициенты теплопроводности при условиях эксплуатации, Вт/(м°С)

А

Б

А

Б

250

0,073

4

8

0,082

0,082

300

0,079

4

8

0,090

0,090

350

0,090

4

8

0,102

0,112

400

0,099

4

8

0,114

0,124

500

0,116

4

8

0,131

0,148

 

2.4.Теплотехнические характеристики материалов (кроме полистиролбетона), используемых в ограждающих конструкциях системы "Юникон" в соответствии со СП 23-101-2000 и др. данным НИИСФа, приведены в табл.8.

Таблица 8

№№

пп

Наименование материала

Плотность, кг/м3

Расчетные коэффициенты для условий эксплуатации "Б"

Теплопроводность, Вт/(м°С)

Паропроницаемость, мг/(м ч Па)

1.

Железобетон

2500

2,04

0,03

2.

Цементно-песчаный раствор (штукатурный)

1800

0,93

0,09

3.

Кладка из облицовочного пустотелого керамического кирпича на цементно-песчаном растворе

1400

0,58

0,16

4.

Пенополистирол

35

0,045

0,05

5.

Пенополиуретан

40

0,04

0,05

6.

Минераловатные плиты

150

0,047

0,057

 

 

75

0,045

0,052

7.

Кладочный клей

 

 

 

 

-плотный

1400-1650

0,7

0,12

 

-поризованный

600-700

0,32

0,17

8.

Фолизол (рубероид)

600

0,17

0,001

9.

Битум кровельный

1400

0,27

0,008

10.

Сталь

7850

58

0

11.

Древесина (сосна, ель поперек волокон)

500

0,18

0,06

12.

Полиэтилен

920

0,42

0

 

2.5. Усредненный коэффициент теплотехнической однородности кладки из полистиролбетонных блоков на клеевых композициях, учитывающий влияние теплопроводных швов толщиной 2-5 мм, принимается rкл=0,95.

2.6. Усредненный коэффициент теплотехнической однородности - r характерного фрагмента фасадной стены из полистиролбетонных блоков плотностью D250-D300 и, толщиной 295-375 мм, учитывающий влияние стальных анкеров в кладке и используемый для предварительных расчетов приведенного сопротивления теплопередаче, при условиях применения перемычек из полистиролбетона плотностью D300, утепления торцов монолитных перекрытий и фасадных ригелей (для оштукатуриваемых по фасаду стен) и термовкладышей (в перекрытии) из негорючей минваты толщиной не менее 175 мм со шпонками толщиной не более 80 мм (для стен с кирпичным фасадом), без врезки внутренних стен в наружные, а также применения проемов с четвертями, принимается по данным НИИстройфизики равным:

- для оштукатуренных с обеих сторон стен r = 0,92;

- для облицованных снаружи пустотелым кирпичом и оштукатуренных с внутренней стороны стен r = 0,87.

2.7. В расчетах сопротивления воздухопроницанию ограждающих конструкций системы "Юникон" сопротивление воздухопроницанию полистиролбетонного слоя толщиной 100 мм принимается для плотностей D150-D200 равным 100 и для D250-D350 – 130.

2.8.Расчетные температуры наружного и внутреннего воздуха, относительная влажность воздуха внутри здания, температура точки росы и характеристика отопительного периода (ГСОП) принимается по данным СНиП 23-01-99 и ГОСТ 30494-96.

3. Клеевые минеральные композиции для склеивания изделий из особо легких бетонов системы "Юникон"

3.1 .Клеи для кладки из сплошных полистиролбетонных блоков типа 26ЯМ должны удовлетворять требованиям ТУ 5745-013-05668056-99, типа "Победит ТМ-17М" - ТУ 5745-001-46478149-99 и типа ЮК-1М по ТУ 5772-001-58251652-2002.

3.2. Технические требования к клеевым кладочным композициям для монтажа полистиролбетонных блоков приведены в табл.9.

Таблица 9

№№

пп

Наименование показателя

Критерий

эффективности

Методы

испытаний

1

2

3

4

1.

Температурная  область  применения клеевой композиции в построечных условиях

 

 

 

-обычный клей, в т.ч. поризованный

плюс 5°С- плюс 40°С

 

 

-клей зимнего твердения

плюс 5°С - минус 20°С

 

2.

Жизнеспособность клеевой композиции при температуре ее потребления (начало схватывания), мин

15-120

ГОСТ 310.3-76

3.

Подвижность, см

8-14

ГОСТ 5802-86

4.

Рекомендуемая толщина клеевого шва, мм

2-4

 

5.

Максимальная толщина клеевого шва, не стекающего с вертикальной поверхности  полистиролбетонных изделий, мм, не менее

6

 

6.

Гарантированный период времени для выверки проектного положения полистиролбетонного блока после склеивания, мин

от 10 до 30

 

7.

Конфекционная липкость (начальное сцепление) клеевой композиции к полистиролбетону, МПа, не менее

0,002

ГОСТ 14760-69*

8.

Объемная масса (плотность) клея, кг/м3

 

 

 

- плотного

1400-1650

ГОСТ 12730.1-78

 

- поризованного

600-800

 

9.

Прочность клея на сжатие (28 сут.), МПа, не менее

 

 

 

 

 

- плотного

10

ГОСТ 310.4-81

 

- поризованного

2,5

 

10.

Предел  прочности клея при  изгибе (28 сут.) МПа, не менее

 

 

 

- плотного

2,5

ГОСТ 310.4-81

 

- поризованного

1,2

 

11.

Время формирования равнопрочного соединения с полистиролбетоном, ч, при температуре плюс 20°С:

 

 

 

- плотного

6-24

ГОСТ 14760-69*

 

- поризованного

24-36

ГОСТ 24992-81

 

при температуре минус 15°С:

 

 

 

- зимнего твердения

72-150

 

12.

Трещиностойкость

Появление трещин в затвердевшем клее не допускается

ГОСТ 310.3-76

13.

Коэффициент водостойкости клея, не менее

0,95

ГОСТ 23789-79

14.

Морозостойкость клеевого соединения (шва), циклы, не менее

 

 

 

- плотного

50

ГОСТ 10060.0-2-95

(первый и второй методы) и ГОСТ 7025-91 одностороннее замораживание

 

- поризованного

35

ГОСТ 25485-89

15.

Линейная усадка клеевого соединения, мм/м, не более

 

 

 

- плотного

0,5

ГОСТ 24544-81

 

- поризованного

0,3

ГОСТ 25485-89

16.

Коэффициент теплопроводности клеевого соединения в сухом состоянии, Вт/(м°С), не более

 

 

 

- плотного

0,4

ГОСТ 7076-99

 

- поризованного

0,2

 

17.

Горючесть клея

Негорючий

ГОСТ 30244-94

18.

Токсичность клея и его компонентов

Нетоксичный (не ниже IV класса опасности)

ГОСТ 12.1.007-76

19.

Защита от коррозии стальной арматуры

Клей должен обеспечить защиту стальной арматуры от коррозии аналогично цементно-песчаному раствору

ГОСТ 27677-88

 

4. Санитарно-гигиснические требования

4.1. Полистиролбетон в изделиях не должен выделять во внешнюю среду вредные химические вещества в количествах, превышающих предельно допустимые концентрации (ПДК), утвержденные Минздравом РФ и установленные в ГОСТ Р 51263-99 "Полистирол-бетон. Технические условия".

4.2. Полистиролбетонные изделия системы "Юникон" соответствуют санитарно-эпидемиологическим правилам и нормативам ГН 2.1.6.1338-03 и ГН 2.1.6.1339-03 по величине предельно допустимой концентрации свободного стирола, выделяющегося из затвердевшего полистиролбетона, в воздушной среде, не превышающую 0,002 мг в 1м3 воздуха.

4.3. При выполнения "Комплекса мероприятий по обеспечению экологической безопасности применения полистиролбетонных изделий и конструкций в жилищном строительстве" (ТИ 011.0-4-00284807-01) изделия из полистиролбетона допускается при менять при строительстве жилых, общественных, административных и бытовых зданий.

5. Противопожарные требования

5.1. Пожарно-технические характеристики полистиролбетона:

- группа горючести при марках по средней плотности D150... D550 - Г1;

- группа воспламеняемости при марке по средней плотности D150… D550 - В1;

- группа дымообразующей способности при марке по средней плотности D400...D550 - D1, при D150...D350- D2.

5.2. В противопожарных целях облицовка полистиролбетонной поверхности предусматривается в следующих вариантах:

- устройство по всей поверхности стены, снаружи и изнутри здания, штукатурки толщиной не менее 20 мм, а на откосах оконных и дверных проемов - не менее 30 мм, из цементно-песчаного раствора, армированного стальной мелкоячеистой сеткой (из проволоки диаметром 1..1,2 мм, сторона ячейки не более 20 мм), заанкериваемой в стену стальными анкерами диаметром 3 мм на глубину не менее 150 мм с шагом расстановки не более 0,6х0,3(0,4) м (по горизонтали х по вертикали); в стенах из кладки сплошных полистиролбетонных блоков анкера для крепления сетки, армирующей штукатурку, закладываются в горизонтальные швы кладки;

- устройство по стене снаружи здания облицовки из керамического кирпича толщи ной в "полкирпича";

- устройство по стене снаружи здания вышеуказанных цементно-песчаной штука турки, либо кирпичной облицовки, а изнутри здания - облицовки из гипсоволокнистых листов (ГВЛ); облицовку из ГВЛ предусматривается выполнить в два слоя, с зазором между слоями ГВЛ не более 1 мм, с суммарной толщиной ГВЛ не менее 20 мм по плоскости стен с "разбежкой" (несовпадением) стыков по слоям;

- при всех вариантах указанных облицовок стен по всей площади контакта оконных и дверных блоков с полистиролбетоном соответствующих стен устанавливаются негорючие прокладки толщиной не менее 5 мм (см. нормаль Н6).

5.3. Согласно совместному Заключению Управления стандартизации, технического нормирования и сертификации Госстроя России (от 25 декабря 2000г. № 9-18/664) и Главного управления Государственной противопожарной службы МВД России (от 25 декабря 2000г. № 20/22/4578) полистиролбетонные изделия и элементы, а также монолитный полистиролбетон системы "Юникон" могут быть использованы в жилых и общественных зданиях различных степеней огнестойкости, в т.ч. 1-ой, и классов конструктивной пожарной опасности, в т.ч. СО, в качестве:

- самостоятельного конструкционного материала для возведения наружных не несущих стен (заполнение проемов между смежными междуэтажными перекрытиями на этаж) из монолитного полистиролбетона или в виде кладки из сплошных блоков, в том числе с применением полистиролбетонных армированных перемычек и доборных плит, для многоэтажных зданий;

- теплоизоляционного материала в виде плит или монолита для утепления железо бетонных перекрытий над неотапливаемыми ("холодными") подвалами, проездами, перекрытий неотапливаемых чердаков и бесчердачных покрытий.

5.4. Согласно указанному в п.5.3 Заключению Госстроя России и МВД России от 25 декабря 2000г. наружные несущие, самонесущие и ненесущие стены из монолитного полистиролбетона или сплошных блоков, в т.ч. с применением полистиролбетонных перемычек и доборных плит, и утепляемые полистиролбетоном железобетонные перекрытия для обеспечения их класса пожарной опасности КО должны отвечать следующим требованиям:

- средняя объемная плотность полистиролбетона, в стенах должна составлять не менее 250 кг/м3;

- на участках между наружной (со стороны фасада) облицовкой стен и обращенными в сторону фасада торцами примыкающих железобетонных перекрытий и железобетонных внутренних стен, в пределах высоты и ширина этих торцов, допускается применять теплоизоляционные вставки ("термовкладыши") из полистиролбетона со средней плотностью 150...200 кг/м3 или эффективных негорючих утеплителей.

- полистиролбетон той же прочности может использоваться для устройства тепло изоляции поверх перекрытий над не отапливаемыми подвалами, проездами, поверх перекрытий, не отапливаемых чердаков и бесчердачных покрытий;

- в качестве кладочных растворов для полистиролбетонных изделий и элементов должны применяться негорючие составы (клеи).

ПРИЛОЖЕНИЕ 4.

РАСЧЕТНЫЕ НАГРУЗКИ И РЕКОМЕНДУЕМЫЕ КРЕПЕЖНЫЕ ЭЛЕМЕНТЫ В СТЕНАХ СИСТЕМЫ "ЮНИКОН» ИЗ ПОЛИСТИГОЛБЕТОННЫХ БЛОКОВ

РАСЧЕТНЫЕ НАГРУЗКИ НА КРЕПЕЖНЫЕ ЭЛЕМЕНТЫ

Таблица 1

Тип крепежного элемента

Глубина заделки в стену, мм

Расчетные нагрузки, кгс

Осевое выдергивания шурупа

Изгиб при приложении усилия на шуруп в 10 мм от стены

фасадная сторона стены

Внутренняя сторона стены

Фасадная сторона стены

Внутренняя сторона стены

Заделка насухо

Заделка на монтажной пене

Заделка насухо

Заделка на монтажной пене

Заделка насухо

Заделка на монтажной пене

Заделка насухо

Заделка на монтажной пене

FUR

10х80SS

80

18

40

40

100

35

46

105

155

FUR

8х120SS

120

4

24

10

55

18

35

38

90

FUR

8х80Т

80

14

32

25

80

28

40

75

130

FUR

10х160Т

160

5

30

17

70

21

45

50

110

 

Примечания:

1. Значения расчетных нагрузок относятся к стеновым полистиролбетонным блокам с маркой по средней плотности D250, оштукатуренных цементно-песчаным раствором Ml00 толщиной 20-25 мм по стальной сетке из проволоки 0 1 мм с ячейкой 10x10 мм. При марках полистиролбетона D300 и D350 значения допускаемых нагрузок увеличиваются соответственно в 1,1 и 1,25 раза.

2. В качестве монтажной пены принята пена "Пенфикс".

3. Коэффициенты надежности заделки, принятые по рекомендации ЦНИИСК им. В.А.Кучеренко, приведены в табл.2.

Таблица 2

Тип крепежного элемента

Коэффициенты надежности заделки

Осевое выдергивание шурупа

Изгиб при приложении усилия на шуруп в 10 мм от стены

Фасадная, сторона стены

Внутренняя сторона стены

Фасадная сторона стены

Внутренняя сторона стены

Заделка насухо

Заделка на монтажной пене

Заделка насухо

Заделка на монтажной пене

Заделка насухо

Заделка на монтажной пене

Заделка насухо

Заделка на монтажной пене

FUR

10х80SS

7

5

3

2

6

5

2

1,5

FUR

8х120SS

10

7

4

3

7

5

3

2

FUR

8х80Т

7

5

3

2

6

5

2

1,5

FUR

10х160Т

10

7

4

3

7

5

3

2

2. РЕКОМЕНДУЕМЫЕ КРЕПЕЖНЫЕ ЭЛЕМЕНТЫ - ДЮБЕЛИ СО СТАЛЬНЫМИ ШУРУПАМИ ФИРМЫ "ФИШЕР" (ГЕРМАНИЯ)

 

ГЕОМЕТРИЧЕСКИЕ ХАРАКТЕРИСТИКИ КРЕПЕЖНЫХ ЭЛЕМЕНТОВ

Таблица 3

Тип крепежного элемента

lд, мм

lр, мм

Øд, мм

lш, мм

Øш, мм

lн, мм

FUR

10х80SS

80

62

10

90

7

78

FUR

8х120SS

120

62

8

130

6

81

FUR

8х80Т

80

62

8

87

6

80

FUR

10х160Т

160

62

10

165

7

78

 

ПРИЛОЖЕНИЕ 5.

РЕКОМЕНДАЦИЯ ПО ТЕХНОЛОГИИ МОНТАЖА И ОБЛИЦОВКИ НАРУЖНЫХ СТЕН ИЗ ПОЛИСТИРОЛВЕТОННЫХ ИЗДЕЛИЙ СИСТЕМЫ "ЮНИКОН"

1 .Общие положения

1.1. Настоящие рекомендации разработаны в развитие СНиП 3.01.01-85* «Организация строительного производства» и СНиП 3.03.01-87 «Несущие и ограждающие конструкции» и СНиП 3.04.01-87.

Рекомендации распространяются на производство и приемку работ, выполняемых при кладке на клеевых композициях наружных ненесущих, самонесущих и несущих стен из сплошных полистиролбетонных блоков, в т.ч. перемычечных, доборных элементов (далее условно - блоков) и плит утеплителя, применяемого для теплоизоляции торцов железобетонных плит перекрытий.

Блоки, перемычки и доборные элементы должны удовлетворять требованиям "ГУ 5741-159-00284807-96 (с изм.№№1,2,3,4) «Блоки из полистиролбетона стеновые сплошные», а плиты - ТУ 5760-160-00284807-96 (с изм. №№1,2) "Плиты полистиролбетонные теплоизоляционные".

Полистиролбетонные доборные элементы могут поставляться в готовом виде с ЗАО "ЮНИКОН-ЗСК" или изготавливаться на строительной площадке распиловкой рядовых блоков или плит.

Для монтажа полистиролбетонных изделий применяют минеральные клеевые композиции (сухие смеси), соответствующие техническим условиям ТУ 5745-013-05668056-99 (композиции 26Я и 26ЯМ), ТУ 5745-001-46478149-99 (композиции "Победит ТМ-17" и "Победит ТМ-17М) или ТУ 5772-001-58251652-2002 (типа ЮК-1М).

1.2. Работы по возведению стен из полистиролбетонных изделий следует производить по утвержденному проекту производства работ (ППР), в котором наряду с общими требованиями СНиП 3.01.01-85* должны быть предусмотрены: последовательность установки конструкций и мероприятия, обеспечивающие требуемую прочность и устойчивость конструкций и частей здания в процессе возведения.

1.3. При возведении и облицовке наружных стен могут использоваться обычные сборно-разборные стоечно-пальцевые леса (как правило, для стен с оштукатуриваемым фасадом), навесные монтажные леса конструкции ЦНИИОМТП и МНИИТЭП, а также подмости конструкции ЗАО "Жилстрой". Последние применяются совместно с тоннельной опалубкой, используемой для возведения несущих железобетонных монолитных конструкций здания (внутренних несущих стен и перекрытий).

Конструктивные и технологические особенности указанных навесных монтажных лесов и подмостей представлены в Приложениях 7 и 8 к настоящим Нормалям.

1.4. Круглогодичное производство работ по возведению и облицовке наружных стен зданий из полистиролбетонных элементов (при температурах не ниже - 15°С) может быть организовано для стен с кирпичной фасадной облицовкой. При этом при внутренней облицовке стен гипсоволокнистыми листами (ГВЛ) исключаются мокрые процессы и она может проводиться до установки оконных стеклопакетов и балконных дверей и без организации обогрева внутренних помещений.

1.5. При перевозке и временном складировании полистиролбетонные блоки должны находиться, как правило, а перемычки обязательно в положении, соответствующему проектному, и предохраняться от намокания.

Полистиролбетонные изделия при транспортировке должны быть надежно закреплены для предохранения от опрокидывания, продольного и поперечного смещения, взаимных, ударов друг о друга или о конструкции транспортных средств. Запрещается их перемещение волоком и сбрасывание их с транспортных средств на землю.

2.Требования к производству кладки полистиролбетонных блоков при монтаже наружных стен

2.1. Монтажные работы по возведению стен должны быть выполнены в соответствии с рабочим проектом на здание и ППР.

2.2. Не допускается ослабление стен отверстиями, бороздами, нишами, монтажными проемами, не предусмотренными проектом.

2.3. Кладку стен из полистиролбетонных блоков следует выполнять в соответствии с основными требованиями, предъявляемыми к возведению каменных конструкций.

2.4. Номинальная толщина клеевых горизонтальных (армированных связями из Ø3ВрI) швов стен из полистиролбетонных изделий (блоков, перемычек и др.) должна составлять не более 4 мм, а вертикальных (неармированных) швов - 2 мм.

Толщина горизонтальных выравнивающих швов между нижними полистиролбетонными блоками и железобетонными перекрытиями, на которые они опираются, может достигать 5-6 мм. Эти швы армируются оцинкованной штукатурной сеткой и для них допускается использование цементно-песчаного раствора на мелком песке.

2.5. Если при возведении стен с высотой этажа H≤3 м согласно метеоданным скорость ветра превысит:

при блоках шириной В=295 мм марки по плотности D250 - 8 м/с;

при блоках шириной В=330 мм марки по плотности D250 -10 м/с;

при блоках шириной В=375 мм марки по плотности D250-D300 - 13 м/с, то при соответствующей скорости ветра на высоте возведения стены кладка должна быть закреплена к перекрытию или поперечным несущим стенам.

В противном случае предельная высота свободно стоящей стены не должна превышать значений, указанных в табл.1, или для восприятия ветрового напора стену следует закрепить путем установки временных креплений. В качестве последних могут быть использованы инвентарные подкосы, аналогичные применяемым при монтаже панельных стен. Через 1-2 суток (клей 26ЯМ, ТМ-17М или ЮК-1М) в летнее время или через 4-6 суток при отрицательной температуре зимние модификации указанных клеевых композиций набирают требуемую прочность и временные крепления могут быть сняты. При кладке стен производитель работ должен быть информирован об ожидаемой скорости ветра.

Таблица 1

Толщи на блока В, мм

Объемная масса (плотность) полистиролбетонных блоков в сухом состоянии, кг/м3

Допустимая высота стен, см, при скоростном напоре ветра, Н/м2 (скорость ветра, м/с) на высоте возводи мой кладки и полном опирании стеновых блоков на перекрытие

55(8)

120(13)

150(15)

270(21)

450(27)

295

250

300

120

90

60

37,5

330

250

480

210

150

90

45

375

250-350

660

300

210

120

60

 

Примечания:

1.При неполном опирании блоков на перекрытие (с консольным свесом не более В/3) необходимо предусматривать использование подставок из деревянных брусков шириной соответствующей выносу консоли, которые опираются на ниже расположенные блоки и убираются после проектного крепления стен к несущим конструкциям здания и после набора кладочным клеем требуемой прочности.

2.Приведенная в таблице высота стен определена из условия, что оконные (дверные) блоки устанавливаются после проектного закрепления стен к несущим конструкциям здания.

3.Таблица составлена по аналогии с табл.28 СНиП 3.03.01-87 (глухая стена, клей еще не набрал прочности).

4.При скоростных напорах ветра, имеющих промежуточные значения, допустимая высота свободно стоящих стен определяется интерполяцией.

 

2.6. Вертикальность граней и углов кладки, горизонтальность ее рядов необходимо проверять по ходу выполнения кладки (через 0,6 м) с устранением обнаруженных отклонений в пределах яруса.

2.7. Процесс кладки состоит из следующих основных операций: очистка поверхности блоков, подготовка клеевой композиции; укладка блоков на слой клея, проверка горизонтальности и вертикальности уложенных рядов.

Работу рекомендуется вести звеном «четверка». Квалифицированный каменщик выкладывает верстовые ряды, следит за перевязкой швов, за горизонтальностью и вертикальностью кладки; два каменщика - подручных подносят блоки, очищают их поверхность, расстилают клеевую композицию, помогают укладывать блоки в проектное положение; третий подручный занят приготовлением клеевой композиции.

На одной захватке ведется кладка стен, на другой подготавливается рабочее место:

устанавливаются подмости, заготавливаются материалы.

3. Требования к клеевым композициям

Для кладки применяют клеевые минеральные композиций типа 26Я и 26ЯМ, выпускаемых АООТ "Опытный завод сухих смесей", "Победит ТМ-17" и "Победит ТМ-17М", вы пускаемых ООО "Фирма БЕРА" и ЮК-1М, выпускаемого ООО "Композит XXI". Прочность на сжатие этих композиций не менее 10МПа, морозостойкость Р50, жизнеспособность не менее 30 мин., время коррекции не более 15 мин., подвижность не менее 8-10 см, плотность не более 1700 кг/м3.

Указанные клеевые композиции нетоксичны, негорючи и экологически безопасны. Дополнительные требования к клеевым композициям изложены в п.3 Приложения 3 к настоящим Нормалям.

4. Технология кладки блоков

4.1. Возведение стен начинается с поштучной кладки блоков на клеевой композиции. Блоки по толщине стены укладываются в один ряд ложками вдоль стены. Блоки вышележащего ряда необходимо укладывать с перевязкой швов. Рекомендуется цепная система перевязки швов.

Для обеспечения прочности и предотвращения продуваемости горизонтальные и вертикальные швы должны быть сплошными (без полостей и разрывов).

Кладка стен производится ярусами высотой 1-1,2 м. Допускается уменьшать высоту яруса до 0,8-0,9 м.

В каждом ряду монтаж начинается с установки в проектное положение маячных блоков, располагаемых в углах и в промежутках (не более 10-15 м один от другого). По маячным блокам натягивают причалку и по ней производят установку остальных блоков на предварительно размеченные места.

Перед укладкой блоков подлежащие склеиванию поверхности очищают механическим способом от пыли, грязи, жирных пятен; в сухую погоду смачивают влажной тряпкой, в зимний период - удаляют наледь; после этого наносят клеевую постель и верхний блок устанавливают в проектное положение с выверкой плоскостей по уровню и отвесу.

Клеевая постель должна быть ровной и не доходить на 1,5-2 см до боковой поверхности стены (края блока). Разравнивание клеевой композиции производится при помощи зубчатого шпателя (гребенки).

Выравнивание блоков рекомендуется производить методом простукивания с помощью резинового молотка.

В случае плохого заполнения монтажного шва или смещения установленного блока его приподнимают, поверхность очищают от старого клея, и блок устанавливают на свежую клеевую композицию.

4.2. Поставка сухих клеевых композиций 26Я, "Победит ТМ-17" и ЮК-1М производится в герметичных мешках весом до 50 кг. Рекомендации по применению этих композиций приводятся, как правило, в наклейках на мешках. При приготовлении этих клеев сухую часть композиции тщательно перемешивают в растворосмесителе или с помощью электромешалки в течение 2-4 мин. или вручную в течение 5 мин. с водой (нагретой в зимний период время до 40-50°С) из расчета 270-300 г воды на 1 кг сухой части клея до образования клейко-пластичной массы без комков и механических включений. Свежеприготовленную порцию клея рекомендуется израсходовать в течение 15-25 мин. С момента окончания перемешивания.

Клеевые композиции 26Я, "Победит ТМ-17" и ЮК-1М в зимний период применяются при температуре не ниже - 15°С. По согласованию с ВНИИжелезобетоном допускается применение этих композиций в зимний период с введением в воду противоморозных добавок (формиата натрия или сернокислого натрия).

4.3. Клей наносится на поверхность полистиролбетонных элементов на грани, находящиеся в горизонтальном положении. Через 5-10 минут после нанесения, клей, благодаря тиксотропным свойствам, утрачивает свою текучесть и не стекает с вертикальной плоскости изделия.

Исходя из этого, например, перед монтажом стенового полистиролбетонного блока в проектное положение, его ставят в вертикальное положение и наносят клей на находящуюся в горизонтальном положении боковую грань. После этого наносят клей на горизонтальную поверхность нижерасположенного (уже установленного блока). Затем блок поворачивают на 90° и устанавливают в проектное положение.

Способ нанесения клея на изделие зависит от консистенции клея. Жидкотекучие клеи литьевой консистенции наносят механизированным способом или вручную методом разлива, пастообразные клеи - с помощью шпателя, полутерка или мастерка.

Жидкотекучий клей через 10...40 мин после приготовления приобретает пастообразную консистенцию.

Поэтому при нанесении такого клея методом «разлива» он должен быть использован по назначению до перехода в пастообразное состояние.

Для механизированного нанесения клея допускается применять краскопульты (типа «Щит»), устройства для нанесения мелкозернистых покрытий (СМЖ-468) и др. В виду значительной адгезии клеев к металлу рабочие металлические поверхности краскопульта должны быть защищены антиадгезионным покрытием.

Жидкотекучие клеевые композиции наносят на склеиваемые поверхности изделий в виде сплошных «клеевых дорожек», располагая их параллельно длинным ребрам изделий, причем крайние «клеевые дорожки» должны находиться от этих ребер на расстоянии 1 -2 см.

Ширина каждой «клеевой дорожки» должна составлять 30-50 мм, высота 6-8 мм, а просвет между ними 20-30 мм. Затем клеевая композиция распределяется с помощью зубчатого шпателя (гребенки) равномерно по поверхности блока толщиной примерно 2-4 мм, за исключением незаполненных клеем полосок шириной 1,5-2 мм вдоль длинных ребер блоков (для лучшего сцепления штукатурного слоя с блоками).

Консистенция клея перед нанесением на изделие, а также расположение крайних «клеевых дорожек», ограничивающих с внешней и внутренней сторон изделие, должны быть таковыми, чтобы исключить вытекание клея из клеевого шва и обеспечить получение штроб шириной 1,5-2,0 мм при последующем оштукатуривании блоков.

4.4. Монтаж блоков и других полистиролбетонных изделий должен производится сразу после нанесения клея на склеиваемые поверхности. Выверку проектного положения склеиваемого элемента в конструкции допускается производить в течение не более 10 мин. после начала склеивания. Расход клея следует ориентировочно принимать 5...7 кг на 1 м2 склеиваемой поверхности блоков и уточнять в каждом конкретном случае.

Для сохранения проектного положения блока рекомендуется применять фиксирующие устройства в виде скоб, шаблонов и т.п.

5.Конструктивные решения облицовки и армирования полистиролбетонных наружных стен

5.1. Для облицовки фасадной стороны стен используются:

- штукатурка из цементно-песчаного раствора толщиной 20-30 мм, армированная стальной оцинкованной мелкоячеистой сеткой;

- кладка из лицевого пустотелого или сплошнотелого кирпича. Кладка из пустотелого лицевого кирпича может дополняться облицовкой торцов железобетонных монолитных перекрытий пиленым пустотелым кирпичом или плиткой "под кирпич".

Для облицовки внутренней стороны стен используются:

- штукатурка из цементно-песчаного (цементно-известково-песчаного) раствора толщиной 20-30 мм, армированная стальной мелкоячеистой сеткой;

- облицовка гипсоволокнистыми листами (ГВЛ).

5.2. Штукатурный слой выполняется из цементно-песчаного раствора марки по прочности не менее М50 с армированием стальной сеткой из проволоки диаметром 1...1,2 мм с ячейкой не более 20х20 мм. На откосах оконных (дверных) проемов толщина штукатурного слоя - 30 мм. Сетка крепится к полистиролбетонным блокам стальными оцинкованными анкерами (скобами), расположенными в горизонтальных клеевых швах между блоками с шагом по горизонтали не более 600 мм и 300…400 мм по вертикали из проволоки Ø3 ВрI (Ø3 ВI). Сетка расположена в средней части сечения штукатурного слоя, что обеспечивает ее совместную работу со штукатурным раствором. Для защиты сетки от коррозии при ее расположении с наружной стороны стены она должна быть выполнена из оцинкованной проволоки. Защита сетки, расположенной с внутренней стороны стены, от коррозии обеспечивается цементно-песчаным раствором (при этом оцинковка проволоки не требуется).

Анкера для крепления сеток в горизонтальных клеевых швах располагаются попарно:

анкер, с помощью которого крепится штукатурная сетка с наружной стороны стены, и соответствующий ему анкер для крепления стеки с внутренней стороны стеньг располагаются в клеевом шве на расстоянии 30...60 мм один от другого с нахлесткой (перепуском) в средней части стенового блока длиной не менее 100 мм. Таким образом, эти два анкера образуют гибкую связь между наружными и внутренними штукатурными слоями, но не создают "мостика холода".

В тех случаях, когда сопротивление армированного штукатурного слоя учитывается при расчете несущей способности полистиролбетонных стен, должно быть обеспечено положение штукатурной сетки на расстоянии не менее 8 мм от каждой из боковых поверхностей штукатурного слоя. Проектное (центральное) положение сеток должно быть обеспечено устройством фиксаторов положения сетки (например, в виде прокладок из кусков затвердевшего раствора).

Для анкеровки скоб в клеевом шве между полистиролбетонными блоками они имеют на концах загибы (крючки). Кроме загибов в анкеровке скоб участвует сцепление между проволокой и клеевым заполнением горизонтальных швов.

5.3. Кирпичная облицовка выполняется из лицевого пустотелого или сплошнотелого керамического кирпича марок по прочности не менее М75 на цементно-песчаном растворе марок не менее М50 с расшивкой швов. В качестве лицевого пустотелого кирпича следует применять кирпич с лицевыми и боковыми поверхностями, отстоящими от пустот на расстояние не менее 40 мм.

Морозостойкость кирпичной облицовки должна быть не менее Мрз 35. Кирпичная облицовка соединяется с кладкой из полистиролбетонных блоков с помощью оцинкованных анкеров (скоб) из проволоки Ø 3 ВрI, закладываемых в горизонтальные клеевые швы между полистиролбетонными блоками (шаг по вертикали 300...400 мм, по горизонтали не менее 600 мм). Проволочные оцинкованные скобы одним кондом закрепляются в горизонтальном клеевом шве кладки из полистиролбетонных блоков, а другим крепятся оцинкованной вязальной проволокой к отрезкам оцинкованных стержней Ø6 А-I, установленных в горизонтальных швах кирпичной кладки, перпендикулярно проволочным скобам. Швы, в которые закладываются анкера (скобы) между полистиролбетонными блоками и кирпичной облицовкой должны совпадать по уровню.

На участке между перекрытиями кирпичная облицовка приклеивается к полистиролбетонным блокам горизонтальными и вертикальными полосами из клеевой композиции (шов толщиной 5 мм) или цементно-песчаного раствора (шов толщиной 10 мм). Площадь участка стены между полосами шириной 75 мм (противопожарные рассечки) не должна превышать 1,5 м2.

5.4. Внутренняя облицовка гипсоволокнистыми листами (ГВЛ) позволяет избежать применения мокрых процессов. Используется ГВЛ толщиной 10 мм в 2 слоя (всего толщина облицовки 20 мм), а на откосах проемов в 3 слоя (облицовка толщиной 30 мм).

Гипсоволокнистые листы крепятся к полистиролбетонным блокам с помощью универсальных рамных дюбелей типа FUR 10х160Т, предназначенных для соединения элементов к полистиролбетону. Дюбели устанавливают с расстоянием 300...600 мм между собой. Кроме того, листы внутреннего (первого) слоя приклеиваются (при необходимости) к стеновым блокам монтажным клеем полосами шириной 75 мм толщиной 1-2 мм по периметру.

Наружные листы (листы второго слоя) приклеивают (при необходимости) к листам первого слоя с помощью клеевых полос указанной ширины толщиной 1 мм, расположенных только по периметру наружных листов.

Листы ГВЛ крепятся к стенам в "разбежку" (с несовпадением) стыков по слоям.

Крепление 2-го и 3-го слоя ГВЛ к предыдущему осуществляется саморезами (шурупами) Ø5х30 мм с потайными головками.

6. Указания по производству штукатурных работ

6.1. Для отделки стен из полистиролбетонных блоков применяют, как правило, улучшенную штукатурку (жилые, торговые, учебные и др. здания второго класса ответственности), а также высококачественную штукатурку (некоторые общественные и др. здания первого класса ответственности).

6.2. Рекомендуется для оштукатуривания применять сухие смеси по ТУ 5745-226-00284807-02, а работы по их использованию проводить по технологическому регламенту ТР 030/228-00284807-02, основные положения которого приводятся в п.п. 2.3-2.5.

6.3. Для отделки полистиролбетонных стен выполняется многослойная штукатурка.

1-й слой - обрызг (обеспечивает сцепление штукатурки с полистиролбетоном стеновых блоков);

2-й слой - грунт (до навески штукатурной сетки);

3-й слой - грунт (после навески штукатурной сетки);

4-й слой - накрывка (выравнивание поверхности).

Обрызг толщиной 4 мм выполняется из жидкого раствора, затекает во все поры и шероховатости оштукатуриваемой поверхности, надежно сцепляется с ней.

Грунт (2-й слой) толщиной 7 мм позволяет создать ровную поверхность. Раствор для грунта - тестообразный (пластичный). После нанесения второго слоя на выпуски анкеров из горизонтальных швов между полистиролбетонными блоками навешивается штукатурная сетка, которая содержит фиксаторы положения из растворных прокладок толщиной 8 мм. Фикса торы имеют выпуски из вязальной проволоки, с помощью которых они привязываются к штукатурной стеке. Сетка вместе с фиксаторами вдавливается на 2 мм в раствор грунта (2-й слой).

Далее наносится 3-й слой (вторая часть грунта) из тестообразного (пластичного) раствора толщиной 7 мм.

Накрывка (толщина 2 мм) выравнивает поверхность фунта и придает штукатурке ровный и гладкий вид. Накрывку наносят после просыхания грунта.

6.4. Штукатурка на откосах оконных (дверных) проемов толщиной 30 мм наносится способом аналогичным указанному в п.2.2 с той лишь разницей, что толщина обрызга составляет 5 мм, толщина грунта (2-й + 3-й слои) составляет (11+11) мм, толщина накрывки - 3 мм.

6.5. Допустимые неровности поверхности; при улучшенной штукатурке - не более 3 мм, при высококачественной штукатурке не более 2 мм. Неровности определяются накладыванием правила или рейки длиной 2 м.

7. Указания по кирпичной облицовке

7.1. Кладка кирпичной облицовки для простенков и подоконных участков стен должна производиться одновременно с кладкой полистиролбетонных стеновых блоков с установкой в совпадающих по высоте швах стальных гибких связей, представляющих собой анкеры (скобы) из оцинкованной проволоки Ø3 BpI (Ø3 ВI).

Особенности кирпичной облицовки надпроемных участков отражена в разделе 9 на стоящих рекомендаций.

7.2. Кладка кирпичной облицовки и полистиролбетонных блоков должна производится с применением порядовок с тем, чтобы обеспечить совпадение швов, в которых устанавливаются связи, и горизонтальность рядов кладки.

7.3. Кладку кирпичной облицовки толщиной в "полкирпича" (из одних ложков) следует вести с перевязкой вертикальных швов в смежных рядах. При этом горизонтальные и вертикальные швы должны быть заполнены раствором.

7.4. В процессе кладки кирпичной облицовки должна производится расшивка вертикальных и горизонтальных швов.

8. Указания по облицовке внутренней поверхности стен ГВЛ

8.1 .Облицовка ГВЛ состоит из:

- обшивки толщиной 20 мм двумя слоями ГВЛ на внутренних поверхностях стен;

- обшивки толщиной 30 мм тремя слоями ГВЛ на откосах дверных и оконных проемов.

8.3. Для крепления 1-го слоя ГВЛ к стенам используются универсальные рамные дюбели, устанавливаемые в полистиролбетонных стенах на монтажном клее. Крепление каждого следующего слоя (2-го и 3-го) ГВЛ  осуществляется самонарезающими винтами (шурупами) с зенкующими головками.

8.4. Облицовка полистиролбетонных стен должна производиться в период отделочных работ до устройства чистого пола при отсутствии "мокрых" процессов, способных существенно повысить влажность воздуха помещения. При этом температура в помещении не должна быть ниже 0ºС. Влажность полистиролбетонных поверхностей не должна превышать 8%.

8.5. Облицовку стен ГВЛ предусмотрено производить в следующей последовательности:

- проектная разметка отверстий для установки дюбелей с приложенными к стене листами ГВЛ;

- прокладка электрических сетей (если это предусмотрено проектом);

- сверление в стене отверстий под дюбели с последующей их установкой на монтажной пене;

- сверление отверстий в ГВЛ под металлические шурупы с необходимой раззенковкой для потайной головки шурупа;

- зачистка поверхности стен от затвердевшей монтажной пены, выступающей из-под установленных в отверстия пластмассовых дюбелей;

- облицовка первым слоем ГВЛ с их закреплением металлическими шурупами;

- заделка стыков ГВЛ на первом слое облицовки;

- обшивка вторым (третьим) слоем ГВЛ с их закреплением самонарезающими шурупами;

- заделка стыков и сопряжений второго (третьего) слоя обшивки;

- подготовка поверхности облицовки под чистовую отделку.

9. Указания по монтажу и кирпичной фасадной облицовке надпроемных участков стен

9.1. Монтаж и наружная кирпичная облицовка надпроемных участков стен производится с горизонтальных площадок лоджий или балконов; деревянных настилов между балкона ми; навесных лесов, монтируемых через оконные проемы или подмостей конструкции ОАО "Жилстроя".

Во время монтажа и облицовки указанные части зданий, настилы, леса и подмости должны быть оборудованы страховочными перилами или сетками.

9.2. Производство работ организуется в следующем порядке:

- в простенках подготавливаются опорные участки в простенках, производится их очистка и выравнивание до проектного уровня;

- монтируются в проектном положении на клею несущие элементы для кирпичной кладки - железобетонные перемычки или стальные уголки. Последние закрепляются вертикальными дюбелями на монтажной пене, которые крепят к полистиролбетонным блокам стальными пластинами, приваренными к уголкам на опорных участках;

- монтируются полистиролбетонные перемычки и (если предусмотрены проектом) доборные полистиролбетонные элементы над перемычками;

- стальные уголки в середине пролета крепятся дюбелем FUR 8х80Т на монтажной пене к полистиролбетонным перемычкам длиной более 15 м;

- через сутки в летний период или через 2-3 суток в холодный период года (после набора необходимой прочности клея и монтажной пены) производится кладка лицевого пустотелого кирпича, опирающейся на железобетонную перемычку или сталь ной уголок. При устройстве кирпичной кладки, последняя кладочным раствором или клеем приклеивается к перемычке;

- кирпичная кладка фиксируется связевыми стальными элементами с полистиролбетонными перемычками.

9.3. Полистиролбетонные перемычки устанавливают в проектное/положение аналогично блокам - вручную и на клеевых композициях. При этом следует проверять, чтобы грань смычки с надписью «верх» находилась в верхнем положении.

9.4. Если доборные полистиролбетонные элементы не предусмотрены проектом, то полистиролбетонные перемычки монтируются с незакрепленными связевыми стальными элементами из оцинкованной П-образной полосы, находящимися сверху перемычки.

9.5. Если проектом предусматривается доборные полистиролбетонные элементы над перемычками, то между ними в горизонтальный клеевой шов укладываются оцинкованные водочные анкера, которые затем фиксируются в кирпичной кладке по аналогии с армированием кладки из полистиролбетонных блоков и закреплением хомутами кирпичной кладки в простенках.

9.6. Жесткая фиксация связевыми стальными элементами кирпичной кладки с полистиролбетонными перемычками производится оцинкованной П-образной полосой, одним концом закрепляемой кладочным раствором в пустотах лицевого кирпича верхнего яруса кирпичной кладки, а другим концом закрепляемой к внутренней полистиролбетонной перемычке дюбелем типа FUR 8х80Т на монтажной пене.

10. Крепление полистиролбетонных стен к несущим железобетонным конструкциям

10.1. Крепление полистиролбетонных стен с несущим железобетонным конструкциям (перекрытиям, внутренним стенам или колоннам) производится заостренными с одного конца стальными пластинами толщиной 5-6 мм шириной 50-60 мм или круглыми стержнями диаметром 16-24 мм, количество (шаг установки) и размеры которых определяются расчетом на сопротивление ветровой нагрузки по методике, изложенной в "Рекомендациях по проектированию энергоэффективных ограждающих конструкций зданий системы "Юникон" (Москомархитектура, 2002 г.).

10.2. Анкерующие (крепежные) элементы с заостренным концом забиваются обычным молотком в полистиролбетонные блоки или перемычки на глубину до 200-250 мм на расстоянии не менее 50 мм от ближайшей грани.

Другим концом они крепятся к несущим железобетонным конструкциям (как правило, пристреливаются монтажными дюбелями). Возможна также их приварка к закладным деталям, заранее устанавливаемым в железобетонных конструкциях (для пластинчатых крепежных элементов) или заделка раствором в высверленное сквозное отверстие в перекрытии (для круглых стержней).

10.3. Для крепления полистиролбетонных стен к вертикальным поверхностям внутренних несущих железобетонных стен или колонн, частично заходящих в полистиролбетонную кладку, используются прямолинейные или Г-образные перфорированные пластинчатые элементы с заостренным концом, забиваемые горизонтально в полистиролбетон и пристреливаемые к несущим конструкциям (Нормаль 14-5).

10.4. Крепление оштукатуренной с фасада полистиролбетонной стены к железобетонным перекрытиям производится:

- к торцу перекрытия Г-образной стальной пластиной, вертикальный заостренный конец которой забивается в полистиролбетонные элементы (блоки или перемычки), а другой конец пристреливается дюбелями к торцу перекрытия, после чего перед ним устанавливается полистиролбетонная теплоизоляционная плита, приклеиваемая к нижележащему блоку или перемычке (Нормаль 14-3);

- через предварительно высверленное отверстие в перекрытии круглым стальным стержнем, забиваемым заостренным концом во внутреннюю полистиролбетонную перемычку с последующей заделкой цементно-песчаным раствором другого конца в перекрытие (Нормаль 14-4).

10.5. Крепление полистиролбетонной стены с кирпичной фасадом к железобетонному перекрытию производится (Нормаль 14-1):

- П-образными стальными пластинами с заостренными концами, забиваемыми с шагом не менее 600 мм в полистиролбетонные перемычки через "окна с утеплителем" в перекрытии;

- прямолинейными стальными пластинами с одним заостренным концом, забиваемыми в полистиролбетонные простенки в шахматном порядке с шагом не менее 600 мм, через "окна с утеплителем" в перекрытии.

10.6. При забивке крепежных элементов сверху в полистиролбетонные перемычки не обходимо в обязательном порядке использовать вертикальные стальные штанги, имеющие на концах горизонтальные деревянные доски толщиной 30-40 мм площадью не менее 150-300 мм, подпирающие снизу перемычки под местом забивки.

11. Средства малой механизации для монтажа и облицовки полистиролбетонных стен

11.1. Для соблюдения горизонтальности рядов кладки применяют порядовки - деревянные или металлические рейки, на которых нанесены деления с расстоянием, равным толщине одного ряда блоков. К порядовкам крепят шнур-причалку для проверки правильности рядов кладки. Для проверки горизонтальности рядов используется рейка-уровень, для проверки вертикальности стены и столбов - отвес, для проверки правильности сопряжении - угольник. Измерение геометрических размеров стены производится с помощью рулетки и складного метра.

Кроме указанных в п.п.4.1, 4.3, 4.5 приспособлений для приготовления и нанесения клея используются кельма, стойка-гнездо под бачок для приготовления клея, бачок из пластмассы 3-5 л с ручкой и носиком.

Поскольку полистиролбетон по способу обработки подобен дереву, для резки и изменения формы блоков используются ножовки, шаблоны, молотки-кирочки, стамески, скобы металлические.

Для временного крепления стен от возможного ветрового давления применяют подкосы, скобы, связи.

Звено каменщиков должно иметь лестницу для безопасного подъема на подмости.

11.2. Перечень необходимых для монтажа и облицовки полистиролбетонных стен средств малой механизации (оборудование, инструмент, инвентарь и приспособления) приведен в табл.2.

Таблица 2

№№

пп

Наименование

Назначение

1

2

 

1.

Стеллаж

Складирование связей, подкосов, скоб

2.

Бункер для строительного мусора

Сбор и транспортирование строительного мусора

3.

Лестница - настил деревянный

Безопасный подъем на подмости

4.

Бачок для нанесения клея и пластмассы емкостью 10 л ручкой и носиком

Склеивание   блоков,   нанесение   (разлив) клея на блоки

5.

Мерный стакан из пластмассы емкостью 5-7 л для порошка

Для замера порции сухой смеси при приготовлении клеевой композиции

6.

Мерный стакан из пластмассы емкостью 3-5 л

Для замера порции воды при приготовлении клеевой композиции

7.

Пластмассовая емкость (10-15л)

Для приготовления клея (затворения сухой смеси водой)

8.

Шпатель   металлический   или дрель с   насадкой    (20-50 об/мин)

Приготовление клея

9.

Мачта прожекторная

Освещение рабочих мест

10.

Кисть флейцевая типа КС

Нанесение клея

11.

Гребенка

Нанесение клея

12.

Кельма типа КБ

Для подсобных работ

13.

Молоток-кирочка типа МКИ

Сколка и теска полистиролбетонных блоков. Забивка стальных связевых пластин и штырей

14.

Лом     монтажный   типа   ЛМУ или ЛМВ

Смещение и рихтовка сборных элементов при монтаже

15.

Ключ разводной

Вспомогательные работы

16.

Пила-ножовка

Резка блоков, плотничные работы

17.

Контрольно-измерительный инструмент:

 

 

рейка с уровнем

выверка горизонтальности рядов кладки

 

рейка

проверка прямолинейности

 

угольник стальной 500x240

проверка прямоугольности элементов

 

катушка с отвесом

для причального шнура

 

отвес типа 0-600 строительный

проверка вертикальности стен

 

уровень типа УС 1 -300 строительный

проверка горизонтальности кладки

 

рулетка металлическая типа РС-1

разметка проемов, отверстий и толщины

 

рулетка типа РС-20

стен разметка осей здания

18.

Средства зашиты:

 

 

ограждение оконных проемов

безопасные условия работы

 

каска винилопластиковая

безопасные условия работы

 

защитные очки

безопасные условия работы

 

перчатки резиновые технические

безопасные условия работы

 

резиновые сапоги

безопасные условия работы

 

пояс предохранительный

безопасные условия работы

19.

Мачта поэтажная

Освещение рабочих мест

20.

Ножницы ручные

Резка арматуры

21.

Машина сверлильная электрическая типа ИЭ-1022А с набором победитовых сверл

Сверление   отверстий    в   железобетонных конструкциях для креплений полистиролбетонных стен

22.

Точило настольное электрическое типа БЭТ-1

Заточка инструмента

23.

Подмости типа ППУ-4

Производство каменной кладки

24.

Рейка-порядовка

Контроль правильности ведения кладки и точности выдержки толщины швов

25.

Скобы причальные

Зачаливание шнура при кладке стен

26.

Топор строительный

Вспомогательные работы

27.

Конопатка типа К-50 стальная

Проконопачивание щелей

28.

Шкаф бригады каменщиков

Хранение инструмента и приспособлений

29.

Щиты деревянные инвентарные

Средства подмащивания

30.

Плоскогубцы

Подготовительные работы

31.

Резиновый молоток

Выравнивание полистиролбетонных изделий при кладке на клею

32.

Набор отверток

Для ввинчивания стальных шурупов в дюбели и ГВЛ

33.

Подпорная штанга

Для подпирания перемычек при забивке в них крепежных элементов сверху

34.

Пистолет для монтажной пены

Запенивание отверстий и полостей

12.Контроль качества работ

Технический контроль качества работ по приготовлению клеевых композиций и клеевых соединений блоков должен производиться в соответствии с требованиями ТУ 5745-013-05668056-99, ТУ 5745-001-46478149-99 и ТУ 5772-001-58251652-2002 и включать следующие операции:

- контроль за технологией приготовления клеев и их применением;

- проверку качества монтажа конструкций из полистиролбетонных блоков с клеевыми стыками;

- проверку качества крепления стен к несущим конструкциям здания и оконным (дверным) блоков к стенам.

Контроль качества работ по монтажу конструкций из склеенных блоков производится внешним осмотром и испытанием на осевое растяжение склеенных контрольных полистиролбетонных образцов-кубов размером 10×10×10 см. Образцы хранятся в тех же условиях, что и склеенные конструкции.

Внешним осмотром конструкции устанавливают степень заполнения швов клеевым со ставом и соответствие проектного положения блоков в конструкции.

Адгезионную прочность на отрыв клеевых соединений контрольных образцов определяют по ГОСТ 22690.

Число контрольных образцов на каждом этаже должно быть не менее 12 на каждые две секции дома.

При возведении зданий в зимних условиях с использованием клеевых композиций образцы в возрасте 5-7 суток испытывают после 3-часового оттаивания при температуре не ниже 20°С.

13. Приемка кладки из полистиролбетонных блоков и плит

13.1. Приемку выполненных работ по возведению стен необходимо производить до и после облицовки их поверхностей.

Элементы конструкций, скрытые в процессе производства работ, в т.ч.:

- места опирания перемычек;

- уложенные в швы полистиролбетонных блоков связи для крепления облицовочных (отделочных) слоев;

- монтажные элементы для крепления полистиролбетонных стен к несущим конструкциям здания, а также оконных (дверных) блоков к стенам - следует принимать по документам, удостоверяющим их соответствие проекту и нормативно-технической документации.

13.2. При приемке закопченных работ необходимо проверять:

- правильность перевязки швов, их толщину и заполнение, а также горизонтальность рядов и вертикальность рядов кладки;

- геометрические размеры и положение конструкций;

- длину арматурных выпусков;

- крепление полистиролбетонных стен к несущим конструкциям здания.

13.3. Отклонения в размерах и положении стен из полистиролбетонных блоков от проектных не должны превышать указанных в табл.34 СНиП 3.03.01-87, за исключением толщины швов кладки, которые не должны превышать +0,5 мм при отсутствии армирования швов и -0,5 +1,0 мм при наличии их армирования.

14. Техника безопасности

14.1. При производстве монтажных, в т.ч. каменных и отделочных (облицовочных) работ должны соблюдаться требования соответствующих разделов СНиП III-4-80* "Техника безопасности в строительстве".

14.2. Высоту каждого яруса кладки устанавливают с таким расчетом, чтобы уровень кладки после каждого перемещения был не менее чем на один ряд блоков выше уровня подмостей или перекрытия. Кладку блоков и кирпича следует вести только с междуэтажного перекрытия или инвентарных лесов и подмостей. Запрещается возводить стены, стоя на них. При возведении кладки в опасных зонах, каменщики должны использовать предохранительные пояса, прикрепляясь с их помощью к устойчивым (несущим) частям здания согласно СНиП III-4-80*.

14.3. При работе с клеевыми композициями на основе сухих смесей в процессе растаривания мешка сухой, смеси, дозирования и перемешивания клея следует принимать меры предосторожности от попадания частиц сухой смеси и клея в глаза, органы дыхания и на открытые участки кожи. В случае попадания на открытые участки кожи или в глаза, следует смыть их чистой водой без применения моющих средств.

ПРИЛОЖЕНИЕ 6.

РЕКОМЕНДАЦИИ ПО ВОЗВЕДЕНИЮ ОГРАВДАЮЩИХ КОНСТРУКЦИЙ СИСТЕМЫ "ЮНИКОН" ИЗ МОНОЛИТНОГО ПОЛИСТИРОЛБЕТОНА

Введение

Настоящие Рекомендации разработаны институтом "ВНИИжелезобетон" на основе анализа и обобщения накопленного отечественного и зарубежного опыта и результатов проведенных НИР и ОКР.

Рекомендации охватывают весь цикл выполнения работ по возведению стен и перекрытий (покрытий) с применением монолитного полистиролбетона, в т.ч.: установку и де монтаж опалубки, монтаж арматуры, приготовление, транспортирование и укладку полистиролбетонной смеси, выдерживание и уход за полистиролбетоном, а также контроль качества с приемкой работ и технику безопасности.

1. Область применения

Требования настоящей инструкции должны соблюдаться:

1 .При разработке технологических карт и проекта производства работ по возведению ограждающих конструкций из монолитного полистиролбетона (стен, перекрытий над неотапливаемыми подвалами, чердачных перекрытий, покрытий зданий).

2.При производстве работ по возведению ограждающих конструкций с применением монолитного полистиролбетона.

2.Нормативные ссылки

В настоящих Рекомендациях использованы ссылки на следующие документы:

 

ГОСТ Р 51263-99

"Полистиролбетон. Технические условия"

СНиП 3.03.01-87

"Несущие и осаждающие конструкции"

СНиП 23-02-2003

"Тепловая защита зданий"

СНиП 2.03.11-85

"Защита строительных конструкций от коррозии"

СНиП 52-01-03

"Бетонные и железобетонные конструкции"

СНиП 21-01-97*

"Пожарная безопасность зданий и сооружений"

ГОСТ 27006-86

"Бетоны. Правила подбора состава"

ГОСТ 7473-94

"Смеси бетонные. Технические условия"

ГОСТ 10180-90

"Бетоны. Методы определения прочности по контрольным образцам"

ГОСТ 10060.0-95

"Бетоны. Методы определения морозостойкости. Общие требования"

ГОСТ 10181.1-81

Смеси бетонные. Методы определения удобоукладываемости

ГОСТ 12730.1-78

"Бетоны. Метод определения плотности"

ГОСТ 18105-86*

"Бетоны. Правила контроля прочности"

ГОСТ 23478-79

"Опалубка для возведения монолитных бетонных и железобетонных конструкций. Классификация и общие технические требования"

МГСН 2.01-99

"Энергосбережение в зданиях"

3. Рекомендуемые области применения монолитного полистиролбетона

3.1. Монолитный конструкционно-теплоизоляционный полистиролбетон марки по средней плотности П250...0550 применяют:

- в ненесущих (навесных) стенах многоэтажных зданий с шагом поперечных несущих стен не более 5,4 м;

- в несущих и самонесущих стенах малоэтажных зданий (1-2 этажа) с шагом попе речных несущих стен не более 4,2 м.

3.2. Монолитный теплоизоляционный и теплоизоляционно-конструкционный полистиролбетон марки средней плотности D150...D200 применяют в качестве утеплителя:

- в кровельных покрытиях, чердачных перекрытиях и перекрытиях над неотапливаемыми подвалами, техподпольями, проездами;

- в двух- и трехслойных стенах с несущими слоями из железобетона или кирпича.

3.3. Конструкции с использованием монолитного полистиролбетона применяются в зданиях различного назначения: жилые, общественные (школы и одноэтажные больницы, административные и бытовые здания общественного назначения и промышленных предприятий) с использованием различных несущих конструкций (монолитного и сборного железо бетона, стального каркаса и др.).

3.4. При возведении конструкций с применением монолитного полистиролбетона следует выполнять указания СНиП 3.03.01-87 «Несущие и ограждающие конструкции».

4. Осо6енноети конструирования

4.1. Применение монолитного полистиролбетона позволяет эффективно обеспечить выполнение требований СНиП 23-02-2003 "Тепловая защита зданий" и МГСН 2.01-99 "Энергосбережение в зданиях".

4.2. В стенах с монолитным полистиролбетоном должно предусматривается расчетное или (и) конструктивное армирование:

а) по контуру сечения стены у наружных и внутренних поверхностей;

б) в местах резкого изменения размеров сечения стены;

в) под и над проемами;

г) в углах стен здания;

д) в местах с растянутым бетоном, а также со сжатым бетоном в случаях, предусмотренных СНиП 52-01-03 "Бетонные и железобетонные конструкции"

Продольная арматура, расположенная по контуру сечения стены, должна иметь площадь сечения со стороны наружной и со стороны внутренней поверхности стены не менее 3,05% площади сечения полистиролбетона.

Кроме продольной арматуры, препятствующей появлению и развитию усадочных трещин, должна быть предусмотрена в виде сеток поперечная арматура, препятствующая осадке полистиролбетона. Эти сетки по высоте стены располагаются с шагом не более 600 мм. С ячейкой 600х300 (h) должны быть предусмотрены выпуски стержней для крепления облицовки из кирпича или штукатурного раствора.

4.3. Монолитный полистиролбетон плотной или поризованной структуры марки по плотности D250 и более с расходом цемента не менее 200 кг/м3 обеспечивает при обычных условиях эксплуатации сохранность стальной арматуры от коррозии.

4.4. Стальные связи и анкеры, расположенные в полистиролбетоне для соединения и крепления внутренних и наружных отделочных или конструктивных слоев, а также арматурные изделия в полистиролбетоне с маркой по средней плотности менее D200 должны быть защищены от коррозии в соответствии со СНиП 2.03.11-85 «Защита строительных конструкций от коррозии», например, оцинковкой.

4.5. Для отделки наружных стен с применением монолитного полистиролбетона могут применяться:

а) штукатурка толщиной 20-30 мм из цементно-песчаного раствора (с наружной фасадной и внутренней или только с внутренней стороны);

б) облицовка эффективным кирпичом толщиной 120 мм (с наружной стороны);

в) облицовка эффективным кирпичом толщиной 65 мм (с внутренней стороны);

г) облицовка плиткой из мелкозернистого бетона (с наружной стороны);

д) облицовка гипсоволокяистыми листами (ГВЛ), образующими слой толщиной не менее 20 мм (с внутренней стороны);

е) облицовка из армоцементных листов (с фасадной или обеих сторон) по поверхности стены толщиной не менее 20 мм и не менее 30 мм на оконных (дверных) откосах. Облицовку по п.п. а, б, в, е целесообразно использовать в качестве несъемной (оставляемой опалубки).

4.6. В случае необходимости - при значительных ветровых и вертикальных нагрузках - указанные в п. 4.5 а, г, д отделочные слои могут быть заменены армоцементными слоями из мелкозернистого бетона класса не ниже В20, армированною стальной сеткой из проволоки диаметром 0,8...1,2 мм с ячейкой 10х10...20×20 мм.

5.Характеристики монолитного полистиролбетона

5.1. Монолитный полистиролбетон должен удовлетворять требованиям ГОСТ Р 51263-99 "Полистиролбетон. Технические условия".

5.2. Прочность конструкционно-теплоизоляционного монолитного полистиролбетона стен и плит утеплителя под полы над холодными подвалами в проектном возрасте характеризуется классами по прочности на сжатие В0,35; В0,5; В0,75; В1; В1,5; В2; В2,5.

Для теплозащитных конструкций (плит утеплителя в покрытиях и чердачных перекрытиях), а также в трехслойных стенах, прочность теплоизоляционно-конструкционного полистиролбетона характеризуется марками по прочности на сжатие: М2; М2,5; М3,5; М5.

5.3. Для монолитного полистиролбетона в зависимости от условий применения назначают марки по морозостойкости: Р25; Р35; Р50; Р75; Р100.

5.4. Классы и марки монолитного полистиролбетона в конструкциях назначают по нормам строительного проектирования с учетом требований табл.1.

Таблица 1

Назначение монолитного полистиролбетона

Марка по прочности

Класс по прочности на сжатие

Марка по

плотности

морозостойкости

Теплоизоляционно-конструкционные полистиролбетоны

М2,0

-

D150, D200

не нормируется

М2,5

-

D150 D200

-«-

М3,5

-

D200, D250

-«-

Конструкционно-теплоизоляционные полистиролбетоны

М5,0

-

D200, D250, D300

F25-F35

ВО, 5

D250, D300, D350

F35-F50

В0,75

D300, D350, D400

F35-F50

В1,0

D350, D400, D450

F35-F50

В1,5

D400, D450, D500

F35-F75

В2,0

D500, D550

F50-F100

В2,5

D500, D550

F50-F100

 

5.5. Деформации усадки полистиролбетона, предназначенного для монолитных наружных стен, не должны превышать 1 мм/м.

5.6. При приготовлении и применении полистиролбетона должен выполняться комплекс мероприятий по экологической безопасности полистиролбетонных конструкций. В комплекс входят специальная обработка и детоксикация пенополистирольного заполнителя, а при необходимости - полистиролбетонной смеси, обеспечивающие величину предельно допустимой концентрации свободного стирола, выделяющего из затвердевшего полистиролбетона.

5.7. Составы монолитного полистиролбетона назначается по технологическому регламенту ВНИИжелезобетона.

5.8. Полистиролбетон относится к слабогорючим материалам, имеющим группу горючести Г1.

5.9. Слои стен из монолитного полистиролбетона в соответствии с расчетом по СНиП 2.03.01-84 армируют стальными сетками и (или) каркасами (п.п.4.2, 4.4).

Соответствие расположения арматуры ее проектному положению обеспечивается применением фиксаторов - пластмассовых, бетонных.

5.10. Теплотехнические показатели монолитного полистиролбетона должны соответствовать значениям, указанным в Приложении Д ГОСТ Р 51263-99.

6. Приготовление и транспортирование товарных полистиролбетонных смесей централизованным способом

6.1. Применение товарных полистиролбетонных смесей организуется в случае массовой застройки зданий с использованием монолитного полистиролбетона, наличия в районе строительства централизованного бетоносмесительного узла, способного приготавливать и выдавать в автобетоновозы полистиролбетонную смесь при времени ее транспортирования на строительную площадку в течение 1ч.

6.2. Приготовление товарной полистиролбетонной смеси с маркой по удобоукладываемости П1…П5; осуществляется в смесителе принудительного действия или растворосмесителе емкостью (по выходу) не менее 1 м3. Порядок загрузки материалов и продолжительность их перемешивания осуществляется по технологическому регламенту ВНИИжелезобетона.

В начале смены после окончания перемешивания отбирается проба приготовленной смеси для проверки ее плотности и подвижности. В случае несоответствия замеренных показателей требуемым значениям производится коррекция состава полистиролбетонной смеси.

6.3. Транспортирование приготовленной полистиролбетонной смеси может продолжаться не более 1 ч.

Приготовленная полистиролбетонная смесь в процессе ее транспортирования, вы грузки и укладки не должна расслаиваться.

6.4. Поданная на стройплощадку товарная полистиролбетонная смесь выгружается в разгрузочную емкость - приемный бункер бетононасоса или бадью.

6.5. При необходимости транспортирования полистиролбетонной смеси в течении более 1 ч (до 3-х ч) рекомендуется применять двухстадийную технологию перемешивания.

6.6. На первой стадии на централизованном бетоносмесительном узле в смесителе принудительного действия приготавливают полистиролбетонную смесь с расходами цемента и пенополистирольного заполнителя, обеспечивающими требуемые по проекту марки полистиролбетона по плотности и прочности, но с недостаточными расходами воды и раствора воздухововлекающей добавки (40-60% от необходимой дозировки для данного состава полистиролбетона).

При этом в отличие от режима, рекомендованного в п.6.2, воздухововлекающую добавку вводят с водой затворения и длительность перемешивания принимают 1 мин. Полученная при этом полистиролбетонная смесь имеет пористую зернистую структуру с налипшим цементным тестом на гранулах пенополистирола. Приготовленную смесь выгружают в транспортные кюбели объемом, соответствующим объему смесителя, установленного на стройплощадке.

Транспортные кюбели емкостью 0,2-1,0 м3 устанавливают в грузовой автотранспорт и перевозят на стройплощадку.

6.7. Длительность транспортирования и вылеживания смеси до момента начало второй стадии перемешивания может составлять 3-4 ч.

6.8. На второй стадии - доставленная на стройплощадку зернистая полистиролбетонная смесь выгружается в установленный там смеситель принудительного действия (рекомендуются смесители с горизонтальным или вертикальным лопастным валом со скоростью вращения 30-60 об/мин). В смеситель заливают недостающее количество воды и раствора воздухововлекающей добавки с тем, чтобы получить требуемые плотность и подвижность смеси и ее слитную структуру. Длительность перемешивания смеси на второй стадии должна составлять не менее 2-3-х минут (в зависимости от интенсивности работы смесителя).

6.9. Приготовленную таким образом смесь выгружают в бадью или приемный бункер.

7. Приготовление и транспортировка полистиролбетонных смесей в построечных условиях

7.1. Приготовление полистиролбетонных смесей в построечных условиях осуществляется при отсутствии возможности централизованной поставки товарной смеси или отдаленности стройплощадки от централизованного смесительного узла (длительность транспортирования более 3-х ч).

7.2. Приготовление полистиролбетонных смесей в построечных условиях рекомендуется осуществлять на мобильных (передвижных) установках, обеспечивающих необходимый для разового бетонирования объема стен. Производительность таких мобильных установок - от 1,5 до 2,5м3/час.

7.3. Технический режим приготовления полистиролбетонных смесей на такой установке тот же, что и приготовления их на централизованном бетоносмесительном узле (п.6.2)

7.4. Установка включает: склады цемента и пенополистирола, устройства для дозирования цемента и пенополистирола, бак для приготовления раствора воздухововлекающей добавки, бетоносливную емкость (бадья) для подачи приготовленной смеси к месту бетонирования пневмоспособом или краном.

Установка может включать агрегат для получения вспененного полистирольного заполнителя.

7.5. При наличии в районе строительства бетоносмесительного узла по приготовлению полистиролбетонных смесей (например, на заводе по производству полистиролбетонных изделий) рекомендуется приготовлять полистиролбетонную смесь по двухстадийной технологии (п.6.5-6.8) или использовать при приготовлении отдозированные (на 1 замес) на заводе и загруженные в транспортные емкости (полиэтиленовые мешки) дозы цемента и пенополистирола (массой до 30-40 кг), доставляемые на грузовом автотранспорте и вручную загружаемые в смеситель. Раствор добавки 10%-ной концентрации приготовляется также на заводе и доставляется на стройплощадку в бочках. Дозировка его на строй площадке производится мерной кружкой.

8. Устройство опалубки

8.1. Выбор конструкции опалубки зависит от конструктивного решения стены или монолитной плиты утеплителя. Для стен с применением монолитного полистиролбетона используется съемные и несъемные (оставляемые) опалубки (опалубки-облицовки). Материалы и конструкции опалубок должны отвечать требованиям проекта.

8.2. Конструкция опалубки должна в процессе бетонирования обеспечить прочность, жесткость и неизменяемость бетонируемого монолитного слоя стены, ее проектные размеры.

Опалубка должна отвечать требованиям ГОСТ 23478-79.

8.3. Конструкция опалубки должна быть рассчитана на вертикальные нагрузки от давления полистиролбетонной смеси, от ветровых нагрузок, от собственной массы опалубки и бетонной смеси. Нагрузки и данные для расчета опалубки принимаются по СНиП 3.03.01-87 «Несущие и ограждающие конструкции».

8.4. Конструкция опалубки должна обеспечивать простоту монтажа и демонтажа ее элементов, возможность укрупненной сборки и вариантность компоновки при их минимальной номенклатуре.

8.5. Как правило, следует применять инвентарную, многократно используемую опалубку. Инвентарная опалубка может быть разборно-переставной и подвижной. Она может быть деревянной, деревометаллической, металлической, армоцементной.

8.6. Для уменьшения адгезии между полистиролбетоном и опалубкой на ее внутреннюю поверхность перед бетонированием наносят специальные смазки.

8.7. Инвентарную разборно-переставную опалубку собирают из щитов, стоек и других элементов, изготовленных на заводе. Размеры и масса элементов опалубки должна допускать их ручную установку.

8.8. Рекомендуется использовать унифицированную разборно-переставную опалубку. Она отличается большой взаимозаменяемостью элементов, имеет повышенную жест кость и инвентарные приспособления (схватки, замковые соединения и др.), облегчающие ее монтаж.

8.9. При ручной сборке используется мелкощитовая разборно-переставная опалубка, состоящая из отдельных элементов небольшой массы и размера.

При использовании грузоподъемных механизмов и значительной поверхности стен целесообразно использовать крупнощитовую разборно-переставную опалубку, которая состоит из крупноразмерных щитов. При наличии указанных механизмов возможна также укрупнительная сборка из мелкощитовой опалубки крупноразмерных панелей.

8.10. Опалубка должна изготавливаться централизованно и поставляться комплект но в состоянии пригодном к сборке и эксплуатации без дополнительных доделок и исправлений.

8.11. Оборачиваемость опалубки должна быть не менее приведенной в табл.2.

Таблица 2

Минимальная оборачиваемость опалубки, цикл

Тип опалубки

Материал опалубки

Поддерживающие элементы из стали

металл

фанера

дерево

Мелкощитовая

100

-

-

200

Крупнощитовая

120

30

20

120

 

8.12. Установка и приемка опалубки, ее очистка и смазка производятся по ППР.

9. Арматурные работы

9.1. Для армирования стен из полистиролбетона применяются сетки и каркасы и стали: горячекатанной - гладкой класса AI (Rs=2300 кг/см2), периодического профиля класса АII (Rs=2850 кг/см2), и класса АШ (Rs=3600...3750 кг/см2); проволоки класса Bp-1-(Rs=3700...3850 кг/см2).

9.2. 3аготовка арматурных изделий производится, как правило, централизованно. Рекомендуется использовать легкие товарные плоские сетки, а для армоцементных слоев оставляемой опалубки - тканные сетки с ячейками 5...20 мм.

9.3. Рекомендуется использовать унифицированную сборку плоских каркасов в пространственные блоки, для чего использовать специальные стенды.

9.4. Арматуру устанавливают после проверки и приемки опалубки. При установке арматуры должна быть обеспечена предусмотренная проектом толщина защитного слоя и расстояние между рядами арматуры.

9.5. Необходимую толщину защитного слоя обеспечивают бетонными или цементными прокладками или пластмассовыми фиксаторами, расстояние между стержнями или рядами арматурных стержней - путем укладки обрезков стальной арматуры.

9.6. Соединение опорной арматуры производят, как правило, без электросварки:

крестообразные соединения - вязкой отожженой проволокой. Допускается применение специальных соединительных элементов (пластмассовых и проволочных фиксаторов);

стыковые - внахлестку или обжимными гильзами.

9.7. Соединение стержней диаметром 10 мм и более между собой и с закладными деталями допускается производить с помощью ручной дуговой сварки.

10. Укладка и уплотнение полистиролбетонной смеси

10.1. Перед началом бетонирования проверяют (оформляют актом) соответствие проекту.

10.2. Перед бетонированием опалубку и основание (плиты перекрытия, цоколь, ранее уложенный полистиролбетон) очищают от грязи и мусора, а арматуру - от отслаивающейся ржавчины.

10.3. При подготовке оснований и рабочих швов из полистиролбетона горизонтальные и наклонные поверхности очищают от цементной пленки. Наиболее целесообразно удалять цементную пленку сразу после окончания схватывания цемента. Очистка поверхностей полистиролбетона от цементной пленки должна производится без их повреждения, с помощью механической щетки или водовоздушной струей. Прочность полистиролбетона у очищенной поверхности должна быть не ниже 0,3 МПа.

10.4. Для избежания потери влаги в укладываемой полистиролбетонной смеси поверхность бетонной, железобетонной, армоцементной и кирпичной оставляемой опалубки смачивают водой.

10.5. Поверхность оборачиваемой деревянной, фанерной и металлической опалубки покрывают смазкой, которая не должна ухудшать прочностных качеств полистиролбетона.

10.6. Подача полистиролбетонной смеси к месту укладки может осуществляться и в переносных бункерах (поворотных и неповоротных) с помощью крана, пневмонагнетательными установками, винтовыми героторными насосами в комплекте с распределительными стрелами и механическими распределителями.

10.7. Во избежание расслаивания бетонной смеси при ее подаче с высоты более 3 м применяют виброхоботы или мягкие хоботы, в т.ч. из прорезиненных рукавов.

10.8. Для уплотнения малоподвижной (ОК=5÷9 см) и подвижной (ОК=10÷15 см) полистиролбетонной смеси в процессе укладки ее вибрируют с помощью электромеханических вибраторов (внутренних - глубинных; наружных, прикрепляемых к опалубке; поверхностных - площадочных).

10.9. Полистиролбетонные смеси следует укладывать в бетонируемые конструкции горизонтальными слоями одинаковой толщины без разрывов, с последовательным на правлением укладки в одну сторону во всех слоях. Толщина укладываемого слоя должна составлять не более 0,5-1,0 м.

10.10. Глубина погружения вибратора в полистиролбетонную смесь должна обеспечивать его углубление в ранее уплотненный слой на 5-10 см. Шаг перестановки глубинных вибраторов не должен превышать полуторного радиуса их действия, поверхностных вибраторов - должен обеспечивать перекрытие на 100 мм площадкой вибратора границы уже провибрированного участка.

10.11. Укладка следующего слоя полистиролбетонной смеси следует проводить до начала схватывания смеси предыдущего слоя (через 1-3 ч). Продолжительность перерыва между укладкой смежных слоев бетонной смеси без образования рабочего шва устанавливается строительной лабораторией. Верхний уровень уложенной полистиролбетонной смеси должен быть на 50-70 мм ниже верха щитов опалубки.

10.12. Поверхность рабочих швов, устраиваемых при укладке полистиролбетонной смеси с перерывами, должна быть перпендикулярна поверхности стены. Возобновление бетонирования допускается производить по достижению бетоном прочности не менее 0,2 МПа.

10.13. Выбор подвижности полистиролбетонной смеси зависит от способа бетонирования и уплотнения.

При подаче бетона по схеме «кран-бадья» используются малоподвижные смеси с осадкой конуса 5-9 см.

При подаче полистиролбетонной смеси пневмонагнетателями применяют смесь подвижность 10-18 см.

При подаче винтовым героторным насосом - применяют смеси с ОК=20÷25 см. Литую смесь укладывают без вибрации.

11. Твердение в уход за монолитным полистиролбетоном

11.1. В начальный период твердения полистиролбетон необходимо защищать от попадания атмосферных осадков или потерь влаги, в последующем поддерживать температурно-влажностный режим с созданием условий, обеспечивающих нарастание его прочности.

11.2. Движение людей по забетонированным конструкциям допускается после достижения полистиролбетоном прочности не менее 50% проектной. Для этого в ППР должны быть предусмотрены ходовые доски или другие приспособления.

11.3 .Скорость твердения полистиролбетона зависит от температуры окружающей среды и принимается в соответствии с данными табл.3.

Таблица 3

Темп нарастания прочности монолитного полистиролбетона (ориентировочные значения)

Температура воздуха, °С

Прочность бетона, %, от проектной через сутки

1

2

3

4

7

14

28

15...20

15...30

25...55

30...60

45...65

55...80

75...90

100

0...5

10...20

15...45

20...55

35...60

45...70

60...80

100

Примечание: меньшие значения относятся к полистиролбетону марки по плотности D150-D250, большие - к D350-D550.

11.4. Снятие щитовой опалубки допускается осуществлять при прочности полистиролбетона 50% и более проектной, но не менее 0,2 МПа.

11.5. Мероприятия по уходу за бетоном, порядок и сроки их проведения, контроль за их выполнением и сроки распалубки должны устанавливаться ППР.

12. Возведение монолитных полистиролбетонных конструкций при отрицательных температурах воздуха

12.1. Настоящие правила выполняются в период производства монолитного полистиролбетона при ожидаемой среднесуточной температуре наружного воздуха ниже 5°С и минимальной суточной температурой ниже 0°С.

12.2. Приготовление полистиролбетонной смеси следует проводить в обогреваемых бетоносмесительных установках, применяя подогретую до 70°С воду, обеспечивающие получение полистиролбетонной смеси с температурой не ниже 30-35°С.

12.3. Способы и средства транспортирования должны обеспечивать предотвращение снижения температуры полистиролбетонной смеси ниже 5-10°С.

12.4. Состояние основания, на которое укладывается бетонная смесь, а также температура основания и способ укладки должны исключать возможность замерзания смеси в зоне контакта с основанием.

12.5. Неопалубленные поверхности конструкций следует укрывать паро- и термо-изоляционными материалами непосредственно по окончании бетонирования.

12.6. При отрицательных температурах полистиролбетонную смесь следует приготовлять с применением противоморозных добавок, отвечающих требованиям ГОСТ 24211-90 (нитрат кальция, нитрит-нитрат кальция, нитрит натрия, формиат натрия и др.), использовать подогревающие опалубки с поддержанием температуры 40-60°С в течение 6-8 ч.

12.7. Прочность полистиролбетона к моменту его замерзания в ограждающих конструкциях, исключающая его повреждение, должна быть составлять 30% и более от проектной, но быть не менее 0,3 МПа.

13.Контроль качества работ

13.1. Качество монолитного полистиролбетона, применяемого при возведении стен, перемычек и покрытий, контролируют в соответствии с требованиями ГОСТ 7473-94, ГОСТ 10060.0-95, ГОСТ 10181.1-81, ГОСТ 10180-90, ГОСТ 12730.1-78, ГОСТ 18105-86*, ГОСТ 10067-80.

13.2. Контроль качества работ включает три стадии:

1. Входной.

2. Операционный

3. Приемо-сдаточный контроль.

13.3. Входной контроль осуществляется на стройплощадке путем проверки сопроводительных документов, подтверждающих свойства и качества поставляемых материалов и изделий (полистиролбетонной смеси или цемента и пенополистирольного заполни теля, элементов опалубки, арматурных изделий).

13.4. Операционный контроль качества включает в себя проверку качества выполнения технологического процесса производства работ, в т.ч. приготовление в построечных условиях полистиролбетонных смесей, установку и крепление опалубки, ее смазку, монтаж арматурных сеток и каркасов и др.

Задачей операционного контроля является предупреждение и своевременное устранение обнаруженных нарушений технологического процесса.

13.5. Приемо-сдаточный контроль.

При приемке законченных конструкций с применением монолитного полистиролбетона (стена, утепление перекрытий и покрытий) следует проверять:

- соответствие конструкций рабочим чертежам;

- качество полистиролбетона по прочности, плотности (для каждой партии уложенного бетона) и периодически по теплопроводности, морозостойкости, и другим показателям, указанным в проекте в соответствии с требованиями ГОСТ Р 51263-99;

- качество применяемых в конструкции материалов, полуфабрикатов и изделий.

13.6. Приемку готовых конструкций или частей сооружений следует оформлять в установленном порядке актом освидетельствования скрытых работ или актом на приемку ответственных конструкций.

13.7. Требования, предъявляемые к готовым конструкциям с применением монолитного полистиролбетона, приведены в табл.4.

Таблица 4

Параметры

Предельные отклонения

Контроль (метод, объем, вид регистрации)

1. Отклонение плоскости стен от вертикали

10мм

Измерительный, журнал работ

2. Отклонение горизонтальных плоскостей стен на всю длину выверяемого участка

20мм

Измерительный, не менее 5 измерений на каждые 50 м, журнал работ

3. Местные неровности поверхности полистиролбетона при проверке двухметровой рейкой

5 мм

То же

4. Длина элементов

±20 мм

Измерительный, каждый элемент, журнал работ

5. Размер поперечного сечения элементов

+6 мм, -3мм

То же

6. Ометки поверхностей стен, служащих опорами для сборных элементов (перекрытий, перемычек)

-5 мм

Измерительный, каждый опорный элемент, исполнительная схема

 

13.8. При производстве работ проверяют качество опалубки, соответствие проекту установленной арматуры, качество полистиролбетонной смеси.

Ход бетонирования фиксируют в журнале производства бетонных работ. В него заносят объемы выполнения укладки полистиролбетонной смеси, дату бетонирования, время начала и окончания бетонирования каждого участка, заданные марки и рабочие составы полистиролбетонной смеси, данные паспортов на полистиролбетон и арматуру, температуру наружного воздуха во время укладки полистиролбетонной смеси и при ее твердении, даты изготовления контрольных образцов и результаты их испытаний на 28-й день, дату распалубки конструкций.

При бетонировании в зимних условиях в журнале указывают температуру полистиролбетонной смеси в момент укладки и в определенные периоды в процессе твердения.

Подвижность полистиролбетонной смеси проверяют не реже 2-х раз в смену у мест ее приготовления и укладки.

Прочность полистиролбетона оценивают по результатам испытания контрольных образцов на сжатие. Контрольные образцы изготавливают у мест бетонирования конструкций и хранят в условиях, близких к условиям твердения конструкций.

13.9. Внешний вид лицевых поверхностей стен следует проверять путем осмотра, простукивания и проведения соответствующих замеров, а также путем сравнения с утвержденным эталоном.

14. Техника безопасности

14.1. При монтаже опалубки и арматуры, укладке полистиролбетонных смесей в опалубку следует обращать внимание на прочность и устойчивость поддерживающих конструкций, а также на прочность такелажных устройств для подъема каркасов, элементов опалубки и емкостей с полистиролбетонной смесью.

14.2. При устройстве опалубки на высоте до 8 м от поверхности земли следует применять подмости с перилами высотой 1 м и бортовой упорной доской высотой 15 см. При работах на высоте более 8 м необходимо устраивать настилы шириной не менее 70 см с ограждением и опиранием на специальные поддерживающие леса.

При разборке опалубки следует соблюдать осторожность, опускать элементы опалубки с помощью лебедок и кранов.

14.3. Необходимо обеспечить условия, исключающие возможность поражения рабочих электрическим током. С этой целью при производстве электросварочных работ и вибрирования полистиролбетонной смеси необходимо заземлять свариваемые конструкции и все металлические части сварочных установок и вибраторов.

14.4. Рабочие, сваривающие арматуру, должны иметь средства индивидуальной защиты (резиновые сапоги и перчатки, защитные маски и т.п.). Рабочие, занятые вибрированием бетонной смеси, должны быть в резиновых сапогах.

14.5. Чистка или ремонт бетоносмесителей, бетононасосов и других машин допускается только при выключенном рубильнике, на котором вывешивается табличка "Не включать!".

14.6. При подаче полистиролбетонной смеси в бадьях должны быть приняты меры против самопроизвольного открывания затворов бадей. При выгрузке расстояние от низа бадьи до плоскости не должно превышать 1 м.

14.7. Для производства работ в зимних условиях допускаются рабочие после прохождения дополнительного инструктажа в части электропрогрева и других способов термообработки.

14.8. Использование напряжения более 127В при электротермообработке бетона не допускается, кроме случаев, указанных в проекте производства работ с соблюдением специальных требований электробезопасности.

ПРИЛОЖЕНИЕ 7. НАВЕСНЫЕ МОНТАЖНЫЕ ЛЕСА

 

Приложение 7 представляет собой извлечение из Инструкции по применению навесных монтажных лесов для производства работ на фасадах строящихся зданий 522541-002-02495276-98 ЦНИИОМТП и МНИИТЭП. Леса могут выполняться двух типов: одноярусными и двухярусными. Тип и конструкция навесных монтажных лесов определяется конструкцией здания и его несущих элементов, видом выполняемых работ.

Одноярусные навесные монтажные леса представляют собой раму с опорами, взаимодействующими с элементами здания.

На раме предусмотрены рабочие настилы в виде щита, кроме того, на высоте 1,5 м устанавливается промежуточный щит (настил). Ограждение представляет собой пространственную каркасную сварную конструкцию из швеллеров и уголков. С наружной стороны лесов устанавливается защитная металлическая сетка

Монтаж и демонтаж лесов производится грузоподъемными кранами (башенными, стреловыми) с строповкой как обычным канатным двухветвевым стропом, так и с помощью специальных траверс.

При монтаже лесов на зданиях должны быть предусмотрены проемы в стене, в которые монтируются опорные кронштейны, фиксируемые в проемах посредством деревянных клиньев. В проем стены вставляется упорная прокладка.

Стены, в которых устраиваются отверстия, должны быть рассчитаны на нагрузку от лесов, с учетом их загрузки материалами, оборудованием и людьми согласно проекту производства работ.

Рама лесов должна быть рассчитана на прочность от нагрузки и собственного веса. В соответствии с конструктивной характеристикой здания и шагом несущих внутренних стен разрабатывается необходимое количество типоразмеров навесных монтажных лесов, отличающихся друг от друга только продольными размерами платформ.

Навесные монтажные леса оборудуются ограждениями, в торцах могут устраиваться переходы на соседние леса. Поверх лесов устраивают съемное покрытие из сплошного профнастила. Внутри лесов устраивают несколько промежуточных настилов из досок толщиной 50 мм. Зазор между промежуточными настилами и возводимой наружной стеной должен составлять 50 мм.

Крепление монтажных лесов может осуществляться двумя вариантами.

Первый вариант - крепление за перекрытие посредством опорных кронштейнов и анкеров. Отверстия в перекрытиях в этом случае необходимо образовывать во время бетонирования, согласно проекта и производства работ.

Второй вариант крепления лесов - за внутренние несущие стены. Крепление производится помощью кронштейнов и пальцев.

Подъем и установку лесов производят автомобильным или башенным краном за специальные петли.

Подачу грузов на навесные леса производят после их окончательного закрепления. Кирпич, раствор, арматурные сетки в рабочую зону подают краном. Монтаж и подачу оконных перемычек производят краном.

Рабочее место звена каменщиков, маляров и других рабочих включает участок, возводимый стены и часть навесных лесов, где размещаются материалы и находятся рабочие. Ширина рабочего места должна располагаться между несущими подкосными рамами. На консолях навесных лесов размещать грузы запрещено. Рабочая зона должна составлять 0,6-0,7 м.

ПРИЛОЖЕНИЕ 8. ПОДМОСТИ КОНСТРУКЦИИ ЗАО «ЖИЛСТРОЙ»

Разрез 2-2

 

Конструкция подмостей запатентована ЗАО "Жилстрой" (патент №2192526 от 10.11.02 г.).

Подмости применяются совместно с тоннельной опалубкой, которая используется для возведения несущего железобетонного монолитного каркаса здания, включающего внутренние несущие стены я перекрытия (см. основную схему).

Конструкция подмостей представляет собой пространственную ферму, состоящую из 2-х плоских жестких сварных конструкций трубчатых ферм, соединенных пространственны ми связями из труб такого же диаметра на хомутах с плоскими фермами; верхний пояс ферм выполнен из проката (швеллеров), на который укладывается сплошной деревянный настил из обрезных досок 6=50 мм и закрепляется обычными болтами и болтами хомутообразной конструкции.

Вылет лесов за грань наружной стены составляет 3,5 м.

Такая конструкция подмостей позволяет выполнять монолитный ствол жилого дома с первого до последнего верхнего этажа, в соответствии с проектом; вести бетонирование снизу вверх (методом "наращивания этажей"), а затем с этих лесов (подмостей), начиная с верхнего этажа - монтировать наружные стены здания и облицовывать их с фасада, спускаясь сверху вниз.

В сравнении с обычными сборно-разборными стоечно-пальцевыми пристенными лесами, имеющими деревянные настилы и сплошные сетчатые полиэтиленовые ограждения, применение конструкции подмостей ЗАО "Жилстрой" позволяет сократить трудозатраты по их сборке и разборке на 30-35%.

С таких подмостей удобнее и безопаснее работать, так как на любом монтажном гори зонте можно установить 2-3-х ярусную галерею этих подмостей с откидными ограждениями по периметру. При этом материальные затраты на самих подмостях и настилах сокращаются в 1,5 - 1,6 раза, а процесс строительства с использованием такой конструкции ускоряется в 1,2-1,3 раза.


ПРИЛОЖЕНИЕ 9. ТЕХНИКО-ЭКОНОМИЧЕСКИЕ ПОКАЗАТЕЛИ ВАРИАНТОВ НАРУЖНЫХ НЕНЕСУЩИХ СТЕН ЖИЛЫХ ЗДАНИЙ С КИРПИЧНЫМ ФАСАДОМ

ТЕХНИКО-ЭКОНОМИЧЕСКИЕ ПОКАЗАТЕЛИ ВАРИАНТОВ НАРУЖНЫХ НЕНЕСУЩИХ СТЕН ЖИЛЫХ ЗДАНИЙ С КИРПИЧНЫМ ФАСАДОМ (в базовых нормах и ценах МТСН 81-98 с пересчетом на 01.11.02 г.)

№№

Показатели

Варианты стен и их основные конструктивные элементы (заводы- изготовители)

1

2

3

4

Полистиролбетонные блоки и перемычки (ЗАО "Юникон-ЗСК", Москва)

Ячеистобетонные блоки и перемычки (ЗАО "Забудова", Беларусь)

3-х слойные из ячеистобетонных блоков и перемычек (ОАО "Забудова", Беларусь) и утеплителя из пенополистирола (ОАО "Полимерстройматериалы", Мытищи)

Кирпичные стены с утеплителем из пенополистирола (ОАО "Полимерстройматериалы", Мытищи)

1.

Эскиз стены

 

 

 

 

2.

Толщина стены, мм,

в том числе:

440

745

480

460

- кирпич лицевой пустотелый

120

120

120

120

- клеевой (растворный) слой или воздушный зазор

5

5

-

-

- утеплитель

-

-

140

200

- блоки и перемычки

295

600

200

 

- кирпич сплошнотелый

-

-

-

120

- штукатурка внутренняя

20

20

20

20

3.

Приведенный вес стены, кг/м2

%

278

100,0

474

170,5

298

107,2

425

152,8

4.

Размеры рядовых блоков (LxHxB), мм

595х375х293

599х249х400

599х249х200

599х249х200

 

5.

Плотность, блоков, кг/м3

250

450

450

 

6.

Плотность перемычек, кг/м3

300

700

700

 

7.

Приведенное сопротивление теплопередаче, м2·ºС/Вт

3,13

3,14

3,14

3,13

8.

Коэффициент теплотехнической однородности

0,85

0,78

0,75

0,72

9.

Сметная стоимость (с учетом накладных расходов, сметной прибыли и НДС), руб/м2

%

1320,0

100,0

2060,6

156,1

1498,6

113,5

1593,6

120,7

10.

Затраты труда, чел·ч/м2

%

2,9

1000,0

3,8

130,9

4,3

145,5

5,7

192,7


ПРИЛОЖЕНИЕ 10. ТЕХНИЧЕСКОЕ СВИДЕТЕЛЬСТВО № ТС-07-0800-03 "ТЕПЛОЭФФЕКТИВНАЯ СТРОИТЕЛЬНАЯ СИСТЕМА "ЮНИКОН"

ТЕХНИЧЕСКОЕ СВИДЕТЕЛЬСТВО

О ПРИГОДНОСТИ ПРОДУКЦИИ ДЛЯ ПРИМЕНЕНИЯ В СТРОИТЕЛЬСТВЕ НА ТЕРРИТОРИИ РОССИЙСКОЙ ФЕДЕРАЦИИ

(Основание: Постановление Правительства Российской Федерации от 27 декабря 1997 г. № 1636)

ГОССТРОЙ РОСИИ

№ ТС-07-0800-03

 

Зарегистрировано 20 сентября 2003 г.

Действительно до 20 сентября 2006 г.

 

Настоящим техническим свидетельством подтверждается пригодность продукции указанного наименования для применения в строительстве на территории Российской Федерации при условии соблюдения требований, приведенных в технической оценке ФЦС (Федеральный научно-технический центр сертификации в строительстве Госстроя России).

 

НАИМЕНОВАНИЕ ПРОДУКЦИИ

Теплоэффективная строительная система "Юникон"

 

 

НАЗНАЧЕНИЕ

Для возведения ограждающих конструкций жилых и общественных зданий

 

 

ЗАЯВИТЕЛЬ

ОАО "ВНИИжелезобетон"

 

Россия, 111141. г. Москва, ул. Плеханова, д.7,

тел. (095) 176-27-04, факс 368-35-70

 

 

ИЗГОТОВИТЕЛЬ

ЗАО "Юникон-ЗСК" ОАО "ВНИИжелезобетон"

 

Россия. 111524, г. Москва, ул.,2-я Владимирская, д.62а,

тел.(095) 309-17-18

 

 

 

Техническое свидетельство подготовлено ФЦС на основании представленных ОАО "ВНИИжелезобетон" документов и материалов, перечень которых приведен в техническом свидетельстве Госстроя России № ТС-07-0591-02 от 21.09.02

 

Приложение: Техническая оценка ФЦС №(см. приложение к ТС-07.0591-02 от 20.09.02)

 

ЗАМЕСТИТЕЛЬ ПРЕДСЕДАТЕЛЯ ГОССТРОЯ РОССИИ                         

____________________Л.С.БАРИНОВА

 

 

Rambler's Top100 Яндекс цитирования
  Copyright © 2008, www.docload.ru

Добавить в Избранное