Бесплатная библиотека стандартов и нормативов www.docload.ru

Все документы, размещенные на этом сайте, не являются их официальным изданием и предназначены исключительно для ознакомительных целей.
Электронные копии этих документов могут распространяться без всяких ограничений. Вы можете размещать информацию с этого сайта на любом другом сайте.
Это некоммерческий сайт и здесь не продаются документы. Вы можете скачать их абсолютно бесплатно!
Содержимое сайта не нарушает чьих-либо авторских прав! Человек имеет право на информацию!

 

Открытое акционерное общество

Проектно-конструкторский и технологический институт промышленного строительства

ОАО ПКТИпромстрой

 

УТВЕРЖДАЮ

Генеральный директор, к.т.н.

_____________С.Ю. Едличка

«28» февраля 2006 г.

ТЕХНОЛОГИЧЕСКАЯ КАРТА НА ОБЛИЦОВКУ ФАСАДА МОНОЛИТНЫХ ЖЕЛЕЗОБЕТОННЫХ ЗДАНИЙ КИРПИЧОМ С ПРИМЕНЕНИЕМ УТЕПЛИТЕЛЯ
7350 ТК

Главный инженер

____________А.В. Колобов

2006

Содержание

Технологическая карта на облицовку фасада монолитных железобетонных зданий кирпичом с применением утеплителя содержит решения по организации и производству облицовочных работ с целью обеспечения их качества, снижения материальных и трудовых затрат, повышения тепловой защиты зданий и сооружений.

В технологической карте приведены область применения, организация и технология строительного процесса, требования к качеству и приемке работ, техника безопасности и охраны труда, экологическая и пожарная безопасность, потребность в материально-технических ресурсах, технико-экономические показатели.

Технологическая карта предназначена для инженерно-технических работников строительных и проектных организаций, а также производителей работ, мастеров и бригадиров, связанных с производством и контролем качества облицовочных работ.

Технологическую карту в 2001 году разработали:

к.т.н. Филипенко Н.Н. - руководитель работы;

Покровская Е.В. - исполнитель;

Ярымов Ю.А.- нормоконтроль;

к.т.н. Шахпаронов В.В. - научно-методическое руководство и редактирование;

к.т.н. Едличка С.Ю. - общее руководство разработкой комплекта

технологических карт.

Технологическая карта в 2006 году откорректирована Стронгиным М.И., Палиевской Д.С. под руководством Сусова В.И.

1 ОБЛАСТЬ ПРИМЕНЕНИЯ

1.1 Технологическая карта разработана на облицовку фасадов монолитных железобетонных зданий кирпичом с устройством промежуточного слоя из плитного утеплителя при строительстве жилых, гражданских и общественных зданий.

1.2 Карта предназначена для производства наружных облицовочных работ с применением кирпичей или камней керамических лицевых и теплоизоляционных материалов в виде плит, образующих промежуточный слой между облицовкой и стеной из монолитного железобетона (рисунок 1).

Рисунок 1 - Общий вид стены

1.3 Карта составлена с учетом требований СНиП 3.03.01-87 «Несущие и ограждающие конструкции», ГОСТ 7484-78 «Кирпич и камни керамические лицевые», ГОСТ 28013-98* «Растворы строительные» и в соответствии с «Руководством по разработке технологических карт в строительстве» (ЦНИИОМТП 1998 г.).

1.4 Организация и производство работ, предусмотренные настоящей технологической картой должны осуществляться с соблюдением требований СНиП 12-01-2004 «Организация строительства», СНиП 12-03-2001 «Безопасность труда в строительстве. Часть 1. Общие требования» и СНиП 12-04-2002 «Безопасность труда в строительстве. Часть 2. Строительное производство».

1.5 Картой рассмотрены принципиальные вопросы облицовки фасадов монолитных железобетонных зданий кирпичом с применением утеплителя.

Конструктивные особенности устройства облицовки решаются в каждом конкретном случае проектом.

Привязка технологической карты к конкретным объектам и условиям производства работ состоит в уточнении объемов работ, данных потребности в трудовых и материально-технических ресурсах.

1.6 Карта предусматривает обращение ее в сфере информационных технологий с включением карты в базу знаний по технологии и организации строительных процессов автоматизированного рабочего места (АРМ) проектировщика, подрядчика и заказчика.

2 ОРГАНИЗАЦИЯ И ТЕХНОЛОГИЯ СТРОИТЕЛЬНОГО ПРОЦЕССА.

2.1 Технология производства работ основана на применении следующих строительных материалов (вид облицовочного материала устанавливается проектом):

- кирпич и камни керамические лицевые, соответствующие ГОСТ 7484-78 и ГОСТ 530-95*. Характеристики кирпича и камней приведены в таблице 1;

- плиты теплоизоляционные из минеральной ваты на синтетическом связующем (ГОСТ 9573-96), плиты минераловатные повышенной жесткости на синтетическом связующем, плотностью 200±25 кг/м3 (ГОСТ 22950-95);

- плиты теплоизоляционные из пенопласта полистирольного марки 20,25,30,40 (ГОСТ 15588-86);

-растворы строительные (ГОСТ 28013-98*);

- сетки металлические проволочные (ГОСТ 2715-75*);

- арматура класса A-I диаметром 6,0 мм (ГОСТ 2590-88).

Таблица 1 - Характеристики кирпича и камней.

Наименование*

Размеры, мм

Марка

Марка по морозостойкости

Плотность, кг/м3

Длина

Ширина

Толщина

Кирпич

250

120

65

300, 250, 100, 175, 150, 125, 100,75

F15-F35

1400 1600

Кирпич утолщенный

250

120

88

Кирпич модульных размеров

288

138

63

Камень

250

120

138

По соглашению с потребителем с учетом условий их применения

F25-F50

1450

Камень модульных размеров

288

138

138

Камень укрупненный

250

250

138

2.2 До начала работ по облицовке фасадов зданий должны быть закончены все строительные, монтажные и специальные работы, доставлены на площадку и подготовлены к работе монтажный кран, леса, подвесные площадки, необходимые приспособления, инвентарь и материалы, очищена рабочая зона от мусора и обеспечен свободный доступ к рабочему месту.

2.3 Доставку кирпича на объект осуществляют в специально оборудованных бортовых машинах. Раствор на объект доставляют авторастворовозами типа СБ-89В, авторастворосмесителями СБ-178 и др. и выгружают в установку для перемешивания и выдачи раствора (УБ-342 или МС-353).

2.4 Разгрузку кирпича с автомашин и подачу на склад осуществляют в пакетах на поддонах, к рабочему месту - в траверсном футляре. Раствор подают на рабочее место инвентарным раздаточным бункером объемом 1 м3 в металлические ящики объемом 0,35 м3 с заполнением их по 0,25 м3 раствора.

2.5 При устройстве облицовки используются трубчатые леса (пр.№ 1103 АОЗТ ЦНИИОМТП или аналогичные).

2.6 Поверхности, подлежащие облицовке не должны иметь отклонений, превышающих допуски, установленные СНиП 3.03.01-87 «Несущие и ограждающие конструкции» для бетонных поверхностей.

Стены, подлежащие облицовке должны иметь:

- прочность бетона в конструкции, соответствующую проектной;

- влажность бетона не более 4%;

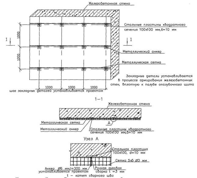
- закладные детали (стальные пластины квадратного сечения размером 100´100 мм), устанавливаемые при армировании стен монолитных зданий вплотную к палубе опалубочного щита.

2.7 К бетонным поверхностям стен, подлежащим облицовке, предъявляются следующие требования:

- поверхности стен должны быть очищены от наплывов бетона, цоколь -от строительного мусора;

- неровности и перепады более 1 см должны быть устранены, а трещины разделаны и затерты цементно-песчаным раствором;

- допускаемые отклонения поверхности стен, при проверке двухметровой рейкой, должны находиться в пределах ±5 мм;

- рабочие плоскости закладных деталей должны находиться заподлицо с плоскостью наружной стены.

2.8 Шаг закладных деталей по высоте и ширине облицовываемой поверхности стены должен назначаться с учетом следующих основных факторов:

- высоты этажа;

- размеров оконных проемов;

- геометрических размеров теплоизоляционных плит;

- геометрических размеров облицовочного кирпича или камня.

Схема расстановки закладных деталей устанавливается проектной организацией (рисунок 2). При этом нижняя отметка оконного проема должна совпадать с верхней отметкой кирпичной кладки облицовки, а верхняя отметка оконного проема - с нижней отметкой кирпичной кладки облицовки простенков (рисунки 2,6).

Рисунок 2 - Схема расстановки закладных деталей, устройства металлических анкеров

2.9 Общая толщина наружной стены и толщина теплоизоляционного слоя определяется теплотехническим расчетом, в соответствии с требованиями СНиП 23-02-2003 «Тепловая защита зданий», в зависимости от вида бетона (тяжелый, легкий, ячеистый), вида теплоизоляционного материала (минераловатные плиты, пенопласты и т.д.), вида керамических камней (сплошные, с пустотами), а также региона строительства и устанавливается проектной организацией.

2.10 Облицовка стен из монолитного железобетона состоит из следующих технологических операций:

- сварка анкеров с пластинами закладных деталей и установка металлических сеток;

- установка теплоизоляционных плит с креплением их между собой специальными шпильками и вязальной проволокой;

- кладка наружных стен из облицовочного кирпича толщиной 120 мм.

2.11 Приварка анкеров к металлическим пластинам осуществляется ручной дуговой сваркой в следующей технологической последовательности: очистка закладных деталей от наплывов бетона и ржавчины стальной щеткой, сварка швов, очистка шва от шлака, осмотр и измерение шва.

После сварочных работ должны быть выполнены мероприятия по защите металла от коррозии.

2.12 Установку металлических сеток или гладких стержней диаметром не более 6 мм в количестве не менее двух осуществляют с помощью вязальной проволоки, соединяющей анкера с сеткой или стержнями. Диаметр поперечных стержней в металлических сетках должен быть не более 3 мм.

2.13 Установка теплоизоляционных плит производится после окончания сварочных работ полосами, высота которых определяется расстоянием по вертикали между горизонтальными металлическими сетками. Плиты устанавливаются вразбежку. Крепление плит осуществляют с помощью вязальной проволоки и специальных металлических шпилек из нержавеющей стали (рисунок 3).

Рисунок 3 - Схема крепления утеплителя к монолитной железобетонной стене.

2.14 В процессе производства работ в период выпадения атмосферных осадков и при перерывах в работе следует принимать меры по защите утеплителя от намокания.

2.15 Отклонения теплоизоляционного слоя от проектных размеров должны быть не более:

по толщине от +10% до -5%;

по объемному весу -5%.

2.16 Облицовку кирпичом начинают после завершения работ по устройству теплоизоляционного слоя в следующей технологической последовательности: подготовка рабочих мест каменщиков, кирпичная кладка облицовки с расшивкой швов.

2.17 Процесс кирпичной кладки состоит из следующих операций: установка и перестановка причалки; подача кирпичей и раскладка их на стене; перелопачивание, подача, растирание и разравнивание раствора на стене; укладка кирпичей в конструкцию; армирование кладки, расшивка швов, проверка правильности выложенной кладки.

2.18 Кладку облицовки ведет звено «двойка», состоящее из каменщиков 5 и разряда. Звено должно быть закреплено за выделенной ему делянкой на весь период кладки облицовки. Кладка ведется с наружной стороны стены с лесов или подмостей.

Каменщик 5 разряда закрепляет и натягивает причальный шнур. Закончив кладку очередного ряда облицовки, каменщик 5 разряда ослабляет на порядовке фиксатор натяжения причального шнура. Затем, одной рукой поднимая хомутик, а другой, поддерживая порядовку, устанавливает хомутик на риске следующего ряда и закрепляет его винтом. Натянув шнур, проверяет его горизонтальность.

Каменщик 3 разряда раскладывает кирпичи вплотную один к другому, на расстоянии трех кирпичей от начала кладки, оставляя место для расстилки раствора. Так укладывает 6 кирпичей, после чего расстилает раствор. Перед подачей раствора каменщик 3 разряда перелопачивает его в ящике до получения однородной массы. Затем лопатой подает раствор на стену и, поставив лопату наклонно на боковую грань, расстилает его грядкой шириной около 10 см, толщиной 2-2,5 см и длиной 75 см. После того как каменщик 5 разряда уложит 3 кирпича, каменщик 3 разряда укладывает раствор еще под 3 кирпича.

Каменщик 5 разряда ведет кладку вприсык. Сначала кельмой разравнивает раствор под 3 кирпича; затем, держа кирпич левой рукой в наклонном положении, тычковой гранью загребают часть разостланного раствора и двигает его к ранее уложенному кирпичу, создавая полный вертикальный шов. После этого выравнивает кирпич заподлицо с поверхностью стены, легкими ударами ручки кельмы осаживая кирпич до уровня причального шнура с тем, чтобы зазор между шнуром и кирпичом не превышал 1-2 мм. Выжатый на лицевую поверхность стены раствор подрезает кельмой и забрасывает в вертикальный шов кладки. Затем укладывает еще 3 кирпича на этом же участке.

Расшивка швов осуществляется каменщиком 3 разряда одновременно с кладкой, причем сначала расшиваются горизонтальные швы, а затем вертикальные. Операция расшивки швов выполняется в два приема: сначала широкой частью расшивки, а затем более узкой после затирки поверхности шва ветошью.

При армировании кладки необходимо соблюдать следующие требования:

- толщина швов в армированной кладке должна превышать сумму диаметров пересекающейся арматуры не менее чем на 4 мм при толщине шва не более 16 мм;

- при продольном армировании кладки арматурные стержни по длине соединяют с помощью сварки;

- при устройстве стыков арматуры без сварки концы гладких стержней должны заканчиваться крюками и связываться вязальной проволокой с перехлестом стержней на 20 диаметров;

- гладкие стержни при армировании перемычек должны иметь диаметр не менее 6 мм, число стержней устанавливается проектом, но должно быть не менее трех.

Конструктивное решение угловой части фасада здания приведено на рисунке 4.

Рисунок 4 - Конструктивное решение армирования кирпичной кладки облицовки угловой части фасада здания

Конструктивное решение облицовки оконных проемов приведено на рисунке 5.

Рисунок 5 - Конструктивное решение облицовки оконных проемов

2.19 Организация рабочих мест сварщиков, изолировщиков, каменщиков при производстве сварочных работ, установке теплоизоляционных плит и кирпичной кладке должна соответствовать рекомендуемым ниже схемам (рисунок 6).

Рисунок 6 - Схемы организации рабочего места

3 ТРЕБОВАНИЯ К КАЧЕСТВУ И ПРИЕМКЕ РАБОТ

3.1 Работы по устройству облицовки здания кирпичом должны производиться только при наличии полного комплекта проектной и организационно-технологической документации, утвержденной в установленном порядке.

3.2 Контроль качества облицовочных работ должен осуществляться специальными службами строительных организаций.

3.3 Производственный контроль качества работ должен включать входной контроль рабочей документации, кирпича (камня) лицевого, цементно-песчаного раствора, теплоизоляционных материалов, анкеров и металлических сеток, предназначенных для устройства облицовки фасада кирпичом с одновременным утеплением наружных стен из монолитного железобетона, операционный контроль технологических процессов и приемочный контроль облицованной поверхности фасадов зданий и сооружений.

3.4 При входном контроле рабочей документации проводится проверка ее комплектности и достаточности, содержащейся в ней технической информации для производства облицовочных работ, при входном контроле кирпича (камня), цементно-песчаного раствора, плитных теплоизоляционных материалов, металлических сеток и арматуры, проверяется соответствие этих изделий стандартам, наличие сертификатов соответствия, гигиенических документов, паспортов, сертификатов пожарной безопасности и других сопроводительных документов.

3.5 Каждая партия, поставляемая на стройку строительных материалов должны соответствовать следующим требованиям:

кирпич и камни лицевые:

- трещины на лицевой поверхности не допускаются;

- на лицевой поверхности не должно быть отколов, пятен, выцветов и других дефектов, видимых на расстоянии 10 м на открытой площадке при дневном освещении;

- цвет, рисунок рельефа и другие показатели внешнего вида лицевой поверхности изделий должны соответствовать утвержденному в установленном порядке образцу-эталону;

- допускаемые отклонения от номинальных размеров и показателей внешнего вида лицевой поверхности кирпича и камней не должны превышать на одном изделии величин, указанных в таблице 3;

- предел прочности при сжатии и изгибе кирпичей и предел прочности при сжатии камней (без вычета площади пустот) должен быть не менее величин, указанных в таблице 4.

Таблица 3 - Допускаемые отклонения для кирпичей (камней)

Наименования показателя

Величина

Отклонения от размеров, мм не более

 

По длине

+4

По ширине

+3

По толщине

+3

 

-2

Неперпендикулярность граней и ребер кирпича и камня, отнесенная к длине 120 мм, не более

2

Непрямолинейность лицевых поверхностей и ребер, мм не более:

 

По ложку

3

По тычку

2

Отбитость или притупленность углов и ребер длиной от 5 до 15 мм, шт не более

1

Таблица 4 - Предел прочности при сжатии и изгибе для кирпичей (камней)

Марка кирпича и камней

Предел прочности, кгс/см2

При сжатии

При изгибе

Для кирпича и камней пластического формования и полусухого прессования

Для сплошного и с технологическими пустотами кирпича пластического прессования

Для сплошного и пустотелого кирпича полусухого прессования и пустотелого кирпича пластического формования

Средний для 5 образцов

Наименьший для отдельного образца

Средний для 5 образцов

Наименьший для отдельного образца

Средний для 5 образцов

Наименьший для отдельного образца

300

300

250

44

22

34

17

250

250

200

40

20

30

15

200

200

150

34

17

26

13

150

150

125

28

14

20

10

125

125

100

25

12

18

9

100

100

75

22

11

16

8

75

75

50

18

9

14

7

Цементно-песчаные растворы:

- подвижность цементно-песчаного раствора должна соответствовать глубине погружения стандартного конуса, равной 6-8 см;

- марка цементно-песчаного раствора - M100.

Теплоизоляционные материалы:

- плотность минераловатных плит должна находится в пределах 145-180 кг/м3;

- плотность теплоизоляционных плит из пенопласта полистирольного должна соответствовать 15,1-16,8 кг/м3.

3.6 Операционный контроль осуществляется в ходе выполнения технологических операций по устройству теплоизоляционного слоя и кирпичной кладке облицовки для обеспечения своевременного выявления дефектов и принятие мер по их устранению и предупреждению.

При операционном контроле проверяется соблюдение технологий выполнения работ, соответствие выполнения работ рабочим чертежам, строительным нормам, правилам и стандартам.

Основным документом при операционном контроле является СНиП 3.03.01-87 «Несущие и ограждающие конструкции».

Результаты операционного контроля фиксируются в журнале производства работ.

3.7 При приемочном контроле производится проверка соответствия выполненных работ проектной и нормативной документации с составлением актов освидетельствования скрытых работ (сварка анкеров и устройство теплоизоляции). Состав и содержание производственного контроля качества работ приведены в таблице 5.

Таблица 5 - Перечень технологических процессов, подлежащих контролю.

№ пп

Наименование технологических процессов, подлежащих контролю

Предмет контроля

Способ контроля

Время проведения контроля

Ответственный за контроль

Технические характеристики оценки качества

1

2

3

4

5

6

7

1

Сварка анкеров с пластинами закладных деталей и установка металлических сеток

Диаметр глухих стержней, диаметр стержней в металлических сетках

Измерительный, журнал работ, штангенциркуль

В процессе производства работ

Мастер, прораб

Æ анкера > 6 мм

Катет шва > 3 мм

Антикоррозийное покрытие металла

Визуальный, журнал работ

В процессе производства работ

Мастер, прораб

 

2

Установка теплоизоляционных плит с креплением их между собой специальными шпильками и вязальной проволокой

Толщина теплоизоляционного слоя

Измерительный, журнал работ, линейка L = 150 мм, ГОСТ 427-75*

В процессе производства работ

Мастер, прораб

Толщина устанавливается проектом: отклонения по толщине от +10% до-5%

Установка шпилек и крепление вязальной проволоки

Визуальный, журнал работ

В процессе производства работ

Мастер, прораб

4 шпильки на каждую теплоизоляционную плиту

3

Кирпичная кладка облицовки

Отклонения толщины швов

Измерительный, журнал работ, линейка 150 ГОСТ 427-75*

В процессе производства работ

Мастер, прораб

 

горизонтальный

 

 

-2;+3 мм

 и вертикальный

 

 

-2;+2 мм

Отклонение поверхности и углов кладки на один этаж

Измерительный, геодезическая исполнительная схема

В процессе производства работ

Мастер, прораб

10 мм

На здание более двух этажей

30 мм

Отклонение рядов кладки от горизонтали на 10м длины

Измерительный, геодезическая исполнительная схема

В процессе производства работ

Мастер, прораб

15 мм

Неровности вертикальной поверхности кладки при накладывании рейки длиной 2м

Технический осмотр, журнал работ

В процессе производства работ

Мастер, прораб

10 мм

4 ТРЕБОВАНИЯ ОХРАНЫ ТРУДА ЭКОЛОГИЧЕСКОЙ И ПОЖАРНОЙ БЕЗОПАСНОСТИ

4.1 При выполнении работ по облицовке фасадов монолитных зданий кирпичом с применением утеплителя необходимо соблюдать требования, изложенные в СНиП 12-03-2001 «Безопасность труда в строительстве. Часть 1.Общие требования» и СНиП 12-04-2002 «Безопасность труда в строительстве. Часть 2. Строительное производство».

Все рабочие, занятые на этих работах должны пройти первичный инструктаж по охране труда на рабочем месте, обучение безопасным методам и приемам выполнения работ, в т. ч. при работе с механизмами, инструментами, материалами.

4.2 Леса и подмости высотой до 4 м допускаются в эксплуатацию только после их приемки производителем работ или мастером и регистрации в журнале работ, а выше 4 м - после приемки комиссией, назначенной лицом, ответственным за обеспечение охраны труда в организации, и оформления актам.

При приемке лесов и подмостей должны быть проверены: наличие связей и креплений, обеспечивающих устойчивость, узлы крепления отдельных элементов, рабочие настилы и ограждения, вертикальность стоек, надежность опорных площадок и заземление (для металлических лесов).

4.3 Поддоны, контейнеры и грузозахватные средства должны исключать падение груза при подъеме.

4.4 За состоянием всех конструкций лесов устанавливается систематическое наблюдение. Ежедневно после окончания работ леса очищаются от мусора. Состояние лесов ежедневно перед началом смены проверяется мастером и бригадиром.

4.5 Требуемое качество и надежность лесов, с которых ведутся работы должно обеспечиваться строительными организациями путем осуществления комплекса технических и организационных мер в соответствии с требованиями ГОСТ 24258-88 «Средства подмащивания. Общие технические условия», ГОСТ 27321-87 «Леса стоечные приставные для строительно-монтажных работ», СНиП 12-01-2004 «Организация строительства».

4.6 В процессе эксплуатации лесов должно производится систематическое наблюдение за состоянием всех соединений, креплений к стене, настилов и ограждений. Во всех случаях обнаружения деформаций элементов лесов, нарушения устойчивости и других дефектов, работа с лесов должна быть прекращена до исправления и повторной приемки лесов.

4.7 Леса должны быть оборудованы лестницами или трапами для подъема и спуска рабочих, находящихся на расстоянии не более 40 м друг от друга, причем для лесов протяженностью менее 40 м должно устанавливаться не менее двух лестниц или трапов. Верхние концы лестниц или трапов должны быть прикреплены к поперечинам лесов, проемы в настилах лесов для выхода с лестниц ограждены с трех сторон. Угол наклона лестниц к горизонту не должен превышать 60°, а уклон трапов не более чем 1:3.

4.8 Средства подмащивания должны иметь ровные рабочие настилы с зазором между досками не более 5 мм, а при расположении настила на высоте 1,3 м и более - ограждения и бортовые элементы.

Высота ограждения должна быть не менее 1,1 м, бортового элемента - 0,15 м, расстояние между горизонтальными элементами ограждения - не более 0,5 м.

4.9 В местах проходов в здание леса должны иметь защитные козырьки и боковую сплошную обшивку для защиты рабочих от падения сверху различных предметов, причем защитный козырек должен выступать не менее, чем на 1,5 м и устанавливаться под углом 15-20° к горизонту.

Высота проходов должна быть не менее 1,8 м.

4.10 Леса должны быть оборудованы грузозащитными устройствами и обязательно заземлены. Расстояние между молниеприемниками не должно превышать 20 м.

При устройстве молниезащиты следует руководствоваться требованиями СО 153-34.21.122-2003 «Инструкция по устройству молниезащиты зданий, сооружений и промышленных коммуникаций»

4.11 При эксплуатации лесов необходимо руководствоваться требованиями ППБ 01-03 «Правил пожарной безопасности в Российской Федерации» Главного управления пожарной охраны.

Рабочий настил должен иметь первичные средства пожаротушения:

На каждых 20 м рабочего настила - один огнетушитель,

вода - не менее четырех ведер на весь настил.

4.12 Перед началом работ территория строительства должна быть подготовлена с определением мест установки бытовых помещений, мест складирования материалов и

контейнеров для сбора мусора. Весь строительный мусор должен удаляться в специально подготовленные контейнеры. Не допускается сбрасывать его без специальных устройств.

4.13 Рабочие, занятые на выполнении технологических операций по устройству облицовки с утеплителем должны быть обеспечены спецодеждой, спецобувью и другими средствами индивидуальной защиты, согласно установленным нормам.

4.14 При выполнении электросварочных работ необходимо выполнять требования ГОСТ 12.3.003-86* «ССБТ. Работы электросварочные. Требования безопасности».

Места производства сварочных работ на данном, а также на нижерасположенных ярусах должны быть освобождены от сгораемых материалов в радиусе не менее 5 м, а от взрывоопасных материалов и установок - 10 м.

Производство сварочных работ во время дождя или снегопада при отсутствии навесов над электросварочным оборудованием и рабочим местом электросварщика не допускается.

5 ПОТРЕБНОСТЬ В МАТЕРИАЛЬНО-ТЕХНИЧЕСКИХ РЕСУРСАХ.

5.1 Потребность в машинах, оборудовании и механизмах определяется с учетом выполняемых работ и технических характеристик, приведенных в таблице 6.

Таблица 6 - Ведомость потребности машин, механизмов и оборудования.

№ п/п

Наименование

Тип, марка

Техническая характеристика

Назначение

Кол. на 1 звено

1

Машина для подачи раствора

СО-126 (СО-241)

Подвижность раствора - 3...5 см по ГОСТ 5802-86

Производительность - 2,5 (3) м3

Объем смеси - 0,25 (026) м3

Дальность подачи - 115 (200) м

Высота подачи - 40 (80) м

Мощность трехфазного двигателя - 7,5 (5,5) кВт

Масса (без растворовода) -750 (700) кг

Характеристики компрессора необходимого для подачи раствора:

рабочее давление - 7 (6) кг/см2

Расход воздуха - 2,5 (2,5) м3/мин

Подача раствора

1

2

Компрессор

см. табл. 7

Производительность 9 м3/мин

Подача воздуха

1

3

Сварочный трансформатор

-

-

Сварка арматуры

2

4

Лебедка электрическая

-

Масса 300 кг

Подъем грузов

1

5

Таль электрическая

ГОСТ 18501-73*

-

Подъем грузов

1

Таблица 7 - Компрессоры для работы с машинами для подачи раствора

Марка компрессора, (тип шасси)

Тип компрессора

Тип привода, мощность

Подача, м3/мин

Наибольшее давление, кг/см2

Габариты, Д´Ш´В, мм

Масса, кг

ДЭН-18Ш (контейнер)

Винтовой

Электрический (380В, 50Гц, 18,5кВт)

3

7

830´1150´1800

500

ДЭН-22ШМ (контейнер)

Винтовой

Электрический (380В, 50Гц, 22кВт)

3

10

1740´720´1110

750

КВ-4/8 (одноосный прицеп)

Винтовой

Дизель, 34кВТ

4

8

1740´1180´1015

750

ЗИФ-СВЭ-4/0,7 (на раме)

Винтовой

Электрический (380В, 50Гц, 32кВт)

4

7

1470´790´930

590

КВ-З/ВП (одноосный прицеп)

Винтовой

Дизель, 22кВт

3

7

2970´1600´1965

850

ПКС-3,5 (одноосный прицеп)

Поршневой

Дизель, 22кВт

3,5

7

3000´1880´1700

1010

5.2 Потребность в технологической оснастке, инструменте, инвентаре и приспособлениях определяется с учетом данных, приведенных в таблице 8.

Таблица 8 - Ведомость потребности технологической оснастки, инструмента, инвентаря и приспособлений.

п/п

Наименование

Тип, марка

Техническая характеристика

Назначение

Кол. на 1 звено

1

2

3

4

5

6

1

Ящик для раствора

СКБ Мосстрой проект №5161

Емкость 0,35 м3

Хранение раствора

1

2

Леса строительные

 

Нормативная нагрузка 200 кгс/см2

 

 

 

Футляр траверсный

Карачаровский мех. Завод №Р-4086

Грузоподъемность 1,5 т

Подъем груза

1

4

Поддон с металлическими крючьями

ГОСТ 18343-80

-

-

4

5

Строп 4-х ветвевой

СКБ Мосстрой

Длина 5000 мм. Масса 45 кг

Подъем грузов

1

6

Кельма для каменных работ

ГОСТ 9533-81

Масса 0,34 кг

Разравнивание раствора

2

7

Молоток-кирочка

ГОСТ 11042-90

Масса 0,5 кг

Рубка и теска кирпичей

2

8

Отвес строительный

ОТ-400 ГОСТ 7948-80

Масса 0,4 кг

Контроль вертикальности кладки

2

9

Уровень строительный

УС 1-3 00 ГОСТ 9416-83

Масса 0,12 кг

Контроль кладки

2

10

Рейка-порядовка

Р.Ч. 329309.000 ЦНИИОМТП

-

Контроль кладки

1

11

Правило

ГОСТ 25782-90

2000´50´30 мм

Контроль кладки

1

12

Рулетка металлическая

ЗГЖ-30-АНТИ ГОСТ 7502-98

Длина 30 м

Для линейных измерений

2

13

Лопата растворная

ГОСТ 19596-87

Масса 2 кг

Подача раствора

2

14

Линейка измерительная

ГОСТ 427-75*

Длина 1 м

Для линейных измерений

2

15

Расшивка (выпуклая и вытянутая)

 

 

Обработка швов кладки

2

16

Шнур причальный

Покупное изделие

Длина 30 м

 

1

17

Угольник для каменных работ

Покупное изделие

 

Контроль правильности углов кладки

1

18

Ножовка по дереву широкая

ГОСТ 26215-84*

 

Резка плит утеплителя

2

19

Каска строительная

ГОСТ 12.4.087-84

 

 

5

20

Пояс предохранительный

ГОСТР 12.4.184-95

 

 

5

21

Электродо-держатель пассатижного типа

ГОСТ 14651-78*

 

 

1

22

Пенал для электродов

 

 

 

1

23

Щетка-зубило

 

 

 

1

24

Кусачки

ГОСТ 28037-89

 

 

2

25

Плоскогубцы

ГОСТ 5547-93

 

 

2

26

Ножницы ручные для резки арматуры

 

 

 

1

27

Очки защитные

ГОСТ 12.4.153-85

 

 

2

28

Респиратор

ГОСТ 17269-71*

 

 

5

29

Рукавицы

ГОСТ 12.4.010-75*

 

 

5

30

Щитки защитные лицевые

ГОСТ 12.4.011-89 ГОСТ 12.4.023-84

 

 

1

5.3 Потребность в основных материалах, необходимых для устройства армированной кирпичной облицовки толщиной в 1/2 кирпича с утеплителем определенная на основании «Нормативных показателей расхода материалов» приведена в таблице 9.

Таблица 9 - Ведомость потребности в материалах, изделиях и конструкциях

№ п/п

Наименование материалов

Ед. изм.

Исходные данные

Потребность на 100 м2

Обоснование норм расхода

Единица измерения по норме

Объем работ в нормативных единицах

Норма расхода

1

Кирпич керамический облицовочный, размером 250´120´65 мм ГОСТ 530-95*

1000 шт

Е 8-7.3

100 м2 за вычетом проемов

1

5

5

2

Раствор цементно-песчаный Ml00 ГОСТ 28013-98*

м3

Е 8-7.3

100 м2 за вычетом проемов

1

2,27

2,27

3

Плиты утеплителя

м3

По проекту

100 м2 за вычетом проемов

1

5,0

5,0

4

Сетка металлическая проволочная Æ3 мм ГОСТ 2715-75*

м2/кг

Е 8-7.1

100 м2 фасада

1

15/8,7

15/8,7

5

Сталь арматурная горячекатаная гладкая A-I d=6

м/кг

Е 8-7.1

100 м2 фасада

1

15/3,4

15/3,4

 

ГОСТ 2590-88

 

 

 

 

 

 

Толщина плиты утеплителя - 50 мм.

6 ТЕХНИКО-ЭКОНОМИЧЕСКИЕ ПОКАЗАТЕЛИ

6.1 Работы по устройству облицовки кирпичом с утеплением выполняет комплексная бригада в составе 5 человек:

каменщик 5 разряда - 1

каменщик 3 разряда - 1

сварщик 3 разряда - 1

изолировщик 4 разряда - 1

изолировщик 3 разряда - 1

6.2 Затраты труда и машинного времени на устройство 100 м2 облицовки из кирпича с утеплением подсчитаны по "Единым нормам и расценкам на строительные, монтажные и ремонтно-строительные работы" (таблица 9).

6.3 Календарный график производства работ на устройство 100 м2 приведен в таблице 10.

Таблица 10 - Калькуляция затрат труда

(измеритель конечной продукции - 100 м2)

№ п/п

Обоснование (ЕНиР и др. нормы)

Наименование технологических процессов

Ед. изм.

Объем работ

Норма времени на ед. изм. рабочих, чел.-ч

Затраты труда на ед. изм. рабочих, чел.-ч

1

2

3

4

5

6

7

1

Е 22-1-2

Сварка анкеров с закладными пластинами и установка металлических сеток

10 м шва

1,9

3,2

6,08

2

Е 8-3-17

Установка теплоизоляционных плит с креплением их шпильками

м2

100

0,4

40

3

применительно Е 3-3, табл.5 №2а

Кирпичная кладка с расшивкой облицовки толщиной 120 мм

м3 стены

12

7,4

88,8

 

 

Итого:

 

 

 

134,88

6.4 Технико-экономические показатели по устройству облицовки:

- производительность 1 человека в смену в м2...........….............6,07

- трудозатраты на сооружение 100 м2 облицовки, чел.-ч............134,88

- продолжительность сооружения 100 м2 облицовки, час...…....70,5


 

Таблица 11- График производства работ

Измеритель конечной продукции - 100 м2

 

Наименование технологических процессов

Ед. изм.

Объем работ

Затраты труда рабочих чел./час.

Принятый состав звена

Продолжительное процесса

Рабочие смены

1

2

3

4

5

6

Рабочие часы

1

2

3

4

5

6

7

8

1

2

3

4

5

6

7

8

1

2

3

4

5

6

7

8

1

2

3

4

5

6

7

8

1

2

3

4

5

6

7

8

1

2

3

4

5

6

7

8

1

Сварка анкеров с закладными пластинами и установка металлических сеток

10 м шва

1,9

6,08

Сварщик

3 разр.-1

6

 

 

 

 

 

 

 

 

 

 

 

 

 

 

 

 

 

 

 

 

 

 

 

 

 

 

 

 

 

 

 

 

 

 

 

 

 

 

 

 

 

 

 

 

 

 

 

 

 

 

 

 

 

 

2

Установка теплоизоляционных плит с креплением их шпильками

м2

100

40

Изолировщики

4 разр.-1

3 разр-1

20

 

 

 

 

 

 

 

 

 

 

 

 

 

 

 

 

 

 

 

 

 

 

 

 

 

 

 

 

 

 

 

 

 

 

 

 

 

 

 

 

 

 

 

 

 

 

 

 

 

 

 

 

 

 

 

 

 

 

 

 

 

 

 

 

 

 

 

 

3

Кирпичная кладка с расшивкой облицовки толщиной 120 мм

м3 стены

12

88,8

Каменщики

5 разр.-1

3 разр.-1

44,5

 

 

 

 

 

 

 

 

 

 

 

 

 

 

 

 

 

 

 

 

 

 

 

 

 

 

 

 

 

 

 

 

 

 

 

 

 

 

 

 

 

 

 

 

 

 

 

 

 

 

 

 

 

 

 

 

 

 

 

 

 

 

 

 

 

 

 

 

 

 

 

 

 

 

 

 

 

 

 

 

 

 

 

 

 

 

 

 

 

 

 

 

 

Итого:

 

 

134,88

 

70,5

 

 

 

 

 

 

 

 

 

 

 

 

 

 

 

 

 

 

 

 

 

 

 

 

 

 

 

 

 

 

 

 

 

 

 

 

 

 

 

 

 

 

 

 

 

 

 

 


7 ПЕРЕЧЕНЬ ЛИТЕРАТУРЫ

1. СНиП 3.03.01-87 «Несущие и ограждающие конструкции».

2. СНиП 3.04.01-87 «Изоляционные и отделочные покрытия».

3. СНиП 12-01-2004 «Организация строительства».

4. СНиП 12-03-2001 «Безопасность труда в строительстве. Часть 1. Общие требования».

5. СНиП 12-04-2002 «Безопасность труда в строительстве. Часть 2. Строительное производство».

6. СНиП 23-02-2003 «Тепловая защита зданий».

7. ПБ 10-382-00 «Правила устройства и безопасной эксплуатации грузоподъемных кранов».

8. «Правила технической эксплуатации электроустановок потребителей». Госэнергонадзор Минэнерго России. 2003.

9. ППБ 01-03. «Правила пожарной безопасности в Российской Федерации».

10. «Рекомендации по установке и безопасной эксплуатации грузоподъемных кранов, строительных подъемников, грузоподъемных кранов-манипуляторов и подъемников (вышек) при разработке проектов организации строительства и проектов производства работ», ПКТИпромстрой, 2004.

11. Единые нормы и расценки на строительные, монтажные и ремонтно-строительные работы, 1987 г.

12. Правила подготовки и производства земляных работ и обустройства и содержания строительных площадок в г. Москве. Постановление Правительства Москвы от 07.12.2004. № 857-ПП

13. ГОСТ 530-95* «Кирпич и камни керамические. Технические условия».

14. ГОСТ 2590-88 «Прокат стальной горячекатаный круглый. Сортамент».

15. ГОСТ 2715-75* «Сетки металлические проволочные. Типы, основные параметры и размеры».

16. ГОСТ 7484-78 «Кирпич и камни керамические лицевые. Технические условия».

17. ГОСТ 9573-96 «Плиты из минеральной ваты на синтетическом связующем теплоизоляционные. Технические условия».

18. ГОСТ 15588-86 «Плиты пенополистирольные. Технические условия».

19. ГОСТ 22950-95 «Плиты минераловатные повышенной жесткости на синтетическом связующем. Технические условия».

20. ГОСТ 28013-98* «Растворы строительные. Общие технические условия».

21. Строительная, дорожная и специальная техника. Краткий справочник. АО «ПРОФТЕХНИКА», 1996

Rambler's Top100 Яндекс цитирования
  Copyright © 2008, www.docload.ru

Добавить в Избранное