Бесплатная библиотека стандартов и нормативов www.docload.ru

Все документы, размещенные на этом сайте, не являются их официальным изданием и предназначены исключительно для ознакомительных целей.
Электронные копии этих документов могут распространяться без всяких ограничений. Вы можете размещать информацию с этого сайта на любом другом сайте.
Это некоммерческий сайт и здесь не продаются документы. Вы можете скачать их абсолютно бесплатно!
Содержимое сайта не нарушает чьих-либо авторских прав! Человек имеет право на информацию!

 

Система нормативных документов в строительстве

СВОД ПРАВИЛ ПО ПРОЕКТИРОВАНИЮ И СТРОИТЕЛЬСТВУ

КОНСТРУКЦИИ С ПРИМЕНЕНИЕМ
ГИПСОВОЛОКНИСТЫХ ЛИСТОВ

СП 55-102-2001

ГОСУДАРСТВЕННЫЙ КОМИТЕТ РОССИЙСКОЙ ФЕДЕРАЦИИ
ПО СТРОИТЕЛЬСТВУ И ЖИЛИЩНО-КОММУНАЛЬНОМУ КОМПЛЕКСУ
(ГОССТРОЙ РОССИИ)

Москва

2002

ПРЕДИСЛОВИЕ

1 РАЗРАБОТАН ОАО «ЦНИИПромзданий» при участии группы специалистов предприятий фирмы КНАУФ, ФГУП ЦНИИСК им. В.А. Кучеренко и ФГУП Центр методологии нормирования и стандартизации в строительстве

2 ОДОБРЕН Управлением стандартизации, технического нормирования и сертификации Госстроя России (письмо от 25.12.2001 г. № 9-26/871)

СОГЛАСОВАН Главным управлением Государственной противопожарной службы МВД России (письмо от 21.12.2001 г. № 20/2.2./4689)

УТВЕРЖДЕН И ВВЕДЕН В ДЕЙСТВИЕ совместным приказом ООО «КНАУФ Сервис» и ОАО «ЦНИИПромзданий» № 01 от 14.01.2002 г. с 1 июля 2002 г.

СОДЕРЖАНИЕ

Введение. 2

1 Область применения. 3

2 Нормативные ссылки. 3

3 Общие положения. 3

4 Материалы, используемые для конструкций из гипсоволокнистых листов. 4

4.1 Гипсоволокнистые листы.. 4

4.2 Элементы каркасов. 5

4.3 Комплектующие материалы и изделия. 6

4.4 Материалы и изделия, рекомендуемые для применения при устройстве конструкций. 8

5 Технические решения конструкций из гипсоволокнистых листов. 9

5.1 Общие положения. 9

5.2 Каркасно-обшивные перегородки. 9

5.3 Облицовка стен. 20

5.4 Конструктивные требования к облицовкам стен, потолков и скатов помещений мансард. 22

5.5 Коммуникационные шахты.. 24

5.6 Подвесные потолки. 24

5.7 Сборные основания под покрытия полов. 28

5.8 Огнезащитные облицовки строительных конструкций. 29

6 Технология монтажа и устройства конструкций из гипсоволокнистых листов. 33

6.1 Монтаж перегородок и облицовок стен. 33

6.2 Особенности устройства облицовки стен, потолков и скатов помещений мансард. 35

6.3 Способы устройства ограждений коммуникационных шахт. 35

6.4 Устройство сборных оснований под покрытия полов. 35

6.5 Монтаж подвесных потолков. 36

6.6 Способы устройства огнезащиты несущих конструкций. 37

6.7 Отделка поверхностей конструкций с применением гипсоволокнистых листов. 37

6.8 Особенности производства работ при реконструкции и ремонте конструкций с применением гипсоволокнистых листов. 37

7 Основные правила техники безопасности при производстве работ. 38

8 Транспортировка и хранение материалов и изделий. 38

9 Основные правила технической эксплуатации конструкций с применением гипсоволокнистых листов. 39

10 Приемка смонтированных конструкций с применением гипсоволокнистых листов. 40

Приложение А Перечень нормативных документов, на которые даны ссылки в настоящем Своде правил. 41

Приложение Б Характеристики металлических профилей. 42

Приложение В Материалы для устройства конструкций с применением гипсоволокнистых листов, поставляемые предприятиями группы КНАУФ.. 42

Приложение Г Инструменты.. 43

Приложение Д Области применения сборных оснований под покрытия пола из гипсоволокнистых листов в зданиях различного назначения. 44

ВВЕДЕНИЕ

Данный Свод правил разработан с целью создания нормативной базы для внедрения в отечественную строительную практику комплектной системы «сухой» (без использования «мокрых» процессов) высококачественной отделки помещений.

Применяя термин «комплектная система «сухой» отделки», необходимо иметь в виду, что комплектная система это:

- типовое конструктивное решение;

- технология работ;

- комплект материалов;

- комплект оборудования;

- информационное обеспечение.

Сегодня технологии «сухой» отделки стремительно входят в строительную практику России. И это не случайно. Кроме значительного сокращения трудовых затрат и экономии материалов, технологии «сухой» отделки существенно сокращают нагрузку на несущие конструкции здания. Это дает возможность при том же фундаменте повысить этажность здания, улучшить архитектурную и планировочную часть помещения. Кроме того, комплектная система «сухой» отделки помещений дает еще целый ряд преимуществ:

·       создание технически оптимизированных конструкций

·       возможность предварительного заказа материалов необходимых размеров при производстве

·       большая точность размеров строительных изделий

·       минимальное количество «мокрых» процессов

·       улучшение звукоизоляции, изменение внутренней планировки при реконструкции старых зданий

·       реализация разнообразных архитектурных решений, возможность получения не только плоских, но и криволинейных поверхностей

·       сокращение перерывов в строительном процессе (все материалы поставляются в комплекте)

·       незначительная масса строительных изделий и деталей (их легко переносят один или два рабочих)

·       нетрудоемкий демонтаж конструкций.

Наибольший вклад в развитие этих технологий внесла фирма КНАУФ, которая в течение десятилетий работает над тем, чтобы сделать внутреннюю отделку зданий более эффективной.

Настоящий Свод правил содержит практические рекомендации, использование которых обеспечивает выполнение обязательных требований строительных норм и правил, предъявляемых к эксплуатационным характеристикам конструкций с применением гипсоволокнистых листов при их проектировании и монтаже. СП был разработан на основе опыта применения комплектных систем КНАУФ в Европе и России.

Выбор конструктивных решений и материалов для устройства различных конструкций зданий и сооружений относится к компетенции проектной или строительной организации.

В случае если для реализации приняты конструктивные решения и материалы, рекомендуемые настоящим Сводом правил, все приведенные в нем рекомендации, относящиеся к выбранному техническому решению, являются обязательными. Частичное использование требований и правил по отдельным техническим решениям, приведенным в настоящем документе, не допускается.

В разработке настоящего Свода правил принимали участие: С. М. Гликин, канд. техн. наук (ОАО «ЦНИИПромзданий»); В. Д. Иващенко (ЗАО «ТИГИ КНАУФ Маркетинг»); Т. Н. Скворцов (ООО «КНАУФ Сервис»); В. В. Поплавский, канд. техн. наук (ОАО «Авангард КНАУФ»); А. В. Популова (ООО «Уралгипс КНАУФ Маркетинг»); А. А. Федулов, канд. техн. наук (ООО «КНАУФ Сервис»); А. З. Дысин (ООО «Кубань КНАУФ»); В. Н. Зигерн-Корн, канд. техн. наук (ФГУП ЦНИИСК им. В.А. Кучеренко); С. Н. Нерсесов, канд. техн. наук, Л. С. Экслер (ФГУП ЦНС).

СВОД ПРАВИЛ ПО ПРОЕКТИРОВАНИЮ И СТРОИТЕЛЬСТВУ

КОНСТРУКЦИИ С ПРИМЕНЕНИЕМ
ГИПСОВОЛОКНИСТЫХ ЛИСТОВ

STRUCTURES
OF GYPSUM-FIBER BOARDS

Дата введения 2002-07-01

1 ОБЛАСТЬ ПРИМЕНЕНИЯ

Настоящий Свод правил устанавливает рекомендации по проектированию, устройству и эксплуатации строительных конструкций поэлементной сборки с применением гипсоволокнистых листов (каркасно-обшивных перегородок, облицовок стен, ограждающих конструкций помещений мансард, коммуникационных шахт, подвесных потолков, сборных оснований под покрытия полов, огнезащитных облицовок стальных и деревянных конструкций).

Конструкции с применением гипсоволокнистых листов могут использоваться в зданиях различного назначения, различной степени огнестойкости и класса функциональной пожарной опасности, любой этажности и любых конструктивных систем, возводимых во всех климатических районах страны, включая сейсмические районы и районы с другими особыми условиями, при выполнении нормативных требований к конструкциям. Имеющиеся ограничения области применения конкретных конструкций указаны в разделе 5 настоящего Свода правил.

2 НОРМАТИВНЫЕ ССЫЛКИ

Перечень нормативных документов, на которые имеются ссылки в настоящем Своде правил, приведен в приложении А.

3 ОБЩИЕ ПОЛОЖЕНИЯ

3.1 Гипсоволокнистые листы при устройстве конструкций зданий рекомендуется применять в случаях, когда целесообразно исключить «мокрые» процессы отделки поверхностей строительных конструкций, а также когда необходимо обеспечить повышение теплозащитных, звукоизоляционных и (или) пожарно-технических характеристик конструкций при минимальном расходе конструкционных материалов.

3.2 Каркасно-обшивные конструкции с применением гипсоволокнистых листов устраиваются путем обшивки металлического или деревянного каркаса. Как правило, конструкции с деревянным каркасом целесообразно применять при небольших объемах строительных или ремонтно-строительных работ.

3.3 В настоящем Своде правил приведены рекомендуемые конструктивные решения, разработанные с применением элементов каркасов, комплектующих изделий и материалов, указанных в разделе 4. При применении этих технических решений параметры конструкций в части размеров сечения и максимальных шагов элементов каркаса, максимально допустимой высоты конструкций, а также устройства соединений допускается использовать непосредственно без проведения обосновывающих расчетов. Если применяются элементы каркасов, комплектующие изделия и материалы, отличающиеся от указанных в разделе 4, перечисленные выше параметры конструкций должны определяться по расчету или по результатам испытаний.

3.4 Изделия и материалы, указанные в разделе 4, должны удовлетворять требованиям соответствующих стандартов или технических условий (при отсутствии стандарта), а для покупных материалов зарубежного производства - требованиям технического свидетельства на них. Материалы и изделия должны иметь сопутствующую документацию, включая: сертификаты соответствия (для материалов, подлежащих обязательной сертификации); гигиенические заключения (для материалов, включенных в утвержденный Минздравом России перечень материалов, подлежащих гигиенической оценке); сертификаты пожарной безопасности (для материалов с нормируемыми пожарно-техническими характеристиками); инструкции по применению.

4 МАТЕРИАЛЫ, ИСПОЛЬЗУЕМЫЕ ДЛЯ КОНСТРУКЦИЙ ИЗ ГИПСОВОЛОКНИСТЫХ ЛИСТОВ

4.1 ГИПСОВОЛОКНИСТЫЕ ЛИСТЫ

4.1.1 Гипсоволокнистые листы по ГОСТ Р 51829 являются облицовочным материалом, обладающим физико-техническими характеристиками, расчетные значения которых указаны в таблицах 4.1 и 4.2.

4.1.2 Гипсоволокнистые листы, соответствующие ГОСТ Р 51829, относятся к горючим строительным материалам со следующими пожарно-техническими характеристиками:

группа горючести по ГОСТ 30244 - Г1;

группа воспламеняемости по ГОСТ 30402 - В1;

группа дымообразующей способности по ГОСТ 12.1.044 - Д1;

группа токсичности продуктов горения по ГОСТ 12.1.044 - Т1;

группа распространения пламени по ГОСТ 30444 -РП1.

Таблица 4.1

Толщина листа S, мм

Масса, кг/м2

Предел прочности при изгибе, МПа

От 10,0 до 12,5 включ.

(1,05-1,25)s*

5,5

Св. 12,5 » 15,0    »

5,0

 »   15,0 » 18,0     »

4,8

 »   18,0 » 20,0     »

4,5

* Здесь s - число, равное толщине листа, мм.

Примечание - Приведенные данные соответствуют ГОСТ Р 51829.

Таблица 4.2

Наименование и единица измерения характеристики

Диапазон значений

Влажность, %

£1,5

Поверхностное водопоглощение*, кг/м2×ч

£1,0

Теплопроводность, Вт/(м×°С)

0,22-0,36

Коэффициент теплоусвоения, Вт/(м2×°С)

£6,2

Сопротивление паропроницанию, м2×ч×Па/мг

0,12

Твердость*, МПа

³20

* Приведенные данные соответствуют ГОСТ Р 51829.

4.1.3 Гипсоволокнистые листы изготовляются двух видов: обычные (ГВЛ) и влагостойкие (ГВЛВ). Листы вида ГВЛ следует применять в ограждающих конструкциях помещений с сухим и нормальным влажностными режимами, а листы ГВЛВ могут применяться также в ограждающих конструкциях помещений с влажным влажностным режимом по СНиП II-3. В помещениях с мокрым влажностным режимом применение гипсоволокнистых листов не допускается.

4.1.4 В зависимости от размеров листы подразделяются на крупноформатные [2500´1200´10(12,5) мм] и малоформатные [1500´1200´(1000)´10(12,5) мм]. Номинальные размеры листов приведены в таблице 4.3. Предельные отклонения от номинальных размеров листов указаны в таблице 4.4.

Таблица 4.3

Наименование показателя

Номинальные размеры гипсоволокнистых листов, мм

Длина

1500; 2000; 2500; 2700; 3000

Ширина

500; 1000; 1200

Толщина

10; 12,5; 15; 18; 20

Таблица 4.4

Длина L, ширина В, мм

Предельные отклонения от номинальных размеров листов, мм

по длине

по ширине

по толщине

L £ 2500

0

0

±0,3

B £ 120

-3

-3

L > 2500

0

0

±0,3

B >1200

-5

-4

4.1.5 Гипсоволокнистые листы выпускаются с продольной кромкой двух типов, указанных в таблице 4.5.

Таблица 4.5

Эскиз

Тип

Обозначение

Фальцевая кромка

ФК

Прямая кромка

ПК

4.1.6 При необходимости устройства криволинейных циркульных поверхностей ограждающих конструкций применяются гнутые гипсоволокнистые листы. Минимальный радиус изгиба гипсоволокнистых листов в мокром состоянии: 400 мм для листов толщиной 10 мм и 1000 мм для листов толщиной 12,5 мм; в сухом состоянии соответственно - 3750 мм и 5500 мм.

4.2 ЭЛЕМЕНТЫ КАРКАСОВ

4.2.1 Для устройства металлического каркаса рекомендуется применять гнутые профили из углеродистой холоднокатаной стальной оцинкованной ленты толщиной не менее 0,6 мм, изготовленной из стали по ГОСТ 14198.

4.2.2 Форма сечения и номенклатура профилей, рекомендуемых для устройства конструкций, приведены в таблице 4.6. Характеристики сечений рекомендуемых профилей каркаса приведены в приложении Б. Допускается использовать гнутые профили другой формы и размеров при соблюдении условий, указанных в 3.3.

Таблица 4.6

Наименование профиля

Сечение

Марка

Длина, м

Масса 1 м длины, кг

Область применения

Направляющий

ПН 50/40

2,75; 3,0; 4,0; 4,5

0,61

Направляющие профили каркаса перегородок и облицовок стен

ПН 65/40

0,68

ПН 75/40

0,73

ПН 100/40

0,85

Стоечный

ПС 50/50

2,75; 3,0; 4,0; 4,5

0,73

Стойки каркаса перегородок и облицовки стен

ПС 65/50

0,81

ПС 75/50

0,85

ПС 100/50

0,97

Потолочный

 

ПП 60/27

2,75; 3,0; 4,0; 4,5

0,6

Каркас подвесных потолков и облицовки стен

Направляющий

 

ПН 28/27

2,75; 3,0; 4,0; 4,5

0,4

Каркас подвесного потолка и облицовки стен

Угловой

 

ПУ 31/31

2,75; 3,0; 4,0; 4,5

0,2

Защита наружных углов перегородок и облицовок стен

Гнутый (выпуклый, вогнутый)

ПП 60/27 с радиусом гибки не менее 500 мм

До 6,0

0,6

Каркас криволинейных потолков, конструкций арок и сводов

Примечание - В марках профилей первое число обозначает ширину профиля, второе - высоту.

4.2.3 Стальные профили должны удовлетворять следующим требованиям:

- отклонения высоты и ширины сечения профилей от номинальных не должны превышать ±1,0 мм, длины профилей ±3,0 мм;

- скручивание профилей вокруг продольной оси не должно превышать 1° на 1 м длины профиля; допускается любое скручивание профилей, устраняющееся при укладке профиля на горизонтальную плоскость и при установке профиля в конструкцию;

- местная кривизна не должна превышать 2 мм на 1 м длины профиля; общая кривизна не должна превышать значения допускаемой местной кривизны, умноженного на всю длину профиля;

- волнистость на поверхности профиля не должна превышать 2,5 мм, длина волны не более 150 мм;

- на поверхности профилей не допускаются задиры, трещины по основному металлу, глубокие царапины.

4.2.4 Для устройства металлического каркаса конструкций с криволинейными поверхностями рекомендуется применять профили, изогнутые в заводских условиях в соответствии с конкретным заказом.

4.2.5 Для устройства деревянных каркасов должны использоваться пиломатериалы из антисептированной древесины не ниже 2-го сорта по ГОСТ 8486. Влажность древесины при применении пиломатериалов в конструкциях должна быть в пределах 12±3 %.

4.3 КОМПЛЕКТУЮЩИЕ МАТЕРИАЛЫ И ИЗДЕЛИЯ

4.3.1 Комплектующие изделия

4.3.1.1 Виды и характеристики изделий, предназначенных для крепления элементов металлических каркасов между собой и к несущим конструкциям зданий, а также для крепления гипсоволокнистых листов к каркасу, изготовляемых специализированными предприятиями и рекомендуемых для использования, указаны в 4.3.1.2 - 4.3.1.7. Допускается применение других видов крепежных и соединительных изделий при условиях по 3.3.

4.3.1.2 Для соединения элементов каркасов и крепления их к несущим конструкциям зданий рекомендуется применять соединительные детали и подвесы, характеристики и назначение которых указаны в таблице 4.7.

4.3.1.3 Для крепления гипсоволокнистых листов к металлическому каркасу с толщиной стенки профиля менее 0,7 мм и к деревянному каркасу рекомендуется применять самонарезающие винты (шурупы) с двухзаходной равнопрофильной резьбой, фрезерной головкой потайной формы, крестообразным шлицем и заостренным концом, которые рекомендуется изготавливать из стали марок 10, 10кп, 15, 15кп, 20 и 20кп по ГОСТ 10702. Длина винтов определяется в зависимости от вида каркаса и толщины обшивки (таблица 4.8).

4.3.1.4 Для крепления гипсоволокнистых листов к металлическому каркасу с толщиной металла профиля 0,7-2,2 мм рекомендуется применять самонарезающие винты (шурупы) с высверливающим концом, потайной головкой и крестообразным шлицем, изготовляемые из стали марок 10, 10кп, 15, 15кп, 20 и 20кп по ГОСТ 10702. Длина винтов определяется в зависимости от вида каркаса и толщины обшивки (таблица 4.8).

Таблица 4.7 - Номенклатура соединителей и подвесов

Общий вид

Название, основные характеристики

Назначение

 

Прямой подвес

Изготовлен из оцинкованной стали толщиной 0,8 мм.

Расчетная нагрузка - 40 кгс

для профиля ПП 60/27

Габаритные размеры: 60´30´125 мм

для деревянных брусков

Габаритные размеры: 50´30´125 мм

Применяется для крепления потолочного профиля ПП 60/27 и деревянных брусков каркаса при облицовке стен, мансард и при устройстве подвесных потолков

 

Подвес с зажимом

Изготовлен из оцинкованной стали толщиной 0,8 мм. Зажим подвеса изготавливается из пружинистой стали.

Расчетная нагрузка - 15 кгс.

Габаритные размеры: 100´58´42 мм

Применяется с тягой подвеса для крепления профилей ПП 60/27. Допускает регулировку профиля при монтаже

 

Тяга подвеса

Диаметр прутка - 4 мм.

Длина - 500, 850, 1000 мм

Используется для соединения подвеса с зажимом с несущим перекрытием. Закрепляется через петлю на базовом перекрытии

 

Удлинитель профилей ПП 60/27

Изготовлен из оцинкованной стали толщиной 0,6 мм, обладающей пружинистыми свойствами.

Габаритные размеры: 110´58´25 мм

Служит для соединения (наращивания) потолочных профилей. Применяется с профилем ПП 60/27

 

Соединитель двухуровневый

Изготовлен из оцинкованной стали толщиной 0,9 мм.

Габаритные размеры: 62´58´45 мм

Предназначен для крепления несущих профилей к основным профилям в конструкциях двухуровневых подвесных потолков. Применяется с профилем ПП 60/27

 

Соединитель одноуровневый

Изготовлен из оцинкованной стали толщиной 1,0 мм, обладающей пружинистыми свойствами.

Габаритные размеры: 148´56´26 мм

Предназначен для крепления несущих отрезков потолочного профиля к основным профилям в конструкции одноуровневого подвесного потолка

4.3.1.5 Для соединения металлических деталей между собой рекомендуется использовать самонарезающие винты (шурупы) с заостренным концом и крестообразным шлицем, изготовляемые из стали марок 10, 10кп, 15, 15кп, 20 и 20кп по ГОСТ 10702 (таблица 4.8).

4.3.1.6 Для крепления профилей каркаса и подвесов к несущим конструкциям рекомендуется применять анкерные дюбели, а для крепления навесного оборудования непосредственно к обшивке из гипсоволокнистых листов рекомендуется использовать специальные дюбели, номенклатура которых приведена в таблице 4.9.

4.3.1.7 Крепление элементов деревянного каркаса между собой предусматривается на гвоздях с предпочтительным применением накладок из углеродистой холоднокатаной листовой оцинкованной стали толщиной не менее 0,6 мм.

Таблица 4.8 - Номенклатура самонарезающих винтов (шурупов)

Крепление гипсоволокнистых листов к каркасу

Крепление металлических элементов между собой

Общий вид винтов

Толщина обшивки, мм

деревянному

металлическому

Длина, мм, винта вида

самонарезающий винт (шуруп) с острым концом

самонарезающий винт (шуруп) с острым концом (при толщине стенки профиля менее 0,7 мм)

самонарезающий винт (шуруп) с высверливающим концом (при толщине стенки профиля 0,7 мм и более)

самонарезающий винт (шуруп) с острым концом для соединения металлических элементов

самонарезающий винт (шуруп) с острым концом

самонарезающий винт (шуруп) с высверливающим концом

самонарезающий винт (шуруп) с острым концом для соединения металлических элементов

10

30

30

25

9; 11

 

12,5

45

10+10

Первый слой - 30

Второй слой - 45

Первый слой - 30

Второй слой - 45

Первый слой - 25

Второй слой - 35

12,5+12,5

Первый слой - 45

Второй слой - 45

Первый слой - 25

Второй слой - 45

12,5+12,5+12,5

-

Первый слой - 30

Второй слой - 45

Третий слой - 22

Первый слой - 25

Второй слой - 45

Третий слой - 22

Таблица 4.9 - Номенклатура дюбелей

Вид дюбелей

Назначение дюбелей

Размеры винтов

Общий вид дюбеля с винтом

диаметр, мм

длина, мм

Дюбель для пустотелых конструкций

Крепление профилей и навесного оборудования к пустотелым конструкциям

11

13

49-77

51-79

Дюбель универсальный (с пределом огнестойкости до 45 мин)

Крепление профилей и навесного оборудования к пустотелым конструкциям

6

35, 40, 50, 70, 80

 

Дюбель анкерный пластмассовый (с пределом огнестойкости свыше 45 мин)

Крепление направляющих профилей и подвесов к несущим конструкциям

6

8

35, 40, 50, 70, 80

 

Дюбель анкерный металлический (с пределом огнестойкости свыше 45 мин)

6

49

 

Дюбель для навески предметов на гипсоволокнистые листы

Крепление навесного оборудования на гипсоволокнистые листы

12

39

 

4.3.2 Комплектующие материалы

4.3.2.1 Для заделки стыков между гипсоволокнистыми листами рекомендуется использовать сухую шпаклевочную смесь на основе гипсового вяжущего по ГОСТ 125 со специальными добавками, обеспечивающими увеличение сроков схватывания и повышение водоудерживающей способности. Предел прочности при изгибе - не менее 1,5 МПа, предел прочности при сжатии - 3 МПа. Начало схватывания не ранее 90 мин. Тонкость помола: остаток на сите 0,2 мм - не более 0,2 %, на сите 1,0 мм - 0 %.

4.3.2.2 Для подготовки поверхности гипсоволокнистых листов под высококачественную окраску рекомендуется использовать хорошо шлифуемую финишную шпаклевку.

4.3.2.3 Для склеивания фальцев элементов пола из ГВЛВ и самих листов при устройстве сборных оснований под покрытия полов рекомендуется использовать специально предназначенные для этой цели клеи. Не допускается использовать клеи на силикатной и акриловой основе.

4.3.2.4 Для обработки швов перед шпаклеванием и при подготовке поверхности обшивки из гипсоволокнистых листов для дальнейшей отделки рекомендуется использовать грунтовку.

4.3.2.5 Для звукоизоляции конструкций между направляющими профилями или брусками каркаса и несущими конструкциями, между стоечными профилями двойного каркаса, а также между стоечными профилями или брусками, примыкающими к стенам и колоннам, рекомендуется использовать самоклеящуюся мелкопористую полимерную уплотнительную ленту или нетвердеющие герметики.

4.3.2.6 Для заделки стыков, образованных фальцевыми кромками (ФК) гипсоволокнистых листов, применяется сетчатая или перфорированная стеклотканевая армирующая лента (серпянка).

4.3.2.7 В санитарно-технических помещениях (ванные, душевые и т.п.) поверхности гипсоволокнистых листов, находящиеся под непосредственным воздействием влаги, рекомендуется покрывать гидроизолирующим составом, а в местах сопряжения стен между собой и стен с полом рекомендуется использовать самоклеящуюся гидроизоляционную ленту.

4.3.2.8 В качестве теплозвукоизоляционного материала в конструкциях перегородок, облицовок стен и мансардных помещений, а также в конструкциях подвесных потолков рекомендуется применять минераловатные плиты на синтетическом связующем по ГОСТ 9573 или стекловатные плиты на синтетическом связующем по ГОСТ 10499.

4.4 МАТЕРИАЛЫ И ИЗДЕЛИЯ, РЕКОМЕНДУЕМЫЕ ДЛЯ ПРИМЕНЕНИЯ ПРИ УСТРОЙСТВЕ КОНСТРУКЦИЙ

4.4.1 При устройстве конструкций зданий с применением гипсоволокнистых листов рекомендуется использовать материалы и изделия, комплектно поставляемые специализированными предприятиями.

4.4.2 Перечень материалов и изделий, а также инструментов, необходимых для устройства конструкций из гипсоволокнистых листов и поставляемых предприятиями группы КНАУФ, приведен в приложениях В и Г.

5 ТЕХНИЧЕСКИЕ РЕШЕНИЯ КОНСТРУКЦИЙ ИЗ ГИПСОВОЛОКНИСТЫХ ЛИСТОВ

5.1 ОБЩИЕ ПОЛОЖЕНИЯ

5.1.1 Настоящий раздел распространяется на проектирование конструкций поэлементной сборки с применением гипсоволокнистых листов. Область применения каждой из конструкций уточнена в конкретных подразделах данного раздела.

5.1.2 К конструкциям зданий с применением гипсоволокнистых листов предъявляются общие требования в части:

- качества поверхностей;

- пожарно-технических характеристик материала обшивок (для конструкций, располагаемых в зданиях на путях эвакуации);

- гигиенических характеристик материала обшивок;

- характеристик сопротивления воздействиям окружающей среды, в том числе воздействию повышенной влажности воздуха и агрессивным воздействиям среды.

5.1.3 Выполнение требований к качеству поверхностей (кроме поверхностей в зоне стыков между гипсоволокнистыми листами), к гигиеническим и пожарно-техническим характеристикам материала обшивок обеспечивается свойствами гипсоволокнистых листов при условии, что они соответствуют требованиям ГОСТ Р 51829.

5.1.4 Сопротивление конструкций воздействиям окружающей среды обеспечивается при следующих условиях:

- для конструкций, ограждающих помещения с влажным температурно-влажностным режимом по СНиП II-3, используются влагостойкие гипсоволокнистые листы (вида ГВЛВ по ГОСТ Р 51829);

- для конструкций, используемых в условиях агрессивных воздействий среды, элементы металлического и деревянного каркаса конструкций защищены от коррозии в соответствии с требованиями СНиП 2.03.11.

5.2 КАРКАСНО-ОБШИВНЫЕ ПЕРЕГОРОДКИ

К перегородкам строительными нормами и правилами предъявляются требования в части устойчивости к воздействиям собственного веса, веса навесного оборудования, других эксплуатационных нагрузок, ветра, сейсмических нагрузок.

Перегородки многоквартирных жилых домов (кроме межкомнатных перегородок с проемами) и перегородки между рабочими помещениями зданий непроизводственной сферы должны также удовлетворять требованиям по звукоизоляционной способности.

Перегородки, разделяющие отапливаемые и неотапливаемые помещения зданий различного назначения, должны также удовлетворять требованиям по сопротивлению теплопередаче и пароизоляции.

Перегородки с нормируемыми пожарно-техническими характеристиками строительных конструкций должны также удовлетворять требованиям к классу пожарной опасности и пределу огнестойкости.

5.2.1 Общие требования

5.2.1.1 Настоящий раздел распространяется на перегородки, устраиваемые для ограждения помещений с сухим, нормальным и влажным режимом по СНиП II-3.

5.2.1.2 Каркасно-обшивные перегородки включают металлический или деревянный каркас и обшивку из гипсоволокнистых листов, прикрепленную к нему на самонарезающих винтах. Воздушная полость между обшивками может быть заполнена теплозвукоизоляционным материалом.

Область применения перегородок с металлическим и деревянным каркасом в условиях агрессивных воздействий среды должна определяться с учетом СНиП 2.03.11.

5.2.1.3 Рекомендуемые для применения конструктивные схемы перегородок приведены в таблице 5.1. При выборе схем перегородок должны учитываться силовые и другие воздействия, классы функциональной и конструктивной опасности и степень огнестойкости здания, принятые объемно-планировочные параметры (в том числе высота этажа) и объемно-планировочные решения здания, учитывающие условие эксплуатации.

Таблица 5.1- Конструктивные схемы перегородок

№ п. п.

Схема

Конструкция

Справочная масса* 1 м2, кг

1

Одинарный металлический каркас, обшитый одним слоем гипсоволокнистых листов с обеих сторон

28 (34)

2

Одинарный металлический каркас, обшитый двумя слоями гипсоволокнистых листов с обеих сторон

53 (65)

3

Одинарный металлический каркас, обшитый тремя слоями гипсоволокнистых листов с обеих сторон

78 (97)

4

Двойной металлический каркас, обшитый двумя слоями гипсоволокнистых листов с обеих сторон

55 (68)

5

Двойной разнесенный металлический каркас с пространством для пропуска коммуникаций, обшитый двумя слоями гипсоволокнистых листов с обеих сторон

56 (69)

6

Одинарный металлический каркас, обшитый с обеих сторон тремя слоями гипсоволокнистых листов толщиной 12,5 мм

(103)

7

Одинарный деревянный каркас, обшитый одним слоем гипсоволокнистых листов с обеих сторон

33 (39)

8

Одинарный деревянный каркас, обшитый двумя слоями гипсоволокнистых листов с обеих сторон

58 (71)

* Справочная масса рассчитана для конструкций перегородок без теплозвукоизоляционного слоя с применением: гипсоволокнистого листа толщиной 10 (12,5) мм; профилей металлического каркаса ПС 75/50 и ПН 75/40; брусков деревянного каркаса сечением 60´50 мм.

5.2.2 Конструктивные требования

5.2.2.1 В стойках металлического каркаса допускается при необходимости предусматривать стыковку профилей по длине методом насадки или встык с использованием дополнительного профиля (рисунок 1).

При стыковании методом насадки длина нахлестки должна приниматься не менее 10-кратной высоты сечения стыкуемых профилей, а при использовании дополнительного профиля его длина должна быть не менее 20-кратной высоты сечения стыкуемых профилей.

Стыки профилей в стойках каркаса должны располагаться со взаимным смещением (вразбежку). При этом в одной горизонтальной плоскости не должно быть стыков профилей более чем в 20 % стоек.

5.2.2.2 Стыки брусков в стойках перегородок с деревянным каркасом следует устраивать с использованием стальных накладок.

5.2.2.3 В верхнем и нижнем горизонтальных поясах металлического и деревянного каркасов направляющие профили и бруски допускается соединять встык без нахлестки.

5.2.2.4 Стыки пиломатериалов в верхней обвязке деревянного каркаса перегородок должны располагаться над стойками, в нижней обвязке - между стойками.

Длина и минимальное количество гвоздей в стыках пиломатериалов в верхней обвязке и в стойках, а также в стыках между обвязками и стойками должны определяться расчетом в соответствии со СНиП II-25.

5.2.2.5 Крепление направляющих металлических профилей и деревянных брусков каркасов к полу и потолку, а также стоек, примыкающих к стенам или колоннам, следует предусматривать с помощью дюбелей, располагаемых с шагом не более 1000 мм, но не менее трех креплений на один профиль (брусок). В перегородке с трехслойной обшивкой и слоями оцинкованной стали между слоями обшивки (схема 6 по таблице 5.1) шаг крепления направляющих профилей к полу и потолку должен быть не более 500 мм.

5.2.2.6 Закрепление стоек металлического каркаса к направляющим следует предусматривать с помощью просекателя методом «просечки с отгибом», а деревянных стоек - гвоздями или винтами.

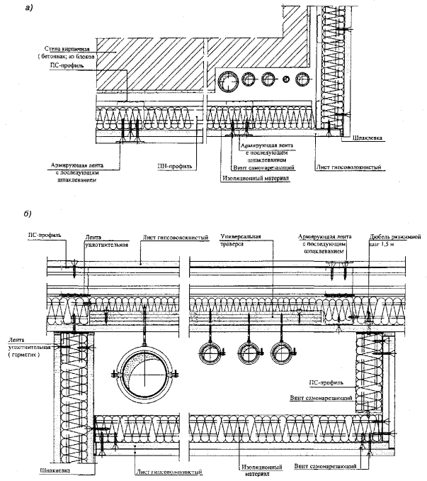
5.2.2.7 В местах горизонтальных стыков между гипсоволокнистыми листами следует предусматривать горизонтальные вставки в каркас из металлического профиля ПН или ПС или из деревянных брусков, закрепляемых к стойкам каркаса, или вставку из полосы гипсоволокнистого листа шириной около 100 мм (рисунок 2).

5.2.2.8 В целях повышения звукоизоляции перегородок следует предусматривать применение уплотнительной ленты или герметика между направляющими профилями каркаса и перекрытием (полом и потолком).

Уплотнительную ленту или герметик следует также предусматривать между спаренными стойками металлического каркаса и в местах сопряжения каркаса со стенами и колоннами.

5.2.2.9 Для обеспечения независимости деформации каркаса перегородки от прогиба вышележащего перекрытия под действием временных нагрузок рекомендуется предусматривать подвижное соединение в местах примыкания перегородки к потолку, как указано на рисунке 3.

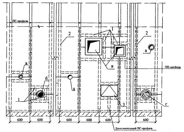
5.2.2.10 В перегородках длиной более 15 м необходимо предусматривать устройство температурных (деформационных) швов (рисунок 4), располагаемых на расстояниях не более 15 м друг от друга и от края перегородки.

5.2.2.11 В местах сопряжения перегородок с коммуникационными трассами следует предусматривать установку между стойками каркаса обрамляющих элементов из профилей ПН и ПС с закреплением их к стойкам (рисунок 5).

5.2.2.12 В местах пропуска трубопроводов через обшивку из гипсоволокнистых листов следует предусматривать закрепление их через шайбы с упругими прокладками и при обязательной герметизации мест сопряжения трубопровода с обшивкой из гипсоволокнистых листов (рисунок 6).

5.2.2.13 Гипсоволокнистые листы крепятся к каркасу самонарезающими винтами, располагаемыми с шагом не более 250 мм. Винты должны отстоять от края листа на расстоянии не менее 10 мм. При этом винты в двух смежных вертикальных рядах (при креплении двух листов на одной стойке) должны быть смещены по вертикали не менее чем на 10 мм. В двухслойной обшивке при креплении листов первого слоя шаг винтов допускается увеличивать в 3 раза. В конструкциях перегородок с трехслойной обшивкой шаг винтов составляет не более: для первого слоя - 750 мм, для второго слоя - 500 мм, для третьего слоя - 250 мм.

Самонарезающие винты должны входить в гипсоволокнистый лист под прямым углом и проникать через полку профиля на глубину не менее чем 10 мм, а в деревянный брусок каркаса - не менее чем на 20 мм. В трехслойных обшивках листы третьего слоя крепятся к листам второго слоя винтами длиной 22 мм.

5.2.2.14 Стыки гипсоволокнистых листов с фальцевой кромкой выполняются без зазоров, а с прямой кромкой с зазором 5-7 мм.

Таблица 5.2

Стойка каркаса

Расстояние между стойками, мм

Максимальная высота, м, перегородок с обшивками из гипсоволокнистых листов (10,0 или 12,5 мм) при использовании конструктивных схем по таблице 5.1

1

2

3

4

5

6

7

8

ПС 50/50

600

3,0

4,0

4,5

4,5

4,5

-

-

-

400

4,0

5,0

5,5

-

-

300

5,0

6,0

6,5

-

-

ПС 75/50

600

4,5

5,5

6,0

6,0

6,0

-

-

-

400

6,0

6,5

7,0

-

-

300

7,0

7,5

8,0

-

-

ПС 100/50

600

5,0

6,5

7,0

6,5

6,5

-

-

-

400

6,5

7,5

8,0

-

-

-

300

8,0

9,0

9,5

-

-

9,0

Деревянный брус 60´50 мм

600

-

-

-

-

-

-

3,1

3,1

Деревянный брус 80´50 мм

600

-

-

-

-

-

-

4,1

4,1

Примечание - Высота перегородки конструктивной схемы 1 на стоечном профиле ПС 50/50 при толщине гипсоволокнистого листа 10,0 мм составляет: при шаге 600 мм - 2,5 м, при шаге 400 мм - 3,0 м, при шаге 300 мм - 4,0 м.

Торцевые стыки должны быть смещены по вертикали не менее чем на 400 мм. При двухслойной обшивке торцевые стыки листов первого слоя должны быть также смещены относительно стыков листов второго слоя не менее чем на 400 мм.

Между обшивкой и потолком следует оставлять зазор 5 мм, а между обшивкой и полом - 10 мм.

5.2.2.15 При облицовке гипсоволокнистых листов керамической плиткой шаг стоек каркаса должен быть не более 400 мм.

5.2.2.16 В зоне возможных ударных нагрузок на наружных углах, образованных гипсоволокнистыми листами, рекомендуется применять защитные угловые профили.

5.2.2.17 В местах сопряжения гипсоволокнистых листов с поверхностью потолка и стен рекомендуется предусматривать применение разделительной ленты.

5.2.2.18 В местах установки дверной коробки стойки металлического каркаса перегородки усиливаются при массе двери до 30 кг деревянными брусками, а при большей массе - дополнительным профилем толщиной не менее 2 мм.

5.2.3 Обеспечение устойчивости

5.2.3.1 Для обеспечения требуемой устойчивости перегородок следует подбирать соответствующие геометрические характеристики сечения элементов каркаса, шаги стоек каркаса, число слоев и толщину листов обшивок.

5.2.3.2 Высоту перегородок без обосновывающих расчетов допускается принимать не более указанной в таблице 5.2. При использовании других вариантов обшивок максимальную высоту перегородок для обеспечения их прочности при воздействии собственного веса следует определять расчетом.

5.2.3.3 Для обеспечения прочности перегородок при воздействии навесного оборудования следует учитывать положения раздела 9 настоящего Свода правил.

5.2.3.4 Прочность и устойчивость принятого варианта конструктивной схемы перегородок при воздействии горизонтальных нагрузок, действующих перпендикулярно их плоскости, должна проверяться расчетом с учетом ветровой нагрузки, принимаемой равной 0,2 W0, где W0 - расчетное значение скоростного напора ветра, определяемое по СНиП 2.01.07.

5.2.3.5 Учитываемая в расчетах на сейсмические воздействия расчетная сейсмическая нагрузка составляет для районов с сейсмичностью 7, 8 и 9 баллов соответственно 6,5; 12,8 и 25,6 кгс/м2.

5.2.3.6 Стойкость перегородок к случайным ударам должна обеспечиваться конструктивно - см. 5.2.2.16.

5.2.4 Обеспечение требуемой звукоизоляции

5.2.4.1 Перегородки с нормируемым СНиП II-12 индексом изоляции воздушного шума рекомендуется проектировать с заполнением воздушной полости каркаса между обшивками звукоизоляционным материалом. Характеристики этого материала должны подбираться исходя из необходимости обеспечить соответствие расчетного значения звукоизоляции перегородок нормируемым значениям.

5.2.4.2 Фактические значения индексов изоляции воздушного шума при принятых конструктивных схемах и принятых характеристиках используемых материалов должны определяться путем испытаний в соответствии с ГОСТ 27296. При применении в конкретных зданиях перегородок, указанных в таблице 5.3, их звукоизоляционные характеристики могут приниматься непосредственно по этой таблице без проведения дополнительных испытаний. При этом должны быть соблюдены следующие условия:

конструктивные схемы перегородок и характеристики звукоизоляционных материалов и обшивок перегородок должны соответствовать указанным в таблице 5.3;

используемые гипсоволокнистые листы должны быть сертифицированы на соответствие требованиям ГОСТ Р 51829;

перегородки должны быть запроектированы и собраны в полном соответствии с требованиями настоящего Свода правил.

Таблица 5.3

Конструктивная схема перегородки (по таблице 5.1)

Общая толщина, мм

Размеры элементов перегородки, мм

Звукопоглощающая минераловатная плита в полости перегородки

Значения индексов изоляции

толщина листов обшивки

высота сечения профиля стойки

плотность, кг/м3

толщина, мм

Rw,B (ДИН 4109), дБ

IB (СНиП), дБ

Схема 1

70

10

50

95-100

50

45

43

75

12,5

50

46

44

95

10

75

47

45

100

12,5

75

48

46

120

10

100

48

46

125

12,5

100

49

47

Схема 2

90

10´2

50

48

46

100

12,5´2

50

49

47

115

10´2

75

50

48

125

12,5´2

75

51

49

140

10´2

100

50

48

150

12,5´2

100

52

50

Схема 4

145

10´2

105

52

50

155

12,5´2

105

53

51

195

10´2

155

54

52

205

12,5´2

155

55

53

245

10´2

205

55

53

255

12,5´2

205

56

54

Схема 5

200

10´2

170

55

53

12,5´2

56

54

Примечание - Приведенные в данной таблице показатели звукоизоляции получены по результатам испытаний в соответствии с ГОСТ 27296, проведенных НИИСФ Госстроя России.

5.2.5 Обеспечение требуемого сопротивления теплопередаче и пароизоляции

5.2.5.1 В перегородках, разделяющих отапливаемые и неотапливаемые помещения, должен использоваться утеплитель, плотность и толщина которого определяется расчетом в соответствии с требованиями СП 23-101.

5.2.5.2 При расчете требуемых характеристик утепляющего слоя следует учитывать расчетные значения показателя теплопроводности гипсоволокнистых листов, указанные в таблице 4.2.

5.2.5.3 В утепленных перегородках со стороны отапливаемого помещения должен иметься пароизоляционный слой. Этот слой рекомендуется устраивать путем укладки под обшивку перегородки полиэтиленовой пленки толщиной не менее 0,15 мм по ГОСТ 10354. Листы пленки должны укладываться с нахлестом не менее 100 мм.

5.2.6 Обеспечение требуемых пожарно-технических характеристик

5.2.6.1 Предел огнестойкости и класс пожарной опасности перегородок должны соответствовать нормируемым значениям, указанным в СНиП 21-01 и в строительных нормах и правилах, распространяющихся на здания конкретного назначения.

5.2.6.2 При применении конструктивных решений перегородок, указанных в таблице 5.4, допускается принимать значения пределов огнестойкости по этой таблице, составленной по результатам испытаний, выполненных в ФГУ ВНИИПО МВД России. При использовании других конструктивных схем, а также гипсоволокнистых листов, не сертифицированных на соответствие требованиям ГОСТ Р 51829, и (или) изоляционных материалов, отличающихся от указанных в таблице 5.4, пределы огнестойкости перегородок должны определяться в соответствии с ГОСТ 30247.1 испытательными центрами или лабораториями, аккредитованными в Системе сертификации пожарной безопасности, что должно быть подтверждено в установленном порядке.

Таблица 5.4

Схема (по таблице 5.1)

Конструктивное решение

Предел огнестойкости

Одинарный металлический каркас из стальных профилей ПС 75/50 и ПН 75/40 без заполнения минеральной ватой, обшитый с обеих сторон одним слоем гипсоволокнистых листов толщиной 12,5 мм

EI 30

Одинарный металлический каркас из стальных профилей ПС 75/50 и ПН 75/40 с заполнением минеральной ватой плотностью 70 кг/м3 толщиной 70 мм, обшитый с обеих сторон одним слоем гипсоволокнистых листов толщиной 12,5 мм

EI 45

Одинарный металлический каркас из стальных профилей ПС 75/50 и ПН 75/40 с заполнением минеральной ватой П-125 толщиной 70 мм, обшитый с обеих сторон одним слоем гипсоволокнистых листов толщиной 12,5 мм

EI 60

Одинарный металлический каркас из стальных профилей ПС 75/50 и ПН 75/40 без заполнения минеральной ватой, обшитый с обеих сторон двумя слоями гипсоволокнистых листов толщиной 12,5 мм

EI 90

Одинарный металлический каркас из стальных профилей ПС 75/50 и ПН 75/40 с заполнением минеральной ватой плотностью 70 кг/м3, обшитый с обеих сторон двумя слоями гипсоволокнистых листов толщиной 12,5 мм

EI 90

Одинарный металлический каркас из стальных профилей ПС 75/50 и ПН 75/40 с заполнением минеральной ватой П-125 толщиной 70 мм, обшитый с обеих сторон двумя слоями гипсоволокнистых листов толщиной 12,5 мм

Одинарный металлический каркас из стальных профилей ПС 75/50 и ПН 75/40 с заполнением минеральной ватой П-125 толщиной 70 мм, обшитый с обеих сторон тремя слоями гипсоволокнистых листов толщиной 12,5 мм

EI 150

Двойной металлический каркас из стальных профилей ПС 75/50 и ПН 75/40 с заполнением минеральной ватой плотностью 25 кг/м3 толщиной 50 мм, обшитый с обеих сторон двумя слоями гипсоволокнистых листов толщиной 10 мм

EI 90

Двойной разнесенный металлический каркас из стальных профилей ПС 75/50 и ПН 75/40 с внутренним зазором 75 мм и заполнением минеральной ватой плотностью 40 кг/м3 толщиной 50 мм, обшитый с обеих сторон двумя слоями гипсоволокнистых листов толщиной 10 мм

EI 150

Одинарный деревянный каркас из деревянных брусков 60´50 мм с заполнением минеральной ватой плотностью 25 кг/м3 толщиной 50 мм, обшитый с обеих сторон одним слоем гипсоволокнистых листов толщиной 10 мм

EI 45

Одинарный деревянный каркас из деревянных брусков 60´50 мм с заполнением минеральной ватой плотностью 25 кг/м3 толщиной 50 мм, обшитый с обеих сторон двумя слоями гипсоволокнистых листов толщиной 10 мм

EI 90

5.2.6.3 Класс пожарной опасности перегородок должен определяться по результатам испытаний в соответствии с ГОСТ 30403, проведенных аналогично испытаниям, указанным в 5.2.6.2. Без проведения испытаний могут быть приняты классы пожарной опасности перегородок, выполненных в полном соответствии с требованиями настоящего Свода правил, с обшивками из гипсоволокнистых листов, сертифицированных на соответствие требованиям ГОСТ Р 51289, в следующих случаях:

перегородки с металлическим каркасом, без теплозвукоизоляционного слоя или с теплозвукоизоляционным слоем из материала, являющегося негорючим или относящегося к группе горючести Г1 по ГОСТ 30244 - К0 (15...45);

перегородки с деревянным каркасом, с обшивкой гипсоволокнистыми листами толщиной не менее 12,5 мм, без теплозвукоизоляционного слоя или с теплозвукоизоляционным слоем из материала, являющегося негорючим или относящегося к группе горючести Г1 по ГОСТ 30244 - К0 (15);

то же, при общей толщине обшивок с каждой стороны не менее 25,0 мм - К0 (30);

то же, при общей толщине обшивок с каждой стороны не менее 37,5 мм - К0 (45).

5.2.6.4 Перегородки с металлическим каркасом с пределом огнестойкости не ниже EI 15 и EI 45 и класса пожарной опасности К0 могут применяться в качестве противопожарных перегородок соответственно 2-го и 1-го типов по СНиП 21-01.

5.2.6.5 При ожидаемом (расчетном) значении прогиба перекрытий, между которыми расположена перегородка с нормируемым пределом огнестойкости, подвижное соединение перегородки с вышележащим перекрытием должно выполняться теневыми швами или с замкнутой системой подвесного потолка (рисунок 3).

5.2.6.6 При пересечении противопожарной перегородки, нормируемый предел огнестойкости которой более 0,5 ч, с трубопроводами диаметром более 60 мм следует предусматривать изоляцию трубопроводов от плоскости перегородки кожухом с пределом огнестойкости не менее 0,5 ч (рисунок 7).

5.2.6.7 При пересечении противопожарных перегородок воздуховодами стенки воздуховодов должны иметь огнезащиту, обеспечивающую предел огнестойкости не менее 0,5 ч для зданий I и II степеней огнестойкости в соответствии со СНиП 2.04.05, при этом предел огнестойкости конструктивного решения проходки должен, как правило, быть не ниже предела огнестойкости пересекаемой перегородки.

5.2.6.8 Двери и другие заполнения проемов в противопожарных перегородках должны быть сертифицированы на соответствие требованиям СНиП 21-01.


Рисунок 1 - Соединение металлических профилей методом насадки (а) и встык с дополнительным профилем и в)

Горизонтальный разрез

Вертикальный разрез

Рисунок 2 - Горизонтальный и вертикальный разрезы, узлы примыканий, внутренние и внешние углы перегородки с одинарной обшивкой гипсоволокнистыми листами на одинарном металлическом каркасе

Подвижное присоединение теневыми швами


Подвижное присоединение, связанное с замкнутой системой подвесного потолка

При ожидаемом (расчетном) значении прогиба вышележащего перекрытия более 10 мм следует предусматривать подвижное присоединение перегородок к потолку

Рисунок 3 - Подвижное присоединение перегородки к потолку

Рисунок 4 - Температурные швы и варианты дверных проемов в перегородках

1 - обрамляющие элементы; 2 - дополнительная стойка; 3 - ревизионный люк

Рисунок 5 - Схема размещения трубопроводов диаметром не более 60 мм (а), технологических трубопроводов - не менее 60 мм (б), воздуховодов (в) и трубопроводов водоснабжения и отопления (г)

Рисунок 6 - Схема закрепления трубопровода к обшивке перегородки из гипсоволокнистых листов

Рисунок 7 - Схема устройства гильзы (а) и кожуха (б) при сопряжении перегородки из гипсоволокнистых листов с трубопроводами

5.3 ОБЛИЦОВКА СТЕН

В строительных нормах и правилах к облицовкам стен как конструктивному элементу предъявляются требования в части устойчивости к силовым воздействиям, а к облицованным конструкциям стен в зависимости от их назначения - требования к их теплотехническим, звукоизоляционным и пожарно-техническим характеристикам.

5.3.1 Облицовка стен представляет собой конструктивный элемент, состоящий из металлического или деревянного каркаса, обшитого с одной стороны одним или двумя слоями гипсоволокнистых листов. Каркас крепится к облицовываемой поверхности стены. Обшивка служит основой для последующей отделки стены. Одновременно она может выполнять функции повышения звукоизоляционной способности стены и огнезащитные функции. Пространство между обшивкой и облицовываемой поверхностью может заполняться теплозвукоизоляционным материалом, что позволяет улучшить теплозащитные и звукоизоляционные характеристики стены. В утепленных стенах под обшивкой должен располагаться пароизоляционный слой (см. 5.2.5.3).

5.3.2 Область применения облицовок - внутренние поверхности наружных стен и поверхности внутренних стен из любых материалов в зданиях различного назначения.

5.3.3 Рекомендуемые для применения конструктивные схемы облицовок приведены в таблице 5.5.

Таблица 5.5 - Конструктивные схемы облицовок стен

№ п.п.

Схема

Конструкция

Число слоев обшивки

Справочная масса*, кг

 

1

Металлический каркас, усиленный креплением к облицовываемой стене прямыми подвесами, и обшитый одним или двумя слоями гипсоволокнистых листов

1

14 (17)

2

27 (33)

2

Металлический каркас, обшитый одним или двумя слоями гипсоволокнистых листов

1

15 (18)

2

28 (34)

3

Деревянный каркас, обшитый одним или двумя слоями гипсоволокнистых листов

1

19 (23)

2

33 (39)

* Справочная масса рассчитана для конструкций облицовок с применением гипсоволокнистого листа толщиной 10 (12,5) мм при шаге стоек каркаса 600 мм.

 

5.3.4 Для металлического каркаса облицовок рекомендуется применять: по схеме 1 - потолочный профиль ПП 60/27, направляющий профиль ПН 28/27 и прямой подвес; по схеме 2 - направляющий профиль ПН 50 (65, 75, 100)/40 и стоечный профиль ПС 50 (65, 75, 100)/50. Для каркаса по схеме 3 рекомендуется применять деревянный стоечный брус сечением 60 (80)´50 мм и направляющий брус сечением 60´40 мм.

5.3.5 Если устраивается облицовка с металлическим каркасом, то при неровностях облицовываемой поверхности стены до 100 мм рекомендуется применять конструктивную схему 1, а при неровностях более 100 мм - конструктивную схему 2.

5.3.6 Крепление направляющих профилей каркаса к несущим конструкциям осуществляется через уплотнительную ленту или герметик дюбелями с шагом не более 1000 мм, но не менее трех креплений на один профиль. Крепление потолочных профилей к облицовываемой поверхности стены осуществляется с помощью прямых подвесов, которые крепятся через уплотнительную ленту дюбелями. Шаг установки подвесов должен быть не более 1500 мм. Крайний верхний и крайний нижний подвесы крепятся на расстоянии не более 150 мм от пола или потолка. На один потолочный профиль должно приходится не менее трех подвесов.

Рекомендуемое устройство облицовки с металлическим каркасом указано на рисунке 8.

5.3.7 Обшивка каркаса гипсоволокнистыми листами осуществляется аналогично обшивке перегородок. Под обшивкой утепленных стен должен быть уложен пароизоляционный слой аналогично 5.2.5.3.

5.3.8 В местах расположения температурных швов в здании, а также при длине облицовки более 15 м в облицовке следует предусматривать температурные (деформационные) швы. Рекомендуемое устройство швов указано на рисунке 9.

5.3.9 Примыкания облицовки стен к оконным и дверным проемам рекомендуется устраивать, как указано на рисунке 9.

5.3.10 Устойчивость облицовок при использовании конструктивных схем по таблице 5.5 обеспечивается, если сечения элементов каркаса, шаг стоек и толщина листов обшивки, а также высота облицовок приняты не более указанных в таблице 5.6. При использовании облицовок с характеристиками, отличающимися от указанных в таблице 5.6, максимальная высота облицовок должна определяться расчетом.

Таблица 5.6

Схема облицовки

Шаг стоек каркаса, мм

Марка профилей стоек каркаса

Максимальная высота, м

 

600

ПП 60/27

10,0

600

ПС 75/50

3,00

ПС 100/50

4,00

600

ПС 50/50

2,60

ПС 75/50

3,50

ПС 100/50

4,25

600

Брус 60´50 мм

3,10

Брус 80´50 мм

4,10

600

Брус 60´50 мм

3,10

Брус 80´50 мм

4,10

5.3.11 Обеспечение требуемых значений теплотехнических характеристик стен

5.3.11.1 При облицовке наружных стен, утепляемых со стороны помещения, а также внутренних стен, разделяющих отапливаемые и неотапливаемые помещения, толщина слоя утеплителя должна быть определена расчетом в соответствии с СП 23-101 исходя из сопротивления теплопередаче, требуемого по условиям энергосбережения. При этом должны быть соблюдены требования СНиП II-3 недопустимости накопления влаги в стене за годовой период эксплуатации и ограничение влаги за период с отрицательными среднемесячными температурами. В расчетах следует учитывать значение теплопроводности листов обшивок, указанное в табл. 4.2.

5.3.11.2 При расчетах сопротивления воздухопроницанию облицованной стены следует учитывать показатель воздухопроницаемости гипсоволокнистых листов, который рекомендуется принимать по аналогии с показателем воздухопроницаемости гипсокартонных листов, приведенным в приложении 9 к СНиП II-3.

5.3.11.3 При расчете сопротивления паропроницанию облицованной стены следует учитывать расчетное значение сопротивления паропроницанию гипсоволокнистых листов, указанное в таблице 4.2.

5.3.12 Обеспечение требуемых значений акустических характеристик стен

5.3.12.1 При облицовке поверхностей внутренних стен с нормируемым значением индекса изоляции воздушного шума расчетное значение этого показателя должно определяться расчетом по СНиП II-12.

5.3.12.2 При необходимости определения фактических значений индекса изоляции воздушного шума облицованной стены при принятом конструктивном варианте облицовки должны быть проведены испытания по ГОСТ 27296.

5.3.13 Обеспечение требуемых значений пожарно-технических характеристик облицованных стен

5.3.13.1 При использовании облицовок в качестве огнезащитного элемента, повышающего значения пожарно-технических характеристик стены, фактический предел огнестойкости таких стен следует определять испытаниями по ГОСТ 30247.1, а класс пожарной опасности - по ГОСТ 30403.

5.3.13.2 При выборе конструктивных схем облицовок рекомендуется учитывать, что применение облицовки с обшивкой из гипсоволокнистых листов толщиной 12,5 мм может обеспечить увеличение предела огнестойкости стены на 15 мин и соответствующее увеличение временной характеристики пожарной опасности [например, для конструкции класса К0 (15) эта характеристика может быть повышена до К0 (30)].

5.4 КОНСТРУКТИВНЫЕ ТРЕБОВАНИЯ К ОБЛИЦОВКАМ СТЕН, ПОТОЛКОВ И СКАТОВ ПОМЕЩЕНИЙ МАНСАРД

5.4.1 Каркас облицовки стен неотапливаемых мансард крепится внизу к конструкции перекрытия, вверху - к стропильным конструкциям покрытия. Устройство облицовки стен отапливаемых мансард аналогично указанному в разделе 5.3.

Рисунок 8 - Горизонтальный и вертикальный разрезы, узлы примыканий, внутренние и внешние углы облицовки с одинарной обшивкой гипсоволокнистыми листами по металлическому каркасу

Рисунок 9 - Температурные швы, оконный или дверной проем при облицовке стен

5.4.2 Элементы каркаса облицовки скатов рекомендуется располагать горизонтально и крепить их к стропильным конструкциям. Элементы каркаса облицовки потолка рекомендуется располагать параллельно элементам каркаса облицовки ската и крепить их к опорным горизонтальным элементам (балкам потолка), которые могут быть выполнены из пиломатериалов или из потолочного профиля и должны быть прикреплены к стропильным конструкциям.

5.4.3 Крепление элементов каркаса облицовки потолка и скатов к балкам потолка и стропильным конструкциям рекомендуется осуществлять с использованием прямых подвесов.

5.4.4 Рекомендуемые сечения элементов каркаса облицовок потолка в зависимости от собственного веса обшивок и расположенного на них утеплителя (при отапливаемых мансардах) и от шага стропил (расстояний между точками крепления подвесов) указаны в таблице 5.7. Значения, приведенные в таблице 5.7, допускается использовать только при условии, что полностью исключается доступ в пространство над потолком или предусмотрен настил по верху балок потолка. Стропильные конструкции в последнем случае должны быть рассчитаны с учетом временной нормативной равномерно распределенной нагрузки на настил, которая в соответствии со СНиП 2.01.07 принимается не менее 0,7 кН/м2.

В случаях, когда указанные выше условия не соблюдаются, конструкция и размещение каркаса облицовок должны определяться расчетом.

Таблица 5.7

Элемент каркаса

Максимальный шаг стропил (максимальное расстояние между точками крепления подвесов), мм, при нагрузке р, кН/м2, от собственного веса обшивки и утеплителя

р £ 0,15

0,15 < р £ 0,3

р £ 0,5

Деревянный брусок 48´24 мм

700

600

500

Деревянный брусок 50´30 мм

850

750

600

Деревянный брусок 60´40 мм

1000

850

700

Профиль ПП 60/27

1000

1000

750

5.4.5 При обшивке каркаса гипсоволокнистые листы можно располагать как в продольном, так и в поперечном направлениях.

5.4.6 Шаг брусков и профилей каркаса при облицовке потолков и скатов следует принимать не более 500 мм при поперечной укладке и 400 мм при продольной укладке гипсоволокнистых листов.

5.4.7 При креплении гипсоволокнистых листов на потолке и скатах мансарды шаг винтов принимают не более 150 мм, на вертикальной части облицовки - не более 250 мм. При двухслойной обшивке второй слой гипсоволокнистых листов следует располагать со смещением относительно стыков первого слоя.

5.4.8 Обеспечение требуемых теплотехнических, звукоизоляционных и пожарно-технических характеристик облицовок стен, потолков и скатов мансард предусматривается по аналогии с рекомендациями раздела 5.3.

5.5 КОММУНИКАЦИОННЫЕ ШАХТЫ

В строительных нормах и правилах к коммуникационным шахтам предъявляются требования в части устойчивости, предела огнестойкости, устройства проходов через стены, перегородки и перекрытия.

5.5.1 Конструктивное решение ограждения коммуникационных шахт, а также мест пропуска трубопроводов аналогично облицовке стен гипсоволокнистыми листами по металлическому каркасу. Рекомендуемое конструктивное решение обрамления трубопроводов, размещаемых вдоль капитальной стены или перегородки, указано на рисунке 10. Конструктивное решение вертикальных коммуникационных шахт показано на рисунке 11.

5.5.2 В зависимости от требований тепло- и огнезащиты обшивка гипсоволокнистыми листами может быть предусмотрена в один или два слоя.

5.5.3 Для обеспечения доступа к коммуникациям в ограждении шахты предусматриваются ревизионные люки, конструктивные решения которых должны обеспечивать тепло- и огнезащитные качества не ниже, чем у ограждения в целом.

5.5.4 Ограждения коммуникационных шахт, включая места пропуска трубопроводов, должны иметь огнестойкость, регламентируемую СНиП 2.04.05.

5.6 ПОДВЕСНЫЕ ПОТОЛКИ

К подвесным потолкам строительными нормами и правилами предъявляются требования в части несущей способности, пожарно-технических характеристик используемых материалов, а также теплотехнических, звукоизоляционных и пожарно-технических характеристик конструкции перекрытия или покрытия с подвесным потолком.

5.6.1 Подвесные потолки включают металлический или деревянный каркас, подвешенный к конструкциям перекрытия или покрытия (базовому потолку), и обшивку из гипсоволокнистых листов.

5.6.2 Подвесные потолки из гипсоволокнистых листов предназначаются для повышения предела огнестойкости перекрытий и покрытий, улучшения тепло- и звукоизоляции, скрытия электропроводки и других инженерных коммуникаций, а также для решения проблем декоративной отделки помещений. Область применения подвесных потолков ограничена областью применения гипсоволокнистых листов в зданиях.

Рисунок 10 - Конструктивное решение обрамления трубопроводов, размещенных вдоль капитальной стены (а), перегородки (б)

Рисунок 11 - Конструктивные решения ограждения коммуникационных шахт у несущей стены (а) и у перегородки (б)

5.6.3 Рекомендуемые для применения конструктивные схемы подвесных потолков указаны в таблице 5.8.

Таблица 5.8 - Конструктивные схемы подвесных потолков

№ п.п.

Схема

Конструкция

Справочная масса* 1 м2, кг

 

1

Деревянный каркас (одноосный) из брусков прямоугольного сечения с закрепленными на нем гипсоволокнистыми листами. Несущие бруски каркаса прикреплены к несущим конструкциям перекрытия при помощи прямых подвесов. Гипсоволокнистый лист крепится к несущим брускам

Около 16

 

2

Деревянный каркас (двухосный) из брусков прямоугольного сечения с закрепленными на нем гипсоволокнистыми листами. Основные бруски каркаса прикреплены непосредственно к несущим конструкциям перекрытия при помощи прямых подвесов. Несущие бруски, к которым крепится гипсоволокнистый лист, и основные расположены в разных уровнях

Около 16

 

3

Металлический каркас (одноосный) из потолочного профиля с закрепленными на нем гипсоволокнистыми листами. Несущие профили прикреплены к несущим конструкциям перекрытия при помощи прямых подвесов. Гипсоволокнистый лист крепится непосредственно к ним

Около 15

 

4

Металлический каркас (двухосный) из потолочного профиля с закрепленными на нем гипсоволокнистыми листами. Основные профили подвешены к несущим конструкциям перекрытия при помощи регулируемых подвесов. Несущие профили, на которые крепится гипсоволокнистый лист, и основные расположены в разных уровнях

Около 15

5

Металлический каркас (двухосный) из потолочного профиля с закрепленными на нем гипсоволокнистыми листами. Основные профили подвешены к несущим конструкциям перекрытия при помощи регулируемых подвесов. Несущие профили, на которые крепится гипсоволокнистый лист, и основные расположены в одном уровне

Около 15

* Масса указана для конструкций подвесных потолков с металлическим каркасом из ПП-профиля 60/27 и ПН-профиля 28/27, и с деревянным каркасом из брусков сечением 30´50 мм, с обшивкой из гипсоволокнистых листов толщиной 10 мм в один слой.

 

5.6.4 Каркас подвесного потолка следует проектировать преимущественно двухосным с размещением профилей (брусков) в одном (схема 5 по таблице 5.8) или двух (схемы 2 и 4 по таблице 5.8) уровнях. Одноосный каркас (схемы 1 и 3 по таблице 5.8) рекомендуется использовать при небольших площадях потолка.

5.6.5 В помещениях с влажным режимом эксплуатации (ванные комнаты, санузлы и т.п.) следует предусматривать подвесные потолки с каркасом из металлических профилей.

5.6.6 Обеспечение устойчивости

5.6.6.1 Шаг подвесов и основных профилей или брусков для различных конструкций потолков рекомендуется подбирать по таблице 5.9. При этом нагрузку от собственного веса потолка в зависимости от толщины обшивки допускается определять по графику рисунка 12.

5.6.6.2 Шаг несущих профилей или брусков каркаса рекомендуется принимать равным 500 мм при поперечном размещении гипсоволокнистых листов и 400 мм при продольном размещении их относительно несущих профилей или брусков каркаса.

5.6.6.3 В подвесных потолках расстояние между крайним основным бруском деревянного каркаса или крайним основным профилем металлического каркаса и стеной должно быть не более 100 мм, в потолках с двухуровневым металлическим каркасом расстояние между крайним основным профилем и стеной должно быть также не более 100 мм, а при одноуровневом металлическом каркасе - не более 1170 мм, что соответствует ширине гипсоволокнистого листа без фальцевой кромки, которую на крайнем листе следует срезать (рисунок 13).

Таблица 5.9

Нагрузка р, кН/м2

Конструктивные схемы подвесного потолка по таблице 5.8

схема 1

схема 2

схема 3

схема 4

схема 5

Шаг, мм

подвесов

основных брусков

подвесов

основных брусков

подвесов

основных профилей

подвесов

основных профилей

подвесов

основных профилей

£ 0,15

850

-

850

850

1000

-

900

1000

1000

1200

0,15 £ p < 0,3

750

-

750

750

1000

-

750

1000

650

1200

0,3 £ p < 0,5

600

-

600

600

750

-

600

750

600

1200

Рисунок 12 - График зависимости удельной нагрузки обшивки от толщины гипсоволокнистого листа

1 - конструкция двухуровневого потолка; 2 - конструкция одноуровневого потолка; а - расстояние между подвесами, б - расстояние между несущими профилями, в - расстояние между основными профилями

Рисунок 13 - Конструкции подвесных потолков

5.6.7 Обеспечение требуемых значений теплотехнических характеристик и показателей звукоизоляции конструкций перекрытий и покрытий с подвесными потолками предусматривается аналогично тому, что предусмотрено в разделе 5.3 для облицовок стен. При этом изоляционный материал должен выбираться с учётом ограничений, установленных в 5.6.9.

5.6.8 Обеспечение требуемых пожарно-технических характеристик

5.6.8.1 Предел огнестойкости подвесного потолка не нормируется, но при необходимости определяется по НПБ 231.

Класс пожарной опасности подвесного потолка должен быть не ниже требуемого для конструкции, к которой он крепится, и должен определяться по ГОСТ 30403. При этом время теплового воздействия на образец подвесного потолка определяется временем его обрушения.

5.6.8.2 Класс пожарной опасности подвесного потолка с металлическим каркасом и с негорючим теплоизоляционным материалом можно без испытаний принимать К0, с деревянным каркасом - К3.

5.6.8.3 Для повышения предела огнестойкости или снижения пожарной опасности перекрытий и покрытий следует применять подвесные потолки с пределом огнестойкости не менее EI 15 при классе пожарной опасности К0.

5.6.8.4 Предел огнестойкости и класс пожарной опасности перекрытий и покрытий с подвесными потолками следует определять как для единой конструкции по ГОСТ 30247.1 и ГОСТ 30403 соответственно.

Испытательные лаборатории, аккредитованные в Системе сертификации продукции и услуг в области пожарной безопасности, могут без испытаний установить класс пожарной опасности конструкции перекрытий или покрытий с подвесными потолками при наличии данных о классах пожарной опасности защищаемой конструкции и подвесного потолка.

5.6.8.5 В зданиях, кроме зданий класса конструктивной пожарной опасности С3, на путях эвакуации, а также в помещениях класса функциональной пожарной опасности Ф1.1 и в помещениях других классов, предназначенных для одновременного пребывания более 50 человек, подвесные потолки должны иметь класс пожарной опасности К0. При этом используемые в них гипсоволокнистые листы должны быть сертифицированы на соответствие требованиям ГОСТ Р 51829.

5.6.8.6 В подвесных потолках, устраиваемых с целью повышения предела огнестойкости перекрытий или покрытий, следует предусматривать каркас из металлических профилей.

5.6.9 Для обеспечения возможности профилактического осмотра надпотолочного пространства в период эксплуатации в конструкции подвесного потолка следует предусматривать смотровые инвентарные люки огнестойкостью не ниже огнестойкости подвесного потолка.

5.6.10 Гипсоволокнистые листы крепятся к каркасу с помощью самонарезающих винтов. Шаг винтов рекомендуется принимать по таблице 5.10.

Таблица 5.10

Обшивка

Шаг установки самонарезающих винтов в зависимости от толщины гипсоволокнистых листов, мм

10

12,5

Одинарная

150

200

Двойная:

      первый слой

450

600

      второй слой

150

200

5.6.11 Стыки гипсоволокнистых листов с фальцевой кромкой выполняются без зазоров, а с прямой кромкой с зазором 5-7 мм на вставке из металлического профиля, деревянного бруска или полосы ГВЛ шириной около 100 мм.

Торцевые стыки должны быть смещены относительно друг друга не менее чем на 400 мм. При двухслойной обшивке торцевые стыки листов первого слоя должны быть также смещены относительно стыков листов второго слоя не менее чем на 400 мм.

5.7 СБОРНЫЕ ОСНОВАНИЯ ПОД ПОКРЫТИЯ ПОЛОВ

К сборным основаниям под покрытия полов как элементу конструкции перекрытия строительными нормами и правилами предъявляются требования в части прочности, водонепроницаемости, пожарно-технических характеристик.

5.7.1 Сборные основания под покрытия пола из гипсоволокнистых листов устраиваются для создания ровной поверхности под покрытие. Свойства гипсоволокнистых листов позволяют также обеспечить возможность создания водонепроницаемой прокладки между покрытием пола и теплозвукоизоляционным слоем в конструкции перекрытия, улучшить звукоизоляционные характеристики перекрытия и повысить предел огнестойкости перекрытия (по признаку потери теплоизолирующей способности - I).

5.7.2 Сборные основания из гипсоволокнистых листов под покрытия полов устраиваются в жилых, общественных, административно-бытовых и производственных зданиях с сухим, нормальным и влажным влажностными режимами по СНиП II-3 при умеренной и слабой интенсивности механических воздействий на полы по СНиП 2.03.13. Рекомендуемые области применения сборных оснований под покрытия пола из гипсоволокнистых листов в зданиях различного назначения указаны в приложении Д.

5.7.3 Сборное основание пола рекомендуется устраивать не менее чем из двух слоев гипсоволокнистых влагостойких листов (вида ГВЛВ) под покрытие из штучного или щитового паркета, паркетной доски, различных видов линолеума, керамической плитки, а также под синтетические ковровые покрытия.

5.7.4 Сборные основания под покрытие полов могут быть выполнены из отдельных малоформатных гипсоволокнистых листов или из готовых элементов пола заводского изготовления. Готовые элементы пола представляют собой два склеенных между собой листа вида ГВЛВ с монтажным фальцем (рисунок 14).

Рисунок 14 - Элемент сборного основания пола

5.7.5 В перекрытиях, несущая часть которых выполнена из железобетонных плит, сборные основания под покрытия пола рекомендуется применять при наличии выравнивающего теплозвукоизоляционного слоя из керамзитовой засыпки специально подобранного гранулометрического состава, обеспечивающего ее безусадочность. Если толщина выравнивающего слоя не превышает 60 мм, следует предусматривать сборное основание из элементов пола или из двух слоев гипсоволокнистых листов. При большей толщине засыпки следует предусматривать третий слой гипсоволокнистых листов.

5.7.6 В местах примыкания оснований под покрытия полов к стенам, перегородкам и другим вертикальным конструкциям здания следует укладывать кромочную ленту толщиной 8-10 мм. Кромочная лента служит компенсационной прокладкой между сборным основанием и ограждающими конструкциями.

5.7.7 При проектировании рекомендуется учитывать в качестве ориентировочных указанные в таблице 5.11 значения звукоизоляционных характеристик перекрытий со сборным основанием из гипсоволокнистых листов, полученные на основе сертификационных испытаний в НИИСФ.

5.8 ОГНЕЗАЩИТНЫЕ ОБЛИЦОВКИ СТРОИТЕЛЬНЫХ КОНСТРУКЦИЙ

К огнезащитным облицовкам строительными нормами и правилами предъявляются требования в части пожарно-технических характеристик.

5.8.1 Огнезащитные облицовки строительных конструкций из гипсоволокнистых листов применяются при необходимости повышения предела огнестойкости и уменьшения пожарной опасности металлических и деревянных балок, прогонов, колонн.

5.8.2 Пределы огнестойкости и классы пожарной опасности конструкций с огнезащитными облицовками должны определяться по ГОСТ 30247.1 и ГОСТ 30403. Испытания должны проводится только испытательными центрами и лабораториями, аккредитованными в Системе сертификации продукции и услуг в области пожарной безопасности.

5.8.3 Облицовку металлических балок следует выполнять с помощью металлических профилей или с использованием вкладышей из полос гипсоволокнистых листов различной толщины, в зависимости от требуемого предела огнестойкости конструкций (рисунок 15).

5.8.4 При применении металлических профилей их рекомендуется закреплять анкерными элементами к перекрытию и с помощью зажимов к нижней полке балки, а гипсоволокнистые листы - к металлическим профилям самонарезающими винтами. При этом шаг зажимов не должен превышать 120 мм.

5.8.5 При облицовке металлических балок вкладыши из гипсоволокнистых листов шириной 150 мм следует размещать с шагом до 600 мм вдоль стенки и до 750 мм вдоль полки балки.

5.8.6 Огнезащитную облицовку деревянных стоек и балок следует осуществлять гипсоволокнистыми листами в один или два слоя в зависимости от требуемой степени огнестойкости и класса пожарной опасности защищаемой строительной конструкции (рисунок 16).

5.8.7 Огнезащитная облицовка металлических колонн гипсоволокнистыми листами может осуществляться с применением металлических профилей или с использованием вкладышей из гипсоволокнистых листов (рисунок 17).

5.8.8 При использовании металлических профилей их рекомендуется закреплять к полкам колонн с помощью зажимов, располагаемых с шагом до 1000 мм, а обшивку из гипсоволокнистых листов - к профилям на самонарезающих винтах.

5.8.9 Для достижения требуемого предела огнестойкости металлических колонн и балок толщину обшивки из гипсоволокнистых листов в процессе проектирования можно ориентировочно принимать по таблице 5.13 в зависимости от соотношения P/F или 100/d, определяемого в соответствии с таблицей 5.12,

где Р - периметр огнезащитной облицовки, см;

F - площадь сечения колонны или балки, см2;

d - толщина стенок замкнутого сечения колонны, см.

Для получения фактического значения предела огнестойкости конструкции при принятой толщине облицовки в каждом конкретном случае необходимо проведение испытаний по ГОСТ 30247.1

Таблица 5.11 - Звукоизоляционные характеристики полов со сборным основанием из гипсоволокнистых листов

Конструкция пола

Толщина засыпки, мм

Индекс изоляции воздушного шума IВ, дБ

Индекс приведенного уровня уд. шума Lnw, дБ

Схема

Покрытие

Полы по многопустотным ж/б плитам перекрытия толщиной 220 мм

Штучный паркет

70

50

63

Паркетная доска

70

50

63

Линолеум ПВХ на теплозвукоизолирующей подоснове

60

52

63

Плитка керамическая

60

51

61

 

 

 

 

Линолеум без подосновы

40

49

67

Полы по беспустотным ж/б плитам перекрытия толщиной 140 мм*

I. Сборное основание без покрытия

 

40

49-50

60

50

52

60

II. Сборное основание с покрытием

Линолеум ПВХ на тканевой основе

30

40

49-50

60-61

60

Линолеум ПВХ на теплозвукоизолирующей подоснове

15-20

40

49-50

60 59

Линолеум теплозвукоизолирующий на вспененной подоснове (3,6 мм)

30

50

60

Штучный паркет (паркетная доска)

20

30

40

80

49-50

62

59

57

53

III. Сборное основание на демпфирующем слое (мягкие ДВП толщиной 12,5 мм)

Линолеум теплозвукоизолирующий на вспененной подоснове (3,6 мм)

15-20

51

52

IV. Сборное основание на демпфирующем слое (пенополиэтилен толщиной 8 мм)

Линолеум теплозвукоизолирующий на вспененной подоснове (3,1 мм)

15-20

54

52

* В практике строительства жилых зданий могут применять железобетонные перекрытия толщиной 160 мм. Оценочные расчеты показали, что увеличение толщины плиты от 140 до 160 мм увеличивает индекс изоляции на +1,4 дБ.

Таблица 5.12 - Функция P/F или 100/d для различных схем огнезащиты

Схема огнезащиты

Количество сторон защиты

Р/F или 100/d, см-1

4

3

4

100/d

4

Таблица 5.13

Требуемое значение предела огнестойкости, мин

Минимальная общая толщина огнезащитной облицовки, мм, для

балок

колонн

10´2

12,5´2

10´2

12,5´2

Величина Р/F или 100/d в см-1 (см. таблицу 5.12)

30 и менее

-

-

300

-

60

300

-

100

230

90

130

270

40

140

120

50

100

-

38

а - с металлическими профилями и одинарной обшивкой гипсоволокнистыми листами; б - то же, с двухслойной обшивкой гипсоволокнистыми листами; в - с металлическими профилями и вкладышами из гипсоволокнистых листов

Рисунок 15 - Конструктивное решение огнезащиты стальных балок гипсоволокнистыми листами

Рисунок 16 - Общий вид (а), конструктивное решение огнезащиты деревянной балки (б, г) и колонны (в)

а - с металлическими профилями и одинарной обшивкой гипсоволокнистыми листами; б - то же, с двухслойной обшивкой из гипсоволокнистых листов

Рисунок 17 - Конструктивное решение огнезащиты стальных колонн гипсоволокнистыми листами

6 ТЕХНОЛОГИЯ МОНТАЖА И УСТРОЙСТВА КОНСТРУКЦИЙ ИЗ ГИПСОВОЛОКНИСТЫХ ЛИСТОВ

6.1 МОНТАЖ ПЕРЕГОРОДОК И ОБЛИЦОВОК СТЕН

6.1.1 Монтаж перегородок рекомендуется выполнять в процессе производства отделочных работ. Производство электромонтажных, санитарно-технических, вентиляционных работ осуществляется после завершения монтажа каркаса перегородки.

Работы по облицовке стен также выполняются в процессе производства отделочных работ, когда закончена разводка электротехнических и сантехнических систем.

6.1.2 До начала монтажа перегородок и облицовок все строительные работы, связанные с «мокрыми» процессами, должны быть закончены.

Монтаж должен осуществляться, как правило, до устройства чистого пола в условиях сухого или нормального влажностного режима при температуре воздуха не ниже +10 °С.

6.1.3 В соответствии с проектом необходимо выполнить разметку мест расположения стоечных профилей (брусков) и стоек по сторонам дверных проемов в перегородке или облицовке на полу и перенести разметку на потолок.

6.1.4 На направляющие профили (бруски), примыкающие к потолку и полу, и стоечные профили (бруски), примыкающие к стенам, наклеивается уплотнительная лента или герметик.

6.1.5 В соответствии с разметкой устанавливают направляющие профили (бруски) и крепят их дюбелями к полу и потолку, а затем крайние, примыкающие к стенам стоечные профили (бруски) также закрепляют дюбелями.

При криволинейном очертании перегородок перед установкой направляющих профилей ножницами по металлу выполняют параллельные разрезы одной полки и стенки профиля.

6.1.6 Стоечные профили каркаса устанавливаются в направляющие с требуемым шагом, выравниваются по вертикали и скрепляются. Деревянные стойки каркаса крепятся на направляющие бруски.

6.1.7 В перегородках с пространством для коммуникаций одноименные стоечные профили соединяются в рамные стойки накладками из гипсоволокнистых листов, размещаемыми по высоте с шагом 600 мм.

6.1.8 Дверные коробки должны устанавливаться одновременно с монтажом каркаса перегородок. По обе стороны дверной коробки монтируют опорные стоечные профили (усиленные профилем или деревянным бруском), перемычку над проемом и промежуточные стойки.

6.1.9 В облицовках стен потолочные профили необходимо закрепить к стенам при помощи прямых подвесов через уплотнительную ленту.

6.1.10 В местах размещения электрических и слаботочных коробок в полости каркаса необходимо установить экран из гипсоволокнистых листов размером 600´600 мм, закрепив его к поперечному элементу каркаса на винтах.

6.1.11 Не допускается размещать электропроводку вдоль стоек внутри каркаса во избежание повреждения ее винтами во время крепления гипсоволокнистых листов.

6.1.12 При необходимости устанавливают закладные изделия, траверсы и рамы для навески стационарного оборудования массой до 150 кг/м перегородки или облицовки, закрепляя их к стойкам каркаса на винтах.

6.1.13 Перед креплением гипсоволокнистых листов в местах примыкания их кромок к поверхности потолка и стены, выполненных из другого материала, наклеивается разделительная лента.

6.1.14 При монтаже перегородок сначала производят установку гипсоволокнистых листов с одной стороны каркаса. Затем, если это предусмотрено проектом, между стойками каркаса укладывают изоляционный материал, который фиксируют с помощью обрезков профилей длиной не менее 200 мм в количестве не менее двух штук на одну стойку. После этого производят крепление гипсоволокнистых листов с другой стороны каркаса.

При монтаже облицовки стен сначала, если это предусмотрено проектом, в полость между стойками каркаса укладывают изоляционный материал, после чего производят крепление гипсоволокнистых листов.

6.1.15 Монтаж гипсоволокнистых листов следует вести в направлении от стенки профиля. Это обеспечит установку винтов в первую очередь ближе к стенке. При креплении соседнего листа ввинчиваемый винт не будет отгибать внутрь полку профиля.

6.1.16 При двухслойной обшивке второй слой гипсоволокнистых листов следует устанавливать со смещением относительно вертикальных стыков первого на шаг стоек каркаса.

6.1.17 Обшивку каркаса гипсоволокнистыми листами следует вести с соблюдением правил, указанных в 5.2.2.13 и 5.2.2.14. Пример размещения крепежных винтов показан на рисунке 18.

Рисунок 18 - Крепление гипсоволокнистых листов к каркасу

6.1.18 В местах поперечных стыков предусматриваются горизонтальные вставки из металлических профилей ПН или ПС, деревянных брусков или делается вставка из полосы гипсоволокнистого листа шириной около 100 мм.

6.1.19 После крепления гипсоволокнистых листов выполняется шпаклевание стыков листов первого и второго слоев, а также мест установки винтов наружного слоя. Шпаклевание должно производиться при стабильной температуре и влажности воздуха, соответствующих режиму эксплуатации.

6.1.20 Перед шпаклеванием все стыки обрабатываются грунтовкой глубокого проникновения.

6.1.21 Стыки листов, образованные фальцевой кромкой (ФК), зашпаклевываются с использованием армирующей ленты, которая втапливается в предварительно нанесенный слой шпаклевки. После твердения наносится накрывочный слой шпатлевки.

При двухслойной обшивке стыки листов первого слоя допускается зашпаклевывать без армирующей ленты.

Поперечные стыки гипсоволокнистых листов заделываются без использования армирующей ленты.

6.1.22 На внешних углах обшивок из гипсоволокнистых листов для защиты их от механических повреждений могут быть установлены защитные угловые профили, которые втапливаются в предварительно нанесенный слой шпаклевки.

6.1.23 После высыхания шпаклевки стыки обрабатываются при помощи шлифовального приспособления.

6.2 ОСОБЕННОСТИ УСТРОЙСТВА ОБЛИЦОВКИ СТЕН, ПОТОЛКОВ И СКАТОВ ПОМЕЩЕНИЙ МАНСАРД

6.2.1 При необходимости разделения мансарды перегородками на отдельные помещения последовательность монтажа зависит от необходимости обеспечения звукоизоляции этих помещений.

6.2.2 Если к перегородкам в мансардном помещении предъявляются требования в части обеспечения звукоизоляции, рекомендуется первоначально осуществить монтаж этих перегородок. Они вверху прикрепляются к опорным элементам (балкам потолка) и к стропилам (см. 5.4.2). В полость перегородки должен быть уложен звукоизоляционный материал.

6.2.3 При облицовке потолка и скатов мансардного помещения предварительно необходимо выполнить разметку мест установки подвесов.

6.2.4 Подвесы крепятся к стропильным конструкциям на самонарезающих винтах. Винты должны проникать в тело стропил на глубину пяти диаметров винта, но не менее 24 мм.

6.2.5 Металлические профили или бруски каркаса выравниваются на подвесах в одном уровне и закрепляются с помощью винтов.

6.2.6 Гипсоволокнистые листы крепятся к выровненному каркасу самонарезающими винтами с соблюдением зазора между торцевыми кромками 5-7 мм на вставке из металлического профиля или деревянного бруска.

Продольные стыки с фальцевой кромкой (ФК) делаются без зазора.

6.2.7 Шпаклевание стыков осуществляется в соответствии с указаниями 6.1.19-6.1.23.

6.3 СПОСОБЫ УСТРОЙСТВА ОГРАЖДЕНИЙ КОММУНИКАЦИОННЫХ ШАХТ

6.3.1 Сборка коммуникационных шахт должна осуществляться в следующей последовательности:

разметка положения ограждения шахты на полу, стене и потолке;

установка и закрепление элементов каркаса к полу, стенам и потолку;

обшивка каркаса гипсоволокнистыми листами и закрепление их винтами;

заделка стыков между листами обшивки;

устройство ревизионного люка (при необходимости);

отделка поверхности обшивки.

6.3.2 Способы выполнения работ по сборке коммуникационных шахт аналогичны предусмотренным в разделе 6.2.

6.4 УСТРОЙСТВО СБОРНЫХ ОСНОВАНИЙ ПОД ПОКРЫТИЯ ПОЛОВ

6.4.1 Устройство сборного основания под покрытие пола должно производиться после окончания всех строительно-монтажных, электротехнических, санитарно-технических и отделочных работ при температуре в помещении не ниже +10 °С и относительной влажности не более 60 %. Работы по испытанию систем водоснабжения и отопления должны быть закончены.

6.4.2 Гипсоволокнистые листы и готовые элементы пола при устройстве сборного основания пола должны иметь равномерную влажность, для чего их следует выдержать в течение 1-2 дней в помещении.

6.4.3 До начала производства работ по устройству сборного основания необходимо произвести очистку перекрытий от строительного мусора. Зазоры между плитами перекрытия, а также места примыкания перекрытия к стенам и перегородкам необходимо тщательно заделать бетоном или цементным раствором марки не ниже М100.

6.4.4 Сначала необходимо выполнить разметку уровня сборного пола по всему периметру помещения.

6.4.5 По несущей части перекрытия в случаях, предусмотренных проектной документацией на здание, должен быть уложен слой пароизоляции.

6.4.6 По периметру помещения необходимо установить кромочную ленту.

6.4.7 Неровное основание выравнивается с помощью керамзитовой засыпки. Выравнивание осуществляется комплектом выравнивающих реек, начиная от стены, противоположной входу.

6.4.8 Монтаж элементов пола ведется справа налево рядами от стены с дверным проемом. При монтаже с противоположной стороны для сохранения поверхности засыпки устраиваются островки для передвижения.

6.4.9 У готовых элементов пола, примыкающих к стенам, фальцы в области сопряжения обрезаются. Каждый новый ряд начинается с укладки отрезанной по месту части от последнего элемента предыдущего ряда, что исключает отходы и обеспечивает смещение торцевых стыков не менее чем на 250 мм.

6.4.10 Перед укладкой готового элемента на фальцы сопрягаемых с ним уже уложенных элементов наносится клеевой состав.

6.4.11 По мере укладки элементов производится скрепление фальцев соседних элементов самонарезающими винтами с шагом не более 300 мм. Не допускается повреждение коммуникаций, пролегающих под уложенными элементами.

6.4.12 При устройстве сборного основания пола из малоформатных ГВЛВ укладка листов первого слоя осуществляется с зазором в стыках не более 1 мм. Укладка ведется от стены с дверным проемом. При монтаже с противоположной стороны для сохранения поверхности выровненной засыпки устраиваются островки для передвижения.

6.4.13 Отдельно под каждый лист второго слоя наносится клеевой состав. Укладка листов второго слоя осуществляется без зазоров в стыках. Разбежка стыков при этом должна составлять не менее 250 мм.

6.4.14 По мере укладки листов второго слоя осуществляется их крепление к листам первого слоя самонарезающими винтами с шагом не более 300 мм. На один лист должно приходится не менее 20 винтов.

6.4.15 При толщине засыпки 60-100 мм на сборное основание под покрытия полов из готовых элементов или малоформатных ГВЛВ укладывается третий слой из крупноформатных гипсоволокнистых листов, которые крепятся самонарезающими винтами с шагом не более 300 мм. Плоскость листа должна перекрывать стыки листов или элементов нижележащего ряда.

6.4.16 В местах дверных проемов под сборное основание под покрытие пола укладывается в один уровень со слоем засыпки подкладка из влагостойкой фанеры или антисептированной доски толщиной не менее 15 мм. Длина подкладки должна быть на 300 мм больше ширины проема. Подкладка укладывается так, чтобы ее середина располагалась примерно по оси проема. Уложенные элементы пола или листы крепятся к подкладке самонарезающими винтами длиной не менее 25 мм с шагом 150 мм.

6.4.17 При необходимости стыки между элементами пола или малоформатными ГВЛВ заделываются шпаклевочной смесью, после чего шлифуются.

6.5 МОНТАЖ ПОДВЕСНЫХ ПОТОЛКОВ

6.5.1 До монтажа подвесных потолков в помещении должны быть закончены строительно-монтажные работы, указанные в п. 3.3 СНиП 3.04.01, в том числе и отделочные, кроме окраски и оклейки стен обоями, а также завершена прокладка инженерных коммуникаций.

6.5.2 Монтаж подвесных потолков должен осуществляться в условиях при температуре воздуха не менее +10 °С и относительной влажности не более 60 %.

6.5.3 Перед монтажом элементов каркаса выполняют разметку уровня подвесного потолка, мест крепления профилей или брусков каркаса и мест крепления подвесов.

6.5.4 К базовому потолку с помощью винтов (при деревянном перекрытии или покрытии) или металлических анкерных элементов (при железобетонном перекрытии или покрытии) закрепляют подвесы, а затем к ним крепятся основные металлические профили или бруски каркаса.

6.5.5 После выравнивания по уровню с помощью регулируемых подвесов основных профилей или брусков в одной плоскости осуществляется крепление к ним (с использованием соединителей) несущих металлических профилей или брусков каркаса в одном или двух уровнях в зависимости от выбранного конструктивного решения подвесного потолка. В местах стыков листов, образованных прямыми кромками и не попадающих на основные или несущие профили каркаса, должна быть предусмотрена вставка из металлического профиля или деревянного бруска, которая крепится к каркасу.

6.5.6 На смонтированный каркас с помощью телескопического подъемника или двух метростатов с насадками устанавливаются в проектное положение гипсоволокнистые листы, которые крепятся к каркасу самонарезающими винтами. Торцевые стыки гипсоволокнистых листов делаются с зазором 5-7 мм на вставке из металлического профиля или деревянного бруска. Продольные стыки с фальцевой кромкой (ФК) делаются без зазора.

6.5.7 При двухслойной обшивке швы между гипсоволокнистыми листами второго слоя смещаются относительно швов первого слоя не менее чем на 400 мм.

6.5.8 Шпаклевание стыков осуществляется в соответствии с 6.1.19-6.1.23.

6.6 СПОСОБЫ УСТРОЙСТВА ОГНЕЗАЩИТЫ НЕСУЩИХ КОНСТРУКЦИЙ

6.6.1 Устройство огнезащитного ограждения несущих конструкций следует осуществлять в период отделочных работ при температуре воздуха не менее +10 °С и относительной влажности не более 60 %.

6.6.2 Предварительно все защищаемые металлоконструкции должны быть очищены от ржавчины, грязи, масел, жировых пятен и покрыты антикоррозийными составами, если это предусмотрено в проектной документации на здание.

6.6.3 Устройство огнезащитного ограждения целесообразно осуществлять заранее заготовленными укрупненными элементами, включающими металлические профили, к которым закреплены гипсоволокнистые листы на винтах, полосы из гипсоволокнистых листов и зажимы.

6.6.4 В процессе монтажа укрупненные элементы огнезащитной облицовки соединяют между собой на самонарезающих винтах.

6.6.5 При огнезащите деревянных стоек и балок огнезащитную облицовку из гипсоволокнистых листов крепят непосредственно к деревянной конструкции.

6.7 ОТДЕЛКА ПОВЕРХНОСТЕЙ КОНСТРУКЦИЙ С ПРИМЕНЕНИЕМ ГИПСОВОЛОКНИСТЫХ ЛИСТОВ

6.7.1 До начала отделки поверхности обшивок из гипсоволокнистых листов должны быть закончены строительно-монтажные работы, в том числе отделочные, связанные с мокрыми процессами (штукатурные, устройство цементных стяжек и т.п.).

6.7.2 Отделочные работы должны осуществляться при температуре не ниже +10 °С и относительной влажности воздуха не более 60 %.

6.7.3 После шпаклевания стыков и мест крепления винтов поверхность необходимо обработать с помощью ручного шлифовального приспособления и удалить пыль.

6.7.4 В целях нормализации адсорбции влаги поверхность обшивки из гипсоволокнистых листов следует обрабатывать грунтовкой. Поверхности конструкций, эксплуатирующихся в помещениях с влажным режимом, обрабатываются гидроизоляционным составом (например, типа «Флехендихт»).

6.7.5 Поверхность обшивок из гипсоволокнистых листов пригодна под любую отделку: окраску, оклейку обоями, облицовку керамической плиткой, декоративное оштукатуривание.

6.7.6 Окрашивание рекомендуется производить вододисперсионными красками. Не допускается нанесение известковых красок и красок на жидком стекле. Перед высококачественной окраской необходимо финишное шпатлевание и шлифование всей поверхности обшивки.

6.7.7 Облицовку плиткой рекомендуется выполнять с помощью предназначенного для этой цели клея. Клей наносят зубчатым шпателем.

6.7.8 Заделку швов между плитками рекомендуется выполнять специальными заполнителями для швов, а места сопряжения стен между собой и стен с полом должны быть заделаны герметиками.

6.8 ОСОБЕННОСТИ ПРОИЗВОДСТВА РАБОТ ПРИ РЕКОНСТРУКЦИИ И РЕМОНТЕ КОНСТРУКЦИЙ С ПРИМЕНЕНИЕМ ГИПСОВОЛОКНИСТЫХ ЛИСТОВ

6.8.1 При повреждении обшивок из гипсоволокнистых листов в процессе эксплуатации конструкций от механических воздействий, протечек и т.п. прежде всего необходимо установить и устранить причину возникновения повреждений.

6.8.2 При попадании воды в полости между обшивками гипсоволокнистых листов необходимо произвести слив стоячей воды, для чего в обшивке подвесного потолка или внизу перегородки (облицовки) сначала проделывают дрелью контрольные отверстия, а затем, при необходимости слива воды, прорезают отверстие.

6.8.3 При ремонте обшивки следует использовать тот же тип гипсоволокнистых листов, что и восстанавливаемый.

6.8.4 При заделке отверстия изготавливают трафарет из картона или фанеры с таким расчетом, чтобы его размеры были примерно на 10 мм меньше размеров отверстия, подлежащего заделке. По этому контуру вырезают «вставку» из гипсоволокнистого листа.

6.8.5 Из гипсоволокнистого листа или фанеры вырезают несколько полос шириной 25-75 мм и длиной, примерно на 15 см превышающей размер заделываемого отверстия. Полосы накладывают на отверстие и прикрепляют их к обратной стороне гипсоволокнистого листа с помощью нескольких винтов, а затем в отверстие вставляют вырезанную «вставку» из гипсоволокнистого листа. Образовавшиеся зазоры заполняются шпаклевочной смесью.

6.8.6 После высыхания шпаклевочной смеси производится шлифование.

6.8.7 При замене винта необходимо ввернуть дополнительный винт на расстоянии 50 мм от выпадающего, который потом удаляют вместе с отслоившейся шпатлевкой. После этого наносится шпаклевочная смесь, которая после высыхания шлифуется.

7 ОСНОВНЫЕ ПРАВИЛА ТЕХНИКИ БЕЗОПАСНОСТИ ПРИ ПРОИЗВОДСТВЕ РАБОТ

7.1 Устройство конструкций с применением гипсоволокнистых листов следует выполнять с соблюдением требований СНиП III-4.

7.2 К устройству конструкций с применением гипсоволокнистых листов допускаются лица, прошедшие инструктаж по технике безопасности, производственной санитарии, обученные приемам и имеющие удостоверение на право производства работ.

7.3 Рабочие должны быть обеспечены спецодеждой и средствами индивидуальной защиты.

7.4 Работы по устройству конструкций с применением гипсоволокнистых листов должны выполняться специализированными бригадами, обладающими опытом по монтажу, при наличии специального инструмента.

7.5 Используемый при производстве работ инструмент, оборудование, оснастка и приспособления для монтажа конструкций должны отвечать условиям безопасности выполнения работ. Рекомендуемый перечень специального инструмента приведен в приложении Д.

7.6 В гипсоволокнистые листы не допускается забивать дюбель-гвозди.

8 ТРАНСПОРТИРОВКА И ХРАНЕНИЕ МАТЕРИАЛОВ И ИЗДЕЛИЙ

8.1 Металлические тонкостенные профили должны поставляться на объекты строительства пакетами, стянутыми лентами, любым видом транспорта при условии защиты от механических повреждений.

8.2 Пакеты с профилем должны храниться под навесом.

8.3 Поставщик профилей должен гарантировать соответствие их нормативным документам при соблюдении потребителем условий транспортировки и хранения. Срок хранения 12 месяцев с даты изготовления.

8.4 Транспортирование гипсоволокнистых листов должно выполняться централизованно, в пакетированном виде в условиях, исключающих увлажнение, загрязнение и механическое повреждение листов. Габариты пакетов не должны превышать по длине 4100 мм, по ширине 1300 мм, по высоте 1000 мм; масса пакета должна быть не более 5000 кг.

8.5 При транспортировке гипсоволокнистые листы должны находиться в горизонтальном положении, а пакеты должны быть уложены на поддоны или прокладки, размещенные через 0,5 м.

8.6 Для предотвращения увлажнения и загрязнения гипсоволокнистых листов рекомендуется пачки (50-80 листов в пачке) упаковывать в водостойкие материалы (полиэтиленовая пленка).

8.7 Хранить гипсоволокнистые листы следует в сухом закрытом помещении при температуре окружающего воздуха не ниже +5 °С, на расстоянии не менее 1,6 м от отопительных приборов. Пакеты могут быть установлены друг на друга в штабели общей высотой не более 3,5 м.

8.8 На строительной площадке допускается непродолжительное время (не более 6 ч) хранить гипсоволокнистые листы упакованными в водонепроницаемую бумагу или пленку (при температуре не ниже 0 °С).

8.9 Перевозить теплозвукоизоляционные материалы можно любыми видами транспорта при условии их защиты от увлажнения.

8.10 Хранение теплозвукоизоляционных материалов должно производиться в закрытых складах или под навесом при условии их защиты от увлажнения.

8.11 Винты могут перевозиться любым видом транспорта упакованными в ящики или коробки, снабженные ярлыками.

8.12 Хранение винтов следует производить под навесом.

9 ОСНОВНЫЕ ПРАВИЛА ТЕХНИЧЕСКОЙ ЭКСПЛУАТАЦИИ КОНСТРУКЦИЙ С ПРИМЕНЕНИЕМ ГИПСОВОЛОКНИСТЫХ ЛИСТОВ

КРЕПЛЕНИЕ НАВЕСНЫХ НАГРУЗОК

9.1 Способ крепления навесного оборудования или предметов интерьера зависит от величины распределенной погонной горизонтальной нагрузки (g). Эта нагрузка не должна превышать 150 кгс/м. Способы крепления предусмотрены для трех величин нагрузок: до 35 кгс/м; от 36 до 70 кгс/м; от 71 до 150 кгс/м.

9.1.1 Нагрузка g £ 35 кгс/м

9.1.1.1 Легкие грузы, такие как картины, фотографии, полки и т.п., масса которых не превышает 35 кг, навешиваются непосредственно на гипсоволокнистые листы с помощью крючков или дюбелей.

9.1.1.2 Крепление предметов массой до 35 кг на метр по длине стены с центром тяжести, удаленным на расстояние не более 30 см от стены, может выполняться в любой точке перегородки или облицовки с помощью анкерных изделий, пластмассовых или металлических дюбелей. Возможность применения того или иного крепления определяется его несущей способностью (таблица 9.1) и типом перегородки.

9.1.1.3 При закреплении предмета в нескольких точках минимальное расстояние между точками крепления в сантиметрах не должно превышать величину усилия в кгс, приходящегося на один крепежный элемент. Например, при креплении элемента массой 6 кг в двух точках расстояние между точками крепления должно быть не менее 3 см.

Таблица 9.1

Толщина обшивки, мм

Тип дюбеля

Пластмассовые дюбели

Металлические дюбели

Максимальная нагрузка, кгс, на дюбель диаметром, мм

6

8

6

8

10

15

20

30

40

12,5

20

25

30

50

10 + 10

30

35

40

55

12,5 + 12,5

35

40

50

60

9.1.2 Нагрузка 35 < g £ 70 кгс/м

9.1.2.1 Грузы массой от 35 до 70 кг на 1 метр длины стены и с удалением центра тяжести от стены до 30 см могут быть подвешены на любую часть стены, если общая толщина слоев гипсоволокнистых листов не менее 18 мм.

9.1.2.2 Для определения максимальной нагрузки (упругое растяжение) на дюбель используется следующая формула:

F = ,

где F - максимальная нагрузка (на упругое растяжение) на дюбель, кгс;

B - максимальная масса шкафа, кг;

е - удаление центра тяжести от стены, см;

n - число креплений при помощи дюбелей, шт;

а - опорное плечо, см.

9.1.3 Нагрузка 70 < g £ 150 кгс/м

9.1.3.1 Для крепления грузов массой от 70 до 150 кг на 1 м длины (умывальники, навесные унитазы, биде, душ, электрические щиты, навесные пожарные шкафы и т.д.) необходимо предусматривать применение закладных деталей (из профиля ПС) или траверс, которые устанавливаются между стойками каркаса и крепятся к ним в процессе монтажа.

9.1.3.2 Рекомендуется применять универсальную деревянную траверсу, указанную на рисунке 19.

9.2 Для крепления грузов к обшивке подвесного потолка рекомендуется использовать разжимные дюбели. В условиях возможного увлажнения листов обшивки указанные грузы рекомендуется закреплять непосредственно к элементам каркаса.

Рисунок 19 - Универсальная деревянная траверса

9.3 В процессе эксплуатации необходимо исключать возможность повреждения конструкций из гипсоволокнистых листов от механических и ударных воздействий.

9.4 При установке электрического оборудования не допускается сквозное сверление обшивки. Сверление следует производить только на толщину обшивки. Для этого необходимо использовать дрели с ограничителем.

9.5 При повышении влажности воздуха в помещении необходимо предусматривать дополнительные меры по защите конструкций из гипсоволокнистых листов.

10 ПРИЕМКА СМОНТИРОВАННЫХ КОНСТРУКЦИЙ С ПРИМЕНЕНИЕМ ГИПСОВОЛОКНИСТЫХ ЛИСТОВ

10.1 Смонтированные конструкции следует принимать поэтапно с оформлением соответствующих актов на скрытые работы (монтаж каркаса, прокладка силовой и слаботочной проводки, укладка изоляционного материала, заделка стыков гипсоволокнистых листов и т.д.).

10.2 При приемке работ по устройству перегородок, облицовок и потолков следует проверить отсутствие трещин, отбитых углов, устойчивость конструкций. Головки винтов должны быть утоплены в листы на глубину около 1 мм. На поверхности не должно быть наплывов шпатлевочного раствора.

10.3 В местах сопряжений шпатлевка должна быть уложена без разрывов по всему контуру сопряжения на всю глубину стыка.

10.4 Обшивки гипсоволокнистых листов не должны быть зыбкими; при легком простукивании деревянным молотком в зашпатлеванных стыках между листами не должны появляться трещины.

10.5 Заделанные стыки между гипсоволокнистыми листами не должны быть заметны.

10.6 Требования к готовым обшивкам из гипсоволокнистых листов приведены в таблице 10.1.

Таблица 10.1

Контролируемый параметр

Предельное значение

Измерение

Отклонение от вертикальности:

 

 

      поверхности перегородок и облицовок

1 мм на 1 м высоты

Не более чем через 3 м длины поверхности

      поверхности облицовок пилястр, откосов дверных и оконных проемов

5 мм на всю высоту

Каждое ребро пилястры, каждый откос

Отклонение от совпадения поверхностей двух смежных листов обшивки в стыке

1 мм

Измерения видимых несовпадений

Неровности поверхности плавного очертания:

 

 

      глубина

2 мм

Измерения видимых неровностей

      количество

2 шт. на 4 м2

ПРИЛОЖЕНИЕ А

(справочное)

ПЕРЕЧЕНЬ НОРМАТИВНЫХ ДОКУМЕНТОВ, НА КОТОРЫЕ ДАНЫ ССЫЛКИ В НАСТОЯЩЕМ СВОДЕ ПРАВИЛ

СНиП 2.01.07-85*        Нагрузки и воздействия.

СНиП II-3-79*              Строительная теплотехника.

СНиП II-12-77              Защита от шума.

СНиП II-25-80              Деревянные конструкции.

СНиП 2.03.11-85          Защита строительных конструкций от коррозии.

СНиП 2.03.13-88          Полы.

СНиП 21-01-97*          Пожарная безопасность зданий и сооружений.

СНиП 2.04.05-91*        Отопление, вентиляция и кондиционирование.

СНиП 3.04.01-87          Изоляционные и отделочные покрытия.

СНиП III-4-80*             Техника безопасности в строительстве.

ГОСТ 125-79                Вяжущие гипсовые. Технические условия.

ГОСТ 8486-86              Пиломатериалы хвойных пород. Технические условия.

ГОСТ 9573-96              Плиты из минеральной ваты на синтетическом связующем теплоизоляционные. Технические условия.

ГОСТ 10354-82            Пленка полиэтиленовая. Технические условия.

ГОСТ 10499-78            Изделия теплоизоляционные из стеклянного штапельного волокна.

ГОСТ 10702-78            Прокат из качественной конструкционной углеродистой и легированной стали для холодного выдавливания и высадки. Технические условия.

ГОСТ 14198-78            Циклогексан технический. Технические условия.

ГОСТ 15588-86            Плиты пенополистирольные. Технические условия.

ГОСТ 12.1.004-91        ССБТ. Пожарная безопасность. Общие требования.

ГОСТ 12.1.044-89        ССБТ. Пожаровзрывоопасность веществ и материалов. Номенклатура показателей и методы их определения.

ГОСТ 27296-87            Защита от шума в строительстве. Звукоизоляция ограждающих конструкций зданий. Методы измерения.

ГОСТ 30244-94            Материалы строительные. Методы испытаний на горючесть.

ГОСТ 30247.0-94         Конструкции строительные. Методы испытаний на огнестойкость. Общие требования.

ГОСТ 30247.1-94         Конструкции строительные. Методы испытаний на огнестойкость. Несущие и ограждающие конструкции.

ГОСТ 30402-96            Материалы строительные. Метод испытания на воспламеняемость.

ГОСТ 30403-96            Конструкции строительные. Метод определения пожарной опасности.

ГОСТ 30444-97            Материалы строительные. Метод испытания на распространение пламени.

ГОСТ Р 51829-2001     Листы гипсоволокнистые. Технические условия.

СП 23-101-2000           Проектирование тепловой защиты зданий.

НПБ 231-96                  Потолки подвесные. Метод испытания на огнестойкость.

НПБ 236-97                  Огнезащитные составы для стальных конструкций. Общие требования. Метод определения огнезащитной эффективности.

НПБ 244-97                  Материалы строительные. Декоративно-отделочные и облицовочные материалы. Материалы для покрытия полов. Кровельные, гидроизоляционные и теплоизоляционные материалы. Показатели пожарной опасности.

ВСН 27-95                    Инструкция по технологии монтажа и отделке сборных гипсокартонных перегородок на металлическом каркасе поэлементной сборки.

ВСН 28-95                    Инструкция по технологии монтажа и отделке потолков индустриальными методами.

ВСН 36-95                    Инструкция по индустриальным методам отделки интерьеров. Облицовка стен.

ПРИЛОЖЕНИЕ Б

(справочное)

ХАРАКТЕРИСТИКИ МЕТАЛЛИЧЕСКИХ ПРОФИЛЕЙ

Таблица Б.1

Марка профиля

Ширина стенки, h, мм

Высота полки, b, мм

Толщина, t, мм

Площадь сечения, см2

Jx, см4

Wx, см3

Jy, см4

Wy, см3

Z0, см

ПС 50/50

50

50

0,6

0,893

4,24

1,69

2,14

1,44

1,68

ПС 65/50

65

50

0,6

0,98

6,98

2,79

2,68

1,74

1,54

ПС 75/50

75

50

0,6

1,04

10,31

2,75

2,8

1,93

1,45

ПС 100/50

100

50

0,6

1,19

19,63

3,39

3,69

2,9

1,27

ПН 50/40

48,8

40

0,6

0,773

3,5

1,4

1,34

1,07

1,25

ПН 65/40

63,8

40

0,6

0,86

5,74

2,87

1,46

1,29

1,13

ПН 75/40

73,8

40

0,6

0,92

8,65

2,3

1,53

1,45

1,05

ПН 100/40

98,8

40

0,6

1,07

16,67

3,38

1,67

1,83

0,91

ПН 28/27

28,4

27

0,6

0,445

0,65

0,46

0,404

0,44

0,91

ПП 60/27

60

27

0,6

0,62

3,55

1,18

0,448

0,68

0,66

ПРИЛОЖЕНИЕ В

(справочное)

МАТЕРИАЛЫ ДЛЯ УСТРОЙСТВА КОНСТРУКЦИЙ С ПРИМЕНЕНИЕМ ГИПСОВОЛОКНИСТЫХ ЛИСТОВ, ПОСТАВЛЯЕМЫЕ ПРЕДПРИЯТИЯМИ ГРУППЫ КНАУФ*

Таблица В.1 - Материалы, поставляемые предприятиями группы КНАУФ

Материал

Упаковка

Гипсоволокнистые листы и изделия на их основе

ГВЛ с кромкой ПК

Пакет 50 листов (лист 10 мм)

Пакет 42 листа (лист 12,5 мм)

Пакет 70 листов (малоф. лист)

ГВЛ с кромкой ФК

ГВЛВ с кромкой ПК

ГВЛВ с кромкой ФК

Элемент пола

Пакет 70 элементов

Металлические профили

Профиль стоечный ПС 50 (65, 75, 100)/50

Пакет 8; 12 шт.

Профиль направляющий ПН 50 (65, 75, 100)/40

Пакет 8; 12 шт.

Профиль потолочный ПП 60/27

Пакет 12 шт.

Профиль направляющий ПН 27/28

Пакет 24 шт.

Профиль угловой ПУ 31/31

Пакет 10 шт.

Профиль гнутый (выпуклый и вогнутый)

-

Подвесы и соединители

Подвес прямой для профиля ПП 60/27

Коробка 100 шт.

Подвес прямой для деревянных брусков

Коробка 100 шт.

Подвес с зажимом

Коробка 100 шт.

Тяга подвеса (500, 850, 1000)

Коробка 100 шт.

Удлинитель профилей ПП 60/27

Коробка 100 шт.

Соединитель двухуровневый

Коробка 100 шт.

Соединитель одноуровневый

Коробка 50 шт.

Винты самонарезающие

Винт самонарезающий (шуруп) с острым концом для ГВЛ (22, 30, 45 мм)

Коробка 1000 шт.

Винт самонарезающий (шуруп) с острым концом для элементов пола (19 мм)

Коробка 1000 шт.

Винт самонарезающий (шуруп) с высверливающим концом (25, 35, 45 мм)

Коробка 1000 шт.

Винт самонарезающий (шуруп) с острым концом для металла (9, 11 мм)

Коробка 1000 шт.

Дюбели

Дюбель анкерный пластмассовый (d=6 мм, 8 мм)

Коробка 25, 50, 100, 200 шт.

Дюбель анкерный металлический (d=6 мм, 8 мм)

Дюбель универсальный (d=6 мм, 8 мм)

Дюбель для пустотелых конструкций

Дюбель для крепления навесного оборудования на ГВЛ

Шпаклевочные составы

КНАУФ «Фугенфюллер ГВ»

Мешок 5, 10, 30 кг

КНАУФ «Унифлот»

Мешок 5, 25 кг

КНАУФ «Финиш-паста»

Ведро 20 кг

Грунтовочные составы

Грунтовка глубокого проникновения КНАУФ «Тифенгрунд»

Ведро 5 л

КНАУФ «Флехендихт»

Ведро 6 кг

Строительные ленты

Уплотнительная самоклеящаяся лента КНАУФ «Дихтунгсбанд» (30, 50, 70, 95 мм).

Рулон 30 м

Армирующая лента (серпянка) (50 мм)

Рулон 20-150 м

Угловая армирующая лента

Гидроизоляционная лента КНАУФ «Флехендихтбанд»

Рулон 10 м

Разделительная лента

Рулон 66 м

Материалы для оснований под покрытия полов

Сухая керамзитовая засыпка

Мешок 30 кг (50 л)

Кромочная лента

Пакет, рулон

Клей для оснований пола

Ведро, канистра

Подстилающая бумага

Рулон

Пленка полиэтиленовая

Рулон

* К предприятиям группы КНАУФ, осуществляющим комплектные поставки материалов для устройства конструкций с применением гипсоволокнистых листов, относятся: ОАО «Авангард КНАУФ», ООО «Уралгипс КНАУФ Маркетинг», ЗАО «ТИГИ КНАУФ Маркетинг», ООО «Гипс КНАУФ Маркетинг», ООО «Кубань КНАУФ», ООО «Мостаф КНАУФ Маркетинг» и другие предприятия группы.

ПРИЛОЖЕНИЕ Г

(справочное)

ИНСТРУМЕНТЫ

Таблица Г.1- Комплект основного инструмента, необходимого при устройстве конструкций на основе гипсоволокнистых листов

№ п.п.

Вид

Название, назначение

1

Просекатель для скрепления профилей методом «просечки с отгибом»

2

Приспособление для поддержки гипсоволокнистых листов при монтаже в вертикальном положении

3

Приспособление для крепления угловых профилей

4

Приспособление шнуроотбойное

5

Приспособление для переноски гипсоволокнистых листов

6

Ножницы по металлу (ручные)

7

Электрические ножницы для резки профиля

8

Шуруповерт

9

Короб для шпаклевки (нержавеющий)

10

Кельма для шпаклевки к коробу

11

Рубанок обдирочный с запасными полотнами

12

Нож для ГВЛ

13

Шпатель с отверткой

14

Шпатель широкий

15

Шпатель для внутренних углов

16

Шпатель для наружных углов

17

Зубчатый шпатель

18

Уровень

19

Монтажное приспособление «Метростат 300» с насадкой

20

Комплект нивелирующих реек для выравнивания сухой засыпки

21

Ручное шлифовальное приспособление со съемными сетками

22

Нож с выдвижным лезвием

ПРИЛОЖЕНИЕ Д

(рекомендуемое)

ОБЛАСТИ ПРИМЕНЕНИЯ СБОРНЫХ ОСНОВАНИЙ ПОД ПОКРЫТИЯ ПОЛА ИЗ ГИПСОВОЛОКНИСТЫХ ЛИСТОВ В ЗДАНИЯХ РАЗЛИЧНОГО НАЗНАЧЕНИЯ

Конструкции полов со сборными основаниями из гипсоволокнистых листов под покрытия полов применяются:

- в жилых зданиях (перекрытия между помещениями разных квартир и помещениями внутри одной квартиры; перекрытия между помещениями квартир, чердачными и подвальными помещениями, а также холлами; перекрытия между жилыми комнатами общежитий, а также перекрытия, отделяющие помещения культурно-бытового обслуживания общежитий друг от друга и от помещений общего пользования (холлы, вестибюли, коридоры);

- в гостиницах (перекрытия между номерами; перекрытия, отделяющие номера от помещений общего пользования - вестибюли, холлы, буфеты);

- в зданиях управлений общественных организаций (перекрытия между рабочими комнатами, кабинетами, секретариатами и отделяющие эти помещения от помещений общего пользования (вестибюли, холлы); перекрытия, отделяющие рабочие комнаты, кабинеты от рабочих, не защищаемых от шума помещений (машбюро, телетайпные залы и т.п.);

- в больницах и санаториях (перекрытия между палатами, кабинетами врачей; перекрытия, отделяющие палаты, кабинеты врачей от помещений общего пользования (вестибюли, холлы);

- в школах и других учебных заведениях (перекрытия между классными помещениями, учебными кабинетами и аудиториями и отделяющие эти помещения от помещений общего пользования (коридоры, вестибюли, холлы);

- в детских яслях-садах (перекрытия между групповыми комнатами, спальнями и между другими детскими комнатами; перекрытия, отделяющие групповые комнаты, спальни от кухонь);

- во вспомогательных зданиях и помещениях промышленных предприятий (перекрытия между помещениями для отдыха, учебных занятий, здравпунктами, рабочими комнатами управлений и конструкторских бюро, кабинетами, помещениями общественных организаций и отделяющие эти помещения от помещений общего пользования (вестибюли, гардеробные); перекрытия между помещениями лабораторий, красных уголков, залами для собраний, столовыми);

- в торговых залах и предприятиях общественного питания;

- в зданиях культурно-просветительных и зрелищных учреждений.

Ключевые слова: конструкции из гипсоволокнистых листов, комплектующие материалы и изделия перегородки, облицовка стен и мансардных помещений, подвесные потолки, огнезащита несущих конструкций, коммуникационные шахты, основания под покрытия полов




Rambler's Top100 Яндекс цитирования
  Copyright © 2008-2026, www.docload.ru